Привод цепного конвейера
Содержание
Техническое задание
. Техническое предложение
1.1 Введение
1.2 Энергетический и кинематический расчеты привода и
выбор электродвигателя
.3 Проектировочный и проверочный расчеты зубчатой
передачи
.4 Предварительный расчет диаметров валов
.5 Расчет цепной передачи
.6 Подбор муфт
2. Эскизный проект
.1 Основные геометрические параметры передачи
2.2 Конструкция зубчатых колес
2.3 Смазка зацеплений и подшипников
.4 Усилия в передаче
.5 Расчет валов на изгиб и кручение
.6 Подбор подшипников
3. Технический проект
3.1 Проверка опасного сечения тихоходного вала на
долговечность
Список использованной литературы
Кафедра
«ДЕТАЛИ МАШИН»
ТЕХНИЧЕСКОЕ ЗАДАНИЕ
на курсовой проект по курсу__”Детали машин и основы конструирования”
Студент ____Коган
А..______
Группа _____04-ТОМ___________
Факультет _____ФМВТ______________
Тема проекта __Привод цепного транспортера__________________
________________(редуктор цилиндрический, одноступенчатый)_____
Исходные данные: 1. Окружное усилие на барабане F=2500 Н
.Скорость ленты υл=1,5 м/с
. Диаметр барабана Dб=600мм
. Срок службы n=8
лет при работе в 1 смену (по 8 часов)
Схема задания:

Кинематическая схема привода Циклограмма нагружения
Студент_______________________ _________________
Руководитель__________________ _________________
1. ТЕХНИЧЕСКОЕ ПРЕДЛОЖЕНИЕ
1.1 Введение
Транспортеры обеспечивают перемещение изделий между основным
оборудованием цехов, со складов и на склады, между цехами и т.д. Самыми
распространенными являются ленточные и цепные конвейеры.
Цепной транспортер состоит из приводной станции, тягового органа (цепь),
натяжной станции, поддерживающих роликов, устройств для загрузки и разгрузки
транспортера и рамы.
Приводная станция включает (рис. 1 задания) электродвигатель 1,
одноступенчатый цилиндрический редуктор 3, установленный на общей раме на
фундаменте, и соединительные муфты 2, 4. Ось приводного барабана 5.
Согласно графику нагрузки (рис. 2) режим работы транспортёра стационарный.
Транспортёр установлен в помещении, условия работы нормальные. (t=200)
Масштаб выпуска привода - крупносерийный. Основной способ получения
заготовок корпусных деталей - литьё; зубчатых колес - прокат или поковка.
1.2 Энергетический и кинематический расчет
привода и выбор электродвигателя
.2.1 КПД привода
Общий КПД привода [1]:
η0=η1·η2·η3·η4=0,98·0,97·0,94·0,99=0,88
η1=0,98 - к.п.д. муфты
η2=0,97 - к.п.д. цилиндрической
ступени редуктора
η3=0,94 - к.п.д. цепной передачи
η4=0,99 - к.п.д. пары подшипников
1.2.2Подбор электродвигателя
Потребная мощность [1]:
двпотр
=F·V/ (1000·η0)=4.26 [кВт],
КЕ - коэффициент приведения заданного переменного режима нагружения к
эквивалентному постоянному.
КЕ=[∑(Ti
/Tnom)2(Lhi/Lh)]1/2=0.85;
Тном = Тб - номинальный момент :
nб -
частота вращения приводного барабана, мин-1:
nб
=6·104·V/π·D=6·104·1,5/3,14·600=47,77 мин -1
Таблица 1.1 - Характеристика двигателей
|
Марка двигателя
|
Рдв, кВт
|
nдв, мин-1
|
Тпуск /T
|
Tmax/T
|
Масса, кг
|
|
АИР100L2У3
|
5,5
|
2850
|
2,1
|
2,4
|
38,0
|
|
АИР112М4У3
|
5,5
|
1430
|
2,0
|
2,5
|
49,0
|
|
АИР132S6У3
|
5,5
|
960
|
2,0
|
2,2
|
68,5
|
|
АИР132М8У3
|
5,5
|
715
|
1,8
|
2,2
|
82,0
|
1.2.3 Общее передаточное число и его разбивка по
ступеням передач
Общее число привода U0’= nД / nБ и его разбивка по ступеням передач для 4-х вариантов
двигателей приведены в таблице 1.1
Используем следующие рекомендации:
Uс=1,5..3 Uред=2,5..5
Отклонение общего передаточного числа при округлении:
ΔU = ( U0’ - U0 / U0’)·100%<±4%
Таблица 1.2 - Разбивка U0’ по
ступеням передач
|
Марка двигателя
|
U0’
|
Uред’
|
Uс’
|
U0
|
Uред
|
Uс
|
ΔU, %
|
|
АИР132 М8У3
|
14.97
|
5
|
2.99
|
14
|
5
|
2.8
|
3.8
|
Выбираем
ДВИГАТЕЛЬ АИР132M8У3
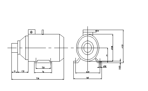
Габаритные и присоединительные размеры из табл. П3 [15, с.26] принятого
электродвигателя показаны на рисунке 1.1. и в таблице 1.3.
Форма исполнения двигателя - IМ 1081.
Таблица 1.3 - Размеры двигателя
|
Двигатель
|
Габаритные размеры, мм
|
Установочные и
присоединительные размеры, мм
|
|
l30
|
h31
|
d30
|
d1
|
l1
|
b1
|
h1
|
L10
|
l31
|
d10
|
b10
|
h
|
h10
|
|
АИР132М8У3
|
498
|
325
|
288
|
38
|
80
|
10
|
8
|
178
|
89
|
12
|
216
|
132
|
13
|
Рисунок
1.1. Размеры электродвигателя к таблице 1.3.
1.2.4 Частоты вращения и моменты на валах
Частоты вращения i-го
вала [1, с.14]:
=n1/u1-i,
где u1-i - передаточное число между валом двигателя (i-1) и i-м валом привода (рисунок 1.2).
Направления вращения валов на рисунке 2 показаны стрелками.
Рисунок 1.2 -Кинематическая схема привода
Таблица 1.4 - Частоты вращения и моменты на валах
|
Вал
|
u1-i
|
ni, мин-1
|
u5-j
|
η5-j
|
Tj, Нм
|
|
I
|
1
|
715
|
13,5
|
0.88
|
59.95
|
|
II
|
1
|
715
|
13,5
|
0.93
|
58.75
|
|
III
|
5
|
143
|
3
|
0.97
|
284.94
|
|
IV
|
14
|
51.07
|
1
|
1
|
750
|
|
V
|
14
|
51.07
|
1
|
1
|
750
|
1.3 Проектировочный расчеты зубчатой передачи
Зубчатые передачи обеих ступеней закрытые. Основной характер разрушения -
усталостное выкрашивание активных поверхностей зубьев под действием контактных
напряжений. Промежуточный расчет следует начинать с определения межосевого
расстояния αw из
условий сопротивления контактной усталости.
1.3.1 Материал и термообработка зубчатых колес
В целях унификации материалов для зубчатых колес обеих ступеней с учетом
мелкосерийного производства принимаем сталь 40Х ГОСТ 4543-71
По рекомендациям, чтобы получить H1m-H2m>100HB,
назначаем термообработку зубьев:
шестерен z1 - поверхностную
закалку ТВЧ(ТВЧ1);
колес z2 - улучшение(У2);
Механические свойства стали 40Х после термообработки с предположением,
что D≤125мм и S≤80 мм, даны в таблице 1.5
Таблица 1.5 - Механические свойства Z1 и Z2 из
стали 40Х
|
Наименование параметра
|
Зубчатое колесо
|
Примечание
|
|
шестерня Z1
|
колесо Z2
|
|
|
1 Термообработка 2
Твердость поверхности средняя по Роквеллу по Брюнеллю по Веккерсу 3 Предел
прочности σВ, МПа 4 Предел текучести σТ, МПа
|
закалка ТВЧ (ТВЧ1) (40…50) HRCЭ
47,5 HRCЭ 460 НВ 500 HV 900 750
|
улучшение (У2) (269…302) HB
- 285 НВ 290 HV 900 750
|
[2, c.3,
puc.1.1] то же
|
|
Примечание - H1m-H2m=460-285=175>100 HB
|
1.3.2 Режимы работы передачи и число циклов
перемены напряжений
Коэффициенты приведения заданного переменного режима к эквивалентному
постоянному
µ=∑(Ti/Tmax)m(Lhi/Lh),
где m - показатель степени отношения
моментов: mH=qH/2; mF=qF,
q -
показатель степени усталости: qH=qF=6 и тогда mH=3, mF=6.
При расчете по контактным напряжениям σН :
µН2=µН1=µН=0,66;
при расчете по напряжениям изгиба σF :
µF2=µF1=µF=0.58.
Судя по величинам µН и µF
заданным режим работы наиболее приближается к типовому тяжелому.
Требуемая долговечность передачи в часах:
=365*24*kГ*kC*h=365*24*0.8*0.3*8=16819.2
часов
где kГ=0,8 - коэффициент годового
использования;
kC=0,3
- коэффициент суточного использования;
h=8
лет - срок службы передачи в годах.
Суммарное число циклов перемены напряжений за весь срок службы
∑=60ncLh,
где n - частота вращения зубчатого колеса,
мин-1;
с - число зацеплений зуба за один оборот зубчатого колеса: с=1.
Эквивалентное число циклов перемены напряжений [2,
с.8]:
NE = μNΣ (
;
).
Базовое число циклов перемены напряжений [2, с.9] :
по контактным напряжениям NHlim = 30Hm2,4≤120·106
где Нт - средняя твердость поверхности зубьев по
Бринеллю;
по изгибным напряжениям : NFlim = 4·106 .
Результаты расчета NΣ, NHE ,NFE , NFlim
, представлены в таблице 1.6.
Таблица 1.6 - Число циклов перемены напряжений в зубьях
|
Ступень и зубчатое колесо
|
n, мин-1
|
Число циклов N в
миллионах
|
|
|
NΣ
|
NHE
|
NHlim
|
Сравнение NHE
с NHlim
|
NFE
|
Сравнение NFE с
NFlim
|
|
Б.ст.
|
Z1
|
715
|
721,5
|
476,2
|
73,75
|
NHE >NHlim
|
418,5
|
NFE >NFlim
|
|
Z2
|
143
|
144,3
|
92,3
|
23,37
|
NHE>NHlim
|
83,72
|
NFE >NFlim
|
1.3.3 Допускаемое контактное
напряжения на сопротивление усталости
Расчетное допускаемое контактное напряжение σHP [2, с.10], МПа:
σHPmin≤ σHP
=0,45·( σHP1
+ σHP2 )≤A· σHPlim , (1,8)
где А = 1,25 - для цилиндрической передачи (Т.ст.) и
(Б.ст.);
σHPi (i= 1, 2) - допускаемые напряжения в прямых зубьях, МПа;
σHPmin - наименьшее из двух значений σHP1 и σHP2.
Согласно [2, с.9]
(1,9)
где
σHlimbi
- базовый предел контактной выносливости зубьев, МПа, [2, с.9]:
для
шестерен Z1 (закалка ТВЧ)
σHlimb1 =17·HHRCЭ
+200 =17·47,5+200=1008 МПа
для колес Z 2 (улучшение)
σHlimb2 = 2HHB + 70 = 2·285 + 70 = 640 МПа ;
ZN i - коэффициент долговечности [2, с. 10] в зависимости от
отношения NHlim /NHE ;
SHi - коэффициент запаса прочности [2, с. 10] :
для Z 1 SH1 = 1 ,2 ; для Z 2 SH2=1,1;
произведение
.
Расчеты
по формулам (1.8), (1.9) представлены в таблице 1.7.
Таблица
1.7-Допускаемые контактные напряжения σHP , МПа
|
Ступень, зубчатое колесо
|
NHlim /NHE
|
ZN
|
σHPi
(1.9) (((((((((((((((((((1.9)
|
AσHPmin
|
σHP
(1.8)
|
|
Б.ст.
|
Z 1
|
0,155
|
0,91
|
687,96
|
|
528,72
|
|
Z 2
|
0,256
|
0,93
|
486,96
|
608,73
|
|
1.3.4 Коэффициенты расчетной
нагрузки при расчете по контактным напряжениям
По ГОСТ 2 1 354-87 [2, с. 12] :
KH
= KA KHV KHα KHβ (1.10)
где КА - коэффициент, учитывающий влияние внешней
динамической нагрузки; КА = 1
KHV - коэффициент внутренней динамической нагрузки в
зацеплении;
KHβ - коэффициент, учитывающий
неравномерность распределения нагрузки по длине контактных линий вследствие
деформаций :
-
для цилиндрической передачи [2, с. 14]
KHβ = 1+( KHβ0 -1)KHW , (1.11)
где KHβ0 - начальное (до приработки)
значение коэффициента KHβ [2, с. 1 6];
KHW - коэффициент, учитывающий влияние приработки зубьев
[2, с. 1 6];
KHα - коэффициент, учитывающий влияние
погрешностей изготовления на распределение нагрузки между зубьями:
для цилиндрической косозубой передачи [2, с. 17]
KHα = 1 + (KHα0 - 1) KHW , (1.12)
где - KHα0 начальное значение до приработки
зубьев : при H2<350[2,c.17]
KHα0 =1+0,25(nст -5)≤1,6 , (1.13)
где nст -
число степени точности передачи по нормам плавности.
В таблице 1.8 приведены величины коэффициентов рабочей
ширины зубчатых венцов Kbe ,ψba ,ψbd по рекомендациям [2,c.13,14]
Таблица 1.8 - Коэффициенты Kbe ,ψba ,ψbd
|
Параметры
|
Ступень редуктора
|
|
Тип передачи Схема
[2,рисунок 4.1] Коэффициенты Kbe ,ψba
Передаточное число u Коэффициент ψbd
|
Цилиндрическая косозубая 7 ψba
=0,4 (H2< 350HB) 5 1,2
|
Расчет коэффициентов, ходящих в формулу (1.10)
выполнен в таблице 1.9
Таблица 1.9 - Коэффициенты расчетной нагрузки КН
|
Наименование параметра
|
Источник
|
Ступень редутора редуктора
|
Примечание
|
|
1 Частота вращения n1
мин-1
|
табл. 1.4
|
715
|
|
|
2 Момент Т1 ,Н·м
|
табл. 1.4
|
58,75
|
|
|
3 Скоростной коэффициент СVm(CV)
|
[2,c.18]
|
1600
|
ТВЧ1+У2
|
|
4 Окружная скорость νm(ν),м/с
|
[2,c.17]
|
1,36
|
|
|
5 Степень точности
|
[2,c.18]
|
8
|
|
|
б Твердость-зубьев средняя
по Виккерсу HVmin
|
Таб.1.5
|
H1>350HB;H2<350HB
290
|
|
|
7 Коэффициент KHV
|
[2, c.15]
|
1,04
|
|
|
8 Коэффициент КHβ0
|
[2, c.16]
|
|
|
9 Коэффициент КHW
|
[2, c.17]
|
0,45
|
|
|
10 Коэффициент КHβ
|
(1.11),(1.12)
|
1,27
|
|
|
1 1 Коэффициент KHα0' принято Кна
|
(1.14)
|
1,75
1,6
|
Н2<350HВ
|
|
12 Коэффициент Кна
|
(1.13)
|
1,27
|
|
|
13 Коэффициент Кн
|
(1.10)
|
1,68
|
|
1.3.5 Расчет
цилиндрических передач
Межосевое расстояние косозубой цилиндрической передачи
с внешним зацеплением из условия сопротивления контактной усталости активных
поверхностей зубьев [2, с 19]:
αW’=410(u+1)[T1KH/(ψbαuσHP2)]⅓ (1.14)
αW’=410(5+1)[ 58,75·1,68∕(0,4·5·528,722)]⅓=138
мм
По заданию выпуск массовый - передача стандартная;
принимаем αW = 140 мм.
αWТ= αWБ= αW=112 мм
Допускаемое напряжение на изгиб в зубьях шестерни[2,c.10]
σFP1=0,4 σFlimb1YN1 , (1.15)
где σFlimb11
- базовый предел изгибной выносливости зубьев [2,c.11].
Предполагая mn ≤3 мм и при этом сквозную
закалку зубьев, будем иметь
σFlimb11=550 Мпа
YN1 -
коэффициент долговечности при изгибе. Так как NFE1>NFlim,то
YN1=1,0
σFP1=0,4·550·1=220 МПа
Параметры цилиндрической передачи [2,c.20], [3,c.4]
представлены в таблице 1.10.
Таблица 1.10 - Параметры ступеней редуктора
|
Наименование параметра
|
Формула, источник
|
Быст.
|
|
1 Ширина зубчатого верца,
мм : b2'=bW ' принято: колесо b2=bW
шестерни b1
|
ΨbααW
Передача стандартная b2·1,12
|
56 56 61
|
|
2 Модуль, мм минимальный mmin'
рекомендуемый mn принято m
|
3500Т1(u+1)/(αWbWσFP1) (0,01…0.02)αW ГОСТ 9563 - 60
|
0,71 1,4…2,8
2
|
|
3 Минимальный угол наклона
зубьев βmin
,град. При εβ≥1,1
|
arcsin(4m/bW)
|
8,2132
|
|
4 Суммарное число зубьев zΣ ' округление zΣ
|
2αWcosβmin/m До целого числа
|
138,564 138
|
|
5 Фактический угол наклона
зубьев β
|
arcos[zΣm/(2αW)]
|
9,69632 9º41'47''
|
|
6 Числа зубьев шестерни z1'
принято z1 колесо z2
|
zΣ/(u+1)
zΣ- z1
|
23 23 115
|
|
7 Фактическое передаточное
число u
|
z2/ z1
|
5
|
|
8 Диаметры окружностей при
х1=х2=0, мм: -делительных шестерни d1 колеса d2
-вершин зубьев da1 da2 -впадин зубьев df1 df2
|
mz1/cosβ mz2/cosβ d1 + 2m d2 + 2m d1 - 2.5m d2 - 2.5m
|
46.67 233.33
50.67 237.33 41.67 228.33
|
|
9 Окружная скорость v, м/с
|
πd1n1/6*104
|
1.75
|
|
|
|
|
1.4 Предварительный расчет диаметра валов
Диаметры для быстроходного вала [7,c.42]:
конца
вала d´=d≥(7…8)
Б, посадки подшипника dБ≥d +2t буртик dБП≥dБ+3r
Диаметры
для тихоходного вала :
конца
вала d´=d≥(5…8)
Т, посадки подшипника dТ≥d +2t буртик dТП≥dТ+3r
Вал
Т,Н·м d´,мм d
Быстроходный
58.75 28.21 32
Тихоходный
284.94 36.19 36
1.5 Расчет цепной передачи
. T1=284.94 Н·м
. n1 =143 мин-1
. U=2.8
. Число зубьев:
Z1min=29-2U≥13
Z’1min=29-2·2.8=23.4 Z1=23
Z’2=2.8·23=65.52
Z2=66
. Фактическое: U=2.8
. Давление: [p]0=30 МПа, при a>650
. Число рядов цепи: 1
Коэффициент mP=1
. Расчетный шаг:
Э
=1.5 по ГОСТ 13568-75: 25,4
.
Z1min=9+0,2·P=9+0,2·25,4=14
10. Уточнение:
’1=22·103·T1·KЭ /(P3·[p]0mP)=23
Принято: Z1=23 Z2=Z1·U=23·2.8=66
. Окончательно: U=2.8
. Диаметры:
dд1=P /sin(1800/Z1)=25,4
/sin(1800/23)=186.54 мм
dд2=P /sin(1800/Z2)=25,4
/sin(1800/66)=533.82 мм=P·[0,5+ctg(1800/Z1)]=25,4·[0,5+ctg(1800/23)]=200.12
мм=P·[0,5+ctg(1800/Z2)]=25,4·[0,5+ctg(1800/66)]=548.54 мм
13. Межосевое расстояние:
оптимальное: a=(30…50)P=(30…50)·25,4=762…1270 мм
принято: aP=40
. Число звеньев: W’=2·aP +0,5·Z∑+Δ2/aP=2·40+0,5·89+29,28/40=125.67
где: Z∑=Z1+Z2=23+66=89
Δ2=[(Z2-Z1)/2π] 2=[(66-23)/2·3,14] 2=29,28
Округление: W=126
. Длина цепи: L=10
-3·W·P=10 -3·126·25,4=3.2 м
. Межосевое расстояние:
a’=0,25·P·[W-0,5·Z∑+√(W-0,5·Z∑)2
- 8·Δ2]=
=0,25·25,4·[126-0,5·89+√(126 -0,5·89)2 -
8·29,28]=1020.24 мм
Δ a =(0,002…0,004)·a’ Δ a=1,5…5
Окончательно: a=1015.14
мм
. Цепь по ГОСТ 13568-75: ПРА 25,4 - 6000
Fраз=60
кН
q=2,6
кг/м
Aш=179
мм2
. Давление в шарнирах:
=2000·T1·KЭ/(dд1·Aш·mP)=25.6<[p]0=30 МПа
. Скорость цепи :
υ=π·dд1·n1/60000=1,39 м/с
. Натяжение цепи :
привод электродвигатель вал кручение
Ft=2000·T1/dд1=3055 H
Fq=60·q·a·cosψ=155.35 Н
Fυ=q·υ2=5.02 Н
F1max=KдFt+Fq+Fυ=3215.37 Н (Кд=1)
. Коэффициент :
=Fраз/F1max=60000/3215.37=18.66>8,13
допускаемый:
>[s]
.Число ударов цепи:
=z1·n1/15·w=1.74
с-1
допускаемое
[w] =20 с-1 w<[w]
. Силы на валах по осям X,Y:
= F1max=3215.37 H
F2=Fq+Fυ=160.37 H
γ=57,3(dд2-dд1)/a=57,3·(347.28)/1015.14=19.60
FBX=F1·cos(γ/2
-ψ)+F2·cos(γ/2 +ψ)= 3180.14H
FBY=F1·sin(ψ-
γ/2)+F2·sin(ψ+ γ/2)=1024.8H
На рисунке 1.3 показаны натяжения ведущих и ведомых ветвей цепи (верхняя
ветвь ведущая).
Рисунок
1.3 - Силы на валах звездочек
Рисунок 1.4 - Конструкция звездочек
1.6 Подбор муфты
Для соединения входного конца быстроходного вала
редуктора с двигателем применяют муфту упругую втулочно-пальцевую ГОСТ
214525-93.
Рабочий момент , передаваемый муфтой :
Траб = К1К2К3Тт≤ [Тм].
Где К1 - коэффициент, учитывающий степень
ответственности привода: поломка вызывает остановку машины - К1 = 1;
К2 - коэффициент условий работы : работа неравномерно
нагруженных механизмов
К2 = 1,2;
К3 - коэффициент углового смещение валов: перекос до
0,5˚ - К3 = 1,25;
Тд - момент на валу двигателя ; Н∙м ;
[Тм] - допускаемый момент по паспорту муфты ; Н∙м
;
Траб = 1∙1,2∙1,25∙59,95=107,91 Н∙м
По ГОСТ на муфты при диаметре вала d = 32мм имеем [Тм] = 250Н·м;
габаритные размеры муфты D*L=140*114 мм, длина полумуфты l=58 мм; длина полумуфты 2=56 мм
Выбираем муфту упругую втулочно - пальцевую (МУВП).
Обозначение муфты: МУФТА 250 - 32 -I..38 -II..2- У3 ГОСТ 21424 -93
2. Эскизный проект
.1 Основные параметры привода
.1.1Параметры редуктора
Т.ст. αW bW mn β z1 z2 uТ d1 d2 df1
56 2 9º41'47'' 23 115 5 46.67 233.33 41.67
2.1.2 Общее передаточное
число привода
=i · uред =14
Уточнение n i и Тj формулам (1.6) и (1.7):
Вал (рисунок 1.2) Ι ΙΙ ΙΙΙ ΙV Vi, мин -1 715 715 143 51.07 51.07
Тj, Н·м 59.95 58.75 284.95 750 750
Скорости ν1 =1.75 м/с
2.1.3 Диаметры валов редуктора, мм:
под зубчатыми колесами dБ= 32 dТ=36
под подшипники качения dБП= 35 dТП=40
Диаметр вала приводного барабана d= 45
2.2 Проверочный расчет зубчатых передач редуктора
.2.1 Проверка выбора механических характеристик
материала
Диаметры заготовок шестерен z1 [2,c.5]:
Тихоходной ступени
'= da1 + 6
1 = 50.67
D' =
50.67 + 6=56,67 мм<[125мм]
Толщины ободов заготовок колес [2,c.5]:
S' =δ=2,2m
+0,05b2=
,2·2+0,05·56=7.2 мм'=c=0,3 b2=0,3·56=16.8 мм' = 16,8<[80мм]
Механические характеристики материала обеих ступеней редуктора по
заготовок выбраны правильно.
2.2.2 Допускаемое напряжения
Допускаемые расчетные контактные напряжения (таблица 1.7) не изменились
σHP =528.72МПа;
Уточненные допускаемые напряжения на сопротивления усталости при изгибе
определяют раздельно для z1 и z2 по формуле [3,c.14]:
σFP = σFlimbYNYδYRYX /SF , (2.1)
σFlimb=550 МПа (с.15) - базовый предел выносливости на
изгиб;
SF=1,7
[2,c.11] - коэффициент запаса прочности;
YN -
коэффициент долговечности; так как NFE >NFlim =4·106, то YN =1;
Yδ = 1,082- 0,172lgm[3,c.4] - опорный коэффициент;
Yδ = 1,082- 0,172·lg2 = 1.03;
YN -
коэффициент
YR -
коэффициент шероховатости переходной поверхности [3,c.14]; при зубофрезовании и шлифовании YR =1;
YX=1 (d<400 мм) - коэффициент,
учитывающий размеры зубчатых колес .
σFP=550 ·1·1,03 ·1·/1,7=333.24 МПа
Допускаемые напряжения при действии максимальной нагрузки[3,c.15]:
z1:
закалка ТВЧ; σHPmax
= 44HRCЭ =44 ·47,5 = 2090 МПа;
z2:
улучшение σHPmax =2,8 σT =2,8 ·750 =2100 МПа.
Предельные напряжения при изгибе [3,c.15]:
σFS t = σFlimbYNmax KS t ,
где σFlimb =550; YNmax =4; KS t
=1,3; σFS t =550 ·4 · 1,3 =2860 МПа.
Допускаемое изгибное напряжение при действии максимальной нагрузки [3,c.15]:
σFPmax = σFS t YX / SFS t ,
где SFS t - коэффициент запаса прочности : SFS t = 1,75 Yz -
при 99%-ной вероятности неразрушения зубьев;
Yz -
коэффициент, учитывающий способ получения заготовки:
z1 -
заготовка - прокат, Yz1 =0,9;
z2 -
заготовка - поковка, Yz2
=1,0.
Тогда SFS 1 =1,75 ·0,9=1,58; SFS 2=1,75 ·1 =1,75;
σFPmax1 =2860··0,9/1,58 =1810 МПа; σFPmax2 =2860··1/1,75 =1630 МПа.
2.2.3 Коэффициенты расчетной нагрузки KAKVKβKα
Коэффициенты KV [3,c.6]:
=1+ wVbW / (FtKA),
Где wV - удельная окружная динамическая
сила , Н /мм, для передачи [3,c.7,9]:
wV =δg0ν
≤ wVmax
,
где
δ
- коэффициент, учитывающий влияние вида
зубчатой передачи и модификация профиля головки зубьев [3,c.7,8];0
- коэффициент, учитывающий влияние разности шагов зацепления z1 и z2
[3,c.7].
Окружное
усилие, Н: Ft =2000T1 / d1
Результаты
расчетов KHV и KFV приведены в таблице 2.1.
Коэффициенты
KHβ и KHα [3,c.7] не изменились (см.таблицу 1.9)
KHβ0 KHβ KHα 0 KHα
Т.ст.
1.6 1.27 1.6 1.27
Таблица
2.1 - Коэффициенты KV
|
Ступень редуктора
|
Параметры
|
|
|
F t
|
δ
|
g0
|
wV
|
wVmax
|
KV
|
|
Тихоходная
|
KHV
|
2517.68
|
0,02
|
5,6
|
1.04
|
380
|
1.005
|
|
KFV
|
|
0,06
|
|
3.11
|
|
1.005
|
Коэффициенты KHβ , KHα при расчете на изгиб:
KFβ2 =0,18+0,82 KHβ0=0,18+0,82·1.6=1.492;
KFа = KHα 0 =1,6 >1,4.
Коэффициенты расчетной нагрузки для передачи:
KH=1·1.005
·1.27 ·1,27=1.62; KF=1·1.005 ·1.492
·1.6=2.4.
2.2.4 Контактные напряжения σH и σHmax
Коэффициенты Z в формуле [3,c.5]
σH =ZEZHZε
≤ σHP (2.2)
а)
Коэффициент механических свойств материалов z1 и z2
(сталь)
ZE =190 МПа½
б)
Коэффициент формы сопряженных поверхностей зубьев
ZH =(2cos
βb /tgаtW)½ /cos
аt,
аt =аrctg
(tg 20º /cos β)= аrctg (tg 20º /cos9º41’47'')=20,266º - делительный угол профиля в торцевом сечении; при x1+x2 =
0 угол зацепления аt W =at ;
β b =arcsin (sinβcos20º) = arcsin
(sin9º41'47''cos20º)=9,106º - основной
угол наклона зубьев;
ZH =(2cos9,106º /tg)½ /cos 20,266º =2,47.
в)
Коэффициент суммарной длины контактных линий
Zε=(1/εа)½,
где
εа ≈[1,88-3,2(1/z1+1/z2)]cos β - коэффициент торцевого перекрытия при х1+х2 = 0 ;
εа ≈1.69 Zε=(1/1,69)½=0.77;
Произведение
коэффициентов Z= ZEZHZε =190 ∙2,47∙0.77=361.2
Контактное
напряжение цилиндрической передачи по формуле (2.2)
σH =494.29 МПа< [σH]=528,72МПа
- условие прочности выполняется.
Максимальное
напряжение при кратковременной перегрузке [3,c.8]:
σHmax= σH(Тmax /Т)½ σH ≤ σHPmax
,
где
Tmax /T=2,4 - по характеристике двигателя (таблица 1.2).
σH max =
494,29∙(2,2)½
=733,15 МПа ≤2090 МПа
2.2.5 Напряжение изгиба σF и σFmax
Тихоходная
передача [3,c.10]
σF =FtKFYFSYβYε/(bwmn)≤ σFP ,
где
YFS =3,47+13,2/zv -27,9 /zv
+0,092x2-коэффициент формы зуба [3,c.8]; (2.4)
где
zv =z/cos3β (zv1=23,zv2=115) при х=0; YFS1=4.02; YFS2=3,58;
Yβ =1-εββ˚/120≥0,7-коэффициент наклона зубьев [3,c.8]
где
εβ=bwsinβ/πm=1.5 - коэффициент осевого перекрытия;
Yβ =1-1, 5 ∙ 9º41'47'' /120=0,879>0,7;
Yε =1/ εa=1/1.69=0,6 - коэффициент перекрытия зубьев.
Критерии
расчета на изгиб: σFP1 /YFS1
=88,1;
σFP2 /YFS2
=93.08 - расчет следует вести по зубу шестерни z1 .
ПО
формуле (2.3) σF1
=114.48 МПа, что меньше σFP=333.24
МПа - условие изгибной выносливости зубьев выполняется.
2.2.6 Проверка выполнения конструктивных ограничений
передач [3,c.18]
По
условию прочности и жесткости валов [3,c.18,19]:
1≥1,25dП
.67≥1,25∙35=41.5
Условие
выполняется.
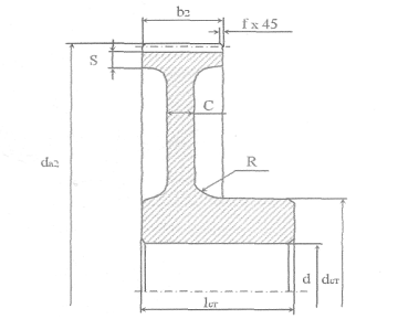
2.3 Конструкция зубчатых колес
.3.1 Зубья шестерен обеих ступеней нарезаны на
входном и промежуточном валах
.3.2 Конструкция колес показана на рисунке 2.2,
размеры их даны в таблице 2.3 [7,c.62 и 69] или [9,c.44 и 49]
Производство
массовое, da2<500 мм, заготовки колес - поковки.
Рисунок 2.1 - Конструкция колес
Таблица 2.3 - Размеры колес в соответствии с рисунком 2.2
|
Наименование размера
|
Рекомендации
|
Размер колеса, мм
|
примечание
|
|
1 Диаметр вершин da2
|
расчет
|
237.33
|
|
|
2 Ширина венца b2
|
расчет
|
56
|
|
|
3 Диаметр вала d
|
расчет
|
45
|
|
|
4 Диаметр ступицы dCT
|
1,5d+10
|
70
|
Ra20
|
|
5 Длина ступицы lCT
|
(1…1,5)d
|
54
|
Ra20
|
|
6 Толщина обода S
|
2,5m+2
|
8
|
Ra20
|
|
7 Толщина диска C
|
1,5S
|
14
|
Ra20
|
|
8 Фаска f
|
(0,6…0,7)m
|
1
|
|
|
9 Радиус R
|
R≥6
|
6
|
|
2.4 Конструктивные элементы редуктора
Выпуск привода массовый, способ получения заготовок корпуса и крышки
редуктора - литье.
В таблице 2.4 приведены размеры основных элементов редуктора, которые
использованы на чертежах, по рекомендациям [7].
Таблица 2.4 - Размеры элементов редуктора
|
Наименование размера
|
Обозначение
|
Рекомендации источников
|
Величина
|
Примечание
|
|
1 Крутящий момент на z2
|
T,мм
|
|
284.95
|
|
|
2 Толщина стенки корпуса
принято
|
δ,мм
|
2·(0,1·T)¼≥6
|
4,05 6
|
|
|
3 Толщина стенки крышки
принято
|
δ1,мм
|
0,8· δ
|
4,8 5
|
|
|
4 Толщина: фланца корпуса -
фланца крышки - опорной лапы - ребер жесткости
|
S S1 S3 S4
|
1,5· δ 1,5· δ1 2,35· δ (0,85…1)· δ
|
8 8 12 5
|
под болты
|
|
5 зазоры между колесом и
стенкой: по диаметру - по торцу - между колесом и дном - между муфтой и
крышкой
|
L⅓+3 Δ1 ≥4 Δ1 1,2·Δ1
|
10 10 40 12
|
L- max
размер картера
|
|
6 Диаметры болтов: -
фундаментальных - кол - подшипниковых бабышек - кол - флонцев корпуса и
крышек - кол - крышек подшипников - кол - крышка смотрового люка
|
d1 n1 d2 n2 d3 n3 d4 n4 d5
|
(4·T2)·⅓≥10
(0,7 …0,8)d1≥10 (0,6…0,63) d1≥10 0,5 d1≥6 (0,3…0,4) d1≥6
|
10 10 10 6
6
|
[8,c312] [7,c.161] [7,c.100]
|
|
Наименование размера
|
Обозначение
|
Рекомендации источников
|
Величина
|
Примечание
|
|
7 Штифты: - диаметр
|
dШТ
|
(0,7…0,8) d3
|
8
|
|
|
8 Ширина: опорной лапы -
бабышки подшипников - фланца корпуса
|
K1 K2 K3
|
(2,7…3)· d1 2,2·
d2 2,2· d3
|
30 22 22
|
[10,c.146]
|
|
9 Расстояние от стенки
корпуса до оси болтов d1 d2 d3
|
C1 C2 C3
|
0,5·K1 0,5·K2
0,5·K3
|
15 11 11
|
|
|
10 Диаметр фланца накладной
крышки подшипнивого гнезда
|
DФ
|
D+(4…4.4) d4 где D- наружный
диаметр подшипника
|
114
|
[7,c.102]
|
|
11 Расстояние между осями
болтов крышки и корпуса
|
l3
|
(10…15) d3
|
100
|
|
2.5 Смазка зацепления и подшипников
Окружные скорости передач:
ν = 1.75 м/с.
При скоростях ν =0,3…12.5 м/с [7,c.105] применяют картерную смазку из
общей ванной. Минимальный объем масла 0,5 л. На 1кВт мощности, т.е. 0,5∙5,5
=2,75 л.
Условие смазки подшипников [7,c/107] n2dа ≥ 100,где для тихоходного вала n = 143,
dа =
0,233 м. Таким образом 4765>100. Смазка подшипников - разбрызгиванием
колесами картерного масла.
Средняя окружная скорость в зацеплениях:
Vm
=1,75 м/с
Средние контактное напряжение в передачах:
σHm = = 503МПа
Рекомендуемая кинетическая вязкость масла при 50˚С [10,c.130 таб.8.1] ν50с=34 м2/с. Сорт масла -
индустриальное И-Г-А 32 ГОСТ 20799 - 75.
Глубина погружения тихоходного цилиндрического колеса в масло: tT = 5m = 10 мм.
Высота верхнего уровня масла в редукторе: hМ = tT + Δз = 60 мм
Фактический объем масла в редукторе: V = L∙B∙hМ = 2,0 л.
где L и В - внутренние размеры корпуса
редуктора из чертежа. Выходные концы валов закрыты манжетами уплотнениями I -го типа ГОСТ 8752 - 79.Для
герметизации
плоскость разъема крышки и корпуса перед окончательной сборкой должны
быть покрыта тонким слоем герметика УТ - 34 ГОСТ 24285 - 80. Так как тихоходное
зацепление находится вне масленой ванны, для ее смазывания предусмотрим
дополнительную смазочную шестерню.
2.6 Усилия в передачах
На рисунке 2.2 показаны усилия, действующие в зацеплениях передач,
направление вращения валов; даны формулы [6,c.16] для определения усилий.
В формулах для Ft, αnw - нормальный угол зацепления,
определяемый из соотношения углов в плоскости зацепления:
αnw = arctg(tg
αtw/cosβw),
где αтw = 20˚
Формулы сил
= 2000T/d
Fr = Ft tg αтw
Fα = Fttgβ
Условие для FМ направлено так,
чтобы увеличить прогибы от силы Ft.
Результаты расчета приведены и таблице 2.5
Таблица 2.5 - Усилия в передачах
|
Параметры
|
Обознач.
|
Тихох. ступень
|
|
Вращение
|
z1 z2
|
левое правое
|
|
Наклон зуба
|
z1 z2
|
правое левое
|
|
Момент
|
Т1,Н
|
58,75
|
|
Диаметры
|
dm1
|
40
|
|
Углы
|
β
αnw
|
10,14 20,29 20º17'30''
|
|
Силы в зацеплениях, Н
|
Ft1 =Ft2 Fr1
=Fr2 Fa1 =Fa2
|
2517,68 929,64 430,19
|
.2 -Усилие в передачах
Рисунок 2.2- Усилие в передачах
2.7 Расчет валов на изгиб и кручения
Предварительно для опор всех валов [7,c.82] назначаем подшипники легкой серии
Таблица 2.6 - Параметры опор валов
|
Наименование параметра
|
Валы
|
|
Быстроходный
|
Тихоходный
|
|
1.Тип подшипника
|
шариковые радиальные по
ГОСТ 8338-75
|
шариковые радиальные по
ГОСТ 8338-75
|
|
2.Диаметр цапфы вала, мм
|
35
|
40
|
|
3.Типормер подшипника
|
307
|
308
|
|
4.Габаритные размеры D*T
|
80х21
|
90х23
|
|
5.Установка
|
враспор
|
враспор
|
На рисунке 2.3 показаны расчетные схемы валов, усилия F в зацеплениях, реакции R в опорах, эпюры изгибающих моментов
М и крутящих Т в горизонтальной и вертикальной плоскостях .
Обозначение: 1 - опора не воспринимающая осевую силу Fа, 2 - опора, воспринимающая силу Fa. Длины участков валов измерены на
чертеже редуктора.
Результаты расчетов валов сведены в таблицу 2.7.
Таблица 2.7 - Формуляр для расчета валов
|
Параметры
|
Формула, источник
|
Результаты по валам
|
Приме чание
|
|
наименование
|
Обознач.
|
|
Быстр.
|
Тихох.
|
|
|
1.Длина,мм
|
l1 l2 l3
|
с компоновки редуктора
|
21 21 60
|
23 23 60
|
рис.2.2
|
|
2.Реакции опор,Н
суммарные радиальные осевые
|
R1x R2x R1y R2y
R1 R1
|
Из условия равновесия балок
на двух опорах (R1X2 +R1Y2)½ (R2X2
+R2Y2)½
|
560,38 369,22 1258,5 1258,5
1311,54 1377,62
|
933,87 4,23 1258,5 1258,5
1258,5 1567,1
|
рис.2.2
|
|
3.Изгибающие моменты в
расчетных сечениях суммарные
|
Мz
|
|
58.75
|
293.73
|
|
|
4.Врающих момент,Нм
|
Т
|
|
58,75
|
284,95
|
|
|
5.Эквивалентный момент,Нм
|
МЭ
|
(M2
+0,75T2)½
|
77.7
|
383.63
|
|
|
6.Диаметр в расч. сеч. мм
|
d
|
|
35
|
40
|
|
|
7.Эквивалентные напряжения,
МПа при перегрузках
|
σЭ σЭmax
|
32000MЭ/πd3 (Tmax/T) σЭ
|
2,2 5,2
|
65,9 158,2
|
Tmax/T>2.4
|
|
8.Материал вала предел
текучести
|
σТ
|
сталь
|
40X 750
|
45 650
|
|
|
9.Допускаемое напряжение
|
[σ]
|
σТ/S
|
375
|
325
|
S=2
|
|
10.Условие статистической прочности
|
σЭmax<[ σ]
|
выполн.
|
выполн
|
|
.8 Подбор подшипников
.8.1 Проверка долговечности подшипника
Таблица 2.9
|
Наименование параметра
|
Обозна- чение
|
Расчетная формула
(источник)
|
Результаты по валам
|
|
|
|
|
Быстр.
|
Тих.
|
|
1.Расчетная нагрузка, Н
|
Fr1
|
табл.
|
930
|
930
|
|
|
Fr2
|
|
930
|
930
|
|
|
Fа1
|
|
430
|
430
|
|
|
Fа2
|
|
430
|
430
|
|
2.Диаметр вала,мм
|
d
|
табл.
|
35
|
40
|
|
3.Частота вращения, мин-1
|
n
|
табл.
|
715
|
143
|
|
4.Потребная долговечность,
ч
|
Lhp
|
П.1.2.2
|
21024
|
21024
|
|
5. Подшипник:
грузоподъемность динамическая, кН статическая, кН
|
Сr Сr0
|
ГОСТ [5,c.138] [5,c.138]
|
8338-75 307 33.2 18
|
8338-75 308 41 22.4
|
|
6.Параметр осевого
нагружения
|
е1 е2
|
|
0,33 0,35
|
0,20 0,22
|
|
7.Коэффициент вращения
|
V
|
|
1
|
1
|
|
8.Отношение Fa/VFr
опоры 1 опоры 2
|
|
|
0,34 1,52
|
0,00 0,06
|
|
9.Коэф. радиальной нагрузки
|
Х1 Х2
|
|
0,45 0,45
|
1 1
|
|
10.Коэф. осевой нагрузки
|
Y1 Y2
|
|
1,66 1,57
|
0,00 0,00
|
|
11.Коэф. учета переменного
нагружения
|
КЭ
|
0,840,84
|
|
|
|
12.Коэф. безопасности
|
Кб
|
|
1,4
|
1,4
|
|
|
13.Температурный коффиц.
|
КТ
|
|
1
|
1
|
|
|
14.Эквивалентная
динамическая нагрузка расчетная постоянная с учетом КЭ
|
Р1 Р2 Р РV
|
(XVF1 +YFa)KбКт
max(P1;P2) KЭP
|
542 887 887 741
|
5632 8697 8697
7271
|
|
|
15.Степень кривой усталости
|
р
|
|
3
|
3
|
|
|
16.Расчетная долговечность,
ч
|
Lh
|
106α23CP/60nPV
|
102380
|
25553
|
|
|
17.Условие долговечности
запас
|
Lh≥ Lhр Lh/ Lhр
|
|
Выполн 5,9
|
Выполн 1,1
|
|
|
18.Габаритные размеры D T
|
|
|
80 21
|
90 23
|
|
|
|
|
|
|
|
|
|
|
|
|
2.9 Расчет шпоночных соединений
Принимаем шпонки призматические по ГОСТ 23360 - 78 [7,c.432].
Рисунок 2.3 - Размеры шпонок
Напряжение смятие [8,c.128] σСМ =2000Т/dklp≤[ σСМ]
где lp =lCТ -b
-расчетная длина шпонки;
lCТ -
длина ступицы насаживаемой детали;
k =h -t1 - расчетная высота шпонки;
[σСМ ] = σТ/[S] - допускаемое напряжение смятия:
для шпонок из стали 45 σТ=650 МПа, [S] =2 - коэффициент запаса прочности
[σСМ] =325 МПа
Размеры шпонок и расчет дары в таблице 2.11.
Таблица 2.11 - параметры шпонок
|
Параметры
|
Место соединения
|
|
наименование
|
обознач.
|
Б.вал
|
Колесо z2Т
|
Конец тих. вала
|
|
1.Диаметр вала, мм
|
d
|
32
|
23
|
36
|
|
2.Момент, Нм
|
Т
|
58,75
|
284,95
|
284,95
|
|
3.Длина ступицы, мм
|
LСТ
|
50
|
60
|
50
|
|
4.Размеры шпонки,мм:
|
b
|
10
|
10
|
10
|
|
h
|
8
|
8
|
8
|
|
l
|
32
|
32
|
32
|
|
t1
|
5
|
5
|
5
|
|
t2
|
3,3
|
3,3
|
3,3
|
|
k
|
3
|
3
|
3
|
|
lp
|
22
|
22
|
22
|
|
5.Напряжения, МПа
|
σСМ
|
38
|
146
|
159
|
|
6.Условие прочности
выполняется?
|
|
да
|
да
|
да
|
Список использованных источников
1.
Энергетический и кинематический расчеты приводов: Метод. указания по дисциплине
«Детали машин» для студентов машиностроительных спец. всех форм обучения / НГТУ
; Сост.: А. А. Ульянов. - Н.Новгород, 2000. - 27 с.
.Зубчатые и
червячные передачи. Ч.І: Проектировочный расчет: Метод. указания к курсовому
проекту по деталям машин для студентов машиностроительных спец. / НГТУ ; Сост.:
А. А. Ульянов, Ю. П. Кисляков, Л. Т. Крюков. - Н.Новгород, 2000. - 31 с.
.Зубчатые и
червячные передачи. Ч.ІІ: Проверочный расчет. Силы в зацеплениях: Метод.
указания к курсовому проекту по деталям машин для студентов машиностроительных
спец. / НГТУ ; Сост.: А. А. Ульянов, Ю. П. Кисляков, Л. Т. Крюков. -
Н.Новгород, 2001. - 24 с.
.Зубчатые и
червячные передачи. Ч.ІІІ: Примеры расчетов: Метод. указания к курсовому
проекту по деталям машин для студентов машиностроительных спец. / НГТУ ; Сост.:
А. А. Ульянов, Ю. П. Кисляков, Л. Т. Крюков, М. Н. Лукьянов. - Н.Новгород,
2001. - 31 с.
.Ременные
передачи. Ч. І: Методика расчета: Метод. указания по дисциплине «Детали машин»
для студентов машиностроительных спец. / НГТУ ; Сост.: А. А. Ульянов, Н. В.
Дворянинов. Ю. П. Кисляков. Н.Новгород, 1999. - 31 с.
.Ременные
передачи. Ч. ІІ: Примеры расчета: Метод. указания по дисциплине «Детали машин»
для студентов машиностроительных спец. / НГТУ ; Сост.: А. А. Ульянов, Н. В.
Дворянинов. Ю. П. Кисляков. - Н.Новгород, 1999. - 16 с.
.Дунаев П.
Ф., Леликов О. П. Конструирование узлов и деталей машин. - М.: Высш. шк., 2001.
- 447 с.
.Дунаев П.
Ф., Леликов О. П. детали машин. Курсовое проектирование. - М.: Высш. шк., 1984.
- 336 с.
.Подбор
подшипников качения: Метод. указания по дисциплине «Детали машин» для студентов
машиностроительных спец. / НГТУ ; Сост.: А. А. Ульянов. - Н.Новгород. 1993. -
33 с.
.Иванов М. Н.
детали машин. - М.: Высш. шк.,1998. - 383 с.
.Соединения:
Метод. указания к домашней работе по дисциплине «Детали машин» для студентов
машиностроительных спец. / НГТУ ; Сост.: А. А. Ульянов, Н. В. Дворянинов. Ю. П.
Кисляков. - Н.Новгород, 1998. - 23 с.
.Правила
оформления пояснительных записок и чертежей: Метод. указания по дисциплине
«Детали машин» для студентов всех спец. и форм обучения / НГТУ; Сост.: А. А.
Ульянов. и др.- Н.Новгород, 2000. - 35 с.