Проектирование строительного генплана. Поселковый газопровод
Федеральное
агентство по образованию РФ
Томский
государственный архитектурно-строительный университет
Кафедра
«Производственный менеджмент»
Курсовая работа
«Проектирование
строительного генплана. Поселковый газопровод»
Выполнил студент
гр. 436/5т, фак. ИЭФ ___________ ____________ Гумбатов Т.Х.
Проверил
преподаватель ___________ ____________ Шешуков А.П.
Томск 2009г.
СОДЕРЖАНИЕ
1. Анализ объекта
. Нормативные сроки строительства
. Ведомость объема и трудоемкости работ
. Опасная зона работы грузоподъемных механизмов
. Расчет количества работников
. Административно-хозяйственные здания
. Электропотребление строительной площадки
. Водопотребление строительной площадки
. Складирование материалов.
. Технико-экономические показатели
1. Анализ объекта
Объектом разработки документации является прокладка внутриквартального
газопровода. Разбивку на участки производят исходя из условия примерно равного
объема работ с учетом обеспечения устойчивости и пространственной жесткости
участка.
Условия строительства:
период строительства: летний;
начало строительства: 10 мая;
способ и дальность транспортировки: а/т l=60 км;
глубина заложения: 2,5 м;
грунт: супесь;
коэффициент откоса: 0, 5
длина участка: a=2
км; b=2 км; c=0,3 км; d=0,02
км;
диаметр трубы: a=200
мм; b=200 мм; c=200 мм; d=50
мм;
Спецификация
оборудования.
Таблица №1
|
Позиция
|
Наименование и техническая
характеристика
|
Тип, марка, обозначение
документа
|
Ед. изм.
|
Кол-во
|
|
1
|
Трубы стальные
водогазопроводные d=200
|
ГОСТ 3262-75*
|
м
|
4300
|
|
|
|
|
|
|
2
|
Трубы стальные
водогазопроводные d=50
|
ГОСТ 3262-75*
|
м
|
20
|
|
|
|
|
|
|
|
|
|
|
|
3
|
Задвижки стальные d=200
|
|
шт
|
6
|
|
4
|
Вентили d=50
|
|
шт
|
40
|
|
|
|
|
|
|
7
|
ГРПШ
|
|
шт
|
1
|
|
|
|
|
|
2. Нормативные сроки строительства
Периоды строительства газопровода представлено на рис.2.
Тподг=4,3 мес.
Тобщ=8,7 мес.
Рис.2. Периоды строительства газопровода:
Тобщ- нормативный срок возведения;
Тподг- подготовительный период
Тосн- время возведения конструкций здания
3. Ведомость объемов и трудоемкости работ
На основе спецификации сборных элементов системы составляется ведомость
объемов и трудоемкости работ.
Сначала составляется перечень выполняемых работ. Наименование работ
корректируется согласно ЕНиР и записывается в столбец 2, одновременно
заполняется столбец 1, где указывается номер параграфа ЕНиР, номера таблицы и
строки, откуда выписывается норма времени в столбец 5, единица измерения - в
столбец 3 и нормативный состав звена - в столбец 7.
Трудоемкость
рассчитывается по формуле,
:
норма
времени, 
-
количество часов в смену.
Ведомость
объемов и трудоемкости работ приведена в табл. 2
Ведомость
объемов и трудоемкости работ
Таблица №2
|
Обосно-вание нормы
|
Наименование работ
|
Ед. изм.
|
Кол-во
|
Норма времени, чел/час
|
Трудоемкость, чел. см.
|
Нормативный состав звена
|
|
Е2-1-5 табл. 1 стр. 1
|
Срезка растительного слоя
бульдозерами
|
1000 м2
|
43,2
|
1,8
|
9,72
|
Машинист 6р. - 1чел.
|
|
Е2-1-11 табл. 7 стр. 2
|
Разработка грунта
экскаваторами
|
100 м3
|
43,2
|
3,3
|
17,82
|
Машинист 6р. - 1чел.
|
|
Е2-1-36 табл. 5 стр. 2
|
Планировка дна траншеи
|
1000 м2
|
1,73
|
0,38
|
0,08
|
Машинист 6р. - 1чел.
|
|
Е2-1-41 табл. 2 стр. 3
|
Планировка откосов
|
100 м2
|
162
|
1,7
|
34,43
|
Машинист 6р. - 1чел.
|
|
Е9-2-1 табл. 1 стр. 1
|
Сборка труб в звенья на
бровке траншеи
|
1 м
|
4320
|
0,02
|
10,80
|
Монтажник 5р. - 1чел. 3р.
- 1чел.
|
|
Е22-2-2 табл. 3 стр. 1
|
Поворотная сварка стыков
|
1 ст.
|
355
|
0,23
|
10,21
|
Электросварщик 4, 5 и 6
разр.- 1чел.
|
|
Е9-2-1 табл. 2 стр. 1
|
Укладка звеньев труб в
траншею
|
1 м
|
4320
|
0,1
|
54,00
|
Монтажник 5, 4, 3р.-1чел.
|
|
Е22-2-2 табл. 3 стр. 1
|
Не поворотная сварка стыков
|
1 ст.
|
261
|
0,26
|
8,48
|
Электросварщик ручной
сварки 4, 5 и 6 разр.- 1чел.
|
|
|
Е9-2-16 табл. 1 стр. 2
|
Установка задвижек
|
1 задв
|
6
|
1,05
|
Монтажник 4р. - 2чел. 3р. -
1чел.
|
|
|
Е9-2-16 табл. 1 стр. 1
|
Установка вентилей
|
1 вент
|
40
|
0,87
|
4,35
|
Монтажник 4р. - 2чел. 3р. -
1чел.
|
|
|
Е9-2-9 табл. 1 стр. 2
|
Установка ГРПШ
|
шт.
|
4320
|
2,4
|
4,8
|
Монтажник 4р. - 1чел. 3р. -
1чел.
|
|
|
Е9-2-9 табл. 1 стр. 2
|
Гидравлическое испытание
|
1м
|
4320
|
0,1
|
54,00
|
Монтажник 5р. - 1чел. 4р. -
1чел. 3р. - 2чел.
|
|
|
Е9-2-12 табл. 1 стр. 1
|
Антикоррозионная изоляция
стыков
|
1 ст
|
616
|
0,51
|
39,27
|
Изолировщик 4р. - 1чел. 3р.
- 2чел.
|
|
|
Е9-1-34 табл. 1 стр. 12
|
Засыпка траншей
бульдозером
|
100 м3
|
43,2
|
0,25
|
1,35
|
Машинист 6р. - 1чел.
|
|
|
Е2-1-31 табл. 5 стр. 1
|
Уплотнение грунта
|
1000 м2
|
9,59
|
0,68
|
0,82
|
Машинист 6р. - 1чел.
|
|
|
Благоустройство
|
%
|
5
|
|
12,56
|
|
|
|
|
|
|
|
|
|
|
|
|
|
|
|
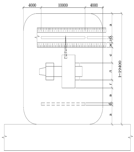
4. Опасная зона работы грузоподъемных механизмов
Опасной является такая зона, в пределах которой возникает опасность
травматизма людей от влияния производственных факторов. Эти зоны имеют место
при подъеме и перемещении грузов подъемниками, монтажными кранами; при
производстве работ на высоте. Опасная зона при прокладке подземного газопровода
стреловым краном представлена на рис. 3.
Рис.3. Опасная зона при прокладке подземного газопровода стреловым
краном:
а=4м;
б=0,200м;
в=4м;
г=1,45м;
д=3,1м;
е=1м;
ж=1,25м;
з=0,75м;
5. Расчет количества работников
В число работающих на строительной площадке входят: рабочие (Р);
инженерно-технические работники (ИТР) - мастера, прорабы; служащие (С) -
кладовщики, диспетчеры; вспомогательный персонал (ВП) - технички.
Число рабочих принимается максимальным из суммарной численности бригад,
одновременно работающих на стройке.
Число других работников принимается в процентном отношении от числа
рабочих:
ИТР=12%Np;
Nc=2,5%Np; NВП=1,5%Np.ИТР=12%Np=12%*15=2 чел.
Nc=2,5%Np=2,5%*15=1 чел.
NВП=1,5%Np=1,5%*15=1 чел.
все работающие пользуются временными зданиями, расположенными на
площадке:
конторскими помещениями - (NИТР +Nc)=2+1=3 чел.;
умывальными - (Np+NИТР+Nc+NВП)=15+2+1+1=19
чел.;
душевыми - (Np+NВП)=15+1=16 чел.;
обогрева рабочих - (Np+NВП)=15+1=16 чел.;
столовыми - 70%(Np+Nc+NВП+NИТР)=70%(15+1+1+2)=14
чел.;
помещениями приема пиши - 30%(Np+Nc+NВП+NИТР)=30%(15+1+1+2)=
=6 чел.
6. Административно-хозяйственные здания
Проектирование включает следующие задачи:
1. Определение
численности людей, пользующихся временными зданиями;
2. Составление
перечня необходимых зданий и сооружений;
3. Выбор
параметров временных зданий;
4.