Расчет точностных параметров

  • Вид работы:
    Дипломная (ВКР)
  • Предмет:
    Другое
  • Язык:
    Русский
    ,
    Формат файла:
    MS Word
    293,44 kb
  • Опубликовано:
    2011-07-08
Вы можете узнать стоимость помощи в написании студенческой работы.
Помощь в написании работы, которую точно примут!

Расчет точностных параметров

БЕЛОРУССКИЙ НАЦИОНАЛЬНЫЙ ТЕХНИЧЕСКИЙ УНИВЕРСИТЕТ

Кафедра СМИС








ПОЯСНИТЕЛЬНАЯ ЗАПИСКА

к курсовому проектированию

по дисциплине "Нормирование точности и технические измерения"

Тема: Расчет точностных параметров











Минск 2009

Содержание

. Описание состава и работы изделия

. Расчет посадок гладких и цилиндрических сопряжений

. Расчет калибров

4. Выбор и обоснование средств измерений для контроля линейных размеров деталей

. Расчет посадки подшипников качения

. Расчет предельных отклонений шпоночного соединения

. Расчет предельных отклонений резьбового соединения

8. Выбор показателей контрольного комплекса зубчатого колеса и приборов для контроля выбранных показателей

Библиография

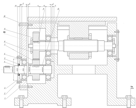
1. Описание состава и работы изделия

В рассматриваемом узле редуктора (рисунок 1) гладкими цилиндрическими сопряжениями являются соединения вал поз.4 с распорной втулкой поз.12. Колесо зубчатое поз.7. с валом поз.4; кольцо внутреннее подшипника поз.6. с цапфой вала поз.4; кольцо наружное подшипника поз.6 с корпусом поз.10; крышка поз.3 с корпусом поз.10.

Вращающий момент с вала на шестерню поз.7 передается с помощью призматической шпонки поз.11. Для предотвращения осевого перемещения колеса используется гайка поз.13 со стопорной шайбой.

Конструктивные элементы редуктора проектируем исходя из данных размеров подшипника качения. Номер подшипника 6-409 ГОСТ 8338-75.

Номинальный диаметр отверстия внутреннего кольца подшипника d=45 мм;

Номинальный диаметр наружного кольца подшипника D=120 мм;

Номинальная ширина подшипника В=29 мм;

Номинальная высота монтажной фаски r=3 мм;

Диаметр сопряжений устанавливаем исходя из расчетных данных и конструктивных особенностей редуктора:

Сопряжения зубчатого колеса с валом поз. d= 45h7/p6;

. сопряжение распорной втулки d= 45H9/d9;

. в месте установки манжеты d= 45h11;

Посадки сопрягаемых элементов редуктора выбираем из рекомендуемых ГОСТ 25347-82 значений.

Рисунок 1 - Эскиз редуктора

2. Расчет посадок гладких и цилиндрических сопряжений

Задача: Рассчитать посадку с зазором Æ80Н9/е9.

Рассчитываем предельные размеры отверстия Æ80Н9. По ГОСТ 25346-86 " Основные нормы взаимозаменяемости. Единая система допусков и посадок. Общие положения, ряды допусков и основных отклонений" определяем значения допуска IT9=74 мкм и основного (нижнего) отклонения EI =0 мкм. Верхнее отклонение будет равно

ЕS = EI + IT9 = 0+74 = +74 мкм.

Предельные размеры отверстия:

D min = D0 + EI = 80,000 +0 = 80,000 мм;

D max = D0 + ES = 80,000 + 0,074 = 80,074 мм;

Рассчитываем предельные размеры вала Æ80е9.

По ГОСТ 25346 определяем значения допуска IT9 = 74 мкм и основного (верхнего) отклонения еs = - 60 мкм.

Нижнее отклонение будет равно

ei =es - IT9 = -60-74 = -134 мкм.

Предельные размеры вала:

dmin = d0 + ei = 80,000 - 0,134 = 79,866 мм;

dmax = d0 + es = 80,000 - 0,060 = 79,940 мм.

Результаты расчетов сводим в таблицу 1.

Таблица 1 - Расчет предельных размеров сопряжения

Размер

IT, мкм

ES(es), мкм

EI(ei), мкм

Dmin(dmin),мм

Dmax(dmax),мм

Æ80Н9

74

+74

0

80,000

80,074

Æ80е9

74

-60

-134

79,866

79,940


Рассчитываем предельные значения зазоров:

Smax = Dmax - dmin =80,074 - 79,866 = 0,208 мм;= Dmin - dmax =80,000 - 79,940 = 0,060 мм.

Средний зазор

ср = ( Smax +Smin)/2 = (0,208+0,060)/2 = 0,134 мм.

Допуск посадки

Тs = ITD + ITd = 0,074+0,074 = 0,148 мм.

Принимаем, что и размеры вала, и размеры отверстия распределены по нормальному закону и центр группирования каждого из размеров совпадает с координатой середины поля допуска. При нормальном распределении параметра 99,73% всех значений попадают в диапазон, ограниченный значением 6 стандартных отклонений (±3s). Если принять, что данный диапазон равен допуску (T = 6s), то на долю несоответствующих единиц продукции будет приходиться 0,27 % деталей, что для машиностроительного предприятия является приемлемым.

Стандартное отклонение посадки равно [1].

ss =

где  = Тd/6 ;  = Тd/6.

Предельные значения вероятных зазоров можно получить по формулам:

Smax.вер. = Sср + 3ss;min.вер. = Sср - 3ss;

Рассчитаем предельные значения вероятных зазоров.

ss =  мкм;

Smax.вер. = 134 + 3×17,4 = 186,2 мкм » 0,186 мм;

Smin.вер. = 134 - 3×17,4 = 81,8 мкм » 0,082 мм;

Задача: Рассчитать переходную посадку Æ260Н7/m5 согласно заданию.

Рассчитываем предельные размеры отверстия Æ260Н7.

По ГОСТ 25346-86 " Основные нормы взаимозаменяемости. Единая система допусков и посадок. Общие положения, ряды допусков и основных отклонений" определяем значения допуска IT7=52 мкм и основного (нижнего) отклонения EI =0 мкм.

Верхнее отклонение будет равно

ЕS = EI + IT7 = 0+52 = +52 мкм.

Предельные размеры отверстия:

Dmin = D0 + EI = 260,000 +0 = 260,000 мм;

Dmax = D0 + ES = 260,000 + 0,052 = 260,052 мм;

Рассчитываем предельные размеры вала Æ260m5.

По ГОСТ 25346 определяем значения допуска IT5 = 23 мкм и основного (нижнего) отклонения еi = + 20 мкм.

Верхнее отклонение будет равно

es = ei + IT5 = +20+23 = +43 мкм.

Предельные размеры вала:

dmin = d0 + ei = 260,000 +0,020 = 260,020 мм;

dmax = d0 + es = 260,000 - 0,043 = 260,043 мм.

Результаты расчетов сводим в таблицу 2.

Таблица 2 - Расчет предельных размеров сопряжения

Размер

IT, мкм

ES(es), мкм

EI(ei), мкм

Dmin(dmin),мм

Dmax(dmax),мм

Æ260Н7

52

+50

0

260,000

260,052

Æ260m5

23

+43

+20

260,020

260,043


Рассчитываем предельные значения зазоров:

Dср = (Dmax + Dmin)/2 = (260,052 + 260,000)/2 = 260,026 мм;

dср = (dmax + dmin)/2 = (260,043 +260,020)/2 = 260,031 мм;

Smax = Dmax - dmin = 260,052 - 260,020 = 0,032 мм;

Nmax = dmax - Dmin =260,043- 260,000 = 0,043 мм.

Допуск посадки

Тs,N = ITD + ITd = 0,052+0,023 = 0,075 мм.

Принимаем нормальный закон распределения размеров и рассчитываем предельные значения вероятных зазоров(натягов). В рассматриваемом сопряжении dср > Dср поэтому в данном сопряжении будет большая вероятность возникновения натягов. Рассчитываем математическое ожидание и стандартное отклонение натягов.

МN = Dср - dср = 260,031 - 260,026 = 0,0050

Рассчитаем предельные значения вероятных натягов и зазоров.

sn =  мкм;

Nmax.вер. = MN + 3s(S,N) = 5 + 3×9,4 = 14,4 мкм = 0,0144 мм;

Nmin.вер. = MN - 3s(S,N) = 5 - 3×9,4 = -4,4 мкм;max.вер. = 4,4 мкм = 0,0044 мм.

При применении переходных посадок в сопряжениях возможны зазоры и натяги. Поэтому рассчитываем вероятность их получения. Для определения площади, заключенной между кривой Гаусса, выбранными ординатами и осью абсцисс, удобно использовать табулированные значения функции Ф0(z).

В нашем случае

 = MN = 5 мкм;

s(s,N) = 9,4 мкм.

Тогда

= MN/s(s,N) = 5/9,4 = 0,53

Ф(0,53) = 0,2095 = 20,95%

Таким образом, с учетом симметрии распределения (Р = 0,5), вероятность получения натягов в сопряжении Æ260Н7/m5 составляет

Р(N) = 50+20,95 = 70,95 %.

Определяем вероятность получения зазоров, принимая что 0,9973»1:

Р(S) = 29,05%.

. РАСЧЕТ КАЛИБРОВ

Согласно задания рассчитываем калибры для контроля элементов сопряжения Æ80Н9/е9. Определяем предельные отклонения и размеры отверстия Æ80Н9, IT9=74 мкм, EI =0 мкм.

Верхнее отклонение будет равно

ЕS = EI + IT9 = 0+74 = +74 мкм.

D min = D0 + EI = 80,000 +0 = 80,000 мм;max = D0 + ES = 80,000 + 0,074 = 80,074 мм;

Рассчитываем предельные размеры вала Æ80е9.

По ГОСТ 25346 определяем значения допуска IT9 = 74 мкм и основного (верхнего) отклонения еs = - 60 мкм.

Нижнее отклонение будет равно

ei =es - IT9 = -60-74 = -134 мкм.

Предельные размеры вала:

dmin = d0 + ei = 80,000 - 0,134 = 79,866 мм;

dmax = d0 + es = 80,000 - 0,060 = 79,940 мм.

Для контроля отверстия Æ80Н9 определяем числовые значения параметров Н, Z, Y (табл. 2 ГОСТ 24853).

Н= 5 мкм - допуск на изготовление калибров;

Z = 13 мкм - отклонение середины поля допуска на изготовление проходного калибра;

Y = 0 - допустимый выход размера изношенного проходного калибра за границу поля допуска отверстия.

Рассчитываем предельные (табл. 1 ГОСТ 24853) и исполнительные размеры калибров для контроля отверстия Æ80Н9 и результаты сводим в таблицу 3.

Таблица 3 - Предельные и исполнительные размеры калибров-пробок

Обозначение калибра

Размер, мм


наибольший

наименьший

изношенной стороны

исполнительный

ПР

80,0155

80,0025

80,000

80,0155-0,005

НЕ

80,0765

80,0715

-

80,0765-0,005


Для контроля вала Æ80е9 определяем числовые значения параметров Н1, Z1, Y1, Hp (табл. 2ГОСТ 24853):

Н1 = 8 мкм - допуск на изготовление калибров;

Z1 = 13 мкм - отклонение середины поля допуска на изготовление проходного калибра;

Y1 = 0 мкм - допустимый выход размера изношенного проходного калибра за границу поля допуска отверстия.

Нр = 3 мкм допуск на изготовление контрольного калибра для скобы.

Рассчитываем предельные (табл.1 ГОСТ 24853) и исполнительные размеры калибров для контроля вала Æ80е9, и результаты сводим в таблицу 4.

Таблица 4 - Предельные исполнительные размеры калибров-скоб и контрольных калибров

Обозначение калибра

Размер, мм


наибольший

наименьший

изношенной стороны

исполнительный

ПР

79,931

79,923

79,940

79,923+0,008

НЕ

79,870

79,862

-

79,862+0,008

К-ПР

79,9285

79,925

-

79,9285-0,003

К-НЕ

79,867

79,864

-

79,867-0003

К-И

79,9415

79,9385

-

79,9415-0,003


Выполняем эскизы рабочих калибров для контроля отверстия Æ80Н9 и вала Æ80е9 (Рисунок 2).

а) калибр пробка для контроля отверстия; б) калибр-скоба для контроля вала

Рисунок 2 - Эскизы рабочих калибров

. Выбор и обоснование средств измерений для контроля линейных размеров деталей

Согласно заданию объектом измерения и контроля является сопряжение Æ260Н7/m5. Отверстие Æ260Н7(+0,052) и вал Æ260m5(+0.020+0,043). Допуск размера является определяющей характеристикой для подсчета погрешности измерения [2]. По ГОСТ 8.051-81 имеем, что допустимая погрешность измерения для Æ260Н7 составляет 14 мкм, а для вала Æ260m5 - 8 мкм. Для измерения и контроля отверстия и вала рекомендуется применять абсолютные и относительные виды измерений с применением универсальных и специальных измерительных средств. Для измерения и контроля вала для 5 квалитета точности применим рычажно-зубчатую головку с ценой деления 0,002 мм. Для измерения отверстия Æ260Н7 рекомендуется использовать индикаторный нутромер с ценой деления 0,002 мм, типа 156 с основной погрешностью измерения ±4 мкм.  Для контроля диаметра Æ260m5(+0.020+0,043) применим штатив Ш-IIВ Н-8 ГОСТ 10197 и установочную призму с углом 120º. Схема измерения диаметрального размера вала показана на рисунке 3.

Рисунок 3 - Схема измерения диаметра валаÆ260m5(+0.020+0,043)

Характеристики головки измерительной рычажно-зубчатой 2ИГ:

·        диапазон показаний, мм ±0,1;

·        цена деления, мм 0,002;

·        основная погрешность, мкм:

- на диапазоне показаний ± 30 делений ±0,7;

- на всем диапазоне показаний ± 1,2

·   диапазон измерений со штативом Ш-IIВ, мм 0-630

В соответствии с РД 50-98-86 при измерении размеров головкой измерительной рычажно-зубчатой 2ИГ ГОСТ 18833 на штативе с настройкой по концевым мерам или эталону при температурном режиме ±2 ºС предельное значение погрешности измерения Δ не превысит 4 мкм, что меньше допустимой погрешности измерения [Δ] = 8 мкм.

5. Выбор, обоснование и расчет посадок подшипников качения

Рассматриваемый узел редуктора имеет вал, опорами которого являются 2 подшипника с диаметром отверстия d=45 мм. Принимаем нормальный класс точности подшипников (6-409). Данный тип подшипников относится к шариковым радиально-упорным. Номинальный диаметр отверстия внутреннего кольца подшипника d=45 мм; наружного кольца D=120 мм; номинальная ширина подшипника В=29 мм; номинальная высота монтажной фаски r=3 мм. Так как передача крутящего момента осуществляется цилиндрическими зубчатыми колесами, то в зубчатом зацеплении действует радиальная нагрузка, постоянная по направлению и по значению. Вал вращается, а корпус неподвижен, следовательно, внутреннее кольцо испытывает циркуляционное нагружение, а наружное кольцо местное. Примем тяжелый режим работы подшипникового узла. ГОСТ 3325 рекомендует поля допусков цапфы вала m6, которое обеспечивает посадку с натягом. Поле допуска отверстия корпуса Н7. Предельные отклонения средних диаметров колец подшипника качения определяем по ГОСТ 520, предельные отклонения вала Æ45m6 и отверстия корпуса Æ120Н7 - по ГОСТ 25347. Расчеты сводим в таблицы 5 и 6.

Таблица 5 - Предельные размеры колец подшипников качения

Размер,мм

ES(es), мкм

EI(ei), мкм

Dmin(dmin),мм

Dmax(dmax),мм

d=45

0

-15

45,000

44,985

D=120

0

-20

120,000

119,980


Таблица 6 - предельные размеры цапфы вала и отверстия корпуса

Размер,ммES(es), мкмEI(ei), мкмDmin(dmin),ммDmax(dmax),мм





Æ45

+25

+9

45,025

45,009

Æ120

+35

0

120,035

120,000

Рассчитываем зазоры (натяги).

По dm:

= dmax - dmmin =45,025- 44,985 = 0,040 мм = 40 мкм.= dmin - dm max =45,009- 45,000 = 0,009 мм = 9 мкм.р = (Nmax- Nmin)/2 = (40-9)/2 = 24,5 мкм.= Dmax - Dmmin = 120,035 - 119,980 = 0,055 мм = 55 мкм.= Dmin - Dmmax = 120,000-120,000 = 0,000 мм.ср = (Smax - Smin)/2 = (55+0)/2 = 27,5 мкм.

Тs = ITDm + ITD = 35+20 = 55 мкм.

Проводим проверку наличия в подшипнике качения радиального зазора, который уменьшается по причине натяга при посадке подшипника на вал. В расчетах принимаем среднее значение зазора в подшипнике как наиболее вероятные:

Nср = 24,5 мкм.

Nэф = 0,85×24,5 = 20,8 мкм = 0,0208 мм;

d0= dm + (Dm-dm)/4 = 45,000 + (120,000 - 45,000)/4 = 63,75 мм;

Δd1 = Nэф×dm/ d0 = 208×45/63,75 = 0,0146 мм = 14,6 мкм.

По ГОСТ 24810 определяем предельные значения теоретических зазоров в подшипнике 409 до сборки:

Gr min = 5 мкмmax = 25 мкм.

Средний зазор в подшипнике

Gr ср = (Gr min - Gr max)/2 = (5+25)/2 = 15 мкм.

Тогда

пос = Gr ср - Δd1 = 15 - 14,6 = 0,4 мкм.

Расчет показывает, что при назначении посадки Æ45L0/m6 по внутреннему диаметру зазор в подшипнике качения после посадки будет положительным.

На чертеже вала шероховатость поверхности посадочных мест под подшипники выбираем согласно рекомендациям ГОСТ 3325: посадочной поверхности вала под кольцо подшипника Ra 1,25; посадочной поверхности корпуса под кольцо подшипника Ra1,25; торцевой поверхности заплечника вала Ra 1,6.

Требования к точности формы и расположения представлены на чертеже вала.

6. Расчет предельных отклонений шпоночного соединения

Рассмотрим расчет соединения зубчатого колеса и вала с использованием призматической шпонки по ГОСТ 23360 (для вала Æ36 мм b×h = 10 × 8 мм, длина шпонки l = 50 мм). Условное обозначение :

Шпонка 10 × 8 ×50 ГОСТ 23360-78.

Согласно заданию посадки шпонки выбираем исходя из условия плотного соединения.

По размеру b:

паз вала В1 = 10Р9

ЕS = -15,

EI = - 51 мкм.

В1max = 10,000 - 0.015 =9,985 мм,

В1min = 10,000 - 0,051 =9,949 мм;

ширина шпонки b2 = 10h9

es = 0 мкм.

ei =- 36 мкм,

b2max = 10,000 + 0 =10,000 мм,

b2min = 10,000 - 0,036 =9,964 мм;

- паз втулки В3 = 10Р9

ЕS = -15,

EI = - 51 мкм.

В3max = 10,000 - 0.015 =9,985 мм,

В3min = 10,000 - 0,051 =9,949 мм;

Рассчитываем табличные натяги по размеру b:

соединение шпонки b2 = 10h9 c пазом вала В1 = 10Р9:

N1min = В1max - b2min = 9,985 - 9,964 = 0,021 мм,

N1 max = b2max - В1min = 10,000 - 9,949 = 0,051мм;

деталь шпоночный зубчатый колесо

Соединение шпонки b2 = 10h9 c пазом втулки В3 = 10Р9 одинаковое с соединением шпонки b2 = 10h9 c пазом вала В1 = 10Р9.

По высоте шпонки h:

глубина паза вала

t1 = 5+0.2 мм (ГОСТ 23360),

t1max = 5,200 мм,

t1min = 5,000 мм;

- высота шпонки

 = 8h11,

hmax = 8,000 мм,

hmin = 7,910 мм.

- глубина паза втулки

2 = 3.3+0.2 мм (ГОСТ 23360)2max = 3,500 мм,2min = 3,300 мм.

Тогда

max = t1max + t2max - hmin = 5,200 + 3,500 - 7,910 = 0,790 мм,

Smin = t1min + t2min - hmax = 5,000 + 3,300 - 8,000 = 0,300 мм.

По длине шпонки l = 50 мм:

длина шпонки

1 = 50h14 (ГОСТ 23360)

l1max = 50,000 мм,

l1min = 49,380 мм (ГОСТ 25346)

длина паза вала

L2 = 50Н15 (ГОСТ 23360)

L2max = 51,000 мм,

L2min = 50,000 мм;

Smax = L2max + l1min = 51,000 - 49,380 = 1,62 мм,

Smin = L2min + l1max = 50,000 -50,000 = 0,000 мм.

. Расчет предельных отклонений резьбового соединения

Дана резьбовая посадка - переходная: М36×2 - 3Н6Н/2m.

Определяем номинальные значения диаметров внутренней(гайки) и наружной резьбы(болта) по ГОСТ 24705:

=D = 36,000 мм;

d2=D2 = 34,701 мм;

d1=D1 = 34,106 мм;

Р = 2 мм.

Предельные отклонения диаметров резьбовых деталей с внутренней резьбой (гайки) и наружной резьбой (болта) выбираем по ГОСТ 16093 и результаты представляем в таблице 7.

Таблица 7 - Предельные отклонения диаметров резьбовых поверхностей

Номинальный диаметр резьбы, мм

Предельные отклонения болта, мкм

Предельные отклонения гайки, мкм


es

ei

ES

EI

d=D = 36,000

- 38

-318

не ограничено

0

d2=D2 = 34,701

+38

+116

0

d1=D1 = 34,106

+106

не ограничено

+375

0

Определяем предельные размеры внутренней резьбы (гайки) и наружной резьбы (болта) и результаты представляем в таблице 8.

Таблица 8 - Предельные размеры резьбовых поверхностей ( по диаметрам).

Предельный размер,мм

Болт

Гайка


d,мм

d2, мм

d1, мм

D,мм

D2,мм

D1,мм

Наибольший

36,000-0,038 =35,962

34,701+0,106 = 34,807

34,106+0,106 =34,212

не ограничен

34,701+ 0,116 =34,817

34,106+ 0,375 = 34,481

Наименьший

36,000-0,318 = 35,682

34,701+0,038 = 34,739

не ограничен

36,000

34,701

34,106


Рассчитываем предельные значения зазоров и натягов в резьбовой посадке: По D(d):

Smin = Dmin - dmax = 36,000-35,962 = 0,038 мм;

По D2(d2):

2min = d2max - D2min = 34,807 - 34,701 = 0,106 мм.2max = D2max - d2min = 34,817 - 34,739 = 0,078 мм.

По D1(d1):

1min = d1max - D1min = 34,212 - 34,106 = 0,106 мм

Дана резьбовая посадка с зазором М95 - 5Н/7h6h.

Определяем номинальные значения диаметров внутренней(гайки) и наружной резьбы(болта) по ГОСТ 24705:

d=D = 95,000 мм;

d2=D2 = 94,026 мм;

d1=D1 = 93,376 мм;

Р = 2 мм.

Предельные отклонения диаметров резьбовых деталей с внутренней резьбой (гайки) и наружной резьбой (болта) выбираем по ГОСТ 16093 и результаты представляем в таблице 9.

Таблица 9 - Предельные отклонения диаметров резьбовых поверхностей

Номинальный диаметр резьбы, мм

Предельные отклонения болта, мкм

Предельные отклонения гайки, мкм


es

ei

ES

EI

d=D = 95,000

-38

-280

не ограничено

0

d2=D2 = 94,026

-38

-236

+200

0

d1=D1 = 93,376

-38

не ограничено

+300

0


Определяем предельные размеры внутренней резьбы (гайки) и наружной резьбы (болта) и результаты представляем в таблице 10.

Таблица 10 - Предельные размеры резьбовых поверхностей (по диаметрам).

Предельный размер,мм

Болт

Гайка


d,мм

d2, мм

d1, мм

D,мм

D2,мм

D1,мм

Наибольший

95,000-0,000 =95,000

94,026-0,000 =94,026

93,376+0= 93,376

не ограничен

94,026+ 0,200= 94,226

93,376+ 0,300 = 93,676

Наименьший

95,000-0,280 = 94,720

94,026- 0,236 =93,790

не ограничен

95,000

94,026

93,376


Рассчитываем предельные значения зазоров в резьбовой посадке:

По D(d):

Smin = Dmin - dmax = 95,000-95,000 = 0,000 мм;

По D2(d2):

2min = D2min -d2max = 94,026 -94,026 = 0,000 мм.2max = D2max - d2min = 94,226- 93,790 = 0,436 мм.

По D1(d1):1min = D1min - d1max = 93,376- 93,376= 0,000 мм

8. ВЫБОР ПОКАЗАТЕЛЕЙ КОНТРОЛЬНОГО КОМПЛЕКСА ЗУБЧАТОГО КОЛЕСА И ПРИБОРОВ ДЛЯ КОНТРОЛЯ ВЫБРАННЫХ ПОКАЗАТЕЛЕЙ

Измерительными параметрами зубчатых колес являются нормы кинематической точности, нормы плавности работы, нормы контакта зубьев, норма бокового зазора.

Из таблицы 32 [1], с учетом степени точности зубчатого колеса 8-В, выбираем контрольные комплексы для контроля цилиндрического зубчатого колеса. При выборе контрольного комплекса предпочтение отдаем комплексным показателям.

Для контроля кинематической точности выбираем комплекс 1 для контроля кинематической погрешности Fir¢. По ГОСТ 9178-81 Fr = 34 мкм, Fр = 42 мкм.

Для контроля нормы плавности возможно использование комплексов 2,3 или 4. Основными показателями плавности выбраны - отклонение шага зацепления fptr = ±18 мкм и погрешность профиля зуба ffr = 13 мкм.

Для контроля точности контакта выбираем комплекс номер 1. Оценку точности делаем исходя из площади мгновенного пятна контакта. Показатели суммарного пятна контакта согласно ГОСТ 9178-81 не должны превышать fx = 15 мкм - допуск на непараллельность; fy = 8 мкм - перекос осей; FВ = 15 мкм - направления зуба.

Боковой зазор контролируем по показателям наименьшего отклонения толщины зуба и погрешности направления зуба согласно комплекса номер 1

Показатели точности и комплексы контроля точности выбранных показателей по ГОСТ 1643-81 приведены в таблице 11.

Таблица 11 - Показатели точности и комплексы контроля точности по ГОСТ 1643-81

Комплекс контроля

Показатель точности

Степень точности

Средства измерения

1

Накопленная погрешность шага

8

Шагомер S1


Погрешность обката

8

Биениемер Б10-М


Радиальное биение зубчатого венца

8

Биениемер Б10-М


Колебания межосевого расстояния

8

Нормалемер Межосемеры МЦ-160М

2

Отклонение шага зацепления

8

Шагомер


Погрешность профиля зуба

8

Эвольвентомер БВ-5062

1

Мгновенное пятно контакта

8

Специальный стенд

1

Наименьшее отклонение толщины зуба

8

Зубомер 23900


Погрешность направления зуба

8

Прибор БВ-5077


Библиография

Список литературы

1.       Цитович, Б.В. Нормирование точности и технические измерения. Курсовое проектирование: учебно-методическое пособие для студентов инженерно-технических специальностей. В 2 ч. Ч. 1 / Б.В. Цитович [и др.]; под ред. Б.В. Цитовича и П.С. Серенкова. - Мн.: БНТУ, 2006. - 176 с.

2.      Белкин И.М. Средства линейно-угловых измерений. Справочник. - М.: Машиностроение, 1987. - 368 с.

.        Якушев А.И. Взаимозаменяемость, стандартизация и технические измерения, учебник, 5-е издание переработ. и доп. - М: Машиностроение, 1979.

.        Анурьев В.И. Справочник конструктора-машиностроителя: Т-1-6-е изд., переработ. и доп. - М: Машиностроение, 1982 - 736 с.

.        Справочник металлиста том 1, под редакцией доктора технических наук С.А. Черновского и к.т.н. В.Ф. Рещикова.

.        Допуски и посадки. Справочник в 2-х частях, издание 5-е, переработ. и доп. под редакцией В.Д. Мягкова. Часть 1, 1979

Список нормативных документов

7.       ГОСТ 1643-81 Основные нормы взаимозаменяемости. Передачи зубчатые цилиндрические. Допуски.

ГОСТ 25346-89 Основные нормы взаимозаменяемости. Единая система допусков и посадок. Общие положения, ряды допусков и основных отклонений


Не нашли материал для своей работы?
Поможем написать уникальную работу
Без плагиата!
Без нейросетей!