Процесс проектирования и конструирования изделия
Процесс проектирования и
конструирования изделия
Оглавление
Введение
1. Анализ устройства и принципа действия сборочной единицы
2. Расчет и выбор посадки с натягом
2.1 Определим величину наименьшего расчетного натяга
2.2 Определим наименьший допустимый натяг
2.3 Определим наибольший функциональный натяг
2.4 Выбор посадки
2.5 Определим запас прочности
2.6 Определим точностные характеристики сопряженных деталей
2.7 Определим точностные характеристики соединения
2.8 Схема расположения полей допусков
3. Расчет и выбор переходной посадки
3.1 Определим максимальный допустимый зазор
3.2 Выбор стандартной переходной посадки
3.3 Определим точные характеристики сопрягаемых деталей
3.4 Определим точностные характеристики соединения
3.5 Определим среднее квадратичное отклонение посадки
3.6 Определим предел интегрирования
3.7 Определение значения функции
3.8 Определим вероятности получения зазора и натяга в соединении
3.9 Определим максимальные вероятностные зазоры и натяги
3.10 Схема расположения полей допусков соединения
3.11 Построение кривой распределения зазоров и натягов
3.12 Выбор универсального средства измерения вала и отверстия
3.13 Выбор универсального средства измерения отверстия
3.14 Выбор универсального средства измерения для вала
4. Расчет и выбор посадки с зазором
4.1 Определим минимальную допускаемую толщину масляного слоя
4.2 Определим среднее удельное давление создаваемого под цапфой
4.3 Определим допустимые зазоры
4.4 Выберем стандартную посадку с зазором
4.6 Определим точностные характеристики сопряженных деталей
4.8 Схема расположения полей допусков соединения
5. Расчет и выбор посадок подшипников качения
5.1 Определим вид нагружения колец подшипника
5.2 Выберем класс точности и определим поля допусков колец
подшипника
5.3 Назначим поле допуска на поверхность детали сопрягаемой с
местно нагруженным кольцом подшипника
5.4 Рассчитаем интенсивность радиальной нагрузки циркуляционно
нагруженного кольца подшипника
5.5 Определим точностные характеристики соединений
5.6 Рассчитаем допускаемый натяг
5.7 Схема расположения полей допусков соединения
6. Расчет и выбор степени точности, вида сопряжения и комплекса
контролируемых параметров зубчатых колес
7. Расчет и выбор посадки резьбового соединения
7.1 Определим шаг резьбы
7.2 Определим номинальные, средние и внутренние диаметры
7.3 Определим поля допусков резьбового соединения
7.4 Определим предельные отклонения
7.5 Определим предельные размеры
7.6 Определим допуски
7.7 Точностные характеристики резьбового соединения
7.8 Схема полей допусков резьбового соединения
8. Расчет размерной цепи
8.1 Найдем увеличивающие и уменьшающие составляющие звенья
размерной цепи
8.2 Расчет размерной цепи методом, обеспечивающим полную
взаимозаменяемость
8.3 Расчет размерной цепи вероятностным методом
Список используемой литературы
Введение
Основное требование к изделию это его качество. В связи с
этим основная задача, стоящая перед российским машиностроением, подготовка
высококвалифицированных инженеров. Каждый инженер должен владеть современными
методами расчета и конструирования современных машин и устройств.
Современная машина или устройство должно удовлетворять
требованиям: по безопасности, простоте использования и технологического
обслуживания, экономическим, технологическим и производственным требованиям.
Все эти требования должны быть решены в процессе
проектирования машины или устройства.
Для любой машины или устройства главным является
конструкторская и техническая документация, обычно они представляют собой
чертежи и технологические карты, в которых дается сборочный чертеж и
деталировки к нему с целым рядом указаний к процессу обработки и сборки.
Большинство этих указаний ограничивают погрешности, возникающих при обработке и
сборке деталей. Учесть все погрешности невозможно, но основная задача их
снижение.
В процессе конструирования изделия необходимо всесторонний
анализ влияния входных точностных параметров изделия на его функциональные
характеристики с учетом технико-экономических показателей, так как точность
входного параметра механизма прибора или машины определяется точностью
изготовления и сборки отдельных его звеньев.
Цель данного курсовой работы является практическое
закрепление знаний по выбору посадок, допусков размеров деталей, допусков формы
и расположения, а также их расчет и обоснование выбора.
1. Анализ
устройства и принципа действия сборочной единицы
Сборочная единица состоит из корпуса (1), вала (2), стакана
(3), крышки (4), колеса (5), зубчатого колеса (6), подшипников (7), втулки (8),
гайки (9).
На вал (2) с помощью шлицевого соединения крепится колесо (5)
и зафиксировано гайкой (9). На колесо (5) запрессовано зубчатое колесо (6). Так
же на вал натягом одевается 2 подшипника качения (7), на которые одет стакан
который вставлен в корпус (1). Во избежание смещения подшипников, между ними
вставляется втулка (8), а крышкой (4) фиксируется крайний подшипник.
Сборочная единица посредством вала (2) передает вращение с
зубчатого колеса (6).
2. Расчет и
выбор посадки с натягом
Для цилиндрического соединения деталей 5 и 6 указанного узла
рассчитать и выбрать стандартную посадку с натягом, обеспечивающую оптимальный
запас прочности при сборке и эксплуатации.

; 
; 
; 
; 
;

; 
; деталь 6 -
сталь 30Х; 5 - Чугун
2.1 Определим
величину наименьшего расчетного натяга
|
|
(2.1)
|
где 
- минимальное эксплуатационное давление на поверхности контакта, 
;

- номинальный диаметр соединения, 
;

и 
- безразмерные коэффициенты;

и 
- модули упругости материалов соединяемых деталей вала и
отверстия, 
.
|
|
(2. 2)
|
|
|
(2. 3)
|
где 
и 
- коэффициенты Пуассона для вала и отверстия.
Выбираем 
и 
из таблицы Б. 2 [1]:
Для стали 30Х коэффициент Пуассона: 
Для чугуна коэффициент Пуассона: 
.
Подставив числовые значения в формулы (2. 2) и (2. 3) получаем:
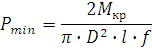
Запишем формулу минимального эксплуатационного давления:
|
|
(2.4)
|
где 
- крутящий момент стремящийся повернуть одну деталь относительно
другой, 
;

- длина контакта сопрягаемых деталей, м;

- коэффициент трения при установившемся процессе проворачивания.
Выберем 
из таблицы Б. 1 [1]: 
.
Подставив числовые значения в формулу (2. 4) получим:
Выберем из таблицы Б. 2 [1] модули упругости для материалов:
сталь 30Х: 
;
чугун: 
.
Определим наименьший расчетный натяг подставив числовые значения в
формулу (2. 1):
2.2 Определим
наименьший допустимый натяг
|
(2.5)
|
|
где 
- поправка учитывающая смятие неровностей контактных поверхностей
деталей, при образовании соединения, мкм;

- поправка учитывающая различия рабочей температуры деталей и
температуры сборки соединения, мкм;

- поправка учитывающая ослабление натяга под действием
центробежных сил, мкм;

- добавка компенсирующая уменьшение натяга при повторных
запрессовках, мкм.
|
|
(2.6)
|
где 
и 
- параметры шероховатости вала и отверстия, мкм.
Подставив числовые данные в формулу (2. 6) получаем:
Так как при поперечной запрессовке температура деталей равна
температуре сборки соединения, то поправку 
не учитываем.
Найдем наименьший допустимый натяг подставив в формулу (2. 5)
числовые значения:
2.3 Определим
наибольший функциональный натяг
.3.1 Определим максимально допустимого удельного давления при
котором отсутствует пластическая деформация на контактных поверхностях
|
|
(2.7)
|
|
|
(2.8)
|
где 
и 
- пределы текучести материалов вала и отверстия, Па.
Найдем пределы текучести материалов из таблицы Б. 3 [1]:
сталь 30Х: 
;
чугун 28-45: 
.
Подставив числовые значения в формулы (2. 7) и (2. 8) получаем:
Допустимое максимальное давление выбираем из наименьшего:
.3.2 Определим величину наибольшего расчетного натяга
|
|
(2.9)
|
Подставив числовые значения в формулу (2. 9) получаем:
.3.3 Определим допускаемый натяг
|
(2.10)
|
|
где 
- коэффициент увеличения удельного давления у торцов охватывающей
детали.
Используя отношения 
и 
найдем 
по таблице Б. 4 [1]: 
.
Подставив числовые значения в формулу (2. 10) получаем:
2.4 Выбор
посадки
Условие выбора посадки:
Используя таблицу 1. 49 [2] такому условию удовлетворяет
посадка:
2.5 Определим
запас прочности
.5.1 Запас прочности соединения при эксплуатации
|
|
(2.11)
|
.5.2 Запас прочности при сборке
|
(2.12)
|
|
2.6 Определим
точностные характеристики сопряженных деталей
.6.1 Точностные характеристики отверстия

;

;

;

;

.
.6.2 Точностные характеристики вала

;

;

;

;

.
Результаты расчетов представлены в таблице 1.
Таблица 1 - Точностные характеристики посадки с натягом
|
Обозначение
|
Номинальный размер, мм
|
Точностные характеристики, мкм
|
Предельные размеры, мм
|
|
|
|
|
|
|
|
|
|
80
|
46
|
0
|
46
|
80
|
80,046
|
|
|
80
|
256
|
210
|
46
|
80,210
|
80,256
|
2.7 Определим
точностные характеристики соединения

;

;

;

.
2.8 Схема
расположения полей допусков
Схема расположения полей допусков соединения 
представлена на рисунке 1.
Рисунок 1 - Схема расположения полей допусков соединения
проектирование конструирование изделие допуск
3. Расчет и
выбор переходной посадки
Для цилиндрического соединения деталей 1 и 3 указанного узла
рассчитать и выбрать стандартную переходную посадку, обеспечивающую оптимальный
запас прочности и оценить в ней вероятность получения зазоров и натягов.

; 
; 
мм.
Разработать схему измерений действительных размеров деталей
входящих в переходную посадку и выбрать универсальное измерительное средство с
указанием метрологических характеристик.
3.1 Определим
максимальный допустимый зазор
|
|
(3.1)
|
где 
- радиальное отношение втулки на валу, мкм;

- коэффициент запаса прочности.
Подставив числовые значения в формулу (3. 1) получаем:
3.2 Выбор
стандартной переходной посадки
Выберем стандартную переходную посадку исходя из условия:
где 
- максимальный табличный зазор, мкм.
Из таблицы В. 1 [1] выбираем стандартную переходную посадку:
3.3 Определим
точные характеристики сопрягаемых деталей
.3.1 Точностные характеристики отверстия

;

;

;

;

.
.3.2 Точностные характеристики вала

;

;

;

;

.
Результаты расчетов представлены в таблице 2.
Таблица 2 - Точностные характеристики переходной посадки
|
Обозначение
|
Номинальный размер, мм
|
Точностные характеристики, мкм
|
Предельные размеры, мм
|
|
|
|
|
|
|
|
|
|
160
|
25
|
0
|
25
|
80
|
80,025
|
|
|
160
|
21
|
3
|
18
|
160,003
|
160,021
|
3.4 Определим
точностные характеристики соединения

;

;

.
3.5 Определим
среднее квадратичное отклонение посадки
Используя суммирование независимых случайных величин,
получаем среднее квадратичное отклонение посадки.
|
|
(3.2)
|
где 
и 
- средние квадратичные отклонения вала и отверстия.
Считаем что рассеивание размеров вала и отверстия, а так же
зазоров и натягов подчиняются закону нормального распределения, а допуск
деталей равен полю рассеивания, получаем:
3.6 Определим
предел интегрирования
|
(3.3)
|
|
где 
- значение среднего зазора, мкм.
|
(3.4)
|
|
Подставив числовые значения в формулу (3. 3) получаем:
3.7
Определение значения функции 
По таблице В. 3 [1] по значению z найдем 
.
3.8 Определим
вероятности получения зазора и натяга в соединении
Так как в получившейся посадке средним значением является
зазор, то вероятность получения зазоров и натягов:
|
(3.5)
|
|
|
|
(3.6)
|
Подставляем числовые значения в формулы (3. 5) и (3. 6) получаем:
3.9 Определим
максимальные вероятностные зазоры и натяги
Так как в выбранной посадке средним значением является зазор,
то:
|
(3.7)
|
|
|
|
(3.8)
|
Подставив числовые значения в формулы (3. 7) и (3. 8)
получаем:
3.10 Схема
расположения полей допусков соединения
Схема расположения полей допусков соединения 
представлена на рисунке 2.
3.11
Построение кривой распределения зазоров и натягов
Для выбранной посадки при среднем значении вала и отверстия
получаем зазор. Кривая нормального распределения зазоров и натягов в соединении
представлена на рисунке 3.
Рисунок 2 - Схема расположения полей допусков соединения
Рисунок 3 - Кривая нормального распределения зазоров и натягов
соединения 
3.12 Выбор
универсального средства измерения вала и отверстия
где 
- предел допускаемой погрешности средства измерения;

- допускаемая погрешность измерения.
3.13 Выбор
универсального средства измерения отверстия
.13.1 Определим допускаемую погрешность измерения отверстия
Используя данные таблицы Л. 1 [1] допуск погрешности измерения
отверстия 
при 6 квалитете точности составляет 7 мкм.

.
.13.2 Выберем универсальное средство измерения отверстия
Согласно таблице Л. 2 [1] условия выбора удовлетворяет
универсальное средство:
Гладкий микрометр ГОСТ 6507 у которого 
.
3.14 Выбор универсального
средства измерения для вала
.14.1 Определим допускаемую погрешность измерения вала
Согласно таблицы Л. 1 допускаемая погрешность измерения вала 
при 5 квалитете точности составляет 6 мкм.

.
.14.2 Выберем универсальное средство измерения вала
Согласно таблицы Л. 2 [1] условию выбора удовлетворяет
универсальное средство:
Гладкий микрометр ГОСТ 6507 у которого 
.
Метрологические характеристики микрометров представлены в таблице
3.
Таблица 3 - Метрологические характеристики средств измерений
|
Измеряемая деталь
|
Допуск погрешности  , мкмСредства измерения
|
Метрологические характеристики средства
измерения, мм
|
Примечание
|
|
|
|
|
Диапазон измерений
|
Цена деления
|
Предельная допускаемая погрешность
|
|
|
|
7
|
Гладкий микрометр МК
|
|
0,01
|
|
ГОСТ 6507
|
|
|
6
|
|
|
|
|
|
4. Расчет и
выбор посадки с зазором
Для цилиндрического соединения деталей рассчитать и выбрать
стандартную посадку с зазором, обеспечивающее жидкостное трение между деталями
(решить как задачу).

; 
; 
; 
; 
; 
; 
; масло: И-40А.
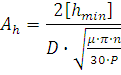
4.1 Определим
минимальную допускаемую толщину масляного слоя
|
|
(4.1)
|
где 
- коэффициент запаса надежности по толщине масляного слоя;

и 
- высоты микронеровностей вала и отверстия, мкм;

- добавка на неразрывность масляного слоя, 
мкм.
Подставив числовые значения в формулу (4. 1) получаем:
4.2 Определим
среднее удельное давление создаваемого под цапфой
|
|
(4.2)
|
где 
- радиальная реакция в подшипнике, Н;

- длина сопряжения, м;

- номинальный диаметр соединения, м.
Подставив числовые значения в формулу (4. 2) получаем:
4.3 Определим
допустимые зазоры
Определим 
по формуле:
|
|
(4.3)
|
где 
- динамическая вязкость масла, установившегося в процессе работы,

;

- число оборотов вала, 
.
Значение динамической вязкости при рабочей температуре 
определим по формуле:
где 
- табличное значение вязкости масла, 
;

- рабочая температура масла, 
.
Подставив числовые значения в формулу (4. 4) получаем:
Найдем значение
поставив числовые значения в формулу (4.3):
Используя найденное значение 
и отношение 
по рисунку Г. 1 [1] найдем минимальное и максимальное значения
относительного эксцентриситета:

; 
.
Определим по формулам значения минимального и максимального
допустимого зазоров:
|
|
(4.5)
|
|
|
(4.6)
|
Подставив числовые значения в формулы (4. 5) и (4. 6)
получаем:
4.4 Выберем
стандартную посадку с зазором
Условие выбора:
По таблице Г. 1 [1] выбираем посадку, которая соответствует
условиям:
у которой
, 
.
4. 5 Определим запас на износ
|
|
(4.7)
|
4.6 Определим
точностные характеристики сопряженных деталей
.6.1 Точностные характеристики отверстия

;

;

;

;

.
4.6.2 Точностные характеристики вала

;

;

;

;

.
Результаты расчетов представлены в таблице 4.
Таблица 4 - Точностные характеристики посадки с зазором
|
Обозначение
|
Номинальный размер, мм
|
Точностные характеристики, мкм
|
Предельные размеры, мм
|
|
|
|
|
|
|
|
|
|
125
|
25
|
0
|
25
|
125
|
125,025
|
|
|
125
|
-43
|
-68
|
25
|
124,932
|
124,957
|
.7 Определим точностные характеристики соединения
;
;
.
4.8
Схема расположения полей допусков соединения
Схема расположения полей допусков соединения
представлена на рисунке
4.
Рисунок 4 - Схема расположения полей допусков соединения
5. Расчет и
выбор посадок подшипников качения
Для подшипника качения 7 соединенного с валом 2 и деталью 3
выбрать посадку внутреннего и наружного колец, исходя из условия работы и вида
нагружения колец подшипника.
мм;
мм;
мм;
мм;
; направление радиальной
нагрузки постоянное; перегрузка 200%.
5.1 Определим
вид нагружения колец подшипника
Так как направление радиальной нагрузки постоянное и
вращается внутреннее кольцо подшипника, то наружное кольцо местно нагружено, а
внутреннее кольцо циркуляцонно нагружено.
5.2 Выберем
класс точности и определим поля допусков колец подшипника
Класс точности подшипника 6.
Внутреннее кольцо подшипника:
Внешнее кольцо подшипника:
5.3 Назначим
поле допуска на поверхность детали сопрягаемой с местно нагруженным кольцом
подшипника
Согласно таблицы 4.89.1 [3] выбираем поле допуска для
отверстия корпуса под подшипник качения с местным нагруженным кольцом: H7.
5.4
Рассчитаем интенсивность радиальной нагрузки циркуляционно нагруженного кольца
подшипника
|
|
(5.1)
|
где
- рабочая ширина посадочного места, м;
- динамический коэффициент посадки зависящий от
характера нагрузки;
- коэффициент учитывающий степень ослабления
посадочного натяга при полом вале или тонкостенном корпусе;
- коэффициент неравномерности распределения
радиальной нагрузки между рядами роликов в 2х рядных конических
роликоподшипниках или между сдвоенными шарикоподшипниками при наличии осевой
нагрузки.
|
|
(5.2)
|
где
- ширина подшипника, мм;
- ширина фаски кольца подшипника, мм.
Найдем ширину посадочного места подставив числовые значения в
формулу (5.2):
Найдем
:
По рассчитанному значению интенсивности радиальной нагрузки
выбираем поле допуска вала по таблице 4.90.1 [3] для внутреннего кольца подшипника:
.
5.5 Определим
точностные характеристики соединений
5.5.1 Соединение «наружное кольцо подшипника - корпус»
Точностные характеристики сопрягаемых деталей
;
;
;
;
.
;
;
;
;
.
Результаты расчетов представлены в таблице 5.
.5.2 Соединение «внутреннее кольцо подшипника - вал»
Точностные характеристики сопрягаемых деталей
;
;
;
;
.
;
;
;
;
.
Результаты расчетов представлены в таблице 5.
.5.3 Точностные характеристики соединения «внешнее кольцо
подшипника - корпус»
;
;
;
.
Результаты расчетов представлены в таблице 6.
Таблица 5 - Точностные характеристики сопрягаемых деталей
|
Обозначение
|
Номинальный размер, мм
|
Точностные характеристики, мкм
|
Предельные размеры, мм
|
|
|
|
|
|
|
|
|
|
130
|
40
|
0
|
40
|
130
|
130,040
|
|
|
130
|
0
|
-18
|
18
|
129,982
|
130
|
|
|
50
|
0
|
-12
|
12
|
49,988
|
50
|
|
|
50
|
25
|
9
|
16
|
50,009
|
50,025
|
Таблица 6 - Точностные характеристики соединений
|
Обозначение
|
Вид посадки
|
Точностные характеристики, мкм
|
|
|
|
|
|
|
|
|
с зазором
|
58
|
0
|
29
|
58
|
|
|
c натягом
|
37
|
9
|
23
|
28
|
.5.4 Точностные характеристики соединения «внутреннее кольцо
подшипника - вал»
;
;
;
.
Результаты расчетов представлены в таблице 6.
5.6
Рассчитаем допускаемый натяг
|
|
(5.3)
|
где
- диаметр кольца подшипника, м;
- коэффициент учитывающий серию подшипника,
;
- допускаемое напряжение на растяжение,
.
Подставив числовые значения в формулу (5.3) получаем:
5.7 Схема
расположения полей допусков соединения
Схема расположения полей допусков соединения «внешнее кольцо
подшипника - корпус» представлена на рисунке 5. Схема расположения полей
допусков соединения «внутреннее кольцо подшипника - вал» представлена на
рисунке 6.
Рисунок 5 - Схема расположения полей допусков соединения
Рисунок 6 - Схема расположения полей допусков соединения
6. Расчет и
выбор степени точности, вида сопряжения и комплекса контролируемых параметров
зубчатых колес
Для зубчатого колеса 6 номинальных параметров
мм,
мм,
мм,
,
,
зубчатой передачи и
выбрать степени точности по показателям математическим точности, плавности
работы и контакта зубьев. Рассчитать минимальный боковой зазор по неработающим
профилям зубьев, выбрать вид сопряжения и вид допуска бокового зазора.
Точностные требования передачам устанавливаются конструктором
на основе их назначения, конкретных условий работы передачи и тех требований,
которые к ней предъявляются.
Показатели точности, определяющие эксплуатационные
характеристики зубчатых передач стандартными разделены на 4 группы:
кинематическая точность, плавность работы, контакт зубьев и боковой зазор. По
нормам трех первых групп зубчатые колеса, парой передачи разделяется на 12
степеней точности. Выбор степени точности зубчатого колеса зависит от окружной
скорости, передаваемой мощности, требований кинематической точности, плавности,
бесшумности, долгосрочности и т.п. Один из методов выбора степени точности,
табличный, предлагает использование обобщенных рекомендаций и таблиц, в которых
содержаться примерные значения окружных скоростей для каждой степени точности и
примеры использования нормы точности.
Выбираем степень точности по таблице 5.12 [3] исходя из
данной окружной скорости
для зубчатых колес степень точности 6 по нормам
кинематической точности, степень точности 6 по нормам плавности, степень
точности по нормам контакта зубьев.
Для выбора вида сопряжения необходимо рассчитать
гарантированный боковой зазор
, он состоит из двух составляющих
и
.
Боковой зазор, соответствующий температурной компенсации
определяется по формуле:
где
- межцентровое расстояние;
и
- коэффициенты линейного
расширения материалов соответственно зубчатых колес и корпуса,
,
;
и
- предельные температуры
соответственно колеса и корпуса,
,
;
- угол исходного контура,
.
Составляющую
, учитывающую слой смазки определим по формуле:
где
- коэффициент окружной скорости,
;
- модуль зубчатого колеса.
Гарантированный боковой зазор определяется по формуле:
По таблице К.3 [1] определяем вид сопряжения для которого
. Вид сопряжения C, класс отклонений
межосевого расстояния IV, отклонения межосевого расстояния
. Назначаем степень
точности передачи 6 - CГОСТ 1643-72.
7. Расчет и
выбор посадки резьбового соединения
Для деталей 2 и 9 резьбы
определить допуски,
предельные отклонения, зазоры, построить схемы полей допусков.
7.1 Определим
шаг резьбы
По таблице 4.22 [3] определим шаг резьбы для наружного
диаметра:
.
7.2 Определим
номинальные, средние и внутренние диаметры
По таблице 4.23 [3] определим размеры среднего и внутреннего
диаметров:
;
.
7.3 Определим
поля допусков резьбового соединения
Поле допуска гайки
- диаметров
и
.
Поле допуска болта
- диаметров
и
.
7.4 Определим
предельные отклонения
.4.1 Внутренняя резьба (гайка)
Согласно таблице 4.29 [3]:
Средний диаметр
:
Внутренний диаметр
:
Наружный диаметр
:
.4.2 Наружная резьба (болт)
Средний диаметр
:
Внутренний диаметр
:
Наружный диаметр
:
7.5 Определим
предельные размеры
.5.1 Предельные размеры болта
Для среднего диаметра болта:
;
.
Для наружного диаметра болта:
;
.
Для внутреннего диаметра болта:
;
.
.5.2 Предельные размеры гайки
Для среднего диаметра гайки:
;
.
Для наружного диаметра гайки:
;
.
Для внутреннего диаметра гайки:
;
.
7.6 Определим
допуски
Поле допуска среднего диаметра болта:
.
Поле допуска наружного диаметра болта:
.
Поле допуска среднего диаметра гайки:
.
Поле допуска внутреннего диаметра гайки:
.
Точностные характеристики резьбовых деталей представлены в
таблице 7.1.
Таблица 7.1 - Точностные характеристики резьбовых деталей
|
Обозначение
|
Номинальный размер, мм
|
Поле допуска
|
Величина допуска, мкм
|
Предельные отклонения, мкм
|
Предельные размеры, мм
|
|
|
|
|
|
|
|
|
|
|
30
|
|
408
|
408
|
58
|
27,785
|
28,135
|
|
|
|
|
763
|
763
|
58
|
26,269
|
26,974
|
|
|
30
|
|
-302
|
-90
|
-302
|
27,425
|
27,637
|
|
|
|
-515
|
-90
|
-515
|
29,485
|
29,91
|
7.7
Точностные характеристики резьбового соединения
По средним диаметрам
:
;
;
;
.
По внутренним диаметрам
:
;
.
По наружным диаметрам
:
;
.
Точностные характеристики резьбового соединения представлены
в таблице 7.2
7.8 Схема
полей допусков резьбового соединения
Схема полей допусков резьбового соединения представлена на
рисунке 7.
Таблица 7.2 - Точностные характеристики резьбового соединения
|
Обозначение соединения
|
Вид посадки
|
Точностные характеристики, мм
|
|
|
|
|
|

|
С зазором
|
0,148
|
0,710
|
0,429
|
0,562
|
Рисунок 7 - Схема расположения полей допусков резьбового
соединения
8. Расчет
размерной цепи
Выполнить расчет размерной цепи методами , обеспечивающими
полную и неполную взаимозаменяемость.
;
;
;
;
;
.
8.1 Найдем
увеличивающие и уменьшающие составляющие звенья размерной цепи
Схема размерной цепи представлена на рисунке 8.
На схеме размерной цепи представленной на рисунке 8:
- замыкающее звено;
- увеличивающее звено;
,
,
,
- уменьшающие звенья.
Определим номинальное значение звена
по формуле:
8.2 Расчет
размерной цепи методом, обеспечивающим полную взаимозаменяемость
.2.1 Определим среднее количество единиц допуска
|
|
(8.1)
|
где
- допуск замыкающего звена, мкм;
- суммарный допуск стандартных деталей;
- значение единицы допуска каждого составляющего
звена, мкм.
Рисунок 8 - Схема размерной цепи
Согласно таблицы М.1 [1] значения единиц допуска для звеньев
составляет:
;
;
.
Подставив числовые значения в формулу (8.1) получаем:
Согласно таблице 1.8 [4] значение
находится между
и
.
.2.2 Назначим допуски составляющих звеньев
Используя данные таблицы 1.8 [4] назначаем для всех
составляющих звеньев IT10:
,
;
.
Проведем проверку по равенству:
|
(8.2)
|
|
Т.к. 584 < 600 на 3% считаем это допустимым.
.2.3 Определим предельные отклонения на размеры составляющих
звеньев
,
,
.
.2.4 Проверка правильности расчетов
Проводим проверку выполняемости условий:
Подставив числовые значения получаем:
Неравенства выполняются.
Результаты расчетов представлены в таблице 8.
Таблица 8 - Результаты расчетов размерной
цепи методом полной взаимозаменяемости
|
Номинальный размер с обозначением, мм
|
Квалитет
|
Поле допуска
|
Предельное отклонение, мкм
|
Предельные размеры, мм
|
Примечание
|
|
|
|
Es
|
Ei
|
min
|
max
|
|
|
|
-
|
-
|
820
|
220
|
0,220
|
0,820
|
Замыкающее
|
|
|
IT10
|
H10
|
160
|
0
|
142
|
142,160
|
Увеличивающее
|
|
|
IT10
|
h10
|
0
|
-84
|
29,916
|
30
|
Уменьшающее
|
|
|
IT10
|
-
|
0
|
-120
|
30,880
|
31
|
Уменьшающее
|
|
|
IT10
|
h10
|
0
|
-100
|
49,900
|
50
|
Уменьшающее
|
|
|
IT10
|
-
|
0
|
-120
|
30,880
|
31
|
Уменьшающее
|
8.3 Расчет
размерной цепи вероятностным методом
Используя выполненную схему размерной цепи, принятые
увеличивающие и уменьшающие звенья
.3.1 Определим среднее количество единиц допуска
|
|
(8.3)
|
где
- коэффициент принятого процента риска
замыкающего звена,
;
- коэффициент относительного рассеяния,
.
Найденное значение находится между
и
.3.2 Назначим допуски составляющих звеньев
;
;
.
Проверим назначенные допуски.
|
(8.4)
|
|
Подставив числовые данные получаем:
Назначаем предельные отклонения:
;
4
.
.3.3 Определим координаты середины поля допуска каждого звена
;
;
;
;
.
.3.4 Проведем проверку правильности решения
Подставив числовые значения получим:
Неравенства выполняются.
Таким образом, анализируя 2 метода расчета размерных цепей
следует отметить метод полной взаимозаменяемости предполагает, что в процессе
обработки или сборки возможна одновременное сочетание наибольших увеличивающих
и наименьших уменьшающих размеров или обратное их сочетание.
Применение теоретико-вероятностного метода позволяет
расширить допуски составляющих размеров и тем самым упростить изготовление
деталей, поэтому данный метод экономичнее более выгодный и изготавливать детали
в этом случае технологически проще чем детали с размерами полученными при
расчете методом полной взаимозаменяемости.
Список
используемой литературы
1. Лисовская
З.П. Нормирование точностных параметров типовых соединений деталей приборов и
машин (в курсовом и дипломном проектировании): Учебное пособие / З.П.
Лисовская, В.Н. Есипов. - Орел: ОрелГТУ, 2002. - 122 с.
2. Палей
М.А. и др. Допуски и посадки: Справочник: В 2 ч. Ч.1. - 7-е изд., перераб. и
доп. - Л.: Политехника, 1991. 576 с.: ил.
. Палей
М.А. и др. Допуски и посадки: Справочник: В 2-х ч. Ч. 2. - изд., перераб. и
доп. - Л.: Политехника, 1991. - 607 с.
. Допуски
и посадки: Справочник. В 2-х ч./ В.Д. Мягков, М.А. Палей, А.Б. Романов, В.А.
Брагинский. - 6-е изд., перераб. и доп. - Л.: Машиностроение. Ленингр. отд-ние,
1982. - Ч. 1. 543 с., ил.