Cтальные конструкции рабочей площадки
Министерство
образования и науки Российской Федерации
ГОУ ВПО
"АЛТАЙСКИЙ ГОСУДАРСТВЕННЫЙ ТЕХНИЧЕСКИЙ
УНИВЕРСИТЕТ
им. И.И.ПОЛЗУНОВА"
Кафедра
"Строительные конструкции"
ПОЯСНИТЕЛЬНАЯ
ЗАПИСКА
К КУРСОВОМУ
ПРОЕКТУ
по курсу
"Металлические конструкции"
Проект выполнил:
студент Архипенко Н.А.
Руководитель проекта
Александров О.Б.
БАРНАУЛ 2011
Содержание
1. Исходные данные
. Расчет настила
. Расчет балки настила
. Расчет главной балки
. Изменение сечения балки по длине
. Проектирование опорной части балки
. Расчет укрупнительного стыка главной балки
. Расчет колонны
Список литературы
1. ИСХОДНЫЕ ДАННЫЕ
1. Размер рабочей площадки в плане 6х24м;
2. Сетка колонн 3*912м;
. Технологическая нагрузка (равномерно распределенная): 25кН/м2;
. Отметка верха настила: 9,6м;
. Класс бетона фундаментов: В12,5;
. Район строительства: Хабаровск;
. РАСЧЁТ НАСТИЛА
Рисунок
1. Конструктивная схема настила
По
СНиП "Строительная климатология" определяем среднюю температуру для г.Хабаровск
в январе и июле (-22,3 и +21,1);
По
ГОСТ "Климат СССР" определяем район (I4 - умеренный);
По
СП "Стальные конструкции" выбираем сталь для настила (С255 - ГОСТ
27772-88);
Рисунок 2.Схема опирания настила на балки
Соотношение между шириной и толщиной настила можно определить из
следующего равенства:
, где
- ширина
настила, см
-
толщина настила, см
- нормативная распределенная нагрузка, Н/см
-
продольный модуль упругости, кН/см2
, где
- модуль
упругости стали = 2.06×104 кН/см2
n0- величина, обратная предельно допустимому прогибу
n0 = 1/[f]= 1/150
-
коэффициент Пуассона, для стали - 0.3
для
находим по таблице, что
.
Принимаем tn=12мм
Так
как число и шаг балок настила должно быть целым, то принимаем lн = 90 см
:
lн=1200:90=13,333≈14
3. Расчет балки настила
Рисунок
3. Расчетная схема нагружения балки настила
Для
балок настила в климатическом районе I4 принимается сталь марки С255
с расчетным сопротивлением
. На
балку действует технологическая нагрузка и собственный вес стального настила.
Принимая плотность стали 7850 кг/м3, величину технологической
нагрузки 22.5 кН/м2, а также найденную нами ранее толщину листа
настила найдем величину расчетной линейнораспределенной нагрузки.
Сбор
нагрузок на балку настила:
Нормативная нагрузка на балку:
,
где
- технологическая нагрузка
Расчетная нагрузка на балку:
= 1.2 -
коэффициент надежности по нагрузке,
-
коэффициент надежности по нагрузке для веса стальных конструкций
Максимальный
изгибающий момент в балке настила:
, где
-
расчетная нагрузка действующая на балку, = 27,8 кН/см;
- длина
балки настила, = 3м.
;
-
требуемый момент сопротивления сечения балки относительно оси Y, см3
, где
-
расчетное сопротивление стали по пределу текучести, кН/см2
По
таблице сортаментов двутавров (ГОСТ 26020-83 "Двутавры стальные
горячекатаные с параллельными гранями полок. Сортамент") принимаем
ближайший больший по моменту сопротивления двутавр:
Рисунок 4. Основные характеристики двутавра
№ профиля - 18
H =
180 мм
А = 23,4 см2
q =
18,4 кг/м
Ix = 1290 см4
Wx = 143 см3
Sx = 81,4 см3
b = 90
мм
s =
5.1 мм
t =
8,1 мм
r =
3,5 мм
3.1 ПРОВЕРКА ЖЕСТКОСТИ БАЛКИ
Максимальный прогиб находится посередине балки, его можно рассчитать
через прогиб свободно опертой балки:
, см;
- момент
инерции балки, см4;
- модуль
упругости стали = 2.06×104
кН/см2;
Проверка выполнена, значит, жесткость обеспечена.
. Расчет главной балки
На рассматриваемую балку действуют нагрузки: полезная нагрузка, вес
настила и собственный вес балки. При поэтажном опирании балок настила на
главную балку нагрузки прикладываются в виде системы одинаковых сосредоточенных
сил в тех местах, где расположены балки настила. Вес же самой балки должен
прикладываться как равномерно распределенная нагрузка. Но для упрощения
вычислений можно включить данную нагрузку в состав сосредоточенных сил, что не
повлияет в значительной степени на конечный результат.
Нормативное значение сосредоточенной силы:
, где
-
полезная (технологическая) нагрузка, =25×10-4
кН/см2
- вес
балки настила (произведение 1м.п. двутавра №18 на длину)
gн - постоянная нагрузка от массы настила, т. е. вес 1
см2 настила
-
примерный вес главной балки принятый исходя из опыта многочисленных расчетов
составных балок, кН.
Расчетное значение сосредоточенной силы:
, где
-
коэффициент надежности по нагрузке для равномерно распределенной нагрузки
= 1.2;
-
коэффициент надежности по нагрузке для веса стальных конструкций,
= 1.05,
Под действием нагрузки балка прогибается, и в её поперечных сечениях
возникают изгибающий момент и поперечная сила. Расчетная схема балки является
статически определимой. Эпюры изгибающих моментов и поперечных сил строятся по
правилам сопротивления материалов и строительной механики. С целью снижения
трудоемкости построения эпюр при большом количестве сосредоточенных нагрузок
заменим такую нагрузку эквивалентной равномерно распределенной:
;
Максимальный
момент от эквивалентной распределенной нагрузки
.
Для
компоновки поперечного сечения вычисляется требуемый момент сопротивления
сечения балки в середине пролета:
настил балка эпюра колонна
4.1 ОПРЕДЕЛЕНИЕ высоты ГЛАВНОЙ балки
Рисунок
5. Поперечное сечение главной балки в середине пролета
Высота
балки назначается из анализа трех значений
,
,
.
-
оптимальная высота балки, которая обеспечивает наименьшую площадь сечения, а,
следовательно, и наименьший расход стали.
, где
-
коэффициент, принимаемый для составных сварных балок 1.15…1.2,
- толщина стенки, точное значение которой на этапе
компоновки неизвестно, см,
-
требуемый момент сопротивления,
= 7462,5
см3
Значением
задаемся эмпирически по формуле
, где
-
предварительная высота балки, назначают предварительно, исходя из рекомендаций:
(
), м
-
толщина стенки, мм
-
минимальная высота балки, обеспечивающая достаточную жесткость балки:
, где
-
отношение пролета балки к предельно допускаемому нормами прогибу.
Высоту
балки следует назначать близкой к оптимальной, но не менее минимальной. Примем
.
4.2 Определение толщины стенки
Толщина стенки также является важным параметром сечения балки, так как
наряду с высотой оказывает большое влияние на экономичность конструкции. Из
условия прочности стенки в опорных сечениях ее толщина должна удовлетворять
условию:
, где
- высота
стенки балки, на этапе компоновки предварительно принимаемая
, см;
-
максимальная поперечная сила,
= 597 кН;
;
.
Чтобы
обеспечить местную устойчивость стенки без дополнительного укрепления ее
продольным ребром, необходимо выполнение условия:
, где
- высота
стенки балки, см;
-
расчетное сопротивление стали на растяжение (сжатие), кН/см2;
- модуль
упругости стали, кН/см2.
.
Таблица
1 - Рекомендуемые отношения высоты балки и толщины стенки:
|
, м0,811,523
|
|
|
|
|
|
|
, мм6…88…1010…1212…1416…18
|
|
|
|
|
|
|
100…133100…125125…150145…165165…185
|
|
|
|
|
|
Исходя
из этих требований, принимая во внимание таблицу и сортамент листовой стали (в
отношении толщины), назначаем
4.3 ОПРЕДЕЛЕНИЕ размеров пояса
Требуемая площадь пояса составной балки:
, где
-
требуемый момент сопротивления,
= 7462,5
см3
- высота
балки,
= 100 см
-
толщина стенки,
= 0,9 см
Кроме
того, при назначении размеров поясов необходимо учитывать следующие требования
и рекомендации:
- исходя
из удобства сварки пояса со стенкой (чтобы уменьшить усадочные напряжения)
- исходя
из обеспечения общей устойчивости балки
- для
обеспечения местной устойчивости сжатого пояса;
- свес
пояса,
Учитывая
вышеприведенные требования назначаем размеры поясов:
,
(с
учетом сортамента листовой стали в отношении толщины). Эти размеры
удовлетворяют требованиям а)…d).
Вычисляем
геометрические характеристики скомпонованного сечения:
.
4.4 Проверка прочности по нормальным
напряжениям
Расчет балки осуществляется в предположении упругой работы. Допущение
упругопластических деформаций в среднем сечении могут привести к недостаточной
прочности сечения ввиду его ослабления отверстиями под высокопрочные болты
укрупнительного стыка, который выполняется в этом сечении. Тогда проверка
прочности по нормальным напряжениям выполняется по формуле:
-
коэффициент условия работы =1
Проверка
по прочности удовлетворяет условию.
5 Изменение сечения балки по длине
Рисунок 6. Изменение сечения балки по длине
Сечение составной балки, подобранное по максимальному изгибающему
моменту, можно уменьшить в местах снижения моментов согласно эпюре M. Изменение
сечения дает экономию стали, но увеличивает трудоемкость изготовления. Поэтому
экономически выгодно выполнять изменение сечения в балках с относительно
большими пролетами (12 м и более). В таких балках экономия стали превышает
дополнительные расходы, вызванные увеличением трудоемкости. Изменить сечение
балки можно несколькими способами. Наиболее подходящим является уменьшение
ширины поясов ближе к опорам.
Ширина пояса измененного сечения bf1 исходя из расчета и с учетом конструктивных
требований:
1.
.
.
В
месте изменения сечения выполняется стыковой сварной шов полуавтоматической
сваркой. В соответствии с [4] расчетное сопротивление стыкового шва в нижнем
растянутом поясе Rwy=0.85 Ry (без
контроля качества шва).
Определяем
место изменения сечения:
.
Вычисляем
изгибающий момент и поперечную силу в сечении:
;
.
Для сравнения вычислим эти же усилия по эпюрам от действительной
нагрузки. Определяем требуемый момент сопротивления измененного сечения:
.
Требуемая
площадь пояса:
.
Ширина
пояса:
.
Принимаем
ширину пояса
20 см, что удовлетворяет вышеприведенным требованиям.
5.1 ПРОВЕРКА ПРОЧНОСТИ СВАРНОГО ШВА
.
;
.
.
, ó 19,248 кН/см2 ≤ 20,4 кН/см2
Проверка выполнена.
.2 ПРОВЕРКА ПРОЧНОСТИ ПО ПРИВЕДЕННЫМ НАПРЯЖЕНИЯМ
.

≤24кН/см2
Проверка
выполнена, сталь работает упруго
5.3 Проверка Жесткости балки
Проверяем
балку по прогибам. Максимальный прогиб
(в
данном случае в середине пролета) не должен превышать предельно нормируемого
значения
. Проверка относится ко второй группе предельных
состояний. Поэтому расчет ведем на действие нормативных значений нагрузок:
Для
однопролетной свободно опертой балки, загруженной равномерно распределенной
нагрузкой
, максимальный прогиб:
В
расчете учтен момент инерции измененного сечения, что идет в запас. fu определяем по [3] путем линейной интерполяции.
, 4,234
см < 5,505 см
Жесткость
балки обеспечена
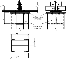
6. Проектирование опорной части балки
Примем опирание балки на колонну сверху через опорное ребро,
привариваемое к торцу балки. При таком конструктивном решении опорная реакция
балки со стенки через двусторонние угловые сварные швы передается на опорное
ребро; далее через его торец на опорную плиту оголовка колонны. Поскольку
значение опорной реакции весьма значительно торец опорного ребра и поверхность
опорной плиты оголовка строгают или фрезеруют. В результате такой механической
обработки торцовая поверхность ребра становится гладкой и перпендикулярной его
вертикальной оси, что обеспечивает четкую (без обмятия) передачу усилия и
строгую вертикальность балки на опоре. Выступающая вниз часть ребра не должна
превышать ar ≤ 1,5 tr, принимаем ar = 15 мм
Вычисляем требуемую площадь опорного ребра:
,
где
Rp - расчетное сопротивление смятию торцевой поверхности
при наличии пригонки, Rp = 327 МПа.
Принимаем tр=10мм
Проверяем местную устойчивость опорного ребра:
Местная устойчивость обеспечена
.1 ПРОВЕРКА УСТОЙЧИВОСТИ ОПОРНОЙ СТОЙКИ ИЗ
ПЛОСКОСТИ СТНЕКИ БАЛКИ
Ширина
выступающей части ребра не должна быть слишком большой. Иначе опорное ребро как
сжатая тонкая и широкая пластина потеряет местную устойчивость. Если ширина
ребра будет слишком малой, то сжатая стойка, которой является опорное ребро и
примыкающая часть стенки, может потерять устойчивость из плоскости стенки балки
от действия R.
Поэтому
необходимо выполнить проверку опорной стойки на устойчивость как центрально
сжатого стержня с расчетной схемой и условным сечением в виде тавра, в состав
которого включается опорное ребро и часть стенки шириной d.
Рисунок
7. Опирание балки на колонну
по
таблице
(получен с помощью интерполяции);
Устойчивость
обеспечена.
7. РАСЧЕТ УкрупнительнОГО
стыкА балки на высокопрочных болтах
В стыках на высокопрочных болтах каждый пояс перекрывается тремя
накладками, а стенка - двумя накладками, площадь сечения которых должна быть не
менее площади перекрываемых элементов. Применяются высокопрочные болты с
контролем усилия натяжения. В таких соединениях передача усилий осуществляется
за счет сил трения, которые возникают по поверхности соприкосновения от сильного
прижатия деталей друг к другу.
Для
стыка принимаем высокопрочные болты
из стали
40X "селект" с наименьшим временным
сопротивлением болта разрыву, принимаемое по таблице,
.Способ обработки поверхности - газопламенный. Способ
контроля натяжения болтов - по углу поворота гайки. Тогда коэффициент
, - коэффициент
трения,
принимаемый по таблице, коэффициент надежности, принимаемый по таблице
.
-
площадь сечения болта нетто, определяемая по таблице.
- коэффициент условий работы соединений,
зависящий от количества болтов и принимаемый равным: 0.8 при n < 5; 0.9 при 5 ≤
n < 10; 1 при n ³ 10 .
Несущая
способность высокопрочного болта:
,
Где k- количество плоскостей трения, k=2;
-
расчетное сопротивление растяжению высокопрочного болта.
.
.1 Соединение поясов главной балки
Расчет
количества болтов
Момент,
воспринимаемый поясами:
Принимаем
10 болтов с каждой стороны стыка и размещаем их в соответствии с
конструктивными требованиями.
.2
ПРОВЕРКА ПРОЧНОСТИ СЕЧЕНИЯ ПОЯСА БАЛКИ С УЧЕТОМ ОСЛАБЛЕНИЯ ОТВЕРСТИЯМИ
Пояс
ослаблен 4 отверстиями
<
Прочность обеспечена.
7.3 РАСЧЕТ СОЕДИНЕНИЯ СТЕНКИ
Момент,
воспринимаемый стенкой:
.
Принимаем
расстояние между крайними по высоте рядами болтов:
.
Принимаем
два вертикальных ряда (m=2) с каждой стороны стыка и 4 горизонтальных рядов с
шагом
.
В
сечении балки, где выполняется стык
,
максимальное усилие в наиболее нагруженном болте:

8. Расчет колонны
Рисунок 8. Схема определения геометрической длины колонны
Рассчитываемая колонна является сквозной, составного сечения из двух
швеллеров. Расчетная схема колонны представляет собой балку на шарнирных
опорах.
Определим геометрическую длину колонны:
Определим расчетную длину колонны:
Определим
расчетную нагрузку, действующую на колонну:
.1
Расчёт колонны относительно материальной
оси
Рисунок
9. Профиль колонны
Зададимся
гибкостью колонны в зависимости от нагрузки:
(по опыту проектирования).
Определяем
коэффициент продольного изгиба в зависимости от гибкости и расчетного
сопротивления стали
.
Подбираем
сечение стержня, рассчитывая его относительно оси
. Определяем требуемую площадь сечения:
В
соответствии с сортаментом принимаем два швеллера №40 со значениями
и
близкими
к требуемым:
|
№ профиля
|
h, мм
|
A, см2
|
ix,
см
|
Ix,
см4
|
g, кг/м
|
iy,
см
|
Iy,
см4
|
b, см
|
s, см
|
t, см
|
|
40
|
400
|
61,5
|
15,7
|
15220
|
48,3
|
3,23
|
642
|
11,5
|
0,8
|
13,5
|
С
учетом выбранного швеллера гибкость относительно оси
:
.
Коэффициент
продольного изгиба для
=2,237:
Проверяем
устойчивость относительно оси
:
условие
выполнено.
8.2 Расчет относительно свободной оси
Определяем
расстояние между ветвями колонны из условия равноустойчивости в двух
плоскостях:
. Принимаем гибкость ветви
, а затем определяем требуемую гибкость по формуле
относительно свободной оси
:
В соответствии с типом принятого сечения расстояние между ветвями b определяется из выражения iy = 0.44 b
Полученной гибкости соответствует радиус инерции:
.
Определяем
расстояние между ветвями:
.
Полученное
расстояние должно быть не менее двойной ширины поясов двутавров с зазором:
- примем
величину
.
Просвет
между ветвями: b1 = b - 2bf = 50 - 2×11,5 = 27 см
.3
Проверка сечения относительно свободной
оси
Момент
инерции относительно оси
:
.
Радиус
инерции сечения относительно свободной оси:
.
Гибкость
стержня относительно свободной оси:
Приведенная
гибкость колонны:
, отсюда
Устойчивость
колонны относительно свободной оси:
Окончательно
принимаем lx
= 65,210, ly
= 76,259
8.4 Расчет планок
Рисунок
10. Схема расположения планок и сечение колонны
Устанавливаем
размеры планки:
Планки
заводим на ветви на 50 мм
Ширина
планки:
Высота
планки:
Толщина
планки:
Расстояние
между планками:
Расчетная
длина между планками:
Определяем
расчетные усилия, действующие на одну планку:
Поперечная
сила и изгибающий момент, действующие на планку одной грани:
Принимаем
приварку планок к полкам двутавров угловыми швами
. Так как прочность угловых швов при
будет меньше прочности планки, то достаточно
выполнить проверку прочности сварных швов. Присоединение планок осуществляется
ручной сваркой электродами Э42 (в расчете учитываем только вертикальные участки
шва).
Площадь
и момент сопротивления сварного шва:
; где
- коэффициент, принятый по
Напряжения в шве от момента и поперечной силы:
;
.
Равнодействующее
напряжение:
Прочность
конструкции обеспечена
8.5 Расчет оголовка колонны
Опирание
балок на колонну принято сверху. Поэтому оголовок колонны состоит из плиты и
ребер, поддерживающих плиту и передающих нагрузку на стержень колонны. Ребра
оголовка приваривают к опорной плите и к ветвям колонны. Швы, прикрепляющие
ребро оголовка к плите, должны выдерживать полное давление на оголовок.
Определяем
величину катета сварного шва по металлу шва:
По металлу границы сплавления:
Ввиду
большой толщины сварного шва торец колонны и ребро необходимо фрезеровать. В
этом случае давление от балок будет передаваться непосредственно через опорную
плиту на ребро оголовка, назначается конструктивно. Принимаем
.Толщину опорной плиты принимаем конструктивно
.Высоту ребра оголовка
определяем
из условия, требуемой длины швов, передающих нагрузку на стержень колонны.
Принимаем
.
По
металлу шва:
По
металлу граница сплавления:
Принимаем
Толщину
ребра оголовка
определяем из условия сопротивления на смятие под
полным опорным давлением:
, где
см = длина сминаемой
поверхности, равная ширине опорного ребра балки плюс две толщины плиты
оголовка.
Rp -
расчетное сопротивление смятию торцевой поверхности, принято по таблице.
Расчет БАЗЫ колонны
База
является опорной частью колонны и предназначена для передачи усилия с колонны
на фундамент. Конструкцию базы принимаем с траверсами. Траверса служит для
более равномерного распределения усилий от колонны на плиту и увеличивает ее
несущую способность.
Бетон
фундамента класса В 12,5, для которого призменная прочность
[СНиП 2.03.01-84,
таблица 13].
Расчетную
нагрузку на базу определяем как сумму нагрузок:
- нагрузку
на колонну
- вес
колонны
=1.05 -
коэффициент надежности по нагрузке
Определяем
требуемую площадь опорной плиты базы колонны:
Ширину
плиты
принимаем по конструктивным соображениям:
, где
-
расстояние между траверсами, высота сечения ветви
tтр - толщина траверсы, которая из конструктивных
соображений принимается как 10..16 мм, принимаем = 10 мм
c- свободный
выступ плиты за траверсу, принимаемый равным 2..6 см
Длина
плиты:
-
принимаем
.
Плита
работает как пластинка на упругом основании, воспринимающая давление от ветвей,
траверс и ребер. Для простоты расчета давление под плитой принимается
равномерно-распределенным.
Плиту
рассчитываем как пластину, нагруженную снизу равномерно - распределенным
давлением
и опертую на элементы сечения стержня и базы колонны
(траверсы, диафрагмы, ребра).
Напряжение
под плитой:
.
Определение толщины опорной плиты
В
соответствии с конструкцией принятой базы, плита имеет участки: опертые на
четыре канта (1), на три канта (2) и на два канта (3).
Участок
№1, опертый на 4 канта:
, расчетный момент определяется как для однопролетной
балочной плиты по формуле:
Участок
№2, опертый на 3 канта:
плита
рассчитывается как консоль
Участок
№3 , опертый на 1 кант:M2=M3
-
в соответствии с сортаментом (ГОСТ 103-76*) принимаем
Высоту
траверсы находим по длине сварных швов, необходимых для прикрепления ее к
стержню колонны. Прикрепление траверсы к колонне выполняем полуавтоматической
сваркой сварочной проволокой СВ-08Г2С.
,
Расчет
ведем по металлу шва, так как
При
4-х вертикальных швах с катетом
высота
траверсы составит:
-
принимаем высоту траверсы
ПРОВЕРКА
ТРАВЕРС НА ПРОЧНОСТЬ
Траверса
рассчитывается, как однопролетная балка с консолями:
;
.
На
максимальном участке:
.
Приварку торца ветвей колонны к опорной плите выполняем конструктивными
швами 6 мм, так как эти швы в расчете не учитывались.
Список литературы
1 Беленя Е.И. Металлические конструкции.- М.:
Стройиздат, 1986. -560 с.
2 Лихтарников Н.М. и др. Расчет стальных конструкций:
Справочное пособие. - К.:Будивельник, 1984. -368 с.
СП 20.133330.2001 Нагрузки и воздействия.
Актуализированная редакция СНиП 2.01.07-85*.
СП 16.13330.2011. Стальные конструкции.
ГОСТ 16350-80 Климат СССР. Районирование и
статистические параметры климатических факторов для технических целей
СНиП 23-01-99 Строительная климатология
Кикоть А. А. Расчет стальной сварной балки - АлтГТУ,
Барнаул, 2005 50 с.
Калько И. К. расчет элеменочной клетки - АлтГТУ,
Барнаул, 1989 36 с.