Автоматизация рецептурно-смесительного комплекса приготовления шоколадных масс

  • Вид работы:
    Дипломная (ВКР)
  • Предмет:
    Другое
  • Язык:
    Русский
    ,
    Формат файла:
    MS Word
    140,65 kb
  • Опубликовано:
    2011-05-09
Вы можете узнать стоимость помощи в написании студенческой работы.
Помощь в написании работы, которую точно примут!

Автоматизация рецептурно-смесительного комплекса приготовления шоколадных масс

Содержание

Введение

. Характеристика объекта автоматизации (описание технологического процесса)

.1 Описание поточной линии для приготовления шоколадных масс

.2 Рецептурно-смесительный комплекс

. Анализ технологического процесса как объекта автоматизации и выбор контролируемых и регулируемых параметров

. Выбор технических средств и описание схемы автоматизации

. Описание средств автоматизации

Заключение

Список использованной литературы

Введение

автоматизация схема объект

Шоколадная масса представляет собой тонкодисперсную смесь сахарной пудры, какао тертого, какао-масла и добавок.

Процесс приготовления шоколадных масс очень важен, так как от качества масс зависит качество получаемого шоколада. При приготовлении и обработке шоколадных масс складываются вкусовые и ароматические свойства шоколада.

Для повышения производительности и улучшения условий труда применяют автоматизацию технологических процессов. Это является необходимым условием существования современного предприятия. С помощью приборов и датчиков можно управлять участком производства, уменьшив долю ручного труда и упростив наблюдение и управление технологическим процессом.

В данной курсовой работе представлена функциональная схема автоматизации получения шоколадной массы, произведен анализ технологического процесса, выбор контролируемых и регулируемых параметров и выбор технических средств автоматизации.

1. Характеристика объекта автоматизации (описание технологического процесса)

1.1    Описание поточной линии для приготовления шоколадных масс

На кондитерских фабриках в соответствии с ассортиментом выпускаемых шоколадных изделий устанавливают поточные линии для производства шоколадных масс.

Схема приготовления шоколадных масс состоит из следующих операций: взвешивания рецептурных компонентов, смешения их, измельчения, разводки маслом, гомогенизации и конширования.

Рецептурные компоненты взвешивают и смешивают в рецептурно-смесительных комплексах, которые комплектуют в механизированные поточные линии. В состав линии входят: рецептурно-смесительный комплекс, стальные ленточные конвейеры, пятивальцовые мельницы, коншмашины и сборники для хранения шоколадных масс.

По принципу действия рецептурно-смесительные комплексы можно разделить на два вида: непрерывного действия с дозированием рецептурных компонентов в потоке и периодического действия со взвешиванием и смешиванием рецептурных компонентов и непрерывной подачей массы на дальнейшую обработку.

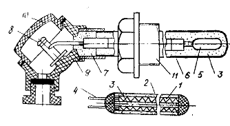
В состав линии входит следующее оборудование: рецептурно-смесительный комплекс 7, пятивальцовая мельница 6 со смесителем непрерывного действия 5, эмульсатор 3 с приводом от электродвигателя 4 мощностью 10 кВт, сборник шоколадной массы 1 и насос 2.

Смешивание и дозирование какао-тертого, какао-масла, сахара-песка и некоторых других рецептурных компонентов происходит в рецептурно-смесительном комплексе 7. Затем смесь переходит в загрузочную воронку пятивальцовой мельницы 6. После вальцевания масса по наклонному лотку ссыпается в загрузочный штуцер смесителя 5. Сюда же из дозаторов поступают часть какао-масла и жир-заменитель, если он предусмотрен рецептурой.

После дополнительного перемешивания и разводки в смесителе масса стекает в центробежный эмульсатор 3. Здесь проводится ее окончательная гомогенизация. Готовая шоколадная масса эмульсатором 3 подается в емкость 1. Шестеренчатый насос 2 перекачивает массу в темперирующие сборники с планетарной мешалкой или в машины для формования простых сортов шоколада, а также в глазировочные машины.

При обработке массы в эмульсаторе для изготовления глазури с разжижителем при минимальном содержании жира (31...34%) фабрики экономят какао-масло. При обработке в эмульсаторе глазурь разжижается. Благодаря высокой однородности массы, при которой твердые частицы обволакиваются слоем какао-масла, вкус массы улучшается.

Линии со смесителями непрерывного действия удобно использовать лишь при массовом производстве определенных видов шоколадных масс. При многокомпонентных рецептурах и при их частой смене в течение рабочего дня выгоднее применять смесители периодического действия с весовым дозированием компонентов.

1.2 Рецептурно-смесительный комплекс

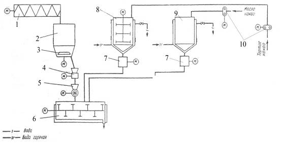
Рецептурно-смесительный комплекс предназначен для непрерывного приготовления шоколадных смесей из нескольких сыпучих и жидких компонентов. Заданная рецептура и технологический режим в процессе работы поддерживаются автоматически.

Комплекс, показанный на рисунке 2, состоит из приемного бункера для сахара-песка 2, шнека для подачи сахарного песка в бункер 1, ленточного дозатора для дозирования 4, микромельницы для размола сахара-песка 5, темперирующих сборников для какао-масла 9 и какао тертого 8, двух насосов-дозаторов для дозирования жидких компонентов 7, продуктопроводов, смесителя непрерывного действия 6, пятивальцовой мельницы 11 и пульта управления.

Рисунок 1 - Рецептурно-смесительный комплекс для приготовления шоколадных масс

Смонтированные на пульте управления приборы и системы позволяют осуществлять программирование и автоматическое дозирование компонентов, пуск, остановку, контроль за работой оборудования и предохранять его от аварий и поломок.

Шоколадную массу готовят на сахаре-песке, который подается в бункер шнеком 1. Бункер для приема и хранения запаса сахара-песка 2 вместимостью до 0,5 м3. В конусной части бункера установлен ворошитель 3 с индивидуальным электродвигателем и заслонка, закрывающая выход из соответствующего бункера в приемную воронку ленточного дозатора.

Поскольку приготовление шоколадных масс на сахаре-песке приводит к быстрому износу вальцов пятивальцовых мельниц, в модернизированных линиях сахар-песок из дозатора подается в микромельницу.

После ленточного дозатора 4 сахар-песок подается в мельницу 5. Размол взвешенного сахара-песка в пудру осуществляется на установленной над смесителем молотковой многорядной мельницы 5 производительностью до 600 кг/ч. Полученная пудра непрерывно подается в смеситель 6. В смесителе сахарная пудра тщательно перемешивается с остальными компонентами шоколадной массы.

Темперирующие сборники для какао тертого 8 и какао-масла 9 вместимостью по 500 кг с водяной рубашкой имеют систему автоматического регулирования и поддержания температуры на заданном уровне. Сборник для какао тертого 8 снабжен мешалкой, сборник же для какао-масла 9 представляет собой емкость с водяным обогревом без мешалки. Они соединены между собой продуктопроводами с установленными в цехе емкостями для хранения какао-масла и какао тертого.

Жидкие и нагретые до 60...70 °С компоненты дозируются шестеренчатыми насосами-дозаторами 7, снабженными рубашками. Привод насосов осуществляется специальными электродвигателями постоянного тока. Благодаря бесступенчатому изменению частоты вращения насосов достигается подача заданного количества какао-масла и какао тертого.

Соотношения компонентов в рецептуре устанавливаются задатчиками в пределах (кг/ч): по сахару-песку 160...170, какао-маслу и какао тертому 60...300. Пропорциональный задатчик изменяет производительность комплекса в пределах 80... 120 %, сохраняя неизменными заданные соотношения между компонентами.

Непрерывное смешивание компонентов проводится в одношнековом горизонтальном смесителе 6, который снабжен рубашкой, позволяющей обогревать смеситель горячей водой. Смеситель 6 приводится в движение от электродвигателя мощностью 2,8 кВт. Для контроля за температурой продукта в смесителе установлен термометр. Компоненты поступают в смеситель через прямоугольное отверстие, расположенное в верхней части корпуса. Вал смесителя, несущий фасонные лопасти, расположенные по спирали, вращается внутри корпуса, разделенного на ряд камер тремя группами фасонных пластин, которые также расположены по спирали. Благодаря специальной конструкции редуктора вал за один оборот осуществляет двойное движение: вращательное вокруг своей оси, причем лопасти рассекают, перемешивают и сдавливают обрабатываемую массу, прижимая ее к неподвижным фасонным пластинам корпуса; возвратно-поступательное, при котором масса перемещается вперед, поступая в следующую камеру смесителя.

Обрабатываемая масса продвигается вдоль оси смесителя, проходя через три продольных канала, смешиваясь лопастями вала и неподвижными фасонными пластинами корпуса.

Рабочие органы непрерывно самоочищаются, и по окончании работы в смесителе остается только минимальное количество массы.

Готовая масса выталкивается из смесителя через мундштук, сечение которого может меняться.

Затем масса поступает пятивальцовую мельницу 10, где подвергается истирающему действию, проходя постепенно между пятью вращающимися навстречу друг другу вальцами. Вальцы полые и имеют бочкообразную форму, скорость их вращения увеличивается с высотой. Привод вальцов осуществляется от электродвигателя через ременную и зубчатую передачу. Двигатель имеет мощность 55 кВт.

2. Анализ технологического процесса как объекта автоматизации и выбор контролируемых и регулирующих параметров

В работе рецептурно-смесительного комплекса и технологическом процессе, протекающем в нем, можно выбрать следующие технологические параметры, определяющие нормальное протекание процесса:

·    уровень какао-тертого в емкости, т.к. для обеспечения нормального протекания процесса оно должно непрерывно подаваться на смешивание;

·        температура компонентов смеси, а именно какао-тертого, в емкости, необходимая для его разжижения - это влияет на качество приготовления смеси и облегчает подачу компонента на следующую стадию;

·        температура смеси в смесителе, влияющая на качество смеси;

·        точное дозирование компонентов;

·        температура вальцов пятивальцовой мельницы, т.к. из-за трения происходит повышение температуры, что является нежелательным явлением, поэтому внутри вальцов циркулирует холодная вода для их охлаждения и предотвращения нагрева массы;

·        давление в гидроцилиндрах пятивальцовой мельницы, с помощью которого происходит регулирование зазора между вальцами, что очень важно когда нужно получить на выходе частицы заданного размера.

При наполнении емкости какао-тертого Е1 необходимо контролировать уровень от 0,1 до 0,4 м. При несоблюдении этого условия произойдет прекращение подачи компонентов, что приведет к нарушению рецептуры или произойдет переполнение бункера, что приведет к потере компонентов смеси. Во избежание этого на бункере необходимо установить датчик уровня, который будет подавать сигнал на сигнализатор уровня. При достижении верхнего или нижнего уровня, датчик подаст сигнал на отключение или включение двигателя насоса Н1.

Емкость оборудована рубашкой, чтобы поддерживать температуру какао тертого в пределах от 60 до 700С. Несоблюдение приведет к нарушению рецептуры. Автоматическое регулирование температурных режимов можно обеспечить путем управления сливом воды из обогревающих рубашек-сборников: температура измеряется датчиком, соединенным с регулятором, который воздействует на электромагнитный клапан, управляющий стоком воды из рубашки.

Регулирование температуры в смесителе можно обеспечить путем изменения расхода греющего агента в зависимости от температуры внутри смесителя. С помощью датчика, соединенного с регулятором, который воздействует на электромагнитный клапан, поддерживается температура в пределах 62-670С, необходимая для требуемой пластификации массы.

Для контроля, регистрации и индикации между датчиками и исполнительными механизмами устанавливается единый микропроцессорный контроллер. Поступающий сигнал сравнивается с верхними и нижними предельными значениями и вырабатывается управляющий сигнал.

Дозирование компонентов происходит объемным способом с помощью шестеренчатых насосов-дозаторов и ленточного дозатора. Регулирование расхода компонентов происходит при помощи частотного преобразователя, управление ведется с помощью универсального контроллера. Количество компонентов определяется частотой вращения рабочих органов дозаторов. Соотношения компонентов в рецептуре устанавливаются задатчиками в пределах (кг/ч): по сахару-песку 160…170, какао-маслу и какао тертому 60…300.

Регулирование температуры в валках можно обеспечить путем изменения расхода охлаждающего агента в зависимости от температуры внутри валка. С помощью датчика, соединенного с регулятором, который воздействует на электромагнитный клапан, поддерживается температура в пределах 20-280С, необходимая для безотказной работы машины.

Для регулирования степени измельчения продукта необходимо изменять зазор между валками. Зазор можно регулировать с помощью изменения давления в гидроцилиндрах в гидравлической системе прижатия валков. Измерения производятся для каждой стороны валков отдельно в трех парах гидроцилиндров. С помощью датчика, соединенного с регулятором, который воздействует на электромагнитный клапан, регулируется подача масла, нагнетаемого гидравлическим насосом.

Составляем технологическую карту параметров, таблица 1.

Таблица 1 - Технологическая карта параметров процесса приготовления смеси

Аппарат

Параметр

Функции системы автоматизации


Наименование и размерность

Номинальное значение

Предельные значения


1

2

3

5

Сборник какао-тертого

Температура подаваемого компонента, 0С

65

60…70

Показание, регулирование с помощью контроля слива теплоносителя из рубашки


Уровень подаваемого компонента, м

 0,3

0,1…0,4

Показание, сигнализация, отключение и включение двигателя насоса

Дозаторы

Расход какао-тертого, кг/ч

165/200

60…300

Показание, регистрация, регулирование с помощью изменения частоты вращения

Смеситель

Температура смеси, 0С

 65

62…67

Показание, регулирование с помощью изменения расхода греющего агента



3. Выбор технических средств и описание схемы автоматизации

Для контроля температуры в качестве первичного преобразователя выбираем термометр сопротивления, измерение которого основано на свойстве проводников и полупроводников изменять свое электрическое сопротивление при изменении их температуры. В качестве чувствительного элемента используется медь; это очень удобно так как она имеет низкую стоимость, высокий температурный коэффициент электрического сопротивления, ее легко получают в чистом виде. Термометры сопротивления являются предпочтительными для небольших температур, имеют высокую точность и надежность.

Термометр сопротивления выбираем типа ТСМУ - Метран - 274 с унифицированным выходным сигналом; это более выгодно, так как не требуется устанавливать нормирующий преобразователь.

Уровень измеряется гидростатическим уровнемером Метран - 100 - ДГ тип 1531 с унифицированным выходным сигналом. Принцип его действия основан на измерении давления столба жидкости или выталкивающей силы, действующей на тело, погруженное в жидкость. Использование уровнемера этого типа также более выгодно, так как не требуется устанавливать нормирующий преобразователь.

Для контроля давления в качестве первичного преобразователя выбираем датчик для измерения избыточного давления серии Метран - 43 - ДИ 3173 с унифицированным выходным сигналом. Эти манометры достаточно широко распространены в пищевой промышленности. Также такой датчик имеет достаточный диапазон измеряемых давлений, что является важным, так как рецептур очень много и все они подразумевают различную степень измельчения шоколадной массы, а, следовательно, различный зазор между вальцами, который регулируется с помощью различных значений давлений. Для измерения температуры вальцов выбираем термоэлектрический термометр ТХАУ - 205 с унифицированным выходным сигналом. Он измеряет температуру по величине термо- ЭДС, возникающей в цепи из двух разнородных проводников. Термопара градуировки ТХАУ (термопара хромель - алюмель) имеет высокую стойкость и хорошую линейность.

Управление процессом осуществляется с помощью микропроцессорного многофункционального прибора Ш-9329.

Он предназначен для сбора, обработки информации, реализации функций контроля, программологического управления, регулирования, противоаварийных защит и блокировок, систем учета тепла и энергоресурсов.

Прибор предназначен для измерения температуры, давления и других физических величин. Он отображает текущую архивную информацию в цифровом виде, в виде графиков и диаграмм.

Технические характеристики: имеется цветной или монохромный графический 5,7” дисплей; П3- или ПИД- регулирование; интерфейс RS232/485; память: гибкий магнитный диск (FDD), Compact Flash; исполнение: искробезопасноек; количество каналов: 16;32.

Входной сигнал: термопреобразователи сопротивления, термоэлектрические преобразователи, а также другие источники сигнала в виде тока, напряжения или сопротивления. Погрешность 0,1%.

Частотные преобразователи серии СТ-2004V предназначены для построения частотно-регулируемых приводов. Управление ведется векторным способом с помощью ШИМ-модуляции. Диапазон регулирования скорости 1:100. Точность регулирования ±1%. Имеется автонастройка, ограничение скорости, торможение, ПИД-регулятор, аналоговый выход и интерфейс RS-232. Дисплей информирует о частоте, напряжении тока, крутящем моменте, значениях установок, кодов и ошибках.

Преобразователи обеспечивают защиту по мощности, напряжению, перегрузок по току, перегрева и превышения предельной скорости.

Температура какао-тертого в ёмкости Е1 измеряется с помощью термометра сопротивления ТСМУ Метран - 274 с унифицированным выходным сигналом. С него унифицированный выходной сигнал (0…5 мА) поступает на аналоговый вход микропроцессорного многофункционального прибора Ш-9329. С прибора управляющий сигнал поступает на исполнительный механизм с электроприводом типа 25ч939нж, установленный на трубопроводе слива воды, которая является теплоносителем.

Эта схема работает следующим образом. При повышении заданной температуры воды клапан отрывается, при понижении - закрывается.

Уровень жидких компонентов в емкости Е1, измеряется гидростатическим уровнемером Метран - 100 - ДГ, вырабатывающим выходной унифицированный сигнал в виде 0…5 мА. Этот сигнал поступает на многофункциональный прибор Ш-9329, который осуществляет сравнение сигнала, с его заданным верхним и нижнем предельным значением и вырабатывает управляющий сигнал. Управляющий сигнал поступает на электродвигатель насоса, установленный на трубопроводе подачи компонентов в Е1.

Температура массы в смесителе С измеряется с помощью термометра сопротивления ТСМУ Метран - 274 с унифицированным выходным сигналом. С него унифицированный выходной сигнал (0…5 мА) поступает на аналоговый вход микропроцессорного многофункционального прибора Ш-9329. С прибора управляющий сигнал поступает на исполнительный механизм с электроприводом типа 25ч939нж, установленный на трубопроводе установленный на трубопроводе подачи воды, которая является теплоносителем.

Эта схема работает следующим образом. При повышении заданной температуры воды клапан закрывается, при понижении - открывается.

Температура массы в пятивальцовой мельнице ПМ измеряется с помощью термоэлектрического термометра ТХАУ-205. С него унифицированный выходной сигнал (0…5 мА) поступает на аналоговый вход микропроцессорного многофункционального прибора Ш-9329. С прибора управляющий сигнал поступает на исполнительный механизм с электроприводом типа 25ч939нж, установленный на трубопроводе подачи воды, которая является хладагентом.

Эта схема работает следующим образом. При повышении заданной температуры вальцов клапан открывается, при понижении -закрывается.

Давление в пятивальцовой мельнице ПМ измеряется с помощью датчика для измерения избыточного давления МЕТРАН - 43 - ДИ - 3173. Датчик соединен с регулятором, который воздействует на исполнительный механизм с электроприводом типа 25ч939нж, установленный на трубопроводе подачи масла, нагнетаемого гидравлическим насосом.

4. Описание средств автоматизации

Основой для построения системы автоматизации смесительно-рецептурного комплекса являются датчик уровня (гидростатического давления), термометры сопротивления и термоэлектрические, измерительный преобразователь избыточного давления давления, которые имеют унифицированные сигналы, которые поступают на универсальный контроллер.

Принцип действия термометров (термопреобразователей) сопротивления материалов (металлов, их окислов и солей) изменять свое электрическое сопротивление при изменении температуры. Величину, характеризующую изменение сопротивления материалов при изменении температуры называют температурным коэффициентом сопротивления. Термометры сопротивления бывают двух видов проводниковые и полупроводниковые

Медные чувствительные элементы для измерения температуры в пределах -50…200оС, из платины -200…750оС. Приборы из платины более точные, медные более дешевые. Конструкция показана на рисунке 3.

Рисунок 3 - Термометр сопротивления

- металлическая проволока; 2 - защитная трубка; 3 - керамический порошок; 4 - выводы; 5 - чувствительный элемент; 6 - защитная арматура; 7 - герметик; 8 - клеммы; 9 - крышка; 10 - корпус головки; 11 - присоединительный штуцер.

Чувствительный элемент изготавливают из платиновой или медной проволоки диаметром 0,03 - 1 мм. С целью увеличения виброустойчивости проволока помещается в тонкостенную трубку и засыпается керамическим порошком. Защитная арматура представляет собой гильзу из нержавеющей стали диаметром 10 мм, заваренную с одного конца и так же наполненную керамическим порошком. Концы выводов чувствительного элемента подсоединены к клеммной колодке соединительной головки.

В качестве вторичных приборов в комплекте с термометрами сопротивления применяют логометры и уравновешивающие мосты. Кроме того выпускаются термометры сопротивления с унифицированными выходными сигналами (0…5 и 4…20 МА).

Термометры сопротивления являются предпочтительными для небольших температур, имеют высокую точность и надежность. В данной схеме применяется термометр с унифицированным выходным сигналом, это более выгодно, так как не требуется устанавливать нормирующий преобразователь.

Гидростатический способ измерения уровня основан на том, что гидростатическое давление в жидкости, пропорционально глубине, то есть расстоянию от поверхности жидкости.

Для измерения уровня гидростатическим способом могут быть использованы средства измерения давления или перепада давлений. Поэтому такие уровнемеры называют также дифманометрическими.

При включении дифманометра 1 на схеме, показанной на рисунке 5-а, передал давления ДР на нем будет равен гидростатическому давлению жидкости, которое пропорционально измеряемому уровню Н.

Если жидкость в емкости находится под избыточным давлением, то дифманометр 1 включают по схеме, приведенной на рисунке 4-б, причем его плюсовую камеру соединяют с пространством над жидкостью через уравнительный сосуд 2. Этот сосуд заполняют жидкостью, столб которой создает постоянное гидростатическое давление в плюсовой камере дифманометра. Поэтому измеряемый перепад давлений ДР, равный разности гидростатических давлений жидкости в камерах дифманометра, будет пропорционален разности между уровнем Нтах в уравнительном сосуде и измеряемым уровнем Н. Так как уровень в уравнительном сосуде постоянен и известен, то его всегда можно учесть в показаниях прибора.

Уровень можно измерять и без дополнительного уравнительного сосуда. Для этого манометр устанавливается непосредственно на стенке нижней части емкости.

Погрешность измерения 1,5-2 %.

Для измерения давления применяют измерительный преобразователь избыточного давления (ДИ). Преобразователь состоит из измерительного блока и электронного устройства .

Мембранный тензопреобразователь 1 размещен внутри основания 2.Он защищен от воздействия контролируемой среды гофрированной металлической разделительной мембраной 3, приваренной по наружному контуру к основанию. Внутренняя полость 4 тензопреобразователя заполнена кремнийорганической жидкостью. Полость 5 сообщена с окружающей атмосферой. Измеряемое давление подается в камеру 6 фланца 7. Измеряемое давление воздействует на мембрану 3 и через жидкость воздействует на мембрану тензопреобразователя 1, вызывая ее прогиб и пропорциональное изменение сопротивления тензорезисторов. Электрический сигнал от тензопреобразователя передается в электронный блок 8 по проводам через гермоввод 9. В электронном блоке датчиков давления находится стабилизированное устройство питания, дифференциальный усилитель с регулируемым коэффициентом усиления, обеспечивающим перенастройку диапазонов измерений, и преобразователь сигнала в унифицированный токовый сигнал 0…5 мА или 4…20мА.

Заключение

В данной курсовой работе была изучена поточная линия приготовления шоколадных масс. Особое внимание было уделено рецептурно-смесительному комплексу, поскольку именно в нем происходит приготовление шоколадных смесей.

Основной задачей курсовой работы была необходимость произвести автоматизацию основного оборудования в схеме рецептурно-смесительного комплекса. Автоматизация данного процесса необходима была вследствие того, что для повышения качества продукции необходимо строгое соблюдение рецептуры: дозирование компонентов, поддержание температурных режимов, регулирование размера частиц. Также благодаря произведенной автоматизации значительно снижается доля ручного труда, что очень важно, так как на современных предприятиях стремятся к максимальному уменьшению влияния человеческого фактора на процесс производства. Также повышается точность работы оборудования и, следовательно, снижаются технологические потери и увеличивается выход продукта производства.

Список использованной литературы

1. Драгилев А.И., Сезанаев Я.М. Технологическое оборудование кондитерского производства.- М.: Колос, 2000 - 496 с

. Методические указания по выполнению курсовой работы по «УТС» для студентов спец. 240801, 260601, 260602 всех форм обучения / НГТУ; сост. Тараненко Е.В., Н. Новгород, 2007, 20с.

. Методические указания по выбору технических средств автоматизации для студентов специальностей 170600 всех форм обучения/НГТУ: сост. Тараненко Е.В., Н.Новгород, 2006г, часть1

. Методические указания по выбору технических средств автоматизации для студентов специальностей 170600 всех форм обучения/НГТУ: сост. Тараненко Е.В., Н.Новгород, 2006г, часть2

Похожие работы на - Автоматизация рецептурно-смесительного комплекса приготовления шоколадных масс

 

Не нашли материал для своей работы?
Поможем написать уникальную работу
Без плагиата!
Без нейросетей!