Проектирование деревообрабатывающих цехов машиностроительного предприятия

  • Вид работы:
    Дипломная (ВКР)
  • Предмет:
    Другое
  • Язык:
    Русский
    ,
    Формат файла:
    MS Word
    2,22 Mb
  • Опубликовано:
    2011-10-21
Вы можете узнать стоимость помощи в написании студенческой работы.
Помощь в написании работы, которую точно примут!

Проектирование деревообрабатывающих цехов машиностроительного предприятия












Проектирование деревообрабатывающих цехов машиностроительного предприятия

Назначение и структура деревообрабатывающего комплекса. Общие требования

Деревообрабатывающий комплекс предприятия машиностроения обычно включает в себя следующие цехи: деревообделочные для механической обработки древесины; столярно-сборочные; модельные; тарные; ремонтно-строительные, лесосушильные; лесопильные. Кроме того, сооружаются различные склады (бревен, пиломатериалов, заготовок деталей, тары и моделей). Взаимное расположение деревообрабатывающих цехов и складов должно предусматривать кратчайшие транспортные пути при наилучшем использовании естественного уклона местности. Расположение погрузочно-разгрузочных путей должно исключать потребность в дополнительной перегрузке лесоматериалов при их  складировании и транспортировании.

Разрывы между цехами и складами должны соответствовать требованием противопожарных норм проектирования. Предусматривают механизированное удаление отходов кратчайшим путем.

Деревообрабатывающие цехи в основном предназначены для полполучения деревянных деталей посредством механической обработки древесины. Для обработки деталей поточным методом их распределяют на группы по признаку однородности технологического маршрута.

Станки размещают преимущественно в пролетах 18 и 24 м при шаге колонн 6 и 12 м. Расстояние между габаритами станков с учетов выхода их подвижных частей в направлении движения деталей при последовательном расположении станков в одну нитку равно трехкратной длине наибольшей детали, а в поперечном направлении при отсутствии у станков складочных мест - 0,8-1,0 м.

Производственные площади у деревообделочных цехов определяют по технологическим нормам проектирования. Вспомогательные площади в среднем по цеху составляют 15-25% общей производственной площади и располагают их возможно ближе к обслуживаемым производственным площадям (отделениям).

Столярно-сборочные цехи наряду с деревообделочными являются существенными элементами комплекса. При проектировании этих цехов следует учитывать следующие основные операции: зачистку и доводку отдельных деталей, подгонку отдельных соединений (отпадает при взаимозаменяемых деталях), предварительную сборку узлов, склеивание и крепление мест соединения, зачистку мест соединения, механическую обработку узлов в сборке, общую сборку.

В столярном цехе размещают в соответствующих помещениях верстаки и станки. Они должны быть расположены в отдельном помещении, удобно сообщаемом с другими отделениями цеха. Расстояние торцов верстаков от стенки принимают 0,5-0,7 м; расстояние между параллельно расположенными верстаками назначают 1-1,5 м. Столяры на работе должны стоять слева от верстака, лицом к свету и спиной к проезду.

При укрупненных расчетах среднюю производственную площадь цеха (без станочного отделения) принимают равной 15-20 м2 на один верстак. Для станочных отделений производственную площадь принимают равной 25-35 м2 на один станок. Вспомогательная площадь цеха в среднем составляет 25-40% от производственной. Модельные цехи предназначены для изготовления и ремонта деревянных моделей для отливки фасонных деталей, металлических моделей, опок и для изготовления литейной оснастки (шаблонов и пр.). В зависимости от сложности отливок различают:

простое литье (отливки с прямыми очертаниями),

литье средней сложности

сложное литье (с большим числом внутренних выемок).

На крупных заводах, где отливки изготовляют по металлическим моделям, целесообразно размещать цехи деревянных моделей в одном здании с цехом металлических моделей и вблизи литейного цеха с соблюдением соответствующих противопожарных требований. При небольших размерах цеха деревянных моделей его можно включать в состав деревообрабатывающего хозяйства предприятия.

В состав цеха могут входить следующие участки или отделения:

заготовительных станков,

подготовки стандартных полуфабрикатов (щитов, косяков, ящиков и пр.), а также несложной литейной оснастки, мелких и средних моделей, крупных моделей, станков по обработке моделей в процессе сборки, контрольно-проверочных работ, лакировочная мастерская.

При пользовании укрупненными показателями площадь цеха принимают:

для станочных отделений - 25-35 м2 на один станок,

для ручных работ - 15-20 м2 на один верстак модельщика.

Участки модельного цеха скомпонованы с учетом технологического процесса. Для модельных цехов принимают пролеты, как и для деревообделочных цехов, т. е. до 24 м (при сборке крупных моделей), оборудованных подвесными кранами грузоподъемностью 3- 5т.В тарных цехах производственная площадь принимается равной 30-45 м2 на один станок.

Для цехов, оборудованных транспортерами и конвейерами, эти показатели несколько уменьшаются. Вспомогательная площадь составляет 15-25% от общей производственной.

Ремонтно-строительные цехи заводов выполняют работы по ремонту зданий и сооружений. В состав таких цехов входят деревообрабатывающие отделения, общестроительная ремонтная группа, а также жестяницкое и трубопроводное отделения. Производственную площадь цеха определяют из расчета 20-25 м2 на один станок и 12-20 м2 на одно рабочее место. Вспомогательная площадь составляет 25- 35% от производственной.

Лесопильные цехи машиностроительных заводов строят преимущественно для получения нестандартных сортаментов пиломатериалов. Например, цех, имеющий до четырех лесопильных рам, размещают в однопролетном здании длиной 54 м (без сортировочной площадки); ширину цеха определяют из потребности, в среднем 4 м на каждую раму плюс дополнительно 2 м на все рамы.

Кроме указанных цехов в деревообрабатывающее хозяйство предприятия входит ряд объектов: сушильные камеры, склады пиломатериалов и моделей.

ЦНИИ промзданий, ПИ-2, Гипролеспром, Гипродрев и другие институты разработали типовую комплексную проектную документацию по предприятиям деревообрабатывающей и частично лесохимической промышленности с применением унифицированных объемно-планировочных и конструктивных решений зданий. Оказалось возможным размещать в унифицированных типовых пролетах производство ряда групп: механической обработки лесоматериалов (столярно-строительных изделий, черновых заготовок, погонажных изделий, клееных брусков и др.); изготовление древесно- и цементностружечных, арболитовых плит; клееной фанеры и производства различной мебели. Большинство из указанных выше производств можно расположить в зданиях универсального типа с пролетами 18 и 24 м и высотой помещений 6 м. Длина УТП в зависимости от потребности может быть принята кратной 42 м и достигать 360 м.

Архитектурно-строительное решение деревообрабатывающего цеха

При принятии объемно-планировочных решений были учтены следующие требования:

·   обеспечение технологического процесса;

·   обеспечение естественного освещения;

·   обеспечение удобств для рабочего персонала

Здание запроектировано как типовое с максимальным использованием унифицированных конструкций, что снижает общую стоимость постройки.

Такой цех мощностью 5 тыс. м3 обрабатываемой древесины в год спроектирован в одноэтажном четырехпролетном каркасном здании с размером 18 Х 42 м при сетке колонн 6 X 4.5м и высоте помещений 6 м .К зданию цеха пристроены одноэтажное бытовое помещение размером 8 X 27 м. Деревообрабатывающий цех включает в себя следующие отделения: сушильное, состоящее из 6 камер с загрузочным и остывочным помещениями, механическое, сборочное, окрасочное с помещениями антисептирования и окраски, лакирования и склада готовой продукции.

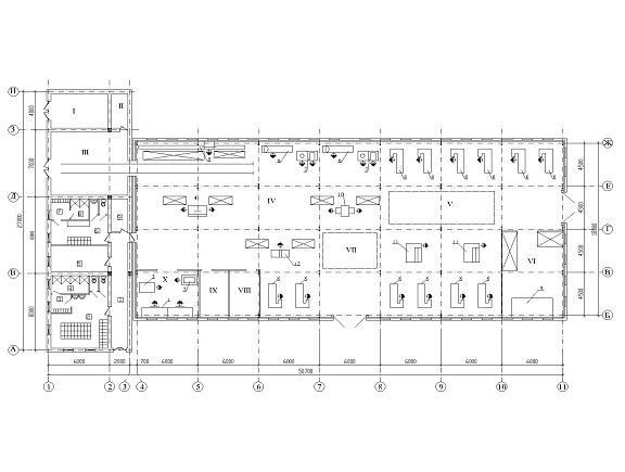
План деревообрабатывающего цеха:

- сушильная камера; 2 - склад инвентаря; 3 - склад сухих пиломатериалов; IV - станочный участок; V - участок сборки крупных моделей; VI - лакировочная; VII - участок мелких моделей; VIII - клеильная; I X - кладовая; X - заточная;

- верстак; 2 - песочное точило; 3 - точильный станок; 4 - продольная пила; 5 - маятниковая пила; 6 - токарный станок; 7 - комбинированный шлифовальный станок;

- верстаки модельщиков; 9 - верстак лакировщика; // - площадка для сборки крупных моделей; 10 - рейсмусовый станок; 11 - ленточная пила; 12 - фуговочный станок

С лесосклада пиломатериал поступает в вагонетках на участок штабелевания. С помощью транспортера вагонетки со штабелями подаются в лесосушила, где пиломатериал сушится до требуемой влажности. Из лесосушил штабеля на вагонетках сначала поступают в остывочное помещение, затем в механическое отделение, где пиломатериал обрабатывают на станках. Готовые детали поступают в сборочное отделение, которое имеет участок сборки тары и участок сборки мебели и упаковочных ящиков. Готовая тара не отделывается и отправляется на склад. Мебель и упаковочные ящики поступают в окрасочное отделение. Отделанная продукция направляется на склад.

Металлический каркас промышленного здания состоит из ряда "плоских" элементов жестких и хорошо воспринимающих нагрузки в своей плоскости, но гибких в перпендикулярном направлении.

Основное назначение связей - объединять плоские элементы в пространственную систему, способную воспринимать нагрузки, действующие на здание в любом направлении.

Каркас здания из металлических конструкций (колонны, балки, ригели, прогоны, угольники, стеновые и кровельные панели). Двери в промышленном здании размером 3000 х 3200 мм, окна 1000 х 3000 мм. С помощью окон обеспечивается достаточное освещение для работающих в цеху. Полы из мрамора.

Бытовая часть

Помещение бытовой части запроектировано в соответствии со СНиП 2.09.04-87 «Административные и бытовые помещения».

Одноэтажное здание построено из камня кубик. В бытовой части располагаются следующие комнаты:

Экспликация помещений бытовой части


Стены т. 400мм из камня кубик. Высота бытовой части 4.30 м, высота этажа 3 м, покрытия 0.3 м и парапет 1 м. На отметке -0.35 предусмотрено распределительный пояс. Штукатурка внутренних стен в комнатах 1,2,5,6 и 7 из гожего раствора и окрашивается эмульсионной окраской, а в остальных комнатах штукатурка из цементного раствора и окрашивается масляной краской. Для покрытия используем ж/б панели. В осях 2, 3 и В, Д, З и 2 ставим ж/б рамы. Предусматривается антисейсмический пояс.

Полы в душевых и преддушевых из метлаха, а стены на высоте 1.5м облицованы кафелем, в гардеробных (м и ж), коридоре и медицинской комнате дощатые. Дощатые полы садятся на лагах. В проекте предусмотрен фельдшерский здравпункт. Здравпункт имеет один внутренний вход.

Дощатый пол

Кровля

деревообрабатывающий архитектурный планировочный технологический

Состав и расчет необходимого оборудования для бытовых помещений

Бытовые помещения проектируемого промышленного здания имеет группу производственного процесса - 1а.Исходя из этого проектируются санитарно-бытовые помещения для работающих непосредственно на производстве.

В группу санитарно-бытовых помещений входят гардероб, душевая, туалеты и умывальные.

1. Для мужчин

Гардеробные в соответствии с группой производственного процесса проектируются общие, причем на каждого работника приходится по одному шкафчику. Количество шкафчиков определяется исходя из списочного количества работающих А=32 чел.


В/8=32/8=4 кабин

Кабины будут закрытого типа

Туалеты: в соответствии с нормами на каждые 18 мужчин из списочного количества работающих (В=32 человек) полагается один прибор. Таким образом, необходимо установить

В/18=32/18=2 прибора

Умывальные: в соответствии с группой производственного процесса на каждые 10 человек из списочного количества работающих (В=32 человек) полагается один умывальник. Таким образом, необходимо установить

В/10=32/10=3 умывальников

В бытовой части есть комната и для женщин, которые занимаются уборкой.

2. Для женщин

Гардеробные в соответствии с группой производственного процесса проектируются общие, причем на каждого работника приходится по одному шкафчику. Количество шкафчиков определяется исходя из списочного количества работающих А=8 чел.

Душевая: в соответствии с группой производственного процесса на каждые 8 человек из списочного количества работающих (В=32 человек) полагается одна душевая кабина. Таким образом, необходимо установить

В/8=8/8=1 кабин

Кабины будут закрытого типа

Туалеты: в соответствии с нормами на каждые 18 мужчин из списочного количества работающих (В=8 человек) полагается один прибор. Таким образом, необходимо установить

В/18=8/18=1 прибора

Умывальные: в соответствии с группой производственного процесса на каждые 10 человек из списочного количества работающих (В=8 человек) полагается один умывальник. Таким образом, необходимо установить

В/10=8/10=1 умывальников

Всего шкафчиков будет 40, на женский и мужской гардеробы. Еще в душкобинате предусмотрены преддушевая, комната персонала, предбанник.

Генплан

На территории генерального плана можно выделить следующие зоны: склады, зона отдыха, столовая, зал заседания и подземные резервуары воды для огнезашиты.

Производственный цех занимает 1050 кв. м территории, включает в себя деревообрабатывающий цех и бытовая часть. Складская зона образует территорию, необходимую для сырья, материалов и др. Здесь расположены навес для необработанной древесины и склад готовой продукции. В территории предусмотрено столовая и зал заседания. Для огнезашиты цеха предусмотрено подземные резервуары для воды. Для передвижения автотранспорта предусмотрены дороги шириной 3м. Расстояние между зданиями зависит от их высоты и определяется по СНиП 2.04.02-84. «Генеральные планы промышленных предприятий». Производственное здание имеет объезд с двух сторон. Все дороги асфальтные, есть автостоянка для грузовых и легковых машин. Благоустройство территории предприятия включает в себя газоны, лиственные деревья и создает благоприятные условия для работы и отдыха трудящихся. А также на территории завода имеется плавательный бассейн совместно с зоной, предназначенной для отдыха рабочих внерабочее время.

Похожие работы на - Проектирование деревообрабатывающих цехов машиностроительного предприятия

 

Не нашли материал для своей работы?
Поможем написать уникальную работу
Без плагиата!
Без нейросетей!