Электродуговая сварка: технология процесса и безопасность труда

  • Вид работы:
    Курсовая работа (т)
  • Предмет:
    Безопасность жизнедеятельности
  • Язык:
    Русский
    ,
    Формат файла:
    MS Word
    372,70 kb
  • Опубликовано:
    2010-12-13
Вы можете узнать стоимость помощи в написании студенческой работы.
Помощь в написании работы, которую точно примут!

Электродуговая сварка: технология процесса и безопасность труда

Министерство образования и науки Российской Федерации

ФЕДЕРАЛЬНОЕ АГЕНСТВО ПО ОБРАЗОВАНИЮ

ГОУ «МАТИ» - Российский государственный технологический университет

им. К. Э. Циолковского

Кафедра «Природная и техногенная безопасность и управление риском»

Курсовая работа по дисциплине

«Безопасность труда»

Тема:

«Электродуговая сварка: технология процесса и безопасность труда»







Москва 2008

Содержание

Введение

Описание процесса электродуговой сварки

Цех по сварке алюминиевых колен

Оценка факторов рабочей среды

Мероприятия по снижению влияния вредных факторов при ручной дуговой сварке.

Мероприятия по снижению влияния трех основных опасных факторов

Оценка факторов рабочей среды с учетом принятых мер

Заключение

Список литературы

Введение

Безопасность труда – это такое состояние его условий, при котором исключено негативное воздействие на работающих людей опасных и вредных производственных факторов. В наш век, век научно-технического прогресса, когда особенностью производства является применение самых разнообразных технологических процессов, сложных по своей физико-химической основе, использование высокотоксичных, легковоспламеняющихся веществ, различного рода излучений, а также внедрение новых материалов, которые часто недостаточно изучены с точки зрения негативных последствий их применения, особенно остро стоит вопрос о безопасности. И, несмотря на внедрение новых, более современных и безопасных для человека технологий, остается много отраслей, где травматизм являет собой значительную проблему. Таким образом, можно сказать, что уровень производственного травматизма в России сегодня в первую очередь определяется технологическим уровнем производства.

Одна из отраслей, где вопрос о безопасности технологического процесса является наиболее актуальным, является отрасль металлообработки, где не последнее место занимает процесс сварки.

Сваркой называют технологический процесс получения механически неразъемных соединений, характеризующихся непрерывностью структур – структурной непрерывной связью.

Это технологический процесс, с помощью которого изготавливаются все основные конструкции гидротехнических сооружений, паровых и атомных электростанций, автодорожные, городские и железнодорожные мосты, вагоны, наводные и подводные корабли, строительные металлоконструкции, всевозможные подъемные краны и многие другие изделия.

Многообразие свариваемых конструкций и свойств материалов, используемых для изготовления, заставляют применять различные способы сварки, разнообразные сварочные источники теплоты. Для сварочного нагрева и формирования сварного соединения используются: энергия, преобразованная в тепловую посредством дугового разряда, электронного луча, квантовых генераторов; джоулево тепло, выделяемое протекающим током по твёрдому или жидкому проводнику; химическая энергия горения, механическая энергия, энергия ультразвука и других источников.

Все эти способы требуют разработки, производства и правильной эксплуатации разнообразного оборудования, в ряде случаев с применением аппаратуры, точно дозирующей энергию, со сложными схемами, иногда с использованием технической электроники и кибернетики.

Описание процесса электродуговой сварки

Электродуговая сварка – наиболее широко применяемая группа процессов сварочной технологии.

При электродуговой сварке кромки соединяемых деталей расплавляются электрическим дуговым разрядом. Для сварки необходим сильноточный источник питания низкого напряжения, к одному зажиму которого присоединяется свариваемая деталь, а к другому – сварочный электрод. Электрическая дуга представляет собой устойчивый длительный электрический разряд между двумя электродами в ионизированной газовой среде. Дуга состоит из анодной области, катодной области и столба. Главная роль дугового разряда – преобразование электрической энергии в теплоту. Температура дуги на оси газового столба достигает 6000...7500°С, что позволяет расплавить практически все металлы и сплавы. На поверхностях анода и катода температура дуги снижается до 3500 – 4000 0С. Столб дуги окружен пламенем (ореолом). Из-за большого концентрации тепла и высоких температур при сварке тонкого или легкоплавкого металла, а также чувствительных к перегреву высокоуглеродистых, нержавеющих и легированных сталей электрическую дугу питают током обратной полярности. То есть минус источника тока подключают к изделию.

В результате очень высоких температур дуги возникают опасные факторы: интенсивное излучение сварочной дуги в оптическом диапазоне (ультрафиолетовое, видимое, инфракрасное) и интенсивное тепловое (инфракрасное) излучение свариваемых изделий и сварочной ванны.

Интенсивность излучения и его спектральный состав зависят от мощности дуги, применяемых сварочных материалов, защитных и плазмообразующих газов и т.п. При отсутствии защиты возможно поражение органов зрения (электроофтальмия, катаракта и т.п.) и кожных покровов (эритемы, ожоги и т.п.). А интенсивность инфракрасного (теплового) излучения зависит от температуры предварительного подогрева изделий, их габаритов и конструкций, а также от температуры и размеров сварочной ванны. При отсутствии средств индивидуальной защиты воздействие теплового излучения может приводить к нарушениям терморегуляции вплоть до теплового удара. Контакт с нагретым металлом может вызвать ожоги.

Электрическая дуга возникает в результате сильного нагрева торца электрода (катода), который под действием электрического поля начинает испускать свободные электроны (электронная эмиссия). В дуговом промежутке образуются положительно и отрицательно заряженные частицы – ионы. Положительные ионы – это атомы, потерявшие электроны; отрицательные ионы – это частицы, присоединившие электроны. В образовании дуги главную роль играют положительные ионы. Процесс образования ионов называют ионизацией; газ в дуговом промежутке, содержащий ионы, становится ионизированным, а дуговой промежуток – электропроводным.

Длина дуги. При горении дуги на поверхности свариваемого изделия образуется ванна расплавленного металла (сварочная ванна) с углублением – кратером. Расстояние от конца электрода до поверхности сварочной ванны называется длиной дуги. Длина дуги при ручной дуговой сварке металлическим электродом составляет от 2 до 6 мм. Практически можно считать нормальной дугу, длина которой приблизительно равна диаметру электродного стержня. Длинной называется дуга, длина которой более 1-1,5 диаметра электрода.

Сварку обычно выполняют короткой дугой. При сварке длинной дугой происходит сильное разбрызгивание, окисление капель расплавленного металла, что ведет к пористости шва и плохому сплавлению наплавленного и основного металлов. Так же искры, брызги и выбросы расплавленного металла и шлака могут явиться причиной ожогов.

При сварке угольным электродом длина дуги может достигать 15-20 мм. Напряжение дугового разряда связано прямой зависимостью с длиной дуги: чем длиннее дуга, тем выше напряжение разряда. Точная форма этой зависимости определяется условиями разряда – наличием или отсутствием защитной газовой атмосферы, свойствами покрытого электрода, наличием и свойствами флюса и т.д.

Температура дуги зависит от силы тока, приходящейся на единицу площади поперечного сечения электрода, — плотности тока. Чем она больше, тем выше температура дуги. При ручной дуговой сварке плавящимся электродом плотность тока от 10 до 20 А/мм2 и напряжение 18...20 В. Этим способом можно сваривать и наплавлять углеродистые и легированные стали всех марок толщиной от 1 м и выше, чугун и цветные металлы, а также наплавлять твердые сплавы.

В ремонтной практике для сварочных работ используют переменный и постоянный ток. Сварочная дуга на переменном токе малой плотности горит неустойчиво. Чтобы повысить стабильность дуги, увеличивают плотность тока. По этой причине при сварке мелких деталей возрастает опасность их прожигания, однако из-за простоты источников питания сварку на переменном токе применяют достаточно широко. При сварке на постоянном токе дуга горит стабильно. Это позволяет использовать малые токи и сваривать тонкие детали, кроме того, можно изменять полярность тока. Поэтому, несмотря на более сложное и дорогое оборудование источников питания, постоянный ток применяют в практике все шире.

Производительность сварки характеризуют количеством расплавленного электродного металла в единицу времени.

Под действием высокой температуры в зоне сварки молекулы кислорода и азота, попадающие из воздуха, частично распадаются на атомы. Кислород образует оксиды железа и способствует выгоранию ценных легирующих элементов (марганца, кремния и др.), тем самым резко ухудшая свойства наплавленного слоя. Азот образует нитриды, которые увеличивают твердость, снижают пластичность и способствуют образованию коробления и трещин. Водород, попадающий в зону сварки из влаги и ржавчины, способствует образованию пор и трещин. Чтобы уменьшить вредное воздействие этих элементов, место сварки зачищают, а зону сварки защищают нейтральными газами и шлаками. После сварки используются для зачистки швов ручные пневматические инструменты. Они являются источником локальной вибрации, что может привести к развитию вибрационной болезни у сварщика. Выделение сварочного аэрозоля, газов, пыли также является опасным фактором, т. к. наносит вред дыхательной системе рабочих.

Певмоприводы, вентиляторы, плазмотроны, источники питания, ультразвуковые генераторы, электроды могут быть источниками шума и ультразвука, что также негативно сказывается на рабочих.

Сварщик испытывает психологические нагрузки, которые заключаются в необходимости непрерывного наблюдения за зоной сварки, в напряжении зрения, высоких требований к точности движения и перемещения электрода.

Высокие требования к органам зрения связаны с необходимостью тщательного наблюдения за разделкой, сварочной ванной и кристаллизующимся металлом.

Выполнение ручной сварки часто сопровождается повышенным статическим напряжением. Сварку выполняют часто в вынужденной позе, сидя на корточках, лежа на боку и спине и т.д., что вызывает сильное напряжение мышц рук и тела.

Краткая характеристика некоторых способов дуговой сварки

Способ сварки

Наиболее часто свариваемые металлы

Тип сварных соединений

Ручная металлическим электродом

Сталь

Чугун

Стык, тавр и пр.

Стык, наплавка

Под флюсом автоматическая, полуавтоматическая

Сталь

Алюминий и его сплавы

Медь

Титан

Стык, нахлестка и пр.

Стык

-//-

-//-

Ручная вольфрамовым электродом в защитной среде аргона

Коррозионно-стойкие и жаропрочные стали и сплавы

Алюминий и его сплавы

Титан и его сплавы

Стык, нахлестка и пр.

Стык, по отбортовке

Стык и пр.

Механизированная неплавящимся электродом в защитной среде аргона

Титан и его сплавы

Стык

-//-

Автоматическая плавящимся электродом в защитной среде аргона

Коррозионно-стойкие и жаропрочные стали и сплавы

Титан и его сплавы

Стык, тавр и пр.

Стык, тавр

Автоматическая плавящимся электродом в среде углекислого газа

Сталь

 -//-


Источники питания током

Выпускаемые источники питания электрической сварочной дуги разделяют по следующим признакам:

1) по роду тока – на источники постоянного тока (преобразователи, агрегаты и выпрямители) и переменного тока (сварочные трансформаторы);

2) по количеству одновременно подключаемых сварочных постов – на однопостовые и многопостовые;

3) по назначению — на источники для ручной сварки покрытыми электродами; для автоматической и полуавтоматической сварки под флюсом; для сварки в защитных газах; для электрошлаковой сварки; для плазменной резки и источники тока специального назначения (сварка трехфазной дугой, многодуговая сварка и пр.);

4) по принципу действия и конструктивному выполнению на сварочные трансформаторы: с нормальным магнитным рассеянием и отдельным дросселем (реактивной катушкой) на отдельном или общем сердечнике; с искусственно увеличенный магнитным рассеянием – с подвижным магнитным шунтом и подвижными обмотками; преобразователи: с независимой намагничивающей и последовательной размагничивающей обмотками; с намагничивающей параллельной и размагничивающей последовательной обмотками; с расщепленными полюсами; с жёсткой характеристикой; универсальные; агрегаты — генераторы с двигателями внутреннего сгорания; сварочные выпрямители: с селеновыми и кремниевыми вентилями; многопостовые; однопостовые; с падающими характеристиками; с жесткими характеристиками; универсальные;

5) по характеру привода – на источники с электрическим и независимым приводом (от двигателя внутреннего сгорания);

6) по способу установки и монтажа – на стационарный и передвижные.

При использовании электроприборов и различных источников питания всегда есть вероятность поражения электрическим током. Опасность поражения возникает при соприкосновении с токоведущими частями электрических установок и при соприкосновении с металлическими частями, случайно оказавшимися под напряжением. В этом случае через тело человека проходит ток, сила которого зависит от величины напряжения и электрического сопротивления организма, которое меняется в зависимости от того, в каком состоянии человек находится (утомленность, расслабленность и др.). Величина напряжения, под которым может оказаться человек, зависит от величины напряжения холостого хода источника питания сварочной дуги.

Напряжение источников питания нормальной сварочной дуги обычно достигает 90 В, а сжатой дуги -200 В.

Таким образом, в нормальных условиях электрическая безопасность сварщика обеспечивается, но при изменении условий (повышенная влажность, ослабленный организм и т.д.) эти условия могут резко измениться и сила тока станет опасной. Поэтому следует предусмотреть дополнительные меры, способствующие снижению силы тока, проходящей через тело сварщика.

Основные виды поражений: ожоги электрической дугой, разрыв тканей, электрический удар, сопровождающийся появлением у человека судорог, сильной слабостью, прекращением деятельности органов дыхания и кровообращения.

Материалы

 

Сварка чугунных деталей. Восстановление чугунных деталей сваркой — трудный процесс, обусловливаемый химическим составом чугуна, его структурой и особыми механическими свойствами. По химическому составу чугун — сплав железа с углеродом (2...3,6%), содержащий некоторое количество кремния, марганца, фосфора, серы и других примесей.

Разработано и применяется много способов сварки чугуна, но рекомендовать какой-либо из них для восстановления конкретной детали весьма затруднительно, так как даже у одной корпусной детали со стенками разной толщины может быть различная структура чугуна и потребуются различные способы их сварки. Приближенно все способы сварки чугунных деталей делят на два вида: горячую (деталь перед сваркой подогревают, а после — медленно охлаждают) и холодную (выполняют без предварительного подогрева детали различными способами и с применением специальных электродов).

Сварка цветных металлов и сплавов, особенно алюминиевых, достаточно широко применяется при ремонте, так как в современных тракторах и автомобилях многие детали изготовлены из цветных металлов.

Медь, бронза и латунь обычной дугой и плавящимся электродом свариваются плохо. Это объясняется тем, что в расплавленном состоянии медь и сплавы на ее основе обладают большой жидкотекучестью, хорошо растворяют газы, особенно кислород, легко окисляются. У них большой коэффициент линейного расширения и они подвержены значительным структурным изменениям в зоне сварки.

Медь и ее сплавы удовлетворительно свариваются электродами марок «Комсомолец-100», МН-5 и ОЗБ-1, а также угольным электродом на постоянном токе прямой полярности и достаточно хорошо свариваются аргонно-дуговой сваркой вольфрамовым электродом. Присадочным материалом служат круглые или прямоугольные прутки примерно такого же химического состава, что и свариваемый металл. При сварке угольным электродом в качестве флюса используют прокаленную до 500...550°С буру. Наплавленный шов проковывают при температуре не выше 500°С, чтобы улучшить его механические свойства.

При сварке латуни и других медно-цинковых сплавов применяют прутки с повышенным содержанием цинка. При сварке выделяются ядовитые пары цинка, поэтому необходимы хорошая вентиляция рабочего места сварщика и применение респираторов.

Алюминий и его сплавы легко окисляются на воздухе, и поверхности деталей всегда покрыты плотной пленкой оксида алюминия Al2O3, температура плавления которого 2050°С (в то время как температура плавления чистого алюминия 660°С). Тугоплавкая и механически прочная пленка оксида алюминия создает основные трудности при его сварке. Кроме того, при нагревании алюминий и сплавы не изменяют цвета, а в расплавленном состоянии характеризуются большой жидкотекучестью, что также затрудняет сварку.

В качестве электродов или присадочного материала при сварке чистого алюминия и его сплавов используют прутки или проволоку, по химическому составу близкие к свариваемому металлу. В покрытия электродов или во флюс вводят хлористые и фтористые соли лития, калия, энергично растворяющиеся и ошлаковывающие оксид алюминия. Сварку ведут постоянным током обратной полярности, при которой в результате катодного распыления улучшаются условия разрушения оксидной пленки. При диаметре электрода 4...6 мм используют ток 120... 150 А. После сварки во избежание разъедания металла шлак со шва удаляют, промывая горячей или подкисленной водой и тщательно протирая стальными щетками. Перед сваркой поверхность детали обезжиривают бензином или ацетоном и подвергают очистке механическим или ручным способом (стальной щеткой).

Для сварки чистого алюминия используют электроды ОЗА-1. Алюминиево-кремнистые сплавы (типа силумин) сваривают электродами ОЗА-2.

Чтобы избежать коробления, образования трещин и улучшить качество сварки, детали из алюминия и его сплавов перед сваркой подогревают до температуры 200...350°С (крупные детали до более высокой температуры). Температуру подогрева определяют термопарами или специальными карандашами. Концы трещин в деталях засверливают, а кромки разделывают под углом 60...90°. Расплавленный металл удерживают от растекания стальными или глиняными подкладками. Для получения мелкозернистой структуры металла шва деталь после сварки медленно охлаждают, а шив слеша проковывают. Внутренние напряжения снимают нагревом до температуры 300...350°С с последующим медленным охлаждением.

Аргонно-дуговая сварка вольфрамовым электродом дает возможность получать хорошие результаты сварки алюминия и его сплавов без применения флюса. Однако оксидную пленку и загрязнения с поверхности детали перед сваркой требуется удалять более тщательно, чем при использовании флюса.

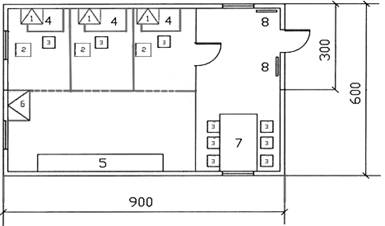
Цех по сварке алюминиевых радиусных колен

Сварочный цех 6х9х2,81 м общей площадью 54 кв. м.


Электроснабжение здания – от сети 380/220В, разводка в металлорукавах, расчетная мощность – в соответствии с устанавливаемым оборудованием.

Освещение – люминесцентное, накладные светильники

Вентиляция - естественная, принудительная: зонт вытяжной

Отопление – автономное, электрические настенные панели

Внутренние помещения: стены, потолок – оцинкованный металлический лист, пол – рифленый металлический лист

Окна – в деревянной раме

наружная дверь – металлическая с замком и ключами

степень огнестойкости – III

Теплостойкость здания: +18 град С при внешней температуре –45 град С.

Сварочный цех представляет собой прямоугольное помещение площадью 54 м2 с тремя сварочными кабинами, в каждой из которых находится специальный стол, табурет, сварочный преобразователь, электрододержатель, горелка. Преобразователь состоит из генератора постоянного тока и электродвигателя. Он соединен с электрододержателем посредством сварочных проводов (преобразователь является источником повышенного напряжения, электромагнитного поля, ультразвука.) Вентиляция осуществляется с помощью вытяжных зонтов, трех местных и одного общего. Во входной части цеха располагаются вешалки и обеденный стол.

Заготовки для сварки поставляются из других цехов на специальных тележках. Для сварки алюминиевых радиусных колен используем ручную дуговую сварку металлическим электродом с подогревом изделия. При использовании ручной сварки на рабочем месте уровень шума не превышает допустимых норм.

Прежде, чем приступить к сварке алюминия, сварщик должен знать особенности материала и технологию сварки.

Чистый алюминий проводит электрический ток в четыре раза лучше, чем сталь, поэтому процесс его сварки имеет свои технологические особенности. Способность проводить тепло у алюминия также значительно выше, чем у стали. Поэтому при работе с алюминием опасность поражения электрическим током и опасность получения ожогов от нагретой поверхности материала возрастает. То, что алюминий лучше проводит тепло, делает нежелательным увеличение скорости сварки - уменьшается глубина провара. Для кристаллизации сварочной ванны требуется меньше времени, поэтому происходит неполное газовыделение, что может привести к образованию пор в сварном шве. Чтобы избежать этого, необходимо устанавливать большее значение силы сварочного тока, чем при сварке стали; предварительно нагреть свариваемые детали, и использовать инертный защитный газ, желательно гелий. В начале сварки возможно уменьшение прочности сварного шва из-за отсутствия полного провара по причине недостаточного прогрева кромок свариваемых деталей.

Для ручной дуговой сварки технического алюминия применяются отечественные электроды ОЗА-1 и ОЗАНА-1 В этих электродах в обмазке находятся хлоридные и фторидные соли, разрушающие оксидную пленку и способствующие устойчивому горению дуги. С другой стороны, при высоких температурах идет окисление и выделение ионов хлора и фтора, что является негативной стороной этих добавок, т к они могут вызвать профессиональные заболевания.

Работа сварщика начинается с зачистки кромки свариваемого изделия и прилегающая к ним зон (20-30 мм) от ржавчины, шлака и обезвреживания поверхности бензином или ацетоном. Зачистка проводится при помощи стальных щеток или специального пневматического оборудования. Оно является источником локальной вибрации. Комплект слесарного инструмента, который необходим сварщику, состоит из стальных щеток, зубила и молотка (для очистки швов от шлака и брызг металла), шаблонов (для проверки размеров шва), стального клейма, метра, стальной линейки и др. Слесарный инструмент должен быть уложен в переносном инструментальном ящике. Свариваемые детали до начала сварки должны быть надежно закреплены.

Рекомендуется следующий расход защитного газа:

Диаметр проволоки 1,0 мм - 12-14 л/мин

Диаметр проволоки 1,2 мм - 14-16 л/мин

Диаметр проволоки 1,6 мм - 18-22 л/мин

При сварке деталей из алюминия горелку устанавливают под углом 10-20° к вертикали. Расстояние между соплом горелки и свариваемыми деталями должно быть 10-15 мм. Сварку ведут постоянным током обратной полярности (плюс на электроде), при которой в результате катодного распыления улучшаются условия разрушения оксидной пленки. Обратная полярность применяется при необходимости выделения меньшего количества тепла в свариваемом изделии. На дугу постоянного тока оказывает действие магнитного поля, которое отклоняет ее от оси. Уменьшить действие отклоняющего дугу магнитного поля можно изменением места токоподвода, наклоном электрода в сторону отклонения дуги, уменьшением длины дуги.

Используемый сварочный ток – 25-32 А на 1 мм диаметра электрода, диаметр электрода – 4-6 мм. При сварке алюминия температура дуги должна достигать 660°С и выше, что является источником повышенного светового и теплового излучения. Интенсивность теплового облучения работающих от открытых источников (нагретый металл, стекло, "открытое" пламя и др.) не должна превышать 140 Вт/м2, при этом облучению не должно подвергаться более 25%) поверхности тела и обязательным является использование средств индивидуальной защиты, в том числе средств защиты лица и глаз (ГОСТ 12.1.005-88).

После сварки во избежание разъедания металла шлак со шва удаляют, промывая горячей или подкисленной водой и тщательно протирая стальными щетками.

Чтобы избежать коробления, образования трещин и улучшить качество сварки, детали из алюминия и его сплавов перед сваркой подогревают до температуры 200...350°С (крупные детали до более высокой температуры). Температуру подогрева определяют термопарами или специальными карандашами. Предварительный нагрев приводит к повышенной температуре воздуха рабочей зоны. Концы трещин в деталях засверливают, а кромки разделывают под углом 60...90°. Расплавленный металл удерживают от растекания стальными или глиняными подкладками. Для получения мелкозернистой структуры металла шва деталь после сварки медленно охлаждают, а шов слегка проковывают. Внутренние напряжения снимают нагревом до температуры 300...350°С с последующим медленным охлаждением.

Контроль качества

1. Внешний осмотр.

При внешнем осмотре обнаруживаются такие дефекты как трещины в шве и околошовной зоне, незаваренные кратеры, несоответствие конструктивных элементов сварного шва, прожоги, наплывы, непровар в корне шва, подрезы, грубочешуйчатая поверхность сварного шва.

2. Гидравлические испытания.

Испытуемую емкость заполняют водой или керосином (при заполнении сосуда жидкостью должен быть обеспечен выход из него воздуха), а затем с помощью насоса медленно повышают давление в сосуде до заданного по техническим условиям на контроль сварного изделия. Под испытываемым давлением (контролируют по манометру) сосуд выдерживают в течение определенного времени и при этом подвергают тщательному осмотру.

3. Рентгено- и гамма-дефектоскопия.

Рентгеновские лучи обладают свойством проникать через непрозразные тела. Проникая через сварной шов, они ослабляют свою интенсивность, встречая на своем пути пустоты, шлаковые включения, трещины. В зависимости от того или иного дефекта рентгеновские лучи ослабляются по-разному, неодинаково.

Так обнаруживают наличие в сварных швах трещин, пористости, непроваров, шлаковых включений.

Сущность просвечивания гамма-лучами заключается в том, что, так же как и рентгеновские лучи, лучи некоторых радиоактивных веществ обладают свойством проникать через непрозрачные тела и на фотопленке отражать степень их ослабления. В качестве искусственных радиоактивных веществ получили применение изотопы кобальт-60, цезий-137 и др.

Гамма-установка дефектоскопии материалов представляет собой простейшее устройство. Оно состоит из свинцового контейнера, в котором расположена ампула с радиоактивными веществами. Установкой можно пользоваться в таких местах, где рентгеноустановку не удается использовать; одновременно можно просвечивать несколько деталей или контролировать весь кольцевой шов: гамма-установка легкая, портативная, недорогая.

Однако, при использовании такой дефектоскопии нужно соблюдать все правила безопасности, т к долговременное и частое радиационное облучение опасно для здоровья человека.

Оценка факторов рабочей среды

Профессия

Фактор рабочей среды и условия труда

Значение показателя

Продолжительность действия фактора, мин

Сварщик

(ручная электродуговая)

Температура воздуха РМ в теплый период года, оС

25…28


350

Токсичное вещество, кратность превышения ПДК, раз

1,0…2,5

350

Промышленная пыль, кратность превышения ПДК, раз

1…5

350

Интенсивность теплового излучения, Вт/м2

141. ..1000

350

Освещенность РМ на уровне

санитарных норм:

размер объекта различения, мм

разряд зрительной работы

-

> 1,0

5…9


350

Физическая статистическая нагрузка, Н-с

На две руки х 104

На мышцы корпуса х 104



43…86

< 61


350

РМ стационарное, поза несвободная- до 50% времени в наклонном положении до 300



-



-

Продолжительность непрерывной работы в течение суток, ч


<8


-

Длительность сосредоточенного наблюдения % от продолжительности рабочей смены



75…90



-


Нервно-эмоциональная нагрузка:

Простые действия по заданному плану

-

-


Расчет интегральной бальной оценки тяжести труда.

Фактор рабочей среды и условия труда

(по результатам анализа техпроцесса и рабочего места)

Показатель

Значение показателя

Балльная оценка фактора

Продол-жительность действия фактора ti

Удельный вес времени действия фактора tуд i

Оценка удельной тяжести фактора рабочей среды

Хф

1

2

3

4

5

6

7

Температура воздуха РМ в теплый период года, оС

Х1

25…28

350

0,73

2,19

Токсичное вещество, кратность превышения ПДК, раз

Х2

≤ 1

3

350

0,73

2,19

Промышленная пыль, кратность превышения ПДК, раз

Х3

1…5

3

350

0,73

2,19

Интенсивность теплового излучения, Вт/м2

Х4

141. ..1000

2

350

0,73

1,46

Освещенность РМ на уровне

санитарных норм:

размер объекта различения, мм

разряд зрительной работы



Х5

Х6



-

> 1,0

5…9



1

1

350

0,73



1

1

Физическая статистическая нагрузка, Н-с

На две руки х 104

На мышцы корпуса х 104



Х7

Х8



43…86

< 61



2

1

350

0,73


1,46

1

РМ стационарное, поза несвободная- до 50% времени в наклонном положении до 300

Х9



-

5

-

-

5

Продолжительность непрерывной работы в течение суток, ч

Х10


<8

2

-

-

2

Длительность сосредоточенного наблюдения % от продолжительности рабочей смены

Х11



75…90

4

-

4

Нервно-эмоциональная нагрузка:

Простые действия по заданному плану

Х12

-

2

-

-

2


Интегральная бальная оценка тяжести труда

 

 

где хтах — наивысшая из полученных частных балльных оценок xi; Nобщее число факторов; х — балльная оценка по i-му из учитываемых факторов (частная балльная оценка); пчисло учитываемых факторов без учета одного фактора хmax

 

 

Интегральная оценка, баллы

Категория тяжести

до 1,8

1

1,8...3,3

2

3,4...4.5

3

4, б. ..5,3

4

5,4...5,9

5

более 5,9

6


Таким образом получаем, что категория тяжести труда на рабочем месте сварщика при ручной электродуговой сварке с подогревом изделия равна 5.

Мероприятия по снижению влияния вредных факторов при ручной дуговой сварке

1. Местная вытяжная вентиляция;

Для улавливания сварочного аэрозоля у места его образования при рассматриваемых способах обработки металла следует предусматривать местные отсосы. Конструкции местных отсосов могут выполняться в виде вытяжного шкафа, вертикальной или наклонной панели равномерного всасывания, панельного наклонно-щелевого отсоса, стола с нижним подрешеточным отсосом и надвижным укрытием и т.п.

Скорость движения воздуха, создаваемая местными отсосами у источников выделения вредных веществ при ручной сварке должна быть не менее 0,5 м/с.

Количество вредностей, локализуемых местными отсосами (с учетом скорости движения воздуха в помещении и других факторов), для вытяжных шкафов составляет не более 90%, для остальных видов местных отсосов - не более 75%.

Оставшееся количество вредностей (10 - 25%) должно разбавляться до предельно допустимой концентрации (ПДК) с помощью общеобменной вентиляции.

2. Общеобменная вентиляция;

Раздачу приточного воздуха необходимо осуществлять:

а) рассеянно в рабочую зону помещений, в основном на несварочные участки - там, где вытяжная вентиляция решена посредством устройства местных отсосов.

б) сосредоточенно в верхнюю зону помещений - в остальных случаях.

Скорость движения воздуха в рабочей зоне должна находиться в пределах от 0,3 до 0,9 м/с при электродуговой сварке.

3. Спецодежда, спецобувь и индивидуальные средства защиты;

Для защиты лица и глаз от действия лучистой энергии электрической дуги, а также от искр и брызг расплавленного металла сварщики должны обеспечиваться щитками или масками. В зависимости от величины сварочного тока или яркости газового пламени необходимо применять светофильтры.

Защитные стекла, вставленные в щитки и маски, снаружи закрывают простым стеклом для предохранения их от брызг расплавленного металла. Щитки изготовляют из изоляционного металла - фибры, фанеры и по форме и размерам они должны полностью защищать лицо и голову сварщика (ГОСТ 1361-69).

Для ослабления резкого контраста между яркостью дуги и малой яркостью темных стен (кабины) последние должны быть окрашены в светлые тона (серый, голубой, желтый) с добавлением в краску окиси цинка с целью уменьшения отражения ультрафиолетовых лучей дуги, падающих на стены.

Образующиеся при дуговой сварке брызги расплавленного металла имеют температуру до 1800 град. С, при которой одежда из любой ткани разрушается. Для защиты от таких брызг обычно используют спецодежду (брюки, куртку и рукавицы) из брезентовой или специальной ткани. Куртки при работе не следует вправлять в брюки, а обувь должна иметь гладкий верх, чтобы брызги расплавленного металла не попадали внутрь одежды, так как в этом случае возможны тяжелые ожоги.

4. Предотвращение поражения электрическим током;

Все корпуса сварочных установок, генераторов, электродвигателей, сварочных трансформаторов и других установок следует обязательно заземлять. Вторичную обмотку трансформатора на случай опасности при пробое на нее первичного напряжения заземляют вместе с металлическим кожухом. Устройство для включения и переключения электрического тока должно иметь заземленные защитные кожухи.

Напряжение холостого хода источников питания опасно, когда сварщик соприкасается с большими металлическими поверхностями. Для обеспечения безопасности сварщика электросварочные установки снабжают автоматическим включением сварочной цепи при соприкосновении электрода со свариваемым изделием и автоматическим отключением при холостом ходе ( холостой ход ограничивают до напряжения 12В с выдержкой времени не более 0,5 с).

Сварщикам не разрешается подключать в сеть и отключать от сети электросварочные агрегаты, а также ремонтировать их. Монтаж и ремонт электрооборудования разрешается производить квалифицированным, специально обученным электромонтерам. Сварщикам категорически запрещается исправлять силовые электрические цепи.

При перерыве подачи электроэнергии, при отлучке с рабочего места, при обнаружении неисправности сварочного агрегата во время работы, а также при чистке, уборке агрегата и рабочего места сварщик должен выключать сварочный агрегат.

5. Требования к производственным помещениям, оборудованию, технологическим процессам и приспособлениям;

Границы проходов, проездов, рабочих мест и складских помещений следует обозначать хорошо видимыми знаками (белой несмываемой краской).

Сварку, наплавку и резку мелких и средних изделий на стационарных местах следует производить в кабинах с открытым верхом.

При работе, связанной с применением защитных газов, обшивка по всему периметру не должна доходить до пола на расстояние 300 мм.

Площадь кабины должна быть достаточной для размещения сварочной установки, стола или кондуктора и изделий, подлежащих обработке. Свободная площадь в кабине на один сварочный пост должна составлять не менее 3 кв. м.

При сварке и наплавке изделий с предварительным подогревом размещение нескольких сварочных постов в одной кабине не разрешается.

Допускается работа двух сварщиков в одной кабине только при сварке одного изделия.

Полы в производственных помещениях должны соответствовать требованиям СНиП "Нормы проектирования полов".

Цветовая отделка интерьеров помещений и оборудования в сборочно-сварочных цехах должна соответствовать указаниям по проектированию цветовой отделки интерьеров производственных зданий промышленных предприятий.

Для ослабления контраста между яркостью дуги, поверхностью стен и оборудованием последние должны окрашиваться в светлые тона с диффузным (рассеянным) отражением света.

В оборудовании, предназначенном для всех видов механизированной сварки (электроконтактной, электродуговой под флюсом, в защитных газах, порошковой проволокой и др.), следует предусматривать встроенные местные отсосы, обеспечивающие улавливание сварочного аэрозоля непосредственно у места его образования.

Во избежание повышенного выделения сварочного аэрозоля, особенно при сварке изделий с противокоррозийными покрытиями, следует строго соблюдать режим сварки - не превышать силу тока, предусмотренную для применяемых сварочных материалов.

Для предварительного обезжиривания изделий не разрешается применять трихлорэтилен, дихлорэтан и другие хлорированные углеводороды, при взаимодействии которых с озоном возможно образование фосгена - токсичного вещества удушающего действия.

При контроле качества сварных швов следует руководствоваться действующими санитарными правилами при промышленной гамма-дефектоскопии.

На фиксированных рабочих местах, где работа выполняется сидя, следует предусматривать удобные стулья со спинками и утепленными сиденьями, с возможностью регулирования их высоты.

Для защиты от лучистой энергии рабочих, не связанных со сваркой, наплавкой или резкой металлов, сварочные посты должны ограждаться экранами из несгораемых материалов высотой не менее 1,8 м.

6. Требования к защите от рентгеновского излучения при электронной обработке металла.

7. Требования безопасности во время работы

Электросварщик обязан выполнять работы при соблюдении следующих требований безопасности:

а) место производства работ, а также нижерасположенные места должны быть освобождены от горючих материалов в радиусе не менее 5 м, а от взрывоопасных материалов и установок - 10 м;

б) сварка должна осуществляться с применением двух проводов, один из которых присоединяется к электрододержателю, а другой (обратный) - к свариваемой детали. Запрещается использовать в качестве обратного провода сети заземления металлические конструкции зданий, технологическое оборудование, трубы санитарно-технических сетей (водопровод, газопровод и т.п.);

в) сварочные провода должны соединяться способом горячей пайки, сварки или при помощи соединительных муфт с изолирующей оболочкой. Места соединений должны быть заизолированы; соединение сварочных проводов методом скрутки не допускается;

г) сварочные провода должны прокладывать так, чтобы их не могли повредить машины и механизмы. Запрещается прокладка проводов рядом с газосварочными шлангами и трубопроводами, расстояние между сварочным проводом и трубопроводом кислорода должно быть не менее 0,5 м, а трубопроводом ацетилена и других горючих газов - 1 м.

К дуговой сварке разрешается допускать сварщиков после соответствующего обучения, имеющих удостоверение на право данного вида сварочных работ, прошедших инструктаж и проверку знаний техники безопасности с оформлением в специальном журнале, а также прошедших медицинский осмотр. Запрещается выполнять электросварочные работы лицам, не достигшим 18-летного возраста.

Из рассмотренных выше факторов видно, что наиболее опасными и вредными из них при электродуговой сварке являются :

1.Повышенное содержание вредных газов и аэрозолей, выделяющихся при сварке;

2.Интенсивное инфракрасное (тепловое) излучение свариваемых изделий и сварочной ванны;

3.Искры, брызги и выбросы расплавленного металла и шлака.

Мероприятия по снижению влияния трех основных опасных факторов

Содержание различных вредных газов и аэрозолей является главным опасным фактором в процессе дуговой сварки. Сварочный аэрозоль представляет собой совокупность мельчайших частиц, образовавшихся в результате конденсации паров расплавленного металла, шлака и покрытия электродов. Состав сварочного аэрозоля зависит от состава сварочных и свариваемых материалов. В силу своих мельчайших размеров (иногда меньше 1 микрометра) сварочный аэрозоль беспрепятственно проникает в глубинные отделы легких (легочные альвеолы) и частично остается в их стенках, вызывая профессиональное заболевание — «пневмокониоз сварщика», а частично всасывается в кровь. Если сварочный аэрозоль содержит значительное количество марганца, а так бывает при сварке легированных и нержавеющих сталей качественными электродами, то, распространяясь с кровью по организму, этот чрезвычайно токсичный элемент вызывает тяжелое заболевание — марганцевую интоксикацию. При этом страдает, главным образом, центральная нервная система. Изменения в организме при марганцевой интоксикации необратимы. Другие элементы сварочного аэрозоля, а также так называемые сварочные газы, обладая сильным раздражающим действием, способны вызвать хронический бронхит.

В последние годы установлено, что многие компоненты сварочного аэрозоля, хоть и не вызывают профессиональных специфических болезней, но при длительном воздействии увеличивают риск возникновения сердечно-сосудистых и онкологических заболеваний, а также уменьшают продолжительность жизни.

Для снижения содержания вредных газов и аэрозолей, выделяющихся при сварке необходимы:

1. механизация и автоматизация производственных процессов, дистанционное управление ими;

2. исключение или резкое уменьшения выделения вредных веществ в воздух производственных помещений (заменой токсичных веществ нетоксичными);

3. усовершенствование системы вентиляции и ионизации воздуха.

Требуемое количество поступающего воздуха L рассчитывается по формуле:

L=kV

где к - кратность воздухообмена, показывающая, сколько раз в течение часа воздух меняется в помещении, ч*1; V — объем вентилируемого помещения, м3.

Для участка сварки требуемое количество поступающего воздуха равно (V цеха = 151,74, к = 26):

L= 26*151,74= 3945,24 м3

Интенсивное теплое излучение. Спектр излучения сварочной дуги включает в себя диапазон инфракрасных волн (3430–750 нм), видимый диапазон (750–400 нм) и ультрафиолетовый диапазон (400–180 нм). При этом доля инфракрасных лучей составляет от 30 до 70 % всей энергии излучения дуги. Именно инфракрасные лучи способны вызвать профессиональную катаракту. Видимый свет электрической дуги нестерпимо ярок. Смотреть на него сколько-нибудь долго невозможно, поэтому ни у кого из сварщиков не вызывает сомнения необходимость использования светофильтров.

Самое опасное воздействие на организм, с точки зрения охраны труда, имеет ультрафиолетовая часть спектра. Даже кратковременное воздействие ультрафиолетовых лучей на незащищенный глаз способно вызвать ожог роговой оболочки — электроофтальмию. Неопытные сварщики чаще других страдают этим заболеванием из-за того, что не умеют еще своевременно, в момент возбуждения сварочной дуги, устанавливать в нужное положение щиток со светофильтром. Ультрафиолетовое излучение, воздействуя на открытые участки кожи, вызывает ожоги, подобные тем, которыми страдают люди, злоупотребившие солнечными лучами при загорании. Ожоги от сварочной дуги могут быть, однако, гораздо сильнее и опаснее, чем от солнца. Чем выше сила тока при сварке, тем сильнее излучение сварочной дуги.

Для снижения вредного воздействия теплового излучения необходимо:

1. Использование теплозащитных экранов (для локализации источников теплового излучения, снижения облученности на рабочих местах, а также для снижения температуры поверхностей, окружающих рабочее место). Часть теплового излучения экраны отражают, а часть поглощают.

2. Правильная организация труда и отдыха работников. Для них нужно устраивать специальные места отдыха в помещениях с нормальной температурой, оснащенных системой вентиляции и снабжения питьевой водой.

Искры, брызги и выбросы расплавленного металла и шлака. Искры и брызги могут служить причиной ожогов различной степени. Грамотный подбор и применение комплексных средств индивидуальной защиты позволит свести к минимуму риск поражения данным фактором. Необходимо снабжение рабочих куртками, брюками, обувью специальной конструкции, при которой искры от сварки и горячая окалина не смогут задержаться на их поверхности долгое время, попасть между деталями одежды или ботинок. Для производства такой одежды нужно использовать хлопковые ткани нового поколения высокой плотности с огнестойкими отделками.

Обувь должна обладать жаростойкими и антистатическими свойствами; иметь простые застежки, позволяющие быстро снять обувь в случае аварийной ситуации, связанной с угрозой здоровью работника.

Оценка факторов рабочей среды с учетом принятых мер

Профессия

Фактор рабочей среды и условия труда

Значение показателя

Продолжительность действия фактора, мин

Сварщик

(ручная электродуговая)

Температура воздуха РМ в теплый период года, оС

21…22


350

Токсичное вещество, кратность превышения ПДК, раз

<1.0

350

Промышленная пыль, кратность превышения ПДК, раз

<1.0

350

Интенсивность теплового излучения, Вт/м2

<140

350


Фактор рабочей среды и условия труда

(по результатам анализа техпроцесса и рабочего места)

Показатель

Значение показателя

Балльная оценка фактора

Продол-жительность действия фактора ti

Удельный вес времени действия фактора tуд i

Оценка удельной тяжести фактора рабочей среды

Хф

1

2

3

4

5

6

7

Температура воздуха РМ в теплый период года, оС

Х1

21…22

2

350

1.46

Токсичное вещество, кратность превышения ПДК, раз

Х2

≤ 1.0

2

350

0,73

1.46

Промышленная пыль, кратность превышения ПДК, раз

Х3

<1.0

2

350

0,73

1.46

Интенсивность теплового излучения, Вт/м2

Х4

<140

1

350

0,73

0.73




Таким образом, при соблюдении мер по безопасности по трем факторам удалось снизить показатель категории тяжести труда до 4. Этот показатель все равно высок, так как сварщик находится в вынужденной позе до 50% рабочего времени, этот фактор может разрешить автоматизация производства.

Заключение

В процессе своей трудовой деятельности электросварщик подвергается воздействию целого комплекса опасных и вредных производственных факторов физической и химической природы: тепловое излучение, сварочный аэрозоль, искры и брызги расплавленного металла и шлака.

Именно эти факторы вызывают профессиональные заболевания и травматические повреждения. Другие вредности: газы, шум, электромагнитные поля, имеют меньшее значение и обычно не служат причиной профессиональных заболеваний. Поэтому необходимо уделить должное внимание основным поражающим факторам. При сравнении в данной работе интегральной оценки тяжести труда сварщика до и после принятия мер по снижению воздействия опасных факторов мы видим, что категорию тяжести труда удалось снизить с пятой на четвертую. Однако эта категория все равно остается высокой из-за возможного неудобного положения рабочего в процессе сварки (лежа на животе, сидя на корточках и т.д.). Данный фактор можно снизить путем автоматизации процесса, однако в настоящее время эти решения находятся в стадии разработки. И пока основным действующим лицом процесса будет человек, процесс сварки будет характеризоваться как тяжелый труд.

Список литературы

1.  Малышев.Б.Д, Мельник.В.И, Гетия.И.Г. Ручная дуговая сварка. - М.: Стройиздат, 1990.

2.  Рыбаков.В.М. Дуговая и газовая сварка. М.: Высшая школа, 1986

3.  Журнал "Промышленное Оборудование" 2004 г.

4.  Казаков.Ю.В, Козулин.М.Г. Сварка и резка материалов. - М.: Издательский центр “Академия”, 2000

5.  Фоминых.В.П, Яковлев.А.П. Ручная дуговая сварка. - М.: Высшая школа, 1986.

6.  ГОСТ 12.3.003-86

7.  ГОСТ 12.1.004—91

8.  www.kisar.ru

9.  www.svarkainfo.ru

Похожие работы на - Электродуговая сварка: технология процесса и безопасность труда

 

Не нашли материал для своей работы?
Поможем написать уникальную работу
Без плагиата!
Без нейросетей!