Система электроснабжения сельскохозяйственного населенного пункта
МИНИСТЕРСТВО СЕЛЬСКОГО ХОЗЯЙСТВА
РОССИЙСКОЙ ФЕДЕРАЦИИ
ФГОУ ВПО «Башкирский государственный
аграрный университет»
Факультет: Электрификация и
автоматизация с.х.
Кафедра: Электроснабжение и
применение электрической энергии в с.х.
Специальность: Электрификация и автоматизация
с.х.
Курсовой проект
Система электроснабжения
сельскохозяйственного населенного пункта
Беликов Кирилл Юрьевич
Форма обучения: очная
Курс, группа: 4, ЭАСПО
Уфа – 2009
Оглавление
Введение
1. Исходные данные и
варианты заданий на проектирование
2. Расчет электрических
нагрузок
3. Компенсация реактивной
мощности
4. Выбор потребительских
трансформаторов
5. Электрический расчет
воздушной линии напряжением 10 кВ
6. Оценка качества
напряжения у потребителей
7. Электрический расчет
воздушной линии напряжением 0,38 кВ
8. Проверка сети на
успешный запуск электродвигателей
Заключение
Библиографический список
Введение
Электроснабжение
производственных предприятий и населенных пунктов в сельской местности имеет
свои особенности по сравнению с электроснабжением промышленности и городов.
Главная из них Ї это необходимость подводить электроэнергию к огромному
количеству сравнительно маломощных объектов, рассредоточенных по всей
территории страны. В результате протяженность сетей на единицу мощности
потребителя во много раз превышает эту величину в других отраслях народного хозяйства,
а стоимость электроснабжения в сельском хозяйстве составляет до 65-75% от общей
стоимости электрификации, включая затраты на приобретение рабочих машин.
Протяженность сельских
электрических линий напряжением 0,38-20 кВ превысила 5 миллионов километров и
во много раз больше, чем во всех других отраслях народного хозяйства, вместе
взятых.
От его рационального
решения в значительной степени зависит экономическая эффективность применения
электроэнергии в сельском хозяйстве и быту сельского населения. Поэтому
первостепенная задача правильного электроснабжения заключается в доведении
стоимости электроэнергии до минимальной. Надежность подачи электроэнергии тоже
важнейший показатель качества электроснабжения. В связи с бурным ростом
электрификации сельскохозяйственного производства, особенно в связи с созданием
в сельском хозяйстве комплексов промышленного типа, всякое отключение Ї
плановое (для ревизии и ремонта) и особенно аварийное Ї наносит огромный ущерб
потребителю и самой энергетической системе. Поэтому применение эффективных и
экономически целесообразных мер для обеспечения оптимальной надежности
электроснабжения Ї важнейшая задача специалистов, работающих в этом направлении
электрификации сельского хозяйства.
1. Исходные данные и
варианты заданий на проектирование
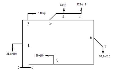
Схема
сети напряжением 10 кВ для питания населенного пункта приведена на рисунке 1.1.
Вариант
задания: 2.
Исходные
данные для проектирования:
·
Sск3- мощность трехфазного короткого замыкания
(КЗ) на шинах 10 кВ ГПП;
· V100- отклонение напряжения на этих шинах
в максимальном режиме;
· V25- отклонение напряжения на этих шинах
в минимальном режиме;
· Lnn- длины участков линии 10 кВ;
· активные дневные Ртпд и
вечерние Ртпв нагрузки ТП2, ТП3,ТП4, ТП6;
· данные по потребителям ТП1 и ТП 5.
Длины неуказанных
участков в таблице 1.1 принять равными 0,7 км.
Количество потребителей, подключенных к ТП1 и ТП5, а также длины линий
0,38 кВ ТП также приведены ниже
Рисунок 1.1 Исходная
схема электропередачи
V100 =+5 %;
V25 =+1 %.
Длина участков 10 кВ, км:
L0-1= 3,3;
L1-2 =3,7;
L2-3 =1,7;
L3-4 =1,9;
L4-5 =1,3;
L3-6 =3,2;
L6-7 =0,46;
L6-8 =2,5;
L8-0 =1,2.
Данные по ТП:
Дневные:
Вечерние:
Ртп 2=110 кВт;
Qтп 2 =84 квар; Ртп
2=55 кВт; Qтп 2 =40 квар;
Ртп 3=60 кВт; Qтп 3 =40 квар; Ртп
3=82 кВт; Qтп 3 =51 квар;
Ртп 4=0 кВт; Qтп 4 =0 квар; Ртп
4=129 кВт; Qтп 4 =19 квар;
Ртп 6=66 кВт; Qтп 6 =44 квар; Ртп
6=139 кВт; Qтп 6 =22 квар;
Количество (знаменатель)
и номера потребителей (числитель), подключенных к ТП-5 в точках: 3;12;9/3;6/1.
Длина линий 0,38 кВ ТП-5
: L 1 =1,84 км;
L 0-1 =1,6 км;
L 1-2 =0,5 км.
Потребители ТП-1: 1;8;2;
Нагрузки
на вводе потребителей ТП-5:
1. Мельница с жерновым
поставом 8/4:
РД=17 кВт; QД =13 квар;
РВ=1 кВт; QВ =0 квар;
Рэд=22 кВт;
2. ЗАВ-40:
РД=35 кВт; QД =35 квар;
РВ=36 кВт; QВ =32 квар;
3. Материальный склад:
РД=3 кВт; QД =2 квар;
РВ=1 кВт; QВ =0 квар;
4. Столярный цех:
РД=15 кВт; QД =10 квар;
РВ=1 кВт; QВ =0 квар;
Нагрузки
на вводе потребителей ТП-1:
1. Лесопильный цех с пилорамой ЛРМ-79:
РД=16 кВт; QД =18 квар;
РВ=18 кВт; QВ =2 квар;
Рэд=22 кВт;
2. Стоянка для тракторов:
РД=5 кВт; QД =3 квар;
РВ=3 кВт; QВ =0 квар;
3. Р-65:
РД=23 кВт; QД =27 квар;
РВ=2 кВт; QВ =0 квар;
2. Расчет электрических
нагрузок
Расчет
электрических нагрузок линий напряжением 0,38 кВ производится исходя из
расчетных нагрузок на вводе потребителей и коэффициентов одновременности:
Рд=ко SРдi, (2.1)
Рв=ко
SРвi, (2.2)
Qд=ко SQдi, (2.3)
Qв=ко SQвi, (2.4)
где Рд,
Рв — расчетные активные дневная и вечерняя нагрузки на участке
линии;
Qд, Qв – то же, реактивные
нагрузки;
Рдi, Рвi, Qдi, Овi — нагрузки на вводе i-го
потребителя;
ко
— коэффициент одновременности.
Если нагрузки
потребителей отличаются более чем в 4 раза, то расчетные нагрузки участков
линий определяют по добавкам мощностей:
Рд
= Рд наиб +
,
(2.5)
Рв
= Рв наиб +
,
(2.6)
где Рд –
наибольшая дневная нагрузка из всех слагаемых нагрузок потребителей;
- добавка к наибольшей нагрузке от активной
нагрузки i-го потребителя.
Определение электрических
нагрузок ТП-5
Мельница с
жерновым поставом 8/4:
РД=17 кВт; QД =13 квар;
РВ=1 кВт; QВ =0 квар;
Рэд=22 кВт;
кВА; (2.7)
кВА; (2.8)
А; (2.9)
; (2.10)
Расчет параметров других
нагрузок ТП-5 производится аналогично. Результаты расчетов приведены в таблице
1.
2. Расчет параметров
освещения.
В курсовом
проекте освещение территорий хозяйственных дворов принимается из расчета 250 Вт
на помещение и 3 Вт на погонный метр длины периметра хоздвора.
Принимаем
периметр одного хоздвора равным П= 100м. Тогда, учитывая, что количество
хоздворов равно n= 4, имеем:
кВт.
Освещение помещений:

кВт.
Суммируем нагрузки ТП-5
учитывая при этом правила (2.5) и (2.6) и определяем коэффициенты мощности:
кВт;
кВт;
квар;
квар;
кВА;
кВА;
;
Таблица 1 Определение
нагрузок линии 0,38 кВ и ТП-5
|
Линии
|
Потребители
|
Количество, шт.
|
К0
|
Активная нагрузка, кВт
|
Реактивная нагрузка, квар
|
|
на вводе
|
расчетная
|
на вводе
|
расчетная
|
|
Рдi
|
Рвi
|
Рд
|
Рв
|
Qдi
|
Qвi
|
Qд
|
Qв
|
|
Л1
|
1. Мельница с жерновым поставом
8/4
|
1
|
1
|
17
|
1
|
17
|
1
|
13
|
-
|
13
|
-
|
|
2.ЗАВ-40
|
1
|
1
|
35
|
36
|
35
|
36
|
35
|
32
|
35
|
32
|
|
Л2
|
3.Материальный склад
|
3
|
0,8
|
3
|
1
|
7,2
|
2,4
|
2
|
-
|
4,8
|
-
|
|
4.Столярный цех
|
1
|
1
|
15
|
1
|
15
|
1
|
10
|
-
|
10
|
-
|
|
Наружное освещение: помещений
|
12
|
1
|
-
|
0,25
|
-
|
3
|
-
|
-
|
-
|
-
|
|
Хоздворов (100*0,003 кВт /м)
|
12
|
1
|
-
|
0,3
|
-
|
3,6
|
-
|
-
|
-
|
-
|
|
Нагрузка ТП5
|
-
|
-
|
-
|
-
|
60,2
|
43,2
|
-
|
-
|
52,5
|
32
|
Определение
электрических нагрузок ТП-1
Например, для мельницы с
жерновым поставом:
РД=17 кВт; QД =13 квар;
РВ=1 кВт; QВ =0 квар;
кВА;
кВА;
;
.
Расчет параметров других
нагрузок ТП-1производится аналогично. Результаты расчетов приведены в таблице
2.
Расчет параметров
освещения.
Принимаем
периметр одного хоздвора равным П= 100м. Тогда, учитывая, что количество
хоздворов равно n= 3, имеем:
кВт.
Освещение помещений:

кВт.
Суммируем нагрузки ТП-1
учитывая при этом правила (2.5) и (2.6) и определяем коэффициенты мощности:
кВт;
кВт;
квар;
квар;
кВА;
кВА;
;
Таблица 2 Определение
электрических нагрузок ТП-1
|
Потребители
|
Кол-во
|
Ко
|
Активная
нагрузка, кВт
|
Реактивная нагрузка,квар
|
|
на
вводе
|
расчетная
|
на вводе
|
расчетная
|
|
Рдi
|
Рвi
|
Рд
|
Рв
|
Qдi
|
Qвi
|
Qд
|
Qв
|
|
1. Мельница вальцовая
|
1
|
1
|
16
|
2
|
16
|
2
|
18
|
-
|
18
|
-
|
|
2.Материальный склад
|
1
|
1
|
5
|
2
|
5
|
2
|
3
|
-
|
3
|
-
|
|
3.Мастерские
|
1
|
1
|
23
|
2
|
23
|
2
|
27
|
-
|
27
|
4
|
|
Наружное освещение помещений
|
3
|
1
|
-
|
0,25
|
-
|
0,75
|
-
|
-
|
-
|
-
|
|
Наружное освещение хоздворов
периметром по 100 м
|
3
|
1
|
-
|
0,3
|
-
|
0,9
|
-
|
-
|
-
|
-
|
|
Нагрузка ТП1
|
-
|
-
|
-
|
-
|
35,8
|
7,65
|
-
|
-
|
40
|
4
|
Результаты расчета
нагрузок сводятся в таблицу 3. Токи ТП1 и ТП5 не рассчитываются, так как
расчетные мощности этих ТП будут определены только после компенсации реактивной
мощности.
Таблица 3. Сводные данные расчета
нагрузок
|
Элементы сети
|
Мощность
|
Ток, А
|
Коэффициент мощности
|
|
Активная, кВт
|
Реактивная, квар
|
Полная, кВт
|
|
Рд
|
Рв
|
Qд
|
Qв
|
Sд
|
Sв
|
Iд
|
Iв
|
Cosjд
|
Cosjв
|
|
1
|
2
|
3
|
4
|
5
|
6
|
8
|
9
|
10
|
11
|
|
ТП-1
|
35,8
|
7,7
|
40
|
-
|
53,7
|
7,7
|
81,3
|
11,6
|
0,67
|
1
|
|
ТП-2
|
110
|
55
|
84
|
40
|
138,4
|
68
|
209,7
|
103,1
|
0,79
|
0,81
|
ТП-3
|
60
|
82
|
40
|
51
|
72,1
|
96,6
|
109,3
|
146,3
|
0,83
|
0,85
|
ТП-4
|
-
|
129
|
-
|
19
|
-
|
130,4
|
-
|
197,6
|
-
|
0,99
|
|
ТП-5
|
60,2
|
43,2
|
52,5
|
32
|
79,9
|
53,8
|
121
|
81,5
|
0,75
|
0,8
|
ТП-6
|
66
|
139
|
44
|
22
|
79,3
|
140,7
|
120,2
|
213,2
|
0,83
|
0,99
|
После
компенсации реактивной мощности
|
|
ТП-1
|
35,8
|
7,7
|
10
|
-
|
37,2
|
10
|
56,4
|
15,2
|
0,96
|
1
|
|
ТП-2
|
110
|
55
|
9
|
10
|
110,4
|
55,9
|
167,3
|
84,7
|
0,99
|
0,98
|
|
ТП-3
|
60
|
82
|
10
|
1
|
60,8
|
82
|
92,1
|
124,2
|
0,99
|
1
|
|
ТП-4
|
-
|
129
|
-
|
19
|
-
|
130,4
|
-
|
197,6
|
-
|
0,99
|
|
ТП- 5
|
60,2
|
43,2
|
2,5
|
2
|
60,3
|
43,3
|
91,4
|
138,5
|
0,99
|
0,99
|
|
ТП-6
|
66
|
139
|
4
|
22
|
66,1
|
140,7
|
100,2
|
213,2
|
0,99
|
0,99
|
|
|
|
|
|
|
|
|
|
|
|
|
3. Компенсация
реактивной мощности
При
естественном коэффициенте мощности линии или ТП меньше 0,95 рекомендуется
компенсация реактивной мощности /2/.
Необходимо
выбрать конденсаторные батареи БК для ТП5 и ТП1 и установить их на шинах 0,4 кВ
этих ТП.
По
естественному коэффициенту мощности (таблица 3 определяют, где и когда
необходима компенсация.
Для ТП-1
согласно данным таблицы:
Рд= 35,8 кВт; Qд = 40 квар; Cosjд = 0,67;
Рв = 7,7 квар; Qв = 0 квар; Cosjв = 1;
Для ТП-2:
Рд= 110 кВт; Qд = 84 квар; Cosjд = 0,79;
Рв =55 квар; Qв = 40 квар; Cosjв = 0,81;
Для ТП-3:
Рд= 60 кВт; Qд = 40 квар; Cosjд = 0,83;
Рв = 82 квар; Qв = 51 квар; Cosjв = 0,85;
Для ТП-4:
Рв = 129 квар; Qв = 19 квар; Cosjв = 0,99;
Для ТП-5:
Рд= 60,2 кВт; Qд = 52,5 квар; Cosjд = 0,75;
Рв = 43,2 квар; Qв = 32 квар; Cosjв = 0,8;
Для ТП-6:
Рд= 66 кВт; Qд = 44 квар; Cosjд = 0,83;
Рв = 139 квар; Qв = 22 квар; Cosjв = 0,99;
Определяем
реактивную мощность Qк, которую необходимо компенсировать до cosц = 0,95
Qк = Qест - 0,33 P (3.1)
где Qест — естественная (до
компенсации) реактивная мощность.
Для ТП-2 согласно данным
таблицы 3:
Qкд= 84 - 0,33·110 =
47,7 кВАр;
Qкв= 40 - 0,33·55 =
21,85 кВАр.
Для других ТП
расчет производиться аналогично.
Выбираем
мощность конденсаторных батарей Qбк, при этом перекомпенсация не рекомендуется:
Qк< Qбк <Qест . (3.2)
Номинальные
мощности конденсаторных батарей на напряжение 0,38 кВ, кВАр следующие: 20, 25,
30, 40, 50, 75, 100, 125, 150 и т. д.
Например, для
ТП-2:
QбкД = 75 кВАр;
QбкВ = 30 кВАр;
Батарею
конденсаторов лучше выбирать одной и той же для дневного и вечернего максимумов.
Если это сделать не удается, то выбираем две батареи (иногда больше), причем в
один максимум они включены обе, в другой — только одна.
Например, для
ТП-5: QбкД = 50 кВАр;
QбкВ = 30 кВАр,
причем в
дневной максимум нагрузки включаем обе конденсаторные батареи QбкД = 125 кВАр, а в вечерний максимум
нагрузки включается только одна батарея QбкВ = 30 кВАр.
Для других ТП
мощности конденсаторных батарей выбираются аналогично. Результаты расчетов и
выбора представлены в таблице 4.
Определяют
некомпенсированную реактивную мощность
Q= Qест - Qбк (3.3)
Для ТП-2:
Qд = Qест д - Qбк = 84 – 75 = 9 кВАр;
Qв = Qест в - Qбк = 40 – 30 = 10 кВАр.
Для других ТП
некомпенсированная реактивная мощность рассчитывается аналогично. Результаты
расчетов представлены в таблице 4.
Рассчитывают полную нагрузку трансформаторных подстанций с
учетом компенсации
S=
. (3.4)
Для ТП-1: Sд =
кВА;
Sв =
кВА.
Для других ТП полная нагрузка трансформаторных подстанций
с учетом компенсации рассчитывается аналогично.
Определяем
коэффициенты мощности после компенсации по формулам (2.7)…(2.11).
Для ТП-1: соsjд =
;
cosjв =
.
Данные по компенсации
реактивной мощности сводятся в таблицу 4.
Сводные
данные после компенсации, занесены в таблицу 3.
Таблица 4 Сводные данные
по компенсации реактивной мощности
|
ТП
|
Расчетная мощность, квар
|
|
естественная
|
для компенсации
|
БК
|
расчетная
|
|
Qест
д
|
Qест
в
|
Qк
д
|
Qк
в
|
Qбк
д
|
Qбк
в
|
Qд
|
Qв
|
|
ТП-1
|
40
|
-
|
28.2
|
-
|
30
|
-
|
10
|
-
|
|
ТП-2
|
84
|
40
|
47,7
|
21,9
|
75
|
30
|
9
|
10
|
|
ТП-3
|
40
|
51
|
20,2
|
23,9
|
30
|
50
|
10
|
1
|
|
ТП-4
|
-
|
-
|
-
|
-
|
-
|
-
|
-
|
-
|
|
ТП-5
|
52,5
|
32
|
32,6
|
17,7
|
50
|
30
|
2,5
|
2
|
|
ТП-6
|
44
|
-
|
22,2
|
-
|
40
|
-
|
4
|
-
|
4 Выбор потребительских трансформаторов
Номинальную мощность трансформаторов 6/0,4; 10/0,4;
20/0,4 и 35/0,4 кВ выбираем по экономическим интервалам нагрузок в зависимости
от расчетной полной мощности, среднесуточной температуры охлаждающего воздуха и
вида нагрузки.
Для рассматриваемого
примера на ТП1 и ТП5 необходимо установить трансформаторы мощностью 40 кВА и
100 кВА.
Для всех ТП выбираем
трансформаторы и записывают их основные технические данные (таблица 5).
Таблица 5 Основные технические
данные трансформаторов 10 / 0,4 кВ
|
№ ТП
|
Sрасч,
кВа
|
Тип
|
Sт
ном, кВа
|
Uвн
ном, кВ
|
Uнн
ном , кВ
|
DРхх,
кВт
|
DРк,
кВт
|
Uк%
|
ПБВ %
|
DW, кВт/ ч год
|
|
1
|
37,2
|
ТМ
|
63
|
10
|
0,4
|
0,265
|
1,28
|
4,5
|
±2
× 2,5
|
2767,2
|
|
2
|
110,4
|
ТМ
|
160
|
10
|
0,4
|
0,565
|
2,65
|
4,5
|
±2
× 2,5
|
6715,7
|
|
3
|
82
|
ТМ
|
100
|
10
|
0,4
|
0,365
|
1,97
|
4,5
|
±2
× 2,5
|
4919,4
|
|
4
|
130,4
|
ТМ
|
160
|
10
|
0,4
|
0,565
|
2,65
|
4,5
|
±2
× 2,5
|
7413,7
|
|
5
|
60,3
|
ТМ
|
63
|
10
|
0,4
|
0,265
|
1,28
|
4,5
|
±2
× 2,5
|
3845,8
|
|
6
|
140,7
|
ТМ
|
160
|
10
|
0,4
|
0,565
|
2,65
|
4,5
|
±2
× 2,5
|
7818,3
|
|
Итого
|
|
|
706
|
|
|
|
|
|
|
30480,1
|
Потери энергии в
трансформаторах определяют по формуле
(4.1)
где DРх и DРк — потери мощности холостого хода и короткого
замыкания в трансформаторе;
t — время максимальных потерь,
определяют по зависимости t=f (Tmax), где время использования
максимальной мощности Tmax выбирают в зависимости от характера нагрузки по таблице 6
Таблица 6
Зависимость Тmax и t от расчетной нагрузки
Ррасч,
кВт
|
Характер
нагрузки
|
|
Коммунально-бытовая
|
производственная
|
смешанная
|
|
Время,ч
|
|
Tmax
|
t
|
Tmax
|
t
|
Tmax
|
t
|
|
0...10
|
900
|
300
|
1100
|
400
|
1200
|
500
|
|
1200
|
500
|
1500
|
500
|
1700
|
600
|
|
20...50
|
1600
|
600
|
2000
|
1000
|
2200
|
1100
|
|
50...100
|
2000
|
1000
|
2500
|
1300
|
2800
|
1500
|
|
100...250
|
1200
|
2700
|
1400
|
3200
|
2000
|
|
250...300
|
2600
|
1400
|
2800
|
1500
|
3400
|
2100
|
|
300…400
|
2700
|
1450
|
2900
|
1530
|
3450
|
2120
|
|
400…600
|
2800
|
1500
|
2950
|
1600
|
3500
|
2150
|
|
600...1000
|
2900
|
1600
|
3000
|
1630
|
3600
|
2200
|
|
|
|
|
|
|
|
|
|
|
|
|
|
Так например, для ТП-1 принимаем в соответствии с таблицей
6 для производственного характера нагрузки для Ррасч= 30,38 кВт
= 1000 часов, тогда потери
на ТП-1 определятся как:
кВт/ч
год.
Для других ТП потери энергии рассчитывается аналогично.
Результаты расчета нагрузок сводятся в таблицу 5.
5. Электрический расчет линии напряжением 10 кВ
Электрический расчет воздушных линий (BЛ)
производится с целью выбора марки и сечения проводов и определения потерь
напряжения и энергии (таблица 5.1). Приведем пример расчета линии по схеме
(рисунок 5.1.)
Определим нагрузку в точке 3
S3 = S4
+ S5 = 92 + j16 +
145 + j16 = 237 + j32 кВА.
Раскольцуем сеть и получим расчётную схему (рисунок 5.2).
Рисунок 5.1 Расчётная
схема ВЛ 10 кВ
Рисунок 5.2
Раскольцованная сеть
Определим потоки мощности
на головных участках цепи:
S
=
, (5.1)
кВА;
кВА.
Определим потоки мощности
на остальных участках сети по первому закону Кирхгофа:
S1-2
= S0/-1 – S1 = 207,2 + j24 – (35,8
+ j10) = 171,4+ j14 кВА;
S2-3
= S1-2 – S2 = 171,4 + j14 – (110 + j9) = 61,4 + j5 кВа;
S8-6
= S0//-8 – S8 = 348,8 + j 39,5 –
(139 + j22) = 209,8 + j17,5 кВа;
S6-3
= S8-6 – S6 = 209,8+ j17,5 – (60,2 + j2,5) = 149,6 + j15
кВа.
Нанесем полученные потоки
мощности на схему 5.3 и определим точку потокараздела для активной и реактивной
мощности, в данном случае имеется одна точка потокараздела как для активной,
так и для реактивной мощности.
Рисунок 5.3 Определение
точки потокораздела:
2
– точка
потокораздела; ® -
направление потока мощности.
Таблица 7 Электрический
расчет ВЛ 10 кВ
|
Параметры
|
0’ - 1
|
1 - 2
|
2 - 3
|
0’’ - 8
|
8 - 6
|
6 – 3
|
|
L, км
|
3,3
|
3,7
|
1,7
|
1,2
|
2,5
|
3,2
|
|
Pmax,
кВт
|
207,2
|
171,4
|
61,4
|
348,8
|
209,8
|
149,6
|
|
Qmax,
квар
|
24
|
14
|
5
|
39,5
|
17,5
|
15
|
|
Smax,
кВА
|
208,6
|
171,97
|
61,6
|
351,03
|
210,5
|
150,4
|
|
Imax,
А
|
13
|
10
|
4
|
21
|
13
|
9
|
|
Марка провода
|
АС35
|
АС25
|
АС25
|
АС35
|
АС35
|
АС25
|
|
DUуч.max, %
|
0,81
|
0,5
|
0,08
|
0,5
|
0,62
|
0,39
|
|
DUГПП уч.max,
%
|
0,81
|
1,31
|
1,39
|
1,89
|
2,51
|
2,9
|
|
DWL, кВТч/год
|
2684,63
|
1201,2
|
81,9
|
2783,7
|
2033,6
|
841,5
|
По экономическим
интервалам нагрузок выбираем провода (таблица 9).
Таблица 9 Экономические
интервалы нагрузок
|
I р max, А
|
0…12
|
12…22
|
22…31
|
31…47
|
47…70
|
70
|
|
Провод
|
АС25
|
АС35
|
АС50
|
АС70
|
А95
|
А120
|
Принимаем провод АС 35 на
участках: 0-1, 8-6, 0-8.
Принимаем провод АС 25 на
участках: 1-2,2-3, 6-3.
Выбранное сечение
проверяется по допустимому нагреву /5/ (таблица 10)
I доп > I max, (5.3)
Таблица 10 Допустимый ток
провода по нагреву
|
Провод
|
А16
|
А25
|
А35
|
А50
|
А70
|
А95
|
А120
|
АС11
|
АС12
|
АС25
|
АС25
|
АС50
|
АС70
|
|
I доп, А
|
105
|
135
|
170
|
215
|
265
|
320
|
375
|
80
|
105
|
130
|
130
|
210
|
265
|
Для провода АС 35 Iдоп=170 А - условие выполняется.
Для провода АС 25 Iдоп=130 А - условие выполняется.
Для провода АС 50 Iдоп=210А – условие выполняется.
Для выбранных проводов
выписываем сопротивления 1 км: активное ro и индуктивное хо. Для
определения хо принимаем среднее геометрическое расстояние между
проводами (для ВЛ 10 кВ принимаем Дсp » 1500 мм). Данные по проводам сводят
в таблицу 11.
Таблица 11 Данные по
проводам
|
Провод
|
Д ср, мм
|
Ro
Ом/км
|
Хо, Ом/мм
|
I max, А
|
I доп, А
|
|
АС 25
|
1500
|
1,146
|
0,391
|
8,1
|
130
|
|
АС 35
|
1500
|
0,773
|
0,402
|
17
|
170
|
Рассчитываем потери
напряжения на участках в процентах по формуле:
, (5.4)
Например, для участка
1-2:
Для других участков
потери напряжения на участках в процентах рассчитываются аналогично. Результаты
расчета представлены в таблице 7.
Определяем потери
электрической энергии на участках
, (5.5)
где t определяют по таблице 6.
Например, для участка
1-2:
кВтч/год;
Для других участков
потери электрической энергии на участках в процентах рассчитываются аналогично.
Результаты расчета представлены в таблице 7.
6. Оценка качества
напряжения у потребителей
Для оценки качества
напряжения у потребителей составляем таблицу отклонений напряжения (таблица
12), из которой определяем допустимую потерю напряжения DUдоп в линиях 0,38 кВ. Таблицу составляем
для ближайшей, расчетной и удаленной трансформаторных подстанций.
ТП6 является ближайшей,
ТП5 расчетной, а ТП4 удаленной подстанцией.
Таблица 12 Оценка
качества напряжения у потребителей
|
Элемент электро -
передачи
|
Величи-на, %
|
Ближайшая ТП
10 / 0,4
|
Удаленная ТП 10 / 0,4
|
Расчетная ТП
10 / 0,4
|
|
Нагрузка, %
|
|
100
|
25
|
100
|
25
|
100
|
25
|
|
Шины 10 кВ ГПП
|
V
|
+5
|
+1
|
+5
|
+1
|
+5
|
+1
|
|
Линия 10 кВ
|
DU
|
-1,89
|
-0,47
|
-1,39
|
-0,35
|
-2,51
|
-0,63
|
|
Трансформатор 10 / 0,4:
|
|
|
|
|
|
|
|
|
потери напряжения
|
DU
|
-2,01
|
-0,5
|
-1,83
|
-0,46
|
-2,1
|
-0,53
|
|
надбавка конструктив-ная
|
V
|
+5
|
+5
|
+5
|
+5
|
+5
|
+5
|
|
Надбавка регулируемая
|
V
|
0
|
0
|
0
|
0
|
0
|
0
|
|
Шины 0,4 кВ (£+7,5 %)
|
V
|
6,1
|
9,03
|
6,78
|
9,19
|
5,39
|
8,84
|
|
Линия 0,38 кВ:
|
DU
|
-11,1
|
-
|
-11,78
|
-
|
-10,39
|
-
|
|
Наружная часть
|
DUдоп
|
8,6
|
-
|
4,28
|
-
|
7,89
|
-
|
|
Внутренняя часть
|
DU
|
-2,5
|
-
|
-2,5
|
-
|
-2,5
|
-
|
|
Удаленной потребитель
|
Vдоп
|
-5
|
+5
|
-5
|
+5
|
-5
|
+5
|
Из таблицы 12 выясняем,
есть ли необходимость в применении дополнительных технических средств для
поддержания напряжения у потребителей в допустимых пределах.
Отклонение напряжения в
любой точке электропередачи определяем как
Vк = SV + SDU, (6.1)
где SV и SU — сумма надбавок и сумма потерь напряжения от ГПП до
рассматриваемой точки с учетом знака.
В качестве минимального
рассматривают обычно режим 25 %-й нагрузки, в котором потери напряжения могут
быть приняты как 1/4 часть от максимальных потерь.
В потребительских
трансформаторах рассчитываем потери напряжения, %:
; (6.2)
где Р и Q — мощности, протекающие через
трансформатор (дневные или вечерние) полная мощность которых больше;
Uнoм — номинальное напряжение трансформатора (обмотки
низшего или высшего напряжений);
RТ и ХТ — активное и реактивное сопротивление
трансформатора:
; (6.3)
; (6.4)
где Uт.ном — берется то же напряжение, что и в
(5.2), В;
Sт.ном — номинальная мощность
трансформатора, ВА.
Например, для ТП-6:
Ом;
Ом;
.
Для других
трансформаторных подстанций 10/0,4 кВ потери напряжения рассчитываются
аналогично. Результаты расчета представлены в таблице 12.
7. Электрический
расчет линий напряжением 0,38 кВ
В наружных линиях 0,38 кВ
провода выбираем по допустимой потере напряжения или по экономическим
интервалам нагрузок. Выбранные провода проверяем по допустимой потере
напряжения и по нагреву.
Расчет линий 0,38 кВ производим
по данным нагрузок таблицы 13.
Таблица 13 Расчет линий
напряжением 0,38 кВ
|
Потребители
|
Кол-во
|
К0
|
Рдi, кВт
|
Рвi, кВт
|
Qдi, квар
|
Qвi, квар
|
Рд, кВт
|
Рв, кВт
|
Qд,
квар
|
Qв,
квар
|
Sд, кВА
|
Sв,
кВА
|
Iд,
А
|
Iв,
А
|
|
1
|
Лесопильный цех с пилорамой Р-65
|
1
|
1
|
17
|
1
|
13
|
-
|
17
|
1
|
13
|
-
|
21
|
1
|
31,8
|
1,5
|
|
2
|
Зернохранилище на 500т
|
1
|
1
|
35
|
36
|
35
|
32
|
35
|
36
|
35
|
32
|
49,5
|
48
|
75
|
72,7
|
|
Итого:
|
|
|
|
|
|
|
|
|
|
|
70,5
|
49
|
406,8
|
74,2
|
|
Линия Л2
|
|
|
3
|
Зернохранилище на 1000т
|
3
|
0,8
|
3
|
1
|
2
|
-
|
7,2
|
2,4
|
4,8
|
-
|
8,7
|
2,4
|
13,2
|
3,6
|
|
4
|
Столярный цех
|
1
|
1
|
15
|
1
|
10
|
-
|
15
|
1
|
10
|
-
|
18
|
1
|
27,3
|
1,5
|
|
Итого:
|
|
|
|
|
|
|
|
|
|
|
26,7
|
3,4
|
40,5
|
5,1
|
|
|
|
|
|
|
|
|
|
|
|
|
|
|
|
|
|
|
|
|
|
|
|
|
|
|
Выбор проводов в линии Л1
К линии Л1
подключен потребитель, имеющий крупный асинхронный электродвигатель, при
запуске которого протекают большие пусковые токи, вызывая значительные потери
напряжения. Поэтому для линии Л1 провода рекомендуется выбирать по
экономическим интервалам.
Выбираем
провод в зависимости от нагрузки (таблица 14). В таблице 14 данные по выбору
проводов приведены с учетом коэффициента кд, учитывающего динамику
роста нагрузок на пятилетнюю перспективу.
Таблица
14 Интервалы экономических нагрузок для выбора проводов в линиях 0,38 кВ
|
S расч, кВА
|
0…12
|
12…17
|
17…24
|
24…33
|
33…50
|
50…70
|
70
|
|
Провод
|
А 16
|
А 25
|
А 35
|
А 50
|
А 70
|
А 95
|
А120
|
В зависимости
от нагрузки выбираем
провод А240
Для выбранных
проводов выписываем сопротивления 1 км: активное ro и индуктивное хо;
для определения хо необходимо принять среднее геометрическое
расстояние между проводами (для ВЛ 0,38 кВ принимаем Дсp »
600 мм).
r0 = 0,122 Ом / км;
х0 = 0,145 lg (2×600) / 20 +0,016 = 0,274 Ом;
dпр = 20 мм.
Выбранное сечение
проводов проверяем по допустимому нагреву по (5.3), и по таблице10.
I доп > I max,
590 А > 76 А.
Условие 5.3 выполняется.
Рассчитываются потери
напряжения в линии:
; (7.1)
< DUдоп = 10,76
%;
Условие
выполняется,окончательно принимаем провод А240
Выбор проводов в линии Л2
Сечения проводов в линии
Л2 рекомендуется выбирать по допустимой потере напряжения, причем различными на
участках Л0-1 и Л1-2.
Определяем допустимую
потерю напряжения на участке Л0-1 (в процентах):
; (7.4)
где S0-1 и S1-2 — полные мощности участков Л0-1 и Л1-2,
дневные или вечерние, которые вызывают большую потерю напряжения в Л2.
Определяем допустимую потерю
напряжения на участке Л1-2:
; (7.5)
.
При этом должно быть
DUдоп.0-1 + DUдоп.1-2 = DUдоп ;
-6,31+(-4,08) = -10,39.
Выбираем провод на
участке Л0-1:
1. Задаемся реактивным
сопротивлением 1 км провода в линиях 0,38 кВ x0= 0,4 Ом/км.
2. Определяется
составляющая потери напряжения в реактивных сопротивлениях (в процентах):
; (7.6)
где Q — реактивная мощность, ВАр, дневная
или вечерняя, которой соответствует большая полная мощность.
;
3. Определяется
допустимая составляющая потери напряжения в активных сопротивлениях (в
процентах):
; (7.7)
DUа.доп = 10,39 – 2,13 =8,26 %;
4.Расчетное сечение
провода:
;(7.6)
где g=32 м/(Ом×мм2) — удельная
проводимость алюминия.
.
5.Выбирается стандартное
сечение провода
Fстанд ³ Fрасч; (7.7)
Выбираем провод АС35:
Fстанд = 34,3 мм2;
dпр = 7,5 мм ;
r0 = 0,830 Ом / км;
x0 = 0,773 Ом /км.
6. Выбранное сечение
проводов проверяем по допустимому нагреву по формуле (5.3) с использованием
данных таблицы 10.
;
130 А > 13,2 А.
7. Определяем фактические
потери напряжения на участках:
< DUдоп.0-1 = 6,31%;
Так как условие не
выполняется, увеличим сечение провода и выберем провод АС 50 :
Fстанд = 49,5 мм2;
dпр = 9 мм ;
r0 = 0,576 Ом / км;
x0 = 0,592 Ом /км.
< DUдоп.0-1 = 6,31%;
Условие выполняется, окончательно
принимаем провод АС50
Расчет и выбор провода на
участке 1-2 линии Л1-2 проводятся аналогично.
8. Проверка сети на
успешный запуск электродвигателей
Нормами определены
следующие допущения номинального напряжения на зажимах электродвигателя:
а) при длительной
работе в установившемся режиме: V =
+5%;
б) у
электродвигателей, присоединенных к электрическим сетям общего назначения –5%,
+10%;
в) при длительной
работе в установившемся режиме для отдельных особо удаленных электродвигателей
в номинальных условиях допускаются, снижения напряжения на –8…-10%, а в
аварийных –10…-12%;
г) при
кратковременной работе в установившемся режиме, например, при пуске соседних
электродвигателей на –20…-30%;
д) на зажимах
пускаемого электродвигателя: при частых пусках –10%, при редких пусках –15%;
В тех случаях, когда
начальный момент не превышает 1/3 Мном рабочей машины, допускается
снижение напряжения на 40%. Это, как правило, приводы с ременной передачей,
приводы насосов и вентиляторов.
Потери напряжения в сети
при пуске электродвигателя от трансформатора или генератора приблизительно
составляют:
; (8.1)
где zc – полное сопротивление сети, Ом;
zэд - сопротивление электродвигателя в пусковом режиме, Ом:
; (8.2)
где k – кратность пускового тока;
Iн – ток номинальный.
1. Выбираем
электродвигатель 4А180S2У3:
Р0 = 22 кВт; k = 7,5; cos j = 0,91; h = 88,5 %.
Определяем номинальный
ток:
; (8.3)
;
Сопротивление
электродвигателя в пусковом режиме:
Ом.
При пуске электродвигателя
от сети с трансформатором:
zc = zл + zтр ; (8.4)
где Uк% - напряжение короткого замыкания
трансформатора ТП5, Uк% = 4,5 %.
Ом.
Выбираем провод А240:
Fстанд = 239 мм2;
dпр = 20 мм;
r0 = 0,12 Ом / км;
x0 = 0,274 Ом / км.
; (8.5)
Z п =0,478 Ом
zc = 0,857 Ом.
Потери напряжения в сети
при пуске электродвигателя:
<40 %.
Условие не выполняется, установим
продольно – емкостную компенсацию реактивного сопротивления.
Необходимая мощность
конденсаторов
где Sрасч = 70,5 МВА
k – коэффициент, определяемый по
формуле
где ДUC – надбавка напряжения, которую
желательно получить.
Примем ДUC = 10%
Определяем реактивное
сопротивление
где
<40 %.
Условие выполняется,
окончательно принимаем провод на участке 0-1 А240 с продольно емкостной
компенсацией
Заключение
В ходе выполнения
курсового проекта был произведен расчет кольцевой линии 10 кВ и линии 0,38 кВ
для электроснабжения потребителей населенного пункта. Были рассчитаны
электрические нагрузки линий 0,38 кВ, выбраны конденсаторные батареи для
компенсации реактивной мощности. Произведен выбор потребительских
трансформаторов 10/0,4 кВ типа ТМ с номинальными мощностями Sном: 63, 100, 160 кВА, оценка качества
электрической энергии у потребителей. Выполнен электрический расчет ВЛ 10
выбраны провода марок АС-35 на участках (0-1,0-8,8-6) и АС-25 на участках
(1-2,2-3,6-3), для 0,38 кВ выбраны провода марки А240 с продольно-емкостной
компенсацией.
Библиографический список
1. Методические
указания к курсовому проекту по дисциплине «Электроснабжение сельского
хозяйства». Составители Андрианова Л.П., Набиева Е.Б. Уфа: БГАУ, 2005.-72с.
2.
Правила устройства электроустановок. М. – Л.: Энергия, 2000.
3.
Справочник по сооружению сетей 0,4 – 10 кВ/ Под ред. А. Д. Романова. М.:
Энергия, 1974.
4.
Электроснабжение сельскохозяйственного производства. Справочник/ Под ред. И.А.
Будзко. М.: Колос, 1977.
5.Будзко
И.А. и др. Электроснабжение сельского хозяйства/ И.А.Будзко, Т.Б.Лещинская,
В.И.Сукманов. – М.:Колос, 2000. – 536 с.: ил.
6.
Савченко П.И. и др. Практикум по электроприводу в сельском хозяйстве/
П.И.Савченко, И.А.Гаврилюк, И.Н. Земляной и др. – М.: Колос, 1996. – 224 с.:
ил.
7.
Ерошенко Г.П., Медведько Ю.А., Таранов М.А. Эксплуатация энергооборудования
сельскохозяйственных предприятий. – Ростов-на-Дону: ООО «Терра» .2001.-592 с.
8.
Пястолов А.А., Геращенко Г.В., Ерошенко Г.П. Эксплуатация электрооборудования.
– М.: Агропромиздат, 1996. – 327 с.
9.
Алиев И.И. Электротехнический справочник. – 4-е изд., испр. – М.: ИП РадиоСофт,
2002. – 384 с.: ил.
10. Пястолов А.А. Монтаж,
эксплуатация и ремонт электрооборудования. – М.: Колос.1981. – 334 с.