Проектирование электроснабжения участка
Чувашский Государственный
Университет
имени
И.Н.Ульянова
Энергетический
институт
Электротехнический
факультет
Кафедра АЭТУС
КУРСОВОЙ
ПРОЕКТ
ПО
ДИСЦИПЛИНЕ:
ЭЛЕКТРОСНАБЖЕНИЕ
ЭТУ
НА ТЕМУ:
ПРОЕКТИРОВАНИЕ
ЭЛЕКТРОСНАБЖЕНИЯ УЧАСТКА
Выполнил: студент
группы ЭТ-51-02
Константинов Д.В.
Проверил: преподаватель
Лавин И.А.
Чебоксары - 2006
г.
РЕФЕРАТ
Пояснительная записка
состоит из 35 страниц, включает в себя 11 иллюстраций, использовано 6
источников.
ПЕЧЬ, КРИСТАЛЛИЗАТОР,
ШИНА, ПОДДОН, ОТЛИВКА.
В данном курсовом проекте
мною было спроектировано электроснабжение участка цеха включающего в себя 2 печи
электрошлакового переплава, для получения слитка весом 0,25т, флюсоплавильную
печь У-560. Был составлен индивидуальный и групповой график нагрузки участка.
Разработана схема электроснабжения участка, выбрано силовое оборудование ЭТУ.
Рассчитаны токи короткого замыкания на шинах печной подстанции. Разработана
схема управления, защиты и сигнализации. Подобраны контрольно-измерительные
приборы.
СОДЕРЖАНИЕ
РЕФЕРАТ
СОДЕРЖАНИЕ
ВВЕДЕНИЕ
1.ТЕХНИЧЕСКАЯ ХАРАКТЕРИСТИКА
2.ПЛАН УЧАСТКА ЦЕХА
3.ИСХОДНЫЕ ДАННЫЕ
4.ОПИСАНИЕ ТЕХНОЛОГИЧЕСКОГО ПРОЦЕССА
5.ЭЛЕКТРОШЛАКОВЫЕ КАК ПОТРЕБИТЕЛИ ЭЛЕКТРОЭНЕРГИИ.
6.РАСЧЁТ ГРУППОВОГО ГРАФИКА СИЛОВОЙ НАГРУЗКИ УЧАСТКА
7.РАСЧЁТ ТОКОВ КОРТКОГО ЗАМЫКАНИЯ НА КОМПЛЕКТНОЙ
ТРАНСФОРМАТОРНОЙ ПОДСТАНЦИИ
8.ВЫБОР КОМПЛЕКТНОЙ ТРРАНСФОРМАТОРНОЙ ПОДСТАНЦИИ
9.РАСЧЁТ ТОКОВ КОРОТКОГО ЗАМЫКАНИЯ НА ШИНАХ ПЕЧНОЙ ПОДСТАНЦИИ
10.КОМПЛЕКТНАЯ ТРАНСФОРМАТОРНАЯ ПОДСТАНЦИЯ
11.ВЫБОР ОБОРУДОВАНИЯ
12.РАСЧЁТ ПАРАМЕТРОВ СРАБАТЫВАНИЯ РЕЛЕЙНОЙ ЗАЩИТЫ
ЗАКЛЮЧЕНИЕ
СПИСОК ИСПОЛЬЗУЕМОЙ ЛИТЕРАТУРЫ
ВВЕДЕНИЕ
В настоящее время большое
внимание уделяется разработке тех видов техники и технологии, которые
обеспечивают значительную экономию сырьевых энергетических и трудовых ресурсов.
В связи с этим большое значение приобретает развитие электротермических
технологий и установок ЭТУ.
В ряде случаев ЭТУ
являются специфическими приёмниками электроэнергии. Зачастую они предъявляют
повышенные требования к надёжности и стабильности электроснабжения. Поэтому их
проектировка и эксплуатация требует особого подхода. Многие ЭТУ характеризуются
высоким уровнем генерируемых гармоник, резко колебательным режимом, повышенным
уровнем потребления реактивной мощности. Это заставляет принимать специальные
меры по предотвращению их влияния на качество электроэнергии в системах
электроснабжения промышленных предприятий.
Требования
научно-технического прогресса диктуют необходимость совершенствования промышленной
электроэнергетики: создание экономичных, надёжных систем электроснабжения
промышленных предприятий, развития электрических сетей и электрооборудования,
автоматизированных электроприводов и систем управления.
1.ТЕХНИЧЕСКАЯ
ХАРАКТЕРИСТИКА
|
Средняя мощность, кВА
|
145
|
|
Среднеквадратичная мощность, кВА
|
193,6
|
|
Заявленная мощность, кВА
|
396
|
|
Мощность Печи ЭШП-0,25, кВА
|
630
|
|
Мощность ФПП У-560, кВА
|
750
|
|
Количество печей ЭШП-0,25
|
2
|
|
Количество ФПП
|
1
|
|
Комплектная двухтрансформаторная
подстанция КТП-1000
|
1
|
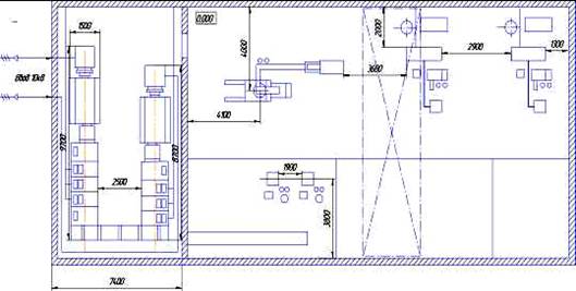
2.ПЛАН УЧАСТКА
ЦЕХА
Рисунок.1.- План участка
цеха
3.ИСХОДНЫЕ
ДАННЫЕ:
ГЭС:
Генератор: СВ395/250-12, U=10,5кВ.
Трансформатор:
ТДН-80000/110, 115/10,5.
ТЭЦ:
Генератор:
Т-12-2УЗ,10,5кВ.
Трансформатор: ТД-16000/35,
38,5/10,5.
Реактор:
РБ10-1600-0,25УЗ.
Трансформатор (Т-3):
ТДТН-25000/110, 115/38,5/11.
Линии:
ВЛ-1;ВЛ-2 – 20км.
ВЛ-3;ВЛ-4 – 10км.
К-1,К-2 - 3км.
Напряжение на
понизительной подстанции: 11кВ.
Рисунок.2.-
Схема питания участка
4.ОПИСАНИЕ
ТЕХНОЛОГИЧЕСКОГО ПРОЦЕССА
Схему
электрошлакового процесса можно представить следующим образом. В водоохлаждаемой
трубе (кристаллизатор), закрытой снизу водоохлаждаемым поддоном, находится
ванна жидкого шлака, в которую опускаются расходуемые заготовки – электроды.
Электроды и поддон подключается к источнику питания.
Ванна жидкого
металла является проводником с определенной проводимостью и при протекании
через неё тока играет роль нагревателя – преобразователя электрической энергии
в тепловую. Выделяемое тепло поддерживает высокую температуру шлака и оплавляет
расходуемые заготовки (электроды). Расплавленный электрод каплями стекает вниз,
образуя в кристаллизаторе ванну жидкого металла, которая постепенно затвердевая
формирует слиток. Для компенсации сплавления электродов, последние непрерывно
подаются вниз. Электрошлаковые печи обычно питаются от источников переменного
синусоидального тока промышленной частоты.
При контакте
стенки кристаллизатора с расплавленным шлаком на ней образуется тонкая корочка
застывшего шлака – шлаковый гарнисаж, который при наплавлении слитка
препятствует прямому контакту жидкого и твёрдого металла с поверхностью
кристаллизатора. Наличие шлакового гарнисажа оказывает глубокое влияние на
распределение тепла в печи и металлургические процессы.
Характер
застывания слитка при ЭШП коренным образом отличается от такового в обычной
изложнице, так как металл поступает в кристаллизатор непрерывно с небольшими
массовыми скоростями одновременно с его застыванием.
Поэтому в
кристаллизаторе ванна жидкого металла ограниченного объёма. Причём за счёт
изменения режима ЭШП можно обеспечить изменение скоростей наплавления и
кристаллизации металла. Это позволяет получать неизменную во времени плавки
конфигурацию жидкой металлической ванны, что создаёт условия для получения
равномерной структуры слитка по её высоте.
Электрошлаковый
переплав по своему принципу бездуговой процесс. Это связано с тем, что при
горении в шлаке дуги происходит ухудшение качества металла за счёт его
насыщения газами – продуктами разложения составляющих шлака. В связи с этим
дуговой режим при ЭШП считается аварийным. Время плавки на ЭШП разделяются на
основной и вспомогательный периоды. Основной период плавки, в процессе которого
происходит наплавление слитка, включает в себя переплав металла и вывод
усадочной. Последний служит для улучшения качества металла в верхней части
слитка, что позволяет снизить его обрезь и повысить выход годного металла. Для
осуществления вывода раковины вводимая в ванну мощность в конце плавки
постепенно снижается. Длительность периода переплава металла зависит от
химсостава переплавляемого металла, развеса слитка и химсостава шлака.
Во
вспомогательный период осуществляется подготовка печи к плавке и наведения в
кристаллизаторе ванны жидкого шлака. В этот период производятся следующие
подготовительные операции:
1. Остывание
слитка в кристаллизаторе после предыдущей плавки;
2.
Выгрузка слитка
и застывшего шлака из кристаллизатора и удаление их с печи;
3.
Снятие с печи
огарков электродов и установка новых электродов в электродержатель;
4.
Чистка
кристаллизатора и поддона;
5.
Окончательная
сборка печи (установка кристаллизатора, шайбы-затравки, центровка электродов и
т.д.)
Длительность
подготовительных операций на печах малой и средней ёмкости колеблется в
пределах 1,2-4,5ч. После их окончания приступают к периоду наведения шлаковой
ванны в кристаллизаторе. На печах ЭШП применяются твёрдый и жидкий старты. При
твёрдом старте шлак расплавляется непосредственно в кристаллизаторе печи
расходуемым электродом. При жидком старте шлак предварительно расплавляют во
флюсоплавильной печи, затем заливают в кристаллизатор либо сверху, либо
сифонным способом.
Шлаки для ЭШП
должны соответствовать определённым требованиям. Они должны обладать:
1.
Высокой
рафинирующей способностью, позволяющей добиваться максимального очищения
металла от примесей;
2.
Способностью формировать
гладкую поверхность слитка, не требующей дополнительной механической обработки;
3.
Достаточно
высоким удельным сопротивлением, что обеспечивает эффективность выполнения
шлаковой ванны роли приёмника и преобразователя электроэнергии.
Применение того
или иного шлака определяется конкретными технологическими условиями переплава
металла заданного химсостава. Так при ЭШП сталей и сплавов, содержащих
легкоокисляющиеся элементы, обычно применяется безкислородный шлак АНФ-1П; при
необходимости максимального очищения металла от серы используется шлак АНФ-6 и
т.д. При переплаве в глухие кристаллизаторы наиболее распространённым является
шлак АНФ-6; При переплаве с вытяжкой слитка или перемещением кристаллизатора
обычно используется шлак типа АНФ-28 или АНФ-29.
В процессе
ЭШП происходит значительное улучшение качества металла вследствие:
1. Исключения
взаимодействия жидкого металла с атмосферой и футеровкой при его выплавке и
формирование слитка;
2.
Обработки жидкого
металла высокоактивным расплавленным шлаком;
3.
Замедленной и
направленной кристаллизацией металла в водо-охлаждаемом кристаллизаторе.
5.ЭЛЕКТРОШЛАКОВЫЕ
КАК ПОТРЕБИТЕЛИ ЭЛЕКТРОЭНЕРГИИ
Электрошлаковые печи
являются одними из основных агрегатов специальной электрометаллургии,
позволяющими получать слитки и отливки высокого качества. Они широко
применяются на металлургических и машиностроительных заводах. Масса
выплавляемых слитков и отливок лежит в пределах от нескольких десятков
килограммов до сотен тонн. Для электрошлаковых процессов существует широкая
номенклатура печей различных конструкций с установленной мощностью от 630 до
15000 кВ·А. Электрошлаковые печи разделяются на металлургические печи
электрошлакового переплава (ЭШП), в которых получают гладкие слитки различных
фор сечения, и на печи электрошлакового литья (ЭШЛ), предназначенные для
получения отливок сложной формы.
Основным элементом
электрошлаковой печи является ванна расплавленного шлака, который является
электролитом и имеет достаточно высокую ионную проводимость. Электрошлаковый
процесс в принципе бездуговой, что обеспечивается подбором питающего ванну
напряжения (35-55)В, положением электрода в шлаке и уровнем вводимой мощности.
Поэтому электрошлаковая печь как приёмник электроэнергии представляет собой
печь сопротивления косвенного действия с жидким нагревателем.
Обычно электрошлаковые
печи питаются переменным током промышленной частоты. Это связано с тем, что на
переменном токе интенсивно развито рафинирование металла шлаком.
Для улучшения
электрических характеристик крупных печей, а в последнее время и печей средней
ёмкости иногда используется переменный ток пониженной частоты (2-10) Гц. Обычно
питание таких установок производится реверсивным постоянным током с помощью
двух преобразователей типа ТВ-9. Вообще возможно питание не только
симметричным, но и несимметричным током, в результате чего возникает
управляемая постоянная составляющая тока, которая может быть использована для
электрохимической оптимизации металлургических процессов.
Однако применение многоамперных
тиристорных преобразователей усложняет и удорожает установку, снижает
надёжность её работы. Поэтому пока наиболее распространённым родом тока
является переменный ток промышленной частоты. Питание электрошлаковых печей
производятся в зависимости от мощности либо от цеховой сети напряжением 0,4 кВ,
либо от высоковольтных печных подстанций напряжением 6-10 кВ через специальные
понизительные трансформаторы.
Одной из основных схем
питания является схема электрод-поддон. Из-за низких вторичных напряжений в
печах протекают значительные вторичные токи, что вызывает необходимость иметь
сложные токоподводы со сравнительно низкими электротехническими
характеристиками. Особенностью токоподводов печей ЭШП по сравнению с ДСП
является большая роль активных и реактивных сопротивлений электрода в общем
сопротивлении токоподвода. Значительная реактивность токоподвода определяет
низкие значения коэффициента мощности, который уменьшается с увеличением
развеса слитка. В результате этого выплавка слитков массой более 30-40 т. по
схеме электрод-поддон на переменном токе промышленной частоты применяется
редко.
Для снижения реактивности
многоэлектродных печей ЭШП широко используются m/2 бифилярные схемы питания. Электрошлаковые печи с числом
электродов, кратным двум, могут питаться по двух фазной схеме, кратным шести,
по шестифазной. Во всех этих схемах осуществляется попарное бифилирование
электродов и ветвей короткой сети, что позволяет значительно снизить реактивное
сопротивление токоподводов.
Для компенсации
реактивной мощности и повышения cosφ до требуемой системой значения на питающих шинах распредустройств
устанавливаются батареи статических конденсаторов.
Электрошлаковые печи как
электротехнологические агрегаты имеют циклический характер работы. Цикл плавки
разбивается на «горячее» время, в течение которого происходит переплав
электрода, и «холодное», которое затрачивается на остывание слитка, наведение
шлаковой ванны и подготовительные операции. Коэффициент включения зависит от
развеса слитка и технологических особенностей плавки.
Печи малой и средней
ёмкости обычно устанавливаются группами по 5-10 и более печей. За счёт сдвига
циклов их работы коэффициент включения электрошлаковой нагрузки цеха
приближается к единице.
Нагрузка электрошлаковой
печи при правильно выбранном электрическом режиме является спокойной, без КЗ и
бросков тока, исключая кратковременный начальный этап периода наведения
шлаковой ванны при «твёрдом старте». В период переплава кривые тока и
напряжения промодулированны переменным сигналом с частотой 1-5Гц, отражающим
процесс изменения проводимости шлаковой ванны, при нарастании и отрыве капель
электродного металла. Из-за его небольшой величины влияние капельного переноса
на энергетический режим и питающую сеть незначительно.
Во время плавки нагрузка
печи является неравномерной. Это связано с тремя основными факторами –
нестационарностью теплового режима в начальный период плавки, изменению
геометрических размеров слитка и уменьшением сопротивления подводящей сети при
сплавлении электрода. На рисунке 1 показана типичная кривая изменения мощности
печи при переплаве электродов в гладкий кристаллизатор со значительной
конусностью, Из него видно, что во время плавки вводимая мощность закономерно
уменьшается, особенно сильно в период выведения усадочной раковины.
Рисунок.3.-Изменение
мощности электрошлаковой печи во время плавки.
Большинство
электрошлаковых печей малой и средней являются однофазной нагрузкой, Для
уменьшения влияния несимметрии нагрузки принимаются меры по равномерному
распределению однофазных печей по фазам сети, что обычно возможно в цехах ЭШП и
ЭШЛ из-за значительного количества установок. Сложнее обстоит дело с отдельно
установленными крупными печами. В этих случаях необходимо применение различных
симметрирующих устройств на стороне высокого напряжения трансформатора.
Электрошлаковые установки требуют высокой надёжности электропитания. При
перерыве питания, длительность которого зависит от развеса слитка, нарушения
структуры слитка становится достаточным для его отбраковки. Поэтому
электрошлаковые печи относятся ко второй категории по надёжности питания.
Однако установки обеспечивающие водоснабжение печей ЭШП и ЭШЛ, относятся к
потребителям первой категории, так как перерыв в водоохлаждении поддонов,
кристаллизаторов и дорнов может привести к их прожогу, взрыву печи или выплеску
шлака и металла, опасному для жизни.
Характер воздействия
колебаний напряжения на качество слитка и отливки определяется динамическими
характеристиками электрошлаковой печи. Колебания напряжения вызывают колебания
мощности шлаковой ванны с удвоенной частотой. Такие колебания ПСН
трансформатора отработать не могут. Воздействие колебаний мощности на качество
слитка и отливки определяется возникающими при этом колебаниями температуры
шлаковой ванны Θш, скорости оплавления металла G, фронта кристаллизации слитка Кфр
и толщины шлакового гарнисажа δг. Последние приводят к
изменению диаметра наплавляемого слитка и возникновению гофр и пережимов.
Динамические
характеристики этих возмущений описываются передаточными функциями:
;
;
;
.
Где
- оперативные относительные
отклонения параметров f;
- относительные коэффициенты передачи при
воздействии на температуру, скорость плавления и толщину гарнисажа , мощности;
- коэффициент передачи при
воздействии скорости плавки на коэффициент фронта кристаллизации
слитка(металла);
-
постоянные времени шлаковой и жидкой металлической ванн и шлакового гарнисажа.
Электрошлаковая печь
представляет собой инерционный объект со значительными постоянными времени,
составляющими единицы и десятки минут. Известно, что такие объекты являются
эффективными высоких частот. Частоты среза, выше которых реакция составляет
менее 5% возмущения, составляет для всего спектра ёмкостей печей десятые доли
герца. Это свидетельствует о том, что промышленные электрошлаковые печи на
колебания напряжения практически не реагируют.
6.РАСЧЁТ
ГРУППОВОГО ГРАФИКА СИЛОВОЙ НАГРУЗКИ УЧАСТКА
Электрические нагрузки
характеризуют потребление электроэнергии отдельными приёмниками или группой
приёмников, предприятия в целом.
Правильное определение
ожидаемых электрических нагрузок при проектировании является основой для
рационального электроснабжения предприятия. От их значения зависит выбор всех
токоведущих элементов и аппаратов и технико-экономические показатели
проектируемой системы электроснабжения.
График нагрузки
рассчитываем для участка содержащего 2 печи электрошлакового переплава
рассчитанной для выплавки оси трактора массой 250 кг, и одной флюсоплавильной печи У-560.
Групповой график нагрузки
составляю с использованием индивидуальных графиков нагрузки ЭШП-0,25 и ФПП
У-560.
Рисунок.4.-
Индивидуальный график нагрузки печи ЭШП.
Рисунок.5.- Индивидуальный
график нагрузки ФПП У-560.
Цикл работы ЭШП-0,25
составляет 96 минут, из них на получение отливки уходит 28 минут, оставшиеся 68
минут составляет межплавочный простой. Для начала работы печи необходимо
наличие шлака, который получают в флюсоплавильной печи, исходя из этого можно
составить общий график нагрузки для ЭШП и ФПП который будет иметь вид:
Рисунок.6.- График
нагрузки печи ЭШП и ФПП.
Исходя из того, что на
участке предусмотрено 2 печи ЭШП, работа ведётся в три смены, за смену
необходимо совершить 2 плавки, перед каждой плавкой необходимо 8кг жидкого
флюса и необходимости получения максимального «сглаженного» группового графика
получили следующий вид группового графика нагрузки:

Для нахождения среднего
значения нагрузки необходимо определить площадь описываемую ломаной графика
нагрузки для этого разделим график на определённое количество прямоугольников.
где Si-мощность выбранного интервала
времени,
ti- интервал времени в течение которого
мощность остаётся постоянной.
S∑=8*100+5*125+7*140+(3*360+5*325+5*280+4*260+5*250+5*200+1*100)*2
= 800+625+980+(1080+1625+1400+1040+1250+1000+100)=17395 кВА*мин.
Среднее значение нагрузки
рср:
где t∑ -
суммарное время работы.
кВА.
Среднеквадратичные
нагрузки находим по формуле:
где t∑ -
суммарное время работы.
S∑кв=8*100^2+5*125^2+7*140^2+(3*360^2+5*325^2+5*280^2+4*260^2+5*250^2+5*200^2+1*100^2)*2
= 295325+4203650=4498975.
кВА.
Определение
коэффициентов:
Коэффициент
использования:
;
;
Коэффициент включения:
;
где tвкл- продолжительность включения
приёмника в цикле,
Тц –
продолжительность цикла.
.
Коэффициент загрузки:
;
.
Sзаявл= Smax 1.1=360∙1.1=396 кВА;
Коэффициент спроса:
;
.
7.РАСЧЁТ ТОКОВ
КОРТКОГО ЗАМЫКАНИЯ НА КОМПЛЕКТНОЙ ТРАНСФОРМАТОРНОЙ ПОДСТАНЦИИ
Для анализа работы
энергетических систем, выбора релейной защиты, средств ограничения токов
короткого замыкания и работоспособности электрического оборудования в аварийных
режимах рассчитываю предполагаемые токи короткого замыкания (К.З.). При расчёте
используются следующие допущения:
- в течение всего
процесса К.З. ЭДС всех генераторов системы совпадают по фазе;
- не учитывается
насыщение магнитных систем, что позволяет считать постоянными и независящими от
тока индуктивные элементы короткозамкнутой цепи;
- пренебрегаю
намагничивающими токами силовых трансформаторов;
- не учитываются ёмкости
всех элементов короткозамкнутой цепи, включая воздушные и кабельные линии;
- трёхфазная система
принимается симметричной.
Рисунок.8.- Схема
снабжения участка цеха.
Для расчёте тока К.З.
шинах печной подстанции, в начале рассчитаем токи при К.З. на шинах КТП. Для
этого зададимся базисными величинами.
кВ;
МВА;
Тогда
кА;
Определим сопротивления:
Для гидрогенератора типа
СВ395/250-12
Для трансформатора типа
ТДН-80000/110
Для воздушной линии
электропередачи ВЛ-1, ВЛ-2
Для турбогенератора типа
Е-12-2УЗ
Для реактора типа
РБ10-1600-0,25УЗ
Для трансформатора типа
ТД-16000/35
Для воздушной линии
электропередачи ВЛ-3, ВЛ-4
Для трансформатора типа
ТДТН-25000/110
Используя полученные
выражения получим значения относительных базисных сопротивлений для каждой
обмотки трансформатора.
Для кабельной линии
электропередачи К-1, К-2
Схема снабжения будет
иметь вид:
Рисунок.9.- Схема
замещения схемы снабжения.
Преобразуем
вышеприведенную схему:
1)

2)
где
;
3)
где
;
4)
где
;
;
;
5)
где
;
6)
где
;
7)
где
;
8)
где
;
;
;
9)
Для определения тока К.З.
от гидрогенераторов определим расчётное сопротивление:
Так как Х*р>3
тогда ток короткого от гидрогенератора найдём следующим образом:
кА;
Для определения тока
К.З.от турбогенераторов определим расчётное сопротивление:
для такого значения Х*р
Определим ток короткого
замыкания:
кА;
кА;
кА.
8.ВЫБОР
КОМПЛЕКТНОЙ ТРРАНСФОРМАТОРНОЙ ПОДСТАНЦИИ
На проектируемом участке
находятся следующие потребители электроэнергии:
|
Единица энергопотребления
|
Мощность, кВА(Sном)
|
|
2 печи ЭШП-0,25
|
630
|
|
1 печь флюсоплавильная У-560
|
750
|
|
6 асинхронных двигателей
|
5
|
;
где m-количество единиц энергопотребления;
кВА;
кВА;
кВА;
;
;
;
;
;
кВА.
Предполагаемые КТП:
1.
2 трансформатора
мощностью по 1000 кВА каждый.
Загрузка 856/2000=0,43
(43%),
Перегрузка 856/1000=0,856
В связи с тем, что трансформаторы
работают со значительной недогрузкой питание кранов и оборудования освещения
осуществляется от этих же трансформаторов.
9.РАСЧЁТ ТОКОВ
КОРОТКОГО ЗАМЫКАНИЯ НА ШИНАХ ПЕЧНОЙ ПОДСТАНЦИИ
Рисунок.10.- Схема замещения
схемы снабжения после трансформаторной подстанции.
Определяю сопротивления
схемы замещения:
;
;
;
;
;
Автоматический
выключатель Э-40.
Нахожу ток протекающий по
данному участку:
;
;
По табличным данным
определяю сопротивления:
Rавт1=0,08 мОм;
Rавт2=0,01 мОм;
Хавт1=0,02
мОм;
Автоматический
выключатель Э-06В.
Rавт3=0,08 мОм;
Rавт4=0,01 мОм;
Хавт2=0,02
мОм;
В качестве токоподвода
выбираю шинопровод магистральный алюминиевый ШМА-4, который рассчитан на
протекание токов до 1250 А.
;
.
;
где L – длина токоподвода;
мОм;
;
;
;
;
;
;
;
10.КОМПЛЕКТНАЯ
ТРАНСФОРМАТОРНАЯ ПОДСТАНЦИЯ
Комплектные
трансформаторные подстанции (КТП) являются наиболее массовыми потребительскими
подстанциями. Предназначенными непосредственно для электроснабжения приёмников
электроэнергии.
КТП внутренней установки
предназначены для электроснабжения промышленных предприятий, административных и
общественных зданий; они устанавливаются в цехах и других помещениях в
непосредственной близости от потребителей электроэнергии.
Для безопасности
эксплуатации в КТП внутренней установки используются специальные
трансформаторы: Масляные с герметизированными баком, трансформаторы,
заполненные негорючей жидкостью, а так же трансформаторы с сухой изоляцией.
Питание КТП-М-1000
осуществляется как по магистральной, так и по радиальной схеме
электроснабжения. Ввод со стороны высшего напряжения выполняется глухим или с
помощью выключателя, который обеспечивает отключение тока холостого хода и тока
нагрузки силового трансформатора.
Питание и защита сборных
шин на стороне низшего напряжения осуществляется автоматическими выключателями
ввода. Распределение электроэнергии по отходящим линиям, а так же защита их от
перегрузок и коротких замыканий осуществляется линейными автоматическими
выключателями, установленными в шкафах низкого напряжения.
Для от трансформатора на
стороне НН применяется шкаф ШНВ-3МТ, в которых установлен выключатель типа
Э-40-В, для отходящих линий применяются шкафы типа ШНЛТ-1М и ШНЛ-2МТ.
Для секционирования шин
НН для двухтрансформаторных КТП применяются шкаф типа ШНС-2МТ.
Количество шкафов НН на
один трансформатор не должно превышать семи. При установке выключателей серии
Электрон в шкафах, допускаются следующие максимально длительные токовые
нагрузки: Э40-В – 3500А; Э25-В – 2500А; Э16-В – 1600А; Э06-В – 630А. При этом
допускаются нормируемые для трансформаторов кратковременные нагрузки в течении
3ч на 30% или в течение 2ч на 40%,если при этом предварительная нагрузка шкафов
не превышала 70% их номинального тока.
Рисунок.11.- Общий вид
КТП.
11.ВЫБОР
ОБОРУДОВАНИЯ
Выбор высоковольтного
выключателя.
Ток протекающий через
него равен:
;
Выбираем выключатель типа
ВМП-10-20/1000УЗ.
Выключатель типа
ВМП-10-20/1000УЗ удовлетворяет предъявляемым к нему требованиям.
Выбор выключателя нагрузки:
Выбор выключателя
нагрузки осуществляется по току короткого замыкания на КТП который равен Iкз=7 кА, Iп0=6.64 кА, Iу=17.7 кА по этим параметрам выберем
выключатель типа ВНРп-10/400-10зп3У3.
Выбор плавкого
предохранителя:
Выбор плавкого предохранителя
осуществляется по току короткого замыкания на КТП который равен Iкз=7 кА, Iп0=6.64 кА, Iу=17.7 кА по этим параметрам выберем
плавкий предохранитель типа ПКТ101-10-5-12,5УЗ.
Выбор автоматических
выключателей:
Автоматический
выключатель на линии КТП: Э-40 Максимально допустимый ток для выключателя Э-40
40кА, ток короткого замыкания на рассматриваемом участке цепи равен 23 кА (23<40кА).
Секционный автоматический
выключатель на КТП: Э-25 Максимально допустимый ток для выключателя Э-25 55кА,
ток короткого замыкания на рассматриваемом участке цепи равен 23 кА (23<55кА).
Автоматический
выключатель на отходящих линиях КТП: Э-06В Максимально допустимый ток для
выключателя Э-06В 40кА, ток короткого замыкания на рассматриваемом участке цепи
равен 23 кА (23<40кА).
Выбираю амперметр РА1,
РА2 типа Э351, вольтметр РV1,PV2 типа Э350, Ваттметр W типа Н-395, Счётчик ватт-часов типа
СА4У-И672М.
Выбор трансформатора
тока:
Выбираем трансформатор
тока по высокой стороне ТА1 типа ТПЛК-10.
Выбираю трансформатор на
низкой стороне ТА2 типа ТПШЛ-10.
Выбор трансформатора
напряжения:
Выбираю трансформатор
типа НОСК-3У5.
В качестве токоподвода
электроэнергии к силовым трансформаторая от КТП выбираем шинопровод магистральный
алюминевый типа ШМА4. Данный шинопровод допускает протекание токов до 1250 А,
что превышает значение номинального тока для выбранного участка цепи которое
составляет 908 А.
Проверим выбранный
шинопровод по воздействию на него токов КЗ, шины должны удовлетворять условию
,
Таким образом, расчётное
механическое напряжение не превышает допустимого значения.
12.РАСЧЁТ
ПАРАМЕТРОВ СРАБАТЫВАНИЯ РЕЛЕЙНОЙ ЗАЩИТЫ
1.Максимально токовая
защита.
Максимально токовая
защита от токов короткого замыкания мгновенного действия, отстроенная по току
от эксплуатационных КЗ и бросков тока при включении установок. Ток срабатывания
реле:
;
где кн=1,2-1,5;
кт=0,18; ктт=200;Iэк=1,2∙4,85=5,82 кА;
2. Защита от перегрузки
действует с разными выдержками времени на сигнал и на отключение оперативного
или оперативно-защитного выключателя. Уставка реле соответствует току:
, где кн=1,2-1,25;кв=0,85;
.
ЗАКЛЮЧЕНИЕ
В курсовом проекте было
спроектировано электроснабжение участка цеха включающего в себя 2 печи
электрошлакового переплава для получения слитка весом 0,25т и флюсоплавильную
печь У-560. Была определена средняя цеховая нагрузка Sср=145 кВА, среднеквадратичная цеховая нагрузка Sсркв=193.6 кВА, заявленная мощность SЗаявл=396 кВА, найдены токи К.З.на КТП и
печной подстанции которые составили 7 кА и 23 кА соответственно. Выбрана
комплектная духтрансформаторная подстанция выполненная на трансформаторах типа
ТМ-1000/10. Разработана планировка цеха, схема управления защиты и сигнализации
и схема питания установок, которые приведены в графической части проекта.
СПИСОК
ИСПОЛЬЗУЕМОЙ ЛИТЕРАТУРЫ
1.
Миронов Ю.М.,
Миронова А.Н. Электрооборудование и электроснабжение электротермических,
плазменных и лучевых установок: Учеб. пособие для вузов.-М.: Энергоатомиздат.
1991г.
2.
Неклепаев Б.Н.,
Крючков И.П. Электрическая часть электростанций и подстанций: Справочные
материалы для курсового и дипломного проектирования: Учеб. пособие для ВУЗов.-
перераб. И доп.- М. Энергоиздат,1989 г.
3.
Справочник по
электроснабжению промышленных предприятий. Промышленные электрические сети. 2-е
изд., перераб. и доп./Под общ. Ред. А.А. Фёдорова и Г.И. Сербиновского.-
М.:Энергия,1980 г
4.
Справочник по
электроснабжению промышленных предприятий: Электрооборудование и автоматизация
/ Сост.:Т.В.Анчарова, В.В.Каменева, А.А. Катарская; под общей редакцией А.А.
Фёдорова и Г.В.Сербиновского. -2-е изд., перераб. и доп. – М.: Энергоиздат,
1981г.
5.
Электротермическое
оборудование: Справочник / Под общ. Ред. А.П.Альтгаузена. – 2-е изд., перераб.
и доп. – М.: Энергия,1980 г.
6.
Электрооборудование
и автоматика электротермических установок: (Справочник) / Альтгаузен А.П.,
Берщицкий И.М., Берщицкий М.Д. и др.: Под редакцией А.П.Альтгаузена,
М.Д.Берщицкого, М.Я.Смелянского, В.М.Эдемского. – М.: Энергия, 1978 г.