Расчёт технологического процесса ковки и штамповки

  • Вид работы:
    Курсовая работа (т)
  • Предмет:
    Технология машиностроения
  • Язык:
    Русский
    ,
    Формат файла:
    MS Word
    561,54 kb
  • Опубликовано:
    2011-01-17
Вы можете узнать стоимость помощи в написании студенческой работы.
Помощь в написании работы, которую точно примут!

Расчёт технологического процесса ковки и штамповки

Содержание

1. Задание

2. Разработка эскиза поковки

2.1 Определение припусков на диаметр, длину и толщину

2.2 Определение допусков на обработку

3. Расчет заготовки

3.1 Определение массы заготовки

3.2 Определение объема, площади, длинны и диаметра заготовки

4. Выбор режима обработки и оборудования

4.1 Определение времени

4.2 Выбор оборудования

5. Операционные эскизы

Литература

1. Задание


Вал Сталь 45

Поправочный коэффициент на размеры: 1,35

2. Разработка эскиза поковки

Для определения припусков, деталь разбиваем на 3 элементарные части. Для каждой части детали рассчитываем припуск на обработку.


2.1 Определение припусков на диаметр, длину и толщину

Припуск на диаметр

 

 

 

 

Припуск на длину:

 

 

 

 


2.2 Определение допусков на обработку

Допуск на диаметр

 

 

 

 

Допуск на длину:

 

 

 

 

3. Расчёт заготовки

3.1 Определение массы заготовки

 

Масса поковки:

 

 

 

 

 

 

 

 

 

 

Масса на отрубку

 

 

 

 

Масса отхода на угар:

Принимаем 1 нагрев:

 

 

 

3.2 Определение объема, площади, длинны и диаметра заготовки

 

 


 

 -максимальная площадь поперечного сечения

 

Определяем длину заготовки:

 

Определяем диаметр:

 

 

Принимаем



4. Выбор режима обработки и оборудования

4.1 Определение времени

Время выдержки заготовки

 

где - коэффициент укладки;  

Для конструкционной углеродистой качественной стали принимаем:

 

 

Определяем время остывания:

 

где

 

 

 

Принимаем температуру обработки

Начало 1100

Конец 800-830

Цвет каления – Светло вишневый

4.2 Выбор оборудования

Оборудование подбираем по массе падающих частей

 

где - коэффициент вида обрабатываемого материала

Так как у нас деталь сделана из (Сталь 45), то принимаем

 

В зависимости от массы падающей части выбираем оборудование:

Марка молота МА-411 с массой падающих частей 75 кг.

Находим массу детали

 ; кг.

 

 

 

 

 

 

Коэффициент использования материала:

 

Коэффициент использования поковки:

 

Коэффициент уковки:

 

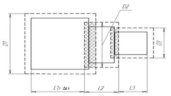
5. Операционные эскизы

1. Нагреть заготовку (рис.1)

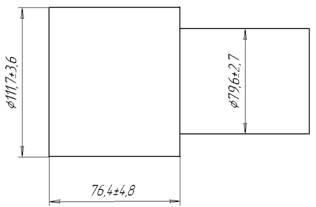
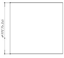
2. Протянуть до Ø 111,7 (рис. 2)

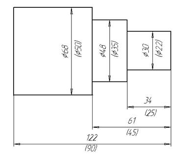
3. Протянуть до Ø 79,6 (рис. 3)

4. Протянуть до Ø 50,8 (рис. 4)

5. Отрубить заготовку

6. Править

7. Охладить

8. Контролировать

(рис. 1)

(рис.2)

(рис. 3)

(рис. 4)

Литература

1. Н.А. Шилов, Г. Г. Курилин, В. А. "Разработка технологической карты изготовления кузнечной поковки" 1977 г.

Похожие работы на - Расчёт технологического процесса ковки и штамповки

 

Не нашли материал для своей работы?
Поможем написать уникальную работу
Без плагиата!
Без нейросетей!