Изготовление вала-шестерни

  • Вид работы:
    Курсовая работа (т)
  • Предмет:
    Технология машиностроения
  • Язык:
    Русский
    ,
    Формат файла:
    MS Word
    363,05 kb
  • Опубликовано:
    2009-10-17
Вы можете узнать стоимость помощи в написании студенческой работы.
Помощь в написании работы, которую точно примут!

Изготовление вала-шестерни

Содержание

1 Назначение и техническое описание детали

2 Отработка конструкции детали на технологичность

3 Выбор заготовки и обоснование выбора

4 Назначение допусков, формирование минимальных припусков

5 Выбор технологических маршрутов обработки детали

6 Теоретический анализ технологических вариантов изготовления детали. Назначение операционных размеров и допусков

7 Выбор оптимального технологического маршрута обработки

Список использованной литературы

1. Назначение и техническое описание детали

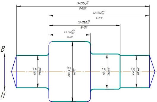
Данная деталь “Вал-шестерня” представляет собой тело вращения и относится к классу валов. Изготовлена из легированной стали 38Х2Н2МА, ГОСТ 4543-71, σв=930МПа и предназначена для передачи крутящих моментов посредством шестерни и зубчатого колеса в редукторе.

Деталь “Вал-шестерня” состоит из: двух подшипниковых шеек l=55мм и  l=50мм с шероховатостью поверхностей - , также для установки зубчатого колеса посредствам шпонки предусмотрена поверхность  l=105мм с шероховатостью  и закрытым шпоночным пазом , глубиной h=8+0.2, шероховатостью торцов  и дна шпоночного паза . Между подшипниковой шейкой  l=55 мм и поверхностью под установку зубчатого колеса  l=105мм, расположена косозубая шестерня с числом зубьев Z=31, модулем m=3, Ø102,01-0,07мм и длинной L=71мм. С шероховатостью по наружному и среднему диаметру зубьев , по торцам  и внутреннему диаметру зубьев .Также у основания шестерни с обеих сторон имеются галтели радиусом R=3мм,2 фаски 2,5х45° и 3 фаски 2х45°.

К детали предъявляют следующие требования:

- допуск радиального биения подшипниковых шеек  l=55мм и  l=50мм , не более 0,02мм, относительно базы Б,Г (оси летали);

- допуск профиля продольного сечения и круглости подшипниковых шеек  l=55мм и  l=50мм , не более 0,01мм;

- допуск радиального биения косозубой шестерни, не более 0,04мм, относительно базы Б,Г (оси детали) и не более 0,016мм, относительно базы Д (оси зубообрабатывающего станка);

- допуск симметричности торцов шпоночного паза  на диаметр, не более 0,16мм, относительно базы В (поверхности  l=105мм);

- допуск параллельности торцов шпоночного паза , не более 0,04мм, относительно базы В (поверхности  l=105мм);

- Гр.III 248…293 HB ГОСТ 8479-70;

- Азотировать h=0,2…0,6 HRN 15 ≥ B2 (HRCЭ ≥ 45);

- H14,h14, ±IT 14/2;

- Маркировать по РД 24.854.01-89 на бирке.

Основными базовыми поверхностями являются подшипниковые шейки  l=55мм и  l=50мм.

Вспомогательными базовыми поверхностями являются поверхности  l=105мм для посадки зубчатого колеса , поверхности шпоночного паза  и косозубая шестерня Ø102,01-0,07мм и длинной L=71мм.

2. Отработка конструкции детали на технологичность

Данная деталь вал-шестерня, представляет собой деталь типовой конфигурации, шеек увеличиваются к середине детали. В конструкции детали присутствуют стандартные и унифицированные элементы: галтели, центровочные отверстия, шпоночный паз. Однако имеют место и более сложные в изготовлении поверхности: косозубая шестерня, требующая специального режущего инструмента, но так же стандартизованного. Шпоночный паз закрытого исполнения несколько усложняет обработку и требует применения специализированного инструмента.

Размеры и шероховатости поверхностей соответствуют конструкции и назначению детали. Однако шероховатость торцовых поверхностей косозубой шестерни слишком завышена, можно применить шероховатость Ra6,3мкм, вместо Ra1,25мкм. Возможность одновременной обработки нескольких деталей можно реализовать только на горизонтально расточной операции, поместив на поворотный стол несколько призм с заготовками и производя поочередную обработку торцов, центровочного отверстия и шпоночных пазов, с поворотом стола и без раскрепления деталей. К высокотехнологичному и высокопроизводительному оборудованию, применимому для обработки данной детали относятся: токарно-винторезный станок с ЧПУ 16К20Ф3, фрезерно-центровальный полуавтомат, гидрокопировальный полуавтомат (на черновой обработке), многорезцовый полуавтомат, многошпиндельный обрабатывающий центр. В целом конструкция детали обеспечивается применением типовых технологических процессов и ее можно считать технологичной. Особое внимание необходимо уделить станочным приспособлениям и контрольно-измерительным средствам, которые применяются в условиях серийного производства. В данных условиях наиболее целесообразно применение универсальных и специальных станочных приспособлений. Таких как 3-ёх кулачковый патрон, гидро- и пневмозажимы, опоры, упоры и призмы на расточных и фрезерных операциях и т.п. В качестве контрольно-измерительных средств наиболее широко применяются предельные калибры и контрольно-измерительные приспособления, как более производительные и точные способы контроля, в отличие от контрольно-измерительных инструментов, применяемых в единичном производстве. Также необходимо уделить внимание грамотному базированию, так как это во многом определяет погрешности изготовления размеров. Поэтому необходимо соблюдать правило постоянства и совмещения баз.

3. Выбор заготовки и обоснование выбора

Для данной детали в условиях серийного производства, учитывая специфику курсовой работы и ее учебный характер, в качестве заготовки принимаем штамповку, полученную на молоте. Масса заготовки mзаг≈8,82 кг.

Класс точности поковки – Т4

Группа стали – М2

Степень сложности – С1

Плоскость разъема – Плоская

Исходный индекс – 13

Эскиз заготовки приведен на рисунке 3.1.

Технические требования:

1.   Штамповочные уклоны 5˚ и 7˚.

2.   Штамповочные радиусы 1.6 мм.

3.   Нагрев индукционный.

4.   Очистка механическая.

Рисунок 3,1 – Эскиз заготовки

4. Назначение допусков, формирование минимальных припусков

Левый торец Ø102-0,07 l=71мм с Ra1,25мкм

1. Заготовка – штамповка Rz=240, δ=2,5мм, ;              Т=250мкм

2. Точение предварительное Rz=50, Н14, δ=0,74мм;           Т=50 мкм

3. Точение окончательное Rz=30, Н13, δ=0,46мм;              Т=30 мкм

4. Шлифование однократное Rа=1,25, Н12, δ=0,3мм;                   Т=10 мкм

Переход

Элементы припуска

Расч. прип.

Zmin

Rz

T

ρ

ε

Загот

240

250

2000,65

-

-

Точ.пр.

50

50

120,04

100

2590,65

Точ.ок.

30

30

80,03

5

225,04

Шлиф.одн.

10

10

40,01

0

140,03


rобщ===2000,65 мкм

где rсм =2000 мкм – допустимые погрешности поковок по смещению осей фигур, что штампуються в разных половинах штампов;

rкор – общая кривизна заготовки.

rкор =Δ к×D=0,5×102=51 мкм

где    Δ к=0,5 мкм/мм – суммарное коробление, мкм/мм;

D=102 мм – наибольший размер заготовки, мм;

rпр.точу1×rобщ=0,06×2000,65=120,039 мкм

rок.точу2×rобщ=0,04×2000,65=80,026 мкм

rодн.шлифу3×rобщ=0,02×2000,65=40,013 мкм

 

где Ку1 – коэффициент уточнения формы

На операции предварительного точения используют 3-ёх кулачковый самоцентрирующийся патрон eупр.точ.=100 мкм.

Для окончательного точения eуок.точ.=5 мкм (торцовый патрон с жёсткими центрами).

Для однократного шлифования eуодн.шлиф.=0 мкм (поводковый патрон с жёсткими центрами).

Определение минимальной величины операционного припуска:

Zпр.точ. min = Rzі-1 + Т і-1 + ri-1 + e уі=240+250+2000,65+100=2590,65 мкм

Zок.точ. min =50+50+120,04+5=225,04 мкм

Zодн.шлиф. min =30+30+80,03+0=140,03 мкм

Правый торец Ø102-0,07 l=71мм с Ra1,25мкм

1. Заготовка – штамповка Rz=240, δ=2,5мм, ;              Т=250мкм

2. Точение предварительное Rz=50, Н14, δ=0,74мм;           Т=50 мкм

3. Точение окончательное Rz=30, Н13, δ=0,46мм;              Т=30 мкм

4. Шлифование однократное Rа=1,25, Н12, δ=0,3мм;                   Т=10 мкм

Переход

Элементы припуска

Расч. прип.

Zmin

Rz

T

ρ

ε

Загот

240

250

2000,65

-

-

Точ.пр.

50

50

120,04

100

2590,65

Точ.ок.

30

30

80,03

5

225,04

Шлиф.одн

10

10

40,01

0

140,03


rобщ===2000,65 мкм

где rсм =2000 мкм

rкор =Δ к×D=0,5×102=51 мкм

rпр.точу1×rобщ=0,06×2000,65=120,039 мкм

rок.точу2×rобщ=0,04×2000,65=80,026 мкм

rодн.шлифу3×rобщ=0,02×2000,65=40,013 мкм

На операции предварительного точения используют 3-ёх кулачковый самоцентрирующийся патрон eупр.точ.=100 мкм.

Для окончательного точения eуок.точ.=5 мкм (торцовый патрон с жёсткими центрами).

Для однократного шлифования eуодн.шлиф.=0 мкм (поводковый патрон с жёсткими центрами).

Определение минимальной величины операционного припуска:

Zпр.точ. min = Rzі-1 + Т і-1 + ri-1 + e уі=240+250+2000,65+100=2590,65 мкм

Zок.точ. min =50+50+120,04+5=225,04 мкм

Zодн.шлиф. min =30+30+80,03+0=140,03 мкм

Торец Ø60s7 l=50мм c Ra1,25мкм

1. Заготовка – штамповка Rz=240, δ=2,5мм, ;              Т=250мкм

2. Точение предварительное Rz=50, Н14, δ=0,74мм;           Т=50 мкм

3. Точение окончательное Rz=30, Н13, δ=0,46мм;              Т=30 мкм

4. Шлифование однократное Rа=1,25, Н12, δ=0,3мм;                   Т=10 мкм

Переход

Элементы припуска

Расч. прип.

Zmin

Rz

T

ρ

ε

Загот

240

250

2000,65

-

-

Точ.пр.

50

50

120,04

100

2590,65

Точ.ок.

30

30

80,03

5

225,04

Шлиф.одн

10

10

40,01

0

140,03


rобщ===2000,65 мкм

где rсм =2000 мкм

rкор =Δ к×D=0,5×102=51 мкм

rпр.точу1×rобщ=0,06×2000,65=120,039 мкм

rок.точу2×rобщ=0,04×2000,65=80,026 мкм

rодн.шлифу3×rобщ=0,02×2000,65=40,013 мкм

На операции предварительного точения используют 3-ёх кулачковый самоцентрирующийся патрон eупр.точ.=100 мкм.

Для окончательного точения eуок.точ.=5 мкм (торцовый патрон с жёсткими центрами).

Для однократного шлифования eуодн.шлиф.=0 мкм (поводковый патрон с жёсткими центрами).

Определение минимальной величины операционного припуска:

Zпр.точ. min = Rzі-1 + Т і-1 + ri-1 + e уі=240+250+2000,65+100=2590,65 мкм

Zок.точ. min =50+50+120,04+5=225,04 мкм

Zодн.шлиф. min =30+30+80,03+0=140,03 мкм

Торец Ø55k6 l=50мм с Ra6,3 мкм

1. Заготовка – штамповка Rz=240, δ=3,2мм, ;             Т=250мкм

2. Фрезерование предварительное Rz=50, h14, δ=1,5мм;    Т=50 мкм

3. Фрезерование окончательное Rz=30, h12, δ=0,46мм;      Т=30 мкм

Переход

Элементы припуска

Расч. прип.

Zmin

Rz

T

ρ

ε

Загот.

240

250

2000,65



Точ.пр.

50

50

120,04

140

2630,65

Точ.ок.

30

30

80,03

90

330,04


rобщ===2000,65 мкм

rкор =Δ к×D=0,5×102=51 мкм

rсм =2000 мкм

rпр.точу1×rобщ=0,06×2000,65=120,039 мкм

rок.точу2×rобщ=0,04×2000,65=80,026 мкм

На операции предварительной подрезки торцов используют пневмозажим с призмами и упором eупр.точ.=140 мкм.

Для окончательной подрезки торцов eуок.точ.=90 мкм (пневмозажим с призмами и упором).

Определение минимальной величины операционного припуска:

Zпр.точ. min = Rzі-1 + Т і-1 + ri-1 + e уі=240+250+2000,65+140=2630,65 мкм

Zок.точ. min =50+70+120,04+90=330,04 мкм

Торец Ø55k6 l=50мм с Ra6,3мкм

1. Заготовка – штамповка Rz=240, δ=3,2мм, ;             Т=250мкм

2. Фрезерование предварительное Rz=50, h14, δ=1,5мм;    Т=50 мкм

3. Фрезерование окончательное Rz=30, h12, δ=0,46мм;      Т=30 мкм

Переход

Элементы припуска

Расч. прип.

Zmin

Rz

T

ρ

ε

Загот.

240

250

2000,65



Точ.пр.

50

50

120,04

140

2630,65

Точ.ок.

30

30

80,03

90

330,04


rобщ===2000,65 мкм

rкор =Δ к×D=0,5×102=51 мкм

rсм =2000 мкм

rпр.точу1×rобщ=0,06×2000,65=120,039 мкм

rок.точу2×rобщ=0,04×2000,65=80,026 мкм

На операции предварительной подрезки торцов используют пневмозажим с призмами и упором eупр.точ.=140 мкм.

Для окончательной подрезки торцов eуок.точ.=90 мкм (пневмозажим с призмами и упором).

Определение минимальной величины операционного припуска:

Zпр.точ. min = Rzі-1 + Т і-1 + ri-1 + e уі=240+250+2000,65+140=2630,65 мкм

Zок.точ. min =50+70+120,04+90=330,04 мкм

 

Торцы Ø55k6 l=226мм с Ra6,3мкм;

1. Заготовка – штамповка Rz=240, δ=3,2мм, ;              Т=250мкм

2. Фрезерование предварительное Rz=50, h14, δ=1,5мм;    Т=70 мкм

3. Фрезерование окончательное Rz=30, h12, δ=0,46мм; Т=30 мкм


Переход

Элементы припуска

Расч. прип.

2Zmin

Rz

T

ρ

ε

Загот.

240

250

2000,65



Фрезер.пр.

50

70

120,04

140

5261,3

Фрезер.ок.

30

30

80,03

90

660,08


rобщ===2000,65 мкм

rкор =Δ к×D=0,5×102=51 мкм

rсм =2000 мкм

rпр.фрезу1×rобщ=0,06×2000,65=120,039 мкм

rок.фрезу2×rобщ=0,04×2000,65=80,026 мкм

На операции предварительного фрезерования торцов используют пневмозажим с призмами eупр.фрез.=140 мкм.

Для окончательного фрезерования eуок.фрез.=90 мкм (пневмозажим с призмами). Определение минимальной величины операционного припуска:

2Zпр.фрез. min = 2(Rzі-1 + Т і-1 + ri-1 + e уі)=2(240+250+2000,65+140)=5261,3 мкм

2Zок.фрез. min =2(50+70+120,04+90)=660,08 мкм

5. Выбор технологических маршрутов обработки детали

Таблица 5.1 – Варианты маршрутов обработки

Вариант 1

Вариант 2

Вариант 3

005 Горизонтально-расточная

Горизонтально-расточной станок мод 2М165

 


005 Горизонтально-расточная

Горизонтально-расточной станок мод 2М165

 


005 Фрезерно-центровальная

Фрезерно-центровальный МР-71М

 



010 Токарно-копировальная

Токарный многорезцовый копировальный полуавтомат 1716Ц

010 Токарно-винторезная

Токарно-винторезный станок 16К20

 


010 Токарно-винторезная с ЧПУ

Токарно-винторезный станок с ЧПУ 16К20Ф3

015 Токарно-винторезная

Токарно-винторезный станок 16К20

 


015 Токарно-копировальная

Токарный многорезцовый копировальный полуавтомат 1716Ц

 

020 Токарно-винторезная

Токарно-винторезный станок 16К20

 

025 Токарно-винторезная

Токарно-винторезный станок 16К20

 


020 Термическая

Печь

Печь

015 Термическая

Печь

025 Горизонтально-расточная

Горизонтально-расточной станок мод 2М165

 


035 Горизонтально-расточная

Горизонтально-расточной станок мод 2М165

020 Фрезерно-центровальная

Фрезерно-центровальный МР-71М

030 Токарно-копировальная

Токарный многорезцовый копировальный полуавтомат 1716Ц

040 Токарно-винторезная

Токарно-винторезный станок 16К20

 


025 Токарно-винторезная с ЧПУ

Токарно-винторезный станок с ЧПУ 16К20Ф3

045 Токарно-винторезная

Токарно-винторезный станок 16К20

 


035 Токарно-копировальная

Токарный многорезцовый копировальный полуавтомат 1716Ц

050 Токарно-винторезная

Токарно-винторезный станок 16К20

 

055 Токарно-винторезная

Токарно-винторезный станок 16К20

 


040 Круглошлифовальная

Круглошлифовальный станок с ЧПУ 3М151Ф2

060 Круглошлифовальная

Круглошлифовальный станок с ЧПУ 3М151Ф2

030 Круглошлифовальная

Круглошлифовальный станок с ЧПУ 3М151Ф2

035 Круглошлифовальная

Круглошлифовальный станок с ЧПУ 3М151Ф2

045 Шпоночно-фрезерная

Шпоночно-фрезерный станок 692А

065 Шпоночно-фрезерная

Шпоночно-фрезерный станок 692А

040 Шпоночно-фрезерная

Шпоночно-фрезерный станок 692А

050 Зубофрезерная

Зубофрезерный станок мод. 5К324А

070 Зубофрезерная

Зубофрезерный станок мод. 5К324А

045 Зубофрезерная

Зубофрезерный станок мод. 5К324А

055 Зубошлифовальная

 Зубошлифовальный станок мод. 5В832

055 Зубошлифовальная

 Зубошлифовальный станок мод. 5В832

050 Зубошлифовальная

 Зубошлифовальный станок мод. 5В832

060 Слесарная

075 Слесарная

055 Слесарная

065 Контрольная

080 Контрольная

060 Контрольная


6. Теоретический анализ технологических вариантов изготовления детали. Назначение операционных размеров и допусков

Конструкторские размеры детали «вал» имеют следующие значения:


Припуски на линейные размеры заготовки назначаются по предварительному расчету:


Допуски на линейные размеры заготовки определены по ГОСТу 7505-89, и составляют:


Рассмотрим вариант №1. Из уравнения 1


Номинальный размер мм


Из уравнения 2


Номинальный размер мм


Из уравнения 3


Номинальный размер мм


Из уравнения 4


Номинальный размер мм


Из уравнения 5


Номинальный размер мм


Из уравнения 6


Номинальный размер мм


Из уравнения 7


Номинальный размер мм


Из уравнения 8


Номинальный размер мм


Из уравнения 9


Номинальный размер мм


Из уравнения 10


Номинальный размер мм


Из уравнения 11


Из уравнения 12


Из уравнения 13


Рассмотрим вариант №2

Из уравнения 1


Номинальный размер мм


Из уравнения 2


Номинальный размер мм


Из уравнения 3


Номинальный размер мм


Из уравнения 4


Номинальный размер мм


Из уравнения 5


Номинальный размер мм


Из уравнения 6


Номинальный размер мм


Из уравнения 7


Номинальный размер мм


Из уравнения 8


Номинальный размер мм


Из уравнения 9


Номинальный размер мм


Из уравнения 10


Номинальный размер мм


Из уравнения 11


Из уравнения 12


Из уравнения 13


Рассмотрим вариант №3

Из уравнения 1


Номинальный размер мм


Из уравнения 2


Номинальный размер мм


Из уравнения 3


Номинальный размер  мм


Из уравнения 4


Номинальный размер  мм


Из уравнения 5


Номинальный размер  мм


Из уравнения 6


Номинальный размер  мм


Из уравнения 7


Номинальный размер  мм


Из уравнения 8


Номинальный размер  мм


Из уравнения 9


Номинальный размер  мм


Из уравнения 10


Номинальный размер  мм


Из уравнения 11


Из уравнения 12


Из уравнения 13


7. Выбор оптимального технологического маршрута обработки

После выполнения теоретического анализа технологических вариантов изготовления детали, расчета размеров операционных припусков, формирования размеров заготовки, возможно определить оптимальный маршрут обработки. Критериями оптимальности технологического маршрута являются:

- минимальные размеры заготовки, а так же составляющие операционные припуски на механическую обработку

- расчетная точность операционных размеров, должна находиться в пределах экономически достижимой точности обработки на данном оборудовании

- минимальное количество звеньев в каждой из сформированных цепей.

Исходя из данных условий – оптимальным является вариант №1

Список использованной литературы

1 Корсаков В.С. Основы технологии машиностроения: Учебник. – 3-е изд., перераб. и доп. – М.: Машиностроение, 2001. - 591 с.

2 Маталин А.А. Технология машиностроения: Учебник. – Л.: Машиностроение, 1985. - 496 с.

3 Конспект лекций по дисциплине "Теоретические основы технологии производства типовых деталей и сборки машин" /Сост. С.В. Ковалевский, А.Г. Косенко, С.Г. Онищук. – Краматорск: ДГМА, 2003. - 48 с.

4 Анурьев В. И. Справочник конструктора-машиностроителя. – М.: Машиностроение, 1978. – т. 1. – 728 с.

5 Допуски и посадки: Справочник. В 2 ч. / В. Д. Мягков, М. А. Палей, А. Б. Романов, В. А. Брагинский. – С: Машиностроение, 1982. – Ч. 2.


Не нашли материал для своей работы?
Поможем написать уникальную работу
Без плагиата!
Без нейросетей!