Вентиляция медицинского центра

  • Вид работы:
    Дипломная (ВКР)
  • Предмет:
    Строительство
  • Язык:
    Русский
    ,
    Формат файла:
    MS Word
  • Опубликовано:
    2019-05-27
Вы можете узнать стоимость помощи в написании студенческой работы.
Помощь в написании работы, которую точно примут!

Вентиляция медицинского центра

Расчетно-пояснительная записка

1. Краткое описание здания, место его расположения, расчетные метеорологические данные.

2. Описание проектируемых систем вентиляции.

3. Расчет воздухообменов в служебных, административных и прочих вспомогательных помещения с составлением по воздушного баланса.

4. Расчет теплопотерь и поступлений тепла, влаги и газов в одном основном помещении(зале) здания для трех режимов работы вентиляции, т.е. холодного, теплого, переходного периодов года.

5. Построение процессов обработки приточного воздуха на I-d диаграмме для трех периодов года.

6. Определение расчетного расхода приточного воздуха для основного помещения здания и составление воздушного баланса.

7. Разработка схем приточной и вытяжной вентиляции, определение расходов воздуха, транспортируемого по элементам системы.

8. Аэродинамический расчет одной приточной и одной вытяжной системы вентиляции.

9. Подбор калориферной установки.

10. Подбор воздушных фильтров.

11. Подбор вентилятора и электродвигателя к нему.

ВВЕДЕНИЕ

         Качество вентиляционной системы любого помещения влияет на его физические параметры. Чистота воздуха оказывает воздействие на обитателей этого помещения. В современном мире предъявляются высокие требования к уровню проектирования вентиляционных систем.

         Вентиляционная система это совокупность или группа устройств, предназначенных для транспортировки, подачи, обработки и удаления воздуха. Правильное проектирование вентиляционной системы позволяет провести процедуру фильтрации воздуха в специально предназначенных помещениях, подавать теплые и прохладные потоки воздуха в зависимости от потребностей отдельного помещения.

         Актуальность работы обусловлена высоким спросом на вентиляционные системы на рынке труда. Большой рост городов и агломераций способствует росту строительства, что приводит к потребности в специалистах данного профиля. Рост требований к строительным нормам и ГОСТам приводит к большой конкуренции на рынке, что положительно сказывается на динамике востребованности подобных исследований.

         Цель работы: спроектировать вентиляционные системы медицинского центра, расположенного на пересечении проспекта Кошкарбаева и улицы А 118.

         Задачи:

¾ дать краткое описание проектируемому зданию

¾ описать проектируемые вентиляционные системы

¾ расчет воздухообмена и теплообмена

¾ разработать схемы вытяжной системы вентиляции

¾ подбор электрооборудования

         Научная новизна заключается в индивидуальности проектируемого здания. Чертежи и расчеты приводимые в данной работе являются уникальными.

         Практическая значимость работы заключается в сформированной базе исследования и возможности использования работы в качестве плана по проектированию медицинского центра. В работе проведен детальный анализ вентиляционных систем и выбраны наиболее оптимальные варианты.

         Объектом исследования выступает медицинский центра, расположенный на пересечении улиц Кошкарбаева и улицы А 118.

         Предметом исследования являются вентиляционные системы здания. 

         Теоретическая основа является базой для понимания проектирования вентиляционных и включает в себя труды Юрманова Б.Н., Ивановой Ю.В., Балашова А.А., Полунина Н.Ю., Ивановский В.А., Кацуба Д. С.

         Методологической основой для проектирования выступают государственные нормы регламентирующие строительство и проектирование вентиляционных систем.

ЗАКЛЮЧЕНИЕ

         В ходе дипломного проектирования было выполнено проектирование систем вентиляции медицинского центра. Расчеты проводимые в дипломном проекте удовлетворяют требованиям СНИП и ГОСТ.

         Итогом проектирования дипломной работы являются следующие выполненные задачи:

¾ описано здание, место его расположения, расчетные метеорологические данные

¾ описаны проектируемые систем вентиляции

¾ проведен расчет воздухообменов в служебных, административных и прочих вспомогательных помещения с составлением по воздушного баланса

¾ проведен расчет теплопотерь и поступлений тепла, влаги и газов в одном основном помещении(зале) здания для трех режимов работы вентиляции, т.е. холодного, теплого, переходного периодов года

¾ проведено построение процессов обработки приточного воздуха на I-d диаграмме для трех периодов года

¾ проведено определение расчетного расхода приточного воздуха для основного помещения здания и составление воздушного баланса

¾ разработана схем приточной и вытяжной вентиляции, определение расходов воздуха, транспортируемого по элементам системы

¾ проведен аэродинамический расчет одной приточной и одной вытяжной системы вентиляции

¾ проведен подбор калориферной установки

¾ проведен подбор воздушных фильтров

¾ проведен подбор вентилятора и электродвигателя к нему

         Расчеты проводимые в дипломном проектировании стали основой для построения чертежей, графиков и схем. Графическая часть состоит 25 частей:

1. общие данные

2. план отопления подвала

3. план отопления первого этажа

4. план отопления второго этажа

5. план отопления третьего этажа

6. план отопления четвертого этажа

7. план отопления технического этажа

8. план вентиляции подвала

9. план вентиляции первого этажа

10. план вентиляции второго этажа

11. план вентиляции третьего этажа

12. план вентиляции четвертого этажа

13. план вентиляции технического этажа (начало)

14. план вентиляции технического этажа (конец)

15. план кровли

16. схема системы отопления подвала и первого этажа

17. схема системы отопления второго и третьего этажей

18. схема системы отопления четвертого и технического этажей, узел ввода

19. Схема системы вентиляции П1

20. Схема системы вентиляции П2, П3, П4, П5, ПВ6, В3

21. Схема систем вентиляции ПВ4, В7-В17

22. Схема системы вентиляции В1

23. Схема системы вентиляции В2

24. Схемы системы вентиляции В5

25. Схема теплоснабжения приточных установок




1. ОБЩАЯ ХАРАКТЕРИСТИКА ПРОЕКТНЫХ РЕШЕНИЙ

1.1 ОПИСАНИЕ ОБЪЕКТА

         Медицинский центр это объект муниципального назначения, который предъявляет высокие строительные нормы и требования к проектированию. Улица А118 является проектной улицей, т.е. в данный момент находится на этапе разработки и согласования, пересечение с улицей Кошкарбаева, ниже на рисунке 1 представлено проектное расположение данного пересечения. Медицинский центр планируется в данной области.

         Рисунок 1. Проектное расположение медицинского центра.

         Медицинский центр будет состоять из четырех этажей, подвального этажа и технического этажа.

         Наименование обслуживаемых помещений по проектному листу:

¾ процедурные

¾ коридоры

¾ палаты

¾ палаты интенсивной терапии

¾ малые операционные

¾ офисы на 4 этаже

¾ Конференц-зал

¾ чистые помещения

¾ грязные помещения

¾ санитарные узлы

¾ буфетная

¾ криохранилище

¾ обеденный зал

¾ наркозная

¾ операционная

¾ лаборатория для исследований

¾ донорская комната

¾ тамбур

¾ лаборатория

¾ курительные помещения

         Рисунок 2. Генплан

         Климатический район строительства по классификации СНиП относится к умеренно теплому району и имеет следующие характеристики:

Территориальный пояс ............................................................................. 2

Климатический район для строительства............................................. III B

Глубина промерзания ........................................................................ 90 см.

Средняя температура наружного воздуха:

- в наиболее холодные пятидневки...................................................... 22°С

-в наиболее жаркие месяц года......................................................... 27,3°С

Среднегодовая температура ............................................................... 8,7°С

Средняя относительная влажность воздуха:

-в наиболее холодный месяц года ........................................................ 84%

-в наиболее жаркий месяц года ............................................................ 41%

Абсолютная минимальная температура наружного воздуха ............. -35°С

Абсолютно максимальная температура наружного воздуха .............. 40°С

Средняя продолжительность безморозного периода .................. 175 дней

Количество осадков:

- за год ............................................................... 555 мм (от 321 до 760 мм)

- суточный максимум ....................................................................... 100 мм

Высота снегового покрова (в среднем) ....................................... 10 -27 см

Вес снегового покрова по СНиП................................................. 80 кг/кв.м

Расчетная глубина промерзания почвы ............................................ 0,87 м

Преимущественное направление ветра ...................................... восточное

Скоростной напор ветра по СНиП ........................................ 45,0 кгс/кв. м

Расчетная географическая широта ................................................ 51° С.Ш

Барометрическое давление в теплый период года ......................... 990 гПа

Климатический пояс ................................................................. умеренный

Климат умеренно-континентальный, с неустойчивой зимой и жарким летом Рельеф.............................................. волнистая равнина овражно-балочного типа

Почва ...........................................................................................  чернозем

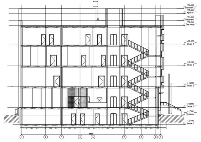
         Рисунок 3. Схема проектируемого здания

1.2 РАСЧЕТНЫЕ ПАРАМЕТРЫ НАРУЖНОГО И ВНУТРЕННЕГО ВОЗДУХА

         1. Исходные данные

         Проект разработан на основании технологического задания чертежей и действующих нормативных документов:

¾ СНиП РК 4.02-42-2006 "Отопление, вентиляция и кондиционирование

¾ СНиП РК 2.04-01-2010 "Строительная климатология ";

¾ СНиПРК 2.04-03-2002 "Строительная теплотехника ";

¾ СНиП РК 3.02-02-2009 "Общественные здания и сооружения ";

¾ СНиП 2.02-05-2009 "Пожарная безопасность зданий ";

¾ СН РК 2.04-21-2004* "Энергопотребление и тепловая защита гражданских зданий ";

¾ ГОСТ 12.1.005-91 "Общие санитарно-гигиенические требования к воздуху санитарной зоны ".

¾ СНиП РК 3.02-08-2010 "Лечебно-профилактические учреждения ".

¾ Пособие к СНиП 2.08.02-89 "По проектированию учреждений здравоохранения ";

¾ Санитарные правила "Санитарно-эпидемиологические требования к объектам здравоохранения "(с изменениями и дополнениями по состоянию на 25.10.2010г.)

         2. Климатические данные

         Расчетная температура наружного воздуха минус 35°C.

         Расчетные температуры внутреннего воздуха в помещениях приняты в соответствии с требованиями ГОСТ 30494-96, СНиП РК 4.02-42-2006 и соответствии с действующими нормативными документами.

         3. Отопление

         Проект системы отопления разработан на расчетную зимнюю температуру наружного воздуха минус 35°C при расчетных параметрах "Б".

         Источник теплоснабжения - собственная котельная, расположенная на участке строительства.

         Теплоноситель - вода с параметрами 85-65°C.

         Расчетные параметры теплоносителя в системе отопления 85-65°С.

         В зданиях запроектирована двухтрубная система отопления с попутным движением теплоносителя.

         В качестве нагревательных приборов приняты стальные панельные радиаторы VN фирмы Vogel&Noot.

         Регулирование системы отопления осуществляется запорной и балансировочной арматурой фирмы Danfoss (Дания), установленной на стояках и разветвлениях магистралей. На подводках к приборам имеются встроенные термостатические клапаны с термоголовками фирмы Danfoss (Дания). Опорожнение системы отопления производится в низших точках, удаление воздуха - в верхних точках системы.

         Для удаления воздуха из системы отопления предусмотрена установка ручных воздушных клапанов в  верхних точках систем. Опорожнение системы теплоснабжения предусматривается через вентили, установленные в нижних точках системы. Горизонтальные участки трубопроводов прокладываются с уклоном 0,002 в сторону теплового пункта.

         Трубопроводы поэтажной разводки приняты металлополимерные Pexb-Al-Pexb фирмы Compipe.

         Стояки и магистрали - стальные электросварные по ГОСТ 10704-91, прокладываются открыто.

         Открыто проложенные стояки и магистрали в цокольном и техническом этажах изолируются трубчатой изоляцией K-FLEX толщиной 13 мм, перед изоляцией стальные трубы покрыть антикоррозийным покрытием марки БСТ . Открыто проложенные неизолированные стальные трубы окрашиваются масляной краской за 2 раза.

 

         4. Теплоснабжение приточных установок

         Теплоноситель - вода с параметрами 85-65°С. Подача теплоносителя к потребителям тепла осуществляется из помещения теплового пункта, расположенного в цокольном этаже здания. Помещение теплового пункта размещается в отдельном помещении с соблюдением требованием глав СНиП по защите от шума и вибрации .

         Вентиляция.

         Проектом предусматривается тепловая изоляция трубопроводов теплоизоляционным материалом из вспененного синтетического каучука   K-FLEX толщиной 13мм.

         Так же имеется возможность отключения и слива теплоносителя из любых приточных кондиционеров, без остановки всей системы.

         Магистральные трубопроводы выполняются из стальных электросварных труб по ГОСТ 10704-91.

         Перед изоляцией стальные трубопроводы покрыть антикоррозийным покрытием - краской БТ-177 в два слоя, по грунтовке ГФ-021 в один слой.   Герметичность системы обеспечивается соединением фитингами, места соединений, арматура и концевые участки труб должны иметь опоры.

 

         5. Вентиляция и кондиционирование воздуха

         В помещениях реализована приточно-вытяжная механическая вентиляция. Все системы вентиляции разделены по функциональному назначению обслуживаемых помещений.

         В отдельные системы по вытяжной вентиляции выделены следующие группы помещений:

¾ В1 - чистые помещения;

¾ В2 - грязные помещения;

¾ В3 - палаты;

¾ ПВ4 - офисы;

¾ В5 - Санузлы, душевые;

¾ ПВ6 - конференцзал;

¾ В7 - буфетная;

¾ В8 - криохранилище;

¾ В9 - обеденный зал;

¾ В10 - наркозная, операционная;

¾ В11 - лаборатория для исследований;

¾ В12 - донорская комната;

¾ В13 - палата интенсивной терапии, малая операционная;

¾ В14, В15 - курительные комнаты;

¾ В16, В17 - лаборатории.

         Также разделена система приточной вентиляции:

¾ П1 - Процедурные и коридоры;

¾ П2 - палаты;

¾ П3 - палата интенсивной терапии и малая операционная;

¾ П5 - наркозная и операционная.

         Воздуховоды принять металлические из оцинкованной стали по ГОСТ 14918-80*.

         Смесительные насосы приняты производства компании "Grundfos".

         Воздуховоды приточных систем изолировать  изоляцией марки "K-Flex". Толщину изоляции принять равной 32мм для воздуховодов.

         В помещениях "особо чистого" назначения (палата интенсивной терапии, наркозная, операционные) предусматривается кондиционирование воздуха. Воздух подается в верхнюю зону ламинарными распределителями "АМС-МЗМО", удаляется  пристенными и угловыми модулями забора воздуха из двух зон (из ВЕРХНЕЙ и нижней). Вентиляторы, удаляющие воздух из этих помещений, предусмотрены из разнородных материалов УНИВЕНТ-В.

         Воздуховоды приточных систем после фильтров предусматриваются из нержавеющей стали.

2. ПРОЕКТНАЯ ЧАСТЬ

2.1 ОПИСАНИЕ СИСТЕМЫ ВЕНТИЛЯЦИИ

         В зданиях медицинских учреждений, проектируется приточно-вытяжная вентиляция с механическим побуждением. Рециркуляция воздуха в медицинских учреждениях не допускается. Помещения в которых проводятся работы с выделением вредных веществ (пары кислот и щелочей и т.д.) должны оборудоваться местными вытяжными устройствами.

         Для создания и поддержания допустимых параметров внутреннего воздуха в данном здании запроектирована общеобменная приточно-вытяжная с механическим побуждением. Обработка воздуха (очистка, подогрев и подача), поступающего в помещение осуществляется приточными установками фирмы «Vogel & Noot». Для транспортировки воздуха от приточной установки до помещений используются стальные прямоугольные воздуховоды.

         Для комнаты подготовки образцов запроектирована отдельны система вытяжной вентиляции, для того чтобы не допустить перетока воздуха в другие помещения. Вентиляция в зданиях должна не допускать перетока воздуха из помещений с низкими требованиями к чистоте воздуха в помещения с более строгими требованиями.

         С целью недопущения перетока воздуха из-за разности сил гравитации, температуру воздуха в коридорах нужно принять равной температуре воздуха более чистого помещения. Транзитные воздуховоды, проходящие по этажам и чердаку, следует теплоизолировать и нанести огнезадерживающее покрытие.


Рисунок 4. Схема системы вентиляции.



2.2 ОСОБЕННОСТИ ПРОЕКТИРОВАНИЯ МЕДИЦИНСКОГО УЧРЕЖДЕНИЯ

        

Проект HVAC для учреждений здравоохранения - это обеспечение безопасных условий для пациентов и персонала. Основное различие между системой кондиционирования для учреждений здравоохранения и других типов зданий обусловлено:

1. Необходимость ограничения воздушного движения между различными отделами (без перекрестного перемещения).

2. Особые требования к вентиляции и фильтрации для разбавления и уменьшения загрязнения в виде запаха, переносимых по воздуху микроорганизмов и вирусов, а также опасных химических и радиоактивных веществ. Эффективность вентиляции очень важна для поддержания надлежащего качества воздуха в помещении.

3. Различные требования к температуре и влажности для различных областей и точный контроль условий окружающей среды.

4. Сложность конструкции, позволяющая минимизировать риск передачи возбудителей в воздухе и сохранить стерильную и целебную среду для пациентов и персонала. Эти требования требуют очень большого количества наружного воздуха наряду со значительной обработкой этого вентиляционного воздуха, включая охлаждение, осушение, повторный нагрев, увлажнение и фильтрацию.

Инфекционный контроль В условиях стационара наблюдается высокая концентрация вредных микроорганизмов.

С точки зрения инфекционного контроля, основная цель больницы

Конструкция заключается в том, чтобы пациент не подвергался риску заражения во время госпитализации. Специальный

технические требования включают в себя вопросы гигиены, надежности, безопасности и энергетики.

Инфекции, которые могут возникнуть в результате действий и процедур, происходящих на объекте, вызывают серьезную обеспокоенность. Тремя основными путями, ответственными за заражение, являются контакт, капли и воздушная передача, которые в значительной степени зависят от конструкции помещения и факторов строительства.

         Контактная передача является наиболее важным и частым способом передачи инфекции (внутрибольничной). Его можно подразделить на прямую передачу и косвенную передачу.

а) Прямая передача включает прямой контакт тела с телом для передачи микроорганизмов от зараженного человека к восприимчивому хозяину.

б) Косвенная передача включает заражение неодушевленного предмета (такого как инструменты или перевязочные материалы) зараженным человеком.

         Капельная передача

         Передача капель происходит, когда зараженный человек генерирует капли, содержащие микроорганизмы, которые перемещаются на короткое расстояние через воздух и оседают на конъюнктиве, слизистой оболочке носа или ротовой полости хозяина. Капли не остаются в подвешенном состоянии

         Воздух, поэтому специальная обработка воздуха и вентиляция не требуются для предотвращения попадания капель. (Не путайте передачу капель с воздушной передачей.) Человек, кашляющий, чихающий и говорящий, производит капли. Другие процедуры, такие как отсасывание и бронхоскопия, также являются источником капель.

         Бортовая передача

         Передача по воздуху происходит, когда в воздухе находятся капельки ядра или частицы пыли распространять инфекционные агенты.

         а) Ядра капель - высокая скорость, с которой кашель и чихание выталкивают капельки из дыхательных путей, приводит к тому, что большое количество бактерий или вирусов попадает в воздух в виде маленьких капель. Эти капли быстро испаряются в воздухе, оставляя остаток размером обычно 5 мкм или меньше. Эти капельные ядра оседают так медленно, что остаются в воздухе в занятых помещениях и циркулируют на воздушных потоках, пока не будут механически удалены системой вентиляции. Контроль факторов окружающей среды (таких как специальная вентиляция и вентиляция) необходим для предотвращения внутрибольничной воздушной передачи микроорганизмов.

         b) Пыль - пыль, загрязненная жизнеспособными инфекционными агентами, может образовывать резервуар, способный вызвать вспышку инфекции, даже после отъезда инфекционного пациента, от которого произошли атомы. Пыль может стать загрязненной, когда высушенная мокрота и другие инфекционные выделения подвешены в воздухе, когда частицы пыли смешиваются с окружающей средой.

         ИЗОЛЯЦИОННЫЕ НОМЕРА

         Инфицированный пациент может загрязнять окружающую среду. Отдельная комната с соответствующей вентиляцией и вентиляцией особенно важна для предотвращения прямой или косвенной передачи контакта, а также для снижения риска передачи микроорганизмов по воздуху. от исходного пациента до восприимчивых пациентов и других лиц в больницах. В медицинской терминологии это часто называют «изолятором».

         Существует два типа комнат для изоляции:

1) комнаты для воздушно-капельного заражения (AII)

2) комнаты для защитной среды (PE).

         1. Изоляция, передаваемая по воздуху (AII), относится к изоляции пациентов, инфицированных микроорганизмами, распространяющимися по воздушно-капельным ядрам диаметром <5 мкм. К ним относятся пациенты, страдающие корью, ветряной оспой и туберкулезом. Другие области включают в себя:

отделение неотложной помощи, отделения интенсивной терапии (для взрослых, детей, новорожденных) и процедурные зоны, такие как комнаты для бронхоскопии или помещения для индукции мокроты.

         2. Защитная среда (PE) является специализированной областью для пациентов, перенесших аллогенную трансплантацию гемопоэтических стволовых клеток (HSCT). Пациенты, у которых иммунные механизмы недостаточны из-за иммунологических нарушений (например, вирус иммунодефицита человека [ВИЧ] или синдром врожденного иммунодефицита), хронические заболевания (например, диабет, рак, химиотерапия, эмфизема или сердечная недостаточность) или иммуносупрессивная терапия (например, облучение, трансплантация органов, цитотоксическая химиотерапия, лекарства против отторжения или стероиды) также помещаются в защитную среду.

         Как приведенная выше классификация влияет на проектировщика HVAC?

         Различающий фактор между комнатами «AII» и «PE» - это соотношение давления.

• Защитные среды (PE) установлены на ПОЛОЖИТЕЛЬНОЕ давление воздуха относительно прилегающих пространств. Эти области требуют частых воздухообменов (> 12 в час) и требуют, чтобы весь приточный воздух проходил через высокоэффективные фильтры для твердых частиц (HEPA).

• В изоляционных помещениях, где содержатся инфекционные пациенты (AII), должно быть отрицательное давление. Эти области требуют частых воздухообменов (> 12 в час) и требуют, чтобы весь приточный воздух выпускался без рециркуляции.

         Обе эти области требуют встроенного контроля, чтобы гарантировать, что они остаются под заданным давлением. Двери в комнаты должны быть самозакрывающимися, а стены, окна, потолок, пол и проходы должны быть герметично закрыты.

2.3 ПРОЕКТИРОВАНИЕ ВЕНТИЛЯЦИОННОЙ СИСТЕМЫ

         Воздушно-инфекционная изоляционная палата построена таким образом, чтобы свести к минимуму миграцию воздуха из изоляционной комнаты в другие помещения медицинских учреждений. Риск заражения воздушным путем зависит от концентрации частиц. Вероятность того, что частица, несущая организм, попадет в открытую рану, увеличивается с увеличением концентрации частиц. Уменьшая концентрацию, мы снижаем вероятность заражения и, следовательно, количество зараженных пациентов.

         Четыре основных фактора влияют на местную концентрацию вокруг человека в комнате:

1. Во-первых, концентрация частиц будет иметь тенденцию к увеличению со скоростью образования частиц в комнате.

2. Во-вторых, соотношение количества приточного и вытяжного воздуха по отношению к размеру помещения.

3. В-третьих, уровень фильтрации подаваемого воздуха будет влиять на способность системы вентиляции снижать концентрацию частиц воздуха в помещении.

4. В-четвертых, турбулентность воздуха и движение воздуха в помещении могут переносить частицы, поэтому метод распределения воздуха будет влиять на локальные концентрации.

         Последние три из них являются атрибутами системы вентиляции, которые могут быть спроектированы так, чтобы ограничить эффект первой. Рекомендации по инженерному контролю для сдерживания или предотвращения распространения загрязняющих веществ в воздухе сосредоточены на:

1. Общая вентиляция

2. Очистка воздуха (первичная и вторичная фильтрация)

3. Локальная вытяжная вентиляция (контроль источника)

         ОБЩАЯ ВЕНТИЛЯЦИЯ

         Наиболее эффективным средством борьбы с загрязнителями, запахом и загрязнением воздуха в помещениях является вентиляция, которая требует одновременного контроля ряда условий:

1. Воздухообмен

2. Градиент давления соответствующий классу изоляции

3. Соответствующее распределение воздуха в кондиционируемых отсеках.

4. Высокое качество фильтрации воздуха, включая абсолютную фильтрацию

5. Точный контроль температуры и влажности, обеспечивающий поддержание намеченного микроклимата

         Расходы на вентиляцию для учреждений здравоохранения требуют больших затрат свежего воздуха для разбавления и удаления загрязняющих веществ, образующихся в помещении. Скорость вентиляции в медицинских учреждениях выражается как воздухообмен в час (ACH), что является мерой о том, как быстро воздух во внутреннем пространстве заменяется наружным (или кондиционированным) воздухом. Например, если количество воздуха, которое входит и выходит за один час, равно общему объему пространства, говорят, что пространство подвергается одной замене воздуха в час. Расход воздуха измеряется в соответствующих единицах, таких как кубические метры в минуту

Чтобы определить поток воздуха, необходимый для адекватной вентиляции помещения,

1) Рассчитайте объем помещения для вентиляции Ширина х Длина х Высота

2) Рассчитайте объем воздуха, умножив объем помещения на скорость воздухообмена в час.

         Исследования, проведенные AIA, показывают, что только одна замена воздуха свежим воздухом может удалить 63% взвешенных частиц из воздуха помещения. Если система вентиляции может выполнять 10 замен воздуха в час (ACH), для удаления 90% загрязняющих веществ из воздуха в помещении требуется 14 минут, а для удаления 99% - 28 минут. Таким образом, увеличенное количество смен свежего воздуха в час эффективно для очистки переносимых по воздуху загрязнений. Однако более высокая скорость воздухообмена (> 20 ACH) может вызвать турбулентность, а стоимость самой вентиляции будет слишком высокой. Поэтому, рекомендуется компромисс 12 ACH, который должен быть

достижимо, когда фильтры достигли максимального падения давления. Более высокий ACR также соответствует более высокому использованию энергии.

         Выбор 12 воздухообменов в час во многом является условностью. Тарифы на вентиляцию являются добровольными, если государство или местное правительство не устанавливает стандарт в требованиях к лицензированию здравоохранения. Эти стандарты обычно применяются только к конструкции объекта, а не к его эксплуатации. На основе научных знаний и профессиональных суждений, отраженных в руководящих принципах AIA, ASHRAE и Американский национальный институт стандартов (ANSI) разработали рекомендации по проектированию вентиляции и давления отношения для различных областей ухода за пациентами. Медицинские учреждения, не имеющие специальных стандартов вентиляции, должны следовать стандарту ANSI/ASHRAE 62 «Вентиляция для обеспечения приемлемого качества воздуха в помещениях» или термически при отсутствии какой-либо замены приточного воздуха / час. Могут использоваться следующие рекомендации:

• Для поддержания пространства под отрицательным давлением отработайте на 10–15 процентов больше воздуха, чем приточного.

• Для поддержания пространства под избыточным давлением вытяжка воздуха на 10-15% меньше, чем приточного.

         КОНТРОЛЬ ДАВЛЕНИЯ В НОМЕРЕ


         Повышение давления в помещении является критическим фактором для мониторинга в больнице, поскольку оно может сильно повлиять на управляемость окружающей среды. Если давление в здании может стать отрицательным из-за загрузки фильтров подачи, а вентиляторы подачи работают слишком медленно или возвратные вентиляторы
слишком быстрые, влажный и грязный воздух может попасть в здание через щели и отверстия.

         Этот воздух абсолютно не кондиционируется и может обеспечить несколько необходимых ингредиентов для стимулирования роста плесени (например, влажность, больше спор и питательных веществ).

         Градиент давления в помещении здания достигается путем контроля качества и количества воздуха на впуске и выпуске, поддержания перепада давления воздуха между соседними зонами и разработки схем воздушного потока для конкретных клинических целей.

         Лаборатории и комнаты специальных процедур

         Лаборатории и помещения для специальных процедур, в которых, как известно, содержатся токсичные и опасные загрязняющие вещества, обычно проектируются под отрицательным давлением, чтобы предотвратить распространение этих газов по всему объекту. Примеры этих областей включают цитологические лаборатории, где ксилол и толуол могут быть частью процесса, выхлопные газы, выхлоп стерилизатора этиленоксида (ETO), зоны обработки рентгеновской пленки, инфекционные материалы в отходах (включая регулируемые медицинские отходы), паровые стерилизаторы, зоны с использованием дезинфицирующих средств высокого уровня или морги, где можно использовать формалин. Эти химические вещества оба раздражающие и канцерогенные. В таких зонах обычно используется 100% -ная сквозная вентиляция, где воздух не рециркулирует внутри объекта.

         Однако возникают условия, когда эти химические вещества могут быть повторно захвачены на объекте из-за непосредственной близости выхлопных газов к потенциальным воздухозаборникам. В таких приложениях газовое или многоступенчатое фильтрующее оборудование также может быть считается. В морге, где используется формалин, мы должны иметь дело не только с фильтрами газовой фазы для борьбы с формалином, но и с удалением потенциально инфекционных бактерий, находящихся в воздухе. Были зарегистрированы случаи передачи м. туберкулез от жизнеспособных туберкулезных бактерий, которые могут попасть в воздух во время процедуры вскрытия. В ситуациях, когда воздух из морга должен фильтроваться в точке выпуска, важно использовать систему как с HEPA, так и с газовой фазой.

фильтрация.

         Кухонная Вентиляция

         Системы вытяжки из кухонного оборудования (кухонная плита, духовки, посудомоечная машина и т. д.) Должны быть отделены друг от друга, а отработанный воздух не должен рециркулироваться. Следующие руководящие принципы проектирования должны быть отмечены:

         Воздуховоды

1) Скорость в воздуховоде должна быть между 500 и 1200 метров в минуту

2) Скорость вытяжки не менее 50 метров/мин по поверхности

3) Навес, воздуховод и отстойник должны быть изготовлены из негорючего материала.

         Фильтры

1) Рекомендуемая скорость фильтра: 50 - 120 метров в минуту.

2) Рекомендуемое количество фильтров: как правило, 2 выхлопа CFM на каждый квадратный дюйм максимальной площади фильтра

3) Рекомендуемая установка:

установка под углом 45 - 60 ° к горизонтали

4) Защитите фильтры от прямого лучистого тепла. Рекомендуемые элементы:

• Нет открытого пламени - минимум 1- 2 минуты для фильтрации

• Древесный уголь и подобные источники огня - минимум 4 минуты для фильтрации

         Раздевалка, туалет и душевая кабина

         Вентиляция раздевалок, туалетов и душевых комнат важна для устранения запаха и влажности. Минимальные юридические требования должны учитываться при разработке этих объектов. В туалетах рекомендуемые нормы вытяжной вентиляции составляют 10 ACH, в зависимости от того, что выше. Приточный воздух может вводиться через дверные решетки и / или поднутрения.

         Не переносите более 4,2 м3/мин воздуха на двери. Общественные туалеты и общие бани требуют приточного приточного воздуха до 8,5 смен воздуха в час максимум. Балансировочный воздух следует отводить из коридоров, чтобы поддерживать отрицательное давление и обеспечивать выпуск 10 раз в час.

         Таблица 1.

         Выбор типа установки

Помещение

Тип установки

процедурные, коридоры

приточная

палаты

приточная

палата интенсивной терапии

приточная

офисы на 4 этаже

приточная

вытяжная

наркозная, операционная

приточная

Конференцзал

приточная

вытяжная

Чистые помещения

вытяжная

Грязные помещения

вытяжная

Палаты

вытяжная

СУ слево

вытяжная

СУ справо

вытяжная

Буфетная

вытяжная

Криохраилище

вытяжная

Обеденный зал

вытяжная

наркозная, операционная

вытяжная

лаборатория для исследования

вытяжная

донорская комната

вытяжная

палата интенсивной терапии

вытяжная

малая операционная

вытяжная

курительная комната 4эт.

вытяжная

курительная комната подв.

вытяжная

лаборатория

вытяжная

лаборатория

вытяжная

тамбур

завеса

тамбур

завеса



         Таблица 2.

         Выбор вентиляторов

Помещение

Вентилятор

тип  по взрывозащите

L, м3

P,Па

процедурные, коридоры

VS-75-R H/S

1200

600

2357

палаты

VS-21-R H/S

1000

300

2332

палата интенсивной терапии

VS-21-R HC/SW

1724

250

3224

офисы на 4 этаже

VS-10-R PH/SS-T

1129

300

3694

наркозная, операционная

VS-21-R HC/SW

1724

250

3224

Конференцзал

VS-10-R PH/SS-T

600

250

2304

Чистые помещения

VS-40-R- S/V

540

60

3099

Грязные помещения

VS-21-R- S/V

3522

50

5081

Палаты

VS-21-R- S/V

800

300

2174

СУ слево

ВКП60-30- 4Е

650

400

1380

СУ справо

ВКП60-35-4Е

2300

500

1435

Буфетная

ВК 100Б

51

100

2400

Криохраилище

ВК 160Б

195

100

2580

Обеденный зал

ВКП40-20- 4Е

500

200

1280

наркозная, операционная

УНИВЕНТ-В 2,5-2-1-02

1643

300

3000

лаборатория для исследования

ВК 160Б

345

100

2580

донорская комната

ВК 100Б

86

100

2400

палата интенсивной терапии

УНИВЕНТ-В 2,5-2-1-02

714

300

3000

малая операционная

УНИВЕНТ-В 2,5-2-1-02

960

300

3000

курительная комната 4эт.

ВК 160Б

328

100

2580

курительная комната подв.

ВК 160Б

374

100

2580

лаборатория

ВК 160Б

345

100

2580

лаборатория

ВК 160Б

345

100

258

тамбур

WING E100

тамбур

WING E150




         Таблица 3.

         Выбор электродвигателя

Помещение

Электродвигатель

N, Квт

U, В

n, об/ мин

процедурные, коридоры

6,6

3*400

1435

палаты

0,75

3*230

2840

палата интенсивной терапии

0,75

3*230

2840

офисы на 4 этаже

0,55

3*230

2800

наркозная, операционная

0,75

3*230

2840

Конференцзал

0,55

3*230

2800

Чистые помещения

2,46

3*230

2840

Грязные помещения

1,61

3*230

2840

Палаты

0,75

3*230

2840

СУ слево

1,25

1*230

1380

СУ справо

1,65

1*230

1435

Буфетная

0,07

1*230

2400

Криохраилище

0,12

1*230

2580

Обеденный зал

0,33

1*230

1280

наркозная, операционная

0,75

3000

лаборатория для исследования

0,12

1*230

2580

донорская комната

0,07

1*230

2400

палата интенсивной терапии

0,75

3000

малая операционная

0,75

3000

курительная комната 4эт.

0,12

1*230

2580

курительная комната подв.

0,12

1*230

2580

лаборатория

0,12

1*230

2580

лаборатория

0,12

1*230

2580

тамбур

4

3*400

тамбур

8

3*400


                   Таблица 4

                   Выбор воздухонагревателя

Помещение

Воздухонагреватель

тип

от t

до t

Расход,кВт

процедурные, коридоры

водяной

-35

22

229,9

палаты

водяной

-35

20

21,6

палата интенсивной терапии

водяной

-35

22

49,3

офисы на 4 этаже

водяной

-12,7

20

16,5

наркозная, операционная

водяной

-35

22

49,3

Конференцзал

водяной

-12,9

18

6,2


                   Таблица 5

                   Выбор воздухоохладителя

Помещение

воздухоохладитель

тип

от t

до t

Расход

ΔP, Па

палата интенсивной терапии

фреоновый

29,5

25

4

57

наркозная, операционная

фреоновый

29,5

25

4

57




ВОЗДУШНАЯ ФИЛЬТРАЦИЯ

Весь воздух, который всасывается в систему обработки воздуха, до некоторой степени «загрязнен».

Общепринято, что находящиеся в воздухе частицы (твердые частицы, жидкости, пары, дым или бактерии) размером более 5 микрон имеют тенденцию быстро оседать из воздуха на горизонтальных поверхностях. Частицы в воздухе размером менее 5 микрон (особенно менее 2 микрон), как правило, медленно оседают из воздуха и остаются подвешенными (находящимися в воздухе) в течение более длительного периода времени.

Опасения по поводу внутрибольничных инфекций выдвинули решения для фильтрации на первый план в качестве основного инструмента для борьбы с инфекциями. Существует пять методов фильтрации.

1. Напряжение. Частицы в воздухе больше, чем отверстия между волокнами фильтра.

Этот метод подходит для грубого удаления крупных частиц. Эффективность фильтрации низкая.

2. Попадание - частицы сталкиваются с волокнами фильтра и остаются прикрепленными к фильтру. Волокна могут быть покрыты клеем. Эффективность фильтрации низкая.

3. Перехват - частицы попадают в фильтр, захватываются и прикрепляются к волокнам фильтра. Эффективность фильтрации средняя.

4. Диффузия - мелкие частицы, движущиеся в неустойчивом движении, сталкиваются с волокнами фильтра и остаются прикрепленными. Эффективность фильтрации высокая.

5. Электростатический. Частицы, имеющие отрицательный электростатический заряд, притягиваются к фильтру с помощью положительно заряженных волокон. Эффективность фильтрации высокая.

Во всех общественных местах медицинских учреждений должно быть два блока фильтров - 30% предфильтр и 90% финальный фильтр. При условии, что конечный фильтр установлен и обслуживается надлежащим образом, а также при условии, что вокруг фильтра практически отсутствует перепускной канал, суммарная эффективность двух комплектов фильтров составляет почти 100% при удалении частиц диаметром 1–5 мкм. Эта система фильтрации подходит для большинства зон ухода за больными в амбулаторных учреждениях и в операционной.

Общей метрикой для производительности фильтра является минимальное значение отчета об эффективности (MERV), оценка, полученная из метода испытаний, разработанного ASHRAE. Рейтинг MERV указывает на способность фильтра улавливать частицы диаметром от 0,3 до 10,0 микрон.

Более высокое значение MERV означает лучшую фильтрацию, поэтому фильтр MERV-13 работает лучше, чем фильтр MERV-8. В медицинских учреждениях окончательный фильтр MERV-14 является удовлетворительным. В нашем случае удовлетворительным является фильтр типа VS75 B.FLT G4.

Фильтрация воздуха для защиты оборудования HVAC

Накопление пыли и влаги в системах отопления, вентиляции и кондиционирования воздуха увеличивает риск распространения связанных со здоровьем грибков и бактерий. Компоненты кондиционеров, такие как змеевик охлаждения, фильтры и воздуховоды, могут быть идеальной средой для размножения бактерий, грибков и плесени. При неправильном уходе они станут резервуарами для плесени, вызывающей инфекцию. Обычные методы защиты катушек HVAC включают в себя расположение фильтра выше по потоку от катушки и оценку фильтра не менее MERV 8. Фильтры должны плотно прилегать к крепежным рамам; иметь жесткую, влагостойкую конструкцию; и быть построены из материалов, которые не будут поддерживать рост микробов.

Следует позаботиться о том, чтобы вокруг фильтров не проходил воздух. Обводной канал можно уменьшить, если установить прокладки фильтров на место, а также установить заготовки фильтров в местах, где дорожка фильтра не содержит фильтров. Таким образом выбор фильтров для вентиляции помещений представлен в таблице ниже.

         Таблица 6

         Выбор фильтров

Помещение

Фильтр

тип

ΔP, Па

процедурные, коридоры

 VS75 B.FLT G4

116

палаты

 VS75 B.FLT G4

59

палата интенсивной терапии

 VS75 B.FLT G4

76

офисы на 4 этаже

VS75 B.FLT G4

58

наркозная, операционная

 VS75 B.FLT G4

76



Вытяжные вентиляторы

Вытяжной вентилятор должен быть выбран для обеспечения скорости воздушного потока, требуемой выхлопной системой. Поток должен быть рассчитан по отношению к общему сопротивлению системы, включая потери давления через воздухораспределительную сеть, включая устройства очистки воздуха. Вентилятор подходящего размера и рабочей скорости должен быть выбран из рейтингов, опубликованных производителем вентилятора.

Вытяжной вентилятор должен быть расположен после фильтра очистки воздуха и как можно ближе к точке нагнетания. Предпочтительное место для вытяжного вентилятора - снаружи, обычно на крыше. Прямой участок воздуховода не менее 6 эквивалентных диаметров воздуховода и 3

При подключении к входу и выходу вентилятора следует использовать эквивалентные диаметры воздуховода перед любым изгибом или фитингами. Когда это нецелесообразно из-за нехватки места, следует использовать корректирующие устройства, такие как поворотные лопатки или делители потока, или следует учитывать связанные потери.

Выбор вентилятора должен учитывать долгосрочное загрязняющее воздействие на вентилятор и колесо вентилятора. Там, где присутствуют жесткие условия истирания или коррозии, в конструкции вентилятора можно использовать специальную облицовку или металлы. Должны быть предусмотрены безопасные средства, позволяющие осмотреть колесо вытяжного вентилятора без демонтажа соединительных каналов.

Гибкая втулка или лента должны быть встроены во впускной и выпускной каналы вентилятора, чтобы минимизировать вибрацию воздуховода.

Воздухораспределительный воздуховод

Рекомендуемые элементы:

1. Чтобы сэкономить средства на установку, обратный воздуховод часто удаляется из планов, а промежуточное пространство между подвесным потолком и крышей или выше пола, используется в качестве возвратной камеры. Прямой путь возврата воздуха над подвесным потолком НЕ рекомендуется для изоляции помещений или в других местах в медицинских учреждениях.

2. Любая утечка воздуха через соединения воздуховодов нарушит баланс давления, что повысит вероятность попадания инфекционных материалов в систему подачи воздуха. Приточные и обратные воздуховоды должны быть надлежащим образом герметизированы и изолированы во время строительства. На обратной стороне оборудования протекающие воздуховоды будут поглощать гораздо больше влаги, чем охлаждающие змеевики были предназначены для удаления. В результате получается более высокий, чем задумывалось, и желаемый уровень влажности в помещении.

3. Приточно-вытяжные системы должны быть спроектированы как отказоустойчивые (например, с использованием дуплексных вентиляторов), чтобы предотвратить загрязнение любой зоны на объекте в случае отказа вентилятора.

4. Воздуховоды изоляционной комнаты отрицательного давления не должны сообщаться с воздуховодами остальной части больницы. Воздуховоды должны быть спроектированы так, чтобы уменьшить вероятность перекрестного загрязнения в случае отказа вентилятора. Это может быть достигнуто путем подключения каждой комнаты изоляции с отрицательным давлением отдельно от кондиционера.

5. Вытяжной вентилятор должен быть расположен в той точке системы воздуховодов, которая гарантирует, что весь воздуховод внутри здания находится под отрицательным давлением.

6. Установите выпускной воздуховод для предотвращения загрязнения всасываемого воздуха. В острых случаях может потребоваться смоделировать выпускной шлейф для предотвращения уноса.

7. Круглый воздуховод следует использовать для конструкции выхлопной системы. Прямоугольные воздуховоды, если они используются, должны быть как можно более квадратными.

8. Все отводы должны входить в главный воздуховод при постепенном расширении под углом, не превышающим 45, а предпочтительно - 30 или менее. Соединения должны быть сверху или сбоку от основного и прямо напротив друг друга. Локти и изгибы должны быть как минимум на 2 калибра тяжелее, чем прямые протоки одинакового диаметра, и иметь

радиус центральной линии, по меньшей мере, в 2 и предпочтительно в 2,5 раза больше диаметра воздуховода. Ветви меньшего размера должны входить в магистраль рядом с концом высокого всасывания, ближе к входу вентилятора.

9. Выхлопные трубы должны быть вертикальными и заканчиваться в точке, где высота или скорость воздуха будут препятствовать повторному попаданию загрязненного воздуха в рабочую среду.

10. Скорость воздуховода должна быть достаточной для предотвращения осаждения сухих аэрозолей. Рекомендуемая минимальная скорость воздуховода для большинства областей медицинского учреждения составляет 2500 футов в минуту.

11. Воздуховоды должны быть расположены таким образом, чтобы они были легко доступны для осмотра, очистки и ремонта; Сохраняйте положения для стандартных тестовых портов для соответствующего воздушного потока и баланса давления.

12. Маркировка воздуховода помогает предотвратить ненужное воздействие обслуживающего персонала, который может неосознанно разрезать воздуховод с целью проверки воздушного потока или ремонта оборудования. Использование фильтра в точке вытяжки в помещении позволяет использовать не герметичные воздуховоды, которые могут находиться на общей вытяжной трубе. Воздуховод, расположенный после фильтра, не должен быть помечены как потенциально загрязненные.

Изоляция

Температура точки росы воздуха, окружающего воздуховоды и трубы охладителя, может легко превышать температуру поверхности воздуховодов и труб. Если воздуховоды и трубопроводы находятся в потолочном пространстве, конденсат может стечь на поверхность(потолочные плитки, сухие настенные плиты, изоляция, фанера и т. д.), и все необходимые элементы находятся для рост плесени.

Необходимо позаботиться о том, чтобы воздуховоды приточного воздуха, линии охлажденной воды (линии подачи и возврата) и линии хладагента были хорошо изолированы негорючей минеральной ватой.

Критерии шума

1. Уровень шума должен быть ограничен до  уровня 35 децибел для всех комнат пациентов, операционных (основных или второстепенных), диагностических кабинетов, аудио-кабинетов, комнат для осмотра, конференц-залов, больших офисов, лобби и зон ожидания.

2. Уровень шума должен быть ограничен до 40 децибел для всех небольших частных офисов, медсестер, аудиторий, зон лечения, коридоров, аптек и общих рабочих комнат.

3. Уровень шума должен быть ограничен до 45 децибел для всех лабораторий, ресторанов, общественного питания и сервировки, лечебных бассейнов.

4. Уровень шума должен быть ограничен до 50 децибел для всех спортзалов, комнат отдыха, прачечных и помещений для систем отопления, вентиляции и кондиционирования воздуха.

Критерии размеров воздуховодов

Системы воздуховодов должны быть спроектированы в соответствии с общими правилами, изложенными в последнем Руководстве ASHRAE и Руководстве по данным, руководствах SMACNA и Руководстве по проектированию Руководства Совета ассоциированного воздушного баланса.

1. Система воздуховодов с общим внешним статическим давлением должна быть рассчитана на максимальную скорость канала 800 метров/мин для сети воздуховодов. Потеря и восстановление статического давления должны учитываться при расчете размеров воздуховода. Размер поставки филиала воздуховоды для максимальной скорости воздуховода 1500 футов в минуту.

2. Все другие системы воздуховодов, такие как возвратный и вытяжной, включая ответвительные воздуховоды, должны быть рассчитаны на максимальную скорость 1500 футов в минуту для сети воздуховодов и максимальное статическое давление 0,10 дюйма - например. на 100 футов длины воздуховода, с минимальной площадью воздуховода

3. Укажите классификацию конструкции статического давления в воздуховоде в соответствии с SMACNA (1/2 ", 1", 2 ", 3" и 4 ") на чертежах.

Критерии размеров труб

Все трубопроводы, необходимые для систем отопления, вентиляции и кондиционирования воздуха, должны быть рассчитаны на основе следующих критериев:

Потери воды, потери давления и т. Д. Для калибровки трубопроводов должны основываться на «Cameron Hydraulic».

Данные »: с C = 100 для открытых (градирня) систем и C = 150 для закрытых систем.

Для закрытых систем максимальные потери на трение должны составлять 4 фута воды на 100 футов трубы с максимальной скоростью 14 кадров в секунду для систем в занятых зонах и до 8 кадров в секунду для сети и крупных ответвлений. Для открытых систем максимальная потеря трения должна составлять 4 фута воды

на 100 футов трубы и максимальной скоростью от 8 до 10 футов в секунду. Минимальный размер трубы должен составлять 3/4 дюйма.

Похожие работы на - Вентиляция медицинского центра

 

Не нашли материал для своей работы?
Поможем написать уникальную работу
Без плагиата!
Без нейросетей!