Интерьер кафе здорового питания 'Степь' в г. Ростове-на-Дону

  • Вид работы:
    Курсовая работа (т)
  • Предмет:
    Культурология
  • Язык:
    Русский
    ,
    Формат файла:
    MS Word
    3,06 Мб
  • Опубликовано:
    2017-03-21
Вы можете узнать стоимость помощи в написании студенческой работы.
Помощь в написании работы, которую точно примут!

Интерьер кафе здорового питания 'Степь' в г. Ростове-на-Дону

Государственное бюджетное профессиональное образовательное учреждение среднего профессионального образования Ростовской области

«Ростовский-на-Дону строительный колледж»

Специальность: 07.02.01 «Архитектура»








ПОЯСНИТЕЛЬНАЯ ЗАПИСКА

Курсовой проект

В рамках дисциплины «Интерьер гражданских зданий»

Тема: «Интерьер кафе здорового питания «Степь» в г. Ростове-на-Дону»


Руководитель проекта:

Преподаватель-Ульянова И.Ю.

Выполнила студентка гр.А-42

Верескунова А.В



Ростов-на-Дону

г.

Содержание

Введение

. Научно-исследовательский раздел

.1 Проблема

.2 Предмет исследования

.3 Цели и задачи исследования (цель проекта, задача и реализация проекта)

.4 Отечественный опыт проектирования

.5 Зарубежный опыт проектирования

.6 Поиск и анализ функциональных схем

.7 Концептуальное решение

.8 Планировочная структура

.9 Санитарно-гигиенические нормы и требования пожарной безопасности

.10 Вывод

. Анализ исходных данных

. Объемно-планировочное решение

. Конструктивное решение

. Колористическое решение

. Проектирование оборудования мебели с учетом эргономических требований

.1 Освещение

Используемая литература

Введение

В настоящее время человек больше хочет воссоединиться с природой, тем самым используя в различных сферах деятельности природные экологические материалы не задумываясь о том, что это влияет на состояние окружающей среды. Оно выражается большими потерями различных видов растений, животных, горных пород и других важных составляющих нашей планеты. Используя такие материалы, производство сильно сокращает популяцию растений, что приводит к действиям пытаться сохранить виды с помощью Красной книги, возведением заповедников и других мероприятий.

В проекте будет рассматриваться отдельная зона России -Ростовская область. Красная книга Ростова и области представляет собой сборник описаний, иллюстрированных изображений и фотографий животных, растений и грибов, находящихся на грани исчезновения. В 2003 году администрация Ростовской области соответствующим постановлением утвердила такой перечень в качестве официального документа. Этот список представляет собой региональный вариант Красной книги России. Он содержит информацию о текущем состоянии и способах защиты представителей флоры и фауны, которые постоянно или периодически обитают в территориальных границах Ростовской области.

Территория Ростовской области расположена в степной природной зоне. Степь представляет собой совокупность растительных сообществ засухоустойчивых и морозоустойчивых многолетних травянистых растений, среди которых первостепенная роль принадлежит дерновинным злакам. Растительный мир донской степи насчитывает более 2000 видов сосудистых растений, 148 видов мохообразных, 192 - лишайников.

Как были те выходы в тишь хороши!

Безбрежная степь, как марина,

Вздыхает ковыль, шуршат мураши,

И плавает плач комариный.

Стога с облаками построились в цепь

И гаснут, вулкан на вулкане.

Примолкла и взмокла безбрежная степь,

Колеблет, относит, толкает.

(Отрывок из стихотворения Б.Л. Пастернака «Степь»).

1. Научно-исследовательский раздел

.1 Проблема

Под влиянием хозяйственной деятельности быстрыми темпами обедняется видовое и популяционное разнообразие флоры целых регионов, безвозвратно из ее состава исчезают десятки видов, коренным образом изменяются видовая и пространственная структура растительного покрова Земли. Повсеместно происходящее нарушение местообитаний приводит к изменению исторически сложившейся структуры видовых популяций, и как следствие, к ограничению возможностей генетического обмена, ослаблению адаптационных способностей.

Наука ежечасно открывает новые, чрезвычайно полезные для человека свойства у видов, считавшихся ранее бесполезными или вредными. До сих пор лишь незначительная часть диких животных (и растений) исследована на содержание лекарственных веществ. Так, недавно в одной губке (Tethya crypta) из Карибского моря было обнаружено вещество, представляющее собой сильнейший ингибитор при различных формах рака, в частности лейкемии. Другое вещество из той же губки оказалось эффективным препаратом при лечении вирусного энцефалита и наметило переворот в лечении некоторых вирусных заболеваний. Ряд новых соединений для лечения гипертонии, сердечно-сосудистых заболеваний получено от многих видов губок, актиний, моллюсков, морских звезд, кольчатых червей и других животных, считавшихся недавно бесполезными.

Полное уничтожение вида где-либо - на коралловом рифе или в тропическом лесу, отмечается во Всемирной стратегии охраны природы, может стать причиной существования у человека неизлечимой болезни только потому, что был уничтожен источник получения необходимого сырья для фармацевтической промышленности.

1.2 Предмет исследования

Предметом исследования является поиск разнообразных универсальных пищевых пространств в г. Ростове-на-Дону, с целью их исследования и принятия опыта проектирования.

.3 Цели и задачи исследования

Цель проекта:

·    Разработать современное архитектурно-дизайнерское решение интерьера кафе правильного питания с комфортной объемно- планировочной структурой и выразительным современным композиционным решением.

Задачи проекта:

·    Применение архитектурных и технических (включая аспекты освещения и визуализации) решений для воплощения основной концептуальной идеи.

·        Создание цельного функционального пространства;

·        Разработка эстетической, актуальной композиции;

·        Внедрение и использование современных технологий и отделочных материалов;

·        Внедрение методов мирового проектирования на основе экологических принципов, энергосберегающих технологий.

Реализация.

·    Структурирование планировочной основы пространства проектируемого помещения;

·        Использование комфортной навигационной системы.

1.4 Отечественный опыт проектирования

Интерьер ресторана гостиничного комплекса Gurzuf Riviera

Проект выполнен при сотрудничестве 8D Architects.


Интерьер Ресторана гостиничного центра в Крыму

1.5 Зарубежный опыт проектирования

Шоколадный Бар (Chocolate Bar), город Ополе (Opole), Польша.

1.6 Поиск и анализ функциональных схем

интерьер кафе композиционный дизайнерский

Функциональная организация пространства кафе, прежде всего, зависит от типа здания, и сооружения, и его вместимости (пропускной способности).

Современное кафе отличается большой степенью вместимости и высоким уровнем комфорта.

Проектируемое пространство - универсальное многопрофильное:

·    В проектируемом пространстве будут проводится презентационные мероприятия по теме растений степи;

·        Зоны для деловых контактов, подписания договоров, зоны для проведения презентаций;

·        Для эффективной планировочной организации пространства помещения, формируется на основе функциональной схемы зонирования, позволяющей организовать между зонами четкие технологические взаимосвязи, отвечающие санитарно-гигиеническим и противопожарным требованиям, способствующим удобству эксплуатации и комфортности пребывания в ней;

·        Для грамотной функциональной организации пространства и обеспечению норм пожарной безопасности, существенное значение имеет число входов и эвакуационных выходов из помещения.

.7 Концепция

Призыв человека к бережному отношению и сохранению природы.

Раскрытие основной мысли о значимости растений в Ростовской области.

Ассоциативный образ: ботаника-растения.

В основу проектирования интерьера кафе была заложена идея : «Пропаганда здорового образа жизни, здорового, сбалансированного, полноценного питания». Все представленные блюда готовятся из экологически чистых продуктов, с использованием местного сырья - родниковой воды, местных овощей, фруктов, трав. Одним из составляющих ассортимента кафе является фито-чаи, приготовленные из Донского разнотравия. Одним из символов Дона является степной тюльпан Шренка.

У нас на Дону есть маленькая Голландия. В Нидерландах голландские тюльпаны-целые поля, тщательно отобранные человеком.

Донские тюльпаны - природное, а не селекционное чудо. И этим они удивительны. Произрастают они на Юге Ростовской области (В частности орловском районе, заповеднике Ростовском). Это заповедная зона. Летом Здесь цветет полынь, колышется от ветра пушистый ковыль, невероятно пахнут травы, но главной достопримечательностью заповедника является цветение тюльпанов. Всего здесь произрастает 460 видов растений. Из них 32 редкий и исчезающих видов. Одной из основных задач проекта является формирование и воспитание бережного отношения к природе и её сохранение.

.8 Типологическая планировочная модель пространства

В данном интерьере используется комбинированная планировочная модель, которая включает в себя зал с S=83.4 м1. Свободное движение посетителей.

.9 Санитарно-гигиенические нормы и требования пожарной безопасности

Требования санитарно-гигиенических норм:

.При проектировании и строительстве зданий должны быть предусмотрены установленные настоящими нормами и правилами меры, обеспечивающие выполнение санитарно-эпидемиологических требований по охране здоровья людей и окружающей природной среды.

1. Уровень естественного и искусственного освещения помещений зданий учреждений должен соответствовать требованиям СНиП 23-05.

Допускается проектировать без естественного освещения: помещения, размещение которых допускается в подвальных этажах (приложение Г), конференц-залы и кулуары, помещения для физкультурно-оздоровительных занятий и спорта, помещения массажных, парильных, а также помещения бань сухого жара, помещения для стоянки машин, буфетные.

Освещение только вторым светом можно предусматривать в помещениях, которые допускается проектировать без естественного освещения, а также раздевальных оздоровительных комплексов.

В зданиях, проектируемых для строительства в районах со среднемесячной температурой июля 21 °С и выше, световые проемы помещений с постоянным пребыванием людей и помещений, где по технологическим и гигиеническим требованиям не допускается проникновение солнечных лучей или перегрев, световые проемы при ориентации в пределах 130-315° должны быть оборудованы солнцезащитой.

. Параметры микроклимата в помещениях следует принимать в соответствии с ГОСТ 30494.

При этом для холодного периода года следует принимать в качестве расчетных оптимальные параметры микроклимата, для теплого периода года допускается принимать допустимые параметры микроклимата.

. В отдельных помещениях производственно-технического назначения (мастерские, лаборатории, складские, копировально-печатные и т.п.) параметры микроклимата следует принимать допустимыми с учетом ГН 1.1.5.686 и СанПиН 1.1.4.548.

. Подачу наружного воздуха в помещения следует предусматривать в объемах не менее указанных в таблице:

. Единой системой приточной вентиляции допускается обеспечивать все помещения, за исключением конференц-залов, помещений предприятий общественного питания, киноаппаратной и аккумуляторной, для каждого из которых необходимо предусматривать самостоятельные системы приточной вентиляции.

. Для помещений, не оборудованных системой механической приточной вентиляции, следует предусматривать открывающиеся регулируемые форточки или воздушные клапаны для подачи наружного воздуха, размещаемые на высоте не менее 2 м от пола.

. Подачу приточного воздуха следует предусматривать непосредственно в помещения с выделениями вредных веществ в объеме 90 % количества воздуха, удаляемого вытяжными системами, остальное количество воздуха (10 %) - в коридор или холл.

. Рециркуляция воздуха в помещениях с постоянным пребыванием людей допускается только в нерабочее время.

. Самостоятельные системы вытяжной вентиляции следует предусматривать для:

·    санузлов и курительных;

·    рабочих помещений, кабинетов и т.п.;

·        помещений предприятий общественного питания;

·    помещений производственно-технического назначения и складских.

. Удаление воздуха из рабочих помещений площадью менее 35 м2 допускается предусматривать за счет перетекания воздуха в коридор.

. вытяжную вентиляцию с естественным побуждением допускается предусматривать в помещениях зданий с расчетным количеством сотрудников менее 300 чел. и высотой 1 - 3 этажа.

. В макетных мастерских и других помещениях, где возможно выделение в воздух пыли и аэрозолей, объем воздуха, удаляемого через вытяжной шкаф, следует определять в зависимости от скорости движения воздуха в расчетном проеме шкафа.

. В хранилищах ценных документов и депозитариях по требованиям условий хранения следует предусматривать кондиционирование воздуха 3-го класса.

. При устройстве мусоропровода его следует оборудовать устройством для периодической промывки, очистки, дезинфекции и спринклерования ствола.

Ствол мусоропровода должен быть воздухонепроницаемым и звукоизолированным от строительных конструкций. Он не должен примыкать к служебным помещениям с постоянным пребыванием людей.

Мусоросборную камеру не допускается располагать под помещениями с постоянным пребыванием людей или смежно с ними.

В учреждениях управления, научно-исследовательских институтах, проектных и конструкторских организациях с числом сотрудников 800 чел. и более, а также в зданиях учреждений с повышенными санитарно-гигиеническими требованиями следует предусматривать централизованную или комбинированную систему вакуумной пылеуборки.

Необходимость проектирования центральной или комбинированной системы вакуумной пылеуборки в других зданиях устанавливается заданием на проектирование.

При проектировании комбинированной системы вакуумной пылеуборки радиус обслуживания одним приемным клапаном должен быть не более 50 м.

При отсутствии централизованной или комбинированной пылеуборки устройство камеры чистки фильтров пылесосов определяют по заданию на проектирование.

. Шахты и машинные помещения лифтов, вентиляционные камеры, а также другие помещения с оборудованием, являющимся источником шума и вибраций, не следует располагать смежно, над и под помещениями для совещаний, конференц-залами, рабочими помещениями и кабинетами с постоянным пребыванием людей.

. При использовании в рабочих помещениях ПЭВМ (компьютеров) следует учитывать требования СанПиН 1.1.2/1.4.1340.

. Используемые при строительстве материалы и изделия, подлежащие гигиенической оценке в соответствии с утвержденными Минздравом России Перечнями видов продукции и товаров, должны иметь гигиеническое заключение, выданное органами и учреждениями государственной санитарно-эпидемиологической службы.

Требования пожарной безопасности.

. В зданиях должны быть предусмотрены конструктивные, объемно-планировочные и инженерно-технические решения, обеспечивающие в случае пожара:

·    возможность эвакуации людей независимо от их возраста и физического состояния наружу на прилегающую к зданию территорию (далее -наружу), до наступления угрозы их жизни и здоровью вследствие воздействия опасных факторов пожара;

·        возможность спасения людей;

·        возможность доступа личного состава пожарных подразделений и подачи средств пожаротушения к очагу пожара, а также проведения мероприятий по спасению людей и материальных ценностей;

·        нераспространение пожара на рядом расположенные здания, в том числе при обрушении горящего здания;

·        ограничение прямого и косвенного материального ущерба, включая содержимое здания и само здание, при экономически обоснованном соотношении величины ущерба и расходов на противопожарные мероприятия, пожарную охрану и ее техническое оснащение.

1. В процессе строительства необходимо обеспечить:

·    приоритетное выполнение противопожарных мероприятий, предусмотренных проектом, разработанным в соответствии с действующими нормами и утвержденным в установленном порядке;

·        соблюдение противопожарных правил, предусмотренных ППБ 01, и охрану от пожара строящегося и вспомогательных объектов, пожаробезопасное проведение строительных и монтажных работ;

·        наличие и исправное содержание средств борьбы с пожаром;

3. В процессе эксплуатации следует:

·    обеспечить содержание здания и работоспособность средств его противопожарной защиты в соответствии с требованиями проектной и технической документации на них;

·        обеспечить выполнение правил пожарной безопасности, утвержденных в установленном порядке, в том числе ППБ 01;

·        не допускать изменений конструктивных, объемно-планировочных и инженерно-технических решений без проекта, разработанного в соответствии с действующими нормами и утвержденного в установленном порядке;

·        при проведении ремонтных работ не допускать применения конструкций и материалов, не отвечающих требованиям действующих норм.

·        если разрешение на строительство здания получено при условии, что число людей в здании или в любой его части или пожарная нагрузка ограничены.

·        внутри здания в заметных местах должны быть расположены извещения об этих ограничениях, а администрация здания должна разработать специальные организационные мероприятия по предотвращению пожара и эвакуации людей при пожаре.

4.Мероприятия по противопожарной защите зданий предусматриваются с учетом технического оснащения пожарных подразделений и их расположения.

.При анализе пожарной опасности зданий могут быть использованы расчетные сценарии, основанные на соотношении временных параметров развития и распространения опасных факторов пожара, эвакуации людей и борьбы с пожаром.

.10 Вывод

Создание интерьера кафе здорового питания «Степь» в г. Ростов-на-Дону является актуальной задачей и экономически оправданной.

При создании данного интерьера следовало соблюсти большое количество факторов, таких как: создание рациональной схемы зонирования, разработка планировочной структуры, анализ отечественного и зарубежного опыта проектирования кафе и ресторанов. При учете всего этого мы получаем современный и функциональный интерьер кафе здорового питания.

2. Анализ исходных данных

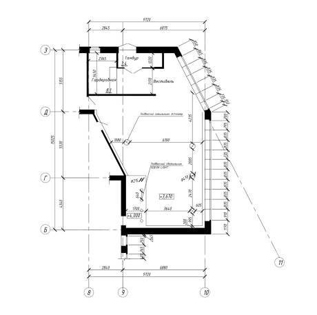
На основе выданного задания, пространство располагается на востоке. Находится на первом этаже существующего здания. Вход осуществлен с главного северо-восточного фасада.

Геометрические параметры проектируемого пространства.

План асимметричен. Помещение имеет угловую форму.

Габаритные размеры помещения- 83.4м2

Все помещения имеют естественное освещение. В главном зале ритмично располагаются панорамные окна.

Ограждающие конструкции выполнены из кирпича.

Наружные стены имеют толщину 510мм.

Перегородки: коричневая кирпичная кладка в 120мм .

В помещении натяжной потолок с деревянными конструкциями по периметру.

Полы выполнены из черной плитки, сверху которой положено прочное толстое стекло.

3. Архитектурно-планировочное решение

Вход в помещение осуществляется через северо-восточный фасад здания через стеклянный тамбур. Далее, гардеробная в западной стороне.

Главный зал отделен от остальных помещений перегородками с широкими пролетами. Восточная несущая стена главного зала оформлена в белой штукатурке и расчленена оконными проемами, где около располагаются дизайнерские стеклянные столы с золотыми ножками и лаконичными стульями в стиле деконструктивизм, выполненные в яркой, теплой, цветовой гамме-цвета степных тюльпанов. Над столами подвешены яркие желтые сферические светильники, что символизируют наше яркое степное солнце.

В конце помещения выделена зона бара, оформленная в темных тонах. На южной коричневой кирпичной стене изображена карта Ростовской области с обозначенными пунктами местоположения таких растений, как: ковыль и тюльпан Шренка.

Барная стойка является центром композиции. Сложная форма такой мебели и сочетание материалов выделяет данную зону. Также над барной стойкой размещены стеклянные, вытянутые светильники. Барные стулья вписываются в пространство своим дизайном: золотое сидение сочетается с тонкими черными ножками.

Западная стена проектируемого помещения оформлена некрашеным красным кирпичом, декоративными, деревянными, горизонтальными балками и стеклом с подсветкой.

Потолок выкрашен в темный металлик, по периметру которого закреплены деревянные, горизонтальные балки. Над барной стойкой -деревянный массив.

Пол выполнен из темной керамической плитки, сверху которой положен слой тонкого высокопрочного стекла.

4. Конструктивное решение

Учитывая основное назначение пространства и его параметры, проектом было принято решение условно расчленить пространство на небольшие зоны, в каждом из которых свои задачи.

Гардеробная

Транзитная зона

Посадочная зона

Бар

Эти микропространства объединяет композиционный центр, в котором сосредоточена основная демонстрационная зона бара.

Композиционный центр подчеркнут членением ограждающих конструкций-перегородок.


5. Колористическое решение

Многие замечали, что в одних ресторанах хочется сразу заказать любимое блюдо, в других долго изучаешь меню, в третьих аппетит почему-то беспокоит не особо, зато с удовольствием выпиваешь пару стаканчиков горячительных напитков. Все это - магия воздействия цветовых решений интерьера. На самом деле магии собственно никакой нет. Просто цвет - это те же волны, которые влияют на психику человека. Причем зрение, как выяснили ученые, играет далеко не первостепенную роль в восприятии цвета. Психологи считают, что только 20 процентов восприятия приходится на зрение, а остальные 80 - на нервную систему. То есть мы буквально кожей чувствуем цвет. А это значит, что манипулируя цветовыми решениями обстановки можно воздействовать на настроение, аппетит и самочувствие человека. Если начинающий ресторатор правильно расставит приоритеты, результат получится потрясающим.

В проектируемом кафе было принято решение создать образ степи. Черная плитка символизирует чернозем, яркие стулья-тюльпаны Шренка, светильники-высокое палящее солнце, зона барной стойки посвящена-ковылю. Интерьер оформлен в теплой цветовой гамме, что способствует пробуждению аппетита.

Характеристика и значение каждого цвета в интерьере:

.Коричневый (кирпичная стена)-цвет земли и дерева. Данный цвет обладает магией комфорта и тепла, что повлияет на кол-во посетителей в зимнее время. Используемый оттенок темный, что говорит о его таинственности и роскоши.

.Серый- тоскливый и невзрачный. Является умиротворяющим цветом. Сохраняет нейтралитет, но прекрасно подчеркнет любой цвет и прекрасно подходит для фона.

.Желтый -один из основных цветов тюльпанов. Минимум яркого желтого, как акцент, и интерьер становится гармоничным. Угнетающий цвет.

.Красный- является одним из самых энергичных и активных во всей палитре. Его использование в интерьере - шаг смелый и рискованный. Но правильно подобрав оттенок красного, его “дозировку”, сопутствующие цвета, можно создать уникальный, экспрессивный и стильный дизайн.

6. Проектирование оборудования мебели с учётом эргономических требований

В проекте разработано экологическое оборудование: барная стойка из бетона и дерева, стеклянные столы и кожаные стулья.

Барная стойка представляет собой такую форму:

Столешница изготовлена из экологичного декоративного бетона. Центральный массив выполнен из древесины грецкого ореха. Соответствует эргономическим требованиям.

Стул-сидячая мебель, для которой важно соответствовать эргономическим требованиям для удобства и комфорта. Сидение с плавной закругленной формой, обшитое кожанной обивкой. Опора представляет собой объединенную, металлическую конструкцию.

Стол выполнен из прочного стекла, опора которого покрыта золотистой эмалью. Предусмотренно на стол тканевое покрытие под место. Соответствует эргономическим требованиям.

6.1 Освещение

Свет - одна из сложнейших задач дизайнеров. Именно от света зависит законченность проекта дизайнера.

Благодаря правильной расстановке светильников и организации необходимого уровня светового потока по нормам СНиП, в ресторане или кафе можно создать:

·        непринужденную атмосферу;

·              ощущение гостеприимства и комфорта;

·              подсветку интересных элементов в интерьере;

·              выделить зоны в помещении.


Во многих ресторанах используется зональная подсветка отдельно для бара и столиков. Например, для столиков можно сделать более яркое освещение, а над барной стойкой приглушить. В барах же освещение практически всегда темное и приглушенное. Отдельно стоит отметить, что расстановка правильных акцентов в освещении стимулирует у людей аппетит. А кушать в красиво освещенном помещении, да еще и с нестандартным интерьером вдвойне приятнее. Более того, с помощью освещения можно в некотором роде компенсировать недостатки дизайнерского оформления или архитектуры помещения в целом.

.Подвесной светильник Artelamp.

Материал плафона -металл

Цвет-желтый

Напряжение-220в

Кол-во светильников - 4шт

Среди преимуществ подвесных светильников стоит выделить:

эстетическую привлекательность и декоративность;

практичность и функциональность;

универсальность;

многообразие дизайна, цветового и декоративного оформления, форм и размеров;

безопасность;

простоту монтажа;

длительный период эксплуатации;

широкий диапазон цен.

2.Подвесной светильник Odeon Light

Материал плафона-стекло

Цвет-стекло, металл

Мощность лампы-60w

Напряжение-220в

Кол-во светильников - 5шт

Используемая литература

1. Государственные стандарты ЕСКД (Единая система конструкторской документации). - М.: Издательство стандартов, 1984.

. ГОСТ 21.001-93 Общие положения.

. ГОСТ 21.110-95 Правила выполнения спецификаций оборудования, изделий и материалов.

. ГОСТ 21.204-93 Условные графические обозначения и изображения.

. ГОСТ 21.501-93 (2002) Правила выполнения архитектурных строительных рабочих чертежей.

. СНиП 21-01-97 (1999, с изм.2 2002). Пожарная безопасность зданий и сооружений. - Электронная библиотека «Строительство», выпуск 13 (март 2003).

. СНиП 31-05-2003 Общественные здания административного назначения.

. СП 31-107-2004. Свод правил по проектированию и строительству.

. Гражданские здания: Учебное пособие / А.В. Захаров, Т.Г. Маклакова, А.С. Ильмиев и др. - М.: Стройиздат, 1993.

. Гельфонд А. Архитектурное проектирование общественных зданий и сооружений. М. Архитектура-С, 2006.

. Змеул С.Г., Маханько Б.А. Архитектурная типология зданий и сооружений: Учебник для вузовю. - М.: Стройиздат, 1999.

. Нойферт Э. Строительное проектирование/Пер, с нем. - М.: Стройиздат, 1991.

Похожие работы на - Интерьер кафе здорового питания 'Степь' в г. Ростове-на-Дону

 

Не нашли материал для своей работы?
Поможем написать уникальную работу
Без плагиата!
Без нейросетей!