Проектирование автоматизированной газовой котельной для системы теплоснабжения Вологодского завода ЖБК и СД
ВВЕДЕНИЕ
Преамбула.
Тепловая энергия - один из основных видов энергии, используемых человеком для
обеспечения необходимых условий его жизнедеятельности. Централизованное
отопление промышленных объектов и жилищно-коммунального хозяйства от котельных
в настоящее время и на перспективу является одним из основных направлений
развития отопления. Наблюдающийся в теплоэнергетике переход на внедрение
блочного оборудования и оборудования повышенной заводской готовности постепенно
распространяется и на котельные автономного типа. К проектным решениям по
котельным автономных систем теплоснабжения предъявляются повышенные требования
в части экономичности и современного технического уровня.
Актуальность
данной выпускной квалификационной работы заключается в разработке мероприятий
по повышению эффективности работы системы теплоснабжения от котельной
Вологодского завода ЖБК и СД, а именно проектирование автоматизированной
газовой котельной для снижения тарифа на тепловую энергию потребителям.
Целью проекта
является технико-экономическое обоснование установки новой газовой
автоматизированной котельной, предназначенной для теплоснабжения жилого и
производственного сектора в районе предприятия. Была поставлена задача
показать, что строительство блочно-модульной котельной в сравнении с
существующей паровой, а также оснащение ее современным оборудованием с
автоматическим регулированием всех процессов повысит экономическую
эффективность системы теплоснабжения.
Задачи,
которые необходимо решить в ходе выполнения выпускной квалификационной работы:
1) рассчитать
тепловые нагрузки на отопление, вентиляцию и горячее водоснабжение;
2) рассчитать
расходы сетевой воды на системы отопления, вентиляции и горячего водоснабжения;
) выполнить
гидравлический расчет тепловой сети;
) подобрать
необходимое оборудование котельной (котлоагрегаты, горелочные устройства, ГРУ,
теплообменник, расширительный бак, ХВО, насосное оборудование, систему
дымоудаления);
) выполнить
компоновку котельной в соответствии с оптимальными решениями тепломеханической
схемы;
) произвести
технико-экономическое обоснование установки новой котельной.
Практическая
значимость проекта заключается в формировании обоснованного предложения по
повышению эффективности существующей системы теплоснабжения Вологодского завода
ЖБК и СД.
Социальная
значимость. Теплоснабжение это сложная как техническая, так и социальная
система, и решение проблемы повышения эффективности систем производства и
распределения тепловой энергии влияет на повышение социального удовлетворения и
благополучия населения.
1. ОПИСАНИЕ
ИСТОЧНИКА ТЕПЛОТЫ И СИСТЕМЫ ТЕПЛОСНАБЖЕНИЯ
котел газовый насосный
отопление
Целью
дипломного проекта является повышение эффективности системы теплоснабжения от
котельной завода железобетонных конструкций и строительных деталей СМТ №5 филиал
ОАО «РЖД», расположенного в юго-восточном промышленном районе г.Вологды.
Основное
производство - это выпуск железобетонных конструкций и строительных деталей,
применяемых в строительстве жилых, общественных и производственных зданий.
В настоящее
время на заводе выпускается следующая продукция: товарный бетон, сборный
железобетон, стеновые, оконные, дверные и балконные блоки, прочие столярные
изделия, доска, вагонка, плинтуса, наличники, металлоизделия для ремонта
оборудования осуществляется сушка пиломатериала, а также производство
лесопиления.
В состав
завода входят следующие цеха:
. Цех
железобетонных изделий;
.
Деревообрабатывающий цех;
.
Ремонтно-механический цех;
.
Транспортный цех;
. Паросиловой
цех.
Также в
составе завода - котельная, электроцех и сан.технический участок.
Расчетная
температура наружного воздуха для отопления, оС, tн.о=-32 оС, [1]; средняя температура наружного воздуха за
отопительный период, оС, tоп=-4,1
оС, [1]; продолжительность отопительного периода, сут, no=231 сут, [1].
В котельной
завода ЖБК и СД работают 4 котла ДКВР 6,5/13 с 1984 года: 2 водогрейных и 2
паровых.
Расчетная
тепловая нагрузка на нужды: отопления - 6367 Мкал/ч, горячего водоснабжения -
541 Мкал/ч, вентиляции - 1612 Мкал/ч.
Схема
присоединения системы теплоснабжения - непосредственная, схема тепловой сети -
двухтрубная. Температурный график отпуска тепловой энергии потребителю 95-70
оС. Самое высокое отапливаемое здание - 4 этажа. Самое удаленное здание
расположено в 639 м от котельной.
2.
ПОТРЕБЛЕНИЕ ТЕПЛОТЫ
2.1 Тепловые нагрузки на отопление и вентиляцию
Расходы
теплоты на отопление и вентиляцию производственных, жилых и общественных
зданий, Qчас, Мкал/ч, рассчитаны по формуле:
час=с*a*q*Vн*(tвн-tнр)*10-3, (2.1)
где с -
коэффициент, зависящий от единиц измерения Qчас;
a - поправочный
коэффициент, учитывающий зависимость тепловой характеристики здания qо от расчетной температуры наружного
воздуха tнр.
q - удельная тепловая отопительная
(вентиляционная) характеристики здания соответственно, зависящие от его
назначения и объема, ккал/(м3×ч×°С);
Vн - строительный объем здания по
наружному обмеру, м3, который берется из генплана или из паспорта здания,
составленного на основании проекта или по данным бюро технической
инвентаризации;
tвн - усредненная температура
внутреннего воздуха в здании, °С;
tнр - температура наружного воздуха
для проектирования отопления (температура наиболее холодной пятидневки
обеспеченностью 0,92) в районе строительства, °С.
Расходы
теплоты на отопление и вентиляцию производственных зданий, Qчаспр, Мкал/ч:
часпр=с*a*q*Vнпр*(tвн-tнр)*10-3. (2.2)
При расчете
фактических и нормативных значений потребления тепловой энергии потребителями
температуры внутреннего воздуха принимаем соответственно фактические и
расчетные.
Для
определения коэффициента a
используем формулу Б.М. Хлыбова:
a=1+0,6*(30+tн.р)/(tвн-tн.р). (2.3)
Для г.
Вологды:
a=1+0,6*(30-32)/(20+32)»0,98
Годовой
расход теплоты, Qгод, Гкал/год, на отопление:
год=10-3*24*Nгод*Qчас*(tвн-tн.ср)/(tвн-tн.р). (2.4)
Годовой расход
теплоты, Qгод, Гкал/год, на вентиляцию:
год=10-3*24*n * Nгод*Qчас*(tвн-tн.ср)/(tвн-tн.р), (2.5)
где n - количество часов работы системы
вентиляции в течение суток, час;год - продолжительность работы системы
вентиляции в течение года со среднесуточной температурой наружного воздуха
tнар, сут;н.ср - средняя температура наружного воздуха за отопительный период, °С;
Месячные
расходы теплоты на отопление зданий, Qмес, Гкал/мес:
мес=10-3*24*Qчас*Nмес*(tвн-tмес)/(tвн-tн.р). (2.6)
Месячные
расходы теплоты на вентиляцию зданий, Qмес, Гкал/мес:
мес=10-3*n *Qчас*Nмес*(tвн-tмес)/(tвн-tн.р), (2.7)
где Nмес -
число суток в расчетном месяце, сут;мес - среднемесячная температура наружного
воздуха, °С;
При
определении расчетного или фактического потребления тепловой энергии
потребителями за определенный период принимаем соответственно расчетный
(нормативный) или фактический срок работы системы теплоснабжения, фактическую
или нормативную максимальную тепловую нагрузку, а также, соответственно,
фактические или нормативные температуры внутреннего и наружного воздуха [2].
2.2 Тепловые нагрузки на горячее водоснабжение
Расходы
теплоты на горячее водоснабжение (суточный Qсут, средний часовой Qср,
максимальный часовой Qмакс), Мкал/ч:
сут = 0,001 × m × c × Gсут × (tг - tх) × r × (1 + Kт.п), (2.8)ср = Qсут/Т, (2.9)макс
= Qср × (Kч + Kт.п)/(1 + Kт.п), (2.10)
где m -
фактическое число потребителей горячей воды в здании;сут - суточная норма
расхода горячей воды в литрах на одного потребителя (потр) при средней
температуре разбираемой воды tг= 55 град для закрытой системы теплоснабжения,
л/(сут×потр); по СНиП 2.04.01-85;г - средняя
температура разбираемой потребителями горячей воды, tг= 55°С;х - средняя температура холодной
воды в отопительном периоде;
r - плотность
горячей воды; при температуре 55 град r = 0,986 кг/л;т.п = Qт.п/Qпотр - коэффициент, учитывающий долю потерь теплоты Qт.п
трубопроводами горячей воды от среднечасовой величины теплопотребления
Qпотр=Qср - Qт.п; значения которого находятся в пределах Kт.п=0,1…0,35;
Т - период
работы системы горячего водоснабжения в течение суток;ч = Gмакс/Gср -
коэффициент часовой неравномерности потребления горячей воды.
ч=(120×Gч/Gсут)×[0,2 + 0,6/(m×Gч/Gо)0,5 + 0,18/(m×Gч/Gо)], (2.11)
где Gч -
норма расхода горячей воды на одного потребителя (потр) в час наибольшего
водопотребления, л/(ч×потр);сут - суточная норма расхода горячей воды, л/(сут×потр);о - часовой расход воды
водоразборным прибором, литр/час.
При расчете
фактического и нормативного потребления тепловой энергии за определенный период
на нужды горячего водоснабжения соответственно принимаем фактическое и
нормативное время работы системы [3].
Результаты
расчета расходов тепловой энергии на горячее водоснабжение смотри в приложении
3.
3. РАСХОДЫ
СЕТЕВОЙ ВОДЫ
3.1 Расходы сетевой воды на системы отопления и вентиляции
Расчетный
расход сетевой воды на систему отопления (СО), присоединенную по зависимой
схеме, можно определить по формуле:
, (3.1)
где
- расчетная нагрузка на систему отопления, Гкал/ч;
-температура
воды в подающем трубопроводе тепловой сети при расчетной температуре наружного
воздуха для проектирования отопления, °С;
-температура
воды в обратном трубопроводе системы отопления при расчетной температуре
наружного воздуха для проектирования отопления, °С;
Расчетный
расход теплоносителя в системе вентиляции определяется по формуле:
, (3.2)
где
- расчетная нагрузка на систему вентиляции Гкал/ч;
-
расчетная температура сетевой воды после калорифера системы вентиляции, ºС.
3.2 Расходы сетевой воды на систему горячего водоснабжения
Расчетный
расход теплоносителя (греющей воды) на систему ГВС для закрытых систем
теплоснабжения при параллельной схеме включения подогревателей на систему
горячего водоснабжения определятся по формуле:
, (3.3)
где:
- температура сетевой воды в подающем трубопроводе в
точке излома температурного графика, °С;
-
температура сетевой воды после подогревателя в точке излома температурного
графика (принимается
= 30 °С);
При
отсутствии баков аккумуляторов:
, Гкал/ч. (3.4)
Для
смешанной схемы включения подогревателей на систему горячего водоснабжения, при
регулировании отпуска теплоты по отопительной нагрузке, расчетный расход
греющей воды на верхнюю ступень подогревателя определяется по формуле:
, (3.5)
, (3.6)
где
- температура холодной водопроводной воды после
теплообменного аппарата нижней ступени, принимаемая на 5 - 10 ºС ниже температуры сетевой воды в обратном
трубопроводе после системы отопления в точке излома температурного графика;
-
температура сетевой воды после теплообменного аппарата верхней ступени,
принимаемая равной температуре сетевой воды после системы отопления в точке
излома температурного графика, ºС;
Для
последовательной схемы включения подогревателей на систему горячего
водоснабжения при регулировании отпуска теплоты по отопительной нагрузке,
расчетный расход греющей воды на верхнюю ступень подогревателя определяется по
формуле:
, т/ч, (3.7)
где
- температура сетевой воды после теплообменного
аппарата верхней ступени, ºС;
, (3.8)
где
,- балансовая нагрузка на горячее водоснабжение, Гкал/ч,
при
= 1,2
Расход
сетевой воды на первую (нижнюю) ступень теплообменного аппарата определяется по
формуле:
, (3.9)
где
- расчетный расход сетевой воды на абонентский ввод,
т/ч;
-
расчетный расход сетевой воды на вторую (верхнюю) ступень теплообменного
аппарата, т/ч.
Суммарный
расход сетевой воды на абонентский ввод равен сумме расчетных расходов на отопление,
вентиляцию и ГВС
, (3.10)
4.
ГИДРАВЛИЧЕСКИЙ РАСЧЕТ ТЕПЛОВОЙ СЕТИ
4.1 Описание методики гидравлического расчета тепловых сетей
При
гидравлическом расчете тепловых сетей определяют потери давления на участках
трубопроводов для последующей разработки гидравлического режима и выявления
располагаемых напоров на тепловых пунктах потребителей. При гидравлическом
расчете определяют суммарный расчетный расход сетевой воды. Перед
гидравлическим расчетом составляют расчетную схему сети с нанесением на ней
длин и диаметров трубопроводов, местных сопротивлений и расчетных расходов
теплоносителя по всем участкам сети. Расчетная схема тепловой сети выполняется
для облегчения расчетов в «одну линию».
Формулы,
предложенные авторами А.Д. Альтшулем, Г.А. Муриным, Б.Л. Шифринсоном для
определения коэффициента гидравлического трения при одинаковых значениях
шероховатости дают практически одинаковые результаты.
Наибольшее
отклонение в значениях коэффициента
полученное
по отдельным формулам не превышает 5 % [5]. Возможные расхождения при расчете
по различным формулам незначительны по сравнению с теми ошибками, которые
обычно имеют место вследствие неопределенности в выборе значения шероховатости.
Потери
напора по длине пропорциональны эквивалентному коэффициенту местных
сопротивлений в степени 0.25 и обратно пропорциональны внутреннему диаметру
трубопровода в степени 5.25. При этом ошибки, связанные с неправильным вводом
коэффициента эквивалентной шероховатости, оказывают значительно меньшие влияния
на величину потери напора, чем не учет возможного зарастания трубопровода.
Потери
давления на участке трубопровода складываются из линейных потерь (на трение) и
потерь в местных сопротивлениях:
, (4.1)
Линейные
потери давления пропорциональны длине труб и равны:
, (4.2)
где R -
удельные потери давления на трение , кгс/м2;- длина трубопровода, м.
, (4.3)
где l - коэффициент гидравлического
трения;
u - скорость
теплоносителя, м/с;
g - плотность
теплоносителя на рассчитываемом участке трубопровода, кгс/м3;- ускорение
свободного падения, м/с2;вн - внутренний диаметр трубопровода, м;- расчетный
расход теплоносителя на рассчитываемом участке, т/ч.
Потери
давления в местных сопротивлениях находят по формуле:
, (4.4)
где Sx - сумма коэффициентов местных
сопротивлений.
Потери
давления на участке трубопровода определяют также по формуле:
, (4.5)
, (4.6)
где lпр -
приведенная длина трубопровода, м;экв - эквивалентная длина местных
сопротивлений, определяемая по формуле:
, (4.7)
При
отсутствии полных данных о характере и количестве местных сопротивлений на
трубопроводах тепловой сети эквивалентную длину местных сопротивлений
допускается определять по упрощенной формуле:
lэкв=l ´ a, м, (4.8)
где a - коэффициент, учитывающий долю
потерь давления в местных сопротивлениях по отношению к потерям давления на
трение, который при П-образных компенсаторах и диаметров трубопроводов тепловой
сети до 150 мм принимается равным 0,3.
Коэффициент
гидравлического трения l
зависит от характера движения жидкости (ламинарное или турбулентное).
При
турбулентном режиме движения жидкости коэффициент гидравлического трения l для стальных трубопроводов находят
по разным формулам, выбираемым в зависимости от предельного значения числа
Рейнольдса Reпр, характеризующего границы переходной области и области
квадратичного закона.
При Re<Reпр (переходная область) коэффициент
трения определяют по формуле Кольбрука-Уайта:
, (4.9)
где Re -
число Рейнольдса;экв - эквивалентная шероховатость внутренней поверхности
трубы.
Тепловые
сети, как правило, работают при турбулентном режиме движения теплоносителя в
квадратичной области, поэтому коэффициент гидравлического трения определяется
формулой Прандтля-Никурадзе:
. (4.10)
Величину
эквивалентной шероховатости труб действующих тепловых сетей определяют при
гидравлических испытаниях. При значениях эквивалентной шероховатости, отличных
от Kэкв =3 мм, на величину удельных потерь давления вводится поправочный
коэффициент b .
В этом случае
(4.11)
или
. (4.12)
Характеристика
рассчитываемой тепловой сети приведен в приложении Г. Гидравлический расчет
тепловой сети от котельной завода ЖБК и СД выполнен на компьютере с помощью
электронного редактора MS Excel пакета MS Office. Результаты расчета см. в прил. 4.
4.2 Расчет
дроссельных устройств
Для
обеспечения расчетного гидравлического режима необходимо погасить избыточные
располагаемые напоры в системах теплопотребления, что достигается в данной
системе установкой дроссельных диафрагм.
Диаметр
дроссельной диафрагмы, dш, мм, определяют по следующей формуле:
, (4.13)
где Низб -
избыточный напор, м;
Низб=DРрасп -2
DРi -DРпотр, (4.14)
гдеDРрасп - располагаемый перепад давления в начальной точке сети, м;
DРi - потери давления
на участке сети, м;
DРпотр - потери
давления у потребителя, м;
Минимальный
диаметр отверстия дроссельной диафрагмы во избежание засорения 3 мм. При
расчетном диаметре диафрагмы менее 3 мм избыточный напор дросселируют в двух
диафрагмах, устанавливают их последовательно (на расстоянии не менее 10 диаметров
трубопроводов), либо на подающем и обратном трубопроводах. Дроссельные
диафрагмы, как правило, устанавливают во фланцевых соединениях (на тепловом
пункте после грязевика) между запорной арматурой, что позволяет заменять их без
спуска воды из системы. [6]
Место
установки дроссельных шайб перед системой отопления зависит от значения напора
в обратном трубопроводе. Величина требуемого напора, обеспечивающего залив
системы отопления, по умолчанию на 4 метра выше высоты здания. Если величина
фактического напора в обратном трубопроводе меньше, чем высота здания плюс 4
метра, т.е. имеет место опорожнение системы отопления, то дроссельные шайбы
предусматриваются на обратном трубопроводе, в противном случае - на подающем.
Результаты
расчета дроссельных устройств приведены в приложениях 5 и 6.
4.3 Тепловые потери и величина охлаждения воды в трубопроводах
При движении
теплоносителя в трубопроводах от котельной до потребителя существуют тепловые
потери, которые складываются из двух составляющих:
) теплопотери
участков трубопровода, не имеющих арматуры и фасонных частей - линейные потери;
) теплопотери
фасонных частей, арматуры, опорных конструкций, фланцев и т.д. - местные
теплопотери.
Суммарные
теплопотери трубопроводов определяются по формуле:
, (4.15)
где q -
удельные теплопотери изолированными теплопроводами; при подземной прокладке -
суммарно по обоим трубопроводам, при надземной - по одному трубопроводу
приведены для каждого наружного диаметра труб и разности среднегодовых
температур воды и окружающей среды (грунта - при подземной прокладке и воздуха
- при надземной прокладке);- длина участка тепловой сети, характеризующегося
одинаковым диаметром трубопровода и типом прокладки (подземная или надземная);
b - коэффициент
местных теплопотерь, для подземной прокладки b=0,25.
Для
определения величины остывания теплоносителя составим уравнение теплового
баланса:
, (4.16)
где G -
расход теплоносителя на участке, т/ч;
t1 и t2 - температуры теплоносителя в
начале и в конце участка,°С.
Тогда
величина остывания воды на участке при движении будет определяться по формуле:
. (4.17)
Результаты
расчета приведены в приложении 7.
4.4 Пьезометрический график
Пьезометрический
график представляет собой графическое изображение напоров в тепловой сети
относительно местности, на которой она проложена. На пьезометрическом графике в
определенном масштабе наносят рельеф местности, высоту присоединенных зданий,
величины напоров в сети. На горизонтальной оси графика откладывают длину сети,
а на вертикальной оси - напоры. Линии напоров в сети наносят как для рабочего,
так и для статического режимов. Пьезометрический график строят следующим
образом:
) принимая за
ноль отметку самой низкой точки тепловой сети, наносят профиль местности по
трассе основной магистрали и ответвлений, отметки земли которых отличаются от
отметок магистрали. На профиле проставляют высоты присоединенных зданий;
) наносят
линию, определяющую статический напор в системе (статический режим). Если
давление в отдельных точках системы превышает пределы прочности, необходимо
предусмотреть подключение отдельных потребителей по независимой схеме или
деление тепловых сетей на зоны с выбором для каждой зоны своей линии
статического напора. В узлах деления устанавливают автоматические устройства
рассечки и подпитки тепловой сети;
) наносят
линию напоров обратной магистрали пьезометрического графика. Уклон линии
определяют на основании гидравлического расчета тепловой сети. Высоту
расположения линии напоров на графике выбирают с учетом вышеприведенных
требований к гидравлическому режиму. При неровном профиле трассы не всегда
возможно одновременно выполнять требования заполнения верхних точек систем
теплопотребления, не превысив допустимые давления. В этих случаях выбирают
режим, соответствующий прочности нагревательных приборов, а отдельные системы,
залив которых не будет обеспечен вследствие низкого расположения
пьезометрической линии обратного трубопровода, оборудуют индивидуальными
регуляторами.
Линия
пьезометрического графика обратного трубопровода магистрали в точке пересечения
с ординатой, соответствующей началу теплосети, определяет необходимый напор в
обратном трубопроводе водоподогревательной установки (на входе сетевого
насоса), обеспечиваемый подпиточным насосом;
) наносят
линию подающей магистрали пьезометрического графика. Уклон линии определяют на
основании гидравлического расчета тепловой сети. При выборе положения
пьезометрического графика учитывают предъявляемые к гидравлическому режиму
требования и гидравлические характеристики сетевого насоса. Линия
пьезометрического графика подающего трубопровода в точке пересечения с
ординатой, соответствующей началу теплосети, определяет требуемый напор на
выходе из подогревательной установки. Напор в любой точке тепловой сети
определяется величиной отрезка между данной точкой и линией пьезометрического
графика подающей или обратной магистрали.
Пьезометрический
график приведен на рисунке 4.1.
Рисунок 4.1 - Пьезометрический график тепловой сети (Котельная -
Ремстройпуть)
5.
РЕГУЛИРОВКА ВОДЯНЫХ ТЕПЛОВЫХ СЕТЕЙ
5.1 Основные положения
Регулировку
водяных тепловых сетей осуществляют для обеспечения нормального теплоснабжения
потребителей. В результате наладки создаются необходимые условия для работы
систем отопления, приточной вентиляции, кондиционирования воздуха и горячего
водоснабжения и повышаются технико-экономические показатели централизованного
теплоснабжения за счет увеличения пропускной способности тепловых сетей,
ликвидации перегрева потребителей, снижения расхода электроэнергии на перекачку
теплоносителя.
Наладку
выполняют во всех звеньях централизованного теплоснабжения: в подогревательной
установке источника теплоты, тепловой сети, тепловых пунктах и системах
теплопотребления. Наладочные работы выполняют в три этапа:
) обследуют и
испытывают систему централизованного теплоснабжения с последующей разработкой
мероприятий, обеспечивающих эффективность ее работы;
)
осуществляют разработанные мероприятия;
) регулируют
систему.
В результате
обследования выявляют фактические эксплуатационные режимы, уточняют тип и
состояние оборудования системы теплоснабжения, определяют характер и величину
тепловых нагрузок, необходимость и объем испытаний тепловых сетей и
оборудования.
При
выполнении мероприятий по наладке производят следующие работы: устраняют
дефекты строительных конструкций и оборудования; приводят схемы и оборудование
водоподогревательной установки, тепловых сетей. Подкачивающих насосных станций,
тепловых пунктов и систем теплопотребления в соответствии с рекомендациями,
основывающимися на выполненных расчетах и разработанных тепловых и
гидравлических режимах; оснащают все звенья системы теплоснабжения необходимыми
контрольно-измерительными приборами в соответствии с требованиями нормативных
документов; автоматизируют отдельные узлы системы теплоснабжения; устраивают
насосные и дроссельные станции; устанавливают дроссельные и смесительные
устройства.
К регулировке
систем централизованного теплоснабжения приступают только после выполнения всех
разработанных мероприятий по наладке. В процессе регулировки проверяют прогрев
теплоиспользующих установок при работе источника теплоты в разработанных
тепловых и гидравлических режимах, а также соответствие фактических расходов
теплоносителя расчетным, корректируют диаметры отверстий сопел элеваторов и
дроссельных диафрагм, настраивают автоматические регуляторы [7].
Эффективность
наладки тепловых сетей характеризуется следующими показателями: сокращением
расходов топлива за счет ликвидации перегрева систем теплопотребления;
сокращением расхода электроэнергии на перекачку теплоносителя за счет снижения
удельного расхода сетевой воды и отключения излишних насосных станций;
обеспечением возможности подключения к сетям дополнительных теплопотребителей,
сокращением расходов топлива на выработку электроэнергии за счет снижения
температуры воды в обратных трубопроводах тепловой сети (в теплофикационных
системах).
5.2 Регулировка тепловой сети
Регулирование
тепловых сетей является заключительным этапом проведения наладочных работ.
Задача регулирования состоит в том, чтобы в работающей тепловой сети достигнуть
расчетных (заданных) гидравлических и тепловых режимов и нормального теплоснабжения
всех подключенных потребителей. Регулирование следует проводить во всех звеньях
системы: в теплоприготовительной установке источника теплоты, тепловых сетях,
тепловых пунктах и местных системах теплопотребления. При регулировании системы
теплоснабжения обеспечивают расчетную циркуляцию воды в тепловых сетях,
распределение теплоносителя между всеми подключенными системами
теплопотребления, а внутри них распределение теплоносителя по теплопотребляющим
приборам в строгом соответствии с расчетной тепловой нагрузкой. Распределение
теплоносителя между теплопотребляющими приборами в соответствии с их нагрузкой
обеспечивает в помещениях расчетную внутреннюю температуру при условии
соответствия поверхности нагрева установленных отопительно-вентиляционных
приборов расчетным теплопотерям этих помещений. В противном случае результаты
регулировки позволяют дать рекомендации об изменении установленной поверхности
нагрева.
Регулировке
подлежат все абоненты, подключенные к сетям от одного источника теплоты. Если
какой-либо потребитель в данной системе теплоснабжения не подвергается наладке,
он должен быть на тепловом пункте строго ограничен по расходомеру расчетным
расходом воды с помощью регулятора расхода или при его отсутствии - дроссельной
диафрагмой, задвижкой и т. п. Регулировка систем теплопотребления и отдельных
теплопотребляющих приборов сводится к проверке соответствия фактических
расходов воды расчетным [8].
Скорректированный
диаметр отверстия дроссельной диафрагмы d', мм, в случае возможности определения
фактического гидравлического сопротивления системы теплопотребления находят по
формуле:
, (5.1)
где d -
первоначальный диаметр отверстия диафрагмы, мм;
Н -
располагаемый напор перед системой теплопотребления, м;' - фактическое
гидравлическое сопротивление системы теплопотребления, м.
В случае,
когда фактическое гидравлическое сопротивление системы теплопотребления
замерить невозможно, скорректированный диаметр отверстия дроссельной диафрагмы
d', мм, определяют по формуле:
, (5.2)
где h -
расчетное гидравлическое сопротивление системы теплопотребления, м.
При малом
гидравлическом сопротивлении по сравнению с располагаемым напором перед
системой для нахождения скорректированного диаметра дроссельной диафрагмы d',
мм, используют формулу:
, (5.3)
Перед
регулировкой систему теплопотребления промывают и полностью удаляют воздух из
приборов и трубопроводов. Необходимо следить за соблюдением требуемых уклонов
разводящих магистралей и подводок к нагревательным приборам, обеспечивающим
удаление воздуха из систем отопления, а также за горизонтальностью установки
радиаторов во избежание образования в них воздушных мешков.
6. Проектирование тепломеханической части котельной
.1 Исходные данные
Исходные
данные для выпускной квалификационной работы представлены в таблице 6.1.
Таблица 6.1 - Исходные данные
|
Наименование
|
Численное значение
|
Ед. измерения
|
|
Местоположение (город,
область)
|
г. Вологда
|
|
Вид застройки (жилой или
административный сектор)
|
Промышленная зона
|
|
Климатические данные:
|
|
Температура наиболее
холодной пятидневки
|
-32
|
°С
|
|
Средняя температура за
отопительный период
|
-4,1
|
°С
|
|
Расчетная летняя
температура воздуха
|
22,3
|
°С
|
|
Продолжительность
отопительного периода
|
231
|
сут./год
|
|
Расчетная тепловая нагрузка
на нужды
|
|
- отопления
|
6367
|
Мкал/ч
|
|
- горячего водоснабжения
|
541
|
Мкал/ч
|
|
- вентиляции
|
1612
|
Мкал/ч
|
|
Характеристика системы
теплоснабжения
|
|
Схема присоединения системы
теплоснабжения (зависимая - элеваторная или насосная; независимая;
непосредственная)
|
непосредственная
|
|
Схема тепловой сети
(двухтрубная; четырехтрубная)
|
двухтрубная
|
|
Тип устанавливаемых
отопительных приборов у потребителя (радиаторы, регистры, конвекторы)
|
радиаторы
|
|
Температурный график
отпуска тепловой энергии потребителю
|
95-70
|
°С
|
|
Гидравлическое
сопротивление трубопровода
|
81
|
кПа
|
|
Водяной объем системы
трубопроводов
|
77
|
м3
|
|
Количество этажей самого
удаленного здания
|
4
|
шт.
|
|
Количество этажей
близлежащего здания в радиусе 10 м
|
4
|
шт.
|
|
Расстояние до самого
удаленного здания
|
639
|
м
|
|
Топливо
|
|
Месторождение
|
Ухтинское
|
|
Теплота сгорания
|
8048
|
кДж/м3
|
|
Плотность топлива
|
0,786
|
кг/м3
|
Определение
теплоты сгорания газа, кДж/м3 и его плотности, кг/м3 производится в
соответствии с формулами (6.1) и (6.2):
,
МДж/м3(6.1)
,
ккал/м3. (6.2)
6.2 Построение температурного графика отпуска тепловой энергии
потребителям
Поддержание
постоянной температуры в помещении осуществляется путем изменения температуры
теплоносителя, отпускаемого потребителю с котельной в соответствии с
установленным для данной системы теплоснабжения температурным графиком отпуска
тепловой энергии потребителям. Данный график устанавливает соотношение
температур в подающей и обратной магистралях тепловой сети в зависимости от
температуры наружного воздуха для создания комфортной температуры внутри
помещения.
Средняя
расчетная температура внутреннего воздуха отапливаемых зданий tвн, принимается
согласно норм [1].
Фактические
температуры определяются по следующим формулам:
(6.3)
(6.4)
(6.5)
(6.6)
(6.7)
где

-
усреднённая температура внутреннего воздуха, °С;

-
расчётная температура внутреннего воздуха в помещении принимается равной 16°С;

-
расчётная температура наружного воздуха, °С;

-
температура наружного воздуха наиболее холодной пятидневки обеспеченностью 0,92
для города Вологды принимается равным -32°С;

-
температура в подающем трубопроводе при расчетной температуре наружного
воздуха, °С;

-
температура в подающем трубопроводе при расчетной температуре наружного воздуха
равной -32 °С составляет 95 °С;

-
температура в обратном трубопроводе при расчетной температуре наружного
воздуха, °С;

-
температура в обратном трубопроводе при расчетной температуре наружного воздуха
равной -32 °С составляет 70 °С;

-
температура на входе в систему отопления при расчетной температуре наружного
воздуха, °С;

-
температура на входе в систему отопления при расчетной температуре наружного
воздуха равной -32°С принимается равной 95°С;

-
безразмерный коэффициент подмеса в тепловом пункте потребителя.
В
таблице 6.2 указаны исходные данные
для расчета графика.
Таблица 6.2 -
Исходные данные для построения температурного графика отпуска тепловой энергии
потребителю водогрейной котельной
|
Показатель
|
Размерность
|
Значение
|
|
Расчетная температура
подающего трубопровода
|
оС
|
95
|
|
Расчетная температура
обратного трубопровода
|
оС
|
70
|
|
Расчетная температура
наружного воздуха
|
оС
|
-32
|
|
Расчетная температура
внутреннего воздуха
|
оС
|
16
|
|
Расчетная температура воды
на входе в систему отопления
|
оС
|
95
|
|
Коэффициент смешения
|
-
|
0
|
Расчет
ведется в табличной форме для всего диапазона температур наружного воздуха по
уравнениям (6.3) - (6.6). Результаты расчета приведены в таблице 6.3.
Таблица 6.3 -
Расчетные данные для построения температурного графика отпуска тепловой энергии
потребителю
|
Температура среды, оС
|
|
Наружный воздух
|
Внутренний воздух
|
Подающий трубопровод
|
Обратный трубопровод
|
Система отопления
|
|
1
|
2
|
3
|
4
|
5
|
|
-32
|
16
|
95
|
70
|
95
|
|
-31
|
16
|
94
|
69
|
94
|
|
-30
|
16
|
92
|
68
|
92
|
|
-29
|
16
|
91
|
67
|
91
|
|
-28
|
16
|
89
|
67
|
89
|
|
-27
|
16
|
88
|
66
|
88
|
|
-26
|
16
|
87
|
65
|
87
|
|
-25
|
16
|
85
|
64
|
85
|
|
-24
|
16
|
84
|
63
|
84
|
|
-23
|
16
|
82
|
62
|
82
|
|
-22
|
16
|
81
|
61
|
81
|
|
-21
|
16
|
80
|
60
|
80
|
|
-20
|
16
|
78
|
59
|
78
|
|
-19
|
16
|
77
|
59
|
77
|
|
-18
|
16
|
75
|
58
|
75
|
|
-17
|
16
|
74
|
57
|
74
|
|
-16
|
16
|
72
|
56
|
72
|
|
-15
|
16
|
71
|
55
|
71
|
|
-14
|
16
|
70
|
54
|
70
|
|
-13
|
16
|
70
|
55
|
70
|
|
-12
|
16
|
70
|
55
|
70
|
|
-11
|
16
|
70
|
56
|
70
|
|
-10
|
16
|
70
|
56
|
70
|
|
-9
|
16
|
70
|
57
|
70
|
|
-8
|
16
|
70
|
58
|
70
|
|
-7
|
16
|
70
|
58
|
70
|
|
-6
|
16
|
70
|
59
|
70
|
|
-5
|
16
|
70
|
59
|
70
|
|
-4
|
16
|
70
|
60
|
70
|
|
-3
|
16
|
70
|
60
|
70
|
|
-2
|
16
|
70
|
61
|
70
|
|
-1
|
16
|
70
|
61
|
70
|
|
0
|
16
|
70
|
62
|
70
|
|
1
|
16
|
70
|
62
|
70
|
|
2
|
16
|
70
|
63
|
|
3
|
16
|
70
|
63
|
70
|
|
4
|
16
|
70
|
64
|
70
|
|
5
|
16
|
70
|
64
|
70
|
|
6
|
16
|
70
|
65
|
70
|
|
7
|
16
|
70
|
65
|
70
|
|
8
|
16
|
70
|
66
|
70
|
|
9
|
16
|
70
|
66
|
70
|
|
10
|
16
|
70
|
67
|
70
|
|
11
|
16
|
70
|
67
|
70
|
|
12
|
16
|
70
|
67
|
70
|
|
13
|
16
|
70
|
67
|
70
|
|
14
|
16
|
70
|
67
|
70
|
|
15
|
16
|
70
|
67
|
70
|
|
16
|
16
|
70
|
67
|
70
|
|
17
|
16
|
70
|
67
|
70
|
|
18
|
16
|
70
|
67
|
70
|
|
19
|
16
|
70
|
67
|
70
|
|
20
|
16
|
70
|
67
|
70
|
|
21
|
16
|
70
|
67
|
70
|
|
22,3
|
16
|
70
|
67
|
70
|
Температурный
график отпуска тепловой энергии потребителю показан на рисунке 6.1.
Рисунок 6.1 - Отопительно-бытовой график отпуска тепловой энергии
потребителю водогрейной котельной для двухтрубной схемы тепловой сети
6.3 Подбор основного оборудования
.3.1 Подбор котлов и газового оборудования
Газовый
водогрейный котёл - устройство для получения тепловой энергии в целях, главным
образом, отопления помещений (объектов) различного назначения, нагрева воды для
хозяйственных и иных целей, путем сгорания газообразного топлива.
Режимы
теплопотребления.
При подборе
котлов требуется знать режимы теплопотребления. В практике проектирования
котельных установок приняты следующие режимы:
максимально-зимний
режим (режим, соответствующий расчетной температуре наружного воздуха для
проектирования отопления tнв);
среднеотопительный
режим (режим, соответствующий средней температуре наружного воздуха за
отопительный период tн.ср) ;
летний режим
(режим, соответствующий требуемой температуре воды на нужды горячего
водоснабжения tгв).
Тепловая
нагрузка на нужды теплоснабжения и водоснабжения для расчетного режима
теплопотребления, Мкал/ч, определяется по следующим выражениям для двухтрубной
схемы тепловой сети:
(6.8)
где Qтс - тепловая нагрузка на нужды
теплоснабжения, Мкал/ч;
Qрот и
Qот - соответственно расчетная и
фактическая нагрузка на отопление и вентиляцию, Мкал/ч;
Qгвр и
Qгв - соответственно расчетная и
фактическая нагрузка на горячее водоснабжение, Мкал/ч;
tвнр и
tвн - соответственно расчетная и
фактическая температура внутреннего воздуха помещения, °С;
tнвр и
tнв - соответственно расчетная и
фактическая температура наружного воздуха, °С;
tгр и tг - соответственно расчетная и
фактическая температура горячей воды, °С;
tхр и tх - соответственно расчетная и
фактическая температура холодной воды, °С.
Расход сетевой воды может быть определен по уравнению (6.9).
(6.9)
где
t1 и t2 - соответственно фактические температуры теплоносителя в подающей и
обратной магистрали тепловой сети для даннойтемпературы рассматриваемого режима
теплопотребления, °С.
В общем
случае, тепловая нагрузка на нужды теплоснабжения зависит от следующих
показателей:
требуемая
тепловая нагрузка на нужды отопления, вентиляции и горячего водоснабжения;
перспективная
нагрузка на нужды отопления, вентиляции и горячего водоснабжения (обычно
величина задается как процент от требуемой тепловой нагрузки в виду
необходимости обеспечить перспективу развития системы теплоснабжения и
соответствовать темпам строительства жилья в рассматриваемом районе);
- собственные нужды котельной (расход теплоты на технологические процессы
подготовки воды, отопление помещений котельной и вспомогательных зданий,
бытовые нужды персонала и т.п.); 2,2% 1,5 %
транспортные потери теплоты (количество теплоты, теряемое при
транспортировании теплоносителя от теплоисточника до потребителя).
В двухтрубной схеме отпуск на нужды теплоснабжения организован совместно
с отпуском на нужды горячего водоснабжения, поэтому итоговая нагрузка
рассчитывается суммарной для СО и СГВ с учетом потерь и перспективы (таблица 6.4).
Таблица 6.4 - Определение тепловой нагрузки на нужды теплоснабжения для
двухтрубной схемы тепловых сетей
|
Показатель
|
Процент
|
СОВ
|
ГВС
|
СОВ+ГВС
|
Ед. изм.
|
|
Тепловая нагрузка на
отопление, вентиляцию и горячее водоснабжение
|
|
без перспективы
|
100%
|
7979
|
541
|
8520
|
Мкал/ч
|
|
перспектива
|
0%
|
7979
|
541
|
8520
|
Мкал/ч
|
|
ИТОГО с перспективой
|
|
7979
|
541
|
8520
|
Мкал/ч
|
|
собственные нужды
|
5%
|
399
|
27
|
426
|
Мкал/ч
|
|
транспортные потери теплоты
|
7%
|
559
|
38
|
596
|
Мкал/ч
|
|
ИТОГО с потерями
|
|
8936
|
606
|
9542
|
Мкал/ч
|
|
|
10393
|
705
|
11098
|
кВт
|
Результаты
расчета режимов теплопотребления сводятся в таблице 6.5.
Таблица 6.5 - Сводные данные по режимам теплопотребления
|
Режим теплопотребления
|
Макс-зим.
|
Среднеотоп.
|
Летний
|
Ед. изм.
|
|
Температура наружного
воздуха
|
-32
|
-3,1
|
22,3
|
°С
|
|
Температура холодной воды
|
5
|
5
|
15
|
°С
|
|
Температура в помещении
|
16
|
16
|
22,3
|
°С
|
|
Тепловая нагрузка на нужды
отопления, вентиляции и горячего водоснабжения
|
9 542
|
4 162
|
757
|
Мкал/ч
|
|
Расход сетевой воды на
нужды -отопления и вентиляции -горячего водоснабжения
|
381,7
|
420,6
|
252,5
|
т/ч
|
Количество котлов, необходимых к установке, определяется исходя из
тепловой нагрузки на систему отопления и горячего водоснабжения для
максимально-зимнего периода. Согласно СНиП II-35-76 «Котельные установки», для
нужд отопления и вентиляции требуется как минимум два котла, один из которых
будет работать в среднеотопительный период, когда тепловая нагрузка значительно
снижается, или, в случае аварии, может служить резервным.
Кроме того,
при выборе следует останавливаться на котлах одной марки, обладающих
максимальным КПД, а также требуемой температурой на выходе. При этом
температура после котла должна быть больше или равна температуре в подающем
трубопроводе в соответствии с расчетным температурным графиком. Наиболее
рациональным является подбор котлов равной производительности.
Результаты подбора котлов показаны в таблице 6.6.
Таблица 6.6 - Сводные данные по характеристике котлоагрегатов
|
Показатель
|
1 котел
|
2 котел
|
Ед.изм.
|
|
Производительность/марка
|
ЗИОСАБ - М3500
|
ЗИОСАБ - М750
|
-
|
|
Мощность
|
3500
|
750
|
кВт
|
|
Количество
|
3
|
1
|
шт
|
|
Расход топлива
|
379,5
|
81,3
|
м3/ч
|
|
КПД котла
|
92
|
92
|
%
|
|
Давление по газу
|
-
|
-
|
кПа
|
|
Сопротивление газового
тракта
|
950
|
700
|
Па
|
|
Сопротивление водяного
тракта
|
2,5
|
2,5
|
кПа
|
|
Водяная емкость котла
|
4,3
|
0,91
|
м3
|
|
Длина камеры сгорания
|
3673
|
2260
|
мм
|
|
Габаритные размеры
|
4690х1970х2192
|
3120х1260х1475
|
мм
|
Так же
подбираем один паровой котел. Паровой котел - это устройство, имеющее систему
поверхностей нагрева для получения пара из непрерывно поступающей в него питательной
воды путем использования теплоты, выделяющейся при сгорании органического
топлива.
Для подбора
необходимо рассчитать требуемую паропроизводительность котла, которая
находиться из уравнения (6.10).
(6.10)
Из расчетов
паропроизводительность равна 3,98 т/ч. Исходя из этого подбираем котел.
Результаты подбора котлов показаны в таблице 6.7.
Таблица 6.7 - Сводные данные по характеристике котлоагрегата
|
Показатель
|
1 котел
|
Ед.изм.
|
|
Производительность/марка
|
ЗИОСАБ FR-25-4-16
|
-
|
|
Паропроизводительность
|
4
|
т/ч
|
|
Количество
|
1
|
шт
|
|
Расход топлива
|
721
|
м3/ч
|
|
КПД котла
|
90
|
%
|
|
Давление пара рабочее
|
1,4
|
МПа
|
|
Сопротивление газового
тракта
|
1080
|
Па
|
|
Длина камеры сгорания
|
3410
|
мм
|
|
Габаритные размеры
|
4680x2750x2650
|
мм
|
График
загрузки и переключения котлов является наглядным изображением величины
производительности котлов при их совместной работе по общей выработке тепловой
энергии на нужды отопления и горячего водоснабжения.
Коэффициент загрузки,
%, котла определяется по уравнению 6.11.
,
(6.11)
где Zк - загрузка котлоагрегата,
;
Qк -
теплопроизводительность котлоагрегата, кВт;
Nк -
количество работающих котлоагрегатов, шт;
Qот -
требуемая тепловая нагрузка при данной температуре, кВт.
Расчетные
данные для построения графика переключения котлов показаны в таблице 6.8.
Таблица 6.8 - Расчетные данные для построения графика переключения работы
водогрейных котлов
|
Температура наружного воздуха,
°С
|
Требуемая тепловая
нагрузка, кВт
|
Мощность 1 котла, кВт
|
Количество 1 котлов, шт
|
Мощность 2 котла, кВт
|
Количество 1 котлов, шт
|
Загрузка 1 котла, %
|
Загрузка 2 котла, %
|
|
1
|
2
|
3
|
4
|
5
|
6
|
7
|
8
|
|
-32
|
11097,8
|
3500
|
3
|
750
|
1
|
99
|
94
|
|
-31
|
10881,3
|
3500
|
3
|
750
|
1
|
97
|
94
|
|
-30
|
10664,8
|
3500
|
3
|
750
|
1
|
95
|
94
|
|
-29
|
10448,2
|
3500
|
3
|
750
|
1
|
93
|
94
|
|
-28
|
10231,7
|
3500
|
3
|
750
|
1
|
91
|
94
|
|
-27
|
10015,2
|
3500
|
3
|
750
|
1
|
89
|
94
|
|
-26
|
9798,7
|
3500
|
750
|
1
|
87
|
94
|
|
-25
|
9582,1
|
3500
|
3
|
750
|
1
|
85
|
94
|
|
-24
|
9365,6
|
3500
|
3
|
750
|
1
|
82
|
94
|
|
-23
|
9149,1
|
3500
|
3
|
750
|
1
|
80
|
94
|
|
-22
|
8932,6
|
3500
|
3
|
750
|
1
|
78
|
94
|
|
-21
|
8716,1
|
3500
|
3
|
750
|
1
|
76
|
94
|
|
-20
|
8499,5
|
3500
|
3
|
750
|
1
|
74
|
94
|
|
-19
|
8283,0
|
3500
|
3
|
750
|
1
|
72
|
94
|
|
-18
|
8066,5
|
3500
|
3
|
750
|
1
|
70
|
94
|
|
-17
|
7850,0
|
3500
|
3
|
750
|
1
|
68
|
94
|
|
-16
|
7633,4
|
3500
|
2
|
750
|
1
|
99
|
94
|
|
-15
|
7416,9
|
3500
|
2
|
750
|
1
|
96
|
94
|
|
-14
|
7200,4
|
3500
|
2
|
750
|
1
|
93
|
94
|
|
-13
|
6983,9
|
3500
|
2
|
750
|
1
|
90
|
94
|
|
-12
|
6767,3
|
3500
|
2
|
750
|
1
|
87
|
94
|
|
-11
|
6550,8
|
3500
|
2
|
750
|
1
|
84
|
94
|
|
-10
|
6334,3
|
3500
|
2
|
750
|
1
|
80
|
94
|
|
-9
|
6117,8
|
3500
|
2
|
750
|
1
|
77
|
94
|
|
-8
|
5901,2
|
3500
|
2
|
750
|
1
|
74
|
94
|
|
-7
|
5684,7
|
3500
|
2
|
750
|
1
|
71
|
94
|
|
-6
|
5468,2
|
3500
|
2
|
750
|
1
|
68
|
94
|
|
-5
|
5251,7
|
3500
|
2
|
750
|
1
|
65
|
94
|
|
-4
|
5035,2
|
3500
|
2
|
750
|
1
|
62
|
94
|
|
-3
|
4818,6
|
3500
|
2
|
750
|
1
|
59
|
94
|
|
-2
|
4602,1
|
3500
|
2
|
750
|
1
|
56
|
94
|
|
-1
|
4385,6
|
3500
|
2
|
750
|
1
|
53
|
94
|
|
0
|
4169,1
|
3500
|
1
|
750
|
1
|
99
|
94
|
|
1
|
3952,5
|
3500
|
1
|
750
|
1
|
93
|
94
|
|
2
|
3736,0
|
3500
|
1
|
750
|
1
|
87
|
94
|
|
3
|
3519,5
|
3500
|
1
|
750
|
1
|
80
|
94
|
|
4
|
3303,0
|
3500
|
1
|
750
|
1
|
74
|
94
|
|
5
|
3086,4
|
3500
|
1
|
750
|
1
|
68
|
94
|
|
6
|
2869,9
|
3500
|
1
|
750
|
1
|
62
|
94
|
|
7
|
2653,4
|
3500
|
1
|
750
|
1
|
56
|
94
|
|
8
|
2436,9
|
3500
|
1
|
750
|
1
|
49
|
94
|
|
9
|
2220,3
|
3500
|
1
|
750
|
1
|
43
|
94
|
|
10
|
2003,8
|
3500
|
1
|
750
|
1
|
37
|
94
|
|
11
|
563,7
|
3500
|
0
|
750
|
1
|
0
|
75
|
|
12
|
563,7
|
3500
|
0
|
750
|
1
|
0
|
75
|
|
13
|
563,7
|
3500
|
0
|
750
|
1
|
0
|
75
|
|
14
|
563,7
|
3500
|
0
|
750
|
1
|
0
|
75
|
|
15
|
563,7
|
3500
|
0
|
750
|
1
|
0
|
75
|
|
16
|
563,7
|
3500
|
0
|
750
|
1
|
0
|
75
|
|
17
|
563,7
|
3500
|
0
|
750
|
1
|
0
|
75
|
|
18
|
563,7
|
0
|
750
|
1
|
0
|
75
|
|
19
|
563,7
|
3500
|
0
|
750
|
1
|
0
|
75
|
|
20
|
563,7
|
3500
|
0
|
750
|
1
|
0
|
75
|
|
21
|
563,7
|
3500
|
0
|
750
|
1
|
0
|
75
|
|
22,3
|
563,7
|
3500
|
0
|
750
|
1
|
0
|
75
|
График
переключения работы четырех водогрейных котлов разной производительности
представлен на рисунке 6.2.
Рисунок 6.2 - График переключения работы четырех водогрейных котлов
разной производительности ЗИОСАБ М-3500 и ЗИОСАБ М-750
6.3.2 Подбор горелочных устройств
Газовые
горелки необходимы для подачи газа в дозированных количествах в зону сгорания и
поддержания заданных тепловых характеристик во время горения. Устройства
работают в автоматическом режиме. Основные элементы горелок: смеситель,
горелочная насадка и стабилизирующее устройство.
На выбор
горелки для котла влияют следующие факторы:
1. Мощность.
Значение мощности горелки должно быть больше топочной мощности котла.
2. Тип
регулирования мощности.
. Тип
топлива.
. Давление
газа перед горелкой и диаметр газовой арматуры.
Учитывая все
факторы, подбираем одну горелку Ecoflam BLU 1000.1 PR мощностью до 875 кВт для
котла ЗИОСАБ - М750 и три горелочных устройства Ecoflam BLU 4000.1 PR мощностью
до 3900 кВт для котлов ЗИОСАБ - М3500. Характеристики горелочных устройств
приведены в приложениях 11 и 12 в соответствии с данными [10].
6.3.3 Подбор ГРУ
Подбор
осуществляется исходя из максимального и минимального давления газа на входе в
котельную, давления подключения газа к горелкам и максимальный и минимальный
расходы газа.
Устанавливаем
газорегуляторную станцию ГСГО-02 с одной линией редуцирования на базе
регулятора давления РДБК1-50 и байпасом, предназначенный для снижения давления
природного газа, автоматического поддержания выходного давления в заданных
пределах независимо от изменения входного давления и расхода газа, очистки его
от механических примесей, блокировки подачи газа при критическом изменении
заданных параметров давления и учета расхода газа.
Характеристики
подобранных газорегуляторного пункта и регулятора давления газа в соответствии
с данными [11] и [12] приведены в таблицах 6.9 и 6.10.
Таблица 6.9 - Характеристики газорегуляторного пункта ГСГО-02
|
Показатель
|
Давление
|
Ед. изм.
|
|
минимальное
|
максимальное
|
|
|
1
|
2
|
3
|
4
|
|
Исходные данные
|
|
Давление на входе
|
0,1
|
0,6
|
МПа
|
|
Давление на выходе
|
5
|
кПа
|
|
Максимальный расход газа
|
1051
|
м3/ч
|
|
Минимальный расход газа
|
54
|
м3/ч
|
|
Технические характеристики
|
|
Тип ГРП
|
Газорегуляторная станция
|
|
Марка
|
ГСГО-02
|
|
Регулятор давления
|
РДБК1-50
|
|
Загрузка ГРП:
|
|
- при максимальном расходе
|
74,3
|
20,7
|
%
|
|
- при минимальном расходе
|
19,1
|
5,3
|
%
|
|
Габариты
|
1550 х 1900 х 760
|
мм
|
|
Масса
|
250
|
кг
|
Таблица 6.10 - Характеристики регулятора давления РДГ - 50Н
|
Показатель
|
Значение
|
Ед. изм.
|
|
1
|
2
|
3
|
|
Регулируемая среда
|
Природный газ по ГОСТ
5542-87
|
|
Диапазон входного давления
|
0,05 - 1,2
|
МПа
|
|
Диапазон настройки
выходного давления
|
1 - 60
|
кПа
|
|
Диапазон настройки
отключающего устройства:
|
|
- при понижении выходного
давления
|
(0,15 - 0,5)Рвых
|
кПа
|
|
- при повышении выходного
давления
|
(1,25 - 1,5)Рвых
|
кПа
|
|
Пропускная способность:
|
|
- при минимальном входном
давлении Рmin = 0,1 МПа
|
600
|
м3/ч
|
|
|
|
|
- при максимальном входном
давлении Рmax = 0,6 МПа
|
2150
|
м3/ч
|
|
|
|
|
Неравномерность
регулирования
|
±10
|
%
|
|
Диаметр седла
|
35
|
мм
|
|
Диаметр присоединительного
патрубка:
|
|
- вход
|
50
|
мм
|
|
- выход
|
50
|
мм
|
|
Строительная длина
|
365
|
мм
|
|
Вид соединения
|
Фланцевое по ГОСТ 12820 -
80
|
|
Габаритные размеры
|
230х412х278
|
мм
|
|
Масса
|
39
|
кг
|
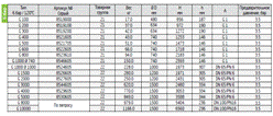
6.3.4 Расчет тепловой схемы котельной
Принципиальная
тепловая схема характеризует сущность основного технологического процесса
преобразования энергии и использования в установке теплоты рабочего тела. Она
представляет собой условное графическое изображение основного и
вспомогательного оборудования, объединенного линиями трубопроводов рабочего
тела в соответствии с последовательностью его движения в установке.
При этом
каждая дуга потокового графа является вектором, определяющим направление
потока, у которого есть собственная характеристика (семантические данные) - это
расход и температура. Для дальнейших расчетов необходимо перейти от
температурной характеристики теплоносителя к энергетической - в форме
энтальпии.
Рисунок 6.3 -Расчетный граф для системы отопления
Очевидно, что
напрямую использовать эту информацию для построения расчетной математической
модели невозможно.
Поэтому
необходимо заменить графическое отображение каждого элемента на их
математическую запись. Точечный объект одновременно является узлом
математического графа. Линейный объект одновременно является дугой
математического графа, Отсюда следует, что в начале и конце такого линейного
объекта обязательно должны находиться точечные объекты, являющиеся узлами.
Далее для
каждого узлового элемента составляется материальный и энергетический балансы в
соответствии с законами сохранения массы и энергии вида:
(6.11)
(6.12)
(6.13)
где Gвхiи Gвыхj - входящие и выходящие для данного
узла материальные потоки соответственно (иначе, расход теплоносителя), м3/ч;
Евхiи Евыхj - входящие и выходящие для данного узла энергетические
потоки соответственно (иначе, расход тепловой энергии), м3/ч;
i -
энтальпия теплоносителя, ккал/кг.
При этом
поток будет со знаком «+», если он является входящим, и с «-», если он - выходящий.
Таким образом, для системы отопления, вентиляции и горячего водоснабжения будут
следующие системы уравнений:
К1:-
G12 = 0∙ i11 - G12∙ i12= - QКА1
К2:-
G22 = 0∙ i21 - G22∙ i22= - Q КА2
К3:-
G32 = 0∙ i31 - G32∙ i32= - Q КА3
К4:-
G42 = 0∙ i41 - G42∙ i42= - Q КА4
Узел
1:- G15 - G13 = 0∙ i12 - G15∙ i15+ G13∙ i13 = 0
Узел
2:+ G14 - G11 = 0∙ i13- G14∙ i14 - G11∙ i11 = 0
Узел
3:- G25- G23 = 0∙ i22- G25∙ i25- G23∙ i23 = 0
Узел
4:+ G23 - G21 = 0∙ i24 + G23∙ i23 - G21∙ i21 = 0
Узел
5:- G35 - G33 = 0∙ i32 + G35∙ i35- G33∙ i33 = 0
Узел
6:+ G33 - G31 = 0∙ i34 + G33∙ i33 - G31∙ i31 = 0
Узел7:-
G45 - G43 = 0∙ i42- G45∙ i45 - G43∙ i43 = 0
Узел8:+
G43 - G41 = 0∙ i44 - G43∙ i43 - G41∙ i41 = 0
Узел9:+
G25 - G3 = 0∙ i15+ G25∙ i25 - G3∙ i3 = 0
Узел10:-
G24 - G14 = 0∙ i5 - G24∙ i24 - G14∙ i14 = 0
Узел11:+
G3 - G4 = 0∙ i35- G3∙ i3 - G4∙ i4 = 0
Узел12:-
G34 - G5 = 0∙ i6 - G34∙ i34 - G5∙ i5 = 0
Узел13:+
G4 - G1 = 0∙ i45+ G4∙ i4 - G1∙ i1 = 0
Узел14:-
G44 - G6 = 0∙ i2 - G44∙ i44 - G6∙ i6 = 0
ТО:х + G1 - Gг - G2 = 0х∙ iх + G1∙ i1 - Gг∙ iг - G2∙ i2 = 0
Далее
преобразуем полученную систему уравнений в равностороннюю матрицу. Матричная
запись будет выглядеть следующим образом:
Таблица 6.8 - Матрица А
|
G11
|
G12
|
G13
|
G14
|
G15
|
G21
|
G22
|
G23
|
G24
|
G25
|
G31
|
G32
|
G33
|
G34
|
G35
|
G41
|
G42
|
G43
|
G44
|
G45
|
G3
|
G4
|
G5
|
G6
|
G1
|
|
1
|
-1
|
0
|
0
|
0
|
0
|
0
|
0
|
0
|
0
|
0
|
0
|
0
|
0
|
0
|
0
|
0
|
0
|
0
|
0
|
0
|
0
|
0
|
0
|
0
|
|
80
|
-115
|
0
|
0
|
0
|
0
|
0
|
0
|
0
|
0
|
0
|
0
|
0
|
0
|
0
|
0
|
0
|
0
|
0
|
0
|
0
|
0
|
0
|
0
|
0
|
|
0
|
0
|
0
|
0
|
0
|
1
|
-1
|
0
|
0
|
0
|
0
|
0
|
0
|
0
|
0
|
0
|
0
|
0
|
0
|
0
|
0
|
0
|
0
|
0
|
0
|
|
0
|
0
|
0
|
0
|
0
|
80
|
-115
|
0
|
0
|
0
|
0
|
0
|
0
|
0
|
0
|
0
|
0
|
0
|
0
|
0
|
0
|
0
|
0
|
0
|
0
|
|
0
|
0
|
0
|
0
|
0
|
0
|
0
|
0
|
0
|
0
|
1
|
-1
|
0
|
0
|
0
|
0
|
0
|
0
|
0
|
0
|
0
|
0
|
0
|
0
|
0
|
|
0
|
0
|
0
|
0
|
0
|
0
|
0
|
0
|
0
|
0
|
80
|
-115
|
0
|
0
|
0
|
0
|
0
|
0
|
0
|
0
|
0
|
0
|
0
|
0
|
0
|
|
0
|
0
|
0
|
0
|
0
|
0
|
0
|
0
|
0
|
0
|
0
|
0
|
0
|
0
|
1
|
-1
|
0
|
0
|
0
|
0
|
0
|
0
|
0
|
0
|
|
0
|
0
|
0
|
0
|
0
|
0
|
0
|
0
|
0
|
0
|
0
|
0
|
0
|
0
|
0
|
80
|
-115
|
0
|
0
|
0
|
0
|
0
|
0
|
0
|
0
|
|
0
|
1
|
-1
|
0
|
-1
|
0
|
0
|
0
|
0
|
0
|
0
|
0
|
0
|
0
|
0
|
0
|
0
|
0
|
0
|
0
|
0
|
0
|
0
|
0
|
0
|
|
-1
|
0
|
1
|
1
|
0
|
0
|
0
|
0
|
0
|
0
|
0
|
0
|
0
|
0
|
0
|
0
|
0
|
0
|
0
|
0
|
0
|
0
|
0
|
0
|
0
|
|
-80
|
0
|
115
|
70
|
0
|
0
|
0
|
0
|
0
|
0
|
0
|
0
|
0
|
0
|
0
|
0
|
0
|
0
|
0
|
0
|
0
|
0
|
0
|
0
|
0
|
|
0
|
0
|
0
|
0
|
0
|
0
|
1
|
-1
|
0
|
-1
|
0
|
0
|
0
|
0
|
0
|
0
|
0
|
0
|
0
|
0
|
0
|
0
|
0
|
0
|
0
|
|
0
|
0
|
0
|
0
|
0
|
-1
|
0
|
1
|
1
|
0
|
0
|
0
|
0
|
0
|
0
|
0
|
0
|
0
|
0
|
0
|
0
|
0
|
0
|
0
|
0
|
|
0
|
0
|
0
|
0
|
0
|
-80
|
0
|
115
|
70
|
0
|
0
|
0
|
0
|
0
|
0
|
0
|
0
|
0
|
0
|
0
|
0
|
0
|
0
|
0
|
0
|
|
0
|
0
|
0
|
0
|
0
|
0
|
0
|
0
|
0
|
0
|
0
|
1
|
-1
|
0
|
-1
|
0
|
0
|
0
|
0
|
0
|
0
|
0
|
0
|
0
|
0
|
|
0
|
0
|
0
|
0
|
0
|
0
|
0
|
0
|
0
|
0
|
-1
|
0
|
1
|
1
|
0
|
0
|
0
|
0
|
0
|
0
|
0
|
0
|
0
|
0
|
0
|
|
0
|
0
|
0
|
0
|
0
|
0
|
0
|
0
|
0
|
0
|
-80
|
0
|
115
|
70
|
0
|
0
|
0
|
0
|
0
|
0
|
0
|
0
|
0
|
0
|
0
|
|
0
|
0
|
0
|
0
|
0
|
0
|
0
|
0
|
0
|
0
|
0
|
0
|
0
|
0
|
0
|
0
|
1
|
-1
|
0
|
-1
|
0
|
0
|
0
|
0
|
0
|
|
0
|
0
|
0
|
0
|
0
|
0
|
0
|
0
|
0
|
0
|
0
|
0
|
0
|
0
|
0
|
-1
|
0
|
1
|
1
|
0
|
0
|
0
|
0
|
0
|
0
|
|
0
|
0
|
0
|
0
|
0
|
0
|
0
|
0
|
0
|
0
|
0
|
0
|
0
|
0
|
0
|
-80
|
0
|
115
|
70
|
0
|
0
|
0
|
0
|
0
|
0
|
|
0
|
0
|
0
|
0
|
1
|
0
|
0
|
0
|
0
|
1
|
0
|
0
|
0
|
0
|
0
|
0
|
0
|
0
|
0
|
-1
|
0
|
0
|
0
|
0
|
|
0
|
0
|
0
|
-1
|
0
|
0
|
0
|
0
|
-1
|
0
|
0
|
0
|
0
|
0
|
0
|
0
|
0
|
0
|
0
|
0
|
0
|
0
|
1
|
0
|
0
|
|
0
|
0
|
0
|
0
|
0
|
0
|
0
|
0
|
0
|
0
|
0
|
0
|
0
|
0
|
1
|
0
|
0
|
0
|
0
|
0
|
1
|
-1
|
0
|
0
|
0
|
|
0
|
0
|
0
|
0
|
0
|
0
|
0
|
0
|
0
|
0
|
0
|
0
|
0
|
-1
|
0
|
0
|
0
|
0
|
0
|
0
|
0
|
0
|
-1
|
1
|
0
|
|
0
|
0
|
0
|
0
|
0
|
0
|
0
|
0
|
0
|
0
|
0
|
0
|
0
|
0
|
0
|
0
|
0
|
0
|
0
|
1
|
0
|
1
|
0
|
0
|
-1
|
|
0
|
0
|
0
|
0
|
0
|
0
|
0
|
0
|
0
|
0
|
0
|
0
|
0
|
0
|
0
|
0
|
0
|
0
|
-1
|
0
|
0
|
0
|
0
|
-1
|
0
|
|
0
|
0
|
0
|
0
|
0
|
0
|
0
|
0
|
0
|
0
|
0
|
0
|
0
|
0
|
0
|
0
|
0
|
0
|
0
|
0
|
0
|
0
|
0
|
0
|
1
|
|
0
|
0
|
0
|
0
|
0
|
0
|
0
|
0
|
0
|
0
|
0
|
0
|
0
|
0
|
0
|
0
|
0
|
0
|
0
|
0
|
0
|
0
|
0
|
0
|
115
|
Таблица 6.9 - Матрица Б
|
Q
|
|
0
|
|
-3010
|
|
0
|
|
-3010
|
|
0
|
|
-3010
|
|
0
|
|
-645
|
|
0
|
|
0
|
|
0
|
|
0
|
|
0
|
|
0
|
|
0
|
|
0
|
|
0
|
|
0
|
|
0
|
|
0
|
|
0
|
|
0
|
|
0
|
|
0
|
|
0
|
|
0
|
|
0
|
|
0
|
Таблица 6.10 - Обратная матрица А-1
|
1
|
2
|
3
|
4
|
5
|
6
|
7
|
8
|
9
|
10
|
11
|
12
|
13
|
14
|
15
|
16
|
17
|
18
|
19
|
20
|
21
|
22
|
23
|
24
|
25
|
26
|
|
3,29
|
-0,03
|
0,00
|
0,00
|
0,00
|
0,00
|
0,00
|
0,00
|
0,00
|
0,00
|
0,00
|
0,00
|
0,00
|
0,00
|
0,00
|
0,00
|
0,00
|
0,00
|
0,00
|
0,00
|
0,00
|
0,00
|
0,00
|
0,00
|
0,00
|
0,00
|
|
2,29
|
-0,03
|
0,00
|
0,00
|
0,00
|
0,00
|
0,00
|
0,00
|
0,00
|
0,00
|
0,00
|
0,00
|
0,00
|
0,00
|
0,00
|
0,00
|
0,00
|
0,00
|
0,00
|
0,00
|
0,00
|
0,00
|
0,00
|
0,00
|
0,00
|
0,00
|
|
0,73
|
-0,01
|
0,00
|
0,00
|
0,00
|
0,00
|
0,00
|
0,00
|
0,00
|
-1,56
|
0,02
|
0,00
|
0,00
|
0,00
|
0,00
|
0,00
|
0,00
|
0,00
|
0,00
|
0,00
|
0,00
|
0,00
|
0,00
|
0,00
|
0,00
|
0,00
|
|
2,56
|
-0,02
|
0,00
|
0,00
|
0,00
|
0,00
|
0,00
|
0,00
|
0,00
|
2,56
|
-0,02
|
0,00
|
0,00
|
0,00
|
0,00
|
0,00
|
0,00
|
0,00
|
0,00
|
0,00
|
0,00
|
0,00
|
0,00
|
0,00
|
0,00
|
0,00
|
-0,02
|
0,00
|
0,00
|
0,00
|
0,00
|
0,00
|
0,00
|
-1,00
|
1,56
|
-0,02
|
0,00
|
0,00
|
0,00
|
0,00
|
0,00
|
0,00
|
0,00
|
0,00
|
0,00
|
0,00
|
0,00
|
0,00
|
0,00
|
0,00
|
0,00
|
|
0,00
|
0,00
|
3,29
|
-0,03
|
0,00
|
0,00
|
0,00
|
0,00
|
0,00
|
0,00
|
0,00
|
0,00
|
0,00
|
0,00
|
0,00
|
0,00
|
0,00
|
0,00
|
0,00
|
0,00
|
0,00
|
0,00
|
0,00
|
0,00
|
0,00
|
0,00
|
|
0,00
|
0,00
|
2,29
|
-0,03
|
0,00
|
0,00
|
0,00
|
0,00
|
0,00
|
0,00
|
0,00
|
0,00
|
0,00
|
0,00
|
0,00
|
0,00
|
0,00
|
0,00
|
0,00
|
0,00
|
0,00
|
0,00
|
0,00
|
0,00
|
0,00
|
0,00
|
|
0,00
|
0,00
|
0,73
|
-0,01
|
0,00
|
0,00
|
0,00
|
0,00
|
0,00
|
0,00
|
0,00
|
0,00
|
-1,56
|
0,02
|
0,00
|
0,00
|
0,00
|
0,00
|
0,00
|
0,00
|
0,00
|
0,00
|
0,00
|
0,00
|
0,00
|
0,00
|
|
0,00
|
0,00
|
2,56
|
-0,02
|
0,00
|
0,00
|
0,00
|
0,00
|
0,00
|
0,00
|
0,00
|
0,00
|
2,56
|
-0,02
|
0,00
|
0,00
|
0,00
|
0,00
|
0,00
|
0,00
|
0,00
|
0,00
|
0,00
|
0,00
|
0,00
|
0,00
|
|
0,00
|
0,00
|
1,56
|
-0,02
|
0,00
|
0,00
|
0,00
|
0,00
|
0,00
|
0,00
|
0,00
|
-1,00
|
1,56
|
-0,02
|
0,00
|
0,00
|
0,00
|
0,00
|
0,00
|
0,00
|
0,00
|
0,00
|
0,00
|
0,00
|
0,00
|
0,00
|
|
0,00
|
0,00
|
0,00
|
0,00
|
3,29
|
-0,03
|
0,00
|
0,00
|
0,00
|
0,00
|
0,00
|
0,00
|
0,00
|
0,00
|
0,00
|
0,00
|
0,00
|
0,00
|
0,00
|
0,00
|
0,00
|
0,00
|
0,00
|
0,00
|
0,00
|
0,00
|
|
0,00
|
0,00
|
0,00
|
0,00
|
2,29
|
-0,03
|
0,00
|
0,00
|
0,00
|
0,00
|
0,00
|
0,00
|
0,00
|
0,00
|
0,00
|
0,00
|
0,00
|
0,00
|
0,00
|
0,00
|
0,00
|
0,00
|
0,00
|
0,00
|
0,00
|
0,00
|
|
0,00
|
0,00
|
0,00
|
0,00
|
0,73
|
-0,01
|
0,00
|
0,00
|
0,00
|
0,00
|
0,00
|
0,00
|
0,00
|
0,00
|
0,00
|
-1,56
|
0,02
|
0,00
|
0,00
|
0,00
|
0,00
|
0,00
|
0,00
|
0,00
|
0,00
|
0,00
|
|
0,00
|
0,00
|
0,00
|
0,00
|
2,56
|
-0,02
|
0,00
|
0,00
|
0,00
|
0,00
|
0,00
|
0,00
|
0,00
|
0,00
|
0,00
|
2,56
|
-0,02
|
0,00
|
0,00
|
0,00
|
0,00
|
0,00
|
0,00
|
0,00
|
0,00
|
0,00
|
|
0,00
|
0,00
|
0,00
|
0,00
|
1,56
|
-0,02
|
0,00
|
0,00
|
0,00
|
0,00
|
0,00
|
0,00
|
0,00
|
0,00
|
-1,00
|
1,56
|
-0,02
|
0,00
|
0,00
|
0,00
|
0,00
|
0,00
|
0,00
|
0,00
|
0,00
|
0,00
|
|
0,00
|
0,00
|
0,00
|
0,00
|
0,00
|
0,00
|
3,29
|
-0,03
|
0,00
|
0,00
|
0,00
|
0,00
|
0,00
|
0,00
|
0,00
|
0,00
|
0,00
|
0,00
|
0,00
|
0,00
|
0,00
|
0,00
|
0,00
|
0,00
|
0,00
|
0,00
|
|
0,00
|
0,00
|
0,00
|
0,00
|
0,00
|
0,00
|
2,29
|
-0,03
|
0,00
|
0,00
|
0,00
|
0,00
|
0,00
|
0,00
|
0,00
|
0,00
|
0,00
|
0,00
|
0,00
|
0,00
|
0,00
|
0,00
|
0,00
|
0,00
|
0,00
|
0,00
|
|
0,00
|
0,00
|
0,00
|
0,00
|
0,00
|
0,00
|
0,73
|
-0,01
|
0,00
|
0,00
|
0,00
|
0,00
|
0,00
|
0,00
|
0,00
|
0,00
|
0,00
|
-1,56
|
0,02
|
0,00
|
0,00
|
0,00
|
0,00
|
0,00
|
0,00
|
|
0,00
|
0,00
|
0,00
|
0,00
|
0,00
|
0,00
|
2,56
|
-0,02
|
0,00
|
0,00
|
0,00
|
0,00
|
0,00
|
0,00
|
0,00
|
0,00
|
0,00
|
0,00
|
2,56
|
-0,02
|
0,00
|
0,00
|
0,00
|
0,00
|
0,00
|
0,00
|
|
0,00
|
0,00
|
0,00
|
0,00
|
0,00
|
0,00
|
1,56
|
-0,02
|
0,00
|
0,00
|
0,00
|
0,00
|
0,00
|
0,00
|
0,00
|
0,00
|
0,00
|
-1,00
|
1,56
|
-0,02
|
0,00
|
0,00
|
0,00
|
0,00
|
0,00
|
0,00
|
|
1,56
|
-0,02
|
1,56
|
-0,02
|
0,00
|
0,00
|
0,00
|
0,00
|
-1,00
|
1,56
|
-0,02
|
-1,00
|
1,56
|
-0,02
|
0,00
|
0,00
|
0,00
|
0,00
|
0,00
|
0,00
|
-1,00
|
0,00
|
0,00
|
0,00
|
0,00
|
0,00
|
|
1,56
|
-0,02
|
1,56
|
-0,02
|
1,56
|
-0,02
|
0,00
|
0,00
|
-1,00
|
1,56
|
-0,02
|
-1,00
|
1,56
|
-0,02
|
-1,00
|
1,56
|
-0,02
|
0,00
|
0,00
|
0,00
|
-1,00
|
0,00
|
-1,00
|
0,00
|
0,00
|
0,00
|
|
2,56
|
-0,02
|
2,56
|
-0,02
|
0,00
|
0,00
|
0,00
|
0,00
|
0,00
|
2,56
|
-0,02
|
0,00
|
2,56
|
-0,02
|
0,00
|
0,00
|
0,00
|
0,00
|
0,00
|
0,00
|
0,00
|
1,00
|
0,00
|
0,00
|
0,00
|
0,00
|
|
2,56
|
-0,02
|
2,56
|
-0,02
|
2,56
|
-0,02
|
0,00
|
0,00
|
0,00
|
2,56
|
-0,02
|
0,00
|
2,56
|
-0,02
|
0,00
|
2,56
|
-0,02
|
0,00
|
0,00
|
0,00
|
0,00
|
1,00
|
0,00
|
1,00
|
0,00
|
0,00
|
|
1,56
|
-0,02
|
1,56
|
-0,02
|
1,56
|
-0,02
|
1,56
|
-0,02
|
-1,00
|
1,56
|
-0,02
|
-1,00
|
1,56
|
-0,02
|
-1,00
|
1,56
|
-0,02
|
-1,00
|
1,56
|
-0,02
|
-1,00
|
0,00
|
-1,00
|
0,00
|
-1,00
|
0,00
|
|
2,56
|
-0,02
|
2,56
|
-0,02
|
2,56
|
-0,02
|
2,56
|
-0,02
|
0,00
|
2,56
|
-0,02
|
0,00
|
2,56
|
-0,02
|
0,00
|
2,56
|
-0,02
|
0,00
|
2,56
|
-0,02
|
0,00
|
1,00
|
0,00
|
1,00
|
0,00
|
1,00
|
|
3,80
|
-0,04
|
3,80
|
-0,04
|
3,80
|
-0,04
|
3,80
|
-0,04
|
-0,80
|
3,80
|
-0,04
|
-0,80
|
3,80
|
-0,04
|
-0,80
|
3,80
|
-0,04
|
-0,80
|
3,80
|
-0,04
|
-0,80
|
1,00
|
-0,80
|
1,00
|
-0,80
|
1,00
|
|
2,80
|
-0,04
|
2,80
|
-0,04
|
2,80
|
-0,04
|
2,80
|
-0,04
|
-1,80
|
2,80
|
-0,04
|
-1,80
|
2,80
|
-0,04
|
-1,80
|
2,80
|
-0,04
|
-1,80
|
2,80
|
-0,04
|
-1,80
|
0,00
|
-1,80
|
0,00
|
-1,80
|
0,00
|
- новая матрица, элементы которой являются значениями
расходов теплоносителя в тепловой схеме котельной. Значения расходов воды
приведены в таблице 6.11.
Диаметры трубопроводов, мм, определяют по формуле:
(6.14)
где G - расход теплоносителя, м3/ч;
ω - скорость движения воды в трубах,
принимается равной 0,5 м/с.
Таблица 6.11 - Результаты расчета расходов воды и диаметров трубопроводов
тепломеханической схемы котельной
|
Расход в контуре
|
Значение
|
Ед.изм
|
Расчетный внутренний
диаметр трубы dвн
|
Ед.изм.
|
Маркировка трубы Dн х d
|
|
1
|
2
|
3
|
4
|
5
|
6
|
|
G11
|
86,00
|
т/ч
|
61
|
мм
|
76х3
|
|
G12
|
86,00
|
т/ч
|
61
|
мм
|
76х3
|
|
G13
|
19,11
|
т/ч
|
14
|
мм
|
57х3
|
|
G14
|
66,89
|
т/ч
|
47
|
мм
|
57х3
|
|
G15
|
66,89
|
т/ч
|
47
|
мм
|
57х3
|
|
G21
|
86,00
|
т/ч
|
61
|
мм
|
76х3
|
|
G22
|
86,00
|
т/ч
|
61
|
мм
|
76х3
|
|
G23
|
19,11
|
т/ч
|
14
|
мм
|
57х3
|
|
G24
|
66,89
|
т/ч
|
47
|
мм
|
57х3
|
|
G25
|
66,89
|
т/ч
|
47
|
мм
|
57х3
|
86,00
|
т/ч
|
61
|
мм
|
76х3
|
|
G32
|
86,00
|
т/ч
|
61
|
мм
|
76х3
|
|
G33
|
19,11
|
т/ч
|
14
|
мм
|
57х3
|
|
G34
|
66,89
|
т/ч
|
47
|
мм
|
57х3
|
|
G35
|
66,89
|
т/ч
|
47
|
мм
|
57х3
|
|
G41
|
18,43
|
т/ч
|
13
|
мм
|
57х3
|
|
G42
|
18,43
|
т/ч
|
13
|
мм
|
57х3
|
|
G43
|
4,10
|
т/ч
|
3
|
мм
|
57х3
|
|
G44
|
14,33
|
т/ч
|
10
|
мм
|
57х3
|
|
G45
|
14,33
|
т/ч
|
10
|
мм
|
57х3
|
|
G3
|
133,78
|
т/ч
|
95
|
мм
|
108х4
|
|
G4
|
200,67
|
т/ч
|
142
|
мм
|
159х4,5
|
|
G5
|
133,78
|
т/ч
|
95
|
мм
|
108х4
|
|
G6
|
200,67
|
т/ч
|
142
|
мм
|
159х4,5
|
|
G1
|
215,00
|
т/ч
|
152
|
мм
|
159х4,5
|
|
G2
|
215,00
|
т/ч
|
152
|
мм
|
159х4,5
|
|
Gх
|
387,00
|
т/ч
|
274
|
мм
|
325х6
|
|
Gг
|
387,00
|
т/ч
|
274
|
мм
|
325х6
|
Подбор диаметров осуществлен по [14] dmax=325х6, dmin=57х3.
6.3.5 Подбор теплообменника
Теплообменными аппаратами (теплообменниками) называются устройства, предназначенные
для передачи теплоты от одного теплоносителя к другому.
В различных отраслях промышленности, в энергетических установках
применяется огромное количество разнообразных теплообменных аппаратов. Наиболее
широкое распространение получили кожухотрубные теплообменники.
В зависимости от теплоносителя водоподготовительные установки делятся на
водоводяные и пароводяные теплообменники. В выпускной квалификационной работе к
установке принимаем водоводяные рекуперативные теплообменники, в которых теплопередача
от греющего теплоносителя к нагреваемому происходит через разделяющую их стенку
трубы и в качестве теплоносителя используется горячая вода.
Для расчета необходимо знать нагрузку и температуры воды на входе и
выходе из теплообменника как для греющей, так и для нагреваемой среды. Кроме
того, принимаем запас по нагрузке равным 5% и потери давления равными 5 кПа.
Подбор теплообменника осуществляем в программе PHE-Designer-4.08.5.1d [13].
Результаты подбора приведены в таблице 6.12.
Таблица 6.12 - Подбор теплообменного аппарата
|
Параметр
|
Среда
|
Ед. изм
|
|
греющая
|
нагреваемая
|
|
|
1
|
2
|
3
|
4
|
|
Исходные данные
|
|
Нагрузка
|
11098
|
кВт
|
|
Температура воды на входе
|
115
|
70
|
°С
|
|
Температура воды на выходе
|
75
|
95
|
°С
|
|
Потери давления
|
5
|
5
|
кПа
|
|
Запас по нагрузке
|
5
|
%
|
|
Результаты расчета
|
|
Марка теплообменника
|
FPDW 80-547-1-xx
|
|
Запас по нагрузке
|
5,3
|
%
|
|
Площадь теплообменника
|
436
|
м2
|
|
Масса
|
4241,73
|
кг
|
|
Расход среды
|
238,464
|
382,392
|
т/ч
|
|
Потери давления
|
2
|
4,94
|
кПа
|
|
Максимальная рабочая
температура
|
115
|
°С
|
|
Объем воды
|
655,2
|
655,2
|
л
|
|
Габариты
|
|
Высота
|
2199
|
мм
|
|
Длина
|
4110
|
мм
|
|
Ширина
|
710
|
мм
|
6.3.6 Подбор расширительного бака
В системах
теплоснабжения расширительные баки применяются для компенсации объема воды при
изменении температуры.
Внутреннее
пространство всех элементов заполнено водой. Объем воды в системе в процессе
эксплуатации изменяется: при увеличении температуры увеличивается, а при
уменьшении - уменьшается. Изменение объема воды компенсирует расширительный
бак.
Конструкция
расширительных баков представляет собой цилиндрическую емкость, поделенную на
две части мембраной: одна часть - для воды, вторая заполнена газом под
давлением. При нагревании избыточный объем воды поступает в бак, сжимая газ,
находящийся по другую сторону мембраны. При этом повышается давление как в
баке, так и в системе в целом. При охлаждении вода из сосуда под давлением со
стороны газа возвращается в систему теплоснабжения.
Расширительный
бак присоединяется к обратному контуру, т.к. температура там самая низкая и
нагрузка на мембрану будет минимальной.
Для подбора
бака необходимы следующие исходные данные:
) общий объем
воды в системе;
)
максимальная рабочая температура воды;
) статическая
высота (высота от места расположения бака до высшей точки системы);
) тепловая
нагрузка контура.
Общий объем
воды в системе определяется суммой всех элементов этой системы и находится по
формуле (6.14):
ΣVсист. = VКА · nКА + Vто + Vтруб., м3, (6.14)
где VКА - водяная емкость котла, м3,
определяется из характеристики котла;
nКА - количество котлов, шт;
Vто - объем воды в теплообменнике, м3,
принимается исходя из расчета ТО;
Vтруб. - объем воды в трубопроводах,
м3.
Максимальная
рабочая температура воды определяется из характеристик теплообменного аппарата.
Статическая
высота установки определяется по формуле (6.15):
Hст =
, м, (6.15)
где Нст.нап -
статический напор в системе, рассчитанный при подборе подпиточных насосов, кПа.
Расчет бака
начинается с определения коэффициента расширения по формуле (6.16):
kрасш. = 0,012 ·
, (6.16)
где tmaxраб - максимальная рабочая
температура воды, °С.
Объем
расширения определяется как произведение объема воды в системе на коэффициент
расширения, зависящий от максимальной температуры и находится по формуле
(6.17):
Vрасш. = ΣVсист. · k, л, (6.17)
где ΣVсист. - общий объем воды в системе в
литрах;
k - коэффициент расширения.
Предварительное
давление в баке сжимает объем воды в камере и при понижении температуры воды в
системе возвращает ее обратно в систему, а также защищает расширительный бак от
переполнения. Рассчитывается оно по формуле (6.18):
Ргаза
=
, бар, (6.18)
где Нст -
статическая высота установки, м;
Нцн - напор
циркуляционного насоса, м; принимается, исходя из результатов подбора данного
насоса.
Максимальное
рабочее давление в системе равно давлению срабатывания предохранительного
клапана и зависит от статической высоты и максимальной рабочей температуры.
Т.к.
статическая высота установки больше 10 м вод. ст., то максимальное рабочее
давление рассчитывается по формуле (6.19):
Рmax =
+ 2, бар (6.19)
Коэффициент
использования объема показывает, какая доля объема бака может применяться для
приема объема расширения. Находится он по формуле (6.20):
kV =
, (6.20)
где Рmax - максимальное рабочее давление в
системе, бар;
Ргаза -
предварительное давление в баке, бар.
Из
соображений безопасности данный коэффициент не может превышать 50%.
Требуемый
объем расширительного бака определяется отношением объема расширения к
коэффициенту использования объема и находится по формуле (6.21):
Vтреб =
, л, (6.21)
где Vрасш - объем расширения, л;
kV - коэффициент использования объема
бака.
Результаты
расчета и подбора расширительного бака приведены в таблице 6.13. Подбор
осуществлен при помощи каталога [16].
Таблица 6.13 - Расчет и подбор расширительного бака
|
Показатель
|
Значение
|
Ед. изм.
|
|
1
|
2
|
3
|
|
Исходные данные
|
|
Водяная емкость котла
|
4,3
|
м3
|
|
Количество котлов
|
4
|
шт.
|
|
Объем воды в теплообменнике
|
0,655
|
м3
|
|
Объем воды в трубопроводе
|
0,77
|
м3
|
|
Общий объем воды в системе
|
14,33
|
м3
|
|
Максимальная рабочая
температура воды
|
115
|
°С
|
|
Статическая высота
|
15
|
м
|
|
Тепловая нагрузка контура
|
11098
|
кВт
|
|
Расчетные данные
|
|
Коэффициент расширения
|
0,0764
|
-
|
|
Объем расширения
|
1095
|
л
|
|
Предварительное давление
газа
|
2,29
|
бар
|
|
Максимальное рабочее давление
в системе
|
3,5
|
бар
|
|
Коэффициент использования
объема
|
0,269
|
-
|
|
Требуемый объем бака
|
4070
|
л
|
|
Технические характеристики
|
|
Марка
|
Reflex G 5000
|
|
Номинальная емкость
|
5000
|
л
|
|
Габариты (диаметр и высота)
|
1500 x 3588
|
мм
|
|
Внутренний диаметр линии
расширения
|
65
|
мм
|
Технические
характеристики расширительного бака Reflex G 5000 приведены в приложении 14.
6.3.7 Химводоочистка
Назначение
данного оборудования - подготовка подпиточной воды требуемого качества для
восполнения потерь в тепловых сетях.
Источником
водоснабжения для системы подпитки котельной является городской водопровод,
качество воды в котором не соответствует требуемому по содержанию железа и
общей жесткости.
Требуется
подобрать оборудование для обезжелезивания и умягчения воды номинальной
производительностью 2,5 м3/ч. Производительность принимается по результатам
расчетов подпиточного насоса.
В результате
принимаем установку умягчения и обезжелезивания, состоящую из натрий -
катионитового фильтра, солевого бака и автоматического управляющего клапана
процесса регенерации фильтра.
В качестве
фильтрующей загрузки используется синтетический цеолит CR - 100, обладающий
катионообменными свойствами. Извлечение ионов металлов (кальция, магния,
железа, марганца) осуществляется методом натрий - катионирования. Регенерация
цеолита производится раствором поваренной соли автоматически с заданной
периодичностью.
Характеристики
системы водоподготовки в соответствии с данными [17] приведены в таблице 6.14.
Таблица 6.14 - Характеристики системы водоподготовки
|
Показатель
|
Значение
|
Ед. изм.
|
|
1
|
2
|
3
|
|
Марка оборудования
|
Ёлка. WFDМ-3.4-Cl-(MTM)
|
|
Номинальная / максимальная
производительность
|
2,2 - 3,35
|
м3/ч
|
|
Потери напора в установке
при номинальной / максимальной производительности
|
0,2- 0,9
|
кг/см2
|
|
|
|
|
Объем цеолита
|
42
|
л
|
|
Масса поддерживающего слоя
гравия
|
7
|
кг
|
|
Периодичность регенерации
|
1 раз в 3 - 4 дня
|
|
Доза соли на одну
регенерацию
|
4,6 - 6,3
|
кг
|
|
Расход воды на одну
регенерацию
|
не более 0,6
|
м3
|
|
Размеры элементов установки
(высота и диаметр):
|
|
- фильтра
|
1577 х 257
|
мм
|
|
- солевого бака
|
630 х 470
|
мм
|
|
Приблизительная масса
установки в сборе
|
70
|
кг
|
|
Присоединительные размеры
(подача/отводсброс)
|
25/25/20
|
мм
|
|
Потребляемая электрическая
мощность
|
не более 10
|
Вт
|
Технические
характеристики установки умягчения и обезжелезивания Ёлка. WFDМ-3.4-Cl-(MTM)
приведены в приложении 15.
6.3.8 Подбор насосного оборудования
Насос предназначен для организации циркуляции теплоносителя в замкнутом
контуре. В автономной водогрейной котельной для нашей тепломеханической схемы
должны быть предусмотрены следующие группы насосов:
сетевые;
подпиточные;
циркуляционные;
рециркуляционные.
Сетевые насосы
Сетевые
насосы предназначены для перекачивания воды в тепловых сетях.
Расход
теплоносителя в системе теплоснабжения, для двухтрубной схемы тепловых сетей, определяется
по уравнению (6.22):
(6.22)
где Qот - расчетная тепловая нагрузка на
нужды отопления, кВт/ч;
Qгв- расчетная тепловая нагрузка на
нужды горячего водоснабжения, кВт/ч;
с -
коэффициент единиц измерения, 1,163 Вт/м3оС;
t1- расчетная температура воды в
подающем трубопроводе, оС;
t2 - расчетная температура воды в
обратном трубопроводе, оС.
В выпускной
квалификационной работе расход теплоносителя принимаем равным 420,6 м3/ч. Это
наибольший расход из расчета тепловой схемы котельной и расчета на режимы
теплопотребления.
Суммарные
потери давления в системе теплоснабжения могут быть определены по формуле
(6.23):
(6.23)
где ΔНис - потери давления на источнике
теплоснабжения, кПа;
ΔНмаг - потери давления в магистральном трубопроводе до
наиболее удаленного (наиболее неблагоприятного) потребителя, кПа;
ΔНаб - потери давления у потребителя, кПа.
Потери
давления на источнике теплоснабжения для двухконтурной схемы котельной потери
давления равны сопротивлению в нагреваемой стороне теплообменного устройства.
Потери
давления у потребителей включают в себя следующие составляющие:
кПа (6.24)
кПа (6.25)
где ΔНарм- потери давления в арматуре и
оборудовании очистки, кПа; принимается 10 кПа;
ΔНрег - потери давления на регуляторах давления и температуры,
кПа; принимается 25 .. 35 кПа;
ΔНпгв - потери давления в подогревателях горячего
водоснабжения в зависимости от схемы присоединения к тепловым сетям, кПа;
принимается 20 .. 40 кПа;
ΔНэл - требуемый напор для работы элеватора, кПа;
ΔНсо - потери давления в системе отопления, кПа; принимается
10 кПа.
Требуемый
напор насоса составляет суммарные потери давления в системе теплоснабжения с
учетом запаса 5%:
кПа (6.26)
Данные по
расчету и подбору сетевого насоса приведены в таблице 6.15.
Таблица 6.15- Сводные данные по расчету и подбору сетевого насоса
|
Наименование показателя
|
Значение
|
Единицы измерения
|
|
Исходные данные
|
|
Расход теплоносителя
|
420,6
|
м3/ч
|
|
Сопротивление магистрали
|
80,7
|
кПа
|
|
Сопротивление на источнике
|
4,94
|
кПа
|
|
Сопротивление системы
отопления
|
55,0
|
кПа
|
|
Суммарные потери давления в
контуре
|
221,26
|
кПа
|
|
Напор на всасывающем
патрубке насоса
|
100,0
|
кПа
|
|
Требуемый напор для насоса
|
321,26
|
кПа
|
|
Запас по напору
|
5,00
|
%
|
|
Напор насоса
|
33,73
|
м
|
|
Технические характеристики
|
|
Марка насоса
|
BL 80/160-18,5/2
|
|
Производительность насоса
|
210
|
м3/ч
|
|
Напор
|
33,73
|
м
|
|
КПД
|
-
|
%
|
|
Количество (с резервными)
|
3
|
шт.
|
|
Частота вращения
|
2900
|
|
Мощность электропривода
|
18,5
|
кВт
|
Устанавливаем
три насоса (два основных и резервный) марки Wilo BL 80/160-18,5/2 мощностью
18,5 кВт (общая цена: 6360 EUR), так как они являются более экономичными в
сравнении с двумя насосами (один основной и один резервный) марки Wilo IL
150/340-45/4 мощностью 20,4 кВт (общая цена: 15232 EUR). Технические
характеристики насоса BL 80/160-18,5/2 приведены в приложении 16.
Подпиточные
насосы.
Подпиточный
насос предназначен для восполнения утечек теплоносителя из циркуляционных
контуров котельной.
Расчетный
объем воды в системе теплоснабжения может быть рассчитан по следующей формуле:
м3 (6.27)
где Vис - объем воды на источнике
теплоснабжения, м3;принимается в зависимости от вида схемы котельной:
для
одноконтурной схемы составляет общий водяной объем всех котлов;
для
двухконтурной схемы составляет водяной объем в теплообменникепо нагреваемой
стороне;
Vтр - объем воды в системе
трубопроводов тепловой сети, м3;
Vаб - объем воды в системах отопления
и горячего водоснабжения потребителя, м3;
Объем воды в
системе теплоснабжения определяется по следующему уравнению:
м3 (6.28)
где υi - удельный объем воды в i-м виде
системы теплоснабжения, м3/Гкал;
Qi - тепловая нагрузка i-го вида системы теплоснабжения,
Гкал/ч.
Объем часовой
утечки, для закрытой системы теплоснабжения, рассчитывается по уравнению:
, м3 (6.29)
Принимаемый
напор насоса должен учитывать запас в размере 5% от расчетного. Статический
напор, кПа, и требуемый напор подпиточного насоса, кПа, рассчитываются по
следующим формулам:
(6.30)
(6.31)
где Нзд -
высота наиболее высокого здания, м;
ΔНдоп - допустимое значение рабочего давления в местных
системах отопления, кПа.
Расчет и
подбор оборудования представлен в таблице 6.16.
Таблица 6.16 -
Сводные данные по
расчету и подбору подпиточного насоса
|
Наименование показателя
|
Значение
|
Единицы измерения
|
|
Исходные данные
|
|
Объем воды в трубопроводе
|
77
|
м3
|
|
Объем воды в системе потребителя
|
247,35
|
м3
|
|
Объем воды на источнике
|
0,66
|
м3
|
|
Объем воды в системе
теплоснабжения
|
325,00
|
м3
|
|
Величина утечки
теплоносителя
|
2,44
|
м3/ч
|
|
Высота наиболее высокого
здания
|
10
|
м
|
|
Статический напор системы
теплоснабжения
|
150,0
|
кПа
|
|
Сопротивление в подпиточной
линии
|
50,0
|
кПа
|
|
Требуемый напор насоса
|
200,0
|
кПа
|
|
Запас по напору
|
5,00
|
%
|
|
Напор насоса
|
21,00
|
м
|
|
Технические характеристики
|
|
Марка насоса
|
IPL 32/130-1,1/2
|
|
Производительность насоса
|
2,44
|
м3/ч
|
|
Напор
|
21
|
м
|
|
КПД
|
-
|
%
|
|
Количество (с резервными)
|
2
|
шт.
|
|
Частота вращения
|
2900
|
об/мин
|
|
Мощность электропривода
|
1,1
|
кВт
|
Устанавливаем
два насоса (основной и резервный) марки Wilo IPL 32/130-1,1/2 мощностью 1,1 кВт (общая цена: 1284 EUR), так как они являются более
экономичными в сравнении с тремя насосами (два основных и резервный) марки Wilo TOP-S 50/15 3~PN 6/10 мощностью 0,8 кВт (общая цена: 2484 EUR).
Технические
характеристики насоса IPL 32/130-1,1/2 приведены в приложении 17.
Циркуляционные
насосы
Циркуляционные
насосы котлового контура устанавливаются только для двухконтурной схемы
котельной и предназначены для организации циркуляции теплоносителя в замкнутом
контуре, связывающем котлы и теплообменник. Насос подбирается по расходу и
гидродинамическому сопротивлению котлового контура.
Сопротивление
циркуляционного контура определяется по формуле:
(6.32)
где
- потери давления в котлах, кПа;
- потери
давления в теплообменнике, кПа.
Расчет
и подбор оборудования представлен в таблице 6.17.
Таблица 6.17 - Сводные данные по расчету и подбору циркуляционного насоса
котлового контура
|
Наименование показателя
|
Значение
|
Единицы измерения
|
|
1
|
2
|
3
|
|
Исходные данные
|
|
Расход теплоносителя
|
215,0
|
м3/ч
|
|
Сопротивление в водяном
контуре котла
|
0,625
|
кПа
|
|
Сопротивление в
теплообменнике
|
2,00
|
кПа
|
|
Суммарные потери давления в
контуре
|
2,6
|
кПа
|
|
Запас по напору
|
5,00
|
%
|
|
Напор насоса
|
7,6
|
м
|
|
Технические характеристики
|
|
Марка насоса
|
BL 80/160-2,2/4
|
|
Производительность насоса
|
108
|
м3/ч
|
|
Напор
|
7,6
|
м
|
|
КПД
|
-
|
%
|
|
Количество (с резервными)
|
3
|
шт.
|
|
Частота вращения
|
1450
|
об/мин
|
|
Мощность электропривода
|
2,2
|
кВт
|
Устанавливаем
три насоса (два основных и резервный) марки Wilo BL 80/160-2,2/4 мощностью 2,2
кВт (общая цена: 3360 EUR), так как они являются более экономичными в сравнении
с двумя насосами (один основной и один резервный) марки Wilo IL 150/190-5,5/4
мощностью 2,5 кВт (общая цена: 5400 EUR).
Рециркуляционные
насосы.
Рециркуляционные
насосы устанавливаются в котельных с водогрейными котлами для частичной подачи
горячей сетевой воды в трубопровод, подводящий воду к водогрейному котлу.
Производительность
рециркуляционного насоса определяется из уравнения баланса смешивающихся
потоков сетевой воды в обратной линии и горячей воды на выходе из водогрейного
котла. Кроме того, насос должен создавать напор, способный преодолеть
гидравлическое сопротивление водогрейного котла и рециркуляционных
трубопроводов. Резервные рециркуляционные насосы не предусматриваются.
Сводные
данные по характеристике рециркуляционных насосов приводятся в таблице 6.18.
Таблица 6.18 - Сводные данные по характеристике рециркуляционного насоса
|
Наименование показателя
|
Значение
|
Единицы измерения
|
|
Исходные данные
|
|
Расход теплоносителя
|
19,1
|
м3/ч
|
|
Сопротивление в водяном
контуре котла
|
2,5
|
кПа
|
|
Запас по напору
|
5,00
|
%
|
|
Напор насоса
|
7,5
|
м
|
|
Технические характеристики
|
|
Марка насоса
|
TOP-S 50/7 3~PN 6/10
|
|
Производительность насоса
|
19,1
|
м3/ч
|
|
Напор
|
7,5
|
м
|
|
КПД
|
-
|
%
|
|
Количество (с резервными)
|
4
|
шт.
|
|
Частота вращения
|
2800
|
об/мин
|
|
Мощность электропривода
|
0,625
|
кВт
|
Устанавливаем
по одному насосу для каждого котла марки Wilo TOPS 50/7 3~PN
6/10 мощностью 0,625 кВт (общая цена: 597 EUR), так как другие насосы не удовлетворяют заданным
параметрам.
Все насосное
оборудование подобрано в программе WILO-SELECT.
Построение
пьезометрического графика.
Целью
построения пьезометрического графика является наглядная иллюстрация характера
распределения давлений в системе теплоснабжения по результатам гидравлического
расчета. Пьезометрический график позволяет определить напоры в подающем и
обратном трубопроводах, а также располагаемый напор в любой точке тепловой
сети.
6.3.9 Расчет высоты дымовой трубы
Общие
сведения.
Дымовые
трубы предназначены для отвода дымовых газов от тепловых установок в атмосферу.
Дымовые трубы необходимо конструировать и строить таким образом, чтобы
гарантировать максимально безвредный отвод дымовых газов в атмосферу во всех
режимах работы и исключить образование опасного избыточного давления в топках.
В
систему удаления дымовых газов входят следующие элементы:
газоход;
дымовая
труба;
крепежная
система;
арматура
и гарнитура дымоходов.
Расчет высоты
дымовой трубы
При
расчете системы удаления дымовых газов должны быть определены длины (высоты) и
диаметры газоходов при различных условиях их эксплуатации.
Расчет
минимальной высоты дымовой трубы ведется одновременно по следующим параметрам:
)
высота дымовой трубы, при которой обеспечивается значение максимальной
приземной концентрации вредного вещества, равное предельно допустимой
концентрации (ПДК);
)
высота дымовой трубы, при которой обеспечивается самотяга в газовом тракте без
учета тяго-дутьевых устройств;
)
высота дымовой трубы, при которой обеспечивается выполнение требований СП
42-101-2003 [18] для дымовой трубы;
)
минимальная высота дымовой трубы не должна быть менее 5 метров.
Расчет
ведется для трех периодов работы котельной: максимально зимнего,
среднеотопительного и летнего режима, для котла, работающего на систему
горячего водоснабжения. Для максимально зимнего и среднеотопительного для
котлов, работающих на систему отопления.
Действительное
количество воздуха, м3/м3, необходимого для сжигания топлива, определяемое по
формуле:
(6.33)
где
α - коэффициент избытка воздуха;
V0 - теоретически необходимое
количество воздуха, м3/м3, определяемое по формуле:
(6.34)
где
CO2,H2,O2,H2S,CmHn - состав газообразного топлива по
объему, %.
Определение
действительного объема дымовых газов, м3/м3, необходимого для сжигания
газообразного топлива производится по следующим уравнениям:
(6.35)
где
VRO2 - объем трехатомных
газов, м3/м3;
VH2O - объем водяных паров, м3/м3;
VN2 - объем паров азота,
м3/м3.
Объем
трехатомных газов, м3/м3:
(6.36)
Объем
водяных паров, м3/м3:
(6.37)
Объем
паров азота, м3/м3:
(6.38)
Суммарный
расход топлива, м3/ч, определяется по формуле:
(6.39)
где
QKA - тепловая нагрузка на
котел, Мкал/ч;
Qрн - теплота сгорания
низшая рабочая топлива, Мкал/м3;
η - КПД котлоагрегата, %.
Действительный
расход воздуха, м3/ч, определяется по формуле:
(6.40)
Действительный
объем продуктов сгорания, м3/ч, определяется по формуле:
(6.41)
где υух - температура продуктов сгорания (дымовых газов),
оС.
Минимальный диаметр газохода, мм, определяется по
формуле:
(6.42)
где
ω0 - скорость выхода дымовых газов из устья дымовой
трубы; принимается от 10 до 15 м/с.
Фактическая
скорость в газоходе после подбора типоразмера газохода вычисляется по следующей
формуле:
(6.43)
где d - фактический диаметр газохода (по
типоразмеру производителя), мм.
Расчет высоты дымовой трубы по ПДК.
Одним из определяющих параметров высоты дымовой трубы
является условие рассеивания дымовых газов до допустимой концентрации. Расчет
ведется для выбросов оксида азота и углерода.
Расчет выбросов оксидов азота, г/с:
(6.44)
где
q4 - потери теплоты с
физически недожогом, %.
KNO2 - удельный выброс
оксидов азота при сжигании топлива на 1 МДж теплоты, г/МДж; для природного газа
рассчитывается по уравнению:
(6.45)
где QKA - тепловая нагрузка на котел, МВт;
Bт -
суммарный расход топлива, м3/с;
βk - безразмерный коэффициент, учитывающий принципиальную конструкцию
горелок; принимается при сжигании газа для дутьевых горелок напорного типа - 2;
βа - безразмерный коэффициент, учитывающий
влияние избытка воздуха на образование оксидов азота; принимается для газа - 1;
βt - безразмерный коэффициент влияния температуры воздуха; определяется
по формуле:
(6.46)
где tвн - температура воздуха в помещении, оС.
Расчет выбросов оксидов углерода, г/с:
(6.47)
где
KCO - удельный выброс
оксидов углерода при сжигании топлива на 1 МДж теплоты, г/МДж.
Минимальная
высота дымовой трубы, м, рассчитывается по следующей зависимости:
(6.48)
где
Мi - количество выбросов i-го загрязняющего вещества из дымовой
трубы, г/с;
ПДКi - предельно-допустимая максимальная
разовая концентрация i-го вредного загрязняющего вещества в приземном воздухе, мг/м3;
Сфi - фоновые концентрации i-го загрязняющего вещества в районе
расположения котельной, мг/м3;
А
- коэффициент распределения температуры воздуха, зависящий от метеорологических
условий местности и определяющий условия вертикального и горизонтального
рассеивания вредных загрязняющих веществ в атмосферном воздухе;
F - коэффициент скорости
оседания вредных веществ в атмосферном воздухе, равный 1 для газообразных
выбросов;
nдт -количество дымовых
труб, шт.;
ΔТ - разность температур уходящих
газов υух и температуры окружающего
атмосферного воздуха tнв.
Расчет
высоты дымовой трубы по самотяге.
Температура
продуктов сгорания на выходе из устья дымохода определяется с учетом охлаждения
по длине трубы.
Охлаждение
газов в трубе наодин метр ее высоты
определяется по формуле:
(6.49)
где QKA - тепловая нагрузка на котел, кВт;
В - коэффициент дымовой трубы; принимается 0,34 -
изолированная металлическая труба.
Температура дымовых газов на выходе из трубы, оС:
(6.50)
где υ1 - температура дымовых газов на входе в трубу равнаυух, оС;
НgПДК - высота дымовой трубы по ПДК, м.
Средняя рабочая температура дымовых газов определяется
по формуле:
(6.51)
Плотность дымовых газов и воздуха, кг/м3, при рабочих
условиях:
(6.52)
(6.53)
где ρгну и ρвну - соответственно плотность продуктов сгорания и
воздуха при нормальных условиях; принимается для природного газа ρгну=1,26 кг/м3, для воздуха ρвну=1,293 кг/м3;
toc
- температура окружающей среды, оС.
Потери давления в системе удаления дымовых газов, кПа,
определяются по формуле:
(6.54)
где λ - коэффициент сопротивления трения;
ξ - коэффициент местного сопротивления
элемента газохода;
L -
длина рассматриваемого газохода, м;
d -
фактический диаметр газохода, м;
ωг - фактическая скорость в газоходе, м/с.
Величина самотяги СУДГ, кПа, определяется по формуле:
(6.55)
гдеg - ускорение свободного падения,
равное 9,81 м/с2;
,2
- 20% запас для обеспечения нормальной тяги системы удаления дымовых газов.
Проверка
тяги, кПа, производится по формулам:
(6.56)
где Δhreq
- величина дефицита тяги, кПа;
hт’’
- разрежение на выходе из топки, необходимое для предотвращения выбивания
газов, кПа;
hKA
- аэродинамическое сопротивление котла, кПа;
∑hтр - сумма потерь давления в системе
удаления дымовых газов для горизонтального и вертикального участка газохода,
кПа.
В случае если принятое к расчету значение высоты
дымовой трубы по результатам расчета ПДК не удовлетворяет вышеуказанному
условию, то необходим пересчет высоты дымовой трубы на самотягу, принимая
значение величины дефицита тяги Δhreq
по модулю.
Высота дымовой трубы для обеспечения необходимой тяги,
м, определяется по формуле:
(6.57)
Требуемая высота дымовой трубы определяется путем
сравнения значений высоты по ПДК (HgПДК) и самотяге (Hgстяга), при этом принимается максимальное значение.
Далее определяется требуемая высота дымовой трубы Hgтреб
как максимальная для двух режимов работы котла.
В завершении расчетов высоты дымовой трубы полученное
значение сравнивается с архитектурно-строительными требованиями. В соответствии
с рекомендациями СП 42-101-2003 и требованиями СНиП II-35-76, высота устья
дымовой трубы должна быть не менее чем на 2 м выше поверхности плоской кровли,
а также над кровлей более высокой части здания или самого высокого близлежащего
здания в радиусе 10 м.
Расчет представлен в таблице 6.19
и 6.20. По величине минимальной высоты дымовой трубы по
расчету ПДК, самотяги, высоты близлежащего здания и режимам теплопотребления
конструируется система удаления дымовых газов из деталей DW-ALKON (“Raab”) [18].
Спецификация газоотводящего оборудования представлена в таблице 6.21
и 6.22.
Таблица 6.19 - Система удаления дымовых газов для котлов ЗИОСАБ - М3500
|
Показатель
|
Режимы теплопотребления
|
Ед. измерения
|
|
Макс.- зимний
|
Средне-отопит.
|
|
|
1
|
2
|
3
|
4
|
|
Аэродинамический расчет
высоты дымовой трубы
|
|
Исходные данные
|
|
Тепловая нагрузка на котел
|
3464,38
|
2056,97
|
Мкал/ч
|
|
КПД котлоагрегата
|
92
|
%
|
|
Аэродинамическое
сопротивление котла (с учетом компенсации напором горелки)
|
0
|
кПа
|
|
Требуемое разрежение на
выходе из котла
|
0,05
|
кПа
|
|
Температура дымовых газов
|
180
|
oC
|
|
Температура наружного
воздуха
|
-32
|
-3,1
|
oC
|
|
Температура воздуха в
помещении
|
5
|
5
|
oC
|
|
Состав топлива:
|
Ухтинское
|
|
Метан CH4
|
88,94
|
%
|
|
Этан C2H6
|
1,87
|
%
|
|
Пропан C3H8
|
0,2
|
%
|
|
Бутан C4H10
|
0,3
|
%
|
|
Пентан C5H12
|
0,09
|
%
|
|
Азот N2
|
8,3
|
%
|
|
Углекислый газ CO2
|
0,3
|
%
|
|
Коэффициент избытка воздуха
|
1,1
|
-
|
|
Скорость газов в газоходе
|
10
|
м/с
|
|
Скорость газов в дымовой
трубе
|
10
|
м/с
|
|
Плотность воздуха при н.у.
|
1,293
|
кг/м3
|
|
Плотность дымовых газов при
н.у.
|
1,26
|
кг/м3
|
|
Потери теплоты с
химнедожегом
|
0,5
|
%
|
|
Потери теплоты с
физнедожегом
|
0
|
%
|
|
Расчетные данные
|
|
Определение диаметра газопровода
|
|
Теоретически необходимое
кол-во воздуха
|
8,96
|
м3/м3
|
|
Действительное кол-во
воздуха
|
9,86
|
м3/м3
|
|
Действительный объем
дымовых газов
|
9,63
|
м3/м3
|
|
Теплота сгорания газа
|
33,72
|
МДж/м3
|
|
Плотность природного газа
|
0,786
|
кг/м3
|
|
Суммарный расход топлива
|
467,91
|
277,82
|
м3/ч
|
|
То же
|
0,130
|
0,077
|
м3/с
|
|
Действительный расход
воздуха
|
4612,00
|
2738,38
|
м3/ч
|
|
Действительный объем
продуктов сгорания
|
7476,26
|
4439,03
|
м3/ч
|
|
Минимальный диаметр
газохода
|
514,35
|
396,33
|
мм
|
|
Фактический диаметр
газохода (по типоразмерам производителя)
|
600
|
мм
|
|
Фактическая скорость в
газоходе
|
7,35
|
4,36
|
м/с
|
|
Расчет высоты дымовой трубы
по ПДК
|
|
Коэффициент конструкции
горелок
|
2
|
-
|
|
Коэффициент влияния
температуры воздуха
|
0,95
|
0,95
|
-
|
|
Коэффициент влияния избытка
воздуха
|
1
|
-
|
|
Удельный выброс оксидов азота
|
0,054
|
|
Расчет выбросов оксидов
азота
|
0,452
|
0,269
|
г/с
|
|
Коэффициент доли потерь с
химнедожегом топлива
|
0,5
|
г/Мкал
|
|
Расчет выбросов монооксида
углерода
|
0,438
|
0,260
|
г/с
|
|
Коэффициент распределения
температуры воздуха
|
140
|
-
|
|
Коэффициент скорости оседания
вредных веществ в атмосферном воздухе
|
1
|
-
|
|
Минимальная высота дымовой
трубы по оксиду азота
|
11,828
|
10,187
|
м
|
|
Минимальная высота дымовой
трубы по монооксиду углерода
|
2,073
|
1,743
|
м
|
|
Высота дымовой трубы по ПДК
|
11,8
|
м
|
|
Расчет высоты дымовой трубы
по самотяге
|
|
Коэффициент дымовой трубы
|
0,34
|
-
|
|
Температура дымовых газов
на выходе из дымовой трубы
|
177,85
|
180,00
|
oC
|
|
Средняя рабочая температура
дымовых газов
|
178,93
|
180,00
|
oC
|
|
Плотность дымовых газов при
рабочих условиях
|
0,761
|
0,759
|
кг/м3
|
|
Плотность воздуха при
рабочих условиях
|
1,46
|
1,31
|
кг/м3
|
|
Длина газохода
|
2,076
|
м
|
|
КМС газохода
|
0,35
|
-
|
|
Коэффициент сопротивления
трения
|
0,02
|
-
|
|
Суммарные потери давления в
газоходе
|
0,0086
|
0,0030
|
кПа
|
|
КМС дымовой трубы
|
1,5
|
-
|
|
Коэффициент сопротивления
трения
|
0,02
|
-
|
|
Суммарные потери давления в
трубе
|
0,039
|
0,014
|
кПа
|
|
Величина самотяги СУДГ
|
0,0734
|
0,0000
|
кПа
|
|
Проверка тяги дымовой трубы
|
-0,024
|
-0,067
|
кПа
|
|
Высота дымовой трубы по
самотяге
|
15,72
|
13,86
|
м
|
|
Проверка высоты дымовой
трубы по требованиям архитектурно-строительных норм
|
|
Высота близлежащего здания
в радиусе 10 м
|
10,00
|
м
|
|
Нормативный запас
|
2,00
|
м
|
|
Минимальная высота
|
12,00
|
м
|
|
Фактическая высота дымовой
трубы
|
|
Минимальная высота по ПДК,
самотяге, высоте близлежащего здания и режимам теплопотребления
|
13,863
|
м
|
|
Фактическая высота (по
типоразмерам производителя)
|
13,930
|
м
|
Таблица 6.20 - Система удаления дымовых газов для котлов ЗИОСАБ- М750
|
Показатель
|
Режимы теплопотребления
|
Ед. измерения
|
|
Макс.- зимний
|
Средне-отопит.
|
Летний
|
|
|
Аэродинамический расчет
высоты дымовой трубы
|
|
Исходные данные
|
|
Тепловая нагрузка на котел
|
704,68
|
704,68
|
563,75
|
Мкал/ч
|
|
КПД котлоагрегата
|
92
|
%
|
|
Аэродинамическое
сопротивление котла (с учетом компенсации напором горелки)
|
0
|
кПа
|
|
Требуемое разрежение на
выходе из котла
|
0,05
|
кПа
|
|
Температура дымовых газов
|
180
|
oC
|
|
Температура наружного
воздуха
|
-32
|
-3,1
|
22,3
|
oC
|
|
Температура воздуха в
помещении
|
5
|
5
|
22,3
|
oC
|
|
Состав топлива:
|
Ухтинское
|
|
Метан CH4
|
88,94
|
%
|
|
Этан C2H6
|
1,87
|
%
|
|
Пропан C3H8
|
0,2
|
%
|
|
Бутан C4H10
|
0,3
|
%
|
|
Пентан C5H12
|
0,09
|
%
|
|
Азот N2
|
8,3
|
%
|
|
Углекислый газ CO2
|
0,3
|
%
|
|
Коэффициент избытка воздуха
|
1,1
|
-
|
|
Скорость газов в газоходе
|
10
|
м/с
|
|
Скорость газов в дымовой
трубе
|
10
|
м/с
|
|
Плотность воздуха при н.у.
|
1,293
|
кг/м3
|
|
Плотность дымовых газов при
н.у.
|
1,26
|
кг/м3
|
|
Потери теплоты с
химнедожегом
|
0,5
|
%
|
|
Потери теплоты с физнедожегом
|
0
|
%
|
|
Расчетные данные
|
|
Определение диаметра
газопровода
|
|
Теоретически необходимое
кол-во воздуха
|
8,96
|
м3/м3
|
|
Действительное кол-во
воздуха
|
9,86
|
м3/м3
|
|
Действительный объем
дымовых газов
|
9,63
|
м3/м3
|
|
Теплота сгорания газа
|
33,72
|
МДж/м3
|
|
Плотность природного газа
|
0,786
|
кг/м3
|
|
Суммарный расход топлива
|
95,18
|
95,18
|
76,14
|
м3/ч
|
|
То же
|
0,026
|
0,026
|
0,021
|
м3/с
|
|
Действительный расход
воздуха
|
938,12
|
938,12
|
750,50
|
м3/ч
|
|
Действительный объем
продуктов сгорания
|
1520,74
|
1520,74
|
1216,59
|
м3/ч
|
|
Минимальный диаметр
газохода
|
231,97
|
231,97
|
207,48
|
мм
|
|
Фактический диаметр
газохода (по типоразмерам производителя)
|
600
|
мм
|
|
Фактическая скорость в
газоходе
|
1,49
|
1,49
|
1,20
|
м/с
|
|
Расчет высоты дымовой трубы
по ПДК
|
|
Коэффициент конструкции
горелок
|
2
|
-
|
|
Коэффициент влияния
температуры воздуха
|
0,95
|
0,95
|
0,98
|
-
|
|
Коэффициент влияния избытка
воздуха
|
1
|
-
|
|
Удельный выброс оксидов
азота
|
0,041
|
г/МДж
|
|
Расчет выбросов оксидов
азота
|
0,070
|
0,070
|
0,058
|
г/с
|
|
Коэффициент доли потерь с
химнедожегом топлива
|
0,5
|
г/Мкал
|
|
Расчет выбросов монооксида
углерода
|
0,089
|
0,089
|
0,071
|
г/с
|
|
Коэффициент распределения
температуры воздуха
|
140
|
-
|
|
Коэффициент скорости
оседания вредных веществ в атмосферном воздухе
|
1
|
-
|
|
Минимальная высота дымовой
трубы по оксиду азота
|
6,06
|
6,06
|
5,73
|
м
|
|
Минимальная высота дымовой
трубы по монооксиду углерода
|
1,18
|
1,21
|
1,15
|
м
|
|
Высота дымовой трубы по ПДК
|
6,06
|
5,73
|
м
|
|
Расчет высоты дымовой трубы
по самотяге
|
|
Коэффициент дымовой трубы
|
0,34
|
-
|
|
Температура дымовых газов
на выходе из дымовой трубы
|
178,90
|
178,90
|
178,96
|
oC
|
|
Средняя рабочая температура
дымовых газов
|
179,45
|
179,45
|
179,48
|
oC
|
|
Плотность дымовых газов при
рабочих условиях
|
0,760
|
0,760
|
0,760
|
кг/м3
|
|
Плотность воздуха при
рабочих условиях
|
1,46
|
1,31
|
1,20
|
кг/м3
|
|
Длина газохода
|
1,827
|
м
|
|
КМС газохода
|
0,35
|
-
|
|
Коэффициент сопротивления
трения
|
0,02
|
-
|
|
Суммарные потери давления в
газоходе
|
0,0006
|
0,0006
|
0,0004
|
кПа
|
|
КМС дымовой трубы
|
1,5
|
-
|
|
Коэффициент сопротивления
трения
|
0,02
|
-
|
|
Суммарные потери давления в
трубе
|
0,0024
|
0,0024
|
0,0015
|
кПа
|
|
Величина самотяги СУДГ
|
0,0377
|
0,0291
|
0,0216
|
кПа
|
|
Проверка тяги дымовой трубы
|
-0,0152
|
-0,0239
|
-0,0303
|
кПа
|
|
Высота дымовой трубы по
самотяге
|
8,51
|
11,05
|
13,76
|
м
|
|
Проверка высоты дымовой
трубы по требованиям архитектурно-строительных норм
|
|
Высота близлежащего здания
в радиусе 10 м
|
10,00
|
м
|
|
Нормативный запас
|
2,00
|
м
|
|
Минимальная высота
|
м
|
|
Фактическая высота дымовой
трубы
|
|
Минимальная высота по ПДК,
самотяге, высоте близлежащего здания и режимам теплопотребления
|
12,00
|
м
|
|
Фактическая высота (по
типоразмерам производителя)
|
13,899
|
м
|
Таблица 6.21 - Перечень основных элементов СУДГ для котла Зиосаб - М3500
|
Показатель
|
Ед.изм.
|
Значение
|
|
Газоход
|
|
Прямой элемент 1020мм
|
шт.
|
1
|
|
Прямой элемент 280мм
|
шт.
|
3
|
|
Муфта
|
шт.
|
1
|
|
Обжимной хомут
|
шт.
|
3
|
|
Проход через стену двойной
|
шт.
|
1
|
|
Фартук настенный
|
шт.
|
1
|
|
Дымовая труба
|
|
Подключение к котлу 90о
|
шт.
|
1
|
|
Опорная часть для монтажа с
отводом конденсата
|
шт.
|
1
|
|
Емкость для нейтрализации
|
шт.
|
1
|
|
Элемент с люком для
прочистки
|
шт.
|
1
|
|
Прямой элемент 1020мм
|
шт.
|
11
|
|
Прямой элемент 480мм
|
шт.
|
2
|
|
Прямой элемент 75мм
|
шт.
|
1
|
|
Обжимной хомут
|
шт.
|
13
|
|
Фартук для дождя
|
шт.
|
1
|
|
Кольцо растяжки
|
шт.
|
1
|
|
Выходная горловина
|
шт.
|
1
|
|
Зонт
|
шт.
|
1
|
Таблица 6.22 - Перечень основных элементов СУДГ для котла Зиосаб - М750
|
Показатель
|
Ед.изм.
|
Значение
|
|
1
|
2
|
3
|
|
Газоход
|
|
Прямой элемент 1020мм
|
шт.
|
1
|
|
Прямой элемент 480мм
|
шт.
|
1
|
|
Прямой элемент 120мм
|
шт.
|
1
|
|
Муфта
|
шт.
|
1
|
|
Обжимной хомут
|
шт.
|
3
|
|
Проход через стену двойной
|
шт.
|
1
|
|
Фартук настенный
|
шт.
|
1
|
|
Дымовая труба
|
|
Подключение к котлу 90о
|
шт.
|
1
|
|
Опорная часть для монтажа с
отводом конденсата
|
шт.
|
1
|
|
Емкость для нейтрализации
|
шт.
|
1
|
|
Элемент с люком для
прочистки
|
шт.
|
1
|
|
Прямой элемент 1020мм
|
шт.
|
12
|
|
Прямой элемент 280мм
|
шт.
|
1
|
|
Обжимной хомут
|
шт.
|
14
|
|
Фартук для дождя
|
шт.
|
1
|
|
Кольцо растяжки
|
шт.
|
1
|
|
Выходная горловина
|
шт.
|
1
|
|
Зонт
|
шт.
|
1
|
Выбираем
наибольшую высоту дымовых труб. Устанавливаем 4 дымовые трубы одинаковой высоты
13,93 м.
7.
ТЕХНИКО-ЭКОНОМИЧЕСКОЕ ОБОСНОВАНИЕ УСТАНОВКИ НОВОЙ ГАЗОВОЙ АВТОМАТИЗИРОВАННОЙ
КОТЕЛЬНОЙ ПРЕДПРИЯТИЯ ЖБК И СД
7.1 Расчет тарифа на тепловую энергию
Расчет тарифа на тепловую энергию производится по зависимости (7.1):
Т
=
, руб/Гкал, (7.1)
где З - общие затраты при производстве тепловой энергии, руб.;
Q -
полезная (реализованная) тепловая энергия, Гкал.
Общие затраты при производстве тепловой энергии складываются из затрат на
топливо, электрическую энергию, воду, материалы для химводоподготовки, на
оплату труда персонала котельной, на отчисления с фонда оплаты труда, расходы
на содержание и эксплуатацию, амортизационные отчисления и прочие статьи
затрат.
Расчет затрат на газовое топливо производится по зависимости (7.2):
Зт
=
, руб, (7.2)
где Qо - общая выработка тепловой энергии,
Гкал/год;нр - низшая рабочая теплота сгорания топлива, Гкал/м3;
η - коэффициент полезного действия
тепловой установки.
Расчет затрат на ресурсы (электроэнергию и воду) производится по формуле
(7.3):
Зр = Vр · Тр, руб, (7.3)
где Vр - объем ресурсов, затраченных на
производство тепловой энергии, (кВт · · ч)/год и м3/год соответственно;
Т - тариф на соответствующий вид ресурса, руб/(кВт · ч) и руб/м3.
Расчет затрат на оплату труда персонала производится по формуле (7.4):
Зот = N · A · k, руб, (7.4)
где N - численность персонала котельной, чел.;
А - среднемесячная заработная плата персонала котельной, руб./месяц;
k -
количество месяцев, на которое утверждается тариф.
К отчислениям с фонда оплаты труда относятся отчисления в пенсионный
фонд, фонд социального страхования, фонд обязательного медицинского
страхования. Суммарная процентная ставка в 2016 году составляет 30%.
Кроме того, в расчете тарифа учитываются амортизационные отчисления и
рентабельность. В Вологодской области предельный уровень рентабельности - 15%.
Исходные данные и расчет тарифа приведены в таблицах 7.1 и 7.2
соответственно.
Таблица 7.1 - Исходные данные для расчета тарифа на тепловую энергию
|
Параметр
|
Значение
|
Единицы измерения
|
|
|
|
|
1
|
2
|
3
|
|
Общая выработка тепловой
энергии
|
83591,4
|
Гкал
|
|
Численность персонала
|
1
|
чел
|
|
Средняя заработная плата
|
25000
|
руб/мес
|
|
Расход газа
|
11 289 791,68
|
м3
|
|
Теплота сгорания газа
|
8048,00
|
ккал/м3
|
|
КПД котлоагрегатов
|
92
|
%
|
|
Объем потребленной
электроэнергии
|
211 536,5
|
кВт·ч
|
|
Объем потребленной воды
|
21374,4
|
м3
|
|
Тариф на природный газ
|
4,28
|
руб/м3
|
|
Тариф при использовании
угля
|
|
руб/Гкал
|
|
Тариф на электроэнергию
|
3,83
|
руб/кВт·ч
|
|
Тариф на воду
|
24,77
|
руб/м3
|
|
Удельный расход топлива
|
135,1
|
м3/Гкал
|
|
Удельный расход
электроэнергии
|
3
|
кВт·ч/Гкал
|
|
Удельный расход воды
|
0,26
|
м3/Гкал
|
|
Срок амортизации
оборудования
|
20
|
лет
|
|
Капитальные затраты, в
т.ч.:
|
26 912 600,00
|
руб
|
|
- котельная
|
26 912 600,00
|
руб
|
|
- реконструкция тепловой
сети
|
0,00
|
руб
|
Таблица 7.2 - Расчет тарифа на тепловую энергию
|
Параметр
|
Значение
|
Единицы измерения
|
|
|
|
|
1
|
2
|
3
|
|
Общая выработка тепловой
энергии
|
83591,4
|
Гкал
|
|
Затраты на собственные
нужды
|
3731,8
|
Гкал
|
|
То же в процентах
|
5
|
%
|
|
Транспортные потери теплоты
|
5224,5
|
Гкал
|
|
То же в процентах
|
7
|
%
|
|
Отпуск тепловой энергии
потребителям
|
74635,2
|
Гкал
|
|
Расходы на выработку и
транспортировку тепловой энергии
|
|
Затраты на топливо
|
48 342 887,99
|
руб
|
|
Затраты на электроэнергию
|
810 184,80
|
руб
|
|
Затраты на воду
|
529 443,89
|
руб
|
|
Затраты на водоподготовку
|
13 268,00
|
руб
|
|
Затраты на оплату труда
|
300 000,00
|
руб
|
|
Отчисления с фонда оплаты
труда
|
90 000,00
|
руб
|
|
То же в процентах
|
30
|
%
|
|
Расходы на содержание и
эксплуатацию
|
|
Общецеховые расходы
|
-
|
руб
|
|
Общехозяйственные расходы
|
-
|
руб
|
|
Текущий ремонт
|
-
|
руб
|
|
Капитальный ремонт
|
-
|
руб
|
|
Амортизационные отчисления
на котельную
|
1 345 630,00
|
руб
|
|
Амортизационные отчисления
на тепловые сети
|
0,00
|
руб
|
|
Прочие расходы
|
-
|
руб
|
|
Итого расходов
|
51 431 414,68
|
руб
|
|
|
|
|
Себестоимость 1 Гкал
|
689,10
|
руб
|
|
Рентабельность
|
7 714 712,20
|
руб
|
|
То же в процентах
|
15
|
%
|
|
Всего с прибылью
|
59 146 126,88
|
руб
|
|
Тариф (без НДС)
|
792,47
|
руб/Гкал
|
|
Тариф с НДС
|
935,11
|
руб/Гкал
|
7.2 Расчет и оценка экономического эффекта
Удельную годовую экономическую эффективность можно определить по формуле
(7.5):
Э = Qг · (Т1 - Т2), руб/год, (7.5)
где Qг - годовая реализация тепловой
энергии, Гкал/год;
Т1 - существующий тариф на отпуск тепловой энергии, руб/Гкал;
Т2 - тариф на тепловую энергию при использовании газообразного топлива,
руб./Гкал.
Срок окупаемости определяется по формуле (7.6):
ε =
, год, (7.6)
где К - капитальные затраты на проект, руб;
Э - экономическая эффективность проекта, руб/год.
Удельная годовая экономическая эффективность составит:
Э = 74635,2· (1122 - 792) = 24 594
567,52 руб/год
Срок окупаемости будет равен:
ε =
= 1,1 года
При сравнении тарифа, полученного по итогам расчета, с существующим в
настоящее время, можно сделать вывод, что в результате строительства новой
газовой автоматизированной котельной и оснащения ее новым оборудованием
стоимость 1 Гкал снизится. Экономическая эффективность проекта составит 24 594
567,52 руб/год при капитальных затратах в размере 26 912 600,00 руб. Проект
относится к категории быстроокупаемых, т.к. срок окупаемости составит 1,1 год.
8.
АВТОМАТИЗАЦИЯ КОТЛА «ЗИОСАБ - М3500»
8.1 Общие положения
Автоматизация - комплекс мероприятий технического и организационного
характера, направленных на замену или облегчение труда человека с помощью
разнообразных средств: от простых устройств и механизмов до сложных
вычислительных комплексов [19].
Цель автоматизации - передача функции контроля от человека к
автоматическим устройствам.
Наблюдения за параметрами систем осуществляются с помощью измерительных
приборов. Совокупность устройств, с помощью которых выполняются операции
автоматического контроля, называется системой автоматического контроля.
Система автоматического контроля позволяет осуществить наиболее полное соответствие
между производством и потреблением теплоты за счет строгого соблюдения
расчетных параметров теплоносителя и предупреждения аварийной ситуации.
Для контроля параметров, учет которых необходим для анализа работы
оборудования или хозяйственных расчетов, предусматриваются регистрирующие
приборы.
Общим положением при выборе места установки приборов является удобство
обслуживания котельной при минимальном числе обслуживающего персонала и
небольшие капитальные и эксплуатационные затраты.
Функциональная схема автоматизации выполнена в соответствии с ГОСТ [20].
8.2 Контрольно - измерительные приборы
Местные приборы
Для контроля параметров, наблюдение за которыми необходимо при
эксплуатации котельной, предусматриваются показывающие и суммирующие приборы.
Показывающими приборами контролируются параметры, наблюдение за которыми
необходимо для правильного ведения технологического процесса.
В качестве местных приборов для измерения температуры используются
жидкостные термометры, а для измерения давления применяются показывающие
манометры.
По месту устанавливаются следующие приборы:
) манометры производят измерение избыточного давления и перепада
давлений. Используются манометры общего назначения показывающие типа ОБМ;
) термометры производят измерения температуры теплоносителя в подающем и
обратном трубопроводах. Установлены технические ртутные стеклянные термометры
типа ТТ.
Автоматические приборы
Измерение расхода теплоносителя и количества тепловой энергии, отпущенной
из теплоисточника и полученной теплопотребляющими установками, осуществляется
комплексом измерительных устройств под общим названием тепломер.
Измерение расхода осуществляется с помощью диафрагмы и дифманометра типа
ДМ.
Измерение температуры производится с помощью термопреобразователя
сопротивления типа ТСП в качестве первичного прибора и логометра в качестве
вторичного прибора. Действие термопреобразователя основано на использовании
зависимости электрического сопротивления проводника от температуры.
Вторичный прибор - устройство, воспринимающее сигнал от первичного
прибора или передающего измерительного преобразователя, и преобразующего его в
форму, удобную для восприятия измерительной информации диспетчером и
обслуживающим персоналом.
8.3 Автоматическое регулирование
Приборы
Автоматическое регулирование производится в следующем порядке: при
изменении температуры теплоносителя на выходе из котла подаётся сигнал на
изменение количества подаваемого в котёл топлива и производительность дутьевого
вентилятора, подающего в котёл воздух.
Температура подаваемой и обратной воды определяется тепломером.
В качестве регулирующих приборов используются регулирующая система
приборов «Сапфир - 22» и «Контур - 2».
Исполнительный механизм
Для управления регулирующими органами применяются однооборотные
электрические исполнительные механизмы типа МЭО, предназначенные для плавного
перемещения регулирующих органов. Исполнительные механизмы управляются от
регулирующих приборов.
Исполнительные механизмы состоят из электродвигателя, редуктора, конечных
выключателей, датчиков положения и штурвала ручного управления.
8.4 Защита и блокировка
Аварийное отключение котлоагрегата производится в случае выхода за
установленные пределы следующих параметров:
) температуры воды на выходе из котла;
) минимального и максимального давления теплоносителя в котле;
) циркуляции теплоносителя через котёл;
) давления в топке или газоходе котла;
) сигнала аварии горелки.
При этом подаётся сигнал на перекрытие подачи газа, остановку дутьевого
вентилятора, а также включается сигнализация на щите управления и в
диспетчерской.
Метрологическая карта средств измерения приведена в таблице 8.1, а
спецификация контурной схемы автоматизации котла «ЗИОСАБ - М3500» - в таблице
8.2.
Таблица 8.1 - Метрологическая карта средств измерения
|
№ п/п
|
Наименование оборудования
|
Пределы измерений
|
Диапазон показания шкалы
прибора
|
Длина шкалы
|
Цена деления прибора
|
Чувствительность прибора
|
Класс точности
|
Погрешность измерения
|
|
1
|
2
|
3
|
4
|
5
|
6
|
7
|
8
|
9
|
|
1
|
Термометр стеклянный
ртутный
|
0 ÷ 160°С
|
|
|
1°С
|
0,01
|
I
|
±1°С
|
|
2
|
Дифманометр с
дифференциально - трансформаторной схемой типа ДМ
|
1,6 ÷ 630 кПа
|
-
|
-
|
-
|
-
|
1,5
|
±1,5%
|
|
3
|
Прибор с дифференциально -
трансформаторной схемой типа КСД
|
0 ÷ 10 мГн -10 ÷ 0 ÷ 10 мГн
|
-
|
160 мм
|
-
|
-
|
-
|
±1,0%
|
|
4
|
Термопреобразователь сопротивления
типа ТСП
|
-50 ÷ 250°С
|
-
|
-
|
-
|
-
|
-
|
± (0.15 + + 0.002·t)
|
|
5
|
Пружинно - трубчатый
манометр с дифференциально - трансформаторной схемой
|
0,1 до 160 МПа
|
-
|
-
|
-
|
-
|
1
|
±1%
|
|
5
|
Логометр
|
0 ÷ 100 ºС
|
-
|
-
|
1 ºС
|
-
|
1,5
|
-
|
|
6
|
Манометр показывающий типа
ОБМ
|
0 - 0,6МПа
|
-
|
-
|
-
|
-
|
2,5
|
±1%
|
|
7
|
Потенциометр самопишущий
типа КПУ - 1
|
-
|
-
|
-
|
-
|
-
|
0,5
|
±0,5%
|
|
8
|
Термоэлектрический
термометр типа ТХА
|
-200 ... 1000°С
|
-
|
-
|
-
|
-
|
-
|
-
|
|
9
|
Тепломер
|
30 - 150°С
|
-
|
-
|
-
|
-
|
-
|
1%
|
Таблица 8.2 - Спецификация контурной схемы автоматизации котла «ЗИОСАБ -
М3500»
|
Позиция
|
Условное графическое
изображение
|
Наименование
|
Кол-во
|
|
1
|
2
|
3
|
4
|
|
1б,в
|
|
Измерительная диафрагма,
дифманометр с дифференциально - трансформаторной схемой типа ДМ
|
1
|
|
1г,д
|
|
Прибор с дифференциально -
трансформаторной схемой типа КСД
|
1
|
|
2б,в
|
|
Датчик тяги ДТ
|
1
|
|
2г
|
|
Регулирующий прибор системы
«Контур - 2» типа РС29.1 с электроисполнительным механизмом типа МЭО
|
1
|
|
3б
|
|
Расходомер объемный типа РГ
|
1
|
|
4б
|
|
Датчик контроля пламени
типа ЗЗУ
|
1
|
|
4в
|
|
Управляющий прибор
|
1
|
|
5б,в
|
|
Пружинно - трубчатый
манометр с дифференциально - трансформаторной схемой
|
1
|
|
5г
|
|
Регулирующий прибор системы
«Контур - 2» типа РС29.1 с электроисполнительным механизмом типа МЭО
|
1
|
|
6б, 7б
|

|
Манометр показывающий типа
ОБМ
|
1
|
|
9б
|
|
Термопреобразователь
сопротивления типа ТСП
|
2
|
|
9в
|
|
Логометр
|
1
|
|
12а
|
|
Термоэлектрический
термометр типа ТХА
|
1
|
|
12б,в
|

|
Потенциометр самопишущий
типа КПУ1
|
1
|
|
10б,в
|
|
Измерительная диафрагма,
дифманометр с дифференциально - трансформаторной схемой типа ДМ
|
1
|
|
11б
|
|
Термопреобразователь
сопротивления типа ТСП
|
1
|
|
10г
|
|
Вычислитель
|
1
|
|
10д
|
|
Жидкокристаллическое табло
|
1
|
|
|
|
|
|
9. БЕЗОПАСНОСТь жизнедеятельности ПРИ МОНТАЖЕ КОТЕЛЬНЫХ УСТАНОВОК
.1 Общие требования
Бригадир по
монтажу котельных установок обязан хорошо знать правила безопасного выполнения
работ, порученных бригаде. До начала работ бригада должна получить от мастера
или производителя работ инструктаж и только после этого приступить к выполнению
работ.
К работам
допускаются лица, прошедшие медицинское освидетельствование, обучение
безопасным способам производства работ по утвержденной программе и имеющие
соответствующее удостоверение о проверке знаний.
Рабочий,
имеющий несколько профессий, должен быть обучен безопасным приемам по всем
видам выполняемых им работ. К сварочным работам допускаются рабочие не моложе
18 лет, имеющие профессию сварщика и удостоверение о сдаче испытаний на право
выполнения сварочных работ в соответствии с правилами, утвержденными
Госгортехнадзором.
Вводный
инструктаж проводит инженер по технике безопасности монтажного управления или
начальник участка. Инструктаж по технике безопасности на рабочем месте проводит
мастер (производитель работ). Инструктажи должны быть оформлены соответствующей
записью в журнале инструктажа.
К работе со
строительно-монтажным пистолетом допускаются слесари не ниже пятого разряда, не
моложе 18 лет, имеющие вторую профессию оператора. Все работы со строительно-монтажным
пистолетом должны производиться строго в соответствии со специальной
инструкцией по работе с пистолетом.
На особо
опасные работы бригада или рабочий должны получить «Наряд на особо опасные
работы», в котором перечисляются необходимые мероприятия по технике
безопасности.
Несчастные
случаи нередко происходят из-за отсутствия надлежащего порядка и чистоты на
рабочем месте. Материалы, заготовки, изделия, не уложенные на отведенные для
них места, мешают во время работы и являются причинами ушибов рабочего. Ожоги и
другие несчастные случаи происходят при работе около токонесущих проводов, при
газовой и электрической сварке.
При
обнаружении каких-либо неисправностей в инструментах, приспособлениях,
креплениях, а также при нарушении правил техники безопасности рабочий обязан
немедленно доложить об этом бригадиру, а бригадир - мастеру или производителю
работ.
Запрещается
вставать на ограждения, трубопроводы, кожухи муфт, подшипники, а также на
конструкции и перекрытия, не имеющие специальных ограждений и не предназначенные
для прохода по ним, а также перемещаться по мокрым от дождя или обледеневшим
металлоконструкциям. При невозможности соорудить леса для работы на высоте
более 2,5 м рабочий должен обязательно работать с предохранительным поясом.
Запрещается
хранить на месте работ горючие и легковоспламеняющиеся материалы (керосин,
бензин, масло, тряпье и т. п.).
Производственные
травмы по вине рабочего могут произойти не только с самим работающим, но и с
рабочими, находящимися рядом с ним поэтому запрещается:
сбрасывать
вниз концы троса, доски и т. п.;
включать
лебедки или другие механизмы без команды руководителя группы, выполняющей
монтаж.
Перед началом
производства работ по монтажу оборудования котельных установок необходимо:
привести в
порядок свою рабочую одежду, подготовить средства индивидуальной защиты
(предохранительный пояс, защитные очки и др.);
осмотреть и
проверить исправность грузоподъемных механизмов и устройств (лебедки, тали,
домкраты, блоки, полиспасты);
освободить
проходы к рабочим местам от посторонних предметов и очистить их от мусора и
грязи;
убедиться в
хорошем освещении места, где будут производиться монтажные работы;
подготовить
необходимый для работы монтажный инструмент и проверить его исправность.
При
несчастном случае находящийся рядом рабочий должен уметь оказать первую помощь
пострадавшему и одновременно сообщить об этом руководителю работ, а в
необходимых случаях - вызвать скорую медицинскую помощь.
Все работы по
монтажу котельных установок должны выполнять бригады или звенья.
Запрещается
производить в одиночку следующие работы: присоединять котлы (котлоагрегаты) к
действующим магистралям; продувать и прочищать котлы; ремонтировать арматуру в
колодцах и камерах; осматривать котлы и проверять оборудование котельных
установок; разбирать трубопроводы, выключенные из действующей магистрали;
устранять утечки пара, воды, газа из труб и арматуры.
9.2 Работа с инструментами
Инструмент
перед работой необходимо проверить, устранить неисправности. Работать
неисправным инструментом и инструментом, не соответствующим его прямому
назначению, запрещается.
Ручной
инструмент должен удовлетворять следующим требованиям: слесарные молотки и
кувалды должны иметь гладкие или слегка выпуклые бойки, не иметь наклепа
(пленочки), скосов, выбоин, трещин и заусенцев; рукоятки должны быть сделаны из
дерева твердых пород (березы, дуба, клена, бука), хорошо обработаны и иметь
овальную форму, немного утолщенную к свободному концу, длиной не менее 250 мм
для молотков и 600 мм для кувалд. Молотки и кувалды должны быть прочно насажены
и укреплены клиньями дубовыми (на клею) или металлическими с завершением; конец
рукоятки не должен выступать за край молотка или кувалды.
Особое
внимание следует уделять работе с электроинструментом и приспособлениями:
электрифицированный инструмент должен подключаться к сети напряжением не выше
42 В. Если нельзя подать напряжение до 42 В, то допускается (в порядке
исключения) работа с электроинструментом под напряжением 127 и 220 В, но с
обязательным применением диэлектрических средств индивидуальной защиты
(резиновых перчаток и галош). Корпус электроинструмента должен быть надежно
заземлен.
Перед началом
работ следует удостовериться в исправности (отсутствии оголения, изломов)
провода и в наличии заземления корпуса машин.
Включать
электроинструменты, присоединяя оголенные концы к линии или контактам
рубильников, воспрещается.
Запрещается
работать с электроинструментом, если корпус находится под напряжением, не
исправен или оголен шнур, не имеется заземляющего провода.
Работать
электроинструментом с приставных лестниц запрещается.
Пневмоинструменты,
используемые рабочими, необходимо отрегулировать, чтобы не было сильной отдачи.
Отработанный воздух из пневмоинструмента должен отводиться так, чтобы воздушная
струя не попадала на рабочего. Присоединять и разъединять шланги
пневматического инструмента можно только после прекращения подачи воздуха. До
присоединения к инструменту шланг должен быть тщательно продут. Подачу воздуха
можно включать только после того, как инструмент поставлен в рабочее положение.
9.3 Такелажные и монтажные работы
К работе на
ручных подъемных механизмах допускаются лица лишь после проверки их знаний и
практического навыка ответственным лицом по надзору за подъемными механизмами.
Все
грузоподъемные механизмы и устройства (тали, домкраты, кошки, блоки,
полиспасты) перед работой должны быть осмотрены; при этом надо проверить их
грузоподъемность, отсутствие повреждений и исправность действия. Механизмы,
имеющие повреждения или неисправные, применять запрещается.
Винтовые и
реечные домкраты должны быть снабжены стопорными приспособлениями,
препятствующими полному выходу винта или рейки.
Гидравлические
и пневматические домкраты должны иметь плотные соединения, исключающие утечку
жидкости или воздуха из рабочих цилиндров во время подъема груза.
Запрещается
перемещение тяжестей при недостаточном освещении пути во всех его участках.
При подъеме и
спуске груза рабочим не разрешается стоять под грузом или подходить к грузу
ближе чем на 1 м.
Волочить груз
по земле или полу при подъеме воспрещается.
Груз должен
быть захвачен стропами так, чтобы он не мог поломаться или прогнуться.
Запрещается
пропускать стропы через отверстия с режущими краями (трубные гнезда камер,
барабанов и т. п.).
Конструкция
блоков подъемных приспособлений должны исключать самопроизвольное
соскальзывание канат (цепи) с блока, а также его заклинивание между блоками и
обоймой. Блоки должны быть исправными, чистыми и хорошо смазанными. Оси блоков
должны быть надежно закреплены в щеках. Блоки с разбитыми и треснувшими роликами,
сработанными втулками, трещинами на осях крючках использовать в работе
запрещено.
Ручные
реечные домкраты должны позволять грузу опускаться только при вращении ручки в
обратную сторону, все ручные винтовые домкраты должны быть самотормозящимися.
До начала
подъема, перемещения и установки котельного оборудования бригадир монтажников
или мастер обязан:
ознакомить
членов бригады с монтируемым оборудованием и способами производства работ;
отобрать и
подготовить такелажные приспособления и грузоподъемные механизмы (блоки,
полиспасты, тали, домкраты, лебедки);
подготовить
пути перемещения и места установки котельного оборудования.
Рабочий о
всех замеченных недостатках или неисправностях грузоподъемных механизмов и
такелажных приспособлений должен немедленно сообщить бригадиру или мастеру.
Спуск котлов,
баков и другого тяжелого оборудования следует производить при помощи двух
лебедок - тяговой и тормозной; тормозить груз одним подклиниванием или
оставлять груз на уклоне во время перерыва в работе запрещается.
При подъеме
насосов, двигателей и другой подобной аппаратуры строп нужно накладывать на их
корпус. Для предохранения троса от повреждения или перелома под острые кромки
поднимаемого груза следует подкладывать специальные деревянные прокладки; чтобы
прокладки не выпали при ослаблении троса, их следует надежно закреплять к
тросу.
Устанавливать
домкраты для подъема или сдвига котельного оборудования нужно без перекосов во
избежание ' изгибов реек или винтов. Освобождение домкратов из-под поднятого
груза и их перестановка допускаются только после надежного укрепления груза в
поднятом положении или после укладки его на устойчивую клетку из деревянных
брусьев.
При нагрузке
полиспаста нити его каната не должны перекручиваться и касаться одна другой, а
блоки не должны иметь перекоса; поднимать груз нужно плавно, не допуская его
раскачивания.
При сборке
секционных котлов (во избежание падения секций и деталей) необходимо прочно
укрепить их.
Запрещается
отвертывать и завертывать гайки, применяя металлические прокладки между гайкой
и ключом, а также удлинять гаечные ключи присоединением к ним другого ключа или
трубы.
Совпадения
болтовых отверстий при фланцевых соединениях следует проверять монтажными
ключами, специальными ломиками или оправками. Категорически запрещается
проверять совпадения отверстий пальцами.
При
подготовке дымовой трубы к монтажу необходимо предварительно проверить при
помощи шаблонов разбивку болтовых отверстий в соединяемых фланцах.
При подъеме
дымовой трубы необходимо соблюдать следующие требования: все лебедки должны
иметь надежное закрепление и находиться на своих местах; посторонние лица
должны быть удалены из зоны подъема трубы; рабочие, занятые на подъеме трубы,
должны предварительно получить соответствующий инструктаж от бригадира или
мастера; запрещается делать перерывы в работе до полной установки поднимаемой
трубы в проектное положение и ее раскрепления расчалками; поднимать и
устанавливать дымовую трубу при сильном и порывистом ветре не разрешается.
Гидравлическое
испытание котельных установок и опробование оборудования должны производиться
под непосредственным руководством мастера или производителя работ.
Рабочие,
участвующие в работе по испытанию и пуску котельных установок, должны быть
предварительно проинструктированы и ознакомлены:
с размещением
арматуры (манометры, термометры, водомерные стекла и т. д.), гарнитуры
(гляделки, шиберы, заслонки и т. д.) и питательных приборов;
со способами
удаления воздуха их системы;
с порядком
повышения и снижения давления;
с
требованиями правил безопасности при проверке смонтированной системы и
производстве работ по исправлению обнаруженных при испытании и опробовании
недочетов.
Давление в
котле должно подниматься медленно и равномерно; наблюдение за давлением
производится по выверенному рабочему манометру.
Устранять
дефекты арматуры; подтягивать болты во фланцевых соединениях трубопроводов и
устранять дефекты, обнаруженные во время испытания, следует только при
отсутствии давления.
Перед пробной
растопкой необходимо проверить исправность предохранительных клапанов,
питательных приборов, топки и другой арматуры и гарнитуры котла; проверить, нет
ли внутри котла людей или каких-либо предметов; убедиться в наполнении котла
водой до низшего уровня, а также в заполнении водой экономайзера.
При испытании
котел должен быть немедленно остановлен.
Неуклонное
выполнение правил техники безопасности обеспечит безопасную работу. [22]
10.
ЭКОЛОГИЧНОСТЬ ПРОЕКТА
Загрязнение
воздушной среды теплогенерирующими установками связано с выбросами
мелкодисперсной золы, токсичных газов, таких как NO, NO2, SO2, CO и других.
Количество образующихся вредных газов зависит от вида топлива и его состава,
организации процесса горения в топочных устройствах, температуры горения и
многих других факторов. Основным показателем, характеризующим загрязнение
окружающей среды, является выброс вредных веществ в единицу времени.
В котельной
для отвода продуктов сгорания на определенную высоту, при которой
обеспечивается рассеивание выбросов до допустимых санитарными нормами
концентраций в зоне нахождения людей, служит дымовая труба.
Одним из
определяющих параметров высоты трубы является условие рассеивания дымовых газов
до допустимой концентрации. Расчет ведется для выбросов оксидов азота и
углерода NO2 и CO.
По
требованиям [8] расчет высоты дымовой трубы должен проверяться по условиям
рассеивания в атмосфере вредных веществ до уровня предельно допустимой
концентрации (ПДК).
Расчет
рассеивания вредных примесей производится в соответствии с нормами [23] при
неблагоприятных метеорологических условиях, а именно при опасной скорости
ветра, при которой концентрация вредных веществ на уровне обитания человека
достигает максимальных значений.
Высота
дымовых труб, предусмотренных данным проектом, отвечает требованиям рассеивания
в атмосфере оксидов азота и углерода до уровня ПДК.
В случае
разрыва газопровода, погасания пламени в топке котла, через неплотности
запорной арматуры и т.д. в котельной, работающей на природном газе, может
возникнуть загазованность. Природный газ не является токсичным, но оказывает удушающее
действие на человека. Газ не имеет вкуса, цвета и запаха, поэтому его одорируют
- придают запах, что дает возможность вовремя определить присутствие газа в
воздухе и устранить утечку.
В случае
любой аварийной ситуации, связанной с газообразным топливом, система автоматики
и безопасности котельной прекращает подачу газа к горелочным устройствам.
Других
источников выбросов вредных веществ на территории котельной нет.
Заключение
Для
осуществления замены котельной для проектируемого объекта выполнены расчеты
тепловых нагрузок на систему отопления и вентиляции и систему горячего
водоснабжения; расчет режимов теплопотребления (максимально - зимнего,
средне-отопительного и летнего); проведен подбор основного оборудования
котельной (три водогрейных котла «ЗИОСАБ - М3500», один водогрейный котел
«ЗИОСАБ - М750» для системы горячего водоснабжения и один паровой котел «ЗИОСАБ
FR-25-4-16», горелочных устройств Ecoflam BLU 1000.1 PR мощностью до 875 кВт
для котла «ЗИОСАБ - М750» и три горелочных устройства Ecoflam BLU 4000.1 PR
мощностью до 3900 кВт для котлов «ЗИОСАБ - М3500», газового оборудования -
газорегуляторной станции ГСГО-02 и регулятора давления газа РДБК1-50 (с седлом
35 мм), теплообменного аппарата FPDW 80-547-1-xx); построены температурный
график отпуска тепловой энергии потребителям в зависимости от температуры
наружного воздуха и график переключения котлоагрегатов; проведен расчет
тепловой схемы котельной; осуществлен подбор вспомогательного оборудования -
насосного (трех сетевых, двух подпиточных, трех циркуляционных и четырех
рециркуляционных насосов марки Wilo),
расширительного бака Reflex G 5000, оборудования химводоподготовки «Ёлка»;
построен пьезометрический график работы насосной группы; выполнен расчет и
подбор оборудования марки « DW-ALKON» для системы
удаления дымовых газов.
В
экономической части проекта приведено технико - экономическое обоснование
реконструкции системы теплоснабжения: расчет тарифа на тепловую энергию при
установке новой газовой автоматизированной котельной, а также расчет и оценка
экономического эффекта и срока окупаемости. Отмечено, что проект относится к
категории быстроокупаемых (срок окупаемости - 1,1 года).
Кроме того, в
проекте рассмотрена автоматизация котла «ЗИОСАБ - М3500», правила техники
безопасности при монтаже котельных установок, а также проведена оценка
экологической безопасности предлагаемых мероприятий.
СПИСОК
ИСПОЛЬЗОВАННЫХ ИСТОЧНИКОВ
1. СП 131.13330.2012. Свод правил.
Строительная климатология: утв. Госстрой России. - Актуализированная редакция
СНиП 23-01-99*; введ. 01.01.2013. - Москва: Минстрой России, 2015. - 70с.
. Наладка и эксплуатация водяных
тепловых сетей: справочник / В.И. Манюк, Я.И. Каплинский, Э.Б. Хиж [и др.]. - 3
- е изд., перераб. и доп. - Москва: Стройиздат, 1988. - 432 с.
. СП 41 - 101 - 95. Свод правил по
проектированию и строительству. Проектирование тепловых пунктов. - Введ.
01.07.1996. - Москва: ГУП ЦПП, 1997. - 86 с.
. СНиП 2.04.01-85. Строительные нормы
и правила. Внутренний водопровод и канализация зданий: утв. Госстроем СССР 04.10.1985
№189. - Введ. 01.07.1986. - ГУП ЦПП, 1986. - 60 с.
. ГОСТ 30732 - 2006. Трубы и фасонные
изделия стальные с тепловой изоляцией из пенополиуретана с защитной оболочкой.
Технические условия. Введ. 01.01.2008. - Москва: Стандартинформ, 2007. - 44 с.
. РД - З - ВЭП. Руководящий документ
по применению осевых сильфонных компенсаторов (СК) по техническим условиям
ИЯНШ. 300260.029ТУ, сильфонных компенсирующих устройств (СКУ) по техническим
условиям ИЯНШ. 300260.033ТУ, стартовых сильфонных компенсаторов (ССК) по
техническим условиям ИЯНШ. 300260.035ТУ, сильфонных компенсирующих устройств
для стальных трубопроводов с тепловой изоляцией из пенополиуретана в
полиэтиленовой оболочке по техническим условиям ИЯНШ. 300260.043ТУ предприятия
ОАО «НПП «Компенсатор» при проектировании, строительстве и эксплуатации
тепловых сетей. - Москва, 2006. - 112 с.
Приложение 1
Расход тепловой энергии на отопление
Таблица П1.1 - Расход тепловой энергии на отопление
|
Наименование потребителя
|
а
|
q, ккал/м*ч*0С
|
\/нар, мЗ
|
tвн, град
|
tнаp, град
|
Q, Мкал/ч
|
G, т/ч
|
|
1
|
2
|
3
|
4
|
5
|
6
|
7
|
8
|
|
Торговый центр
|
0,99
|
0,489
|
3441
|
18
|
-32
|
83,29
|
3,33
|
|
Ремстройпуть
|
0,99
|
0,701
|
1424
|
18
|
-32
|
49,41
|
1,98
|
|
Гараж-1
|
0,99
|
0,5
|
8022
|
10
|
-32
|
166,78
|
6,67
|
|
Гараж-2
|
0,99
|
0,6
|
2725
|
10
|
-32
|
67,98
|
2,72
|
|
Гараж-3
|
0,99
|
0,6
|
2536
|
10
|
-32
|
63,27
|
2,53
|
|
Гараж
|
0,99
|
0,7
|
1395
|
10
|
-32
|
40,60
|
1,62
|
|
Вагон бытовой
|
0,99
|
0,6
|
102
|
16
|
-32
|
2,91
|
0,12
|
|
Здание собора
|
0,99
|
0,44
|
4984
|
20
|
-32
|
112,89
|
4,52
|
|
Собор
|
0,99
|
0,3
|
5373
|
16
|
-32
|
76,60
|
3,06
|
|
Церковная лавка
|
0,99
|
0,6
|
400
|
16
|
-32
|
11,40
|
0,46
|
|
Лесопильный цех
|
0,99
|
0,45
|
13510
|
18
|
-32
|
300,94
|
12,04
|
|
Станция пожаротушения
|
0,99
|
0,6
|
525
|
18
|
-32
|
15,59
|
0,62
|
|
ЦПД (сварочный участок)
|
0,99
|
0,55
|
7063
|
16
|
-32
|
184,60
|
7,38
|
|
Проходная ЖБИ
|
0,99
|
0,6
|
48
|
18
|
-32
|
1,43
|
0,06
|
|
Деревообрабатывающий цех -
ввод-1
|
0,99
|
0,45
|
17460
|
18
|
-32
|
388,92
|
15,56
|
|
Деревообрабатывающий цех -
ввод-2
|
0,99
|
0,55
|
6661
|
18
|
-32
|
181,35
|
7,25
|
|
РМЦ
|
0,99
|
0,6
|
3197
|
16
|
-32
|
91,15
|
3,65
|
|
Мастерские ЖБИ
|
0,99
|
0,6
|
2108
|
16
|
-32
|
2,40
|
|
Бытовые помещения котельной
|
0,99
|
0,33
|
10763
|
16
|
-32
|
168,78
|
6,75
|
|
Столовая
|
0,99
|
0,3
|
20678
|
16
|
-32
|
294,79
|
11,79
|
|
Арматурный цех
|
0,99
|
0,5
|
19788
|
16
|
-32
|
470,16
|
18,81
|
|
Формовочный цех
|
0,99
|
0,4
|
28140
|
16
|
-32
|
534,89
|
21,40
|
|
Администрация ЖБИ
|
0,99
|
0,43
|
4813
|
18
|
-32
|
102,44
|
4,10
|
|
Гараж ЖБИ
|
0,99
|
0,5
|
15200
|
10
|
-32
|
316,01
|
12,64
|
|
Гараж комитета экологии
|
0,99
|
0,55
|
4357
|
10
|
-32
|
99,64
|
3,99
|
|
Трансформаторный цех
|
0,99
|
0,55
|
3240
|
16
|
-32
|
84,68
|
3,39
|
|
Трансформаторный цех
(администр.)
|
0,99
|
0,43
|
3530
|
18
|
-32
|
75,14
|
3,01
|
|
Магазин на ул. Петина
|
0,99
|
0,4
|
2400
|
18
|
-32
|
47,52
|
1,90
|
|
Заготовительный цех
|
0,99
|
0,55
|
6320
|
16
|
-32
|
165,18
|
6,61
|
|
РБУ-2
|
0,99
|
0,6
|
3592
|
18
|
-32
|
106,68
|
4,27
|
|
Склад-1 СУ-2
|
0,99
|
0,7
|
3661
|
14
|
-32
|
116,71
|
4,67
|
|
Проходная СУ-2
|
0,99
|
0,6
|
48
|
18
|
-32
|
1,43
|
0,06
|
|
Говоровский пр. 13
|
0,99
|
0,4
|
6674
|
18
|
-32
|
132,15
|
5,29
|
|
Склад-1 (СУ-2)
|
0,99
|
0,6
|
7270
|
14
|
-32
|
198,65
|
7,95
|
|
РБУ-1
|
0,99
|
0,6
|
4082
|
18
|
-32
|
121,24
|
4,85
|
|
Говоровский пр, 7А - админ.
|
0,99
|
0,4
|
8328
|
18
|
-32
|
164,89
|
6,60
|
|
Говоровский пр, 7А -
гараж-1
|
0,99
|
0,7
|
243
|
16
|
-32
|
8,08
|
0,32
|
|
Говоровский пр, 7А -
мастерская
|
0,99
|
0,5
|
1080
|
16
|
-32
|
25,66
|
1,03
|
|
Говоровский пр, 7А -
стол.цех
|
0,99
|
0,6
|
1611
|
16
|
-32
|
45,93
|
1,84
|
|
Говоровский пр, 7А -
кровельный цех
|
0,99
|
0,55
|
860
|
16
|
-32
|
22,48
|
0,90
|
|
Говоровский пр, 7А -
гараж-2
|
0,99
|
0,7
|
586
|
16
|
-32
|
19,49
|
0,78
|
|
Администрация автобазы
|
0,99
|
0,43
|
1045
|
18
|
-32
|
22,24
|
0,89
|
|
Проходная автобазы
|
0,99
|
0,6
|
65
|
16
|
-32
|
1,85
|
0,07
|
|
Новая контора автобазы
|
0,99
|
0,43
|
4032
|
18
|
-32
|
85,82
|
3,43
|
|
Транспортный цех - ввод1
|
0,99
|
0,55
|
7200
|
16
|
-32
|
188,18
|
7,53
|
|
Транспортный цех - ввод2
|
0,99
|
0,55
|
8600
|
16
|
-32
|
224,77
|
8,99
|
|
Выставочный центр
|
0,99
|
0,4
|
2350
|
16
|
-32
|
44,67
|
1,79
|
|
Торговый центр Талацентр»
|
0,99
|
0,49
|
3441
|
16
|
-32
|
80,12
|
3,20
|
|
Газавтосервис
|
0,99
|
0,4
|
3260
|
16
|
-32
|
61,97
|
2,48
|
|
Служебно-техническое здание
|
0,99
|
0,4
|
4832
|
18
|
-32
|
95,67
|
3,83
|
|
Таксопарк
|
0,99
|
0,7
|
2011
|
10
|
-32
|
58,53
|
2,34
|
|
Говоровский пр-д, 5 (ж/д)
|
0,99
|
0,43
|
6228
|
20
|
-32
|
137,87
|
5,51
|
|
Говоровский пр-д, 3( ж/д)
|
0,99
|
0,66
|
878
|
20
|
-32
|
29,83
|
1,19
|
|
Говоровский пр-д, 1 (ж/д)
|
0,99
|
0,488
|
3312
|
20
|
-32
|
83,20
|
3,33
|
|
Пошехонское шоссе, 4 (ж/д)
|
0,99
|
0,66
|
897
|
20
|
-32
|
30,48
|
1,22
|
|
ИТОГО:
|
6367,03
|
254,68
|
Приложение 2
Расход тепловой энергии на вентиляцию
Таблица П2.1 - Расход тепловой энергии на вентиляцию
|
Наименование потребителя
|
а
|
q, ккал/м*ч*0С
|
\/нар, мЗ
|
tвн, град
|
tнаp, град
|
Q, Мкал/ч
|
G, т/ч
|
|
Лесопильный цех
|
0,99
|
0,45
|
13510
|
18
|
-32
|
300,94
|
12,04
|
|
Деревообрабатывающий цех
|
0,99
|
0,45
|
24121
|
18
|
-32
|
537,30
|
21,49
|
|
Арматурный цех
|
0,99
|
0,2
|
19788
|
16
|
-32
|
188,07
|
7,52
|
|
Гаражи ЖБИ
|
0,99
|
0,65
|
15200
|
10
|
-32
|
410,81
|
16,43
|
|
Трансформаторный цех
|
0,99
|
0,12
|
6770
|
18
|
-32
|
40,21
|
1,61
|
|
ЦПД (сварочный участок)
|
0,4
|
7063
|
16
|
-32
|
134,25
|
5,37
|
|
ИТОГО:
|
1611,57
|
64,46
|
Приложение 3
Расход тепловой энергии на горячее водоснабжение
Таблица П3.1 - Расход тепловой энергии на горячее водоснабжение
|
Наименование потребителя по
схеме
|
Количество человек в смену,
чел
|
Норма ГВС на 1 работника,
л/сут
|
Схема подключения ПГВкТС
|
Qcp, Мкал/ч
|
Qмах, Мкал/ч
|
G, т/ч
|
|
Ремстройпуть
|
28
|
11
|
Паралл.
|
16,9
|
40,7
|
1,36
|
|
Здание собора
|
25
|
60
|
Паралл.
|
82,5
|
198,0
|
6,60
|
|
Лесопильный цех
|
16
|
11
|
Паралл.
|
9,7
|
23,2
|
0,77
|
|
ЦПД (сварочный участок)
|
10
|
11
|
Паралл.
|
6,1
|
14,5
|
0,48
|
|
Деревообрабатывающий цех -
ввод-1
|
20
|
11
|
Паралл.
|
12,1
|
29,0
|
0,97
|
|
Бытовые помещения котельной
|
20
|
24
|
Паралл.
|
26,4
|
63,4
|
2,11
|
|
Арматурный цех
|
12
|
11
|
Паралл.
|
7,3
|
17,4
|
0,58
|
|
Формовочный цех
|
20
|
11
|
Паралл.
|
12,1
|
29,0
|
0,97
|
|
Администрация ЖБИ
|
59
|
7
|
Паралл.
|
22,7
|
54,5
|
1,82
|
|
Трансформаторный цех
(администр.)
|
15
|
7
|
Паралл.
|
5,8
|
13,9
|
0,46
|
|
РБУ-1
|
21
|
7
|
Паралл.
|
8,1
|
19,4
|
0,65
|
|
Администрация автобазы
|
18
|
7
|
Паралл.
|
6,9
|
16,6
|
0,55
|
|
Новая контора автобазы
|
23
|
7
|
Паралл.
|
8,9
|
21,3
|
0,71
|
|
ИТОГО:
|
225,4
|
540,94
|
18,03
|
Приложение 4
Гидравлический расчет тепловой сети
Таблица П4.1 - Результаты гидравлического расчета тепловой сети
|
Узел начальный
|
Узел конечный
|
Длина l,
м
|
Диаметр d,
мм
|
Скорость ν, м/с
|
Потери напора, м
|
Удельные потери, мм/м
|
|
1
|
2
|
3
|
4
|
5
|
6
|
7
|
8
|
|
Укот
|
Быт.помещения
|
10
|
40
|
2,0
|
4,16
|
415,9
|
9
|
|
Укот
|
ТК1
|
10
|
207
|
1,6
|
0,29
|
28,7
|
16,75
|
|
ТК1
|
Ул.ц.
|
53
|
82
|
1,1
|
2,49
|
46,9
|
11,77
|
|
ТК1
|
пер.Д
|
90
|
150
|
0,2
|
0,08
|
0,9
|
16,58
|
|
пер.Д
|
ТК
|
15
|
82
|
0,8
|
0,35
|
23,6
|
15,87
|
|
ТК3
|
Гараж
|
25
|
50
|
0,2
|
0,1
|
4
|
13,86
|
|
ТК
|
ТКсд.соб.
|
90
|
82
|
0,8
|
2,12
|
23,6
|
11,62
|
|
ТКсд.соб.
|
ТКсоб.
|
48
|
50
|
0,5
|
0,91
|
18,9
|
9,81
|
|
ТКсоб.
|
Церковная лавка
|
18
|
40
|
0,1
|
0,02
|
1,1
|
9,77
|
|
ТКсд.соб.
|
Здание собора
|
6
|
50
|
1,6
|
1,21
|
202,1
|
9,2
|
|
ТКсоб.
|
Храм
|
12
|
50
|
0,4
|
0,17
|
14,3
|
9,47
|
|
Укот
|
ТК2
|
43
|
150
|
1,5
|
1,6
|
37,3
|
14,11
|
|
Кот. ЖБИ СЖД
|
Укот
|
20
|
207
|
2,5
|
1,34
|
67
|
17,32
|
|
ТК2
|
Мастерские ЖБИ
|
12
|
40
|
0,5
|
0,36
|
29,7
|
13,4
|
|
ТК1
|
ТК3
|
70
|
207
|
1,3
|
1,35
|
19,2
|
14,06
|
|
ТК3
|
РМЦ
|
47
|
50
|
0,5
|
0,95
|
20,3
|
12,15
|
|
ТК3
|
ТК4
|
31
|
207
|
1,3
|
0,56
|
18
|
12,94
|
|
ТК4
|
Дерев. цех-1
|
10
|
82
|
0,9
|
0,28
|
28
|
12,38
|
|
ТК4
|
ТК5
|
50
|
207
|
1,1
|
0,6
|
12,1
|
11,73
|
|
ТК5
|
ЦПД
|
25
|
100
|
0,3
|
0,08
|
3,3
|
11,57
|
|
ТК5
|
ТК6
|
71
|
207
|
0,8
|
0,48
|
6,8
|
10,77
|
|
ТК6
|
Проходная ЖБИ
|
7
|
25
|
0,0
|
0
|
0,2
|
10,76
|
|
ТК4
|
ТК7
|
75
|
150
|
0,2
|
0,04
|
0,6
|
12,85
|
|
ТК7
|
ТК8
|
10
|
150
|
0,2
|
0,01
|
0,6
|
12,84
|
|
ТК8
|
Гаражи - 1
|
60
|
100
|
0,2
|
0,1
|
1,6
|
12,65
|
|
ТК8
|
Угар
|
45
|
69
|
0,4
|
0,33
|
7,3
|
12,18
|
|
Угар
|
Гаражи - 3
|
85
|
69
|
0,2
|
0,14
|
1,7
|
11,89
|
|
Угар
|
Гаражи - 2
|
10
|
50
|
0,4
|
0,11
|
11,96
|
|
ТК6
|
ТК9
|
34
|
207
|
0,8
|
0,23
|
6,8
|
10,3
|
|
ТК9
|
ТК10
|
44
|
150
|
1,0
|
0,75
|
17
|
8,81
|
|
ТК10
|
РБУ
|
10
|
82
|
0,3
|
0,03
|
3,2
|
8,75
|
|
ТК10
|
ТК11
|
55
|
150
|
0,9
|
0,78
|
14,2
|
7,25
|
|
ТК11
|
ТК12
|
65
|
100
|
0,4
|
0,33
|
5
|
6,6
|
|
ТК12
|
ТК13
|
40
|
100
|
0,2
|
0,05
|
1,3
|
6,5
|
|
ТК13
|
ТК14
|
35
|
100
|
0,2
|
0,03
|
0,8
|
6,44
|
|
ТК14
|
пер.Д2
|
12
|
100
|
0,0
|
0
|
0,1
|
6,44
|
|
пер.Д2
|
Пош.шоссе, 4
|
11
|
50
|
0,2
|
0,03
|
2,5
|
6,39
|
|
ТК14
|
Говор. пр-д 1
|
9
|
50
|
0,5
|
0,16
|
18,2
|
6,12
|
|
ТК13
|
Говор. пр-д 3
|
11
|
50
|
0,2
|
0,03
|
2,4
|
6,45
|
|
ТК12
|
Говор. пр-д 5
|
3
|
50
|
0,8
|
0,16
|
51,8
|
6,29
|
|
ТК11
|
ТК15
|
61
|
150
|
0,7
|
0,55
|
9,1
|
6,14
|
|
ТК7
|
Вагон бытовой
|
3
|
25
|
0,1
|
0
|
0,9
|
12,85
|
|
Ул.ц.
|
Лесопильный цех
|
5
|
69
|
1,5
|
0,56
|
112,4
|
10,65
|
|
Ул.ц.
|
Станция пож.
|
40
|
32
|
0,2
|
0,27
|
6,8
|
11,23
|
|
ТК15
|
ТК20
|
20
|
150
|
0,6
|
0,13
|
6,7
|
5,88
|
|
ТК20
|
ТК21
|
14
|
150
|
0,6
|
0,07
|
5,2
|
5,73
|
|
ТК21
|
ТК23
|
16
|
150
|
0,4
|
0,04
|
2,3
|
5,66
|
|
ТК23
|
У3
|
15
|
100
|
0,1
|
0
|
0,1
|
5,65
|
|
У3
|
Прох. Автобазы
|
20
|
50
|
0,0
|
0
|
0
|
5,65
|
|
У3
|
Админ. АБ
|
10
|
69
|
0,1
|
0,01
|
0,6
|
5,64
|
|
ТК23
|
ТК24
|
75
|
150
|
0,4
|
0,15
|
2
|
5,35
|
|
ТК24
|
Трансп. цех-1
|
36
|
100
|
0,3
|
0,07
|
2
|
5,2
|
|
ТК24
|
Выстав. центр
|
60
|
82
|
0,1
|
0,02
|
0,3
|
5,31
|
|
ТК24
|
У2
|
15
|
82
|
0,7
|
0,27
|
18
|
4,81
|
|
У2
|
Трансп. цех-2
|
5
|
82
|
0,5
|
0,04
|
8,4
|
4,73
|
|
У2
|
Админ.зд.
|
73
|
50
|
0,6
|
1,9
|
26,1
|
1,02
|
|
ТК21
|
ТК22
|
85
|
100
|
0,4
|
0,43
|
5
|
4,91
|
|
ТК22
|
Таксопарк
|
30
|
69
|
0,2
|
0,04
|
1,5
|
4,82
|
|
ТК22
|
ТК25
|
30
|
82
|
0,5
|
0,28
|
9,4
|
4,38
|
|
ТК25
|
У4
|
40
|
82
|
0,3
|
0,13
|
3,4
|
4,16
|
|
У4
|
Газавтосервис
|
5
|
50
|
0,4
|
0,05
|
9,4
|
4,08
|
|
У4
|
Галацентр
|
45
|
69
|
0,2
|
0,12
|
2,7
|
3,95
|
|
ТК20
|
ТК16
|
35
|
100
|
0,2
|
0,03
|
0,8
|
5,82
|
|
ТК16
|
ТК17
|
50
|
100
|
0,1
|
0,02
|
0,4
|
5,77
|
|
ТК17
|
ТК18
|
23
|
100
|
0,0
|
0
|
0
|
5,77
|
|
ТК16
|
У5
|
5
|
32
|
0,5
|
0,16
|
31,8
|
5,5
|
|
У5
|
Г.пр.7А гараж
|
3
|
32
|
0,1
|
0,01
|
1,8
|
5,49
|
|
У5
|
Г.пр.7А Маст.
|
3
|
32
|
0,4
|
0,06
|
18,4
|
5,39
|
|
ТК17
|
У6
|
5
|
50
|
0,4
|
0,06
|
11,4
|
5,66
|
|
У6
|
Стол.цех
|
5
|
40
|
0,4
|
0,09
|
17,4
|
5,48
|
|
У6
|
Кровельн.цех
|
5
|
40
|
0,2
|
0,02
|
4,2
|
5,62
|
|
ТК18
|
Г.пр.7А гараж 2
|
10
|
50
|
0,1
|
0,9
|
5,75
|
|
ТК15
|
Говор. пр-д, 7А
|
5
|
50
|
0,9
|
0,33
|
66,3
|
5,48
|
|
ТК2
|
ТК26
|
40
|
150
|
1,5
|
1,42
|
35,5
|
11,28
|
|
ТК26
|
Столовая
|
20
|
69
|
0,5
|
0,2
|
9,8
|
10,88
|
|
ТК26
|
ТК27
|
26
|
150
|
1,4
|
0,81
|
31
|
9,67
|
|
ТК27
|
У10
|
40
|
150
|
1,4
|
1,24
|
31
|
7,19
|
|
У10
|
Арматурный цех
|
10
|
82
|
1,3
|
0,62
|
62,2
|
5,94
|
|
У10
|
Мастерс. жест.
|
70
|
40
|
0,1
|
0,08
|
1,2
|
7,02
|
|
У10
|
У11
|
45
|
150
|
1,0
|
0,71
|
15,8
|
5,76
|
|
У11
|
Формов. цех
|
10
|
82
|
1,2
|
0,52
|
52,5
|
4,71
|
|
У11
|
Админ. ЖБИ
|
15
|
50
|
0,9
|
0,83
|
55,3
|
4,1
|
|
ТК9
|
ТК30
|
153
|
125
|
0,7
|
1,71
|
11,2
|
6,88
|
|
ТК30
|
Говор.пр-д, 13
|
15
|
50
|
0,7
|
0,64
|
42,6
|
5,61
|
|
ТК30
|
Склад-1 СУ-2
|
12
|
69
|
0,3
|
0,07
|
5,8
|
6,75
|
|
ТК30
|
ТК29
|
49
|
125
|
0,5
|
0,26
|
5,3
|
6,36
|
|
ТК29
|
Гов.пр.13 прох.
|
51
|
50
|
0,0
|
0
|
0
|
6,36
|
|
ТК29
|
У15
|
35
|
125
|
0,5
|
0,19
|
5,3
|
5,99
|
|
У15
|
ТК28
|
22
|
100
|
0,5
|
0,16
|
7,2
|
5,67
|
|
ТК28
|
РБУ-2
|
40
|
100
|
0,2
|
0,03
|
0,7
|
5,62
|
|
У15
|
Склад-2 СУ-2
|
5
|
50
|
1,1
|
0,48
|
96,2
|
5,03
|
|
ТК28
|
У14
|
9
|
82
|
0,5
|
0,09
|
10,3
|
5,49
|
|
У14
|
Заготовит.цех
|
5
|
50
|
0,9
|
0,33
|
66,5
|
4,82
|
|
У14
|
Ремстройпуть
|
85
|
50
|
0,5
|
1,45
|
17
|
2,64
|
|
У11
|
ТК31
|
145
|
150
|
0,5
|
0,68
|
4,7
|
4,4
|
|
ТК31
|
Гаражи экологии
|
130
|
100
|
0,1
|
0,07
|
0,6
|
4,25
|
|
ТК31
|
ТК32
|
105
|
125
|
0,2
|
0,12
|
1,2
|
4,15
|
|
ТК32
|
У16
|
63
|
82
|
0,4
|
0,48
|
7,6
|
3,2
|
|
ТК32
|
Петина - маг.
|
110
|
50
|
0,3
|
0,61
|
5,5
|
2,94
|
|
У16
|
Транс.цех-Адм.
|
10
|
82
|
0,2
|
0,01
|
0,9
|
3,18
|
|
У16
|
Трансф.цех
|
10
|
82
|
0,3
|
0,03
|
3,2
|
3,14
|
|
ТК5
|
Дерев. цех-2
|
20
|
100
|
0,8
|
0,36
|
18,1
|
11,01
|
|
ТК25
|
Служ.-техн. зд.
|
30
|
82
|
0,2
|
0,05
|
1,5
|
4,29
|
|
ТК31
|
Гараж ЖБИ
|
20
|
82
|
1,0
|
0,8
|
40,1
|
2,79
|
Приложение 5
Результаты расчета дросселирующих диафрагм на отопление
Таблица П5.1 - Результаты расчета дросселирующих диафрагм на отопление
|
Наименование потребителя
|
Напор на вводе в систему, м
|
Диам. шайбы, мм
|
Дрос напор шайбой, м
|
|
1
|
2
|
3
|
4
|
|
Админ. АБ
|
5,64
|
6,4
|
4,64
|
|
Админ. ЖБИ
|
4,05
|
15,3
|
3,05
|
|
Арматурный цех
|
5,87
|
29,2
|
4,87
|
|
Быт.помещения
|
8,53
|
15,7
|
7,53
|
|
Вагон бытовой
|
12,85
|
3,1
|
11,85
|
|
Выстав. центр
|
5,31
|
9,3
|
4,31
|
|
Г.пр.7А гараж
|
5,48
|
3,9
|
4,48
|
|
Г.пр.7А гараж 2
|
5,75
|
6
|
4,75
|
|
Г.пр.7А Маст.
|
5,35
|
7
|
4,35
|
|
Газавтосервис
|
4,07
|
11,9
|
3,07
|
|
Галацентр
|
3,94
|
13,7
|
2,94
|
|
Гараж
|
13,85
|
6,7
|
12,85
|
|
Гараж ЖБИ
|
2,76
|
30,9
|
1,76
|
|
Гаражи - 1
|
12,65
|
14
|
11,65
|
|
Гаражи - 2
|
11,94
|
9,1
|
10,94
|
|
Гаражи - 3
|
11,89
|
8,8
|
10,89
|
|
Гаражи экологии
|
4,25
|
14,9
|
3,25
|
|
Гов.пр.13 прох.
|
6,36
|
3
|
5,36
|
|
Говор. пр-д 1
|
6,08
|
12,4
|
5,08
|
|
Говор. пр-д 3
|
6,44
|
7,3
|
5,44
|
|
Говор. пр-д 5
|
6,19
|
16
|
|
Говор. пр-д, 7А
|
5,35
|
17,8
|
4,35
|
|
Говор.пр-д, 13
|
5,52
|
15,8
|
4,52
|
|
Дерев. цех-1
|
12,36
|
21,5
|
11,36
|
|
Дерев. цех-2
|
11
|
15,1
|
10
|
|
Заготовит.цех
|
4,69
|
18,5
|
3,69
|
|
Здание собора
|
9,14
|
12,6
|
8,14
|
|
Кровельн.цех
|
5,61
|
6,5
|
4,61
|
|
Лесопильный цех
|
10,57
|
19,7
|
9,57
|
|
Мастерс. жест.
|
7,02
|
4,4
|
6,02
|
|
Мастерские ЖБИ
|
13,34
|
8,3
|
12,34
|
|
Петина - маг.
|
2,93
|
11,7
|
1,93
|
|
Пош.шоссе, 4
|
6,38
|
7,4
|
5,38
|
|
Прох. Автобазы
|
5,65
|
3
|
4,65
|
|
Проходная ЖБИ
|
10,76
|
3
|
9,76
|
|
РБУ
|
8,74
|
13,2
|
7,74
|
|
РБУ-2
|
5,62
|
14,1
|
4,62
|
|
Ремстройпуть
|
2,63
|
12,2
|
1,63
|
|
РМЦ
|
12,11
|
10,5
|
11,11
|
|
Склад-1 СУ-2
|
6,73
|
14
|
5,73
|
|
Склад-2 СУ-2
|
4,84
|
20,1
|
3,84
|
|
Служ.-техн. зд.
|
4,28
|
14,5
|
3,28
|
|
Станция пож.
|
11,21
|
4,4
|
10,21
|
|
Стол.цех
|
5,45
|
9,3
|
4,45
|
|
Столовая
|
10,86
|
13,9
|
9,86
|
|
Таксопарк
|
4,82
|
10,9
|
3,82
|
|
Транс.цех-Адм.
|
3,18
|
14,3
|
2,18
|
|
Трансп. цех-1
|
5,2
|
19,2
|
4,2
|
|
Трансп. цех-2
|
4,71
|
21,6
|
3,71
|
|
Трансф.цех
|
3,14
|
15,2
|
2,14
|
|
Формов. цех
|
4,62
|
33,5
|
3,62
|
|
Храм
|
9,44
|
10,3
|
8,44
|
|
Церковная лавка
|
9,77
|
3,9
|
8,77
|
|
ЦПД
|
11,56
|
15,1
|
10,56
|
Приложение 6
Результаты расчета дросселирующих диафрагм на горячее водоснабжение
Таблица П6.1 - Результаты расчета дросселирующих диафрагм на горячее
водоснабжение
|
Наименование потребителя
|
Напор на вводе в систему, м
|
Диам. шайбы, мм
|
Дрос напор шайбой, м
|
|
Админ. АБ
|
5,64
|
5,2
|
4,52
|
|
Админ. ЖБИ
|
4,09
|
10,6
|
2,97
|
|
Арматурный цех
|
5,94
|
5,3
|
4,82
|
|
Быт.помещения
|
8,95
|
8,9
|
7,83
|
|
Дерев. цех-1
|
12,38
|
5
|
11,26
|
|
Здание собора
|
9,05
|
15,8
|
7,92
|
|
РБУ
|
8,75
|
5
|
7,62
|
|
Ремстройпуть
|
2,64
|
10,8
|
1,51
|
|
Трансф.цех
|
3,14
|
5,9
|
2,01
|
|
Формов. цех
|
4,71
|
7,4
|
3,59
|
|
ЦПД
|
11,57
|
4
|
10,44
|
Приложение 7
Расчетные потери теплоты в трубопроводах
Таблица П7.1 - Расчетные потери теплоты в трубопроводах
|
Узел начальный
|
Узел конечный
|
Длина участка, м
|
Диаметр участка, мм
|
Тип прокладки
|
Плотность теплового потока
|
Потери тепловой энергии
|
|
|
|
|
|
зимой
|
летом
|
зимой
|
летом
|
год
|
|
|
|
|
|
ккал/ч
|
ккал/ч
|
Мкал/пер
|
Мкал/пер
|
Мкал/год
|
|
1
|
2
|
3
|
4
|
5
|
6
|
7
|
8
|
9
|
10
|
|
Укот
|
Быт.помещения
|
10
|
40
|
Подземная
|
23,2
|
13,8
|
0,23
|
0,14
|
0,37
|
|
Укот
|
ТК1
|
10
|
200
|
Подземная
|
49,9
|
28,4
|
0,50
|
0,28
|
0,78
|
|
ТК1
|
Ул.ц.
|
53
|
80
|
Подземная
|
31,8
|
18,1
|
1,69
|
0,96
|
2,64
|
|
ТК1
|
пер.Д
|
90
|
150
|
Подземная
|
40,4
|
23,2
|
3,64
|
2,09
|
5,73
|
|
пер.Д
|
ТК
|
15
|
80
|
Подземная
|
31,8
|
18,1
|
0,48
|
0,27
|
0,75
|
|
ТК3
|
Гараж
|
25
|
50
|
Подземная
|
25,8
|
14,6
|
0,64
|
0,37
|
1,01
|
|
ТК
|
ТКсд.соб.
|
90
|
80
|
Подземная
|
31,8
|
18,1
|
2,86
|
1,63
|
4,49
|
|
ТКсд.соб.
|
ТКсоб.
|
48
|
50
|
Подземная
|
25,8
|
14,6
|
1,24
|
0,70
|
1,94
|
|
ТКсоб.
|
Церковная лавка
|
18
|
40
|
Подземная
|
23,2
|
13,8
|
0,42
|
0,25
|
0,67
|
|
ТКсд.соб.
|
Здание собора
|
6
|
50
|
Подземная
|
25,8
|
14,6
|
0,15
|
0,09
|
0,24
|
|
ТКсоб.
|
Храм
|
12
|
50
|
Подземная
|
25,8
|
14,6
|
0,31
|
0,18
|
0,48
|
|
Укот
|
ТК2
|
43
|
150
|
Подземная
|
40,4
|
23,2
|
1,74
|
1,00
|
2,74
|
|
Кот.
|
Укот
|
20
|
200
|
Подземная
|
49,9
|
28,4
|
1,00
|
0,57
|
1,56
|
|
ТК2
|
Мастерские ЖБИ
|
12
|
40
|
Подземная
|
23,2
|
13,8
|
0,28
|
0,17
|
0,44
|
|
ТК1
|
70
|
200
|
Подземная
|
49,9
|
28,4
|
3,49
|
1,99
|
5,48
|
|
ТК3
|
РМЦ
|
47
|
50
|
Подземная
|
25,8
|
14,6
|
1,21
|
0,69
|
1,90
|
|
ТК3
|
ТК4
|
31
|
200
|
Подземная
|
49,9
|
28,4
|
1,55
|
0,88
|
2,43
|
|
ТК4
|
Дерев. цех-1
|
10
|
80
|
Подземная
|
31,8
|
18,1
|
0,32
|
0,18
|
0,50
|
|
ТК4
|
ТК5
|
50
|
200
|
Подземная
|
49,9
|
28,4
|
2,49
|
1,42
|
3,91
|
|
ТК5
|
ЦПД
|
25
|
100
|
Подземная
|
35,3
|
20,6
|
0,88
|
0,52
|
1,40
|
|
ТК5
|
ТК6
|
71
|
200
|
Подземная
|
49,9
|
28,4
|
3,54
|
2,01
|
5,56
|
|
ТК6
|
Проходная ЖБИ
|
7
|
25
|
Подземная
|
20,6
|
12,0
|
0,14
|
0,08
|
0,23
|
|
ТК4
|
ТК7
|
75
|
150
|
Подземная
|
40,4
|
23,2
|
3,03
|
1,74
|
4,77
|
|
ТК7
|
ТК8
|
10
|
150
|
Подземная
|
40,4
|
23,2
|
0,40
|
0,23
|
0,64
|
|
ТК8
|
Гаражи - 1
|
60
|
100
|
Подземная
|
35,3
|
20,6
|
2,12
|
1,24
|
3,35
|
|
ТК8
|
Угар
|
45
|
70
|
Подземная
|
29,2
|
17,2
|
1,32
|
0,77
|
2,09
|
|
Угар
|
Гаражи - 3
|
85
|
70
|
Подземная
|
29,2
|
17,2
|
2,48
|
1,46
|
3,95
|
|
Угар
|
Гаражи - 2
|
10
|
50
|
Подземная
|
25,8
|
14,6
|
0,26
|
0,15
|
0,40
|
|
ТК6
|
ТК9
|
34
|
200
|
Подземная
|
49,9
|
28,4
|
1,70
|
0,96
|
2,66
|
|
ТК9
|
ТК10
|
44
|
150
|
Подземная
|
40,4
|
23,2
|
1,78
|
1,02
|
2,80
|
|
ТК10
|
РБУ
|
10
|
80
|
Подземная
|
31,8
|
18,1
|
0,32
|
0,18
|
0,50
|
|
ТК10
|
ТК11
|
55
|
150
|
Подземная
|
40,4
|
23,2
|
2,22
|
1,28
|
3,50
|
|
ТК11
|
ТК12
|
65
|
100
|
Подземная
|
35,3
|
20,6
|
2,29
|
1,34
|
3,63
|
|
ТК12
|
ТК13
|
40
|
100
|
Подземная
|
35,3
|
20,6
|
1,41
|
0,83
|
2,24
|
|
ТК13
|
ТК14
|
35
|
100
|
Подземная
|
35,3
|
20,6
|
1,23
|
0,72
|
1,96
|
|
ТК14
|
пер.Д2
|
12
|
100
|
Подземная
|
35,3
|
20,6
|
0,42
|
0,25
|
0,67
|
|
пер.Д2
|
Пош.шоссе, 4
|
11
|
50
|
Подземная
|
25,8
|
14,6
|
0,28
|
0,16
|
0,44
|
|
ТК14
|
Говор. пр-д 1
|
9
|
50
|
Подземная
|
25,8
|
14,6
|
0,23
|
0,13
|
0,36
|
|
ТК13
|
Говор. пр-д 3
|
11
|
50
|
Подземная
|
25,8
|
14,6
|
0,28
|
0,16
|
0,44
|
|
ТК12
|
Говор. пр-д 5
|
3
|
50
|
Подземная
|
25,8
|
14,6
|
0,08
|
0,04
|
0,12
|
|
ТК11
|
ТК15
|
61
|
150
|
Подземная
|
40,4
|
23,2
|
2,47
|
1,42
|
3,88
|
|
ТК7
|
Вагон бытовой
|
3
|
25
|
Подземная
|
20,6
|
12,0
|
0,06
|
0,04
|
0,10
|
|
Ул.ц.
|
Лесопильный цех
|
5
|
70
|
Подземная
|
29,2
|
17,2
|
0,15
|
0,09
|
0,23
|
|
Ул.ц.
|
Станция пож.
|
40
|
32
|
Подземная
|
22,4
|
12,9
|
0,89
|
0,52
|
1,41
|
|
ТК15
|
ТК20
|
20
|
150
|
Подземная
|
40,4
|
23,2
|
0,81
|
0,46
|
1,27
|
|
ТК20
|
ТК21
|
14
|
150
|
Подземная
|
40,4
|
23,2
|
0,57
|
0,33
|
0,89
|
|
ТК21
|
ТК23
|
16
|
150
|
Подземная
|
40,4
|
23,2
|
0,65
|
0,37
|
1,02
|
|
ТК23
|
У3
|
15
|
100
|
Подземная
|
35,3
|
20,6
|
0,53
|
0,31
|
0,84
|
|
У3
|
Прох. Автобазы
|
20
|
50
|
Подземная
|
25,8
|
14,6
|
0,52
|
0,29
|
0,81
|
|
У3
|
Админ. АБ
|
70
|
Подземная
|
29,2
|
17,2
|
0,29
|
0,17
|
0,46
|
|
ТК23
|
ТК24
|
75
|
150
|
Подземная
|
40,4
|
23,2
|
3,03
|
1,74
|
4,77
|
|
ТК24
|
Трансп. цех-1
|
36
|
100
|
Подземная
|
35,3
|
20,6
|
1,27
|
0,74
|
2,01
|
|
ТК24
|
Выстав. центр
|
60
|
80
|
Подземная
|
31,8
|
18,1
|
1,91
|
1,08
|
2,99
|
|
ТК24
|
У2
|
15
|
80
|
Подземная
|
31,8
|
18,1
|
0,48
|
0,27
|
0,75
|
|
У2
|
Трансп. цех-2
|
5
|
80
|
Подземная
|
31,8
|
18,1
|
0,16
|
0,09
|
0,25
|
|
У2
|
Админ.зд.
|
73
|
50
|
Подземная
|
25,8
|
14,6
|
1,88
|
1,07
|
2,95
|
|
ТК21
|
ТК22
|
85
|
100
|
Подземная
|
35,3
|
20,6
|
3,00
|
1,75
|
4,75
|
|
ТК22
|
Таксопарк
|
30
|
70
|
Подземная
|
29,2
|
17,2
|
0,88
|
0,52
|
1,39
|
|
ТК22
|
ТК25
|
30
|
80
|
Подземная
|
31,8
|
18,1
|
0,95
|
0,54
|
1,50
|
|
ТК25
|
У4
|
40
|
80
|
Подземная
|
31,8
|
18,1
|
1,27
|
0,72
|
1,99
|
|
У4
|
Газавтосервис
|
5
|
50
|
Подземная
|
25,8
|
14,6
|
0,13
|
0,07
|
0,20
|
|
У4
|
Галацентр
|
45
|
70
|
Подземная
|
29,2
|
17,2
|
1,32
|
0,77
|
2,09
|
|
ТК20
|
ТК16
|
35
|
100
|
Подземная
|
35,3
|
20,6
|
1,23
|
0,72
|
1,96
|
|
ТК16
|
ТК17
|
50
|
100
|
Подземная
|
35,3
|
20,6
|
1,76
|
1,03
|
2,79
|
|
ТК17
|
ТК18
|
23
|
100
|
Подземная
|
35,3
|
20,6
|
0,81
|
0,47
|
1,29
|
|
ТК16
|
У5
|
5
|
32
|
Подземная
|
22,4
|
12,9
|
0,11
|
0,06
|
0,18
|
|
У5
|
Г.пр.7А гараж
|
3
|
32
|
Подземная
|
22,4
|
12,9
|
0,07
|
0,04
|
0,11
|
|
У5
|
Г.пр.7А Маст.
|
3
|
32
|
Подземная
|
22,4
|
12,9
|
0,07
|
0,04
|
0,11
|
|
ТК17
|
У6
|
5
|
50
|
Подземная
|
25,8
|
14,6
|
0,13
|
0,07
|
0,20
|
|
У6
|
Стол.цех
|
5
|
40
|
Подземная
|
23,2
|
13,8
|
0,12
|
0,07
|
0,18
|
|
У6
|
Кровельн.цех
|
5
|
40
|
Подземная
|
23,2
|
13,8
|
0,12
|
0,07
|
0,18
|
|
ТК18
|
Г.пр.7А гараж 2
|
10
|
50
|
Подземная
|
25,8
|
14,6
|
0,26
|
0,15
|
0,40
|
|
ТК15
|
Говор. пр-д, 7А
|
5
|
50
|
Подземная
|
25,8
|
14,6
|
0,13
|
0,07
|
0,20
|
|
ТК2
|
ТК26
|
40
|
150
|
Подземная
|
40,4
|
23,2
|
1,62
|
0,93
|
2,55
|
|
ТК26
|
Столовая
|
20
|
70
|
Подземная
|
29,2
|
17,2
|
0,58
|
0,34
|
0,93
|
|
ТК26
|
ТК27
|
26
|
150
|
Подземная
|
40,4
|
23,2
|
1,05
|
0,60
|
1,65
|
|
ТК27
|
У10
|
40
|
150
|
Подземная
|
40,4
|
23,2
|
1,62
|
0,93
|
2,55
|
|
У10
|
Арматурный цех
|
10
|
80
|
Подземная
|
31,8
|
18,1
|
0,32
|
0,18
|
0,50
|
|
У10
|
Мастерс. жест.
|
70
|
40
|
Подземная
|
23,2
|
13,8
|
1,63
|
0,96
|
2,59
|
|
У10
|
У11
|
45
|
150
|
Подземная
|
40,4
|
23,2
|
1,82
|
1,04
|
2,86
|
|
У11
|
Формов. цех
|
10
|
80
|
Подземная
|
31,8
|
18,1
|
0,32
|
0,18
|
0,50
|
|
У11
|
Админ. ЖБИ
|
15
|
50
|
Подземная
|
25,8
|
14,6
|
0,39
|
0,22
|
0,61
|
|
ТК9
|
ТК30
|
153
|
125
|
Подземная
|
37,0
|
22,4
|
5,66
|
3,42
|
9,08
|
|
ТК30
|
Говор.пр-д, 13
|
15
|
50
|
Подземная
|
25,8
|
14,6
|
0,39
|
0,22
|
0,61
|
|
ТК30
|
Склад-1 СУ-2
|
12
|
Подземная
|
29,2
|
17,2
|
0,35
|
0,21
|
0,56
|
|
ТК30
|
ТК29
|
49
|
125
|
Подземная
|
37,0
|
22,4
|
1,81
|
1,10
|
2,91
|
|
ТК29
|
Гов.пр.13 прох.
|
51
|
50
|
Подземная
|
25,8
|
14,6
|
1,32
|
0,75
|
2,06
|
|
ТК29
|
У15
|
35
|
125
|
Подземная
|
37,0
|
22,4
|
1,29
|
0,78
|
2,08
|
|
У15
|
ТК28
|
22
|
100
|
Подземная
|
35,3
|
20,6
|
0,78
|
0,45
|
1,23
|
|
ТК28
|
РБУ-2
|
40
|
100
|
Подземная
|
35,3
|
20,6
|
1,41
|
0,83
|
2,24
|
|
У15
|
Склад-2 СУ-2
|
5
|
50
|
Подземная
|
25,8
|
14,6
|
0,13
|
0,07
|
0,20
|
|
ТК28
|
У14
|
9
|
80
|
Подземная
|
31,8
|
18,1
|
0,29
|
0,16
|
0,45
|
|
У14
|
Заготовит.цех
|
5
|
50
|
Подземная
|
25,8
|
14,6
|
0,13
|
0,07
|
0,20
|
|
У14
|
Ремстройпуть
|
85
|
50
|
Подземная
|
25,8
|
14,6
|
2,19
|
1,24
|
3,44
|
|
У11
|
ТК31
|
145
|
150
|
Подземная
|
40,4
|
23,2
|
5,86
|
3,37
|
9,23
|
|
ТК31
|
Гаражи экологии
|
130
|
100
|
Подземная
|
35,3
|
20,6
|
4,58
|
2,68
|
7,27
|
|
ТК31
|
ТК32
|
105
|
125
|
Подземная
|
37,0
|
22,4
|
3,88
|
2,35
|
6,23
|
|
ТК32
|
У16
|
63
|
80
|
Подземная
|
31,8
|
18,1
|
2,00
|
1,14
|
3,14
|
|
ТК32
|
Петина - маг.
|
110
|
50
|
Подземная
|
25,8
|
14,6
|
2,84
|
1,61
|
4,45
|
|
У16
|
Транс.цех-Адм.
|
10
|
80
|
Подземная
|
31,8
|
18,1
|
0,32
|
0,18
|
0,50
|
|
У16
|
Трансф.цех
|
10
|
80
|
Подземная
|
31,8
|
18,1
|
0,32
|
0,18
|
0,50
|
|
ТК5
|
Дерев. цех-2
|
20
|
100
|
Подземная
|
35,3
|
20,6
|
0,71
|
0,41
|
1,12
|
|
ТК25
|
Служ.-техн. зд.
|
30
|
80
|
Подземная
|
31,8
|
18,1
|
0,95
|
0,54
|
1,50
|
|
ТК31
|
Гараж ЖБИ
|
20
|
80
|
Подземная
|
31,8
|
18,1
|
0,64
|
0,36
|
1,00
|
|
125,83
|
72,79
|
198,62
|
|
|
|
|
|
|
|
|
|
|
|
|
|
Приложение 8
Технические характеристики котла «ЗИОСАБ - М750»
Таблица П8.1 - Технические характеристики котлов серии «ЗИОСАБ» тепловой
мощностью от 125 кВт до 3 МВт
Рисунок П8.2 - Габаритные и установочные размеры котлов «ЗИОСАБ»
ПРИЛОЖЕНИЕ 9
Технические характеристики котла «ЗИОСАБ - М3500»
Таблица П9.1 - Технические характеристики котлов серии «ЗИОСАБ - М3500»
|
Характеристика
|
Значение
|
|
Теплопроизводительность
ном.
|
3500 кВт (3,010 Гкал/час)
|
|
Диапазон регулирования
30…100 %
|
30…100 %
|
|
Давление расчетное воды на
выходе из котла
|
0,6 Мпа
|
|
Водяной объем котла
|
4,3 м³
|
|
Гидравлическое
сопротивление
|
0,025 Мпа
|
|
Температура воды на входе в
котел
|
70°C
|
|
Температура воды на выходе
из котла
|
115°C
|
|
Расход воды через котел при
температуре 115°C
|
66,9 т/час
|
|
Мин. длина пламенной головы
горелки
|
490 мм
|
|
Толщина поворотной камеры
|
375 мм
|
|
Расчетное аэродинамическое
сопротивление
|
9,5 мбар
|
|
Габариты топки:
|
|
|
Длина
|
3673 мм
|
|
Диаметр
|
1076 мм
|
|
КПД, не менее:
|
|
|
-природный газ
|
92%
|
|
-дизель
|
91%
|
|
Расход топлива:
|
|
|
-природный газ
|
379,5 м³/ч
|
|
-дизель
|
325 кг/ч
|
|
Температура уходящих газов:
|
|
|
-природный газ
|
180°C
|
|
-дизель
|
210°C
|
|
Габариты котла:
|
|
|
-длина
|
4690 мм
|
|
-ширина
|
1970 мм
|
|
-высота
|
2192 мм
|
|
Диаметр газохода
|
520 мм
|
|
Масса котла без воды
|
7850 кг
|
Рисунок П9.2 - Общий вид котла «ЗИОСАБ-М3500»
Рисунок П9.3 - Габаритные и присоединительные размеры котла
«ЗИОСАБ-М3500»
ПРИЛОЖЕНИЕ 10
Технические характеристики котла «ЗИОСАБ FR-25-4-16»
Таблица П10.1 - Технические характеристики котла «ЗИОСАБ FR-25-4-16»
|
1. Номинальная
паропроизводительность, т/ч
|
4
|
|
2. Номинальная
теплопроизводительность, МВт
|
2,61
|
|
3. Давление пара раб., МПа
(кгс/cм2), не более
|
1,4 (14)
|
|
4. Температура пара раб.,
°С, не более
|
198
|
|
5. Состояние теплоносителя
- пар водяной насыщенный;
|
|
6. Влажность пара, %, не
более
|
3
|
|
7. КПДбрутто (без
экономайзера), %, природный газ / дизельное топливо
|
89,6 / 89,6
|
|
8. Температура уходящих
газов для котлов, работающих на газообразном (легком жидком) топливах, °С, не
более
|
240 (260)
|
|
9. Аэродинамическое
сопротивление, Па
|
1080
|
|
10. Расход топливa, нм3/час
/ кг/час (природный газ / дизельное топливо)
|
292,2 / 245,0
|
|
11. Расход воздуха, нм3/час
(природный газ / дизельное топливо)
|
3053,6 / 3141,6
|
|
12. Расход дымовых газов в
котле, работающем на газообразном (жидком) топливе, нм3/час
|
3396,1 (3141,6)
|
|
13. Содержание вредных
выбросов в отходящих газах, мг/нм3, не более (в пересчете на нормальные
условия в сухих отходящих газах при α=1):
|
|
- CO - на природном газе /
легком (тяжелом) жидком топливе
|
117 / 115 (200)
|
|
- NOx- на природном газе /
легком (тяжелом) жидком топливе
|
145 / 230 (490)
|
|
14. Габаритные размеры, мм
|
4680x2750x2650
|
|
15. Размеры топочной
камеры, мм:
|
|
- длина топки до поворотной
камеры, L
|
3410
|
|
- диаметр топки в свету, D
|
968
|
|
16. Проходное сечение
дымового патрубка, мм
|
350 x 350
|
|
17. Масса котла (без
горелки), т
|
10,52
|
|
18. Уровень звука в
контрольных точках при работе котла, дБА, не более
|
80
|
|
19. Средний срок службы до
списания
|
20 лет
|
Рисунок П10.2 - Габаритные размеры котла «ЗИОСАБ FR-25-4-16»
ПРИЛОЖЕНИЕ 11
Технические характеристики горелки Ecoflam BLU 1000.1 PR
Таблица П11.1 - Характеристики горелки Ecoflam BLU 1000.1 PR
ПРИЛОЖЕНИЕ 12
Технические характеристики горелки Ecoflam BLU 4000.1 PR
Таблица П12.1 - Характеристики горелки Ecoflam BLU 4000.1 PR
ПРИЛОЖЕНИЕ 13
Технические характеристики газорегуляторной станции ГСГО-02
Таблица П13.1 - Характеристики газорегуляторной станции ГСГО-02
ПРИЛОЖЕНИЕ 14
Технические характеристики регулятора давления газа РДБК1-50 (седло
35мм)
Таблица П14.1 - Характеристики регулятора давления газа РДБК1-50
ПРИЛОЖЕНИЕ 15
Технические
характеристики расширительного бака Reflex G 5000
Рисунок П15.1 - Расширительный бак Reflex G 5000
Таблица П15.1 - Характеристики
расширительного бака Reflex G 5000
ПРИЛОЖЕНИЕ 16
Технические характеристики установки умягчения и обезжелезивания
Ёлка. WFDМ-3.4-Cl-(MTM)
Таблица П16.1 - Характеристики установки умягчения и обезжелезивания
Ёлка. WFDМ-3.4-Cl-(MTM)
ПРИЛОЖЕНИЕ 17
Технические
характеристики насоса BL 80/160-18,5/2
ПРИЛОЖЕНИЕ 18
Технические
характеристики насоса IPL 32/130-1,1/2
ПРИЛОЖЕНИЕ 19
Технические
характеристики насоса BL 80/160-2,2/4