Разработка проекта для строительства газопровода среднего и низкого давления в селе Спас-Ямщики Междуреченского района Вологодской области
Введение
В последнее время обозначилась проблема реформы ЖКХ в нашей стране. Как
показывает действительность, сложившаяся ситуация с теплоснабжением является
близкой к критической. Централизованное теплоснабжение не может быть внедрено в
небольших населённых пунктах, которых в России много. Здесь применимы системы
автономные, и уже имеется большой положительный опыт их эксплуатации в крупных
городах и малых населённых пунктах.
Оптимальный вариант для России на данный момент не найден, скорее он
просто отсутствует, т.к. слишком много мнений и разногласий по этому вопросу
мешают его поиску. И конечно огромные расстояния, разные климатические условия
и множество других факторов вносят свои коррективы в выбор оптимальных путей
решения проблемы.
Наибольшие вопросы вызывают магистральные трубопроводы и оборудование
котельных, которые в большинстве своём давно нуждаются в модернизации или
замене. Котельные работающие на дровах, угле и мазуте уже не вписываются в
рамки строгих экологических норм, очень дороги в эксплуатации и потому
нуждаются в переводе для работы на газовом топливе, так же они обладают очень
низким уровнем надёжности и качества предоставляемых услуг.
На этом фоне ярко выделяется ещё одно направление - малая теплоэнергетика
в России, строительство котельных нового поколения, позволяющих экономить 30 -
40% используемого топлива. В некоторых районах страны идёт разработка,
внедрение и эксплуатация новых технологических разработок. В основном это
районы сельской местности - вотчина малой теплоэнергетики, где ей нет
альтернативы.
Тепловые электростанции (ТЭЦ) могут работать эффективно только в больших
городах. Строительство крупных таких объектов в посёлках и деревнях (даже для
нескольких населённых пунктов) нецелесообразно и экономически невыгодно. Только
развитие малой теплоэнергетики в небольших населённых пунктах, на сегодняшний
день, внедрение новых разработок в данном направлении, может противостоять
«развитию» массовому печному отоплению в стране.
Темой представленной дипломной работы выбрана разработка проекта для
строительства газопровода среднего и низкого давления в селе Спас-Ямщики
Междуреченского района Вологодской области.
Дипломная работа выполняется в двух вариантах: первый - стандартный,
выполненный на листах формата А4, второй - компакт-диск, содержащий информацию,
отраженную в первом варианте дипломной работы, и полные тексты цитируемой
литературы.
Применение средств малой теплоэнергетики для повышения эффективности
систем теплоснабжения
Проблема реформирования, реабилитации и инновационного развития систем
теплоснабжения в России, в настоящее время, принимает всё большее значение. В
настоящее время в связи с обозначившимся подъемом промышленного производства,
строительством новых и расширением действующих предприятий и жилищных комплексов,
все более оправданным с позиций надежности и энергоэффективности становится
использование локальных сравнительно малых по габаритам блочных модульных
котельных. Область применения блочных котельных достаточно широка: отопление
удаленных от действующего центрального теплоисточника строящихся объектов,
теплофикация развивающихся промышленных предприятий, нуждающихся в увеличении
своих теплоэнергетических мощностей.
.1 Плюсы применения децентрализованного теплоснабжения
Основными преимуществами децентрализованного теплоснабжения при
использовании мини котельных являются:
· компактность и отсутствие теплотрасс;
· высокий КПД (обычно производители называют КПД равным 92%);
· автоматическое местное регулирование подачи тепла в
зависимости от необходимой температуры в помещении;
· долговечность внутренних систем отопления и горячего
водоснабжения;
· надежность и простота конструкции и управления;
· низкий шум при работе;
· работа в автоматическом режиме, не требующего постоянного
присутствия обслуживающего персонала;
· автоматическое поддержание заданной температуры
теплоносителя.
В зависимости от технологической необходимости в состав модульных
котельных входят:
Блок - бокс, т.е. само помещение, где располагается оборудование.
Блок-бокс может быть оснащён системами отопления и вентиляции. При
необходимости может быть установлена сигнализация.
Котёл. Котёл - сердце автономной системы отопления и ключевое устройство
модульной котельной. Современный котёл может быть рассчитан на работу на любом
виде топлива - газ, дизельное топливо, уголь, мазут, отходы деревообработки.
Горелочное устройство. В газовых и жидкотопливных котлах подготовка и
сжигание топлива происходит в специальном устройстве - горелке (газовой или
жидкотопливной, соответственно). Существуют и универсальные горелки, которые
могут работать на обоих видах топлива. Газовые горелки делятся на атмосферные
(с открытой камерой сгорания) и вентиляторные (с закрытой камерой сгорания).
Вентиляторная горелка - гораздо более сложное и дорогое устройство, чем атмосферная.
Она снабжена вентилятором, подающим воздух в камеру сгорания, обеспечивая таким
образом точное его количество и следовательно высокий КПД.
Насосы. Циркуляционные насосы создают циркуляцию теплоносителя в трубах
систем отопления и горячего водоснабжения (ГВС). Подпиточные насосы
обеспечивают подачу воды из системы холодного водоснабжения для поддержания
необходимого объёма теплоносителя в системе.
Теплообменники. Теплообменники внутреннего (котлового) контура передают
тепло от котла к теплоносителю. Теплообменники горячего водоснабжения
объединяют контуры теплоносителя котла и горячего водоснабжения. В
теплообменниках не происходит смешивания воды - греющая вода от источника тепла
контактирует с нагреваемой водой через стенки теплообменника.
Расширительный бак. Расширительный бак служит для компенсации увеличения
объёма теплоносителя при повышении его температуры и поддержания давления
системы на заданном уровне.
Узел редуцирования и замера газа. Используется в газовых котельных,
осуществляет регулирование подачи газа.
Узел учета энергоресурсов. Учет необходим для обеспечения точности
расчетов между потребителем энергии и поставщиком. На практике установка
приборов учета, как правило, позволяет получить ощутимый экономический эффект.
Это связано с завышением энергоснабжающими организациями расчетных значений
тепловых нагрузок, а также с несоответствием фактического теплопотребления
объектов проектным нагрузкам. Комплексная поставка и настройка комплектов
теплосчетчиков, в состав которых входят тепловычислители, расходомеры,
термодатчики, датчики избыточного давления, позволяет потребителю не только
ускорить процесс комплектования учёта, но и избежать ошибок при монтаже и
настройке.
Блок водоподготовки. Химическая подготовка воды помогает уменьшить образование
накипи и коррозию внутренних труб и оборудования. Комплектация блока
химводоочистки:
· водоумягчитель (для смягчения жёсткости воды);
· подпиточный насос;
· подпиточный бак (используется для хранения запаса воды,
используемой для подпитки систем отопления и ГВС);
· автоматика наполнения подпиточного бака, автоматика защиты от
"сухого хода" подпиточного насоса.
Дымовая труба. В блочных котельных необходимо использовать дымоходы из
кислотостойкой и жаропрочной нержавеющей стали. Для снижения возможности
конденсации дымовых газов предусматривается теплоизоляция.
Электрооборудование. С помощью электрооборудования обеспечивается работа
различных устройств в котельной: насосов, системы автоматики, электроприводов
регулирующей и запорной арматуры и пр.
КИП и автоматика. На сегодняшний день надёжная и эффективная работа
инженерного оборудования немыслима без современных систем автоматики, это в
полной мере касается и миникотельных.
Современные системы автоматизации реализуют следующие функции:
· отображение на экране компьютера состояния котлов и
общекотельного оборудования с разной степенью детализации;
· управление объектами котельной во всех эксплуатационных
режимах, включая пуск и останов;
· регулирование технологических параметров в заданном режиме;
· дистанционное управление всем электрифицированным
оборудованием котельной;
· технологические защиты и блокировки с запоминанием
первопричины аварии;
· контроль исполнения команд;
· защита системы от случайного или несанкционированного
воздействия;
· протоколирование действий оператора;
· сигнализация световая, звуковая;
· формирование базы данных исходной и расчетной информации;
· архивирование данных о состоянии технологического объекта, о
ходе технологического процесса, действиях оперативного персонала, несанкционированном
доступе к управлению и других данных.;
· создание печатных отчетов.
Для целей автоматизированного управления технологическими процессами
применяются промышленные контролеры, современные шкафы и пульты управления,
оснащенные программируемыми логическими контроллерами, сенсорные панели
управления и отображения информации.
Для управления электродвигателями применяется частотное регулирование,
что обеспечивает плавный пуск и необходимую частоту вращения, а это снижает до
50% потребление электроэнергии и увеличивает ресурс механизмов, таких как
дымососы, вентиляторы, питательные насосы и т.д.
На сегодняшний день на рынке представлен широкий выбор оборудования для
котельных как отечественного, так и импортного производства. Нередко в
миникотельных отечественного производства используются оборудование и
комплектующие иностранных производителей. Современное оборудование позволяет
добиться высокой экономичности и надежности выпускаемых установок и отвечает
всем требованиям природоохранных организаций.
В любом случае для принятия решения об использовании миникотельной для
конкретного объекта необходимо технико-экономическое обоснование, поэтому при
выборе вариантов теплоснабжения объекта следует обращаться к профессионалам.
Грамотные специалисты помогут выбрать оптимальное решение с учётом всех
особенностей объекта и пожеланий заказчика.
теплоэнергетика
котельная часовой газ
1.2 Продукция ООО «Устюггазсервис» - ГРПБ, блочно - модульные котельные
Естественно, решить эту проблему невозможно без участия компаний -
профессионалов, обладающих новейшим оборудованием, используемым при
строительстве или реконструкции систем теплоснабжения и газоснабжения. ОАО
«Газпромгазораспределение Вологда» является одной из таких компаний. Продукцию
данного предприятия ГРПБ и блочно-модульную котельную мы используем в данной
дипломной работе
Блочные газорегуляторные пункты (ГРПБ), производства ООО «Устюггазсервис»
, предназначены для снижения давления газа и автоматического поддержания его в
заданных параметрах. Типовая конструкция газорегуляторного пункта в блочном
исполнении рассчитана на применение его в климатических условиях средней полосы
России и соответствует климатическому исполнению УХЛ2 ГОСТ 15150 ( от + 50 ° С
до - 45 ° С ). ГРПБ выпускаются на основе газорегуляторного оборудования фирм Tartarini или «Экс-форма» . Регуляторы прямого
действия Tartarini способны устойчиво работать на
низком входном давлении газа и поддерживать постоянное давление на выходе при
резком изменении расхода газа, что позволяет их успешно применять с
автоматизированными газоиспользующими установками , работающими без
обслуживающего персонала.
ГРПБ выполнен из металлического каркаса, снаружи обшит термоклинкерными
панелями и внутри металлическими панелями с полимерным покрытием.
Блок - контейнер состоит из одного технологического помещения
противопожарной категории (A).
Возможно исполнение ГРП : - с байпасом;
без байпаса;
с 2 линиями редуцирования;
с коммерческим узлом учёта;
с системой телеметрии на основе
радиочастотных сигналов или GSM-модемом .
В помещении ГРПБ, где расположено технологическое оборудование,
установлена система автоматического пожаротушения (Буран). С помощью жалюзийных
решеток и дефлектора в помещении обеспечивается трёхкратный воздухообмен. Для
естественного освещения предусмотрено окно.
Для отопления технологического помещения используется газовый конвектор.
В качестве легкосбрасываемой конструкции используется взрывной клапан,
установленный в перекрытия блок-контейнера.
Электрооборудование ГРПБ выполнено в соответствии с действующими ПУЭ и
обеспечивает электроснабжение как в штатном, так и в аварийном режиме.
Таблица - Технические характеристики ГРПБ
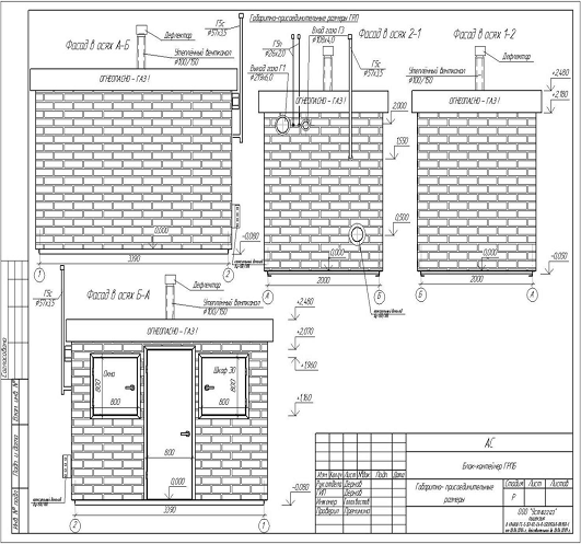
Рис. - Габаритно-присоединительные размеры ГРПБ
Газовые блочные котельные производства ООО «Устюггазсервис» имеют
мощность от 100 кВт до 3,0 МВт и предназначены для теплообеспечения систем
отопления, вентиляции и горячего водоснабжения жилых, общественных и
промышленных зданий.
Преимущества котельной:
. Максимальная приближенность к объекту теплоснабжения, что резко
сокращает затраты на теплоснабжение и эксплуатацию инженерных сетей.
. Отсутствие значительных капитальных затрат на строительство здания под
котельную.
. Простое и удобное решение вопроса при децентрализации теплоснабжения.
. Оптимальная система автоматизации и безопасности.
. Полная заводская готовность и комплектация.
. Минимальные затраты при монтаже и пуске.
. Быстрый ввод в эксплуатацию.
. Транспортирование автомобильным транспортом.
. Высокий уровень автоматизации, безопасности, надежность в эксплуатации
Котельная изготовлена на базе блок-контейнера, завод-изготовитель ОАО
«Вологодский завод дорожных машин». Блок-контейнер представляет собой объемную
конструкцию, собранную из трехслойных плоских панелей, имеющих унифицированное
решение (панели основания, панели покрытия и четырех стеновых панелей), на
сварке. Все панели состоят из металлодеревянного каркаса, наружной и внутренней
обшивки и теплоизоляции. Металлодеревянный каркас состоит из стальных профилей,
собранных на сварке и деревянных брусков, которые крепятся к элементам каркаса.
Наружная обшивка выполнена из тонколистовой стали. В качестве теплоизоляции
используется вата минераловатная. Между внутренней обшивкой и теплоизоляционным
слоем укладывается пароизоляция. Котельные комплектуются газовым и
тепломеханическим оборудованием ведущих европейских производителей. Котельные
оборудованы системой автоматики безопасности, системами управления и
коммерческого учета расхода газа и отпускаемого тепла, автоматизированной
системой реагентной обработки подпиточной воды, охранной сигнализацией.
Котельные поставляются в готовом виде и требуют только подключения к
наружным сетям.
Котельные полностью автоматизированы и предназначены для работы без
обслуживающего персонала. Контроль работы котельных может осуществляться с
удаленного диспетчерского пункта.
В зависимости от технических условий Покупателя котельные могут быть
укомплектованы водонагревателями горячего водоснабжения, оборудованием для
подключения газа высокого давления (до 0,6 МПа), нержавеющими дымовыми трубами.
Котельные состоят из одного или нескольких транспортабельных блоков, перевозка
которых может быть осуществлена автомобильным или железнодорожным транспортом.
Стоимость котельных - от 2,5 до 10 млн. рублей в зависимости от
исполнения и комплектации.
Таблица - Технические характеристики блочных котельных мощностью 200-580
кВт
|
Технические характеристики
|
ИСПОЛНЕНИЕ
|
|
КД1-200
|
КД1-250
|
КД1-300
|
КД1-350
|
КД1-400
|
КД1-450
|
КД1-500
|
КД1-550
|
|
Мощность
|
150-200 кВт
|
200-250 кВт
|
250-300 кВт
|
300-350 кВт
|
350-400 кВт
|
400-450 кВт
|
450-500 кВт
|
500-580 кВт
|
|
Котлы, количество, тип горелок
|
Ferroli Pegasus F3 N 2S (напольные газовые котлы с
чугунным теплообменником, открытая камера сгорания) атмосферная
|
|
Топливо, давление,
|
Природный газ до 0,6 МПа (0,02 МПа- без установки ГРУ)
|
|
ГРУ
|
На основе регулятора давления и ПСК фирмы Tartarini
|
|
Расход макс.
|
27 нм3/ч
|
31 нм3/ч
|
36 нм3/ч
|
43 нм3/ч
|
46 нм3/ч
|
51 нм3/ч
|
60 нм3/ч
|
67 нм3/ч
|
|
Максимальная температура теплоносителя
|
95 град.
|
|
Давление исходной воды
|
0,3-06 МПа
|
|
Химводоподготовка
|
Фильтрация, умягчение, удаление кислорода
|
|
Установочная электрическая мощность
|
Не более 8 кВт
|
|
Температура уходящих газов
|
126 град.
|
121 град.
|
124 град.
|
110 град.
|
113 град.
|
113 град.
|
111 град.
|
112 град.
|
|
КПД котельной, не менее
|
90 %
|
|
Режим работы котельной
|
Без обслуживающего персонала (передача всех параметров
работы котельной через GSM-модемы)
|
|
Габариты: длина ширина высота
|
8000 мм 2800 мм 2960 мм
|
|
Общая масса, не более
|
7 тонн
|
|
|
|
|
|
|
|
|
|
|
|
|
|
|
Таблица - Технические характеристики блочных котельных мощностью 600-1500
кВт
|
Технические характеристики
|
ИСПОЛНЕНИЕ
|
|
КД1-600
|
КД1-700
|
КД1-800
|
КД1-900
|
КД1-1000
|
КД1-1200
|
КД1-1300
|
КД1-1500
|
|
Теплопроизводительность
|
600 кВт
|
700 кВт
|
800 кВт
|
900 кВт
|
1000 кВт
|
1200 кВт
|
1300 кВт
|
1500 кВт
|
|
Котлы, количество, тип горелок
|
Ferroli Prextherm RSW, Ferroli GN4,
Viessman Vitoplex дутьевая
|
|
Топливо, давление,
|
Природный газ до 0,6 МПа (ГРУ внутри котельной)
|
|
ГРУ
|
На основе регулятора давления и ПСК фирмы Tartarini
|
|
Расход макс.
|
77 нм3/ч
|
90 нм3/ч
|
100 нм3/ч
|
112 нм3/ч
|
124 нм3/ч
|
148 нм3/ч
|
160 нм3/ч
|
184 нм3/ч
|
|
Макс. температура теплоносителя
|
110 град.
|
|
Давление исходной воды
|
0,3-06 МПа
|
|
Химводоподготовка
|
Фильтрация, умягчение, удаление кислорода
|
|
Установочная электрическая мощность
|
Не более 9 кВт
|
|
Отвод продуктов сгорания
|
Естественная тяга
|
|
КПД котельной, не менее
|
92 %
|
|
Режим работы котельной
|
Без обслуживающего персонала (передача всех параметров
работы котельной через GSM-модемы)
|
|
Габариты: длина ширина высота
|
12 000 мм 3 000 мм 2 800 мм
|
|
Общая масса, не более
|
11 тонн
|
|
|
|
|
|
|
|
|
|
|
|
2. Краткая характеристика объекта и участка строительства
.1 Краткая характеристика месторасположения объекта
Участок строительства находится в с. Спас-Ямщики Междуреченского
муниципального района Вологодской области
.2 Краткая характеристика основного технологического процесса на объекте
Проектом предусматривается строительство газопровода среднего давления от
подземной стальной заглушки ф76 мм (проект 35/4-1, выполненный ЗАО «ЛОРЕС» г.
Санкт-Петербург) до отключающего устройства на фасаде здания поселковой
котельной, распределительного газопровода низкого давления от подземной
стальной заглушки ф219 мм (проект 35/4-1, выполненный ЗАО «ЛОРЕС» г.
Санкт-Петербург) по улицам села с целью подключения коммунально-бытовых
потребителей. Максимальное давление на выходе из пункта редуцирования газа -
0,3 МПа (среднее давление), 3 кПа - низкое давление. Протяженность газопровода
среднего давления составит 489,1 м, низкого давления- 2971,2 м. Общая длина -
3460,3 м. Расход газа с учётом перспективы:
на жилой сектор - 263,9 м3/час;
на котельную - 108 м3/ч.
В качестве источника газоснабжения принят природный газ по ГОСТ 5542-87 с
теплотворной способностью 8000 ккал/м3. Газ используется в качестве топлива на
нужды пищеприготовления, отопления и горячего водоснабжения. Обеспечить
охранную зону по 2,0 м в каждую сторону от подземного газопровода. Срок
эксплуатации полиэтиленового газопровода 50 лет, подземных кранов-5 лет.
3. Исходные данные для проектирования
Схема газоснабжения распределительного газопровода в с. Спас-Ямщики
Междуреченского муниципального района Вологодской области выполнена на
основании:
Технических условий №7 от 11.02.2014 на присоединение к
газораспределительной сети, выданных ОАО «Вологдаоблгаз» за №03-07;
Технических условий от КУ Вологодской области «Управление автомобильных
автодорог Вологодской области» от 25.02.2014 г. за №08-13/919;
Технических условий от сельского поселения Старосельское от 19.02.2014 г.
за №342;
Технического задания, выданного заказчиком.
Проект выполнен в соответствии СНиП 42-01-2002
"Газораспределительные системы", СП42-101-2003 "Общие положения
по проектированию и строительству газораспределительных систем из металлических
и полиэтиленовых труб" и ПБ12-529-03 "Правила безопасности систем
газораспределения и газопотребления".
Среднее давление
Проектом предусматривается строительство газопровода среднего давления от
подземной стальной заглушки ф76 мм (проект 35/4-1, выполненный ЗАО «ЛОРЕС» г.
Санкт-Петербург) до отключающего устройства на фасаде здания поселковой
котельной. Давление газа в точке подключения 0,3 МПа (согласно расчетной
схеме). Теплотворная способность природного газа составляет 8000 ккал/нм3.
Диаметр проектируемого газопровода среднего давления принят исходя из
расчета газопотребления на коммунально-бытовые нужды потребителей. Расход по
проектируемой ветке газопровода равен 108,0 м3/ч и включает в себя существующие
и перспективные нагрузки.
Проектируемый подземный газопровод среднего давления выполнен из
полиэтиленовых труб Ø63х5,8 мм по ГОСТ Р50838-95.
Низкое давление
Проектом предусматривается строительство газопровода распределительного
газопровода низкого давления от подземной стальной заглушки ф219 мм (проект
35/4-1, выполненный ЗАО «ЛОРЕС» г. Санкт-Петербург) по улицам села с целью
подключения коммунально-бытовых потребителей. Максимальное давление на выходе
из пункта редуцирования газа -3 кПа. Диаметр проектируемого газопровода принят
из условия использования газа на нужды пищеприготовления, отопления и горячего
водоснабжения коммунально-бытового сектора. Проектом принимается установка в
каждом индивидуальном жилом доме 24 кВт отопительного газового котла с расходом
газа 2,73 м3/ч и 4-конфорочной газовой плиты ПГ-4 с расходом газа 1,2 м3/ч. В
многоквартирных домах учитывается установка только газовых плит.
Прокладка газопровода принята подземная.
Проектируемый газопровод принят из полиэтиленовых труб Ø63х5,8, Ø110х10,0, Ø160х14,6; Ø225х20,5 по ГОСТ Р20838-95.
Регуляторы давления РДБК-1-50/25, установленные в ГСГО-М/25-00
удовлетворяют данным условиям.
4. Гидравлический расчет газопровода
.1 Определение расчетных часовых расходов газа
Расчетные часовые расходы газа для газоснабжения жилых домов определены с
учетом потребления газа на пищеприготовление, отопление и горячее
водоснабжение.
Максимальные часовые расходы газа определены согласно СНиП 42-01-2002 по
формуле:
, нм3 /ч (1)
Где å - сумма
произведений величины k x q;
-
коэффициент одновременности работы газовых приборов;
-
номинальный расход газа прибором или группой приборов (табл.1);
- число
однотипных приборов или групп приборов.
4.2 Гидравлический расчет газопровода среднего давления
Исходные данные:
· давление газа в точке подключения Р=0,3 МПа;
· расход газа Q=108,0
м3/ч;
· диаметр газопровода - Ø63х5,8;
· длина газопровода l=489,1 м.
Падение давления газа на участке газопровода среднего давления
определяется в соответствии с п.3.27 СП 42-101-2003 «Общие положения по
проектированию и строительству газораспределительных систем из металлических и
полиэтиленовых труб» по формуле :
(2)
где:
Рн- абсолютное давление в начале газопровода, МПа;
Рк-
абсолютное давление в конце газопровода, МПа;
-
коэффициент гидравлического трения, определяемый в зависимости от режима
течения и гидравлической гладкости стенок газопровода;
l - расчетная
длина газопровода постоянного диаметра, м, определяемая по формуле: l=1,1х
l1
d - внутренний
диаметр газопровода, см;
Qо - расход газа
, м3/ч;
-
плотность газа при нормальных условиях, кг/м3

(3)
(4)
Расчетная схема приведена в прил. А.
.3 Гидравлический расчет газопровода низкого давления
Диаметры газопровода низкого давления определены гидравлическим расчетом
из условия обеспечения бесперебойного газоснабжения всех потребителей в часы
максимального потребления газа при максимально допустимых потерях давления.
Результат расчета - см. Табл. 1. Расчетная схема приведена в прил. Б.
Падение давления газа на участке газопровода низкого давления
определяется в соответствии с п.3.27 СП 42-101-2003 «Общие положения по
проектированию и строительству газораспределительных систем из металлических и
полиэтиленовых труб» по формуле:
(5)
где: Рн - абсолютное давление в начале газопровода, МПа;
Рк - абсолютное давление в конце газопровода, МПа;
- коэффициент гидравлического трения, определяемый в
зависимости от режима течения и гидравлической гладкости стенок газопровода;-
внутренний диаметр газопровода, см;о - расход газа , м3/ч;
- плотность газа при нормальных условиях, кг/м3-
расчетная длина подземного газопровода постоянного диаметра, м, определяется по
формуле: L=1,1х l
Для наружных надземных и
внутренних газопроводов расчетную длину газопровода определяют по формуле:
м (6)
где:
- сумма коэффициентов местных сопротивлений участка
газопровода
Гидравлический
расчет газопровода низкого давления выполнен с помощью программы Mathcad 11.
Таблица Результаты гидравлического расчета газопровода высокого и
среднего давления
|
Участок (конец/начало)
|
Кол-во приборов
|
Коэффициент одновременности
|
Расход газа, м3/ч
|
Расход газа на участке, м3/ч
|
Длина, м
|
Диаметр, м
|
Потери давления на участке, МПа2
|
Давление на конце участка, МПа
|
|
ПГ-4
|
котел, 24кВт
|
котел, 31кВт
|
плиты
|
котлы
|
ПГ-4
|
котел, 24кВт
|
котел, 31кВт
|
|
|
|
|
|
|
Подводящий газопровод высокого давления
|
0,357
|
|
1
|
0
|
515
|
515
|
0
|
0,18
|
0,85
|
1,2
|
2,62
|
0
|
1258,1
|
995
|
108х3,5
|
0,036
|
0,321
|
|
Главная ветка среднее давление
|
0,2
|
|
8
|
7
|
18
|
18
|
0
|
0,237
|
0,85
|
1,2
|
2,62
|
0
|
45,2
|
469,0
|
63х5,8
|
0,0013
|
0,1824
|
|
7
|
6
|
61
|
61
|
0
|
0,22
|
0,85
|
1,2
|
2,62
|
0
|
152,0
|
102,0
|
110х10,0
|
0,0002
|
0,1837
|
|
6
|
5
|
111
|
111
|
0
|
0,209
|
0,85
|
1,2
|
2,62
|
0
|
275,0
|
97,0
|
110х10,0
|
0,0005
|
0,1839
|
|
5
|
4
|
167
|
167
|
0,203
|
0,85
|
1,2
|
2,62
|
0
|
412,6
|
74,0
|
110х10,0
|
0,0008
|
0,1844
|
|
4
|
3
|
252
|
252
|
0
|
0,195
|
0,85
|
1,2
|
2,62
|
0
|
620,2
|
73,0
|
110х10,0
|
0,0015
|
0,1852
|
|
3
|
2
|
448
|
448
|
0
|
0,18
|
0,85
|
1,2
|
2,62
|
0
|
1094,5
|
190,5
|
110х10,0
|
0,0109
|
0,1867
|
|
2
|
1
|
515
|
515
|
0
|
0,18
|
0,85
|
1,2
|
2,62
|
0
|
1258,1
|
33,0
|
110х10,0
|
0,0024
|
0,1976
|
|
14
|
13
|
33
|
33
|
0
|
0,23
|
0,85
|
1,2
|
2,62
|
0
|
82,6
|
630,0
|
63х5,8
|
0,0053
|
0,1743
|
|
13
|
12
|
75
|
75
|
0
|
0,216
|
0,85
|
1,2
|
2,62
|
0
|
186,5
|
481,5
|
110х10,0
|
0,0011
|
0,1796
|
|
12
|
11
|
101
|
101
|
0
|
0,21
|
0,85
|
1,2
|
2,62
|
0
|
250,4
|
101,5
|
110х10,0
|
0,0004
|
0,1807
|
|
11
|
10
|
114
|
114
|
0
|
0,209
|
0,85
|
1,2
|
2,62
|
0
|
282,5
|
100,0
|
110х10,0
|
0,0005
|
0,1811
|
|
10
|
9
|
130
|
130
|
0
|
0,207
|
0,85
|
1,2
|
2,62
|
0
|
321,8
|
73,0
|
110х10,0
|
0,0005
|
0,1816
|
|
9
|
3
|
142
|
142
|
0
|
0,206
|
0,85
|
1,2
|
2,62
|
0
|
351,3
|
95,0
|
110х10,0
|
0,0046
|
0,1821
|
|
7'
|
7
|
19
|
19
|
0
|
0,236
|
0,85
|
1,2
|
2,62
|
0
|
47,7
|
361,0
|
63х5,8
|
0,0011
|
0,1826
|
|
6'
|
6
|
26
|
26
|
0
|
0,232
|
0,85
|
1,2
|
2,62
|
0
|
65,1
|
382,5
|
63х5,8
|
0,0020
|
0,1819
|
|
5'
|
5
|
56
|
56
|
0
|
0,221
|
0,85
|
1,2
|
2,62
|
0
|
139,6
|
360,0
|
63х5,8
|
0,0077
|
0,1767
|
|
4'
|
4
|
85
|
85
|
0
|
0,213
|
0,85
|
1,2
|
2,62
|
0
|
211,0
|
302,0
|
63х5,8
|
0,0138
|
0,1714
|
|
9'
|
9
|
12
|
12
|
0
|
0,248
|
0,85
|
1,2
|
2,62
|
0
|
30,3
|
56,3
|
63х5,8
|
0,0001
|
0,1820
|
|
10'
|
10
|
4
|
4
|
0
|
0,35
|
0,85
|
1,2
|
2,62
|
0
|
10,6
|
104,6
|
63х5,8
|
0,0000
|
0,1816
|
|
11'
|
11
|
13
|
13
|
0
|
0,246
|
0,85
|
1,2
|
2,62
|
0
|
32,8
|
183,5
|
63х5,8
|
0,0003
|
0,1808
|
|
12'
|
12
|
14
|
14
|
0
|
0,243
|
0,85
|
1,2
|
2,62
|
0
|
35,3
|
262,0
|
63х5,8
|
0,0005
|
0,1802
|
|
15'
|
15
|
22
|
22
|
0
|
0,234
|
0,85
|
1,2
|
2,62
|
0
|
55,2
|
333,0
|
63х5,8
|
0,0014
|
0,1763
|
|
15"
|
15
|
23
|
23
|
0
|
0,234
|
0,85
|
1,2
|
2,62
|
0
|
57,7
|
344,0
|
63х5,8
|
0,0015
|
0,1762
|
|
16'
|
16
|
18
|
18
|
0
|
0,237
|
0,85
|
1,2
|
2,62
|
0
|
45,2
|
96,5
|
63х5,8
|
0,0003
|
0,1957
|
|
17'
|
17
|
13
|
13
|
0
|
0,246
|
0,85
|
1,2
|
2,62
|
0
|
32,8
|
143,0
|
63х5,8
|
0,0002
|
0,1949
|
|
15
|
13
|
45
|
45
|
0
|
0,225
|
0,85
|
1,2
|
2,62
|
0
|
112,4
|
130,0
|
63х5,8
|
0,0019
|
0,1777
|
|
16
|
2
|
55
|
55
|
0
|
0,222
|
0,85
|
1,2
|
2,62
|
0
|
81,0
|
63х5,8
|
0,0016
|
0,1960
|
|
17
|
16
|
37
|
37
|
0
|
0,228
|
0,85
|
1,2
|
2,62
|
0
|
92,5
|
91,0
|
63х5,8
|
0,0009
|
0,1951
|
|
18
|
17
|
24
|
24
|
0
|
0,233
|
0,85
|
1,2
|
2,62
|
0
|
60,2
|
111,3
|
63х5,8
|
0,0005
|
0,1946
|
Таблица Результаты гидравлического расчета газопровода низкого давления
|
Участок (конец/начало)
|
Кол-во приборов
|
Коэффициент одновременности
|
Расход газа, м3/ч
|
Расход газа на участке, м3/ч
|
Длина м
|
Диаметр м
|
Потери давления на участке, Па
|
Давление на конце участка, Па
|
|
ПГ-4
|
котел, 16кВт
|
котел, 24кВт
|
плиты
|
котла
|
ПГ-4
|
котел, 16кВт
|
котел, 24кВт
|
|
|
|
|
|
|
Главная ветка
|
3000
|
|
31
|
30
|
1
|
0
|
1
|
1
|
1
|
1,2
|
1,86
|
2,73
|
3,9
|
7,0
|
63*5,8
|
0,664
|
2532
|
|
30
|
29
|
2
|
0
|
2
|
0,65
|
0,85
|
1,2
|
1,86
|
2,73
|
6,2
|
70,8
|
63*5,8
|
11,900
|
2533
|
|
29
|
28
|
3
|
0
|
3
|
0,45
|
0,85
|
1,2
|
1,86
|
2,73
|
8,6
|
8,6
|
63*5,8
|
3,900
|
2545
|
|
28
|
27
|
5
|
0
|
5
|
0,29
|
0,85
|
1,2
|
1,86
|
2,73
|
13,3
|
192,0
|
63*5,8
|
152,648
|
2549
|
|
27
|
26
|
7
|
0
|
7
|
0,28
|
0,85
|
1,2
|
1,86
|
2,73
|
18,6
|
30,3
|
110*10,0
|
3,400
|
2702
|
|
26
|
25
|
9
|
0
|
9
|
0,258
|
0,85
|
1,2
|
1,86
|
2,73
|
23,7
|
49,7
|
110*10,0
|
8,158
|
2705
|
|
25
|
24
|
21
|
0
|
9
|
0,235
|
0,85
|
1,2
|
1,86
|
2,73
|
26,8
|
16,4
|
110*10,0
|
3,984
|
2713
|
|
24
|
23
|
22
|
0
|
10
|
0,234
|
0,85
|
1,2
|
1,86
|
2,73
|
29,4
|
41,0
|
110*10,0
|
10,086
|
2717
|
|
23
|
22
|
24
|
0
|
12
|
0,233
|
0,85
|
1,2
|
1,86
|
2,73
|
34,6
|
18,5
|
110*10,0
|
6,957
|
2727
|
|
22
|
21
|
26
|
0
|
14
|
0,232
|
0,85
|
1,2
|
1,86
|
2,73
|
39,7
|
50,7
|
110*10,0
|
20,885
|
2734
|
|
21
|
20
|
28
|
0
|
14
|
0,232
|
0,85
|
1,2
|
1,86
|
2,73
|
40,3
|
123,8
|
110*10,0
|
49,309
|
2755
|
|
20
|
19
|
52
|
0
|
14
|
0,222
|
0,85
|
1,2
|
1,86
|
2,73
|
46,3
|
5,0
|
160*14,6
|
1,039
|
2804
|
|
19
|
18
|
76
|
0
|
16
|
0,215
|
0,85
|
1,2
|
1,86
|
2,73
|
56,7
|
51,8
|
160*14,6
|
6,983
|
2805
|
|
18
|
17
|
78
|
0
|
17
|
0,215
|
0,85
|
1,2
|
1,86
|
2,73
|
59,6
|
8,6
|
160*14,6
|
2,140
|
2812
|
|
17
|
16
|
79
|
0
|
18
|
0,214
|
0,85
|
1,2
|
1,86
|
2,73
|
62,1
|
43,6
|
160*14,6
|
7,101
|
2814
|
|
16
|
15
|
80
|
0
|
19
|
0,214
|
0,85
|
1,2
|
1,86
|
2,73
|
64,6
|
2,7
|
160*14,6
|
1,625
|
2822
|
|
15
|
14
|
82
|
0
|
21
|
0,214
|
0,85
|
1,2
|
1,86
|
2,73
|
69,8
|
26,5
|
160*14,6
|
5,891
|
2823
|
|
14
|
13
|
83
|
0
|
22
|
0,213
|
0,85
|
1,2
|
1,86
|
2,73
|
72,3
|
17,3
|
160*14,6
|
4,635
|
2829
|
|
13
|
12
|
95
|
0
|
22
|
0,211
|
0,85
|
1,2
|
1,86
|
2,73
|
75,1
|
6,5
|
160*14,6
|
2,905
|
2834
|
|
12
|
11
|
96
|
0
|
23
|
0,211
|
0,85
|
1,2
|
1,86
|
2,73
|
77,7
|
160*14,6
|
5,924
|
2837
|
|
11
|
10
|
97
|
0
|
24
|
0,211
|
0,85
|
1,2
|
1,86
|
2,73
|
80,3
|
51,5
|
160*14,6
|
12,992
|
2843
|
|
10
|
9
|
98
|
0
|
25
|
0,21
|
0,85
|
1,2
|
1,86
|
2,73
|
82,7
|
22,3
|
225*20,5
|
1,505
|
2856
|
|
9
|
8
|
99
|
0
|
26
|
0,21
|
0,85
|
1,2
|
1,86
|
2,73
|
85,3
|
48,4
|
225*20,5
|
2,819
|
2857
|
|
8
|
7
|
101
|
0
|
28
|
0,21
|
0,85
|
1,2
|
1,86
|
2,73
|
90,4
|
15,0
|
225*20,5
|
1,394
|
2860
|
|
7
|
6
|
102
|
0
|
29
|
0,21
|
0,85
|
1,2
|
1,86
|
2,73
|
93,0
|
17,5
|
225*20,5
|
1,616
|
2861
|
|
6
|
5
|
103
|
0
|
30
|
0,21
|
0,85
|
1,2
|
1,86
|
2,73
|
95,6
|
21,4
|
225*20,5
|
1,915
|
2863
|
|
5
|
4
|
105
|
0
|
32
|
0,21
|
0,85
|
1,2
|
1,86
|
2,73
|
100,7
|
7,1
|
225*20,5
|
1,209
|
2865
|
|
4
|
3
|
106
|
0
|
33
|
0,209
|
0,85
|
1,2
|
1,86
|
2,73
|
103,2
|
14,9
|
225*20,5
|
1,779
|
2866
|
|
3
|
2
|
108
|
0
|
35
|
0,209
|
0,85
|
1,2
|
1,86
|
2,73
|
108,3
|
107,4
|
225*20,5
|
8,557
|
2868
|
|
2
|
1
|
122
|
0
|
49
|
0,208
|
0,85
|
1,2
|
1,86
|
2,73
|
144,2
|
21,0
|
225*20,5
|
4,051
|
2876
|
|
1
|
0
|
169
|
0
|
96
|
0,203
|
0,85
|
1,2
|
1,86
|
2,73
|
263,9
|
331,0
|
225*20,5
|
119,634
|
2880
|
|
сумма
|
169
|
0
|
96
|
|
|
|
|
|
263,9
|
1448,7
|
|
|
468
|
|
39
|
38
|
2
|
0
|
2
|
0,65
|
0,85
|
1,2
|
1,86
|
2,73
|
6,2
|
52,0
|
63*5,8
|
8,8380
|
2179
|
|
38
|
37
|
4
|
0
|
4
|
0,35
|
0,85
|
1,2
|
1,86
|
2,73
|
11,0
|
13,6
|
63*5,8
|
9,1130
|
2188
|
|
37
|
36
|
6
|
0
|
6
|
0,28
|
0,85
|
1,2
|
1,86
|
2,73
|
15,9
|
36,0
|
63*5,8
|
41,8260
|
2197
|
|
36
|
35
|
8
|
0
|
8
|
0,265
|
0,85
|
1,2
|
1,86
|
2,73
|
21,1
|
78,0
|
63*5,8
|
144,1000
|
2239
|
|
35
|
34
|
10
|
0
|
10
|
0,254
|
0,85
|
1,2
|
1,86
|
2,73
|
26,3
|
25,5
|
63*5,8
|
75,6400
|
2383
|
|
34
|
33
|
12
|
0
|
12
|
0,248
|
0,85
|
1,2
|
1,86
|
2,73
|
31,4
|
43,2
|
63*5,8
|
168,2430
|
2459
|
|
33
|
32
|
13
|
0
|
13
|
0,246
|
0,85
|
1,2
|
1,86
|
2,73
|
34,0
|
55,7
|
110*10,0
|
246,3430
|
2627
|
|
32
|
2
|
14
|
0
|
14
|
0,243
|
0,85
|
1,2
|
1,86
|
2,73
|
36,6
|
16,0
|
110*10,0
|
6,9020
|
2873
|
|
|
|
|
|
|
|
|
|
|
|
320,0
|
|
|
701
|
|
76
|
75
|
1
|
0
|
1
|
1
|
1
|
1,2
|
1,86
|
2,73
|
3,9
|
44,0
|
63*5,8
|
3,19
|
2185
|
|
75
|
74
|
2
|
0
|
2
|
0,65
|
0,85
|
1,2
|
1,86
|
2,73
|
6,2
|
28,4
|
63*5,8
|
5,042
|
2189
|
|
74
|
73
|
3
|
0
|
3
|
0,45
|
0,85
|
1,2
|
1,86
|
2,73
|
8,6
|
19,3
|
63*5,8
|
7,573
|
2194
|
|
73
|
72
|
4
|
0
|
4
|
0,35
|
0,85
|
1,2
|
2,73
|
11,0
|
22,6
|
63*5,8
|
14,155
|
2201
|
|
72
|
71
|
5
|
0
|
5
|
0,29
|
0,85
|
1,2
|
1,86
|
2,73
|
13,3
|
12,0
|
63*5,8
|
11,588
|
2215
|
|
71
|
70
|
6
|
0
|
6
|
0,28
|
0,85
|
1,2
|
1,86
|
2,73
|
15,9
|
16,1
|
63*5,8
|
20,431
|
2227
|
|
70
|
69
|
7
|
0
|
7
|
0,27
|
0,85
|
1,2
|
1,86
|
2,73
|
18,5
|
11,4
|
63*5,8
|
20,261
|
2247
|
|
69
|
68
|
8
|
0
|
8
|
0,265
|
0,85
|
1,2
|
1,86
|
2,73
|
21,1
|
28,4
|
63*5,8
|
55,963
|
2268
|
|
68
|
67
|
9
|
0
|
9
|
0,258
|
0,85
|
1,2
|
1,86
|
2,73
|
23,7
|
6,1
|
110*10,0
|
1,649
|
2324
|
|
67
|
66
|
10
|
0
|
10
|
0,254
|
0,85
|
1,2
|
1,86
|
2,73
|
26,3
|
31,3
|
110*10,0
|
6,523
|
2325
|
|
66
|
65
|
11
|
0
|
11
|
0,251
|
0,85
|
1,2
|
1,86
|
2,73
|
28,8
|
17,3
|
110*10,0
|
4,731
|
2332
|
|
65
|
64
|
12
|
0
|
12
|
0,248
|
0,85
|
1,2
|
1,86
|
2,73
|
31,4
|
7,6
|
110*10,0
|
3,159
|
2336
|
|
64
|
63
|
13
|
0
|
13
|
0,246
|
0,85
|
1,2
|
1,86
|
2,73
|
34,0
|
5,3
|
110*10,0
|
3,014
|
2340
|
|
63
|
62
|
14
|
0
|
14
|
0,243
|
0,85
|
1,2
|
1,86
|
2,73
|
36,6
|
30,8
|
110*10,0
|
11,659
|
2343
|
|
62
|
61
|
15
|
0
|
15
|
0,24
|
0,85
|
1,2
|
1,86
|
2,73
|
39,1
|
29,1
|
110*10,0
|
12,52
|
2354
|
|
61
|
60
|
16
|
0
|
16
|
0,239
|
0,85
|
1,2
|
1,86
|
2,73
|
41,7
|
6,3
|
110*10,0
|
4,834
|
2367
|
|
60
|
59
|
17
|
0
|
17
|
0,238
|
0,85
|
1,2
|
1,86
|
2,73
|
44,3
|
20,5
|
110*10,0
|
11,814
|
2372
|
|
59
|
58
|
18
|
0
|
18
|
0,237
|
0,85
|
1,2
|
1,86
|
2,73
|
46,9
|
6,2
|
110*10,0
|
5,98
|
2383
|
|
58
|
57
|
19
|
0
|
19
|
0,236
|
0,85
|
1,2
|
1,86
|
2,73
|
49,5
|
29,4
|
110*10,0
|
19,343
|
2389
|
|
57
|
56
|
20
|
0
|
20
|
0,235
|
0,85
|
1,2
|
1,86
|
2,73
|
52,1
|
10,9
|
110*10,0
|
10,112
|
2409
|
|
56
|
55
|
21
|
0
|
21
|
0,235
|
0,85
|
1,2
|
1,86
|
2,73
|
54,7
|
12,7
|
110*10,0
|
12,246
|
2419
|
|
55
|
54
|
22
|
0
|
22
|
0,234
|
0,85
|
1,2
|
1,86
|
2,73
|
57,2
|
65,2
|
110*10,0
|
50,517
|
2431
|
|
54
|
53
|
23
|
0
|
23
|
0,234
|
0,85
|
1,2
|
1,86
|
2,73
|
59,8
|
40,0
|
110*10,0
|
35,383
|
2482
|
|
53
|
52
|
24
|
0
|
24
|
0,233
|
0,85
|
1,2
|
1,86
|
2,73
|
62,4
|
7,7
|
110*10,0
|
11,486
|
2517
|
|
52
|
51
|
25
|
0
|
25
|
0,233
|
0,85
|
1,2
|
1,86
|
2,73
|
65,0
|
45,5
|
110*10,0
|
46,033
|
2529
|
|
51
|
50
|
26
|
0
|
26
|
0,232
|
0,85
|
1,2
|
1,86
|
2,73
|
67,6
|
22,1
|
110*10,0
|
27,088
|
2575
|
|
50
|
49
|
37
|
0
|
37
|
0,228
|
0,85
|
1,2
|
1,86
|
2,73
|
96,0
|
37,0
|
110*10,0
|
78,138
|
|
49
|
48
|
38
|
0
|
38
|
0,228
|
0,85
|
1,2
|
1,86
|
2,73
|
98,6
|
4,5
|
110*10,0
|
21,196
|
2680
|
|
48
|
47
|
39
|
0
|
39
|
0,227
|
0,85
|
1,2
|
1,86
|
2,73
|
101,1
|
25,3
|
110*10,0
|
62,697
|
2701
|
|
47
|
46
|
40
|
0
|
40
|
0,227
|
0,85
|
1,2
|
1,86
|
2,73
|
103,7
|
28,4
|
160*14,6
|
12,787
|
2764
|
|
46
|
45
|
41
|
0
|
41
|
0,227
|
0,85
|
1,2
|
1,86
|
2,73
|
106,3
|
19,9
|
160*14,6
|
10,371
|
2776
|
|
45
|
44
|
42
|
0
|
42
|
0,226
|
0,85
|
1,2
|
1,86
|
2,73
|
108,9
|
15,3
|
160*14,6
|
9,145
|
2787
|
|
44
|
43
|
43
|
0
|
43
|
0,226
|
0,85
|
1,2
|
1,86
|
2,73
|
111,4
|
38,3
|
160*14,6
|
18,386
|
2796
|
|
43
|
42
|
44
|
0
|
44
|
0,225
|
0,85
|
1,2
|
1,86
|
2,73
|
114,0
|
44,6
|
160*14,6
|
21,698
|
2814
|
|
42
|
41
|
45
|
0
|
45
|
0,225
|
0,85
|
1,2
|
1,86
|
2,73
|
116,6
|
27,5
|
160*14,6
|
15,473
|
2836
|
|
41
|
40
|
46
|
0
|
46
|
0,225
|
0,85
|
1,2
|
1,86
|
2,73
|
119,2
|
32,7
|
160*14,6
|
18,367
|
2852
|
|
40
|
1
|
47
|
0
|
47
|
0,224
|
0,85
|
1,2
|
1,86
|
2,73
|
121,7
|
13,5
|
160*14,6
|
10,4360
|
2870
|
|
|
|
|
|
|
|
|
|
|
|
863,2
|
|
|
695
|
|
87
|
86
|
1
|
0
|
1
|
1
|
1
|
1,2
|
1,86
|
2,73
|
3,9
|
15,2
|
63*5,8
|
1,224
|
2251
|
|
86
|
85
|
2
|
0
|
2
|
0,65
|
0,85
|
1,2
|
1,86
|
2,73
|
6,2
|
21,8
|
63*5,8
|
3,9810
|
2252
|
|
85
|
84
|
3
|
0
|
3
|
0,45
|
0,85
|
1,2
|
1,86
|
2,73
|
8,6
|
48,1
|
63*5,8
|
17,511
|
2256
|
|
84
|
83
|
4
|
0
|
4
|
0,35
|
0,85
|
1,2
|
1,86
|
2,73
|
11,0
|
16
|
63*5,8
|
10,458
|
2274
|
|
83
|
82
|
5
|
0
|
5
|
0,29
|
0,85
|
1,2
|
1,86
|
2,73
|
13,3
|
31
|
63*5,8
|
26,4780
|
2284
|
|
82
|
81
|
6
|
0
|
6
|
0,28
|
0,85
|
1,2
|
1,86
|
2,73
|
15,9
|
18,9
|
63*5,8
|
23,441
|
2311
|
|
81
|
80
|
7
|
0
|
7
|
0,27
|
0,85
|
1,2
|
1,86
|
2,73
|
18,5
|
28,1
|
63*5,8
|
43,75
|
2334
|
|
80
|
79
|
8
|
0
|
8
|
0,265
|
0,85
|
1,2
|
1,86
|
2,73
|
21,1
|
26
|
63*5,8
|
51,698
|
2378
|
|
79
|
78
|
9
|
0
|
9
|
0,258
|
0,85
|
1,2
|
1,86
|
2,73
|
23,7
|
25,4
|
63*5,8
|
62,447
|
2430
|
|
78
|
77
|
10
|
0
|
10
|
0,254
|
0,85
|
1,2
|
1,86
|
2,73
|
26,3
|
29,8
|
63*5,8
|
86,957
|
2492
|
|
77
|
50
|
11
|
0
|
11
|
0,251
|
0,85
|
1,2
|
1,86
|
2,73
|
28,8
|
102
|
110*10,0
|
22,561
|
2579
|
|
|
|
|
|
|
|
|
|
|
|
362,3
|
|
|
351
|
|
19
|
88
|
24
|
0
|
0
|
0,233
|
0,85
|
1,2
|
1,86
|
2,73
|
6,7
|
26
|
110*10,0
|
14,497
|
2791
|
|
|
|
|
|
|
|
|
|
|
|
3020,2
|
|
|
|
. Экология и Охрана окружающей среды
.1 Краткие
сведения о проектируемом объекте
Участок проектирования газопровода расположен около Междуреченского
территориального лесничества, относящегося к объектам особо охраняемых
природных территорий РФ.
Наименование объекта:
Распределительный газопровод в с. Спас-Ямщики Междуреченского
муниципального района Вологодской области.
Проектом предусматривается:
Проектом предусматривается строительство газопровода среднего давления от
подземной стальной заглушки ф76 мм (проект 35/4-1, выполненный ЗАО «ЛОРЕС» г.
Санкт-Петербург) до отключающего устройства на фасаде здания поселковой
котельной, распределительного газопровода низкого давления от подземной
стальной заглушки ф219 мм (проект 35/4-1, выполненный ЗАО «ЛОРЕС» г.
Санкт-Петербург) по улицам села с целью подключения коммунально-бытовых
потребителей. Максимальное давление на выходе из пункта редуцирования газа -
0,3 МПа (среднее давление), 3 кПа - низкое давление.
Протяженность наружного газопровода 3460,3 м.
По данным бурения с поверхности и до глубины 7,00 м в геологическом
строении территории принимают участие отложения четвертичной системы,
перекрытые с поверхности современными техногенными и биогенными образованиями и
залегающие в следующей стратиграфической последовательности: Современные
техногенные образования (t IV) вскрыты скважиной №1 и представлены суглинками перемешанными
с гравием, со строительным мусором и тонкими прослойками песка среднего, в
верхней части слоя с корнями растений, в слежавшемся состоянии. Мощность слоя
составила 0,90 м.
Современные биогенные образования (b IV) вскрыты скважинами №2-15 и представлены
в виде почвенно-растительного слоя с корнями растений. Мощность слоя составила
0,20 м.
Верхнечетвертичные озерно-ледниковые отложения (lg III) залегают под
современными техногенными и биогенными образованиями и представлены двумя
слоями:
Суглинки легкие и тяжелые, бурого цвета, тугопластичной консистенции, с
гравием и галькой до 10%, прослойками песка мелкого маловлажного и
водонасыщенного (скв.3). Мощность слоя составила 1,30-6,80 м.
Суглинки легкие и тяжелые, бурого цвета, полутвердой консистенции, с
гравием и галькой до 10%. Мощность слоя составила 0,5-2,8 м.
Глубина заложения подземного газопровода 1,2 м. Дно траншеи до укладки
подземного газопровода выровнять слоем песка толщиной 10 см согласно отметкам
профиля, после укладки газопровода предусмотреть устройство присыпки толщиной
20 см.
Климатические условия площадки строительства газопровода по СНиП 23-01-99
«Строительная климатология» характеризуется следующими данными:
климатический район строительства - II B (СНиП23-01-99);
На участках пересечений газопроводов с подземными инженерными
коммуникациями сигнальная лента уложена вдоль газопровода дважды на расстоянии
не менее 0,2 м в обе стороны от пересекаемого сооружения
.2 Характеристика объекта как источника загрязнения окружающей природной
среды
Целью разработки раздела "охрана окружающей среды" является
выявление факторов, негативно влияющих на состояние окружающей природной среды,
и разработка мероприятий по их предотвращению (или ликвидации) при
строительстве проектируемого объекта и его дальнейшей эксплуатации.
Воздействие проектируемого объекта на окружающую среду может быть
первичным и вторичным.
Отрицательное первичное воздействие возникает при производстве инженерных
изысканий, строительно-монтажных работ и заключается в загрязнении атмосферного
воздуха выбросами продуктов сгорания при работе строительной техники.
Отрицательное вторичное воздействие возникает в результате выброса газа
при производстве ремонтно-восстановительных работах. Загрязнение
почвенно-растительного слоя в результате очистки газопровода и удаления из него
жирных и твердых загрязнений. Мусор после окончания ремонтно-восстановительных
работ вывозится на свалку. Продувка газопроводов может производиться при
плановых остановках или аварийной ситуации. Учитывая ничтожно малые выбросы
газа при продувке, увеличение концентрации за счет выбросов не изменяет фоновые
загрязнения. Эти выбросы носят эпизодический характер.
Следует отметить, что природный газ на 97% состоит из метана, который не
токсичен и в силу меньшей, чем у воздуха плотности перемещается в верхние слои
атмосферы.
.3 Расчет выбросов от автотранспорта
Количество единиц техники с дизельными двигателями - 6 единиц.
Количество выбросов загрязняющих веществ с выхлопными газами определяется
количеством топлива потребляемого передвижными объектами в период проведения
строительно-монтажных работ на рабочих площадках, а также в период доставки
грузов и рабочих на объекты строительства.
Количество потребляемого автотранспортом топлива при проведении
строительства определено по удельным показателям, исходя из потребности в
технике и продолжительности ее работы.
Таблица Перечень загрязняющих веществ, выбрасываемых в атмосферу от
автотранспорта и дорожно-строительных машин
|
Наименование вещества
|
Код вещества
|
ПДКм.р. ОБУВ, мг/м3
|
Класс опасности
|
Валовой выброс, т/на период строительства
|
|
Азота диоксид
|
0301
|
0,085
|
2
|
0,04
|
|
Азота оксид
|
0304
|
3,4*10-6
|
3
|
2,65*10-7
|
|
Сажа
|
0328
|
0,15
|
3
|
0,0149
|
|
Серы диоксид
|
0330
|
0,5
|
3
|
0,0894
|
|
Углерода оксид
|
0337
|
5,0
|
4
|
0,41
|
|
Углеводороды (по бензину)
|
2704
|
5,0
|
4
|
0,062
|
Таблица Расчет валовых выбросов загрязняющих веществ автотранспортом и
дорожно-строительными машинами
|
Выбрасываемое вещество
|
Код
|
Количество израсходованного топлива, т
|
Выбросы ЗВ
|
|
|
|
Удельный выброс топлива т/т
|
Валовой выброс т/на период стр-ва
|
|
|
Бенз.
|
|
бензин
|
|
бензин
|
|
|
Азота диоксид
|
0301
|
1,238
|
|
0,02
|
|
0,0248
|
|
|
Азота оксид
|
0304
|
|
|
0,0029
|
|
0,0089
|
|
|
Сажа
|
0328
|
|
|
0,001
|
|
0,00124
|
|
|
Серы диоксид
|
0330
|
|
|
0,3
|
|
0,371
|
|
|
Углерода оксид
|
0337
|
|
|
1,15x10-7
|
|
1,42x10-7
|
|
|
Углеводороды (бенз)
|
2704
|
|
|
0,05
|
|
0,062
|
|
Все строительно-монтажные работы имеют передвижной характер, производятся
последовательно и не совпадают во времени. Загрязняющие вещества, выбрасываемые
в атмосферу, носят кратковременный характер, т.к. оказывают воздействие на
атмосферный воздух в период строительно-монтажных работ.
Вывод: Принимая во внимание кратковременность проведения работ,
сменность, периодичность и неравномерность технологических процессов, можно
сделать вывод о незначительности воздействия на атмосферный воздух этапа
строительства.
.4 Расчет выбросов метана при технологической продувке
Выброс метана осуществляется во время пуска газопровода при
технологической продувке и составляет 30% от объема газа внутри газопровода.
Определяем объем газа в газопроводе:
ф225x20,5 - 621,5 м dвн = 184,0 мм;
ф160x14,6 - 464,0 м dвн = 130,8 мм;
ф110x10,0 - 965,5 м dвн = 90,0 мм;
ф63x5,8 - 1409,3 м dвн = 51,4 мм;г.тр = 31,79 м3
Объем сбрасываемого метана при продувке:тр = 9,5 м3.
.5 Характеристика объекта как источника возможных аварийных ситуаций
Наибольший ущерб окружающей среде природный газ способен нанести при
разрыве газопровода, сварного соединения или не герметичности соединения
запорной арматуры с утечкой газа, когда газ образует в закрытом помещении
взрывоопасную смесь (с концентрацией от 4% до 14% от объема воздуха).
Транспортируемый газ легче воздуха он не будет скапливаться в пониженных
местах, затем будет рассеиваться в атмосфере.
Причинами аварийных выбросов могут быть:
брак сварочных и строительно-монтажных работ;
дефекты труб;
повреждения трубопроводов механизмами.
Для предупреждения возможных аварийных ситуаций и снижения опасных
аварийных выбросов газа в атмосферу проектом предусмотрены технические решения:
применение полиэтиленовых труб, исключающую коррозию газопроводов;
сварка полиэтиленовых труб муфтами с закладными электронагревателями;
применение герметичной запорной арматуры;
расчет газопровода на рабочее давление;
пневматическое испытание газопроводов на прочность.
В результате соблюдения норм проектирования, ГОСТов строительства и
эксплуатации газопроводов и запорной арматуры не ухудшается экологическая
обстановка и состояние воздушной, и водной среды по всем параметрам
воздействия.
С целью повышения экологичности газопровода и сведения к минимуму его
воздействия на окружающую среду проектом предусматривается выполнение следующих
мероприятий:
отвод земель для проведения строительных работ выполнить строго в
пределах действующих строительных норм;
подземная прокладка газопровода обеспечение конструктивной надежности
линейной части;
применение материалов, не оказывающих вредного влияния на окружающую
среду (воду, грунт, воздух);
устройство для газопроводов защитных футляров с контрольными трубками в
местах пересечения газопроводом автодорог и подземных инженерных коммуникаций.
после укладки газопровода в траншею предусматривается испытание на
прочность и герметичность воздухом;
уборка строительной полосы, вспомогательных и монтажных площадок от строительного
мусора и технических материалов"
восстановление нарушенных земель;
использование почвенно-растительного слоя грунта для устройства
подсыпок, перемычек и других временных земляных сооружений для строительных
целей не допускается.
Таким образом, после строительно-монтажных работ и дальнейшей
эксплуатации проектируемый объект не будет оказывать негативного влияния на
состояние и качественный состав земельных ресурсов.
.6 Охрана атмосферного воздуха, поверхностных и поземных вод
В процессе эксплуатации при нормальных условиях работы газопровод не
является источником загрязнения атмосферного воздуха. При плановых и аварийных
ремонтах газопровода, газ, как источник загрязнения атмосферы, может проявить
себя в связи с опорожнением газопровода.
Шумовые воздействия и вибрация от проектируемого газопровода отсутствуют
и не окажут негативное влияние на окружающую среду. Использование при
строительстве малошумных и бесшумных аппаратов и кратковременность их
использования позволяет не предусматривать дополнительных мероприятий по
снижению шумового и вибрационного воздействия.
Природный газ и сам газопровод не оказывают вредного воздействия на
поверхностные и грунтовые воды. В период изысканий уровень грунтовых вод
встречен в скв. №3 на глубине 2,7 м (прогнозируемый уровень принять на 0,5 м
выше установившегося).
Газопровод прокладывается из полиэтиленовых труб ПЭ80 по ГОСТ Р50838-95.
Глубина прокладки газопровода 1,2-1,53 м. Испытания газопровода (опрессовка)
осуществляются воздухом.
В процессе проведения строительства газопровода будут образовываться:
строительные отходы - образуются в результате монтажных работ,
используются в качестве отсыпки под площадки временного отвода.
бытовые отходы - во время строительства газопровода образуются ТБО.
Согласно "Справочным материалам по удельным показателям образования
промышленных отходов" норма накопления отходов составляет 40 кг на 1
человека в год, которые складируются на базе подрядной организации с
последующим вывозом на свалку.
Продолжительность строительства - 1,6 месяца. Количество работающих - 22
человек.
(40x22)x1,6/12 = 117 кг = 0,12 т за период строительства.
ливневые воды - воды, образующиеся при выпадении осадков,
отводятся согласно существующему рельефу местности без изменения экологической
обстановки.
Рекомендуется проведение следующих мероприятий по предотвращению
загрязнения вод:
хранение производственных отходов в закрытых металлических контейнерах и
вывоз накопленных отходов строительных работ на свалку;
складирование сырья, полуфабрикатов и отходов на специальных площадках
строительной организации;
заправка топливом происходит на АЗС, ремонт автомобилей и других машин и
механизмов в специально оборудованном гараже на производственной базе
строительной организации;
запрещение размещения складов горюче-смазочных материалов, мест
складирования бытовых отходов вблизи источников воды и строительной площадки.
Ответственность за проведение работ по сбору строительных отловов и ГСМ
возлагается на начальника строительно-монтажной организации.
Таблица Характеристика отходов и способов их удаления (складирования) на
объекте
|
Наименование отходов
|
Класс опасности отхода
|
Кол-во
|
Способы удаления, складирования отходов
|
|
Бытовые отходы
|
5
|
0,03т
|
В закрытые контейнеры, установленные на территории стр-ва с
последующим вывозом в установленном порядке на базу подрядчика с последующей
сдачей на базу "Вторчермет".
|
|
Ливневые воды
|
|
9,5 м3
|
При образовании сточные воды откачиваются и вывозятся на
ОСК для очистки в соответствии с правилами приема сточных вод.
|
Вывоз образующихся отходов, в том числе хоз-бытовых стоков
предусматривается на существующую свалку-карьер.
.7 Охрана и рациональное использование земель
Газ не оказывает вредного воздействия на грунт и гумусный слой. В
процессе эксплуатации газопровода службы обязаны следить за трассой газопровода
и выполнять ремонтные работы по восстановлению засыпки траншеи газопровода в
случае эрозии почвы поверхностными водами.
Воздействие строительного периода на почвенно-растительный покрой
происходит только в процессе строительно-монтажных работ и определяется
конструктивной схемой прокладки газопровода, технологией и условиями местности.
Планировку трассы газопровода на период строительства осуществляют в
установленных границах полосы отвода и начинают только после получения от
заказчика решения соответствующих органов об отводе земель. Отвод земель для
проведения строительных работ является природоохранным мероприятием,
направленным на сокращение (имитирование) площадей нарушаемых земель.
На всех этапах проведения строительно-монтажных работ следует выполнять
мероприятия, предотвращающие:
развитие неблагоприятных рельефообразующих процессов;
загорание растительности вследствие Запуска к работе неисправных
технических средств, способных вызвать загорание;
захламление территории строительными отходами;
разлив горюче-смазочных материалов, слив на трассе отработанных масел
Ответственность за проведение работ по сбору строительных отходов и ГСМ
возлагается на начальника строительно-монтажной организации.
.8 Рекультивация земель при строительстве газопровода
Рекультивации подлежат нарушенные земли всех категорий, а также
прилегающие земельные участки, полностью или частично утратившие продуктивность
в результате отрицательного воздействия (ГОСТ 17.5.3.04-83). Участки
самозарастания - специально не благоустраиваемые для использования в
хозяйственных или рекреационных целях относятся к землям природоохранного и
санитарно-гигиенического направления рекультивации.
Для сохранения земель проектом предусматривается рекультивация земель,
т.е. снятие плодородного слоя почвы до начала строительных работ
транспортировка его к месту временного хранения и нанесение его на
восстанавливаемые земли после окончания строительных работ. Технический этап
рекультивации выполняется силами и техническими средствами генподрядной
организации.
Снятие плодородного слоя почвы и его перемещение в отвал следует
производить бульдозером на всю толщину, по возможности за один проход. Нельзя
допускать смешивания плодородного слоя почвы с минеральным грунтом. Грунт,
образованный в результате вытеснения объема при укладке газопровода в траншею,
Должен быть равномерно распределен и спланирован в полосе отвода участка
выделенного под строительство.
Снятие плодородного слоя почвы производится, как правило, до наступления
устойчивых отрицательных температур. В исключительных случаях по согласованию с
землепользователями и органами, осуществляющими государственный контроль над
использованием земель. Допускается снятие плодородного слоя почвы в зимних
условиях. Засыпку газопровода минеральным грунтом производят в любое время года
сразу после укладки. Нанесение плодородного слоя почвы должно производиться
только в теплое время года (при нормальной влажности и достаточной несущей
способности грунта для прохода машин).
Работы по снятию и нанесению плодородного слоя почвы производятся силами
строительной организации.
Последовательность операций при рекультивации плодородных земель:
снятие плодородного слоя почвы с полосы рекультивации и перемещение его
во временный отвал.
строительство газопровода (разработка траншеи, укладка труб в траншею),
засыпка траншеи минеральным грунтом и отсыпка валика обеспечивающего создание
ровной поверхности после естественного уплотнения грунта;
разравнивание лишнего минерального грунта образовавшегося в результате
вытеснения объема после укладки газопроводов в траншею;
уборка строительного мусора загрязненного плодородного грунта с
заменой его качественным.
грубая планировка бульдозером поверхности плодородного слоя всей
строительной полосы.
проверка инспектором по использованию и охране земель состояние грунта в
полосе рекультивации для исключения засыпки загрязненного минерального грунта
слоем качественной почвы
перемещение плодородной почвы из временного отвала на полосу
рекультивации и равномерное ее распределение в границах указанной полосы.
окончательная планировка полос рекультивации.
При снятии, обратном нанесении и хранении почвы во временном отвале не
допускается смешивание ее с подстилающими грунтами, а также ее загрязнение,
размыв, выдувание.
На этапе биологической рекультивации по сельскохозяйственным угодьям
предусматривает внесение минеральных удобрений и посев районирования
быстрорастущих трав по лугу.
Этапы биологической рекультивации проводятся в течении 3 лет после сдачи
рекультивируемых земель землепользователю.
Рекультивируемые земли и прилегающая к ним территория после завершения
всего комплекса работ должны представлять собой оптимально организованный и
экологически сбалансированный устойчивый ландшафт
Таблица
|
Параметры
|
Ед. изм.
|
Всего
|
|
Ширина полосы отвода
|
м
|
4,0
|
|
Толщина снимаемого ПРС в пределах полосы отвода
|
м
|
0.2
|
|
Ширина полосы биологической рекультивации
|
м
|
2,2 /2,0
|
|
Длина полосы биологической рекультивации
|
м
|
2820,9
|
|
Площадь биологической рекультивации
|
м2
|
6479,2
|
|
Объем снимаемого плодородного слоя почвы
|
м3
|
1295,8
|
.9 Мероприятия по защите от шума и вибрации
В проекте выполнено обоснование (по шумовому воздействию) строительства
газопровода в Вологодской области Междуреченском районе с. Спас-Ямщики.
Выполненные расчеты уровней шумового воздействия показали, что строительство
газопровода не будет оказывать негативного воздействия на жилую застройку и
территорию прилегающую к нему.
Ответственность за полноту и достоверность данных для проведения расчетов
представленных в проекте несёт предприятие (в лице руководителя).
Термины и определения
Шум - беспорядочное сочетание звуков различной мощности и частоты,
мешающих восприятию полезных звуков или нарушающих тишину, приводящий к
напряженности или нарушению здоровья. Повышенный шум является одним из наиболее
распространенных вредных и опасных производственных факторов. Повышенный шум
воздействует как на органы слуха, так и на весь организм человека.
Под слышимым звуком понимают механическое возмущение, обычно колебания
или волны, которые распространяются в упругой среде и воспринимаются нашим
слухом. Если упругой средой является воздух или другой газ, то речь идет о
воздушном звуке, возмущения в жидкости или в твердом теле создают структурный
звук.
Постоянный шум - шум, уровень звука которого изменяется во времени не
более чем на 5 дБ А при измерениях на временной характеристике
"медленно" шумомера по ГОСТ 17187-81.
Непостоянный шум - шум, уровень звука которого изменяется во времени
более чем 5 дБА при измерениях на временной характеристике "медленно"
шумомера по ГОСТ 17187-81.
Звуковое давление - переменная составляющая давления воздуха или газа,
возникающая в результате звуковых колебаний, Па.
Эквивалентный /по энергии/ уровень звука непостоянного шума -уровень
звука постоянного широкополосного шума, который имеет такое же
среднеквадратичное звуковое давление, что и данный непостоянный шум в течение
определенного интервала времени.
Предельно допустимый уровень (ПДУ) шума - это уровень фактора, который
при ежедневной (кроме выходных дней) работе, но не более 40 часов в неделю в
течение всего рабочего стажа, не должен вызывать заболеваний или отклонений в
состоянии здоровья, обнаруживаемых современными методами исследований в
процессе работы или в отдаленные сроки жизни настоящего и последующих поколений.
Соблюдение ПДУ шума не исключает нарушения здоровья у сверхчувствительных лиц.
Допустимый уровень шума - это уровень, который не вызывает у человека
значительного беспокойства и существенных изменений показателей функционального
состояния систем и анализаторов, чувствительных к шуму.
Расчет акустического воздействия.
Данные для расчета шумового воздействия.
Источниками шума при строительстве газопровода будут являться:
ИШ №1 - Сварочный аппарат;
ИШ №2 - Работа экскаватора;
ИШ №3 - Работа самосвала;
ИШ №4 - Работа бульдозера;
ИШ №5 - Компрессор;
ИШ №6 - Ультразвуковая установка.
Шумовые характеристики для всех источников приняты согласно данным
производителей.
Для акустического расчета использован программный комплекс по оценке
акустического воздействия ПК «Шум» (разработка НПП «Логус»), реализующий
положения СНиП 23-03-2003.
Акустический расчет для выполнен в локальной системе координат. За начало
координатной сетки локальной системы координат площадки (Х=0,У=0) принят
юго-западный угол земельного участка начала строительства. Ось X направлена на
восток, ось У направлена на север, угол поворота системы координат равен «0».
Расчет представлен в приложении. Из результатов выполненных расчетов
видно, что уровни шумового воздействия создаваемые источниками при
строительстве не превышают установленные нормативные значения 55 дБА для
дневного времени суток в расчетных точках на границе жилых домов и составляют
от 48 до 55 дБА.
Выводы
При соблюдении требований законодательной, нормативной и технической
документации, а также выполнение природоохранных мероприятий проектируемый
объект не окажет негативного воздействия на окружающую среду, как в период
строительства, так и во время его эксплуатации
По окончании строительно-монтажных работ земли, отведенные во временное
пользование, возвращаются землепользователям в состоянии, пригодном для
использования их по назначению.
Все строительно-монтажные работы производятся последовательно и не
совпадают во времени. Загрязняющие вещества выбрасываемые в атмосферу, носят
кратковременный характер и не оказывают вредного воздействия на атмосферный
воздух в период строительно-монтажных работ проектируемый объект при его
эксплуатации не является источником загрязнения окружающей среды.
Проектируемый газопровод в период эксплуатации работает автономно и не
требует постоянного присутствия обслуживающего персонала, поэтому он не
является источником загрязнения окружающей среды отходами производства и
потребления. Мероприятия по охране почв от отходов производства и потребления
не предусматриваются.
Проектируемый газопровод в период эксплуатации не является источником
загрязнения поверхностных и подземных вод. После монтажа выполняется испытание
газопровода на прочность и герметичность сжатым воздухом под давлением.
Из изложенного выше следует, что строительство подземного газопровода и
его эксплуатация не окажет заметного влияния на сложившуюся экологическую
ситуацию района размещения объекта.
На основании выполненных расчетов установлено, что уровни звука на
границе жилой застройки не превышают нормативные показатели, регламентированные
СНиП 23-03-2003 «Защита от шума».
Допустимое значение уровня звука на территории, непосредственно
прилегающей к жилому дому, согласно СН 2.2.4./2.1.8.562-96 «Шум на рабочих
местах, в помещениях жилых, общественных зданий и на территории жилой
застройки» табл.3, п.9. равно 55 дБА в течение времени с 7 до 23ч (расчетное
33,4 дБА).
Следовательно, заложенные в проектных решениях мероприятия по снижению
уровней звука являются достаточными для соблюдения требований СН
2.2.4/2.1.8.562-96.
Значительное снижение шума в застройке обеспечивается строгим соблюдением
требований строительных норм и правил по планировке и застройке городов и
других населенных пунктов. Превышений по шуму не выявлено.
. Инженерно-геологические изыскания
Инженерно-геологические и гидрогеологические изыскания для обоснования
проектной документации по объекту «Наружный газопровод село Спас-Ямщики
Междуреченского района Вологодской области» выполнены в соответствии с
техническим заданием «Заказчика» (текстовое приложение А).
Задачей изысканий является изучение геологического строения,
гидрогеологических условий территории, физико-механических и агрессивных
свойств грунтов в пределах взаимодействия фундаментов с геологической средой,
выявление участков с опасными инженерно-геологическими явлениями, получение
материалов и данных, позволяющих выполнение проектных работ по объекту
«Наружный газопровод село Спас-Ямщики Междуреченского района Вологодской
области».
Полевые работы выполнены с 17 по 19 июля 2014 года под руководством бур.
мастера Е.Н. Егоровцева, буровой установкой УБШМ-20 колонковым способом,
диаметр бурения 108 мм.
Технические условия работ определялись требованиями СП 22.13330.2011,
ГОСТ 12071-2000, СНиП 11-02-96 и СП 11-105-97.
В процессе работ на площадке предполагаемого строительства пробурены 13
скважин глубиной 3 м и 2 скважины глубиной 7 м каждая, общий метраж составил 53
п.м.
Для определения пространственной изменчивости физико-механических свойств
грунтов отобрано 29 проб грунта ненарушенной структуры из связных суглинистых
грунтов. В состав лабораторных исследований входит определение
физико-механических свойств грунтов, химический анализ воды и водной вытяжки
грунта, коррозионная активность грунта. Работы проведены в грунтовой
лаборатории ООО «Проектно-изыскательский институт «Облстройпроект».
Коррозионные свойства грунтовых вод по отношению к бетонам оценивались на
основании химического анализа воды и водной вытяжки грунта, согласно СП
28.13330.2012.
Коррозионная агрессивность грунта по отношению к стали определялась в
полевых условиях прибором ИС-10 и лабораторных условиях по двум методам: по
плотности катодного тока и по удельному электрическому сопротивлению грунта,
согласно ГОСТ 9.602-2005.
Камеральная обработка полевых материалов, результатов лабораторных
исследований, расчеты, графические построения и составление настоящего отчета,
выполнены геологом Алексеевым Д.А. в соответствии с действующими нормативными
документами, рекомендациями и инструкциями.
Виды и объемы выполненных инженерно-геологических работ приведены в
таблице.
Таблица Виды и объемы выполненных работ
|
№ п/п
|
Виды работ
|
Единица измерения
|
Объемы работ
|
|
1
|
2
|
3
|
4
|
|
1. Полевые работы
|
|
|
|
1.1.
|
Колонковое бурение скважин
|
|
|
|
- количество
|
скв.
|
15
|
|
- глубина скважин
|
м
|
3/7
|
|
- диаметр
|
мм
|
108
|
|
- объем работ
|
пог. м
|
53
|
|
1.2.
|
Отбор проб ненарушенной структуры
|
проб
|
29
|
|
1.3.
|
Отбор проб нарушенной структуры
|
проб
|
-
|
|
1.4.
|
Отбор проб воды
|
проб
|
1
|
|
1.5
|
Отбор проб для водной вытяжки
|
проб
|
4
|
|
1.6
|
Отбор проб на коррозию
|
проб
|
6
|
|
2.1.
|
Определение физико-механических свойств грунтов
|
компл
|
29
|
|
2.2.
|
Определение гранулометрического состава песков
|
компл
|
-
|
|
2.3.
|
Химический анализ воды
|
проб
|
1
|
|
2.4
|
Химический анализ водной вытяжки
|
проб
|
4
|
|
2.5.
|
Определение коррозионной активности грунта
|
проб
|
6
|
|
3.1.
|
Обработка геологических материалов буровых работ
|
п. м
|
53
|
|
3.2.
|
Камеральная обработка лабораторных исследований грунтов
|
проб
|
29
|
|
3.3.
|
Составление технического отчета
|
отчет
|
1
|
Климат рассматриваемого района умеренно-континентальный с холодной зимой
и умеренно-теплым летом. Район находится под воздействием воздушных масс
Атлантики, Арктического бассейна, а также масс, сформировавшихся над
территорией в конце лета - начале осени, нередко во второй половине зимы и
весной преобладает западный тип атмосферной циркуляции, сопровождающий обычной
активной циклонической деятельностью, значительными осадками, положительными
аномалиями температуры воздуха зимой и отрицательными летом. С октября по май в
результате воздействия сибирского максимума западная циркуляция нередко
сменяется восточной, что сопровождается малооблачной погодой, большими
отрицательными аномалиями температуры воздуха зимой и положительными летом.
Менее вероятна в данной районе меридиональная циркуляция, которая связана с
мощными арктическими вторжениями воздушных масс и сопровождается резким
понижением температуры воздуха.
Январь - самый холодный месяц зимы. Его средняя температура составляет
минус 12,6оС. Абсолютный минимум температур воздуха может достигать минус 46оС.
Осадков за зиму в среднем выпадает 30-38см месяц. Снежный покров устойчив.
Характерны частые метели, зимой преобладают ветры западного,
юго-западного направления, средняя скорость которых составляет 3-4м/с.
Среднемесячное количество осадков весной составляет 32-48см месяц. Снежный
покров сходит в начале первой декады апреля.
Самый теплый месяц лета июль, его средняя температура составляет 16,8оС.
Максимум температуры может достигать 37.0оС. Летом выпадает небольшое
количество осадков по сравнению с другими сезонами года. Среднемесячное
количество осадков летом составляет 58-74см в месяц. Летом преобладают ветры с
северной составляющей. Снежный покров устанавливается в конце третей декады
ноября.
Осень обычно дождливая, среднее месячное количество осадков составляет
40-47мм. Осенью преобладают ветры с юго-западной составляющей.
Более подробно климатические характеристики по ближайшей к участку работ
метеостанции приведены в таблицах ниже.
Метеорологические параметры района.
. Средняя продолжительность безморозного периода - 125 дней.
. Дата начала периода с температурой выше 15°С - 17.06.
Продолжительность периода с температурой выше 15°С - 60 дней.
. Дата начала периода с температурой выше 10°С - 10.05.
Продолжительность периода с температурой выше 10°С - 120 дней.
. Дата начала периода с температурой выше 5°С - 22.04.
Продолжительность периода с температурой выше 5°С - 160 дней.
. Дата начала периода с температурой ниже 0°С - 27.10.
Продолжительность периода с температурой ниже 0°С - 160 дня.
. Дата начала периода с температурой ниже -5°С - 21.11.
Продолжительность периода с температурой ниже -5°С - 125 дней.
. Дата начала периода с температурой ниже -10°С - 19.12.
Продолжительность периода с температурой ниже -10°С - 65 дней.
. Средние даты первого мороза - 20.09.
Средние даты последнего мороза - 20.05.
. Число дней с осадками - 90 дней.
Количество осадков за вегетационный период (апрель-октябрь)- 460 мм.
Количество осадков за холодный период (ноябрь-март) - 200 мм
Ветровой режим
Ветровой режим - это основной метеорологический фактор.
В зимний период преобладает юго-западный ветер, а в летний период -
северные ветра.
Таблица Повторяемость и скорость ветра в январе
|
Направление
|
СВ
|
В
|
ЮВ
|
Ю
|
ЮЗ
|
З
|
СЗ
|
|
Скорость, м/сек
|
4,2
|
4,1
|
3,7
|
4,1
|
4,4
|
4,5
|
4,5
|
4,1
|
|
Повторяемость, %
|
11
|
10
|
7
|
10
|
14
|
33
|
8
|
7
|
Рис. Роза ветров за январь
Таблица Повторяемость и скорость ветра в июле
|
Направление
|
С
|
СВ
|
В
|
ЮВ
|
Ю
|
ЮЗ
|
З
|
СЗ
|
|
Скорость, м/сек
|
3,9
|
3,5
|
3
|
2,8
|
2,7
|
3
|
3,2
|
3,6
|
|
Повторяемость, %
|
19
|
18
|
9
|
6
|
8
|
16
|
10
|
14
|
Рис. Роза ветров за июль
Температурный режим определяет состояние снежного и ледяного покрова,
условия работы машин и водителей.
В районах, где зимой устойчиво держится отрицательная температура, снег
обычно бывает сухим и сыпучим; там, где температура воздуха зимой часто
колеблется, приближаясь или поднимаясь выше 0 0С, а затем снижается, достигая
низких значений, снег постепенно становится вязким, влажным, затем твёрдым,
смёрзшимся и даже обледенелым. Одновременно изменяются его физико-механические
свойства.
Средняя температура самого холодного месяца в зимний период - 17 0С,
средняя температура самого жаркого месяца в летний период +22,6 0С. Абсолютно
минимальная температура воздуха - 46 0С, абсолютно максимальная температура
воздуха +37 0С.
Таблица Средняя месячная и годовая температуры воздуха, 0С
|
I
|
II
|
III
|
IV
|
V
|
VI
|
VII
|
VIII
|
IX
|
X
|
XI
|
XII
|
год
|
|
-13,1
|
-11,9
|
-6,2
|
2,1
|
9,1
|
14,3
|
17,0
|
14,5
|
8,5
|
1,9
|
-4,5
|
-10,4
|
1,8
|
В административном отношении участок под строительство находится по
адресу: Вологодская область, Междуреченский район, с. Спас-Ямщики. Рельеф
местности - с не значительным уклоном на северо-запад. Линия проектируемого
газопровода проходит вдоль улиц села Спас-Ямщики.
Рельеф в пределах площадки для строительства относительно ровный, и
характеризуется отметками поверхности земли от 147.76 м до 160.72 м (отметки
устьев скважин) в Балтийской системе высот 1977 г. (см. «Карта фактического
материала» графическое приложение П).
По данным бурения с поверхности и до глубины 7.00 м в геологическом
строении территории принимают участие отложения четвертичной системы,
перекрытые с поверхности современными техногенными и биогенными образованиями и
залегающие в следующей стратиграфической последовательности:
Современные техногенные образования (t IV) вскрыты скважиной № 1 и
представлены суглинками перемещенными с гравием, со строительным мусором и
тонкими прослойками песка среднего, в верхней части слоя с корнями растений, в
слежавшемся состоянии. Мощность слоя составила 0.90 м.
Современные биогенные образования (b IV) вскрыты скважинами № 2-15 и
представлены в виде почвенно-растительного слоя с корнями растений. Мощность
слоя составила 0.20 м.
Верхнечетвертичные озерно-ледниковые отложения (lg III) залегают под
современными техногенными и биогенными образованиями и представлены двумя
слоями:
) Суглинки легкие и тяжелые, бурого цвета, тугопластичной консистенции, с
гравием и галькой до 10%, прослойками песка мелкого маловлажного и
водонасыщенного (скв 3). Мощность слоя составила 1.30 - 6.80 м.
) Суглинки легкие и тяжелые, бурого цвета, полутвердой консистенции, с
гравием и галькой до 10%. Мощность слоя составила 0.50 - 2.80 м.
Геологическое строение площадки отражено в инженерно-геологических
колонках скважин 1-15 и инженерно - геологических профилях №1-5.
На период производства буровых работ (июль 2014г) грунтовые воды вскрыты
в скважине № 3, уровень появления установлен на глубине 3.00, установившийся
уровень отмечен на глубине 2.70 м (прогнозируемый уровень принять на 0.5 м выше
установившегося).
По условиям залегания, распространения, питания и разгрузки воды являются
грунтовыми, приуроченные к прослоям песка в озерно-ледниковых суглинках. Воды
имеют свободную поверхность, не напорные, питание происходит за счет
инфильтрации атмосферных осадков, разгрузка осуществляется в пониженные участки
рельефа. В периоды весеннего таяния снегов и обильных осеннее - весенних дождей
следует ожидать установление уровня грунтовых вод на отметках близких к дневной
поверхности.
По данным химического анализа воды (текстовое приложение Ж)
гидрокарбонатные, кальциевые и калиево-натриевые, Ph - нейтральными, умеренно
жесткие. В соответствии с СП 28.13330.2012 «Актуализированная редакция СНиП
2.03.11-85*. Защита строительных конструкций от коррозии» воды по содержанию
свободной углекислоты не обладают агрессивностью по отношению к бетону марок
W4, W6 и W8; по степени воздействия на металлические конструкции воды являются
сильноагрессивными; по степени воздействия на арматуру железобетонных
конструкций воды являются неагрессивными. По отношению к свинцовой оболочке
кабеля воды обладают низкой степенью коррозийной активности, к алюминиевой
оболочке кабеля воды обладают средней степенью коррозийной активности.
Химический анализ водной вытяжки грунтов показал содержание хлоридов от
74,6 до 107,8 мг/кг, а содержание сульфатов от 36,6 до 54,8 мг/кг грунта. По
содержанию хлоридов согласно СП 28.13330.2012 грунты являются неагрессивными по
степени воздействия на железобетонные конструкции, по содержанию сульфатов
грунты являются неагрессивными к бетонам всех марок на портландцементе по ГОСТ
10178; неагрессивными к бетонам всех марок на портландцементе и
шлакопортландцементе по ГОСТ 10178; неагрессивными к бетонам всех марок на
сульфатостойком цементе по ГОСТ 22266. По отношению к свинцовой оболочке кабеля
грунты обладают низкой степенью коррозионной активности, к алюминиевой оболочке
кабеля грунты обладают средней степенью коррозийной активности.
Таблица Ведомость единовременного замера уровня грунтовых вод
|
№ выработки
|
Отметка устья, м
|
Появление подземной воды, м
|
Установившийся уровень, м
|
Дата замера
|
|
|
глубина
|
абс.отм
|
глубина
|
абс.отм
|
|
|
1
|
157.28
|
-
|
-
|
-
|
-
|
18.07.14
|
|
2
|
154.29
|
-
|
-
|
-
|
-
|
18.07.14
|
|
3
|
155.80
|
3.00
|
152.80
|
2.70
|
153.10
|
18.07.14
|
|
4
|
160.26
|
-
|
-
|
-
|
-
|
18.07.14
|
|
5
|
156.78
|
-
|
-
|
-
|
-
|
18.07.14
|
|
6
|
150.20
|
-
|
-
|
-
|
-
|
18.07.14
|
|
7
|
154.84
|
-
|
-
|
-
|
-
|
18.07.14
|
|
8
|
147.76
|
-
|
-
|
-
|
-
|
18.07.14
|
|
9
|
148.47
|
-
|
-
|
-
|
-
|
18.07.14
|
|
10
|
156.24
|
-
|
-
|
-
|
-
|
18.07.14
|
|
11
|
158.66
|
-
|
-
|
-
|
-
|
19.07.14
|
|
12
|
159.13
|
-
|
-
|
-
|
-
|
19.07.14
|
|
13
|
160.49
|
-
|
-
|
-
|
-
|
19.07.14
|
|
14
|
160.72
|
-
|
-
|
-
|
-
|
19.07.14
|
|
15
|
152.70
|
-
|
-
|
-
|
-
|
19.07.14
|
Из физико-геологических процессов и явлений на площадке развито сезонное
промерзание и морозное пучение грунтов деятельного слоя.
Согласно т.Б.27 Гост 25100-2011 грунты ИГЭ-2 относятся слабопучинистым,
ИГЭ-3 относятся к среднепучинистым грунтам при промерзании.
Нормативная глубина сезонного промерзания грунтов рассчитана по формуле
5.3 СП 22.13330.2011 и составляет для суглинков - 1,49 м.
Физико-механические свойства грунтов определены в лаборатории по 29
образцам.
По генетическим, литологическим и физико-механическим признакам грунтов
основания сооружения выделено 3 инженерно-геологических элемента (ИГЭ):
ИГЭ-1 Суглинки перемещенные, слежавшиеся (t IV);
ИГЭ-2 Суглинки легкие и тяжелые, бурого цвета, полутвердой консистенции,
с гравием и галькой до 10% (lg III);
ИГЭ-3 Суглинки легкие и тяжелые, бурого цвета, тугопластичной
консистенции, с гравием и галькой до 10%, прослойками песка мелкого
маловлажного и водонасыщенного (lg III).
Нормативные и расчетные значения прочностных и деформационных
характеристик грунтов выделенных ИГЭ приняты в соответствии с СП 22.13330.2011,
с учетом физических свойств. За расчетные характеристики для расчетов по
деформациям приняты нормативные, для расчетов по несущей способности -
нормативные с учетом коэффициентов надёжности по грунту.
Расчетное сопротивление для грунтов выделенных ИГЭ приведено согласно СП
22.13330.2011. Коэффициент фильтрации для суглинков приведен согласно
«Справочника геолога» М.А. Солодухина.
Коррозионная агрессивность грунтов ИГЭ - 2 по отношению к углеродистой и
низколегированной стали в соответствии с ГОСТ 9.602-2005 относится к низкой,
ИГЭ - 3 относится к средней степени коррозионной активности. Удельное
электрическое сопротивление, определенное полевым путем прибором ИС-10
составляет 2.12-3.79 Ом*).
Таблица нормативных и расчетных характеристик грунтов
Выводы
. По сложности инженерно-геологических условий, согласно СП 11-105-97,
участок изысканий относится ко II категории.
Площадка изысканий находится в условно благоприятных
инженерно-геологических условиях. Факторами, осложняющими строительство,
являются:
морозное пучение грунтов;
. По генетическим, литологическим и физико-механическим признакам грунтов
основания сооружения выделено 3 инженерно-геологических элемента (ИГЭ):
ИГЭ-1 Суглинки перемещенные, слежавшиеся (t IV);
ИГЭ-2 Суглинки легкие и тяжелые, бурого цвета, полутвердой консистенции,
с гравием и галькой до 10% (lg III);
ИГЭ-3 Суглинки легкие и тяжелые, бурого цвета, тугопластичной
консистенции, с гравием и галькой до 10%, прослойками песка мелкого
маловлажного и водонасыщенного (lg III).
Расчетные значения характеристик грунтов, которыми рекомендуется
пользоваться при расчетах оснований по деформациям и несущей способности
принять по таблице 2.6.1.
В основаниях проектируемых сооружений в качестве опорных грунтов
рекомендуется использовать грунты ИГЭ - 2, 3.
. На период производства буровых работ (июль 2014г) грунтовые воды
вскрыты в скважине № 3, уровень появления установлен на глубине 3.00,
установившийся уровень отмечен на глубине 2.70 м (прогнозируемый уровень
принять на 0.5 м выше установившегося).
По условиям залегания, распространения, питания и разгрузки воды являются
грунтовыми, приуроченные к прослоям песка в озерно-ледниковых суглинках. Воды
имеют свободную поверхность, не напорные, питание происходит за счет
инфильтрации атмосферных осадков, разгрузка осуществляется в пониженные участки
рельефа. В периоды весеннего таяния снегов и обильных осеннее - весенних дождей
следует ожидать установление уровня грунтовых вод на отметках близких к дневной
поверхности.
По данным химического анализа воды гидрокарбонатные, кальциевые и
калиево-натриевые, Ph - нейтральными, умеренно жесткие. В соответствии с СП
28.13330.2012 «Актуализированная редакция СНиП 2.03.11-85*. Защита строительных
конструкций от коррозии» воды по содержанию свободной углекислоты не обладают
агрессивностью по отношению к бетону марок W4, W6 и W8; по степени воздействия
на металлические конструкции воды являются сильноагрессивными; по степени
воздействия на арматуру железобетонных конструкций воды являются
неагрессивными. По отношению к свинцовой оболочке кабеля воды обладают низкой
степенью коррозийной активности, к алюминиевой оболочке кабеля воды обладают
средней степенью коррозийной активности.
Химический анализ водной вытяжки грунтов показал содержание хлоридов от
74,6 до 107,8 мг/кг, а содержание сульфатов от 36,6 до 54,8 мг/кг грунта. По
содержанию хлоридов согласно СП 28.13330.2012 грунты являются неагрессивными по
степени воздействия на железобетонные конструкции, по содержанию сульфатов
грунты являются неагрессивными к бетонам всех марок на портландцементе по ГОСТ
10178; неагрессивными к бетонам всех марок на портландцементе и
шлакопортландцементе по ГОСТ 10178; неагрессивными к бетонам всех марок на
сульфатостойком цементе по ГОСТ 22266. По отношению к свинцовой оболочке кабеля
грунты обладают низкой степенью коррозионной активности, к алюминиевой оболочке
кабеля грунты обладают средней степенью коррозийной активности (Приложение И).
. Коррозионная агрессивность грунтов ИГЭ - 2 по отношению к углеродистой
и низколегированной стали в соответствии с ГОСТ 9.602-2005 относится к низкой,
ИГЭ - 3 относится к средней степени коррозионной активности. Удельное
электрическое сопротивление, определенное полевым путем прибором ИС-10
составляет 2.12-3.79 Ом*м (см. «Коррозионная активность грунта по отношению к
углеродистой и низколегированной стали» текстовое приложение К).
. Согласно т.Б.27 Гост 25100-2011 грунты ИГЭ-2, относятся
слабопучинистым, ИГЭ-3 относятся к среднепучинистым грунтам при промерзании.
. Нормативная глубина сезонного промерзания грунтов рассчитана по формуле
5.3 СП 22.13330.2011 и составляет для суглинков - 1,49 м.
. Сейсмическая интенсивность участка изысканий определена по карте
OCP-97A с вероятностью 10 % возникновения и возможного превышения сейсмической
интенсивности в баллах шкалы MSK-64 в течение 50 лет (период повторяемости
Т=500 лет) и составляет менее 5 баллов.
. На территории исследуемой площадки карстообразования не обнаружено.
. Группы грунтов по трудности их разработки в соответствии с приложением
к ГЭСН 2001-01 сб.1:
Суглинки перемещенные (ИГЭ-1) - п.26а;
Суглинки (ИГЭ-2) - п.35в;
Суглинки (ИГЭ- 3) - п.35б.
7. Технико-экономическая оценка инвестиций на замену котельной,
работающей на газовом топливе
В котельных в настоящее время в качестве топлива используются самые
различные виды топлив (жидкое, газообразное, твердое топливо и т.д.). Стоимость
каждого вида топлива различна и с учетом КПД котельной может существенно
отличаться по калорийной способности.
Наиболее
перспективным с экономической точки зрения является природный газ. С учетом
высокого КПД (
90%) и стоимости газа 2902,65 руб. за 1000 м3 он
является наиболее дешевым видом топлива. Кроме того, использование природного
газа снижает численность персонала котельной, увеличивает качества
теплоснабжения и возможности регулирования.
.1
Общая характеристика котельной
В
дипломной работе рассматривается расположение котельной в районе школы.
Температура наружного воздуха для проектирования отопления tно=
-34 оС. Средняя температура наружного воздуха за отопительный период t
о.п. и продолжительность отопительного периода n о.п.:
)
при температуре tно= +8 оС tоп = - 4,9 оС , nоп =
236 сут/год;
)
при температуре tно= +10 оС tоп = -3,8 оС , nоп =
256 сут/год для больниц, школ, детских садов.
Мощность,
нагрузки
Общая
нагрузка на котельную - 0,954 Гкал/ч;
Мощность
котельной - 1,109 МВт.
КПД
котельной на дровах 30%
КПД
котельной на газе 90%
Прокладка
трубопроводов
Все
трубопроводы тепловой сети проложены надземно на опорах. Тепловые потери
составляют - 10% от общей нагрузки на теплоснабжение.
Температурный
график котельной
Температурный
график - отопительный с параметрами теплоносителя 95-70 оС.
Тариф
Тариф
на дрова 500 руб/м3;
Тариф
на газ 2902,65 руб/1000 м3.
Тариф
на тепловую энергию новой котельной 1071руб./Гкал
Тариф
на тепловую энергию старой котельной 1921руб./Гкал
Численность
персонала
Для
обслуживания котельной на природном газе и регистрации состояния всех
параметров в регистрационном журнале достаточно 1 человека на полставки, что в
свою очередь составляет 6000 руб. в месяц.
.2
Техническая эффективность инвестиций
Годовой
расход теплоты, вырабатываемый котельной, Qгод=2352,3
Гкал/год, по формуле (12), а отпускаемый годовой расход теплоты с учетом
тепловых потерь по формуле (13) Qотпускгод =2587,5 Гкал/год.
Вычисляем
потребный годовой объем топлива в м3/год по формуле:
где
- годовой расход теплоты, вырабатываемый котельной,
Гкал/год;
r - теплотворная
способность топлива, Гкал/м3, (для дров r =1,5 Гкал/м3, для
газа r =0,008 Гкал/м3);
- КПД
котельной (дровяной
30%, газовой
90%).
Подставляя
значения в формулу () получим:
, м3/год;
, м3/год.
Расчет
экономической эффективности
Экономическая
эффективность рассчитывается по следующей зависимости:
где
и
-
потребный годовой объем дров и газа, м3/год, соответственно;
и
- тариф на дрова и на газ, руб., соответственно.
Подставляем
численные значения в выражение (59) и вычисляем экономию:
, руб/год
.3
Капитальные затраты проекта
Составляем
укрупненную смету затрат на выполнение работ.
Таблица
Укрупненная смета на выполнение работ
|
Наименование затрат
|
Стоимость затрат, руб.
|
|
Газопровод высокого давления 2-й категории Д=63(п-э) 22м.
|
|
|
Проектные работы
|
51500
|
|
Строительно-монтажные работы
|
43200
|
|
Газопровод низкого давления Д=160(п-э)127м.
|
|
|
Проектные работы
|
67000
|
|
Строительно-монтажные
|
228000
|
|
ГРП заводского изготовления
|
950000
|
|
Обвязка ГРП
|
80000
|
|
Котельная заводского изготовления
|
4580000
|
|
Установка и пусконаладочные работы
|
150000
|
|
8. ИТОГО
|
6149700
|
.4 Расчет срока окупаемости
.4.1 Определение срока окупаемости проекта по укрупненным показателям
Срок окупаемости проекта, ε, год, по переводу котельной на
газовое топливо по укрупненному методу составляет:
ε=К/Э
где К - капитальные затраты на проект, руб;
Э - экономия денежных средств от реализации проекта, руб/год.
Таким образом:
ε=6149700/1829268,75=3,4 года.
.4.2 Расчет срока окупаемости по методу NPV
Расчет срока окупаемости проекта по переводу котельной на газовое топливо
по укрупненным показателям дает, как правило, заниженное значение срока
окупаемости. Более глубокой является оценка эффективности инвестиций на
реализацию проекта, учитывающая также оплаты по банковской кредитной ставке,
инфляцию и т.д.[16]. Результаты расчета по методу NPV приведены в приложении Г.
8. Инструкция по охране труда для слесаря по ремонту и эксплуатации
газового оборудования
В процессе производства работ слесарю по эксплуатации
и ремонту газового оборудования (далее - слесарь) необходимо выполнять
требования инструкций по охране труда для работников соответствующих профессий
и видов работ, а также требования инструкций заводов-изготовителей по
эксплуатации применяемых в процессе работ газовых баллонов, средств защиты,
оснастки, инструмента. К работам по эксплуатации и ремонту газового
оборудования допускаются работники не моложе 18 лет, не имеющие медицинских
противопоказаний, и прошедшие:
обучение по охране труда, безопасным методам
выполнения работ и приемам оказания первой помощи при несчастных случаях на
производстве, вводный и первичный инструктаж по охране труда на рабочем месте,
стажировку на рабочем месте и проверку знаний требований охраны труда, безопасных
методов и приемов выполнения работ и имеющий удостоверение на право
производства газоопасных работ.
предварительные и периодические медицинские осмотры.
При передвижении по территории и производственным
помещениям организации, при выполнении работ в условиях уличного движения и при
использовании переносных лестниц, стремянок следует выполнять требования,
изложенные в настоящей инструкции и в перечисленных ниже инструкциях:
заводов-изготовителей по эксплуатации применяемых подмостей, грузоподъемных механизмов
и другого оборудования, по противопожарной безопасности, по оказанию
доврачебной помощи при несчастном случае.
Работнику после прохождения первичного инструктажа на
рабочем месте и проверки знаний следует пройти стажировку под наблюдением
мастера или бригадира, после чего оформляется допуск к самостоятельной работе.
Во время нахождения на территории организации, в производственных и бытовых
помещениях, на участках работ и рабочих местах работникам следует соблюдать
режим труда и отдыха, правила внутреннего трудового распорядка, утвержденные
руководством организации. Допуск посторонних лиц, а также употребление спиртных
напитков в указанных местах не допускается. В соответствии с типовыми
отраслевыми нормами бесплатной выдачи специальной одежды, специальной обуви и
других средств индивидуальной защиты слесарю выдаются: костюм хлопчатобумажный,
сапоги резиновые, рукавицы комбинированные, противогаз до износа, пояс
предохранительный - дежурный.
На наружных работах зимой дополнительно: куртка на
утепляющей прокладке - по климатическим поясам, брюки на утепляющей прокладке -
по климатическим поясам, валенки - по климатическим поясам; галоши на валенки.
Слесарю необходимо знать устройство и принципы действия оборудования,
установленного в газораспределительных пунктах (ГРП) и на других объектах.
В случае обнаружения неисправного оборудования,
приспособлений, оснастки, инструмента, других нарушений требований охраны
труда, которые не могут быть устранены собственными силами, и возникновения
угрозы здоровью, личной или коллективной безопасности, работнику следует
сообщить об этом непосредственному руководителю или работодателю. Не приступать
к работе до устранения выявленных нарушений.
Если работник стал очевидцем несчастного случая, ему
следует прекратить работу, вывести или вынести пострадавшего из опасной зоны,
оказать пострадавшему первую доврачебную помощь, вызвать врача, помочь
организовать доставку пострадавшего в ближайшее медицинское учреждение,
сообщить руководству организации. При расследовании обстоятельств и причин
несчастного случая работнику следует сообщить комиссии известные ему сведения о
происшедшем несчастном случае. Если несчастный случай произошел с самим
работником, ему следует прекратить работу и, по возможности, обратиться в
медицинское учреждение, сообщить о случившемся руководству организации или
попросить сделать это кого-либо из окружающих. Работник, виновный в нарушении
инструкций по охране труда, несет ответственность в порядке, установленном
действующим законодательством.
Слесарю необходимо ознакомиться с технологическим
процессом предстоящих работ, получить инструктаж в установленном порядке,
расписаться в наряде-допуске на выполнение газоопасных работ.
Надеть и тщательно заправить спецодежду, подготовить к
использованию другие средства индивидуальной защиты.
До начала и после окончания работ, а также во время
производства ремонтных работ необходимо производить анализ проб воздуха, взятых
из ГРП (ГРУ) на наличие газа.
Подготовить рабочее место, убрать ненужные предметы и
материалы, освободить проходы.
Перед началом работ слесарю необходимо проверить:
наличие и исправность противогаза, наличие в ГРП
естественной вентиляции с не менее чем трехкратным обменом воздуха, легко
доступной для осмотра и производства работ по ремонту оборудования,
наличие паспортов заводов-изготовителей на регуляторы
давления и предохранительно-запорные клапаны;
наличие пломбы установленного образца у
контрольно-измерительных приборов;
наличие в помещении ГРП продувочных и сбросных
трубопроводов, которые должны быть выведены в места, обеспечивающие безопасные
условия для рассеивания газа, но не менее чем на 1 м выше карниза здания.
Продувочные и сбросные трубопроводы должны иметь минимальное число поворотов,
на концах трубопроводов должны быть установлены устройства, исключающие
попадание в трубопроводы атмосферных осадков;
состояние электроосветительного оборудования,
изготовленного во взрывобезопасном исполнении;
наличие и исправность инструмента, необходимого для
выполнения работ. Не допускается использование инструмента, приспособлений,
оборудования, обращению с которыми слесарь не обучен;
наличие свободного доступа и прохода к
противопожарному инвентарю, огнетушителям, гидрантам;
наличие в помещении ГРП и на других объектах, где
установлено газовое оборудование, вывешенных схем устройства ГРП с подробным
обозначением всех узлов и с указанием параметров настройки регуляторов
давления, предохранительного запорного и сбросного клапанов;
наличие с наружной стороны помещения ГРП на видном
месте предупредительных знаков или предупредительных надписей «Огнеопасно».
Слесарю необходимо работать в специальной одежде и в
случае необходимости использовать другие средства индивидуальной защиты.
Во время производства работ в помещении ГРП необходимо
обеспечить непрерывный контроль работы с улицы через открытую дверь с целью
недопущения к месту выполняемой работы посторонних лиц и готовности оказания
доврачебной помощи пострадавшим при несчастном случае.
При производстве работ в ГРП необходимо применять
омедненный инструмент, исключающий искрообразование. В тех случаях, когда по
характеру работ неизбежно применение стального инструмента, его необходимо
обильно смазать тавотом, литолом либо солидолом для предотвращения
искрообразования.
Не допускается использование неисправного инструмента,
а также разводных гаечных ключей с применением накладок и пластин. С внутренней
стороны ручек клещей, пассатижей и ножниц по металлу следует установить упор,
предупреждающий травмирование пальцев рук.
Во время разборки газового оборудования отключающие
устройства на линии редуцирования необходимо перевести в закрытое положение, а
на сбросных трубопроводах - в открытое положение. На границах отключенного
участка после отключающих устройств необходимо устанавливать заглушки,
соответствующие максимальному давлению газа в сети.
Предохранять от загрязнения и механических повреждений
газовое оборудование.
Не применять дополнительные рычаги (усилители) при
закрывании и открывании вентилей газовой аппаратуры.
Запрещается производить подтяжку болтов в крышках
регуляторов РДС при рабочем состоянии регулятора.
Корпус фильтра после выемки фильтрующей кассеты
следует тщательно очистить. Разборку и очистку фильтрующей кассеты во избежание
воспламенения следует производить вне помещения в местах, удаленных от
легковоспламеняющихся веществ и материалов на расстоянии не менее 5 м.
Запрещается производить набивку сальников в задвижках
среднего и высокого давления, находящихся под давлением. В случае необходимости
выполнение указанных работ производить после получения разрешения на снижение
давления и оформления наряда-допуска на выполнение газоопасных работ.
В помещении ГРП проведение сварочных и других огневых
работ допускается в исключительных случаях при наличии плана производства
работ, утвержденного главным инженером организации и обязательном принятии мер,
обеспечивающих безопасные условия труда работников.
При обнаружении загазованности в помещении ГРП работы
необходимо немедленно прекратить, проветрить помещение, проверить с помощью
мыльной эмульсии все соединения трубопроводов и при обнаружении неисправности
устранить утечку газа.
При невозможности устранить обнаруженную неисправность
слесарю необходимо немедленно прекратить работу, сообщить об этом в аварийную
службу и непосредственному руководителю, оставаться на месте (если это
возможно) до прибытия бригады для выполнения аварийно-восстановительных работ
(АВР).
При совместной работе бригады, обслуживающей ГРП , и
бригады АВР ответственным за выполнение работ является мастер АВР.
Контрольно-измерительные приборы, установленные ГРП ,
должны иметь клеймо (пломбу), подтверждающее их пригодность к эксплуатации и
соответствие требованиям нормативных актов.
Работы по обслуживанию и ремонту электрооборудования в
помещении ГРП выполняются электротехническим персоналом при обесточенном
оборудовании и в дневное время. В случае неисправности или отсутствия
электроосвещения в помещении ГРП разрешается применение переносных
аккумуляторных фонарей во взрывобезопасном исполнении.
Использование технических жидкостей, предназначенных
для чистки и протирки оборудования и приборов, не по назначению запрещается.
Производить ремонт газового оборудования (плит,
водонагревателей и др.) только после отключения от газопроводов( при этом на
газопроводах, подводках должны быть установлены заглушки), допускается разборку
и смазку кранов ВДГО на газопроводах диаметром до 50 мм осуществлять без их
отключения при давлении газа не выше 120 мм водяного столба.
Выполнять очистку резьбовых соединений от старой
краски пеньковой подмотки при замене кранов, муфт и т.д. с помощью
неметаллических или искровзрывобезопасных щеток и скребков.
Производить разборку арматуры, резьбовых, и фланцевых
соединений газопроводов, работающих на сжиженном газе после продувки их
воздухом или инертным газом, при этом: окончание продувки определять с помощью
газоанализатора (остаточное содержание газа в продувочном воздухе не должно
превышать 1/5 нижнего предела взрываемости газа); выпуск газовоздушной смеси
осуществлять в местах, где исключена возможность ее попадания в здание, а также
воспламенения от какого-либо источника огня.
Постоянно следить за возможной утечкой газа и
определять её по запаху, звуку вытекающего газа или путем смачивания мыльным
раствором, в который зимой для предохранения от замерзания добавляется спирт.
Во время технического обслуживания и эксплуатации
водонагревательного оборудования в случае погасания пламени горелки необходимо
выполнить следующие операции:
перекрыть подачу газа;
проветрить помещение;
проверить исправность вытяжной вентиляции.
При розжиге горелок водонагревательного оборудования
во избежание ожогов необходимо быть осторожным и находиться на безопасном
расстоянии от окошка водонагревательного оборудования.
При установке шкафных регуляторных пунктов (ШРП) на
стене здания расстояние от шкафа до окна, двери или других проемов по
горизонтали должно быть:
не менее 3 м при давлении газа на входе до 0,3 МПа (3
кгс/см2);
не менее 5 м при давлении газа на входе свыше 0,3 МПа
(3 кгс/см2) до 0,6 МПа (6 кгс/см2). При этом расстояние по вертикали от ШРП до
оконных проемов должно быть не менее 5 м.
Установка арматуры, оборудования, а также устройство
фланцевых и резьбовых соединений в каналах не допускается.
Оборудование, размещенное на высоте более 5 м, следует
обслуживать с площадок, оснащенных лестницами с перилами.
Хранение горючих, легковоспламеняющихся и обтирочных
материалов, баллонов с газами и посторонних предметов в помещении ГРП и пристройках
к ним запрещается.
При следовании от объекта к объекту слесарю необходимо
соблюдать Правила дорожного движения.
Обслуживание ГРП и расположенного в них оборудования
необходимо осуществлять бригадой в составе не менее двух человек, иметь при
себе шланговый или изолирующий противогаз. При этом один из рабочих должен
оставаться снаружи и наблюдать за вошедшим в помещение. Помещение должно быть
проветрено, при сильном запахе входить в помещение только в шланговым или
изолирующем противогазе.
Необходимо соблюдать следующие сроки выполнения
мероприятий:
осмотр технического состояния оборудования
производится по графику, утвержденному руководством организации;
проверка параметров срабатывания предохранительных
запорных и сбросных клапанов производится не реже одного раза в два месяца, а
также по окончании ремонта оборудования;
техническое обслуживание производится не реже одного
раза в шесть месяцев;
текущий ремонт следует производить не реже одного раза
в двенадцать месяцев, если иные сроки не установлены заводом - изготовителем
оборудования;
капитальный ремонт следует производить при замене
оборудования, средств измерений, отопления, освещения и восстановления
строительных конструкций здания.
Курить на территории организации разрешается только в
специально отведенных местах.
При возникновении аварийной ситуации на обслуживаемых
газовых сетях и оборудовании слесарь обязан:
Если в подвалах зданий обнаружен газ, действовать
согласно «Плана локализации и ликвидации возможных аварий», немедленно
организовать проветривание подвалов и сообщить в АДС.
До приезда аварийной бригады во главе с мастером:
проветрить газоанализатором наличие газа в воздухе
других помещений и при необходимости организовать их проветривание;
предупредить людей, находящихся в здании, о недопустимости
пользования открытым огнем, курения, включения и выключения электроприборов;
установить наблюдение за изменением концентрацией газа
в подвале;
по прибытии аварийной бригады подробно доложить
обстановку руководителю бригады;
При аварийном состоянии газопровода, арматуры или
приборов которые невозможно устранить немедленно необходимо отключить
неисправные технические устройства от сети газоснабжения.
Прекратить работу при всех замеченных неисправностях
применяемых инструментов, приспособлений, приборов, СИЗ и доложить руководителю
работ.
При внезапном отключении электроэнергии, возникновении
постороннего шума при эксплуатации газового оборудования прекратить выполнение
работ, остановить работу оборудования, вывесить плакат «Не включать!» и
сообщить об этом непосредственному руководителю.
До полного устранения неисправностей не приступать к
работе.
При обнаружении пожара или загорания немедленно
прекратить работу, перекрыть подачу газа, отключить электроустановки, сообщить
о пожаре в пожарную охрану и приступить к тушению очага возгорания имеющимися
средствами пожаротушения.
При загорании электродвигателей, электрических кабелей
не допускается тушение пламени водой. При этом следует отключить поврежденную
электроустановку, после чего приступить к ее тушению с применением
огнетушителей.
Если произошел несчастный случай, очевидцем которого
оказался слесарь, ему следует немедленно вывести или вынести пострадавшего из
опасной зоны, сообщить о случившемся руководству организации, а пострадавшему
оказать первую помощь, вызвать врача, помочь организовать доставку в ближайшее
медицинское учреждение.
Если несчастный случай произошел с самим слесарем, ему
следует прекратить работу и, по возможности, обратиться в медицинское
учреждение, сообщить о случившемся руководству организации или попросить
сделать это кого-либо из окружающих.
Каждому работнику необходимо уметь оказывать первую
помощь пострадавшему:
При ушибах обеспечить полный покой, положить холод на
ушибленное место; при ушибе живота не давать пострадавшему пить.
При кровотечении приподнять конечность, наложить давящую повязку, жгут;
летом жгут оставляют на 1,5 часа, а зимой - на 1 час.
При переломе наложить шину.
При термических и электрических ожогах обожженное
место закрыть стерильной повязкой; во избежание заражения нельзя касаться
руками обожженных участков кожи и смазывать их мазями, жирами и т. д.
При попадании кислоты или щелочи на открытые участки
тела немедленно промыть их нейтрализующим раствором, а затем холодной водой с
мылом; при попадании щелочи - раствором борной кислоты.
При попадании кислоты и щелочи в глаза немедленно
промыть их нейтрализующим раствором и обратиться в здравпункт или к врачу.
При всех отравлениях немедленно вынести или вывести
пострадавшего из зоны отравления, расстегнуть одежду, стесняющую дыхание,
обеспечить приток свежего воздуха, уложить его, приподнять ноги, укрыть
потеплее, дать понюхать нашатырный спирт и немедленно транспортировать
пострадавшего в лечебное учреждение.
При поражении электрическим током пострадавшего освободить
от действия тока, при необходимости провести искусственное дыхание или закрытый
массаж сердца.
Перевозить пострадавшего можно только при
удовлетворительном дыхании и устойчивом пульсе.
Перед остановкой оборудования предварительно
прекратить подачу газа, убедиться в исправности запорных устройств.
Проветрить помещение, в котором проводилась работа и
проветрить с помощью газоанализатора состояние воздушной среды на отсутствие
газов.
Привести в порядок рабочее место, убрать
использованную ветошь, материалы и другой мусор.
Собрать инструмент, приспособления и сложить их в
специально отведенное место (шкаф, ящик и т. п.).
Привести в порядок средства индивидуальной защиты и
убрать их в отведенное для хранения место.
Сообщить непосредственному руководителю о замеченных
неисправностях оборудования, вентиляции и о принятых мерах по их устранению.
Тщательно вымыть руки и лицо или принять душ.
Заключение
При выполнении дипломного проекта с помощью обработки исходных данных и
необходимых расчетов получены следующие результаты:
. Выполнен интернет-обзор по теме: «Применение средств малой
теплоэнергетики для повышения эффективности систем теплоснабжения.
. Произведен анализ и расчет основных элементов системы
газоснабжения поселка Спас-Ямщики Междуреченского района Вологодской области.
. Выполнен гидравлический расчет газораспределительной сети
среднего и низкого давления.
. Произведен подбор оборудования ГРП.
. Выполнен раздел по экологии и охране окружающей среды.
. Выполнен раздел по безопасности жизнедеятельности слесаря по
ремонту и обслуживанию газового оборудования.
. Выполнен раздел по инженерно-геологическим изысканиям.
. Выполнена технико-экономическая оценка инвестиций при замене
котельной, работающей на газовом топливе
. Графическая часть проекта газоснабжения села Спас-Ямщики
выполнена на 15 листа формата А1, А3.
. Подготовлена презентация по дипломной работе, в которой
приведены ее основные разделы.
Все разделы дипломной работы выполнены на компьютере.
Список использованных источников
1. СП
131.13330.2012. Свод правил. Строительная климатология: актуализированная
редакция СНиП 23-02-99*: утв. Минрегионом России от 30.06.2012 №275. - Введ.
01.01.2013. - Москва: ФАУ «ФЦС», 2011. - 70 с.
. СП
50.13330.2012. Свод правил. Тепловая защита зданий: актуализированная редакция
СНиП 23-02-2003: утв. Минрегионом России от 30.06.2012 №265. - Введ.
01.01.2012. - Москва: ФАУ «ФЦС», 2012. - 96 с.
3. Сибикин,
Ю.Д. Отопление, вентиляция и кондиционирование воздуха: учеб. пособие / Ю.Д.
Сибикин. - 5-е изд., стер. - Москва: Academia, 2008. - 303 c.
4. Свод
правил по проектированию и строительству: Проектирование тепловой защиты
зданий: СП 23-101-2004: введ. 01.06.04. - Москва: ФГУП ЦНС, 2004. - 132 с.
. СП
60.13330.2012. Свод правил. Отопление, вентиляция и кондиционирование воздуха:
актуализированная редакция СНиП 41-01-2003: утв. Минрегионом России от
30.06.2012 №279. - Введ. 01.01.2013. - Москва: ФАУ «ФЦС», 2012. - 76 с.
. СП
20.13330.2011. Свод правил. Нагрузки и воздействия: актуализированная редакция
СНиП 2.01.07-85*: утв. Минрегионом РФ от 27.12.2010 № 787. - Введ. 20.05.2011.
- Москва: 2010. - 82 с.
. Внутренние
санитарно-технические устройства. Отопление: справочник / В.Н. Богословский,
Б.А. Крупнов, А.Н. Крупнов [и др.]; под ред. И.Г. Староверова и Ю.И. Шиллера. -
В 3 ч. - Ч. 1. - Москва: Стройиздат, 1990. - 344 с.
.
Теплоснабжение и вентиляция: справочник / Р.В.Щекин, С.М. Кореневский, Ф.И.
Скороходько [и др.]. - Киев: Будивельник, 1976. - 414 с.
.
Проектирование промышленной вентиляции: справочник / Б.М. Торговников, В.Е.
Табачник, Е.М Ефанов Киев: Будивельник, 1983. - 256 с.
. Стомахина,
Г.И. Отопление, вентиляция и кондиционирование воздуха. Справочное пособие /
Г.И. Стомахина, И.И. Бобровицкий, Е.Г. Малявина [и др.]. - Москва: ПАНТОРИ,
2003. - 275 с.
11. Отопление
и вентиляция жилых и гражданских зданий: справочник / Г.В. Русланов, М.Я.
Розкин, Э.Л. Ямпольский. - Киев: Будивельник, 1983. - 272 с.
12.
Теплоснабжение и вентиляция в гражданском строительстве: справочник Р.В.Щекин,
С.М. Кореневский, Г.Е. Бем [и др.]. - Киев: Будивельник, 1960. - 846 с.
. Вентиляторы
общего и специального назначения: каталог: разработчик и производитель ОАО
«МОВЕН». - Москва, 2003. - 75 с.
14. Ионин,
А.А. Теплоснабжение: учеб. для вузов / А.А. Ионин, Б.М. Хлыбов, В.Н. Братенков
[и др.]; под ред. А.А. Ионина. - Москва: Стройиздат, 1982. - 336 с.
15. Смирнова,
М.В. Теплоснабжение: учеб. пособие / М.В. Смирнова. - Волгоград: Ин-Фолио,
2009. - 320 с.
. Беляев,
А.А. Применение систем инфракрасного отопления - эффективное средство энергосбережения
/ А.А. Беляев, В.В. Маркин // Сантехника, отопление, кондиционирование. - 2002.
- №7. - С. 13 - 17.
.
Строительные нормы и правила: Безопасность труда в строительстве. Часть 1.
Общие требования: СНиП 12-03-2001 / Госстрой России. - Введ. 01.09.01. -
Москва, 2001. - 47 с.
.
Строительные нормы и правила: Безопасность труда в строительстве. Часть 2.
Строительное производство: СНиП 12-04-2002 / Госстрой России. - Введ. 17.09.02.
- Москва, 2002. - 34 с.
19. ГОСТ
21.110-2013. Спецификация оборудования, изделий и материалов. - Взамен ГОСТ
21.110-95. Введ. 01.01.2015. - Москва: Стандартинформ, 2014. 9 с.