Спортивно-развлекательный центр летних видов спорта с аквапарком

  • Вид работы:
    Дипломная (ВКР)
  • Предмет:
    Строительство
  • Язык:
    Русский
    ,
    Формат файла:
    MS Word
    793,77 Кб
  • Опубликовано:
    2017-07-10
Вы можете узнать стоимость помощи в написании студенческой работы.
Помощь в написании работы, которую точно примут!

Спортивно-развлекательный центр летних видов спорта с аквапарком

ВВЕДЕНИЕ

Тема дипломного проектирования - «Спортивно-развлекательный центр летних видов спорта с аквапарком». Данная тема является продуктом эволюции одной из тем дипломных проектов, выданных студентам кафедрой архитектуры и градостроительства, ранее звучавшая как «Плавательный бассейн в составе спортивного комплекса на ул. Конева, г. Вологда». Изменение темы проектирования произошло в ходе анализа нужд населения Вологодской области и города Вологды в целом. Предполагаемая территория под проектирование - участок на улице Конева на пересечение с Окружным шоссе. Ее выбор аргументируется утвержденным проектом планировки нового района города Вологды, анализом инфраструктуры и транспортной доступности. Данный проект будет направлен на популяризацию спорта в Вологде, как профессионального, так и массового, развитие материально-спортивной базы и инфраструктуры физической культуры и спорта, обеспечение Вологодской области местом для проведения областных и всероссийских соревнований по водным видам спорта - плаванье, водное поло, прыжки в воду, синхронное плаванье, а так же развитие туризма и развлекательной инфраструктуры путём строительства аквапарка. Здание будет проектироваться с учётом критериев устойчивого развития (доступность, энергоэффективность, энергопассивность, экологичность, применение альтернативной и возобновляемой энергии, экономическая эффективность…) Для обоснования современного подхода к проектированию и поиска оптимальных решений по устойчивому развитию проведены ряд анализов:

А) по энергоэффективности - анализ солнечной радиации, климата, подземных вод; анализ литературы о использовании возобновляемых и неисчерпаемых ресурсов и энергоэффективных систем обеспечения здания; расчёт количества и стоимости оборудования для обеспечения энергоэффективности; сравнение затрат энергоэффективного здания с его традиционным аналогом.

Б) по доступности среды - анализ нормативов о проектировании безбарьерной среды для людей с ограниченными возможностями; анализ мнений и нужд инвалидов (по научно-популяроному изданию Е. Г. Леонтьевой «Доступная среда глазами инвалида»); анализ средств для социально-бытовой адаптации инвалидов.

В) по конструктивному решению - анализ аналогов зданий с большепролётными конструкциями, применения большепролётных клееных деревянных рам.

Г) по оптимизации потоков посетителей - анализ посещаемости в зависимости от времени суток, дня недели и времени года; анализ траектории движения посетителей с разными целями; анализ нормативов о графиках движения поситителей.

Исследование так же направлено на изучение СНиПов и рекомендаций по проектированию, анализов проектных аналогов, а так же на выявление плюсов и минусов существующих зданий путём поиска отзывов реальных людей для введения поправок к рекомендациям по проектированию.

Конечным продуктом исследования является архитектурная программа и социально-функциональная модель в виде объёмной схемы.

сметный перекрытие кровля планировочный

1. ТЕОРЕТИЧЕСКОЕ ОБОСНОВАНИЕ

1.1 Обоснование выбора темы дипломного проектирования

Тема дипломного проектирования - «Аквацентр в городе Вологде. Энергопассивная архитектура». Проект направлен на решения проблем низкой обеспеченности города спортивной и развлекательной инфраструктурой, отсутствия пригодного места для масштабных спортивно-зрелищных мероприятий и развития туризма в Вологде. По данным Муниципального Образования «Город Вологда» на момент 2020 года городские власти планируют активно развивать массовый и профессиональный спорт, повысить процент населения, занимающихся спортом, построить новые физкультурно-спортивные сооружения, отвечающие современным требованиям. Ссылаясь на постановление Вологодской городской думы от 12 июля 2016 года N 873 «Об утверждении стратегии развития физической культуры и массового спорта на территории муниципального образования «Город Вологда» на период до 2035 года «вологда-город высокой физической культуры», можно утверждать, что целью правительства является увеличение количества жителей, систематически занимающихся спортом в Вологодской области с 32,3% до 40% к моменту 2020 года. Для достижения этой цели планируется создать условия для ведения здорового образа жизни и привлечения людей к массовому и профессиональному спорту путём развития спортивной инфраструктуры. На данный момент обеспеченность области бассейнами составляет всего 12,7%, при этом число жителей, систематически занимающихся спортом постепенно растёт, в основном преобладают занятие физической культурой на платной основе (фитнес-клубы, тренажерные залы), плаванием же занимаются 10,3% от общего числа населения, систематически занимающихся спортом. Сейчас вологжане предпочитают ездить в ближайшие более крупные города, такие как Ярославль и Москва с целью посещения бассейнов и аквапарков, а так же выбирают бассейн в посёлке Майский в качестве места для постоянных тренировок, так как считают, что бассейны в черте города менее комфортабельны по планировке и системе очистки воды.

Для подтверждения актуальности темы дипломного проекта был проведён анализ инфраструктуры района Южный на ул. Конева, инфраструктуры города Вологды (рис 1.1) и Вологодской области в целом. На данный момент инфраструктура района Конева недостаточно развита, преобладает застройка многоквартирными жилыми домами. Выяснилось, что ближайшие бассейны находятся на расстоянии 4,5 -5,5км от района Южный, более того, ни в Вологде, ни в городах Вологодской области нет ни одного бассейна длинной 50 метров, а так же бассейнов предназначенных для спортивных соревнований по плаванью, прыжкам в воду и водному поло.

Рисунок 1.1 - Анализ инфраструктуры города Вологды

Кроме того, существует проблема отсутствия аквапарка в Вологде, который планировали построить в данном районе. Ближайшие аквапарки находятся в г. Череповец (Аквапарк «Радужный»), в г. Ярославль (Аквапарк «Тропический остров») и идёт строительство аквапарка в г.Киров. В России аквапарки чаще всего строятся в административных центрах областей, в крупных городах с населением более 1млн.человек и в курортных зонах. Например, в Ростове-на-Дону 7 аквапарков (население 1,1млн.ч), в Нижнем Новгороде 2 аквапарка (население 1,2млн.ч), в городах, аналогичных по размеру Вологде - Норильск (население 177т.ч.), Сургут (население 321т.ч.), Волжский (население 320т.ч), Череповец (население 310т.ч), Курск (население 420т.ч), а также во многих небольших городах, расположенных в южной части России и на побережьях морей, например Анапа (население 73т.ч), Темрюк (население 39т.ч), Ейск (население 85т.ч), Пятигорск (население 144т.ч). Следовательно, наличие аквапарка в относительно небольших городах, как Вологда, вполне уместно, более того, Вологда является административным центром Вологодской области и привлекает своей исторической застройкой большое количество туристов из других городов, а аквапарк может повысить интерес к городу, делая проведение досуга более разнообразным.

1.2 Обоснование выбора территории

Территория, выбранная под проектирование - участок на улице Конева на пересечение с Окружным шоссе (Рисунок 1.2). На участке располагаются конюшни и хлевы, которые на данный момент не используются. Назначение участка - «Для иных видов использования, характерных для населенных пунктов», относится к землям населённых пунктов, по документам используется под временные объекты, имеет кадастровую стоимость 123 671,56 рублей и площадь 5,1 га. В будущем территорию планируют осваивать в целях строительства спортивных сооружений (по генплану утверждённого проекта планировки Южного района города Вологды).

Территория находится на окраене, объект связан с городом через улицу Конева и Окружное шоссе. В ходе освоения территории стоит учитывать находящуюся рядом АЗ (соблюдать разрыв в 50 м), а так же небольшие озёра на участке (ширина вооохранной зоны озера с акваторией менее 0,5кв.км. - 50м). Пруды на территории не имеют ценности для города, но несмотря на запущенное состояние их планируется облагородить, расчистить и оставить на территории в качестве пожарных водоёмов, что позволит прижимать линию застройки к границам водоёма на расстояние до 10 метров.

Рисунок 1.2 - Схема границ водоохранных зон и красных линий

Рисунок 1.3 - Схема направлений основных потоков поситителей

Транспортную инфраструктуру можно считать развитой, так как на территории есть остановки общественного транспорта и участок находится на пути магистральных междугородних трасс (Рисунок 1,6), такое расположение является удобным и доступным для посетителей и спортсменов из других городов. Радиус обслуживания общегородского физкультурно-спортивного центра принимается до 30-минутной транспортной доступности. Спортивно-развлекательный центр может так же выступать в качестве районного спортивного сооружения и предоставлять услуги для жителей города в радиусе обслуживания до 20 - минутной пешеходной доступности. («Рекомендации по проектированию физкультурно-спортивных сооружений социально-гарантированного обслуживания населения»).

1.3 Обоснование современного подхода к проектированию

Такие здания, как бассейны и аквапарки требуют больших финансовых вложений на строительство, оборудование, эксплуатацию и коммунальные платежи. Необдуманные вложения средств инвесторов могут привести к плачевным последствиям - здание может приносить малый доход, работать в убыток или в худшем случае обанкротится и закрыться из-за нерентабельности. Исходя из анализа новостей, найденных в интернете, о закрытиях бассейнов и аквапарков, отзывов и рецензий посетителей, были выявлены основные проблемы. Как оказалось, самой распространённой причиной стали колоссальные затраты на эксплуатацию, которые трудно «потянуть» при низкой посещаемости, здание перестаёт окупаться. Данная проблема порождает ряд других проблем: в аквапарках учащаются несчастные случаи, которые чаще всего происходят из-за экономии на персонале и инвентаре; пожары, случающиеся из-за возгорания лекговоспламеняющихся материалов дешёвых водных горок и предметов интерьера (пластиковых стульев или искусственных растений).

Данная таблица (Рисунок 1.3) приведена из источника в интернете, в ней приведены суммы расходов Московских ФОКов на электроснабжение, отопление.

Рисунок 1.4 - суммы расходов ФОКов на элетроэнергию и отопление в городе Москве

Приведённые в таблице спортивные комплексы соразмерны с комплексами, находящимися в городе Вологде. Исходя из данных, можно предположить, что небольшой районный спорткомплекс может расходовать до 15 миллионов рублей в год на коммунальные услуги.

Большие расходы на эксплуатацию здания может привести к экономической нерентабельности. Экономическая рентабельность является одним из важнейших критериев устойчивого развития, помимо экологичности, экономичности, безопасности, энергоэффективности, физической и социальной доступности среды. Устойчивое развитие является основным вектором развития современной архитектуры. Если учесть все факторы устойчивого развития, можно нейтрализовать ряд проблем. Например, энергоэффективность может привести к снижению расходов на коммунальные услуги.

1.3.1 Энергоэффективность

Энергоэффективность - это эффективное использование энергетических ресурсов, путём использования меньшего количества энергии, её сохранение и аккумуляция, избежание теплопотери.

Исходя из анализа литературы о энергоэффективных зданиях и оборудованию, была выбрана стратегия достижения энергоэффективности и экологичности здания.

Отопление и подогрев воды.

Для отопления больших по площади и высоте помещений оптимальным решением является устройство водяных тёплых полов. Тёплые полы снижают потери тепла через потолок. Уменьшение разности температур между внутренним и наружным воздухом в зоне потолочного перекрытия и снижает расходы на отопление на 60% при высоких потолках.

Для достижения ещё большей эффективности в качестве нагревателя воды для отопления и подогрева воды в бассейнах были выбраны тепловые насосы. Это геотермальные установки, которые для нагрева воды используют энергию земли через скважины. Земля в геотермальных системах является радиатором в летний период или источником тепла в зимний период, при этом являясь неисчерпаемым источником энергии. Коэффициент преобразования тепла теплового насоса равен 4,5 (подведя к машине 1кВт, на выходе получается 4,5кВт тепловой мощности). Тепловой насос не сжигает топливо, поэтому не образуется вредные окислы, практически взрыво - пожаробезопасен, не нагревается. Для расчёта количества установок необходимо вычислить примерный объём воды всех ванн бассейнов и аквапарка, воды для системы отопления. Один тепловой насос стоимостью 3млн.р., может циркулировать 400 куб.м. имеет мощность 90кВт и потребляемую мощность 28кВт. Объём бассейна 25 метров глубиной 1,3м равняется 400 куб.м, объём бассейна 50 метров - примерно 4100 куб.м, объём воды в аквапарке - примерно 2000 куб.м, плюс малый бассейн для обучения плаванью детей и система тёплых полов. ИТОГО: 18 тепловых насосов с запасом могут обеспечить отопление и подогрев воды.

Электроснабжение

Для обеспечения электроэнергией тепловых насосов были выбраны солнечные коллекторы. При расчёте количества солнечных батарей следует учитывать количество тепловых насосов и общее потребление энергии зданием.

Расчёт количества солнечных батарей.

Чтобы рассчитать количество солнечных батарей, была составлена таблица суммарной солнечной радиации за год, вычислены максимальные, средние и минимальные значения в день. Самыми эффективными являются поворотные солнечные батареи, но их установка в случае неэксплуатируемой скатной кровли невозможна, т.к они устанавливаются на плоские поверхности, а плоские перекрытия возможны только в случае относительно небольших пролётов. Оптимальным выбором стали наклонные на 40-45 градусов солнечные батареи, повёрнутые строго на юг (Таблица 1.3.1).

Таблица 1.3.1 - Месячные суммы суммарной солнечной радиации


Расчёты показывают, что для снабжения энергией одного теплового насоса летом достаточно 17 солнечных батарей, а в зимнее время этот показатель намного больше - 233 батарей (в 13 раз больше). Среднее значение вырабатываемой энергии в час в течение года - 902,5 вТ/ч, при таких условиях достаточно использовать 31 солнечную батарею на один тепловой насос, но в зимнее время такого количества будет недостаточно, летом - много. Для решения этой проблемы было принято решение использовать 60 солнечных батарей на один тепловой насос, которые в летние месяцы будут вырабатывать в 3-3,6 раз больше энергии, чем требуется. Излишки энергии можно продавать на электроснабжение жилых домов в районе «Южный», а в месяцы дефицита солнечной радиации (ноябрь, декабрь и январь) покупать электроэнергию на деньги, вырученные в летний период.

Водоснабжение

Водоснабжение традиционных местных бассейнов происходит через общегородские коммуникации и оплачиваются вместе с остальными коммунальными услугами. Такие сооружения, как бассейны и аквапарки, расходуют колоссальные объёмы воды, поэтому несмотря на приемлемые тарифы, суммы расходов на воду для спортивного сооружения, включающего в себя аквапарк, большой универсальный бассейн размерами 50*25 метров и оздоровительный бассейн 25*12 метров могут достигать 625 тысяч рублей в год (на помывку и замену воды), без учёта расходов воды на душевые, санузлы и т.д. Альтернативным способом водоснабжения является бурение артезианских скважин - достаточно популярное явление в Вологодской области. В Вологде бурят скважины на воду не только для частных индивидуальных жилых домов, но и для полива сельскохозяйственных полей и даже водоснабжения бассейна (Бассейн Майского дворца культуры). Ещё один аналог использования артезианской воды для наполнения ванн бассейнов существует на территории Москвы (Бассейн «Атлант»), организация позиционирует воду в бассейне как морскую минеральную воду. В Вологодской области состав подземных вод преимущественно пёстрый по ионному составу с максимальной степенью минерализации равной 3 грамма на килограмм воды, что соответствует степени минерализации лечебно-столовых минеральных питьевых вод (от 1г/л до 10 г/л.). Стоимость бурения артезианских скважин в Вологодской области не превышает 2 т. р. за метр, а глубина залегания подземных артезианских вод находится на отметке в 190 метров вглубь земли, следовательно, бурение скважины и её оборудование будет стоить в пределах 400 т. р., - это меньшая сумма, чем сумма расходов здания на водоснабжение через общегородские коммуникации за год. Срок эксплуатации артезианской скважины - от 50 лет. Пропускная способность одной скважины - 1 литр в секунду.

Энергопассивность

Показателем энергопассивности является сохранение энергии. Для снижения испарения и теплопотерь с зеркала воды в нерабочие часы бассейн стоит накрывать специальной мембраной. Система рекуперации тепла позволяет возвращать тепло, подогревая свежий воздух с улицы тёплым воздухом из помещений, душевых и саун и экономит 80% энергии на отопление. Трёхслойные ограждающие конструкции с утеплителем и многокамерное остекление предотвращают потери тепла во внешнюю среду. Естественное освещение позволяет экономить электричество в дневное время.

Расчёт стоимости оборудования, её сравнение с затратами на эксплуатацию здания, подключённого к городским коммуникациям:

Геотермальные тепловые насосы - 18 шт. * 3 млн. р. = 54 млн. р.

Бурение геотермальных скважин - 50м * 18 шт. * 2 шт. * 2 т. р. = 3,6 млн. р.

Солнечные батареи - 60 шт. * 18 шт. * 24 т. р. = 26 млн. р.

Система рекуперации тепла - 360 000 куб.м. / 700 куб. м. / 5 * 166 т. р. = 17 млн. р.

Бурение артезианской скважины - 400 т. р.

Итого, стоимость основного оборудования для обеспечения энергоэффективности здания = 101 млн. р.

Если учитывать, что расходы на коммунальные услуги при стандартном варианте снабжения здания не будут превышать 15 млн. рублей в год, то сумма, потраченная на энергоэффективное оборудование будет израсходована за 7 лет эксплуатации здания (срок службы теплового насоса - 50 лет, солнечных батарей - от 10 до 25 лет, артезианской скважины - 50 лет, рекуператора - более 10 лет). Следовательно, использование системы обеспечения энергоэффективности здания является наиболее выгодным.

1.3.2 Доступность

Доступная среда - это среда, которая проектируется с момента идеи возникновения объекта и подразумевает обеспечение доступа инвалидов и других маломобильных групп населения к объектам и услугам, а также интеграцию инвалидов в общество и повышение уровня их жизни.

Существуют разные виды физических и сенсорных ограничений и, естественно, совершенно разные потребности в плане приспособления окружающей среды. Значительное изменение инфраструктуры требуется для полноценной жизни людей с серьезным нарушением опорно-двигательного аппарата, зрения и слуха.

Основные зоны объекта, которые должны соответствовать требованиям доступности:

Прилегающая территория

Вход в сооружение

Зоны обслуживания посетителей (стойка администратора, билетная касса, гардероб…)

Пути движения внутри сооружения

Горизонтальные пути движения

Вертикальные пути движения (лифты, пандусы, лестницы и т.д.),

Пути эвакуации

Медпункты

Санитарно-бытовые помещения (санузлы, душевые, раздевальные)

Основные функциональные зоны (зона оказания услуг, зона проведения соревнований, зона зрителей, экспозиция и т.д.)

Вспомогательные функциональные зоны

Для создания безбарьерной среды требуется многообразное оборудование для инвалидов, оснащение инфраструктурных объектов специализированными техническими средствами:

пандусы

электрические подъёмники и лифты;

просторные входнын группы;

широкие двери;

поручни и ограждения;

автостоянки для инвалидов;

специальное сантехническое оборудование;

тактильные средства информации для слабовидящих и незрячих людей;

акустические устройства для оповещения.

1.3.3 Конструкция

Большие по площади помещения спортивных сооружений должны перекрываться особыми большепролётными конструкциями. Самый распространённый вид большепролётной конструкции - металлическая ферма, которая может перекрыть пролёт до 36 метров. Минусы данной конструкции - большая масса, и следовательно большая нагрузка на фундамент, деформация конструкции и плохое сопротивление повышенным и пониженным температурам, относительно небольшая длинна пролёта. В качестве альтернативы наиболее подходящим видом конструкции являются большепролётные клееные деревянные рамы, совмещающие в себе качества, удовлетворяющее всем современным требованиям: продолжительный срок службы, невысокая стоимость, малая собственная масса при высокой прочности, возможность перекрытия больших пролетов (более 100м), экологическая чистота, эстетичность и позитивное восприятие натурального материала, высокая огнестойкость, высокая стойкость к агрессивным средам, высокие теплозащитные свойства и низкая теплопроводность. Деревянные рамы, в отличие от металлических, положительно реагируют на влажный, насыщенный паром воздух, что немаловажно при проектировании бассейнов и аквапарков. Кроме деревянных пролётов в проекте используется вантовое навесное покрытие, плюсами которого являются способность перекрывать большие пролёты (более 150м), высокая прочность, возможность опирания конструкции с одной стороны, провисающая форма уменьшает внутренний объём здания (в отличие от деревянных арок). Сочетание двух этих конструкций позволяет перекрыть здание длиной более 130 метров с минимальным количеством опор (всего 3 ряда).

1.3.4 Оптимизация потоков посетителей

Спортивно-развлекательный центр должен включать в себя множество функций и удовлетворять потребности разной целевой аудитории. Объёмно-планировочная структура здания должна быть рассчитана на разделение потоков приходящих и уходящих посетителей, людей с разными целями. Например, транзит через одну и ту же зону для спортсменов и зрителей недопустим. Для оптимизации потоков были выделены три основные функции здания: спортивная, развлекательная и услуги. Целевая аудитория так же была поделена на 3 группы: спортсмены, зрители и любители. Большое количество посетителей должны без труда ориентироваться и перемещаться в здании, при этом без столкновения встречных потоков людей и образования очереди в местах транзита. Для начала следует рассчитать пропускную способность здания в час и в день, а так же количество раздевалок и душевых.

Расчёт пропускной способности спортивно-развлекательного центра:

Плавательный бассейн 50 метров - 10 дорожек по 10 человек = 100 человек в час. Плавательный бассейн 25 метров - 6 дорожек по 8 человек - 48 человек в час. Детский бассейн - 12 человек в час. Батутный центр - 80 человек в час. Аквапарк - 300 человек в час.

Кроме этого, стоит учесть посетителей кафе, салона красоты, массажных комнат, хостела, детской комнаты - приблизительно 100-150 человек в час.

Для зрелищных мероприятий подразумеваются два помещения: большой универсальный бассейн 50 метром, который должен быть оборудован трибунами для зрителей, вместимостью 500 человек.

Расчёт пропускной способности показал, что спортивно-развлекательный комплекс может вмещать до 600 посетителей и 500 зрителей каждый час.

Сценарий движения посетителей, основной целью которых является спорт и развлечения, имеет одинаковый фрагмент алгоритма перемещения в здании: вход/выход - вестибюль - зона для снятия/одевания верхней одежды и обуви - гардероб - регистратура - касса. Далее пути посетителей расходятся в распределительной зоне - холле. В обратную сторону пути посетителей сходятся только в фрагменте алгоритма: гардероб - зона для снятия/одевания верхней одежды и обуви - вестибюль - вход/выход. Таким образом, людям, выходящим из здания нет нужды проходить через кассовую зону и регистратуру, но они, как и все остальные, обязательно должны пройти арочный металлодетектор. Люди, посещающие спортивно-развлекательный центр с целью получения услуг могут миновать гардеробную и кассовые зоны, а распределительной зоной уже будет являться вестибюль. Анализ алгоритма передвижения посетителей с разными целями показал, что есть необходимость в двух распределительных зонах, а транзит уходящих людей не стоит пересекать с кассовой зоной, но он должен соприкасаться с гардеробом и быть минимальным по длине.

После попадания в распределительную зону посетитель, основной целью которого является спорт и развлечения, попадает в раздевалки. Количество раздевалок рассчитывается с учётом потоков приходящих и уходящих людей - 200% от общего числа посетителей. Пиковая нагрузка в раздевалках происходит при смене сеансов, за 15 минут до и 15 минут после сеанса. В этот промежуток времени в раздевалках находятся два встречных потока людей, что приводит к неудобству. Решение данной проблемы - индивидуальные ячейки для переодевания с общими камерами хранения. Вход и раздевалки для спортсменов должны быть обособленными, так как во время соревнований важно избежать их встречу с посетителями и зрителями.

Для выяснения наиболее нагруженных промежутков времени, был проведен анализ пиковых нагрузок посетителей на спортивные учреждения города Вологды.

Данные Гугла показывают, что самое проблемные промежутки времени по будням - с 16:00 до 21:00; в субботу - распределена более равномерно и пик приходится на 18 часов вечера; в воскресение - более равномерна, но выделяются два пика - с 12:00 до 16:00 и с 20:00 до 21:00.

При рассмотрении более длительных промежутков времени и фактора сезонности, можно утверждать, что в летнее время большое количество потенциальных посетителей плавают в естественных водоёмах, или уезжают из города на курорты и дачи, поэтому многие бассейны в летний период закрываются на профилактику.


2. АРХИТЕКТУРНОЕ РЕШЕНИЕ

.1 Градостроительное решение

.1.1 Взаимосвязь с контекстом

Общая площадь участка спортивно -зрелищного центра составляет 5,1 га. Доступ на территорию будет осуществляться на транспорте следующих категорий:

Личный автотранспорт. На территории объекта запроектирована парковочная зона на 420 машинных мест. Въезд на парковку будет осуществляться с улицы Конева по параллельному проезду.

Общественный транспорт. На улице Конева расположена автобусная остановка с северной стороны участка. Расстояние от автобусной остановки до входа в здание не превышает 150 метров. В качестве дополнения со стороны Осановской улицы размещена автостоянка для иногородних автобусов.

Вело транспорт. На территории аквацентра предусмотрено размещение зон хранения велосипедов и сети велосипедных дорожек.

Вход в здание аквацентра возможен с двух общественных входных групп, основная находится с торца здания на улице Конева и обращена в сторону Окружного шоссе. Входная группа окружена общественными пространствами и площадями для массового сбора людей. Вторая входная группа расположена со стороны Осановской улицы и предназначена для входа спортсменов и тренерского состава. Эвакуация будет происходить через 5 основных выходов с лесничными клетками и 2 дополнительных выхода из помещения аквапарка и бассейна.

Главный фасад обращён в сторону улицы Конева, плоскость фасада повёрнута строго на восток. Фасад представляет собой ряд повёрнутых торцами на юго-восток отдельно стоящих стен, соединённых витражным остеклением и несущей стоечно-ригельной системой. Витражи обращены на юго-восток для увеличения площади полезного остекления и проникновению света. Зона вестибюля и холла остеклена сплошными алюминиевыми витражами с несущей стоечно-ригельной системой.

2.1.2 Разработка территории

Здание расположено на расстоянии 50 метров от улицы Конева для создания парковой зоны с зелёными насаждениями, защищающих здание от пыли и шупа магистральной улицы. В парковой зоне предусмотрены транзитные и прогулочные пешеходные дорожки, освещение, зоны отдыха, детские площадки, газоны. Автостоянка располагается со стороны Окружного шоссе, проезды автостоянки имеют одностороннее движение и не пересекаются с пешеходными путями от остановки и пешеходного перехода к входу здания. Расстояние от крайнего машинного места до входа в здание не превышает 130 метров, между рядами парковочных мест расположены тротуары. Аквацентр состоит из трёх основных блоков: общественный многофункциональный блок; бассейны; аквапарк.

2.2 Архитектурно-планировочное решение

.2.1 Функциональная модель объекта

Аквацентр является многофункциональным объетом и включает в себя 3 основные функции: спорт, развлечения и услуги. К спортивной функции относятся бассейны 50, 25 и 12 метров. Бассейн 50 метров предназначен для проведения соревнований по плаванию, водному поло, прыжкам в воду и синхронному плаванию, тренировок профессиональных и начинающих спортсменов, оздоровительного плавания для любителей. Бассейн 25 метров предназначен для тренировок начинающих спортсменов и детей, оздоровительного плавания любителей. Бассейн 12 метров предназначен для обучению плаванию детей. Все бассейны оборудованы подъёмниками или спусками в воду для инвалидов. К развлекательной функции относятся аквапарк, батутный центр и трибуны для зрителей. Услуги включают в себя кафе общественной зоне, кафе в аквапарке, хостел для иногородних спортсменов, салон красоты, магазин спорттоваров и островные магазины.

На первом этаже здания располагаются: вестибюль с кассовой зоной; холл в качестве распределительной зоны; гардероб; магазины; кафе; салон красоты; общественные раздевалки с индивидуальными ячейками для переодевания; аквапарк; бассейны; вестибюль, холл, гардероб и раздевалки для спортсменов, помещения для тренеров и инструкторов, медкабинеты, сауны, прессцентр и помещения для персонала. На втором этаже располагаются гардероб и площадка для массовых скоплений зрителей; трибуны; батутный центр; второй уровень пресс-центра, кафе аквапарка; административные помещения. На третьем этаже - хостел для иногородних спортсменов и тренеров. Ниже уровня первого этажа располагаются технические помещения, обеспечивающие бассейн, аквапарк и здание в целом.

Общественные раздевалки с индивидуальными ячейками предполагают переодевание и принятие душа в отдельных кабинках, после чего посетители оставляют личные вещи в камере хранения. Раздевалки поделены на 5 основных зон: сухая зона - включает в себя сушилки для волос и одежды, санузлы; зона для инвалидов - включат в себя блок ячеек, оборудованных для удобного использования инвалидами с встроенной функцией хранения личных вещей; семейная зона - включает в себя блок больших ячеек для переодевания нескольких человек одновременно (семьи, матери с детьми); зона индивидуальных ячеек; зона хранения личных вещей.

Большой бассейн длиной 50 метров и шириной 25 метров разделен на 10 дорожек по 2,5 метров и имеет многоуровневое дно, начиная с отметки -2 метра и заканчивая - 6 метров. Бассейн для оздоровительного плавания длинной 25 метров и шириной 12,5 метров и имеет среднюю глубину 1,3 метра и 5 дорожек шириной 2,5 метров для спортивного плавания, или 6 дорожек по 2 метра для оздоровительного плавания в зависимости от загруженности бассейна. Дестский бассейн имеет среднюю глубину 0,7 метра. Трибуны для зрителей размещены вдоль большого спортивного бассейна на уровне второго этажа, вход для зрителей размещён в общей входной группе с кассовым вестибюлем и рамкой металлодетектора, но гардероб для зрителей отделён от общего и находится на втором этаже. Попадание на второй этаж происходит по травалаторам, трибуны оборудованы для посещения инвалидами и имеют площадку для размещения инвалидов.

Аквапарк имеет несколько уровней, на первом уровне располагаются 4 ванны разной глубины, разделённые по возрастной категории. 4 верхних уровня представляют собой протяжённые балконы шириной 6 метров, размещённые по двум сторонам аквапарка. С этих уровней будет осуществляться спуск по водным горкам, перепад между уровнями составляет 4 метра. Второй уровень - «Детский», имеет высоту 4 метра над плоскостью базового уровня, предназначен для катания детей ростом до 120 см. Так же на втором уровне размещено кафе для посетителей аквапарка. Третий уровень - «Семейный», высота над базовым уровнем 8 метров, предназначен для катания с широких горок группой людей, а так же детей ростом до 120 см в сопровождении взрослых. Четвертый уровень - «Скоростной», высота над базовым уровнем 12 метров, предназначен для катания взрослых людей с горок с большим уклоном, таких как «Камикадзе» и «Фантом». Пятый уровень - «Экстремальный», высота надо базовым уровнем 16 метров, предназначен для взрослых людей катания с высотных горок.

2.2.2 Режимы использования объекта

Сценарии работы аквацентра могут меняться, в зависимости от ситуации. Во время проведения соревнований вход для посетителей большого бассейна будет перекрываться, при этом посещение аквапарка и других бассейнов будет происходит в том же режиме. Вход и раздевалки для спортсменов размещены отдельно, со стороны Осановской улицы для разделения потоков зрителей, спортсменов и посетителей. В обычные тренировочные дни, когда трибуны не используются, площадка для скопления людей перед трибунами будет использоваться в качестве многофункциональной площади для проведения мероприятий, ярмарок, лекций.

2.2.3 Объёмно-пространственное решение

Основными факторами, влияющими на формообразование являются положение солнца, дорог, водоёмов, красных линий, озеленения. Линия застройки проходит вдоль улицы Конева на расстоянии 50 метров от проезжей части для размещения защитной зелёной полосы. Объём здания повёрнут строго на юг и разделён на 3 основных блока, два из которых перекрыты большепролётными деревянными конструкциями. Первый блок перекрыт большепролетным вантовым висячим покрытием и остеклен сплошными алюминиевыми витражами. Над главным входом в здание расположен широкий консольный вынос в качестве козырька, защищающего от осадков, а так же от избыточного освещения и перегрева летом. Остальные два блока наоборот, максимально открыты по отношению к солнцу, так как их функциональное наполнение не подразумевает опасность перегрева, комфортная температура воздуха для бассейнов и аквапарков колеблется в районе +30 градусов Цельсия. Очертания конструкций над двумя другими блоками построены таким образом, чтобы плоскость, обращённая на юг была перпендикулярна направлению солнечных лучей. Таким образом увеличивается площадь полезного остекления и площадь под солнечные батареи. Восточные стены здания имеют ребристую структуру, чередующие сплошное вертикальное остекление и железобетонные стены, плоскость остекления обращена на юго-восток. Блоки здания смещены относительно друг дуга для увеличения площади остекления и формаирования входных зон, а так же для подчинения линии вдоль улицы Конева.

Территория застройки находится на окраине города и окружена преимущественно жилой высотной застройкой. Окружающие здания не затеняют участок и само здание. Для обеспечения полноценной инфраструктурой Южного района здание имеет дополнительные функции, работающие на жилые районы, парковую зону, зоны рекреации и большую по площади парковку.

Главная входная группа и входная группа для спортсменов связана тротуарами с автобусной остановкой и парковкой. Перед главной входной группой организована площадь для массовых скоплений людей во время проведения зрелищных мероприятий.

3. ИНЖЕНЕРНО-ТЕХНИЧЕСКОЕ РЕШЕНИЕ

 

.1 Экономическая часть

 

.1.1 Теоретические основы ценообразования на продукцию инвестиционно - строительного комплекса

Ценообразование - это процесс, состоящий из формирования цены на товары и услуги, которая обеспечит их ценовую конкурентоспособность в условиях рынка. Их стоимость определяется на основе динамики ценообразующих факторов и нормативов. Ценообразование является определяющей составляющей маркетинга любой организации. Коммерческие результаты фирмы определяются успешностью и грамотностью построения её ценообразования, продуманностью ценовой политики.

Ключевые догмы ценообразования: сомасштабность цен рынка необходимым общественным издержкам труда, динамичная реакция системы цен на колебание факторов ценообразования, условий производства и рынка, гарантия рентабельности с учетом пропорций потребительских свойств.

Ценообразование учитывает: прогресс науки и техники, эффективные производственные мощности, понижение материалоемкости, увеличение трудовой продуктивности, хорошее качество.

Факторы, влияющие на формирование цены: траты, расходы, степень рентабельности и стандарты производства, рыночное равновесие, касающееся конкретного товара, конкуренция, ценовая политика фирмы.

Посредством ценообразования образуются цены на продукцию строительного рынка, с учетом таких технико-экономических особенностей:

в установлении цены фигурируют основные стороны - заказчик, проектировщик, подрядчик, а также лица, заинтересованные в строительстве.

структурировать основные строительные объекты можно по размерам, площадям, этажности, конструкциям и их материалам.

в основном цены характеризуют отдельные строительные и монтажные работы или уже изготовленные конструктивные элементы, но не на сформированный объект или сооружение.

строительные технологии и оснащение, которое используют при монтажных и строительных работах, влияют на их цену.

на основе усреднённых нормативных расценок, которые учитывают существующий уровень цен на строительную продукцию, величину заработной платы и т.д, определяют стоимость объекта проектирования на начальных этапах.

стоимость работ обуславливается инфляцией и длительностью производственного цикла и инвестиционной итерации.

надобность регулярно отслеживать изменение цены на материалы для строительства и трудовые ресурсы, и понимать, каким образом их трансформация отражается на себестоимости продукции строительного рынка.

сметная стоимость строительной продукции связана с условиями строительства на данной территории, это зависит от ограниченности использования строительной продукции на территориях, на которых её непосредственно не производят.

во время проектирования и строительства сооружения применяется широкий ассортимент материалов, конструкций, оборудования, технического оснащения, рабочих сил.

Сметная стоимость строительства архитектурных объектов - совокупность денежных расурсов, требуемых для его реализации согласно с выбранными материалами. Структура сметной стоимости: затраты на постройку зданий и сооружений объек­та строительства, технологическое оснащение, возведение временных построек, устройство непостоянных и регулярных путей подъезда и линий электропередачи, регулярных и временных городков для строителей

Литературная основа ценообразования в строительстве - Методика определения стоимости строительной продукции на территории Российской Федерации - МДС 81-32,2004. В его составе есть:

основные положения, характеризующие систему строительного ценообразования и сметного нормирования

методики оценки стоимости строительства

метода составления строительной сметной документации

метода определения стоимости строительства в перечне предпроектных разработок

Базисом установки сметной стоимости строительства являются сметные нормативы, которые включают в себя совокупность сметных норм, зафиксированных в сборниках цен и расценок, а также необходимые требования и правила.

Сметные нормативы делятся на различные типы: государственные сметные нормативы - ГСН; отраслевые сметные нормативы - ОСН; территориальные сметные нормативы - ТСН; фирменные сметные нормативы - ФСН; индивидуальные сметные нормативы - ИСН.

На ряду с тем сметные нормативы могут быть элементные и укрупненные.

Базой установки размера финансирования строительства, капитальных вложений, для установления договорных цен на строительную продукцию, расчетов за сделанные подрядные работы, выплаты расходов на покупку оборудования и доставке его на строительную площадку, а также на компенсацию иных затрат за счет средств, предусмотренных сводным сметным расчетом - является сметная стоимость. Ещё на основе сметной документации выполняется учет и отчетность, хозяйственный расчет и оценка деятельности строительно-монтажных (ремонтно-строительных) организаций и заказчиков.

Формула для расчета сметной стоимости строительства (3.1):

Ссм = ПЗ + НР + СП                                                                     (3.1)

где ПЗ - прямые затраты; НР - накладные расходы; СП - сметная прибыль.

Сетная документация, для расчета сметной стоимости строительства архитектурных объектов формируется:

из локальных смет; объектных смет; объектных сметных расчетов; сметных расчетов на отдельные виды затрат; сводных сметных расчетов стоимости строительства; сводок затрат и др.

Первичные сметные документы - это локальные сметы формируются на отдельные виды работ и затрат строительства. Локальные сметные расчеты делаются тогда, когда объемы работ и размеры затрат не установлены окончательно и нуждаются в уточнении на базе рабочей документации или если объемы работ, характер и способы их использования уточняются в ходе строительства.

Объектные сметы включают результаты и данные локальных смет и являются сметными документами, на базе которых составляются договорные цены на объекты. Сметные расчеты на каждый тип затрат могут быть составлены для установления в общем по стройке уровня средств, которые нужны для компенсации затрат, неучтенных сметными нормативами.

Сводные сметные расчеты стоимости строительства формируются на базе объектных сметных расчетов, объектных смет и сметных расчетов на единичные типы затрат. В составе сметной документации в локальных сметах стоимость работ может высчитываться в разных ценовых:

в базисном уровне, определяемом на основе действующих сметных норм и цен;

в текущем уровне, определяемом на основе цен, сложившихся ко времени составления смет или прогнозируемых к периоду осуществления строительства.

Существует несколько методик формирования смет и установления стоимости строительной продукции:

ресурсный метод - это расчет ресурсов нужных для осуществления проекта в настоящих ценах и тарифах

базисно-индексный, базируется на применении системы текущих и прогнозируемых индексов удорожания касаемо, выявленной в базисном уровне, стоимости

ресурсно-индексный- это комбинация ресурсного метода и системой индексов на сметную стоимость ресурсов.

На базе укрупненных сметных нормативов - метод дает возможность значительно уменьшить объем расчетов при составлении сметной документации. Укрупненные сметные нормативы несут информацию о количестве прямых затрат на укрупненную единицу на здание или сооружение в целом. Они используются при выяснении стоимости строительства на основе укрупненных показателей на этапах технико-экономического обоснования на проектном этапе, и в период подготовки тендерной документации при проведении подрядных торгов.

Стоимость строительства нового архитектурного объекта, то есть совокупность денежных средств, которые требуются для его реализации, устанавливается в составе предпроектных проработок (ТЭО строительства). Ключевая цель ТЭО - оценка проекта с позиции продуктивности инвестирования.

Для технико-экономического обоснования целесообразности строительства дворца зимних видов спорта в г. Вологда на ул.Конева, автором был выбран метод подсчета сметной стоимости строительства на базе укрупненных показателей. Этот вид расчета дает возможность определить размер прямых затрат на здание в целом, при этом избегая большого объема расчетов.

Для определение сметной стоимости были взяты данные проекта, рабочей документации, спецификации оборудования и материалов, основные конструктивные элементы , а также действующие сметные нормативы.

При составлении смет автором были использованы следующие сборники укрупненных сметных нормативов и показателей стоимости:

- Государственные сметные нормативы. Укрупненные нормативы цены стоительства. НЦС-81-02-08-2014 . Автомобильные дороги. Техническая часть.

Государственные сметные нормативы. Укрупненные нормативы цены стоительства. НЦС-81-02-17-2014. Озеленение. Техническая часть.

Государственные сметные нормативы. Укрупненные нормативы цены стоительства. НЦС-81-02-05-2014 Спортивные здания и сооружения. Техническая часть.

Государственные сметные нормативы. Укрупненные нормативы цены стоительства. НЦС-81-02-11-2014 . Наружные сети связи. Техническая часть.

- Государственные сметные нормативы. Укрупненные нормативы цены стоительства.НЦС 81-02-16-2014 Малые архитектурные формы. Техническая часть.

Государственные сметные нормативы. Укрупненные нормативы цены стоительства. НЦС- 81-02-12-2014 . Наружные электрические сети. Техническая часть.

Государственные сметные нормативы. Укрупненные нормативы цены стоительства. НЦС 81-02-13-2014 . Наружные тепловые сети. Техническая часть.

Государственные сметные нормативы. Укрупненные нормативы цены стоительства. НЦС- 81-02-14-2014. Сети водоснабжения и канализации. Техническая часть.

Государственные сметные нормативы. Укрупненные нормативы цены стоительства. НЦС 81-02-15-2014. Сети газоснабжения. Техническая часть.

3.1.2 Определение стоимости строительства аквацентра в текущем уровне цен.

Определение стоимости строительства аквацентра в текщем уровне цен (Таблица -3.1.1). S общ = 29993,9  м2

Таблица 3.1.1 - Объектный сметный расчёт

№№ п.п.

№ расценки по НЦС

Наименование объекта проетирования

Кол-во единиц

Стоимость ед. изм. в уровне цен на 01.01.2015, тыс.руб.

Общая стоимость с учётом коэф. перехода к ценам Вологодской области, тыс.руб.

Общая стоимость на 01.01.2017,тыс.руб.

1

2

3

4

5

6

7

1

03-02-004-01

Здания бассейнов на 50 посещений в смену с двумя чашами размером 25*12 м и 12*6м.

50

2516,33

133300,17

135136,98

2

05-03-001-01

Спортивные комплексы с плавательными бассейнами на 200 мест (аквапарк)

200

1144,19

224261,24

245790,32

3

05-09-001-03

Плавательные бассейны на 64 посещения в смену

100

3026,87

296633,26

325110,05

4

05-03-001-03

Спортивные комплексы с

600

635,94

373932,72

409830,26



плавательными бассейнами на 600 зрительских мест





5

05-08-001-01

Универсальный спортивный зал на 80 посещений в смену

80

1767,03

138535,15

151834,52

6


Торговые площади

252

19,80

4889,8

5359,22

7


Кафе

50

221,7

10863,3

11906,17

Итого по основным объектам строительства

1284967,52

Объекты транспортного хозяйства и связи

8

08-02-001-01

Обычная (нескоростная) автомобильная дорога категории II, 2-полосная (1 км)покрыттие асфальтобетон, очнование щебеночно-песчано-гравийная смесь.

0,926 км

47178,97

43250,84

47402,93

9

08-08-001-02

Тротуары С покрытием из искусственной тротуарной плитки(100 м2)

7763

247,11

18799,48

20604,23

10

08-10-001-01

Перехватывающая автостоянка с

0,677км

42461,1

28458,7

31190,73



ограждением и искусственным освещением на 542 мест





Итого по объектам транспортного хозяйства и связи:

99197,89 тыс. руб.

Наружные сети и сооружения водоснабжения, канализации, теплоснабжения, газоснабжения и электроснабжения.

11

13-01-004-06

Бесканальная прокладка трубопроводов теплоснабжения в непроходных канналах с изоляцией минеаловатными плитами и стеклоплавстиком при условном давлении 1,6 Мпа, температуре 150°С, в мокрых грунтах с работой на отвале, диаметром 250 мм

0,630км

32924,23

21157,11

23188,19

12

12-03-004-01

Прокладка линии уличного освещения с подземной подводкой питания кабелем с медными жилами напряжением 0,4 кВ - СБ 3*16

1,530 км

2014,85

3051,89

3344,87

13

12-01-005-01

Подземная прокладка в траншее кабеля с медными жилами на напряжение 6 кВ марки СБ 3х16-6

0, 630 км

1132,89

635,21

696,19

14

15-01-002-08

Наружние инж. сети газопровода, подземная прокладка, разработка грунта с погрузкой в автотранспорт, стальные трубы диаметром 100 мм и глубиной 2 метра

0,630 км

1 533,32

956,33

1048,13

15

14-01-002-11

Наружные инженерные сети водопровода, разработка мокрого грунта с погрузкой в автотранспорт, хризотилцементные трубы с соединением при помощи хризотилцементных муфт диаметром: 250 мм и глубиной 3 м.

0,630км

5425,69

3384,0

3708,86

16

14-15-002-09

Наружные инженерные сети канализации из полиэтиленовой трубы, разработка мокрого грунта с погрузкой в автотранспорт.трубы диаметром 315 мм и глубиной 2 м

0,630км

3647,32

2274,83

2493,21

Итого по наружным сетям и сооружениям водоснабжения, канализации, теплоснабжения, газоснабжения и электроснабжения.

17239,72 тыс. руб.

Благоустройство и озеленение территории


17

17-02-004-01

Озеленение спортивных парков с устройством обычных газонов в средних городах

1,99 га

6352,61

12262,44

13439,6

18

16-05-001-01

Малые архитектурные формы для спортивных сооружений.на 100м2

324

147,51

473,15

518,57

Итого по благоустройству и озеленению территории:

13958,17 тыс. руб.

Итого по смете:

1415363,3 тыс. руб.



Таблица 3.2 - Сводная смета на строительство объекта

№№ п.п.

Наименование глав, объектов работ и затрат

Единица измерения

Общая сметная стоимость

1

2

3

4

1

ГЛ1 Подготовка территории строительства

1,5% от ст-и строительства по гл. 2 - 3

20045,49

2

ГЛ2 Основные объекты строительства

руб.

1284967,52

3

ГЛ3 Объекты подсобного и обслуживающего назначения

4 % от соответствующих граф гл. 2

51398,7

4

10 % от соответствующих граф гл. 2 - 3

133636,62

5

ГЛ5 Объекты транспортного хозяйства и связи

руб.

99197,89

6

ГЛ6 Наружные сети и сооружения водоснабжения, канализации, теплоснабжения и газоснабжения

руб.

17239,72

7

ГЛ7 Благоустройство и озеленение территории

руб.

13958,17

ИТОГО по гл 1-7

1620444,2

8

ГЛ8 Временные здания и сооружения

1,1 % от стоимости СМР по гл. 1 - 7

17824,88

ИТОГО по гл 1-8

1638269,09

9

ГЛ9 Прочие работы и затраты

1,5 % от стоимости СМР по гл. 1 - 8

24574,03

ИТОГО по гл 1-9

1662870,13

10

ГЛ10 Проектные и изыскательские работы, авторский надзор

1,5 % от стоимости СМР по гл. 1 - 9

24943,05

Всего по сводному сметному расчету с учетом перевода цен на уровень 2017 года с коэфф. 1.096:

1687813,18 тыс руб


Согласно расчёту по укрупнённым нормативам цены строительства (НЦС-81-02-03-2014) [17] и индексам изменения сметной стоимости строительно-монтажных работ по объектам строительства, определяемых с применением территориальных единичных расценок Вологодской области на I квартал 2017 года стоимость строительства аквацентра в текущем уровне цен составляет 1687813,18 руб.

руб./ 29993,9  = 56271 руб.

Стоимость строительства одного квадратного метра составляет: 56271руб.

3.2 Конструктивное решение

Конструктивная система здания - смешанная (каркасная + оболочковая)

Класс ответственности здания - I

Группа капитальности - III

Нормативная долговечность - 125 лет

Степень огнестойкости - II

Класс конструктивной пожарной опасности здания - C1

Количество пожарных отсеков - 3

Наличие автоматического пожаротушения - имеется

Функциональная пожарная опасность здания - Ф2

Общественный блок здания перекрывается вантовым висячим покрытием пролётом 30 метров, несущими элементами которого являются железобетонные пилоны с закладными стальными двутаврами. Ванты крепятся к стальным закладным элементам приваренным к двутавру шарнирным соединением, и несут нагрузку от покрытия из стальных криволинейных балок. Блок с бассейнами перекрыт большепролётной клеяной деревянной двухшарнирной аркой пролётом 42 метра, арка опирается на железобетонные пилоны через стальной башмак шарнирным соединением. Блок с аквапарком перекрыт большепролётными клеяными деревянными арками. Арки трёхшарнирные, стрельчатые, опираются с одной стороны на пилоны, с другой - на отдельно стоящие фундаменты через стальной башмак шарнирным соединением. Шаг между большепролётными конструкциями - 6 метров.

Междуэтажные перекрытия опираются на каркас, состоящий из железобетонных колонн с шагом 6*6 метров и ригели из высокопрочной стали, колонны опираются на свайный фундамент с железобетонным ростверком. Толщина железобетонных перекрытий - 220 мм.

Кровля скатная по клееным деревянным прогонам, соединяющих арки, сечением 80*200мм, покрытие мембранной кровлей белого цвета с утеплителем по сплошной обрешётке.

Наружные стены представляют собой слоистую конструкцию, несущим элементом которой являются монолитные железобетонные стены, в качестве утеплителя используется минераловатный утеплитель ВЕНТИБАТТС, наружная отделка штукатуркой, армированной двумя слоями стекловолокнистой сетки с водоотталкивающей пропиткой.

Внутренние перегородки - t = 80мм с однослойными обшивками из Gyproc-листов на одинарном металлическом каркасе, индекс звукоизоляции 42 дБ, EI 30; t = 180мм с двойным разнесенным стальным каркасом с двуслойными гипсокартонными Guproc-листами, индекс звукоизоляции 55дБ, EI 60.

Лестницы монолитные железобетонные.

Двери наружние алюминиевые: ДАН О Дв Бпр Р 24-18, ДАН Дв ПР 24-18 ГОСТ 23747-2014.

Двери внутренние: ДАВ Км Дв Бпр Р 21-18, ДАВ О Дв Бпр Р 21-17, ДГ 21-9П, ДГ 21-9К, ДГ 21-8П, ДГ 21-7П.

Окна одностворчатые откидные с двухкамерным стеклопакетом О Спл ОСП 20 6 ПО/В2-Б-Д-1-М.

Бассейн: керамическая плитка, стяжка ЦСП t = 300мм, труба PE-RT, r = 20мм, арматурная сетка, полистирольная плита t = 100мм, теплоизоляция, монолитное перекрытие.

Внутренняя отделка:

Полы: универсальное наливное полимерное покрытие ESPSL.

Потолки: Декоративная штукатурка Les Morbres на основании из потолочных цементных плит АКВАПАНЕЛЬ.

Стены: Декоративная штукатурка Les Morbres на основании из универсальных цементных плит АКВАПАНЕЛЬ.

.3 Безопасность и экологичность проекта

.3.1 Мероприятия по охране окружающей среды

Окружающая среда - среда обитания и деятельности человечества, окружающий человека природный и созданный им материальный мир. Окружающая среда включает в себя природную среду и искусственную (техногенную) среду, т.е. совокупность элементов среды, созданных из природных веществ трудом и сознательной волей человека и не имеющих аналогов в природе (здания, сооружения и т. п.). Природную окружающую среду можно условно разделить на атмосферу, гидросферу, литосферу и биосферу. Искусственная среда включает в себя архитектурную и историческую особенности территории.

Мероприятия по охране архитектурной и исторической среды.

Объектом проектирования является энергопассивый аквацентр. Территория под проектирование находится на пересечении улицы Конева и Окружного шоссе. Участок на данный момент застроен конюшнями и хлевами, которые уже не функционируют, на прилегающих к участку территориях преобладают пустыри и индивидуальные жилые дома. Назначение участка - «Для иных видов использования, характерных для населенных пунктов», относится к землям населённых пунктов, по документам используется под временные объекты, площадь участка - 5,1 га. В будущем территорию планируют осваивать в целях строительства спортивных сооружений (по генплану утверждённого проекта планировки Южного района города Вологды (см. ПРИЛОЖЕНИЕ 1) и генплану спортивно-рекреационной зоны «Шограш» (см. ПРИЛОЖЕНИЕ 2)), а прилегающие к участку территории будут осваиваться под строительство многоквартирных жилых домов, общественных центров и объектов социальной инфраструктуры. На территории отсутствуют историкo-культурные ограничения в связи с отсутствием объектов архитектурного наследия. По плану землепользования и застройки планировочные ограничения по высоте и конфигурации здания отсутствуют. На территории отсутствуют линии электропередач и путепроводы.

Разрабатываемый аквацентр включает в себя аквапарк, универсальный спортивный бассейн с трибунами, оздоровительный бассейн, детский бассейн, батутный центр и многофункциональную общественную зону, включающую в себя вестибюль, кассовый блок, гардероб, холл, кафе, магазины и услуги.

В качестве благоустройства окружающей территории предполагается устройство тротуаров и пешеходных зон, площадок для досуга и отдыха, малых архитектурных форм, озеленения.

Транспортная структура будет представлена параллельным проездом вдоль улицы Конева, остановкой общественного транспорта, пожарным проездом вокруг всего периметра здания, парковки для посетителей на 420 мест, парковки для заказных автобусов на 8 мест, парковки для обслуживающего персонала и проездами (см. ПРИЛОЖЕНИЕ 3). Расчет количества и плотности размещения парковочных мест в соответствии с СП.[12] и учётом коэффициента автомобилизации населения на момент 2016 года. Парковки будут иметь выходы на пешеходные пути вдоль ул. Конева и на территорию рекреации. Пешеходная территория рекреации комплекса будет изолирована от движения и парковки автомобильного транспорта, за исключением пожарного проезда, и путей подвоза и разгрузки товаров и инвентаря. Транспортная структура на территории центра предполагает применение альтернативных видов транспорта. На всей территории центра будут проходить велосипедные дорожки, площадки для хранения велосипедов. Для защиты от шума и пыли вдоль улицы Конева будут посажены улиц пыле-, газоустойчивые зеленые насаждения.

Участок разработки находится в непосредственной близости к водоемам, поэтому необходимо предусмотреть средства защиты от подтопления. Инженерная защита подземных частей здания спортивного центра - цокольного этажа, коммуникационных каналов от подтопления грунтовыми водами будет осуществляться за счёт устройства дренажной системы. Кроме устройства дренажей будет предусматривается уплотнение грунта при засыпке котлованов, устройство отмостки с отведением воды до дорог или лотков, закрытые выпуски водостоков с кровли зданий, герметичную заделку отверстий на вводах и выпусках инженерных сетей в наружных стенах и фундаментах, организация поверхностного стока с территории проектируемого объекта. Отвод бытовых вод будет происходить в наружную сеть бытовой канализации, на расстоянии 3 метров от цоколя здания и подключаться к новой ветви строящегося жилого района, предусматривающей оказываемую спортивным центром нагрузку.

Мероприятия по охране природной среды.

При строительстве зданий, строений и сооружений должно быть обеспечено выполнение требований в области охраны окружающей среды, воспроизводства природных ресурсов и их рационального использования с соблюдением приоритета сохранения благоприятной окружающей среды при строительстве.

Гидросфера.

Ливневая канализация организуется для удаления сточных, ливневых и талых вод с территории спортивно-развлекательного центра. Атмосферные осадки с кровель и территории будут выноситься по внутренним водостокам в систему ливневой канализации и резервуары для хранения и фильтрации «серой воды».

Проектирование и строительство зданий должно происходить с учётом водоохраных и санитарно-защитных зон. На участке проектирования находятся два водоёма со стоячей водой, рядом с участком находится река Шограш протяженностью 20 км, ширина водоохраной зоны от береговой линии составляет 100 м. Площадь водоёмов менее 1 кв. км, поэтому их можно отнести к прудам, но по статье водного кодекса понятия «пруд» не существует. Границы водоохраной зоны определяются по нормам для озёр с акваторией менее 5 кв. км. - 50 метров от берега. Водоёмы не имеют государственного значения или научную ценность.

Для сохранения водоёмов без ущерба полезной территории здания было принято решение использовать пруды к качестве пожарных водоёмов, расстояние от границы которых до здания может быть от 10 метров.

Атмосфера.

В период эксплуатации основным источником, оказывающим загрязняющее воздействие на атмосферу, являются автомобильный транспорт. Территория граничит с магистральной улицей общегородского значения и улицей местного значения. Расстояние от линии застройки до границы проезжей части более 25 метров. Оборудование, обеспечивающее автономное отопление и подогрев воды здания использует электричество в качестве энергоресурса, следовательно, здание не будет выделять продукты горения в окружающую среду.

Литосфера.

Сохранение земельных ресурсов, разрабатываемой территории. При выполнении земляных работ на территории все земляные массы будут оставлены на территории, а также будут использованы для создания холмистого рельефа рекреации.

Объект проектирования будет обладать такими признаками устойчивого развития, как энергоэффективность, энегопассивность, частичная автономность, использование неисчерпаемых и возобновляемых ресурсов и альтернативных способов энергообеспечения, доступность среды для ЛОВ, экологичность. В качестве нагревателя воды для отопления и подогрева воды в бассейнах были выбраны тепловые насосы. Это геотермальные установки, которые для нагрева воды используют энергию земли через скважины. Земля в геотермальных системах является радиатором в летний период или источником тепла в зимний период, при этом являясь неисчерпаемым источником энергии с высоким коэффициентом преобразования тепла. Тепловой насос не сжигает топливо, поэтому не образуется вредные окислы, практически взрыво - пожаробезопасен, не нагревается. Для обеспечения электроэнергией здания и тепловых насосов были выбраны солнечные батареи, которые не загрязняют окружающую среду, не производят выбросы и отходы, не требует топлива, не требует транспортировки и сжигания.

Мусороудаление.

В целях снижения загрязненности территории твердыми бытовыми отходами предлагается проведение организационно-административных мероприятий, включающих: организацию комплексной системы сбора, прессования и транспортировки бытовых отходов и строительного мусора; обеспечение рекреационной зоны контейнерными площадками с возможностью подъезда мусоросборного транспорта по пешеходным путям и последующей сборки на контейнерных площадках. Площадки для установки контейнеров удалены от мест отдыха населения на расстояние более 100 м.

3.3.2 Мероприятия по водоподготовке

Подготовка воды в бассейнах состоит из проведения следующих мероприятий подключения к системе водоснабжения, наполнения ванн бассейна, и последующая её непрерывная циркуляционная очистка с частичной замены воды. Альтернативным способом водоснабжения является бурение артезианских скважин - достаточно популярное явление в Вологодской области.

В Вологде бурят скважины на воду не только для частных индивидуальных жилых домов, но и для полива сельскохозяйственных полей и даже водоснабжения бассейна (Бассейн Майского дворца культуры). Ещё один аналог использования артезианской воды для наполнения ванн бассейнов существует на территории Москвы (Бассейн «Атлант»), организация позиционирует воду в бассейне как морскую минеральную воду. Для организации правильной водоподготовительной системы правильным будет провести оценку состояния воды.

В Вологодской области состав подземных вод преимущественно пёстрый по ионному составу с максимальной степенью минерализации равной 3 грамма на килограмм воды, что соответствует степени минерализации лечебно-столовых минеральных питьевых вод (от 1г/л до 10 г/л.). Дебит скважин - 1 литр в секунду.

Водоподготовка воды из скважин включает в себя приведение пресной жидкости в надлежащее качество в соответствии с технологическими требованиями.

1.       Проведение механической очистки от загрязнителей, которые не способны растворяться (например, песок или ржавчина).

2.       Процедура осветления воды путем фильтрования сора.

.        Умягчение жёсткости воды способом осаждения ряда таких химических элементов, как кальций, магний или известь.

.        Процедура дистилляции в испарителях, а также применение ионного обмена для обессоливания воды и ее обескремнивания.

.        Уничтожение газов, которые уже успели раствориться в воде. Применяются термические или химические технологии.

.        Использование фильтрования для удаления оксидов марганца, меди или железа.

.        Применение биологических методик очищения воды хлором или озоном от вирусных бактерий и микроорганизмов.

После подготовки воды из скважины и заполнение бассейнов водой следует введение в эксплуатацию систему циркуляционной очистке воды, которая включает в себя следующие этапы:

. Фильтрация;

. Дезинфекция (хлорирование, которое сочетают с озонированием или обработкой ультрафиолетовым излучением);

. Кондиционирование, включающее:

добавления химических реагентов для регулирования показателя ph,

подогрев и поддержание необходимой температуры воды,

очистку сорбционным фильтрованием и изменение химического состава воды.

Необходимо, чтобы вода должным образом осветлилась в течение времени, кратного нескольким циклам водообмена, а концентрация остаточного хлора снизилась до нормируемого уровня.

Систему озонирования/УФ-обеззараживания следует вводить в работу не ранее чем через 6-8 циклов водообмена, когда прозрачность воды обеспечит визуальный просмотр всего дна ванны.

Обеззараживание воды бассейна должно обеспечивать уничтожение всех возможных вирусов, микробов и др., поэтому на всей площади бассейна должно всегда присутствовать окисляющее дезинфицирующее вещество.

Вода из бассейна поступает в систему фильтрации через систему переливных желобов (скиммеров) и донного слива, которая после очистки частично заменяется на свежую воду и подаётся обратно в бассейн через форсунки.

3.3.3 Мероприятия по обеспечению пожарной безопасности

Пожаробезопасность территории.

К системам противопожарного водоснабжения зданий должен быть обеспечен постоянный доступ для пожарных подразделений и их оборудования. Обеспечивается пожарный проезд вокруг здания шириной 6м, расположенный на расстоянии 5-8м от наружных стен по всему контуру здания. Подъезды пожарных автомобилей обеспечены также к пожарным гидрантам, ко всем входам в здание. Пожарные гидранты устраиваются не более чем через 150 м вдоль улицы Конева и имеют радиус действия от 50 до 100 метров. Так как здание имеет габариты 126*132 метра, одностороннее тушение пожара недопустимо. Для обеспечения достаточного количества воды для тушения будут использованы водоёмы, находящиеся на территории здания. Водоемов должно быть не менее двух, в каждом - половина объема воды, необходимого для тушения. Расстояние от водоемов до границы здания не менее 10 м от зданий второй степени огнестойкости. Дно пожарных водоёмов будет укреплено известкованием для избежания понижения уровня воды, а берег облицован камнем. К пожарным водоёмам будут подведены проезды для пожарной техники и разворотные площадки 15*15 метров.

В общественных пространствах предусматривается установка автономных оптико-электронных дымовых извещателей ИП 212-50. Извещатели предназначены для обнаружения загорания, сопровождающегося появлением дыма малой концентрации в жилых или других аналогичных помещениях, путем регистрации отраженного от частиц дыма оптического излучения и выдачи тревожных извещений в виде громких звуковых сигналов.

Пожаробезопасность здания.

Аквацентр в соответствии с требованиями относится к объектам II степени огнестойкости. Объемно-планировочные и конструктивные решения приняты с учетом требований противопожарной безопасности. Система противопожарной защиты предусматривает обеспечение здания требуемыми путями эвакуации, внедрение автоматических систем извещения и тушения пожаров. В центре предусмотрено 6 лестничных узла для эвакуации с выводом людей из следующих блоков: 1 - спортивный бассейн с трибунами (включает трибуны, гардероб, место для скопления людей), 3 - аквапарка с кафе, имеет 2 узла ЛК в связи с протяженностью здания, 4 - батутный центр, 5 - хостел, имеет 2 узла ЛК в связи с протяженностью здания.

Лестничные клетки предусмотренные как эвакуационный путь имеет естественное освещение, минимальную ширину проходов 1,5м, обшивку негорючими материалами. Максимальное расчетное время эвакуации составляет 81секунду. Коридоры разделены перегородками с дверями огнестойкостью EI 30 и имеют ширину не менее 2 м в блоках с нахождением маломобильных групп населения.

Рисунок 3.3.3 - Схема путей эвакуации первого этажа

Рисунок 3.3.4 - Схема путей эвакуации второго этажа

В состав конструктивной защиты здания входит защита деревянных и металлических конструкций здания, а именно : обработка вспучивающей краской типа Протерм Вуд и зашивка негорючими магнезитовыми плитами knauf faerboard; применение огнестойких и негорючих строительных, отделочных и теплоизоляционных веществ и материалов: внешние ограждающие конструкции выполнены из блоков из автоклавного газобетона ( имеют I степень огнестойкости), перегородки - гипсокартонные на металлическом каркасе Защиту пожароопасного оборудования; устройство противопожарных преград (в качестве преград предусмотрены: стены и перекрытия, ограждающие конструкции лестничных клеток, коридоров и лифтовых холлов; перегородки пожароопасных и технических помещений).

Расчет времени эвакуации.

Эвакуационные выходы должны обеспечивать эвакуацию людей, находящихся в здании в течении необходимого времени.

Расчетное время эвакуации tp не должно превышать необходимого времени эвакуации tнвэ:

                                                                                (3.3.3)

Где tp устанавливается по расчету времени движения одного или нескольких потоков через эвакуационные выходы из наиболее удаленных мест размещения людей.нвэ = 6 мин.

При расчете весь путь подразделяется на участки длиной li и шириной Si.. Расчетное время определяется по формуле:

                                                        (3.3.4)

Где t1, t2, t3 и ti - время движения людского потока на первом и последующих участках пути, мин.

Время движения по первому участку пути определяется по формуле:

                                                                               (3.3.5)

Где L1 - длина участка; V1 - значение скорости людского потока по горизонтальному пути на первом участке, определяемое из таблицы в зависимости от плотности потока Di, м/мин.

Плотность людского потока на первом участке определяется по формуле:

                                                                         (3.3.6)

Где N1 - число людей на участке, чел; L1 - длина участка, м; S1 -ширина участка, м; F - средняя плотность горизонтальной проекции человека, м2, F=0,1 м2.

Таблица 3.3.3 - Нормативные данные по участкам эвакуации

Плотность потока, D, м2/м2

Горизонтальный путь

Дверной проем

Лестница вниз

Лестница вверх


Скорость V, м/мин

Интенсивность q, м/мин

Интенсивность q, м/мин

Скорость V, м/мин

Интенсивность q, м/мин

Скорость V, м/мин

Интенсивность q, м/мин

0,01

100

1

1

100

1

60

0,6

0,05

100

5

5

100

5

60

3

0,1

80

8

8,7

95

9,5

53

5,3

0,2

60

12

13,4

68

13,6

40

8

0,3

47

14,1

16,5

52

16,6

32

9,6

0,4

40

16

18,4

40

16

26

10,4

0,5

33

16,5

19,6

31

15,6

22

11

0,7

23

16,1

18,5

18

12,6

15

10,5

0,8

19

15,2

17,3

13

10,4

13

10,4

0,9 и более

15

13,5

8,5

8

7,2

11

9,9


Первый участок. Балкон аквапарка длиной 45 м и шириной 6 м

D = 100 * 0,1 / 6 * 45 = 0,03 м²/ м².

V = 100 м/мин.

t = 45 / 100 = 0,45 мин. (27 сек).

Второй участок. Коридор длиной 10 м и шириной 1,8 м

D = 100 * 0,1 / 1,8 * 10 = 0,55 м²/ м².

V = 33 м/мин.

t = 10 / 33 = 0,3 мин. (18 сек).

Третий участок. Лестница вниз длиной 8 м и шириной 1,5 м

D = 100 * 0,1 / 1,5 * 8 = 0,8 м²/ м².

V = 13 м/мин.

t = 8 / 13 = 0,6 мин. (36 сек).

Таблица 3.3.4 - Результаты расчёта путей эвакуации

Участки

D, м2/ м2

Vм/мин

tмин

Первый участок

0,03

100

0,45

Второй участок

0,55

33

0,3

Третий участок

0,08

13

0,6

t1 + t2 + t3 = 0, 45 + 0,3 + 0,6 = 1, 35 мин.


Время эвакуации составляет 1,35 мин (81 сек)

ЗАКЛЮЧЕНИЕ

Реализация проекта аквацентра в городе Вологде поднимет статус города как административного центра, увеличит привлекательность города для туристов, способствует увеличению числа населения систематически занимающихся спортом, откроет большие возможности и предоставит почву для развития молодых спортсменов. Аквацентр станет местом проведения масштабных соревнований по водным видам спорта не только в Вологодской области, но и в регионе. Возрастёт престижность примыкающих жилых районов, повысится уровень обеспеченности города спортивными сооружениями. Аквапарк станет местом притяжения для жителей Вологды и других ближайших городов, делая проведение досуга более интересным и разнообразным. Применение энергопассивных экологичных технологий для обеспечения здания позволит экономить расходы на содержание здания, улучшить качество и экологичность окружающей среды.

СПИСОК ИСПОЛЬЗОВАННЫХ ИСТОЧНИКОВ

1. Гельфонд А.Л. Архитектурное проектирование общественных зданий и сооружений. Учебное пособие, 2006 - 184 с.

. Энергоэффективность зданий и сооружений. Новые своды правил [Текст] / Ю. А. Табунщиков, Ю. В. Миллер // Энергосбережение. - 2013. - № 5. - С. 21-25. : 1 табл. - Библиогр.: с. 25 (1 назв. ) . - ISSN 1609-7505.

. Оценка годового расхода энергии на отопление и охлаждение зданий / Ю. А. Табунщиков, Ю. В. Миллер // Вентиляция. Отопление. Кондиционирование: АВОК. - 2013. - № 3. - С. 56-63. . - Библиогр.: с. 63 (12 назв.) . - ISSN 1609-7843.

. Рекомендации по проектированию систем ОВК спортивных сооружений Текст Ю. В. Миллер // Вентиляция. Отопление. Кондиционирование: АВОК. 2015. - № 6. - С. 12-18. . - Библиогр.: с. 18 (17 назв.) . - ISSN 1609-7843.

5. Проектирование бассейнов, СанПиН 2.1.2.1188-03 «Плавательные бассейны. Гигиенические требования к устройству, эксплуатации и качеству воды. Контроль качества», Минздрав России, Москва 2003.

. Постановление от 12 июля 2016 года N 873 «ОБ УТВЕЖДЕНИИ СТРАТЕГИИ РАЗВИТИЯ ФИЗИЧЕСКОЙ КУЛЬТУРЫ И МАССОВОГО СПОРТА НА ТЕРРИТОРИИ МУНИЦИПАЛЬНОГО ОБРАЗОВАНИЯ «ГОРОД ВОЛОГДА» НА ПЕРИОД ДО 2035 ГОДА «ВОЛОГДА-ГОРОД ВЫСОКОЙ ФИЗИЧЕСКОЙ КУЛЬТУРЫ»

7. СП 1.13130.2009. Системы противопожарной защиты. Эвакуационные пути и выходы [Электронный ресурс]: утв. Приказом МЧС РФ 25.03.09: введ. 01.05.09 КонсультантПлюс: справ.-правовая система / Компания «КонсультантПлюс».

8. МДС: Методика определения стоимости строительной продукции на территории российской федерации [Электронный ресурс]. - Введ. 09.03.2004 Управление ценообразования и сметного нормирования Госстроя РФ. - Режим доступа: <#"903214.files/image015.gif">

ПРИЛОЖЕНИЕ 2

Генплан спортивно-рекреационной зоны «Шограш» в городе Вологде



ПРИЛОЖЕНИЕ 3

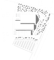
Генплан территории аквацентра

Похожие работы на - Спортивно-развлекательный центр летних видов спорта с аквапарком

 

Не нашли материал для своей работы?
Поможем написать уникальную работу
Без плагиата!
Без нейросетей!