Оптимизация тепловых потерь через ограждающие конструкции зданий

  • Вид работы:
    Дипломная (ВКР)
  • Предмет:
    Строительство
  • Язык:
    Русский
    ,
    Формат файла:
    MS Word
    377,05 Кб
  • Опубликовано:
    2017-07-10
Вы можете узнать стоимость помощи в написании студенческой работы.
Помощь в написании работы, которую точно примут!

Оптимизация тепловых потерь через ограждающие конструкции зданий

СОДЕРЖАНИЕ

ВВЕДЕНИЕ

. ТЕОРЕТИЧЕСКИЕ ОСНОВЫ МАГИСТЕРСКОЙ ДИССЕРТАЦИИ

.1 Теплопередача

1.2 Общие представления о теплопередаче

2. ВИДЫ ТЕПЛООБМЕНА

.1 Существует три элементарных вида передачи тепла

. ТЕПЛОПРОВОДНОСТЬ

.1 Основные постулаты теплопроводности, способы, с помощью которых изучаются физические явления

.2 Температурное поле

.3 Температурный градиент

.4.Тепловой поток. Закон Фурье

.5 Коэффициент теплопроводности

. КОНВЕКТИВНЫИ ТЕПЛООБМЕН В ОДНОРОДНОИ СРЕДЕ

.1 Главные положения учения о конвективном теплообмене, определения и понятия учения

.2 Физические характеристики жидкости

5. ТЕПЛООБМЕН ИЗЛУЧЕНИЕМ

5.1 Основные законы излучения, характеристика процесса

5.2 Виды лучистых потоков; вектор излучения

. ПРАКТИЧЕСКАЯ ЧАСТЬ

.1 Оптимизация тепловых потерь через ограждающие конструкции зданий

.2 Угловые теплопотери

.3 Теплопотери через окна в зависимости от соотношения сторон света.

.4 Влияние растворных швов кладки на теплопотери стен

. ЭКОНОМИЧЕСКАЯ ЧАСТЬ МАГИСТЕРСКОЙ ДИССЕРТАЦИИ

.1 Организация процесса разработки и строительства программного продукта для расчета нагрузок на ролики МНЛЗ

.1.1 Экспертная оценка трудоемкости выполнения разработки

7.1.2 Определение состава исполнителей, их функций и фондов времени работы

7.2. Технико-экономическое обоснование проекта

.3. Технико-экономические показатели проекта

. БЕЗОПАСНОСТЬ ЖИЗНЕДЕЯТЕЛЬНОСТИ

.1 Организация площадки строительства, рабочих мест и участков

.2 Эксплуатация строительных машин

.3 Эксплуатация инструмента, оснастки технологического характера

.4 Транспортные работы

.5 Газопламенные работы, работы по электрической сварке

.6 Работы по разгрузке, погрузке

.7Работы по монтажу

.8 Электромонтажные работы

8.9 Кровельные работы

9. РАЗДЕЛ ПО ЭКОЛОГИИ

.1 Охрана водных ресурсов при осуществлении работ строительного характера

.2 Охрана и рациональное пользование землями

.3 Прогнозирование изменений в природной среде

.4 Заявление о последствиях для экологической ситуации

ЗАКЛЮЧЕНИЕ

СПИСОК ИСПОЛЬЗОВАННЫХ ИСТОЧНИКОВ

ВВЕДЕНИЕ


Теплообмен (теплопередача) учение о процессах, связанных с передачей теплоты в пространстве. Согласно учению, данные процессы происходят непрерывно. Процесс, в ходе которого передаётся тепло - обмен между областями среды, которая изучается (или её составляющими) некоторым количеством запасённой внутренней энергии. Существует три метода передачи тепла: конвекция, теплопроводность, излучение.

При возникновении теплопроводности тепло передаётся между телами при помощи молекул. Перенос энергии при теплопроводности обусловлен разностями температур в разных точках изучаемого пространства.

Единственная среда, в которой возможно возникновение конвекции - текучая. Тепловая конвекция представляет собой процесс, при котором составляющие газа или жидкости при переходе из одной области среды в другую (имеющие различные температуры) переносят вместе с собой энергию. При конвекции перемещение теплоты неразрывно связано с перемещением вещества.

При тепловом излучении энергия распространяется благодаря волнам электромагнитного характера. Процесс излучения обуславливается исключительно оптическими характеристиками тела, которое даёт излучение, а также его температурой. Та энергия, которой обладает излучающее тело, при протекании процесса становится энергией излучения. Зачастую в природных и технических системах все три вида передачи тепла осуществляются совместно.

Теплопроводность, как правило, возникает только в твёрдых телах.

При возникновении тепловой конвекции всегда формируется теплопроводность. Ситуация, при которой тепло перемещается при помощи теплопроводности и конвекции одновременно, получила название конвективного теплообмена.

При проведении инженерных расчётов зачастую рассчитывается теплообмен конвективного типа, которой возникает между твёрдым телом и жидкостью (или твёрдым телом или газом). Данный процесс получил название конвективной теплоотдачи.

Описанные выше процессы во многих случаях протекают вместе с излучением. Если теплопередача осуществляется одновременно теплопроводностью и излучением, то для данного явления применяется наименование теплообмена радиационно-кондуктивного характера. В случае возникновения конвекции дополнительно к излучению и теплопроводности, то такой обмен энергией называется радиационнo-конвективным теплообменом. Существует и общее название для двух описанных выше способов перемещения теплоты - сложный теплообмен.

В бытовой и технической сферах часто отмечаются процессы, при которых жидкости, отделённые друг от друга стенкой, начинают осуществлять теплообмен. Данный процесс, при которой более нагретая жидкость начинает отдавать свою внутреннюю энергию менее нагретой жидкости, получил название теплопередачи. Он может осуществляться за счёт протекания различных элементарных процессов. К примеру, трубы, входящие в состав котлового агрегата и генерирующие пар, имеют теплоту после протекания теплообмена радиационно-конвективного характера. Теплота передаётся между различными слоями (накипь, стенка из металла, загрязнения) посредством теплопроводности. От внутренних трубных поверхностей до жидкости, которая их омывает, энергия перемещается за счёт конвекции. теплообмен потеря ограждающая конструкция

Теплообмен возникает в самых разных средах: смесях и чистых веществах. Обмен теплом может происходить как с изменением состояния тела, так и без него. В зависимости от того, какие параметры определяют процесс теплопередачи, для описания теплообмена применяются различные уравнения.

Зачастую теплота транспортируется вместе с веществом. К примеру, при процессе, сопровождающемся испарением воды (которая в виде пара попадает в воздух), возникает не только теплообмен, но и передвижение масс пара в смеси из пара и воздуха. Транспортировка пара может происходить за счёт конвективного и молекулярного способов. Если такие процессы протекают одновременно, то теплообмен называется конвективным массообменом. Если дополнительно к обмену теплом начинает протекать и массообмен, то процесс становится значительно более сложным. Кроме того, транспортировка энергии возможна и за счёт перемещения веществ, которые диффундируют.

Если существует смесь отличающихся друг от друга веществ, то перемещение теплоты от одной составляющей смеси к другой может протекать вследствие неравномерного распределения какой-либо физической величины в разных компонентах системы. К примеру, диффузионный теплоэффект (молекулярная транспортировка температуры, которая осуществляется дополнительно к основной) возникает вследствие различных концентраций веществ, которые входят в смесь. Влияние таких эффектов на размер переносимой теплоты, как правило, находится в таких значениях, которыми допускается пренебречь.

При изучении телообмена с теоретической точки зрения вводятся некоторые модели, помогающие сформировать представление о среде, где происходят исследуемые процессы. Твёрдые тела, жидкости и газы, в отношении которых проводится изучение, в рамках исследования рассматриваются как сплошная среда (их дискретное строение не учитывается).

Сплошные среды могут быть неоднородными либо однородными (отличие - в свойствах физического характера в разных точках среды: в первом случае они отличаются друг от друга, во втором являются одинаковыми). Кроме того, сплошные среды могут быть анизотропными и изотропными.

Цель: Способы и виды оптимизации тепловых потерь через ограждающие конструкции.

Задачи:

.        Рассмотрение видов тепловых потерь через ограждающие конструкции.

.        Энергосбережение.

.        Проблемы оптимизации тепловых потерь через ограждающие конструкции.

.        Раскрыть способы и виды тепловых потерь

.        Оптимизация тепловых потерь при этих способах и видах тепловой передачи энергии.

1. ТЕОРЕТИЧЕСКИЕ ОСНОВЫ МАГИСТЕРСКОЙ ДИССЕРТАЦИИ

 

.1 Теплопередача


Теплопередача - физический процесс передачи тепловой энергии от более горячего тела к более холодному, либо непосредственно (при контакте), или делящую (тела или среды) ограждения из какого-либо материала. Если физические тела находятся в одной системе, но с разными температурами, тогда происходит передача тепловой энергии, или теплопередача от одного тела другому до установления равновесной температуры между телами, термодинамического равновесия. Передача тепла самопроизвольна и всегда происходит от более горячего тела, это не что иное, как следствие второго закона термодинамики.

1.2 Общие представления о теплопередаче


Любое энергетическое преобразование, которое реально может протекать, связано с переходом энергии в состояние теплоты. Такой переход может быть как частичным, так и полным. Согласно 1-ому началу термодинамики, некоторая часть теплоты совершает работу, а оставшаяся откладывается в виде внутренней энергии системы. 1-ое начало термодинамики даёт ответ на вопрос о количественном значении энергии, которое поглотилось или выделилось при энергетическом преобразовании.

Согласно второму термодинамическому началу, если термодинамическая система прогрета неравномерно, то теплота начинает произвольно транспортироваться от более нагретой составляющей системы к той её части, которая имеет меньшую температуру. С помощью данного начала можно ответить на вопрос о направлении, в котором передаётся теплота.

Оба описанных выше термодинамических начала очень важны, но с их помощью невозможно достичь решения задачи, связанной с необратимым пространственным переносом теплоты, который происходит произвольно в системе с неравномерным температурным распределением. Здесь необходимо вспомнить, что реальное время в термодинамике сознательно не используется (процесс, в ходе которого транспортируется энергия, считался медленным - квазистатическим).

Теплопередача является с физической точки зрения очень сложным процессом. На особенности его протекания влияют размеры и форма термодинамической системы, температурное распределение снаружи и внутри неё, характеристики веществ с теплофизической точки зрения. В самом простом случае (тела, температуры которых неодинаковы, соприкасаются, при этом перемещений тел относительно друг друга не происходит) транспортировка тело осуществляется посредством теплопроводности. В более сложном случае (если пар, жидкость, газ, сыпучие частицы) перемещаются относительно того твёрдого тела, в контакт с которым они входят, теплопередача осуществляется посредством конвективного теплообмена. Если же отличающиеся друг от друга по температуре тела не соприкасаются друг с другом, то передача тепла от одного тела к другому происходит посредством излучения (транспортировкой энергии «занимаются» либо фотоны, либо волны электромагнитного типа). В этом проявляется основное отличие излучения от других способов теплопередачи: для протекания данного процесса не требуется контакт между телами или их разделение исключительно средой с материальными свойствами.

Все способы теплопередачи (как и любые два из них) могут протекать совместно. К примеру, на рисунке 1.1. представлена теплопередача, которая протекает в тормозной автомобильной системе. Транспортировка тепла осуществляется за счёт:

теплопроводностью (к составляющим подвески);

конвективным теплообменом (к воздушному потоку, который обтекает тормозную систему, при этом в зависимости от скорости перемещения автомобиля тепло, которое будет отводиться данным способом, существенно отличается по своим значениям);

излучением (через воздух к кузову, грунту и иным телам, температура которых ниже, чем у тормозной автомобильной системы).

Рисунок 1.1- Тормозная системы автомобиля

В теории теплопередачи теплообмен конвективного характера и теплопроводность рассмотрены достаточно хорошо. В каждом разделе применяются свои исследовательские методы и понятия, при необходимости учитывается и влияние, которое оказывается другими способами передачи тепла.

2. ВИДЫ ТЕПЛООБМЕНА


.1 Существует три элементарных вида передачи тепла

·              Конвекция

·              Тепловое излучение

·              Теплопроводность

Зачастую в природных условиях тепло транспортируется посредством сочетаний указанных выше видов. Ниже приведено описание основных методов:

·              теплопередача (передача тепла от среды с большей температурой к среде, значение температуры которой меньше, через стенку, которая их разделяет);

·              теплоотдача (обмен теплом между газом либо жидкостью с одной стороны и твёрдым телом с другой на основе конвективного способа);

·              способ конвективно-лучистого типа (тепло совместно транспортируется конвекцией и излучением);

·              термомагнитная конвекция

Внутренние тепловые источники - понятие, которое описывает процессы, связанные с производством и поглощением энергии теплового характера, которые существуют внутри тел без получения ими энергии из внешней среды. Существуют следующие внутренние тепловые источники:

·              электрической ток;

·              реакции ядерного характера;

·              реакции химического типа.

Коэффициент теплопередачи

Данный показатель указывает на количество теплоты, которое теплоноситель с большей температурой передаёт теплоносителю, температура которого меньше. На значение показателя влияют время, в течение которого производится транспортировка тепла, площадь поверхности, через которую проводится теплообмен, а также выраженная в Кельвинах температурная разница.

Коэффициент теплопередачи конструкции ограждающего назначения

Данная величина измеряется в Вт/см2 *°С и даёт представление об удельном потоке тепла, который проходит через площадь ограждающей поверхности, равной 1 см2 (при этом температурная разница составляет 1 градус Кельвина или Цельсия). Чаще всего в справочной литературе применяются значения, выраженные в Вт/м*°К (отображает поток тепла, который за один час проходит через площадь поверхности в 1 квадратный метр, при этом температурная разница равна 1 градусу). В строительстве наиболее часто применяется величина «коэффициент теплового сопротивления», которая по своей сути является обратной к рассматриваемой величине.

3. ТЕПЛОПРОВОДНОСТЬ

 

.1 Основные постулаты теплопроводности, способы, с помощью которых изучаются физические явления


Сегодняшние представления о физике в целом и теплопроводности в частности позволяют произвести описание рассматриваемого явления при помощи методов статистического и феноменологического типов.

Феноменологический тип - способ, посредством которого возможно описание процесса, при котором процесс рассматривается в качестве сплошной среды (макроскопическая структура его вещества не принимается во внимание).

На основе подобного метода можно понять, как соотносятся между собой некоторые общие параметры процесса. Характер феноменологических законов - общий (для их применения к конкретным физическим средам используются поправочные коэффициенты, значения которых устанавливаются опытным путём).

Статистический метод предусматривает изучение явления, существующего в физике, на основе исследования внутренней структуры, которой обладает вещество. При таком подходе среда рассматривается в качестве системы физического характера, в которой существует большое количество электронов, ионов или частиц, для которых известны законы, по котором они взаимодействуют между собой, а также основные свойства. Задача, для решения которой может быть использован статистический способ - построение на основе микроскопических характеристик среды модели её макроскопических свойств (то есть тех свойств, которыми обладает система в целом).

Разберём подробнее преимущества и недостатки описанных выше исследовательских методов.

На основе феноменологического способа связи, которыми обладают параметры, устанавливаются сразу, также при таком методе можно использовать данные, полученные в ходе эксперимента (причём точности способа определяется исключительно точностью этой информации).

Главный недостаток феноменологического исследовательского способа - необходимость опыта для определения характеристик, которыми обладает физическая среда. Это ограничивает пределы, в которых могут использоваться законы феноменологических законов. Нельзя также учитывать такие стороны проведения современных опытов, как сложность и дороговизна их организации.

Основное достоинство статистического способа - отсутствие эксперимента (макроскопические характеристики среды определяются лишь на основе расчётов). Однако данный метод очень сложен, и именно поэтому завершённые соотношения получаются при применении статистического метода лишь для самых простых моделей. Также для метода, основанного на статистическом подходе, необходимы значения параметров, изучаемых в специальных разделах физической науки.

В данной работе для изучения теплопроводности применяется феноменологический способ.

Теория аналитического характера рассматривает вещество в качестве сплошной среды (её молекулярный состав не учитывается). Описанный подход можно использовать только в том случае, если размеры, которыми обладают объекты, в отношении которых производится исследование, намного превышают расстояния, на которых отмечается эффективное взаимодействие между молекулами разных веществ.

 

 

.2 Температурное поле


При теплопроводности энергия теплового характера распространяется тогда, когда тела или их частицы входят друг с другом в непосредственный контакт, при этом значения температур у соприкасающихся объектов должны быть различными. Теплопроводность возникает вследствие движения, которое совершают частицы веществ.

Транспортировка энергии в газах происходит посредством диффузии атомов и молекул, что же касается тел, находящихся в твёрдом состоянии, а также жидкостей, то здесь действуют упругие волны. В веществах-металла теплопроводность реализуется электронами, которые свободно перемещаются по кристаллической решётке (при этом роль колебаний, которые совершает такая решётка, для теплопроводности вторична).

Нужно заметить, что чистая теплопроводность в газах или жидкостях возможна тогда, когда полностью исключаются способствующие возникновению конвекции кондиции.

При протекании любого физического явления во времени и пространстве физические величины, являющиеся для такого явления существенными, изменяют свои значения. Как уже было сказано выше, теплопроводность может существовать только в том случае, если в двух или более точках системы тел (или одного тела) температура приобретает разные значения. Температурные изменения при возникновении теплопроводности в теле, находящемся в твёрдом агрегатном состоянии, протекают как во времени, так и в пространстве.

Аналитическое изучение теплопроводности - исследование изменений значений температуры во времени и пространстве. Другими словами, нужно найти решение уравнения:

.(1)

Уравнение (1) - выражение характеристик температурного поля математическими методами. На основании этого можно сделать вывод об определении поля температур как совокупности значений температур, существующих в любой временной момент в каждой пространственной точке, в отношении которой происходит изучение.

Поле температур может быть нестационарным и стационарным. Уравнение (1) представляет собой самую общую запись поля температур (отображает изменение температуры в зависимости от точки и времени, в которое производится наблюдение). Данное поле называется нестационарным, поскольку оно соответствует колеблющемуся режиму температур.

В случае формирования постоянного теплового режима, в каждом месте поля со временем температура не изменяется (такое поле температур получило название стационарного). В данном случае температура зависит только от точки, что в уравнении выражается координатной зависимостью:

.(2)

Если поле температур попадает под уравнения (2) и (1), то оно называется пространственным (значение температур зависит от всех координат). Двумерное поле температур - поле, температура в точках которого зависит только от двух координат. Выражается такое поле следующим уравнением:

.(3)

Одномерное поле - поле, в котором температура изменяется в зависимости только от одной координаты. Для записи поля применяется следующая формула:

.(4)

Самым простым для записи является стационарное одномерное поле температур. Оно выражается уравнением (5):

.(5)

3.3 Температурный градиент


В случае соединения точек с равными температурными значениями сформируется изотермическая поверхность.

Поскольку для одной точки в один момент времени возможна только одна температура, поверхности изотермического характера не имеют точек пересечений. Они либо полностью лежат внутри тела, либо имеют границы на его поверхности.

При плоскостном пересечении поверхностей изотермического характера формируется изотермическое семейство. Члены семейства изотерм имеют аналогичные изотермическим поверхностям характеристики (либо полностью лежат внутри тела, либо имеют границы на его поверхности).

Рисунок 1.2-Изотермы

Рисунок 1.2 даёт представление об изотермах, температурные значения которых отличаются друг от друга на величину Δt.

Значения температур в теле меняются только по тем направлениям, которые пересекают поверхности изотермического характера. Больше всего температура на единицу измерения длины меняется в направлении, совпадающем с нормалью к поверхности изотермического характера.

Увеличение температурных значений в направлении, совпадающем с нормалью к изотермической поверхности, определяется температурным градиентом.

Температурный градиент - вектор, направлением которого является нормаль к поверхности изотермического характера (конкретное направление определяется той стороной, при движении в которую температура повышается). Численное значение вектора рассчитывается по температурной производной, взятой по направлению вектора (уравнение (6)):

,(6)

где    - нормальный вектор единичного размера, который направлен в сторону, где повышается температура;

 - температурная производная по n.

Скалярная величина обладает разными значениями для отличающихся точек поверхности изотермического характера. Данная величина приобретает большие значения при снижении расстояния Δn между поверхностями, в которых наблюдаются одинаковые значения температуры. В дальнейшем данная величина также будет иметь наименование градиента температур.

При снижении температуры величина приобретает отрицательные значения.

Векторные проекции grad t на оси координат будут высчитываться по следующим формулам:

(7)

3.4 Тепловой поток. Закон Фурье


Теплота распространяется в среде только в том случае, если температура в ней распределена неравномерно (градиент температуры в разных точках изучаемого пространства должен иметь отличающиеся от нуля значения).

Как гласит гипотеза Фурье, тепловое количество Дж, которое проходит через поверхность изотермического характера за временной промежуток t, является пропорциональным градиенту температур :

.(8)

Коэффициент, который фигурирует в уравнении (8), является физической характеристикой вещества. На основании значения, которое он приобретает для каждого вещества, можно судить о том, насколько хорошо вещество пропускает через себя теплоту. В физике для данного коэффициента принято название «коэффициент теплопроводности».

Плотность потока тепла - теплота, которая за временную единицу проходит через единичную площадь поверхности изотермического характера  Вт/м2. Плотность потока тепла - векторная величина, значение которой определяется уравнением (9):

.(9)

Направление вектора совпадает с нормалью, проведённой к поверхности, объединяющей точки с одинаковыми температурными значениями. Положительные значения вектора совпадают с направлениями, в которых температура убывает (теплота может передаваться только от тел, которые нагреты в большей степени, чем остальные). На основании вышесказанного можно сделать вывод о расположенности векторов и grad(t) на единой прямой и одновременно - об их разнонаправленности. Именно из-за этого в правых частях соотношений (8), (9) фигурирует знак «минус». Лини потока тепла - линии, для которых касательные имеют те же направления, что и вектор q. На рисунке 1.2 отображена ортогональность таких линий по отношению к поверхностям, объединяющим точки с одинаковыми температурными значениями. Линии теплового потока ортогональны к изотермическим поверхностям (рис. 1.2).

Формула (10) используется для расчёта скалярной величины вектора плотности потока тепла, q, Вт/м2:

.(10)


Рисунок 1.3 -Изотермы и линии теплового потока

Соответствие гипотезы Фурье реальному положению вещей было подтверждено большим количеством экспериментов. Именно поэтому уравнения (1.9) и (1.8) - математические записи основного закона, согласно которому осуществляется теплопроводность. Формулировка закона следующая: плотность потока тепла пропорциональная значению температурного градиента.

Поток тепла -теплота, которая за заданную временную единицу проходит через поверхность F(изотермическую). В случае различных значений температурного градиента в разных точках поверхности теплоту, которая пройдёт за заданную временную единицу целиком через всю изотермическую поверхность, можно найти, пользуясь формулой (11):

,(11)

где    - элемент поверхности F. Единица измерения величины Q - Вт.

Формула (12) позволяет рассчитать всю теплоту Q, Дж, которая за временной промежуток t проходит через поверхность F, объединяющую все точки с равными температурами:

.(12)

При учёте формулы (13) становится возможным расчёт количества теплоты, которая за временную единицу проходит сквозь площадку , которая по отношению к плоскости находится под углом φ(рисунок 1.3). В таком случае теплота определяется по формуле (12).

.(13)

Поскольку - проекция на поверхность изотермического характера площадки ,теплота, которая за время пройдёт через , рассчитывается согласно формуле (14):

.(14)

Формула 15 - расчёт теплоты, которая за всё время τпротекает сквозь поверхность Fl,

.(15)

Как можно судить на основании уравнения (13), плотностью потока тепла с наибольшим значением будет та, которая рассчитывается вдоль нормали, проведённой к поверхностям изотермического характера. Если поток будет спроектирован на оси координат, то при учёте уравнения (7) будет получено:

.(16)

Рисунок 1.4 -К расчету теплового потока

Потоки тепла, которые выражаются при помощи уравнения (16), составляют вектор плотности потока тепла:

.(17)

На основании вышесказанного можно сделать вывод о необходимости наличия знания поля температур, которое формируется в теле изучения, для расчёта теплоты, которая пройдёт через поверхность этого тела. Главная задача аналитической теории - определение поля температур.

 

.5 Коэффициент теплопроводности


Как уже говорилось выше, коэффициент теплопроводности относится к числу физических характеристик вещества. Данный коэффициент зависит от рода вещества, давления и его температуры (в общем случае), в большинстве случаев он определяется экспериментально. Как правило, значение рассматриваемого коэффициента основывается на изучении потока тепла и температурного градиента, которые возникают в веществе.

Соотношение, используемое для определения численного значения коэффициента теплопроводности λ, Вт/(м*К):

.(18)

4. КОНВЕКТИВНЫИ ТЕПЛООБМЕН В ОДНОРОДНОИ СРЕДЕ

 

.1 Главные положения учения о конвективном теплообмене, определения и понятия учения


Конвективный теплообмен возникает при движении газа или жидкости, которые переносят тепло. При теплообмене конвективного характера теплота транспортируется одновременно теплопроводностью и конвекцией. Тепловая конвекция - перемещение теплоты вместе с макрочастицами газа или жидкости, которые изменяют своё местоположение, переходя в область с иной температурой. Конвекция может возникнуть только в среде, обладающей свойствами текучести, поскольку теплота при конвекции перемещается только вместе с самой средой.

Если за временную единицу через какую-либо поверхность по направлению, которое по отношению к данной плоскости является нормальным, проходит жидкость , кг/ (м2 * с), где - скорость, ρ -жидкостная плотность, то одновременно осуществляется перемещение энтальпии, Дж/ (м2 * с):

.(19)

При тепловой конвекции всегда возникает теплопроводность. Формируется данный вид теплопередачи прежде всего за счёт неизбежного соприкосновения при перемещении составляющих газа или жидкости, температурные значения которых отличаются друг от друга. Теплообмен конвективного характера описывается посредством уравнения (20):

.(20)

Здесь q - местное значение плотности, которой обладает тепловой поток. Теплопроводность описывается первым членом, стоящим в правой части соотношения, конвекция - вторым членом этой же части.

Теплоотдача - процесс конвективного теплообмена в газовых либо жидкостных потоках при наличии тела, которое соприкасается с этими потоками. Зачастую в расчётах инженерного характера определяется численное значение теплоотдачи, при этом косвенным интересом обладает знание того, как в жидкой среде осуществляется конвективный теплообмен.

Закон Ньютона-Рихмана, выражаемый формулой (21), применяется при определении численного значения теплопередачи:

.(21)

По данному закону поток тепла dQc, Вт, который протекает по направлению от жидкости к поверхности тела dF, с которым соприкасается тела (или наоборот), имеет значение, прямо пропорциональное dF и (tс-температура, которая формируется на поверхности тела, tж -температура среды газообразного или жидкого характера, которая окружает тело). Параметр tс- tж имеет название «температурный напор».

В уравнение 1.22 входит параметр α - коэффициент теплоотдачи. Значение коэффициента - учёт условий, в которых протекает теплоотдача и оказывающих влияние на интенсивность данного процесса.

Согласно уравнению (1.22)

.(22)

Данное тождество нужно рассматривать в качестве закона, по которому определяется численное значение коэффициента. Единица измерения α - Вт/ (м2*К).

Коэффициент теплоотдачи - плотность потока тепла qс, который формируется на границе между газом (жидкостью) и твёрдым телом, которая отнесена к температурной разнице между газом (жидкостью) и твёрдым телом.

Значение коэффициента α в общих случаях меняется в зависимости от точки поверхности F. Если Δt, α Δt обладают по всей поверхности Fпостоянными значениями, то закон Ньютона - Рихмана приобретает следующий вид:

.(23)

На конкретное значение α влияет множество факторов. В общих случаях αзависит от размеров тела и его формы, движения жидкости, её температуры, физических характеристик и иных величин. В зависимости от того, какие процессы оказали влияние на приведение жидкости в движение, теплоотдача может протекать по-разному.

Необходимым условием приведения жидкости в движение является приложение силы к ней. Каждый элемент жидкости испытывает воздействие силы, которые могут являться поверхностными или объёмными. Объёмные (или массовые) силы - силы, которые обуславливаются существованием силовых полей вне жидкости и приложенные к каждой её частице. Формирование поверхностных сил обуславливается действием тел или жидкостей, которые окружают жидкость, и имеют точки приложения только на поверхности жидкости. К числу таких сил можно отнести силы трения и давления извне.

Конвекция может быть свободной либо вынужденной. Если конвекция является свободной, то движение жидкости в её объёме обуславливается неоднородностью сил массового характера, которые действуют в ней. Если жидкость, температура в которой распределена неравномерно, испытываем земное тяготение, то может сформироваться свободное гравитационное перемещение. Далее в исследовании будет изучаться в основном свободная гравитационная конвекция, возникающая вследствие неоднородности поля температур.

Вынужденное движение изучаемого жидкостного объёма производится поверхностными силами извне, которые прилагаются на границах поверхности за счёт энергии, предварительно сообщённой. Течение жидкости, которые вызывается действием однородных полей в жидкости массовых сил, также является вынужденным. Последнее можно иллюстрировать течением жидкостной изотермической плёнки по стенке исключительно за счёт существования силы тяжести.

В общих случаях свободное и вынужденное движения могут осуществляться совместно. Свободное движение влияет тем больше, чем с меньшей скоростью жидкость двигается вынужденно. Кроме того, свободное движение приобретает большее относительное влияние, если температурная разница между отличающимися компонентами среды больше. Свободная конвекция влияет ничтожно мало, если вынужденное движение жидкости происходит на больших скоростях. Стационарность жидкости или газа достигается при условии, что со временем температура и скорость в разных компонентах газа или жидкости не меняются.

4.2 Физические характеристики жидкости


Теплообмен в зависимости от характеристик, которыми обладают газы либо жидкости, может протекать своеобразно. Самым большим влиянием на процесс обладают λ (коэффициент теплопроводности), ср (удельная теплоёмкость вещества), р (плотность), а (коэффициент проводимости температуры, которые ранее при изучении теплопроводности уже применялся),μ (коэффициент вязкости).В зависимости от вещества перечисленные выше величины меняют свои значения и имеют статус функций, влияющих на параметры состояния (давления, температуры). Больше всего физические характеристики веществ меняются в околокритической области состояний в термодинамическом плане, а также при очень низких температурных значениях.

Для проведения анализа конвективного теплообмена с теоретической точки зрения сделано следующее предположение: физические характеристики газов и жидкостей в изучаемом температурном интервале являются постоянными.

У всех реальных жидкостей существует вязкость, поскольку слои и частицы жидкости, которые двигаются с различными значениями скоростей, трутся друг о друга, вследствие чего движение испытывает противодействие. Касательная сила s, Па, по закону Ньютона является пропорциональной изменениям скорости по направлению, совпадающем с нормалью к данной плоскости:

.(24)

Коэффициент р - коэффициент вязкости (измеряется в Н*с/м2). При численно s =μ.

В уравнениях из областей теплопередачи и гидродинамики часто встречается отношение μ к ρ. Данное отношение получило название кинематического коэффициента вязкости и обозначение v, м2/с:

.(25)

μ и v- параметры физического характера. Их значения имеют зависимость от температуры.

Рисунок4.1 -3ависимость динамического коэффициента вязкости воды от температуры.

Вязкость капельной жидкости практически не зависит от давления, однако существенно уменьшается, если температура испытывает повышение. Рисунок 4.1 даёт представление о наиболее характерной функции  применительно к капельным жидкостям.

Как демонстрирует рисунок 4.2, параметр μ у газов повышается при увеличении температур. Давление оказывает на μ у газов небольшое влияние: при его повышении коэффициент слабо увеличивается. Что касается кинематической вязкости, которой обладают капельные жидкости, то она снижается при увеличении температур почти так же, как и μ (температура оказывает на плотность небольшое влияние).

Рисунок 4.2 -Зависимость динамического и кинематического коэффициента вязкости воздуха от температуры при давлении р=760 мм рт. ст.

У газов, на плотность которых температурные изменения оказывают очень большое влияние, вязкость кинематического характера при повышении температур испытывает увеличения значений. Если газ или жидкость, у которых проявляется вязкость, текут в определённом направлении то из-за трения внутри сред наблюдается рассеяние. Данный процесс заключается в обращении части кинетической энергии, которой обладает всякий движущийся объект (в том числе жидкость) в теплоту, вследствие чего жидкость становится более нагретой. Если жидкость течёт с небольшой скоростью или её вязкость маленькая, то нагреваться жидкость при движении будет несущественно.

Далее в работе будут рассматриваться процессы, в которых теплота трения приобретает допустимые для пренебрежения значения.

Способность жидкостей к сжатию влияет на теплоотдачу. Формула (26) позволяет рассчитать коэффициент сжимаемости тела при условии постоянства температуры:

,(26)

Данная величина даёт представление об относительном плотностном изменении вещества при повышении (или понижении) давления на него.

Закон Ньютона выполняется не для всех жидкостей. При описании свойств вязкостей таких жидкостей при помощи уравнения (26) можно прийти к выводу о зависимости коэффициента вязкости от особенностей протекания процесса. Данные жидкости получили название неньютоновских.

Способность к изотермическому сжатию, проявляемая капельными жидкостями, имеет чрезвычайно маленькие значения. К примеру, для воды ε ≈ 5*10-10 Па-1 (увеличение давления на значение 1 бар изменяет относительную плотность на 1/20 000). Это же наблюдается и в отношении всех остальных жидкостей капельного характера, вследствие чего для них изотермической сжимаемостью допускается пренебречь.

В нормальном состоянии воздух имеет значение параметра ε=10-5 Па-1, а значит, его сжимаемость в 20 тысяч раз превышает аналогичный показатель воды. Остальные газы имеют к своим жидкостям соотношения такого же порядка.

Главным является действительное сжатие газа в конкретном течении, в отношении которого производится изучение. Чтобы газ существенно сжался, на него нужно подействовать большим давлением. Если газ движется с формированием разностей в давлении, значения которых являются по сравнению с абсолютным давлением, которое оказывает газ, небольшими, то объём газа практически не изменится (им можно придать статус несжимаемым при проведении первого приближения).

Если течение газа имеет значительную скорость, то давление изменяется в больших пределах. Результат - наличие у теплоотдачи целого ряда особенностей, которые проявляются на больших скоростях. Если такие особенности не будут учтены, то исследование будет включать в себя ошибки.

Далее в работе по большей части рассматривается теплоотдача, которая проявляется несжимаемой жидкостью (термин «жидкость» будет означать как сами жидкости, так и газы). Будет проведено отдельное рассмотрение теплоотдачи, которую проявляет сжимаемый газ.

Течения газа, которые могут и не могут быть сжаты, ничем не отличаются друг от друга. Как правило, законы теплоотдачи и движения, используемые для жидкости, которая не может сжиматься, используется применительно к газам в том случае, если их скорость меньше, чем одна четвёртая часть от скорости звука.

Конвективный теплообмен может значительно изменять условия своего протекания в зависимости от того, каким тепловым расширением обладает жидкость. Охарактеризовать данный параметр можно температурным коэффициентом расширения в объёме, рассчитываемый при условии принятия давления постоянным по следующей формуле:

.(27)

По своей трактовке температурный коэффициент расширение в объёме β, К-1, является относительным объёмным изменением, которое формируется при условии постоянного давления при понижении либо повышении температура на один градус.

У жидкостей рассматриваемый показатель приобретает сравнительно малые значения (за исключением близких к критической точке термодинамики областей). Существуют жидкости, у которых данный коэффициент может быть отрицательным (пример - вода при t<4°C).

В случае идеального газа коэффициент температурного характера расширения в объёме является обратной к абсолютной газовой температуре величиной:

.(28)

Если жидкость нагрета неравномерно, то поле плотности вследствие протекания температурного расширения становится неравномерным. Вследствие этого может возникнуть свободное движение.

. ТЕПЛООБМЕН ИЗЛУЧЕНИЕМ

 

.1 Основные законы излучения, характеристика процесса


Лучистый теплообмен сегодня очень широко применяется в ракетостроении, теплотехнике, сушильной технике, химтехнологии, гелиотехнике, светотехнике и других технических областях.

Тепловое излучение - процесс, при котором внутренняя энергия, наличествующая у излучающего тела, распространяется в пространстве посредством волн электромагнитного характера (возмущения, которые испускаются излучающим телом со скоростью, равной с=3*108 м/с). Если волны поглощаются какими-либо телами, то их энергия становится внутренней энергией данных тел. Возбудители волн электромагнитного характера - материальные частицы, обладающие зарядом. Частота, обусловленная колебанием ионов, имеет низкие значения, при движении электронов формируется гораздо более высокая частота (при вхождении электрона в атом и его удержании в равновесии силами, существенными для электрона).

Металлы имеют множество свободных электронов, вследствие чего разговор о колебаниях, совершаемых возле позиции равновесия, неправомерен. Электроны осуществляют движение и нерегулярно тормозятся. Из-за этого излучение, которое дают металлы, является импульсным и раскладывается на волны нескольких частот. Излучение имеет не только волновые, но и корпускулярные свойства, которые заключаются в дискретном поглощении (испускании) энергии веществом посредством фотонов. Фотон - составляющая материи, у которой есть энергия, электромагнитная масса и некоторое сообщённое её движение. Именно поэтому излучение теплового характера можно изучать в качестве фотонного газа.

Когда фотон проходит через вещество, он сначала поглощается им, а затем испускается. На основании вышесказанного можно судить о двойственности характера излучения (оно имеет как свойства непрерывности, присущие волнам электромагнитного характера, так и свойства дискретности, которые имеются у фотонов). Оба свойства синтезируются, вследствие чего формируется представление о сосредоточении импульса, энергии в фотонах, а вероятность того, что они находятся в какой-либо точке пространства - в волнах. Излучение можно охарактеризовать параметрами волновой длины (λ) или частоты, с которой совершаются колебания (v=c/λ). Таблица 1 свидетельствует об одинаковой природе всех видов излучения электромагнитного характера (единственное отличие - разные значения волновых длин).

Таблица 1-Классификация излучения электромагнитного характера по признаку волновой длины

Вид изучения

Длина волны, мм

Космическое

0,05*10-9

γ-излучение

(0,5 ÷ 0,10) 10-9

Рентгеновское

1*10-9÷ 2*10-5

Ультрафиолетовое

2*10-5 ÷ 0,4*10-3

Видимое

(0,4 ÷ 0,8)*10-3

Тепловое (инфракрасное)

0,8*10-3÷ 0,8

Радиоволны

>0,2


Поскольку длины волн электромагнитного характера отличаются друг от друга, явления, которые присущи всем рассматриваемым волнам, проявляются для разных волн в разной степени. К примеру, корпускулярные свойства лучше всего выражаются в излучении с короткими длинами волн. Что же касается волновых характеристик, то они ярче всего проявляются у волн радиодиапазона.

Большая часть жидких и твёрдых тел излучает непрерывно (энергия волн, которые ими излучаются, может приобретать значения от 0 до ∞). Твёрдые тела, дающие непрерывающийся спектр излучения - непроводники, полупроводники, металлы, у которых поверхность имеет шероховатости и окислена. Селективный спектр излучения - металлы с поверхностью, для которой была проведена полировка, пары, газы. То, насколько интенсивно тело излучает, зависит от его температурных характеристик, длины его волны, кондиции поверхности. У тел, находящихся в жидком и твёрдом состояниях, способности к излучению и поглощению являются значительными, вследствие чего в лучистом теплообмене принимают участие лишь те слои, которые находятся на поверхности. Толщина таких слоёв невелика: для тел, не проводящих тепло - 1 мм, для тел, проводящих тепло - 1 мкм. Из-за этого излучение теплового характера в приближении изучается как поверхностное явление. Тела, обладающие полупрозрачностью (к примеру, оптическая керамика, стекло), имеют объёмный излучательный спектр, участвуют в котором все частицы в объёме вещества. То, насколько сильно тело излучает, зависит от его температурной кондиции. При увеличении температурного режима внутренняя энергия, которой обладает тело, увеличивается, вследствие чего его энергия также повышается, а её спектральный состав претерпевает изменения. Если тело изменяет свою температуру в сторону увеличения, то интенсивность его изучения в коротковолновом диапазоне повышается (для длинноволнового диапазона - наоборот). Излучение зависит от температуры гораздо больше, чем конвекция либо теплопроводность, вследствие чего при наступлении высоких значений температуры тела излучение может стать основным способом, за счёт которого переносится тепло.

5.2 Виды лучистых потоков; вектор излучения

Полусферическое излучение. Излучение энергии телом производится спектром (прерывистым либо сплошным) по длинам волн.

Энергия излучения, которую поверхность испускает за временную единицу во всех возможных для полупространства направлениях, соответствующая интервалу волновых длин с узким значением отλ до λ+dλ, получила название спектрального излучения (Qλ). Интегральный поток излучения - сумма всего излучения, которое тело осуществляет по всем волновым длинам в спектре (Q).

Рассчитать интегральный поток, который исходит с одной единицы поверхности, можно по формуле (29):

,(29)

где    dQ - лyчистый поток, который испускается с элементарной площадки dF, Вт.

Интеграл для выражения лучистого потока, испускаемого всей поверхностью:

.(30)

При одинаковой плотности потока, которым осуществляется интегральное излучение, для всех составляющих поверхности тела, излучающего энергию, формула (30) обращается в вид:

.(31)

Спектральная плотность излучательного потока - отношение плотности, которой обладает лучистый поток, испускаемый в малом интервале волновых длин, к размеру такого интервала волновых длин:

.(32)

Зависимости (29), (30), (31) справедливы к излучению монохроматического характера.

Плотность потока излучения может изменяться по определенным направлениям излучения. Количество энергии, испускаемое в определенном направленииl, определяемым углом ψ с нормалью к поверхности n (рисунок5.1) единицей элементарной площадки в единицу времени в пределах элементарного телесного угла dωназывается угловой плотностью излучения. По определению угловые плотности спектрального и интегрального излучения выражаются соотношениями

;(33)

.(34)

Из этих соотношений следует, что.

;(35)

.(36)

К очень важным понятиям теории излучения относится интенсивность (яркость) излучения.

Рисунок 5.1 - К определению яркости излучения.

Интенсивностью излучения называется количество лучистой энергии, испускаемое в направлении угла ψ в единицу времени элементарной площадкой в пределах единичного элементарного телесного угла, отнесенное к проекции этой площадки на плоскость, ортогональную к направлению излучения (рисунок 5.1):

,(37)

,(38)

откуда

,(39)

,(39)

здесь lλ и l - интенсивности (яркости) спектрального и интегрального излучений; φ - угол, составленный нормалью к площадке и направлением излучения.

В общем случае спектральная интенсивность излучения зависит от координат точки М, направления, длины волны и времени.

Интегральная величина интенсивности излучения характеризует распределение суммарной для всех длин волн энергии излучения по всевозможным направлениям в данной точке для выбранного момента времени.

Распределение интенсивности излучения по отдельным направлениям может быть самым различным. В частном случае оно может быть одинаковым по всем направлениям.

Излучение, характеризующееся интенсивностью, одинаковой по всем направлениям, называется изотропным. Если излучение исходит с поверхности твердого тела, оно называется идеально диффузным излучением. Понятие интенсивности (яркости) излучения может относиться к отдельным видам излучения, рассматриваемым ниже. Поэтому можно говорить об интенсивности собственного, падающего, эффективного и других излучений.

Потоки интегрального и монохроматического излучения связаны следующими зависимостями:

; ; .(40)

Излучение, которое определяется природой данного тела и его температурой, называется собственным излучением (Q, Е).

Обычно тело участвует в лучистом теплообмене с другими телами. Энергия излучения других тел, попадая на поверхность данного тела извне, частично поглощается, частично отражается, а часть ее проходит сквозь тело. Количество лучистой энергии, падающее на данное тело в поле излучения, обозначается через Qпад или Епад. Часть падающей энергии излучения, поглощенной данным телом, называется потоком поглощенного излучения (Qпогл, Епогл). При поглощении лучистая энергия вновь превращается во внутреннюю энергию.

Плотность потока поглощающей лучистой энергии Епогл, Вт/м2:

;(41)

здесь А-интегральная поглощательная способность тела.

Рисунок 5.2 - Зависимость поглощательной способности от длины волны.

-абсолютно черное тело, 2- серое тело, 3-тело с селективным поглощением.

Тела, которые поглощают всю падающую на них энергию, называются абсолютно черными (А=1). Такое тело воспринимается зрением как черное тело; отсюда происходит название абсолютно черного тела. Если поверхность поглощает все лучи, кроме световых, она не кажется черной, хотя по лучистым свойствам она может быть близка к абсолютно черному телу, поскольку имеет высокую поглощательную способность (например, лед и снег А=0,95÷0,98). Соотношение (41) может относиться к монохроматическому излучению, как и последующие зависимости. Спектральная поглощательная способность Аλ в общем случае может изменяться с длиной волны различным образом. В частном случае она может не зависеть от длины волны.

Тела, для которых спектральная поглощательная способность не зависит от длины волны, называются серыми телами (рисунок 5.2). Для серых тел Аλ=const≤1, так как серые тела поглощают не всю падающую на них лучистую энергию. Часть падающей энергии будет отражаться или пропускаться (проходить) через массу этих тел.

Часть падающей энергии, которую поверхность данного тела отражает обратно окружающим его телам, носит название потока отражённого излучения. Плотность потока отраженного излучения Еотр, Вт/м2, равна:

,(42)

где    R-интегральная отражательная способность тела. Если процессы отражения от поверхности подчиняются законам геометрической оптики и R= 1, то поверхность тела называют зеркальной (блестящей); при идеально диффузном отражении ее называют абсолютно белой. При идеально диффузном (изотропном) отражении энергия отражается телом равномерно по всем направлениям независимо от направления падающего на поверхность излучения.

Часть падающей энергии излучения, проходящая сквозь тело, называется плотностью потока пропускаемого излучения Епроп, Вт/м2:

,(43)

где D -интегральная пропускательная способность тела. Тела, имеющие интегральную пропускательную способность, равную единице, называются прозрачными или диатермичными (тонкие слои сухого воздуха, слои одноатомных газов).

Рисунок 5.3 - Классификации потоков излучения.

Тела, характеризующиеся величиной, называют полупрозрачными (стекло, кварц, сапфир). Для многих твердых и жидких тел интегральная пропускательная способность принимается равной нулю, так как они практически являются непрозрачными.

Совместные процессы взаимного испускания, поглощения, отражении и пропускания энергии излучения в системах различных тел называются лучистым теплообменом, причем тела, входящие в данную излучающую систему, могут иметь одинаковую температуру. Для тела, участвующего в лучистом теплообмене с другими телами, согласно закону сохранения энергии, можно составить следующие уравнении теплового баланса (рисунок 5.3):

,(44)

или ,

если зависимость (41) поделить на Епад и учесть предыдущие соотношения.

Суммарная величина плотностей потоков собственного и отражённого излучения, испускаемого поверхностью данного тела, называется плотностью эффективного излучения (рисунок 5.3):

.(45)

Рисунок 5.4 - К определению потока результирующего излучения.

Эффективное излучение зависит не только от физических свойств и температуры данного тела, но и от физических свойств и температуры окружающих его тел. Кроме того, оно зависит от формы, размеров и относительного расположения тел в пространстве. Вследствие этих факторов физические свойства эффективного и собственного излучений различны. Различными оказываются и спектры их излучения. Если поверхность тела имеет идеально диффузионное излучение и идеально диффузионное отражение, то его эффективное излучение будет также идеально диффузионным. Понятие эффективного излучения впервые было введено О. Е. Власовым (1929 г.).

Лучистый теплообмен между телами определяется потоком результирующего излучения.

Результирующее излучение представляет собой разность между лучистым потоком, получаемым данным телом, и лучистым потоком, который оно посылает в окружающее его пространство. Результирующий поток может быть найден различными способами в зависимости от расположения условной расчетной поверхности (рисунок 5.4).

В первом способе (Нуссельта) поток результирующего излучения определяется из теплового баланса относительно поверхности, расположенной внутри тела вблизи его поверхности с учетом, что Епроп=0:

.(46)

Второй способ (О. Е. Власова) состоит в определении qрез из баланса относительно воображаемой поверхности б - б, находящейся вне тела, но вблизи его поверхности:

.(47)

В этом случае вследствие малого расстояния энергия излучении от тела полностью доходит до условной поверхности б - б.

В общем случае плотность потока результирующего излучения определяется разностью, встречных потоков излучения, падающих на условную поверхность в - в:

.(48)

Результирующий поток излучения может быть величиной положительной, отрицательном и равной нулю (при равновесном излучении).

Между плотностями потоков результирующего и эффективного излучений может быть установлена математическая зависимость, если из (47) выразить

,(49)

,(50)

подставив (50) в (49), получим:

(51)

Для черного тела А=1 и Еэф0, т. е. эффективное излучение вырождается в собственное.

Из изложенного следует, что поверхностные плотности всех видов полусферического излучения, кроме собственного излучения, являются линейными функциями падающего излучения. Собственное излучение объединяется и увязывается с другими видами излучения через эффективное излучение.

Объемное излучение. Для среды, которая заполняет некоторый объем системы и может быть излучающей, поглощавшей и рассеивающей, характерными являются объемные плотности потоков излучения (Объемное излучение характеризуется также объемной плотностью энергии излучения и, Дж/м3.). Аналогично изложенному и в этом случае можно говорить об объемных плотностях собственного, поглощенного, рассеянного и других видах излучения.

Интегральной и монохроматической объемными плотностями потоков собственного излучения называются лучистые потоки, испускаемые единицей объема среды в единицу времени по всем различным исправлениям в пределах пространственного угла ω=4π:

; .(52)

η и ηλ измеряются в Вт/м2.

Лучистые потоки, отнесенные ко всему объему, выразятся зависимостями

 ;  .(53)

Потоки монохроматического и интегрального излучений связаны соотношением

.(54)

Плотность поглощенного объемного излучения

.(55)

и плотность рассеянного объёмного излучения

.(56)

представляют собой, как и в зависимостях (41) и (42), некоторые доли плотности падающего объемного излучения ηплад. Величины а и β называются соответственно коэффициентами поглощения и рассеяния. Сумма этих величии называется коэффициентом ослабления среды (k).

Аналогично зависимостям (45) плотностью эффективного объемного излучения называется суммарная величина плотностей потоков собственного и рассеянного излучений:

.(57)

Следовательно, в случае объемного излучения роль отраженного излучения играет рассеянное излучение, а роль поглощательной и отражательной способностей - коэффициенты поглощения и рассеяния.

По аналогии с (46) плотность потока результирующего объёмного излучения выражается зависимостью

.(58)

Последние две зависимости могут быть использованы для получения уравнений, связывающих плотности потоков результирующего и эффективного объёмных излучений, аналогичных (51):


Или

,(60)

Рассмотренные виды поверхностных и объемных плотностей потоков излучения являются основными характеристиками лучистого теплообмена на граничных поверхностях и в объеме среды, заполняющей излучающую систему.

Рисунок 5.5 - К определению вектора излучения.

Поля плотностей различных видов излучения зависит от геометрической конфигурации излучающей системы, от распределения температуры, а также от распределения оптических свойств как по объему среды, так и на границах системы.

Вектор излучения. Вектор излучения (радиации) определяет направление наиболее интенсивного переноса лучистой энергии в рассматриваемой точке поля излучения. Численно он равен потоку результирующего излучения, переносимого в единицу времени через единицу поверхности, ортогональной произвольному направлению переноса излучения, т. е. равен разности значений потоков излучения, падающих с двух сторон на указанную поверхность. Это видно из следующего. Элементарный поток, проходящий через площадку dF (рис. 16-5), выразится скалярным произведением вектора излучения на:

;

Или

.(61)

где qn- проекция вектора излучения на нормаль к поверхности. Для потоков излучения, падающих на одну сторону площадки dF, угол φ1<π и имеет положительный знак; для другой стороны площадки φ2<π и dQпад2 имеет отрицательный знак. Следовательно, через площадку dF будет проходить поток, равный результирующему:

.(62)

Отсюда получаем:

.(63)

Из (63) следует, что проекция вектора излучения на нормаль к поверхности выражает поток результирующего излучения.

Если поверхность облучается с одной стороны, то проекция вектора излучения определяет поток падающего излучения.

Найдем плотность потока результирующего излучения, используя зависимость дли падающего излучения путем интегрирования по двум полупространствам. Учитывая, что, получаем:

;

Или

.(63)

Составляющие плотности потока результирующего излучения в направлении осей координат Ох, Оу, Оz являются компонентами вектора излучения:

.(64)

Следовательно, вектор излучения определяется векторным интегралом от интенсивности излучения по сферическому телесному углу.

Зависимость (64) представляет собой интегральную форму вектора излучения. Кроме интегральной, вектор излучения может иметь градиентную форму.

Градиентную форму вектор излучения принимает в том случае, когда лучистый перенос тепла рассматривается как процесс испускания дискретных частиц - фотонов. Если длина пробега фотоном относительно мала, то аналогично теплопроводности в газах процесс лучистого переноса осуществляется диффузией энергии излучения в фотонном газе. Тогда можно ввести условный коэффициент теплопроводности за счет излучения (радиации) λрад. В этом случае вектор излучения принимает градиентную форму, аналогичную закону Фурье для вектора теплового потока:

, .(65)

Диффузионное представление о перемещении носителей лучистой энергии справедливо для условий, близких к термодинамическому равновесию, для серой среды, имеющей большую оптическую толщину.

6. ПРАКТИЧЕСКАЯ ЧАСТЬ

 

.1 Оптимизация тепловых потерь через ограждающие конструкции зданий


В условиях растущего дефицита и постоянного подорожания энергоносителей очень актуальным является поиск путей снижения расхода тепловой энергии при отоплении зданий. Необходимость рационального использования и экономии топливно-энергетических ресурсов вызвана также тем, что большая часть территории нашей страны относится к климатическому району, отличающемуся продолжительным отопительным периодом. На практике предлагаются различные способы экономии энергии на теплоснабжение зданий: применение современных методов теплозащиты наружных ограждений, создание энергоэффективных зданий, улучшение энергетического баланса домов за счет пассивного использования энергии солнца, применение индивидуального автоматического оптимального регулирования энергопотребления.

Значительные резервы экономии тепловой энергии заключены также в рациональном архитектурном проектировании жилых и общественных зданий. В данном случае экономия может быть достигнута за счет выбора дифференцированных по сторонам света стен и размера окон, применением в жилых домах моторизованных утепленных ставней и ветроограждающих устройств и соответствующего выбора форм зданий. В данной статье рассмотрим вопросы оптимизации теплопотерь в зданиях различной формы.

Как известно, чем больше наружная поверхность здания при одинаковом объеме его помещений, тем выше потери тепловой энергии здания. Это подтверждается известным соотношением теплопередачи через наружные стены, где потери тепла через расчётную наружную поверхность в единицу времени рассчитывается по формуле:

,(66)

где    - тепловой поток, (Вт);

 - коэффициент теплопередачи, ;

- температуры комнатой и уличной сред, ();

S - площадь наружной стены, (м2).

Во-первых, поставим и решим такую задачу - найти оптимальную форму конструкции дома при минимизации теплопотерь через ограждающие конструкции (через ограждающие стены, пол и потолок). При анализе оптимизации теплопотерь через ограждающие поверхности коэффициент теплопередачи через стенку () и температуры сред в здании и на улице (t) оставим постоянными. Простое аналитическое решение можно получить при оптимизации тепловых потерь в отапливаемых зданиях прямоугольной формы. В решения задачи можно варьировать сторонами здания (или пропорциями сторон здания), но оставляя одинаковыми объемы помещений сравниваемых зданий. Если для сравнения зданий взять одинаковыми высоту этажей, то вместо сравнения объемов помещений можно сравнивать одинаковые полезные площади зданий ().Поэтому для анализа различных зданий и для нахождения оптимальной конструкции дома введено понятие эффективной геометрической конструкции дома ():

,(67)

где    - общая площадь теплопотерь,

 - полезная площадь здания.

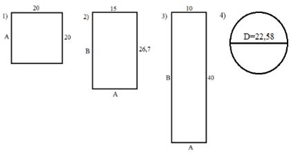
Для сравнения возьмем и рассмотрим три простейших варианта здания прямоугольной формы: квадрат со стороной слабо вытянутый дом со сторонами  и сильно вытянутый вариант домано для сравнения возьмем одинаковые полезные площади зданий.

Рисунок 6.1 - Варианты сравниваемых зданий

Произведем расчет оптимальной геометрической конструкции домов. Для каждого предполагаемого дома будут одинаковые начальные условия: полезные площади зданий, равныена одном этаже. Примем высоту здания, количество этажей  и крышу здания плоской.

Рассчитаем первый пример с квадратным основанием: общая площадь стен пяти этажей здания, через которые происходит теплопотери, равна

,(68)

а полезная площадь здания пяти этажей равна

.(69)

Тогда эффективная геометрическая конструкция дома квадратной формы равна

.(70)

Те же самые расчеты произведем для дома с прямоугольным основанием:

;(71)

при той же полезной площади здания пяти этажей, равная

.(72)

Тогда эффективная геометрическая конструкция дома слабовытянутой прямоугольной формы равна

.(73)

В третьем примере для сильно вытянутого прямоугольника расчет выполним аналогично:

,

при полезной площади

.

Тогда эффективная геометрическая конструкция дома для сильно вытянутой прямоугольной формы равна

.

Пример № 4 здание цилиндрической формы:

,(74)

полезная площадь равна

,(75)

где    n - количество этажей.

При этом эффективная геометрическая конструкция цилиндрического дома

.(76)

Как видим из проведенного анализа, меняя форму конструкции здания можно изменить энергетическую эффективность дома: тогда при одинаковых полезных площадях зданий теплопотери будут сильно меняться в зависимости от формы конструкции здания (в нашем примере на 15% теплопотери увеличиваются в зданиях вытянутой формы).

Во-вторых, найдем эффективность геометрической конструкции дома в зависимости от этажности постройки. Для этого выразим формулу эффективности геометрической конструкции дома для зданий прямоугольной формы в виде

.(77)

Найдем эффективность геометрической конструкции дома для трех заданных нами построений в зависимости от количества этажей. Расчеты приведены в таблице 2:

Таблица 2 - Эффективность геометрической конструкции дома

количество этажей

квадрат

прямоугольник №1

прямоугольник №2

цилиндр

1

2.6

2.625

2.75

2.531

5

1

1.025

1.15

0.931

10

0.8

0.825

0.95

0.731


Как видно из таблицы 2, во-первых, с увеличением этажности во всех формах зданий эффективность геометрической конструкции дома уменьшается, то есть теплопотери уменьшаются через ограждающие стенки. Во-вторых, при сравнении одноэтажных и десятиэтажных домов при одинаковой их полезной площади получим, что эффективность геометрической конструкции квадратного дома уменьшается в - 3,25 раза, слабовытянутого дома - 3,18 раза, а сильновытянутого дома - 2,89 раза.

В-третьих, рассмотрим, как влияет величина основания здания (квадрат) на оптимизацию теплопотерь через ограждающие стены. В таблице 3 приведена эффективность геометрической конструкции домов в зависимости от площади основания и этажности:

Таблица 3 - Эффективность геометрической конструкции домов в зависимости от площади и этажности прямоугольных домов

Площадь основания

одноэтажный дом

пятиэтажный дом

десятиэтажный дом

20х20

2,6

1

0,8

40х40

2,3

0,7

0,5

80х80

2,15

0,55

0,35


В таблице 4 отображена эффективность геометрической конструкции цилиндрических домов в зависимости от площади основания и этажности:

Таблица 4 Эффективность геометрической конструкции домов в зависимости от площади и этажности цилиндрических домов

Площадь основаниям2

одноэтажный дом

пятиэтажный дом

десятиэтажный дом

400

2,531

0,931

0,731

1600

2,266

0,666

0,466

6400

2,133

0,533

0,333


С увеличением площади основания у всех строений уменьшается эффективность геометрической конструкции домов, то есть уменьшаются теплопотери. Этот показатель также уменьшается с увеличением этажности построений.

Также рассмотрим оптимальную форму крыши для дома с целью минимизации теплопередачи через ограждающие конструкции.

На основании вышеизложенного проведем расчеты для двухскатной, четырехскатной, сферической крыши анализируя общую площадь ограждающей конструкции. Для этого площадь основания всех крыш будет одинаковой равная 100 м2, она не будет учитываться в общей площади теплопотерь т.к. под ней находиться отапливаемое здание.

Рассчитаем общую площадь () и полезную площадь теплопотерь () двухскатной, четырехскатной и сферической форм крыш для этого объединим их под одним общим параметром, площадью основания равной 100 м2. Параметры двухскатной и четырехскатной крыш: высота крыш , ширина , длинна . Мной будет введен параметр, именуемый полезной шириной основания , для расчета полезной площади основания т.к. скат не позволяет задействовать всю ширину основания, тогда  и . Для простоты расчета все скаты крыш будут известны.

Начнем с расчета двухскатной крыши:

Зададим неизвестные параметры В=С=4 м; А=5,65 м; В=h;

Рисунок 6.2 - Основание и половина двухскатной крыши

Общая площадь полезного жилого пространства составит:

.(78)

Общая площадь теплопотерь двускатной крыши составит:

;(79)

.

Коэффициент полезной площади чердака можно рассчитать по формуле (78):

;(80)

.

Проведем расчет для четырехскатной крыши с углами наклона крыши.

Также зададим неизвестные параметры:

A=3,324 м; В=3,5 м; С=h=4 м; С1=3,43 м; A1=0,74 м; D1=3,26 м; B1=0,57 м;

Рисунок 6.3 - Основание и половина четырехскатной крыши

Общая площадь теплопотерь четырехскатной крыши составит:

,(81)

,(82)

,

.

Полезная площадь теплопотерь четырехскатной крыши составит:

,(83)

.

Коэффициент полезной площади четырехскатной крыши можно рассчитать по формуле (1.84):

,(84)

Расчет для полусферической крыши при r = 5,64 м и h = 5,64 м.

Общую площадь теплопотерь полусферической крыши вычислим используя формулу:

,(85)

.

Рисунок 6.4 - Полусферическаякрыша

Данную полусферу можно разделить на два этажа высотой по 2,82 м, радиус второго основания будет равен 4,88 м поэтому полезная площадь полусферической крыши:

,(86)

.

Коэффициент полезной площади крыши можно рассчитать по формуле (87):

,(87)

где    N - количество этажей в полусфере

.(88)

Полученные данные отобразим в таблице 4

Таблица 5 - Общие данные

Параметры

Значения

Этажи

1

1

2

Форма построения дома

2х-скатные

4х-скатные

Полусфера

Площадь основания, м2

100

100

100

Площадь теплопотерь, м2

205,25

232,91

199,7

Площадь полезная, м2

77

96

156,07

Эффективность, Е

2,65

2,42

1,144


На основе полученных данных можно сделать вывод, что наиболее эффективная геометрическая конструкция крыши - это полусфера, также можно отметить, что у полусферы полезная площадь превосходит другие две почти в двое поэтому ее можно использовать сразу как капитальное строение.

Поэкспериментируем с основанием четырехскатной крыши и двухскатной крыши. Для сравнения возьмем три простейших варианта основания крыши прямоугольной формы: квадрат со стороной слабо вытянутое основание со сторонами и сильно вытянутый вариант основания крыши но для сравнения возьмем одинаковые полезные площади оснований крыши результаты занесем в таблицу 5.

Таблица 6 - Данные расчетов двухскатной и четырехскатной крыш

параметры

квадрат

прямоугольник №1

прямоугольник №2

двухскатная крыша

Площадь полезная, м2

192,06

205,42

215

Эффективность, Е

2,54

2,65

3,06

четырехскатная крыша

Площадь полезная, м2

234,45

232,77

241,36

Эффективность, Е

2,422

2,425

2,54


В том и другом случае эффективность геометрической конструкции снижается с увеличением длинны основания, хотя снижение эффективности четырехскатной крыши не так ярко выраженно как у двухскатной крыши.

 

.2 Угловые теплопотери


Результаты расчета и исследований полей температур в угловых частях стен с разными углами примыкания, представленные в работах К.Ф. Фокина [1] и В.Н. Богословского [2], указывают на, то что потери тепла в угловых частях больше, чем других плоскостях стенки. Это происходит по тому, что площадь теплоотдающей поверхности угловой части стены Sну больше площади тепловоспринимающей поверхности Sву. Эти теплопотери учитываются в расчетах вертикальных ограждений в размере 5% для административно-бытовых, общественных и производственных зданий [3].

Примем толщину стен 0,5 метра с углами примыкания стен 450, 900, 1350 .

Определим значение Sну/Sву при углах b > 90°, b = 90° и b < 90°. За длину внутренней поверхности угла возьмем внутренний размер стены Lву = 1 м, именуемый как «гладь стены» [1].

При угле b = 90° (рис. 6.5) и толщине стены dнс длина наружной стороны угла, т.к. Lву = 1 м.

Рисунок 6.5 - Принципиальная схема расчетов угол β=900

Площади теплоотдающей Sну и тепловоспринимающей Sву поверхностей угловой части стены равны соответствующему произведению длин на высоту стены. Так как отношения внешней площади стены к внутренней равна отношению длины внешней стены к внутренней, то в дальнейших расчетах будем пользоваться длинами стен. Например, при толщине dнс = 0,5 м отношение Lну/Lву = 1,5.

При угле β< 90° (рис. 6.6) можно записать:

.(89)

где Lнс - расстояние между внутренним и внешним углом.

Выразим Lнс через tg(b/2):

.(90)

где β - угол между внешними стенами здания. Так, при β = 45° значение tg(b/2) = 0,414.

Рисунок 6.6 - Принципиальная схема расчетов приугле β=450

Для dнс = 0,5 мполучим Lнс = 0,5/0,41 = 1,12 м, а длина внешней части угла Lну = 1 + 1,21 = 2,21 м.

Тогда получим

,(91)

.

На угловую часть добавочные потери теплоты составят не 5%, как указано в СНиП [1] при условии, что толщина стены 0,5 м с углом примыкания β = 900, в других потери для угла примыкания составят:

,(92)

.

соответственно, рассчитаем добавочные потери теплоты.

Рисунок 6.7 - Принципиальная схема расчетовприугле β=1350

Аналогичные расчеты проведем для углов 900 и 1350 полученные данные занесем в таблицу 7.

Таблица 7- Данные расчетов для углов 450,900 и 1350

Угол β, град.

LВУ, м

LНУ, м

Lну/ Lву

Добавочные потери теплоты Qпот, %

45

1

2,22

2,22

7,4

90

1

1,5

1,5

5

135

1

1,19

1,19

4


На основании данных расчетов сложилась определенная картина, чем тупее угол примыкания, тем меньше потери тепла через угол примыкания стен.

6.3 Теплопотери через окна в зависимости от соотношения сторон света.


Учитывать будем три формы теплообмена: теплопередача, теплоотдача (конвективный теплообмен между потоками жидкости или газа и поверхностью твёрдого тела), конвективно-лучистый перенос тепла (совместный перенос тепла излучением и конвекцией) при последнем температура в доме повышается, а не наоборот.

Расчет теплопотерь через 3 окна размерами 1x1,2 метра, дом 10x10 метров

Для начала проведения расчетов теплопотерь дома через окна необходимо вычислить общую площадь всех ранее оговоренных окон. Расчет проведем по формуле:

,(93)

где    - масса жидкости, ;

 - объем жидкости, ;

-количество окон.

.

Теперь для продолжения расчета теплопотерь дома через окна узнаем их характеристики. Для примера возьмем следующие технические показатели:

Окна сделаны из трехкамерного профиля ПВХ

Окна имеют двухкамерный стеклопакет

Тепловое сопротивление двухкамерного стеклопакета и трехкамерного профиля такой конструкции окон:

тепловое сопротивление стеклопакета

,(94)

тепловое сопротивление трехкамерного профиля

,(95)

Большую часть окна - 90%, занимает стеклопакет и 10% - профиль ПВХ. Тепловое сопротивление окна рассчитываем по формуле:

.(96)

Имея данные о площади окон и их тепловое сопротивление, выполняем расчет теплопотерь через окна:

,(97)

где    - температура в комнате и на улице

и мы с вами получили теплопотери дома через окна.

Добавим в формулу влияние ветра на охлаждающий эффект.

Расчетная формула для вычисления эффективной температуры с учетом охлаждающего эффекта ветра

,(98)

где    - эффективная температура с учетом ветра в oC

 - температура воздуха в oC

 - скорость ветра в км/час

Результаты занесем в таблицу 8.

Таблица 8 - Охлаждающий эффект в зависимости от скорости ветра

Скорость ветра

Охлаждающий эффект

м/с

0,1

0

0,25

0,5

1,5

4

3

6

5

7

8

8

10

9

Потери тепла с учетом скорости ветра

,(99)

где    - процентное отношение ветра на стороны света;

Рисунок 6.7 - Роза ветров в Вологде

Таблица 9 - Усредненное процентное значение ветра в Вологде за год (потеря тепла при скорости ветра 3,2 м/с)

С

С-В

В

Ю-В

Ю

Ю-З

З

С-З

9.7 %

5.3 %

6.4 %

10.8 %

19.2 %

15.3 %

14.8 %

18.5 %


В первую очередь, учитывают внешние теплопоступления. Это, прежде всего, солнечная радиация, проникающая через оконные проемы. Количество тепловой энергии, поступающей таким образом, зависит от расположения окна относительно сторон света, его площади и наличия / отсутствия на нем солнцезащитных элементов:

.(100)

где    -средняя удельная тепловая мощность от солнечной радиации в зависимости от ориентации окна Вт*час/м2;

 - площадь остекленной части окна, м2;


Таблица 10 - Коэффициент, учитывающий наличие солнцезащитных элементов на окне


Отсутствие защиты

Жалюзи

Шторы

Внешний навес

k

1

0,5

0,4

0,3


Таблица 11 - Внешние теплопоступления солнечной радиации за год

ориентация окна

С-В

В

Ю-В

Ю

Ю-З

З

С-З

С

q, кВт*год/м2

764.7

1176

1216

1164

1216

1176

764.7

46.8


.(101)

Таблица 12 - Общиеусредненные потери тепла за год

ориентация окна

С-В

В

Ю-В

Ю

Ю-З

З

С-З

С

q, кВт*год/м2

-233.7

-977.7

-1064.3

-998.6

-1079.2

-1005.5

-277.5

1046.4


Также рассмотрим потери тепла за самый теплый и холодный месяц года.

Таблица 13 - Общие потери тепла за январь

ориентация окна

С-В

В

Ю-В

Ю

Ю-З

З

С-З

С

q, кВт*мес/м2

85.59

86.49

90.08

96.93

93.75

93.34

96.36

89.18


Таблица 14 - Общие потери тепла за июль

ориентация окна

С-В

В

Ю-В

Ю

Ю-З

З

С-З

С

q, кВт*мес/м2

-152.8

-154.6

-161.9

-175.9

-530.7

-168.6

-174.7

-160.1


Усредненные потери тепла за год по соотношению окон к сторонам света получились положительными со всеxсторон кроме северной стороны, поэтому не рекомендуется оставлять окна на северной стороне.

6.4 Влияние растворных швов кладки на теплопотери стен

Кладочные швы, которые входят в состав конструкций ограждающего характера, обладают свойствами теплопроводности. Как правило, при осуществлении проектирования то влияние, которое оказывают швы на сопротивление протеканию теплопередачи, не учитывается. Результат - несовпадение тех значений сопротивления теплопередаче, которые существуют на практике, со значениями, полученными в результате расчётов. Вследствие этого заложенные в проект параметры энергетической эффективности строения изменяются. Цель работы - осуществление оценки влияния, которое оказывают кладочные швы, на однородность стен с теплотехнической точки зрения (материал стены - газобетонные блоки), формирование перечня рекомендаций, которые позволят избежать потерь энергии, возникающих вследствие существования швов.

Таблица 14 содержит сведения о расчётных коэффициентах теплопроводности для материала «автоклавный газобетон» (весовая равновесная влажность принимается равной 5%, эксплуатационные условия - «Б», согласно стандарту [1]). В таблице 15 приведены значения коэффициентов теплопроводности, соответствующие газобетону. При укладке стен используются дополнительные материалы помимо основного (к примеру, в стенах существуют кладочные швы, для создания которых применяются растворы). Данные швы обладают свойством теплопроводности. Коэффициент r, учитывающий однородность стены в теплотехническом плане, должен обязательно включаться в расчёты для стен, которые создаются с применением нескольких материалов. Потери тепла через стены увеличиваются в той мере, которую оказывают кладочные швы.

Таблица 15. Теплотехнические характеристики

Материал, используемый для создания стены

Коэффициент теплопроводности (5%-ная влажность), λБ [Вт/(м·ºС)]

газобетон D400 (марка по плотности)

0,117

газобетон D500 (марка по плотности)

0,147

газобетон D600 (марка по плотности)

0,183


Существует несколько категорий кладки стен с применением газобетона: [2]: первая категория - на клею, вторая категория - на растворе. Если кладка относится ко второй категории, то она выполняется на растворе, состоящем из песка и цемента (кладочные швы имеют толщину 10±2 мм). Что касается кладки первой категории, то для её осуществления применяется специальный клей (толщина получающихся швов 02±1 мм). Компании, занимающие ведущие позиции в сфере производства и сбыта автоклавного газобетона, оснащены оборудованием, возможности которого позволяют создавать газобетонные блоки с максимальным отклонением высотных размеров в 1 миллиметр. Учитывая данный факт, можно сделать вывод о целесообразности использования при применении автоклавного газобетона для стены кладки на клею.

Если кладочный шов имеет малую толщину, то значение коэффициента r повышается (а это, в свою очередь, позволяет повысить сопротивление стены теплопередаче). При уменьшении толщин кладочных швов потери энергии через стены снижаются, вследствие чего на достижение оптимальной температуры в здании тратится меньшее количество ресурсов. Наглядно продемонстрировать вышесказанное можно на примерах. Так, в первом примере будет изучено влияние на теплопередачу швов, формирующихся в стенах, для кладки которых используется раствор (средняя толщина - 1 см), во втором примере - влияние на теплопередачу швов, формирующихся в стенах, для кладки которых используется специальный клей (средняя толщина - 2 мм). Для обоих примеров будет использоваться один и тот же материал кладки стены (газобетонные блоки марки D400, марка указывается по плотности, с толщиной блока, равной 375 миллиметрам). Чтобы упростить реализацию расчётов, раствором была признана смесь из цемента и песка (плотность - 1800 кг/м3, λБ=0.93 Вт/м·°С).

Значение термического приведённого сопротивления, которое оказывает теплопередаче регулярный элемент стены, было получено посредством сложения проводимостей [3]. Непосредственно в ходе расчётов была применена формула (10), указанная в своде правил [3].

Пример 1. Осуществляется кладка стен с применением блоков из газобетона (марка по плотности - D400, толщина материала - 374 мм). Категория кладки - вторая, средняя толщина швов - 1 см.

Чтобы произвести расчёт, должен быть принят регулярно повторяющийся кладочный элемент. В рамках работы задача была решена следующим образом: был взят фрагмент стены с размерами блока 625×250 мм (размер блока, выполненного с применением автоклавного газобетона, являющийся стандартным для оборудования Wehrhahn, которое применяется в России для производства газобетонных блоков). Швы для расчёта - вертикальный, горизонтальный два.

Описанный выше регулярный элемент был разделён с помощью плоскостей, направление которых - параллельное потоку тепла, на участки, в рамках которых теплопроводность приобретает различные значения. Были получены два участка, обладавших свойствами однородности и являвшихся одинаковыми. Параметры участков:

;(102)

;

;(103)

;

где    - сопротивление теплопередаче, которое оказывается газобетонной составляющей регулярного элемента;

- площадь газобетонной составляющей регулярного элемента, который имеет перпендикулярное потоку тепла расположение;

о -сопротивление теплопередаче растворной составляющей регулярного элемента;


По формуле (104) можно осуществить расчёт численного значения, которое будет принято коэффициентом теплотехнической однородности:

(104)

Рисунок 6.8 - Схема регулярного элемента, который был использован для определения численного значения коэффициента теплотехнической однородности стен. Материал для кладки стены - газобетон, средняя толщина швов, полученных раствором - 1 см

Пример 2. Кладка стен из выполняется из аналогичных первому примеру блоков из газобетона, при кладке используется специальный клей, позволяющий снизить толщину кладочного шва до 2 мм.

Ниже представлен процесс расчёта сопротивления, которое описанная выше кладка стен оказывает теплопередаче.

Регулярно повторяющийся кладочный элемент, который необходим для осуществления расчётов, был принят тот же самый, что и в первом примере (единственное отличие - 2-миллиметровая толщина кладки). Значения, полученные при расчёте показателей для изучаемого регулярного элемента во втором примере:

;(105)

;

;(106)

.

Использованы те же самые обозначения, что и в первом примере.

Сопротивление теплопередаче, которое оказывает весь регулярный элемент в совокупности, примет значение:

(107)

На основании полученных данных можно рассчитать значение коэффициента теплотехнической однородности:



Рисунок 6.9 - Схема регулярного элемента, который был использован для определения численного значения коэффициента теплотехнической однородности стен. Материал для кладки стены - газобетон, средняя толщина швов, полученных при помощи специального клея - 2 см

Описанные выше примеры свидетельствуют о значительном влиянии, которое оказывают кладочные швы на сопротивление теплопередаче, которое оказывают стены, выполненные из газобетонных блоков (марка - D400 по плотности). Так, для 375-миллиметровых блоков было получено, что при использовании раствора для кладочных швов (в этом случае толщина шва примерно равняется 1 см) дополнительные потери тепла, обусловленные существованием швов, могут составить 27%, при применении специального клея показатель снижается до 7%.

Таблица 2 содержит информацию по количественным значениям коэффициентов однородности теплотехнического характера для разных марок газобетона, используемого для кладки стен. Также значение данного коэффициента может меняться в зависимости от толщины стены.

Таблица 16 - Коэффициенты однородности в теплотехническом плане для газобетона, используемого при кладке стен

Марка газобетона

Толщина стены, мм

Коэффициент теплотехнической однородности, r для кладки на клею (толщина шва 2 мм)

Коэффициент теплотехнической однородности, r для кладки на растворе (толщина шва 10 мм)

D400

100,150,200, 250,300,375

0,93

0,73

D500

100,150,200, 250,300,375

0,94

0,78

D600

100,150,200, 250,300,375

0,96

0,82


Согласно представленным в таблице 15 данным, при повышении плотности газобетонного материала, то влияние, которое кладочные швы оказывают на теплотехническую однородность всей стены, снижается. Нужно заметить, что при применении для швов клея либо раствора, который обладает меньшей способностью к теплопроводности, значения рассматриваемых коэффициентов повысятся (а значит, то сопротивление, которое стены оказывают теплопередаче, увеличится). На основании описанных результатов можно сформировать следующий перечень выводов.

если толщина кладочных швов имеет небольшие значения, то сопротивление теплопередаче, которое оказывает стена, приобретает большие значения (потери тепла через такую стену, возникающие вследствие наличия в ней швов, меньше);

если плотность газобетонного материала, который используется для производства блоков для стен, высокая, то влияние кладочных швов на однородность стены в теплотехническом плане меньше;

если коэффициент теплопроводности у раствора, используемого при кладке стены, имеет небольшое значение, то влияние, которое оказывают кладочные швы на однородность стены в теплотехническом плане, меньше (из-за этого потери тепла через стену вследствие существования таких швов снизятся).

Чтобы снизить влияние, которое оказывают кладочные швы на однородность стен, выполненных с применение газобетонных блоков, в теплотехническом плане, нужно применять для осуществления кладки специальный клей, позволяющий довести толщину шва до 2±1 мм. Если для производства кладки применяется раствор, то его коэффициент теплопроводности должен быть минимальным.

7. ЭКОНОМИЧЕСКАЯ ЧАСТЬ МАГИСТЕРСКОЙ ДИССЕРТАЦИИ

 

.1 Организация процесса разработки и строительства программного продукта для расчета нагрузок на ролики МНЛЗ

 

.1.1 Экспертная оценка трудоемкости выполнения разработки

Расчет трудоемкости разработки производится по следующей формуле:

,(108)

где- трудоемкость работ по стадиям проектирования;

n - количество стадий проектирования.

Воспользуемся экспертными методами определения трудоемкости работ на каждую стадию процесса. Определим, пользуясь собственным опытом и знаниями максимальное и минимальное время необходимое для разработки каждого пункта, а исходя из них ожидаемое время. Ожидаемое время определяется по формуле:

,(109)

где Тож - ожидаемое значение трудоемкости;

минимально возможная продолжительность работы (предполагаемая продолжительность при наиболее благоприятных условиях);

максимальная продолжительность работы (предполагаемая продолжительность при самых неблагоприятных условиях).

Затраты времени на каждую стадию разработки проекта представлены в таблице16.

Таблица 17 - Затраты времени по стадиям разработки проекта

Стадия разработки

 чел. дни

 чел. дни

Ожидаемые затратывремени, чел. дни

Подготовительный этап

35

45

50

Анализ аналогов проекта

14

18

20

Подготовка грунта

30

45

48

Закладка фундамента

45

60

66

Кладка стен здания

150

170

196

Итого:

274

338

380


Вывод: Ожидаемые затраты времени составили 380 чел. дней.

 

.1.2 Определение состава исполнителей, их функций и фондов времени работы

Строительство здания ограничено жесткими условиями, в первую очередь обусловленными необходимостью оперативного выполнения разработки с оптимальным качеством. Время выполнение поставленной задачи не более 12,7 мес. Число человек, работающих над проектом - 41 чел., а именно:

1) руководитель проекта;

2) исполнитель проекта. Функции исполнителей работ:

-руководитель проекта: руководит проектом, определяет общие требования к конструкции здания, выявляет ошибки;

исполнитель: реализует требования руководителя, выявляет и исправляет ошибки.

Распределение объемов работы между исполнителями приведено в таблице 18.

Таблица 18 - Распределение фонда времени

Этапы проектирования

Руководитель

Исполнитель


%

чел. дни

%

чел. дни

Подготовительный этап

90

45

10

5

Анализ аналогов проекта

90

18

10

2

Подготовка грунта

20

10

80

39

Закладка фундамента

10

7

90

60

Кладка стен здания

15

30

85

167

Итого:

-

110

-

273


Вывод: таким образом, объем всех выполняемых работ равен 273 чел. дней.

7.2 Технико-экономическое обоснование проекта


Рассчитаем сметную стоимость разработки.

Для исчисления амортизационных отчислений на оборудование необходимо определить стоимость всего оборудования и программного обеспечения для выполнения проекта. Полная стоимость всех необходимых затрат представлена в таблице 19.

Таблица 19 - Стоимость оборудования и программного обеспечения

Оборудование

Стоимость, тыс. руб.

Силикатный кирпич

7260

Плиты перекрытия

5503

Арматура

3456

Бетон

5540

Окна

2880

Итого

24640


Поскольку предполагается, что ЭВМ уже есть, ее стоимость не входит в затраты, считается только размер амортизационных отчислений на оборудование, который определяется по формуле:

,(110)

 

где Цоб- стоимость строительного материала (24640 тыс. руб.);

tp - время работы, дней (273 день);

Тр - число рабочих дней в году (251 день);

- норма отчисления на амортизацию оборудования(10% в год).

В итоге получим:

Затраты на основную заработную плату исполнителей определяются исходя из оклада и трудоемкости исполняемых ими работ.

,(111)

 

гдеЗПср.мес- среднемесячная заработная п2лата;

Тр - трудоемкость выполняемых работ;

- среднее число рабочих дней в месяце.

Примем следующие размеры окладов для участников разработки: руководитель - 50000 руб., исполнитель - 800000 руб. Расчет фонда заработной платы приведен в таблице 20.

Таблица 20 - Расчет заработной платы

Исполнитель работ

Время, дни

ЗП дн, руб.

Сумма ЗП, тыс. руб.

Доп. ЗП, тыс. руб.

Страховые взносы руб.

Руководитель

110

2273

250

250

-

Исполнитель

273

36600

9927

9927

-

Фонд заработной платы

1018.1

1018.1

346


Ставка тарифов страховых взносов для основных категорий работодателей в 2011 году составляет 34% от общего фонда ЗП:

,(112)

Ставка страховых взносов для основных категорий работодателей:

·   26%- пенсионный фонд РФ;

·   2.9% - фонд социального страхования;

·   2.1% - фонд обязательного медицинского страхования (Федеральный);

·   3% - фонд обязательного медицинского страхования (Территориальный):

,(113)

,(114)

Расчет затрат на прочие расходы определяется в процентном соотношении от суммы предыдущих статей затрат (5%).

,(115)

,

Смета затрат на разработку представлена в таблице 21.

Таблица 21 - Смета затрат на разработку

Статья затрат

Сумма, тыс.руб.

В процентах отобщей суммы, %.

1.Затраты на оборудование

24640

72.64

2.Затраты на амортизацию оборудования

2679

7.9

3.Заработная плата

1018,1

3

4.Страховые взносы

346

1.02

5.Накладные расходы

611

1.8

6.Прочие расходы

220,26

0.65

Сметная стоимость:

33920

100


Вывод: таким образом,с учетом затрат на строительные материалы, амортизацию оборудования, заработную плату, страховые взносы, накладные расходы и прочие расходы сметная стоимость строительства здания составит33920тыс.руб.

7.3 Технико-экономические показатели проекта


Технико-экономические показатели проекта включают в себя технические и экономические результаты, выявленные и рассчитанные в ходе выполнения организационно - экономической части данной диссертации. Все данные занесены в таблицу 22; 23.

Таблица 22- Технико-экономические показатели квадратного здания проекта

Показатель

Единица измерения

Значение показателя

Высота здания

метры

27

Трудоемкость разработки

чел. дни

380

Число исполнителей работ

чел.

41

тыс.руб.

33920



Таблица 23- Технико-экономические показатели цилиндрического здания проекта

Показатель

Единица измерения

Значение показателя

Высота здания

метры

27

Трудоемкость разработки

чел. дни

390

Число исполнителей работ

чел.

41

Сметная стоимость разработки

тыс.руб.

32880


Таблица 24- Технико-экономические показатели четыреxскатной крыши проекта

Показатель

Единица измерения

Значение показателя

Площадькрыши

м2

232,91

Трудоемкость разработки

чел. дни

38

Число исполнителей работ

чел.

21

Сметная стоимость разработки

тыс.руб.

1597


Таблица 25- Технико-экономические показатели сферической крыши проекта

Показатель

Единица измерения

Значение показателя

Площадькрыши

м2

199,7

Трудоемкость разработки

чел. дни

42

Число исполнителей работ

чел.

21

Сметная стоимость разработки

тыс.руб.

1343


Вывод: поскольку проект разрабатывался с использованием передовых технологий, которые в то же время являются весьма распространенными и с использованием стандартов, то здание может использоваться достаточно длительное время без морального устаревания в течение как минимум 15-20 лет. Оптимальный вариант для строительства: здание цилиндрической формы, крыша сферическая.

8. БЕЗОПАСНОСТЬ ЖИЗНЕДЕЯТЕЛЬНОСТИ


При осуществлении работ, к которым работники допущены по своим квалификации и профессии, ими должны соблюдаться требования, указанные в действующих на настоящий момент инструкциях по трудовой охране. Кроме того, ими обязательно должны учитываться те требования, которые предъявляются изготовителем средств защиты, технического оборудования, инструмента, оснастки и фигурируют в инструкциях по эксплуатации конкретных объектов. Ниже представлен анализ причин, которые могут привести к получению работниками травм во время совершения производственной деятельности, также описаны мероприятия, реализация которых поможет снизить количество производственных повреждений травматического характера.

8.1 Организация площадки строительства, рабочих мест и участков


С точки зрения безопасности организация площадки строительства, рабочих мест и участков должна быть осуществлена так, чтобы работники при осуществлении всех предусмотренных видов деятельности находились в безопасности.

Организация площадки строительства, рабочих мест и участков в обязательном порядке сопровождается определением зон, в пределах которых действует постоянная опасность для людей. Также должны быть определены зоны, в которых опасные факторы производства могут воздействовать на работников потенциально. На границах определённых зон устанавливаются заграждения защитного назначения, если же в пределах территории существуют только факторы, которые приводят к опасности для работников лишь потенциально, то на их границах устанавливаются специальные знаки безопасности либо ограждения сигнального назначения.

Если площадка строительства находится в населённом пункте, то она должна иметь ограждения со всех сторон - это необходимо для предотвращения несанкционированного попадания на площадку жителями. Если ограждение непосредственно контактирует с зоной, где осуществляются регулярные перемещения людей, то ограждение сверху должно быть оборудовано сплошным защищающим людей козырьком.

Шурфы, колодцы и иные грунтовые выемки в тех местах, куда потенциально могут попасть люди, должны иметь ограждения, крышки или щиты. При наступлении тёмного времени суток грунтовую выемку нужно обозначить электрическими лампами сигнального назначения.

В месте, где осуществляется въезд автотранспорта на площадку проведения строительства, устанавливается схема, предписывающая, как транспорту нужно двигаться по площадке. Если выезд со строительной площадки находится в проезде или на обочине дороги, то возле него должны быть установлены читаемые дорожные знаки, регулирующие движение ТС в районе выезда с площадки строительства.

Ширина проходов к местам, где осуществляется работа (а также ширина самих рабочих мест) должна составлять как минимум 60 см. Минимально допустимое значение высоты проходов в свету - 1,8 метра.

Вход в сооружение или здание, которое возводится на площадке строительства, должен иметь защиту в виде расположенного сверху сплошного навеса. Минимальная ширина навеса определяется суммой ширины, которую имеет вход, с как минимум двухметровым вылетом от стены строения.

Предназначенные для лифтов, клеток лестниц и оборудования проёмы, которые сооружаются в перекрытиях, должны иметь ограждение либо защитный сплошной настил.

Осуществление складирования на рабочем месте оборудования и материалов должно осуществляться так, чтобы они не снижали ширину проходов и не формировали опасность для рабочего при выполнении ими определённого вида строительных работ. Материалы изоляционного, лакокрасочного, отделочного характера, в состав которых входят вредные либо взрывоопасные компоненты, могут храниться на рабочем месте только в том количестве, которое максимально необходимо для работы в течение одной смены.

Мусор, образовавшийся при строительстве, нужно опускать с лесов и возводимых строений в контейнерах, закрытых ящиках либо по закрытым желобам. Сброс мусора без каких-либо приспособлений разрешается только в том случае, если высота сброса не превышает трёх метров. Места, куда попадает мусор в результате сброса, должны быть ограждены со всех сторон (допускается также установления надзора, задачей которого будет предупреждение о существующей опасности).

На местах, где производится подготовка к применению мастик, клеев, красок и материалов иного характера, в состав которых входят вредные либо взрывоопасные компоненты, действия, из-за которых может возникнуть искра или огонь, не допускаются. Для таких рабочих мест обязательно регулярное проветривание.

8.2 Эксплуатация строительных машин

 

Место, где будут работать машины, должно определяться с учётом обеспечения пространства, где машина сможет свободно маневрировать. В месте, определённом для эксплуатации машины, должны находиться надписи предупреждающего характера, а также знаки безопасности.

Эксплуатация машин требует предварительного принятия мер, которые позволят свести к минимуму вероятность произвольного изменения местоположения машиной либо е        опрокидывания.

8.3 Эксплуатация инструмента, оснастки технологического характера


Работы строительно-монтажного плана невозможны без оснастки (к ней относятся, в частности, штучные и сыпучие материалы, тары для смеси из бетона, подмачивающие средства, устройства для захвата грузов), СИЗ и ручного инструмента строительного назначения.

Подмачивающие средства должны обладать рабочими ровными настилами, максимальный размер зазора между соседствующими досками - 5 мм. Если настил расположен на высоте 1,3 метра (или больше), то по его границам обязательно должны быть борты и ограждения. Щиты настилов могут соединяться внахлёст только по длине (завершения элементов, которые стыкуются, должны располагаться на опоре, причём перекрывать её по каждой стороне как минимум на 0,2 метра).

Леса должны иметь закрепление на стене строения, которое возводится. Каждые 10 дней (или чаще) строительные леса должны осматриваться мастером либо прорабом.

Крюки средств, которые используются для захвата грузов, оснащаются замыкающими устройствами предохранительного назначения. Такие устройства не допускают произвольное падение груза с устройства.

Тара, траверсы и стропы при их эксплуатации, должны осматриваться ответственным за техническое состояние данных приспособлений лицом в сроки, которые прописываются в требованиях.

8.4 Транспортные работы


Владелец ТС должен обеспечить технический сервис транспорта в устанавливаемые для этого сроки заводом, который занимается производством ТС. Кроме того, владельцем транспорта должен обеспечиваться его ремонт.

Грузы для сведения к минимуму вероятности падения или перекатывания размещаются и крепятся на ТС в соответствии с условиями технического характера, которые устанавливаются для данной процедуры применительно к конкретному грузу.

8.5 Газопламенные работы, работы по электрической сварке


Если газопламенная работа либо работа по электрической сварке осуществляется на каком-либо строительном ярусе, то на нём и на всех ярусах, которые лежат ниже (при условии, что настил, защищённый материалом, не поддающимся сгоранию, отсутствует), сгораемых материалов не должно быть в радиусе как минимум 5 метров (если на ярусе есть установки и материалы, которые могут взорваться - как минимум 10 метров).

При работе со сварочными проводами нужно предпринимать меры, в результате которых будет сведена к минимуму вероятность нанесения повреждения изоляции провода либо его соприкосновения со сталью, нагретыми трубами, маслом, водой.

Металлические составляющие оборудования, которое используется для сварки, при отсутствии напряжения на нём, а также конструкции и изделия, которые свариваются между собой, обязательно должны иметь заземление в течение сварочных работ.

Если рабочее место, где работает электросварщик, не имеет защитного навеса, то электросварка не может проводиться при снегопаде либо дожде.

8.6 Работы по разгрузке, погрузке


Необходимо проводить тщательное планирование площадок, где осуществляется разгрузка и погрузка. Максимально допускаемый уклон для площадки - 50.

Строповка грузов осуществляется посредством устройств грузозахватного назначения либо инвентарных строп. Устройства, захватывающие грузы и используемые для строповки, изготовляются по чертежу или проекту, который был заранее утверждён. При строповке скольжение или падение груза должно быть исключено.

Укладка или установка груза на ТС должна производиться так, чтобы груз во время своего перемещения и разгрузки сохранял положение с высокой степенью устойчивости.

8.7 Работы по монтажу


При проведении на участке работ монтажного характера никакие иные работы в рамках участка осуществлять нельзя.

При строительстве сооружений и зданий работы, при которых люди должны находиться на ярусах, являющихся верхними по отношению к ярусу, где в данный момент времени проводятся работы со сборным оборудованием либо конструкциями, не допускаются.

Следующий ярус каркаса может монтироваться только после того, как на ярусе, являющимся для него предыдущим, будут полностью установлены временные ограждения либо конструкции ограждающего назначения.

На разных ярусах работы по монтажу и иные работы строительного характера могут проводиться только тогда, когда между ярусами существует надёжное перекрытие (для перекрытия должны быть проведены расчёты, свидетельствующие о его способности справляться с ударными нагрузками). Также должны быть реализованы все мероприятия, целью которых является обеспечение безопасности при проведении работ.

Для предотвращения вращения и раскачивания составляющих оборудования и конструкций, которые монтируются, нужно применять гибкие оттяжки.

Нахождение людей на составляющих оборудования либо конструкции при их монтаже во время перемещения таких составляющих не допускается.

Монтажники при необходимости перемещения на иную конструкцию должны пользоваться трапами с ограждениями, переходными мостиками, инвентарными лестницами.

Установленные составляющие оборудования либо конструкции должны иметь закрепление, обеспечивающее их нужную неизменяемость в геометрическом плане и устойчивость.

Расстроповка составляющих оборудования или конструкции, которые были смонтированы, может осуществляться только после того, как они были надёжно закреплены на своём месте.

Работы монтажного характера на высоте при ветровой скорости, превышающей 15 м/с, проводиться не могут.

 

.8 Электромонтажные работы


Сети подачи электричества, устройства распределения электроэнергии, панели, щиты, ответвления, которые не были приняты в эксплуатацию с соблюдением установленного порядка, не могут использоваться в строительстве. Не допускается проведение работ по электромонтажу на электроустановке, которая была смонтирована, но не налажена ответственной за это организацией.

8.9 Кровельные работы


Кровельные работы могут осуществляться рабочими после осмотра мастером (прорабом) и бригадиром конструкций ограждений и крыши на предмет возможных неисправностей.

Материалы на крыше могут находиться только там, где это предусматривается проектом работ. В местах размещения материалов должны быть предприняты меры для недопущения падения материала вследствие различных воздействий.

Кровельные работы не могут производиться при тумане, гололёде, любых иных условиях, которые исключают нормальную видимость в месте осуществления работ, ветре, скорость которого превышает 15 м/с, а также грозе.

9. РАЗДЕЛ ПО ЭКОЛОГИИ

 

.1 Охрана водных ресурсов при осуществлении работ строительного характера


Площадь, где размещается объект, должна иметь твёрдое покрытие, по периметру устанавливается бордюрный камень. Планировка площадки по вертикали осуществляется таким образом, чтобы вода стекала с неё. Ливневые воды, которые впитывают в себя нефтепродукты, образовавшиеся вследствие функционирования на площадке автомобильного транспорта, должны собираться и сбрасываться в канализацию.

При проведении строительно-монтажных операций возможно загрязнение вод под землёй и самих земель. Чтобы не допустить этого, запрещается слив отработанных вод на площадке строительства.

Мероприятия при осуществлении работ строительного характера, которые предусматривает проект:

вертикальная планировка площадки должна быть выполнена с уклоном, обращённым туда, где проходит ливневая канализация;

организуется такой отвод вод на поверхности, чтобы техногенные воды и нефтепродукты не попадали в почвенные слои, обладающие свойством поглощения воды.

9.2 Охрана и рациональное пользование землями


Объект, который проектируется, будет располагаться в центре г. Симферополя.

Площадь всего участка - 0,1826 га, площадь участка, где будет осуществляться застройка - 0,045 га.

Рельеф - спокойный, отмечается снижение в северо-восточную сторону. Разница между крайними отметками по высоте - 0,9 м. Условная отметка 0.000 - чистый пол на 1-ом этаже (значение абсолютной отметки -251.400).

На участке существует плодородный почвенный слой (мощность - 0,2 м), который позволит после завершения строительных операций произвести благоустройство участка.

Работы подготовительного характера, которые должны быть реализованы на площадке перед началом строительных операций:

снятие почвенного слоя, обладающего плодородной способностью, организация его хранения в течение всего времени строительства;

демонтаж покрытия, существующего на участке перед началом работ;

демонтаж сооружений и зданий, которые существуют на участке перед началом работ;

изъятие грунтов для фундамента (котлована), применение изъятых грунтов для изменения рельефа на площадке;

организация сооружений и дорог временного характера;

корчевание насаждений, существующих на участке перед началом строительства;

вывоз мусора, образовавшегося при строительстве.

В тех местах, где подобное не предусматривается проектом, перемещение транспорта, работа механизмов, хранение материалов и осуществление работ строительно-монтажного характера не допускается. По завершении строительства территория освобождается от всех отходов путём их вывоза на предварительно согласованную свалку. Бытовой мусор собирается для последующего вывоза при помощи мусороконтейнеров.

Твёрдые покрытия на строительном участке обладают площадью в 0,12 га. Формируются данные покрытия из фигурной плитки, ограждений, лотков, покрытий из асфальтобетонного материала. Та составляющая участка, на которой нет твёрдого покрытия, выравнивается для последующей высадки на ней растительного грунта (мощность - 15 см). После завершения строительства на растительном грунте высеиваются овсяница, мятлик, райграс.

Разрушение покрова растительного характера, который существовал возле объекта до начала строительства, компенсируется после завершения его возведения мероприятиями по озеленению. В частности, будут организованы клумбы, произведена посадка кустарников и деревьев.

9.3 Прогнозирование изменений в природной среде


Технология, согласно которой объект будет возводиться и эксплуатироваться, исключает факты намеренного сбора отходов с последующим их сбросом в окружающую среду.

Мусор, сформировавшийся при строительстве, вывозится на специальную свалку, территория которой заранее согласуется.

Место сбора отработанных ГСМ - выгреб-отстойник.

Водный бассейн местности не испытывает загрязнения (ливневые и хозяйственно-бытовые стоки попадают в канализационные системы).

Принятые решения в проекте вместе с комплексом мероприятий природоохранного назначения дают возможность не допустить ухудшения состояния окружающей объект среды. Ниже приведён перечень мероприятий, которые реализуются при строительстве для защиты от всевозможных строительных загрязнений окружающей среды:

Устройство покрытия из бетона с бордюрами на той территории, где будет возводиться объект (это позволит не допустить попадание стоков в почву).

Планировка участка по вертикали осуществляется с учётом необходимости отвода стока по поверхности (вследствие такого решения территория будет защищена от подтопления после ливня).

Исходя из проведённых расчётов расчетов и оценивания того воздействия, которое эксплуатация объекта окажет на воздух, можно с уверенностью сказать о том, что природная среда в районе осуществления строительных операций не изменится. Поскольку на объекте проекта работы строительного характера будут производиться по современной технологии, будут применены новые материалы для отделки, а также будет внедрена индивидуальная отопительная система, состояние окружающей среды в районе строительства в негативную сторону не изменится.

9.4 Заявление о последствиях для экологической ситуации


Раздел проекта «Оценивание оказываемого на природную окружающую среду воздействия» выполнен с учётом требований, которые предъявляются действующим законодательством.

Площадка имеет расположение в г. Вологда.

Площадь участка - 0,1826 га.

Цель ОВОС - определение безопасности объекта, для которого осуществляется проектирование, с экологической точки зрения, формирование перечня мероприятий, в результате которых будет не допущено загрязнение природной окружающей среды.

Толщина слоя почвы на участке, обладающего свойством плодородия, незначительна. Слой гумуса перед строительством будет снят и в дальнейшем использован для мероприятий по благоустройству.

Если все проектные мероприятия, преследующие цель охраны природы и заложенные в объект, будут реализованы, то состояние природной окружающей среды в районе производства строительных операций в негативную сторону не изменится.

ЗАКЛЮЧЕНИЕ

В магистерской диссертации решаются вопросы по энергоэффективного строительства - повышение качества ограждающих конструкций без существенного увеличения их стоимости, а также разработаны технико-экономические методики: влияния достоверности значений коэффициентов теплосопротивления ограждающих конструкций на плату за отопление, оценки энергосбережения от применения рекуперации теплоты.

В магистерской диссертации решены следующие задачи:

. Разработан способ определения фактических значений эффективной геометрической конструкции дома;

. Разработан способ определения фактических значений коэффициентов теплосопротивления по измеряемым коэффициентам теплопроводности слоёв ограждающей конструкции;

. Произведены сравнения результатов испытаний из различных источников

. Определена зависимость платы за отопление от достоверности значений коэффициентов теплосопротивления.

. Разработана математическая модель теплопередачи через многослойную ограждающую конструкцию, позволяющая определять фактические значения коэффициентов теплоотдачи при различных граничных условиях с использованием программы Mathcad и Matlab;

. Разработан уточненный алгоритм определения значений коэффициентов теплосопротивления в реальных условиях.

СПИСОК ИСПОЛЬЗОВАННЫХ ИСТОЧНИКОВ


1.       Богословский, В.Н. Строительная теплофизика (теплофизические основы отопления, вентиляции и кондиционирования воздуха). Учебник для ВУЗов. Изд. 2-е, перераб. и доп. - Москва: Высшая школа, 1982.

.        Богословский,В.Н.; Сканави,А.Н. Внутренние санитарно-технические устройства. Ч. 1. Отопление / Под ред. И.Г. Староверова и Ю.И. Шиллера. - Москва: Стройиздат, 1990.

.        Фокин, К.Ф. Строительная теплотехника ограждающих частей зданий. - Москва: Госиздат по строительству и архитектуре, 1953.

4.          СП 60.13330.2012. Свод правил. Отопление, вентиляция и кондиционирование воздуха: актуализированная редакция СНиП 41-01-2003: утв. Минрегионом РФ 30.06.2012 № 279. - Введ. 01.01.2013. - Москва: ФАУ «ФЦС», 2012. - 81 с.

5.       СП 23-101-2009. Проектирование тепловой защиты зданий. Москва: ФГУП ЦПП, 2009. - 320 с.

.        ГОСТ 31359-2007. Бетоны ячеистые автоклавного твердения. Технические условия. Москва: Изд-во стандартов, 2008. - 14 с.

.        СТО 501-52-01-2007. Проектирование и возведение ограждающих конструкций жилых и общественных зданий с применением ячеистых бетонов в Российской Федерации. Москва: Ассоциация строителей России, 2007. 41 с.

.        Оптимизация тепловых потерь при выборе проекта дома:[сайт]. URL:http://zona422.ru/post128351003 (дата обращения 2.05.2017)

.        «Протеже бай» - проектно-строительная компания: [сайт]. URL: http: //protege.by/sites/default/files/MSD_2014_12.compressed.pdf (датаобращения 28.03.2017)

10.     «ПРОМВЕНТХОЛОД»// Расчет теплопритоков в помещенияхhttp://www.promventholod.ru/tekhnicheskaya-biblioteka/raschet-teplopritokov-v-pomeshcheniya.html(датаобращения14.02.2017)

Похожие работы на - Оптимизация тепловых потерь через ограждающие конструкции зданий

 

Не нашли материал для своей работы?
Поможем написать уникальную работу
Без плагиата!
Без нейросетей!