Расчет железобетонных конструкций перекрытия пятиэтажного промышленного здания

  • Вид работы:
    Курсовая работа (т)
  • Предмет:
    Строительство
  • Язык:
    Русский
    ,
    Формат файла:
    MS Word
    1,74 Мб
  • Опубликовано:
    2017-01-06
Вы можете узнать стоимость помощи в написании студенческой работы.
Помощь в написании работы, которую точно примут!

Расчет железобетонных конструкций перекрытия пятиэтажного промышленного здания

Содержание

1. Исходные данные

2. Компоновка здания из сборных железобетонных конструкций. Составление монтажного плана перекрытия

3. Расчет ребристой панели

3.1 Назначение характеристик прочности бетона и арматуры, определение высоты панели

3.2 Расчет продольного ребра панели по нормальным сечениям

3.3 Расчет полки панели

3.4 Расчет промежуточного поперечного ребра

3.5 Расчет продольного ребра панели по наклонным сечениям

3.6 Определение прогиба панели

4. Расчет колонны

4.1 Задание на проектирование

4.2 Сбор нагрузок, расчетная схема, определение усилий

4.3 Подбор сечений

5. Расчет фундамента

5.1 Исходные данные

5.2 Определение размеров фундамента

5.3 Проверка прочности нижней ступени против продавливания

5.4 Расчет плиты фундамента на изгиб

Список литературы

1. Исходные данные


В курсовом проекте требуется рассчитать железобетонные конструкции перекрытия пятиэтажного промышленного здания, имеющего жесткую конструктивную схему. Ниже приведены исходные данные.

-ти этажное здание имеет неполный железобетонный каркас. Наружные ограждающие конструкции - несущие кирпичные стены толщиной 510 мм.

Сборные железобетонные перекрытия поддерживаются ригелями, опирающимися на наружные кирпичные стены и внутренние колонны, которые доводятся до отметки пола 5-го этажа. Конструкция покрытия здания в проекте не рассматривается, нагрузка от покрытия передается только на наружные кирпичные стены.

Здание имеет жесткую конструктивную схему, его пространственная жесткость обеспечивается плоскими дисками перекрытий, а так же системой продольных и поперечных наружных кирпичных стен. Т.о., принимаем расчетные схемы для рассматриваемых конструкций, как для элементов, работающих только на вертикальные нагрузки.

Исходными данными для проектирования являются:

)        длина здания в осях: 30,0 м;

2)      ширина здания в осях: 20,8 м;

3)      сетка колонн: 5,2х6,0 м;

)        высота этажа: 6,0 м;

5)      класс ответственности здания - нормальный (II), коэффициент надежности по назначению здания (по ответственности):  = 0,95;

6)      нормативные нагрузки:

·        нормативная временная длительно действующая нагрузка (полезная):  = 0,7*17 = 11,9 кН/м2;

перекрытие железобетонная конструкция арматура

·        нормативная временная кратковременная нагрузка  = 0,3*17 = 5,1 кН/м2;

·        нормативный вес конструкций пола:  = 0,8 кН/м2;

)        расчетное сопротивление грунта основания  = 0,21 МПа;

8)      бетон класса В15;

)        арматура класса А300;

)        снеговой район - IV.

 


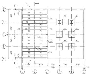
2. Компоновка здания из сборных железобетонных конструкций. Составление монтажного плана перекрытия


Здание проектируется с неполным ж/б каркасом, поперечным расположением ригелей и продольными несущими стенами. Принято 30/6 = 5 плит по длине и 4 плиты на пролет здания (Рис. 1).

Привязка внутренних поверхностей стен к разбивочным осям принята равной 120 мм. Для принятой сетки колонн основная панель перекрытия П-1, подлежащая расчету, имеет номинальные размеры в плане 6000х1300 мм. Принято четыре плиты на пролет.

Конструктивные размеры этой панели в плане будут менее номинальных по длине на 30мм, по ширине - на 10мм, т.е. плита 5970х1290 мм. Из условия обеспечения прочности на продавливание при действии сосредоточенных нагрузок принимаем толщину полки панели (минимально допустимую) hП = 50 мм.

Монтажный план междуэтажного перекрытия и поперечный вертикальный разрез здания показаны на Рис. 1 и Рис. 2.

Рис. 1. Монтажный план перекрытия.

Рис. 2. Разрез 1-1.

3. Расчет ребристой панели


3.1 Назначение характеристик прочности бетона и арматуры, определение высоты панели


Панели изготавливаются из бетона класса В15 (Rb=8,5МПа; Rb,ser=11 МПа; Rbt=0,75 МПа; Rbt,ser=1,15 МПа; Eb=24000 МПа). Средняя плотность обычного тяжелого вибрированного железобетона принимается ρ=2,5 т/м3.

Для армирования продольных ребер панели применяется продольная рабочая арматура из стали класса А300 (Rs=270 МПа; Rs,ser=300 МПа; Es=200000 МПа) и поперечная арматура из стали класса А240 (Rsw=170 МПа; Es=200000 МПа). Рабочая арматура для полки панели - класса А400 (Rs=355 МПа) или из обыкновенной холоднотянутой проволоки класса В500 (Rs=415 МПа). Арматура подъемных петель принимается из стали класса А240 (Rs=215 МПа)

Расчетные характеристики материалов приняты по [3].

Для определения высоты панели h произведен сбор нагрузок на 1 м2 перекрытия, выполнен в табличном виде (

Таблица 1).

Таблица 1. Нагрузка на 1м2 перекрытия, кН

Вид нагрузки

Нормативное значение qН, кН/м2

γf

Расчетное значение qР, кН/м2

Постоянная: от массы пола

qНП = 0,8 кН/м2

1,3

qРП = 1,04 кН/м2

от массы панели

qНПАН = hred х ρ х 10 = =0,075 х 2,5 х 10 = 2,175 кН/м2

1,1

qРПАН = 2,393 кН/м2

Итого:

qН = 2,975кН/м2qР = 3,433 кН/м2



Временная: длительная

pНДЛ = 11,9 кН/м2

1,2

кратковременная

pНКР = 5,1 кН/м2

1,3

pРКР = 6,63 кН/м2

Итого:

pН = 17 кН/м2pР = 20,91 кН/м2



Всего: длительная

qНДЛ = qН+ pНДЛ =14,875 кН/м2qРДЛ = qР+ pРДЛ = 17,713 кН/м2



кратковременная

qНКР = pНКР = 5,1 кН/м2


qРКР = pРКР = 2,73 кН/м2

полная

qН = qНДЛ + рНКР = 19,975 кН/м2qР = qРДЛ + рРКР = 24,343 кН/м2




В таблице:

γf - коэффициент надежности по нагрузке;

ρ =2,5 т/м2 - средняя плотность железобетона;

hred =0,075 м - приведенная толщина панели, принятая по рекомендациям [6].

- округленное значение ускорения свободного падения, м/с2.

Отношение длительной нагрузки к полной:

17,713/24,343 = 0,728<0,9, следовательно, принимаем коэффициент  = 1,0.

Высота панели, удовлетворяющая одновременно условиям прочности и требованиям жесткости, определяется по формуле:

 = 34*5875*270/200000* (14,875*1,5+5,1) /19,975 = 370,1 мм,

где: с - коэффициент, для ребристых панелей с полкой в сжатой зоне принимаемый равным 30…34 (большие значения принимают при арматуре класса А300, меньшие - при арматуре класса А400);

l - расчетный пролет панели, определяемый как расстояние между серединами площадок опирания на ригель без учета зазоров между панелями;

 = 6000-0,5*250 = 5875 мм;

 

b = 250 мм - ширина ригеля, принятая конструктивно;

qНДЛ, qНКР, qН - нормативные значения нагрузок, (

Таблица 1);

 - коэффициент, учитывающий увеличение прогиба при длительном действии нагрузки, для ребристых панелей с полкой в сжатой зоне принимается:  =1,5.

Принимаем h=450 мм.

 

3.2 Расчет продольного ребра панели по нормальным сечениям


Панели укладываются на ригели свободно и под воздействием равномерно распределенной нагрузки работают как простые балки на двух опорах). Расчетная нагрузка на 1 м при номинальной ширине панели 1,3 м с учетом коэффициента надежности γn=0,95 составляет:

 = 24,343*1,3*0,95 = 30,064 кН/м.

В соответствии с расчетной схемой панели наибольшие усилия определяются по формулам:

 = 30,064*5,875^2/8 = 129,71 кН*м;

 = 30,064*5,875/2 = 88,313 кН.

При расчете продольных ребер фактическое П-образное сечение панели с полкой в сжатой зоне заменяется тавровым.

При этом полку в растянутой зоне в расчетах не учитывают.

При расчете прочности по изгибающему моменту ширина ребра в расчетной схеме принимается равной суммарной ширине всех ребер панели. Таким образом, расчетная ширина ребра эквивалентного таврового сечения составляет:

.

Расчетная ширина сжатой полки при обычно принимается равной ширине панели.

В рассматриваемом случае:

 = 50/450 = 0,11>0,1 - условие выполнено.

При этом ширина свеса полки в каждую сторону от ребра может быть принята равной  расстояния в свету между продольными ребрами, но не более 1/6 расчетного пролета панели:

 = 0,5* (1290-20*2-90*2) = 535;

 = 5875/6 = 979,17.

Принимаем  = 535 мм.

Значение , вводимое в расчет, составляет:

 = 160+2*535 = 1230 мм.

Назначаем предварительно рабочую высоту сечения в предположении однорядно расположения арматуры по высоте сечения:

 = 450-35 = 415 мм.

Определяем положение нейтральной оси, пользуясь неравенством:

М = 129,71 кН*м < 8,5*1290*50* (415-0,5*50) = 213,818 кН*м.

Условие выполнено, значит, нейтральная ось проходит внутри полки и сечение должно рассчитываться как прямоугольное с размерами  = 1230 мм и  = 415 мм.

 = 129,71/ (1,0*8,5*1230*415^2*10^ (-6)) = 0,072.

Согласно Прил.4 [6]:  =0,963.

Требуемая площадь поперечного сечения продольной арматуры ребер:

 = 129,71*10^6/ (0,963*415*270) = 1202,1 мм2.

Принимаем по сортаменту (Прил.2 [6])  28 А300 с  = 1232 мм2.

 

3.3 Расчет полки панели


Полка плит марки П представляет собой четыре прямоугольные ячейки в плане со сложным характером опирания сторон. В поперечном направлении полка защемлена в продольных ребрах, а в продольном направлении она работает как неразрезная многопролетная конструкция, опорами которой являются поперечные ребра.

Для упрощения расчета каждую из ячеек полки в статическом отношении условно рассматриваем как плиту, опертую по контуру, с частичным защемлением в продольных и поперечных ребрах. За расчетные пролеты принимаются:

·        в коротком направлении (пролет в свету):

 = 1230-2*80 = 1070 мм;

 = 1360-80 = 1280 мм,

где  и  - ширина поверху поперечного и продольного ребер соответственно;

 = (6000-2*285) /4 = 1357,5  1360 мм - расстояние между осями двух поперечных ребер.

Нагрузка на полку плиты собирается с условной полосы шириной 1 м.

Изгибающий пролетный момент в полке плиты на 1 м ширины для упрощения расчета вычислим по формуле:

,

Тогда момент от полной нагрузки составит:

 = 0,8*24,343*0,95*1,3^2/48 = 0,651 кН*м = 651000 Н*мм.

Уточняем толщину полки плиты, приняв коэффициент армирования  = 0,006:

 = 0,006*415/8,5 = 0,293;

 = 0,293* (1-0,5*0,293) = 0,250;

 = (651000/ (8,5*1000*0,250)) ^0,5 = 17,50 мм;

 = 17,50+15 = 32,5 мм.

С учетом рекомендаций п.5.4 и 5.7 [4], оставляем толщину полки равной 50 мм с  = 50-15 = 35 мм.

Определим площадь арматуры на 1 м ширины плиты:

 = 651000/8,5/1000/35^2 = 0,063< = 0,376 (п.3.2 [3]),

т.е. сжатая арматура по расчету не требуется;

 = 8,5*1000*35* (1- (1-2*0,063) ^0,5) /415 = 46,68 мм2.

Принимаем рулонную сетку марки С-1  с продольной и поперечной рабочей арматурой площадью  = 47,1 мм2; сетка С-1 раскатывается вдоль продольных ребер на всю ширину полки. Дополнительная сетка С-2 заводится в продольные ребра на длину, равную

 

3.4 Расчет промежуточного поперечного ребра


Поперечные ребра панели монолитно связаны с продольными ребрами, однако, учитывая возможность поворота их при действии внешней нагрузки, за расчетную схему поперечного ребра в запас прочности принимаем балку со свободным опиранием.

Расчетный пролет поперечного ребра исчисляется как расстояние между осями продольных ребер:

 = 1290-2*80 = 1130 мм.

Принимаем высоту поперечных ребер 200 мм, ширину по низу - 60 мм, по верху - 80 мм.

Максимальная нагрузка на среднее поперечное ребро передается с треугольных грузовых площадей . Треугольную нагрузку допускается заменить на эквивалентную равномерно распределенную по формуле:

,

где нагрузка  равна:

 = 24,343* (1,28+0,07) = 32,86 кН/м,

где  = 0,5* (60+80) = 70 мм - средняя толщина поперечного ребра;

значение  выбирается из таблицы сбора нагрузок (

Таблица 1).

Собственный вес поперечного ребра:

 = 0,07* (0,2-0,05) *25*1,1 = 0,3 кН/м.

Тогда полная эквивалентная нагрузка составит:

 = 5/8*32,86+0,3 = 20,84 кН/м.

Расчетные усилия:

 = 20,84*1,36^2/8 = 4,82 кН*м = 4,82*106 Н*мм;

 = 20,84*1,36/2 = 14,17 кН.

При отношении толщины полки плиты к высоте ребра  = 5/20 = 0,25>1 согласно п.3.26 [4] за расчетное сечение поперечного ребра принимаем тавровое с шириной полки в сжатой зоне:

 = 2*1130/6+80 = 456,67 мм <

<  = 1130/2+80 = 645 мм.

Необходимое количество продольной арматуры класса А400 при  = 200-25 = 175 мм:

 = 4,82*10^6/8,5/456,67/175^2 = 0,041;

 = 8,5*456,67*175* (1- (1-2*0,041) ^0,5) /355 = 80 мм2.

Принимаем в поперечных ребрах плоские сварные каркасы с продольной арматурой из стержней 12 класса А400 с  = 113,1 мм2.

Поперечную арматуру принимаем из стержней 8 класса А240 с шагом 150 мм.

 

3.5 Расчет продольного ребра панели по наклонным сечениям


Проверяем достаточность размеров принятого сечения ребер для обеспечения прочности по бетонной полосе между наклонными сечениями из условия:

 = 88,313 кН <  = 0,3*1,0*8,5*160*415/1000 = 169,320 кН.

Условие удовлетворяется. В данном выражении:

Q = 88,313 кН - поперечная сила в нормальном сечении элемента, принимаемая на расстоянии от опоры не более h0.

 - коэффициент, принимаемый равным 0,3.

Проверка выполнения условия:

 = 88,313 кН <  = 0,5*1,0*0,75*160*415/1000 = 24,9 кН.

Условие не выполняется, значит, на рассматриваемом участке образуются наклонные трещины, и требуется постановка поперечной арматуры по расчету.

В зависимости от принятого диаметра продольных стрежней, устанавливаемых в ребрах, из условий сварки назначаем диаметр поперечных стержней  = 8 мм с  = 50,3 мм2, по [6] Прил.2,3. Число арматурных каркасов в панели , при этом  = 2*50,3 = 100,6 мм2 - площадь сечения поперечных стрежней, расположенных в одной перпендикулярной к продольной оси элемента плоскости, пересекающей наклонное сечение (Рис. 3).

Назначаем предварительно шаг поперечных стержней по всей длине пролета  = 150 мм, что отвечает конструктивным требованиям: ,  = 415/2 = 207,5 мм, а также не превышает величину наибольшего допустимого расстояния  между двумя соседними поперечными стрежнями, при котором исключается образование наклонной трещины между ними,  определяется по формуле:

 = 1,0*0,75*160*415^2/88313 = 234,0 мм.

Определяем усилие в поперечных стержнях на единицу длины элемента:

 = 170*100,6/150 = 114,01 Н/мм.

Проверяем соблюдение условия:

 = 114,01 Н/мм >  = 0,25*1,0*0,75*160 = 30 Н/мм -

условие выполняется, и поперечные стержни могут полностью учитываться в расчете.

По условию  проверяем прочность двух наклонных сечений, расположенных вблизи опоры, для которых  = 2*415 = 830 мм и  = 3*415 = 1245 мм.

Поперечная сила , воспринимаемая бетоном в первом наклонном сечении, определяется по формуле:

 = 1,5*1,0*0,75*160*415^2/830 = 37350 Н,

 - коэффициент, принимаемый равным 1,5.

Но  принимают не более

 = 37350   = 2,5*1,0*0,75*160*415 = 124500 Н.

И не менее:

 = 37350   = 0,5*1,0*0,75*160*415 = 24900 Н.

Условия выполняются.

Поперечная сила, воспринимаемая поперечными стержнями, определяется по формуле:

 = 0,75*114,01*830 = 70971 Н,

где  - коэффициент, принимаемый равным 0,75;

 - наибольшая длина проекции наклонной трещины, принимаемая равной , но не более .

;

 37350+70971 = 108321 Н.

Дополнительно произведем проверку прочности наклонного сечения с

 = 1,5*1,0*0,75*160*415^2/1245 = 24900 Н;

;

Н  24900+70971 = 95871 Н.

Значит, для наклонного сечения с  условие так же выполняется. Таким образом, прочность всех проверенных сечений достаточна.

Рис. 3. Схема усилий при расчете ребра панели по наклонному сечению на действие поперечных сил.

Окончательно назначаем шаг поперечных стержней по длине пролета  = 150 мм. Назначаем диаметр продольного монтажного стержня каркаса ребра  ( = 8+4 = 12 мм и ).

 

3.6 Определение прогиба панели


Прогиб панели определяется с учетом отсутствия нормальных трещин в стадии эксплуатации, и с учетом только эстетических требований от действия только постоянных и длительных нормативных нагрузок.

Согласно методическим указаниям, расчет ведется только по несущей способности.

4. Расчет колонны

 

4.1 Задание на проектирование


Требуется рассчитать промежуточную колонну четырехэтажного производственного здания с жесткой конструктивной схемой и сеткой колонн  = 5,2х6,0 м.

Ригели перекрытия размещены поперек здания и вместе с колоннами образуют рамные узлы. Здание имеет неполный железобетонный каркас, и концы ригелей крайних пролетов свободно опираются на наружные продольные кирпичные стены, на которые также передается нагрузка от покрытия. Высота первого и последующих этажей - 4,7 м. Нагрузки на 1 м2 от междуэтажного перекрытия и на ригеля приняты по данным таблицы (

Таблица 1) и П.4.2 данного расчета.

Для изготовления колонны назначаем бетон класса В20 (Rb=13,0МПа; Rbt=1,1МПа; γb1=0,9; Eb=25000 МПа) и продольную рабочую арматуру из стали класса А400 (Rs=Rsс=355 МПа, ES=200000 МПа).

 

4.2 Сбор нагрузок, расчетная схема, определение усилий


Нагрузка на колонну собирается с грузовой площади:

 = 5,2*6,0 = 31,2 м2.

Постоянная нагрузка на колонну:

от перекрытия одного этажа с учетом γn=0,95:

 

 = 3,433*31,2*0,95 = 79,135 кН,

где  = 3,433 кН (

Таблица 1);

от собственной массы ригеля:

 

 = 5,23*4,8 = 25,1 кН, где:  = 5,23;

от собственной массы колонны сечением 0,4х0,4 м,  = 6,0 м, :

 

 = 0,4^2*6,0*2,5*1,1*0,95*10 = 25,08 кН;

временная длительная:

 = 14,28*31,2*0,95 = 423,26 кН.

Итого:  = 79,135+25,1+25,08+423,26 = 552,575 кН.

Постоянная нагрузка с четырех перекрытий:

,575*4 = 2210,3 кН.

Временная кратковременная нагрузка на колонну от перекрытия одного этажа с коэффициентом γn=0,95:

 = 2,73*31,2*0,95 = 80,92 кН.

Временная кратковременная нагрузка с четырех перекрытий:

,92*4 = 323,68 кН.

В расчетах использованы значения нагрузки  = 14,28 кН и  = 2,73 кН (

Таблица 1).

Итоговая нагрузка:

 = 2210,3+323,68 = 2533,98 кН.

 

4.3 Подбор сечений


Ширина колонны квадратного сечения:

 = (2566980/ (1280+0,01*36500)) ^0,5 = 39,50 см.

Принимаем b=40,0 см. Площадь сечения бетона 1600 см2.

Усилие, воспринимаемое арматурой (площадью сечения )


где коэффициент продольного изгиба:

 но не более .

Коэффициент  представляет собой отношение усилия, воспринимаемого арматурой, к усилию, воспринимаемому бетоном.

При  =  коэффициент , при  коэффициент , при  коэффициент >, что недопустимо. Поэтому при  формулой  не пользуются, а сразу принимают .

Формула  содержит два неизвестных:  и . В подобных случаях задаются значением одного неизвестного, а другое определяют путём последовательных приближений. В первом приближении принимаем .

Подбор арматуры идёт в следующем порядке. Если , то  

Если  подбор арматуры становится более продолжительным, так как в этом случае произведение приходится определять последовательными приближениями, т.е. при различных значениях коэффициента , до тех пор, пока оно значение не стабилизируется, т.е. пока последнее значение произведения будет отличаться от предпоследнего не более чем на 5%.

И лишь затем можно пользоваться формулой

В нашем случае отношение  = 323,68/2533,98 = 0,1.

Гибкость колонны  = 600/40 = 15. Тогда по интерполяции:

 = 0,903,  = 0,906 (п.3.58 [4]).

Первое приближение:

 = 2566980/0,906-1300*1600 = 753311 Н;

 = 753311/1300/1600 = 0,362 < 0,5;

 = 0,903+2* (0,906-0,903) *0,362 = 0,905.

Второе приближение:

 = 2566980/0,905-1300*1600 = 756442 Н;

 = 756442/1300/1600 = 0,364 < 0,5;

 = 0,903+2* (0,906-0,903) *0,364 = 0,905.

Процесс приближений закончен, поскольку последнее значение выражения  отличается от предпоследнего менее чем на один процент.

 = 756442/36500 = 20,72 см2.

Поскольку толстые стержни более устойчивы, чем тонкие (при прочных равных условиях), следует избегать очень большого количества стержней - согласно рекомендациям [15], следует принять четыре стержня, шесть или восемь (рис.5). При этом расстояние между стержнями должно быть не более 400 мм (п.5.18 [2], п.5.57 [5]). Задаёмся 4Ø28A-III ( = 24,63 см2)

Так как здание имеет жёсткую конструктивную схему, то в рассматриваемой колонне практически не возникают поперечные силы, поэтому диаметр и шаг поперечных стержней следует принять по конструктивным соображениям: шаг по п.5.22 [2], п.5.59 [5], согласно которым поперечные стержни устанавливают (во избежание потери устойчивости продольной арматуры) на расстоянии не более 500 мм, не более 2b (b - ширина сечения колонны) и не более при вязаных каркасах - 15d, при сварных - 20 d (d - наименьший диаметр стержней в сечении колонны).

В местах стыкования рабочей арматуры внахлёстку, без сварки, шаг поперечных стержней должен составлять не более 10 d. Если насыщение сечения колонны продольной арматурой составляет свыше 3%, то поперечные стержни устанавливают на расстоянии не более 10 d и не более 380 мм.

Диаметр стержней - 10 мм.

Так как насыщение сечения продольной арматурой составляет 4,32/1600*100% = 0,28%, что меньше 3%, то шаг поперечных стержней должен быть не более 20d=20*2,0= 40 см, не более 2b=2*40,0=80,0 см и не более 50,0 см. Принимаем шаг поперечных стержней равным 25,0 см.

Рис. 4. К армированию стыка колонны с колонной:

а - концы стыкуемых колонн; б - схема их армирования

5. Расчет фундамента


5.1 Исходные данные


Поперечное сечение колонны, заделанной в стакан фундамента, принято размерами 400х400 мм, применяется бетон класса В20 (Rb=14,3МПа; Rbt=1,1МПа; γb1=0,9; Eb=25000 МПа), продольная арматура 12 А400.

Требуется запроектировать фундамент, глубина заложения подошвы которого составляет 1,4 м, из бетона класса В20 (Rb=14,3МПа; Rbt=1,1МПа; Eb=25000 МПа), арматура класса А400 ( = 355 МПа). Расчетное сопротивление грунта основания  = 0,21 МПа. Под подошвой фундамента предусматривается бетонная подготовка.

Отношение длительной и кратковременной нагрузки:

 = 2210,3/2533,98 = 0,872<0,9, принимаем  = 1,0.

При расчете по второй группе предельных состояний:

 = 2533,98/1,17 = 2165,79 кН,

где 1,17 - усредненный коэффициент надежности по нагрузке ;

 = 2533,98 кН - расчетная нагрузка по первой группе предельных состояний.

 

5.2 Определение размеров фундамента


Необходимая площадь подошвы фундамента под колонну при расчетном сопротивлении грунта в основании (по заданию)  = 0,21 МПа, отметке подошвы фундамента Н = 1,4 м и усредненной плотности массы фундамента и грунта на его обрезах  = 20 кН/м3:

 = 2165,79/ (0,21*1000-20*1,4) = 11,90 м2.

Размеры сторон квадратного в плане фундамента:

 = 11,90^0,5 = 3,45 м.

Принимаем кратно 0,3 м, т.е. 3,6 м.

Реактивное давление грунта на подошву фундамента от расчетных нагрузок, если принять распределение его по подошве равномерным будет:

 = 2165,79/3,6^2 = 167,1 кПа <  = 210 кПа.

Расчетная высота сечения фундамента из условия обеспечения его прочности против продавливания колонной с размерами 40x40 см определяется из формулы (3.177) п.3.57,75 [4]:


где

 - периметр контура расчетного поперечного сечения на расстоянии 0,5h0 от границы площадки опирания сосредоточенной силы F (колоны). Тогда:

 = - 0,5*0,2+0,5* (2165,79/ (1,1*2000+167,1)) ^0,5 = 0,38 м.

Полная высота фундамента стаканного типа с толщиной защитного слоя бетона  = 40 мм при наличии бетонной подготовки в основании (см. табл.5.1 [4]) и предполагаемом диаметре стержней арматуры d = 20 мм:

 = 380+40+1,5*20 = 450 мм.

Необходимая высота фундамента из условия обеспечения анкеровки продольной арматуры колонны в стакане фундамента при армировании колонны стержнями диаметром 12 мм:

 = 20*12+250 = 490 мм.

Необходимая высота фундамента из условия обеспечения заделки колонны в стакане фундамента:

 = 400+250 = 650 мм.

Принимаем двухступенчатый фундамент  = 800 мм с высотой ступеней по 400 мм. Расчетная высота фундамента:

 = 800-40-1,5*20 = 730 мм.

Расчетная высота нижней ступени:

 = 400-40-1,5*25 = 322,5 мм (Рис. 5).

Рис. 5.

 

5.3 Проверка прочности нижней ступени против продавливания


Продавливающая сила  принимается за вычетом нагрузок, приложенных к противоположной грани плиты в пределах площади с размерами, превышающими размеры площадки опирання на  во всех направлениях) и определяется по формуле:

 = 2165,79-167,1* (1,4+2*0,323^2) = 1896,98 кН.

Периметр контура расчетного поперечного сечения на расстоянии  от границы площадки опирания верхней ступени фундамента:

 = 4* (1,4+0,323) = 6,89 м.

Имеем:

 = 1,1*1000*6,89*0,323 = 2448,02 кН,

т.е. прочность нижней ступени против продавливания обеспечена.

 

5.4 Расчет плиты фундамента на изгиб


Изгибающие моменты от реактивного давления грунта в сечениях по граням колонны и уступов фундамента:

 = 0,125*167,1*3,6* (3,6-0,2) ^2 = 869,25 кН*м;

 = 0,125*167,1*3,6* (3,6-1,4) ^2 = 363,94 кН*м.

Необходимая площадь продольной арматуры класса А400 у подошвы фундамента в продольном и поперечном направлениях определяется по приближенной формуле:

 = 869,25*10^6/355/0,9/730 = 3727 мм2;

 = 363,94*10^6/355/0,9/322,5 = 3532 мм2.

Принимаем сварную сетку из стержней 10 мм с шагом 150 мм в обоих направлениях:

16 А400 с  = 23*201,1 = 4625,3 мм2 >  = 3727 мм2.

Фундаменты с арматурой класса А400, расположенные выше или ниже уровня грунтовых вод, подлежат расчету на образование трещин (в данном проекте этот расчет не производится).

Список литературы


1.       СНиП 52-01-2003. Бетонные и железобетонные конструкции. Основные положения.М., "ГУП НИИЖБ" Госстрой России, 2004

2.       СНиП 2.01.07-85*. Нагрузки и воздействия. Минстрой России. М.: ГУП ЦПП, 2009

.        СП 52-101-2003. Бетонные и железобетонные конструкции без предварительного напряжения арматуры.М., "ГУП НИИЖБ" Госстроя России, 2004

.        Пособие по проектированию бетонных и железобетонных конструкций из тяжелого бетона без предварительного напряжения арматуры (к СП 52-101-2003). ЦНИИПромзданий, НИИЖБ - М.: ОАО "ЦНИИПромзданий", 2005

.        Байков В.Н., Сигалов Э.Е. Железобетонные конструкции (общий курс). М.: СИ, 1991

.        Справочник проектировщика промышленных, жилых и общественных зданий и сооружений. Расчетно-теоретический. В 2х кн. Кн.1. Под ред.А. А. Уманского.2-е изд., перераб. и доп. - М.: Стройиздат, 1972.

.        Железобетонные конструкции: учебное пособие к курсовому проекту №1/Сост.: В.И. Елисеев, А.А. Веселов, А.В. Сконников. - СПб.: СПбГАСУ, 1992, 80 с.

Похожие работы на - Расчет железобетонных конструкций перекрытия пятиэтажного промышленного здания

 

Не нашли материал для своей работы?
Поможем написать уникальную работу
Без плагиата!
Без нейросетей!