Мероприятия, направленные на исправление и устранение дефектов на мостовых сооружениях

  • Вид работы:
    Курсовая работа (т)
  • Предмет:
    Строительство
  • Язык:
    Русский
    ,
    Формат файла:
    MS Word
    662,27 Кб
  • Опубликовано:
    2017-03-23
Вы можете узнать стоимость помощи в написании студенческой работы.
Помощь в написании работы, которую точно примут!

Мероприятия, направленные на исправление и устранение дефектов на мостовых сооружениях

Содержание

Введение

1. Описание существующего моста

2. Исходные данные для расчета

. Оценка грузоподъемности существующего моста

.1 Определение коэффициентов поперечной установки

.2 Определение расчетных усилий в главных балках от нагрузки А-11

3.3 Определение расчетных усилий в главных балках от нагрузки НК-80

3.4 Расчет требуемой площади ненапрягаемой арматуры

.5 Расчет плиты проезжей части

. Варианты реконструкции моста

5. Мероприятия, направленные на исправление и устранение дефектов на мостовых сооружениях

5.1 Технология ремонта выбоин

.2 Технология устранения коррозии железобетонных элементов

5.3 Технология ремонта раковин в сжатой зоне бетона

Список литературы

Введение

Задачей эксплуатации мостов является обеспечение удобного и безопасного по ним движения автотранспорта. Для этого необходимо производить на мостах повседневный уход, наблюдение за их состоянием и исправление возникающих дефектов и неисправностей. Мосты подвержены различным воздействиям: выщелачиванию бетона, образованию трещин и сколов бетона, коррозии металла, гниению древесины, деформации и разрушению элементов от проходящего транспорта, которые постепенно снижают прочность и эксплуатационную надежность мостов. Происходит физический износ, ограничивающий срок их службы. Кроме физического износа, происходит моральное отставание мостов от возрастающих требований транспорта в связи с увеличением нормативных расчетных нагрузок и скоростей движения.

Старые мосты по грузоподъемности не отвечают современным требованиям автодвижения. Их необходимо заменять новыми, с увеличенной грузоподъемностью и расширенными габаритами, но строить новые мосты в большом количестве очень дорого. Поэтому рациональная организация эксплуатации мостов предусматривает не только их тщательное содержание и плановые ремонты, но и их усиление и реконструкцию.

Необходимость в усилении возникает вследствие недостаточной несущей способности конструкции моста по причине физического износа или несоответствия возросшим требованиям грузоподъемности. Усиление производят отдельных элементов или всего моста, сохраняя неизменными габарит и другие генеральные размеры моста.

При увеличении интенсивности автодвижения и при переходе дороги в повышенную техническую категорию производится реконструкция мостов, при которой делается их капитальное переустройство - увеличиваются габариты, грузоподъемность и другие параметры.

1. Описание существующего моста

Пролетное строение с габаритом 8 м и тротуарами по 0,75 м. Номер типового проекта 56-Д. Длина моста 67,04м, с 4-мя пролётами длинной по 16,76 м. Толщина дорожной одежды 0,15м.

Тип пролетного строения балочный с ненапрягаемой арматурой. Количество главных балок в поперечном сечении - 6. Высота главных балок 1,0м, толщина ребра 0,15м.Расстояние между осями балок в поперечном сечении 1,78 м. Количество стержней и диаметр ненапрягаемой рабочей арматуры: 10 Ø 32+2Ø16 . Марка бетона по классификации года проектирования 300.Толщина плиты 0,15 м, количество стержней в рабочем направлении: верхняя 12 Ø12, нижняя 10Ø10.

Тип фундамента и промежуточных опор: мелкого заложения (стаканного типа), стоечная однорядная. Грунты русла - суглинок.

Неисправности и дефекты пролётных строений и опор:

a) Дорожная одежда и деформационные швы: выбоины.

b) Коррозия и потеря сцепления арматуры до 3 %;

c) Раковины и сколы бетона в сжатой зоне до 3 %.

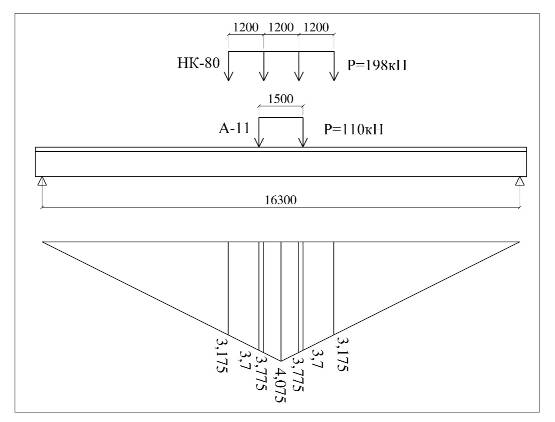
2. Исходные данные для расчета

Длина пролета:lp= 16,76 м.

Габарит моста: Г-8.

Ширина тротуаров:0,75 м.

Расчетное сопротивление бетона:Rв=15,5 МПа.

Расчётное сопротивление арматуры класса А-II: RS=265 МПа.

Расчетное сопротивление арматурыпосле коррозионного воздействия:

Rsk=RS/k=265/1,18 =237 МПа.

где k- коэффициент учитывающий степень коррозии.

Нагрузка после реконструкции: А-11 и НК-80.

3. Оценка грузоподъемности существующего моста

.1 Определение коэффициентов поперечной установки

В расчетной работе коэффициенты поперечной установки КПУ определяются методом внецентренного сжатия по линиям влияния, которые загружают временными нагрузками А11, толпой и НК-80. При расчете главных балок рассматривают двесхемы нагружения:

Вариант 1- движение транспортных средств и пешеходов без каких-либо ограничений;

Вариант 2- пропуск специальных транспортных средств в одиночном порядке.

При варианте 1 нагружение мостового сооружения следует осуществлять полосами нагрузки АК шириной 3м. При этом должны быть выполнены следующие условия:

число полос нагрузки, размещаемых на мостовом сооружении, должно быть не более целого числа w, определяемого по формуле:

W=int (Г/3),

int- функция, значением которой является целое число от выражения в скобках (получаемое после отбрасывания дробной части);

Г- ширина габарита проезда (расстояние между внутренними гранями ограждения);

ось полосы нормативной нагрузки АК следует располагать не ближе 1,5 м от внутренней грани ограждения;

расстояние между осями смежных полос нагрузки должно быть не менее 3,0 м.

При расчетах совместно с нагрузкой АК интенсивность нормативной нагрузки на тротуарах мостовых сооружений следует принимать равной 3,0 кПа.

В расчетах мостовых сооружений нагрузку АК (тележку и распределенную составляющую) следует учитывать с коэффициентом полосности S1, S2, S3. Для первой по значимости полосы (где нагрузка приводит к самым неблагоприятным результатам) следует принимать S1=1,0, для полосы по значимости S2=0,6 , для остальных полос S3=0,3.

При варианте 2 проводят нагружение мостовых сооружений нагрузкой НК. Нагрузку НК следует располагать вдоль направления движения в пределах проезжей части (вне полос безопасности) и отсутствии на мостовом сооружении других временных нагрузок. Кроме того, следует проводить проверку на воздействие сдвоенных нагрузок НК, устанавливаемых на расстоянии 12м (между последней осью первой и передней осью второй нагрузок), с учетом понижающего коэффициента 0,75.

В соответствии сГОСТ 52748-2007для категории дороги (IV)приняты следующиегабариты моста по ширине: размер полос безопасности (П) и проезжей части (nb) : Г-8; П=1,0 м; nb =6,0 м;

Ординаты линии влияния под крайними балками определяются по формуле:

У1(7)=

п - число главных балок; ai- расстояние между крайними балками;

а, - расстояние между попарно симметричными балками.

У1==

У8==


1 Вариант нагружения:

КПУр = 0,5(У1 + У2 + У3+ У4+ У5 ± У6)=

=0,5(0,45+0,3+0,2+0,05)=0,5

КПУν = 0,5 [S1·(У1 + У2) + S2·(У3 + У4)] =

=0,5·[1·(0,45+0,23)+0,6·(0,2+0,05)]=0,45

КПУт=Утл+Утп=0,506 кН·м,

Утл и Утп - ординаты линии влияния, расположенные под серединой левого и правого тротуаров. Если ордината под одним из тротуаров окажется отрицательной, то нагрузка от толпы на нем не учитывается.

Вариант нагружения:


У1и У2 - ординаты под колесами нагрузки НК-80.

Нагрузка НК-80 устанавливается так, чтобы край обода колеса не выходил за пределы проезжей части.

.2 Определение расчетных усилий в главных балках от нагрузки А-11

Расчетные усилия (изгибающие моменты) определяются в характерных сечениях, где возникают наибольшие усилия.


схема нагружения (А-11+пеш.):

МА-11(1-1)=gпостω1+(1+μ)(γfp·КПУр·Р∑Zi+ γfν·КПУν·ν· ω1)+ γfт·КПУт·Рт·Т· ω1=33,24·28,6+1,7(1,2·0,5·110·(3,7+3,7)+1,2·(0,45·11·33,21)+1,2·(0,55·3·0,75·33,21) =2200кН·м

где

ω1 и ω2- площади соответствующих линий влияния;

Zi-ординаты линий влияния под тележкой A11или НК-80;

Р=110 кН - давление на ось тележки;

v=11кН/м - интенсивность равномерно распределенной нагрузки А11;

Рт= 3 кПа (3кН/м2)

равномерно распределенная нагрузка на тротуарах;

Т - ширина тротуара;

(1+μ) - динамический коэффициент (АКсоср.-1,7; АКраспр.-1,0; НК-1,15);

gб- интенсивность собственного веса балки;

gп=0,42 кН/м - то же металлических перил;

giH- интенсивность нормативной постоянной нагрузки от i-го конструктивного слоя ездового полотна равная:

giH=hi·γi

hi- толщина слоя;

γi-удельный вес материала слоя,

) а/б тип Б м/з -23,70кН/м2 (0,06 м),

) гидроизоляция-16кН/м2(0,005 м),

) выравнивающий слой-24кН/м2(0,04 м),

) защитный слой-25кН/м2(0,05 м);

КПУp, КПУν, КПУт, КПУНК-80- коэффициенты поперечной установки соответствующих нагрузок;

γf- коэффициенты надежности по нагрузкам;

nб - количество главных балок в поперечном сечении моста.

.3 Определение расчетных усилий в главных балках от нагрузки НК-80

схема нагружения (НК-80):

МНК-80(1-1)=gпостω1+(1+μ)·КПУНК-80·Р∑Zi=28,6·33,21+1,15·0,217·198·(3,775+3,775+3,175+3,175) =1800кН/м

Mmax=МА-11(1-1)=2200кН·м

3.4 Расчет требуемой площади ненапрягаемой арматуры

В предположении, что высота сжатой зоны бетона не более высоты плиты, предварительно находится требуемая площадь ненапрягаемой арматуры


Mmax - наибольший расчетный изгибающий момент;sk - расчетное сопротивление растяжению ненапрягаемой арматуры для автодорожных и городских мостов при расчетах по предельным состояниям первой группы .

Недостающая площадь арматуры находят по формуле:

Анед=Атр-As

As-площадь существующей арматуры;

Анед=0,0114-0,00844=0,00296 м2

Анед>0→ Требуется произвести усиление балок (по зад. путем наклеивания швеллера в нижнюю часть ребра)

Для усиления принимаем швеллер 20Са (с параллельными стенками) в соответствии с ГОСТ 8240-97.

Геометрические параметры швеллера 20Са (по ГОСТ 8240-97)


.5 Расчет плиты проезжей части

Плита проезжей части заделана в ребре балки и на стыке с соседними балками имеет продольный шов, работая как консоль. Опасным является, положение, при котором возникает наибольший момент, а именно когда колесо временной нагрузки занимает край консоли.Распределение давления от колеса в слоях элементов проезжей части происходит под углом 45°.Размер площадки распределения нагрузки вдоль и поперек движения:

а1= а2 + 2Н ∙tg45Q=0,2+2∙0,155∙1=0,51м

в1 = вк + в/2=1,11 м

а2-размер отпечатка колеса на поверхности покрытия

(для НК-80а2=0,2м);

Н=Σhi - толщина конструктивных слоев (H=0,155м);

а - рабочая ширина плиты

а = a1+ вк =0,51+1,1=1,62м

где

вк- размер консоли (образуемой плитой)

Изгибающий момент в плите:


Площадь рабочей арматуры в плите:


Aнед=-Apнед=760мм2-2141,5мм2 = - 1381,5мм2нед< 0следовательно не требуется проводить усиление плиты проезжей части.



4. Варианты реконструкции моста

Вариант. Уширение производится путем установки дополнительной балки с правой стороны пролетного строения с опиранием ее на дополнительные опоры , которые делаются на буронабивных сваях, и путем удлинения ригеля. Бетонирование удлинения ригеля производится в сборно-разборной опалубке. Приставные балки соединяются с существующей конструкцией моста стыком плиты с арматурными выпусками. На приставную балку укладывается блок тротуара и на уширяемой части устраивается дорожная одежда. Габарит моста при этом увеличивается с Г-8 до Г-10 м.Способ уширения мостового сооружения, включающий уширение пролетного строения и опор, осуществляют следующим образом.

Для уширения проезжей части, пролетного строения производят уширение головной части существующих опор и установку с одной или с обеих сторон опоры дополнительных балок на дополнительные консольные элементы.

Для уширения существующей опоры в головной ее части бурят симметрично относительно ее продольной оси и перпендикулярно к вертикальной ее оси ряд сквозных каналов. Бурение сквозных каналов могут производить комплектом колонковых буров (на чертеже не показаны) разной длины, начиная с бура наименьшей длины, последовательно заменяя предыдущий бур следующим большей длины. Колонковые буры поочередно насаживают на штанги, которые выполняют с резьбовым соединением для их наращивания и с зажимным патроном для бура. В ходе бурения последовательно устанавливают более длинные штанги с бурами, что обеспечивает высокую точность положения сквозного отверстия. В головной части опоры относительно ее продольной оси бурят перпендикулярно к вертикальной ее оси ряд глухих отверстий, а в теле опоры относительно продольной оси опоры бурят под углом к вертикальной ее оси тоже ряд глухих отверстий. Затем в сквозных каналах закрепляют с ними полые каналообразователи, выступающая часть которых выполнена длиной, соответствующей длине формируемых дополнительных консольных элементов. Стержни арматуры связывают между собой дополнительными стержнями арматуры в единый каркас для формирования дополнительных консольных элементов.



Вариант. Уширение габарита пролетных строений монолитной бетонной плитой. Этим способом уширение габарита моста производится на 2,5-3,0 м. Уширение состоит из двух крайних рядов накладных сборных плит и среднего ряда из монолитного бетона. Если мост имеет достаточную ширину, автодвижение на мосту в период работ по уширению может не прерываться, а происходить на половинах ширины моста.

Сначала на одной половине моста разбираются перила, ограждения и тротуары, убирается дорожная одежда и гидроизоляция. На середине моста ставится ограждение для безопасности движения. На уширяемой половине очищается и выравнивается поверхность плиты балки. На подготовленную поверхность кладется тонкий слой цементного раствора.

На поверхность, покрытую раствором, укладывают крайний ряд сборных накладных плит шириной 1,0 м с выпусками арматурных стержней на поперечных кромках. Продольная кромка сборных плит имеет уступы с выпусками арматуры. После укладки плит на пролете одной стороны моста поперечные швы сборных плит с арматурными выпусками бетонируются. На этой половине моста устраивается дорожная одежда, ставятся ограждения, перила, устраиваются тротуары, и на эту половину моста переводится автодвижение.

Так же устраивается уширение на другой половине моста. Затем бетонируется монолитным бетоном средняя часть моста между уступами и устраивается дорожная одежда.

У мостов, уширенных накладными плитами, при испытании наблюдались сдвиги этих плит при проходе по мосту тяжелой нагрузки. Поэтому при уширении этим способом предусмотрена постановка металлических штырей, соединяющих накладные плиты с основной плитой моста над ребром балки и диафрагмами. Штыри ставятся в просверленные отверстия диаметром 20 мм.Для уширения пролетных строений накладными плитами требуются большой объем материалов (плиты) и немалая трудоемкость, но этот способ позволяет обойтись без уширения опор.

Общая ширина мостового полотна после реконструкции составляет 11,320 м и включает ширину проезжей части 9 м, барьерные ограждения 2х0,41 м, тротуары 2х0,75 м, металлические перильные ограждения 2х0,1 м.


5. Мероприятия направленные на исправление и устранение дефектов на мостовых сооружениях.

.1 Ремонт выбоин

Выбоины на асфальтобетонном покрытии ремонтируют горячим способом. В качестве ремонтного материала применяют горячие асфальтобетонные смеси: мелкозернистые, крупнозернистые и песчаные смеси, литой асфальтобетон и др. Состав и свойства применяемой для ремонта асфальтобетонной смеси должны быть аналогичны той, из которой сделано покрытие. Горячие способы применяют при ремонте дорог с асфальтобетонным покрытием. Работы можно выполнять при температуре воздуха не ниже +10°С при оттаявшем основании и сухом покрытии. При использовании разогревателя ремонтируемого покрытия допускается выполнять ремонт при температуре воздуха не ниже +5°С. Горячие способы ямочного ремонта позволяют обеспечить более высокое качество и длительный срок службы отремонтированного покрытия. Место ремонта очерчивают прямыми линиями, параллельными и перпендикулярными оси дороги, придавая контуру правильную форму и захватывая неповреждённое покрытие на ширину 3-5 см. Несколько выбоин, находящихся на расстоянии до 0,5 м одна от другой, объединяют в общую карту.Вырубку, разломку или фрезерование покрытия в пределах размеченной карты производят на толщину разрушенного слоя покрытия, но не менее 4 см по всей зоне ремонта. Стенки кромок выбоины после вырубания должны быть вертикальными по всему контуру. Вырубка и разломка покрытия может осуществляться при помощи отбойного пневматического молотка или лома, бетонолома, нарезчика швов и рыхлителя или при помощи дорожной фрезы. При использовании дорожной фрезы для разделки выбоины образуются округленные передняя и задняя стенки выбоины, которые должны быть обрезаны дисковой пилой или отбойным молотком. . Очистку карты осуществляют с помощью лопат, сжатого воздуха, а при большой площади карты - с помощью подметально-уборочных машин. Просушку дна и стенок карты производят по необходимости путём продувки горячим или холодным воздухом.

Обработку вяжущим (подгрунтовку) дна и стенок выбоин производят в случае укладки в качестве ремонтного материала горячих асфальтобетонных смесей. Дно и стенки очищенной карты обрабатывают жидким среднегустеющим битумом с вязкостью 40/70, разогретым до температуры 60-70°С с расходом 0,5 л/м2 или битумной эмульсией с расходом 0,8 л/м2 Температура горячей асфальтобетонной смеси, доставленной к месту укладки, должна быть близкой к температуре приготовления, но не ниже 110-120°С. Наиболее целесообразно укладывать смесь при такой температуре, когда она легко обрабатывается, а в процессе укладки не образуются волны и деформации при проходе катка. В зависимости от типа смеси и ее состава такой температурой считают: для многощебенистой смеси - 140-160°С; для среднещебенистой смеси - 120-140°С; для малощебенистой смеси - 100-130°С. Толщина слоя укладки в рыхлом теле должна быть больше толщины слоя в плотном теле с учётом коэффициента запаса на уплотнение, который принимают: для горячих асфальтобетонных смесей 1,25- 1,30. При укладке ремонтного материала механизированным способом смесь подается из бункера-термоса через поворотный лоток или гибкий рукав большого диаметра непосредственно в выбоину и равномерно разравнивается по всей площади. Укладка асфальтобетонных смесей при заделке карт площадью 10-20 м2 может производиться асфальтоукладчиком. При этом смесь укладывается на всю ширину карты за один проход, чтобы избежать дополнительного продольного шва сопряжения полос укладки. Уплотнение асфальтобетонной смеси, уложенной в нижний слой покрытия, производят пневмотрамбовками, электротрамбовками или ручными виброкатками по направлению от краев к середине. Асфальтобетонную смесь, уложенную в верхний слой, а также смесь, уложенную в один слой при глубине выбоины до 50 мм уплотняют самоходным вибрационным катком (вначале два прохода по следу без вибрации, а затем два прохода по следу с вибрацией) или статическими гладковольцовыми катками легкого типа массой 6-8 т до 6 проходов по одному следу, а затем тяжёлыми катками с гладкими вальцами массой 10-18 т до 15-18 проходов по одному следу.

.2 Устранение коррозии железобетонных конструкций

Для защиты поверхности надводной части бетонных и железобетонных конструкций (пролетных строений и опор) от коррозии в агрессивной атмосфере применяют покрытия на основе синтетических смол и кремнийорганических лаков. Наилучшими защитными свойствами обладают эпоксидные клеи и другие составы на их основе (например эпоксидная шпаклевка ЭП-00-10). Эпоксидная шпаклевка ЭП-00-10 выпускается промышленностью в готовом виде. Ее наносят на поверхность в два слоя. Перед этим в нее вводят отвердитель (50%-ный раствор гекса-метилендиамин в этиловом спирте) в количестве 8,5 вес.ч. на 100 вес.ч. шпаклевки. Для получения необходимой вязкости шпаклевку разбавляют растворителем Р-40. При нанесении такого покрытия кистью вязеость краски принимают равной 70-120 с, а при работе с помощью пульверизатора 20-40 с. Рабочий раствор шпаклевки готовят в количестве , необходимом для работы в течении не более 4 часов с момента введения отвердителя. Нанесение второго слоя краски должно быть не раньше, чем через сутки после нанесения первого, так как просыхание слоя обеспечивается в течение суток

.3 Ремонт раковин бетона в сжатой зоне

Раковины, образуемые при выветривании и истирании поверхности бетона заделывают с помощью полимерцементных покрытий. Обычные цементные покрытия применяются в исключительных случаях, так как они менее долговечны, быстро отслаиваются, трескаются и разрушаются. Для покрытий используют полимерцементные растворы, которые наносят на поверхность бетона как вручную, так механизированным способом. Перед нанесением раствора бетонную поверхность промывают струей чистой воды или воды с небольшим (до 5-10 %) добавлением поливинилацетатной эмульсии или латекса. Промывают поверхность за 1-2 раза. К моменту укладки раствора поверхность должна быть влажной, но не содержать капель воды. Раствор при ручном способе укладывают мастерком. Сначала наносят слой толщиной 5-7 мм и затем распределяют его сильными бросками до необходимой толщины уплотнения и заглаживают (втирая) в уровень с поверхностью элемента. Примерно через час уложенный раствор смачивают водой , затем снаружи присыпают сухим цментом и разглаживают деревянной или металлической гладилкой. Если работы ведут при температуре до 25-30° С и процесс твердения происходит в тех же условиях, то не требуется поливать поверхность для ускорения твердения. При более высоких температурах окружающего воздуха в период твердения поверхность увлажняют 2-3 раза в сутки. При ремонте больших поверхностей этими материалами эффективен способ торкретирования. В этом способе нанесение ремонтных составов производится с помощью струи сжатого воздуха. Он объединяет приготовление , транспортирование, укладку и уплотнение бетонных смесей на поверхностях, имеющих любое расположение.

Свеженанесенный слой торкретбетона имеет высокую начальную прочность, которую получают под уплотняющим действием струи. Такой метод уплотнения позволяет послойно наносить покрытия, имеющие повышенные механическую прочность, водонепроницаемость и морозостойкость, а так же хорошее сцепление с предыдущим слоем.

Список литературы

мост нагрузка ремонт

1. Дементьев, В.А. Усиление и реконструкция мостов на автомобильных дорогах [Текст]: учеб. пособие / В.А. Дементьев, В.П. Волокитин, Н.А. Анисимва; под общ. ред. проф. В.А. Дементьева; Воронеж. гос. арх.-строит. ун-т. - Воронеж, 2006. - 116 с.

.Инструкция по уширению автодорожных мостов и путепроводов: ВСН 51-88 / Минавтодор РСФСР, Миндорстрой УССР, Миндорстрой БССР. - М.: Транспорт, 1990. - 128 с: ил.Извлечение

.ГОСТ 8240-97.Швеллеры стальные горячекатаные.Сортамент.Введ. 2002-01-01 взамен ГОСТ 8240-89.- Минск: Межгос. Совет по стандартизации, метрологии и сертификации; Москва: Изд-во стандартов, 2002.-10с.

.ГОСТ 329602-2014.Дороги автомобильные общего пользования. Нормативные нагрузки, расчетные схемы нагружения.Введ. 2015-01-07.- Москва: Межгос. Совет по стандартизации, метрологии и сертификации; Москва:Стандартинформ, 2015.-6с.

Похожие работы на - Мероприятия, направленные на исправление и устранение дефектов на мостовых сооружениях

 

Не нашли материал для своей работы?
Поможем написать уникальную работу
Без плагиата!
Без нейросетей!