Анализ эволюции от индустриального к постиндустриальному подходу, на примере жилого комплекса

  • Вид работы:
    Дипломная (ВКР)
  • Предмет:
    Строительство
  • Язык:
    Русский
    ,
    Формат файла:
    MS Word
    1,55 Мб
  • Опубликовано:
    2017-07-10
Вы можете узнать стоимость помощи в написании студенческой работы.
Помощь в написании работы, которую точно примут!

Анализ эволюции от индустриального к постиндустриальному подходу, на примере жилого комплекса

Оглавление

Введение

. Теоретическое обоснование программы ожк

.1 Концепция подхода к проектированию

.2 Архитектурная концепция

.3 Градостроительная концепция

.4 Социально-функциональная модель ОЖК

. Архитектурное решение

.1 Градостроительное решение

.2 Организация ОЖК

2.2.1 "Дом-модуль"

.2.2 "Дом-этажерка"

.2.3 "Дом-контейнер"

2.3 Композиционно-художественное решение комплекса

2.4 Технико-экономические показатели

3. Инженерно-техническое решениие

.1 Конструктивное решение

.2 Безопасность и экологичность проекта

.2.1 Мероприятия по охране окружающей среды

.2.2 Шумовая нагрузка и защита

.2.3 Мероприятия по обеспечению пожарной безопасности комплекса

.3. Экономическая часть

.3.1 Теоретические основы ценообразования на строительную продукцию

.3.2 Определение стоимости работ по строительству общественно-жилого комплекса

Заключение

Список использованных источников

Приложения

Введение

индустриальный художественный строительный жилой

Современное общество развивается, происходит переход от индустриального к постиндустриальному этапу, что требует изучения новых принципов и подходов в проектировании жилых структур. Целью и средством индустриального подхода было создание жёсткой типологии жилищных элементов, моделирование жилья как продукта массового унифицированного потребления. Одним из признаков перехода в сфере проектирования жилища к постиндустриальности является предложение проектных моделей, принципиально отличных от привычных унифицированных, - таких как «гибкое жилище», «открытое строительство». Меняются способы рационализации жилищного проектирования и строительства, создаются гибкие, кастомизированные структуры, сочетающие рациональность и индивидуализацию. Эта установка представлена автором на примере проектирования жилья с использованием трёх вариантов рационализации: индустриальной, но адаптируемой «модульной структуры» и двух версий «открытого строительства».

В качестве теоретической основы проектирования автор использует теорию А. Саламы, исследовавшего классификации образов жизни постиндустриального общества, и предложившего дифференцировать жилища с учётом стилей трудовой занятости. На основе данного исследования, автор предлагает концепцию топологической матрицы планировочной структуры, используя такие критерии, как образ работы, факторы, являющиеся отражениями типов жизни, состав семьи, возрастную структуру будущих обитателей.

Цель данной работы-продемонстрировать эволюцию от индустриального к постиндустриальному подходу, на примере жилого комплекса, в котором рассмотрены разные варианты формирования жилого образования.

1. Теоретическое обоснование

.1 Концепция подхода к проектированию

Отличия индустриального и постиндустриального подхода к проектированию заключаются в следующем. Индустриальный подход основывается на обобщении и выведении средних показателей жизнедеятельности обитателя, соответственно игнорируется реальная сложность и многообразие его структуры и образов жизни. Невозможно предложить оптимальную типологию жилья, которая бы удовлетворяла разные потребности отличных друг от друга домохозяйств [1].

Постиндустриальный подход подразумевает проектирование жилища с учетом потребностей и предпочтений будущего обитателя, тем самым создаются оптимальные условия для жизнедеятельности. Но данный подход является достаточно трудоемким и требует рассматривать каждый жилой комплекс как отдельную структуру, поскольку то что получилось и прижилось в одном случае, может быть недопустимо в другом, что представлено на рисунке 1.

Рисунок 1 - Особенности индустриального и постиндустриального подходов к жилищу

Автор использует один из принципов теории А. Саламы исследовавшего классификации образов жизни постиндустриального общества, и предложившего дифференцировать жилища с учётом стилей трудовой занятости, так же схема представлена в приложении 1. Он выделил три таких стиля [2]:

1) «самозанятость» (self-employed) - тип работы «на себя», что подразумевает отсутствие разделения жилого и рабочего времени;

2) «найм» (wage-earner) - работа «на кого-то». В этом случае жилье позиционируется, как место, предназначенное для рекреационных и функциональных целей;

) «делание карьеры» (сareer oriented) - ориентация на профессиональное развитие и жилье, которое становится, прежде всего, отражением социального статуса и индивидуальных особенностей обитателей.

Второй частью данного исследования является классификация М. Дуглас, которая подразделяет образы жизни по типу, способу взаимодействия человека непосредственно с окружающим миром:

соревновательность/индивидуализм;

изоляция/предотвращение социального контроля;

справедливость/переговоры;

иерархические сообщества.

Третий пункт схемы А. Саламы представляет теорию П. Бурдье, которая предполагает три ключевых положения в понимании концепции образа жизни: habitus (габитус), position (поле), distinction (отличительная особенность).

Габитус - система прочных приобретённых предрасположенностей; в дальнейшем они используются индивидом как исходные установки, которые порождают конкретные социальные практики индивидов. Поле - структурированное социальное пространство, с его собственными правилами, законами, мнениями (искусство, образование, политика, закон, экономика). Различия - социальные стратификации (различия в природе предпочтений).

В своей работе автор основывается не только на «образе жизни», но и использует методику VALS [3], которая предполагает измерение стиля жизни потребителей на основе психографических типов потребления, указанных в таблице 1 (value and lifestyle -ценности и типы образа жизни).Более подробно типы личностей указаны в приложении 2.

Таблица 1 - Соотношение «типов работы» и ценностей и стилей жизни

«Тип работы»

«Потребители»

«Найм»

“убежденные”; стабильные; “обычные”; не экспериментируют; традиционалисты; дом принимается, как место отдыха; устойчивость образа жизни; разделение быта, труда, досуга

«Делание карьеры»

“индивидуалисты”; экспериментаторы; “рискующие”; решительные; имеют хорошее образование; высокий доход; свободны от “предрассудков”; стремятся выразить себя; ”преуспевающие”; озабочены статусом

«Самозанятость»

“индивидуалисты”; экспериментаторы; “рискующие”; стремятся получить непосредственный опыт; выражают себя; креативны; работают “на себя”; непостоянны; решительны; активны


Кроме концепции «образа жизни» автор также обратился к концепции адаптивной архитектуры, поскольку образ жизни индивидуума с течением времени может измениться, соответственно могут и измениться потребности человека в планировочной/ функциональной составляющей его жилища. Тем самым необходимо включить вариант возможности изменения пространства.

Один из принципов адаптивной архитектуры - трансформация пространства, осуществляющаяся посредством включения интерактивных систем, гибких, трансформируемых перегородок, планировочной структуры, позволяющей легко изменять пространство, новых технологий в каркас здания, когда планировочная структура не будет зависеть от конструктивных составляющих.

На основе изученного исследования, автор предлагает топологическую матрицу проектных предложений в жилищной структуре (квартиры) на основе количественных факторов (состав домохозяйства) и факторов, которые являются отражениями типов жизни людей, через образ работы, представленных в таблице 2.

Таблица 2 - Матрица проектных решений с учётом типов занятости и состава семей


«Дом-традиция»

)        «Жесткие перегородки». Проектирование общепринятых, устоявшихся жилых структур с изменением таких факторов как: маленькая прихожая, кухня, отсутствие или невозможность установки шкафа/гардероба в прихожей. Разделение жесткими перегородками на отдельные помещения (кухня, гостиная, спальня и т.д.).

)        Частично «жесткие» перегородки (отделение кухонного пространства).

Предполагает отделение зоны приготовления пищи жесткими перегородками. Остальное пространство может варьироваться.

)        Частично «жесткие» перегородки (отделение спального места).

Обязательное отделение спален от общей жилой структуры. Остальное пространство может быть совмещенным (кухня+гостиная).

)        Открытая планировка. Жесткими перегородками ограничивается лишь зона санузла, либо производится привязка к штрабам вертикальных коммуникаций. Все пространство остается свободным, будущий обитатель может проектировать или использовать пространство как ему угодно.

) Открытая планировка + возможность разделения пространства.

) Открытая планировка + трансформируемые перегородки.Предполагает включение в планировочную структуру складных, раздвижных перегородок для разграничения пространства.

«Дом-отражение»/ «Дом-традиция»

)        Сочетание открытого плана (общие пространства) и отделение спальных зон. Предполагает четкое разграничение на спальни и совмещение кухни-столовой-гостиной в одно пространство.

)        Возможность разграничения открытого пространства. Предполагает четкое разграничение на спальни и совмещение кухни-столовой-гостиной в одно пространство, но также не исключает возможность в дальнейшем разграничить это пространство и создать еще одну спальню.

«Дом-статус»

)        Большая площадь. Предполагает большую жилую площадь. Может относиться как к традиционным структурам, так и к открытым.

)        Многоуровневое жилье. Жилище в двух-трех уровнях, так же Г-образные типы квартир. Возможность утроить на одном из уровней рабочее пространство (кабинет), либо размещение по уровням членов семьи.

На основе принципов, показанных в данной таблице, спроектированы дома и квартиры для каждого типа обитателей, представленных в жилом комплексе.

.2 Архитектурная концепция

.2.1 Модульное строительство, как индустриальный подход

Данная проектная и строительная технология представляет поздний индустриальный подход, учитывающий индивидуальные особенности пользователей за счёт вариантного проектирования автором модульных структур и обеспечения возможности выбора из широкого, но предварительно составленного спектра решений. Является наименее гибкой и слабо изменяемой во времени системой. «Модульное строительство» - наиболее экономически доступный подход, также его преимуществом является быстрая скорость возведения. Благодаря этому, такой подход может использоваться для проектирования социального жилья, студенческих общежитий, возведения домов в зонах аварийных бедствий.

Для проектирования жилой структуры разработана модульная система жилых модулей и модулей вертикальных и горизонтальных коммуникаций. Жилые модули имеют три основных типа А, В, С. А и С - боковые элементы, В - промежуточный. Все жилые структуры спроектированы в соответствии с таблицей 2 и демонстрируют основные принципы открытости-закрытости пространств, продемонстрированных на рисунке 2.

Из предложенной типологии можно «собрать» разнообразные варианты жилых структур, отражающих различные требования будущих обитателей.

Все модули разделены на:

функциональные (включение санузла, кухонной зоны, прихожей)

модули-спальни (с включением в структуру гардероба или коридора)

открытые модули (предполагают свободное использование - гостиная)

Примеры проектирования квартир из модулей представлены на рис. 3.

1.2.2 «Гибкое жилище» как постиндустриальный подход

Автором разработан подход, который предполагает разделение жилой площади на ограниченные по размеру ячейки. В отличии от первого способа, пользователь может полностью сам «проектировать» внутреннее пространство или использовать каталожные варианты, предложенные, как и в первом случае. Данная технология является средней по своей экономической доступности и предполагает жилье собственное и сдаваемое в коммерческую аренду, представлено на рисунке 4.

Рисунок 2 - Типология модулей-квартир

Рисунок 4 - Концепция гибкого плана

1.2.3 «Открытое строительство» и «гибкое жилище»

«Открытое строительство». Это подход, представленный Н.Д. Хабракеном, в его книге «Опоры: альтернатива массовому жилищному строительству» [4]. Он предполагает совмещение индустриального метода (опоры) и широкое включение пользователя в процесс проектирования (индивидуальное проектирование в определенном пространстве. Этот метод наиболее точно отражает постиндустриальный подход в проектировании жилья и позволяет детально отражать индивидуальные особенности пользователя.

Данный подход является самой гибкой и открытой к развитию системой, из разрабатываемых автором, поскольку состав «заполнения» жёстких «опор» может свободно варьироваться с течением времени. Разработанное таким образом жилище представляет самый высокий ценовой сегмент рынка, поскольку каждая жилая ячейка планируется индивидуально. Соответственно данный «блок» комплекса направлен на людей с достаточно высокими доходами, концепция показана на рисунке 5.

Рисунок 5 - Открытое строительство

Автор использует на территории одного ЖК все три подхода к проектированию, чтобы продемонстрировать, как именно они могут осуществляться, что имеют общего и как можно использовать рационализацию в проектировании как для «модульного», так и для «гибкого», и «открытого» строительства.

Так же принципы проектирования каждой из «частей» могут быть применены для создания отдельных ОЖК, основанных на определенном подходе, представленных на рисунке 6.

Рисунок 6 - Три части ОЖК по методологии проектирования - строительства

1.3 Градостроительная концепция

Проектируемый объект располагается на территории завода «Строительных конструкций и дорожных машин» (СКДМ) в г. Вологде, основанном в 1947 году и работающему и на данный момент. Территория является перспективной для расположения жилого микрорайона, поскольку находится недалеко от центра г. Вологды, рядом с рекой, а также с удобной транспортной доступностью.

Этот участок был выбран коллективом студентов-архитекторов для дипломного проектирования в 2015 году (Дудникова К., Барболин. Н, Тиханова. Т., Вихарева Ю., Замашкина Т.), они предложили дальнейшее ее развитие. Перспективные планы развития предполагают перенос предприятия на другую территорию. Реконструируемая территория была разделена на 5 кварталов для 5-ти авторов. Схема деления между авторами представлена на рисунке 7.

Рисунок 7 - Схема разделения территории для дальнейшего проектирования

Автором для дальнейшей разработки был выбран участок №2, поскольку эта часть является одной из наиболее перспективных. Участок №2 находится недалеко от оживленной улицы Прокатова, и непосредственно границей территории является ул. Горького, на которой располагаются торговые объекты и проходит общественный транспорт. Ситуационный план продемонстрирован на рисунке 8. Следовательно, в проектном предложении целесообразно предлагать такие функции ЖК, как торговые и общественные помещения, работающие на город.

Рисунок 8 - Ситуационный план

Площадь участка: 1,1 га. Территория имеет высокий потенциал, учитывая ее близкое расположению к центру города и удобные пешеходно-транспортные связи, следовательно, логично на данном участке предусматривать функции работающие на город. Близость к автомобильной дороге имеет негативные факторы такие как шум, пыль, грязь. Окружающая застройка от 2-х до 5-ти этажей, что предполагает соответствующую этажность ОЖК. Подробный анализ территории представлен в реферате-обосновании.

1.4 Социально-функциональная модель

В качестве основы для составления социально-функциональной модели была использована таблица уровней дохода, которая представляет социальные портреты горожан: социальный статус, уровень дохода, а так же типы жилых структура, в которых проживают люди, указано в приложении 2.

Ориентируясь на уровни дохода, образ жизни, предпочтения обитателей, автор предлагает социально-функциональную модель, ориентированную и доступную широкому спектру пользователей.

Дом «Модуль» предполагает будущих обитателей с средним и низким доходом, в том числе социальное жилье. Невысокая цена достигается следующим образом: снижение цены строительства за счет скорости возведения, проектирование небольших, но комфортных квартир для разных типов домохозяйств. Варианты владения жильем: муниципальная аренда, жилье, дотируемое государством, рыночное жилье нижнего ценового сегмента. Модуль социально-функционального деления представлена.

Рисунок 9 - Социально-функциональная модель дома «Модуль»

Дом «Этажерка» рассчитан на разные типы домохозяйств со средним и высоким доходом. Варианты квартир-ячеек позволяют выбрать подходящую площадь с учетом доходов и возможностей. Варианты владения жильем: аренда, рыночное жилье. Модель представлена на рисунке 10.

Рисунок 10- Социально-функциональная модель дома «Этажерки»

Дом «Контейнер» рассчитан на доход высокий и выше среднего. Особенностью такого жилья являться возможность свободно проектировать жилье в нескольких уровнях, а также наличие больших общедомовых пространств, конструктивных особенностей здания, делает жилье достаточно дорогим, но предоставляет будущему обитателю широкий диапазон вариантов проектирования собственного жилья. Способы владения жильем: аренда, рыночное жилье. Социально-функциональная модель продемонстрирована на рисунке 11.

Рисунок 11 - Социально-функциональная модель дома «Контейнера»

2. Архитектурное решение

.1 Градостроительное решение

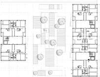
Территория для размещения жилого комплекса располагается вдоль ул. Горького и ул. Пугачева. Генплан представлен на рисунке 12. Площадь участка 1.1 Га.

Рисунок 12 - Схема генплана участка

Застройка представляет собой комплекс жилых домов переменной этажности и разделена (условно) на три части, каждая из которых представляет один из типов, разработанных автором: «дом-модуль» (индустриальная технология), «дом-этажерка» (гибкая технология), «дом-контейнер» (открытая технология), ранее продемонстрированных на рисунке 6.

Жилые дома располагаются таким образом, чтобы выполнялись требования инсоляции. В «доме-модуле» c северной стороны комплекса спроектированы двухсторонние квартиры. В меридиональных блоках «дома-этажерки» квартиры ориентированы на обе стороны. «Дом-контейнер» - галерейный дом, галерея выходит на северную сторону, квартиры расположены на юг.

Застройка располагается по периметру участка, в центре образовано дворовое пространство, которое является связующим элементом всех частей комплекса. Двор условно разбит на три части, каждая из которых принадлежит непосредственно определенному типу строительства и внешне отражает его, посредством использования тех же принципов, что и при проектировании жилых блоков, что ранее было показано на рисунке 12. Пространство дворовой территории приподнято относительно отметки уровня земли, что позволяет его визуально изолировать, а также создается препятствие транзитного пересечения посторонними. По периметру дворовой территории расположены лестницы и пандусы для транспорта и ММК.

На территории ЖК предусмотрены пожарные проезды с твердым покрытием, подъезды к домам жителями квартала для разгрузки, транзитное движение и парковка на территории двора исключены. Парковочное пространство располагается под дворовой территорией, въезд по пандусу со стороны ул. Пугачева. Количество машиномест - 85. Выход из парковки осуществляется через лестницы, ведущие во двор комплекса. Схема парковочного пространства показана на рисунке 13.

Рисунок 13 - Подземная парковка

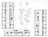
2.2 Организация ОЖК

.2.1 Дом «Модуль»

Дом «Модуль» реализует подход «модульное строительство». Он разработан из объемных заранее изготовленных модулей, показанных на рисунке 2:

)        Жилые модули типа А, В, С

)        Модули вертикальных коммуникаций (лестниц)

)        Модули горизонтальных коммуникаций.

)        Модули общественных помещений

Из вышеперечисленных элементов формируются коридорный, секционный, и галерейный типы жилых структур. План типового этажа на рисунке 14.

Рисунок 14 - План «типового» этажа «дома-модуля»

В основе конструктивной системы лежит металлический каркас 200 мм, обрешетка, заполнение жесткими материалами и облицовка.

Схема деления на корпуса представлена на рисунке 15.

Рисунок 15 - Схема корпусов «Дома-модуля»

«Дом-модуль» включает все типы планировочных структур. Корпус А представляет коридорную систему, состоит из жилых модулей всех разработанных типов, горизонтальных и вертикальных коммуникаций. Количество этажей - 4. Корпус Б является угловым, состоит из жилых модулей всех типов. Количество этажей - 5.

Корпуса А-Б рассчитаны на молодых и среднего возраста одиночек, молодых пар без детей, данные указанные в таблице 1.Поэтому основную часть квартир представляют квартиры открытой планировочной структуры (студии) с возможностью изменения пространства с помощью трансформируемых перегородок. Так же представлены и квартиры традиционного типа (однокомнатные).

Помещения общедомового пользования - велосипедная, кладовые. Проектирование кладовых предусмотрено в связи с тем, что квартиры имеют небольшую площадь и дополнительные места для хранения вещей необходимы.

Со стороны ул. Горького размещаются торгово-офисные помещения и прачечная самообслуживания, работающие как на ОЖК, так и на город. Так же к корпусу Б примыкает коворкинг, доступ в который возможен как со стороны улицы, так и из блоков А-Б.

В корпусах В-Г представлен секционный тип структуры, использованы жилые модули А-С, модули коммуникаций. Квартиры рассчитаны на семьи с детьми. Типы квартир, в основном, традиционного плана. Представлены двухкомнатные и трехкомнатные квартиры. Квартиры двухсторонне ориентированы.

Корпус Д представляет галерейный тип жилой структуры. Использованы модули жилые А-С, модули коммуникаций. Квартиры рассчитаны на молодые и осколочные семьи. Тип квартир традиционной и открытой планировки.

Корпус Е представляет коридорный тип. Использованы жилые модули А-С, модули коммуникаций. Квартиры предназначены для пожилых пар и одиночек, имеют преимущественно традиционные планировки.

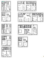
Квартиры открытого плана представлены на рисунке 16 в разных вариантах и площадях. Такой тип квартир предназначен для молодых, взрослых пар/одиночек, молодых семей, открытых для нестандартных и новых планировочных решений.

Квартиры «традиционного» плана представлены на рисунке 17. В данном случает используются жесткие перегородки, отделяющие пространства друг от друга. Предназначены в основном для пользователей с устоявшимися взглядами на планировочную структуру жилья (пожилые, взрослые), и семьи с детьми, когда на ограниченной площади необходимо большое количество отдельных помещений (спален). «Традиционный тип» представлен в измененном и улучшенном варианте (увеличение площади прихожей, встроенные шкафы). Так же представлены варианты смешанного типа структур. Например, совмещенная кухня-столовая-гостиная (открытый план) и разделение на мелкие ячейки спальни (традиционный план).

Рисунок 16 - Квартиры открытого плана

Рисунок 17 - Квартиры традиционной планировки

2.2.2 «Дом-этажерка»

Принцип планировки и эксплуатации - выбор конструктивной ячейки, использование решения продолженного архитектором, либо индивидуальное проектирование. Представляет собой «гибкое жилище». Конструктивная система предполагает монолитный каркас (с шагом колонн 6х6) и жесткое расположение вертикальных коммуникаций, план этажа изображен на рисунке 18. Тем самым, этаж остается открытой структурой. Автор проекта предлагает вариант разделения секций на отдельные квартиры. Будущий обитатель выбирает «ячейку» и может сам (или с помощью архитектора) проектировать квартиру или выбрать из предложенных автором проекта планировочных структур.

Рисунок 18 - План этажа «дома-этажерки»

Общая структура «дома-этажерки» представляет секционное жилье с лестницей и лифтом. На этаже секции может располагается от одной квартиры, занимающей весь этаж, до восьми. Разделение на большее количество квартир целесообразно увеличивать к нижним этажам здания.

По социальной структуре такой жилье может быть для любых типов домохозяйств, от молодых одиночек до пожилых людей.

В данной работе предусмотрены типы жилья для взрослых одиночек, молодых и взрослых пар, семей с детьми, пожилых людей. Возвращаясь к табл.1, данный тип структуры предполагает такие критерии как «самовыражение», что относится к «карьероориентированным» и «работающим на себя» будущим обитателям.

Рисунок 19 - Планировки квартир «дома-этажерки»

Структуры квартир так же спроектированы с учетом открытости-традиционности планировочных решений. Представлены разные варианты на рисунке 19.

Пространства первого этажа, выходящие на ул. Горького предназначены под частные офисы и магазины. В корпусе Ж устроен домашний детский сад. Общедомовые пространства включают в себя колясочную/велосипедную, придомовую прачечную, кладовые.

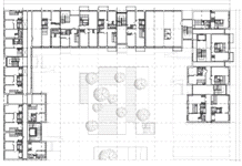
2.2.3 «Дом - контейнер»

Принцип планировки и эксплуатации: выделение объёмно-конструктивных и конструктивно-планировочных “модулей”, индивидуальная разработка планировочных решений в их границах. Архитектор сопровождает своими рекомендациями гибкую планировку и эксплуатацию планировочных решений. Проект представляет реализацию концепции «открытого строительства». В основе конструктивной системы-металлический каркас (с шагом колонн 6х6 м), что позволяет легко проектировать квартиры в двух и более уровнях. Все вертикальные коммуникации выведены к внутренней стене, что так же позволяет свободно планировать внутреннее пространство.

Структура корпусов К и Л представляет два галерейных блока, объединенных атриумом внутри, который проходит через всю высоту здания. Части объединены мостиками-переходами, мостиками-общественными пространствами, на рисунке 21.

Структура корпуса М-галерейный дом, с внутренними лестницами и широкими галереями, являющимися так же общими пространствами. На первых этажах предполагается размещение торговых и офисных помещений, также возможность объединения ячейки квартиры и офиса (дом-работа), поскольку конструктивная система позволяет осуществлять такие действия. На первых этажах, как и в ранее описанных корпусах, предусмотрены помещения общедомового пользования: колясочные/велосипедные, прачечные, кладовые.

Исходя из портрета будущего обитателя, уровня дохода, способа трудовой занятости квартиры спроектированы в основном с открытыми типами планировок и смешанными (открытые большие общие пространства и традиционное разделение на мелкую структуру отдельных спален).

Рисунок 21 - Планировка этажа «дома-контейнера»

Учитывая климатические условия, автор предлагает жесткий замкнутый контур и деление на квартиры-ячейки.

Квартиры представлены в пяти основных вариантах. Будущий пользователь (как в «гибком жилище») может выбрать из предложенных проектных вариантов, так и спроектировать по своему желанию. Варианты планировки квартир представлены на рисунке 22.

Рисунок 22 - Планировка квартир «дома-контейнера»

2.3 Композиционно-художественное решение комплекса

Главной целью при проектировании фасадного решения было создание общего целостного облика жилого комплекса и в то же время стояла задача показать индивидуальность каждого подхода.

В «модульном жилье» задачей являлось показать, что сборное жилье может выглядеть как угодно, не смотря на жесткость структуры. О том что жилье состоит из модулей напоминает ритм и частота оконных проемов. Так же в качестве художественного приема с целью подчеркнуть модульность структуры добавлены балконы из металлического профиля. Фасад показан на рисунке 23.

Рисунок 23 - Фасадное решение «дома-модуля»

«Гибкое жилье» «дома-этажерки» предполагает разделение на квартиры в горизонтальной плоскости, тем самым фасад поделен в соответствии с конструктивной системой (перекрытия, колонны). Дополнительными элементами являются балконы квадратной формы (перекликаются с модульным домом). И использование деревянных элементов, в то время как в первом случае дерево использовано как материал для отделки больших поверхностей стен. Фасадное решение представлено на рисунке 24.

Рисунок 24 - Фасадное решение «дома-этажерки»

«Дом-контейнер» организован по принципам «открытого строительства» - расположение жилых ячеек в нескольких уровнях, по принципу «вертикальная деревня». Чтобы подчеркнуть эту особенность, автор использует вертикальные элементы, которые так же являются направляющими для дальнейшего (возможного) заполнения (оборудования балконов и лоджий) непосредственно жителями. Исходя из климатических условий предусмотрен жесткий теплый контур, но будущие обитатели могут сами допроектировать некоторые элементы в соответствии с условиями фасадных решений, заданными архитектором. Фасад представлен на рисунке 25.

Рисунок 25 - Фасадное решение «дома-контейнера»

2.4 Технико-экономические показатели

Технико-экономические показатели общественно-жилого комплекса указаны в таблице 3.

 

Таблица 3 - Технико-экономические показатели

Показатели

Ед. изм.

Нормативные данные

Существующее положение

Проектное предложение

Площадь участка

га


1,9

Площадь застройки

кв.м


3295

4830

Максимальная этажность


16

3

4

Плотность застройки (BCR)


0,4

0,17

0,26

Коэффициент плотности застройки (FAR)


0,8

0,35

0,5

Процент застройки

%

Макс. 35

17

26

Количество жителей

чел.


-

170

Плотность населения

чел/га

210

-

241

Общая площадь квартир

кв.м


-

7250

Общая площадь встроенных нежилых помещений

кв.м


-

2100

Плотность жилищного фонда

кв.м


-

4920

Уровень обеспеченности общей площадью жилых помещений

кв.м

28,9

-

29.8

Количество квартир, в т. числе: Пятикомнатных и более; четырехкомнатных; трехкомнатных; двухкомнатных; однокомнатных (в т. ч квартир - студий);

-


-

77 3 11 20 26 17

Количество машиномест всего из них: общих; индивидуальных.

-


-

85  66 11

Обеспеченность парковочными местами на домохозяйство

%

70

-

110


3. Инженерно-техническое решение

.1 Конструктивное решение

.1.1 Описание конструктивного решения общественно - жилого комплекса

Степень огнестойкости - II

Класс конструктивной пожарной опасности - С1

Класс функциональной пожарной опасности для жилых зданий - Ф1.3

Объекты торговли - Ф 3.1

Объекты общественного питания - Ф3.2

Офисные помещения - Ф4.3;

Класс ответственности здания - II

Описание конструктивного решения жилого комплекса

Максимальная этажность зданий - 5 этажей

Конструктивная система - каркасная

Конструктивная схема жилых и общественных зданий - монолитный железобетонный каркас.

Шаг колонн 6м*6м.

Основные элементы конструкции приведены в таблице 3.

Таблица 3 - Описание элементов конструкции здания

Конструктивный элемент

Конструкция

Фундаменты

Монолитный ленточный, толщиной 450мм, из бетона класса В25, марки W6 (арматура класса АI и АШ по ГОСТ 5781-82)

Колонны

Железобетонные монолитные колонны сечение 300х300мм, класс бетона не ниже В25, процент армирования не более 10

Перекрытия

монолитные перекрытия, Н=220

Кровля

плоская, эксплуатируемая с покрытием тротуарной плиткой, цементной стяжкой, гидроизоляцией Технопласт ЭЭП 2 слоя.

Ограждающие конструкции

Наружные стены t=460мм. 1. Кладка из газобетонных блоков (ГОСТ 21520-89) 300 мм 2. Утеплитель-минераловатные плиты ВЕНТИ БАТТС (ROCWOOL) (ГОСТ 302244-94) 90мм 3. Вентиляционный зазор 50 мм 4. Крепежные профили 5. Фиброцементные панели A-stone (ГОСТ 8747-88) 20 мм

Перегородки межквартирные

t=200 двойная пазогребневая плита с воздушным зазором по ГОСТ 6428-83Из гипсокартонных листов на металлическом каркасе, Шифр М8.12/06

Перегородки внутриквартирные

t=100 пазогребневая плита с воздушным зазором по ГОСТ 6428-83

Лестницы

Из сборных железобетонных ступеней по стальным косоурам


3.2 Безопасность и экологичность проекта

.2.1 Мероприятия по охране окружающей среды

К мероприятиям по охране окружающей среды относят охрану архитектурной, исторической и природной среды.

Компоненты природной среды: атмосферный воздух, водные ресурсы, земляные ресурсы, а также мероприятия по устранению отходов и санитарной очистки территорий, благоустройство и озеленение территории.

В качестве места для проектирования общественно-жилого комплекса была выбрана территория завода СКДМ в городе Вологда, являющаяся перспективной для расположения жилого микрорайона, поскольку находиться недалеко от центра г.Вологды, рядом с рекой, а также удобной транспортной и пешеходной доступностью. В будущем планируется вынос производственных функций завода за город, тем самым экологическая нагрузка на окружающую среду в качестве шума и загрязнения воздуха значительно снижается, что позволяет проектировать ОЖК на этом месте.

Сохранение компонентов природной среды. Одним из главных факторов при проектировании жилья является создание комфортной и здоровой среды для жизнедеятельности будущих обитателей, что предполагает организацию благоприятных условий. Мероприятий по созданию комфортных условий: озеленение, снижение шумовой нагрузки, отсутствие сквозных проездов через двор, а также проектирование пешеходных и велосипедных дорожек, благоустройство двора.

Озеленение. Выбранная зона практически лишена зелени, поэтому одной из задач при благоустройстве территории является размещение зеленых насаждений для повышения уровня комфортности и микроклимата, а также деревьев вдоль ул. Горького и ул. Прокатова для повышения уровня защиты от шума, а также неблагоприятных воздействий от проезжающих мимо машин.

Учитывая нормы обеспеченности наличия озеленения на человека, от 7 до 27 кв.м на чел. при средней этажности окружающей застройки для создания благоприятной и здоровой среды для обитания. Исходя из условий проектирования и конструктивных особенностей жилых объектов, предполагается размещение парковки под двором, что затрудняет высаживание деревьев в открытый грунт над парковкой. В данной ситуации предлагается контейнерное озеленение, которое представляет собой размещение деревьев в кадках. Этот способ применяется, когда нет возможности высадить в открытый грунт зеленые насаждения. Так же это решение идеально подходит для небольших пространств и позволяет перемещать деревья в контейнерах. Со стороны ул. Горького и ул. Пугачева предлагается высаживание деревьев в открытый грунт, так как ограничивающих факторов для данного типа посадки нет.

При высадке деревьев в открытый грунт, подготовку посадочных мест необходимо выполнить заранее, в связи с тем, что посадочные места должны какое то время подвергаться солнечному облучению и атмосферном воздействию.

Мероприятия по озеленению территорий являются одними из относительно дешевых и быстрореализуемых, что позволяет улучшить общее экологическое состояние. Так же, все зеленые насаждения выполняют роль биологического и механического фильтра, поглощающего вредные вещества, например, такие как окись азота, окись углерода, выбрасываемая промышленными предприятиями. В качестве механического фильтра, зеленые насаждения защищают от пылевых частиц.

Наибольшей эффективности можно добиться, используя определенные виды деревьев, такие как береза, тополь, липа европейская, которые являются наиболее дымогазоустойчивыми.

Благоустройство. Благоустройство территории выполняется на основании рабочих чертежей генерального плана участка. Проектная концепция предполагает ограничение проезда транспорта (только пожарные и машины скорой помощи), а также, возможность использования проезда жителями жилого комплекса, в качестве подъезда к подъездам и разгрузке габаритных грузов, но долговременная стоянка запрещена. Так же данный проезд в основном будет использоваться в качестве пешеходного и велосипедного пути. Ширина пути составляет 4,2 м.

Подземная парковка размещается под территорией двора и имеет выходы, не связанные с жилыми домами (на территорию комплекса), и по периметру располагаются временные парковки для посетителей.

В качестве мероприятий по благоустройству предполагается интеграция в структуру двора и жилых пространств приквартирных двориков, кустарников, деревьев в кадках, газонов и др. зеленых насаждений.

Похожие работы на - Анализ эволюции от индустриального к постиндустриальному подходу, на примере жилого комплекса

 

Не нашли материал для своей работы?
Поможем написать уникальную работу
Без плагиата!
Без нейросетей!