10-этажный кирпичный жилой дом по ул. Московской в городе Вологда
Содержание
Введение
. Архитектурно-строительный раздел
.1 Генеральный план
.2 Объемно-планировочное решение
.3 Конструктивное решение здания
.3.1 Фундаменты
.3.2 Дренаж
.3.3 Стены
.3.4 Перекрытия
.3.5 Окна
.3.6 Двери
.3.7 Перегородки
.3.8 Кровля
.4 Внешняя и внутренняя отделки
.4.1 Внешняя отделка
.4.2 Внутренняя отделка
.5 Теплотехнический расчет
.6 Инженерное оборудование зданий
. Научно - исследовательский раздел
. Расчетно-конструктивный раздел
.1 Расчет монолитной плиты
.1.1 Компоновка монолитной плиты
.1.2 Сбор нагрузки на монолитную плиту перекрытия
.2 Расчет свайного фундамента
.2.3 Расчет сваи по несущей способности
. Технологический раздел
.1 Область применения технологической карты
.2 Организация и технология выполнения строительного процесса
.2.1 Состав работ
.2.2 Организация и технология выполнения работ
.2.3 Определение объёмов кладочно - монтажных работ
.2.4 Подбор крана
.3 Технико-экономическое обоснование выбора монтажного крана
.4 Требования к качеству и приемке работ
.5 Калькуляция затрат труда и времени работы машин
.6 График производства работ
.7 Материально-технические ресурсы
.8 Мероприятия по охране окружающей среды, технике
безопасности, противопожарной защите
.9 Техника безопасности при кладочно-монтажном процессе
.10 Техника безопасности при производстве строительных работ
в зимнее время
.11 Технико-экономические показатели
. Организационный раздел
.1 Общие данные
.1.1 Характеристика условий строительства
.1.2 Природно-климатические условия строительства
.2 Описание методов выполнения основных СМР с указаниями по
технике безопасности
.2.1 Подготовительный и основной периоды строительства
.2.2 Земляные работы
.2.3 Устройство фундаментов
.2.4 Монтаж здания
.2.5 Отделочные работы
.2.6 Транспортные работы
.3 Стройгенплан
.4 Расчет численности персонала строительства
.5 Расчет потребности во временных зданиях и сооружениях
.6 Расчет потребности в коммунальном обеспечении
.6.1 Расчет потребности в электроэнергии
.6.2 Расчет потребности в тепле
.6.3 Расчет потребности в воде
.6.4 Расчет потребности в сжатом воздухе
.6.5 Расчет потребности в кислороде
.7 Расчет потребности в транспортных средствах
.8 Расчет площадей складирования материалов
. Безопасность жизнедеятельности
.1 Анализ опасных и вредных производственных факторов при
организации кровельных работ на объекте
.2 Меры по обеспечению безопасных и здоровых условий труда
при организации кровельных работ
.3 Расчет устойчивости крана
.4 Меры пожарной безопасности при эксплуатации здания
. Экологический раздел
.1 Сбор твердых бытовых отходов
.2 Определение числа контейнеров
.3 Вывоз твердых бытовых отходов
Заключение
Список
использованных источников
Приложение 1. Спецификация окон и дверей
Введение
Темой выбранного мною дипломного проекта является жилой дом №5 по
генплану микрорайона Петрозаводский. Участок расположен в юго-восточной части
г. Вологда и ограничен улицами Московская - Петрозаводская - Текстильщиков.
Рельеф с ярко выраженным подъемом в сторону ул. Петрозаводская, перепад высот
8-9 м. С северной и южной стороны участок смыкается с кварталами жилой
застройки, преимущественно пяти этажей, с запада ограничивается ул.
Текстильщиков, с востока - ул.Петрозаводская и гаражными кооперативами. Вдоль
продольной оси участка проходит газопровод давлением 0,6 МПа (требуемая
охранная зона 14 м). Других сетей на участке нет. По северной и южной стороне
участка проходят рядовые (2-3 ряда) посадки тополей, средний возраст 20-25 лет,
встречаются отдельно стоящие березы, ольха, ива-самострижка, отсутствуют
какие-либо строения, благоустройство.
Ориентация жилого здания выбрана с учетом инсоляции помещений и
направлением господствующих ветров. Подъезд находится на южном дворовом фасаде,
однокомнатные квартиры вынесены - на юг, двух-трех комнатные квартиры имеют
двухстороннюю ориентацию, с целью обеспечения нормируемой длительности
инсоляции жилых помещений. Этажность жилого дома- 10 этажей определена в
соответствии с градостроительной концепцией и условиями инсоляции существующих
и проектируемых жилых домов, а также прилегающей территории.
Район строительства - г. Вологда.
Снеговой район - IV.
Расчетная снеговая нагрузка - 2,4 кПа (240 кгс/м2).
Ветровой район - I.
Нормативная ветровая нагрузка- 0,23 кПа (23 кгс/м2).
1.
Архитектурно-строительный раздел
1.1 Генеральный
план
Проектируемое здание 10 этажный дом №5 по генплану микрорайона
Петрозаводский расположен в юго-восточной части г. Вологда и ограничен улицами
Московская - Петрозаводская - Текстильщиков. Жилой дом №5 по ГП запроектирован
односекционным, отдельно стоящим. Вокруг здания разработаны автомобильные
проезды со стороны ул. Московской и со стороны дворовой территории (с выездом
на ул. Московскую). С торцевых сторон жилого дома подъезд пожарного
автотранспорта осуществляется по тротуарам, конструкция покрытия и ширина
которых предусмотрены для этой цели.
Благоустройство территории проектируемого дома произведено с целью
создания комфортных условий проживания населения, отвечающих утвержденным
нормативам, и включает в себя следующие виды работ:
размещение проездов и тротуаров с асфальтобетонным покрытием и установкой
бортового камня шириной 2м;
размещение стоянок для легковых автомобилей шириной 5,5м;
озеленение всех свободных от застройки покрытий, площадок участков
методом посадки деревьев, кустарника, устройства газона с последующим засевом
его травосмесью из расчета 200 кг/га площадью 1527.4 м2.
1.2 Объемно-планировочное
решение
Проект 10 этажного кирпичного жилого дома разработан в соответствии с
требованиями [1] и имеет следующий набор квартир:
1-комнатные с площадью 38÷45 м;
2-комнатные с площадью 55÷57 м;
3- комнатные с площадью 82,3 м.
Здание односекционное с размерами в осях 14,62 ´ 33,1 метров.
Строительный объем здания образован кирпичными многослойными стенами
толщиной 770 мм и железобетонными плитами перекрытия. Здание имеет два входа на
первом этаже с пандусом уклоном 5% . Так же в здании имеется подвал. Высота
подвала 2,5м.
1.3 Конструктивное
решение здания
Условной отметке 0,00 уровня чистого пола первого этажа удовлетворяет
абсолютная отметка 128,400 м в Балтийской системе высот.
Конструктивная схема здания с продольными и поперечными несущими стенами.
Несущий остов здания состоит из фундамента, стен, плит перекрытия и покрытия.
Пространственная жесткость обеспечивается за счет соответственного расположения
наружных и внутренних стен, а также элементов перекрытия, выполняющих роль
диска жесткости.
1.3.1 Фундаменты
В проекте принят свайный фундамент с ростверком высотой 600 мм. Сваи
имеют сечение 300мм. При устройстве фундаментов следует руководствоваться [2] и
[3]. На ростверк устанавливаются фундаментные блоки по [4] шириной 700 мм под
наружные стены и 600мм, 500мм и 400 мм под внутренние. Кладка фундаментных
блоков выполняется на цементном растворе М-50. Перевязка блоков выполняется на
величину более 25см. По периметру наружных стен между фундаментными блоками и
кирпичной кладкой выполнена горизонтальная гидроизоляция, состоящая из двух
слоев рубероида на битумной мастике. Также сделана вертикальная гидро-изоляция
фундаментных блоков и ростверка. Для отвода поверхностных вод по периметру
здания предусмотрена отмостка из асфальта шириной 1000 мм с уклоном 2-5%.
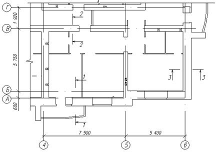
План свайного поля и план ростверков со схемой расположения элементов
фундамента представлены на листе 3 графической части.
1.3.2 Дренаж
В качестве дренажной системы был принят горизонтальный трубчатый дренаж.
Горизонтальный трубчатый дренаж - это составная часть гидроизоляционной
системы, которая выполняет роль водоприемного и водоотводящего элемента. Он
представляет собой сочетание дренажных труб, фильтров и системы колодцев. Его
прокладывают по периметру здания с наружной стороны.
Расстояние от оси здания до оси дренажных труб принято 2, 2.05, и 3 м. В
качестве труб дренажной системы берем пластмассовые трубы. Отдельные звенья
соединяют между собой специальными пластиковыми муфтами. В трубах
высверливаются отверстия Ø10мм на расстоянии 80мм в шахматном порядке в
соответствии с рисунком 1.1.
Рисунок 1.1 - Дренажная труба
Выпуск дождевых вод и дренажа осуществляется в ранее запроектированную
ливневую канализацию, которая подключена в существующую ливневую канализацию
диаметром 200 мм.
На сети дворовой канализации устраиваются смотровые колодцы из сборных
железобетонных конструкций диаметром 1000 мм.
1.3.3
Стены
Наружные стены здания выполнены из камня силикатного рядового пористого
одиннадцатипустотного СРП-150/25 по [5] с облицовкой лицевым утолщенным
силикатным кирпичом СУЛ 150/15 по [5] и внутренние из камня силикатного
рядового пористого одиннадцатипустотного СРП 150/15 по [5] и утепленной
штукатуркой толщиной 30мм. По несущим стенам здания выполнен армокаменный пояс
на 3,6 и 9 этажах.
Внутренние стены здания имеют толщину 380, 510, 640 мм и выполнены из
камня силикатного рядового пористого одиннадцатипустотного СРП 150/15 по [5].
Кирпичная кладка выполняется с соблюдением требований [6].
1.3.4
Перекрытия
Перекрытия выполнены из сборных железобетонных многопустотных плит по
[7]. Плиты лоджий сборные железобетонные и железобетонные монолитные.
Графическая часть, лист 4.
Плиты перекрытий укладываются на стены по выровненному слою цементного
раствора марки 100, швы между ними тщательно заделываются. Швы между панелями
заделаны раствором марки 200. Глубина опирания междуэтажных железобетонных плит
перекрытия и плит покрытия на стены 120мм. Монолитные участки перекрытий
выполнены из бетона класса В20 с установкой арматуры. Защитный слой бетона до
низа рабочей арматуры принят 15мм. Необходимые отверстия в плитах для пропуска
сетей инженерного оборудования просверливают по месту, не нарушая несущих ребер
с последующей заделкой цементным раствором М100. Выполняют анкеровку плит
перекрытия на наружных стенах и внутренних стенах (между собой) через один шов.
1.3.5 Окна
Окна выбираем деревянные с тройным остеклением, которые окрашиваются масляной
краской на 2 раза в белый цвет. Монтаж оконных блоков производится при помощи
крепления к наружным стенам анкерными болтами. Зазоры между оконным блоком и
простенком заполняются монтажной пеной. Для устранения мостиков холода
пространство между подоконником и коробкой заделывают монтажной пеной. Для
уплотнения оконных стыков используется герметизирующая лента Робибанд, которая
полностью отвечает современным нормам согласно по [8]. Приложение 1.
1.3.6
Двери
Дверные блоки: для наружных дверей по [9] и [10], внутренних по [11]. В
зависимости от назначения помещения проектируем остекленные и глухие двери.
Открывание дверей предусматривается с учетом взаимного расположения помещений.
Двери деревянные. Столярные изделия - балконные двери окрашиваются на 2
раза масляной краской для наружных работ белого цвета.
Крепление дверных коробок к проему осуществляется ершами и деревянными
пробками, заложенными в кирпичную кладку. Расстояние между коробкой и кирпичной
кладкой заполняется монтажной пеной и закрывается наличником. Приложение 1.
1.3.7
Перегородки
Перегородки сделаны из блоков силикатных стеновых рядовых пористых
толщиной 70мм с коэффициентом звукопоглощения К=47Дб БССРП 249*498*70 по [12],
на первом этаже из силикатного утолщенного кирпича по [5] и блоков силикатных
стеновых рядовых.
Перегородки не доводят до элементов перекрытия на 20-30мм для того чтобы
избежать передачи на них нагрузок. Зазоры заполняем монтажной пеной.
1.3.8
Кровля
Конструкция крыши - плоская, кровля - рулонная плоская. Крышу утепляем керамзитовым
гравием и пенополистиролом ПСБ-С-25, пароизоляция состоит из 2 слоев линокрома
марки ТКП верхний слой и нижний слой марки ХПП на битумной мастике.
1.4
Внешняя и внутренняя отделки
.4.1
Внешняя отделка
Стены : лицевой утолщенный силикатный кирпич СУЛ 150/15.
Цоколь: штукатурка по металлической сетке с последующей окраской
водоэмульсионной краской. Цвет - светло-коричневый.
Окна: деревянные, с тройным остеклением, окрашенные масляной краской на 2
раза. Цвет - белый.
Двери входные - металлические.
Металлические элементы входных групп (поручни, стойки): окраска масляной
эмалью на 2 раза. Цвет - серый.
1.4.2
Внутренняя отделка
Кирпичные стены и перегородки: штукатурка цементно-песчаным раствором с
подготовкой под отделку.
Внутриквартирные перегородки: шпаклевка на 2 раза.
Лестничные площадки: клеевая покраска на высоту 1,8 м от пола, верх стен
- клеевая побелка. Полы -керамическая плитка.
Полы: цементно-песчаная стяжка.
Внутренние двери: окраска масляной краской белого цвета на 2 раза.
Двери в квартиры: металлические.
1.5
Теплотехнический расчет
Теплотехнический расчет наружной стены
В ходе расчета определяем требуемое сопротивление теплопередаче Rreqтр (минимально допустимое) и
сопротивление теплопередаче наружного ограждения Rreq. Должно выполняться условие Rreqтр < Rreq. Rreqтр должно быть не менее значений:
а) исходя из условий энергосбережения; определяюм с учетом градусо-суток
отопительного периода:
Dd = (tint - tht)*zht, (0C*сут), (1.1)
где tint - расчетная температура внутреннего
воздуха, 0C
tht, -
средняя температура наружного воздуха периода со средней суточной температурой
воздуха ниже или равной 8 0C
zht -
продолжительность отопительного периода со среднесуточной температурой воздуха
ниже или равной 80C, сут.
tint = 21 0C= - 4,1 0C= 231 сут.=
(21+4,1)*231=5798,1 (0C*сут)
Rтр
; м2*0С/Вт, (1.2)
где а и b - коэффициенты, по табл. 4 [14].
а = 0,0003; b = 1,2
Rreqтр
=0,0003*5798,1 + 1,2 = 2,939м2*
/Вт
б) Rreqтр исходя из санитарно-гигиенических
(комфортных) условий:
Rreqтр=
; м2*0С/Вт, (1.3)
где
n - коэффициент, принимаемый в зависимости от положения
наружной поверхности по отношению к наружному воздуху (по табл. 3 [14]);
tint - расчетная
температура внутреннего воздуха, 0C
text - расчетная
зимняя температура наружного воздуха, равная средней температуре наиболее
холодной пятидневки с обеспеченностью 0,92 (по табл. 1 [36]), 0C
-
нормативно-температурный перепад между температурой внутреннего воздуха и
температурой внутренней поверхности ограждающей конструкции (по [14]), 0C
-коэффициент
теплоотдачи внутренней поверхности ограждающих конструкций (по [14]).
n = 1= 21 0C= - 32 0C
=
4,5 0C
= 8,7
Вт/(м2*0C)
Rreqтр =
(м2* 0С/Вт)
Из полученных значений выбираем наибольшее,
т.е.
Rreqтр = 2,939м2*
/Вт
Rreq определяем
в зависимости от конструкции стены:
, м2*
/Вт, (1.4)
где
αext,
Вт/(м2*0C) - коэффициент теплоотдачи внутренней поверхности;
Rk - термическое
сопротивление отдельных слоев.
αext = 23
Вт/(м2*0C)
Rk = R1 + R2 +
…+ Rn, (1.5)
где
n - количество слоев
R = δ/λ., (1.6)
где
δ
- толщина слоя, м
λ - расчетный коэффициент теплопроводности материала слоя, Вт/(м2*0C).
Камень
силикатный рядовой пористый на цементо-песчаном растворе по [9] - t =
640 мм,
= 0,26Вт/(м ×°С)
Кирпич
силикатный утолщенный на цементно-песчаном растворе по [9]- t =
120 мм,
= 0,26 Вт/(м ×°С)
Rreq=
, м2*
/Вт
Суммарная толщина конструкции t = 770 мм.
1.6
Инженерное оборудование зданий
1.6.1 Водоснабжение
Наружные сети водопровода:
проект наружных сетей водопровода и бытовой канализации выполняем на
основании технических условий за № 383/1 от 28.10.2004 г., выданных МУП ЖКХ
«Вологдагорводоканал» в соответствии с требованиями по[13].
Суточные расходы определяем по [14]:
Расчет выполняем согласно по [14]
(1.7)
где
норма водопотребления согласно [14];
расчетное
количество жителей, человек, определяется как произведение числа квартир на
коэффициент семейственности, который для г.Вологды равен 2,6.
Точка присоединения к водопроводу - проектируемые водопроводные сети
жилого комплекса, подключенные к водопроводу диаметром 300 мм по ул.
Петрозаводской. В точке подключения предусмотрено устройство железобетонного
колодца с установкой отключающей задвижки на ответвлении.
Ввод водопровода выполняем из полиэтиленовых напорных труб ПНД тип «Т» по
[15] диаметром 110*10,0 мм.
Располагаемый напор в существующем водопроводе - 40м, требуемый напор на
вводе в здание - 46м, обеспечивается насосной установкой Hydro-Мulti-Е c
насосами марки 3 СRE-3-7 (2 рабочих,
1 резервный).
Проектом предусмотрена герметизация ввода водопровода в здание.
Внутренние сети водопровода:
для учета воды на вводе в здание жилого дома устанавливаем водомер марки
ВСХ - 32. Магистральные трубопроводы холодного водоснабжения, ответвления от
магистральных линий водопровода, стояки, подводки к приборам выполняем из труб PPRS по [8]. Магистральные трубопроводы
горячего водоснабжения, ответвления от магистральных линий водопровода, стояки,
подводки к приборам выполняем из труб PPRS по [8] армированных.
1.6.2 Канализация
Наружные сети канализации
водоотведение проектируемого здания принимаем равным водопотреблению,
которое составляет 46,2 м3/сут.
На основании технических условий на проектирование канализации, отвод
бытовых стоков от здания предусмотрен в ранее запроектированные канализационные
сети жилого комплекса, подключенные в существующий колодец на самотечном
коллекторе Ø 300 мм по ул.Московской - Текстильщиков.
Дворовая канализация здания выполняется из асбестоцементных напорных труб
типа ВТ-9 по [14] диаметром 150 мм.
На сети дворовой канализации устраиваем смотровые колодцы из сборных
железобетонных конструкций диаметром 1000 мм.
Проектом предусмотрена герметизация выпусков канализации из здания.
Внутренние сети канализации:
канализация, прокладываемая в полу подвала, выполнена из двухслойных
профилированных труб из полиэтилена «Корсис» SN 8 по [15] диаметром 110мм. Стояки, опуски, отводные
трубопроводы от приборов выполнены из полипропиленовых труб диаметрами 50 и
110мм.
1.6.3 Отопление
Расчетные параметры теплоносителя в системе отопления -
95÷70°С.
Система отопления - однотрубная вертикальная с П - образными стояками.
Нагревательные приборы в квартирах установлены алюминиевые радиаторы Vektor lux, в лифтовом холле и входной группе - чугунные
радиаторы МС - 140 - 108, на лестничной клетке - напольный конвектор КПВК.
Для регулировки температуры воздуха в помещении отопительные приборы
оснащены шаровыми кранами.
Магистральные трубопроводы, прокладываемые по подвалу и чердаку
изолируются минераловатными изделиями с λ ≤ 0,05 Вт/м*°С с покровным
слоем из стеклопластика рулонного РСТ.
1.6.4 Вентиляция
Система вентиляции дома запроектирована приточно-вытяжная с естественным
побуждением и выбросом воздуха в теплый чердак с последующим его удалением
через центральную вытяжную шахту, которая выведена выше уровня кровли.
1.6.5 Электроосвещение
Проектом предусмотрено рабочее освещение лифтовых клеток и входов
управляемое автоматическими выключателями с выдержкой времени.
Для рабочего освещения коридоров, лифтовых холлов, лестничных клеток,
входов в дом, а также эвакуационного освещения применяем лампы накаливания. В
шахтах лифтов устанавливаем настенные светильники. Штепсельные розетки
устанавливаем на высоте 0,3м от плинтуса в комнатах и коридорах, а на кухне -
1,3 и 0,3м. Выключатели установить на высоте 1м.
1.7 Технико-экономические показатели здания
Таблица 1.1 - Технико - экономические показатели здания
|
Наименование показателей
|
Ед. изм.
|
Жилой дом
|
|
|
|
|
1
|
2
|
3
|
|
Количество этажей
|
шт.
|
10
|
|
Высота этажа:
|
м
|
2,8
|
|
Количество квартир
|
|
59
|
|
в том числе:
|
|
|
|
- однокомнатных
|
шт.
|
29
|
|
- двухкомнатных
|
шт.
|
21
|
|
- трехкомнатных
|
шт.
|
9
|
|
Общая площадь квартир
|
м2
|
3406,6
|
|
Общая площадь здания
|
|
|
|
- выше 0,000
|
м2
|
4399,29
|
|
- ниже 0,000
|
м2
|
439,929
|
|
Строительный объем здания, в том числе:
|
м3
|
17377.5
|
|
- подземной части
|
м3
|
1470
|
|
- надземной части
|
м3
|
15907.5
|
|
Площадь застройки
|
м2
|
661,0
|
|
Площадь проездов и проходов
|
м2
|
1195,6
|
|
Площадь озеленения
|
м2
|
1527,4
|
|
Площадь хозяйственных площадок
|
м2
|
42,0
|
|
Площадь площадок для отдыха
|
м2
|
115,0
|
|
Площадь автостоянок
|
м2
|
247,5
|
|
Протяженность инженерных сетей:
|
|
|
|
- водопровода
|
м
|
39,0
|
|
- хозяйственно-фекальной канализации
|
м
|
42,0
|
|
- электрических сетей напряжением 0,4 кВт
|
м
|
80,0
|
|
- сетей телефона
|
м
|
120,0
|
|
- сетей радио
|
м
|
70,0
|
2. Научно
- исследовательский раздел
Сравнительный
анализ вида утеплителя в наружной стене.
В последнее время широкое распространение имеют двухслойные системы
утепления навесных фасадов зданий, это когда во внутреннем слое
теплоизоляционной системы используется легкий утеплитель с невысокой
плотностью, а в наружном более плотный.
Пенопласт применяется для систем утепления фасадов зданий с нормальным
влажностным режимом во внутренних помещениях, к которым не предъявляется
повышенных требований по пожарной безопасности. Применение экструдированного
пенополистирола в системе вообще не целесообразно.
Минплита ЛАЙНРОК ВЕНТИ
Жесткая гидрофобизированная теплоизоляционная минплита из минеральной ваты
на основе горных пород базальтовой группы, на синтетическом связующем. Минплита
Лайнрок Венти применяют в фасадных системах с воздушным зазором при однослойном
исполнении теплоизоляции, а также в качестве наружного теплоизоляционного слоя
в фасадных системах с воздушным зазором при двухслойном исполнении
теплоизоляции для всех типов зданий, без обязательного применения ветрозащиты.
Технические характеристики утеплителя Лайнрок Венти:
длина утеплителя - 1000, 1200 мм
щирина утеплителя - 500, 600, 1000 мм
толщина утеплителя - 30...160 мм
плотность утеплителя - 114 кг/м3
теплопроводность утеплителя, не более - 0,037 Вт/мК
прочность на сжатие при 10% деформации, не менее - 20 КПа
прочность на отрыв слоев, не менее - 6,8 КПа
водопоглощение по объему, не более - 1,5%
водопоглощение по массе, не более - 15%
группа горючести - НГ
Для определения толщины утеплителя выполняется теплотехнический расчет.
Характеристика пенополистирола:
плотность материала - 16-17 кг/м3
прочность сжатия при 10% линейной деформации - 0.12 МПа
предел прочности при изгибе - 0.2 МПа
теплопроводность в сухом состоянии при 25оС - 0.037 Вт/(м4К)
время самостоятельного горения - 3сек.
влажность плит - 1%
водопоглащение за 24 часа - 1%
срок службы - 20-50 лет
Обычный пенополистирол является самым дешевым утеплителем. Он обладает
низкой теплопроводностью, в сравнении с минеральной ватой. Он имеет низкую
паропроницаемость, это ограничивает его использование для деревянных стен бани
и сауны, но для кирпичного дома подходит. В плане безопасности данный
утеплитель имеет не высокую степень устойчивости к горению, а наоборот, хорошо
подвержен воздействию огня, при этом выделяет опасные вещества.
Высокая горючесть материала однозначно приведет к большим затратам. Его
нельзя использовать при утеплении дверных проемов или окон кирпичного дома, в
этом случае следует использовать наиболее подходящую минеральную вату. Но все
же, материал хорошо подойдет, чтобы утеплить кирпичный дом. Это позволит
снизить затраты на отопление в 4 раза.
Таким образом, проведя сравнительный анализ разных видов утеплителей,
можно сделать вывод, что утолщенная стена в 770мм с утепленной штукатуркой в
30мм является наиболее экономичной и менее трудозатратной.
3.
Расчетно-конструктивный раздел
.1 Расчет
монолитной плиты
.1.1 Компоновка
монолитной плиты
Устойчивость здания обеспечивается продольными и
поперечными несущими стенами и жестким диском перекрытия. Сборные
железобетонные плиты перекрытий в ходе установки жестко заделывают в стенах с
помощью анкерных креплений и скрепляют между собой сварными или арматурными
связями, опирание плит перекрытий на стены 100мм. Анкера соединяем между собой
сваркой внахлестку. Длина нахлестки не менее 100 мм.
Рассчитаем плиту перекрытия П8. Плита сплошная толщиной 150 мм,
прямоугольного сечения. Длина плиты 4780 мм, ширина - переменная. Бетон класса
В15.
3.1.2 Сбор
нагрузки на монолитную плиту перекрытия
Таблица 3.1 - Нагрузка на 1м2 монолитной плиты, кН/м2
|
Наименование нагрузки и ее значение в кН/м2
|
Нормативн. значение gн
|
γf
|
Расчетн. значение g
|
|
Постоянная Конструкция пола: - цементный пол толщиной 30 мм
18х0,03
|
0,54
|
1,3
|
0,702
|
|
- гидроизоляция
|
0,04
|
1,2
|
0,048
|
|
Собственный вес 25х0,15
|
3,75
|
1,1
|
4,125
|
|
Итого:
|
4,33
|
|
4,875
|
|
Временная Равномерно-распределенная, В том числе длит.
составляющая
|
2,000 0,700
|
1,2 1,2
|
2,400 0,840
|
|
Всего:
|
6,33
|
|
7,275
|
Определяем нагрузки на 1 погонный метр плиты при номинальной ширине 1,174
м:
а) Нормативные: постоянная gn=gnтабл.·b=4,33·1,174=5,08 кН/м
полная временная рn=pnтабл.·b=2,0·1,174=2,35 кН/м
полная qn = gn + pn =
5,08+2,35 = 7,43 кН/м
б) Расчётные: постоянная g=gтабл.·b=4,875·1,174=5,72 кН/м
полная временная р=pтабл.·b=2,4·1,174=2,82 кН/м
полная q = g + p =
5,72+2,82 = 8,54 кН/м
Расчет прочности нормальных сечений
Расчет плиты выполняем как балочной конструкции по схеме с шарнирным
опиранием.
Определяем максимальный момент в пролете:
,кНм,
(3.1)
где
l0=l-2с - расчетный пролет
с=100
мм -ширина площадки опирания на кирпичную стену
l0=4780-2·100=4580
мм
кНм
Рисунок 3.1 - Расчетная схема плиты
Определим коэффициент αm:
, (3.2)
где
Rb=8.5 МПа - расчетное сопротивление бетона сжатию;
h0=h-a=150-15=135
мм - рабочая высота сечения;
где
а=15 мм - толщина защитного слоя.
, αR=0,390,
,123<0,390,
условие выполняется, разрушение произойдет по растянутой зоне бетона.
Площадь
рабочей арматуры:
,м2,
(3.3)

м2
Подбираем
арматуру 12Ø8
А400 с шагом 100 мм
см2
Расчет
прочности наклонных сечений
В
сплошных плитах независимо от высоты допускается поперечную арматуру не
устанавливать при выполнении условия:
, Н,
(3.4)
где
правая часть принимается не более 2,5Rbt∙b∙h0 и
не менее φb2(1+φn+φf)∙Rbt∙b∙h0,
Q=
, кН, (3.5)
Q=
кН.
φb2=2
-коэффициент, зависящий от вида бетона;
φn=0 -
коэффициент, учитывающий наличие силы предварительного обжатия в
преднапряженных конструкциях, в данном случае плита выполняется без
предварительного натяжения арматуры;
φf=0 - учитывает
форму таврового сечения в монолитных плитах, в данном случае не учитывается,
т.к. сечение прямоугольной формы.
,5Rbt∙b∙h0=2,5∙0,9∙106∙1,174∙0,135=0,36∙106H>0,14∙106H
φb2(1+φn+φf)∙Rbt∙b∙h0=0,6(1+0+0)0,9∙106∙1,174∙0,135=0,08∙106H<0,14∙106H
Условие
выполняется, соответственно поперечную арматуру устанавливаем по конструктивным
требованиям.
Принимаем
стержни Ø5В500 с шагом 100 мм
см2
Расчет
по второй группе предельных состояний
Проверяем
условие образования трещин Мn≤Мcrc.
Мn=
, кН·м, (3.6)
Мn=
кН·м
Момент
образования трещин равен:
,кН·м,
(3.7)
где
- момент от предварительного напряжения
железобетонного элемента, в монолитных участках он отсутствует;
кПа.
Для
определения пластического момента сопротивления сечения
находим момент инерции бетонного сечения:
м4 ,
(3.8)
м4
Площадь
приведенного сечения:
,м2 ,
(3.9)
м2
Коэффициент
приведения:
, (3.10)
Приведенный
статический момент сечения относительно нижней грани:
, (3.11)
где
а=0,015 м
, (3.12)
,
м, (3.13)
м=y0-a
, м, (3.14)= 0.075-0.015=0.06 м
;
, м, (3.15)
Приведенный
момент сопротивления:
, м3 ,
(3.16)
м3
Пластический
момент сопротивления:
, м3 ,
(3.17)
м3
Момент
трещинообразования равен:
>
Условие
выполняется, трещин в растянутой зоне не образуется.
Расчет
по деформациям
На
участке без трещин прогиб складывается из
- прогиба
от кратковременной (полной) нагрузки,
- прогиба
от длительной составляющей.
Полный
прогиб равен:
f=f1+f2<[f]
(3.18)
[f]=1/200l0=4.58/200=0.023
м.
, м,
(3.19)
м
, м,
(3.20)
м
f=0,00015+0,00024=0,00039
м < 0,023 м, условие выполняется.
Схему
плиты П-8 и разрез плиты см. лист 3 графической части.
На
рисунке 3.2 показаны размеры монтажной петли.
здание строительный плита стена
Рисунок 3.2 - Монтажные петли плиты М-8
3.2 Расчет
свайного фундамента
В данном проекте предусмотрен свайный фундамент. Сваи представляют собой
стержни, которые погружены в грунт и передают нагрузки от сооружения к грунту.
Верхние части свай объединены монолитной железобетонной балкой - ростверком.
Ростверк передает нагрузки от сооружения на сваи и обеспечивает их совместную
работу.
Выполнение свайных фундаментов менее трудозатратное. Оно не требует
устройства больших котлованов и траншей. Сваи позволяют передавать нагрузки на
плотные грунты, лежащие глубоко от поверхности, которые обладают большей несущей
способностью, чем грунты, лежащие вблизи поверхности земли.
Расчет произведем по трем сечениям:
сечение 1-1 по оси А - по наружной несущей стене
сечение 2-2 по оси В - по внутренней несущей стене
сечение 3-3 по оси 6 - по наружной самонесущей стене
На рисунке 3.3 показаны сечения и грузовая площадь.
Рисунок 3.3 - Фрагмент плана
3.2.1 Сбор нагрузок на фундамент
Таблица
3.2 - Сбор нагрузок на междуэтажное перекрытие
|
Нагрузка
|
Нормативн. нагрузка Коэф. надежности Расчетн. нагрузка
|
|
|
Постоянные:
собственный вес плиты перекрытия
цементно-песчаная
стяжка
линолеум
,750
,540
,090
,1
,3
,2
,025
,702
|
0,108
|
|
|
|
|
нагрузка от перегородок толщ. 70мм
|
0,120
|
1,1
|
0,132
|
|
Итого постоянной:
|
3,5
|
|
3,967
|
|
Временная нагрузка: Равномерно-распределенная
|
1,5
|
1,3
|
1,800
|
|
Итого временная и постоянная
|
5,0
|
|
5,767
|
|
|
|
|
|
Таблица
3.3 - Сбор нагрузки на чердачное перекрытие, кН/м
|
Нагрузка
|
Нормативная нагрузка Коэф. надежности Расчетная нагрузка
|
|
|
Постоянные:
собственный вес плиты перекрытия
керамзитовый
гравий
цементно-песчаная
стяжка
,750
,3
,72
,1
,3
,3
,025
,39
,936
|
|
|
|
|
Итого постоянной:
|
3,77
|
|
4,351
|
|
Временная нагрузка: равномерно-распределенная
|
0,70
|
1,3
|
0,91
|
|
Итого временная и постоянная
|
4,47
|
|
5,26
|
Таблица
3.4 - Сбор нагрузок на кровлю
|
Нагрузка
|
Нормативная нагрузка Коэф-ент надежности Расчетная нагрузка
|
|
|
|
1
|
2
|
3
|
4
|
Постоянные:
линокром 2 слоя
цементно-песчаная
стяжка
пенополистирол
керамзитовый
гравий по уклону
рубероид
1 слой
собственный
вес плиты перекрытия
,050
,54
,064
,18
,018
,750
,2
,3
,3
,3
,2
,1
,06
,702
,083
,234
,022
|
3,025
|
|
|
|
|
Итого постоянной:
|
3,60
|
|
4,126
|
|
Временная: от людей снеговая
|
0,50 1,68
|
1,2 1,4
|
0,60 2,40
|
|
Итого временная и постоянная
|
5,28
|
|
6,526
|
Нормативное значение снеговой нагрузки на горизонтальную проекцию
покрытия:
S0 = 0,7 ce ct m Sg ; кПа, (3.21)
где ce - коэффициент, учитывающий снос
снега с покрытий зданий под действием ветра или иных факторов, по [16];
ct =1,0
- термический коэффициент, по[16];
m =1 - коэффициент перехода от веса снегового покрова земли к
снеговой нагрузке на покрытие, для плоской кровли по[16];
Sg=2,4 кПа - вес снегового покрова на 1 м2 горизонтальной
поверхности земли, принимаемый по[16];
ct = 1,0
m=1 - для плоской кровли
Sg=2,4 кПа
S0 = 0,7 ·1·1·1 ·2,4=1,68 кПа
Таблица
- 3.5 Сбор нагрузок на подвальное перекрытие,
|
Нагрузка
|
Нормативная нагрузка Коэф. надежности Расчетная нагрузка
|
|
|
|
1
|
2
|
3
|
4
|
Постоянные:
собственный вес плиты перекрытия
минеральные
ватные плиты
армированная
цементно-песчаная стяжка
керамическая
плитка
,750
,020
,720
,180
,1
,2
,3
,2
,025
,024
,936
|
0,215
|
|
|
|
|
Итого постоянной:
|
3,670
|
|
4,20
|
|
Временная нагрузка: Равномерно-распределенная
|
4,0
|
1,2
|
4,800
|
|
|
Итого временная и постоянная
|
7,67
|
|
9,000
|
|
|
|
|
|
|
|
|
3.2.2 Сбор нагрузок по сечениям
Сечение 1-1 (по наружной несущей стене)
Нагрузка от опирания плит перекрытий:
=219,52
кН/м;
Нагрузка
от стены:
,кН/м,
(3.22)
где
- толщина стены
-
расстояние от верха до низа стены
К0
- коэффициент остекления
-
плотность материала стены
Коэффициент остекления:
, кН/м,
(3.23)
где
,
Нок
- высота окна,
Нэт
- высота этажа,
L - расстояние
между центрами окон.
кН/м
, кН/м
кН/м
Балконные
плиты
кН/м
Ростверк
ориентировочно:
кН/м
Вес
грунта:
кН/м
кН/м
кН/м
Сечение
2-2 (по внутренней несущей стене)
Нагрузка
от опирания плит перекрытий:
кН/м
Нагрузка
от стены
кН/м
кН/м
.
Ростверк ориентировочно:
кН/м
.
Вес грунта: 2
кН/м
кН/м
Сечение
3-3 (по наружной самонесущей стене)
Нагрузка
от стены:
кН/м
кН/м
Ростверк
ориентировочно:
кН/м
Вес
грунта:
кН/м
кН/м
кН/м
3.2.3
Расчет сваи по несущей способности
Рассчитываем сечение 1-1
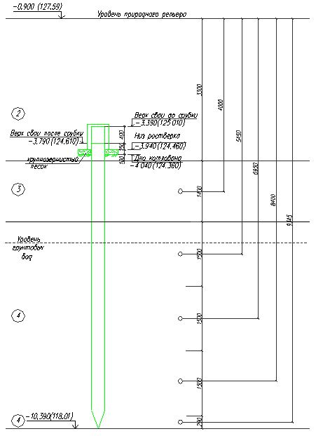
Грунтовые условия (см. рис. 3.4):
слой - супеси коричневые пластичные (IL=0.42), толщина слоя 3,3 м
слой - суглинок тугопластичный (IL=0.27), толщина слоя 1,4 м
слой - суглинок моренный (IL=0.4),
толщина слоя 4,79 м
Свая С70.30-8: бетон В20, продольная арматура каркасов Ø14
А400
Длина сваи - L=7 м
Сечение сваи - d*d=300х300 мм
Площадь поперечного сечения сваи - А=0,30*0,30=0,09 м2
Периметр сечения сваи - u=0,30*4=1,2
м
Расчетная глубина погружения нижнего конца сваи от поверхности грунта
9,49 м.
По [17] для этой глубины находим расчетное сопротивление грунта в
плоскости нижнего конца сваи R=2530
кПа (значение принято по интерполяции).
Определяем среднюю глубину расположения слоев грунта от дневной
поверхности и соответствующие значения расчетного сопротивления грунта на
боковой поверхности сваи по [17].
слой: l1=4,0 м→f1=38 кПа
слой: l2=5,45 м→f2=29,5 кПа
слой: l3=6,95 м→f3=32 кПа
слой: l4=8,4 м→f4=33,2 кПа
слой: l5=9,345 м→f5=33,7 кПа
Рисунок 3.4 - Схема к расчету сваи с геологическими условиями
Несущая способность Fd
определяется:
Fd=γс·(γсR·R·A+u·γcf·fi·hi), кН (3.24)
где γс - коэффициент условий работы: γс=1
Fd=1(1·2530·0.09+1.2·1(38·1.4+29,5·1.5+32·1.5+33,2·1.5+33,7·0.29))=432,7кН
Расчетная нагрузка, передаваемая на 1 сваю:
(3.25)
где
N - расчетная нагрузка, передаваемая на сваю
Определяем
количество свай, необходимое по несущей способности, для 1 м.п.
Принимаем
количество свай равное 3, из условий по несущей способности и по
конструктивному решению.
Шаг
свай 0,5 м.
Проверка
по формуле 2.25
,29кН/м≤927,2кН/м.
Условие
выполнено. Принимаем под наружную несущую стену по 2 сваи в ряду с шагом 0,5 м.
Сечение сваи 0,3х0,3, длиной 7 м.
Рисунок 3.5 - Схема расположения свай по оси А. Сечение 1-1
Сечение 2-2
слой: l1=4,0 м→f1=38 кПа
слой: l2=5,45 м→f2=29,5 кПа
слой: l3=6,95 м→f3=32 кПа
слой: l4=8,4 м→f4=33,2 кПа
слой: l5=9,345 м→f5=33,7 кПа
Несущая способность Fd
определяется по формуле 3.24
Fd=1(1·2530·0.09+1.2·1(38·1.4+29,5·1.5+32·1.5+33,2·1.5+33,7·0.29))=432,7кПа
Расчетная нагрузка, передаваемая на 1 сваю по формуле 3.25
Определяем
количество свай, необходимое по несущей способности, для 1 м.п.
Принимаем
количество свай равное 3, из условий по несущей способности и по
конструктивному решению. Шаг свай 0,55 м
Проверка
по формуле 2.25
,35кН/м≤927,21кН/м
Условие
выполнено. Принимаем под наружную несущую стену по 2 сваи в ряду с шагом 0,55
м. Сечение сваи 0,3х0,3, длиной 7 м.
Рисунок 3.6 - Схема расположения свай по оси В. Сечение 2-2
Сечение 3-3
слой: l1=4,0 м→f1=38 кПа
слой: l2=5,45 м→f2=29,5 кПа
слой: l3=6,95 м→f3=32 кПа
слой: l4=8,4 м→f4=33,2 кПа
слой: l5=9,345 м→f5=33,7 кПа
Несущая способность Fd
определяется по формуле 3.24
Fd=1(1·2530·0.09+1.2·1(38·1.4+29,5·1.5+32·1.5+33,2·1.5+33,7·0.29))=432,7кПа
Расчетная нагрузка, передаваемая на 1 сваю по формуле 3.25
Определяем
количество свай, необходимое по несущей способности, для 1 м.п.
Принимаем
количество свай равное 2, из условий по несущей способности и по
конструктивному решению. Шаг свай 0,85 м.
Проверка
по формуле 3.25
N - расчетная
нагрузка, передаваемая на сваю
,86
кН/м≤618,14кН/м
Условие
выполнено. Принимаем под наружную несущую стену по 1 свае в ряду с шагом 0,85
м. Сечение сваи 0,3х0,3, длиной 7 м.

Рисунок 2.7 - Схема расположения свай по оси 6. Сечение 3-3
4.
Технологический раздел
.1 Область
применения технологической карты
Технологическая карта разработана на кладочно-монтажный процесс 10
этажного кирпичного жилого здания расположенного в г. Вологда по улице
Московская.
Здание с размерами в осях 14,62 х 33,1 м. Наружные стены выполнены из
камня силикатного рядового пористого одиннадцатипустотного по [5] с облицовкой
лицевым утолщенным силикатным кирпичом по [5]. Масса наиболее тяжелого элемента
3025 кг (плита покрытия ПК72.12).
Материалы - бетон для монолитных заделок класса В-15, раствор марки 100 и
сборные конструкции доставляются на строительную площадку с заводов ЖБИ
автотранспортом.
4.2
Организация и технология выполнения строительного процесса
.2.1
Состав работ
В состав работ, рассматриваемых картой, входят:
кладка наружных стен;
заделка стыков в плитах перекрытия;
монтаж сборных железобетонных перемычек;
устройство перегородок;
подача раствора в ящиках;
установка и разборка подмостей;
монтаж плит перекрытия и покрытия;
монтаж лестничных площадок и маршей.
Монтаж этажа осуществляется поточно-кольцевым методом. Сначала звено
выкладывает 1 ярус высотой 1,2м по всему зданию, затем устанавливаются подмости
высотой 1,2 м и выкладывается 2 ярус высотой 0,8м. Затем в такой же
последовательности возводится 3 ярус высотой 0,8м.
4.2.2
Организация и технология выполнения работ
До начала кирпичной кладки стен верхнего этажа должны быть выполнены
следующие работы: закончены и сданы по акту все работы нулевого цикла;
выполнена геодезическая разбивка осей стен здания; доставлены на площадку и
подготовлены к работе башенный кран, подмости, необходимые приспособления,
инвентарь и материалы.
Доставку кирпича на объект осуществляем пакетами в специально
оборудованных бортовых машинах. Раствор на объект доставляем
автомобилями-самосвалами и выгружаем в установку для перемешивания и выдачи
раствора (раздаточным бункером). В процессе кладки запас материалов пополняется.
Складирование кирпича предусмотрено на спланированной площадке на
поддонах или железобетонной плите. Схема складирования приведена на рисунке 4.1
Рисунок 4.1 - Схема складирования кирпича: 1 - кирпич; 2 - поддон;
- железобетонная плита.
Процесс кирпичной кладки состоит из следующих операций:
установка и перестановка причалки;
рубка и теска кирпичей (по мере надобности);
подача кирпичей и раскладка их на стене;
перелопачивание, подача, расстилания и разравнивание раствора на стене;
укладка кирпичей в конструкцию (в верстовые ряды, в забутку);
расшивка швов;
проверка правильности выложенной кладки.
Кирпичная кладка выполняется из камня силикатного рядового пористого
одиннадцатипустотного по [5] с облицовкой лицевым утолщенным силикатным
кирпичом по [5]. Кладку выполняем горизонтальными рядами. Вначале ведётся
наружная верста, а затем внутренняя. Основными системами перевязки кирпичной
кладки стен, широко применяемыми в нашей стране, являются однорядная (цепная) и
многорядная. Во внутренней версте допускается любой тип перевязки. В
облицовочном слое допускается только цепная перевязка.
Раствор для кладки должен быть приготовлен на портландцементе. Применение
шлакопортландцемента не допускается. Марку раствора принимаем М100.
Для правильного расположения горизонтальных рядов кладки применяем шнур -
причалку, которая является направляющей при кладке верстовых рядов. Её
устанавливают с обеих сторон стен и прикрепляют к порядовкам к предварительно
выложенной кладке при помощи скоб. Вертикальность граней и углов кладки из
кирпича, горизонтальность ее рядов необходимо проверять по ходу выполнения
кладки (через 0,5-0,6м). Толщина горизонтальных швов кладки должна составлять
12 мм, вертикальных швов - 10 мм.
После окончания кладки каждого этажа производим инструментальную проверку
горизонтальности и отметок верха кладки независимо от промежуточных проверок
горизонтальности. Результаты проверок заносятся в журнал работ.
В местах установки порядовок выкладываем маяки высотой в шесть рядов. В
четвёртом ряду заделывают скобы для крепления порядовок. Для кладки первых пяти
рядов причалки натягивают при помощи штыря, забиваемого в швы кладки. Кладка
шестого и всех последующих рядов выполняется с перестановкой кронштейна на
высоту ряда.
Подготовка стены заключается в её очистке и раскладке на ней кирпича.
Раствор подается лопатой в количестве, необходимом для образования
горизонтального шва под 6-7 кирпичей и разравнивают его с помощью кельмы.
Подачу материала, кирпича, раствора осуществляем при помощи крана. Для
кладки 2 и 3 яруса кирпич на поддонах подается на подмости. Раствор подаётся в
специальных ящиках.
Во всех случаях на рабочем месте каменщиков должно быть обеспечено
свободное передвижение рабочих по фронту работ и их полная безопасность. Общую
ширину рабочих мест принимаем равной 2,5 - 2,6 м, в том числе рабочую зону 60 -
70 см. Кирпич доставляем на объект и поднимаем на подмости на поддонах. Для
спуска порожние поддоны связывают так, чтобы исключить возможность их падения.
Запрещается сбрасывать поддоны с подмостей.
Ширина постелей подмостей должна обеспечивать свободный проход рабочих,
удобное производство работ и размещение необходимых материалов. Настилы должны
иметь ровную поверхность, с зазорами не более 10 мм.
Толщина слоя раствора под опорными частями перемычек не должна превышать
15мм.
Монтаж плит производится после кладки стен. Кладку стен вышележащего
этажа выполняем только после монтажа, анкеровки и замоноличивания плит
перекрытия.
Конструктивное армирование кладки: в уровне низа оконных проемов
устанавливаются горизонтальные диафрагмы из арматурных сеток в слое цементного
раствора. Сетки из проволоки ø5 В500 по [15]. Обязательная постановка
связей в углах здания на расстоянии 100мм от внутреннего угла и у углов
проемов.
Кладку стен с вентиляционными каналами ведем с полным заполнением
раствором шва и швабровкой внутренней поверхности каналов.
В местах прохождения каналов в количестве два и более укладываем сетки из
проволоки ø3 В500 по [18] с ячейкой 50х50мм через три ряда кирпича. В трех
рядах под перекрытием сетки укладываем в каждом ряду.
Сборные перемычки укладываются по ходу кладки. Разность высот возводимой
кладки на смежных участках и при кладке примыканий наружных и внутренних стен
не должна превышать высоты этажа.
Устройство кирпичной кладки в зимних условиях.
Наиболее распространенными противоморозными химическими добавками
являются: поташ (п) К2SO3, нитрит натрия (нн), соединение нитрата кальция с
мочевиной (нкм).
Условия применения добавок в растворы оговорены в табл.2 прил.У [19].
Нормативное количество основных добавок в % по массе цемента в пересчете
на сухое вещество при разных отрицательных температурах приведено в таблице 4.1
Таблица 4.1 - Количество основных добавок
|
Вид добавки
|
Среднесуточная температура воздуха, Количество добавок, % массы
цементаСоотношение м/д компонентами добавки по массе в пересчете на сухое
вещество
|
|
|
|
1
|
2
|
3
|
4
|
|
Поташ
|
От 0 до -5 От -6 до -15 От -16 до -30
|
5 10 15
|
-
|
|
Нитрит натрия
|
От 0 до -5 От -6 до -9 От -10 до -15
|
5 8 10
|
-
|
|
Нитрат кальция с мочевиной
|
От 0 до -5 От -6 до -15 От -16 до -25
|
5 10 15
|
НК:М-1:1 НК:М-2:1 НК:М-3:1
|
Не допускается контакт растворов с добавками НН, П, НКМ и ННКХМ с
оцинкованными и алюминиевыми закладными без протекторных покрытий.
Марка применяемого раствора не ниже 50.
В качестве вяжущего для растворов рекомендуется применять портландцемент
марки не ниже 300. Допускается применение шлакопортландцемента и пуццоланового
портландцемента.
Применение растворов выполняем с соблюдением требований, изложенных в
[20].
Таблица 4.2 - Прочность раствора
|
Вид добавки
|
Средняя температура твердения,
|
Прочность раствора, % марки при твердении на морозе
|
|
|
3 сут.
|
7 сут.
|
28 сут.
|
90 сут.
|
|
Поташ
|
До -5 От -6 до -15 Ниже -15
|
15 10 5
|
25 20 10
|
60 50 35
|
80 65 50
|
|
Нитрит натрия
|
До -5 От -6 до -15
|
5 3
|
10 5
|
40 30
|
55 40
|
|
Нитрат кальция с мочевиной
|
До -5 От -6 до -15 Ниже -15
|
20 10 5
|
30 15 10
|
50 40 30
|
90 70 50
|
4.2.3
Определение объёмов кладочно-монтажных работ
На основании проектных данных определяем количество монтажных элементов,
их массу и размеры. Сводная ведомость объёмов работ будет являться исходным
документом для составления калькуляции трудовых затрат и выбора монтажных и
транспортных машин.
Таблица 4.3 - Ведомость объёмов работ
|
Наименование работ
|
Ед.изм-я
|
Формула подсчета
|
Кол-во
|
|
1
|
2
|
3
|
4
|
|
Подача кирпича
|
1000 шт.
|
392 на 1 м³ кладки N= 392*3734,86=5286000
|
528,6
|
|
Подача раствора
|
м³
|
0,25 на 1
м³
кладки V=0.25*3734,86=622,61
|
622,61
|
|
Кладка 1 яруса
|
|
Кладка наружных стен толщиной 770мм с расшивкой
|
м³
|
V=a*b*h V=0.77*97.76*1.2=90,33*10
|
903,3
|
|
Кладка внутренних стен толщиной 640мм, 510мм, 380мм
|
м³
|
V=a*b*h V1=0.64*25.79*1.2=19,8*10 V2=0.51*57.76*1.2=35,35*10 V3=0.38*30,64*1,2=13,97*10
|
705,66
|
|
Кладка 2 яруса
|
|
Устройство блочных подмостей
|
м3
|
-
|
133,6
|
|
Кладка наружных стен толщиной 770мм с расшивкой
|
м³
|
V=a*b*h V=0.77*97.76*0.8=60.22*10
|
602,2
|
|
Кладка внутренних стен толщиной 640мм, 510мм, 380мм
|
м³
|
V=a*b*h V1=0.64*25.79*0.8=13.20*10 V2=0.51*57.76*0.8=23.57*10 V3=0.38*30,64*0.8=9.31*10
|
460,8
|
|
Кладка 3 яруса
|
|
Разборка и устройство блочных подмостей
|
м3
|
|
133,6
|
|
Кладка наружных стен толщиной 770мм с расшивкой
|
м³
|
V=a*b*h V=0.77*97.76*0.8=60,22*10
|
602,2
|
|
Кладка внутренних стен толщиной 640мм, 510мм, 380мм
|
м³
|
V=a*b*h V1=0.64*25.79*0.8=13,2*10 V2=0.51*57.76*0.8=23,56*10 V3=0.38*30,64*0.8=9,31*10
|
460,8
|
|
Подача и укладка перемычек
|
1 проем
|
|
1200
|
|
Подача и монтаж плит перекрытия
|
шт.
|
Определяется по спецификации сборных железобетонных
конструкций
|
668
|
Сварка
закладных деталей 10 м шва
|
8,96
|
|
|
|
Заливка швов
|
100 м
|
|
5,22
|
|
Установка лестничных площадок и маршей
|
шт.
|
Определяется по спецификации сборных железобетонных
конструкций
|
21
|
.2.4
Подбор крана
Монтаж конструкций десятиэтажного жилого здания в основном ведется
башенным краном.
На основании ведомости монтажных элементов выбираем группу элементов,
которая характеризуется максимальными монтажными параметрами, для этой группы
подбираем монтажный кран с необходимыми характеристиками.
Выбор крана начинаем с уточнения массы сборных элементов, монтажной
оснастки и грузозахватных устройств, габаритов и проектного положения
конструкций в сооружении. На основании указанных данных определяем группу
сборных элементов, которые характеризуются максимальными монтажными
техническими параметрами. Для этих сборных элементов подбираем наименьшие
требуемые технические параметры монтажных кранов.
В производстве работ следует применять прогрессивные технологические
методы, с учетом конструктивной характеристики здания и сроков его
строительства.
Требуемая грузоподъемность крана определяется как сумма масс элементов,
навешиваемых одновременно на крюк крана:
, (4.1)
где
максимальный вес монтажного элемента (т)
масса
стропов (ориентировочно принимается 5% от массы монтажного элемента)
Минимальная
требуемая высота подъема крюка:
, (4.2)
где
превышение опоры монтируемого элемента над нулевой
отметкой, м
запас
высоты, м (принимается 0,5м)
высота
элемента, м
высота
строп, м
Рисунок 4.2- Параметры выбора монтажного крана
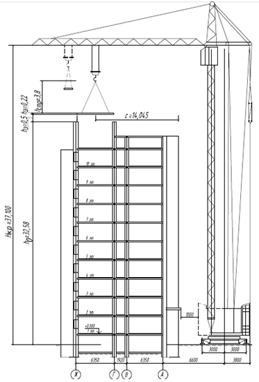
Вылет крюка и длина стрелы:
Lкр. =
а/2 + в + с, м, (4.3)
где а - ширина кранового пути
в - расстояние от кранового пути до проекции наиболее выступающей части
здания
с - расстояние от центра тяжести монтируемого элемента до выступающей
части здания со стороны крана
Lкр. =
6/2 + 1 + 14,045 = 18,05 м
Для подбора крана имеем следующие характеристики:
4.3
Технико-экономическое обоснование выбора монтажного крана
Таблица 4.4- Технические характеристики строительных кранов
|
Наименование показателей
|
Модель крана
|
|
|
КБ-403А
|
КБ-408.04
|
|
Требуемая высота подъема крюка HКР, м Грузоподъемность, т: минимальная максимальная
Вылет стрелы, м: минимальный максимальный Задний габарит крана, м Расстояние
между опорами, м Скорость подъема груза V1, м/мин Скорость плавной посадки груза, м/мин
Частота вращения n, мин-1
Скорость движения крана V3,
м/мин. Сметная расценка, руб
|
41,0 3 8 5,5 30 3,8 6 40 5 0,6 18 104,15
|
41,0 3 10 6 30 4,35 6 36 4,8 0,65 18 112,12
|
На основании сравнения технико-экономических показателей окончательно для
монтажа конструкций выбираю кран КБ-403А как наиболее экономичный вариант.
Технологические параметры крана представлены на листе 5 графической
части.
4.4
Требования к качеству и приемке работ
Качество выполненных каменных работ необходимо контролировать
систематически, с помощью соответствующих инструментов и приспособлений, к
которым относятся уровень, отвес, складной метр, рулетка, шаблон, угольник и
др. Необходимо стремиться к тому, чтобы возможные отклонения от проектных
размеров каменных конструкций не превышали допустимых значений. Для обеспечения
требуемого качества выполненной кладки каменщик следит за тем, чтобы
применялись кирпич и раствор, указанные в проекте, проверяет правильность
перевязки и качество швов и кладки, вертикальность, горизонтальность и
прямолинейность поверхностей и углов, правильность установки закладных деталей
и связей, качество поверхности кладки.
Горизонтальность углов кладки на каждом ярусе контролируется правилом и
уровнем не реже двух раз. Вертикальность поверхностей стен и углов также
контролируется отвесом не реже двух раз на каждом ярусе. Необходимо
периодически проверять толщину швов.
Контроль выполняется производителями работ и мастерами, так же могут быть
привлечены строительные лаборатории и геодезические службы. При операционном
контроле следует проверять соблюдение технологии выполнения
строительно-монтажных процессов, соответствие выполняемых работ рабочим
чертежам, строительным нормам, правилам и стандартам. Результаты операционного
контроля качества должны фиксироваться в журнале работ и учитываются при
определении оценки качества работ.
При приёмке законченных работ по возведению каменных конструкций
необходимо проверять:
правильность перевязки швов, их толщину;
правильность устройства деформационных швов;
качество поверхностей фасадных стен;
геометрический размер и положение конструкций.
Отклонения в размерах и положении каменных конструкций от проектных не
должны превышать указанных в таблице 4.4
Таблица 4.5 - Предельные отклонения
|
Проверяемые конструкции (детали)
|
Предельные отклонения, мм
|
|
стены
|
столбы
|
|
|
1
|
2
|
3
|
|
|
Толщина конструкций
|
±15
|
±10
|
|
|
Отметки опорных поверхностей
|
-10
|
-10
|
|
|
Ширина простенков
|
-15
|
-
|
|
|
Ширина проемов
|
+15
|
-
|
|
|
Смещение вертикальных осей оконных проемов от вертикали
|
20
|
-
|
|
|
Смещение осей конструкций от разбивочных осей
|
10
|
10
|
|
|
Отклонения поверхностей и углов кладки от вертикали:
|
|
|
на один этаж
|
10
|
10
|
|
|
на здание высотой более двух этажей
|
30
|
30
|
|
|
Отклонение рядов кладки от горизонтали на 10м длины стены
|
15
|
-
|
|
|
Неровности на вертикальной поверхности кладки,
обнаруженные при накладывании рейки длиной 2м
|
10
|
5
|
|
|
Толщина швов кладки: горизонтальных - 12мм вертикальных -
10мм
|
-2; +3 -2; +2
|
-2; +3 -2; +2
|
|
Элементы сборных железобетонных и бетонных конструкций, которые поступают
на строительную площадку, должны соответствовать проекту, действущим ГОСТам,
нормам и техническим условиям на изготовление отдельных изделий.
Каждая партия элементов сборных конструкций обязана быть снабжена
паспортом, выдаваемым потребителю предприятием-изготовителем при отпуске
изделий.
Приемка элементов сборных конструкций производится представителем
монтирующей организации, внешним осмотром. При осмотре проверяют: отсутствие
деформаций, повреждений, проектные размеры, правильность расположения монтажных
петель, отсутствие раковин, трещин, наплывов.
Погрузочно-разгрузочные работы выполняют непосредственно под руководством
мастера, имеющего специальную подготовку.
Строповка элементов конструкций должна обеспечивать их подъем и подачу к
месту монтажа в положении, соответствующем проектному.
Уровень кладки после каждого перемещения подмостей должен быть не менее
чем на 0,7 м выше уровня рабочего настила или перекрытия.
Не допускается кладка наружных стен толщиной до 0,75 м в положении стоя
на стене.
4.5
Калькуляция затрат труда и времени работы машин
Основным документом, определяющим затраты труда и продолжительность работ
является калькуляция.
Затраты труда:
ЗТ = Нвр∙V, чел∙ч,
(4.4)
где Нвр - норма времени на выполнение единицы работы, по [21], [22], [23]
V-
объем работы.
Калькуляция трудозатрат представлена в приложении 2.
4.6 График
производства работ
График производства работ заполняется на основании калькуляции
трудозатрат в одну смену (8 часов).
При планировании необходимо обеспечить полную загрузку машин и
организовать производство работ поточным методом с соблюдением правильной
последовательности ведения отдельных работ и обеспечение их качества. График
производства работ представлен на листе 5 графической части.
4.7
Материально-технические ресурсы
Перечень машин, механизмов и оборудования приведен в таблице 4.5
Таблица 4.6 - Перечень машин, механизмов и оборудования
|
Наименование машин, механизмов и оборудования
|
Тип, марка
|
Технологическая характеристика
|
Назначение
|
Кол-во на звено
|
|
Кран
|
КБ-403А
|
Грузоподъемность - 8 т Стрела - 30 м
|
Подача и монтаж конструкций
|
1
|
|
Строп четырехветвевой
|
4 СК - 4,0
|
Масса 50 кг. Грузоподъем.-4 т
|
Для захватки краном констр-ции
|
1
|
|
Шарнирно-пакетные подмости
|
|
|
Для кирп. кладки на 2 ярусе
|
|
|
Камаз бортовой
|
КамАЗ-5320
|
|
Для перемещения грузов на расстояние
|
1
|
4.8
Мероприятия по охране окружающей среды, технике безопасности, противопожарной
защите
До начала строительных работ на площадке выполняем комплекс работ,
которые направлены на профилактику травматизма. Площадку ограждают забором
высотой 2м, засыпают углубления и выбоины, устраивают систему отвода
поверхностных вод, подъездных путей и внутриплощадочных дорог и проездов.
Для борьбы с травматизмом на строительной площадке применяют знаки
безопасности. Знаки безопасности по назначению подразделяются: запрещающие,
предупреждающие, предписывающие и указательные.
Для правильной организации движения транспорта на территории строительной
площадки вывешена схема движения и установлены указатели проездов и дорожные
знаки с обозначением допустимой скорости, мест, стоянок, разворотов.
Все дорожные указатели и знаки установлены так, чтобы их было хорошо
видно как в светлое, так и в тёмное время суток.
Временные автодороги размещены так, чтобы был возможен проезд автомобилей
в любое время года и любую погоду. Минимальное расстояние между дорогой и
складом 0,5-1м.
В местах движения рабочих через траншеи и канавы устроены мостики шириной
0,6м с установкой 2-х сторонних перил. В тёмное время суток строительная
площадка освещена, в опасных зонах дополнительно выставлены световые сигналы и
аварийное освещение.
Временные коммуникации водопровода, канализации, теплосети в местах
пересечения с дорогами и проездами заглублены в землю. Временные электросети
устроены на временных опорах, которые обеспечивают безопасный проход людей и
транспорта под ними.
Колодцы, проёмы и траншеи закрыты прочными щитами и ограждениями, в
тёмное время суток ограждения обозначены сигнальными огнями.
Временные склады и сооружения располагаются на расстоянии, обеспечивающем
противопожарную безопасность и беспрепятственный доступ при пожаре. При
хранении легковоспламеняющихся и горючих жидкостей нельзя чтобы предельное
количество вещества было больше 5м3 - легковоспламеняющихся и 25м3 - горючих.
Хранение осуществляется в подземных хранилищах.
4.9
Техника безопасности при кладочно-монтажном процессе
Леса и подмости должны быть прочными и устойчивыми. Стойки трубчатых
лесов устанавливают на дощатые подкладки толщиной 50мм, укладываемые на
спланированную полосу, и крепят к стене крючьями за анкеры. Жесткость и
неизменяемость положения лесов обеспечивают установкой жестких диагональных
связей.
Не допускается кладка наружных стен толщиной до 0,75м в положении стоя на
стене. Не допускается кладка стен зданий последующего этажа без установки
несущих конструкций междуэтажного перекрытия, а также площадок и маршей в
лестничных клетках.
При кладке стен высотой более 7м необходимо применять защитные козырьки
по периметру здания. Первый ряд настила устанавливаем на высоте 7 метров от
земли и предназначен он для предохранения проходящих внизу людей от несчастного
случая. Второй ряд устанавливаем на высоте 6м от первого. Ширина должна быть не
менее 1,5м. Предназначен для защиты жизни самих каменщиков. Второй ряд
козырьков переставляют через каждые 6 метров по ходу производства кладки.
Рабочие, занятые на установке, очистке или снятии защитных козырьков, должны
работать с предохранительными поясами. Ходить по козырькам, использовать их в
качестве подмостей, а также складывать на них материалы не допускается. На
участке (захватке), где ведутся монтажные работы, не допускается выполнение
других работ и нахождение посторонних лиц.
При возведении зданий и сооружений запрещается выполнять работы,
связанные с нахождением людей в одной секции (захватке, участке) на этажах
(ярусах), над которыми производятся перемещение, установка и временное
закрепление элементов сборных конструкций или оборудования.
Способы строповки элементов конструкций и оборудования должны
обеспечивать их подачу к месту установки в положении, близком к проектному.
Расстроповку элементов конструкций и оборудования, установленных в
проектное положение, производят после постоянного или временного надежного их
закрепления. Перемещать установленные элементы конструкций или оборудования
после их расстроповки, за исключением случаев, обоснованных ППР, не
допускается.
Не допускается выполнять монтажные работы на высоте в открытых местах при
скорости ветра 15 м/с и более, при гололедице, грозе или тумане, исключающем
видимость в пределах фронта работ.
Не допускается нахождение людей под монтируемыми элементами конструкций и
оборудования до установки их в проектное положение и закрепления.
При необходимости нахождения работающих под монтируемым оборудованием
(конструкциями), а также на оборудовании (конструкциях) должны осуществляться специальные
мероприятия, обеспечивающие безопасность работающих.
Монтаж конструкций каждого последующего яруса (участка) здания или
сооружения производят только после надежного закрепления всех элементов
предыдущего яруса (участка) согласно проекту. В процессе монтажа конструкций,
зданий или сооружений монтажники должны находиться на ранее установленных и
надежно закрепленных конструкциях или средствах подмащивания.
Средства подмащивания и другие приспособления должны соответствовать
требованиям по [24], [25].
Средства подмащивания должны иметь ровные рабочие настилы с зазором между
досками не более 5 мм, а при расположении настила на высоте 1,3м и более -
ограждения и бортовые элементы. Соединение щитов настилов внахлестку
допускается только при их длине, при этом концы стыкуемых элементов должны быть
расположены на опоре, и перекрывать ее не ниже, чем на 0,2м в каждую сторону.
4.10
Техника безопасности при производстве строительных работ в зимнее время
К зимнему периоду должны быть подготовлены помещения для согревания
рабочих и средства борьбы со снежными заносами и наледями, а также необходимый
фронт работ для рабочих всех квалификаций; мокрых отделочных процессов,
бетонных, каменных и других строительно-монтажных работ.
Не допускается прокладка проводов по земле или слою опилок, после каждого
перемещения электродов следует визуально проверять исправность.
При применении противоморозных химических добавок необходимо избегать
открытого контакта с кладочным раствором, а в случае применения в качестве
добавок хлорида и поташа, соблюдать меры предосторожности, предусмотренные при
работе с химическими кислотными и щелочными веществами.
4.11
Технико-экономические показатели
Затраты труда на строительный процесс Q,чел.дн:
Q =
1521 чел.дн
Продолжительность всего процесса Т, дн:
Т = 61 дн.
Количество рабочих, занятых в процессе R,чел.:
R = 15
чел.
5.
Организационный раздел
.1 Общие
данные
Исходными материалами для составления ППР служат:
ранее утвержденный проект, в том числе ПОС, РД и сметы;
данные о поставке сборных конструкций, деталей, изделий и полуфабрикатов;
данные о поставке технологического, энергетического и другого
оборудования;
данные строительных и монтажных организаций о наличии парка машин и
механизмов, возможности его расширения и использования;
действующие нормативные документы: СНиПы, инструкции и указания по
производству и приемке строительных, специальных и монтажных работ, а так же по
охране труда в строительстве.
ППР состоит из трех основных видов технологических документов: графиков
(календарных планов), СГП и технологических карт.
Объемы работ в ППР определяют по РД, спецификациям и сметам. Расчеты всех
видов ресурсов ведут по производственным нормам.
ППР на подготовительные работы выполняют по тому же списку документов,
что и для основных работ, но в меньшем объеме.
Для объектов, строящихся по типовым размерам, в состав РД входят основные
положения по производству СМР.
При строительстве комплекса зданий разрабатываются сводные поточные
графики на весь объем строительства.
5.1.1
Характеристика условий строительства
Район строительства - г. Вологда
Характер строительства - новое
Существующая застройка - не имеется
Нормативная продолжительность строительства по [26] - 9 месяцев, в том
числе подготовительный период - 1,5 месяца.
Источником покрытия потребности в рабочей силе являются кадровые рабочие
СУ . Обеспечение строительства железобетонными изделиями и конструкциями -
заводом ЖБИ г. Вологда. Кирпич поставляется на стройку из г. Ярославль.
Доставка на объект строительства основных материалов, конструкций и деталей
производится автомобильным транспортом.
5.1.2
Природно-климатические условия строительства
Температура наружного воздуха наиболее холодных суток - 35о С
Температура наружного воздуха наиболее холодной пятидневки - 320С
Продолжительность отопительного периода - 231 суток
Нормативная глубина промерзания грунтов - 1,8 м
5.2
Описание методов выполнения основных СМР с указаниями по технике безопасности
.2.1
Подготовительный и основной периоды строительства
Строительство проектируемого объекта выполняется в два периода:
подготовительный и основной.
В состав подготовительного периода входят работы, связанные с подготовкой
строительной площадки:
освоение строительной площадки - расчистка территории строительства, снос
строений, неиспользуемых в процессе строительства;
создание геодезической разбивочной основы для строительства - закрепление
репера с привязкой к существующим геодезическим сетям, закрепление на
строительной площадке обноски, разбивка основных осей, вынесение красных линий;
монтаж инвентарных зданий и установок, создание общескладского хозяйства;
инженерная подготовка территории строительства - планировка участка,
которая обеспечивает организацию временных стоков поверхностных вод, срезка
растительного грунта со складированием в отведенные места для последующего
использования под озеленение площадки, устройство внутриплощадочных дорог,
прокладка сетей, водоснабжения, энергоснабжения, канализации, теплоснабжения,
телефонной линии;
временная дорога, обеспечивающая подъезд к строительной площадке;
грунтовая уплотненная щебнем, ширина дороги при одностороннем движении
транспорта - 3,5м, а при двух направлениях - 6м;
временное освещение территории строительства производится светильниками
на опорах, прожекторами, установленными на инвентарных мачтах и стреле
монтажного крана. Временное освещение выполняется в соответствии с [27];
У въезда на строительную площадку необходимо установить дорожные знаки
ограничения скорости движения автотранспорта и предупреждения о въезде и входе в
опасную зону. Оградить опасную зону сигнальными ограждениями, вывесить в
соответствующих местах плакаты «Осторожно. Работает кран», «Стой! Проход
запрещен», «Опасно! Возможно падение груза».
Складирование материалов и конструкций выполняют в соответствии с
требованиями технических условий и стандартов на материалы, изделия и
конструкции на выровненных площадках, принимая меры против самопроизвольного
смещения, просадки и раскатывания материалов и конструкций.
Работы по прокладке инженерных коммуникаций выполняются с соблюдением
требований [29], [30], [31]. При ограждении строительной площадки также должны
соблюдаться требования [32], [33], [34].
Основной период строительства делится на две стадии:
нулевой цикл, включающий сооружение подземной части здания, подземных
коммуникаций, то есть работ, производимых ниже относительной отметки ± 0.000;
возведение надземной части здания.
5.2.2
Земляные работы
До начала производства земляных работ в местах расположения действующих
подземных коммуникаций разрабатывают и согласовывают с организациям,
эксплуатирующими эти коммуникации, мероприятия по безопасным условиям труда, а
расположение подземных коммуникаций на местности обозначено соответствующими
знаками или надписями.
Производство земляных работ в зоне действующих подземных коммуникаций
осуществляют под непосредственным руководством прораба или мастера, а в
охранной зоне кабелей, находящихся под напряжением, или действующего
газопровода, обязательно под наблюдением работников электро- или газового
хозяйства.
При обнаружении взрывоопасных материалов земляные работы в этих местах
следует немедленно прекратить до получения разрешения от соответствующих
органов.
Места прохода людей через траншеи должны быть оборудованы переходными
мостиками, которые освещаются в ночное время.
Грунт, который извлекли из котлована или траншеи, размещают на расстоянии
не менее 0,5м от бровки выемки.
Валуны и камни, а также отслоения грунта, обнаруженные на откосах,
удаляют.
Рытье котлованов и траншей с вертикальными стенками без креплений в
нескальных и незамерзших грунтах выше уровня грунтовых вод и при отсутствии
вблизи подземных сооружений допускается на глубину не более 1,50м - в суглинках
и глинах.
Производство работ в котлованах и траншеях с откосами, подвергшимися
увлажнению, начинают только после тщательного осмотра производителем работ
(мастером) состояния грунта откосов и обрушения неустойчивого грунта в местах,
где обнаружены "козырьки" или трещины (отслоения).
Перед допуском рабочих в котлованы или траншеи глубиной более 1,3м проверяют
устойчивость откосов.
Погрузка грунта на автосамосвалы производиться со стороны заднего или
бокового борта.
Односторонняя засыпка пазух у свежевыложенных подпорных стен и
фундаментов допускается после осуществления мероприятий, обеспечивающих устойчивость
конструкции, при принятых условиях, способах и порядке засыпки.
Снятие плодородного слоя и работы по обратной засыпке производятся
бульдозером ДЗ-18 на базе Т100. Отрыв траншей коммуникаций и земляные работы по
отрывке котлована выполняется экскаватором Э0-4321 с емкостью ковша 0,65м3 и
автосамосвалом КамАЗ 5320.
5.2.3
Устройство фундаментов
К производству работ по устройству оснований и фундаментов приступают
только после разбивки котлованов, траншей, земляных сооружений, привязки осей и
высотных отметок на имеющейся геодезической основе и закрепления необходимых
разбивочных знаков.
Монтаж фундаментных блоков предусматривается в такой последовательности:
разметка осей фундаментов, обозначение границ фундаментной ленты,
разбивка углов и мест сопряжений;
установку блоков производить, начиная с установки маячных блоков в углах
здания и на пересечении осей. Маячные блоки устанавливают, совмещая их осевые
риски с рисками разбивочных осей, по двум взаимно перпендикулярным
направлениям. К установке рядовых блоков следует приступать после выверки
положения маячных блоков в плане и по высоте.
Установку блоков стен подвала выполняют с соблюдением перевязки. Рядовые
блоки устанавливают, ориентируя низ по обрезу блоков нижнего ряда, верх — по разбивочной оси. Блоки наружных
стен, устанавливаемые ниже уровня грунта, выравнивают по внутренней стороне
стены, а выше - по наружной. Вертикальные и горизонтальные швы между блоками
должны заполняют раствором и расшивают с двух сторон.
При производстве работ по устройству оснований и фундаментов зданий и
сооружений всех видов следует руководствоваться [3], [32], [33], [35].
Забивка свай выполняется копром на базе экскаватора Э-10011. Сопряжение
сваи с ростверком жесткое.
К массовой забивке свай приступают после забивки свай, которые
подвергаются динамическим испытаниям.
При превышении контрольного отказа у 3-5 свай, погруженных на проектную
глубину, следует остановить забивку свай.
В случае недобивки сваи из-за ее разрушения обеспечивается погружение
сваи - дублера.
В случае недобивки сваи в пределах одного метра, повреждения свай и при
жестком сопряжении с ростверком сваи срубаются под проектную отметку. Должна
применяться механизированная срезка. Допускается ручная срезка отбойным
молотком с обязательным применением инвентарного обжимного хомута с прокладкой
из технической резины.
5.2.4
Монтаж здания
Возведение надземной части здания производится башенным краном КБ-403А
(грузоподъемность Q=8т и длина стрелы Lс = 30м). Для погрузочно-разгрузочных
работ с автотранспорта используется этот же кран. При монтаже надземной части
здания необходимо руководствоваться [3], [32], [33], [34], [36], [37].
Монтаж здания осуществляется методом наращивания. Подъем конструкций
осуществляется на «весу» со сложным перемещением крана. Для монтажа конструкций
здания используем типовую монтажную оснастку, позволяющую осуществлять подъем,
временное крепление и выверку элементов. Сборные перемычки укладываем по ходу
кладки. Разность высот возводимой кладки на смежных участках и при кладке
примыканий наружных и внутренних стен не должна превышать высоты этажа.
Плиты перекрытий монтируем после возведения стен очередного этажа на
выровненное, очищенное от мусора основание с установкой всех анкеров и связей,
предусматриваемых проектом, замоноличивание стыков, устройства монолитных
участков.
5.2.5
Отделочные работы
Отделочные работы делятся на следующие циклы:
штукатурные работы
установка и остекление оконных и дверных блоков
подготовка под окраску и окраска поверхностей
устройство чистых полов
окончательная отделка и окраска поверхностей
Общая готовность здания к началу работ должна соответствовать [26].
Производство штукатурных и облицовочных работ организуется поточно-расчетным
методом, это обеспечивает наиболее полное использование рабочих по их квалификации.
Раствор на отделываемые поверхности наносят механизированным способом.
Нанесение раствора вручную допускается лишь в небольших помещениях и при малом
объеме штукатурных работ. Шпатлевку на поверхности наносят ручным методом.
Водные составы для окраски стен и потолков рекомендуется наносить
механизированным способом. Ручную окраску стен и столярных изделий
рекомендуется производить малярным валиком.
Качество применяемых отделочных материалов (краски, лаки, шпатлевки)
должны удовлетворять требованиям [37].
Средства подмащивания, применяемые при штукатурных или малярных работах в
местах, под которыми ведутся другие работы или есть проход, должны иметь настил
без зазоров.
При производстве штукатурных работ с применением растворонасосных
установок обеспечивают двустороннюю связь оператора с машинистом установки.
Для просушивания помещений строящихся зданий и сооружений при
невозможности использования систем отопления применяют воздухонагреватели
(электрические или работающие на жидком топливе). При их установке выполняют
требования правил пожарной безопасности при производстве строительно-монтажных
работ.
Запрещается обогревать и сушить помещение жаровнями и другими
устройствами, выделяющими в помещение продукты сгорания топлива.
Малярные составы следует готовить сосредоточенно. При их приготовлении на
строительной площадке необходимо использовать для этих целей помещения, которые
оборудованы вентиляцией, не допускающей превышения предельно допустимых
концентраций вредных веществ в воздухе рабочей зоны. Помещения должны быть
обеспечены безвредными моющими средствами и теплой водой.
Эксплуатация мобильных малярных станций для приготовления окрасочных
составов, которые не оборудованы принудительной вентиляцией, не допускается. Не
допускается приготавливать малярные составы, нарушая требования инструкции
завода-изготовителя краски, а также применять растворители, на которые нет
сертификата с указанием характера вредных веществ.
5.2.6
Транспортные работы
Организация - владелец транспортных средств обязана обеспечить их
своевременное техобслуживание и ремонт.
Транспортировка длинномерных, тяжеловесных, крупногабаритных грузов
осуществляется на специализированном транспорте.
Груз должен быть размещен и закреплен в соответствии с техническими
условиями погрузки и крепления.
Подача автомобиля задним ходом в зоне работ производится по команде
работающих.
5.3
Стройгенплан
Строительный генеральный план участка, является важным документом после
ППР, влияет на эффективность организации производства, в нем решаются вопросы
размещения и транспортировки строительных конструкций и материалов, это
отражается на производстве труда и себестоимости работ.
Стройгенплан разработан на основании генплана объекта, согласно техники
безопасности в строительстве.
При проектировании стройгенплана предусмотрено:
ограждение стройплощадки;
наличие временных дорог;
размещение складских площадок в зоне действия крана;
размещение двух пожарных гидрантов на расстоянии < 150м друг от друга,
не далее 2м от дороги с твердым покрытием.
Проектом предусмотрены бытовые временные помещения, которые обеспечивают
рабочих водоснабжением, канализацией, отоплением.
Электроснабжение осуществляется за счет трансформаторной подстанции,
установленной на объекте.
5.4 Расчет
численности персонала строительства
В персонал строительства входят:
рабочие основного и не основного производств;
ИТР (инженерно технические работники);
МОП (младший обслуживающий персонал);
практиканты и ученики.
Численность рабочих не основного производства принимается в размере 20%
от численности рабочих основного производства.
Численность ИТР принимается в размере 6-8%, МОП - 4%, учеников и
практикантов - 5% от численности рабочих основного и не основного производства.
Расчетная численность персонала строительства определяется по формуле:
N = 1,06× (Nосн + Nн.о.+
Nитр + Nмоп + Nуч.),
чел., (5.1)
где 1,06 - коэффициент, учитывающий отпуска и невыходы рабочих по болезни
Nосн. −
численность рабочих основного производства, чел
Nн.о −
численность рабочих неосновного производства, чел
Nитр −
численность инженерно-технических работников, чел
Nмоп.−
численность младшего обслуживающего персонала, чел
Nуч. −
численность учеников, чел.
Nосн.
=30 чел.
Nн.о
=30×0,2=6чел.− численность рабочих
неосновного производства
Nитр=(30+6)×6%=3чел.−численностьинженерно-технических
работников
Nмоп.=(30+6)×4% = 2 чел. − численность
младшего обслуживающего персонала
Nуч. =
(30 + 6) × 5% =2 чел. − численность учеников
N=1,06 × (30 + 6 +3 +2+ 2) = 46 чел.
.5 Расчет
потребности во временных зданиях и сооружениях
Таблица 5.1 - Расчет временных зданий и сооружений
|
Наименование зданий и сооружений
|
Расчетная численность персонала
|
Норма на одного чел-ка
|
Требуется
|
Принято
|
|
Всего
|
% однов польз-ся
|
Ед. изм.
|
Кол-во
|
Ед изм.
|
Кол-во
|
Марка
|
Кол-во
|
|
1
|
2
|
3
|
4
|
5
|
6
|
7
|
8
|
9
|
|
Проходная
|
-
|
-
|
м2
|
7
|
м2
|
7
|
Вагончик 3х3
|
1
|
|
Контора прораба
|
3
|
100
|
м2
|
3
|
м2
|
9
|
Вагончик 3х3
|
1
|
|
Медицинское помещение
|
-
|
-
|
м2
|
12
|
м2
|
12
|
Вагончик 3х6
|
1
|
|
Помещение для приема пищи
|
46
|
30
|
м2
|
1
|
м2
|
14
|
Вагончик 3х6
|
1
|
|
Помещение для обогрева рабочих
|
46
|
100
|
м2
|
0,1
|
м2
|
4,6
|
Вагончик 3х6
|
1
|
|
Кладовая
|
-
|
-
|
м2
|
15
|
м2
|
15
|
Вагончик 3х6
|
1
|
|
Помещ-е для сушки и обеспыливания одежды
|
46
|
50
|
м2
|
0,2
|
м2
|
4,6
|
Вагончик 3х3
|
1
|
|
Гардеробные с умывальными
|
46
|
70
|
м2
|
0,5
|
м2
|
16,1
|
Вагончик 3х6
|
1
|
|
Душевые
|
46
|
30
|
1 рожок 1 рожок
|
8 чел 4 м2
|
1 рожок м2
|
2 8
|
Контейнерная «Днепр» 3х3
|
1
|
|
Туалет
|
46
|
100
|
1 очко 1 очко
|
20чел 2 м2
|
1очко м2
|
3 6
|
Вагончик3х3
|
1
|
Примечание:
мед. помещение должно иметь отдельный вход.
5.6 Расчет
потребности в коммунальном обеспечении
.6.1
Расчет потребности в электроэнергии
Электроэнергия при строительстве расходуется:
на питание силовых потребителей;
технологические нужды;
внутреннее освещение зданий и сооружений;
наружное освещение строительной площадки, дорог и т.д.
Таблица 6.2 Расчет потребности в электроэнергии
|
Силовые потребители: кран КБ-308ВП Технологические
потребители: вибратор глубинный И-18 сварочный аппарат ТД-300
электрокраскопульт СО-61 растворонасос СО-496 виброрейка СО-47 полотерная
машина СО-37 Наружное освещение: прожектор ПКН-1000 с лампой ПЖ-53 Внутреннее
освещение: - помещения временные
|
75 0,8 20 0,27 4,0 0,6 1,1 4 20,9
|
Требуемая мощность трансформатора для строительной площадки определяется:
,кВт,
(5.2)
где 1,1
- коэффициент, учитывающий потери в сети;
к1,
к2, к3, к4 - коэффициенты спроса, учитывающие несовпадение нагрузок;
- сумма
мощностей силовых потребителей, кВт
- сумма
мощностей аппаратов, участвующих в технологических процессах, кВт
- сумма
мощностей приборов внутреннего и наружного освещения, кВт
-
коэффициенты мощностей, зависящие от загрузки потребителей.
к1
= 0,3 - 0,8 ; к2 = 0,7; к3 = 0,8; к4 = 1.
Определяем
требуемую мощность:
= 95,26
кВт
Принимаем
одну передвижную комплексную трансформаторную подстанцию закрытой конструкции:
СКТП-100-6/10/0,4
Р=100кВт 3,05x1,55м
Сечение
проводов во временной электросети:
;мм2 ,
(5.3)
где
Руч - сумма мощностей потребителей на рассмотренном участке сети, кВт;- длина
участка, м;- удельная проводимость материала провода:
медь
- 57, алюминий - 34,5, сталь - 20;- номинальное напряжение : для силовых -
380В, освещение -220В;
= 2,05
мм2
принимаем
диам.6 мм2
= 0,87
мм2
принимаем
диам.6 мм2
5.6.2
Расчет потребности в тепле
Тепло на строительной площадке используется на отопление зданий или
технические нужды.
Общая потребность тепла для строительных нужд:
,кДж/час,
(5.4)
где
Q1 - расход тепла на отопление здания
Q2 - расход
тепла на технологические нужды
к1
- коэффициент учитывающий потери в сети, к1 = 1,15;
к2
- коэффициент на неучтенные расходы тепла, к2 = 1,2.
Q1 = a × q × V× (tв - tн), кДж/час, (5.5)
где
а - коэффициент, зависящий от расчетной температуры наружного воздуха
tн ³ - 10 0С Þ а = 1,2;
tн ³ - 20 0С Þ а = 1,1;
tн ³ - 30 0С Þ а = 1.
q = 1,8-1,1 -
удельная тепловая характеристика здания
V - объем здания
по наружному обмеру, м3
tв и tн
-расчетная температура внутри помещения и наружного воздуха
Q2 = 0 - зависит
от времени, вида и объема работ.
Q1 = 1 × 1,6 × 17377,5 × (21 - (-
32) = 1473612 кДж/час
Qобщ = (1473612
+ 0) ×
1,15 × 1,2 = 2033584,56 кДж/час
5.6.3
Расчет потребности в воде
Вода на строительной площадке используется на хоз. бытовые и
производственные нужды и пожаротушения.
Р
= Рпож + 0,5 ×
(Рб + Рпр);
, (5.6)
где
Рпож = 10 л/с − расход воды на пожаротушение;
Рб
= Рб' + Рб'' − расход воды на бытовые нужды.
;
− расход воды на принятие душа, (5.7)
где
N - расчетная численность персонала;
а
- норма водопотребления на 1 человека пользующегося душем: при отсутствии
канализации 30 литров, а при ее наличии-80 литров;
к1
= 0,3
0,4 - коэффициент, учитывающий количество моющихся;
t = 0,75 ч -
время работы душевой установки в часах.
= 0,15
Расход
воды на умывание, принятия пищи и др. нужды
;
(5.8)
где
b - норма водопотребления на 1 чел. в смену, при
отсутствии канализации − 15 литров;
к2
= 1,2
1,3 - коэффициент неравномерности потребления воды;
n = 8,2 ч -
продолжительность смены.
= 0,03
Рб
= 0,15 + 0,03 = 0,18
Расход
воды на производственные нужды:
;
, (5.9)
где
- 1,2 - коэффициент на неучтенные потребности;
к3
= 1,3
1,5 - коэффициент неравномерности водопотребления;
Σq = 150×4,2
= 630 л - суммарный расход воды в смену.
= 0,036
Р
= 10 + 0,5 ×
(0,18 + 0,036) = 2,268
Диаметр
трубопровода временного водопровода:
, мм,
(5.10)
где v = 2 м/с − скорость воды во
временном водопроводе.
=
38,01мм
Принимаем диаметр трубопровода Æ100 мм для подачи воды на площадку.
5.6.4
Расчет потребности в сжатом воздухе
Требуемая мощность компрессорной установки:
Q = 1,3 × Sq
× к, м3/мин,
(5.11)
где Sq - суммарный расход воздуха
приборами;
,3 - коэффициент учитывающий потери в сети;
к - коэффициент одновременно работающих аппаратов
при 1 аппарате к = 1
- 3 к = 0,9
- 6 к = 0,8
Q =
1,3 × 3,4× 0,9 = 3,98 м3/мин
Принимаем компрессоры ПКС-3М - 4 шт.
Определяем
Ø
подводящих шлангов: 
= 5,0 см
5.6.5
Расчет потребности в кислороде
Потребность в кислороде определяется по отраслевым нормам на 1 млн. руб.
строительно-монтажных работ (в ценах 1984г.)
По объектам жилищно-коммунального и культурно-бытового строительства -
4400
Кислород на стройку доставляется в стальных баллонах синего цвета (40л),
вмещающих 6 м3 кислорода. Требуется 730 стальных баллонов.
5.7 Расчет
потребности в транспортных средствах
Требуемое количество машиносмен работы транспортного средства для
доставки однородного груза определяется:
, маш-см, (5.12)
где Q - количество перевозимого однородного вида груза, т;
Рсм = nр×q×кгр − сменная
производительность транспортной единицы, т/см;р - количество рейсов в смену;-
паспортная грузоподъемность машины, т;
кгр - коэффициент использования грузоподъемности машины в зависимости от
вида груза, в данном случае равен 1.
, (5.13)
где Т - продолжительность смены, час;пр - продолжительность
погрузочно-разгрузочных операций, час;
L - расстояние
перевозки, км - средняя скорость движения транспорта, км/ч.
Рсм = nр×q×кгр = 5 × 10 × 1 = 50 т/см
Для перевозки кирпича принимаем машину КамАЗ-5511 с грузоподъемностью q =
10 т. Для возведения данного здания требуется 1565772 шт. кирпича. Принимаем
массу 1 кирпича = 3,5 кг.= 1565772 × 3,5/1000 = 5480,202 т.
Перевозка
плит перекрытия:
Принимаем
2 машины КамАЗ-5511.
5.9 Расчет
площадей складирования материалов
Требуется площадь склада для хранения однородного груза:
,м2
(5.14)
, (5.15)
где
Р - запас материалов в натуральных единицах :
Q - количество
однородных материалов для объекта (в натуральных единицах)
T -
продолжительность выполнения работ с использованием данного материала, дн.
n - норма запаса
материалов, дн.
При
автомобильных перевозках n = 2 - 5 дн.
к
- коэффициент неравномерности снабжения, к = 1,2;
r - норма
хранения материала на 1 м2 площади;
кп
- коэффициент учитывающий проходы на складах:
закрытые
- кп = 0,5 - 0,7
открытые
- кп = 0,4 - 0,5;
Складские
помещения:
)
кирпич:
P=(96923/110)*3*1,2=3172
шт;
S=3172/750*0,5=
8,5 м2 в 2 яруса
)
пиломатериалы
P=(52,78/24,5)*3*1,2=7,8
м3;
S=7,8/1,8*0,5=
8,7 м2 в 2 яруса.
6.
Безопасность жизнедеятельности
.1 Анализ
опасных и вредных производственных факторов при организации кровельных работ на
объекте
При выполнении кровельных работ по устройству мягкой кровли из рулонных
материалов и металлической или асбестоцементной кровли предусматриваем
мероприятия по предупреждению воздействия на работников следующих опасных и
вредных производственных факторов, связанных с характером работы:
расположение рабочего места на высоте;
расположение рабочего места вблизи перепада по высоте 1,3 м и более;
повышенная или пониженная температура поверхностей оборудования,
материалов и воздуха рабочей зоны;
пожаро- и взрывоопасность применяемых рулонных и мастичных материалов,
разбавителей, растворителей;
острые кромки, заусенцы и шероховатость на поверхностях материалов;
повышенное напряжение в электрической цепи, замыкание которой может
пройти через тело человека.
При наличии опасных и вредных производственных факторов безопасность
кровельных работ обеспечивается на основе выполнения содержащихся в
организационно-технологической документации (ПОС, ППР и др.) следующих решений
по охране труда:
организация рабочих мест на высоте, пути прохода работников на рабочие
места, особые меры безопасности при работе на крыше с уклоном;
меры безопасности при приготовлении и транспортировании горячих мастик и
материалов;
методы и средства для подъема на кровлю материалов и инструмента, порядок
их складирования, последовательность выполнения работ.
Производство кровельных работ газопламенным способом осуществляется по
наряду-допуску, предусматривающему меры безопасности.
При применении в конструкции крыш горючих и трудногорючих утеплителей
наклейка битумных рулонных материалов газопламенным способом разрешается только
по устроенной на них цементно-песчаной или асфальтовой стяжке.
6.2 Меры
по обеспечению безопасных и здоровых условий труда при организации кровельных
работ
В целях предотвращения несчастных случаев при выполнении кровельных работ
строго соблюдаем правила техники безопасности. Каждый вновь поступивший рабочий
может быть допущен к работе только, когда пройден инструктаж по технике
безопасности на кровельных работах. Соблюдение правил техники безопасности
обязательно как при работе в заготовительной кровельной мастерской, так и при
работе на крыше.
К работе по ремонту и устройству кровель допускаются только лица старше 18
лет. Кровельщик обязательно должен иметь обувь на нескользкой подошве и
предохранительный пояс.
Допуск работников к выполнению кровельных работ производиться после
проверки ответственным производителем работ (мастером, прорабом) исправности и
надежности несущих конструкций крыши и ограждений.
Кровельщиков обеспечивают специальной одеждой и средствами индивидуальной
защиты.
Одежда (куртка, брюки, комбинезон) должна быть свободной и в то же время
плотно облегать тело. Брюки надевают поверх сапог, которые должны быть
нескользкими, даже в мокрую погоду. Руки защищают рукавицами или резиновыми
перчатками (при выполнении рулонных кровель).
Кровельщика снабжают также предохранительным поясом и капроновой веревкой
диаметром 10 мм и длиной 10м. Пояс должен быть испытан в течение 5 мин
подвешиванием груза массой 300кг. Его надевают поверх курток. Веревку
привязывают к надежным элементам крыши.
До начала работ по устройству и ремонту кровли устанавливаем границы
опасной зоны у здания. Ограждаем зону, куда могут случайно упасть материалы с
кровли, инструменты, тара или стекать мастика. В любом случае она не должна
быть меньше 2м, считая от выноса карниза. Заранее проверяем исправность стропил
и обрешетки на скатных кровлях, надежность сборной конструкции плоских кровель.
В случаях, когда кровлю покрывают асбестоцементными листами, для хождения
по крыше прокладываем мостики шириной не менее 30см. Ходить по незакрытым
кровлям нельзя.
Для складирования плоских асбестоцементных плит применяем рамки, а для
волнистых асбестоцементных листов - возки. По окончании работ по ремонту и
устройству кровли все остатки материалов, приспособления и инструменты убираем
с крыши или надежно закрепляем. Запрещено сбрасывать их с крыши.
Наиболее опасными работами считаются устройство карнизных спусков,
желобов, покрытие парапетов, подоконников, поясков, сандриков. Эти кровельные
работы нужно вести с наружных лесов, подмостей, выпускных лесов или люлек.
Водосточные трубы и воронки подвешивают из люлек, имеющих, кроме места
для работающего, место для временного складирования необходимых изделий, или,
за их неимением, с подмостей. Каждую люльку нужно до начала работ испытать на
двойную нагрузку, а также пробным подъемом и опусканием в течение 10 мин с
нагрузкой, превышающей полную расчетную рабочую нагрузку на 10%. При подвеске
люльки канаты должны быть пропущены через блоки, укрепленные на металлических
консолях. Деревянные консоли применять не разрешается.
Места производства кровельных работ, выполняемых газопламенным способом,
должны быть обеспечены не менее чем двумя эвакуационными выходами (лестницами),
а также первичными средствами пожаротушения в соответствии с ППБ.
Подниматься на кровлю и спускаться с нее следует только по лестничным
маршам и оборудованными для подъема на крышу лестницами. Использовать в этих
целях пожарные лестницы запрещается.
При выполнении кровельных работ на крыше с уклоном более 20° работники
должны применять предохранительные пояса, места закрепления которых указаны
ответственным производителем работ.
Для прохода работников, выполняющих работы на крыше с уклоном более 20°,
а также на крыше с покрытием, не рассчитанным на нагрузку от собственного веса
работников, устраивают трапы шириной не менее 0,3м с поперечными планками для
упора ног. Трапы на время работы должны быть закреплены.