Жилой дом по ул. Ярославской в г. Вологда
СОДЕРЖАНИЕ
ВВЕДЕНИЕ
. АРХИТЕКТУРНО-СТРОИТЕЛЬНЫЙ РАЗДЕЛ
1.1 Обоснование принятого
архитектурно-планировочного решения
.2 Конструктивная схема здания
.2.1 Наружные стены
.2.2 Внутренние стены
.2.3 Перекрытия
.2.4 Фундаменты
.2.5 Кровля
.2.6 Перегородки
.3 Внутренняя отделка здания
.4 Внешняя отделка здания
.5 Генеральный план участка
. РАСЧЕТНО-КОНСТРУКТИВНЫЙ РАЗДЕЛ
.1. Расчет ленточного фундамента
.1.1 Сбор нагрузки на фундамент
.1.2 Сбор нагрузок по сечениям
.2 Расчет свайного фундамента
.2.1 Определение несущей способности
сваи
.2.2 Расчет ростверка
.4 Теплотехнический расчет наружной
стены
. ТЕХНОЛОГИЧЕСКИЙ РАЗДЕЛ
.1 Область применения
.2 Технология и организация
выполнения работ
.2.1 Каменные работы
3.2.2 Монтажные работы
.3 Подбор монтажного крана
.3.1 Требуемая высота подъема крана
.3.2 Требуемый вылет стрелы
.3.3 Требуемая грузоподъемность
.4 Требования к качеству и приемке
работ
.4.1 Требования к качеству каменных
работ
.4.2 Требования к качеству монтажных
работ
.4.3 Требования к качеству теплоизоляционных
работ
.5 Техника безопасности
.5.1 Каменные работы
.5.2 Монтажные работы
.6 Потребность в ресурсах
3.7 График производства работ
.8 Калькуляция трудовых затрат
3.9 Технико-экономические показатели
. ОРГАНИЗАЦИОННЫЙ РАЗДЕЛ
4.1. Общие данные и описание методов выполнения
основных СМР с указаниями по технике безопасности
4.1.1 Исходные данные
.1.2 Характеристика условий
строительства
.1.3 Подготовительный период
.1.4 Основной период строительства
.2 Стройгенплан
.3 Расчет потребности во временных зданиях
и сооружениях
.4 Расчет потребности в коммунальном
обеспечении
.4.1 Расчет потребности в
электроэнергии
.4.2 Расчет потребности в тепле
.4.3 Расчет потребности в сжатом
воздухе
.4.4 Расчет потребности в воде
.4.5 Расчет потребности в
транспортных средствах
.5 Расчет площадей складирования
материала
.6 Технико-экономические показатели
. БЕЗОПАСНОСТЬ ЖИЗНЕДЕЯТЕЛЬНОСТИ
.1 Охрана труда при проведении
высотных работ
5.1.1 Обязанности работника, допущенного к работе на
высоте
5.1.2 Вредные производственные
факторы при работе на высоте
5.2 Требования охраны труда перед
началом работы
.3 Основные общие требования,
предъявляемыЕ к организации рабочего места
.4 Требования охраны труда во время
работы
5.5 Требования охраны труда в
аварийных ситуациях
.6 Требования охраны труда по
окончании работы
.7 Документы, необходимые для
подготовки и проведения высотных работ
.8 Применение технологической КАрты
высотных работ
6. ЭКОЛОГИЧЕСКИЙ РАЗДЕЛ
.1 Организация вывоза твердых
бытовых отходов
.2 Расчет количества мусороконтейнеров
бытовых отходов
.3 Меры по предотвращению
загрязнения грунтовых вод
.3.1 Требования к санитарной охране
подземных вод
.3.2 Требования к качеству подземных
вод
.3.3 Требования к организации
контроля за охраной подземных вод
ЗАКЛЮЧЕНИЕ
СПИСОК ИСПОЛЬЗОВАННЫХ ИСТОЧНИКОВ
ПРИЛОЖЕНИЕ 1
ВВЕДЕНИЕ
Целью дипломного проектирования является разработка проекта 9-ти этажного
жилого дома планировочные решения которого соответствуют социальным нормам
жилья.
В настоящее время жилищная проблема является наиболее острой на
территории всей России, поэтому она включена в Федеральную программу. Решением
данной проблемы является строительство многоэтажных жилых зданий. Таким
образом, создание наряду с другими массовыми типами гражданских зданий
рациональных типов жилых зданий, полностью отвечающих всему комплексу
современных требований - важная задача современного строительства. Успешное
решение этой задачи возможно только на основе глубокого и всестороннего
изучения богатого отечественного и зарубежного опыта проектирования,
строительства и эксплуатации жилых зданий, на основе широкого развития
научно-исследовательских и экспериментально-проектных работ. В области
проектирования и строительства жилых зданий в России и за рубежом ведутся
значительные научные исследования, охватывающие разные стороны этой проблемы.
Жилой дом запроектирован с цокольным этажом, также в здании теплый
чердак. Продольными несущими стенами из силикатного кирпича и полным инженерным
обеспечением. Здание относится к Ι группе капитальности с минимальным
сроком эксплуатации 150 лет.
Участок для проектирования и строительства расположен в по улице Южной в
г. Вологда. Рельеф спокойный. Город расположен во ΙV
снеговом районе с
расчетной снеговой нагрузкой 2,4 кПа и в Ι ветровом районе с нормативным значением
ветрового давления w0 0,23кПа. Участок для строительства проектируемого жилого
дома в настоящее время свободен от застройки. Здание расположено во дворовой
части квартала, что создает все условия для спокойного проживания людей.
Квартиры имеют удобную планировку, просторные коридоры и кухни. В здании
имеются одно и двухкомнатные квартиры, предназначенные для проживания семей из
двух-четырех человек. Жилой дом прекрасно вписывается во внешний архитектурный
облик города. В проектировании и строительстве здания были учтены нормативные
документы, существующие типовые решения. Здание состоит из материалов и
конструкций не дорогих и не являющихся дефицитными, поэтому стоимость проекта
оптимальна. В проекте нет решений представляющих сложность изготовления и монтажа,
которые вели бы к удорожанию проекта в целом.
Строительство данного объекта позволит улучшить условия проживания 100
семьям.
1.
АРХИТЕКТУРНО-СТРОИТЕЛЬНЫЙ РАЗДЕЛ
1.1 Обоснование принятого объемно-планировочного
решения здания
Проектируемый объект является отдельностоящим жилым домом, состоящим из
двух секций. Первая секция имеет прямоугольную форму в плане с габаритными
размерами по осям 20,02м х 24,41м, вторая - 20,02м х 24,41м. Здание
девятиэтажное с техэтажом и подвалом.
На первом этаже имеются две входные группы. На каждом этаже коридорная
система расположения квартир, всего квартир 10, что создает благоприятные
условия для удовлетворения санитарных требований и комфортного проживания.
Однокомнатных квартир - 2, двухкомнатных - 4, трехкомнатных - 4. Зона
наибольшей дневной активности - общая комната, кухня, прихожая. Планировка
квартир удобная, комфортабенльная, все помещения удобно связаны между собой.
Квартиры расположены на всю ширину корпуса, с окнами в двух противостоящих
наружных стенах, что обеспечивает возможность сквозного проветривания.
Таблица 1.1- Показатели объемно-планировочного решения
|
Показатели
|
Ед.измерения
|
Значения
|
|
1
|
2
|
3
|
|
Общая площадь помещений
|
м2
|
5077,52
|
|
Площадь застройки
|
м2
|
831,85
|
|
Строительный объем
|
м3
|
23912,40
|
|
Высота этажа
|
м
|
3,0
|
|
Размеры в плане
|
м
|
21,14х49,94
|
Степень огнестойкости здания -II;
Класс ответственности здания согласно ГОСТ 27751-88- нормальный;
Класс здания по функциональной пожарной опасности Ф1.3.
1.2 Конструктивная схема здания
Конструктивная схема здания с продольными и поперечными несущими стенами.
Пространственная жесткость здания обеспечивается соответствующим расположением
наружных и внутренних стен. Роль горизонтальной диафрагмы жесткости выполняет
перекрытие, связь которого со стенами обеспечивается за счет анкеровки
перекрытий со стенами.
Наружные стены толщиной 680 мм.
Внутренние 380 мм. В наружных и внутренних стенах предусмотрены проемы
под окна и двери, которые перекрываются железобетонными перемычками.
1.2.1 Наружные стены
Наружные стены толщиной 680 мм из камня керамического
рядового КМ-р 250х120х140/2.1НФ/150/1.0/50/ГОСТ530-2012 с показателем
теплопроводности λ=0.20 Вт/(м°С).
Внутренняя и наружная части двухслойной конструкции кирпичной стены
связываются между собой специальными закладными деталями - связями из арматуры
из стеклопластика. Шаг анкеров 0,5м по высоте и 0,5м по ширине стены. Связи
устривают в процессе кладки в наружную и внутреннюю часть стены на 6-8 см
1.2.2 Внутренние стены
Внутренние стены толщиной 380 мм из силикатного рядового утолщенного
кирпича СУР-150/15 ГОСТ 379-150/15 ГОСТ 379-95, ТУ 5741-001-04722888-98.
Марка раствора принята 100 для 1-7 этажа, 75 для 8-9 этажей, 50 для
чердака. Кладка стен с вентиляционными канналами выполнена со сплошным
заполнением швов раствором и швабровкой внутренней поверхности каналов.
Перегородки технических помещений техподполья выполнить из кирпича
керамического рядового КР-р-по 250х120х88/1.4НФ/75/1,2/25/ГОСТ 530-2012.
Перегородки тамбуров на входах в подъезд - из кирпича силикатного рядового
СУР 100/15, ГОСТ 379-95.
Межкомнатные и межквартирные перегородки выполнять из пазогребневых
гипсовых блоков толщиной 80мм. В ванных комнатах и санузлах применять
влагостойкие гипсовые блоки.
Межквартирные перегородки - двойные общей толщиной 210мм с воздушным
зазором 50мм, заполненным звукоизоляцией "Аcoustic Slab".
Монтаж перегородок вести согласно серии "Комплектные системы
КНАУФ", шифр М8.10/2007.
1.2.3 Перекрытия
Перекрытия выполнены из ж/б многопустотных плит. Они выполняют несущие и
ограждающие функции. Кроме того придают сооружению пространственную жесткость,
воспринимая все приходящиеся на них нагрузки, а также обеспечивают тепло - и
звукоизляцию помещений. Все плиты имеют анкерные стальные связи между собой и с
несущими стенами, для создания единого жесткого диска перекрытия. В продольных
боковых гранях плит предусматривается устройство круглых углублений, которые
после замоноличивания стыка между плитами перекрытий образуют шпоночный шов,
гарантирующий совместную работу на сдвиг в вертикальном и горизонтальном
направлениях.
Панели перекрытий укладываются на стены по выровненному слою цементного
раствора М-100 с тщательной заделкой швов между ними.
В данном проекте приняты плиты железобетонные многопустотные плиты
перекрытия по серии 1.141-1в.64, в.60 высотой 220мм.
1.2.4
Фундаменты
В дипломном проекте рассчитывается два типа фундаментов свайный и
ленточный с эстетико-экономическим обоснованием.
В результате применяем ленточный фундамент из сборных железобетонных
фундаментных подушек по ГОСТ 13580-85 и сборных бетонных блоков по ГОСТ
13579-78*.
Фундаменты укладывают на грунт с ненарушенной структурой по уплотненной
подготовке из крупнозернистого песка толщиной 200 мм. Укладка фундаментных плит
на промороженное основание запрещается. Кладка фундаментных блоков выполнена на
цементном растворе марки М 75. Монолитные участки между фундаментными плитами
выполненв железобетонными из бетона классом В 12,5. Монолитные участки в
стеновых блоках, соприкасающиеся с грунтом выполнены из бетона класса В 7,5. В
качестве вертикальной гидроизоляции принята обмазочная битумная мастика,
обмазка за 2 раза.
Монолитные участки в блоках, не соприкающиеся с грунтом выполнены кладкой
з кирпича.
Кладку стен из бетонных блоков выполнять с обязательной перевязкой швов
на цементном растворе М 100 не менее 200 мм. Толщина горизонтальных и
вертикальных швов должна быть не более 20 мм.
Над сантехническими отверстиями и проемами шириной до 600 мм уложена
арматура класса А-I 4∅8мм.
Горизонтальная гидроизоляция выполнена на отметках -400, -2.850мм из двух
слоев гидроизола на битумной мастике по выровненной поверхности по всему
периметру наружных и внутренних стен. В углах здания и в местах примыкания
поперечных стен уложены арматурные сетки.
Для отвода поверхностных вод по всему периметру здания выполнена
асфальтовая отмостка толщиной 30 мм и шириной 1 м по гравийно-песчаной смеси
толщиной 150 мм.
До начала производства работ по устройству фундаментов должны быть
вынесены все коммуникации, попадающие под здание.
Подсыпку под полы подвала, засыпку пазух, подсыпку под крыльца выполнять
песчано-гравийной смесью или песком средней крупности.
Выбор и расчет фундаментов произведен с учетом нагрузок от кровли,
перекрытий, наружных и внутренних стен.
1.2.5 Кровля
Проектом предусмотрена плоская утепленная кровля с организованным
внутренним водостоком. Основанием под кровлю служат сборные железобетонные
плиты. Для защиты теплоизоляционного слоя от увлажнения проникающей из
помещения влагой, проектом предусмотрено выполнение пароизоляционного слоя - 1
слой рубероида РКП-350 (ГОСТ 10923-93) на горячей битумной мастике.
Водоизоляционный слой ковер состоит из двух слоев техноэласта марки ТКП, ХПП по
ТУ 5774-002-13157915-98.
У мест примыканий кровель к стенам, шахтам и другим конструктивным элементам
основанием под водоизоляционный ковер должны служить ровные вертикальные
поверхности конструкций и переходные наклонные бортики (под углом 45) высотой
не менее 100 мм из теплоизоляционных материалов, применяемых в качестве
основания под кровлю, либо из легкого бетона марки 50, цементно-песчаного
раствора, песчаного асфальтобетона. Стены из кирпича и блоков в этих местах
выравнивают цементно-песчаным раствором марки 50.
1.2.6 Перегородки
Перегородки толщиной 80 мм выполняются из пазогребневых гипсовых блоков,
в ванных комнатах и санузлах применяются влагостойкие гипсовые блоки.
1.3 Внутренняя отделка здания
Отделочные работы внутри помещений выполняются в соответствии с
действующими нормами.
Стены жилых помещений оклеиваются обоями; в санузлах предусмотрена
облицовка стен керамической плиткой на всю высоту этажа, на полах устраивается
герметичное покрытие из керамической плитки; потолки помещений покрываются
клеевой побелкой. Стены кухонь окрашиваются масляной краской на высоту 1800 мм,
над мойкой и на всю длину кухонного оборудования делается фартук из
керамической плитки высотой 600 мм.
К внутренней отделке приступают после окончания общестроительных работ
(устройства кровли, перекрытий, перегородок, заполнения оконных и дверных
проемов) и прокладки инженерных сетей(трубы отопления, водопровода и
канализации). В первую очередь выполняют штукатурные работы, затем осуществляют
монтаж и проверку приборов сантехнического оборудования, красят полы, красят и
оклеивают потолки, стены, красят столярные изделия.
Окраску стен, потолков и столярных изделий выполняют по сухим и
подготовленным поверхностям. В подготовку входят: очистка основания
окрашиваемых поверхностей от пыли и грязи, заделка трещин и неровностей,
шпаклевка, шлифовка и грунтовка.
Оклейка обоями начинается после подготовки поверхности. Бумажные обои
предварительно с тыльной стороны намазывают клеем с помощью валика и
выдерживают 7-10 мин. И подают для наклеивания. Работы начинаются от угла
комнаты и идут далее от окна к двери. Наклеивают обои внахлестку в сторону к
свету, доводя их до плинтуса. Полотнища разглаживают, при наклеивании, от
середины к краям для лучшего сцепления с основанием и предотвращения появления
морщин и неровностей.
Облицовка поверхности плитками происходит при помощи цементно-песчаных
растворов. Работы ведутся снизу вверх. Поверхности стен облицовывается в
следующей последовательности: натягивают шнур-причалку, устанавливают угловые и
промежуточные маячные плитки, а затем рядовые. При этом тыльную поверхность
плитки и стену увлажняют. Затем на плитку накладывают раствор и , поворачивая
ее, прижимают к стене, пристукивая ручкой кельмы. Лишний раствор снимают. Швы
окончательно разделывают отдельными участками.
Отделка полов на 1-м этаже фиброармированная полусухая цементно - печаная
стяжка толщ.50мм с армированием стальной сеткой 100x100x3мм , пароизоляция
(полиэтиленовая пленка ГОСТ 10354-82) - 0.16мм , утеплитель Пеноплекс 80 мм,
гидроизоляция Бикрост 2 слоя с прокл. швов и с нахлестом на стены 5мм. На
типовых этажах стяжка из цементно-песчаного раствора М 100 толщ. 65мм со
звукоизоляцией «Пенолон» марки ППЭ-Р-3006. Полы с/узлов и ванных комнат из
простой цементно-песчаной стяжки толщиной 30мм. Полы в местах общего
пользования - керамическая плитка. Над помещениями электрощитовых в конструкции
пола вышележащего этажа предусмотрено устройство гидроизоляции из двух слоев
гидроизола на битумной мастике.
1.4 Внешняя отделка здания
Здание кирпичное. В оформлении фасадов используется сочетание двух
цветов: белого и мокко . Применены по фасадам горизонтальные и вертикальные
кирпичные членения, цветом выделены декоративные арочные элементы, фронтоны..
Цоколь жилой части здания обработан декоративной штукатуркой с
последующей окраской фасадными красителями для каменных поверхностей ''Finncolor''-
Mineral gamma.
Двери наружные - входные в подъезд металлических, внутренние в квартирах
- деревянные филенчатые, противопожарные в подвале - сертифицированные.
1.5 Генеральный план
Генеральный план жилого дома решен с учетом существующей застройки, а
также обеспечения санитарных и противопожарных требований, рационального
использования площадки строительства, организации движения транспорта.
Генеральным планом предусмотрено четкое зонирование участка с выделением
следующих зон: детские игровые, отдыха взрослого населения, спортивная
площадка, площадка для хозяйственно-бытовых нужд.
Ориентация главного фасада здания жилого дома обеспечивает оптимальную
инсоляцию квартир.
Благоустройство территории разработано по нормам [22]. На основании
документа запроектировано следующее:
- сквозные автодорожные проезды с асфальтовым покрытием и бордюрным
камнем, радиусы скруглений в местах взаимного пересечения и примыкания
составляют 6 и 8 метров;
пешеходные проходы и дорожки разработаны приподнятыми на 15 см выше
уровня проездов, ширина дорожек составляет 1.8 метра, радиусы скруглений 6
метров, покрытие выполняется из асфальтобетона с бордюрным камнем;
-
зеленые насаждения занимают площадь 877,7 м
и
представлены следующими породами: ель обыкновенная, клен остролистый, газон
обычный, спирея Дугласа, снежноягодник белый.
Комплекс работ по благоустройству предусматривает устройство
асфальтобетонных проездов, площадок, стоянок для легковых автомобилей,
тротуаров, малых форм и зон отдыха для детей и взрослых, посадку деревьев и
кустарников. Вертикальная планировка участка выполнена с учетом организации
нормального отвода поверхностных вод от здания в пониженные места естественного
рельефа, в ливневую канализацию.
Для возможности отвода талых и ливневых вод с проездов и площадок
выполнена вертикальная планировка методом проектных горизонталей.
Разбивочный план, план проездов, тротуаров, дорожек, площадок, план
озеленения и малых архитектурных форм представлены в графической части проекта.
2.
РАСЧЕТНО-КОНСТРУКТИВНЫЙ РАЗДЕЛ
2.1 Расчет ленточного фундамента
.1.1 Сбор нагрузок на фундамент
Таблица
2.1- Сбор нагрузок на междуэтажное перекрытие, Н/м
|
Нагрузка
|
g норм
|
k
|
g расч
|
|
1
|
2
|
3
|
4
|
|
1. Совмещенная кровля
|
|
|
|
|
1.1. Постоянная нагрузка:
|
|
|
|
|
- слой гравия, δсредн.=100,0 мм
|
0,1×
600,0=60,0
|
1,3
|
78,0
|
|
- армированная стяжка из
цементно-песчаного раствора, δ=50 мм
|
0,05×2200,0=110,0
|
1,3
|
143,0
|
|
- утеплитель Пеноплэкс
марки 35, δ=100
мм
|
0,10×35,0=3,5
|
1,3
|
4,55
|
|
- стяжка из
цементно-песчаного раствора, δ=30 мм
|
0,03×1800,0=54,0
|
1,3
|
70,2
|
|
- ж/б плита покрытия, δ=220 мм
|
300,0
|
1,1
|
330,0
|
|
1.2. Временная нагрузка
снеговая:
|
|
|
|
|
1.2.1. с парапетом h=0,6
м
|
168,0
|
1,4
|
240,0
|
|
1.2.2. с парапетом h=1,2
м
|
240,2
|
1,4
|
336,3
|
|
1.2.3. для покрытий,
примыкающих к машинному помещению
|
336,0
|
1,4
|
470,4
|
|
Всего с парапетом h=0,6
м, (кг/м 2)
|
695,5
|
|
865.75
|
|
Всего с парапетом h=1,2
м, (кг/м 2)
|
767,7
|
|
962.05
|
|
Всего для покрытий,
примыкающих к машинному помещению, (кг/м 2)
|
863,5
|
|
1096.15
|
|
2. Чердачное перекрытие
|
|
|
|
|
2.1. Постоянная нагрузка:
|
|
|
|
|
- армированная стяжка из
цементно-песчаного раствора, δ=40 мм
|
0,04×2200,0=88,0
|
1,3
|
114,4
|
|
- утеплитель Пеноплэкс
марки 35, δ=100
мм
|
0,10×35,0=3,5
|
1,1
|
5,39
|
|
- ж/б плита перекрытия, δ=220 мм
|
300,0
|
1,1
|
330,0
|
|
2.2. Временная нагрузка:
|
|
|
|
|
-
Равномерно-распределенная:
|
200,0
|
1,2
|
240,0
|
|
Всего, (кг/м 2):
|
591,5
|
|
689.79
|
|
3. Междуэтажное перекрытие
|
|
|
|
|
3.1. Постоянная нагрузка:
|
|
|
|
|
- пол
|
156,0
|
1,3
|
202,8
|
|
- ж/б плита перекрытия, δ=220 мм
|
300,0
|
1,1
|
330,0
|
|
- перегородки из гипсовых
пазогребневых плит, δ=80
мм
|
1250,0×0,08×2,7×
×58,43:95,7=164,9
|
1,1
|
181,4
|
|
3.2. Временная нагрузка:
|
|
|
|
|
- равномерно-распределенная
|
150,0×0,6=90,0
|
1,3
|
117,0
|
|
Всего, (кг/м 2):
|
710,9
|
|
831.2
|
|
4. Перекрытие первого этажа
|
|
|
|
|
4.1. Постоянная нагрузка:
|
|
|
|
|
- пол
|
156,0
|
1,3
|
202,8
|
|
- армированная стяжка из
цементно-песчаного раствора, δ=50 мм
|
0,05×2200,0=110,0
|
1,3
|
143,0
|
|
- утеплитель Пеноплэкс
марки 35, δ=50
мм
|
0,05×35,0=3,5
|
1,3
|
1,75
|
|
- стяжка из
цементно-песчаного раствора, δ=30 мм
|
0,03×1800,0=54,0
|
1,3
|
70,2
|
|
- перегородки из гипсовых
пазогребневых плит, δ=80
мм
|
1250,0×0,08×2,7×
×58,43:95,7=164,9
|
1,1
|
181,4
|
|
- ж/б плита перекрытия, δ=220 мм
|
300,0
|
1,1
|
330,0
|
|
4.2. Временная нагрузка:
|
|
|
|
|
- равномерно-распределенная
|
200,0
|
1,3
|
260,0
|
|
Всего, (кг/м 2):
|
988.4
|
|
1169.15
|
|
5. Вес 1 пог.м лестничной
клетки в осях "6-7, 9-10»
|
|
|
|
|
5.1. Постоянная нагрузка:
|
|
|
|
|
- пол
|
84
|
1,2
|
100,8
|
|
- ступени, марши и площадки
|
(85х10+14,2х3,4х2+24х4х1,11+2,5х0,2х(1,47+2,46)х1,11):6,94=152,06
|
1,1
|
167,27
|
|
5.2. Временная нагрузка:
|
|
|
|
|
- Равномерно-распределенная
|
300,0×1,11=333
|
1,2
|
399,6
|
|
Всего, (кг/м):
|
569.06
|
|
667.67
|
|
6. Перекрытие балкона
|
|
|
|
|
6.1. Постоянная нагрузка:
|
|
|
|
|
- пол
|
110,0×1,2×1,0:1,0=132,0
|
1,3
|
171,6
|
|
- ж/б монолитная плита,
|
0,22×2500,0×1,2×1,0:
:1,0=660,0
|
1,1
|
726,0
|
|
6.2. Временная нагрузка:
|
|
|
|
|
- Равномерно-распределенная
|
150,0×1,2×1,0:1,0×0,6=
=108,0
|
1,3
|
140,4
|
|
Всего, (кг/м 2):
|
900,0
|
|
1038
|
|
7. Перекрытие лоджии
|
|
|
|
|
7.1. Постоянная нагрузка:
|
|
|
|
|
- пол
|
110,0
|
1,3
|
143,0
|
|
- ж/б сборная плита,
|
300,0
|
1,1
|
330,0
|
|
7.2. Временная нагрузка:
|
150,0×0,6=90,0
|
1,3
|
117,0
|
|
Всего, (кг/м 2):
|
500,0
|
|
590
|
|
8. Покрытие над балконами
|
|
|
|
|
8.1. Постоянная нагрузка:
|
|
|
|
|
- слой гравия δ=20,0 мм
|
0,02×600,0×1,2×1,0:1,0==14,4
|
1,3
|
18,7
|
|
- армированная стяжка из
цементно-песчаного раствора δ=50 мм
|
0,05×2200,0×1,2×1,0:
:1,0=132,0
|
1,3
|
171,6
|
|
- ж/б монолитная плита,
|
0,22×2500,0×1,2×1,0:
:1,0=660,0
|
1,1
|
726,0
|
|
8.2. Временная нагрузка:
|
|
|
|
|
- снеговая
|
394,8×1,2×1,0:1,0=
=473,8
|
1,4
|
663,3
|
|
Всего, (кг/м 2):
|
1280,2
|
|
1579.6
|
|
9. Покрытие над лоджиями
|
|
|
|
|
9.1. Постоянная нагрузка:
|
|
|
|
|
- слой гравия δ=20,0 мм
|
0,02×600,0=12,0
|
1,3
|
15,6
|
|
- армированная стяжка из
цементно-песчаного раствора δ=50 мм
|
0,05×2200,0=110,0
|
1,3
|
143,0
|
|
- ж/б сборная плита,
|
300,0
|
1,1
|
330,0
|
|
9.2. Временная нагрузка:
|
|
|
|
|
- снеговая
|
394,8
|
1,4
|
552,7
|
|
Всего, (кг/м 2):
|
816,8
|
|
1041.3
|
|
10. Перекрытие над шахтой
лифта
|
|
|
|
|
10.1. Постоянная нагрузка:
|
|
|
|
|
- армированная стяжка из
цементно-песчаного раствора, δ=50 мм
|
0,05×2200,0=110,0
|
1,3
|
143,0
|
|
- ж/б монолитная плита
перекрытия, δ=220
мм
|
0,22×2500,0=550,0
|
1,1
|
605,0
|
|
10.2. Временная нагрузка:
|
|
|
|
|
-
Равномерно-распределенная:
|
200,0
|
1,2
|
240,0
|
|
Продолжение таблицы 2.1
|
|
Всего, (кг/м2)
|
860,0
|
|
988,0
|
|
11. Вес от оборудования
лифта, (кг/м)
|
36360,0:10,78=3373,0
|
1,05
|
3541,6
|
|
12. Вес 1 пог. м наружной
стены: кладка из камня и кирпича δ=680 мм с уширенным швом, (кг/м):
|
29,53×1600,0×0,68+
+1800,0×1,36×0,51= =33377,1
|
1,1
|
36714,8
|
|
13. Вес 1 пог. м наружной
стены лестничной клетки: кладка из камня и кирпича δ=680 мм с уширенным швом, (кг/м):
|
31,7×1600,0×0,68+
+1800,0×1,57×0,51= =35930,9
|
1,1
|
39523,9
|
|
14. Вес 1 пог. м внутренней
стены: кладка из кирпича, (кг/м):
|
|
|
|
|
- толщиной 380 мм
|
1800,0×29,53×0,38=20198,5
|
1,1
|
22218,4
|
|
- толщиной 510 мм
|
1800,0×29,53×0,51=27108,5
|
1,1
|
29819,4
|
|
- толщиной 640 мм
|
1800,0×29,53×0,64=34018,6
|
1,1
|
37420,4
|
|
- стена маш. пом. по балкам
|
1800,0×3,19×0,38=2182,0
|
1,1
|
2400,2
|
|
15. Вес 1 пог. м стены
лестничной клетки: кладка из кирпича с утеплением, (кг/м):
|
|
|
|
|
- толщиной 380 мм
|
1800,0×33,27×0,38+
+35,0×0,1×3,58= =22769,2
|
1,1
|
25046,1
|
|
- толщиной 510 мм
|
1800,0×33,27×0,51+
+35,0×0,1×3,58=30554,4
|
1,1
|
33609,8
|
|
16. Вес 1 пог. м внутренней
стены: кладка из кирпича δ=380 мм,
(кг/м):
|
1800,0×30,29×0,38=
=20718,4
|
1,1
|
22790,2
|
|
17. Вес от стены из блоков
в деформационном шве: блоки δ=400 мм,
(кг/м):
|
2400,0×3,05×0,4×1,2:
:1,2=2928,0
|
1,1
|
3220,8
|
Рисунок 2.1- План с расчетными сечениями
2.1.2 Сбор нагрузок по сечениям
Нагрузки по сечениям собраны на отм. -0.420м
Сечение 1-1
Совмещенная кровля 0,87×(3,47+3,02)=5,65
Чердачное перекрытие 0,69×(3,47+3,02)=4,48
Междуэтажное перекрытие 0,83×(3,47+3,02)×8=43,09
Перекрытие первого этажа 1,17х(3,47+3,02)=7,59
Вес 1 пог. м внутренней стены 22,22
Всего: 83,03 т/м
Сечение 2-2
Совмещенная кровля 0,87×3,47=2,43
Чердачное перекрытие 0,69×3,47=2,05
Междуэтажное перекрытие 0,83×3,47×8=19,71
Перекрытие первого этажа 1,17х3,47=4,13
Вес 1 пог. м наружной стены 36,71
Всего: 69,29 т/м
Сечение 3-3
Перекрытие балкона 1,04х1,2х9=9.72
Покрытие над балконами 1,58х1,2=1,54
Вес 1 пог. м наружной стены 36,71
Всего: 49,84 т/м
Сечение 4-4
Перекрытие лоджии 0,59х3,85х9=20,44
Покрытие над лоджией 1,04х3,85=4,00
Вес 1 пог. м наружной стены 29,82
Всего: 54,27 т/м
Сечение 5-5
Совмещенная кровля 0,87×3,47=3,02
Чердачное перекрытие 0,69×3,47=2,40
Междуэтажное перекрытие 0,83×3,47×8=23,04
Перекрытие первого этажа 1,17х3,47=4,06
Перекрытие балкона 1,04х1,2х9=11,23
Покрытие над балконами 1,58х1,2=1,90
Вес 1 пог. м наружной стены 36,71
Всего: 82,35 т/м
Нагрузки на фундаменты для всех сечений даны на отметке -0,420. Вес
блоков и грунта на обрезах фундамента добавляются в программе автоматически.
Расчет произведем в программе “Фундамент 13.3” , результаты представлены
в приложении 1.
2.2 Расчет свайного фундамента
.2.1 Определение несущей способности сваи
Предварительно принимаем забивные сваи составного сечения 100-35 350Х350
(серия 1.011.1-10 в.1.4.1), L=10.0м.
Грунтовые условия и размеры сечения ростверка см. рисунок 2.2
Назначаем несущим слоем суглинок моренный (слой №4). В несущий слой свая
должна заглубляться не менее чем на 1 метр. Так как нижний конец сваи опирается
на сжимаемые грунты - сваи висячие.
Определяем
расстояние от планировочной поверхности грунта до острия сваи:
; по таблице 7.2[1] находим значение расчетного
сопротивления грунта острию сваи
кПа
(значение принято интерполяцией).
Пласты
грунта, с которыми соприкасается боковая поверхность сваи и имеющие высоту
более 2м, разбиваем на слои высотой не более 2м. Получаем 10 слоев (рис.2.4)
высотой:
м;
м;
м;
м;
м;
м;
м;
м;
м;
м;
Определяем
расстояние от планировочной поверхности до середины каждого слоя грунта:
м;
м;
м;
м;
м;
По
таблице 2 [9] находим значения сопротивления по боковой поверхности для каждого
грунта:
кПа;
кПа;
кПа;
кПа;
кПа;
кПа,
кПа;
кПа;
кПа,
кПа;
Площадь сваи
; периметр сечения сваи
.
Несущая
способность сваи
; (2.1)
γс=1 - коэффициент условий работы сваи в грунте;
γcf=1 -
коэффициент условий работы грунта по боковой поверхности свай;
γсR=1 - коэффициент условий работы грунта под нижним
концом свай;
А
- площадь сечения сваи;
u - периметр
сечения сваи;
R - расчетное
сопротивление грунта острию сваи;
fi - значение
сопротивления по боковой поверхности сваи;
h - высота слоев
грунта.

Определяем
нагрузку, которую может выдерживать свая с учетом коэффициента надежности
так как несущая способность сваи определена расчетом
(2.2)
Определяем
требуемое количество свай:
(2.3)
Принимаем
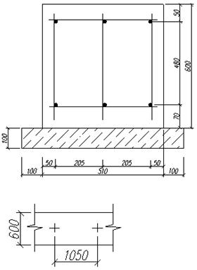
1 сваю на 1м ростверка, обеспечивая минимальное расстояние между осями свай
(1050мм).
2.2.2 Расчет ростверка
В
данном проекте принимаем монолитный железобетонный ростверк. При устройстве
ростверка под стены сваи располагаются в один ряд. Расстояние между осями
забивных висячих свай должно быть не менее 3d (где d- сторона квадратного
сечения сваи). Сваи заделываются в ростверк на 150 мм . Ширина ростверка под
стены принимается не менее 400мм, высота не менее 300 мм.
Рисунок
2.2- Сечение 1-1 по ростверку
;
расчетный
пролет ростверка принимается равным длине проекции расстояния между осями свай
по диагонали на продольную ось ростверка
Максимальный
момент
(2.4)
(2.5)
(2.6)
требуемая
площадь сечения рабочей арматуры. Принимаем по конструктивным требованиям
3 Ø 12 А400 с F=4,52см2
Рисунок
2.3- Сечение 2-2 по ростверку
;
;
Принимаем
конструктивно: 3Ø12А400 Аs = 4,52см2
Вывод: в данном проекте рассчитаны, ленточные и свайные
фундаменты. Более целесообразно запроектировать ленточный сборный фундамент,
так как:
- грунтовые условия хорошие, основанием является суглинок;
перед забивкой свай необходимо провести испытание нескольких
свай, что тоже несет за собой материальные затраты;
жилой дом располагается в черте города, вблизи от него
существующие здания как новой так и старой застройки, поэтому производить
забивку свай следует сваевдавливающей установкой, воизбежание динамических
нагрузок на существующие здания. Арендовать и эксплуатировать данную установку
экономически нецелесообразно.
2.4 Теплотехнический расчет наружной ограждающей
конструкции стены
Расчетные условия.
Расчетная температура внутреннего воздуха tint . Принимается по таблице 1 ГОСТ 30494-2011
Для жилых зданий tint =
+21оС.
Расчетная температура наружного воздуха text . Принимается значение средней температуры наиболее
холодной пятидневки обеспеченностью 0,92 по таблице 1 [10] для г. Вологда - t ext = -32оС.
Продолжительность отопительного периода Zht принимается по таблице 1 [10] . Для г.Вологды (I климатическая зона) Zht =231 сут.
Средняя температура наружного воздуха за отопительный период t auext
принимается по табл.1 [10] .
Для г. Вологды (I
климатическая зона) t auext = - 4,1 оС.
Градусо-сутки отопительного периода Dd определяются по [11] формула 2 для г.Вологды:
Dd = (t int - t ht) Zht (2.7)
=(21-(-4.1))231=5798 оС сут
Согласно [10] приведенное сопротивление теплопередаче наружных
ограждающих конструкций Rro,
оС/Вт должно приниматься не ниже требуемых значений Roreq , которые устанавливаются по табл. 4 СНиП 23-02-2003
в зависимости от градусо-суток отопительного периода.
Рисунок 2.8 - Конструкция наружной стены
1. Кирпич силикатный СУЛ 150/35 ГОСТ 379-95, толщиной 120 мм, λ=0,46
Вт/м°С
2. Камень керамический марки КМ-р 250х20х140/ 2.1НФ/150/1.0/100
ГОСТ 530-2012 λ=0,20 Вт/м°С.
. Штукатурка цементно-песчаная толщиной 20 мм. λ=0,93
Вт/м°С
. Кирпич силикатный утолщенный пустотелый КР-р-пу 250х120х88/1.4
НФ/150/1.2/50 ГОСТ 530-2012 с теплопроводностью λ=0,44 Вт/м°С черех 2 ряда камня
Определим термическое сопротивление толщи Rа при разбивке на площади плоскостями, параллельными
направлению теплового потока:
, (2.8)
где
Вычислим
термическое сопротивление толщи RБ при разбивке на слои плоскостями, перпендикулярными
тепловому потоку:
,
D = 5798 град
°С/сут,
Rreq= 3,43 м2°С/Вт
<Ror = 3,48°С/Вт.
Условие
выполняется.
3.
ТЕХНОЛОГИЧЕСКИЙ РАЗДЕЛ
3.1 Область применения
Данная технологическая карта разработана на производство
кладочно-монтажных работ выше отметки 0,000. Здание в осях 48,82х20,02 м.
В состав работ, рассматриваемых технологической картой входят:
кладочные работы (возведение стен, перегородок);
монтажные работы;
заделка стыков в плитах перекрытия и сварка анкеров;
монтаж сборных железобетонных перемычек, лестничных ж/б ступеней и
металлических косоуров.
3.2 Технология и организация выполнения работ
.2.1 Каменные работы
Кладку стен следует выполнять по рабочим чертежам.
При кладке наружных верстовых рядов причалку устанавливают для каждого
ряда, а при кладке внутренней версты - через каждые 2-3 ряда. Чтобы причалка не
провисала, под нее кладут на растворе маячные кирпичи через каждые 4-5 м.
Раскладку кирпича делают стопками по два кирпича параллельно оси стены -
для ложкового ряда и перпендикулярно к оси - для тычкового ряда. Для наружной
версты кирпич по внутренней половине стены, а внутренней версты - по наружной.
Раствор подают лопатой в количестве, необходимом для образования
горизонтального шва под 6-7 кирпичей разравнивают его с помощью кельмы.
Среднюю толщину горизонтальных швов принимают 12 мм, а вертикальных - 10
мм. Допускаются швы толщиной не более 15 мм и не менее 8 мм.
Кирпичные столбы шириной в два с половиной кирпича и менее следует
возводить из отборного целого кирпича.
В кладке использовать цепную систему перевязки.
Кладка фронтонов ведется с подмостей, имеющих размеры в плане 5,5*2,5 м,
высотой 0,9 м и 1,8 м. Для контроля за качеством кладки между рабочим настилом
и возводимой конструкцией оставляют зазор до 5 см.
Каждый ярус стены следует выкладывать так, чтобы после установки
подмостей он был выше уровня рабочего места на 2-3 ряда кладки.
Кирпич к рабочему месту каменщика подается пакетами на поддонах при
помощи подхватов с ограждениями, исключающими выпадение отдельного кирпича.
Стены здания возводят комплексной бригадой. До начала выполнения работ по
возведению стен второго этажа должны быть закончены строительно-монтажные
работы по возведению первого этажа: выложены стены, смонтированы перемычки и
плиты перекрытия первого этажа, выполнена заливка швов. Только после выполнения
данных работ приступают к работам по кладке последующего этажа.
Общую ширину рабочих мест принимаем равной 2,5 - 2,6 м, в том числе
рабочую зону 60-70 мм. Рабочее место и расположение материалов бригады
каменщиков на подмостях приведено в графической части.
Работы по производству кирпичной кладки этажа выполняются в следующей
технологической последовательности: подготовка рабочих мест каменщиков, кладка
стен с расшивкой швов.
Подготовка рабочих мест каменщиков производиться в следующем порядке:
расставляют на подмостях кирпич в количестве, необходимом для двухчасовой
работы; расставляют ящики для раствора; устанавливают порядовки с указанием на
них отметок оконных и дверных проемов.
Процесс кирпичной кладки состоит из следующих операций: установка и
перестановка причалки; рубка и тёзка кирпичей (по мере необходимости); подача
кирпичей и раскладка их на стене; перелопачивание, подача, расстилание и
разравнивание раствора на стене; укладка кирпичей в конструкцию стен внутренней
версты; кладка связей утеплителя; укладка кирпичей в конструкцию стен наружной
версты; расшивка швов; проверка правильности выложенной кладки.
Наружные и внутренние стены возводят одновременно с перевязкой кладки в
местах пересечения стен. Кладка наружных стен наружной версты ведется с 4-х
рядной перевязкой швов.
Кирпичная кладка выполняется «двойками». Подручный каменщик (К 2) берет
кирпич с поддонов и в пределах рабочей зоны раскладывает его по стене, затем
набирает раствор из ящика и расстилает его в зоне укладки лицевого ряда.
Ведущий каменщик (К 1) берет левой рукой подготовленный кирпич и, продвигаясь
по периметру захватки, ведет кладку; при кладке стен “под расшивку” расшивку
швов делает подручный каменщик (К 2).
Другая “Двойка” ведет кладку внутренних стен. Подручный каменщик (К 3, К
4) берет кирпич с поддонов и в пределах рабочей зоны раскладывает его по стене,
затем набирает раствор из ящика и расстилает его в зоне укладки рядов стены.
Ведущий каменщик (К 3, К 4) берет левой рукой подготовленный кирпич и,
продвигаясь вдоль стены, ведет кладку.
Возведение кирпичных стен должно осуществляться в соответствии с
требованиями СП 70.13330.2012 "Несущие и ограждающие конструкции".
При производстве работ пользоваться соответствующими указаниями СНиП
12-03-2001 («Безопасность труда в строительстве»).
Организацию рабочего места каменщиков, ведомость основных конструкций,
материалов и полуфабрикатов, а также ведомость машин, оборудования, инвентаря,
инструмент и приспособления смотри графическую часть.
3.2.2 Монтажные работы
Предварительное складирование конструкций на приобъектных складах
допускается только при соответствующем обосновании. Приобъектный склад должен
быть расположен в зоне действия монтажного крана.
Монтаж конструкций каждого вышележащего этажа (яруса) многоэтажного
здания следует производить после проектного закрепления всех монтажных
элементов и достижения бетоном (раствором) замоноличенных стыков несущих
конструкций прочности.
Перемычки монтируются по ходу выполнения работ по кладке наружных и
внутренних стен. Плиты междуэтажных перекрытий укладываются после завершения
кладки этажа. До монтажа плит перекрытия опорные поверхности стен проверяют
нивелиром и водяным уровнем и при необходимости выравнивают кладку стяжкой из
цементно-песчаного раствора. Плиты стропуют четырехветвевым стропом, их укладывают
на растворную постель толщиной не более 20 мм двое каменщиков. Монтаж начинают
от стены с инвентарных подмостей, а последние плиты с ранее уложенных.
При кладке плит следят, чтобы потолок помещения был горизонтальным. Если
уложенную конструкцию необходимо переложить, её поднимают, очищают от раствора
и устанавливают заново. Швы между плитами заделывают раствором марки 100, а
места сопряжения со стенами и торцы замоноличивают бетоном или раствором. Со
стенами здания и между собой плиты перекрытия соединяют анкерами. Монтаж плит
перекрытия, подача кирпича и раствора, монтаж перемычек, осуществляется с
помощью крана.
Применение раствора, процесс схватывания которого уже начался, а также
восстановление его пластичности путем добавления воды не допускаются
Применение не предусмотренных проектом подкладок для выравнивания
положения укладываемых элементов по отметкам без согласования с проектной
организацией не допускается.
Калькуляция трудозатрат на кладочно-монтажные работы см. приложение 1.
3.3 Подбор монтажного крана
.3.1 Требуемая высота подъема
крюка:
H = ho+hz+he+hc, м, (3.1)
где h0-
высота последней опоры монтируемого элемента, м;
hz- расстояние от опоры до элемента, регламентируется ТБ, м;
hе- высота груза, м;
hс- высота строповки, м.
H = 32,97+0,5+0,22+3,7 =33,39 м
3.3.2 Требуемый вылет стрелы:
L=a/2+b+c, м, (3.2)
где а - ширина крана, м;
b - безопасное расстояние от края крана до выступающих частей
здания;
с - расстояние от выступающей части здания до центра
тяжести монтируемого элемента.
L=6/2+2,5+21,75 = 27,25 м
3.3.3 Требуемая
грузоподъемность
Qmp =Qгр +Qстр (3.3)
где Qстр -
масса строповки;
Qгр - максимальная масса поднимаемой конструкции.
Qmp = 3,35+0,15=3,5 т
По полученным данным выбираем башенный кран КБ-405.1А-02 с длиной стрелы
30м.
Таблица 3.1 - техническая характеристика башенного крана КБ-405.1А-02
|
Наименование параметра
|
Ед. изм.
|
КБ-405.1А-02
|
|
1
|
2
|
3
|
|
Грузовой момент
максимальный
|
тм
|
135
|
|
Грузоподъемность
максимальная
|
т
|
9
|
|
Грузоподъемность при
максимальном вылете
|
т
|
4,5
|
|
Высота подъема : - при
максимальном вылете
|
м
|
47,3
|
|
- максимальная
|
м
|
62,5
|
|
Количество промежуточных
секций башни
|
шт
|
5
|
|
Общая масса крана
|
т
|
113,5
|
|
Вылет: - максимальный
|
м
|
30
|
|
- минимальный
|
м
|
15
|
|
Колея, база
|
м
|
6
|
|
Мощность
|
кВт
|
101,7
|
Рисунок 3.1 - грузовые характеристики крана
3.4 Требования к качеству и приемке работ
3.4.1 Требования к качеству каменных работ
Качество выполненных каменных работ необходимо контролировать
систематически, применяя соответствующие инструменты и приспособления, к
которым относятся уровень, отвес, складной метр, рулетка, шаблон, угольник и
др. Следует стремиться к тому, чтобы возможные отклонения от проектных размеров
каменных конструкций не превышали допустимых значений.
Для обеспечения требуемого качества выполненной кладки каменщик в
процессе кладки должен следить за тем, чтобы применялись кирпич и раствор,
указанные в проекте, проверять правильность перевязки и качество швов и кладки,
вертикальность, горизонтальность и прямолинейность поверхностей и углов,
правильность установки закладных деталей и связей, качество поверхности кладки.
3.4.2 Требования к качеству монтажных работ
Элементы сборных железобетонных и бетонных конструкций, поступающие на
строительную площадку, должны соответствовать проекту, действующим ГОСТам,
нормам и техническим условиям на изготовление отдельных изделий.
Каждая партия элементов сборных конструкций должна быть снабжена
паспортом, выдаваемым потребителю предприятием-изготовителем при отпуске
изделий.
Приемка элементов сборных конструкций производится представителем
монтирующей организации, внешним осмотром. При осмотре следует проверять:
отсутствие деформаций, повреждений, проектные размеры, правильность
расположения монтажных петель, отсутствие раковин, трещин, наплывов.
Погрузочно-разгрузочные работы необходимо выполнять под руководством
мастера, имеющего специальную подготовку.
Строповка элементов конструкций должна обеспечивать их подъем и подачу к
месту монтажа в положении, соответствующем проектному.
Таблица 3.2 - Допускаемые отклонения при монтаже сборных конструкций
|
Наименование технологич.
процессов, подлежащих контролю
|
Предмет контроля
|
Способ контроля и
инструмент
|
Время проведения контроля
|
Ответственный за контроль
|
Технические хар-ки оценки
качества
|
|
1
|
2
|
3
|
4
|
5
|
6
|
|
Монтажные работы
|
Толщина конструкций
|
Измерительный, журнал работ
|
До начала монтажа
|
Мастер
|
±15
|
|
Отметки опорных
поверхностей
|
Измерительный, журнал работ
|
До начала монтажа
|
|
±10
|
|
Кирпичная кладка
|
Отклонение от
симметричности (половина разности глубины опирания концов элемента) при
установке плит покрытий и перекрытий в направлении перекрываемого пролета
|
Измерительный, журнал работ
|
На стадии монтажа
|
Геодезист
|
±6
|
|
Подвижность раствора
|
Погружения стандартного
конуса
|
При поступлении на стр-ной
площадке
|
Мастер
|
5-7 см по глубине погруж.
|
|
Отклонение от совмещения
ориентиров в нижнем сечения прогонов с установочными ориентирами (рисками
геом. осей или гранями)
|
Измерительный, журнал работ
|
На стадии монтажа
|
Геодезист
|
±8
|
|
Кирпичная кладка
|
Ширина простенков
|
Измерительный, журнал работ
|
В процессе возведения
|
Мастер
|
±15
|
|
Ширина проемов
|
Измерительный, журнал работ
|
В процессе возведения
|
|
±15
|
|
Смещение вертикальных осей
оконных проемов от вертикали
|
Измерительный, журнал работ
|
В процессе возведения
|
Геодезист
|
±20
|
|
Кирпичная кладка
|
Смещение осей конструкции
от разбивочных осей
|
Измерительный,
геодезическая исполнительная схема
|
До начала монтажа
|
Геодезист
|
±10
|
|
Отклонение поверхностей и
углов кладки от вертикали -на один этаж -на здание высотой более двух этажей
|
Измерительный,
геодезическая исполнительная схема
|
В процессе возведения
|
Прораб
|
±10 ±10
|
|
Толщина швов кладки
-горизонтальн. -вертикальных
|
Измерительный, журнал работ
|
В процессе возведения
|
Прораб, заказчик
|
-2; +3 -2; +2
|
3.4.3 Требования к качеству теплоизоляционных
работ
При осуществлении проверок качества выполнения данного вида работ следует
учитывать, что устройство каждого элемента изоляции, защитного покрытия может
выполняться только после проверки правильности выполнения нижележащего элемента
с оформлением соответствующего акта освидетельствования.
При выполнении проверок следует осуществлять контроль основных параметров
и качество выполнения технологических операций, приведенных в таблице 3.3
Таблица 3.3 - контроль основных параметров
|
Состав основных
контролируемых параметров и нормативных требований
|
Предельные отклонения от
нормативных параметров и требований
|
|
1
|
2
|
|
1. Влажность
теплоизоляционного слоя
|
Согласно проекту. Защита от
атмосфер. осадков обязательна
|
|
2. Зазоры между плитами
утеплителя
|
Заполняются
теплоизоляционным материалом того же объемного веса
|
|
3. Отклонения в общей
толщине теплоизоляционного слоя
|
+ 10% от проектной - 5 %
|
|
4. Отклонения в объемном
весе теплоизоляционного материала
|
± 5% от проектного
|
3.5 Техника безопасности
.5.1 Каменные работы
При перемещении и подаче на рабочее место грузоподъемными кранами
кирпича, керамических камней следует применять поддоны, контейнеры и
грузозахватные устройства, исключающие падение груза при подъеме.
При кладке стен зданий на высоту до 0,7 м от рабочего настила и
расстоянии от его уровня за возводимой стеной до поверхности земли (перекрытия)
более 1,3 м необходимо применять средства коллективной защиты (ограждающие или
улавливающие устройства) или предохранительные пояса.
При кладке стен высотой более 7 м необходимо применять защитные козырьки
по периметру здания, удовлетворяющие следующим требованиям:
ширина защитных козырьков должна быть не менее 1,5 м, и они должны быть
установлены с уклоном к стене так, чтобы угол, образуемый между нижней частью
стены здания и поверхностью козырька, был 110°, а зазор между стеной здания и
настилом козырька не превышал 50 мм;
защитные козырьки должны выдерживать равномерно распределенную снеговую
нагрузку, установленную для данного климатического района, и сосредоточенную
нагрузку не менее 1600 Н (160 кгс), приложенную в середине пролета;
первый ряд защитных козырьков должен иметь сплошной настил на высоте не
более 6 м от земли и сохраняться до полного окончания кладки стен, а второй
ряд, изготовленный сплошным или из сетчатых материалов с ячейкой не более 50´50 мм, - устанавливаться на высоте
6-7 м над первым рядом, а затем по ходу кладки переставляться через каждые 6-7
м.
Рабочие, занятые на установке, очистке или снятии защитных козырьков,
должны работать с предохранительными поясами. Ходить по козырькам, использовать
их в качестве подмостей, а также складывать на них материалы не допускается.
Без устройства защитных козырьков допускается вести кладку стен высотой
до 7 м с обозначением опасной зоны по периметру здания.
Рабочие места, расположенные на расстоянии менее 3 м друг от друга,
должны быть разделены защитными экранами.
3.5.2 Монтажные работы
На участке (захватке), где ведутся монтажные работы, не допускается
выполнение других работ и нахождение посторонних лиц.
При возведении зданий и сооружений запрещается выполнять работы,
связанные с нахождением людей в одной секции (захватке, участке) на этажах
(ярусах), над которыми производятся перемещение, установка и временное
закрепление элементов сборных конструкций или оборудования.
Способы строповки элементов конструкций и оборудования должны
обеспечивать их подачу к месту установки в положении, близком к проектному.
Запрещается подъем сборных железобетонных конструкций, не имеющих
монтажных петель или меток, обеспечивающих их правильную строповку и монтаж.
Очистку подлежащих монтажу элементов конструкций от грязи и наледи
следует производить до их подъема.
Строповку конструкций и оборудования следует производить грузозахватными
средствами, удовлетворяющими требованиям п.п. 7.4.4, 7.4.5 СНиП 12-03 и
обеспечивающими возможность дистанционной расстроповки с рабочего горизонта в
случаях, когда высота до замка грузозахватного средства превышает 2 м.
Элементы монтируемых конструкций или оборудования во время перемещения
должны удерживаться от раскачивания и вращения гибкими оттяжками.
Не допускается пребывание людей на элементах конструкций и оборудования
во время их подъема или перемещения.
Во время перерывов в работе не допускается оставлять поднятые элементы
конструкций и оборудования на весу.
Для перехода монтажников с одной конструкции на другую следует применять
инвентарные лестницы, переходные мостики и трапы, имеющие ограждение.
Не допускается выполнять монтажные работы на высоте в открытых местах при
скорости ветра 15 м/с и более при гололедице, грозе или тумане, исключающем
видимость в пределах фронта работ. Работы по перемещению и установке
вертикальных панелей и подобных им конструкций с большой парусностью следует
прекращать при скорости ветра 10 м/с и более.
Не допускается нахождение людей под монтируемыми элементами конструкций и
оборудования до установки их в проектное положение и закрепления.
При необходимости нахождения работающих под монтируемым оборудованием
(конструкциями), а также на оборудовании (конструкциях) должны осуществляться
специальные мероприятия, обеспечивающие безопасность работающих.
При производстве монтажных (демонтажных) работ в условиях действующего
предприятия эксплуатируемые электросети и другие действующие инженерные системы
в зоне работ должны быть, как правило, отключены, закорочены, а оборудование и
трубопроводы освобождены от взрывоопасных, горючих и вредных веществ.
При производстве монтажных работ не допускается использовать для
закрепления технологической и монтажной оснастки оборудование и трубопроводы, а
также технологические и строительные конструкции без согласования с лицами,
ответственными за правильную их эксплуатацию.
До выполнения монтажных работ необходимо установить порядок обмена
условными сигналами между лицом, руководящим монтажом, и машинистом
(мотористом). Все сигналы подаются только одним лицом (бригадиром монтажной
бригады, звеньевым, такелажником-стропальщиком), кроме сигнала
"Стоп", который может быть подан любым работником, заметившим явную
опасность.
Монтаж конструкций каждого последующего яруса (участка) здания или
сооружения следует производить только после надежного закрепления всех
элементов предыдущего яруса (участка) согласно проекту.
Навесный металлические лестницы высотой более 5 м должны удовлетворять
требованиям п. 6.2.19 СНиП 12-03 или быть ограждены металлическими дугами с
вертикальными связями и надежно прикреплены к конструкции или к оборудованию.
Подъем рабочих по навесным лестницам на высоту более 10 м допускается в том
случае, если лестницы оборудованы площадками отдыха не реже чем через каждые 10
м по высоте.
При перемещении конструкций или оборудования расстояние между ними и
выступающими частями смонтированного оборудования или других конструкций должно
быть по горизонтали не менее 1 м, по вертикали - 0,5 м.
Углы отклонения от вертикали грузовых канатов и полиспастов
грузоподъемных средств в процессе монтажа не должны превышать величину,
указанную в паспорте, утвержденном проекте или технических условиях на это
грузоподъемное средство.
При демонтаже конструкций и оборудования следует выполнять требования,
предъявляемые к монтажным работам.
Одновременная разборка конструкций или демонтаж
оборудования в двух или более ярусах по одной вертикали не допускается.
3.6 Потребность в ресурсах
здание фундамент стена монтажный
Таблица 3.4 - перечень машин, механизмов и оборудования
|
Наименование машин,
механизмов и оборудования
|
Тип, марка
|
Технические характеристики
|
Назначение
|
Кол-во на звено, шт.
|
|
1
|
2
|
3
|
4
|
5
|
|
Кран
|
КБ-405.1А-02
|
Грузоподъемность: 4,5-9т;
вылет стрелы: 15-30 м; высота подъем:47,3-62,5м; длина стрелы: 30 м.
|
Монтажные работы
|
1
|
|
Строп четырех ветвевой
|
4СК1-5,0/4000 ГОСТ 25573-82
|
Масса 150 кг,
грузоподъемность 5 т, длина 4 м
|
Для захвата краном
конструкций
|
1
|
|
Инвентарные пакетные подмости
|
|
5500х2500мм, высота 900мм
|
Кладка стен и перегородок
|
30
|
|
Неинвентарные подмости
|
|
4250х2500мм, 3100х2200мм,
1900х1600мм, 1550х800мм, 2100х1300мм, 3400х2500мм, 3400х1600мм, высота 900мм
|
Кладка стен и перегородок
|
16 2 12 6 8 12 4
|
|
Самосвал
|
ЗИЛ-555
|
Грузоподъемность: 9 т.
|
Для перемещения грузов на
расстояния
|
3
|
|
Ящик для раствора
|
|
Вместимость 0,25 м3
|
Для перемещения раствора
|
6
|
Таблица 3.5 - перечень технологической оснастки, инструмента и инвентаря
|
Наименование инструмента и
инвентаря
|
Марка, ГОСТ, ТУ
|
Техничес. хар-ка
|
Назначение
|
Кол-во на звено, шт.
|
|
1
|
2
|
3
|
4
|
5
|
|
1. Кельма стальная
|
ГОСТ 9533-81
|
КБ1
|
Для нанесения,
разравнивания и подрезки раствора, выступающего из швов при выполнении
кирпичной кладки
|
8
|
|
2. Молоток кирочка
|
ГОСТ 11042-83
|
МКИ-1
|
Для околки и тезки кирпича
|
10
|
|
3. Рейка порядовка
|
Р.ч.3293.09.000
|
|
Для определения
прямолинейности кирп. кладки
|
4
|
|
4. Правило
|
ГОСТ 25782-83*
|
|
Проверка правильности
кирпичной кладки стен
|
4
|
|
5. Отвес строительный
стальной
|
ГОСТ 7948-80
|
ОТ400
|
Для определения
вертикальности возводимых стен
|
8
|
|
6. Уровень строительный
|
ГОСТ 9416-83
|
УС1-300
|
Для определения
вертикального и горизонтального расположения поверхности кирпичной кладки
|
4
|
|
7. Рулетка измерительная
|
ГОСТ 7502-80*
|
3ПК2-30АНТ/1
|
Для линейных измерений
небольших величин на захватке
|
4
|
|
8.Шнур причальный
|
ГОСТ 18408-73*
|
|
Для обеспечения
горизонтальности рядов кладки
|
2
|
|
9. Лопатка растворная
|
ГОСТ 3620-76
|
ЛР
|
Для расстилания раствора
|
4
|
|
10. Нивелир
|
|
НГ
|
Для контроля качества
|
1
|
|
11. Нивелирая рейка
|
|
|
Для контроля качества
|
1
|
|
12.Линейка измерительная
|
ГОСТ 427-75
|
|
Для линейных измерений
небольших величин на захватке
|
4
|
|
13.Каска строительная
|
ГОСТ 124.087-84
|
|
Безопасность работ
|
20
|
|
14.Пояс монтажный
|
ГОСТ 124.089-80
|
|
Безопасность работ
|
20
|
|
15.Угольник для каменных
работ
|
Р.ч.362.00.000
|
|
Проверка углов при закладке
внутренних стен
|
2
|
|
16.Захват
|
Р.ч.605.00.000 ЦНИОМП
|
Б-8 Q=1,5т
|
Подача кирпича
|
2
|
|
|
17.Поддон с метал. крючьми
|
ГОСТ 18343-80
|
|
Складирование кирпича
|
8
|
|
|
18.Ножовка по дереву
|
ГОСТ 26215-84
|
|
Плотничьи работы
|
8
|
|
Таблица 3.6 - ведомость строительных конструкций: деталей, полуфабрикатов
и материалов
|
Наименование конструкции и
рабочих операций
|
Ед.изм.
|
Объем
|
Эскиз и размеры
|
|
1
|
2
|
3
|
4
|
|
1. Кирпич силикатный
лицевой (наружные стены, чердак, парапет)
|
1000 шт
|
137,78
|
L=250мм; h=88мм; b=120мм
|
|
2. Кирпич силикатный
рядовой (внутренние стены)
|
1000 шт
|
464,07
|
L=250мм; h=88мм; b=120мм
|
|
3. Камень керамический
(наружные стены, чердак)
|
1000 шт
|
154,28
|
L=250мм; h=138мм; b=120мм
|
|
4. Кирпич керамический
(наружные стены, чердак)
|
1000 шт
|
78,26
|
L=250мм; h=88мм; b=120мм
|
|
5. Пазогребневые плиты
|
1000 шт
|
15,6
|
L=600мм; h=500мм; b=80мм
|
|
6. Кладка перегородок из
пазогребневых плит
|
1м2
|
4680
|
b=80 мм
|
|
7. Кладка наружных стен 1-9
этаж
|
1 2051,9b=680 мм
|
|
|
|
8. Кладка наружных стен
чердака
|
1 184,1b=680 мм
|
|
|
|
9. Кладка парапета
|
1 11,4/ 75,2b=380/510 мм
|
|
|
|
10. Кладка внутренних стен
1-9 этажа из силикатного кирпича
|
1 1466,1b=380 мм
|
|
|
|
11. Кладка внутренних стен
чердака из силикатного кирпича
|
1 61,2/ 19,6b=380/510 мм
|
|
|
|
12. Утеплитель пеноплекс 35
|
1 м3
|
116,2
|
b=50 мм
|
|
13. Цементный раствор
|
1 774,9
|
|
|
|
14. Плиты перекрытий
площадью элементов до 5 шт.144
|
|
|
|
|
15. Плиты перекрытий
площадью элементов до 10 шт.846
|
|
|
|
|
16. Лестничные косоуры,
лобовые балки
|
т.
|
7,2
|
|
|
17. Ж/б ступени
|
шт.
|
374
|
|
|
18. Перемычки до 1 т
|
проем
|
520
|
|
|
19. Арматура (сварка)
|
шт
|
1441
|
|
|
|
20. Бетон В50 (заливка
швов)
|
100 м
|
41,74
|
|
|
|
|
|
|
|
|
|
3.7 График производства работ
График составляется на основе калькуляции трудовых затрат и нормативной
продолжительности работ в табличной форме.
Нормативная продолжительность работ монтажа конструкций определяется по
СНиП 1.04.03-85. Наименование работ записывается в соответствии с принятой
технологической последовательностью монтажа.
Значение трудоемкости на весь объем работ:
ЗТ=ЗТ(чел.*ч)/8,2, чел.*дн. (3.4)
где ЗТ (чел.*ч) - затраты труда;
,2 - продолжительность одной смены, ч.
Продолжительность работ:
Т=ЗТ(чел.*дн.)/PN,
дн., (3.5)
где P - количество рабочих в одном звене
монтажников;
N -
количество смен.
Определив продолжительность, взаимно увязываем работы во времени.
Выбираем работы, оказывающие влияние на продолжительность. Устанавливаем
последовательность и совмещенность ведущих работ, подчиняя темпу их выполнения
остальные виды работ (заделка стыков, электросварка).
3.8 Калькуляция трудовых затрат
Калькуляция трудозатрат на кладочно-монтажный процесс приведены в
приложении 1.
3.9 Технико-экономические показатели
Трудоёмкость кладочно-монтажных работ = 2337,6 чел∙дн
Продолжительность кладочно-монтажных работ
Определяется по календарному плану производства работ.
Т =78 см.
Выработка на 1 рабочего в смену
(3.6)
где
- общий объём работ;
- состав
звена на данный вид работ;
-
количество смен, необходимых на выполнение данного вида работ.
на
кирпичную кладку внутренних и наружных стен
Уровень
механизации
кладочные
работы
(3.7)
- объём
механизированных работ.
монтажные
работы
4.
ОРГАНИЗАЦИОННЫЙ РАЗДЕЛ
4.1 Общие данные и описание методов выполнения основных СМР с
указаниями по технике безопасности
.1.1 Исходные данные
Исходными материалами для составления ППР служат:
ранее утвержденный проект; в т.ч. ПОС, РД и сметы;
данные о поставке сборных конструкций, деталей, изделий и полуфабрикатов;
данные о поставке технологического, энергетического и другого
оборудования;
данные строительных и монтажных организаций о наличии парка машин и
механизмов, возможности его расширения и использования;
действующие нормативные документы: СНиПы, инструкции и указания по
производству и приемке строительных, специальных и монтажных работ, в т.ч. и по
охране труда в строительстве.
ППР состоит из трех основных видов технологических документов: графиков
(календарных планов), СГП и технологических карт.
Объемы работ в ППР определяют по РД, спецификациям и сметам, расчеты всех
видов ресурсов ведут по производственным нормам.
ППР на подготовительные работы выполняют в той же номенклатуре, что и для
основных работ, но в меньшем объеме.
Для объектов строящихся по типовым размерам, в состав РД входят основные
положения по производству СМР.
При строительстве комплекса зданий разрабатываются сводные поточные
графики на весь объем строительства.
4.1.2 Характеристика условий строительства
Проектируемое здание расположено на улице Ярославской в городе Вологда.
Источником покрытия потребности в рабочей силе являются кадровые рабочие
подрядной организации ООО «Стройиндустрия». Обеспечение строительства железобетонными
изделиями и конструкциями производится цехом ЖБИ№4 ООО «Стройиндустрия».
Строительными механизмами - база ООО «Стройиндустрия». Доставка на объект
строительства основных материалов, конструкций и деталей производится
автомобильным транспортом. Среднее расстояние подвозки основных материалов
составляет 30 км.
Природноклиматические условия.
Город Вологда расположен в географическом районе - 1, климатическом
районе - IIВ и характеризуется следующими показателями:
Температура наружного воздуха наиболее холодной пятидневки: минус 320С;
Температура наружного воздуха наиболее холодных суток: минус 370С;
Продолжительность зимнего периода - 6 месяцев;
Нормативное давление ветра для I ветрового района: 23 кгс/м2;
Вес снегового покрова для IV снегового района: 240 кгс/м2;
Нормативная глубина промерзания грунтов:
для суглинков и глин - 1,45 м;
Преобладающие ветры: северо - западные;
В геологическом отношении грунты представлены суглинком бурым мягко -
текучепластичной консистенции, с гнездами ожелезнения, с прослойками песка.
Освоенность территории
Постоянные дороги - городского назначения.
Основные поставщики материалов - предприятия стройиндустрии области:
бетонная смесь - завод ЖБИ,
арматура - завод металлоизделий,
песок - карьер,
строительными механизмами - ДСК.
Источником покрытия потребности в рабочей силе являются кадровые рабочие
ООО «Стройиндустрии».
4.1.3 Подготовительный период
Строительство проектируемого объекта в 2 периода: подготовительный и
основной. В состав подготовительного периода входят работы, связанные с
подготовкой строительной площадки. Создание геодезической разбивочной основы
для строительства - разбивка основных осей, вынесение красных линий и т.д.
Освоение строительной площадки: расчистка территории строительства, снос
строений, неиспользуемых в процессе строительства.
Монтаж инвентарных зданий и установок, создание общескладского хозяйства.
Инженерная подготовка территории строительства - планировка участка,
обеспечивающая организацию временных стоков поверхностных вод, срезка растительного
грунта со складированием в отведенные места для последующего использования под
озеленение площадки, устройства внутриплощадочных дорог, прокладка сетей,
водоснабжения, электроснабжения, канализации, теплоснабжения, телефонной линии.
Планировочные работы и перемещение грунта по площадке выполнить
бульдозером.
Временная дорога, обеспечивающая подъезд, к строительной площадке
грунтовая уплотненная щебнем, ширина дороги - 3,5 м. Временные дороги
устраиваются в зоне действия монтажного крана.
Временное освещение территории строительства предусматривается
светильниками на опорах, прожекторами, установленными на инвентарных мачтах и
башенных кранах. Временное освещение в соответствии с ГОСТ [1].
Во избежание доступа посторонних лиц строительная площадка должна быть
ограждена. Конструкция ограждения должна удовлетворять требованиям ГОСТ [2].
Ограждения, примыкающие к местам массового прохода людей, вдоль тротуара,
необходимо оборудовать сплошным защитным козырьком.
У въезда на строительную площадку необходимо установить дорожные знаки
ограничения скорости движения автотранспорта и предупреждения о въезде и входе
в опасную зону.
Складирования материалов и конструкций необходимо выполнять в
соответствии с требованиями технических условий и стандартов на материалы,
изделия и конструкции на выровненных площадках, принимая меры против
самопроизвольного смещения, просадки и раскатывания материалов и конструкций.
Работы по прокладке инженерных коммуникаций вести с соблюдением
требований СНиП [1], [2], [3], [4] . При организации строительной площадки
должны соблюдаться требования СНиП [5].
4.1.4 Основной период строительства
Основной период строительства делится на три стадии:
. Устройство подземной части здания.
. Устройство надземной части здания.
. Отделочные работы.
Устройство подземной части здания.
При производстве работ по устройству оснований и фундаментов зданий и
сооружений всех видов следует руководствоваться СНиП [6], СНиП [7].
К производству земляных работ можно приступать только после разбивки
котлованов, траншей, земляных сооружений, привязки осей и высотных отметок на
имеющейся геодезической основе и закрепления необходимых разбивочных знаков.
Отрыв траншей коммуникаций и земляные работы по отрывке траншей и
котлованов выполнять экскаватором ДЗ-18 с ковшом вместимостью 0,4 м3.
Возведение подземной части здания рекомендуется выполнять краном
КБ-405.1А-02, позволяющим монтировать все элементы и подачу материала с бровки
котлована.
При устройстве фундаментов необходимо контролировать глубину их
заложения, размеры и расположение их в плане, устройство отверстий и ниш,
выполнение гидроизоляции и качество применяемых материалов и конструкций.
Земляные работы выполняются в соответствии с требованиями СНиП [6]
«Пособие по производству работ при устройстве оснований и фундаментов» и СНиП
[5].
До начала земляных работ необходимо:
уточнить на месте застройки наличие действующих подземных сетей и
коммуникаций,
получить от соответствующих организаций и служб письменное разрешение на
производство земляных работ.
Площадка строительства до начала работ должна быть ограждена от
поступления поверхностных вод путем устройства открытых водоотводных канав с
последующим устройством ливневых колодцев.
При выполнении вертикальной планировки производится срезка
почвенно-растительного грунта, который используется для устройства газонов.
Обратную засыпку котлованов и траншей предусматривается выполнять
бульдозером ДЗ-8 с послойным уплотнением. Запрещается выполнять обратную
засыпку мерзлым грунтом.
При производстве работ по устройству оснований и фундаментов зданий и
сооружений следует руководствоваться СНиП [6].
Возведение подземной части здания рекомендуется выполнять краном СКГ-40,
позволяющим монтировать все элементы и подачу материала с бровки котлована.
Фундаменты запроектированы сборные железобетонные из фундаментных плит и
фундаментных блоков.
Ленточные фундаменты монтируются на песчаную подготовку с проверкой
отметок основания по визиру; установка маячных блоков предусмотрена по
нивелиру, а для установки рядовых блоков натягивают причалку.
Состав работ: приготовление постели из раствора или частичное
выравнивание готового гравийного основания; установка фундаментных плит
(блоков), выверка правильности установки блоков, заделка швов раствором между
блоками.
При устройстве фундаментов необходимо контролировать глубину их
заложения, размеры и расположение их в плане, устройство отверстий и ниш,
выполнение гидроизоляции и качество применяемых материалов и конструкций.
Устройство надземной части здания.
Возведение надземной части здания рекомендуется производить краном
КБ-504. Этот же кран используется для разгрузки материалов с автотранспорта.
При монтаже надземной части здания необходимо руководствоваться СНиП [5],
СНиП [7].СНиП [8], СНиП [9], СНиП [11],
Монтаж здания осуществляется методом наращивания. Для монтажа конструкций
здания предусмотрено использовать типовую монтажную оснастку, позволяющую
осуществлять подъем, временное крепление и выверку элементов. Сборные перемычки
укладываются по ходу кладки. Разность высот возводимой кладки на смежных
участках и при кладке примыканий наружных и внутренних стен не должна превышать
высоты этажа.
Плиты перекрытий должны монтироваться после возведения стен очередного
этажа на выровненное, очищенное от мусора основание с установкой всех анкеров и
связей, предусматриваемых проектом, замоноличивание стыков, устройства
монолитных участков. После возведения коробки здания можно приступать к
устройству кровли. Кровля стропильная по деревянной обрешетке. Покрытие кровли
выполнено из листов оцинкованной кровельной стали. Одновременно с кровлей можно
устанавливать оконные и дверные блоки. После этого можно приступать к
отделочным работам. Отделочные работы делятся на следующие циклы:
штукатурные работы;
подготовка под окраску, оклейку и окраска, оклейка поверхности;
устройство чистых полов;
окончательная отделка и окраска поверхностей.
Общая готовность здания к началу работ должна соответствовать требованиям
СНиП [9].
Производство штукатурных и облицовочных работ организуется
поточно-расчлененным методом, что обеспечивает наиболее полное использование
рабочих по их квалификации.
Раствор и штукатурку на отделываемые поверхности наносят механизированным
способом. Нанесение раствора вручную допускается лишь в небольших помещениях и
при малом объеме штукатурных работ.
Водные составы для окраски стен и потолков рекомендуется наносить
механизированным способом.
Масляную окраску стен и столярных изделий производить валиком и
кистями-ручниками.
Качество применяемых отделочных материалов (краски, лаки, шпаклевки) должны
удовлетворять требованиям СНиП [9].
Состав работ (при улучшенном оштукатуривании): Провешивание поверхности,
нанесение обрызга, нанесение грунта с разравниванием, затирка поверхности с
разделкой углов, нанесение накрывного слоя.
Перечень актов освидетельствования на скрытые работы:
- Акты сдачи-приемки геодезической разбивочной основы для
строительства и на геодезические разбивочные работы для прокладки инженерных
сетей.
- Акт освидетельствования грунтов основания фундаментов.
- Акт геодезической разбивки осей здания.
- Акт на устройство песчаной подушки под фундаменты.
- Акт на работы по подготовке основания фундаментов.
- Акт на армирование фундаментов.
- Акт на гидроизоляцию фундаментов.
- Акт на монтаж блоков стен подвала.
- Акт на вертикальную гидроизоляцию.
- То же, горизонтальную.
- Акт на монтаж всех железобетонных и металлических элементов.
- Акт освидетельствования опалубки перед бетонированием.
- Акт на армирование кирпичной кладки.
- Акт на кирпичную кладку стен и перегородок.
- Акт на кирпичную кладку стен и перегородок, возводимых в
зимнее время.
- Акт на устройство монолитных железобетонных конструкций,
выполняемых в зимнее время.
- Акт на устройство тепло-, звуко-, пароизоляции.
- Акт на устройство борозд, ниш и каналов в стенах.
- Акт на устройство оконных и дверных блоков.
- Акт на устройство крылец.
- Акт на устройство обмазочных, окрасочных огнезащитных
покрытий.
- Акт приемки фасадов зданий.
- Акт на устройство стяжки под кровлю.
- Акт на устройство рубероидного ковра (отдельный акт на каждый
слой мягкой кровли).
- Акт на установку всех отделок на фасадах, в уровне кровли.
- Акт по бетонированию монолитных участков перекрытий и
покрытий.
- Акт приемки электротехнических работ по устройству внутренних
и наружных сетей.
- Акт на устройство наружного освещения.
- Акт промежуточной приемки каждого этажа зданий и сооружений
повышенной этажности, монтируемых из сборных железобетонных или металлических
элементов.
4.2 Стройгенплан
Строительный генеральный план, являясь важным документом после НИР,
влияет на эффективность организации производства, поскольку в нем решаются
вопросы размещения и транспортировки строительных конструкций и материалов,
размещение и использование строительных и монтажных механизмов, что отражается
на производстве труда и себестоимости работ.
Стройгенплан разработан на основании архитектурно-строительного генплана
объекта, согласно технике безопасности в строительстве.
При проектировании стройгенплана предусмотрено:
ограждение строительной площадки;
наличие временной дороги, с двумя выездами и въездами;
пересечение дорог с ЛЭП выполнено под прямым углом;
размещение четырех пожарных гидрантов на расстоянии < 150м друг от
друга, не далее 2м от дороги с твердым покрытием;
размещение складских площадок в зоне действия крана.
На стройгенплане показано наиболее целесообразное размещение временных
зданий, которые обеспечивают рабочих водоснабжением, теплоснабжением и т.д.
Электроснабжение осуществляется за счет трансформаторной подстанции,
установленной на объекте.
Выбор крана выполнен согласно требованиям техники безопасности в
строительстве.
4.3 Расчет потребности во временных зданиях и сооружениях
Потребность во временных зданиях и сооружениях приведена в таблице 4.3.
Таблица 4.3 -
Расчет площадей временных зданий и сооружений
|
Наименование зданий и
сооружений
|
Расчетная численность
персонала
|
Нормы на 1 человека
|
Требуется
|
Принято
|
|
всего
|
% одновременно пользующихся
|
Ед. изм.
|
Кол-во
|
Ед. изм.
|
Кол-во
|
Марка
|
Кол-во
|
|
1
|
2
|
3
|
4
|
5
|
6
|
7
|
8
|
9
|
|
1. Проходная
|
-
|
-
|
9 9Вагончик
3х31
|
|
|
|
|
|
|
2. Контора прораба
|
2
|
100
|
5 10Вагончик
3х61
|
|
|
|
|
|
|
3. Медицинское помещение
|
-
|
-
|
12 12Вагончик
3х61
|
|
|
|
|
|
|
4. Помещение для приема
пищи
|
48
|
30
|
1 14,4Вагончик
3х61
|
|
|
|
|
|
|
5. Помещение для обогрева
|
48
|
100
|
0,1 4,8Вагончик
3х31
|
|
|
|
|
|
|
6. Кладовая
|
-
|
-
|
15 15Вагончик
3х61
|
|
|
|
|
|
|
7. Помещение для сушки и
обеспылевания одежды
|
48
|
50
|
0,2 4,8Вагончик
3х31
|
|
|
|
|
|
8.
Туалет 48 100 1 очко 1 очко 20 чел 2
1 очко
очко3
|
6Вагончик 3х31
|
|
|
|
|
|
|
9. Гардеробные с
умывальными
|
48
|
70
|
0,5 16,8Вагончик
3х91
|
|
|
|
|
|
10.
Душевые 48 30 1 рожок 1 рожок 8 чел 4
1 рожок
рожок2
Примечание:
Медицинское помещение должно иметь отдельный вход; помещение личной
гигиены женщин - кабина с гигиеническим душем, размещается в женском туалете,
поскольку количество работающих женщин до 100 человек.
4.4 Расчет потребности в коммунальном обеспечении
.4.1 Расчет потребности в электроэнергии
Электроэнергия при строительстве расходуется:
- на питание силовых потребителей;
- технологические нужды;
- внутреннее освещение зданий и сооружений;
- наружное освещение строительной площадки, дорог и т.д.
Требуемая мощность трансформатора для строительной площадки определяется:
, кВт,
(4.1)
Где 1,1 - коэффициент, учитывающий потери в сети;
к1, к2, к3, к4 - коэффициенты спроса, учитывающие несовпадение нагрузок:
к1 = 0,36 - среднее для механизмов; к2 = 0,7; к3 = 0,8; к4 = 1;
- сумма
мощностей силовых потребителей, кВт;
- сумма
мощностей аппаратов, участвующих в технологических процессах, кВт;
- сумма
мощностей приборов внутреннего и наружного освещения, кВт;
,
коэффициент мощности
-
коэффициент мощности, зависящий от загрузки потребителей.
Потребители электроэнергии приведены в таблице 4.4
Таблица 4.4 - Потребители электроэнергии
|
Наименование
|
Мощность, кВт
|
|
1
|
2
|
|
Технологические
потребители: вибратор глубинный И-18 сварочный аппарат ТД-300
электрокраскопульт СО-61 растворонасос СО-496 виброрейка СО-47 машина для
острожки деревянных полов СО-40 полотерная машина СО-37
|
0,8 20 0,27 4,0 0,6 1,5
1,1
|
|
Итого:
|
28,27
|
|
Наружное освещение:
прожектор ПКН-1000 с лампой ПЖ-53 Внутреннее освещение: - помещения временные
|
4 20,9
|
|
Итого:
|
24,9
|
|
Силовые потребители: кран
КБ 504
|
204,4
|
|
Итого:
|
204,4
|
= 149,11
кВт
Трансформаторную
подстанцию комплектовать как минимум двумя трансформаторами, один из которых
меньшей мощности.
Подбираем 2 трансформатора, мощность которых близка к расчетной, КТПМ -
100 кВт, КТПМ - 63 кВт.
Сечение проводов во временной электросети:
(4.2)
где Руч - сумма мощностей потребителей на рассмотренном участке сети,
кВт;
L -
длина участка, м;
q -
удельная проводимость материала провода:
медь - 57, алюминий - 34,5, сталь - 20;
U -
номинальное напряжение : для силовых - 380В, освещение -220В;
= 3,43
мм2 (4.3)
принимаем
диаметр 4 мм2
= 1,44
мм2 (4.4)
принимаем
диаметр 4 мм2
4.4.2 Расчет потребности в тепле
Тепло на строительной площадке используется на отопление зданий или
технические нужды.
Общая потребность тепла для строительных нужд определяется:
,
кДж/час, (4.5)
гдеQ1 -
расход тепла на отопление зданий, кДж/час;
Q2 - расход
тепла на технологические нужды, кДж/час;
к1
= 1,5 - коэффициент, учитывающий потери в сети;
к2
= 1,2 - коэффициент на учтенные расходы тепла.
, кДж/час, (4.6)
где
а - коэффициент, зависящий от расчетной температуры наружного воздуха
tн ³ - 10 0С Þ а = 1,2;
tн ³ - 20 0С Þ а = 1,1;
tн ³ - 30 0С Þ а = 1.
q - удельная
тепловая характеристика здания
V - объем здания
по наружному обмеру, м3
tв и tн
-расчетная температура внутри помещения и наружного воздуха
Q2 = 0 - зависит
от времени, вида и объема работ.
Q1 = 1,1 × 1,6 × 29564,1 × (20 - (-
28) = 2497,6 МДж/час
Qобщ = (2497,6 + 0)
× 1,5 × 1,2 = 4495,68 МДж/час
4.4.3 Расчет потребности в сжатом воздухе
Требуемая мощность компрессорной установки:
Q = 1,3 × Sq
× к, м3/мин (4.7)
где Sq - суммарный расход воздуха
приборами;
,3 - коэффициент, учитывающий потери в сети;
к - коэффициент одновременно работающих аппаратов
при 1 аппарате к = 1
- 3 к = 0,9
- 6 к = 0,8
Q =
1,3 × 2,5× 0,9 = 2,93 м3/мин
Принимаем компрессоры ПКС-3М - 3 шт.
Определяем Ø подводящих шлангов:

= 5,0 см
(4.8)
4.4.4 Расчет потребности в воде
Вода на строительной площадке используется на хоз-бытовые и произ-
водственные нужды и пожаротушения.
Р = Рпож + 0,5(Рб + Рпр), л/сек, (4.9)
гдеРпож = 10 л/сек - зависит от площади застройки: до 30 Га - 10 л/сек,
до 50 Га - 20 л/сек,
, л/сек,
(4.10)
где
- расход воды для принятия душа;
- расход
воды для умывания, приготовления пищи и др.
,
л./сек, (4.11)
гдеN - расчетная численность персонала строительства;
а - норма потребления на принятие душа 1 чел/день, при отсутствии
канализации а = 30-40 л., при ее наличии 80 л;
к1 = 0,3-0,4 - коэффициент, учитывающий количество моющихся,= 0,75 часа -
время работы душевой установки, в ч.
, л/сек, (4.12)
гдеb = 10-15 л - норма водопотребления на 1-го человека в смену при
отсутствии канализации; при ее наличии - 20-25 л;
n -
продолжительность смены, в часах;
к2 = 1,2-1,3- коэффициент неравномерности потребления воды.
Расход воды на производственные нужды:
, л/сек,
(4.13)
Где 1,2 - коэффициент на неучтенные потребности;
к3 = 1,3-1,5 - коэффициент неравномерности водопотребления;
= 281,5
л.суммарный расход воды в смену в метрах по норме.
Диаметр трубы временного трубопровода определяется:
, м,
(4.14)
где Р - требуемый расход воды для нужд строительства, л/с
;
м/с -
скорость движения воды по трубопроводу РБ/ = 35∙35∙0,3/0,75∙3600
= 0,14 л/сек.
РБ = 35∙15∙1,2/8,2∙3600 = 0,021 л/сек.
РПОЖ = 10 л/сек;
РБ = 0.14 + 0,021= 0,161 л/сек.
л/сек;
Р
= 10 + 0,5(0,161 + 0,05) = 10,11 л/сек.
.
Принимаем диаметр трубопровода 100 мм для подачи воды на площадку (ГОСТ
3262-75 с изм.).
4.4.5 Расчет потребности в транспортных средствах
Требуемое количество маш.-см. работы автотранспорта:
, м-см
(4.15)
где
Q - количество перевозимого однородного вида груза, т;
Рсм
= пр × q × кгр −
сменная производительность транспортной единицы, т/см;
пр
- количество рейсов в смену
q - паспортная
грузоподъемность машины, т
кгр
- коэфф. использования грузоподъемности машины в зависимости от вида груза, в
данном случае равен 1.
(4.16)
где
Т = 8,2- продолжительность смены
tпр -
нормативное время погрузоразгрузочных работ, в час, примем 0,62(час)
L - расстояние
перевозки, км. Принимаем L=10 км
V = 20 км/ч -
средняя скорость движения в условиях города,
Перевозка фундаментных плит:
Перевозка фундаментных блоков:
Перевозка кирпича:
Перевозка плит перекрытия:
Принимаем 3 автомашины ЗИЛ 555, грузоподъемность которой 9 т.
4.5 Расчет площадей складирования материала, изделий и конструкций
Требуемая площадь склада для хранения однородного материала определяется:
(4.17)
Где q - подлежащий хранению запас
однородного материала в натуральных единицах;
r - Норма
хранения материала на 1
площади;
-
коэффициент, учитывающий проходы на складах.
Запас однородных материалов, подлежащих хранению:
(4.18)
Где Q - количество однородных материалов,
необходимых для строительства в натуральных единицах;
t -
Продолжительность работ с использованием данного вида материала, дни (по
графику);
n -
норма запаса материалов в днях, зависит от вида транспорта (для автомобильного
транспорта - 3 дня);
k =
1,2 - коэффициент неравномерности снабжения.
Количество и типы складов для основных материалов и конструкций
определено с учетом материалов нормативов.
Расчет площадей складов ведем в табличной форме (таблица 4.4)
Таблица 4.4 - Расчет площадей складов
|
Наименование
|
Ед.изм.
|
Qобщ
|
Т
|
п
|
Qзап
|
q
|
k
|
S
|
Способ хранения
|
|
1
|
2
|
3
|
5
|
6
|
7
|
8
|
9
|
10
|
|
Бетонные блоки фундамента
|
м3
|
430.3
|
12
|
2
|
17.93
|
2.95
|
0.7
|
8.68
|
открытый
|
|
Плиты перекрытия
|
м 2
|
7088
|
73
|
2
|
48.55
|
0.5
|
0.7
|
138.71
|
открытый
|
|
Оконные и дверные блоки
|
м 2
|
2475
|
17.5
|
2
|
70.71
|
45
|
0.5
|
3.14
|
под навесом
|
|
Плиты теплоизоляцион.
|
м2
|
925
|
10
|
2
|
46.25
|
1
|
0.5
|
92.50
|
под навесом
|
|
Кирпич
|
м3
|
3814
|
182
|
2
|
10.48
|
1.8
|
0.5
|
11.64
|
под навесом
|
|
Линокром
|
м 2
|
925
|
6
|
2
|
77.08
|
200
|
0.5
|
0.77
|
под навесом
|
|
Керамическая плитка
|
м 2
|
5412
|
17.5
|
2
|
154.63
|
80
|
0.5
|
3.87
|
под навесом
|
|
Линолеум
|
м 2
|
4242
|
5.5
|
2
|
385.64
|
100
|
0.4
|
9.64
|
закрытый
|
|
Стекло
|
м 2
|
38500
|
6.5
|
2
|
2961.5
|
200
|
0.4
|
37.02
|
закрытый
|
Итого: Sнавеса=111,92м2; Sзакр.= 46,66м2; Sоткр.= 147,39м2
4.6 Технико-экономические показатели
Таблица 4.5 - Технико-экономические показатели
|
Наименование
|
Ед. изм.
|
Колич.
|
|
1
|
2
|
3
|
|
Площадь участка
|
м2
|
12520
|
|
Площадь застройки
|
м2
|
3504,2
|
|
Площадь временных зданий
|
м2
|
126
|
|
Площадь складов
|
м2
|
1795
|
|
Протяженность ограждения
|
м
|
528,15
|
|
Протяженность временной
электросети
|
м
|
492,44
|
|
Протяженность временного
водопровода
|
м
|
86,73
|
|
Протяженность временных
дорог
|
м
|
333,15
|
|
Нормативная
продолжительность строительства
|
дн
|
330
|
5. БЕЗОПАСНОСТЬ ЖИЗНЕДЕЯТЕЛЬНОСТИ
5.1 Охрана труда при
проведении высотных работ. Особенности оформления допуска технологической карты
высотных работ
К работе на высоте относятся работы, при выполнении
которых работник находится на расстоянии менее 2 м от неогражденных перепадов
по высоте 1,3 м и более . Верхолазными считаются работы, выполняемые на высоте
более 5 м от поверхности земли, перекрытия или рабочего настила, над которыми
производятся работы непосредственно с конструкций или оборудования при их
монтаже или ремонте; при этом основным средством, предохраняющим работников от
падения, является предохранительный пояс.
К самостоятельной работе на высоте допускаются лица не
моложе 18 лет, прошедшие медицинское освидетельствование и не имеющие
противопоказаний к выполнению работ на высоте, вводный инструктаж, первичный
инструктаж, обучение и стажировку на рабочем месте, проверку знаний требований
охраны труда и по правилам безопасности при работе на высоте и получившие
допуск на право выполнения этой работы.
К выполнению самостоятельных верхолазных работ
допускаются лица не моложе 18 лет, прошедшие медицинское освидетельствование и
не имеющие противопоказаний к выполнению верхолазных работ, вводный инструктаж,
первичный инструктаж, обучение и стажировку на рабочем месте, проверку знаний
требований охраны труда, имеющие стаж верхолазных работ не менее одного года.
Работники, впервые допускаемые к верхолазным работам, в течение одного года
должны работать под непосредственным надзором опытных работников, назначенных
приказом (распоряжением) по филиалу.
5.1.1 Обязанности работника,
допущенного к работе на высоте
Работник обязан:
Выполнять только ту работу, которая определена рабочей
или должностной инструкцией;
- Выполнять правила внутреннего трудового распорядка;
Правильно применять средства индивидуальной и
коллективной защиты;
Соблюдать требования охраны труда;
- Немедленно извещать своего непосредственного или
вышестоящего руководителя о любой ситуации, угрожающей жизни и здоровью людей,
о каждом несчастном случае, происшедшем на производстве, или об ухудшении
состояния своего здоровья, в том числе о проявлении признаков острого
профессионального заболевания (отравления);
Проходить обучение безопасным методам и приемам
выполнения работ и оказанию первой помощи пострадавшим на производстве,
инструктаж по охране труда, проверку знаний требований охраны труда;
Проходить обязательные периодические (в течение
трудовой деятельности) медицинские осмотры (обследования), а также проходить
внеочередные медицинские осмотры (обследования) по направлению работодателя в
случаях, предусмотренных Трудовым кодексом и иными федеральными законами;
Уметь оказывать первую помощь пострадавшим от
электрического тока и при других несчастных случаях;
Уметь применять первичные средства пожаротушения.
5.1.2 Вредные
производственные факторы при работе на высоте
При работе на высоте возможны воздействия следующих
опасных и вредных производственных факторов:
Расположение рабочего места на значительной высоте
относительно поверхности земли (пола, перекрытия) и связанное с этим возможное падение
работника или падение предметов на работника;
Разрушающиеся конструкции (лестницы, стремянки, леса,
подмости и другое вспомогательное оборудование);
Повышенное скольжение (вследствие обледенения,
увлажнения, замасливания поверхностей грунта, пола, трапов, стремянок, лестниц,
лесов, подмостей и т. п.);
Движущиеся машины и механизмы;
Повышенная скорость ветра (при работе на открытом
воздухе);
Повышенное значение напряжения в электрической цепи,
замыкание которой может произойти через тело человека;
Повышенная или пониженная температура воздуха рабочей
зоны;
Острые кромки, заусенцы и шероховатость на
поверхностях заготовок, инструментов и оборудования;
Недостаточная освещенность рабочих мест;
Физические перегрузки.
Для защиты от опасных и вредных факторов работник
должен быть обеспечен спецодеждой, спецобувью и другими средствами
индивидуальной защиты в соответствии с Типовыми отраслевыми нормами бесплатной
выдачи специальной одежды, специальной обуви и других средств индивидуальной
защиты и Коллективным договором.
Работы на высоте в открытых местах запрещаются:
во время грозы;
при температуре наружного воздуха ниже нормы,
установленной местными органами самоуправления;
при силе ветра 10-12 м/сек и более;
при сильном снегопаде или тумане;
при гололеде.
Исключение допускается при ликвидации аварий. В этом
случае руководитель работ обязан организовать средства для обогрева.
В случаях травмирования или недомогания необходимо
прекратить работу, известить об этом руководителя работ и обратиться в
медицинское учреждение.
За невыполнение данной инструкции виновные
привлекаются к ответственности согласно законодательства Российской Федерации.
5.2 Требования охраны труда
перед началом работы
Прежде чем приступать к работе на высоте следует
осмотреть место предстоящей работы и привести его в порядок; если оно
загромождено ненужными предметами, мешающими в работе, необходимо привести его
в порядок и убрать все лишнее.
Перед началом работы работник должен осмотреть
инструмент, приспособления, вспомогательное оборудование, которые будут
использоваться в работе, и убедиться и их исправности, а также проверить сроки
очередных испытаний стремянок, лестниц, лестниц-стремянок.
Применяемые при работе на высоте средства
индивидуальной защиты проверяются и приводятся в готовность до начала рабочего
процесса, в том числе:
Перед пользованием предохранительным поясом нужно
убедиться в том, что он своевременно испытан на прочность, и проверить его
исправность. При этом карабин предохранительного пояса должен быть снабжен
предохранительным устройством, исключающим его случайное раскрытие, и
обеспечивать быстрое (не более 3 секунд) и надежное закрепление и открепление
одной рукой при надетой утепленной рукавице.
Кроме того, предохранительный пояс должен быть
отрегулирован по длине, и обеспечивать обхват талии.
Перед пользованием каской для защиты головы внешним
осмотром она проверяется на отсутствие повреждений корпуса и внутренней
оснастки.
5.3 Основные общие
требования, предъявляемые к организации рабочего места
Работник должен знать следующие основные общие
требования, предъявляемые к организации рабочего места и подготовке работ на
высоте:
Рабочие места и проходы к ним на высоте 1,3 м и более
и на расстоянии менее 2 м от границы перепада по высоте ограждаются временными
инвентарными ограждениями высотой не менее 1,1 м в соответствии с
установленными требованиями;
При невозможности применения предохранительных
ограждений или в случае кратковременного периода нахождения работников на
высоте допускается производство работ с применением предохранительного пояса;
Технологические проемы, проемы и отверстия в настилах,
лифтовые шахты и т.п. места возможного падения работников должны надежно
закрываться или ограждаться и обозначаться знаками безопасности;
При выполнении работ на высоте внизу под местом
производства работ определяются и соответствующим образом обозначаются и
ограждаются опасные зоны;
Перед работой вблизи токоведущих частей, находящихся
под напряжением и не защищенных от случайного прикосновения к ним, напряжение
должно быть отключено; при этом у выключающего устройства должен быть вывешен
предупредительный знак: "Не включать! Идут работы!".
Организация рабочего места должна обеспечивать
устойчивое положение и свободу движения работника, визуальный контроль и
безопасность выполнения технологических операций.
При этом должно быть исключено (или допущено на
кратковременный период) выполнение работы в неудобных позах (при значительных
наклонах, приседании, с вытянутыми или высокоподнятыми руками и т.п.),
вызывающих повышенную утомляемость;
Личный инструмент должен находиться в сумках.
Во время проверки исправности и устойчивости стремянок
и лестниц следует помнить о следующем:
Стремянки, как правило, должны иметь высоту ограждения
рабочих площадок не менее 1 м.
Нижняя опорная часть стремянок, лестниц должна иметь
противоскользящие устройства (заострения, резиновые наконечники и т.п.).
Ступеньки стремянок должны иметь рифленую поверхность,
содержаться в состоянии, исключающем поскальзывание и падение работника.
Приставные лестницы и лестницы стремянки перед
применением осматриваются работником на исправность и соответствие их следующим
основным требованиям:
На всех лестницах и лестницах-стремянках, находящихся
в эксплуатации, указывается инвентарный номер, дата следующего испытания и принадлежность
подразделению (цеху, участку и т.п.);
Длина приставных лестниц не должна превышать 5 м; при
этом ширина лестницы вверху должна быть не менее 300 мм, а внизу - не менее 400
мм;
Тетивы деревянных лестниц должны быть скреплены
стяжными болтами диаметром не менее 8 мм под верхней и нижней ступенями; при
длине лестницы свыше 2 м должны быть установлены дополнительные болты таким
образом, чтобы расстояние между ними не превышало 2 м.
Ступени деревянных лестниц должны быть врезаны в
тетивы, применять лестницы со ступенями, нашитыми гвоздями, запрещается;
расстояние между ступенями должно быть не более 250 мм и не менее 150 мм.
5.4 Требования охраны труда
во время работы
Все работы на высоте должны выполняться в соответствии
с технологической документацией и правилами технической эксплуатации
применяемого оборудования, машин и механизмов, с соблюдением требований,
обеспечивающих защиту работника от воздействия опасных производственных
факторов.
Учитывая, что падения с высоты являются наиболее
распространенной причиной несчастных случаев на производстве, работнику
необходимо быть особенно внимательным и осторожным во время выполнения работы.
Работы на высоте должны производиться со специально
предназначенных для каждого вида работ и имеющих защитные ограждения
вспомогательных приспособлений (стремянок, лестниц, подмостей, вышек, платформ
и т.п.), которые следует устанавливать так, чтобы отсутствовала необходимость
перемещения центра тяжести работника за пределы рабочей площадки (габариты)
этих приспособлений.
При выполнении работы с применением предохранительного
пояса (кратковременная работа на высоте без защитных ограждений, либо в тех
случаях, когда их невозможно устроить), предохранительный пояс следует
прикреплять к местам, специально предусмотренным в конструкции; при отсутствии
узлов крепления для предохранительного пояса и невозможности закрепления стропа
предохранительного пояса за конструкцию, опору и т.п. необходимо применять
страховочный канат или пользоваться верхолазным предохранительным устройством.
При выполнении работ с применением приставных лестниц
и лестниц-стремянок следует соблюдать также следующие основные требования
безопасности:
При работе с приставной лестницей в местах с
оживленным движением транспортных средств или людей для предупреждения ее
падения от случайных толчков независимо от наличия на концах лестницы
наконечников место ее установки следует ограждать или охранять;
В случаях, когда невозможно закрепить лестницу при
установке ее на гладком полу, у ее основания должен стоять работник в каске и
удерживать лестницу в устойчивом положении. В остальных случаях поддерживать
лестницу внизу руками не допускается;
Устанавливать дополнительные опорные сооружения из
ящиков, бочек и т.п. в случае недостаточной длины лестницы не допускается;
Нельзя устанавливать приставные лестницы под углом
более 75° к горизонтали без дополнительного крепления их верхней части.
Не допускается установка лестниц на ступенях маршей
лестничных клеток. Для выполнения работ в этих условиях следует применять подмости,
ножки которых имеют разную длину для обеспечения горизонтального положения
рабочего настила.
Приставные лестницы без рабочих площадок допускается
применять только для выполнения работ, не связанных с одновременным
поддержанием деталей и не требующих от работника упора в строительную или
другую конструкцию, к которой приставлена лестница.
При необходимости выполнять работы с одновременным
поддерживанием деталей или связанные с необходимостью упора в конструкцию
следует применять лестницы, лестницы-стремянки с верхними площадками,
огражденными с трех сторон предохранительным барьером (перилами).
Работать с двух верхних ступенек лестниц и
лестниц-стремянок, не имеющих перил или упоров, не допускается;
Находиться на ступенях приставной лестницы или лестницы-стремянки
более чем одному работнику не допускается;
При работе с приставной лестницы на высоте более 1,3 м
надлежит применять предохранительный пояс, прикрепляемый к конструкции
сооружения или к лестнице при условии ее закрепления к строительной или другой
конструкции;
Поднимать и опускать груз по приставной лестнице и
оставлять на ней инструмент не допускается. Для подъема (спуска) по лестницам
предметов массой менее 10 кг следует использовать наплечные сумки;
Запрещается работать на приставной лестнице или
лестнице-стремянке без верхней площадки, не имеющей ограждения, в следующих
случаях:
около и над вращающимися механизмами, работающими
машинами, транспортерами и т.п.;
с использованием электрического или пневматического
инструмента, строительно-монтажных пистолетов;
при выполнении электро- или газосварочных работ;
при воздействии на работника сил, создающих
опрокидывающий момент (например, при натяжении проводов, поддержания на высоте
тяжелой детали и т.п.);
При перемещении лестницы двумя работниками лестницу
необходимо нести наконечниками назад, предупреждая встречных об осторожности.
При переноске лестницы одним работником она должна находиться в наклонном
положении так, чтобы передний конец ее был приподнят над землей (полом) не
менее чем на 2 м.
Не допускается скопление работников в одном месте и
складирование материалов на настилах, лесах, подмостях, трапах и т.п. в
количествах, превышающих допустимые нагрузки (работники должны знать величину
этих допустимых нагрузок).
Подъем и опускание грузов массой более 20 кг
необходимо производить с помощью средств механизации.
Допускается подъем (спуск) на высоту грузов массой 20
кг и менее с помощью бесконечного каната либо веревки, длина которых должна
быть не менее тройной высоты подъема (спуска). При пользовании веревкой груз
привязывается к ее середине.
При работе на высоте со слесарно-монтажным
инструментом переносить его следует в сумках, подсумках, закрепленных на
предохранительном поясе, или в наплечных сумках.
При работе на конструкциях, под которыми расположены
находящиеся под напряжением токоведущие части, приспособления и инструмент,
применяемые при работе, во избежание их падения необходимо привязывать.
Во время перерывов в работе технологические
приспособления, материалы, инструмент и другие мелкие предметы, находящиеся на
высокорасположенном рабочем месте, должны быть закреплены или убраны во
избежание возможного их падения.
При скорости ветра 15 м/с, ухудшении видимости из-за
темноты или тумана, приближении грозы или проявлении гололеда выполнение работ
на высоте должно быть прекращено.
5.5 Требования охраны труда в
аварийных ситуациях
При возникновении аварий и ситуаций, которые могут
привести к авариям и несчастным случаям, необходимо:
Немедленно прекратить работы и известить руководителя
работ.
Под руководством руководителя работ оперативно принять
меры по устранению причин аварий или ситуаций, которые могут привести к авариям
или несчастным случаям.
При возникновении пожара, задымлении:
Немедленно сообщить по телефону «01» в пожарную
охрану, оповестить работающих, поставить в известность руководителя
подразделения, сообщить о возгорании на пост охраны.
Открыть запасные выходы из здания, обесточить
электропитание, закрыть окна и прикрыть двери.
Приступить к тушению пожара первичными средствами
пожаротушения, если это не сопряжено с риском для жизни.
Организовать встречу пожарной команды.
Покинуть здание и находиться в зоне эвакуации.
При несчастном случае:
Немедленно организовать первую помощь пострадавшему и
при необходимости доставку его в медицинскую организацию.
Принять неотложные меры по предотвращению развития
аварийной или иной чрезвычайной ситуации и воздействия травмирующих факторов на
других лиц.
Сохранить до начала расследования несчастного случая
обстановку, какой она была на момент происшествия, если это не угрожает жизни и
здоровью других лиц и не ведет к катастрофе, аварии или возникновению иных
чрезвычайных обстоятельств, а в случае невозможности ее сохранения
Зафиксировать сложившуюся обстановку (составить схемы,
провести другие мероприятия).
5.6 Требования охраны труда
по окончании работы
По окончании работы следует привести в порядок рабочее
место, спецодежду, убрать инструменты, приспособления, материалы и т.п.
Использованные при уборке тряпки, ветошь и другие
материалы следует сложить в специально отведенное место (например,
металлический ящик с закрывающейся крышкой).
Сообщить лицу, ответственному за производство работ,
обо всех недостатках, замеченных во время работы, и принятых мерах по их
устранению.
5.7 Документы, необходимые
для подготовки и проведения высотных работ
Акт-допуск - выдается и подписывается заказчиком. В
«тяжелых случаях» прораб, назначенный приказом, подписывает акт-допуск во всех
службах заказчика: охрана труда, пожарная охрана, охрана окружающей среды и
т.д., с указанием специфики работ и мер безопасности (огневые работы, работы на
высоте, используемая техника, уборка мусора и т.д.)
Акт приема-передачи фронта работ. Составляется между
Заказчиком и Подрядчиком.
Приказ о назначении ответственного (кто будет
инструктировать и подписывать все журналы, акты и наряды). У ответственного
должны быть действующие корочки по охране труда, если проводятся огневые работы
- корочки по пожарной безопасности.
Наряд-допуск - оформляет ответственный, назначенный
приказом (подписывает наряд-допуск начальник по ТБ/главный инженер/ген.
директор)
У всех высотников, сварщиков, электриков должны быть
действующие корочки по всем производимым видам работ.
Журналы по Т.Б. (с подписями за проведенный
инструктаж). Журнал инструктажа по Т.Б. лучше иметь новый на каждый объект. Все
журналы должны быть прошиты и с печатью.
5.8 Применение
технологической карты высотных работ
Технологическую карту разрабатывают на устройство и
применение средств подмащивания для организации рабочих мест на высоте при
отделке и ремонте фасадов жилых и общественных зданий.
Такие средства подмащивания включают леса
строительные-стоечные приставные (далее по тексту леса), механизированные
подъемники(далее подъемники), а также люльки подвесные(далее люльки).
Предназначена для персонала строительной организации,
занятого при отделке фасадов на строительстве, ремонте и реконструкции жилых и
общественных зданий.
В технологическую карту включены рациональные средства
подмащивания, применяемые для работы на высоте, которые представлены лесами
стоечными приставными, механизированными подъемниками и люльками с
электрическим приводом. Для наиболее распространенных лесов строительных с
хомутовыми соединениями приводятся правила их устройства и применения,
требования к комплектности поставки элементов лесов и потребность в
комплектующих материалах.
По всем представленным в карте средствам подмащивания
указывается область их применения, приводится их техническая характеристика,
решения по технике безопасности и контролю качества работ.
Технологическая карта выполняется в соответствии с
требованиями СНиП 12-03-2001 «Техника безопасности в строительстве» Ч.1 «Общие
требования» и СНиП 12-04-2002 «Техника безопасности в строительстве» Ч.2
«Строительное производство», норм по промышленной безопасности и ППБ - 01 - 93
«Правила пожарной безопасности в Российской Федерации».
6. ЭКОЛОГИЧНОСТЬ ПРОЕКТА
6.1 Организация вывоза твердых бытовых отходов
Все отбросы и отходы подразделяются на твердые, жидкие
и газообразные. К твердым городским отбросам относятся: мусор из жилищ и
общественных зданий, строительный мусор, отбросы торговых учреждений и
учреждений общественного питания, отходы промышленных и коммунальных
предприятий, уличный смет, снег лед и т. д. Жидкие отбросы - это бытовые
(хозяйственно-фекальные) сточные воды, стоки промышленных и коммунальных
предприятий, дождевые и талые воды. Газообразные - отходы от транспорта,
промышленных предприятий, котельных и пр.
Кроме того, отходы подразделяются на отходы
производства и отходы потребления, каждые из них, в свою очередь, состоят из
отходов используемых и неиспользуемых. Отходы потребления представляют собой
бывшие в употреблении или эксплуатации изделия и материалы, утратившие в
результате физического или морального износа свои основные свойства и
непригодные к дальнейшему использованию в том же качестве. Используемые отходы
возможно утилизировать в народном хозяйстве в качестве сырья, добавок к нему
либо использовать как топливо и органическое удобрение. К неиспользуемым
относятся отходы, которые в настоящее время не утилизируют из-за высокой
стоимости их переработки и экономической нецелесообразности, отсутствия спроса
на материал, получаемый из отходов, а также отсутствия в настоящее время
необходимого технологического оборудования. Неиспользуемые ТБО ликвидируют
путем захоронения на усовершенствованных свалках, сброса в выработанные шахты,
карьеры, сжиганием без использования тепла и т. д.
Основная масса твердых городских отбросов представляет
собой домовый мусор, состоящий из следующих компонентов: пищевые отходы;
макулатура; изношенные изделия, содержащие текстиль, резину, кожу; бывшая в
употреблении пластмасса и другие синтетические материалы; амортизированные
изделия из древесины, стеклобой, кости, амортизированные металлосодержащие
изделия, упаковочные материалы, тара, негодная к повторному употреблению; камни
и т. д.
Такое деление позволяет выявить из мусора материалы,
годные для дальнейшего использования в качестве вторичного сырья для
промышленности, и выбрать оптимальный метод обезвреживания мусора
(биотермическая переработка в удобрение или сжигание).
ТБО содержат в себе материалы органического и
неорганического происхождения, которые не могут быть использованы на месте, а
несвоевременное их удаление, накопление и хранение ведут к нежелательным
последствиям. Органические вещества способствуют (особенно летом) чрезвычайно
быстрому разложению отбросов, созданию благоприятной среды для размножения мух
и различных микроорганизмов, в том числе и болезнетворных. Бытовые отбросы содержат
большое количество легко загнивающих органических веществ повышенной влажности,
которые, разлагаясь, выделяют гнилостные запахи, жидкость, продукты неполного
разложения, в результате чего происходит загрязнение почвы, грунтовых вод.
Загрязняется окружающая городская среда, создаются условия для распространения
инфекционных заболеваний, нарушается общее санитарное состояние города.
Влажность ТБО в основном зависит от содержания в них
органических веществ и служит принципиальным показателем в процессе
проектирования и создания оборудования и устройств для сбора, транспортировки и
обезвреживания отбросов. Кроме того, влажность служит показателем
морфологического и химического состава отбросов.
В последние годы в составе ТБО произошли существенные
изменения. Увеличение процента бумаги и пищевых отходов (до 65-70%) на
абсолютно сухое вещество определяют целесообразность биотермической переработки
ТБО. В получаемом компосте велико содержание азота и кальция, что имеет
первостепенное значение для подзолистых кислых почв, так как улучшает их
структуру, снижает кислотность. В получаемом материале содержатся все виды
необходимых для растений микроэлементов. Особенно большой эффект дает
применение компоста в защищенном грунте. Биотопливо горит очень интенсивно и способно
ранней весной обогревать не только грунт, но и воздух теплиц. После отработки
оно используется в качестве органического удобрения в открытом грунте.
Опыт показывает, что в весенне-летний период
значительно увеличивается в ТБО процент стекла, битума и особенно камней. Это
происходит из-за увеличения ремонтных работ жилого фонда и попадания
строительного мусора в бытовые отходы.
Необходимо обратить внимание на категорию отбросов,
которые ожидаются в ближайшее время и в нашей стране. Речь идет о крупногабаритных
отбросах (старые автомобили, холодильники, кухонные плиты, мойки, мебель и т.
д.). Эта возрастающая группа отбросов требует особой организации их
складирования, транспортировки и т. д. Около 50% крупногабаритных вещей -
отходы из дерева. Поэтому одним из перспективных направлений переработки
подобных отходов является их дробление и сжигание с использованием тепла и
металла.
В мировой практике наиболее широкое распространение
получили следующие методы обработки ТБО: открытые свалки без надзора, закрытые
свалки с надзором, компостирование, прессовка, пиролиз, сжигание, комплексная
переработка ТБО на мусороперерабатывающих заводах.
На выбор метода обработки мусора влияют различные
факторы и среди них: состав, физико-механические свойства, химические и
микробиологические характеристики отбросов; характер конечного продукта и
возможность его использования, опасность загрязнения грунтовых вод,
атмосферного воздуха; наличие свободных территорий, протяженность маршрутов по
удалению мусора; размещения стоянок спецтранспорта, мусороперегрузочных
станций, предприятий по обезвреживанию и т. д.
На технологию и организацию сбора и удаления ТБО
влияют климатические условия, которые определяют специфику застройки, а
вследствие этого и размещение сборников, маршруты движения спецтранспорта,
сроки удаления отбросов.
Санитарная очистка жилых районов и микрорайонов от
твердых домовых отбросов представляет собой комплекс мероприятий по их сбору,
удалению, обезвреживанию и утилизации. Выбор систем сбора и хранения домовых
отбросов на территориях жилых районов и микрорайонов и удаления отходов за их
границы зависит от уровня благоустройства, этажности, типа застройки и пр.
Очистка жилых районов от твердых домовых отбросов
складывается из различных операций. В настоящее время нет единой системы, и
существует достаточно большое разнообразие различных способов и методов сбора,
удаления и обезвреживания твердых домовых отбросов.
Существуют два способа сбора: унитарный и раздельный.
При унитарном способе все отходы помещаются в одном квартирном мусоросборнике,
при раздельном ТБО собираются по видам в разные сборники. Эта схема требует
специальных транспортных средств для вывоза собранных ТБО, но позволяет
собирать сырье для вторичной переработки, пищевые отходы, значительно уменьшает
объемы отходов, требующих обезвреживания. В нашем случае применяется унитарный
способ.
Применяются две группы систем удаления твердых домовых
отбросов: с последующим вывозом отбросов мусоровозным транспортом и без
применения мусоровозов.
В настоящее время наибольшее распространение получили
системы первой группы, так называемый вывозной способ с использованием
специальных машин (мусоровозов) для удаления мусора на места обезвреживания. В
перспективе следует считать наиболее рациональным применение способов удаления
отбросов без использования мусоровозов. В нашем случае отходы удаляются при
помощи мусоровозов.
Сбор и удаление мусора в жилых районах подразделяется
на: сбор мусора в домах без мусоропроводов и в домах с мусоропроводом.
В жилых районах и микрорайонах, имеющих сборные пункты
для мусора, используются более крупные мусоросборники (контейнеры) емкостью до
800-1000 л. Заполненный контейнер с помощью автокрана грузят на мусоровоз
контейнерного типа, а на его место устанавливают привезенный чистый контейнер.
Это - система сменяемой посуды или контейнерной перевозки, она рациональнее
системы несменяемых сборников. Правильная ее организация позволяет сократить в
2,5-3 раза время на погрузку и уменьшить расход металла на 25-35% за счет
увеличения емкости сборников. Значительно улучшается санитарное состояние
дворов, поскольку отсутствует перегрузка мусора из сборников в мусоровозы.
Кроме того, рабочие не прикасаются к отходам, а санитарная обработка сборников
(мойка, дезинфекция) осуществляется вне микрорайонов. Производительность
контейнерных мусоровозов по сравнению с кузовными повышается на 10-15%.
Для удаления твердых домовых отбросов используют
специализированные машины различных типов и конструкций: МС-30, МВ-30, 93-М,
КММ-1, КММ-2, М-8, М-9, М-30, ГАЗ-54-М. В связи с тем, что твердые домовые
отбросы имеют малый объемный вес (400-600 кг/м3), уделяется большое внимание
увеличению полезного объема кузова мусоровозов. Такие мусоровозы, как 93-М,
585-М, ГАЗ-54-М оборудованы специальными устройствами (уплотнение мусора
толкающей плитой), позволяющими добиться уплотнения мусора до 1/3
первоначального объема. В настоящее время наметилась тенденция по созданию
большеемких мусоровозов, например ГАЗ-54-М емкостью 11 м3, М-30 с восемью
контейнерами общей емкостью 6 м3.
Дворовые сборники и контейнеры устанавливают в
микрорайонах на специальных площадках, которые размещают на хозяйственных
дворах, со стороны торцевых стен зданий или между зданиями, но с обязательным
ограждением зелеными насаждениями или невысокими стенками. Поскольку мусор, как
правило, вывозят в утренние часы, площадки для мусоросборников следует
располагать таким образом, чтобы производимый шум возможно меньше беспокоил
жителей.
Рис. - Виды контейнеров
Расстояние от подъездов зданий до площадки не должно
превышать 100 м. Размеры площадки устанавливают из расчета 1 - 1,5 м2 на один
сборник или контейнер. Площадки должны иметь асфальтовое покрытие и должны
размещаться таким образом, чтобы к ним был обеспечен удобный подход от зданий и
подъезд специального транспорта. Количество дворовых мусоросборников и
контейнеров зависит от объема домового мусора, подлежащего вывозу, и
определяется расчетом.
Срок хранения мусора, иными словами, период его
вывоза, принимается по санитарным нормам от одного до трех дней. В городах
России мусор вывозят ежедневно.
Для ориентировочных расчетов можно считать, что при
ежедневном вывозе мусора требуются два сборника емкостью по 80- 100 л на каждые
100 человек или один контейнер емкостью 750- 800 л на каждые 450-600 человек.
В последние годы разработаны и другие способы удаления
отбросов. Мусор из бункеров мусороприемных камер объемом до 6 м2 механически
подается непосредственно в мусоровоз. Передвигается мусор с помощью шнека с
электроприводом. Рукав, соединяющий шнек с мусоровозом, выполнен в виде гибкого
шланга. Применение этой системы значительно облегчает работу по погрузке мусора
в мусоровоз.
Несмотря на многообразие способов удаления домового
мусора, в настоящее время наибольшее распространение получил вывозной метод.
Для четкой и бесперебойной организации работ по вывозу домового мусора весь
город разбивается на районы, районы - на участки. На каждый участок
составляется график объезда его мусоровозным транспортом. Мусоровоз или контейнерная
машина имеет маршрутную карту работы на рабочий день. Маршрут движения машины
определяется длиной пути, числом пунктов загрузки и временем
погрузочно-разгрузочных работ. Загрузка машин во многих пунктах при небольшом
количестве сборников или контейнеров в каждом из них, а значит и частый переезд
машины от пункта к пункту приводят к большим непроизводительным затратам
времени работы машины.
В каждом городе создается парк мусоровозных машин,
являющихся материально-технической базой в санитарной очистке городских
территорий.
Типы мусоровозных машин определяют в соответствии с
системой сбора и удаления ТБО. При использовании контейнеров для сбора и вывоза
домового мусора перевозка их осущесвляется специальными контейнерными машинами,
которые монтируют на шасси грузовых автомобилей. Машины имеют платформы для
установки шести - восьми контейнеров и оборудованы подъемными кранами. Погрузка
и разгрузка контейнеров полностью механизированы. При погрузке с платформы
снимают и устанавливают на место один из порожних контейнеров, а заполненный
ставят на платформу. Опорожнение контейнеров происходит путем поворота
платформы в обе стороны на угол, при котором мусор высыпается. Количество машин
определяется объемом вывозимого мусора, периодичностью вывоза и производительностью
мусоровозного транспорта.
Обезвреживание твердых домовых отбросов является
последним этапом санитарной очистки городов. В процессе обезвреживания
уничтожаются болезнетворные микробы, малоустойчивые органические вещества
переходят в стойкие негниющие конечные продукты, а сложные органические
соединения разлагаются на более простые неорганические (соли, кислота, вода).
Обезвреживание твердых отбросов играет существенную
роль в охране окружающей среды, поскольку предотвращается загрязнение почвы, воздуха
и воды.
С целью сократить объем ТБО и уменьшить размеры
площади, требуемой для их хранения, производят размол или дробление. Размолотый
материал складируют на отведенных участках для естественного компостирования.
Ускорение процесса обезвреживания добиваются добавлением осадков сточных вод.
Присутствие стекла, синтетических материалов, камней, металла в этом случае не
позволяет использовать в дальнейшем получаемый компост, так как это приведет к
быстрому засорению почв при внесении удобрений.
Процесс обезвреживания включает подготовку ТБО к их
использованию в качестве удобрения в сельском хозяйстве (органической части
отходов) и в качестве вторичного сырья и утиля в промышленности.
Технология обезвреживания ТБО делится на:
биологическую - переработка органической части отходов с микроорганизмами
(свалка, компостирование);
термическую - сжигание (мусоросжигающие предприятия,
пиролиз) ;
химическую - гидролиз;
механическую - прессование.
Рассмотрим наиболее распространенные методы обработки
ТБО.
Открытые свалки - совершенно неприемлемый вид удаления
ТБО, имеет ограниченное распространение;
закрытые свалки под надзором - метод обезвреживания
отбросов, позволяющий в одном месте обезвреживать большое количество мусора,
добиваться относительно благоприятных условий в санитарном и эпидемиологическом
отношениях, но не позволяющий использовать полезные свойства ТБО. До последнего
времени такие свалки широко применяют в практике обезвреживания отбросов,
вывозя на них все виды твердых отбросов, не содержащих ядовитых и радиоактивных
веществ.
Устройство свалок не вызывает сложных работ и
относительно крупных капитальных затрат. Однако обезвреживание мусора должно
быть организованным и контролируемым делом (возможно самовозгорание мусора),
осуществляемым на специально выделенных территориях с соблюдением санитарных
норм, в частности свалки разрешается устраивать с санитарно-защитной зоной
между свалкой и жилыми районами города не менее 500 м.
Процесс разложения отбросов на свалке протекает крайне
медленно. В толще мусора его разложение носит анаэробный характер, при котором
происходит процесс разложения при отсутствии воздуха за счет кислорода в
органической части мусора. В верхнем слое на глубине до 3 м он заканчивается
через 15-20 лет после закрытия свалки, в более глубоких слоях - еще медленнее-
через 50-100 лет, но и после этого срока необходим контроль, способный
предотвратить нежелательные последствия. Разложение отбросов обычно
сопровождается выделением продуктов неполного распада. Поэтому привезенный на
свалку мусор следует складывать слоем не более 2 м и покрывать поверху и по
откосам слоем из негниющего материала до 0,25-0,35 м, изолирующим отходы от
контакта с воздухом. Основание свалки должно быть водонепроницаемым,
позволяющим до минимума свести риск загрязнить грунтовые воды. Мусор на
усовершенствованной свалке засыпают с учетом вертикальной планировки территории
в соответствии с ее возможным использованием в перспективе. Следует иметь в
виду, что длительная осадка и большие сроки полного обезвреживания мусора
позволяют использовать территории свалок только через 10-15 лет после их
закрытия. Все работы по загрузке свалки, разгрузке транспорта, засыпке
изолирующух слоев на свалках механизированы, для чего оборудуются эстакады с
бункерами, узкоколейные пути с движением вагонеток и т. п. Для разравнивания,
уплотнения и планировки мусора, засыпки изолирующих слоев и других работ
применяют экскаваторы, бульдозеры, канавокопатели, катки и другие машины.
Удаление ТБО на свалки нельзя считать оптимальным
решением, так как этот метод, по существу, сводится к перемещению материала с
одного места на другое без применения радикальных мер. Выделенные под свалки
участки выбывают из активного градостроительного использования и длительное
время не пригодны для сельскохозяйственных целей. Свалки требуют значительных
площадей (1 т мусора около 3 м2, при компостировании и сжигании соответственно
1 и 0,1 м2), поэтому их устройство целесообразно только в малонаселенных
районах. Все труднее найти для свалок территории даже за пределами города - с
каждым годом увеличиваются расстояния до них, и вследствие этого повышается
стоимость вывоза мусора. Ежегодно площадь свалок требует расширения на 0,5-0,6
га на каждые 100 тыс. городских жителей. Метод многоярусного складирования с
постоянным уплотнением позволяет увеличить нагрузку на единицу площади свалки и
значительно сократить площади, отводимые под свалки.
6.2 Расчет количества мусороконтейнеров бытовых
отходов
Согласно норм, разработанных ГУП «Академии коммунального хозяйства исп.
К.Д. Памфилова» накопление бытовых отходов по назначению проектируемого
объекта, составляет:
При несменяемой системе число контейнеров определяют по формуле
, (6.1)
где
Бн.с.- число контейнеров;
Пгод-
годовое накопление ТБО на участке, м3;
t- периодичность
удаления отходов, сут;
k1- коэффициент
неравномерности накопления отходов (принимается равным 1,25);
Е-
вместимость контейнера, м3.
Для
определения списочного числа контейнеров Бн.с должно быть умножено на
коэффициент k2 =1,05, учитывающий число контейнеров, находящихся в
ремонте и резерве.
Количество
жильцов примем в среднем 3 человека в одной квартире, всего квартир 27, норма
накопления принята 1,1 м3/год на одного человека, отсюда следует:
Пгод
= 1,1
27
3 = 89,1
м3/год
принимаем 1контейнер объемом 0,75 м3
Утилизация
отходов осуществляется по договору с организацией, имеющей лицензию на данный
вид деятельности, на свалку.
Картонная
и бумажная макулатура реализуется организациям, имеющим лицензию на ее сбор и
переработку.
Запрещается удаление люминесцентных ламп на контейнерную площадку.
Отработанные лампы, а также др. подлежат направлению в специализированную
организацию «Центр по оказанию услуг природоохранного назначения» для их
утилизации.
6.3 Меры по предотвращению загрязнения грунтовых
вод
При организации строительного производства необходимо проводить
специальные работы по охране окружающей среды: по предотвращению загрязнения
воздуха, воды и почвы, сохранению древесно-кустарниковой растительности,
обеспечению рекультивации земель.
Производственные и бытовые стоки, образующиеся на строительной площадке,
должны очищаться и обезвреживаться в порядке, предусмотренном проектом
организации строительства и проектами производства работ.
Для предотвращения загрязнения поверхностных и подземных вод необходимо
при мытье автотранспорта и оборудования улавливать загрязненную воду.
Все производственные и бытовые стоки, образующиеся на строительной
площадке, должны быть очищены и обезврежены.
.3.1 Требования к санитарной охране подземных
вод
а) Санитарная охрана подземных вод осуществляется при:
буровых работах;
добыче полезных ископаемых открытыми разрезами, карьерами и шахтным
способом;
орошении и удобрении сельскохозяйственных полей дочищенными сточными
водами и их осадками;
закачке в глубокие и продуктивные горизонты жидких отходов;
организации и эксплуатации полигонов твердых бытовых отходов,
промышленных отходов, хранилищ радиоактивных отходов, шламохранилищ,
золоотвалов;
прокладке магистральных продуктопроводов;
организации и эксплуатации подземных хранилищ газа;
осуществлении хозяйственной и иной деятельности в пределах зон санитарной
охраны источников питьевого водоснабжения, лечебных подземных вод и округов
санитарной охраны курортов;
строительстве гидротехнических сооружений, изменяющих условия питания и
разгрузки подземных вод, и прочих видах хозяйственной и иной деятельности, оказывающих
влияние на качество подземных вод.
б) Мероприятия по защите подземных вод от загрязнения при различных видах
хозяйственной деятельности должны обеспечивать:
водонепроницаемость емкостей для хранения сырья, продуктов производства,
отходов промышленных и сельскохозяйственных производств, твердых и жидких
бытовых отходов;
предупреждение фильтрации загрязненных вод с поверхности почвы в
водоносные горизонты;
герметизацию систем сбора нефти и нефтепродуктов;
рекультивацию отработанных карьеров.
в) При бурении скважин различного назначения (разведочных,
наблюдательных, нагнетательных, поглощающих, нефтяных, газовых, лечебных
минеральных вод и других) должны быть предусмотрены:
меры, предупреждающие затрубные перетоки загрязненных вод в водоносные
горизонты;
использование реагентов, разрешенных к применению Минздравом России;
обваловка устьев скважин;
хранение сыпучих материалов и химических реагентов под навесом на
гидроизоляционных настилах.
г) До начала проведения буровых работ места размещения емкостей для
хранения горюче - смазочных материалов, реагентов, буровых растворов, сбора
производственных отходов должны быть обвалованы и обеспечены гидроизоляцией.
д) Буровые скважины на воду, в том числе поисковые, разведочные,
эксплуатационные, наблюдательные, которые непригодны к эксплуатации, или
использование которых прекращено, должны быть ликвидированы или
законсервированы в установленном порядке.
е) Выбуренный шлам, твердые отходы производства, материалы и реагенты, не
пригодные к дальнейшему использованию, должны направляться в шламоотвалы и на
полигоны захоронения промышленных отходов в зависимости от класса опасности
отходов. Санитарно - эпидемиологическое заключение о соответствии гигиеническим
требованиям выбранного участка для размещения шламоотвалов и полигонов
захоронения промышленных отходов и их обустройства выдается органами и
учреждениями службы, осуществляющей государственный санитарно -
эпидемиологический надзор на данной территории.
захоронение отходов, размещение свалок, кладбищ, скотомогильников и
других объектов, являющихся источниками химического, биологического или
радиационного загрязнения в области питания и разгрузки подземных вод,
используемых или перспективных для использования в питьевых,
хозяйственно-бытовых и лечебных целях;
необоснованное использование подземных вод питьевого качества для иных
нужд;
использование различного рода неэкранированных земляных амбаров, прудов -
накопителей, а также карстовых воронок и других углублений для сброса сточных
вод и шламов, образующихся в процессе бурения;
загрязнение подземных вод при добыче полезных ископаемых, проведении
работ по водопонижению, при строительстве и эксплуатации дренажных систем на
мелиорируемых землях;
отвод без очистки дренажных вод с полей и ливневых сточных вод с
территорий населенных мест в овраги и балки;
применение, хранение ядохимикатов и удобрений в пределах водосборов
грунтовых вод, используемых при нецентрализованном водоснабжении;
орошение сельскохозяйственных земель сточными водами, если это влияет или
может отрицательно влиять на состояние подземных вод.
з) Закачка сточных вод в глубокие горизонты подземных вод может быть
разрешена в исключительных случаях при соответствующем гидрогеологическом,
технико-экономическом обосновании, благоприятном долгосрочном прогнозе качества
вод и при наличии положительного санитарно - эпидемиологического заключения
органов государственного санитарно - эпидемиологического надзора Российской
Федерации.
и) Для обеспечения безопасных условий водопользования населения на
объектах и сооружениях, подверженных авариям, в том числе нефте- и
продуктопроводах, нефтяных скважинах, накопителях сточных вод, канализационных
коллекторах и т.п., должны разрабатываться и осуществляться противоаварийные
мероприятия, которые согласовываются органами и учреждениями государственной
санитарно - эпидемиологической службы Российской Федерации и утверждаются в
установленном порядке.
к) Для защиты грунтовых вод по периметру здания предусмотрен дренаж.
6.3.2 Требования к качеству подземных вод
Гигиенические требования к качеству подземных вод дифференцируются в
зависимости от вида водопользования.
Гигиеническими критериями качества подземных вод являются:
предельно допустимые концентрации (ПДК) и ориентировочные допустимые
уровни (ОДУ) химических веществ;
уровни допустимого содержания санитарно - показательных микроорганизмов;
нормативы, обеспечивающие радиационную безопасность.
В том случае, когда в технологическом процессе, прямо или косвенно
оказывающем влияние на качество подземных вод, предполагается использовать
вещества, для которых отсутствуют гигиенические нормативы содержания в воде,
разработчик или пользователь соответствующей технологии обеспечивает разработку
нормативов и методов определения с нижним пределом измерения менее 0,5 ПДК.
Утверждение разработанного норматива и метода измерения вещества
осуществляется в порядке, установленном законодательством Российской Федерации.
Концентрации пестицидов в подземных водах не должны превышать наименьший
из утвержденных гигиенических показателей.
Потенциальная опасность обнаруженных в подземных водах веществ
оценивается с учетом их канцерогенной и мутагенной опасности и кратности
превышения гигиенического норматива и допустимых суточных доз.
В случае присутствия в воде нескольких веществ 1 и 2 класса опасности,
характеризующихся однонаправленным механизмом токсического действия, в том
числе канцерогенным, сумма отношений концентраций каждого из них к
соответствующей ПДК не должна превышать единицу:
На территориях с выраженным санитарно - эпидемиологическим
неблагополучием возможно установление нормативов для этих территорий,
утверждаемых Главным государственным санитарным врачом Российской Федерации.
6.3.3 Требования к организации контроля за
охраной подземных вод
а) Государственный санитарно - эпидемиологический надзор за качеством
подземных вод осуществляют органы и учреждения государственной
санитарно-эпидемиологической службы Российской Федерации выборочно и по
санитарно-эпидемиологическим показаниям с использованием стандартных методов измерения.
б) Производственный контроль за влиянием хозяйственной деятельности на
подземные воды обеспечивают юридические лица или индивидуальные
предприниматели, деятельность которых прямо или косвенно оказывает влияние на
качество подземных вод.
Измерения выполняются в лабораториях, аккредитованных (аттестованных) в
установленном порядке.
в) Производственный контроль за влиянием хозяйственной деятельности на
качество подземных вод предусматривается при:
эксплуатации подземных вод в качестве источников водоснабжения;
эксплуатации сооружений для разработки полезных ископаемых;
эксплуатации подземных сооружений, не связанных с добычей полезных
ископаемых;
эксплуатации объектов складирования твердых бытовых отходов (ТБО),
промышленных отходов, ядохимикатов и других отходов.
г) При выполнении производственного контроля следует ориентироваться на
показатели, критериями, для выбора которых служат данные:
о характере хозяйственной деятельности;
о геохимических особенностях территории;
о прогнозируемом качестве подземных вод.
д) С целью оперативного реагирования на опасность появления загрязнения в
подземных водах, в программу производственного контроля в обязательном порядке
включаются перманганатная окисляемость, азот аммония, запах, мутность,
санитарно - показательные микроорганизмы.
е) Периодичность производственного контроля должна обеспечивать
достоверную информацию, позволяющую предотвратить опасность загрязнения, но не
реже 1 раза в месяц.
ж) При анализе результатов производственного контроля учитывается динамика
уровней контролируемых показателей относительно фоновых величин.
з) Программа (план) производственного контроля за хозяйственной
деятельностью, влияющей на качество подземных вод, должна согласовываться с
органами и учреждениями службы, осуществляющей государственный санитарно -
эпидемиологический надзор на данной территории.
и) Результаты производственного контроля с анализом причин изменения
качества воды представляются в органы и учреждения службы, осуществляющей
государственный санитарно - эпидемиологический надзор на данной территории, в
сроки, согласованные в соответствии с п. 4.
ЗАКЛЮЧЕНИЕ
Дипломный проект выполнен в полном объёме 8 листов графической части и
123 печатных листа пояснительной записки. Пояснительная записка состоит из
шести разделов: архитектурно-строительный, расчетно-конструктивный,
технологический, организационный, безопасность жизнедеятельности и
экологичность проекта. В чертежах отражены основные конструктивные решения,
планы, разрезы, узлы. В архитектурно - строительном разделе разработано
объемно-планировочное решение здания, конструктивное решение здания (основные
конструктивные элементы здания), указана внутренняя и наружная отделка здания.
В конструкторском разделе дипломного проекта выполнен расчет свайных и
ленточных фундаментов, теплотехнический расчет наружной ограждающей
конструкции. В технологическом разделе разработана технологическая карта на
кладочно-монтажный процесс. В организационном разделе разработан стройгенплан
объекта на период возведения надземной части с графиками поставки материалов. В
разделе безопасность жизнедеятельности рассмотрены вопросы по охране труда при
проведении высотных работ, рассмотрены особенности выполнения допуска
технологической карты высотных работ. Для экологичности проекта рассмотрены
меры удаления твердых бытовых отходов и мероприятия по предотвращению
загрязнения грунтовых вод и почвы.
СПИСОК ИСПОЛЬЗОВАННЫХ ИСТОЧНИКОВ
1. СП 54.13330.2011. Свод правил. Здания жилые
многоквартирные. Актуализированная редакция СНиП 31-01-2003 [Электронный
ресурс]: утв. Приказом Минрегиона РФ от 24.12.2010г. № 778: введ. 20.05.2011 //
NormaCS: система нормативов / Компания
«Нанософт».
2.
СП 52.13330.2011. Свод правил. Естественное и искусственное освещение.
Актуализированная редакция СНиП 23-05-95* [Электронный ресурс]: утв. приказом
Министерства регионального развития Российской Федерации от 27.12.2010 г. №
783: введ. 20.05.2011 // NormaCS:
система нормативов / Компания «Нанософт».
.
СНиП 23-02-2003. Строительные нормы и правила. Тепловая защита зданий
[Электронный ресурс]: утв. Постановлением Госстроя России от 26.06.2003 г. N
113: взамен СНиП II-3-79*: введ. 1.10.2003 // NormaCS: система нормативов / Компания «Нанософт».
4. СНиП 23-01-99*. Строительные нормы и правила. Строительная
климатология [Электронный ресурс]: утв. Постановлением Госстроя России от
24.12.2002 г. N 164: взамен СНиП 23-01-99: введ. 1.01.2003 // NormaCS: система нормативов / Компания
«Нанософт».
. СП 31-107-2004. Свод правил. Архитектурно-планировочные
решения многоквартирных жилых зданий [Электронный ресурс]: утв. Приказом ФГУП
ЦНС от 12.05.2004г. № 03: введ.1.02.2005 // NormaCS: система нормативов / Компания «Нанософт».
. СП 5.13130.2009. Свод правил. Установки пожарной
сигнализации и пожаротушения автоматические [Электронный ресурс]: утв. Приказом
МЧС России от 25.03.2009г. № 175: введ.1.05.2009 // NormaCS: система нормативов / Компания «Нанософт».
7.
СП 1.13130.2009. Свод правил. Системы противопожарной защиты. Эвакуационные
пути и выходы [Электронный ресурс]: утв. Приказом МЧС России от 25.03.2009г. №
171: введ.1.05.2009 // NormaCS:
система нормативов / Компания «Нанософт».
8.
СП 23-101-2004. Свод правил. Проектирование тепловой защиты зданий [Электронный
ресурс]: утв. Совместным приказом ОАО «ЦНИИпромзданий» и ФГУП ЦНС от 23.04.2004
г. №01: взамен СП 23-101-2000: введ. 1.06.2004 // NormaCS: система нормативов / Компания «Нанософт».
9. СП 22.13330.2011. Свод правил. Основания зданий и
сооружений (актуализированная редакция СНиП 2.02.01-83*) [Электронный ресурс]:
утв. Приказом Министерства регионального развития Российской Федерации от
28.12.2010 г. № 823: введ. 20.05.2011 // NormaCS: система нормативов / Компания «Нанософт».
. СП 24.13330.2011. Свод правил. Свайные фундаменты.
Актуализированная редакция СНиП 2.02.03-85 [Электронный ресурс]: утв. Приказом
Минрегиона РФ от 27.12.2010г. № 786: введ. 20.05.2011 // NormaCS: система нормативов / Компания
«Нанософт».
11.
СП 20.13330.2011. Свод правил. Нагрузки и воздействия. Актуализированная
редакция СНиП 2.01.07-85* [Электронный ресурс]: утв. Приказом Минрегиона РФ от
27.12.2010г. № 787: введ. 20.05.2011 // NormaCS: система нормативов / Компания «Нанософт».
.
СНиП II-22-81*. Строительные нормы и правила. Каменные и армокаменные
конструкции [Электронный ресурс]: утв. Постановлением Госстроя России от
29.05.2003г. № 46: взамен СНиП II-22-81: введ. 01.01.2004 // NormaCS: система нормативов / Компания
«Нанософт».
.
СНиП 52-01-2003. Строительные нормы и правила. Бетонные и железобетонные
конструкции. Основные положения [Электронный ресурс]: утв. Постановлением
Государственного комитета Российской Федерации по строительству и
жилищно-коммунальному комплексу от 30.06.2003г. № 127: взамен СНиП 2.03.01-84:
введ. 03.01.2004 // NormaCS: система
нормативов / Компания «Нанософт».
.
Пособие к СП 52-101-2003. Пособие к своду правил. Пособие по проектированию
бетонных и железобетонных конструкций из тяжелого бетона без предварительного
напряжения арматуры [Электронный ресурс]: утв. ОАО "ЦНИИпромзданий"
от 01.01.2005г: введ. 01.01.2005 // NormaCS: система нормативов / Компания «Нанософт».
.
СНиП 1.04.03-85*. Строительные нормы и правила. Нормы продолжительности
строительства и задела в строительстве предприятий, зданий и сооружений. Часть I [Электронный ресурс]: утв.
Постановлениями Госстроя СССР и Госплана СССР от 17.07.1989г. № 124/38: взамен
СНиП 1.04.03-85: введ. 01.01.1990 // NormaCS: система нормативов / Компания «Нанософт».
.
СНиП 1.04.03-85*. Строительные нормы и правила. Нормы продолжительности
строительства и задела в строительстве предприятий, зданий и сооружений. Часть II [Электронный ресурс]: утв.
Постановлениями Госстроя СССР и Госплана СССР от 17.07.1989г. № 124/38: взамен
СНиП 1.04.03-85: введ. 01.01.1990 // NormaCS: система нормативов / Компания «Нанософт».
.
ГОСТ 12.1.046-85 (2001). ССБТ. Строительство. Нормы освещения строительных
площадок [Электронный ресурс]. - Введ. 01.06.2001 // NormaCS: система нормативов / Компания «Нанософт».
18. ГОСТ 23407-78. Ограждения инвентарные строительных
площадок и участков производства строительно-монтажных работ. Технические
условия [Электронный ресурс]. - Введ. 01.07.1979 // NormaCS: система нормативов / Компания «Нанософт».
. СП 48.13330.2011. Свод правил. Организация строительства.
Актуализированная редакция СНиП 12-01-2004 [Электронный ресурс]: утв. Приказом
Министерства регионального развития Российской Федерации (Минрегион России) от
27.12.2010г. № 781: введ.20.05.2011 // NormaCS: система нормативов / Компания «Нанософт».
20.
СНиП 12-04-2002. Строительные нормы и правила. Безопасность труда в
строительстве. Часть 1. [Электронный ресурс]: утв. Постановлением Госстроя
России от 17.09.2002г. № 123: взамен разделов 8-18 СНиП III-4-80*, ГОСТ
12.3.035-84, ГОСТ 12.3.038-85, ГОСТ 12.3.040-86: введ. 01.01.2003 // NormaCS: система нормативов / Компания
«Нанософт».
.
СНиП 12-04-2002. Строительные нормы и правила. Безопасность труда в
строительстве. Часть 2. [Электронный ресурс]: утв. Постановлением Госстроя
России от 17.09.2002г. № 123: взамен разделов 8-18 СНиП III-4-80*, ГОСТ
12.3.035-84, ГОСТ 12.3.038-85, ГОСТ 12.3.040-86: введ. 01.01.2003 // NormaCS: система нормативов / Компания
«Нанософт».
22. СНиП 3.03.01-87. Строительные нормы и правила. Несущие и
ограждающие конструкции [Электронный ресурс]: утв. Постановлением
Государственного строительного комитета СССР от 4.12.1987г. № 280: взамен СНиП
III-15-76, СН 383-67, СНиП III-16-80, СН 420-71, СНиП III-18-75, СНиП
III-17-78, СНиП III-19-76, СН 393-78: введ. 01.07.1988 // NormaCS: система нормативов / Компания
«Нанософт».
. СНиП 3.04.01-87. Строительные нормы и правила. Изоляционные
и отделочные покрытия [Электронный ресурс]: утв. Постановлением
Государственного строительного комитета СССР от 4.12.1987г. № 280: взамен СНиП
III-20-74*, СНиП III-21-73*, СНиП III-B.14-72, ГОСТ 22753-77, ГОСТ 22844-77,
ГОСТ 23305-78: введ. 01.07.1988 // NormaCS: система нормативов / Компания «Нанософт».
. Основания и фундаменты: справочник / под ред. Г.И.Швецова.
- М.: Высшая школа, 1991.
. Технология строительных процессов: учеб. пособие для вузов
/ под ред. Н.Н.Данилова, О.М.Терентьева. - М.: Высшая школа, 1997. - 464 с.
. Каталог монтажной оснастки, приспособления и инвентаря. -
Москва, 1983.
27. Постановление Правительства Российской Федерации от 16
февраля 2008 года N 87 «О составе разделов проектной документации и требованиях
к их содержанию» - // Техэксперт: инф.-справ. Система/ Консорциум «Кодекс».
. СНиП 11-01-95 «Инструкция о порядке разработки,
согласования, утверждения и составе проектной документации на строительство
предприятий, зданий и сооружений» - Введ. 01.07.95// Техэксперт: инф.-справ.
Система/ Консорциум «Кодекс».
. Пособие к СНиП 11-01-95 по разработке раздела проектной
документации «Охрана окружающей среды» - Введ. 12.04.00// Техэксперт:
инф.-справ. Система/ Консорциум «Кодекс».
ПРИЛОЖЕНИЕ 1
Результаты
расчета
Тип фундамента
Ленточный на естественном основании
1 Исходные
данные
Тип грунта в основании фундамента
Пылевато-глинистые, крупнообломочные с пылевато-глинистым заполнителем
0.25<IL<0.5
Тип расчета
Подобрать в размерах сборных конструкций
Способ расчета
Расчет основания по деформациям
Способ определения характеристик грунта
На основе непосредственных испытаний
Продолжения приложения 1
Конструктивная схема здания
Жёсткая при 1.5<(L/H)<2.5
Наличие подвала
Да
Фундамент под крайнюю стену
Расстояние от головы фундамента до низа плит перекрытия (ha) 0.02 м
Исходные данные для расчета kver=0.85:
Объемный вес грунта (G) 2.16 тс/м3
Угол внутреннего трения (Fi) 22 °
Удельное сцепление грунта (C) 2.65 тс/м2
Уровень грунтовых вод (Hv) 0.98 м
Высота фундамента (H) 3.77 м
Высота грунта до подошвы в подвале (hs) 1.57 м
Давление от 1 м2 пола подвала (Pp) 0.2 тс/м2
Глубина подвала (dp) 1.8 м
Нагрузка на отмостку (qv) (только для расчета горизонтального давления)
0.5тс/м2
Усредненный коэффициент надежности по нагрузке 1.15
Характеристики грунта засыпки
Объемный вес грунта засыпки (Gz) 1.98 тс/м3
Угол внутреннего трения грунта засыпки (Fiz) 35 °
Удельное сцепление грунта засыпки (Cz) 0.1 тс/м2
Тип расчета:
Деформации основания
Исходные данные:
Тип фундамента:
Ленточный
Способ расчета:
Расчет осадки
Исходные данные для расчета:
Глубина заложения фундамента (d) 2.77 м
Высота фундамента (H) 3.77 м
Ширина подошвы фундамента (b) 2 м
Уровень грунтовых вод (Hv) 0.98 м
Продолжения приложения 1
Характеристики грунтов по слоям
|
Номер слоя
|
Тип грунта
|
Толщина, м
|
Модуль E
|
Ед.измерения
|
|
Слой 1
|
Суглинки
|
3.7
|
1734
|
тс/м2
|
|
Слой 2
|
Суглинки
|
не определено
|
3263
|
тс/м2
|
От уровня планировки до природного рельефа 0 м
Нормативные нагрузки на 1 п.м.:
|
Обозначение
|
Величина
|
Ед.измерений
|
Примечания
|
|
N
|
69.29
|
тс
|
|
|
My
|
0
|
тс*м
|
|
|
Qx
|
0
|
тс
|
|
|
q
|
0
|
тс/м2
|
|
Сечение 1-1
Наличие подвала
Да
Фундамент под среднюю стену
Расчетные нагрузки:
|
Наименование
|
Величина
|
Ед. измерения
|
Примечания
|
|
N
|
83.03
|
тс/п.м.
|
|
|
My
|
0
|
тс*м/п.м.
|
|
|
Qx
|
0
|
тс/п.м.
|
|
|
q
|
0
|
тс/м2
|
|
Выводы
Максимальная ширина подошвы по расчету по деформациям b= 2 м
Расчетное сопротивление грунта основания 43.58 тс/м2
Максимальное напряжение в расчетном слое грунта в основном сочетании
40.04 тс/м2
Минимальное напряжение в расчетном слое грунта в основном сочетании 40.04
тс/м2
Результирующая вертикальная сила 92.1 тс
Сопротивление основания 114.69 тс
Расчет по I предельному состоянию выполнен по пересчитанным
характеристикам грунта (на kver=0.95) согласно "Пособия..." к СНиП
2.02.01-83*.
Расчетные моменты на уровне подошвы фундамента: Mx= 0 тс*м, My= 0 тс*м
Принимаем ширину подошвы 2,4 м.
2 Выводы
Осадка основания S= 58.57 мм
Крен фундамента в направлении оси Х= 0
Крен фундамента в направлении оси Y= 0
Нижняя граница сжимаемой толщи (считая от подошвы) (Hc) 8.8 м
Расчет осадки выполнен по схеме линейно-деформируемого полупространства
Еmid= 2057.55 (тс/м2) (Средний модуль деформации рассчитан
пропорционально площадям эпюры вертикальных напряжений в грунте)
Сечение 2-2
Расчетные нагрузки:
|
Наименование
|
Величина
|
Ед. измерения
|
Примечания
|
|
N
|
69.29
|
тс/п.м.
|
|
|
My
|
0
|
тс*м/п.м.
|
|
|
Qx
|
0
|
тс/п.м.
|
|
|
q
|
0
|
тс/м2
|
|
2 Выводы
Максимальная ширина подошвы по расчету по деформациям b= 1.6 м
Расчетное сопротивление грунта основания 43.24 тс/м2
Максимальное напряжение в расчетном слое грунта в основном сочетании
43.14 тс/м2
Минимальное напряжение в расчетном слое грунта в основном сочетании 42.46
тс/м2
Результирующая вертикальная сила 78.75 тс
Сопротивление основания 90.5 тс
Расчетные моменты на уровне подошвы фундамента: Mx= 0 тс*м, My= 0.17 тс*м
Принимаем ширину подошвы 2,0 м.
2 Выводы
Осадка основания S= 51.77 мм
Крен фундамента в направлении оси Х= 0
Крен фундамента в направлении оси Y= 0
Нижняя граница сжимаемой толщи (считая от подошвы) (Hc) 7.9 м
Расчет осадки выполнен по схеме линейно-деформируемого полупространства
Еmid= 2003.62 (тс/м2) (Средний модуль деформации рассчитан
пропорционально площадям эпюры вертикальных напряжений в грунте)
Сечение 3-3
Расчетные нагрузки:
|
Наименование
|
Величина
|
Ед. измерения
|
Примечания
|
|
N
|
49.84
|
тс/п.м.
|
|
|
My
|
0
|
тс*м/п.м.
|
|
|
Qx
|
0
|
тс/п.м.
|
|
|
q
|
0
|
тс/м2
|
|
Выводы
Максимальная ширина подошвы по расчету по деформациям b= 1.4 м
Расчетное сопротивление грунта основания 42.89 тс/м2
Максимальное напряжение в расчетном слое грунта в основном сочетании
41.87 тс/м2
Минимальное напряжение в расчетном слое грунта в основном сочетании 40.65
тс/м2
Результирующая вертикальная сила 56.94 тс
Сопротивление основания 66.97 тс
Расчет по I предельному состоянию выполнен по пересчитанным
характеристикам грунта (на kver=0.95) согласно "Пособия..." к СНиП
2.02.01-83*.
Расчетные моменты на уровне подошвы фундамента: Mx= 0 тс*м, My= 0.17 тс*м
Принимаем ширину подошвы 1,4 м.
Выводы
Осадка основания S= 43.75 мм
Крен фундамента в направлении оси Х= 0
Крен фундамента в направлении оси Y= 0
Нижняя граница сжимаемой толщи (считая от подошвы) (Hc) 6.4 м
Расчет осадки выполнен по схеме линейно-деформируемого
полупространства
Еmid= 1900.8 (тс/м2) (Средний модуль деформации рассчитан пропорционально
площадям эпюры вертикальных напряжений в грунте)
Сечение 4-4
Расчетные нагрузки:
|
Наименование
|
Величина
|
Ед. измерения
|
Примечания
|
|
N
|
54.27
|
тс/п.м.
|
|
|
My
|
0
|
тс*м/п.м.
|
|
|
Qx
|
0
|
тс/п.м.
|
|
|
q
|
0
|
тс/м2
|
|
Выводы
Максимальная ширина подошвы по расчету по деформациям b= 1.4 м
Расчетное сопротивление грунта основания 43.06 тс/м2
Максимальное напряжение в расчетном слое грунта в основном сочетании 39.3
тс/м2
Минимальное напряжение в расчетном слое грунта в основном сочетании 38.4
тс/м2
Результирующая вертикальная сила 62.55 тс
Сопротивление основания 78.65 тс
Расчет по I предельному состоянию выполнен по пересчитанным
характеристикам грунта (на kver=0.95) согласно "Пособия..." к СНиП
2.02.01-83*.
Расчетные моменты на уровне подошвы фундамента: Mx= 0 тс*м, My= 0.17 тс*м
Принимаем ширину подошвы 1,4 м.
2 Выводы
Осадка основания S= 49.46 мм
Крен фундамента в направлении оси Х= 0
Крен фундамента в направлении оси Y= 0
Нижняя граница сжимаемой толщи (считая от подошвы) (Hc) 6.8 м
Расчет осадки выполнен по схеме линейно-деформируемого полупространства
Еmid= 1780.9 (тс/м2) (Средний модуль деформации рассчитан пропорционально
площадям эпюры вертикальных напряжений в грунте)
Сечение 5-5
Расчетные нагрузки:
|
Наименование
|
Величина
|
Ед. измерения
|
Примечания
|
|
N
|
82.35
|
тс/п.м.
|
|
|
My
|
0
|
тс*м/п.м.
|
|
|
Qx
|
0
|
тс/п.м.
|
|
|
q
|
0
|
тс/м2
|
|
2 Выводы
Максимальная ширина подошвы по расчету по деформациям b= 2 м
Расчетное сопротивление грунта основания 43.58 тс/м2
Максимальное напряжение в расчетном слое грунта в основном сочетании
41.16 тс/м2
Минимальное напряжение в расчетном слое грунта в основном сочетании 40.73
тс/м2
Результирующая вертикальная сила 94.18 тс
Сопротивление основания 114.48 тс
Расчет по I предельному состоянию выполнен по пересчитанным
характеристикам грунта (на kver=0.95) согласно "Пособия..." к СНиП
2.02.01-83*.
Расчетные моменты на уровне подошвы фундамента: Mx= 0 тс*м, My= 0.17 тс*м
Принимаем ширину подошвы 2,4 м.
2 Выводы
Осадка основания S= 57.98 мм
Крен фундамента в направлении оси Х= 0
Крен фундамента в направлении оси Y= 0
Нижняя граница сжимаемой толщи (считая от подошвы) (Hc) 8.7 м
Расчет осадки выполнен по схеме линейно-деформируемого полупространства
Еmid= 2054.12 (тс/м2) (Средний модуль деформации рассчитан
пропорционально площадям эпюры вертикальных напряжений в грунте)