Разработка промышленной вибрационной мельницы для приготовления качественных дисперсных порошков
Содержание
Введение
. Литературный обзор
.1 Оборудование для размола и смешивания порошков
.2 Цели и задачи работы
. Конструкторская часть
.1 Выбор принципиальных конструктивных решений и схем
.2 Конструкция вибрационной мельницы и ее узлов
.3 Расчеты при конструировании
.3.1 Расчет мощности электродвигателя
.3.2 Расчет параметров размольного сосуда
.3.3 Расчет клиноременных передач
. Разработка технологического процесса изготовления
дебалансного вала
.1 Назначение, конструкция и анализ технологичности детали
.1.1 Технологический контроль чертежа детали
.2 Выбор типа производства
.3 Выбор типа заготовки
.3.1 Себестоимость заготовки из проката
.3.2 Стоимость заготовки при отливке
.4 Составление маршрута обработки детали
.5 Выбор и расчет припусков на обработку
.6 Выбор и расчет режимов резания
.6.1 Расчет скорости резания
.7 Техническое нормирование операций
.8 Выбор оборудования
.9 Выбор режущего инструмента
.10 Выбор измерительного инструмента
.11 Разработка обрабатывающей программы для станка с ЧПУ
Заключение
Список использованных источников
Введение
Производство деталей методом порошковой металлургии постоянно растет. Это
требует совершенствование способов и оборудования для производительного
изготовления высококачественных дисперсных порошков и порошковых смесей, в
частности тонких порошковых смесей для производства твердых сплавов.
Машиностроительные заводы являются основными потребителями металлических
порошков - изготавливая из этого универсального, технологически гибкого сырья
детали по малоотходным технологиям.
Твердосплавные инструменты из-за дисперсности кобальта и вольфрама
поставляются заводами в недостаточном количестве.
Изготовлять высококачественные порошковые смеси целесообразно именно в
высокопроизводительных вибрационных мельницах.
Для дальнейшего роста отрасли порошковой металлургии и более полного
удовлетворения запросов народного хозяйства необходимо непрерывное
совершенствование ее производительной и материально-технической базы. В связи с
этими вопросами возрастает роль инженерно-технических кадров в оснащении цехов
порошковой металлургии наиболее рациональными типами аппаратов и устройств, а
так же в их эффективном использовании.
1. Литературный обзор
Для размола твердых сплавов используют в основном мельницы различных
типов: шаровые вращающиеся, вибрационные и планетарные, аттриторные, вихревые,
струйные, гироскопические и т.д.
Шаровые мельницы это простейшие аппараты для измельчения, которые широко
применяют в порошковой металлургии не только как рациональное оборудование, но
и как смесительное.
Шаровые мельницы представляют собой металлический барабан, внутри
которого находятся размольные тела: шары, пластины, стержни и другие. В
зависимости от вида размольные мельницы делятся: шаровые и стержневые.
В зависимости от формы барабана и отношения его длины к диаметру
различают: шаровые короткие мельницы, нормальные цилиндрические, трубные
цилиндрические и цилиндроконические.
В порошковой металлургии наиболее часто применяют шаровые мельницы с
периодической загрузкой и выгрузкой, барабан мельницы вращается либо
непосредственно от электродвигателя, либо вследствие установки его на валки.
Шаровые вращающиеся мельницы могут быть с центральной загрузкой через
цапфу или с периферической разгрузкой через сито.
Разновидностью шаровых мельниц являются аттриторные устройства,
представляющие собой вертикально расположенный неподвижный сосуд с лопастной
мешалкой. Пробки, наклонно укрепленные на лопастях (скалках) мешалки,
обеспечивают хаотическую циркуляцию размольных тел и истирание измельченного материала.
Изнутри рабочая камера футерована пластинами из твердого сплава марки ВК6,
снаружи камера оснащена рубашкой охлаждения. Мешалка с тремя скалками,
укрепленными под углом 120 градусов на вертикальном валу, вращается от привода.
Вал мешалки футерован наплавкой релита, а скалки твердым сплавом. Смесь
загружается через люк. Пульпа засасывается и отсасывается с помощью
циркуляционного насоса.
В последние годы в порошковой металлургии для тонкого измельчения
различных материалов в мире применяют шаровые вибрационные мельницы.
1.1
Оборудование для размола и смешивания порошков
Вибромельница представляет собой камеру, установленную на упругой опоре и
приводимую в движение вибраторами.
Вибрационная мельница принципиально отличается от вращающихся тел, тем,
что в ней барабан с шарами не вращается, а подвергается вибрации, создаваемой,
например, вращением дебалансного вала. При этом корпус барабана совершает
круговые колебания с частотой 1500-3000 в минуту. Шары движутся по сложным
траекториям внутри барабана, хаотично подбрасываясь и соударяясь во вращающейся
мельнице, движение шаров совпадает с направлением вращения барабана, а в
вибрационной мельнице циркуляция шаров противоположна направлению кругового
колебательного движения корпуса мельницы. Благодаря непрерывному движению и
соударению шаров на частицу измельчаемого материала во всех зонах мельницы
действуют в различных направлениях ударные, сжимающие и срезывающие усилия
переменной величины. Интенсивное движение объясняется большим числом размольных
тел в единице объема и высокой частотой их вибрации.
Существующие вибромельницы отличаются по технологическим и конструктивным
признакам: по типу помола, по характеру действия, по конструкции вибратора, по
типу возбудителя колебаний, по форме корпуса мельницы, по типу опоры мельницы и
т.д.
В вихревых мельницах порошок получается вследствие ударных и истирающих
усилий, возникающих при взаимном соударении частиц во взвешенном состоянии в
интенсивном газовом потоке.
Более эффективны и производительны струйные мельницы, в которых
измельчение материала происходит за счет энергии, собираемой частицами, струями
сжатого газа или перегретого пара, поступающими в рабочую полость из сопел со
звуковой или даже сверхзвуковой скоростью.
Измельчение увлекаемых потоком газа частиц осуществляется только
вследствие их многократного соударения при вихревом движении внутри камеры.
В последнее время для измельчения хрупких материалов начали применять
планетарные и гироскопические мельницы различного конструктивного оформления.
В этих мельницах применяют в основном барабаны небольших размеров,
закрепленные в обоймах, расположенных по периферии диска, вращающегося вокруг
вертикальной оси. Кроме того, с помощью соответствующей системы передач каждый
барабан тоже вращается вокруг своей оси в направлении, противоположном
направлению вращения диска. Сложный характер траектории движения шаров и
совмещения действия центробежных сил, возникающих при противоположно
направленных вращениях диска и барабанов, создают очень большие ускорения движения
шаров.
На рисунке 1.1 изображена вибророликовая мельница, которая содержит
корпус 1 с дебалансными вибраторами 2, измельчительную камеру 3, со свободно
помещенными в ней мелющим роликом 4, который выполнен с продольными
цилиндрическими пазами 5 и снабжен свободно размещенными в каждом пазу
стержнями 6, причем диаметр стержня и глубина паза 5 равны. Вибрационный зазор
между роликом 4 и камерой 3 позволяет исключить выпадание стержней 6 из пазов
5.
Центробежная сила дебалансов заставляет корпус совершать круговые
движения, в результате чего ролик начинает обкатываться в измельчительной
камере.
Одновременно получают обкатку стержни в пазах, которые также выполняют
роль измельчителей. Обкатка ролика происходит в противофазе с корпусом и
стержнями. Обкатка мелющих тел происходит по значительно увеличенной рабочей
поверхности (без увеличения габаритов мельницы) что позволяет значительно
повысить производительность устройства.
Вибрационная мельница состоит из помольной камеры 1 (количество
камер может быть любым, в зависимости от конструкции вибромельницы и
назначения), с установленными на ее торцах разгрузочными точками 2, в которые
вмонтированы съемные сетки 3, мелющие тела, выполненного в виде набора свободно
установленных дисков 4, торцы которых с рифлениями. На рисунке 1.2. изображена
вибрационная мельница.
Рисунок 1.1. Вибророликовая мельница
Рисунок 1.2. Вибрационная мельница
Рифления на торцах мелющих дисков имеются с двух сторон, за исключением
первого и последнего дисков, у которых рифления нанесены только со стороны,
обращенной к соседнему диску. В зависимости от толщины помола и
физико-механических свойств материала, рифления могут быть треугольного,
квадратного, трапецеидального и других сечений. Помольная камера и вибратор 6
жестко прикреплены к раме 7 и образуют одну колеблющуюся массу, совершающую
круговые колебательные движения. Привод вибратора осуществляется от
электродвигателя 8 через упругую муфту 9. Рама 7 упругими элементами 10,
опирается на фундамент 11. Загружают материал через патрубок 12.
Работает мельница следующим образом: круговые колебательные движения
через раму сообщаются помольной камере и мелющим дискам, которые обкатываясь по
стенкам камеры измельчают материал. Мелят материал как периферии дисков так и
их торцы. Это происходит вследствие того, что скорости обкатки дисков различны
ввиду различия сопротивлений круговому движению каждого диска, в результате
чего диски кроме кругового движения имеют еще и относительные перемещения. Под
действием круговых колебаний и подпора подаваемого через патрубок материала,
последний измельчаясь, перемещается от середины помольной камеры к ее торцам,
просеиваясь через сетки и патрубки выводится из камер помола. Крупная фракция
вновь попадает под удары дисков и доизмельчается.
Выполнение мелющего тела в виде набора свободно установленных дисков,
торцы которых имеют рифления, что значительно повышает производительность
вибрационной мельницы. Корпус 1 мельницы с опорной плитой 2 установлен
посредствам виброизолирующих пружин 3 на раме 4. Мелящий ролик 5 ротационного
действия жестко посажен на приводной вал 6, концевые опоры которого содержат
подшипники 7, зафиксированные в верхних концах маятниковых рычагов 8. Нижними
концами эти рычаги посредством осей 9 их качания и опор 10 шарнирно установлены
на опорной плите корпуса, т.е. вал смонтирован в маятниковом подвесе. В теле
ролика выполнены отверстия, в которые вставлены сменные дебалансы 11. Камера
измельчения образована между рабочими поверхностями роторного ролика и
статорного измельчающего элемента 12 и имеет форму сужающейся вниз изогнутой
полости с клиновидной приемной частью вверху, концентричной калибрующей частью
внизу.
Верхние концы маятниковых рычагов несут помимо опор вала хомут 13 с
регулируемыми упругими ограничителями колебаний ролика относительно корпуса.
Упругие ограничители содержат регулировочный резьбовой элемент 14 и буферный
упругий элемент 15. В корпусе мельницы имеются разгрузочный 16 и выгрузочный 17
патрубки. В процессе работы мельницы вращение вала от приводного двигателя
вызывает за счет вращения дебалансов колебания вала с роликом на маятниковых
рычагах. Эти колебания сопровождаются упругими соударениями масс через
ограничители. Исходный материал, поступающий из загрузочного патрубка в камеру
измельчения, испытывает здесь различные разрушающие нагрузки, обусловленные
вращением ролика и его вибраций - направленные колебаниями на рычагах. Путем
регулирования ограничителей можно контролировать величину зазора в калибрующей
части камеры и управлять параметрами вибраций. Продукт управляется через
выгрузочный патрубок. Благодаря направленности и стабильности колебаний
вращающегося ролика достигается однородность зернового состава продукта
измельчения, определяющего его качество. Конструкциям, подобной разрабатываемой
мельнице не найдено, поэтому объект является охранно-безопасным.
1.2 Цели и задачи работы
Цель работы: повышение эффективности производства металлических порошков
и смесей (типа твердых смесей).
Задачи ВКР:
) информационный поиск аналогов;
) принятие принципиальных конструктивных решений;
) разработка компоновки и узлов вибрационной мельницы;
) разработка технологии изготовления.
2. Конструкторская часть
2.1 Выбор принципиальных конструктивных решений и схем
Каждая конструкторская задача может иметь несколько решений. Важно по
определенным критериям сопоставить конкурирующие варианты и выбрать один
наиболее оптимальный и рациональный, который является актуальным для данных
конкретных условий.
Вибрационная мельница должна содержать следующие конструктивные узлы:
станина, электродвигатель, промежуточный вал, натяжное устройство, рессоры,
размольную раму, дебалансный узел, механизм поворота сосуда и размольный сосуд.
Выбор компоновки этих узлов является неотъемлемой частью разработки конструкции
мельницы.
Конструкция должна удовлетворять условиям безопасности и экономики.
Рабочая зона (дебалансный узел, электродвигатель, клиноременные передачи и
т.д.) не должны находится в непосредственной близости от зоны обслуживания.
Дебалансный узел не должен мешать повороту размольного сосуда.
Поворот сосуда производится с помощью червячного редуктора.
Самотормозящаяся червячная пара исключает возможность самопроизвольного
вращения сосуда, а следовательно и травмировать оператора.
Дебалансный узел наряду с надежностью работы должен быть удобным в
обслуживании. Из нескольких схем дебалансного узла была выбрана схема с
консольным расположением шкива, что значительно облегчает схему ремней, чем при
его расположении между опор. Крепление дебалансов на валу производится с
помощью Т-образных пазов и фиксирующих болтов.
В процессе конструирования схемы узлов не имели окончательного решения, а
постоянно дополнялись, уточнялись и корректировались на всей стадии
проектирования вибрационной мельницы, так как при расчетах: узлов, агрегатов,
деталей и других элементов конструкции возникали нюансы, которыми невозможно
было пренебречь в учет при окончательной компоновке и конструировании агрегата.
2.2 Конструкция вибрационной мельницы и ее узлов
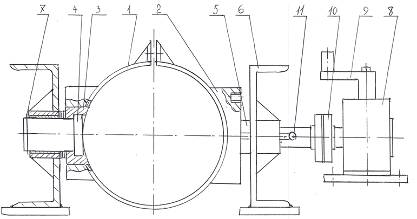
К размольной раме 1 крепится дебалансный узел 2, механизм поворота 3 и
размольный сосуд 4. Рама с помощью рессор 5 крепится к станине 6. На станине
так же установлены электродвигатель 7 и натяжное устройство 8. Для передачи
движения служат клиноременные передачи 9 и 10. Мельница устанавливается на
фундамент 11. Схема вибрационной мельницы изображена на рисунке 2.1.
Рисунок 2.1. Схема вибрационной мельницы
Вращательное движение с вала электродвигателя посредством клиноременных
передач передается на дебалансный вал, при вращении которого возникают
вынужденные колебания. Колебания через раму и механизм передаются размольному
сосуду, вследствие чего происходит размол порошков. Механизм поворота служит для
облегчения операций загрузки выгрузки.
Дебалансный узел изображен на рисунке 2.2. Вал дебалансного узла
посредством двух шариковых радиальных сферических подшипников 2 устанавливается
на бобышках 3, которые ввариваются в швеллера 4. Осевые перемещения вала
исключаются пружинными кольцами 5. Подшипниковые узлы закрыты крышками 6 и
снабжены манжетами 7 для предотвращения утечки смазки. Для возбуждения
вынужденных колебаний служит один (или несколько) дебалансов 8, установленных
на валу и закрепленных Т-образным пазом и болтом. Вращение вала происходит
через шкив 9 и шпонку 10.
Рессора изображена на рисунке 2.3. средняя 1, внешняя 2, внутренняя 3
пластины скрепляются скобами 4. Посредствам болтов 5 и пластин 6 рессора
крепится опорами. Болтами 8 и гайками 9 рессоры крепятся к раме и станине.
Рисунок 2.2. Дебалансный узел
Рисунок 2.3. Рессора
Рама размольная представлена на рисунке 2.4. Стропила 1 свариваются с
перекладинами 2 и укрепляются пластинками 3, которые одновременно служат
подошвами рессорам. Для крепления на раме узлов служат держатели 4, усиленные
пластинами 5 и 6. Для крепления червячного редуктора служат подставки 7 и
пластинки 8, которые предназначены для выдерживания межосевого расстояния
(соосности) редуктора и механизма поворота.
Станина показана на рисунке 2.5. к ногам 1 привариваются пяты 2 и
производится обвязка перекладинами 3 и стропилами 4. Укосина 5 служат для
предотвращения изгибов.
Рисунок 2.4. Рама размольная
Рисунок 2.5. Станина
Сборочные единицы на станине устанавливаются посредствам держателей 6,
усиленных пластинками 7. Площадка 8 предназначена для нахождения на ней
оператора во время обслуживания мельницы. Столик 9 служит для установки сливной
емкости под пульпу.
Механизм поворота сосуда изображен на рисунке 2.6.
Рисунок 2.6. Механизм поворота сосуда
Хомут 1 с бобышками 2 и втулками 3 посредствам полуосей 4 и 5 крепится к
швеллерам 6 и стопорится пружинными кольцами 7.
Для поворота хомута, а вместе с ними и сосуда служит червячный редуктор 8
с вертикальным расположением червяка. Ручка 9 служит для вращения входного вала
редуктора. Редуктор с муфтой 10 соединен с одной из полуосей. Фиксация крайних
положений хомута производится фиксаторами 11.
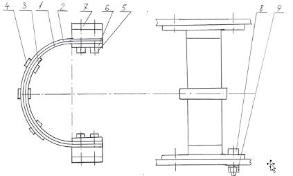
Сосуду придана веретенообразная форма цилиндрической 1, двумя коническими
2 гильзами и крышками 3. Крышки и гильзы надежно крепятся, герметично закрывая
полость сосуда при помощи уплотнений 4 и 5 из вакуумной резины.
Отвод газов, адсорбированных на поверхности исходных порошков
выделяющихся в процессе размола, осуществляется после окончания процесса
размола. Для этого предусмотрены выпускные обратные клапаны 6. Гайки 7
ослабляются, и после постукивания по клапану в образовавшийся зазор,
исключающий мгновенный выброс всего скопившегося газа, между клапаном и крышкой
вытравливается газ.
Сосуд для уменьшения изнашивания, попадания продуктов его износа в
размольный порошок изнутри футеруется пластинками 8 из твердого сплава,
припаянных мягким припоем. Для удобства перемещения крышек они снабжены ручками
9. Пружины 10 предназначены для монтажа сосуда и одновременно служат ребрами
жесткости. Одним из самых ответственных элементов вибрационной мельницы
является размольный сосуд, изображенный на рисунке 2.7.
Промывка размольного сосуда выполняется достаточно легко, так как рабочая
полость сосуда гладкая, промывочная жидкость протекает в рабочую полость сосуда
сверху вниз «на проход». Именно с этой целью размольный сосуд снабжен двумя
идентичными съемными крышками.
Для проведения ремонта предусмотрена возможность полной разборки сосуда с
разделением его на детали.
Рисунок 2.7. Размольный сосуд
Слив пульпы облегчается благодаря воронкообразной форме фланцев сосуда и
специальной сливной насадке рисунок 2.8, снабженной сеткой 1, благодаря которой
размольные шары остаются в сосуде.
Рисунок 2.8. Насадка сливная
2.3 Расчеты при конструировании
2.3.1 Расчет мощности электродвигателя
Мощность электродвигателя рассчитывается по приближенной формуле:
(2.1)
где V-объем сосуда, в литрах.
По справочнику
выбираем электродвигатель 4А200М4У3 мощностью 37 кВт и
числом оборотов n=1450 мин-1.
2.3.2 Расчет параметров размольного сосуда
Внутренняя полость сосуда изображена на рисунке 2.9.
Примем объем цилиндрической части Vц равным 200 л, а конических Vц по 25 литров. r=0,1м.
Vk=π/3(R3+r3), м3 (2.2)
Рисунок 2.9. Внутренняя полость размольного сосуда
где r-радиус малого основания усеченного
конуса, м;
R-радиус
цилиндрической части, м;
h-длина
цилиндрической части, м;
Объем всего сосуда задан;
V=250
литров.
Из формулы 2.2. выразим R и
получим выражение:
Объем цилиндрической части определяется по формуле:
, м3. (2.3)
Из формулы (2.4) следует, что h определяется выражением:
Объем конусной части определяется по формуле (2.2):
Полный объем сосуда определяется по формуле:
Ошибка
составляет 1 литр.
V=Vц+V,м3,
(2.4)
V=0,2+0,049=0,249
=250 литров.
2.3.3 Расчет клиноременных передач
Передачу, соединяющую электродвигатель с натяжным устройством называют
приводной, а оставшуюся - разгрузочной l1=0,57 м - межосевое расстояние приводной передачи; l2=1,5 м - межосевое расстояние разгрузочной передачи.
Длина ремня рассчитывается по формуле:
L=3l+W+Y/l, м (2.5)
W=(dр.б-dр.м)/2π,
м (2.6)
где dр.б - расчетный диаметр большого шкива,
м;
dр.м - расчетный диаметр малого шкива, м.
y=(dр.б-dр.м)/2, м (2.7)
Результаты расчета для обеих клиноременных передач приведены и заполнены
в таблице 2.1.
Выбираем тип клиновых ремней по ГОСТу 1284-68 обусловленным определённым
регламентом:
) ремень Г-2120 Т ГОСТ 1284-68;
) ремень Г-4250 Т ГОСТ 1284-68.
Шкив клиноременной передачи изображен на рисунке 2.10 , а значения
параметров приведены в таблице 2.2.
Для клиноременной передачи немаловажным обстоятельством, сильно
сказывающимся на долговечности ремня, является параллельность осей вращения
шкивов.
Полученные значения округляются до стандартных.
Таблица 2.1. Расчеты клиноременных передач
|
Наименование параметра
|
передача
|
|
приводная
|
разгрузочная
|
|
Диаметр ведущего шкива, мм
|
200
|
400
|
|
диаметр ведомого шкива, мм
|
400
|
400
|
|
Вид сечения ремня
|
Г
|
Г
|
|
Количество ремней
|
2
|
2
|
|
Длина ремня, м
|
2,1
|
4,256
|
|
Уточненная длина ремня, м
|
2,12
|
4,25
|
Рисунок 2.10. Шкив
Таблица 2.2. Значения параметров шкивов
|
Значение расчетного
диаметра d, мм
|
Параметр
|
|
β, мм
|
d, мм
|
l,мм
|
K,мм
|
lp,мм
|
α,мм
|
β1,мм
|
|
200
|
81
|
24
|
37
|
10
|
27
|
36
|
32,5
|
|
400
|
8,1
|
24
|
37
|
12
|
27
|
36
|
32,5
|
3. Разработка технологического процесса изготовления
дебалансного вала
3.1 Назначение, конструкция и анализ технологичности детали
Дебалансный вал представлен на рисунке 3.1, предназначен для возбуждения
механических колебаний в системе, посредствам одного или нескольких
закрепленных на нем дебалансов, для чего служат Т-образные пазы и отверстия Ø10 мм, в количестве 3 штук.
Первая ступень имеет шпоночный паз и предназначена для установки шкива
клиноременной передачи, которая служит для передачи вращательного момента от шкива
к валу. Также вал имеет посадочные места для подшипников и канавки, для
установки в них пружинных (стопорных) колец. Материал который служит для
изготовления рассматриваемой детали типа «дебалансный вал»: Сталь 40Х (ГОСТ
4543-71). Предназначение этой стали: улучшаемые и цементируемые детали, от
которых требуется высокая прочность и вязкость сердцевины, а также высокая
поверхностная твердость, работающая при больших скоростях и повышенных удельных
давлениях под действием ударных нагрузок, поэтому требования к материалу для
изготовления данной детали достаточно жесткие.
Химический состав в таблице 3.1, механические свойства в таблице 3.2.
Таблица 3.1. Химический состав стали 40Х
|
C
|
Si
|
Mn
|
Ni
|
S
|
P
|
Сr
|
Cu
|
|
0,46 - 0,44
|
0,17 - 0,37
|
0,5 - 0,8
|
до 0,3
|
до 0,35
|
до 0,35
|
0,8 - 1,1
|
до 0,3
|
Таблица 3.2. Механические свойства стали 40Х
|
σт МПа
|
σвр МПа
|
σ5 %
|
Ψ
%
|
αн Дж/см2
|
НВ не более
|
|
не менее
|
|
горячекатаная
|
отожжённая
|
|
780
|
980
|
10
|
45
|
59
|
806
|
-
|
Рисунок 3.1. Дебалансный вал
3.1.1 Технологический контроль чертежа детали
Чертеж детали выполнен по нормам ЕСКД. Точность, обозначение всех
посадок, отклонений, шероховатостей поверхности, составляющих детали дают возможность
получить все необходимые данные для разработки техпроцесса изготовления.
В качестве установочной базы на первых операциях может быть использована
наружная поверхность заготовки. В качестве чистовой установочной базы на
последующих операциях - наружная поверхность.
Материал, выбранный для изготовления детали, соответствует всем
требованиям, предъявляемым по прочности и износостойкости к рассматриваемой
детали.
В соответствии с установленными эксплуатационными требованиями деталь
имеет в разных местах разную степень точности.
Требования к детали типа «дебалансный вал»:
1) точность поверхности;
2) концентрированность изготовления;
3) соосность (высокая точность).
Описание конструкции:
Класс валов (к валам относят круглые стержни длиной более трех диаметров).
В состав детали входят следующие поверхности:
) наружные цилиндрические поверхности вала: Ø90h9,
Ø100k7,
Ø96,5h12, Ø100h12;
) шпоночный участок;
) Т-образные пазы (3штуки);
) канавки для установки стопорных колец (4 штуки);
) центральное отверстие с резьбой
;
) центровочное отверстие.
Исходя из выше перечисленного, способы дальнейшего упрощения конструкции
детали отсутствуют.
3.2 Выбор типа производства
Исходные данные:
) годовая программа - 2000 шт.;
2) режим работы предприятия - двухсменный.
Действующий годовой фонд времени работы оборудования определим по
формуле:
Fd=(D-d)h-SKp, ч (3.1)
где Fd - действующий годовой фонд времени
работы оборудования, час;
D -
количество календарных дней в году, D=365 дней;
d - количество
нерабочих дней, d=113 дней; h- продолжительность смены, h=8 часов;
S -
количество смен в сутки (режим работы предприятия), S=2;
Кр - коэффициент планируемых потерь рабочего времени, Кр=0,98.
Тогда: Fd=3912 час.
3.3 Выбор типа заготовки
При выборе заготовки для заданной детали главным критерием является
обеспечение заданного качества готового изделия при его минимальной
себестоимости.
Исходные данные необходимые для выбора вида заготовки и способа ее
получения:
1) материал заготовки - Сталь 40Х ГОСТ 4543-71;
) плотность материала, кг/м3 - 7850;
) масса детали, кг - 42 кг;
) годовая программа, шт. - 2000 шт.
Масса заготовки равна 60 кг (расчет произведен в САПР «КОМПАС»). Q= 60
кг.
3.3.1 Себестоимость заготовки из проката
Для заготовки выбираем прокат сортовой круглый горячекатаный диаметром
145 мм по ГОСТ 2590-71.
Себестоимость заготовки из проката найдем по формуле:
Sзаг.=M+ΣCо.з, руб. (3.2)
где М - затраты на материал, руб.;
ΣCо.з- технологическая себестоимость
операций правки, калибрования прутков, разрезки их на штучные заготовки найдем
по формуле:
Cо.з= (Cп.з ∙Тшт(ш-к))/60,
руб (3.3)
где Cп.з - приведенные затраты на рабочем
месте, руб/ч.
Примем 340 руб/ч.
Тшт(ш-к) - штучное или штучно калькуляционное время выполнения
заготовительной операции (правки, калибрования, разгрузки и др.) мин.
М=((Q∙S-(Q-q)Sотх))./1000, руб. (3.4)
где: Q - масса заготовки, кг;
S -
цена 1 кг. Материала заготовки, руб.;
q -
масса готовой детали, кг;
Sотх - цена 1 т. отходов, руб.
М=(60∙38-(60-42)∙90)/1000=2118 руб.
Со.з=35,12 руб., Тшт= 6,2 мин - штучное время при
отрезке.
Sзаг1=2118+35,12=2153,12 руб.
3.3.2 Стоимость заготовки при отливке
Стоимость заготовок, получаемых методом отливок можно определить
достаточно точно по приведенной ниже формуле:
SЗАГ=((CiQ3kckbkmkmkn)/1000)-((Q3-Q)Sотх.)/1000), руб (3.5)
где Ci- базовая стоимость тонны заготовки,
руб./т;
kt - коэффициент зависящий от точности;
kc - коэффициент сложности заготовки;
kb - коэффициент массы отливок;
km - коэффициент материала;
kn - коэффициент объема производства;
Qзаг - масса заготовки, кг.
Поскольку разница в стоимости производства минимальна, то рациональней
выбрать производство с помощью горячекатанного проката.
3.4 Составление маршрута обработки детали
Маршрут обработки составляется с учетом сокращения трудоемкости и
удобства изготовления детали.
Технологический процесс обработки детали предусматривает несколько
стадий. Если рассматривать данный процесс в укрупненном плане, то необходимо
выделить черновую обработку и окончательную (абразивными инструментами). Каждая
из этих стадий разбивается на необходимое количество технологических операций.
В описании технологического процесса не указываются такие операции как
смазка, упаковка, нанесение специальных покрытий и т. д.
На стадии эскизного проектирования выбираем схему технологического
процесса: заготовка - горячекатанный прокат.
Технологический процесс производится по операциям, с перечислением
переходов.
Выделим основные операции при изготовлении детали типа «дебалансный вал»:
) токарная (токарная обработка поверхностей);
) фрезерная (фрезеровка поверхностей);
) сверлильная (сверление отверстий);
) слесарная (притупление острых кромок);
) круглошлифовальная (шлифовка поверхностей);
) контрольная.
Маршрут обработки детали:
- токарная операция (1 установ) с ЧПУ;
- токарная операция (2 установ) с ЧПУ;
- фрезерная операция;
- фрезерная операция;
- фрезерная операция;
- сверлильная операция;
- слесарная операция;
- термическая операция;
- круглошлифовальная операция;
- контрольная операция.
Можно предложить следующий порядок операций по переходам:
- Токарная операция
. Подрезать торец Ø145 мм до Ø-1,5 мм на ширинуt=0,5 мм.
. Точить наружный диаметр предварительно по контуру ступенчато Ø145 мм до Ø91,5 мм на длину L=134,9 мм; до Ø101,5 мм L=263,45 мм, до Ø141,5 мм L=265 мм.
. Точить наружный диаметр окончательно ступенчато Ø90,4 мм на L=135 мм; до Ø100,4 мм на длину L=264 мм; с образованием фасок 2
45 мм.
. Точить 2 канавки под стопорные кольца Ø96,5 мм, L=166 мм, L=216
мм.
. Сверлить центральное отверстие L=40 мм.
- Токарная операция (установ №2)
. Подрезать торец Ø145 до Ø-1,5, t=0,5 мм.
. Точить наружный диаметр предварительно по контуру Ø145 мм до Ø141,5 мм L=196 мм; с образованием фасок 2∙45 мм.
.Точить наружный диаметр окончательно Ø141,5 мм до Ø140,5 мм окончательно L=196 мм.
.Точить 2 канавки под стопорные кольца Ø96,5 мм на L=10 мм и L=60
мм.
. Центровать центральное отверстие.
- Фрезерная операция 1. Снять 4 лыски, фрезеровать диаметр Ø145
мм, с 4-х сторон до
образования прямоугольника 100
110 мм.
. Снять 4 лыски, фрезеровать диаметр Ø145 мм, с 4-х сторон до образования
прямоугольника 100
110 мм, на L=90
мм.
- Фрезерная операция
. Фрезеровать шпоночные пазы.
. Фрезеровать Т - образные пазы, в количестве 3-х штук, на расстоянии
друг от друга 30 мм, на глубину 10 мм.
-Фрезерная операция
. Фрезеровать шпоночный паз шириной s=25 мм, L=100
мм, t=9 мм, на расстоянии от торца 20 мм.
- Сверлильная операция
. Сверлить отверстия Ø10 мм в количестве 3-х штук, на
глубину 110 мм. электродвигатель размол порошок
дебалансный
- Слесарная операция
. Притупить острые кромки.
. Нарезать резьбу по центральному отверстию
.
- Термическая обработка
. Закалка в масле.
. Отпуск.
- Круглошлифовальная операция
. Шлифовать посадочные места подшипников.
. Шлифовать посадочное место шкива.
- Контрольная операция
. Контролировать габаритные размеры посадочных мест.
. Контролировать шероховатость поверхностей.
. Контролировать расположение и соосность центровочных отверстий.
. Контролировать шпоночный паз.
. Контролировать Т - образные шпоночные пазы.
. Контролировать канавки.
3.5 Выбор и расчет припусков на обработку
Припуск на обработку предназначен для того, чтобы с помощью
размерной обработки снять слой материала по каждой обрабатываемой
поверхности и получить требуемую точность, шероховатость и макрометрию.
Для вала определим припуски наиболее характерного размера 140h14, так как именно этот размер
определяет припуски на все остальные размеры детали.
Расчетное определение припусков производят по принципу определения
минимально допустимого припуска
по формуле:
(3.6)
Методы горячей обработки дают суммарную глубину дефекта поверхности около
600 мкм, следовательно:
(3.7)
Погрешность установки E
принимается в пределах (80
мкм.
Погрешность пространственного искажения рассчитывается по формуле:
(3.8)
где Ро- удельная кривизна, мкм/мм;
- линейный размер, мм.
.
Таким образом, гарантированный припуск на обработку будет равен:
Необходимо так же учитывать допуск на размер заготовки
. В данном случае по 14 квалитету
точности
=1600 мкм.
3.6 Выбор и расчет режимов резания
Рассчитаем режимы резания для токарной обработки. Точение это
механическая обработка резанием наружных и внутренних поверхностей вращения;
точение - сочетание двух движений - вращения заготовки и линейного перемещения
инструмента.
При подаче инструмента вдоль оси заготовки обеспечивается диаметральный
размер детали, при подаче инструмента к оси заготовки обеспечивается линейный
размер детали (подрезка торца).
Для получения профильной поверхности подачи комбинируются в двух
направлениях.
Расчет режимов резания проведем на примере обработки наружной поверхности
Ø140h14 в два перехода черновое и чистовое
точение. Режущий инструмент - резец проходной отогнутый правый по ГОСТ
18880-73. Пластинка твердого сплава Т15К6. Державка 25∙20, L=140 мм.
3.6.1 Расчет скорости резания
Припуск на данной поверхности определен выше 5 мм, глубину резания t принимаем: для черновых проходов t1 = 2 мм, чистового прохода tчист = 0,5 мм.
Выбираем подачу: при черновом точении Sчерн = 0,8-1,3 мм/об, принимаем Sчерн=1,2 мм/об, при чистовом точении Sчист = 0,28 - 0,36 мм/об, принимаем Sчист = 0,32 мм/об [9, т. 2, с. 268, таблице 14].
Скорость резания при наружном продольном точении определяем по формуле
[9, т. 2, с. 265]
V=CV/(Tm∙tx∙Sy)KV, м/мин (3.9)
где СV -
коэффициент материала;
XVS, YV - показатели степени, табличное значение;
T -
период стойкости инструмента, мин;
t -
глубина резания, мм;
S -
подача, мм/об.
Каждый из этих коэффициентов отражает влияние на скорость резания
определенных факторов.
KV= KMV∙KnV∙KuV∙KqV∙KOV (3.10)
где KMV - качество обрабатываемого
материала;
KnV - состояние поверхности заготовки;
KuV - материал режущей части;
KqV - поперечное сечение державки;
KOV - вид обработки.
Период стойкости инструмента принимаем Т=60 мин. По таблицам находим [9,
т. 2, с. 269, таблице 17]:
1. Для черновой обработки: CV=340; XV=0,15;YV=0,45; m=0,2.
. Для чистовой :CV=420; XV=0,15;YV=0,2; m=0,2.
По таблицам [14, т. 2, с. 261-269, таблице 4-9] находим:
KMV=(150/НВ)1,25 (3.11)
KMV=(150/179)1,25= 0,8.
Примем для черновой обработки KuV=0,83; KrV =0,94.
Примем для чистовой обработки KuV=1,25; KrV =1,03; KqV =1; KOV=1,04; KnV=1,4.
Для черновой обработки:
KV= KMV∙KnV∙KuV∙KqV∙KOV∙KrV=0,8∙1,4∙0,83∙1∙0,94∙1,04=0,9.
Для чистовой обработки:
KV= KMV∙KnV∙KuV∙KqV∙KOV∙KrV=0,8∙1,4∙1,25∙1∙1,03∙1,04=1,5.
Для черновой обработки:
Для чистовой обработки: V=265,82
м/мин.
Расчетная частота вращения шпинделя:
nчерн.=1000∙150,44/3,14∙368=130,19
об/мин,
nчист.=1000∙265,82/3,14∙334=256,34
об/мин.
Действительная скорость резания: уточняем по характеристике станка: nчерн.=160 об/мин, nчист.= 250 об/мин.
μчерн.=3,14∙368∙100/1000=115,52
м/мин,
μчерн.=3,14∙334∙100/1000=104,87
м/мин.
Расчет силы резания.
Составляющие силы резания при токарной обработке определяются по формуле,
см. [9,т.2 с. 271]:
Pz(Py, Px) = Cp∙tx∙sy∙Vn∙KP, Н
(3.13)
где Ср ,х, у, np- коэффициенты, определяются [9, т. 2, с. 273];
t -
глубина резания;
S -
подача;
V -
скорость резания;
Kp - поправочный коэффициент на силу резания [9, с. 271].
Kp= KMР∙KφР∙KγР∙KλР∙KrР (3.14)
где KMР - механических свойств материала;
KφР - главного угла в плане;
KγР - переднего угла;
KλР - угла при вершине;
KrР - радиуса при вершине.
По таблицам [9, т. 2, с. 264, таблица 9] находим:
KMР=(σв/750)n (3.15)
где nP=0,73, тогда
0,1; KφР=1; KγР=1; KλР=1,0.
) для составляющей Pz: KrР=0,9;
) для составляющей Py: KrР=0,8;
) для составляющей Px: KrР=1,0.
Для составляющей Pz:
Kp= KMР∙KφР∙KγР∙KλР∙KrР = 0,1∙1∙1∙1∙0,91=0,091.
Для составляющей Py:
Kp= KMР∙KφР∙KγР∙KλР∙KrР = 0,1∙1∙1∙1∙0,80=0,08.
Для составляющей Px:
Kp= KMР∙KφР∙KγР∙KλР∙KrР = 0,1∙1∙1∙1∙1=0,1.
Выбираем значения из таблиц:
Для составляющей Pz: Ср = 300; хр= 1,0; ур = 0,75; nр = -0,15.
Для составляющей Py: Ср = 243; хр= 0,9; ур = 0,6; nр = -0,3.
Для составляющей Px: Ср = 339; хр= 1,0; ур = 0,5; nр = -0,4.
Для черновой обработки:
Pz=300∙2∙1,20,75∙130-0,15∙
0,091∙9,81=299,2 Н,
Py=243∙20,9∙1,20,6∙130-0,3∙
0,08∙9,81=95,34 Н,
Px=339∙2∙1,20,5∙130-0,4∙ 0,1∙9,81=108,5
Н.
Для чистового точения:
Pz=300∙0,5∙0,320,75∙256-0,15∙
0,091∙9,81=24,4 Н,
Py=243∙0,50,9∙0,320,6∙256-0,3∙
0,08∙9,81=20,6 Н,
Px=339∙0,5∙0,320,5∙256-0,4∙
0,1∙9,81=9,31 Н.
Для определения эффективной мощности резания применяем формулу:
Nрез.= Pz∙V/60∙1020 ≤ Nст∙ η, кВт (3.16)
где Nст - мощность станка, было принято для
станка 16А20Ф3, 11 кВт;
η - КПД станка, принимаем η=0,82.
Nст∙ η=11∙0,82=9,2 кВт.
При черновом точении:
Nрез.= 299∙130/60∙1020=0,63
кВт.
При чистовом точении:
Nрез.= 24∙256/60∙1020=0,1 кВт.
1 токарная с ЧПУ. Данные расчетов сводим в таблицу 3.3.
Таблица 3.3. Режимы резания по переходам
|
Операция, Технологические
переходы
|
Элементы режимов резания
|
|
t, мм
|
S, мм/об
|
Vp, м/мин
|
n, об/мин
|
S, м/мин
|
|
Подрезать торец Æ145 до размера по ширине 463+2
|
2
|
2
|
220
|
460
|
160
|
|
Проточить Æ141,5 на длине L=265 мм
|
2
|
1,2
|
240
|
520
|
173
|
|
Точить Æ101,5 на длину L=263,45 мм
|
2
|
1,4
|
240
|
520
|
173
|
|
Точить Æ91,5 на длину L=134,9 мм
|
2
|
1,4
|
240
|
520
|
176
|
|
Точить Æ140h14 на длину L=265 мм
|
0,5
|
2
|
280
|
630
|
224
|
|
Точить Æ100,4h11 на длину L=263,5 под
шлифовку
|
0,5
|
2
|
280
|
630
|
225
|
|
Точить Æ90,4h11 на длину L=135, под
шлифовку
|
0,5
|
2
|
280
|
630
|
224
|
|
Проточить фаску 2∙45
на Æ90,4h11
|
2
|
1,2
|
104
|
630
|
220
|
|
Точить канавку Æ96,5 шириной h=3H9,
на длине L=166 мм
|
3
|
0,6
|
94
|
315
|
72
|
|
Точить канавку№2 Æ96,5 шириной h=3H9,
на длине L=216 мм
|
3
|
0,6
|
95
|
315
|
72
|
|
Центровать центральное
отверстие на длину L=5 мм
|
6
|
0,5
|
63
|
260
|
54
|
токарная с ЧПУ (установ №2).
Режимы резания представлены в таблице 3.4.
Таблица 3.4. Режимы резания по переходам
|
Операция, Технологические
переходы
|
Элементы режимов резания
|
|
t, мм
|
S, мм/об
|
Vp, м/мин
|
n, об/мин
|
S, м/мин
|
|
Подрезать торец Æ145 до размера 461мм
|
2
|
2
|
220
|
460
|
160
|
|
Проточить Æ141,5 на длине L=196
|
2
|
1,2
|
240
|
520
|
173
|
|
ТочитьÆ101,5на длину L=107,45
|
2
|
1,4
|
240
|
520
|
173
|
|
Точить Æ140h14 на длину L=196
|
0,5
|
2
|
280
|
630
|
224
|
|
Точить Æ100,4h11 на длину L=107,5 под
шлифовку
|
0,5
|
2
|
280
|
630
|
225
|
|
Проточить фаску 2∙45
на Æ100h14
|
2
|
1,2
|
104
|
630
|
220
|
|
Точить канавку Æ96,5 шириной h=3H9,
на длине L=10 мм
|
3
|
0,6
|
94
|
315
|
72
|
|
Точить канавку№2 Æ96,5 шириной h=3H9,
на длине L=60 мм
|
3
|
0,6
|
95
|
315
|
72
|
|
Центровать центральное
отверстие на длину L=7 мм
|
6
|
0,5
|
63
|
260
|
54
|
1 фрезерная операция. Режимы резания представлены в таблице 3.5.
Таблица 3.5. Режимы резания на фрезерную операцию
|
Операция, Технологические
переходы
|
Элементы режимов резания
|
|
t, мм
|
S Зуб.
|
Vp, м/мин
|
n, об/мин
|
|
Фрезеровать лыску №1 на
длину L=90мм
|
10
|
0,1
|
185
|
390
|
|
Фрезеровать лыску №2 на
длину L=90мм
|
10
|
0,1
|
185
|
390
|
|
Фрезеровать лыску №3 на
длину L=90мм
|
10
|
0,1
|
185
|
390
|
фрезерная операция. Режимы резания на фрезерную операцию показаны в
таблице 3.6.
Таблица 3.6. Режимы резания на фрезерную операцию
|
Операция, Технологические
переходы
|
Элементы режимов резания
|
|
t, мм
|
S Зуб.
|
Vp, м/мин
|
n, об/мин
|
|
Фрезеровать шпоночный паз
№1 на длине L=278,5 от торца
|
10
|
0,09
|
51
|
1100
|
|
Фрезеровать шпоночный паз
№2 на длине L=308,5 от торца
|
10
|
0,09
|
51
|
1100
|
|
Фрезеровать шпоночный паз
№3 на длине L=338,5 от торца
|
10
|
0,09
|
51
|
1100
|
|
Фрезеровать Т-образный
шпоночный паз №1 на длине L=278,5 от торца
|
10
|
0,09
|
53
|
367
|
|
Фрезеровать Т-образный
шпоночный паз №2 на длине L=308,5 от торца
|
10
|
0,04
|
51
|
367
|
|
Фрезеровать Т-образный
шпоночный паз №3 на длине L=338,5 от торца
|
10
|
0,04
|
51
|
367
|
фрезерная операция. Режимы резания представлены в таблице 3.7.
Таблица 3.7. Режимы резания на фрезерную операцию
|
Операция, Технологический
переход
|
Элементы режимов резания
|
|
t, мм
|
S зуб
|
Vp, м/мин
|
n, об/мин
|
10
|
0,09
|
51
|
1010
|
Сверлильная операция. Режимы резания представлены в таблице 3.8.
Таблица 3.8. Режимы резания на сверлильную операцию
|
Операция, Технологические
переходы
|
Элементы режимов резания
|
|
t, мм
|
S, мм/об
|
Vp, м/мин
|
n, об/мин
|
|
Сверлить отверстие № 1,2,3 Æ10 мм на длине 278,5 мм, 308,5мм, 338,5мм от торца
детали до конечных точек обработки
|
100
|
0,05
|
30
|
710
|
Круглошлифовальная операция. Режимы резания на шлифовальную операцию
представлены в таблице 3.9.
Таблица 3.9. Режимы резания на сверлильную операцию
|
Операция, Технологические
переходы
|
Элементы режимов резания
|
|
t, мм
|
L, мм
|
Vp, м/мин
|
n, об/мин
|
S, м/мин
|
|
Шлифовать посадочные места
подшипников
|
0,5
|
47
|
-
|
-
|
-
|
|
Шлифовать посадочное место
под шкив
|
0,5
|
100
|
240
|
520
|
173
|
3.7 Техническое нормирование операций
Операция 005. Токарная с ЧПУ. Станок 16А20Ф3.
Время будем рассчитывать на лезвийную обработку одним инструментом. Время
на установку и закрепление, освобождение и снятие делали в 3-х кулачковом
патроне, производим при помощи кран-балки - 3,9 мин. [4, с. 53, карта 3].
Переход № 1.
Используем резец закрепленный на суппорте станка. Подрезать торец Æ145 мм до размера по длине вала L=461+2мм. Время на подвод
резца - 0,1 мин. Режимы резания (таблица 3.3). Глубина резания t=2 мм. Подача:
S=2 мм/об. Число оборотов шпинделя: n =460 об/мин.
Основное (машинное) время:
Tо=(l+l2)/S∙n∙i, мин (3.17)
где l - длина обработки.
При подрезки торца с учетом подвода: L=155мм;
где l2 - перебег резца, равен 1 мм; - подача, мм/об; - число
проходов, равно 1;- число оборотов шпинделя.
Tо=(155+1)/2∙460∙1=0,17
мин.
Время на отвод резца в исходное положение - 0,1 мин.
Переход 2.
Проточить Æ141,5 на длине L=265
мм.
Режимы резания: глубина постоянная, t = 2 мм; подача: S= 1,2 мм/об;
скорость резания: V =240 м/мин; число оборотов шпинделя: n = 520 об/мин;
Время на поворот резцедержателя (смена резца) - 0,07 мин. Время на подвод
резца - 0,1 мин.
Основное (машинное) время (точение до упора):
Tо=l/S∙n∙i, мин (3.18)
где l - длина обработки, при продольном точении в упор, L=270 мм;- подача, мм/об; - число
проходов=1;- число оборотов шпинделя: n = 520 об/мин.
Tо=270/1,2∙520∙1=0,43 мин.
Время на отвод резца в исходное положение - 0,1 мин.
Переход 3.
Проточить Æ101,5 на длине L=263,45
мм; Режимы резания: глубина постоянная, t=2 мм; подача: S=1,4 мм/об; скорость
резания: V=240 м/мин; число оборотов шпинделя: n=520 об/мин; Время на поворот
резцедержателя (смена резца) - 0,07 мин. Время на подвод резца - 0,1 мин.
Tо=264/1,2∙520∙10=4,2 мин.
Время на отвод резца в исходное положение - 0,1 мин.
Переход 4.
Проточить канавку Æ96,5 мм. Используем резец: канавочный. Время на
подвод резца - 0,1 мин. Режимы резания: глубина постоянная t = 4 мм;
Подача: S=0,6 мм/об; Скорость резания: V=95 м/мин.; n=315 об/мин.
Tо=4/0,6∙315=0,04 мин.
Время на отвод резца в исходное положение - 0,10 мин.
Определение, штучного, подготовительно - заключительного и
штучно-калькуляционного времени на операцию.
Вспомогательное и основное машинное время определены при нормировании
переходов:
То =
0,17+0,43+4,2+0,36+0,49+0,46+0,24+0,02+0,04+0,04+1,12+2,57 =10,14 мин,
Tвсп=3,9+0,1+0,1+0,07+0,1+0,1+0,1+0,1+0,1+0,1+0,07+0,1+0,1+0,1+0,1=6,75
мин.
Штучное время определяем по формуле:
Тшт= То +Tвсп(1+ х/100) = 10,14+6,75(1+1,1/100) =
17,9 мин.
Число деталей в партии n =
2000 шт.
Согласно [9, т. 1, с. 604] единая норма подготовительно-заключительного
времени для станков с ЧПУ , Тп.з.= 12 мин.
Штучно-калькуляционное время определяем по формуле:
Тшт.к.=Тшт.+(Тп.з./n), мин (3.19)
где n - число деталей в партии.
Подставляем значения:
Тшт.к.=17,9+(12/2000)=17,92 мин.
Аналогично проводим расчет основного времени для остальных операций с
использованием ЧПУ, результаты заносим в таблицу 3.10.
Определение, штучного, подготовительно - заключительного и
штучно-калькуляционного времени на технологический процесс изготовления детали.
- токарная с ЧПУ (установ №1).
Таблица 3.10. Определение времени на технологический процесс
|
Технологические переходы
|
Элементы нормирования
|
|
L мм
|
S, мм/об
|
n, об/мин
|
в минутах
|
|
|
|
|
ТО
|
Твсп
|
Тшт
|
Тпз
|
Тшт-к
|
|
Подрезать торец Æ145 до размера по ширине 463+2
|
73,5
|
2
|
460
|
0,17
|
0,2
|
|
|
|
|
Точить Æ101,5 на длину L=263,45
|
263,4
|
1,4
|
520
|
4,2
|
0,2
|
|
|
|
|
Точить Æ 91,5 на длину L=134,9
|
134,9
|
1,4
|
520
|
0,36
|
0,2
|
|
|
|
|
Точить Æ140h14 на длину L=265
|
265
|
2
|
630
|
0,49
|
0,27
|
|
|
|
|
Точить Æ100,4h11 на длину L=263,5 под
шлифовку
|
263,5
|
2
|
630
|
0,46
|
0,2
|
|
|
|
|
Точить Æ90,4h11 на длину L=135, под
шлифовку
|
135
|
2
|
630
|
0,24
|
0,2
|
|
|
|
|
Проточить фаску 2∙45
на Æ90,
4h11
|
2
|
1,2
|
630
|
0,02
|
0,27
|
|
|
|
|
Точить канавку №1 Æ96,5 шириной h=3H9
|
2
|
0,6
|
315
|
0,04
|
0,2
|
|
|
|
|
Точить канавку №2 Æ96,5 шириной h=3H9,
на длине L=216 мм
|
2
|
0,6
|
315
|
0,04
|
0,2
|
|
|
|
|
Центровать центральное
отверстие на длину L=7 мм
|
7
|
0,5
|
260
|
1,12
|
0,27
|
|
|
|
|
Сверлить центральное
отверстие на глубину L=40 мм
|
40
|
0,6
|
630
|
1,57
|
0,2
|
|
|
|
|
Итого:
|
|
17,9
|
12
|
17,92
|
-токарная с ЧПУ (установ №2). Результаты приведены в таблице 3.11.
По данной операции выполняется расчет токарной операции с числовым
программным управлением, так же составляется управляющая программа (далее УП).
Таблица 3.11. Определение времени на технологический процесс
|
Технологические переходы
|
Элементы нормирования
|
|
l, мм
|
S, мм/об
|
n, об/мин
|
в минутах
|
|
|
|
|
То
|
Твсп
|
Тшт
|
Тпз
|
Тшт-к
|
|
Подрезать торец Æ145 до размера по ширине 461+2
|
73,5
|
2
|
460
|
0,17
|
0,2
|
|
|
|
|
Проточить Æ141,5 на длину L=196
|
196
|
1,2
|
520
|
0,39
|
0,27
|
|
|
|
|
Точить Æ101,5 на длину L=107,45
|
107,4
|
1,4
|
520
|
2,1
|
0,2
|
|
|
|
|
Точить Æ140h14 на длину L=196
|
196
|
2
|
630
|
0,42
|
0,27
|
|
|
|
|
Точить Æ100,4h11 на длину L=107,5 под
шлифовку
|
107,5
|
2
|
630
|
0,35
|
0,2
|
|
|
|
|
Проточить фаску 2∙45
на Æ100h14
|
2
|
1,2
|
630
|
0,02
|
0,2
|
|
|
|
|
Точить канавку Æ96,5 шириной h=3H9,
на длине L=10 мм
|
2
|
0,5
|
315
|
0,04
|
0,2
|
|
|
|
|
Точить канавку№2 Æ96,5 шириной h=3H9,
на длине L=60 мм
|
2
|
0,5
|
315
|
0,04
|
0,2
|
|
|
|
|
Центровать центральное
отверстие на длину L=7 мм
|
7
|
0,6
|
260
|
1,12
|
0,27
|
|
|
|
|
Итого:
|
|
|
|
|
|
15
|
12
|
15,2
|
- фрезерная операция. Результаты обработки, переходов и режимов резания
для фрезерной обработки прямоугольной формы 100∙110 мм приведены в
таблице 3.12.
Фрезеруем поочередно 4 поверхности с образованием нужной нам формы
обрабатываемой поверхности за счет снимаемого слоя материала, инструментом типа
фреза «концевая».
Таблица 3.12. Определение нормы времени фрезерной операции
|
Операция, Технологические
переходы
|
Элементы нормирования
|
|
L мм
|
S, зуб
|
V, м/мин
|
в минутах
|
|
|
|
|
ТО
|
Тв
|
Тшт
|
Тпз
|
Тшт
|
|
Фрезеровать лыску №1 и №2
на длину 90 мм
|
90
|
0,1
|
185
|
0,5
|
0,1
|
|
|
|
|
Фрезеровать лыску №3,4 на
длину L=90 мм
|
90
|
0,1
|
185
|
0,5
|
0,1
|
|
|
|
|
Итого:
|
|
0,5
|
0,1
|
0,6
|
- фрезерная операция. Результаты приведены в таблице 3.13.
Таблица 3.13. Определение времени на технологический процесс
|
Операция, Технологические
переходы
|
Элементы нормирования
|
|
L мм
|
S, зуб
|
V, м/мин
|
в минутах
|
|
|
|
|
ТО
|
Твс
|
Тшт
|
Тпз
|
Тшт
|
|
Фрезеровать шпоночный паз
№1 на длине L=278,5 от торца
|
10
|
0,9
|
51
|
0,5
|
0,1
|
|
|
|
|
Фрезеровать шпоночный паз
№2 на длине L=308,5 от торца
|
10
|
0,9
|
51
|
0,5
|
0,1
|
|
|
|
|
Фрезеровать шпоночный паз
№3 на длине L=338,5 от торца
|
10
|
0,9
|
51
|
0,5
|
0,1
|
|
|
|
|
Фрезеровать Т-образный
шпоночный паз №1 на длине L=278,5 от торца
|
10
|
0,4
|
53
|
2
|
0,4
|
|
|
|
|
Фрезеровать Т-образный
шпоночный паз №2 на длине L=308,5 от торца
|
10
|
0,4
|
53
|
2
|
0,4
|
|
|
|
|
Фрезеровать Т-образный
шпоночный паз №3 на длине L=338,5 от торца
|
10
|
0,4
|
53
|
2
|
0,4
|
|
|
|
|
ИТОГО:
|
|
7,5
|
1,5
|
9
|
- фрезерная операция. Результаты приведены в таблице 3.14.
Таблица 3.14. Определение времени на технологический процесс
|
Операция, Технологический
переход
|
Элементы нормирования
|
|
l, мм
|
S, ЗУБ
|
V, м/мин
|
в минутах
|
|
|
|
|
ТО
|
Твп
|
Тшт
|
Тпз
|
Тшт
|
|
Фрезеровать шпоночный паз
|
100
|
0,09
|
51
|
0,5
|
0,3
|
1,5
|
0,3
|
1,8
|
- сверлильная операция. Результаты приведены и пронумерованы в таблице
3.15, расчеты производятся по установленным для сверлильной операции
параметрам.
Таблица 3.15. Определение времени на технологический процесс
|
Операция, Технологические
переходы
|
Элементы нормирования
|
|
L мм
|
S, мм/об
|
nф,
об/мин
|
|
|
|
|
ТО
|
Тв
|
Тшт
|
Тпз
|
Тшт
|
|
Сверлить отверстие №1 Æ10 мм на длине L=278,5 от
торца
|
110
|
0,05
|
710
|
1,05
|
0,21
|
|
|
|
|
Сверлить отверстие №2 Æ10 мм на длине L=308,5 от
торца
|
110
|
0,05
|
710
|
1,05
|
0,21
|
|
|
|
|
Сверлить отверстие №3 Æ10 мм на длине L=338,5 от
торца
|
110
|
0,05
|
710
|
1,05
|
0,21
|
|
|
|
|
Итого:
|
|
|
|
|
|
3,8
|
0,9
|
4,69
|
- круглошлифовальная операция. Результаты приведены в таблице 3.16.
Таблица 3.16. Определение времени на технологический процесс
|
Операция, Технологические
переходы
|
Элементы нормирования
|
|
L мм
|
S, мм/об
|
nф,
об/мин
|
в минутах
|
|
|
|
|
ТО
|
Твс
|
Тшт
|
Тпз
|
Тшт-к
|
|
Шлифовать 100к7
|
50
|
-
|
-
|
1,2
|
0,24
|
|
|
|
|
Шлифовать посадочное место
под шкив
|
135
|
-
|
-
|
0,6
|
0,12
|
|
|
|
|
Итого:
|
|
1,68
|
0,48
|
2,16
|
3.8 Выбор оборудования
Выбор оборудования осуществляется на основании следующих данных:
) метод обработки;
) точность обработки;
) шероховатость поверхностей;
) габаритных размеров заготовки;
) количества инструментов в суппорте станка;
) эффективность использования станка по времени, мощности;
) типа производства.
Для токарных операций 005, 010 используем станок 16А20Ф3, предназначен
для обработки деталей типа тел вращения в замкнутом полуавтоматическом цикле.
Технические данные токарного станка модели 16А20Ф3 приведены в таблице 3.17, общий
вид представлен на рисунке 3.1.
Таблица 3.17. Технические данные токарного станка модели 16А20Ф3
|
Параметры
|
Значения
|
|
Наибольший диаметр изделия,
устанавливаемого над станиной, мм
|
500
|
|
Наибольший диаметр
обрабатываемого изделия, мм - над станиной - над суппортом
|
320 200
|
|
Наибольшая длина
устанавливаемого изделия в центрах, мм
|
1000
|
|
Наибольшая длина
обрабатываемого изделия при 8-ми позиционной головке, мм
|
750
|
|
Диаметр цилиндрического
отверстия в шпинделе, мм
|
55
|
|
Наибольший ход суппорта, мм
- поперечный - продольный
|
210 905
|
|
Максимальная скорость
быстрых перемещений, мм/мин - продольных - поперечной
|
15000±6% 7500±6%
|
|
Пределы частот вращения
шпинделя, мм 20...2500
|
20...2500
|
|
Количество одновременно
управляемых координат
|
2
|
Рисунок 3.1. Общий вид токарного станка модели 16А20Ф3
Для фрезерных операций 015,020,025 используем станок 6Р12, станки модели
предназначены для сверления, фрезерования и растачивания заготовок любой формы
из различных материалов - стали, чугуна, цветных металлов.
Технические данные фрезерного станка модели 6Р12 указаны в таблице 3.18.
Таблица 3.18 - Технические данные фрезерного станка модели 6Р12
|
Параметры
|
Значения
|
|
Рабочая поверхность стола,
мм
|
1250х320
|
|
Перемещение стола, мм,
наибольшее продольное поперечное вертикальное
|
800 320 420
|
|
Перемещение пиноли шпинделя
на одно деление / оборот лимба, мм
|
0,05 / 4
|
|
Диаметр фрез при черновой
обработке, мм, наибольший
|
160
|
|
Расстояние, мм от торца
вертикального (оси горизонтального) шпинделя до рабочей поверхности стола,
мм от оси шпинделя до направляющих станины От оси Х до противоположного
значения Х От Y пиноли
|
30-450 380
|
|
Частота вращения
горизонтального или вертикального шпинделя, мин-1
|
31,5-1600
|
|
Подача, мм/мин продольная и
поперечная вертикальная
|
12,5-1600 4,1-530
|
|
Угол поворота шпиндельной
головки, град
|
45
|
|
Мощность, кВт привода
главного движения привода подач
|
7,5 3
|
|
Масса обрабатываемой детали
(вместе с приспособлением), кг
|
400
|
|
Габаритные размеры, мм
длина ширина высота
|
2280 1965 2265
|
На рисунке 3.2 показан общий вид фрезерного станка модели 6Р12.
Для сверлильной операции 030, используем станок 2Н150, предназначенный
для сверления, рассверливания, зенкования, развертывания, нарезания резьбы;
наличие на станке механической подачи шпинделя, при ручном управлении циклами
работы, допускает обработку деталей в широком диапазоне размеров. применяется в
условиях единичного и серийного производства. Технические данные сверлильного
станка модели 2Н150 указаны в таблице 3.19.
Рисунок 3.2. Общий вид фрезерного станка модели 6Р12
Таблица 3.19. Технические данные сверлильного станка модели 2Н150
|
Параметр
|
Значение
|
|
Наибольший диаметр
сверления в стали 45 ГОСТ 1050-74, мм
|
50
|
|
Размеры конуса шпинделя по
ГОСТ 25557-82
|
Морзе 5
|
|
Расстояние от оси шпинделя
до направляющих колонны, мм
|
350
|
|
Наибольший ход шпинделя, мм
|
300
|
|
Расстояние от торца
шпинделя, мм: - до стола - до плиты
|
0-800 700-1250
|
|
Наибольшее (установочное)
перемещение сверлильной головки, мм
|
250
|
|
Перемещение шпинделя за
один оборот штурвала, мм
|
131,68
|
|
Рабочая поверхность стола,
мм
|
500∙560
|
|
Наибольший ход стола, мм
|
360
|
|
Установочный размер
Т-образных пазов в столе по ГОСТ 1574-75: - центрального - крайних
|
18H9 18H11
|
|
Расстояние между двумя
Т-образными пазами по ГОСТ 6569-75, мм
|
100
|
|
Количество скоростей
|
12
|
|
Пределы частоты вращения
шпинделя, 1/мин
|
22,4 - 1000
|
|
Количество подач
|
12
|
|
Пределы подач, мм/об
|
0,05 - 2,24
|
|
Наибольшее количество
нарезаемых отверстий в час
|
50
|
|
Род тока питающей сети
|
Трехфазный
|
|
Напряжение питающей сети, В
|
380/220
|
|
Габаритные размеры, мм: -
высота - ширина - длина
|
2930 890 1355
|
|
Масса станка, кг
|
1870
|
Сверлильный станок модели 2Н150 показан на рисунке 3.3.
Рисунок 3.3. Сверлильный станок модели 2Н150
На рисунке 3.4 показан общий вид круглошлифовального станка модели 3Т160. Для
круглошлифовальной операции 045, используем станок 3Т160, предназначенный для
одновременного шлифования наружной цилиндрической и торцовой поверхностей
деталей, при установке их в центрах в условиях крупносерийного серийного и
массового производств.
Технические данные круглошлифовального станка модели 3Т160 указаны в
таблице 3.20.
Таблица 3.20. Технические данные круглошлифовального станка модели 3Т160
|
Параметр
|
Значение
|
|
Год начала выпуска
|
1975
|
|
Класс точности: П
|
П
|
|
Наибольший диаметр
обрабатываемой детали, мм
|
280
|
|
Наибольшая длина
обрабатываемой детали, мм
|
1000
|
|
Длина шлифования, мм
|
130
|
|
Max частота вращения
шпинделя, об/м:
|
1250
|
|
Мощность, кВт:
|
17
|
Рисунок 3.4. Общий вид круглошлифовального станка модели 3Т160
3.9 Выбор режущего инструмента
Номенклатура режущего инструмента представлена в таблице 3.21.
Таблица 3.21. Ведомость режущего инструмента для токарной операции
|
№ операции
|
Технологический переход
|
Вид инструмента
|
|
005-токарная, установ №1
|
Т01- подрезать торец
|
Резец проходной упорный,
черновой Р6М5 ГОСТ 18869-73
|
|
Т01-Точить наружный контур
предварительно
|
Резец проходной упорный,
черновой Р6М5 ГОСТ 18869-73
|
|
Т02-Точить наружный контур
окончательно
|
Резец проходной упорный,
чистовой Т15К6 ГОСТ18879-73
|
|
Т03-Точить канавки
|
Резец канавочный наружный,
Р6М5 ГОСТ18874-73
|
|
Т04-Центровать центральное
отверстие
|
Сверло центровочное ГОСТ
14952-75
|
|
Т05-Сверлить центральное
отверстие
|
Сверло диаметром 8,5 мм, с
цилиндрическим хвостовиком ГОСТ 10902-77
|
3.10 Выбор измерительного инструмента
Для измерения размеров применяем штангенциркули по ГОСТ 166-83: ШЦ-III с пределами измерения: 0-150 мм;
0-500 мм. Шпоночный паз под посадку шкива - специальный калибр пробка, шаблон.
Т- образные шпоночные пазы контролируем - специальными калибрами
пробками.
Посадочные размеры подшипников 100k6, проверяем гладким микрометром с диапазоном измерений
75-100 мм, ГОСТ 6507-90.
Для контроля фасок используем шаблон.
3.11 Разработка обрабатывающей программы для станка с ЧПУ
Применяемые команды для токарного станка с ЧПУ:
% - начало программы;- номер кадра;- подготовительная функция;, Y, Z, R -
программирование геометрической информации;
X - перемещение
по вертикальной оси (оси X);-
быстрый подвод инструмента по оси Z;
L -
корректор инструмента;
М - вспомогательная функции;
S -
Функция скорости (скорость или частота вращения шпинделя);
F -
функция подачи;
Т - номер инструмента.
В качестве вспомогательных функций используются:
М02 - конец программы;
М03 - включение правого вращения шпинделя;
М04 - включение левого вращения шпинделя;
М05 - выключение шпинделя;
М08 - подача СОЖ (смазочной охлаждающей жидкости).
Для разработки УП для токарного станка с ЧПУ представим рисунок 3.5.
Данный рисунок содержит всю необходимую информацию для создания
последовательности обработки детали типа «дебалансный вал», назначения
инструмента, режимы резания, текст программы, представлены в таблице 3.22.
Деталь устанавливается в трехкулачковый патрон относительно нуля, по осям Х и Z определяемых установкой.
На рисунке 3.5 представлена последовательность токарной 005 обработки
детали (установ №1).
Тест управляющей программы, 1 токарная операция (установ №1) показан в таблице
3.22.
Предоставленный текст является универсальным для системы управления NC/110, соответственно текст
управляющей программы может использоваться на всех станках под управлением
системы NC/110. Для использования управляющей
программы на других типах станков требуется произвести коррекции в зависимости
от типа оборудования.
Рисунок 3.5. Последовательность токарной обработки
Таблица 3.22. Тест управляющей программы
|
№ кадра
|
Текст программы
|
Пояснение текста программы
|
|
%
|
Начало
|
|
1
|
(DIS “DIBALANSNYY VAL01”)
|
Вывод на дисплей названия
программы
|
|
2
|
M00
|
безусловный останов,
продолжение нажатием кнопки «Пуск»
|
|
3
|
G71 G91 G95 G97
X0Z0
|
Программа в мм,
относительная система координат, подача в мм/об, начальная точка X0Z0
|
|
4
|
T1.1 M06 S460M04
|
Выбор 1 инструмента и
коррекций, включение шпинделя (по часовой стрелке с частотой 460 об/мин),
включение СОЖ
|
|
5
|
G00 X150Z1
|
Позиционирование,
перемещение на координаты
|
|
6
|
G1 Z-2F0.2
|
Рабочий ход 3 мм, с подачей
0,2 мм/об
|
|
7
|
X-1.5
|
Перемещение на координату
|
|
8
|
Z1
|
Перемещение на координату
|
|
9
|
G0 X141.5
|
Ускоренный подвод в
координату
|
|
10
|
G1 Z-196F0.12
|
Рабочий ход с подачей 0,12
мм/об
|
|
11
|
G0 X143
|
Ускоренное перемещение на
координату
|
|
12
|
G82 X101.5
Z-107.45F0.14
|
Включение постоянного цикла
обработки с подачей 0,14 мм/об
|
|
13
|
G80
|
Выключение постоянного
цикла
|
|
14
|
T2.2 MO6 S630
M04
|
Выбор 2 инструмента и
коррекций, включение шпинделя (по часовой стрелке с частотой 630 об/мин),
включение СОЖ
|
|
15
|
G0 X98 Z1
|
Ускоренный подвод в
координату
|
|
16
|
G1 X100.5
Z-2F0.2
|
Рабочий ход с подачей 0,2
мм/об
|
|
17
|
X140.5
|
Перемещение на координату
|
|
18
|
Z-196
|
Перемещение на координату
|
|
19
|
G0 X143
|
Ускоренный отвод в
координату
|
|
20
|
X150 Z200 М05
|
Перемещение в начальную
точку, выключение шпинделя
|
|
21
|
T3.3MO6 S315M04
|
Выбор 3 инструмента и
коррекций, шпинделя.
|
|
22
|
G0 X102 Z1
|
Ускоренный подвод в
координату
|
|
23
|
Z-10
|
Перемещение на координату
|
|
24
|
G1 X96.5 F0.06
|
Рабочий ход с подачей 0,06
мм/об
|
|
25
|
G0 X102
|
Ускоренный отвод в
координату
|
|
26
|
Z-60
|
Перемещение на координату
|
|
27
|
G1 X96.5
|
Рабочий ход с подачей 0,06
мм/об
|
|
28
|
G0 X102
|
Ускоренный отвод в
координату
|
|
29
|
X150 Z200 М05
|
Перемещение в начальную
точку, выключение шпинделя
|
|
30
|
(DIS, TIM)
|
Вывод на экран времени
обработки
|
|
31
|
(TMR=3)
|
Пауза
|
|
32
|
M30
|
Сброс программы
|
|
33
|
%
|
Конец
|
Заключение
В соответствии с поставленной задачей разработана промышленная
вибрационная мельница для приготовления качественных дисперсных порошков,
отвечающая требованиям изготовления и эксплуатации в условиях
машиностороительного завода. Разработанная вибрационная мельница обеспечивает
повышение производительности примерно в 20...40 раз по сравнению с действующими
шаровыми мельницами, применяемыми для дисперсного размола, мельница удобна в
эксплуатации, технологична в изготовлении.
Вибромельница - рекомендуется, прежде всего, для изготовления
безвольфрамовых твердых сплавов со стальной связкой в условиях
машиностроительного производства.
Список использованных источников
1. Анурьев, В. И. Справочник конструктора машиностроителя:
вена венов 3-х томах / В. И. Анурьев. - Москва: Машиностроение, 1978. - Т. 1. -
416 с; Т. 2. - 560 с.
. Гидравлика, гидромашины и гидропневмопривод:авто агат
учебное пособие для вузов / под ред. С. П. Стесина. - 2-е изд., стер. - Москва:
Академия, 2006. - 334 с.: ил.
. Горбацевич, А. Ф. Курсовое проектирование по технологии
машиностроения: учебное пособие для вузов / А. Ф. Горбацевич, В. А. Шкред. -
Изд. 5-е, стер.; перепеч. с 4-го изд. 1983 г. - Москва: Альянс, 2007. - 255 с.
. Технология машиностроения: методические тара тароуказания
по выполнению курсового проекта: ФПМ: специальность 120100 / сост. С. В. Яняк.
- Вологда: ВоГТУ, 2001. - 14 с.
. Программирование станков с ЧПУ: методические указания к
практическим занятиям: ФПМиИТ: направление подготовки 15.03.01 -
Машиностроение: профиль подготовки "Технологии, оборудование и
автоматизация машиностроительных производств": направление подготовки
15.03.05 - Конструкторско-технологическое обеспечение машиностроительных
производств: профили подготовки "Металлообрабатывающие станки и
комплексы", "Технология машиностроения"/ [сост.: С. В. Яняк, В.
В. Яхричев]. - Вологда: ВоГУ, 2016. - 31 с.: ил.
. Методические рекомендации полорд лотооформлению выпускных
квалифи-кационных работ, курсовых проектов/работ для студентов очной,
очно-заочной (вечерней) и заочной форм обучения. - Вологда: ВоГУ, 2016. - 95 с.
. Аршинов, В. А. Резание металлов и вежа верарежущий
инструмент / В. А. Аршинов, Г. А. Алексеев. - Москва: Машиностроение, 1975. -
440
. Справочник технолога-машиностроителя: в 2-х т. / под ред.
А. Г. Косиловой и Р. К. Мещерякова. - Москва: Машиностроение, 1985. - Т. 1. -
490 с.; т. 2. - 496 с.
. Металлорежущие станки: учебник для вузов по специальностям
"Технология ложа ложемашиностроения", "Металлообрабатывающие
станки и комплексы" направления подготовки
"Конструкторско-технологическое обеспечение машиностроительных
производств": в 2 т. Т. 1/ [Т. М. Авраамова, Л. Я. Гиловой, С. И. Досько и
др.]; под ред. В. В. Бушуева. - Москва: Машиностроение, 2012. - 607 с.: ил.