Разработка проекта газоснабжения поселка городского типа от шкафного регуляторного пункта (ШРП) в Калининградской области природным газом

  • Вид работы:
    Дипломная (ВКР)
  • Предмет:
    Другое
  • Язык:
    Русский
    ,
    Формат файла:
    MS Word
    130,98 Кб
  • Опубликовано:
    2017-06-15
Вы можете узнать стоимость помощи в написании студенческой работы.
Помощь в написании работы, которую точно примут!

Разработка проекта газоснабжения поселка городского типа от шкафного регуляторного пункта (ШРП) в Калининградской области природным газом

Федеральное государственное автономное образовательное учреждение высшего образования

«Балтийский федеральный университет имени Иммануила Канта» (БФУ им. И. Канта)

Институт природопользования, территориального развития и градостроительства







ВЫПУСКНАЯ КВАЛИФИКАЦИОННАЯ РАБОТА

Разработка проекта газоснабжения поселка городского типа от шкафного регуляторного пункта (ШРП) в Калининградской области природным газом

Специальность: 08.02.08 Монтаж и эксплуатация оборудования и систем газоснабжения

Содержание

Введение

1. Теоретические аспекты проектирования и строительства систем газораспределения и газопотребления

.1 Описание организации строительства и монтажа систем газораспределения и газопотребления

1.2 Описание методов производства работ

1.3 Описание машин и механизмов

1.4 Описание технологических процессов эксплуатации систем газораспределения и газопотребления

1.5 Описание методов организации безопасности строительства, техника безопасности и охраны окружающей среды

2. Проектирование полиэтиленового газопровода и определение расходов газа на технологические нужды

.1 Характеристика газифицируемого объекта

.2 Гидравлические расчёты газопроводов

.3Продольный профиль трассы газопровода

.4 Подбор оборудования ШРП

.5 Подсчёт объёмов строительно-монтажных работ

.6 Выбор машин и механизмов

.7 Определение расходов газа на технологические нужды при продувке и ремонтных работах систем газоснабжения

.8 План локализации и ликвидации возможных аварийных ситуаций

Заключение

Список используемых источников

Введение

монтаж газораспределение технологический

Выпускная квалификационная работа выполнена в виде дипломного проекта.

Объектом исследования является микрорайон в городе Полесске, Калининградской области.

Первый раздел посвящён теоретическим аспектам проектирования и строительства систем газораспределения и газопотребления: организации строительства и монтажа систем газораспределения и газопотребления; методам производства работ; выбору машин и механизмов и технологии сварки; технологическим процессам эксплуатации систем газораспределения и газопотребления; методам организации безопасности строительства, технике безопасности и охраны окружающей среды.

Во втором разделе выполнено: проектирование и расчет систем газораспределения и газопотребления, гидравлический расчет системы газораспределения и газопотребления, построение профиля подземного газопровода, определение расхода газа на продувку и ремонт подземного газопровод, подсчет объёмов подготовительных и земляных работ.

Расположена в Центральной Европе. На юге граничит с Польшей, на севере и востоке - с Литвой (см. границу Калининградской области). На западе омывается Балтийским морем и его заливами - Куршским и Вислинским. Площадь - 15 125 км² (13,3 тыс. км² за вычетом площади заливов). Входит в состав Северо-Западного федерального округа и Калининградского экономического района. В пределах области находится крайняя западная точка России. Население - 986 261 чел. (по данным 2017 года). Административный центр - Калининград.

Климат Калининградской области обусловлен её географическим положением и является переходным от морского к умеренно-континентальному. Влияние Балтийского моря приводит к тому, что среднегодовые температуры увеличиваются с 6,5 °C на северо-востоке области до 7,5 °C на юго-западе. Максимальная разница среднемесячных температур наблюдается в январе-феврале (до двух градусов).

В заключении подводятся итоги проектирования, приводятся выводы.

Целью выпускной квалификационной работы является газоснабжение микрорайона от сети низкого давления природным газом с учетом обеспечения экологической и промышленной безопасности.

Для выполнения поставленных задач использовался комплекс взаимодополняющих методов исследования, таких как:

прокладка газопровода на строительном генеральном плане;

гидравлический расчёт газопровода;

моделирование подземного газопровода на продольном профиле;

подбор оборудования и механизмов;

расчёт объёмов земляных работ;

планирование расходов на технологические нужды.

Актуальность дипломного проекта обусловлена данными для расчёта строительно-монтажных работ, выбранными непосредственно по району проектирования. Данная сеть реализуема на реальном объекте.

Научная новизна дипломного проекта─ использование полиэтиленовых труб и электросварных фитингов, как экономически выгодных единиц строительной продукции для подземного газопровода.

Практическая значимость выражается применимостью полиэтиленовых труб и технологией выполнения стыков строительными компаниями для монтажа систем газораспределения и газопотребления.

1. Теоретические аспекты проектирования системы газораспределения и газопоребления

1.1 Организация строительства и монтажа системы газораспределения и газопотребления

Организация строительства начинается с подготовки пакета необходимой документации, получаемой в государственных органах и органах местного самоуправления на срок производства строительных работ:

·        Получение задания и технических условий на проектирование;

·        Получение плана объекта согласно кадастровому реестру;

·        Создание генерального плана с нанесением пересечений с коммуникациями;

·        Выполнение проекта строительства газопровода;

·        Получение согласований эксплуатационных организаций;

·        Получение разрешения на строительство газопровода от местных органов самоуправления;

·        Разрешение на производство работ в АТИ;

·        Иная дополнительная документация.

Строительство подземной газопроводной сети может осуществляться эксплуатационной организацией при наличии строительного отдела (подразделения) или подрядной организацией.

1.2 Описание методов производства работ

Метод производства работ выбирают после подсчета объемов работ, исходя из условий их выполнения механизированными способами, повышения производительности труда, сокращения сроков и снижения стоимости строительства. При строительстве наружных сетей газоснабжения необходимо принять поточно-расчлененный метод производства работ.

Основным фактором, определяющим решения календарного плана работ, является метод организации их проведения.

При строительстве газопроводов используют различные методы производства работ, а именно:

·        Поточный;

·        Поточно-расчленённый;

·        Параллельный.

Поточный метод

При поточном методе общий технологический процесс строительства газопровода разбивается на части (например, срез грунта, рытьё траншей, устройство основания, сварка и т.д.), которые выполняют отдельные бригады.

В этом случае работы на последующем объекте (захватке) начинают сразу после окончания на предыдущем объекте. Работы выполняются без перерыва.

Сущность поточного метода ─ организация последовательного, непрерывного и ритмичного производства строительных работ, что дает возможность эффективно использовать материальные и трудовые ресурсы.

Поточно-расчленённый метод

В поточно-расчленённом методе, как и в поточном, производится расчленение рабочего процесса на отдельные операции, но с наложением времени начала операции на незавершённый процесс предыдущей захватки.

Результатом поточно-расчленённого метода становится сокращение графика производства работ и повышение качества выполнения работ за счёт специализации исполнителей работ.

Параллельный метод

Данный метод строительства предполагает одновременное проведение работ на всех участках, объектах. Позволяет провести строительство газопровода в очень сжатые сроки, но его применение требует максимальной концентрации ресурсов.

1.3 Описание машин и механизмов

Для производства земляных работ используют экскаватор с обратной лопатой. Он должен обеспечивать разработку траншеи за 1-3 проходки. Ширину режущей кромки ковша экскаватора можно определить по справочным таблицам, но не менее 0,8 м.

Эти экскаваторы обладают преимуществами по сравнению с экскаваторами с механическим приводом. Так, гидравлический привод расширяет технологические возможности экскаваторов с различными видами рабочего оборудования. Например, при использовании обратной лопаты увеличивается заполнение ковша за счет больших усилий копания (так как сопротивление грунта копанию воспринимается через стрелоподъемные цилиндры массой всего экскаватора), что повышает производительность машины. Появляется возможность копания только поворотом ковша при неподвижной (относительно стрелы) рукояти, что позволяет выполнять работы, например, в городских условиях, т. е. в непосредственной близости от подземных коммуникаций, где требования к безопасности ведения работ часто вынуждают использовать ручной труд.

Ковшом обратной лопаты отрывают небольшие котлованы, ямы с отвесными стенками, траншей для подземных коммуникаций, неглубокие каналы. Профильным ковшом очищают мелиоративные каналы.

Основное рабочее оборудование для таких экскаваторов - обратную лопату - в зависимости от категории разрабатываемого грунта можно оснащать сменными ковшами. При оснащении обратной лопатой экскаваторы используют для рытья котлованов, траншей и ям.

Поворотный ковш обеспечивает хорошие условия копания грунта и выгрузки его в отвал и транспортные средства. Кроме обратной лопаты, экскаваторы оборудуют погрузчиком, грейфером, прямой лопатой и ковшами различной формы для специальных земляных работ.

Земляные работы по доработке дна траншеи выполняют штыковыми лопатами, работы по подсыпке ковшовыми лопатами.

Укладку труб выполняют стреловыми кранами, для которых необходимо определить максимально допустимые параметры: высоту подъема крана, вылет стрелы, массу монтажного элемента.

Выбор крана осуществляют в соответствии со схемой работы.

Стреловые самоходные краны находят широкое применение в строительном производстве благодаря своей маневренности и возможности работы без устройства специального подкранового пути. Их используют в основном на монтажных и погрузочно-разгрузочных работах.

Каждый стреловой кран состоит из следующих сборочных единиц: шасси с ходовым устройством, неповоротной рамы, поворотной платформы, соединяемой с базовым шасси через опорно-поворотное устройство, приводной установки, исполнительных механизмов и рабочего оборудования.

Основными механизмами самоходного крана являются: механизм подъема груза, изменения вылета крюка, механизмы вращения платформы и передвижения крана.

Краны большой грузоподъемности имеют два грузоподъемных механизма - один для больших, а второй для малых грузов.

Каждый кран имеет кабину для крановщика с размещенным в ней пультом управления. Некоторые краны имеют две кабины, одна из которых служит для управления при передвижении крана, а вторая для управления грузоподъемными работами. Краны оборудуются комплектом контрольной предохранительной аппаратуры.

Рис 1.1- Кран автомобильный

Рабочее оборудование самоходных стреловых кранов выполняется в виде канатно-подвесной прямолинейной стрелы, канатно-подвесной стрелы с гуськом, канатно-подвесной телескопической, жесткоподвесной телескопической, а так же в виде башенно-стрелового оборудования.

Оборудованные стрелами с управляемым гуськом стреловые краны обеспечивают подъем груза на большую высоту со значительным вылетом крюка. Однако наклонное положение стрелы суживает возможности использования под стрелового пространства на размер L.

При применении башенно-стрелового оборудования площадь обслуживания в плане увеличивается в 2 раза.

По конструктивному исполнению ходового устройства стреловые самоходные краны разделяются на автомобильные, смонтированные на типовом автомобильном шасси; тракторные, базой которых является типовой трактор; пневмоколесные; пневмоколесные автомобильного типа; гусеничные и железнодорожные.

В каждой из этих групп краны классифицируются по грузоподъемности, типу силового оборудования (дизельный или карбюраторный двигатель), виду привода от силовой установки к исполнительным механизмам (механический, электрический, гидравлический), виду рабочего оборудования, типу стрелы (прямолинейная, телескопическая, стрела с гуськом, башня со стрелой).

Для обозначения моделей стреловых кранов принята система индексации, состоящая из букв КС, обозначающих принадлежность машины к стреловым кранам; четырех цифр и двух букв.

Первая порядковая цифра после букв КС обозначает группу грузоподъемности, которой соответствует определенное значение грузоподъемности.

Сварку труб в секции осуществляют муфтовым способом (деталями с закладными нагревателем).

Аппарат для электромуфтовой сварки "Барбара Компакт USB" - это

поливалентный термопласт типа "моноблок" французской компании "J.SAURON S.A.", предназначенный для электромуфтовой сварки газовых и водопроводных полиэтиленовых труб в трубопроводные системы при помощи электросварных фитингов.

Благодаря своей конструкции, типа "моноблок", сварочный аппарат для электромуфтовой сварки "Барбара USB Компакт" имеет единый корпус в который входит: микропроцессор блока управления, электронный блок мощности, понижающий трансформатор. Аппарат мобилен, его легко переносить при помощи специальной ручки, расположенной на верхней части корпуса, он подключается к любой розетке с переменным напряжением 220 В, 50-60 Гц или к генератору тока.

Аппарат для электромуфтовой сварки "Барбара Компакт USB" поливалентного типа вырабатывает постоянную и плавно возрастающую выходную мощность, которая производится на нескольких регулируемых уровнях напряжения и силы тока, что обеспечивает возможность использовать аппарата с электросварными фитингами разных производителей диаметром от 16 до 1600 мм.

Сварочный аппарат для электромуфтовой сварки "Барбара USB Компакт" имеет специальный сканер для считывания параметров сварки соштрих-кода, на котором производители электросварных фитингов зашифровывают информацию о параметрах сварочного цикла, напряжения, времени сварки, что обеспечивает безопасность, свойственную данному автоматизму, исключает возможность неверного ввода данных оператором.

Штрих-код, адаптируясь к параметрам выбранным производителем, освобождает термопласт от необходимости совершенствоваться с изменением, либо появлением новых фитингов.

Помимо ввода параметров сварочного цикла с помощью штрих-кода, муфтовый сварочный аппарат "Барбара USB Компакт" позволяет использовать ручной ввод, доступ к которому может быть закрыт.

Барбара Компакт USB хранит информацию (протоколы) о параметрах проведения сварки по каждому сварному стыку, а также данные об объекте, операторе, дополнительную информацию.

Вся эта информация по каждому стыку может быть распечатана на принтере, для обеспечения контроля технологического процесса сварки или может быть перенесена на персональный компьютер с помощью USB флэш носителя. В работе аппарата используется традиционный принцип диалога с оператором, при котором оператор, в зависимости от выбранного уровня прослеживаемой, контролирует прохождение этапов сварочного цикла с помощью соответствующих сообщений на ЖК дисплее.

Приварка газовых вводов осуществляется через неразъемные соединения полиэтилен сталь. Присоединение стальной части выполняется электродуговой сваркой.

Прежде всего, следует отметить, что абсолютно все устройства для сварки, имеют практически одинаковый принцип работы - они сваривают/плавят металл с помощью переменного либо постоянного тока. Различают лишь источники питания и преобразования сварочного тока для агрегата и расходные материалы, которые используются в процессе сварки.

Классифицировать аппараты по источнику тока можно на:

)Выпрямители сварочные

Аппарат, который преобразует переменный ток в постоянный, называется выпрямителем. Это довольно сложное и громоздкое устройство, которое, тем не менее, позволяет накладывать очень качественный, практически ювелирный шов. Качества удается добиться из-за того, что выпрямитель обеспечивает стабильность сварочного тока, что позволяет без проблем держать электрическую дугу.

Основным недостатком этого агрегата, является его большой вес, который не позволяет перемещать аппарат в нужное место и непомерное потребление электроэнергии. К тому же работа на этом устройстве требует специальных знаний и навыков.

Диаметр свариваемых труб, мм 16 - 1600; Протоколирование Да; USB-интерфейс Да; Ввод данных со штрих-кода Да; Потребляемое напряжение, В 230; Потребляемая мощность, максимальная, Вт 4500; Выходное напряжение сварки, В 8-48; Показатель силы тока, А 97; Рабочий диапазон температуры окружающей среды, °C -20…+50; Тип защиты, IP 54; Рабочая частота тока, Гц 45-65; Ручной ввод данных Да; Последовательный порт Да; Параллельный порт Да; Объем памяти 970 протоколов; Наконечники для сварочных проводов 4.0 и 4.7 мм; Вес, кг 19.

)Трансформаторы сварочные

До недавнего времени считался одним из самых долговечных и традиционных видов сварочных агрегатов. Это устройство наоборот преобразует постоянный ток в переменный, понижая сетевое напряжение, до необходимого - сварочного. Происходит это за счет наличия трансформаторного узла. Электродуговая сварка на этом аппарате, требует наличия специальных электродов для переменного тока и необходимых навыков. Без знания принципа работы этого устройства, умения накладывать сварочные швы и держать электрическую дугу, вряд ли удастся сварить хоть что-нибудь качественно.

Основной плюс трансформатора - необыкновенная долговечность и довольно невысокая стоимость.

Минус - неподъемный вес и потребность в специальных электродах, которых зачастую не бывает в продаже.

)Инверторы

Инверторные сварочные аппараты, можно без преувеличения назвать самыми популярными. Тому есть сразу несколько объяснений.

Во-первых, компактность и малый вес агрегата.

Во-вторых, возможность без особых проблем подключиться к потребительской электросети.

В-третьих, возможность качественного наложения сварочных швов.

Ручная электродуговая сварка, выполненная с помощью инвертора, отличается минимальной зашлакованностью шва, что позволяет выполнить работу максимально качественно, без лишних «соплей» и воздушных каверн. К тому же в каждом аппарате инверторного типа, встроена функция «горячий старт» (Hotstart), которая позволяет поджечь электрод в одно касание, избежав при этом обычного залипания при соприкосновении с металлической деталью.

Принцип работы инвертора, построен на технологии, позволяющей использовать в качестве источника тока, обыкновенную домашнюю розетку. Ток поступает на выпрямитель и сглаживается специальным фильтром.

Получившийся постоянный ток, преобразовывается транзисторами в переменный, высокочастотный ток.

Профессиональный сварочный аппарат ARC 630 (J21) предназначен для ручной дуговой сварки MMA и наплавки покрытым штучным электродом на постоянном токе.

Аппарат произведен на базе современной инверторной технологии c использованием мощных IGBT транзисторов. Интерфейс модели позволяет регулировать не только значение сварного тока и форсаж дуги, но и функцию горячего старта; для облегчения поджига дуги. Динамические показатели сварочного тока отображаются на цифровом дисплее.

Инвертор отличается стабильностью и высокой производительностью даже при увеличении длины силовых кабелей и работе на предельной мощности.

Аппарат ARC 630 (J21) имеет возможность подключения пульта дистанционного управления с регуляторами значения сварочного тока и форсажа дуги.

Обеспечивается легкость возбуждения дуги, низкий уровень разбрызгивания металла, стабильный ток и формирование ровного шва.

Частота переключений вне диапазона слышимости, благодаря чему шумовые помехи практически сходят на нет.

Цифровой индикатор для удобной настройки параметров сварки.

Напряжение питающей сети, В 380+-15%; частота питающей сети, гц 50/60; диапазон сварочного тока, А 25-630; диаметр электрода ММА, мм 1,6-6,0; потребляемая мощность, кВА 27; номинальное напряжение, lmaxA/B 590/44; ПН при lmax, % 60; ПН 100%, А 580; напряжение холостого хода, B 80; КПД, % 85; коэффициент мощности 0,93; класс изоляции F; степень защиты IP21S; габаритные размеры, мм 670x335x624; вес, кг 52.

Метод производства работ выбирают после подсчета объемов работ исходя из условий их выполнения механизированными способами.

Повышение производительности труда, сокращение сроков и снижение стоимости строительства.

1.4 Описание технологических процессов эксплуатации систем газораспределения и газопотребления

Перед вводом в эксплуатацию систем газораспределения и газопотребления производятся следующие виды работ:

¾      ввод законченных строительством газопроводов в эксплуатацию (пуск газа);

¾      контроль давления и степени одоризации газа, подаваемого по газораспределительным сетям на территории поселений;

¾      техническое обслуживание, текущий и капитальный ремонты газопроводов и сооружений на них, включая арматуру, установленную на вводе в здание или перед наружным газоиспользующим оборудованием потребителя;

¾      техническое обслуживание и ремонт средств защиты газопроводов от электрохимической коррозии, проверка эффективности действия ЭХЗ;

¾      проверка наличия и удаление влаги и конденсата из газопроводов;

¾      техническое диагностирование газопроводов;

¾      локализация и ликвидация аварий, аварийно-восстановительные работы;

¾      демонтаж газопроводов и сооружений на них.

Подключение объекта газификации к сети газораспределения должно производиться при условии заключения заказчиком договора о подключении объекта с ГРО, выдавшей технические условия подключения или согласовавшей технические условия подключения, выданные основным абонентом.

При заключении договора о подключении объекта должен быть проверен срок действия технических условий подключения.

Для заключения договора о подключении к сети газораспределения газифицируемого жилого дома (вновь построенного или существующего) получения технических условий подключения не требуется.

В договорах о подключении должны определяться:

порядок выдачи ГРО технических условий присоединения и проверки их выполнения;

порядок ввода в эксплуатацию сетей газопотребления.

Технические условия присоединения предоставляются заказчику для организации разработки проектной документации и выполнения строительно-монтажных работ на участке строительства объекта газификации.

В технических условиях присоединения должны содержаться следующие технические требования:

диаметр действующего газопровода сети газораспределения и координаты точки подключения к нему газопровода объекта газификации;

характеристика действующего газопровода сети газораспределения (материал трубы, тип изоляции стальной трубы в точке подключения);

коррозионная агрессивность грунта, наличие блуждающих токов в точке подключения (при подключении стальных подземных газопроводов), тип и место размещения средств ЭХЗ на действующем газопроводе сети газораспределения;

давление газа в действующем газопроводе сети газораспределения в точке подключения;

максимальный часовой и годовой расходы газа, подаваемого потребителю.

При подключении объекта газификации к газопроводу основного абонента координаты точки подключения должны быть согласованы с основным абонентом.

Техническими условиями присоединения должно предусматриваться получение заказчиком технических условий газоснабжающей организации на установку приборов и узлов учета природного газа, а также участие представителей ГРО:

в приемочном контроле качества изоляционных работ и проведении испытаний на герметичность присоединяемых к сети газораспределения газопроводов (в процессе их строительства);

во вводе в эксплуатацию средств противокоррозионной защиты, присоединяемых к сети газораспределения подземных газопроводов;

в приемке сетей газопотребления.

Проектная документация на строительство объекта газификации должна быть согласована с ГРО и газоснабжающей организацией в части ее соответствия выданным техническим условиям.

1.5 Описание методов организации безопасности строительства, техники безопасности и охрана окружающей среды

Прежде всего как строители, так и эксплуатационники должны понимать, что обеспечение наилучших условий для окружающей среды является одновременно и гарантией создания наиболее благоприятных условий для работы самого газопровода.

Выбор трассы представляет большие возможности для уменьшения числа вредных воздействий на окружающую среду.

Пересечения водотоков (рек, речек, ручьев). Наименьший вред окружающей среде наносится при пересечении водотоков по надземной схеме. При этом исключаются такие воздействия, как нарушение склонов и подходов к руслу водотока; нарушение естественного руслового процесса, что бывает особенно интенсивным при строительстве; нарушение естественного образа жизни рыб; сохранение и улучшение общего вида местности. Наиболее эффективной в данном случае является безопорная прокладка газопровода. Пересечение крупных горных рек должно осуществляться только по надземной схеме. Причем опоры, устанавливаемые в пойме реки, должны размещаться за пределами действующего русла.

Прокладка в тоннелях в горных условиях наиболее предпочтительная с

точки зрения охраны как природы, так и самого газопровода.

Обрушение оползней приводит к наиболее значительным нарушениям состояния окружающей среды. Поэтому мероприятия по уменьшению этих нарушений должны выполняться постоянно, начиная с проектирования и до окончания срока эксплуатации газопровода.

Испытания трубопроводов.

При выполнении строительно-монтажных и ремонтных работ должны соблюдаться строгие требования к обеспечению чистоты местности после окончания строительных работ. После окончания всех работ полоса должна быть выровнена, плодородный грунт равномерно уложен и засеян специальными травами.

Опыт показывает, что лесозащитные и мелиоративные мероприятия являются исключительно благоприятны как для окружающей среды, так и для улучшения условий работы самого трубопровода.

2. Проектирование и расчет системы газораспределения и газопотребления

2.1 Характеристика газифицируемого объекта

2.1.1 Характеристика квартала

Газоснабжению подлежит поселок Калининградской области, состоящий из четырнадцати одноитажных жилых домов. Жилые дома оборудованы четырехконфорочными газовыми плитами и двухконтурными котлами.

Внутрепоселковый газопровод выполнен из полиэтиленовых труб.

Сеть тупиковая, врезка осуществляется в уличную сеть среднего давления.Для отключения подачи газа в квартал предусмотрена бесколодезная установка шарового крана.

Газопровод пересекают следующие коммуникации: водопровод, канализация. В местах пересечения газопровода с автодорогами его заключают в футляр.

В данном квартале тип грунта суглинок.

2.2 Гидравлические расчеты газопроводов

Гидравлический расчет межпоселкового газопровода производим в следующем порядке.

Разбиваем трассу газопровода на расчетные участки в зависимости от изменения расхода газа, определяем количество приборов на каждом участке; в зависимости от вида и количества приборов определяем коэффициент одновременности действия приборов для каждого участка сети. Определяем расход газа группой приборов плита + двухконтурный котел, м3/ч:

qi= Qп / Qнр(2.1)

Где:

Qп - суммарная тепловая нагрузка бытовых газовых приборов, для четырехконфорочной плиты 38000 ккал/ч, для двухконтурного котла -120000 ккал/ч;

Qнр - низшая расчетная теплота сгорания газа, ккал/м3

qi = (38000 + 120000) / 8350 = 4,7 м3/ч;

Вычисляем расчетный расход газа на каждом из участков сети, м3/ч:

Вр =n*K*g+0,6*0,85*n(2.2)

Где:

К - коэффициент одновременности работы приборов.

qпг4- расход газа на плиту ПГ4с духовкой, м3/ч;

q2кк- часовой расход газа на горячее водоснабжение м3/ч;

N1 - количество квартир с газовыми плитами ПГ4 и котлами.

Вр1-2 = 4,7*1*0,560+0,6*0,85*1=4,5м3/ч;

Вр2-3 = 4,7*2*0,430+0,6*0,85*2=6,28м3/ч.

Зная масштаб генплана (Лист 2 графической части), определяем фактические длины каждого из участков сети:

lф1-2 = 60,12 м;

lф2-3 = 121,82 м

Расчетная длина участка составит, м:

lр = lф*1,1(2.3)

Где:

lф - фактическая длина участка, м

lр1-2 = 60,12*1,1 = 66,13 м;

lр2-3 = 121,82*1,1 = 134 м.

По номограмме по средним потерям давления и расчетному расходу газа выбираем оптимальный диаметр трубы для каждого из участков тупиковой сети, после чего определяем фактическую потерю давления на единицу длины участка. Средняя потеря давления на единицу длины расчетного направления составляет, Па/м:

Подбор оптимальных диаметров труб представлен в таблице 2.1

№ уч-ка

Прибо- ры

Количес-тво групп приборов N, шт.

Коэф-фициентодновремен-ности действия приборов kо

Расход газа группой приборов qi, м3

Расчет-ный расход газа на участке Вр, м3

Фактичес-кая длина участка, lф, м

Расчёт-ная длина участка, lр, м

Наруж-ный диаметр трубы D x s, мм

Услов-ный диаметр трубы Dy, мм

Фактичес-кие потери давления на единицу длины Hф, Па/м

Потери давления на участке, Hфх lр, Па

1

2

3

4

5

6

7

8

9

10

11

12

Основное направление 1-2-3-4-5-6-7-8

1 2

ПГ4+2КК

1

0,850

4,7

4,505

60,1

66,1

63

60

1,5

99

2 3

ПГ4+2КК

2

0,560

4,7

6,284

121,8

134,0

63

60

1,4

188

3 4

ПГ4+2КК

4

0,430

4,7

10,124

70,3

77,4

63

60

0,8

62

4 5

ПГ4+2КК

6

0,392

4,7

14,114

30,8

33,8

63

60

1,1

37

5 6

ПГ4+2КК

7

0,370

4,7

15,743

21,8

23,9

63

60

1,4

34

6 7

ПГ4+2КК

8

0,360

4,7

17,616

60,4

66,5

90

90

1,5

100

7 8

ПГ4+2КК

14

0,308

4,7

27,406

76,5

84,2

90

90

1,7

143

 

 

 

 

95,793

 

419,8

 

 

 

662

Ответвление 9-10-3

9 10

ПГ4+2КК

1

0,850

4,7

4,505

60,0

66,0

63

60

1,5

99

10 3

ПГ4+2КК

2

0,560

4,7

6,284

34,6

63

60

1,4

48

Ответвление 11-12-4

11 12

ПГ4+2КК

1

0,850

4,7

4,505

69,5

76,4

63

60

1,5

115

12 4

ПГ4+2КК

2

0,560

4,7

6,284

20,9

22,9

63

60

1,4

32

Ответвление 13-6

13 6

ПГ4+2КК

1

0,850

4,7

4,505

92,7

102,0

63

60

1,5

153

Ответвление 14-15-16-17-7

14 15

ПГ4+2КК

1

0,850

4,7

4,505

75,9

83,5

63

60

1,5

125

15 16

ПГ4+2КК

2

0,560

4,7

6,284

91,6

100,7

63

60

1,4

141

16 17

ПГ4+2КК

4

0,430

4,7

10,124

23,8

26,2

63

60

0,8

21

17 7

ПГ4+2КК

6

0,3920

4,7

14,114

45,9

50,5

63

60

1,1

56

Ответвление 18-19-16

18 19

ПГ4+2КК

1

0,850

4,7

4,505

77,0

84,7

63

60

1,5

127

19 16

ПГ4+2КК

2

0,560

4,7

6,284

15,2

16,8

63

60

1,4

23

Ответвление 20-21-17

20 21

ПГ4+2КК

1

0,850

4,7

4,505

76,0

83,6

63

60

1,5

125

21 17

ПГ4+2КК

2

0,560

4,7

6,284

14,1

15,5

63

60

1,4

22


Итак, по каждому расчетному направлению (от места врезки в уличную сеть до каждой наиболее удаленной точки) сумма потерь давления на участках не превышает максимально допустимого значения (1200 Па), следовательно, гидравлический расчет тупикового газопровода квартала выполнен верно.

2.2.2 Гидравлический расчет внутридомового газопровода

По аксонометрической схеме внутридомового газопровода с учетом масштаба

(М1:100) определяем фактические длины участков сети lф, м:

lф1-2 = 4,8м;

lф2-3 = 8,1 м.

По номограмме по расчетному расходу и средним потерям давления определяем диаметры труб для каждого участка. Средние потери давления составляют, Па/м:

ΔНср = ΔНдоп / ∑lф(2.6)

где:

ΔНдоп - величина допустимых потерь давления на расчетном направлении,

ΔНдоп = 350 Па;

∑lф - сумма фактических длин участков направления, м.

ΔНср = 350 / 12,9 = 27,1 Па/м.

Зная диаметр каждого участка и расчетный расход газа на нем, по номограмме определяем эквивалентные длины на каждом из участков lэ, м. Вычисляем расчетные длины участков направления с учетом действия как линейных, так и местных потерь давления, м:

lр = lф + lэ*∑ζ (2.7)

где:

lф - фактическая длина участка, м;

lэ - эквивалентная длина участка, м;

∑ζ - сумма местных сопротивлений на участке (см. таблица 2.2)

lр1-2 = 4,8+ 0,5* 0,9 = 4,55 м.

lр2-3 = 8,1 + 0,5*1,8 = 9 м.

Гидравлический расчет внутридомового газопровода проводим в следующей последовательности.

 На аксонометрической схеме газопровода выявляем расчетное направление (от места соединения газового ввода с внутриквартальным газопроводом до наиболее удаленного стояка), после чего разбиваем его на расчетные участки, начиная с места подключения к газопроводу наиболее удаленного газового прибора и заканчивая точкой врезки во внутриквартальный газопровод. Зная расход газа группой приборов qi), по формуле 2.1 вычисляем расход газа на каждом участке расчетного направления, м3/ч:

Вр = qi * kо * n(2.8)

Вр1-2 = 1 *4,7 * 1 = 4,7 м3/ч;

Вр2-3 = 4,7*0,7*1 = 3,29 м3/ч.

Находим произведение потерь давления на участке и расчетной длины участка:

ΔНф*lр.(2.9)

Суммарные потери давления на расчетном направлении составляют, Па:

∑Н = ∑(ΔНф*lр) + ∆Нп. + ∆Нсч. + Нг.н(2.10)

где:

∑(ΔНф*lр) - сумма потерь давления на участках направления, Па; определяем по таблице 2.2;

Нг.н. = Z * (ρг.в.) * 10(2.10)

где:- высота вертикальных участков на расчетном направлении, м, определяется по аксонометрической схеме, Z = 5,4 м.

ρг. - плотность газа, кг/м3;

ρв. - плотность воздуха, для учебных расчетов ρв. = 1,29 кг/м3;

Нг.н. = 5,4 * (0,73 - 1,29) * 10 = -30,24 Па;

∑Н = 14,19 + 100+ 50 + (-30,24) = 133,95 Па

Подбор оптимальных диаметров труб представлен в таблице 2.2

Таблица 2.2 - Гидравлический расчет внутридомового газопровода дома

№ уч-ка

При-боры

Коли-чествоприбо-ров или групп прибо-ров, шт.

Коэффи-циентодновре-менности действия приборов kо

Расход газа группой приборов qi, м3

Расчет-ный расход газа на участке Вр, м3

Факти-ческая длина участка lф, м

Услов-ныйдиа-метр трубы Dу, мм

Наруж-ныйдиа-метр трубы D*S, мм

Эквива-лентная длина участка lэ, м

Сумма мест-ныхсопро-тивле-ний на участке ∑ζ

Рас-чет-ная длина учас-ткаlр, м

Факти-ческие потери давле-ния на единицу длины участка ΔНф, Па/м

Потери давления на участке ΔНф*lр, Па

Виды местных сопротивлений на участке

1

2

3

4

5

6

7

8

9

10

11

12

13

14

15

1-2

2КК

1

1

4,7

4,7

4,8

20

26,8*2,8

0,5

0,9

4,55

5

22,75

Два отвода гнутых 90º, кран шаровый

2-3

ПГ-4 + 2КК

1

0,7

4,7

3,29

8,1

20

26,8*2,8

0,5

1,8

9

9,9

89,1

Тройник проходной, три отвода гнутых, кран шаровый

2.3 Продольный профиль трассы газопровода

Профиль подземного газопровода строим от места врезки в уличную сеть ПК0 до ввода в жилой дом. Согласно СНиП 41-01-2002 внутриквартальный газопровод должен быть проложен с уклоном не менее: 1) 2‰ в сторону уличной магистрали, для сухого газа; 2) 3 ‰ для влажного газа.

Если в соответствии с профилем местности невозможно проложить весь газопровод с уклоном в сторону уличной магистрали, то в точке (ПК… +) выполнен излом газопровода в сторону уличной сети с уклоном 2 ‰. Вся остальная сеть проложена параллельно рельефу местности с расчетным уклоном (с установкой в низких точках конденсатосборников).

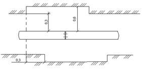
Глубина заложения газопровода определяется в зависимости от вида газа, d газопровода, глубины промерзания грунта, геологической структуры грунта и типа дорожного покрытия.

Согласно СНиП 42-01-2002 п. 5.2.1. прокладку газопроводов следует осуществлять на глубину не менее 0,8 м до верха газопровода.

п. 5.6.4 Глубина прокладки газопроводов в грунтах неодинаковой степени пучинистости, а также в насыпных должна быть приниматься до верха трубы - не менее 0,9 нормативной глубины промерзания, но не менее 1 м.

При равномерной пучинистости грунтов глубина прокладки газопровода до верха трубы должна быть:

не менее 0,8 нормативной глубины промерзания (0,8Нпр), но не менее 1,0 м для сильно и чрезмерно пучинистых грунтов.

Так как газопровод транспортируем осушенный газ и размещен:

в сильно пучинистых грунтах.

Но=1+Нпр+d(2.14)

но не менее 1,0 м до верха трубы.

Где:

Нпр - глубина промерзания грунта для данного района проектирования, м.

d -максимальный диаметр сети, м.

При проектировании профиля трассы газопровода следует стремиться к тому, чтобы глубина заложения газопровода была близка к оптимальной.

Н0 = 1+0,090+0,2=1,29 м.

В соответствии с профилем местности разбиваем всю трассу на участки, имеющие свои уклоны дна траншей. В ключевых точках этих участков задаемся оптимальной глубиной заложения газопровода.

Определяем отметку дна траншеи в этих точках.

Zдн.тр.н= Zз.ф..н. - Hо(2.15)

Zдн.тр.к= Zз.ф..к. - Hо

Где:дн.тр.н, Zдн.тр.к, - отметки дна траншеи в начале и конце участка, м.з.ф. н., Zз.ф. к, - отметки поверхности земли в начале и конце участка, м.

Zдн.тр.ПК0= Zз.ф.ПК0 - Hо

Zдн.тр.ПК0+N= Zз.ф. ПК0+N - H0

Zдн.тр.ПК0 = 77,38-1,29=76,09 м;

Zдн.тр.ПК0+76,54= 77,05-1,29=75,76 м.

Определяем уклоны дна траншеи по участкам:

i = (Zдн.тр.н - Zдн.тр.к)/lуч * 1000(2.16)

Где:

lуч- длина расчетного участка, м.

i=(76,09-75,76)/76,54*1000 = 4,3‰.

Глубина заложения газопровода в промежуточных точках определяется следующим образом:

а) Определяем отметки дна траншеи в промежуточных точках:

Zдн.тр.(н+1) = Zдн.тр.к± ((i*l1) / 1000).(2.17)

Zдн.тр.(н+2) = Zдн.тр.к± ((i*l2) / 1000)

Где:

l1,l2 - расстояние от начала участка до расчетной точки, м

Zдн.тр.(ПК0+76,54)= 76,09 +(7,6*2,4)/1000 = 76,01м;

Zдн.тр.(ПК1+36,95)= 75,62+(3,7*2,2)/1000 = 75,6м.

б) Определяем глубину заложения:

Н(н+1) = Zз.(н+1)- Zдн.тр.(н+1)(2.18)

Н(ПК0+76,54)= 77,05-75,76= 1,29м;

Н(ПК1) = 76,91-75,62 = 1,29м.

Определеяем отметку верха трубы:

Zв тр. = Zдн.тр. + ø + hпост(2.19)

Zдн.тр.ПК0= 76,09+0,090= 76,18 м;

Zдн.тр.(ПК0+22,5)= 75,76+0,090=75,85м;

Подробный расчет в приложении Б.

Аналогично рассчитываются все промежуточные точки на каждом участке. При этом глубина заложения во всех промежуточных точках не должна быть менее Но.

2.4 Подбор оборудования ШРП

Техническая характеристика шкафного регуляторного пункта

Для подачи газа к потребителю в квартале города установлен шкафной регуляторный пункт (ШРП) ИТГАЗ-B/249-1-Б, который служит для снижения давления газа со среднего на низкое. Пропускная способность для данного ШРП составляет250 м3/ч, при входном давлении 0,6 МПа. Степень загрузки регулятора составит: 250/95,79=67%. Так как степень загрузки более 10%, но менее 80%,то регулятор будет работать устойчиво.

Технические характеристики:

Регулируемая среда: природный газ по ГОСТ 5542-87;

Температура окружающей среды: -40 ͦ С +80 ͦ С;

Регулятор давления газа-изготовитель: B/249-Tartarini;

Диапазон входных давлений, МПа: 0,01-0,6;

Выходное давление, кПа: 1,3-8,0;

Неравномерность регулирования, %: ±5;

Присоединительные размеры Ду, мм:

входного патрубка: 40;

выходного патрубка: 50;

Соединение:

входного патрубка: сварное;

выходного патрубка: сварное;

Масска, кг: 100.

2.5 Подсчет объёмов строительно-монтажных работ

Для определения строительно-монтажных работ необходимо выполнить монтажную схему сварных стыков.Это исполнительный чертеж работы сварщика.

В данном проекте принимаем, что с завода изготовителя поставляются полиэтиленовые тубы. Полиэтиленовые трубы поставляются Ø до 90 м в бухтах. Также в качестве фитинговприменяют: муфты, тройники, переходы, седловые отводы.

Исходя из вышеизложенного, можно сделать раскладку стыков (поворотных и неповоротных) на плане трассы газопроводов.

Минимальная ширина траншеи выбирается в зависимости от диаметра труб, способа укладки и ширина режущей кромки ковша экскаватора.

Так как укладка ведется секциями длиной до 40 метров, а наиболее часто используемый диаметр, менее 400 мм, то ширина траншеи составит:

а =0,3+Ø(2.42)

а = 0,3+0,09= 0,39м.

Минимальная ширина траншеи согласно формуле 2.39 составляет 0,48 м.

Выбираем экскаватор для рытья траншеи одноковшовый с обратной

лопатой с шириной ковша не менее 0,48 м. (А.П.Шальнов - Справочник строителя «Строительство городских систем газоснабжения», стр.106, таблица Ш-1, стр112, таблица Ш-4)

Характеристика экскаватора:

1) Емкость ковша - 0,25 м3;

2)      Ширина ковша - 0,65 м;

)        Наибольшая глубина копания - 3 м;

)        Наибольшая высота выгрузки - 2 м;

)        Наибольший радиус копания - 5 м;

)        Тип - Э2515.

Производительность экскаватора в смену составляет (м3/см):

а) в отвал

Пэ от= (Тсм*100) /Нвр.тр.(2.43)

б) в транспорт

Пэ.тр.=(Тсм*100) /Нвр.тр(2.44)

Где:

Тсм - сменное время в часах, при пятидневной рабочей неделе Тсм = 8,2 ч.

Нвртр - норма времени, определяется по ЕНиР § 2-1-2 - а) 4,2; б) 5,3

Пэ от = (8,2*100) /4,2 = 195,238 м3/см;

Пэ тр = (8,2*100) /5,3 = 154,72 м3/см.

Принимаем ширину траншеи по ширине режущей кромки ковша экскаватора с учетом выравнивания стенок траншеи (0,15 - для суглинка):

а = ак+0,1(2.45)

а = 0,65+0,1 = 0,75 м.

Глубина траншеи определяется по профилю газопровода.

2.5.1 Подготовительные работы

2.5.1.1 Объем работ при вскрытии дорожных покрытий

На участках, где трасса газопроводов пересекает замощенные дорожные покрытия. До начала земляных работ необходимо эти покрытия вскрыть и разобрать.

Ширина вскрываемой полосы дорожного покрытия:

В = а+0,5(2.46)

а) для асфальтового покрытия 0,5

а - ширина траншеи в метрах.

В = 0,75+0,5=1,25 м

Площадь вскрываемого дорожного покрытия, м2:

Fвскр=в*l(2.47)

l- общая длина вскрываемых участков трассы, в метрах.

Fвскр=1,25*7,2 = 9,08 м2.

2.5.1.2 Объем работ при вскрытии и подвеске пересекаемых подземных коммуникаций

До прихода экскаватора на трассу в период подготовительных работ вручную разрабатываются участки траншей в местах пересечений с другимиподземными сооружениями. Длина такого участка 2 м - для пересечения степлотрассой и 1м - для пересечения с другими коммуникациями.

Объем работ на одном пересечении, м3:

Vn=α*Hср*l(2.48)

Где:

α - ширина траншеи в м;

Hср- средняя глубина траншеи в м;

l - длина участка в м.

Объем работ при вскрытии пересечений с водопроводом, канализацией, кабелем:

ΣVn, в, к, к = α*Нср*ln*Nв,к,к(2.49)

Где:

Nв,к,к -общее количество пересечений в водопроводом, канализацией, кабелем;

l = 1 м.

ΣVn, в, к, к =0,75*1,32*1*17= 16,83 м3.

Вскрытие подземных коммуникаций заключается в деревянный короб и подвешивается к балке, перекинутой через траншею. Подвеске подлежат те коммуникации, которые залегают выше газопровода (кабель, иногда теплотрасса, канализация). Количество мест пересечений определяется по генплану и профилям газопровода.

2.5.2 Земляные работы

Рытье траншей для газопроводов следует производить экскаватором. Вручную допускается рыть траншеи там, где невозможна работа экскаватора (вблизи домов или других сооружений, в местах пересечений с подземными коммуникациями).

По генплану определяем места работы вручную, подсчитывается общая длина этих участков.

Условно принимаем, что на каждом вводе участки l = 0,5м открываются вручную. Ввиду небольшого объема работ, выполняемых вручную, глубину траншей берем как среднюю (среднее арифметическое из глубин траншей навсех участках, разрабатываемых вручную).

2.5.2.1 Объем работ при рытье траншеи вручную

Vвр= α*Нср*l(2.50)

Где: l- общая длина участков, разрабатываемых вручную, в м.

l=0,5*nв(2.51)

Где:

nв - число вводов;

Нср - средняя глубина траншей на этих участках, в м.

l=0,5*14=7 м;

Vвр= 0,75*1,32*7= 6,93 м3.

В местах сварки неповоротных стыков (стыков в траншее) расширить траншеи для удобства работы сварщика.

На участках, где рытье траншей производиться вручную, рытье приямков для сварщика также производится вручную. Там, где рытье траншей производиться экскаватором или вручную. В данном проекте прием, что этиработы производятся вручную.

Объем работ при рытье приямков учитывается, как дополнительный к подсчитанному объему земляных работ.

Размеры должны соответствовать данному чертежу:













Рисунок 2.1 - Приямок с неповоротным стыком

Vпр = ((Øн+1,2)*0,7 + (Øн+1,2-а)*Нср)*lпр(2.52

Где: lпр =1м.

Vпр = ((0,09+1,2)*0,7 + (0,09+1,2-0,75)*1,32)*1 = 1,61м3.

Полученный по формуле объем данного приямка умножается на число приямков и прибавляется соответственно к объему земляных работ, выполненных вручную, м3:

ΣVnр=Vпр*n(2.53)

Где:- число приямков (по монтажной схеме сварных стыков).

ΣVnр=1,61*23=37,03 м3.

Таким образом, общий объем земляных работ при рытье траншей вручную составит:

ΣVвр= ΣVпр+Vвр(2.54)

ΣVвр= 37,03+6,77= 43,8м3.

2.5.2.2 Подсчет объемов работ по рытью траншеи экскаватором

Производится по профилям и ведется в табличной форме.

Таблица 2.4 - Объем земляных работ по рытью траншей экскаватором

№ пикета

Глубина траншеи, Н, м

Ширина траншеи, а, м

Площадь сечения траншеи по пикету, F=a*H, м2

Номер участка, Nуч

Длина участка, L уч , м

Объём разрабатыва- емого грунта, Vэкс=(F1*F2)//2*Lуч

Примечание

1

2

3

4

5

6

7

8

ПК0

1,29

0,75

0,96

1

7,6

3,5

 

ПК0+76,54

1,29

0,75

0,96





ПК0+76,54

1,29

0,75

0,96

2

2,4

1,1

 

ПК1

1,29

0,75

0,96





ПК1

1,29

0,75

0,96

3

3,7

1,7

 

ПК1+36,95

1,29

0,75

0,96





ПК1+36,95

1,29

0,75

0,96

4

2,2

1,18

 

ПК1+58,72

1,49

0,75

1,12





ПК1+58,72

1,49

0,75

1,12

5

3,1

1,6

 

ПК1+89,48

1,29

0,75

0,96





ПК1+89,48

1,29

0,75

0,96

6

1,1

0,5

 

ПК2

1,29

0,75

0,96





ПК2

1,29

0,75

0,96

7

5,9

2,7

 

ПК2+59,81

1,29

0,75

0,96





ПК2+59,81

1,29

0,75

0,96

8

4,02

1,8

 

ПК3

1,29

0,75

0,96





ПК3

1,29

0,75

0,96

9

8,2

3,77

 

ПК3+81,63

1,29

0,75

0,96





ПК3+81,63

1,29

0,75

0,96

10

1,8

0,96

 

ПК4

1,49

0,75

1,12





ПК4

1,49

0,75

1,12

11

3,3

1,77

 

ПК4+33,32

1,29

0,75

0,96





ПК4+33,32

1,29

0,75

0,96

12

0,8

0,36

 

ПК4+42,35

1,29

0,75

0,96









44,12

20,94



Проверка:

Vэкс=a*Нср* ΣLуч(2.55)

Vэкс = 0,75*1,32*44,12 = 43,67м3

Объем работ на участках неучтенных профилем определяется по формуле:

Vн.п = а*Нср* Σlн.п.(2.56)

Vн.п.=0,75*1,32*65,7=65,04 м3.

Общая суммарная длина трассы газопровода составит:

Σlобщ= ΣLуч +Σlн.п.(2.57)

Σlобщ = 44,12+65,7=109,82 м.

Общий суммарный объем по рытью траншеи экскаватором:

ΣVобщ.экс = ΣVэкс+ ΣVн.п(2.58)

ΣVобщ.экс = 20,94+65,04=85,98 м3.

2.5.3 Объем работ по присыпке газопроводов и устройство постели

После укладки газопроводов в траншею устраивается постель, а после испытания газопровода на прочность его присыпают вручную мягким грунтом на 20-30 см. выше верха трубы и тщательно трамбуют.

Объем работ по присыпке:

Vприс=[a*(Øcp. н.+0,25)-(π*Øcp2/4)]*l(2.59)

Где:

а - ширина траншеи, м;

Øcp н-средний диаметр газопровода, м;

Π*Øcp2/4 - площадь сечения газопровода, м2;

l - длина трассы газопровода, м.

Vприс=[0,75(0,063+0,25)-(3,14*(0,063)2/4)]*109,82 = 25,4м3

Объем присыпки с учетом коэффициента остаточного разрыхления:

V’прис= Vприс*(100-Ко) / 100(2.60)

Где: Ко - коэффициент остаточного разрыхления, %;

Ко выбираем по ЕНиР, сборник 2-1, приложение 2.

V’прис=25,4*(100-5)/100=24,13м3.

Объем излишнего грунта (подлежит вывозу с трассы):

Qо =Q-((Q-q)/(1+Ко))(2.61)

Где:

Qо- Объем вывозимого с трассы грунта, м3;

Q - объем выемки, м3.

Q=ΣVвр +ΣVэкс +ΣVпер(2.62)

Q=43,57+20,94+36,8=101,31

Ко - коэффициент остаточного разрыхления (в долях единиц);

q - объем занимаемый трубой, м3.

q = (π*Øн2/4)* Σlобщ(2.63)

Где: Σlобщ- общая суммарная длина трассы газопровода, м.=(3,14*(0,063)2/4) * 1190,42 = 3,71м3;

Qо=101,31 - (101,31-3,71)/(1+0,07) = 10,09м3.

Грунт, используемый для обратной засыпки, остается на бровке траншеи. Минимальная ширина рабочей зоны зависит от объема и размеров отвала грунта, которые выбираются по схеме рис. 37 и табл. 45, стр. 140 А.Г.Яковлев и А.А.Блоштейн «Организация строительства городских газовых сетей и устройств».

Рисунок 2.2 - Рабочая зона

Минимальная ширина рабочей зоны:

Z=1,5+а+0,5+В+(0,3/0,5) (2.64)

Где: а - ширина траншеи, м;

в - ширина отвала грунта, м.

Z = 1,5+0,75+0,5+1,25+0,5 = 4,5 м.

2.5.4 Объем работ по засыпке газопровода

Окончательная засыпка траншеи по всей длине производится бульдозером грунтом, вынутым из траншей. Объем работ при засыпке бульдозером:

Vзас.бульд.=Q-Vприс(2.65)

Vзас.бульд=101,31-24,13=77,18м3.

Объем засыпки бульдозером с учетом коэффициента остаточного разрыхления:

V’зас.бульд=Vзас.бульд*(100-Ко)/100(2.66)

V’зас.бульд=77,18*(100*5)/100=385,9м3.

2.5.5 Объем сварочных работ

По монтажной схеме сварных стыков подсчитывается количество стыков (поворотных и неповоротных) по каждому диаметру труб.

Количество полиэтиленовых стыков подземного газопровода:

Баранов А.В. маркировка на стыках («Б1»)сварил 10 стыков.

Вахрудинов С.М. маркировка на стыках («В1») сварил 21 стыков.

Алибеков А.К. маркировка на стыках («А1») сварил 17 стыков.

Таблица 2.5 - Сварочные работы на полиэтиленовом газопроводе

Диаметр труб, мм

Поворотные стыки (сварка на бровке траншеи)

Неповоротные стыки (сварка в траншее)

Муфты

Седелки

Тройники

Ø90*8,2

1

2

1

-

2

Ø63*5,8

11

13

11

7

6

Σ

12

15

12

7

8


2.5.6 Ведомость объемов строительно-монтажных работ

Подготовительные и основные работы отражаются в ведомости.

Таблица 2.7 - Ведомость объемов строительно-монтажных работ

№ п/п

Наименование работ

Ед. изм.

Кол-во

Формула подсчета

Примечание

1

2

3

4

5

6

1

Наружная сеть





1.1

Подготовительные работы





1.1.1

Вскрытие и разработка асфальтного покрытия

м2

9,08

2.47


1.1.2

Вскрытие подземных коммуникация вручную

м3

16,83

2.49


1.1.3

Подвеска скрытых подземных коммуникаций:

шт



по генплану, профилю

1.2

Земляные работы





1.2.1

Рытье траншеи экскаватором с обратной лопатой Э2515

м3

195,24



1.2.2

Рытье траншеи и приямков вручную

м3

43,8

2.54


1.3

Монтажные работы





1.3.1

Сварка на бровке траншеи: Ø90*8,2 Ø63*5,8

шт

 1 11

 

1.3.2

Сварка в траншее: Ø90*8,2 Ø63*5,8

шт

 2 13


по таблице 2.5

1.3.4

Укладка труб в траншеи с помощью автокранов: Ø90*8,2 Ø63*5,8

п.м

 13,5 93,4


по генплану

1.3.5

Монтаж КС

шт

2


По генплану, по профилю

1.3.6

Монтаж контрольных трубок

шт

4


По генплану, по профилю

1.3.7

Монтаж ковера

шт

10


По генплану

1.3.8

Монтаж шарового крана

шт

1


По генплану

1.3.9

Монтаж кранов на вводах в здание Ду50

шт

14


По генплану

1.3.10

Монтаж ввода в здание 57*3,5

п.м.

53,15

Lввода=2+H0+1,5

По генплану

1.3.11

Испытание сети на прочность Ø90*8,2 Ø63*5,8

п.м.

 13,5 93,4


По генплану

1.3.12

Изоляция стыков Ø57*3,5

шт

 14


По таблице 2.6

Продолжение таблицы 2.7

1

2

3

4

5

6

1.3.13

Испытание сети на плотность Ø90*8,2 Ø63*5,8

п.м

 13,5 93,4


По генплану

1.4

Заключительные работы





1.4.1

Снятие подвесок: Водопровод конализация

 шт

4 2


По генплану, по профилю

1.4.2

Присыпка газ-да мягким грунтом и устройство постели

м2

24,13

2.60


1.4.3

Разработка пешеходных мостов

шт



По генплану

1.4.4

Разработка переездных мостов

шт



По генплану

1.4.5

Засыпка газ-да бульдозером типа ДЗ-42П

м3

385,9

2.66


1.4.6

Вывоз лишнего грунта самосвалом с трассы

м3

3,71

2.63



2.6 Выбор машин и механизмов

2.6.1 Подбор сварочного аппарата

Для сварки поворотных и неповоротных стыков выбираем сварочный агрегат Барбара USB Компакт.

Характеристика сварочного агрегата:

) Тип электромуфтового сварочного аппарата - Моноблок Поливалентный Штрих-код;

) Напряжение питания - 230 В, 50-60 Гц;

) Напряжение на выходе 8 - 44 В;

) Мощность (максимальная) - 3000 VA - 80 Amps;

) Рабочая температура наружного воздуха - от -15оС до +45оС;

) Защита - IP54;

) Размеры - 35 х 23 х 16 см;

) Вес -20 кг.

Все неразъемные соединения полиэтилен-сталь выполняются электродуговой дуговой сваркой универсальным профессиональным инвертором СварогTIG 160 AC/DC (R57).

Основные характеристики:

Напряжение питающей сети, В: 187-255;

Частота питающей сети, Гц: 50/60

ПВ,%: 60;

Диапазон регулирования сварочного тока, А: 10-160;

Потребляемая мощность, кВА: 3,3;

Напряжение холостого хода, В:45;

Габаритные размеры, мм: 480*240*330;

Вес, кг: 19

2.6.2 Подбор аппарата для пневматических испытаний

Для испытания газопроводов на герметичность подбираем компрессорную станцию, способную создать давление в 2000 мм.в.ст. Выбираем станцию Yanmar 3IRH2N5, так как она подходит по своим характеристикам.

Характеристика компрессорной станции:

1)      Марка станции - Yanmar 3IRH2N5;

2)      Рабочее давление сжатого воздуха - 700 кПа;

3)      Производительность по всасываемому воздуху - 2,5м3/мин;

)        Двигатель:

а) марка - DOOSAN 7/26E;

б) мощность - 21.2кВт;

) масса - 0,57 т.

2.6.3 Подбор агрегата для уплотнения грунта

После укладки газопровода в траншею он должен быть засыпан грунтом, который был вынут, при раскопке траншеи. Для того чтобы земля в месте укладки не просела со временем грунт необходимо трамбовать. Для этой цели используются специальные трамбовочные машины. Толщина уплотняемого слоя не должна превышать 15 - 20 см, так как при большей толщине есть вероятность повреждения газопровода. При заданных параметрах была выбрана трамбовочная машина CPBH7-IA BATMATIC.

Характеристика трамбовки:

1)      Тип трамбовки - CPBH7-IA BATMATIC;

2)      Толщина уплотняемого слоя - 15-20см;

)        Производительность - 3-4 м3/мин;

)        Расход воздуха - 2 м3/мин;

)        Рабочее давление - 0,6 МПа;

) Вес - 79 кг;

2.6.4 Подбор крана

Для укладки секции, одиночных труб, монтажа запорной арматуры, конденсатосборников выбираем строповые автомобильные краны.

Краны выбираются по грузоподъемности с учетом максимального радиуса действия крюка.

При определении грузоподъемности автокрана вес плети равномерно распределяют на 2 монтажных крана. Вес плети составит:

P=m*l(2.67)

Где:

m - масса одного погонного метра изолированной трубы, кг;

l-длина плети, м.

Вес одного погонного метра трубы составляет:

Ø90 - 2,12кг;

Ø63 - 1,05 кг.

Р=2,12*13,5+1,05*93,4 = 126,7 кг = 0,1267т.

Находим необходимую грузоподъемность крана с учетом коэффициента запаса:

Q=(P/2)*К(2.68)

Где: К - коэффициент запаса, К=6-10;

Q = (0,1267/2) * 8=0,51т.

Рисунок 2.3 - Рабочая зона крана

Определяем радиус действия крюка крана:

R=(а/2)+b1+b2+0,5 +1,0 +1,3+(b3/2)(2.69)

Где:

b1=1,5м;

b2-наружный диаметр с изоляцией, м;

b3 - ширина автокрана, м;

Проверяем возможность применения автокрана HINORANGER, максимальный вылет стрелы крана составляет 21 м.

Максимальная грузоподъемность составляет 5т, что больше требуемого:

R=(0,75/2)+1,5+0,09+0,5 +1,0 +1,3+(2,6/2) = 6,06м.

Характеристика автокрана:

1)      Грузоподъемность:

а) на выносных опорах - 5 т;

б) Без выносных опор - 2 т;

2)      Длина стрелы:

а) основной - 5,3 м;

б) удлиненной - 21 м;

3)      Шасси FD3WDA;

4)      Двигатель:

а) марка - HINO;

б) мощность - 121 кВт;

5)      Габаритные размеры:

а) длина - 8000 мм;

б) ширина - 2600 мм;

в) высота - 3350 мм.

2.6.5 Подбор бульдозера

Согласно объёму работ в пункте 2.5.4 подбираем бульдозер с поворотным ножом (отвалом)

Характеристика бульдозера:

1)      Тип ДЗ-42П;

2)      Тип отвала поворотный;

)        Длина отвала 2,8 м;

)        Высота отвала 0,9 м;

)        Управление гидравлическое;

)        Марка трактора Д75Д;

)        Двигатель А-41.

Итак, для производства работ выбираем следующие машины и механизмы: экскаватор для рытья траншеи одноковшовый с обратной лопатой Э2515. Для сварки поворотных и неповоротных стыков выбираем сварочный агрегат Барбара USB Компакт.Все неразъемные соединения полиэтилен-сталь выполняются электродуговой дуговой сваркой универсальным

профессиональным инвертором СварогTIG 160 AC/DC (R57).Для испытания газопроводов на герметичность подбираем компрессорную станцию, способную создать давление в 2000 мм.в.ст. Выбираем станцию Yanmar 3IRH2N5, так как она подходит по своим характеристикам.Для уплотнения грунта выбираем трамбовочную машинуCPBH7-IA BATMATIC.Для укладки секции, одиночных труб, монтажа запорной арматуры, конденсатосборников выбираем строповые автомобильные краныHINORANGER. Максимальный вылет стрелы крана составляет 21 м.Подбираем бульдозер с поворотным ножом (отвалом) ДЗ-42П.

2.7 Определение расходов газа на технологические нужды при продувке и ремонтных работах систем газоснабжения

Расходы газа на проведение регламентных (плановых) работ, предусмотренных действующими в Российской Федерации нормативно- техническими документами по газоснабжению:

продувка газом газопроводов и оборудования при вводе в эксплуатацию (в т. ч. и повторном после текущего и капитального ремонтов) наружных и

внутренних газопроводов, ГРП, ШРП, ГРУ, внутридомового газового оборудования, газифицированных котельных, технологического оборудования ГНС, АГЗС, групповых резервуарных и баллонных установок;

периодическое техническое обслуживание оборудования ГРП, ШРП, ГРУ (проверка параметров настройки запорных и сбросных клапанов);

периодическое техническое обслуживание газового оборудования котельных и оборудования ГНС, АГЗС, групповых резервуарных установок (проверка срабатывания предохранительных устройств);

проведение технических освидетельствований и ремонтов резервуаров, баллонов;

прочие работы.

Расходы газа на проведение аварийных работ, связанных с разгерметизацией трубопроводов и оборудования:

ремонт и пуско-наладка на наружных газопроводах;

ремонт и пуско-наладка на внутридомовых газопроводах;

ремонт газопроводов и оборудования ГРП, ГРУ, котельных;

ремонт газопроводов и технологического оборудования ГНС, АГЗС групповых резервуарных и баллонных установок.

2.7.1 Определение расхода газа на продувку газопроводов и оборудования при вводе их в эксплуатацию

При вводе газопроводов и оборудования в эксплуатацию согласно требований п.6.48 «Правил безопасности в газовом хозяйстве» следует

производить продувку газом до полного вытеснения всего воздуха.

Расход газа,Qпр, м3, необходимый для осуществления продувки, определяется по формуле:

(2.71)

Где:

Vc - внутренний объем продуваемых газопроводов и оборудования;

k - поправочный коэффициент (1,25-1,30);

Ра - атмосферное давление, Па;

Рг - избыточное давление газа в газопроводе при продувке, Па (рабочее - для газопроводов низкого давления, не более 0,1 МПа - для газопроводов среднего и высокого давления);

tг - температура газа, °С.

Поправочный коэффициент kучитывает реальное увеличение расхода газа на продувку, связанное с техническими сложностями точного определения момента завершения продувки. Коэффициент может быть уменьшен в зависимости от технической оснащенности эксплуатационной организации и квалификации персонала, в частности, при использовании переносных газоанализаторов для экспресс-анализа газа на наличие в нем воздуха.

2.7.1.1 Определение расхода газа на продувку газопровода низкого и давления

Где:Vc - внутренний объем продуваемых газопроводов и оборудования;

k - поправочный коэффициент (1,25÷1,30);

Ра - атмосферное давление (101320÷101360), Па;

Рг - избыточное давление газа в газопроводе при продувке(2200÷2800), Па (рабочее - для газопроводов низкого давления, не более 0,1 МПа - для газопроводов среднего и высокого давления);

tг - температура газа(+5÷+15), °С.

)        Продувка газопровода низкого давления:

Qпр=0,0029*1,8*1,25/(101320+2200)/273+10=12,47 м3;

2.7.2 Определение расхода газа на ремонтные работы, связанные с отключением оборудования или отдельных участков газопровода, их разгерметизацией и последующей продувкой

При проведении ремонтных работ, связанных с регламентной разгерметизацией оборудования и участков газопроводов, полный расход газа на эти работы,Qпр3, складывается из количества газа, удаляемого из оборудования и газопровода, а также расхода газа на их последующее заполнение, продувку и определяется по формуле:

(2.72)

2.7.2.1 Определение расхода газа на ремонтные работы газопровода низкого давления

1)      Ремонтные работы газопровода низкого давления:

Qрем=0,0029*1,8*(1,25+1)*(101320+2200)/273+10=14,45 м3;

2.7.3 Определение расхода газа на регулировку и настройку газового оборудования ГРП, ШРП, ГРУ и другого технологического оборудования (при использовании продувочных свечей для регулировки и настройки оборудования)

Расход газа на регулировку и настройку газового оборудования перед вводом его в эксплуатацию, Qptu, м3, определяется в соответствии с формулой:

(2.73)

Где:

d - внутренний диаметр продувочной свечи, м;

 - время регулировки и настройки, ч;

 - плотность газа, кг/м3.

Требуется определить фактический расход газа на регулировку и настройку ШРП

Исходные данные: (d=0,04 м;=0,22 ч; =101340 Па; Рг=2800÷3000 Па;tг=12 °С; ρ= 0,73 г/м3)

Qptu=9,24*0,042*0,22*(2800/0,73)0,5*(101340+2800)/273+12=73,6м3.

Таким образом, в соответствии с законом о промышленной безопасности опасных производственных объектов определены расходы газа на технологические нужды, на продувку газопроводов при ремонтных и авариных работах. Цель продувки удалить взрывоопасные концентрации газа из систем газоснабжения.

2.8 План локализации и ликвидации возможных аварийных ситуаций

«План локализации и ликвидации возможных аварий» разрабатывается с целью:

определения возможных сценариев возникновения аварийной ситуации и ее развития;

определения готовности организации к локализации и ликвидации аварийных ситуаций на опасном производственном объекте;

планирования действий персонала аварийно - диспетчерской службы по локализации и ликвидации аварийных ситуаций на соответствующих стадиях их развития.

Разрабатывается «План локализации и ликвидации возможных аварий» на основании типовых планов локализации и ликвидации аварий на системах газораспределения и использования газа.

При описании технологических процессов по локализации и ликвидации аварийной ситуации отразить правила техники безопасности, действующей в газовом хозяйстве.

Заключение

В первом разделе выпускной квалификационной работы описываются теоретические аспекты проектирования и строительства систем газораспределения и газопотребления.

Известно, что разрешение на строительство на территории РФ выдают органы местного самоуправления либо организации, имеющие лицензию и документ передающий ответственность за данную процедуру. Строительство систем газораспределения выполняются только в соответствии с строительными нормами и правилами, а также со сводами правил действующими на данный момент.

Целесообразно для строительства рассматриваемого предмета исследования применить поточный метод производства работ,так как по продолжительности он является самым коротким, операции выполняются строго последовательно с применением средств автоматизации.

Описывали машины и механизмы, которые используют при производстве земляных работ. Представлены: рисунок одноковшового экскаватора с обратной лопатой, классификация автокранов, сварочные аппараты, которые являются универсальными.

Перед вводом в эксплуатацию газопроводы проходят различные проверки и испытания. В течение эксплуатации трассы газопровода, обходчики трасс, согласно СНиПам, так же проверяют их на исправность.

Далее были описаны методы организации безопасности строительства, техники безопасности и охрана окружающей среды в соответствии с действующими правилами.

Второй раздел посвящен проектированию и расчету системы газораспределения и газопотребления.

Гидравлический расчет тупикового газопровода квартала выполнен верно.

Так как сумма потерь давления на участках не превышает максимально допустимого значения 1200 Па.

Расчет сети среднего давления выполнен из учета требуемого давления газа перед потребителем.Давление газа в конце направления Рк.факт. не меньше требуемой величины (3,48 ≥ 2,59 ата) и согласно расчетам регулятора давления газа, обеспечивает устойчивую работу регулятора, следовательно, гидравлический расчет тупикового газопровода среднего давления выполнен верно.

Был выполнен продольный профиль подземного газопровода в соответствии с рельефом местности. Газопровод проложен с минимальным

Определили объемы строительно-монтажных работ. Выполнена монтажная схема сварных стыков.Монтажная схема - это исполнительный чертеж работы сварщика. В данном проекте принимаем, что с завода изготовителя поставляются полиэтиленовые тубы. Так как строительство ведется в стесненных условиях, то принимаем, что оптимальная длина секции составит 26-40м.

Для производства земляных работ исходя из расчетов мы подобрали наиболее подходящие машины и механизмы, которые будут задействованы.

Определили расходы газа на технологические нужды, на продувку газопроводов при ремонтных и авариных работах. Цель продувки удалить взрывоопасные концентрации газа из систем газоснабжения.

Разработали план локализации и ликвидации возможных аварий с целью:

определения возможных сценариев возникновения аварийной ситуации и ее развития;

определения готовности организации к локализации и ликвидации аварийных ситуаций на опасном производственном объекте;

планирования действий персонала аварийно - диспетчерской службы по локализации и ликвидации аварийных ситуаций на соответствующих стадиях их развития.

Список используемых источников

1.    ГОСТ 50838-2009 «Трубы из полиэтилена для газопроводов»

2.         ТУ 4859-026-03321549-99 «Неразъёмные соединения полиэтиленовых труб со стальными НС»

3.         СНиП 42-01-2002 «Газораспределительные системы»

4.         СП 42-103-2003 «Проектирование и строительствогазопроводов из полиэтиленовых труб и реконструкция изношенных газопроводов»;

5.    СП 62.13330.2011Газораспределительные системы. Актуализированная редакция СНиП 42-01-2002;

6.    Единые нормы и расценки на строительные, монтажные и ремонтно-строительные работы, Общая часть;

7.    Единые нормы и расценки на строительные, монтажные и ремонтно-строительные работы. Сборник Е2 «Земляные работы» выпуск 1 «Механизированные и ручные земляные работы»;

8.    Единые нормы и расценки на строительные, монтажные и ремонтно-строительные работы. Сборник Е9 «Сооружение систем теплоснабжения, водоснабжения, газоснабжения и канализации» Выпуск 1

9.         Единые нормы и расценки на строительные, монтажные и ремонтно-строительные работы. Сборник Е9 «Сооружение систем теплоснабжения, водоснабжения, газоснабжения и канализации» Выпуск 2

10.            Единые нормы и расценки на строительные, монтажные и ремонтно-строительные работы. Сборник Е22 «Сварочные работы» Выпуск 2.

11. Ошовский В.Д. Справочник слесаря газового хозяйства. М, 2009. - 180с.

. Прохоров А.Д. Эксплуатация газопроводов. М., 2009. - 405 с.

. Расков В.В. Газовое хозяйство РФ. Сургут, 2010. - 590 с.

. Юрлова К.С. Испытания и приемка объектов газового хозяйства. СПб., 2009. - 390 с.

. Ямов Ф.Л. Документация при вводе в эксплуатацию объектов газового хозяйства. Казань, 2011. -175 с.

Похожие работы на - Разработка проекта газоснабжения поселка городского типа от шкафного регуляторного пункта (ШРП) в Калининградской области природным газом

 

Не нашли материал для своей работы?
Поможем написать уникальную работу
Без плагиата!
Без нейросетей!