Модернизация устройства выталкивания заготовок нагревательной печи стана 150 сортопрокатного производства
Содержание
Введение
1. Анализ состояния вопроса, цели и задачи выпускной
квалификационной работы
2. Конструкционная часть
2.1 Описание работы выталкивателя заготовок
2.2 Расчет и проектирование привода главного движения выталкивателя
заготовок
2.2.1 Разработка и описание кинематической схеме привода
2.2.2 Энерго-кинематический расчет
2.2.3 Проектирование червячной передачи
2.2.4 Ориентировочный расчет и конструирование приводного вала
исполнительной машины
2.2.5 Проверочный расчет на выносливость
2.2.6 Подбор шпонок и проверка прочности шпоночных соединений
2.3 Расчет и проектирование гидропривода продольного перемещения
выталкивателя заготовок
2.3.1 Расчет и выбор исполнительного гидроцилиндра
2.3.2 Составление принципиальной схемы привода
2.3.3 Расчет и выбор насосной установки
2.3.4 Выбор гидроаппаратуры
2.3.5 Разработка конструкции гидроблока управления
2.3.6 Определение потерь давления в аппаратах и трубопроводах
2.3.6.1 Определение потерь давления в гидроаппаратах
2.3.6.2 Определение потерь давления в трубопроводах
2.3.6.2.1 Потери давления по длине
2.3.6.2.2 Местные потери давления
2.3.6.3 Суммарные потери давления в напорной и сливной линиях
2.4 Разработка циклограммы работы нагревательной печи
3. Технологическая часть
3.1 Разработка процесса изготовлении детали "Червяк"
3.1.1 Выбор заготовки
3.1.2 Выбор оборудовании и приспособлений
3.1.3 Назначение технологических переходов
3.1.4 Подбор режущего инструмента
3.1.5 Часть управляющей программы для станка SFM СЕТ-28
3.2 Проектирование токарного проходного резца
3.2.1 Выбор материала корпуса резца
3.2.2 Главная составляющая силы резания
3.2.3 Проверяем прочность и жесткость корпуса резца
3.2.3.1 Максимальная нагрузка, допускаемая прочностью резца
3.2.3.2 Максимальная нагрузка, допускаемая жесткостью резца
3.2.4 Выбор конструктивных размеров резца
Заключение
Список использованных источников
Введение
В настоящее время в металлургии большим спросом пользуется
тот сортамент, который обладает надлежащим качеством и доступной ценой. На
сегодняшний день металлургические компании ставят перед собой задачи повышения
качества выпускаемой продукции, увеличение ассортимента, который будет
востребован на потребительском рынке, а также снижение себестоимости продукции
путем внедрения новых проектов, модернизации и реконструкции имеющегося
оборудования. Поэтому крупные холдинги России затрачивают огромные средства на
поддержание работоспособности основных и вспомогательных цехов.
Не стала исключением и ПАО "Северсталь". Будучи
одной из самых больших металлургических компаний России, имеющей оборудование,
которому более 60 лет, она смогла удержаться на рынке и стать одной из первых в
мире компаний, повысившей качество выпускаемой продукции и уменьшившей ее
себестоимость путем реконструкции и модернизации оборудования.
В настоящее время в сортопрокатном цехе производится
широчайший ассортимент металлопродукции. Сегодня он составляет более 80 видов
типоразмеров. Основными потребителями продукции сортопрокатного цеха являются
предприятия метизной промышленности, автомобильные заводы, заводы
машиностроительного комплекса, строительные организации и др. Кроме того,
производится отгрузка сортового проката на экспорт. Продукция сортопрокатного
цеха используется практически во всех отраслях промышленности.
На станы сортопрокатного цеха задается следующая заготовка:
для проволочного стана 150 - заготовка сечением 100 х 100 мм,
длиной 10500: 11600 мм;
для мелкосортного стана 250 - заготовка сечением 100 х 100
мм, длиной 10500: 11600 мм;
для среднесортного стана 350 - заготовка сечением 80 х 80 мм,
длиной 4000; 6000 мм; заготовка сечением 125 х 125 мм, длиной 4000; 6000 мм;
заготовка сечением 150 х 150 мм, длиной 4000; 6000 мм.
Сортопрокатный цех выпускает, более 170 профилей из 150 марок
стали, постоянно обновляется сортамент производства, разрабатываются новые
профили для расширения как внутреннего, так и внешнего рынков сбыта.
Основные виды продукции: мелкий сорт рядовой, хромистый и
низколегированный, средний сорт рядовой и низколегированный, сорт
конструкционный, сорт легированный (бунты), сорт подшипниковый, крупный сорт
рядовой и низколегированный, катанка рядовая и конструкционная, катанка
легированная и конструкционная, катанка ШХ-15.
В состав сортопрокатного цеха входят 3 стана: 350; 250; 150.
Стан 350 полунепрерывный, эксплуатируется с 1963 года.
Предназначен для производства следующего проката:
квадратный прокат сечением 45х45, 48х48, 50х50 мм;
- круглый прокат диаметром 28-105 мм;
плоский прокат 50-120х10-40 мм;
уголок 45-75 мм;
пруток для армирования ЖБ конструкций;
и д.р.
После последней модернизации стана минуло 33 года. За столь
длительный срок вырос спрос на продукцию на потребительском рынке, как внутри
страны, так и за ее пределами, а также изменились требования к качеству
продукции. Исходя из новых условий потребовалось повышение качества выпускаемой
продукции и, как следствие, модернизация используемого оборудования.
Постоянно увеличивается объем выпуска сталей с высоким
содержанием легирующих элементов. Сопротивление деформации этих сталей
значительно выше, чем у рядовых марок. В связи с тем, что конструкция стана не
рассчитана на нагрузки, возникающие при производстве проката из
высоколегированных сталей, назрела необходимость в проведении реконструкции
стана. Предварительные исследования показали, что наиболее слабым звеном в
оборудовании стана является чистовой прокатный блок. Поэтому в 2001 году была
проведена реконструкция прокатных блоков. Также немаловажное значение имеет
качественная подача заготовки на стан.
Модернизации механизма вталкивания заготовок на стане 150
сортопрокатного производства позволит сократит процент брака выпускаемой
продукции, снизит время простоев оборудования, обслуживание оборудования станет
менее трудоемким.
нагревательная печь выталкиватель заготовка
1.
Анализ состояния вопроса, цели и задачи выпускной квалификационной работы
В данное время, на стане 150 сортопрокатного производства ПАО
"Северсталь" установлен механизм выталкивания заготовок фрикционного
типа со штангой квадратного сечения с водным охлаждением.
Данный выталкиватель, имеет следующие недостатки:
) перемещение штанги осуществляется электромеханическим
приводом, он не обладает точностью центровки органа выталкивания относительно
заготовки, в следствии применения кривошипно - шатунного механизма и отсутствия
плавности в работе. Резкая работа выталкивателя приводит к изменению оси
заготовки относительно окна распределительного устройства, из - за этого
выталкиваемая заготовка деформируется об углы приемной части распределяющего
устройства, что приводит к короблению заготовки и увеличению брака продукции;
) штанга изготовлена из трубы квадратного сечения, со
встроенной системой водного охлаждения, закупаемой за рубежом.
Целью дипломного проекта является модернизация механизма
выталкивателя для уменьшения времени простоя оборудования и увеличения
производства продукции надлежащего качества.
Для реализации цели проекта необходимо рассмотреть следующие
вопросы:
) модернизировать механизм выталкивателя, установив
водоохлаждаемую штангу из бесшовной трубы круглого сечения, выпускаемые ПАО
"Северсталь”;
) произвести расчет гидропривода механизма для обеспечения
плавного перемещения и более точного центрирования штанги выталкивателя;
) скомпоновать оборудование выталкивающего механизма.
Гидропривод широко используется в промышленном производстве
так как позволяет получать высокие мощности и усилия при небольших размерах
гидродвигателя. Гидроприводы работают в динамических режимах с требуемым
качеством переходных процессов и обеспечивают широкий диапазон бесступенчатого
регулировании скоростей.
Установка гидропривода снизит металлоемкость оборудования,
повысит точность и надежность механизма.
2.
Конструкционная часть
2.1 Описание
работы выталкивателя заготовок
Данное оборудование предназначено для подачи нагретых
заготовок из нагревательной печи. Выталкиватель находится под управлением
оператора механизма (нагревальщика).
Механизм выталкивателя фрикционный с водоохлаждаемой штангой
(труба круглого сечения). В движение штангу приводят вращающиеся ролики -
приводной и прижимной. Возникающие между штангой и роликами силы трения
ограничивают толкающее усилие, а это, в свою очередь, предохраняет механизм от
перегрузок.
На рисунке 1 принципиальная схема механизма выталкивателя.
Рисунок 1 - Схема механизма выталкивателя: 1, 2 - прижимной и
приводной ролики, 3 - водоохлаждаемая штанга, 4 - привод перемещения штанги, 5
- гидропривод перемещения тележки, 6 - направляющие ролики.
Перемещение штанги 3 происходит за счет роликов 1 -
прижимной, 2 - приводной. Когда механизм отключен водоохлаждаемая штанга
находится вне нагревательной печи, а ее рабочая часть остается в приводе
механизма подачи.
Во время работы привод механизма подачи приводит в движение
водоохлаждаемую штангу, передвигая ее в направлении участка прокатки
нагревательной печи для подачи нагрето заготовки в клети стана. После подачи
заготовки в клети стана механизм выталкивателя реверсируется и возвращает
штангу в исходное состояние. Исходное положение фиксируется упорами.
2.2 Расчет и
проектирование привода главного движения выталкивателя заготовок
2.2.1
Разработка и описание кинематической схеме привода
На рисунке 2 изображена кинематическая схема механизма
вталкивания заготовок.
Рисунок 2 - Кинематическая схема механизма выталкивания
заготовок: электродвигатель - 1, муфта зубчатая - 2, червячная передача - 3,
приводной ролик - 4, прижимной ролик - 6.
Вращение от электродвигателя 1 передается через муфту
зубчатую 2, червячную передачу 3 на приводной ролик 4. Ролик в свою очередь
толкает штангу 5, которую с противоположной стороны поджимает с определенным
усилием прижимной ролик 6. Таким образом, происходит подача штанги в
нагревательную печь для выдачи (выталкивания) заготовки в стан.
2.2.2
Энерго-кинематический расчет
Исходные данные:
1.
- скорость перемещения штанги;
.
- диаметр ролика;
.
- кпд червячной передач;
.
- мощность исполненного механизма;
.
- коэффициент использования передачи в
сутки;
.
- коэффициент использования передачи в
год;
.
- срок службы передачи, год;
.
- прижимное усилие ролика.
Определяем общий КПД, выполняем анализ кинематической схемы и
выявляем источники потери мощности:
1)
муфты
(2);
2)
червячной
передачи (3);
3)
двух
пар подшипников качения (7,8)
По справочным данным устанавливаем значение кпд источников
потери мощности:
(1)
где
- кпд муфты;
=0,98;
- кпд червячной передачи;
=0,35;
- кпд подшипников качения;
=0,99;
.
Подбор электродвигателя:
мин. - 1 (2)
где
- скорость исполнительного механизма,
- диаметр
ролика, мм.
Расчетная мощность:
кВт.; (3)
Подбираем подходящие типы электродвигателей с фазным ротором:
)
с техническими характеристиками:

2)
с техническими характеристиками:

По исполнению и остальным техническим характеристикам наиболее
подходит двигатель
, так как он наиболее защищён от попадания
внутрь пыли и других предметов, и предназначен для работы при больших
переменных нагрузках.
2.2.3
Проектирование червячной передачи
1) Исходя из полученных расчетов проектируем червячную
передачу:
Червячное колесо из материала Бр. ОФ10-1. Материал червяка из
стали 40Х ГОСТ 1050. Число заходов червяка
,
Число зубьев колеса:
,
Межосевого расстояния:
,
Осевой модуль:
,
Коэффициент диаметра червяка:
,
Коэффициент смещения:
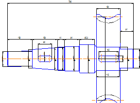
) Геометрические размеры червячной передачи:
На рисунке 3 изображены геометрические размеры червячной передачи.
Рисунок 3 - Геометрические размеры червячной передачи
Согласно произведенным расчетам были получены геометрические данные
червячной передачи:
Делительный диаметр:
Начальный диаметр:
Диаметр вершин витков:
Диаметр впадин витков:
Длина нарезанной части червяка:
Диаметр делительной (начальной) окружности:
Диаметр вершин зубьев:
Наибольший диаметр:
Диаметр впадин:
Ширина венца:
2.2.4
Ориентировочный расчет и конструирование приводного вала исполнительной машины
1) Определение диаметра консольного участка вала:
, мм, (4)
где d - диаметр вала. мм;
Т3
- крути момент на валу, Н·м;
[τ] к - допускаемое напряжение на кручение, [τ] к= 20-25МПа.
.
Проектный расчет вала может быть только ориентировочный, так как
при его выполнении еще не известны конструктивные элементы вала, атак же не
известны расстояния между опорами и точками приложения нагрузок. Принимаем
конец тихоходного вала
.
На рисунке 4 изображен червячный вал.
Рисунок 4 - Рабочий вал
) Определение диаметра вала под стопорную гайку:
Для надежной фиксации подшипника на посадочном месте применяем
дополнительное крепление гайкой.
Высоту буртика принимаем равной
,
Диаметр вала под гайку:
(5)
Принимаем 
.
) Определение диаметра вала под подшипники:
Высоту буртика принимаем равной,
,
Диаметр вала под подшипник:
,
Полученный диаметр округляем до стандартного значения подшипника,
Принимаем подшипник 3626 ГОСТ 5721-75.
На другом конце вала принимаем подшипник 3620 ГОСТ 5721-75,
) Определение диаметра вала под бурт за подшипником:
,
Принимаем
) Определение длины l концевого участка:
По ГОСТ 12080 - 66 длина l=150 мм.
6) Определение диаметра среднего участка вала:
Диаметр среднего участка вала чаще всего определяется размером
, величину которого находят из условия
надежного контакта заплечиков вала и внутреннего кольца подшипника.
, (6)
где f - фаска внутреннего кольца подшипника, f = 3,5,
Принимаем
) Выбор типа подшипников:
Так как червяк подвержен воздействию больших осевых нагрузок и
работает при повышенной температуре, применим схему вала с одной
функционирующей опорой. В корпусе в стакане устанавливаем два однорядных
конических радиально-упорных роликоподшипника 7518А ГОСТ 27365-87, так как
требуется регулировка червячного зацепления. На задний конец вала устанавливаем
однорядный радиальный шарикоподшипник 315 ГОСТ 8338-75 в плавающей опоре, для
облегчения сборки передачи, а также для компенсации осевого удлинения вала при
повышении температуры.
Характеристики предварительно выбранных подшипников [6]:
а) подшипник 7518-однорядный конический радиально-упорный
роликоподшипник; наружный диаметр D = 160 мм; внутренний диаметр d
= 90 мм; ширина В = 72 мм; динамическая грузоподъемность С=210кН;
статическая грузоподъемность Со=190кН.
б) подшипник 315-однорядный радиальный шарикоподшипник; наружный
диаметр D=160 мм.; внутренний диаметр d=75 мм.; ширина В=37
мм.; динамическая грузоподъемность С=112кН.; статическая
грузоподъемность Со=72,5кН.
Вал-шестерня подвержен воздействию больших нагрузок, со стороны,
где посажен приводной ролик, работает при высокой температуре.
В соответствии с конструкцией механизма привода выталкивателя, с
учетом того, что на консольную выходную часть вала, по центру приводного
ролика, действует усилие Рпр=39,7кН, подбираем 2 вида подшипников:
а) ближний к приводному ролику - подшипник роликовый радиальный
сферический 2-х рядный 3626 по ГОСТу 5721-75, с характеристиками: d = 130
мм.; D = 215 мм.; B = 82 мм.; C = 540кН.;
б) дальний от приводного ролика - подшипник роликовый радиальный
сферический 2-х рядный 3620 по ГОСТу 5721-75, с характеристиками: d =
100мм.; D = 215мм.; В = 73мм.; С = 410 кН.
2.2.5
Проверочный расчет на выносливость
Определяем расчетный коэффициент запаса прочности в
рассматриваемых сечениях:
(7)
где
и
- коэффициенты запаса по нормальным и касательным напряжениям.
(8)
(9)
где
и
- пределы выносливости соответственно при
изгибе и кручении,
;
и
- амплитуды напряжений цикла;
и
- средние напряжения цикла;
и
- коэффициенты, учитывающие влияние
постоянной составляющей цикла напряжений на сопротивление усталости;
и
- эффективные коэффициенты концентрации
напряжении соответственно при изгибе и кручении;
- коэффициент влияния абсолютных размеров поперечного сечения
(масштабный фактор);
- коэффициент влияния шероховатости.
Сечение 1 - 1:
Материал вала сталь 40Х; НВ
240 (8);
;
;
и
- так как вал подвержен частому реверсированию.
и
;
и
- так как материал вала - легированная
сталь:
,
,
,
Условие выполнено так как
.
Сечение 2 - 2:
Материал вала сталь 40Х; НВ
240 (8);
;
;
и
- так как вал подвержен частому реверсированию.
и
;
и
- так как материал вала - легированная
сталь:
,
,
,
Условие выполнено так как
.
Сечение 3 - 3:
Материал вала сталь 40Х; НВ
240 (8);
;
;
и
- так как вал подвержен частому реверсированию.
и
;
и
- так как материал вала - легированная
сталь:
,
,
,
Условие выполнено так как
.
2.2.6 Подбор
шпонок и проверка прочности шпоночных соединений
Шпоночное соединение устанавливается на консольной части приводного
вала. Шпонку подбираем по таблицам по ГОСТу, в зависимости от диаметра вала и
проверяем расчетом соединение на смятие.
При диаметре выходного конца вала
подбирается призматическая шпонка
. Длину шпонки принимаем из ряда стандартных длин
Расчётная длина шпонки:
мм.; (10)
Расчётное напряжение смятия:
; МПа, (11)
где
- крутящий момент на валу,
- диаметр вала,
- расчетная длина шпонки,
- высота шпонки,
- допускаемые напряжения смятия для шпонок, изготовленных из
стали,
Итак, принимаем шпонку
При диаметре вала
под червячное колесо подбирается призматическая шпонка
. Длину шпонки принимаем из ряда
стандартных длин
Расчётная длина шпонки:
Расчётное напряжение смятия:
.
Итак, принимаем шпонку
2.3 Расчет и
проектирование гидропривода продольного перемещения выталкивателя заготовок
2.3.1 Расчет
и выбор исполнительного гидроцилиндра
Определение осевого усилия, необходимого для перемещения
рабочего органа:
, Н; (12)
где Gx - проекция сил веса неуравновешенных
движущихся частей механизма на направление перемещения; (Gx = 0),
так как механизм перемещается только в горизонтальной плоскости);
m - масса
механизма, m=2500 кг.
mp - масса неуравновешенных движущихся частей механизма,
а - ускорение
рабочего органа,
Выбираем стандартный гидроцилиндр с односторонним штоком [5,
с.385]: 7 - 2 - 2 - 100 - 50 - 280 ГОСТ 2Г 25 - 1 - 86
где 7 - тип гидроцилиндра;
2 - по типу
торможения с торможением;
2 - по типу
уплотнения с поршневыми кольцами;
100 -
диаметр поршня, мм.;
50 - диаметр
штока, мм.;
280 -
величина хода, мм.
Выбранный гидроцилиндр по условию устойчивой работы подходит для
данного механизма.
2.3.2
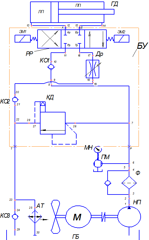
Составление принципиальной схемы привода
Начнем составление с нанесения на схему гидроцилиндра, после этого
наносим регулирующие и направляющие аппараты на рабочие линии гидроцилиндра,
согласно циклограмме и характеристикам работы привода. Затем объединим сливную,
напорную и дренажную линии отдельных участков схемы. В завершении изобразим
гидросхему насосной установки, разместим теплообменники, фильтры, гидроклапан
давления. Во избежании слива жидкости в бак, при выключенном состоянии,
установим обратный клапан в напорную линию. В дренажной линии разместим два
обратных клапана чтоб не допустить обратного хода жидкости в
гидрораспределитель и для слива жидкости при переполнении теплообменника. По
схеме 64 выбираем реверсивный распределитель, для разгрузка насоса в положении
"стоп".
Описание работы схемы:
Перемещение поршня вперед:
Вперед → вкл. ЭМ1; РР → вкл. в поз.1
Рабочая жидкость от насоса протекает через фильтр. После в точке 4
разветвляется: один поток направляется в гидроклапан давления, а другой в
обратный клапан КО1. Далее поток жидкости поступает в корпус гидроблока
управления, где через обратный клапан КО2, из напорной линии Р будет поступать
в линию А реверсивного распределителя. Далее поток жидкости из реверсивного
распределителя поступает в левую половину гидроцилиндра, шток ГЦ начнет
перемещение в право. Рабочая среда из правой полости ГЦ поступит в
распределитель, пройдёт через линию В и линию Т реверсивного распределителя, а
затем через обратный клапан и теплообменник поступит в бак. Перемещение поршня
назад:
Назад→ → вкл. ЭМ2; РР → вкл. в поз.2
НП → Ф → КО1 → Р (РР) В → ПП (ГЦ) /ЛП (ГЦ)
→ А (РР) Т → Др → КО2→ КО3/АТ → ГБ
Поршень не перемещается:
НП → Ф → КД → КО3/АТ → ГБ
Обозначения на принципиальной схеме ГП:
НП - насос пластинчатый;
Ф - фильтр;
КД - гидроклапан давления;
КО - гидроклапан обратный;
Др - дроссель,
РР - гидрораспределить реверсивный;
ГЦ - гидроцилиндр;
ГБ - гидробак.
Скорость входа штока ГЦ регулируется открытием дросселя. Чем
больше открыт дроссель, тем больше скорость выхода штока. При полном открытии
дросселя скорость наибольшая. При полном закртии дросселя скорость равна нулю.
На рисунке 5 изображена принципиальная схема привода:
Рисунок 5 - Принципиальная схема гидропривода
2.3.3 Расчет
и выбор насосной установки
1) Расчет необходимого давления:
) Определение расхода жидкости необходимого для работ системы:
Нам подходит насосная установка: 40 - 2,2 Г 48 - 1Д - УХЛ 4,где
40 - подача масла, л/мин.;
2,2 -
мощность приводного электродвигателя, кВт.;
Г48 -
обозначение насосной установки;
1 - тип НУ,
с однопоточным насосом;
Д - со
средствами диагностики;
УХЛ -
климатическое исполнение по ГОСТ 15150 - 69;
4 -
категория размещения по ГОСТ 15150 - 69;
- исполнение по частоте вращения, 1500об/мин.
Выбираем насос пластинчатый - НПл 40/6,3
2.3.4 Выбор
гидроаппаратуры
На основании проведенных расчетов выбираем гидроаппаратуру.
) Выбор гидроаппаратуры [5, с.76] производим по донным
расхода рабочее жидкости в месте установки аппарата:
По заданным параметрам и способу монтажа выбираем
гидрораспределитель: РХЗ 10.3 - АЛ 4 - 44 В - УХЛ 4,где РХЗ -
гидрораспределитель с электрогидравлическим управлением;
10 -
условный проход: 10 мм;
3 -
номинальное давление: 32 МПа;
Основные параметры:
) Выбираем дроссель: ДК 10.3 - МВ - УХЛ 4,где ДК -
дроссель;
10 -
условный проход: 10 мм;
3 -
номинальное давление: 32 МПа;
М - способ
монтажа - модульный;
Основные параметры:
) Выбираем гидроклапан давления: КПМ 10/3 БР - УХЛ 4,где КПМ
- клапан предохранительный непрямого действия модульного исполнения;
10 -
условный проход: 10 мм;
3 -
номинальное давление: 32 МПа;
Основные параметры:
) Выбираем фильтр щелевой по ГОСТ 21329 - 75.
Основные параметры:
Тонкость фильтрации 40 мкм.
) Выбираем воздушный теплообменник:
Г 44 - 23 ТУ 2 - 053 - 0221244 - 050 - 89
) Выбираем обратный клапан КО1 модульного исполнения:
КОМ 10/3 Р УХЛ 4 [5, стр.98]
где КО - клапан обратный;
М - способ
монтажа: модульный;
10 -
условный проход: 10 мм;
3 -
номинальное давление на входе: 32 МПа;
) Выбираем переключатель манометра:
ПМ - 320 ТУ 2 - 053 - 1707 - 84
Выбираем манометр показывающий: МТ - 1 ТУ 25 - 02.72 - 75
2.3.5
Разработка конструкции гидроблока управления
Гидроаппаратуру необходимо конструктивно выполнять в виде
гидроблока управления на специальном корпусе или плите. В данный гидроблок
управления входят следующие аппараты: клапан обратный №1, дроссель, реверсивный
распределитель, клапан обратный №2, клапан перепускной. На схеме эти аппараты
объединены штрих - пунктирной линией.
Описание цикла работы:
Рабочая жидкость от насоса проходит через фильтр, затем часть
жидкости поступает в гидроблок управления, а вторая часть (при наличии
избыточного давления в системе) сливается в гидробак через гидроклапан
давления. В гидроблоке управления, проходя через обратный клапан 1 жидкость
проходит через отверстие Р плиты в реверсивный распределитель, а часть через
отверстие Т плиты и дроссель сливается в гидробак. При включении реверсивного
распределителя в правую позицию, из его отверстия Ар жидкость поступает в
отверстие А плиты и выходит из гидроблока управления к гидроцилиндру. Из правой
полости гидроцилиндра жидкость поступает в отверстие В плиты, затем в отверстие
Вр реверсивного распределителя и объединяется через отверстия Т1р и Т2р
реверсивного распределителя с отверстием В1 дросселя, после чего выходит из
гидроблока управления на слив через отверстие Т плиты в гидробак.
2.3.6
Определение потерь давления в аппаратах и трубопроводах
2.3.6.1
Определение потерь давления в гидроаппаратах
(13)
где
- давление открывания или настройки
гидроаппарата, Па;
А и В
- коэффициенты аппроксимации экспериментальной зависимости потерь давления в
гидроаппарате от расхода жидкости через него;
- расход жидкости через гидроаппарат.
где
- потери давления в аппарате при
номинальном расходе,
(1, с.275);
- давление открывания или настройки аппарата,
;
- номинальный расход гидроаппарата.
(15)
где
- номинальный расход гидроаппарата, м3/с.
Определяем потери давления в фильтре при быстром подводе и при
быстром отводе:
,
,
,
.
Аналогично проведем расчет потерь давления следующих
гидроаппаратов для напорной и сливной линии, результаты расчетов сводим в
таблицу 1:
Таблица 1 - Потери давления в гидроаппаратах
Этап цикла Наименование и модель аппарата Этап
цикла ΔРном,
ΔРо,
А,
В,
Qmax,
ΔРГА,
|
|
|
|
|
|
|
|
|
Напорная
|
Фильтр Ф
|
БП
|
0,09
|
0
|
67,16
|
100245,04
|
0,00067
|
0,0900
|
|
|
БО
|
0,09
|
0
|
67,16
|
100245,04
|
0,00067
|
0,0900
|
|
Обратный клапан
КОМ 10.3 Р - УХЛ4;
|
БП
|
0,25
|
0,15
|
96,15
|
184911,24
|
0,00052
|
0,1000
|
|
|
БО
|
0,25
|
0,15
|
96,15
|
184911,24
|
0,00039
|
0,1000
|
|
Напорная
|
Распределитель
РЕХ 10.3 - АЛ4 - 44В - УХЛ 4
|
БП
|
0,7
|
0
|
673,08
|
1294378,70
|
0,00052
|
0,7000
|
|
|
БО
|
0,7
|
0
|
897,44
|
2301117,69
|
0,00039
|
0,7000
|
|
Сливная С
|
Распределитель
РЕХ 10.3 - АЛ4 - 44В - УХЛ 4
|
БП
|
0,7
|
0
|
897,44
|
2301117,69
|
0,00039
|
0,7000
|
|
|
БО
|
0,7
|
0
|
673,08
|
1294378,70
|
0,00052
|
0,7000
|
|
Дроссель ДК
10.3 - МВ - УХЛ 4
|
БП
|
0,35
|
0,08
|
259,62
|
249537,89
|
0,00039
|
0,3000
|
|
|
БО
|
0,35
|
0,08
|
259,62
|
249537,89
|
0,00052
|
0,3000
|
|
Обратный клапан
КОМ 10.3 Р - УХЛ4
|
БП
|
0,25
|
0,15
|
96,15
|
184911,24
|
0,00039
|
0,1000
|
|
|
БО
|
0,25
|
0,15
|
96,15
|
184911,24
|
0,00052
|
0,1000
|
|
Теплооб. Г 44 -
23
|
БП
|
0,2
|
0
|
192,31
|
369822,49
|
0,00054
|
0,5000
|
|
|
БО
|
0,2
|
0
|
192,31
|
369822,49
|
0,00067
|
0,5000
|
Суммарные потери давления для напорной линии при быстром
подводе и быстром отводе:
Суммарные потери давления для сливной линии при быстром подводе и
быстром отводе:
2.3.6.2
Определение потерь давления в трубопроводах
2.3.6.2.1
Потери давления по длине
Для данного гидропривода используем индустриальное масло ИГНСП
- 40, группа по ISO 6743/4 - 1981 - HG (с добавлением присадок, обеспечивающих
плавность движения), класс вязкости по ISO 3448 - VG 68.
Масло имеет следующие характеристики:
вязкость при 500 С, 40 мм2/с;
индекс вязкости ИВ, 95;
кислотное число КОН, 2,5 мм2/с;
температура вспышки, tвсп=2100С;
температура застывания tз= - 150С;
плотность
= 895 кг/м3.
Определяем фактическую скорость течения на участках напорной
линии
1 - 2; 3 - 4; 4 - 18 при быстром подводе.
(16)
где
- расход жидкости в линии, м 3/с;
f - площадь
внутреннего сечения канала, м2.
Труба 22 х 1
Определяем число Рейнольдса для напорной линии:
(17)
где
- фактическая скорость течения жидкости в
трубопроводе, м/с;
- внутренний диаметр трубопровода, м;
- кинематический коэффициент вязкости жидкости, м2/с.
Так как режим течения жидкости ламинарный, следовательно
коэффициент гидравлического трения:
Определяем потери давления 
на вязкое трение по длине на
участке 1 - 2:
(18)
.
Определяем потери давления в напорной линии на этапе цикла работы
гидропривода - быстрый подвод:
(19)
где
- потери давления на вязкое трение, МПа;
- вязкость масла, мм2/с;
- расход масла, л/мин;
- длина i - того участка трубопровода, м;
- диаметр i - того участка трубопровода, мм.
.
Аналогично проведем расчет потерь давления в сливной линии.
Для рассчитанных участков результаты расчетов сводим в таблицу 2:
Таблица 2 - Потери в трубопроводах по длине
Этап цикла Линия
,
Участок
,



,

,

,
|
|
|
|
|
|
|
|
|
|
1
|
2
|
3
|
4
|
5
|
6
|
7
|
8
|
9
|
|
БП
|
напор.
|
0,00067
|
1 - 2
|
0,02
|
0,3
|
40
|
0,0018
|
0,015
|
|
|
|
5 - 7
|
0,02
|
0,4
|
40
|
0,0024
|
|
|
|
0,00052
|
БУ
|
0,011
|
0,15
|
40
|
0,0060
|
|
|
|
|
12 - 13
|
0,02
|
1,2
|
40
|
0,0048
|
|
|
слив.
|
0,00039
|
14 - 15
|
0,02
|
1,2
|
40
|
0,0027
|
0,0151
|
|
|
|
БУ
|
0,011
|
0,15
|
40
|
0,0035
|
|
|
|
0,00054
|
22 - 30
|
0,02
|
1,5
|
40
|
0,0061
|
|
|
Итого БП
|
|
0,0301
|
|
БО
|
напор.
|
0,00067
|
1 - 2
|
0,02
|
0,3
|
40
|
0,0018
|
0,0129
|
|
|
|
5 - 7
|
0,02
|
0,4
|
40
|
0,0024
|
|
|
|
0,00052
|
БУ
|
0,011
|
0,15
|
40
|
0,0060
|
|
|
|
0,00039
|
14 - 15
|
0,02
|
1,2
|
40
|
0,0027
|
|
|
слив.
|
0,00052
|
13 - 12
|
0,02
|
1,2
|
40
|
0,0048
|
0,0144
|
|
|
|
БУ
|
0,011
|
0,15
|
40
|
0,0035
|
|
|
|
0,00067
|
22 - 30
|
0,02
|
1,5
|
40
|
0,0061
|
|
|
Итого БО
|
|
0,0273
|
2.3.6.2.2
Местные потери давления
Местные потери складываются из потерь в различных местных
сопротивлениях и определяются по формуле:
(20)
где
- коэффициент j - ого местного
сопротивления;
nМ - число
местных сопротивлений;
fст j - площадь внутреннего сечения трубопровода
перед j - ым сечением.
Аналогично проведем расчет местных потерь давления для
напорной и сливной линии, результаты расчетов сводим в таблицу 3:
Таблица
3 - Местные потери давления
Этап цикла Линия
,
Участок
,
Вид
местного сопр. Кол-во Мест сопр. 

,

,
|
|
|
|
|
|
|
|
|
|
|
|
1
|
2
|
3
|
4
|
5
|
6
|
7
|
8
|
9
|
10
|
11
|
|
БП
|
напорная
|
0,00067
|
1 - 2
|
0,00031
|
резкое сужение
НП - Ф
|
1
|
0,24
|
0,24
|
0,0176
|
0,226
|
|
|
|
|
|
резкое расшир Ф
- БУ
|
1
|
0,6
|
0,6
|
|
|
|
|
|
5 - 7
|
0,00031
|
Тройник 20,120,240,0851
|
|
|
|
|
|
|
|
|
|
0,00018
|
резкое сужен. 10,20,2
|
|
|
|
|
|
|
|
|
ГБ
|
0,00009
|
резкое сужение 10,20,2
|
|
|
|
|
|
|
|
0,00052
|
ГБ
|
0,00031
|
резкое расш. 10,340,340,0546
|
|
|
|
|
|
|
БП
|
|
|
12-13
|
0,00031
|
изгиб трубы 20,510,0687
|
|
|
|
|
|
|
|
|
|
|
резкое расшир
Ар (РР) - ЛП (ГД)
|
1
|
0,6
|
0,6
|
|
|
|
БП
|
сливная
|
0,00039
|
14 - 15
|
0,00031
|
резкое сужение
ПП (ГД) - (РР) Вр
|
1
|
0,24
|
0,24
|
0,0130
|
0,0782
|
|
|
|
|
|
изгиб трубы 20,51
|
|
|
|
|
|
|
|
|
ГБ
|
резкое сужение 10,20,2
|
|
|
|
|
|
|
|
0,00052
|
ГБ
|
0,00031
|
резкое расш. 10,340,340,0652
|
|
|
|
|
|
|
|
|
22-24
|
0,00031
|
Тройник 10,120,12
|
|
|
|
|
|
|
|
|
23-25
|
0,00031
|
изгиб трубы 20,51
|
|
|
|
|
|
|
|
|
|
|
резкое расшир
БУ - АТ
|
1
|
0,34
|
0,34
|
|
|
|
Итого БП
|
|
0,3042
|
|
БО
|
нопорная
|
0,00067
|
1 - 2
|
0,00031
|
резкое сужение
НП - Ф
|
1
|
0,24
|
0,24
|
0,0176
|
0,1163
|
|
|
|
|
|
резкое расшир Ф
- БУ
|
1
|
0,6
|
0,6
|
|
|
|
|
|
5 - 7
|
0,00031
|
Тройник 20,120,240,0857
|
|
|
|
|
|
|
|
|
|
0,00018
|
резкое сужен. 10,20,2
|
|
|
|
|
|
|
|
|
ГБ
|
0,00009
|
резкое сужение 10,20,2
|
|
|
|
|
|
|
|
0,00039
|
ГБ
|
0,00031
|
резкое расш. 10,340,34
|
|
|
|
|
|
|
|
|
15 - 14
|
0,00031
|
изгиб трубы 20,510,0130
|
|
|
|
|
|
|
|
|
|
|
резкое расшир.
(РР) Вр - (РР) ПП
|
1
|
0,6
|
0,6
|
|
|
|
БО
|
сливная
|
0,00052
|
13 - 12
|
0,0003
|
резкое сужение
ЛП (ГД) - Ар (РР)
|
1
|
0,24
|
0,24
|
0,0884
|
0,0884
|
|
|
|
|
|
изгиб трубы 20,51
|
|
|
|
|
|
|
|
|
ГБ
|
0,00009
|
резкое сужение 10,20,2
|
|
|
|
|
|
|
|
|
ГБ
|
0,00031
|
резкое расш. 10,340,34
|
|
|
|
|
|
|
|
|
22-24
|
0,00031
|
тройник 10,120,12
|
|
|
|
|
|
|
|
|
23 - 25
|
0,00031
|
изгиб трубы 20,51
|
|
|
|
|
|
|
|
|
|
|
резкое расшир Т
(БУ) - АТ
|
1
|
0,34
|
0,34
|
|
|
|
Итого БО
|
|
0, 2047
|
|
|
|
|
|
|
|
|
|
|
|
|
2.3.6.3
Суммарные потери давления в напорной и сливной линиях
Данные по расчету потерь давления в напорной и сливной линиях
сводим в таблицу 4:
Таблица 4 - Суммарные потери давления
Линия Этап цикла
|
|
|
|
|
|
|
1
|
2
|
3
|
4
|
5
|
6
|
|
напорная
|
БП
|
0,89
|
0,015
|
0,226
|
1,131
|
|
БО
|
1
|
0,0151
|
0,1163
|
1,1314
|
|
сливная
|
БП
|
0,89
|
0,0129
|
0,0782
|
0,9811
|
|
БО
|
1
|
0,0144
|
0,0884
|
1,1028
|
|
Итого 4,3463
|
|
|
По результатам расчета уточняется расчет и выбор насосной
установки по давлению, должно выполняться условие
:
(21)
где
- требуемое давление в системе,
;
- рабочее давление в системе,
;
- суммарные потери давления при быстром подводе,
.
,
.
Условие выполнено.
2.4
Разработка циклограммы работы нагревательной печи
Прокатное производство охватывает процессы получения изделий
из металлов путем прокатки, т.е. путем деформации металлов вращающимися
валками. Изделия, получаемые прокаткой, или прокат, подразделяют на
полупродукты и готовый прокат. К полупродуктам относят блюмы квадратного и
прямоугольного поперечного сечения, слябы плоского поперечного сечения и
заготовку квадратного, прямоугольного и круглого сечения. Готовый прокат в
зависимости от формы поперечного сечения (профиля) подразделяют на листовой
прокат, сортовой прокат, трубы и специальные виды проката. Блюмы, слябы и заготовка
прокатываются из слитков. Готовый прокат производят из блюмов, слябов и
заготовок, полученных прокаткой из слитков или непрерывной разливкой
Функциональные задачи АСУ ТП прокатного стана многочисленны и
разнообразны и могут быть классифицированы по следующим признакам:
стадия управления;
вид объекта управления;
период управления;
характер задачи управления;
вид управляемых показателей.
В зависимости от стадии управления, на которую осуществляется
та или иная функция АСУ ТП прокатного стана, их подразделяют на информационные
и управляющие. К информационным функциям относят, сбор информации о состоянии
стана, и представления её, в удобной для дальнейшего использования виде. К
управляющим функциям относят выработку на основании информации о состоянии стана
управляющих воздействий и их реализацию.
Требования к локальным системам автоматического управления
показателями процесса прокатки на стане определяются технологическими
соображениями, и в первую очередь требованиями, предъявленными к качеству
проката.
Наряду с автоматизацией прокатных станов, важное значение,
имеет также автоматизация агрегатов подготовки металла к прокатке и отделки
проката, в том числе нагревательных печей, травильных агрегатов, линий
термоупрочнения различных агрегатов.
В течение 1985 - 1986 гг. с целью повышения
производительности печей и обеспечения нагрева заготовок увеличенного размера
(100 мм. на стане 150 и 80 мм. на стане 280) на печах проволочных станов
реализован комплекс технических мероприятий.
От печи старой конструкции новая печь рисунок 6 отличается
наличием заглушек в трубах охлаждения подины, насадок в воздушных каналах
горелок, каналов в монолитной подине для прохода горячих дымовых газов из зоны
высоких температур в дымоотводящий тракт, теплопроводного огнеупорного слоя над
каналами в подине, теплоизоляционного асбестового слоя. В стенах томильной зоны
выполнены колодцы для пропуска горячих дымовых газов в каналы. Новая печь
отличается от старой также отсутствием огнеупорных арок над дымоотводящим
каналом.
В 1984 г. после капитального ремонта печь стана 150
переведена на нагрев заготовки размером 100 мм вместо 80 мм. При этом с целью
улучшения условий нагрева металла и уменьшения оттока тепла в томильной зоне
были заглушены трубы охлаждения (30шт., диаметром 219 мм.), заложенные в подине
проектом. В 1985 г. в зоне нагрева печи взамен проектной горелки установлена
горелка с воздушной насадкой, имеющей шесть тангенциальных отверстий для подачи
воздуха в зону горения. В 1986 г. над дымопадом печи на длине около 2 м были демонтированы
огнеупорные арки, составляющие монолитную подину печи. В монолитной подине с
целью подогрева подины и лучшего прогрева заготовок были выполнены 46 каналов,
обеспечивающих пропуск горячих дымовых газов из томильной зоны в дымопад.
Конструкция канальной подины с общей площадью проходного сечения каналов 0,33 м2
позволила реализовать принцип "горячего” пода при нагреве металла в
методических печах с монолитным подом. При этом нагрев металла осуществляется
не только сверху, но и снизу, через сплошной под. Под действием перепада
давлений в томильной зоне печи и дымопаде часть высокотемпературных дымовых
газов из томильной зоны поступает в каналы, нагревает подину над каналами до
температуры, превышающей температуру нижней поверхности металла, и, отдав тепло
подине, удаляется в дымопад.
Для реализации направленной теплопередачи от подины к металлу
подина ниже каналов выполнена из шамотного легковеса с асбестовой изоляцией, а
выше каналов - из шамота класса Б с корундовыми дорожками и направляющими из
рейтерного сплава.
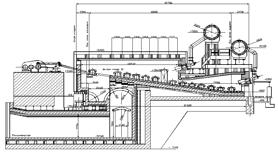
На рисунке 6 изображена нагревательная печь.
Рисунок 6 - Нагревательная печь
Для повышения теплопередачи в каналах пода и через кладку
пода над каналами разработаны специальные меры. Существующие каналы в подине
печи в сечении имеют форму прямоугольника (133х65 мм.), и, следовательно,
большую поверхность теплообмена с огнеупорным основанием, при этом потери тепла
в огнеупорное основание остается сравнительно большие. Теплопередача излучением
от поверхности канала и теплоносителя к подине, расположенной над каналами,
недостаточно высока, так как для канала прямоугольной формы максимальная
теплопередача достигается при угловом коэффициенте φ = 0,5. Предложено канал для прохода теплоносителя образовать
частью цилиндрической поверхности основания и нижней поверхностью подовой
плиты, при этом поперечное сечение канала выполнить в виде сегмента с
постоянным радиусом. Такая форма канала позволит снизить площадь теплообмена с
огнеупорным основанием и уменьшить потери тепла, при этом φ возрастает до 0,65, что способствует увеличению теплоотдачи
излучением к подовой плите и, следовательно, к нижней поверхности металла.
В качестве дополнительных мер по улучшению
технико-экономических показателей работы печей, была проведена замена
рекуператоров печей на новые рекуператоры, позволившая повысить температуру
подогрева воздуха на 50 - 70 0С и тем самым сократить расход
топлива.
Заглушка подовых охлаждающих труб в томильной зоне печи,
позволила уменьшить отток тепла через огнеупорный под и повысить его
температуру на глубине 300 - 400 мм., в среднем по длине замеров с 800 - 8300С
до 855 - 930 0С, т.е. на 55 - 100 0С, что безусловно
улучшило условия нагрева нижней поверхности заготовки. Температура металла на
выдаче из печи составила 1100 - 1200 0С, а разница температур между
верхней и нижней поверхностью 20 - 30 0С. Заглушка охлаждающих труб
позволила в поду печи создать теплоизолирующий слой из неподвижного воздуха в
трубах.
С загрузочного рольганга заготовка загружается в нагревательную
печь втаскивающим устройством через боковое окно. Продвижение металла по
наклонному поду печи производится рычажным толкателем, в печи заготовка
проходит две зоны - зона нагрева и томильная зона. Выдача заготовки из
нагревательной печи производится поштучно через боковое окно с помощью
выталкивателя заготовок и вытаскивающе - распределительного устройства. Нагрев
заготовок производится до температуры прокатки, равной 1100 - 1200 0С.
На рисунке 7 представлена циклограмма работы печного оборудования
нагревательной печи стана 150. Время цикла нагрева заготовки в среднем
составляет 42 минуты.
Рисунок 7 - Циклограмма работы печного оборудования
3.
Технологическая часть
3.1
Разработка процесса изготовлении детали "Червяк"
Червяк - трехзаходный, является приводным элементом. Он
вращается на 2-х подшипниковых опорах. В первой опоре два конических
подшипника, во второй опоре радиальный шарикоподшипник. Данный червяк относится
классу ступенчатых валов.
На рисунке 8 изображен червяк.
Рисунок 8 - Деталь "червяк"
3.1.1 Выбор
заготовки
Вид заготовки для изготовления детали червяк - прокат.
Материал червяка сталь 40Х по ГОСТ 1577-78;
Сталь 40Х обладает всеми необходимыми характеристиками
которые необходимы для изготовления вала.
В таблице 5 представлен расчет допусков.
Таблица 5 - Расчет допусков
|
Технологические
переходы обработки поверхностей
|
Элементы
припуска
|
Расчетный
припуск Расчетный размер Допуск Предельный размер, мм. Предельные значения припусков, мкм.
|
|
|
|
|
|
     
|
|
|
|
|
|
|
|
|
|
|
Заготовка
прокат
|
200
|
300
|
250
|
|
150,000
|
1000
|
149,00
|
150,00
|
|
|
|
Предварительное
обтачивание
|
50
|
50
|
14
|
2*750
|
142,251
|
100
|
142,30
|
142,40
|
6600
|
7700
|
|
Окончательное
обтачивание
|
30
|
30
|
10
|
2*114
|
140,000
|
32
|
139,97
|
140,00
|
2300
|
2440
|
|
ИТОГО
|
|
8900
|
10140
|
Размер и предельные отклонения изобразим на рисунке 9.
Рисунок 9 - Схема допусков
3.1.2 Выбор
оборудовании и приспособлений
Оборудование выбираем на основании метода обработки,
требуемой точности, шероховатости, габаритных размеров детали.
В таблице 6 указано необходимое оборудование:
Таблица 6 - Необходимое оборудование
|
Операция
|
Модель станка
|
Характеристика
|
|
Токарная
|
Токарный станок
с ЧПУ SFM СЕТ-28
|
Макс. диаметр
детали 450 мм., расстояние между центрами 1000 мм., макс. частота вращения,
1560 об/мин.,
|
|
Фрезерование
|
Токарный станок
с ЧПУ SFM СЕТ-28
|
|
|
Сверление
|
Токарный станок
с ЧПУ SFM СЕТ-28
|
|
3.1.3
Назначение технологических переходов
Технологический переход это часть техоперации, производимая
одним и тем же техоборудованием при постоянных режимах и установке.
Разобьём операции на переходы:
. Операции точения
Установ 1:
Переход 1:
. Точим диаметр 90 х 145 мм.
2. Точим диаметр 77 х 35 мм.
Переход 2:
. Чистовая обработка диаметра 77 х 35 мм. с припуском
на шлифование.
Установ 2:
Переход 3:
. точить наружную поверхность Ø142 на длину 500 мм.;
2. точить наружную поверхность Ø100 на длину 285 мм.;
. точить наружную поверхность Ø68 на длину 100 мм.;
. точить наружную поверхность Ø80 на длину 50 мм.;
. точить наружную поверхность Ø82 на длину 50 мм.;
. точить наружную поверхность Ø88 на длину 70 мм.
Переход 4:
. точить начисто наружную поверхность Ø65 на длину 100 мм. с припуском под предварительное и окончательное
шлифование;
2. точить начисто наружную поверхность Ø75 на длину 50 мм. с припуском под предварительное и окончательное
шлифование;
. точить начисто наружную поверхность Ø80 на длину 50 мм.;
. точить начисто наружную поверхность Ø85 на длину 70 мм. с припуском под предварительное и окончательное
шлифование;
. точить начисто наружную поверхность Ø140 на длину 155 мм.
Переход 5:
. Точим диаметр 77х4,5 мм.
2. Точим диаметр 90 х 55 мм. под выход резьбового резца.
Переход 6:
Нарезаем резьбу М80х2 на длину 50 мм.
Переход 7:
. Нарезаем 1-й виток червяка длиной 160 мм.
2. Нарезаем 2-й виток длиной 160 мм.
. Нарезаем 3-й виток длиной 160 мм.
Операция фрезерования:
Фрезеруем шпоночный паз 7х90 мм.
Операция сверления:
Переход 1:
Сверлим 2-а отверстия диаметром 10х30 мм. с торцов вала под
резьбу М12.
Переход 2:
Нарезаем резьбу М12х30 мм. с торцов вала.
3.1.4 Подбор
режущего инструмента
Информация о выбранном режущем инструменте в таблице 7:
Таблица 7 - Подбор режущего инструмента
|
Операции и
переходы
|
Режущий
инструмент
|
Материал
режущей части
|
ISO
|
|
Токарная
операция 1
|
Резец токарный
проходной
|
IC8150
|
ISO 9000
|
|
Токарная
операция 2
|
Резец токарный
проходной
|
IC8150
|
ISO 9000
|
|
Резец токарный
проходной
|
IC8150
|
ISO 9000
|
|
Резец
канавочный наружный
|
IC8150
|
ISO 9000
|
|
Резец резьбовой
|
IC8150
|
ISO 9000
|
|
Резец токарный
фасонный
|
IC8150
|
ISO 9000
|
|
Фрезерная операция
|
Фреза концевая
с цилиндрическим хвостовиком
|
IC808
|
ISO 9000
|
|
Сверление
отверстий
|
Сверло
спиальное Метчик М12
|
IC908 IC908
|
ISO 9000
|
|
|
|
|
3.1.5 Часть
управляющей программы для станка SFM СЕТ-28
Возьмём часть программы управления ЧПУ для станка SFM СЕТ-28
за установ 1, покажем её в таблице 8:
Таблица 8 - Программа для станка с ЧПУ
|
№ кадра
|
Содержание
кадра
|
Расшифровка
кадра
|
|
1
|
2
|
3
|
|
N001
|
G27 S046 M104
T101
|
G27-абсолютная
система координат, S046-частота вращения 710 об/мин, М104 - включение правого
вращения шпинделя, Т101-рабочее положение первого инструмента.
|
|
N002
|
G58 Z+000000
F70000
|
G58 - смещение
"нуля" вдоль координаты Z и перемещение суппорта, S = 4800мм/мин.
|
|
N003
|
X+000000
|
Смещение
"нуля" вдоль координаты X в начальную точку, S = 2400мм/мин.
|
|
N004
|
G26
|
Выполнение
перемещений в относительной системе координат (в приращениях): x = 85мм, y =
675мм.
|
|
N005
|
G01 F10210 L31
|
G01 вводит
линейную интерполяцию перемещений, L31 - коррекция инструмента, S =
210мм/мин.
|
|
Продолжение
таблицы 8
|
|
1
|
2
|
3
|
|
N006
|
X-04000 Z-02000
F10600
|
Перемещение
резца по оси X на 40мм, Z на 20мм, S = 600 мм/мин.
|
|
N007
|
Z-15000 F10210
|
Точение по оси
Z на 150мм, S = 210мм/мин.
|
|
N008
|
X+00500 Z-00500
|
Точение по оси
X и Z на 5мм, с той же подачей.
|
|
N009
|
X+02000
|
Точение по оси
X на 20мм.
|
|
N010
|
X+00500 Z-00500
|
Точение по оси
X и Z на 5мм.
|
|
N011
|
X+01000 F10600
|
Перемещение
резца по оси X на 10мм, S=600мм/мин.
|
|
N012
|
Z+15500
|
Перемещение
резца по оси Z на 155мм, с той же подачей.
|
|
N013
|
X-09000
|
Перемещение
резца по оси X на 90мм.
|
|
N014
|
X+00700 Z-00700
F10210
|
Точение по оси
X и Z на 7мм, S =210мм/мин.
|
|
N015
|
Z-03300
|
Точение по оси
Z на 33мм, с той жеподачей.
|
|
N016
|
X+01100
|
Точение по оси
X на 11мм.
|
|
N017
|
X+00200 Z-00200
|
Точение по оси
X и Z на 2мм.
|
|
N018
|
X-01000 F10600
|
Отвод резца по
оси X на 10мм, S = 600 мм/мин.
|
|
N019
|
X+03000 Z+06700
|
|
N020
|
X-04100 Z-02000
|
Перемещение
резца по оси X на 41мм, Z на 20мм, S = 600 мм/мин.
|
|
N021
|
Z-04000 F10210
|
Точение по оси
Z на 40мм, S = 210мм/мин.
|
|
N022
|
X+041400
|
Перемещение
резца по оси X на 40мм.
|
|
N023
|
Z+05500 F10600
|
Возврат резца в
исходное положение.
|
|
N024
|
M105
|
Выключение
вращения.
|
|
N025
|
G25 Z+999999
|
Возвращение
суппорта в нуль системы координат станка.
|
|
N026
|
M002
|
Конец программы
|
3.2
Проектирование токарного проходного резца
3.2.1 Выбор
материала корпуса резца
Для чернового точения наружных поверхностей червяка из стали 40Х
с σВ = 700МПа = 70кгс/см2, необходимо рассчитать и
сконструировать проходной резец. Исходная заготовка круглый прокат диаметром D
= 150h14 обрабатывают на токарно-винторезном станке.
Принимаем припуск на обработку (на сторону)
= 3,5 мм, подача на оборот
= 0,5 мм, вылет резца
= 60 мм, скорость главного движения
резания
В качестве материала для корпуса резца выбираем углеродистую сталь
50 с
и допустимым напряжением на изгиб
3.2.2 Главная
составляющая силы резания
H. (22)
По справочным таблицам (1, с.271) определяем значения
коэффициентов:
Для заданных условий обработки вводим поправочные коэффициенты:
) на характеристику механических свойств обрабатываемой
стали:
(23)
где
- поправочный коэффициент, 
) на главный угол в плане
;

;
) на угол наклона режущей кромки
;
.
Определяем составляющую силу
, имея в виду, что общий поправочный коэффициент:
(24)
3.2.3
Проверяем прочность и жесткость корпуса резца
3.2.3.1
Максимальная нагрузка, допускаемая прочностью резца
H; (25)
где
- ширина корпуса резца, м;
- высота корпуса резца, м.
3.2.3.2
Максимальная нагрузка, допускаемая жесткостью резца
H, (26)
где
- допускаемая стрела прогиба резца при черновом точении,
;
Е - модуль
упругости материала корпуса резца,
;
- вылет резца, м.;
J - момент
инерции прямоугольного сечения корпуса, м4.
Резец обладает достаточно прочностью и жесткостью, так как:
.
3.2.4 Выбор
конструктивных размеров резца
Конструктивные размеры державки берем по ISO ISCAR. Откуда
общая длина державки, L=150 мм, H=25 мм, обозначение SLANL
2525M-15 TANG, изготовлена из Ст.50;
Пластина: Радиус кривизны вершины лезвия
; пластина из твердого сплава IC8150 (тип
покрытия CVD, слой покрытия TiCN+Al2O3+TiCN+TiN), l=15 мм., обозначение
LNMX 150612L-HT.
Заключение
В ходе выпускной квалификационной работы была проведена модернизация
механизма выталкивания заготовок нагревательной печи стана 150 СПП ПАО
"Северсталь" с целью уменьшения времени простоя оборудования и
увеличения производства продукции надлежащего качества.
В результате проведенной работы, мною:
) разработан гидравлический привод продольного перемещения
выталкивателя заготовок, который позволит более точно центрировать
выталкивающую штангу относительно заготовки;
) рассчитан привод главного движения выталкивающей штанги, с
использованием рабочих роликов под круглое сечение, который по себестоимости
практически в два раза ниже используемой в настоящий момент штанги из трубы
квадратного сечения;
) скомпоновано оборудование выталкивающего механизма;
) разработан технологически процесс изготовления детали
"Червяк".
Список
использованных источников
1. Абрамов,
Ю.А. Справочник технолога - машиностроителя. Т.2/Ю.А. Абрамов - М.:
Машиностроение, 1986. - 496 с.
2. Баклунов,
Е.А. Справочник металлиста. Т.3/ Е.А. Баклунов, А.К. Белопухов М.Ю. Жебин - М.:
Машиностроение, 1977. - 748 с.
. Басовский,
Л.Е. Менеджмент: Учебное пособие / Л.Е. Басовский. - М.: Инфра - М, 2000. - 216
с.
. Баранников,
М.И. Экономика машиностроения / М.И. Баранников, А.В. Пелих - Ростов на Дону:
Феникс, 2004. - 416 с.
. Башта,
Т.М. Гидравлика, гидромашины и гидроприводы. Учебник для машиностроительных
вузов. Издание 2 - е переработанное / Т. М Башта - М.: Машиностроение, 1992. -
423 с.
. Бейзельман,
Р.Д. Подшипники качения. Справочник. Издание 6-е переработанное и дополненное /
Р.Д. Бейзельман - М.: Машиностроение, 1975. - 575 с.
. Белов,
С.В. Безопасность жизнедеятельности / С.В. Белов, - М.: Высшая школа, 1999. -
448 с.
. Блюмбер,
В.А. Справочник токаря / В.А. Блюмберг, Е.И. Зазерский - Л.: Машиностроение,
1981. - 406 с.
. Бринза,
В.Н. Охрана труда в черной металлургии / В.Н. Бринза, М.М. Зиньковский. - М.:
Металлургия, 1982. - 336 с.
. Вачугов,
Д.К. Основы менеджмента / Д.К. Вачугов, Т.Е. Березкина, Н.Р. Кислякова; - М.:
Высшая школа, 2001. - 367 с.
. Горбацевич,
А.Ф., Курсовое проектирование по технологии машиностроения / А.Ф. Горбацевич,
В.А. Шкред - Минск: Высшая школа, 1983. - 256 с.
. Гаврилин,
Е.Ф. Контроль дефектов проката / Е.Ф. Гаврилин, И.П. Шулаев. - М.: Металлургия,
1991. - 112 Ерохин М.Н. Детали машин и основы конструирования / М.Н. Ерохин -
М.: Колосс, 2004. - 464 с.
. Зиньковский,
М.М. Техника безопасности и производственная санитария. Справочник / М.М.
Зиньковский - М.: Металлургия, 1984. - 232 с.
. Иванов,
М.Н. Детали машин / М.Н. Иванов - М.: Высшая школа, 1991. - 383 с.
. Коновалов,
Ю.В. Справочник прокатчика / Ю.В. Коновалов, Г.И. Налча, К.Н. Савранский. - М.:
Металлургия, 1977. - 312 с.
. Кравчик,
А.Э. Асинхронные двигатели серии 4А. Справочник / А.Э. Кравчик - М.:
Энергоиздат, 1982. - 504 с.
. Кузьменко,
А.Г. Мелкосортные и проволочные станы. Состояние, проблемы, перспективы / А.Г.
Кузьменко - М.: Металлургия, 1996. - 364 с.
. Мягков,
В.Д. Допуски и посадки. Справочник: в 2-х частях. Часть 1/В.Д. Мягков - Л.:
Машиностроение, 1982. - 543 с.
. Свешников,
В.К. Станочные гидроприводы. Справочник. Издание 3 - е переработанное и
дополненное / В.К. Свешников - М.: Машиностроение, 1995. - 448 с.
. Свирщевский,
Ю.М., Макейчик Н.Н. Расчет и конструирование коробок скоростей и подач / Ю.М.
Свирщевский, Н.Н. Макейчик - Минск: Высшая школа, 1976. - 246 с.
. Хван,
Т.А. Основы безопасности жизнедеятельности / Т.А. Хван, П.А. Хван - Ростов на
Дону: Феникс, 2000. - 384 с.
. Гидропневмопривод
и гидропневмоавтоматика станочного оборудования. Методические указания к
выполнению курсовой работы. Часть 1. Статический расчет и конструирование
гидропривода. - Вологда: ВоГТУ, 1999. - 29 с.
. Детали
машин: Методические указания к курсовому проекту. Энергокинематический расчет
привода. - Вологда: ВоГТУ, 2003. - 24 с.
. Детали
машин: Методические указания к курсовому проекту. Расчет червячных передач. -
Вологда: ВоГТУ, 2003. - 16 с.
. Детали
машин: Методические указания к курсовому проекту. Расчет и конструирование
валов. - Вологда: ВоГТУ, 2001. - 25 с.
. Производство
проката на проволочном стане 150: Технологическая инструкция. - Череповец:
Северсталь, 1997. - 60 с.