Модернизация участка технологического оборудования доменной печи

  • Вид работы:
    Дипломная (ВКР)
  • Предмет:
    Другое
  • Язык:
    Русский
    ,
    Формат файла:
    MS Word
    579,89 Кб
  • Опубликовано:
    2016-11-09
Вы можете узнать стоимость помощи в написании студенческой работы.
Помощь в написании работы, которую точно примут!

Модернизация участка технологического оборудования доменной печи

Содержание

Введение

. Анализ состояния вопроса, цель и задачи модернизации шихтоподачи

. Разработка участка отсева мелочи агломерата

. Проектирование привода ленточного конвейера

.1 Исходные данные для проектирования

.2 Энерго-кинематический расчет привода

.3 Подбор стандартных узлов привода

.4 Проектный расчет вала приводного барабана

.5 Проверочный расчет вала приводного барабана

.6 Проверка подшипников

.7 Подбор муфт

. Разработка гидропривода перекидного шибера

.1 Исходные данные для проектирования

.2 Выбор гидравлической схемы и ее обоснование

.3 Определение геометрических параметров и выбор гидродвигателя

.4 Расчет и выбор насосной установки

.4.1 Расход жидкости в поршневую область цилиндра

.4.2 Расход жидкости в штоковую область цилиндра

.4.3 Выбор насосной установки

.5 Расчет и выбор гидроаппаратуры и трубопроводов

.5.1 Подбор гидроаппаратуры

.5.2 Расчет и выбор трубопроводов

.6 Потери давления и проверка насосной установки

.6.1 Определение потерь давления в аппаратах

.6.2 Потери давления в трубопроводах по длине

.6.3 Местные потери давления в трубопроводах

.6.4 Суммарные потери давления

.6.5 Проверка насосной установки

. Разработка технологии производства опоры подшипника

.1 Описание конструкции детали

.2 Технологический контроль чертежа детали

.3 Анализ технологичности конструкции детали

.4.1 Выбор метода получения заготовки

.4.2 Проектирование отливки

.6 Выбор плана обработки

.7 Выбор типового оборудования и типовых приспособлений

.8 Выбор режущих инструментов

.9 Расчет режимов резания

.10 Расчет основного технологического времени

.11 Расчет технической нормы времени

.12 Управляющая программа для обработки детали на станке с ЧПУ

. Безопасность и экологичность проекта

.1 Анализ опасных и вредных производственных факторов на участке отсева агломерата

.2 Меры по обеспечению безопасных и здоровых условий труда

.3 Расчет заземления конвейера

.4 Меры по обеспечению устойчивой работы цеха в условиях чрезвычайных ситуаций

.5 Меры по охране окружающей среды

Заключение

Список использованных источников

Введение

Металлы являются основным материалом для машиностроения и других металлопотребляющих отраслей народного хозяйства. Развитие производства новых синтетических не металлических материалов (полимеров, пластмасс, композиционных материалов и стеклопластиков) в ближайшие годы несколько снизит потребность в металлах, однако благодаря своим физико - химическим свойствам металлы являются незаменимыми и производство их не прекратится, а наоборот - будет только расширяться.

Самыми распространенными в земной коре (по массе) являются металлы: алюминий, железо, магний, титан; мало распространенные металлы: марганец, ванадий, хром, цинк, никель, кадмий, литий, медь; редкие металлы: вольфрам, молибден, ниобий, кобальт, олово и др.

Железо, судя по данным раскопок, стало известно около 4500 лет до нашей эры. Первые изделия из метеоритного и самородного железа получали ковкой. В 3 - 4 тысячелетий до нашей эры в Вавилоне при изготовлении украшений из благородных металлов применяли волочение и прессование проволоки.

Машиностроительными заводами и проектными институтами “Гипромез” и “Сталь проект” были созданы первые отечественные прокатные станы: трубопрокатный агрегат для Ижевского металлургического завода (1929 год), блюминг 1150 для завода “Запорожсталь” (1937 год); непрерывный заготовочный стан для КМК (1939 год); толстолистовой стан и стан холодной прокатки для завода “Запорожсталь” (1938 год).

По уровню механизации и производительности первые советские прокатные станы были более совершенными по сравнению с аналогичными станами поставленными иностранными фирмами. Изготовление проката в 1940 году достигло 13.1 млн. тонн.

ПАО “Северсталь” это крупнейшее предприятие Северо Запада. На площади, более 500 гектаров расположено более 80 цехов и производств, в которых трудятся более 45000 человек. Продукция комбината разнообразна: чугун, сталь сортовая, холодно и горячекатаный лист, лента холодного проката с покрытиями из корозионно стойких материалов, гнутые профили и др.

В конце 2002 начале 2003 года был построен и введен в эксплуатацию выпуск сортового литья на сортовых машинах в электросталеплавильном цехе (ЭСПЦ).

Комбинат работает на привозном сырье и топливе. Железорудные концентраты поступают из Оленегорского и Ковдорского комбинатов, металлизированные окатыши - из Костомукши, коксующийся уголь - из Печорского и Кузнецкого бассейнов. Природный газ идет из Поволжья, Республики Коми и Тюмени.

Потребители ПАО “Северсталь” - это крупнейшие предприятия автомобильной промышленности, такие как ЗИЛ, ЛиАЗ, КамАЗ, ГАЗ, ВАЗ и др., а также крупнейшие судостроительные верфи таких городов, как Архангельск, Санкт Петербург, Мурманск, Северодвинск, Калининград. Не так давно потребителем продукции ПАО “Северсталь” стал ОАО «Газпром». Покупка металла ведется не только предприятиями России, но и странами ближнего и дальнего зарубежья, как развивающимися (Алжир, Афганистан, Таиланд и др.), так и высокоразвитыми (Германия, США, Австралия, Италия и страны Скандинавии).

1. Анализ состояния вопроса, цель и задачи модернизации шихтоподачи

Доменный цех современного предприятия обычно включат в себя несколько комплексов доменных печей, комплекс подготовки сырья (шихтоподача) отдельный или совместный на несколько печей, а также вспомогательные участки.

Комплекс доменной печи включает в себя [22]:

-      Непосредственно доменную печь;

-       Пульт управления процессом плавки;

-       Литейный двор с желобами чугуна и шлака;

-       Воздухонагреватели для подготовки горячего воздуха используемого при дутье в печь;

-       Скиповый подъемник для подачи шихты на колошник доменной печи от шихтоподачи.

Комплекс шихтоподачи включает в себя [22]:

-      Конвейерное хозяйство для подачи шихты от складов, коксохимического цеха и агломерационного;

-       Пульт управления конвейерным хозяйством

-       Участок бункеров для накопления шихтовых материалов;

-       Участок подготовки шихты, на котором происходит сортировка, взвешивание шихтовых материалов и далее подача в скип скипового подъемника для подачи на колошник;

-       Участок отсева коксовой мелочи;

-       Участок уборки мелочи агломерата;

-       Пульт управления участком бункеров, участка подготовки шихты и участками отсевов кокса и агломерата;

-       Рудный двор для подачи различных добавок в виде железосодержащего скрапа и других добавок.

С увеличением объема производства и улучшением качества выплавляемого чугуна, повышением показателей работы доменных печей и ростом уровня механизации и автоматизации шло постепенное развитие доменного цеха по пути изыскания более рационального состава технологического оборудования, обслуживающего отдельные участки цеха, его компоновки и взаимосвязи с другими отделениями и цехами металлургического предприятия.

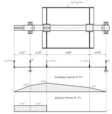
Схема комплекса доменной печи объемом до 3000 м3 и комплекса шихтоподачи представлена на рисунке 1.1 [22].

В ближайшее время в соответствии с общемировыми требованиями будет расширяться машиностроение и технологическое оборудование, обеспечивающих для потребителей более широких функциональных возможности по сравнению с имеющимися образцами и обладающих более высокими техническими характеристиками, в том числе, в части энергосбережения. В частности, прогнозируется существенный рост в потребности оборудования, снабженного электронно-гидравлическими системами управления, обеспечивающими возможность адаптации рабочих режимов к условиям работы машины и автоматизацию управления рабочим циклом и его элементами, повышающими точность регулировки рабочих параметров, производительность и качество работы машины, улучшающими условия труда оператора и экономию энергоресурсов. В связи с этим предприятие, по своему техническому уровню и оснащенности, способно создавать и продвигать на рынок «интеллектуальную» гидравлику.

Технологическая структура производственного цикла доменной печи обусловила структуру автоматизированной системы управления технологическими процессами как распределительную систему управления.

Рисунок 1.1 - Схема комплекса доменной печи объемом до 3000 м3:

- зондовая лебедка; 2 - станция смазки; 3 - лебедка скипового колошникового подъемника; 4 - таль электрическая; 5 - лебедка конусов; 6 - лебедка уравнительных клапанов малого конуса; 7 - лебедка уравнительных клапанов большого конуса; 8 - привод распределителя шихты; 9 - кран литейного двора; 10а,б, в - бурмашина; 11 - электропушка; 12 - исследовательские лебедки; 13 - станция смазки; 14 - лебедка атмосферных клапанов; 15 - лебедка консольного крана; 16а, б - поворотный желоб; 17 - винтовой транспортер; 18 - лебедка атмосферного и отсечного клапанов пылеуловителя (ПУ); 19 - лебедка отсекающего клапана ПУ; 20 - лебедка пылевого клапана ПУ; 21 - кран мостовой воздухонагревателей (ВН); 22 - таль электрическая ВН; 23 - газовая горелка ВН; 24 - привод отсечного клапан горелки ВН; 25 - привод клапана КГД ВН; 26 - привод перепускного клапана ВН; 27 - привод клапана холодного дутья ВН; 28 - дымовой клапан ВН; 29 - дроссельный клапан ВН; 30 - отделительный клапан ВН; 31 - станция смазки ВН; 32 - клапан дроссельный ВН; 33 - регулятор давления чистого газа; 34 - клапан воздухоразгрузочный; 34а, б - привод барабанного сита коксовой мелочи (КМ); 35а, б - затвор верхнего бункера КМ; 36 - лебедка подъемника КМ; 37 - насосы для откачки шлама из скиповой ямы; 39а, б - грохот кокса; 40а, б - воронка весы кокса; 41а, б - грохот кокса; 42 - клапан поливки шихты в скипах; 43 - устройство подогрева воды

Автоматизированная система управления технологическими процессами доменной печи является иерархической системой, в которой выделяются следующие функциональные уровни:

автоматизированных подсистем управления;

автоматического управления отдельными технологическими процессами;

автоматического регулирования или стабилизации технологических

параметров;

автоматического контроля и ручного ввода информации.

Автоматизированная подсистема управления доменным процессом выполняет: автоматический сбор и представление информации о ходе процессов доменной плавки; управляемое отображение информации и использованием дисплейных модулей и печатающих устройств; автоматическое регулирование давления газа под колошником; автоматическое регулирование соотношения природный газ - холодное дутье с коррекцией по содержанию кислорода в дутье, а также распределение природного газа по фурмам, автоматический контроль содержания СО, СО2 и Н2 в колошниковом газе.

Доменный процесс является весьма сложным физико-химическим процессом, на ход которого влияет большое количество взаимосвязанных факторов [22]. Нарушение доменного процесса вызывается в первую очередь непостоянством свойств материалов шихты, которое влечет за собой изменение распределения материалов по сечению домны, изменение потока газов в печи и сказывается на тепловом состоянии печи. При временных изменениях свойств шихты принимают меры для устранения отклонения распределения газового потока и нарушения теплового режима печи, что достигается, с одной стороны, изменением режима загрузки, а с другой - изменением режима дутья. Изменение режима загрузки и режима дутья выполняется мастером доменной печи на основании показаний контрольно-измерительных приборов и анализа чугуна и шлака. Однако при этом возможны большие отклонения от оптимальных режимов, что приводит к снижению производительности печи, перерасходу топлива и увеличению брака чугуна. Для сохранения нормального хода доменной печи применяют регулирующие устройства, с помощью которых производится поддержание на заданном уровне отдельных параметров, характеризующих доменный процесс. Например, в настоящее время применяют: регулирование температуры и влажности дутья, распределения газовых потоков по радиусу и окружности сечения печи, давления на колошнике и др.

Одним из не маловажных факторов соблюдения параметров плавки и выпуска качественного чугуна является химический и гранулометрический состав агломерата поступающего в доменную печь [22]. Одно из требований к агломерату кроме его химического состава - это его размер. При увеличении или уменьшении относительно требуемых размеров гранул подаваемых в печь происходит нарушение движения потока газов проходящих через шихту, что ухудшает условия плавки чугуна, падает производительность печи. Также ухудшение теплового режима печи, вследствие нарушения гранулометрического состава агломерата, приводит к интенсивному износу футеровки печи, что может привести к аварии. Для предотвращения подачи в печь не кондиционного по гранулометрическому составу агломерата производят его рассев по размерам на грохотах. Он отсеивается и по системе конвейеров поступает обратно на аглофабрику для переработки.

В данном ВКР рассматривается модернизация участка отсева агломерата шихтоподачи доменной печи доменного производства ПАО «Северсталь».

Комплекс шихтоподачи доменных печей на участке отсева агломерата имеет существенный недостаток - линия уборки и обратной транспортировки некондиционного агломерата на аглофабрику всего одна и не имеет сдублированного тракта как на более современных комплексах шихтоподач. При незапланированной или аварийной остановке линии уборки транспортировки агломерата на аглофабрику. Для поддержания доменной печи в рабочем состоянии приходится временно грузить агломерат без отсева, что существенно влияет на ход плавки и качество выпускаемого чугуна.

Цель ВКР - найти пути уменьшения потерь производства вследствие простоя участка отсева мелочи агломерата.

Для решения поставленной цели требуется решить ряд задач:

–      выполнить анализ текущей ситуации на участке отсева мелочи агломерата;

–       разработать и предложить вариант реконструкции участка;

–       выполнить проектирование привода для модернизированного конвейера;

–       разработать гидропривод перекидного шибера;

–       для уменьшения затрат на покупку оборудования и сборку лебедки разработать технологический процесс изготовления опоры подшипника на станках с ЧПУ;

–       рассчитать и подобрать оптимальные параметры режущего инструмента для изготовления опоры подшипника;

–       провести технико-экономическое обоснование реконструкции;

–       выполнить анализ условий труда и разработать меры по обеспечению безопасных и здоровых условий труда;

–       рассмотреть меры по охране окружающей среды.

2. Разработка участка отсева мелочи агломерата

Схема подачи агломерата из накопительного бункера в скип скипового подъемника доменной печи и уборка отсева представлена на рисунке 2.1.

В накопительный бункер 2 агломерат подается с аглофабрики конвейерным трактом подачи агломерата 1. Горловина бункера снабжена шиберным затвором 3, который может отсекать подачу агломерата на грохот-питатель 4 по программе загрузки доменной печи и при ремонтах или замене грохота.

С грохота 4 требуемая фракция агломерата попадает в агломерационную весовую воронку 5, имеющую затвор. После набора заданной массы (объема) агломерата в весовую воронку шиберный затвор 3 закрывается, привод грохота автоматически останавливается в соответствии с программой загрузки доменной печи по команде с пульта автоматической системы загрузки. Открывается затвор весового бункера, и агломерат под действием собственного веса по лотку 6 высыпается в скип скипового подъемника 7 и далее транспортируется на колошник доменной печи для загрузки в загрузочное устройство и подачи его в печь.

Мелкая фракция агломерата ссыпается из грохота 4 по течке 8 на конвейер уборки мелочи агломерата 9. И далее на общий конвейерный тракт 10 для нескольких печей транспортировки мелочи агломерата обратно на аглофабрику.

Подача некондиционного агломерата приводит к ухудшению процесса плавки в доменной печи, снижению производительности и ухудшению качества выплавляемого чугуна. Это может происходить по разным причинам, например, незапланированная остановка или выход из строя одного из конвейеров тракта транспортировки мелочи агломерата на аглофабрику. Данная ситуация осложняется отсутствием сдублированной линии транспортировки мелочи агломерата.

Рисунок 2.1 - Схема уборки мелочи агломерата и подачи его в скип скипового подъемника доменной печи:

- конвейерный тракт подачи агломерата; 2 - накопительный бункер; 3 - шиберный затвор; 4 - грохот-питатель; 5 - весовая воронка; 6 - лоток; 7 - скип; 8 - течка; 9 - конвейер; 10 - конвейерный тракт уборки мелочи агломерата

Рисунок 2.2 - Схема модернизации участка отсева мелочи агломерата:

- конвейерный тракт подачи агломерата; 2 - накопительный бункер; 3 - шиберный затвор; 4 - грохот-питатель; 5 - весовая воронка; 6 - лоток; 7 - скип; 8 - течка; 9 - конвейер; 10 - конвейерный тракт уборки мелочи агломерата; 11 - перекидной шибер; 12 - направляющий лоток; 13 - приямок

модернизация доменный печь конвейер

Для предотвращения подачи некондиционного агломерата в печь при таких ситуациях предлагается воспользоваться удобным расположением рудного двора с грейферными кранами и снабдить участок отсева агломерата отводом отсева на рудный двор в приямок, из которого отсев убирается грузоподъемными кранами и складируется на рудном дворе. Далее автомашинами или железнодорожным транспортом в удобное время транспортируется обратно на аглофабрику. Схема модернизации участка уборки отсева мелочи агломерата показана на рисунке 2.2.

В случае незапланированной или аварийной остановки общего тракта транспортировки мелочи агломерата 10 на аглофабрику, машинист шихтоподачи включает привод перекидного шибера 11 и направляет мелочь агломерата по направляющему лотку 12 в накопительный приямок рудного двора 13. Машинисты грузоподъемных кранов, обслуживающие рудный двор постоянно отслеживают, уровень мелочи агломерата в приямке и с помощью грейферного крана вычерпывают его на свободное место рудного двора.

Таким образом, рассев агломерата не останавливается и некондиционный агломерат не попадает в доменную печь. Процесс плавки не нарушается, и чугун выплавляется в плановом порядке. Также в связи с введением данной модернизации уменьшаются простои доменной печи из-за остановки рассева агломерата, что позволяет увеличить производительность печи в целом.

3. Проектирование привода ленточного конвейера

.1 Исходные данные для проектирования

Разработать привод удлиненного ленточного конвейера на основе базового [15] для транспортировки мелочи агломерата. Основные параметры конвейера представлены в таблице 3.1.

Таблица 3.1 - Основные параметры конвейера

Параметр

Значение

Производительность, т/ч

89

Скорость перемещения груза, м/с

0,375

Ширина ленты, мм

800

Диаметр приводного барабана, мм

670

Длина перемещения груза, м

7,25

Высота подъема груза, м

1,7

Режим работы конвейера

тяжелый

Продолжительность работы в сутки, час

8

Срок службы, лет

5


В приводе используем схему с отклоняющим барабаном для увеличения угла обхвата (a » 250°). Кинематическая схема привода представлена на рисунке 3.1.

Срок службы механизма

Срок службы механизма в часах [24]:

V, ч., (1)

где - срок службы привода, лет;

- продолжительность смены, ч;

- число смен.

 ч.

Рисунок 3.1 - Кинематическая схема привода ленточного конвейера:

- электродвигатель, 2 - муфта упругая компесирующая, 3 - тормоз, 4 - редуктор, 5 - муфта зубчатая, 6 - приводной барабан, 7 - натяжной барабан, 8 - лента конвейера.

С учетом остановки конвейера на техобслуживание и ремонты, которые составляют до 20%, принимаем срок службы:

 ч.

 

.2 Энерго-кинематический расчет привода

 

Требуемая мощность привода для ленточного конвейера находится по следующей эмпирической формуле [4]:

, кВт, (2)

где Н - высота подъема груза, м;

Lг - длина перемещения груза, м;

B - ширина ленты конвейера, м;

u - скорость конвейера, м/с;

k1 - эмпирический коэф., учитывающий влияние длины конвейера;

k2 - эмпирический коэф., учитывающий расход энергии на

разгрузочную тележку;

k - эмпирический коэф., учитывающий расход энергии на работу

разгрузочного устройства.

k1 = 1,25, k2 = 1, k = 0,004 (с учетом очистителя ленты).

КПД привода определим исходя из кинематической схемы.

, (3)

где  - КПД быстроходной муфты,  9 [24];

 - КПД редуктора,  [24];

 - КПД тихоходной муфты,  [24].

.9

.       исходя из общегообщего

Необходимая мощность электродвигателя [24]:

, кВт, (4)

где  - КПД привода.

 кВт. 9

В виду требуемых условий эксплуатации: круглосуточная работа, допустимость кратковременной работы двигателя в заторможенном состоянии при возможном завале шихтой для постепенной остановки линии существующей номенклатуры выбираем электродвигатель типа АРМ53-12. У данного двигателя возможна работа до 10 мин. В заторможенном состоянии.

Основные технические характеристики представлены в таблице 3.2.

Таблица 3.2 - Основные характеристики электродвигателя

Параметр

Значение

Мощность, кВт

1,6

Номинальная частота вращения вала, об/мин

455

Длинна, мм

600

Ширина, мм

205

Высота, мм

317

Диаметр выходного конца вала, мм

40

 

.3 Подбор стандартных узлов привода

 

Выбор редуктора

Требуемое передаточное число редуктора [24]:

. nu (5)

Частота вращения приводного барабана [24]:

, об/мин, (6)

 об/мин.

Отсюда требуемое передаточное число редуктора:

.

Крутящий момент на выходном валу редуктора [24]:

, Н·м, (7)

где  - крутящий момент на быстроходном валу, Н·м.

Крутящий момент на быстроходном валу [24]:

, Н·м, (8)

где  - номинальная угловая скорость на валу, с-1.

Угловая скорость на валу барабана [24]:

, с-1, (9)

где  - номинальное число оборотов электродвигателя, об/мин.

 с-1.

 Н·м. 9

Отсюда требуемый крутящий момент на тихоходном валу редуктора:

 Н·м.

Исходя из полученного расчетного передаточного числа u = 41,6 и требуемого крутящего момента  Н·м, выбираем из справочника [24] цилиндрический 2-х ступенчатый редуктор типа Ц2У-160 с передаточным отношением u = 40 и допускаемым крутящим моментом при ПВ=100% (постоянная работа) Т = 1250 Н·м.

Обозначение редуктора в документации Ц2У-160-40-21Ц-У3,

Ц - цилиндрический редуктор;

- трехступенчатый;

У - универсальный;

- межосевое расстояние между промежуточным и

тихоходным валом;

- номинальное передаточное число;

- вариант сборки;

Ц - цилиндрический выходной конец вала ;

У - климатическое исполнение (умеренный климат);

- категория.

Выбор тормоза

Тормоз выбираем исходя из расчетного тормозного момента:

 , Н·м, (10)

где Kт =1,5 - коэффициента запаса торможения;

Т - крутящий момент на тихоходном валу, Н·м

ηмех - КПД привода;общ - передаточное отношение привода.

.

Выбираем тормоз типа ТКГ-160 с максимальным тормозным моментом 100 Н·м.

 

3.4 Проектный расчет вала приводного барабана


Проектный расчет вала ведем по напряжениям кручения [τ]к = 20 H/мм2 по методике представленной в [24] .

Для изготовления вала применяем по рекомендации [24] Сталь 45 со следующими характеристиками: термообработка - Улучшение; твердость поверхности - 235…262 HRC; твердость поверхности - 235…262 HRC; предел прочности - 780 МПа; предел текучести - 540 МПа; предел выносливости при симметричном цикле - 335 МПа.

Расчет ведем согласно методике представленной в [24].

Минимальный диаметр вала [24]:

, м. (11)

 м.

Принимаем согласно стандартных линейных размеров по ГОСТ 6636-69 диаметр выходного конца вала  мм.

Длина выходного конца вала по формуле:

 мм.

Диаметры под подшипники d2 и d5:

Высота буртика  мм [24].

 мм.

Принимаем  мм.

Длина ступени  под подшипник и уплотнение:

 мм.

Длина ступени  под подшипник равна ширине подшипника. Предварительно выбираем радиальные сферические шариковые подшипники легкой серии 1216 ГОСТ 28428-90 с шириной B = 26 мм.

Диаметры под ступицы барабана:

Ориентировочная фаска ступицы  мм [24].

 мм.

Принимаем согласно стандартных линейных размеров по ГОСТ 6636-69 диаметр вала под ступицы барабана  мм.

Длина ступеней  и  под ступицы барабана:

 мм.

Принимаем согласно стандартных линейных размеров по ГОСТ 6636-69 длину участка вала под ступицы барабана  мм.

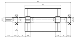
Остальные линейные размеры принимаем конструктивно. Компоновочная схема приводного барабана показана на рисунке 3.2.

Исходя из диаметра вала под муфту  мм выбираем из справочника [24] стандартную шпонку: 20х12х130 ГОСТ 23360-78.

Для соединений призматическими шпонками основным условием является расчет на смятие [24]:

, H/мм2, (12)

где  - рабочая длина шпонки, мм;

t - глубина врезания шпонки в вал, мм;

- допускаемое напряжение смятия, H/мм2.

Рабочая длина шпонки  мм. t = 7,5 мм [24].

 H/мм2.

Шпонка по прочности пригодна.

Исходя из диаметра вала под ступицу  мм выбираем из справочника [24] стандартную шпонку: 25х14х90 ГОСТ 23360-78.

Рабочая длина шпонки  мм; t = 9 мм [24].

Проверим шпонку:

 H/мм2.9

Шпонка по прочности пригодна.

Рисунок 3.2 - Компоновочная схема приводного барабана

 

.5 Проверочный расчет вала приводного барабана


Расчет ведем согласно методике представленной в [24] и схемы представленной на рисунке 3.3.

Рисунок 3.3 - Расчетная схема вала приводного барабана

Окружное усилие на барабане [24]:

, Н. (13)

 Н.

Натяжение сбегающего конца ленты [4]:

, Н, (14)

 Н.

где  - коэффициент трения;

a - угол обхвата барабана.

При использовании стального барабана и сухой окружающей среде  [4], угол обхвата барабана a » 250°.

Натяжение набегающего конца ленты [4]:

, Н. (15)

 Н.

Отсюда нагрузка на барабане от натяжения ленты при транспортировании груза:

 Н.

Консольная сила от муфты [24]:

, H. (16)

 Н.

Усилия от ступиц найдем через нагрузку на барабан.

Из условия действующих моментов [9] действующие силы от ступиц барабана:

, H. (17)

 Н.

 

Расчет и построение эпюр изгибающих моментов

Реакции опор:

.

, Н.

 Н.

.

, Н.

 =-6715,8Н.

Проверка:

.

Изгибающие моменты:

 H·м;

 H·м;

 H·м;

 H·м;

 H·м.

Крутящие моменты:

Крутящие моменты на одном валу всегда численно равны.

Mк = Т = 2187.2 H·мм.

Проверка опасного сечения

Исходя из эпюры приведенных моментов (см. рисунок 3.3) и геометрии вала, опасное сечение находиться в районе левой ступицы барабана (со стороны муфты). Расчет ведем по методике приведенной в [24].

Определяем коэффициент запаса прочности для нормальных напряжений.

Нормальные напряжения в опасном сечении:

, Н·мм2, (18)

где М - изгибающий момент в рассматриваемом сечении, Н×м.

Н·м

W - осевой момент инерции сопротивления сечения вала,

ослабленный шпоночным пазом, мм3.

Осевой момент инерции сопротивления сечения вала, ослабленное шпоночным пазом:

, мм3, (19)

где d - диаметр вала в рассматриваемом сечении, мм;

b - ширина шпоночного паза, мм;

t - глубина шпоночного паза, мм.

d = 90 мм, b = 25 мм, t = 14 мм.

мм3.

Отсюда нормальные напряжения в опасном сечении:

 Н/мм2

Коэффициент концентрации нормальных напряжений:

, (20)

где  - эффективный коэффициент концентрации напряжений;

 - коэффициент влияния абсолютных размеров поперечного

сечения;

 - коэффициент влияния шероховатости.

= 1,94 [24] ,= 0,63 [24] , = 1,0 [24]

.


, Н/мм2, (21)

где  - предел выносливости при симметричном цикле изгиба, Н/мм2.

Предел выносливости при симметричном цикле изгиба для Стали 45  Н/мм2.

 Н/мм2.

Определяем коэффициент запаса по касательным напряжениям:

. (22)

.

Определяем коэффициент запаса прочности для касательных напряжений.

Касательные напряжения в опасном сечении:

, Н/мм2. (23)

где Т - вращающий момент в рассматриваемом сечении, Н·м;

Wr - полярный момент инерции сопротивления сечения вала,

ослабленного шпоночным пазом, мм3.

Полярный момент инерции сопротивления сечения вала, ослабленного шпоночным пазом:

, мм3. (24)

 мм3.

Касательные напряжения в опасном сечении:

 Н/мм2.

Коэффициент концентрации нормальных:

, (25)

где  - эффективный коэффициент концентрации напряжений;

 - коэффициент влияния абсолютных размеров сечения;

 - коэффициент влияния шероховатости.

= 1.61 [24].

.

Предел выносливости по касательным напряжениям:

, Н/мм2, (26)

где  - предел выносливости при симметричном

цикле, Н/мм2.

Для Стали 45  Н/мм2.

 Н/мм2.

Определяем коэффициент запаса по касательным напряжениям:

. (27)

.

Расчетный коэффициент запаса прочности:

, (28)

где  - допускаемый коэффициент запаса прочности.

.

Так как , условие прочности выполняется.

 

.6 Проверка подшипников

 

Предварительно выбраны подшипники 1216 ГОСТ 28428-90 со следующими характеристиками:

d = 80 мм, D = 140 мм, B = 26 мм, Cr = 40,0 кН, C0r = 23,6 кН

Наибольшую нагрузку испытывает подшипник в точке А.

Радиальная нагрузка на подшипник в данной точке RА = 6715,8 Н:

Исходя из того, что осевой нагрузкой на подшипник, согласно расчетных данных, можно пренебречь, эквивалентная нагрузка:

, Н, (29)

где V - коэффициент вращения;

- коэффициент безопасности;

- температурный коэффициент.

V = 1 [24] ,  [24] ,  [24].

 Н.

Определяем расчетную динамическую грузоподъемность и проверяем условие пригодности:

, Н, (30)

 Н.

где  - срок службы привода, .

Условие пригодности выполняется.

Определяем базовую долговечность подшипника:

, ч. (31)

ч.

Условие пригодности  выполняется.

Подшипник 1216 ГОСТ 28428-90 пригоден.

 

.7 Подбор муфт

 

Выбор быстроходной муфты

Муфту выбираем по максимальному крутящему моменту на быстроходном валу и диаметрам быстроходных валов электродвигателя и редуктора.

Требуемый передаваемый крутящий момент муфтой [24]:

, Н·м, (32)

где  - коэффициент, зависящий от характера нагрузки,

 - крутящий момент на валу, Н·м.

 Н·м.

По справочнику [24] выбираем согласно исходных данных муфту упругую втулочную пальцевую:

Муфта 200-I-40-II-25-У2 ГОСТ 21424-93.

У которой 200 - максимальный передаваемый крутящий момент (Н·м), I и II - исполнения посадочного места под вал (цилиндрическое и коническое), 40 и 25 - посадочные диаметры валов (мм) электродвигателя и редуктора соответственно.

Выбор тихоходной муфты

Тихоходную муфту также выбираем по максимальному крутящему моменту на тихоходном валу и диаметрам тихоходных валов редуктора и барабана.

 Н·м.

По справочнику [9] выбираем, согласно исходных данных, зубчатую муфту типа МЗ по ГОСТ 5003-83:

Муфта МЗ 2500-II-55-I-60-У2 (Муфта МЗ №4) ГОСТ 5006-83.

У которой 2500 - максимальный передаваемый крутящий момент (Н·м), I и II - исполнения посадочного места под вал (цилиндрическое), 55 и 70 - посадочные диаметры валов (мм) редуктора и вала барабана соответственно.

4. Разработка гидропривода перекидного шибера

 

.1 Исходные данные для проектирования


Разработать гидропривод перекидного шибера со следующими характеристиками:

–      Тип гидродвигателя - гидродвигатель поступательного движения;

–       Осевое усилие - 8,4 КН;

–       Максимальная скорость - 0,08 м/с;

–       Ход штока гидроцилиндра - 0,40 м.

–       Способ регулирование скорости - дроссельное, параллельно.

 

.2 Выбор гидравлической схемы и ее обоснование


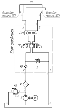
Гидравлическая схема представлена на рисунке 4.1.

Рабочая жидкость посредством насоса Н через напорный фильтр Ф и обратный клапан КО подается в блок управления. При среднем положении гидрораспределителя ГР жидкость поступает обратно в бак через сам гидросраспределитель (нерабочее положение). Фильтр Ф служит для очистки рабочей жидкости. Обратный клапан КО предотвращает обратный ток жидкости к насосной установке. Дроссель Д, включенный параллельно согласно ТЗ, регулирует скорость выдвижения штока. Гидрозамок ГЗМ позволяет удерживать задвижку в нужном состоянии требуемое время. В схеме используем гидрораспределитель с разгрузкой рабочих трубопроводов системы при среднем положении (схема по справочнику [20] №64), что позволяет беспрепятственно стекать рабочей жидкости из поршневой и штоковой областей гидроцилиндра в бак и соответственно быстрому срабатыванию гидрозамка ГЗ.

Рисунок 4.1 - Гидравлическая схема привода

При переводе распределителя ГР в левое положение рабочая жидкость (см. рисунок 4.2) от насосной установки через гидрораспределитель и гидрозамок ГЗМ поступает в поршневую полость гидроцилиндра ГЦ, тем самым, выдвигая шток и производя перевалку задвижки шихтоподающего конвейера вправо. Жидкость из штоковой полости цилиндра поступает через гидрозамок ГЗМ и гидрораспределитель ГР в бак.

Рисунок 4.2 - Схема потоков жидкости

При переводе распределителя ГР в вправое положение рабочая жидкость (см. рисунок 4.3) от насосной установки через гидрораспределитель и гидрозамок ГЗМ поступает в штоковую полость гидроцилиндра ГЦ, тем самым, втягивая шток и производя перевалку задвижки шихтоподающего конвейера влево. Жидкость из поршневой полости цилиндра поступает через гидрозамок ГЗМ и гидрораспределитель ГР в бак.

 

Рисунок 4.3 - Схема потоков жидкости

 

4.3 Определение геометрических параметров и выбор гидродвигателя


В механизме применяем гидроцилиндр с односторонним штоком двухстороннего действия. Исходя из конструктивных особенностей привода ход штока гидроцилиндра S = 0,4 м.

При данном требуемом осевом усилии гидроцилиндра R = 8,4 КН, согласно рекомендаций из стандартных давлений в гидравлике по ГОСТ 12445-80 принимаем рабочее давление гидросистемы равное p = 6,3 МПа.

Диаметр поршня D гидроцилиндра [10]:

, м, (33)

 м.

где Rmax - максимальное осевое усилие, Н;

p1 и p2 - давления соответственно в напорной и сливной полостях гидроцилиндра, Па;

Ψ1 и Ψ2 - коэффициенты зависящие от конструкции гидроцилиндра.

Максимальное осевое усилие Rmax = 8 400 Н.

Исходя из конструкции применяемого гидроцилиндра и согласно рекомендаций [10] коэффициенты Ψ1 = 0, Ψ2 = 0,71.

Давление p1 в напорной линии гидроцилиндра [10] примем равным p1 = p = 6,3 МПа.

Противодавление в сливной полости цилиндра, согласно рекомендаций [10], примем p2 = 0,5 МПа.

В соответствии с ГОСТ 12447-80 диаметр поршня D округляем до ближайшего стандартного значения в большую сторону и принимаем равным Dст = 50 мм.

Диаметр штока:  мм;

По справочнику [20] принимаем стандартное значение: dст = 36 мм.

Исходя из полученных данных выбираем по [20] гидроцилиндр с односторонним штоком 712-50х36х400 УХЛ4 ОСТ2-Г25-1-86. Характеристики данного гидроцилиндра представлены в таблице 4.1.

Таблица 4.1 - Характеристики гидроцилиндра

№ п/п

Параметр

Значение

1

Номинальное давление, МПа

6,3

2

Диаметр поршня, мм

50

3

Диаметр штока, мм

36

4

Ход поршня, мм

400

 

.4 Расчет и выбор насосной установки


Для выбора насосной установки определим расходы жидкости, при работе гидроцилиндра.

 

.4.1 Расход жидкости в поршневую область цилиндра

Требуемый расход жидкости при рабочем ходе гидроцилиндра (в поршневую полость) [10]:

, м3, (34)

где υ - скорость перемещения поршня, м/с;ст - площадь в поршневой (напорной) полости выбранного гидроцилиндра, м2.

Площадь в поршневой области цилиндра [10]:

, м2. (35)

 м2.

Исходя из заданной рабочей скорости υ = 0,08 м/с:

м3/с (9,42 л/мин).

 

.4.2 Расход жидкости в штоковую область цилиндра

Расход жидкости, для обратного хода гидроцилиндра (в штоковую область) [10]:

, м3, (36)

где υ - скорость перемещения поршня, м/с;ст - площадь в штоковой полости выбранного

гидроцилиндра, м2.

Площадь в штоковой полости цилиндра [10]:

, м2, (37)

где dшст - диаметр штока выбранного гидроцилиндра, м.

 м2.

Исходя из заданной рабочей скорости υ = 0,08 м/с:

м3/с (4,5 л/мин).

 

4.4.3 Выбор насосной установки

Исходя из полученных расчетных данных, максимальный расход жидкости получается при выдвижении штока:

 м3/с (9,42 л/мин).

Требуемое давление насоса с предварительным учетом потерь давления в системе [10]:

, МПа. (38)

= 9,45 МПа.

Исходя из полученных расчетных данных, выбираем [20] нерегулируемый пластинчатый гидронасос БГ12-41 ТУ2-053-1342-78. Характеристики данного насоса представлены в таблице 4.2.

Таблица 4.2 - Характеристики насоса БГ12-41 ТУ2-053-1342-78

№ п/п

Параметр

Значение

1

Рабочий объем, см3

8

2

Номинальное давление, МПа

10

3

Максимальное давление, МПа

12,5

4

Номинальная подача, л/мин (м3/с)

10,5 (0,000175)

5

Номинальная частота вращения, об/мин

1 500

6

Мощность, кВт

2.58

7

Объемный КПД , %

90


Для наоса подбираем модель насосной установки:

 ТУ2-053-1535-80

- исполнение по высоте гидрошкафа (1200 мм);

М - исполнение по расположению и количеству насосных агрегатов (один);

П - расположение насосного агрегата (правое);

Г48-84 - обозначения насосной установки;

УХЛ - климатическое исполнение;

 - исполнение комплектующего насосного агрегата (вверху насос, внизу эл.двигатель);  - номер насосного агрегата.

 

.5 Расчет и выбор гидроаппаратуры и трубопроводов

 

.5.1 Подбор гидроаппаратуры

Зная расходы и ориентировочные величины давлений, выбираем гидроаппаратуру из [20].

Фильтр напорный Ф типа 1-10 ГОСТ 21329-75:

номинальное давление,9

номинальный расход л/мин (м3/с),

перепад давлений МПа.

Гидрораспределитель ГР типа ВЕ6.64.В220 УХЛ4 ГОСТ 24679-81:

номинальное давление,9

номинальный расход (м3/с),

перепад давлений ,

В - золотникового типа,

Е - электрическое управление

- условный проход в мм,

- номер схемы по исполнению,

В220 - напряжение управления 220В, ток переменный,

УХЛ4 - климатическое исполнение.

Клапан предохран. КП типа КПМ 6/3МР УХЛ4 ТУ2-053-1441-79:

номинальное давление,9

номинальный расход (м3/с),

перепад давлений ,9

КПМ - клапан предохранительный,

- условный проход,

- номинальное давление 32 МПа,

М - модульный монтаж,

Р - клапан установлен в линии Р,

УХЛ4 - климатическое исполнение.

Клапан обратный КО типа КОМ 6/3МВ УХЛ4 ТУ2-053-1400-78:

номинальное давление,

номинальный расход (м3/с),

перепад давлений ,

КОМ - обратный клапан,

- условный проход,

- номинальное давление 32 МПа,

М - модульный монтаж,

В - клапан установлен в линии В,

УХЛ4 - климатическое исполнение.

Гидрозамок ГЗМ типа ГЗМ 6/3МА УХЛ4 ТУ2-053-1828-87:

номинальное давление,

номинальный расход (м3/с),

перепад давлений ,

ГЗМ - гидрозамок,

- условный проход,

- номинальное давление 32 МПа,

М - модульный монтаж,

А - гидрозамок установлен в линии А,

УХЛ4 - климатическое исполнение.

Дроссель Д типа ДКМ 6/3МА УХЛ4 ТУ2-053-1397-78:

номинальное давление,

номинальный расход (м3/с),

перепад давлений ,

ДКМ - дроссель с обратным клапаном,

- условный проход,

- номинальное давление 32 МПа,

М - модульный монтаж,

А - дроссель установлен в линии А,

УХЛ4 - климатическое исполнение.

 

.5.2 Расчет и выбор трубопроводов

Для нахождения диаметров трубопроводов зададимся скоростью движения жидкости согласно рекомендуемым [20] в зависимости от давления в гидросистеме:

–      для напорной линии uрек = 3,2 м/с;

–       для напорно-сливной и сливной линий uрек = 2 м/с.

В качестве трубопроводов применяем стальные трубы ГОСТ 8734-75.

Внутренний диаметр участка трубы определяем по формуле (39) [10]:

, м, 9 (39)

где Q - максимальный расход рабочей жидкости через трубу, м3/с;

uрек - рекомендуемая скорость течения рабочей жидкости, м/с. Толщину стенки участка трубы определяем по формуле (40) [10]:

, мм, (40)

где P - максимальное давление рабочей жидкости в трубе, МПа;

[σ] - допускаемое напряжение на растяжение для стали σвр = 340 МПа;

kб - коэффициент запаса, kб = 2…8.

При выборе сортамента труб руководствуемся рекомендуемыми размерами для шаровых соединений по ГОСТ 20969-75 - ГОСТ 20987-75. Стальной трубопровод приваривается к ниппелю, на который предварительно надевается накидная гайка. При затяжке накидной гайки сферическая поверхность ниппеля плотно прижимается к конической поверхности штуцера, обеспечивая герметичность соединения.

Напорные трубопроводы 1-11, 11-12

максимальный расход жидкости равен подаче насоса  м3/с;

максимальное давление равно максимальному давлению, обеспечиваемому насосом  МПа.

м (8,4 мм).

 мм.

Выбираем трубу 14х2 ГОСТ 8734-75 [20].

Проверяем условие :

 мм - условие выполнено.

Проверяем условие :

 мм - условие выполнено.

Напорные трубопроводы 11-2, 3-4

максимальный расход жидкости равен  м3/с;

максимальное давление равно максимальному давлению, обеспечиваемому насосом  МПа.

м (7,9 мм).

 мм.

Выбираем трубу 12х2 ГОСТ 8734-75 [20].

Проверяем условие :

 мм - условие выполнено.

Проверяем условие :

 мм - условие выполнено.

Напорно-сливной трубопровод 5-6

максимальный расход жидкости равен  м3/с;

максимальное давление равно максимальному давлению, обеспечиваемому насосом  МПа.

м (10 мм).

 мм.

Выбираем трубу 14х2 ГОСТ 8734-75 [20].

Проверяем условие :

 мм - условие выполнено.

Проверяем условие :

 мм - условие выполнено.

Напорно-сливной трубопровод 7-8

максимальный расход жидкости равен  м3/с;

максимальное давление равно максимальному давлению, обеспечиваемому насосом  МПа.

м (6,9 мм).

 мм.

Выбираем трубу 12х2 ГОСТ 8734-75 [20].

Проверяем условие :

 мм - условие выполнено.

Проверяем условие :

 мм - условие выполнено.

Сливной трубопровод 9-10

максимальный расход жидкости равен  м3/с;

максимальное давление равно  МПа.

м (10 мм).

 мм.

Выбираем трубу 14х2 ГОСТ 8734-75 [20].

Проверяем условие :

 мм - условие выполнено.

Проверяем условие :

 мм - условие выполнено.

Сливной трубопровод 13-14

максимальный расход жидкости равен  м3/с;9

максимальное давление равно  МПа.

м (10,5 мм).

 мм.

Выбираем трубу 16х2 ГОСТ 8734-75 [20].

Проверяем условие :

 мм - условие выполнено.

Проверяем условие :

 мм - условие выполнено.

 

.6 Потери давления и проверка насосной установки

 

.6.1 Определение потерь давления в аппаратах

При определении перепадов давлений исходят из расходов, на которые рассчитана гидроаппаратура. Действительные перепады давлений отличаются от справочных взятых предварительно для расчета. Поэтому необходимо уточнить их значения.

Потери давления в аппаратах [10]:

,МПа, (41)

где Δp0 - перепад давления открывания или настройки аппарата, МПа;

A и B - коэффициенты аппроксимации экспериментальной

зависимости потерь давления от расхода через гидроаппарат;

Qmax - максимальный расход рабочей жидкости через

гидроаппарат, МПа.

Коэффициенты аппроксимации экспериментальной зависимости потерь давления [10]:

, МПа · с/м3;, МПа · с2 / м6; (42)

где Δp0 - перепад давления открывания или настройки аппарата, МПа;

Δpном - потери давления при номинальном расходе, МПа;

Qном - номинальный расход гидроаппарата, МПа.

Номинальный расход, перепад давления открывания или настройки аппарата и потери давления при номинальном расходе указываются в характеристиках на гидроаппарат и приведены для выбранной гидроаппаратуры.

Приведем расчет потерь давления для гидрораспределителя ВЕ.6.34.Г24.Н

УХЛ.4:

Qном = 12,5 л/мин (0,000208 м3/с);

Δp0 = 0 МПа;

Δpном =0,21 МПа.

Коэффициенты аппроксимации:

 МПа · с/м3.

 МПа · с2 / м6.

Отсюда вычислим потери давления:

Выдвижение штока  м3/с:

 МПа.

Втягивание штока  м3/с:

 МПа.

Рассчитанные значения перепадов давлений для остальных гидроаппаратов представлены в таблице 4.3.

Таблица 4.3 - Расчетные значения полных перепадов давления

Наименование гидроаппарата

Δp0, МПа

A, МПа · с/м3

B, МПа · с2 / м6

Этап цикла

Qmax

ΔpГА

Фильтр Ф


269,5

1613539,4

Выдвижение Втягивание

0,000157 0,0000756

0,0821 0,0296

Клапан обратный КО

240,4

1155695,3

Выдвижение Втягивание

0,000157 0,000756

0,2162 0,1748

Гидрораспределитель ГР


504,8

2426960,1

Выдвижение Втягивание

0,000157 0,0000756

0,1391 0,0743

Гидрозамок ГЗМ


721,2

3467085,8

Выдвижение Втягивание

0,000157 0,000756

0,1987 0,0520


Итого потери в гидроаппаратах:

Выдвижение штока:

напорная линия МПа;9

сливная линия  МПа.

Втягивание штока:

напорная линия МПа;9

сливная линия  МПа.

 

.6.2 Потери давления в трубопроводах по длине

Для нахождения потерь давления по длине трубопроводов вычислим числа Рейнольдса [10]:

) , (43)

где u - фактическая скорость течения жидкости в трубопроводе, м/с;

 - кинематический коэффициент вязкости жидкости, м2/с.

Потери давления на вязкое трение [10]:

, МПа, (44)

где r - плотность рабочей жидкости, кг/м3;

Qmax - максимальный расход жидкости в линии, м3/с;

li - коэффициент гидравлического трения на i - том участке;

Li - длина i - го участка трубопровода, м;

dст - внутренний диаметр i - го участка трубопровода, м;

fст - площадь внутреннего сечения i - го участка, м.

Для гладких цилиндрических трубопроводов коэффициент li [10]:

. 9 (45)

Расчет потерь давления приведем для напорного трубопровода на участке 1-11 при максимальных значениях расхода жидкости. На данном участке используется труба 11х1 ГОСТ 8734-75.

длинна трубопровода L = 0,1 м;

внутренний диаметр трубопровода dст = 0,010 м;

максимальный расход жидкости Qmax = 0,000175 м3/с.

Рабочая жидкость И-20А ГОСТ 20799-75 [20]:

плотность рабочей жидкости r = 885 кг/м3;

кинематический коэффициент вязкости  = 23 · 10-6 м2/с.

Площадь внутреннего сечения трубопровода определим по формуле:

, м2. 9 (46)

 м2.

Фактическая скорость движения рабочей жидкости в трубопроводе:

, м/с. (47)

 м/с.

Число Рейнольдса:

9 - поток ламинарный.

.

 Па (0,015 МПа).

Рассчитанные значения потерь на остальных участках трубопроводов представлены в таблице 4.4.

Таблица 4.4 - Потери давления по длине трубопровода

Этап цикла

Линия

Участок по схеме

Qmax, м3/с

dТi, м

Li, м

fТi, м2

ui, м/с

Rei

i

pТi, МПа

Выдвижение штока

Напорная

1-11

0,000175

0,01

0,1

0,000079

2,22

968,7

0,0660

0,0015



11-2

0,000157

0,008

0,1

0,000050

3,12

1086,4

0,0589

0,0032



3-4

0,000157

0,008

0,15

0,000050

3,12

1086,4

0,0589

0,0048



5-6

0,000157

0,01

4,2

0,000079

1,99

869,1

0,0736

0,0547


Сливная

7-8

0,0000756

0,008

4,8

0,000050

1,50

523,1

0,1223

0,0735



9-10

0,0000756

0,01

0,2

0,000079

0,96

418,5

0,1529

0,0013



 

 

 

 

 

 

 

ИТОГО:

0,1388

Втягивание штока

Напорная

1-11

0,000175

0,01

0,1

0,000079

2,22

968,7

0,0660

0,0015



11-2

0,0000756

0,008

0,1

0,000050

1,50

523,1

0,1223

0,0015



3-4

0,0000756

0,008

0,15

0,000050

1,50

523,1

0,1223

0,0023



7-8

0,0000756

0,008

4,8

0,000050

1,50

523,1

0,1223

0,0735


Сливная

5-6

0,000157

0,01

4,2

0,000079

1,99

869,1

0,0736

0,0547



9-10

0,000157

0,01

0,2

0,000079

1,9

869,1

0,0736

0,0026



 

 

 

 

 

 

 

ИТОГО:

0,1360


Итого потери по длине трубопроводов:

Выдвижение штока:

напорная линия МПа;

сливная линия  МПа,

Втягивание штока:

напорная линия МПа;

сливная линия  МПа,

 

.6.3 Местные потери давления в трубопроводах

Местные потери складываются из потерь в различных местных сопротивлениях (углы, тройники, изменение диаметра и т.д.) и определяются [10]:

 (48)

где ζj - коэффициент j-го местного сопротивления;н - число местных сопротивлений;Мj - площадь внутреннего сечения трубопровода перед j - тым

сопротивлением.

Полный расчет местных потерь произведем для местного сопротивления типа «тройник»участка 1-11:

местное сопротивление - тройник;

количество местных сопротивлений n = 1;

диаметр трубопровода Ø0,01 м;

коэффициент местного сопротивления ζ = 0,3 [20].

 Па (0,0007 МПа).

Остальные рассчитанные местные потери приведены в таблице 4.5.

Таблица 4.5 - Местные потери давления

Этап цикла

Линия

Участок

Вид местного сопротивления

Параметр

Кол-во

Qmaxj, м3/с

ζj

dмj, м

fмj, м2

ΔPмj, Мпа

Выдвижение штока

Напорная

1-11

Тройник Ф10 мм


1

0,000175

0,3

0,010

0,000079

0,0007



3-4

Резкое сужение Ф8/Ф6 мм (Вход в плиту)

d0/d=0,75

1

0,000157

0,3

0,006

0,000028

0,0041



4-5

Тройник Ф6 мм


1

0,000157

0,3

0,006

0,000028

0,0041



4-5

Колено Ф6 мм

90 град.

4

0,000157

1,2

0,006

0,000028

0,0655



5-6

Резкое расширение Ф6/Ф10 (Выход из плиты)

d0/d=0,6

1

0,000157

1,2

0,006

0,000028

0,0164



5-6

Колено Ф10 мм

90 град.

2

0,000157

1,2

0,010

0,000079

0,0042



5-6

Вход в емкость


1

0,000157

2,0

0,010

0,000079

0,0035


Сливная

7-8

Колено Ф8 мм

90 град.

2

0,000076

1,2

0,008

0,000050

0,0024



7-8

Резкое сужение Ф8/Ф6 мм (Вход в плиту)

d0/d=0,75

1

0,000076

0,3

0,006

0,000028

0,0009



8-9

Колено Ф6 мм

90 град.

4

0,000076

1,2

0,006

0,000028

0,0152



8-9

Тройник Ф6 мм


1

0,000076

0,5

0,006

0,000028

0,0016



9-10

Резкое расширение Ф6/Ф10 (Выход из плиты)

d0/d=0,6

1

0,000076

1,2

0,006

0,000028

0,0038


 








ИТОГО

0,1224

Втягивание штока

Напорная

1-11

Тройник Ф10 мм


1

0,000175

0,3

0,010

0,000079

0,0007

Резкое сужение Ф8/Ф6 мм (Вход в плиту)

d0/d=0,75

1

0,000076

0,3

0,006

0,000028

0,0009



4-8

Тройник Ф6 мм


1

0,000076

0,3

0,006

0,000028

0,0009



4-8

Колено Ф6 мм

90 град.

4

0,000076

1,2

0,006

0,000028

0,0152



7-8

Резкое расширение Ф6/Ф8 мм (Выход из плиты)

d0/d=0,75

1

0,000076

1,0

0,006

0,000028

0,0032



7-8

Колено Ф8 мм

90 град.

2

0,000076

1,2

0,008

0,000050

0,0024



7-8

Вход в емкость


1

0,000076

2,0

0,008

0,000050

0,0020



5-6

Колено Ф10 мм

90 град.

2

0,000157

1,2

0,010

0,000079

0,0042



5-6

Резкое сужение Ф10/Ф6 мм (Вход в плиту)

d0/d=0,6

1

0,000157

0,4

0,006

0,000028

0,0048


Сливная

5-9

Колено Ф6 мм

90 град.

4

0,000157

1,2

0,006

0,000028

0,0655



5-9

Тройник Ф6 мм


1

0,000157

0,5

0,006

0,000028

0,0068



9-10

Резкое расширение Ф6/Ф10 (Выход из плиты)

d0/d=0,6

1

0,000157

1,2

0,006

0,000028

0,0164



1-11

Тройник Ф10 мм


1

0,000175

0,3

0,010

0,000079

0,0007



3-4

Резкое сужение Ф8/Ф6 мм (Вход в плиту)

d0/d=0,75

1

0,000076

0,3

0,006

0,000028

0,0009


 

 

 

 

 

 

 

 

ИТОГО

0,1230


Итого местные потери в трубопроводах:

Выдвижение штока:

напорная линия МПа;9

сливная линия  МПа.

Втягивание штока:

напорная линия МПа;9

сливная линия  МПа.

 

.6.4 Суммарные потери давления

Общие суммарные потери давления приведены в таблице 4.6.

Таблица 4.6 - Общие суммарные потери в гидросистеме

Этап цикла

Линии

DPГА, МПа

DPl, МПа

DPМ, МПа

Dpå, МПа

Выдвижение штока

Напорная Сливная

0,6361 0,1264

0,0641 0,0747

0,0985 0,0239

0,7987 0,2250

Втягивание штока

Напорная Сливная

0,3307 0,3379

0,0788 0,0573

0,0253 0,0977

0,4348 0,4929

 

.6.5 Проверка насосной установки

Давление насосной установки должно обеспечивать требуемое давление в гидросистеме с учетом потерь [10]:

, МПа. (49)

 МПа.9

Максимальные потери при выдвижении штока МПа.9

Выбранная насосная установка удовлетворяет заданным условиям.

5. Разработка технологии производства опоры подшипника

 

.1 Описание конструкции детали


Деталь «корпус подшипника» используется для установки подшипника качения барабана в приводной станции ленточного конвейера. Эскиз представлен на рисунке 5.1.

Деталь представляет собой полый цилиндр наружным диаметром 200 мм и внутренним диаметром 140 мм небольшой высоты 52 мм горизонтально опирающийся на две лапы с общим размахом 320 мм и шириной 58 мм. Внутренний диаметр 140 мм является установочным местом подшипника качения и имеет допуск точности по квалитету H7 и шероховатость поверхности Ra 1,6. Для крепления крышек корпуса в корпусе по диаметру 165 мм имеются 6 сквозных отверстий диаметром 10,5 мм под крепежные болты. Для плотного прилегания крышек с каждой стороны имеется замкнутая контактная поверхность шириной ~ 23 мм с малой шероховатостью поверхности Ra2,5. Опорная поверхность в виде двух лап имеет цилиндрические выемки диаметром 40 мм на каждой лапе для уменьшения площади контактной поверхности, что позволяет получит более плотный контакт между установочной поверхностью корпуса подшипника и рамы привода. С этой же целью на контактной поверхности предусмотрена выемка между лапами глубиной 1 мм и длинной 200 мм. Для крепления корпуса подшипника к раме на лапах имеются отверстия диаметром 22 мм с цековками диаметром 40 мм и глубиной 1 мм сделанных в целях более плотного прилегания крепежного болта к поверхности лап и соответственно более надежного соединения. Для изготовления детали используем материал типа сталь 45Л по ГОСТ 977-88 [1], химический состав и механические свойства, которой приведены в таблице 5.1 и таблице 5.2, что достаточно для данных условий эксплуатации детали.

Рисунок 5.1 - Эскиз детали

Таблица 5.1 - Химический состав стали 45Л, %

С

Si

Mn

не более

Ni

Cr




S

P



0,42-0,5

0,2-0,52

0,45-0,9

0,04

0,04

0,45

0,4


Таблица 5.2 - Механические свойства стали 45Л

σт, Мпа

σвр, МПа

δ, %

 Ψ, %

αн, Дж/см2

HB (не более)

не менее


горячекатаной

отожженной

320

600

10

20

50

241

197

 

.2 Технологический контроль чертежа детали


Для изготовления корпуса подшипника вновь проектируемого конвейера выполнен новый чертеж. Чертеж содержит все необходимые сведения, дающее полное представление о детали, т.е. все проекции, разрезы, сечения, совершенно четкие и однозначно объясняющее ее конфигурацию, и возможные способы получения заготовки. Количество размеров на чертеже достаточно для качественного изготовления детали. Чистота поверхностей, их шероховатость и точность соответствуют служебному назначению детали. Чертеж содержит все необходимые сведения о материале детали.

В связи с тем, что деталь будет изготавливаться на станках с ЧПУ, при разработке чертежа прорабатывалась схема базирования размеров для облегчения написания программ и обработки детали.

Выполненный в соответствии с существующими ГОСТами и стандартами чертеж представлен на плакате в графической части.

 

.3 Анализ технологичности конструкции детали


Корпуса подшипников в современном машиностроении очень распространенная и ответственная деталь. От качества изготовления данной детали зависит работа множества механизмов. Технологичность производства таких деталей является очень важной в связи с их распространенностью.

Материал заготовки нашей детали сталь 45Л ГОСТ 977-88 технологичный, доступный, хорошо подвергается механической, термической, при необходимости слесарной обработке, легко обрабатывается лезвийными инструментами. В качестве альтернативы стали 45Л можно использовать сталь 40ХЛ. Сталь 40ХЛ имеет большую прокаливаемость и пластичность внутреннего слоя из-за дополнительных легирующих добавок, но это влечет за собой некоторое удорожание детали. Это в нашем случае не является целесообразным, сталь 45Л по своим прочностным характеристикам удовлетворяет требованиям детали. Так же в качестве удешевления можно рассмотреть замену стали 45Л на чугуны, например, Сч18 или Сч25. Однако в связи с тяжелыми условиями эксплуатации конвейера, для которого применяется данный корпус подшипника (постоянная работа с рывками и тяжелыми динамическими нагрузками), хрупкость чугунов может стать слабым место механизма. Вследствие вышесказанного, замена материала не целесообразна.

Деталь имеет небольшие габаритные размеры и имеет достаточную жёсткость. Упрощение конструкции детали за счет второстепенных элементов не представляется возможным из-за их отсутствия.

Некоторые затруднения при изготовлении детали вызовет точная обработка посадочного диаметра под подшипник из-за наличия крепежных лап. Для этого придется использовать специальную оснастку для установки опоры на станок и согласования крепежных установочных отверстий с внутренней поверхностью для установки подшипника качения.

В целом данную деталь можно обрабатывать на типовом стандартном оборудовании, стандартным режущим инструментом, используя универсальные типовые приспособления.

.4 Выбор метода изготовления и формы заготовки

 

.4.1 Выбор метода получения заготовки

Метод выполнения заготовки для изготовления деталей определяется исходя из назначения и конструкции детали, условиями её работы и представляемыми требованиями к ней [13]. Выбрать заготовку, значит установить способ её получения, наметить припуски на обработку каждой поверхности, рассчитать размеры и указать допуски на неточность изготовления. Для рационального изготовления заготовки с минимальной себестоимостью необходимо учитывать все вышеперечисленные данные.

Выбор метода изготовления заготовки зависит от формы и размеров детали, ее материала и назначения, объема производства и т.д. лучшим методом является тот, при котором заготовка получается более дешевой, включая стоимость последующей механической обработки, и имеют требуемое качество. Важнейшим фактором при выборе метода изготовления заготовок является экономия металла [13].

«Корпус подшипника» в основном изготавливают из чугуна или стали. Деталь не является сложной по форме, симметрична, очень распространенная деталь в машиностроении. Сам по себе корпус подшипника имеет четыре важных поверхности:

контактная поверхность для установки корпуса на раму привода;

внутренняя поверхность для установки подшипника

две контактных поверхности для установки крышек корпуса подшипника.

Остальные поверхности не так важны и в большинстве случаев не подвергают металлообработки, а лишь наносят защитное покрытие. В связи с этим наиболее распространенным способом получения заготовок является литье. Данный метод получения заготовки наиболее экономичен и проверен на опыте многих лет производства таких или аналогичных деталей.

Для выбора заготовки сравним два способа получения отливки, наиболее часто используемых для таких деталей, как корпус подшипника:

литье в песчаные формы по деревянным моделям;

литье в песчаные формы по стальным моделям.

Литьё в песчаные формы [13] наиболее универсальный способ в отношении литейных материалов, а также масс и габаритов отливок. Другие способы литья значительно повышают стоимость отливок, хотя позволяют получать отливки с минимальными припусками на механическую обработку или вообще почти исключить механическую обработку (литьё небольших деталей из цветных сплавов под давлением в металлические формы).

При единичном и мелкосерийном производствах модельные комплекты, т. е. модели и стержневые ящики изготавливаются деревянными, в крупносерийном и массовом производствах используют в основном металлические (или пластмассовые) модельные комплекты. Металлические модели имеют более высокие точность и чистоту поверхности, что позволяет примерно на 10% снизить припуски на механическую обработку, но в связи с этим большую стоимость.

За счет применения металлических моделей и машинной формовки можно получить точность отливок по 14 - 17-му квалитетам, в то время как при серийном характере производства точность отливок находится в пределах 15 - 17, а при единичном - 16 - 17 квалитетов [13].

В общем случае литьем в песчаные формы можно получить отливки с шероховатостью поверхности Rz = 320 - 40 мкм [13]. Если форма изготовлена из обычной песчано-глинистой смеси, то шероховатость поверхности отливки превышает Rz = 320 - 160 мкм, если используется песчано-масляная смесь - Rz = 320 - 80 мкм, при использовании хромово-магнезитовых смесей шероховатость поверхности может быть Rz = 80 - 20 мкм.

Существует два способа изготовления формы - сырая и сухая [13]. В первом случае уплотненную форму не подвергают дополнительной сушке и отверждению, во втором - форма или высушивается, или химически отверждается. Сырые песчаные формы применяют в производстве мелких стальных и чугунных отливок массой до 100 кг и различных отливок из цветных сплавов. Для более крупных стальных и чугунных отливок, а также для отливок ответственного назначения (например, арматурное литье) независимо от массы используют песчаные сухие формы либо с поверхностной подсушкой.

Припуски на механическую обработку задают в зависимости от способа формовки, класса точности, габаритных размеров и материала отливки, а также от положения обрабатываемой поверхности в форме [13].

В нашем случае для небольшой партии «корпусов подшипника» наиболее предпочтителен и экономичен способ литья в песчаные формы по деревянным моделям с песчано-глинестой смесью, так как большинство поверхностей детали не критично к получаемой шероховатости.

5.4.2 Проектирование отливки

Отливку производим в две полуформы с горизонтальной плоскостью разъема, совпадающей с плоскостью симметрии детали. Проектирование отливки выполняем по методике, приведенной в [13].

Для выбранного способа литья из стали при наибольшем габарите отливки до 630 мм ГОСТ рекомендует классы точности размеров и масс 7т - 12 и ряды припусков 2 - 4. Меньшие значения классов точности и рядов припусков относятся к массовому, а большие - к мелкосерийному или единичному производству отливок.

Для нашего случая выбираем класс точности размеров и масс 9, а ряд припусков 3.

В таблицу 5.3 заносим допуски на основные размеры отливки, взятые из [13].

Таблица 5.3 - Допуски и припуски на основные размеры детали для отливки

Размеры детали, мм

Допуски

Основной припуск

Дополнительный припуск

Размер

Внутренний диаметр Ф140

2,4

3,2 х 2 = 6,4

0,3 х 2 + 0,24 = 0,84

133 ± 1,2

Высота 205

2,8

3,6 + 4,2 =7,8


213 ± 1,4

Высота 40

1,8

2,8 + 3,4 = 6,2


46 ± 0,9

Ширина 52

2

2,8 + 3,4 = 6,2


58 ± 1,0

Ширина 130

2,4

-


130 ± 1,2

Ширина 58

2

-


58 ± 1,0

Ширина 46

2

-


46 ± 1,0

Наружный диаметр Ф200

2,8

-


200 ± 1,4

Наружный диаметр Ф190

2,8

-


190 ± 1,4

Высота 105

2,4

-


105 ± 1,2

Отверстие Ф40

1,8

-


40 ± 0,9

Толщина 17

1,6

-


17 ± 0,8

Размер центров 255

3,2

-


255 ± 1,6

Длинна 320

2,8

-


320 ± 1,4

Основные припуски определяем по [13]. При этом припуск на верхнюю при заливке поверхность берем по следующему ряду припусков (т. е. увеличенным).

Определяем дополнительные припуски. Прежде всего, определяем отношение наименьшего габаритного размера отливки к наибольшему 58/320 = 0,18, что соответствует степени коробления 2 - 8 [13]. Для отливок из черных сплавов рекомендуются большие степени коробления. Выбираем 6-ю степень коробления.

По [13] для наиболее ответственного размера 140 мм и 6-й степени коробления предельное отклонение коробления составляет 0,24 мм.

По [13] при расстоянии между центрирующими устройствами формы до 630 мм и 9-м классе точности размеров отливки предельное отклонение смещения форм не должно превышать 0,8 мм.

Все выбранные и рассчитанные припуски, и допуски сведены в таблице 5.3. Чертеж отливки приведен в графической части на плакате.

Обозначение точности отливки:

- 5 - 6 - 9 См. 0,8 ГОСТ 26645-85,

где 9 - точность размеров;

         9 - точность массы;

         6 - степень коробления;

         3 - ряд припусков;

         См. 0,8 - допускаемое предельное отклонение смещения форм не

более ±0,8 мм.

ГОСТ 26645-85 - ГОСТ на разработанную отливку.

.5 Аналитический расчет припуска на обработку

Расчет проведем для отверстия Ф140Н7(+0,04) с шероховатостью поверхности , как наиболее ответственной поверхности.

Для получения данного размера с требуемыми параметрами точности и шероховатости согласно рекомендаций [8] выбираем план обработки, учитывая, что заготовка имеет 17-й квалитет точности размеров, шероховатость поверхности  (литье в песчаные формы по деревянным моделям), поле допуска размера  мм: 9

–   черновая стадия обработки (точение)  квалитет, , поле допуска размера ;

–       получистовая стадия обработки (точение)  квалитет, , поле допуска размера ;

–       чистовая стадия обработки (шлифование)  квалитет, , поле допуска размера .

Согласно данного плана для получения требуемой шероховатости и точности из справочника [8] выбираем минимально необходимую толщину снимаемого (дефектного) слоя:

черновая стадия обработки  мм;9

получистовая стадия обработки  мм;9

чистовая стадия обработки  мм.9

Минимальную величину припуска на механическую обработку определяем по формуле:

, мм, (50)

где  - величина шероховатости предшествующего перехода, мм;

 - величина дефектного слоя предшествующего перехода, мм;

 - величина пространственных отклонений (коробление,

смещение оси заготовки), мм;

 - погрешность установки, мм.

Величину пространственных отклонений учитываем только для черновой обработки и определим по формуле:

, мм. (51)

 мм.

Значения величин коробления и смещения оси для заготовки полученной литьем мкм, мкм.

Величину погрешности установки согласно плана обработки детали будем учитывать при черновом точении 9 мм и чистовой обработке 9 мм (переустановка заготовки, смена баз).

Отсюда найдем минимальные припуски на обработку по переходам:

мм;

мм;

мм.

Максимальные диаметры отверстия по переходам:

мм;

мм;

мм;

мм.

Схема припусков и допусков показана на рисунке 5.3.

Рисунок 5.3 - Схема припусков и допусков

 

Минимальные диаметры отверстий по переходам:

мм;

мм;

мм;

мм.

Максимальные припуски обработки по переходам:

мм;

мм;

мм.

 

.6 Выбор плана обработки


Схема обрабатываемых поверхностей представлена на рисунке 5.4. План обработки представлен в таблице 5.4.

Рисунок 5.4 - Схема поверхностей обработки:

Таблица 5.4 - План обработки детали «корпус подшипника»

Операция

Наименование

Содержание

Обрубка и очистка заготовки


2

Вертикально-фрезерная


2.1


Фрезеровать поверхность 1

2.2


Фрезеровать паз 2

3

Вертикально-сверлильная


3.1


Сверлить два отв. 3 до диам. 20 мм

3.2


Цековать два отв. 3 до диам. 40 мм

4

Фрезерно-расточная


4.1


Фрезеровать в черновую пов. 4, 5

4.2


Расточить в черновую внутреннюю поверхность 6

5

Термическая

Термообработка детали

6

Верткально-сверлильно-расточная


6.1


Фрезеровать в чистовую пов. 4, 5

6.2


Расточить в чистовую внутреннюю поверхность 6

6.3


Сверлить шесть отв. 7 диам. 10,5 мм

6.4


Шлифовать пов. 4, 5

6.5


Шлифовать внутреннюю поверхность 6

7

Вертикально-сверлильная


7.1


Рассверлить два отв. 3 до диам. 22 мм

8

Контрольная

Технический контроль детали

 

5.7 Выбор типового оборудования и типовых приспособлений


Выбор оборудования производим по справочнику [21]. При выборе оборудования руководствуемся типом производства и рекомендациями для его использования. Предпочтение отдаем станкам с ЧПУ или автоматам.

Исходя из годовой программы N = 600 штук и сложности детали производство мелкосерийное.

Вертикально-фрезерные операции: станок вертикально - фрезерный 6Р13Ф3 с ЧПУ

Размеры рабочей поверхности стола, мм Мощность двигателя, кВт КПД станка, Частота вращения шпинделя, об/мин Подача стола, продольная и поперечная мм/мин Подача стола, вертикальная мм/мин

400х1600 7,5 0,8 31,5-1600 10-1200 10-1200


Используем следующие приспособления:

тиски станочные винтовые ГОСТ 21168-75.

Вертикально-сверлильные операции: станок вертикально - сверлильный 2Г175

Наибольший диаметр сверления, мм Размеры рабочей поверхности стола, мм Наибольшее вертикальное перемещение сверлильной головки, мм Частота вращения шпинделя, мин-1 Подача шпинделя, мм/об Мощность двигателя, кВт75 560х630 710 18-800 0.018-4.5 11



Для сверлильной операции используем следующие приспособления:

оснастка при станке;

крепежные болты и планки.

Фрезерно-расточная и фрезерно-сверлильно-расточная: многоцелевой горизонтальный станок ИР320МФ4 с вращающимся столом и ЧПУ

Размеры рабочей поверхности стола Частота вращения поворотного стола, об/мин Количество позиций поворота стола Мощность двигателя, кВт Наибольшее перемещение стола, мм продольное вертикальное Частота вращения шпинделя, об/мин Пределы подачи стола, мм/мин Емкость инструментального магазина, шт

340 х 340 6 120 (через 3 град.) 22 800 500 21,2…3 000 1…3 600 30


Используем следующие приспособления:

универсальная сменная переналаживаемая оснастка (УСПО) при станке.

 

.8 Выбор режущих инструментов


Выбор режущих инструментов осуществляется в зависимости от метода обработки, формы и размеров обрабатываемой поверхности, ее точности и шероховатости, обрабатываемого материала, заданной производительности и периода стойкости инструментов.

Для выбора используем справочник [21].

. Вертикально-фрезерные операции

фреза торцевая Ф200 ГОСТ 24359-80.

. Вертекально-сверлильные операции:

сверло спиральное Ф20 ГОСТ 10903-770;

сверло спиральное Ф22 ГОСТ 10903-770;

цековка Ф40 ГОСТ 26258-87.

. Фрезерно-расточная:

фреза торцевая Ф40 ГОСТ 9304-69;

резец расточной для сквозных отверстий ГОСТ 18872-73.

. Фрезерно-сверлильное-расточная:

фреза торцевая Ф40 ГОСТ 9304-69;

резец расточной для сквозных отверстий ГОСТ 18872-73;

абразивный круг ЧЦ80х50х10 25А 25 см2 К7 25 м/с ГОСТ 2424-83;

сверло спиральное Ф10,5 ГОСТ 10903-770.

 

.9 Расчет режимов резания

 

Выбор режимов резания производим табличным методом с последующей корректировкой по паспортным данным оборудования.

Длина рабочего хода [13]:

L , мм, (52)

где  - длина резания, мм;

 - величина врезания, мм;

 - величина перебега,  мм.

Скорость резания [13]:

, м/мин, (53)

где  - табличная скорость резания, м/мин;

 - коэффициент, зависящий от обрабатываемого материала;

 - коэффициент, зависящий от стойкости и марки твердого

сплава;

 - коэффициент, зависящий от обрабатываемой поверхности.

Частота вращения шпинделя [13]:

, об/мин, (54)

где  - расчетная скорость резания, м/мин;

- обрабатываемый диаметр, мм.

Действительная скорость резания [13]:

, м/мин, (55)

где  - принятая частота вращения, об/мин.

Рассчитанные режимы резания сводим в таблицы 5.5 и 5.6

Таблица 5.5 - Выбор режимов резания лезвийным инструментом

Переход

T, мм

S, мм/зуб

S, мм/об

u., м/мин

n., об/мин

1 2

2 Вертикально-фрезерная операции






2.1

Фрезеровать поверхность 1

4

0,2


178,1

180

2.2

Фрезеровать паз 2

1

0,2


178,1

180

3

Вертикально-сверлильная






3.1

Сверлить два отв. 3 диам. 20 мм

10


0,32

15,7

250

3.2

Цековать два отв. 3 до диам. 40 мм

10


0,52

25,1

200

4

Фрезерно-расточная






4.1

Расточить предварительно внутреннюю пов. 6 диам. 140 мм

1,5


0,2

197,1

450

4.2

Фрезеровать предварительно пов. 4, 5

2

0,2


35,2

280

6

Фрезерно-сверлильно-расточная






6.1

Сверлить 6 отв. 7 диам. 10,5 мм

5,25


0,11

14,7

700

6.2

Фрезеровать окончательно по. 4, 5

0,6

0,15


44,6

355

6.3

Расточить окончательно внутреннюю пов. 6 диам. 140 мм

1


0,1

276,9

630

7

Вертиекально- сверлильная






7.1

Рассверлить два отв. 3 до диам. 22 мм

1


0,56

17,3

250









Таблица 5.6 - Режимы резания абразивным инструментом

Операция

T, мм

S, м/мин

nд., об/мин

n круга об/мин

u круга, м/с

6

Фрезерно-сверлильно-расточная






6.4

Шлифовать пов. 4, 5

0,025

50

90

1920

35

6.5

Шлифовать пов. 6

0,025

50

55

1920

35


.10 Расчет основного технологического времени

Расчет основного технологического времени производим по следующим формулам:

1. Фрезерные операции:

, мин, (56)

где  - величина рабочего хода, мм;

 - подача, мм/зуб.;

 - число зубьев фрезы;

 - частота вращения фрезы, мин-1;

 - число проходов.

2. Расточные и сверлильные операции

, мин, (57)

где  - подача, мм/об;

 - частота вращения детали или инструмента, мин-1.

3. Шлифовальные операции

, мин, (58)

где  - ширина круга, мм.

Расчеты основного технологического времени сводим в таблица 5.7.

Таблица 5.7 - Основное технологическое время

Переход

L, мм

i

S, мм/зуб

S, мм/об

S, м/мин

nст., об/мин

Tо, мин

2

Вертикально-фрезерная операции








2.1

Фрезеровать поверхность 1

320

2

0,2



180

0,88

2.2

Фрезеровать паз 2

58

1

0,2



180

0,10

ИТОГО

0,98

3

Вертикально-сверлильная








3.1

Сверлить два отв. 3 диам. 20 мм

17

2


0,32


250

0,43

3.2

Цековать два отв. 3 до диам. 40 мм

1

2


0,52


200

0,02


ИТОГО

0,45

4

Фрезерно-расточная








4.1

Расточить предварительно внутреннюю пов. 6 диам. 140 мм

52

2


0,2


450

1,15

4.2

Фрезеровать предварительно пов. 4, 5

520

2

0,2



280

1,53


ИТОГО

2,69

6

Фрезерно-сверлильно-расточная








6.1

Сверлить 6 отв. 7 диам. 10,5 мм

52

6


0,11


700

4,05

6.2

Фрезеровать окончательно пов. 4, 5

520

2

0,15



355

1,62

6.3

Расточить окончательно внутреннюю пов. 6 диам. 140 мм

52

2


0,1


630

1,62

6.4

Шлифовать пов. 4, 5

520




50

90

0,02

6,5

Шлифовать пов. 6

52




50

55

0,01


ИТОГО

7,32

7

Вертикально-сверлильная








7.1

Рассверлить два отв. 3 до диам. 22 мм

17

2


0,56


250

0,24


ИТОГО

0,24


5.11 Расчет технической нормы времени

Выпуск детали - «корпус пошипника» в мелкосерийном производстве, а в мелкосерийном производстве определяется норма штучно-калькуляционного времени [13]:

T , мин, (59)

где  - подготовительно-заключительное время, мин;

n- количество деталей в настроечной партии;

 - норма штучного времени, мин.

Норма штучного времени [13]:

, мин, (60)

где  - основное время, мин;

 - вспомогательное время, мин;

T - время на обслуживание рабочего места, перерыва на

отдых и личные нужды, мин [13].

Вспомогательное время [13]

, мин, (61)

где  - время на установку и снятие детали, мин;

 - время на приемы управления, мин;

 - время на измерение детали, мин.

Время на вспомогательные операции находим по таблицам [13]. (таблица 5.8)

. Вертикально-фрезерная операция:

 мин;

мин;

 мин;

 мин;

 мин.

. Вертикально-сверлильная операция:

мин;

 мин;

 мин;

 мин.

. Фрезерно-расточная:

 мин;

мин;

 мин;

 мин;

T9 мин.

. Фрезерно-сверлильно-расточная операция:

 мин;

мин;

T9 мин;

 мин;

 мин.

. Вертикально-сверлильная операция:

 мин;

T9мин;

 мин;

 мин;

 мин.

Таблица 5.8 - Сводная таблица технических норм времени

п/п

Операция

То, мин

Тв, мин

Тоб-от, мин

Тш, мин

Тпз, мин

n, шт

Тшк, мин

2

Вертикально-фрезерная

0,98

3,89

0,1

4,97

22

100

5,19

3

Вертикально-сверлильная

0,45

5,56

0,05

6,06

6

100

6,12

4

Фрезерно-расточная

2,69

4,19

0,27

7,15

22

100

7,37

5

Фрезерно-сверлильно-расточная

7,32

3,71

0,73

11,76

22

100

11,98

6

Вертикально-сверлильная

0,24

4,06

0,03

4,33

6

100

4,39

ИТОГО:

35,05

 

5.12 Управляющая программа для обработки детали на станке с ЧПУ


Программу разработаем для фрезерно-расточной операции с ЧПУ. Обработку выполняем на многоцелевом обрабатывающем комплексе ИР320МФ4.

В данной операции выполняются следующие действия:

Стол в 1-й позиции.

растачиваем в черновую пов. 6 диаметр Ф140 на длину 58 мм за 2 прохода;

фрезеруем в черновую пов. 5 по кругу диаметром 165 мм за 1 проход.

Стол во 2-й позиции.

-      фрезеруем в черновую пов. 4 по кругу диаметром 165 мм за 1 проход.

Для работы используем следующие режущие инструменты:

) Фреза торцевая Ф40 по ГОСТ 9304-69.

) Резец расточной для сковозных по ГОСТ 18872-73.

Разработанная программа представлена в таблице 5.9.

6. Безопасность и экологичность проекта

 

.1 Анализ опасных и вредных производственных факторов на участке отсева агломерата


Участок отсева мелочи агломерата находится в подбункерном помещении бункерной эстакады доменной печи. Подбункерное помещение - это не отапливаемое закрытое пространство, частично находящееся ниже нулевой отметки бункерной эстакады.

Разделение агломерата на соответствующие фракции происходит на центральных агломерационных грохотах. Фракция агломерата неудовлетворяющая требованиям стандарта при грохочении сбрасывается на конвейер отсева и далее на общую для нескольких печей линию возврата. Линия возврата, состоящая из нескольких конвейеров разной длины, доставляет некондиционный агломерат обратно на агломерационную фабрику.

Основные работы, выполняемые технологическим персоналом на участке отсева агломерата:

контроль работы оборудования отсева агломерата;

уборка просыпа мелочи агломерата;

устранение заторов в течках;

запуск и останов оборудования отсева агломерата согласно технологического регламента и планово-предупредительных ремонтов.

Обслуживание участка отсева мелочи агломерата производится операторами и машинистами шихтоподачи из числа технологического персонала шихтоподачи доменной печи.

Ремонт оборудования на участке производится сервисным персоналом, обслуживающим шихтоподачу: бригадой слесарей, дежурным электриком и дежурным гидравликом. Автоматику обслуживает бригада КИП по доменному производству.

Участок отсева мелочи агломерата характеризуется наличием следующих опасных и вредных производственных факторов: пыль от шихты; шум от оборудования; большое количество вращающихся и движущихся частей; электрический ток; высота; образование в холодный период наледи на площадках из-за испарений.

Основным опасным фактором на участке отсева мелочи агломерата является пыль. Концентрация пыли выше предельно допустимой (ПДК = 6 мг/м3). Основные выбросы пыли происходят при загрузке и разгрузки шихтовых материалов. В связи с наличием на самом участке отсева мест с большим выделением пыли и вокруг него эта проблема встает наиболее остро. Общее количество выбросов пыли в воздух рабочей зоны, в общем, по шитоподаче, могут достигать 0,5 т/сутки. Наличие пыли вызывает заболевания органов дыхания с возможным переходом их в хроническую форму. Возможны травмы глаз особенно при попадании взвешенных частиц присутствующих в выбросах пыли.

Шум на участке шихтоподачи в большинстве случаев не превышает предельно допустимых норм. Исключением составляют места установки грохотов и вибропитателей, что актуально для участка отсева, т.к. отсев поступает именно с центральных грохотов агломерата. Производственный шум оказывает вредное влияние на здоровье, способствует травматизму и понижению производительности труда. Работа при шуме вызывает утомление слуха, в практике наблюдаются случаи травматизма из-за плохой слышимости сигналов транспортных и грузоподъёмных механизмов, которые в большом количестве присутствуют на шихтоподаче. При шуме более 85дБ у рабочего возникает понижение слуха, длительное пребывание рабочего при шуме вызывает вялость, медлительность, головные боли, снижение производительности труда.

Опасным производственным фактором при непосредственной работе на производстве являются движущиеся и вращающиеся части технологического оборудования. По неосторожности работников может происходить попадание конечностей в механизмы, что приводит к механической травме. В некоторых случаях приводящие к инвалидности и потери трудоспособности.

Наличие неисправного или с поврежденной изоляцией электрооборудования может вызвать травмы с поражающим фактором в виде электрического тока. Короткие замыкания могут вызвать временную слепоту, потерю сознания. Прохождение электрического тока через тело может вызвать ожоги, судороги и в некоторых случаях смертельный исход.

Исходя из выше перечисленного, на участке отсева мелочи агломерата обслуживающий персонал может получить следующие основные заболевания и травмы:

заболевания органов дыхания силикоз (вдыхание силикатосодержащей пыли) или пылевой бронхит;

частичную или полную потерю зрения;

механическую травму;

потерять трудоспособность.

 

.2 Меры по обеспечению безопасных и здоровых условий труда


Участок отсева мелочи агломерата является частью доменного производства и расположен в непосредственной близости от собственно доменной печи.

Для обеспечения безопасных и здоровых условий труда на участке агломерата обеспечиваются постоянное обслуживание оборудования дневными ремонтными службами и дежурным ремонтным персоналом из состава ремонтных служб шихтоподачи:

Состав этих служб:

бригада слесарей 4 ч.;

сварщик/газорезчик - 1 ч.;

дежурные слесаря - 4 ч.; дежурный электрик - 1 ч;

дежурный гидравлик - 1 ч.

В случае необходимости оператор или машинист шихтоподачи могут вызвать ремонтный персонал по телефону. Список телефонов и сами телефоны находится в операторской, в служебных помещениях и в комнатах отдыха персонала. Телефоны так же расположены непосредственно вдоль шихтоподачи в наиболее важных местах (приводные и натяжные станции конвейеров, в нескольких точках по трекам конвейеров, у грохотов и бункеров).

Шихтоподача имеет внутреннее и наружной освещение, обеспечивающее требуемые условия труда согласно СНиП. Так же на случай аварийных ситуаций или временного отключения основного освещения предусмотрено аварийное.

Все механизмы участка с вращающимися и движущимися частями имеют ограждения и кожуха. Затворы бункеров снабжены блокировками на перемещение в крайние положения и имеют надежную фиксацию в открытом и закрытом состоянии. Все смотровые лючки и люки для зачистки бункеров и течек имеют надежные запоры и замки с ключами, находящимися у ответственного персонала.

Все конвейера отсева мелочи агломерата, как и все другие, имеют тросик-выключатель по всей длине трека конвейера для аварийной его остановки в опасных ситуациях.

Все площадки участка отсева снабжены перильными ограждениями. Для предотвращения скапливания пыли и образования наледи пол площадок сделан решетчатым. Причем размеры щелей пола не допускают падения крупных предметов на ниже расположенные площадки. Во всех опасных местах имеются калитки с блокировкой связанной с конечным выключателем огражденного механизма. Металлические части конструкции, оборудование заземлены, пульты управления и контроля также имеют заземление, вся проводка изолирована, электропомещения и помещения КИП закрыты.

Для удаления из воздуха пыли существуют аспирационные установки. Аспирационные установки производят отсос пыли из всех мест пылеобразования. Эти установки имеют большие габариты и как правило расположены в отдельных зданиях. В местах наиболее интенсивного выделения пыли предусмотрено орошение воздуха водой и сбор пыли через шламопроводы.

Во всех помещениях для персонала предусмотрена естественная вентиляция и где необходимо приточная вентиляция.

На территории шихтоподачи организованы санитарно-бытовые помещения, так называемые комнаты отдыха дневного и сменного персонала, в которых имеются дозирующие устройства с привозной питьевой водой, раковина для мытья рук, столы, стулья, скамейки, электроплитки, чайники, холодильники, санузлы.

Все работники проходят медкомиссию для своевременного выявления отклонений здоровья персонала от требуемых норм.

На каждом участки есть телефоны для вызова пожарной части. Каждый работник производства умеет пользоваться средствами пожаротушения, знает места расположения пожарных телефонов, и умеет пользоваться ими для вызова пожарной части. Оператор шихтоподачи непосредственно следит за соблюдением режимом курения, правил ведения огневых работ, за состоянием средств пожаротушения, технологическим режимом и оборудованием.

На территории шихтоподачи расположены места, где находятся средства пожарной безопасности, это: рукава к внутренним пожарным кранам; песок; огнетушители; совки; кошма; щит с противопожарным инвентарем.

Каждому работнику шихтоподачи выдается спецодежда, которая полагается по нормам: костюм суконный; костюм брезентовый; рукавицы брезентовые; рукавицы суконные; куртка на утепляющей подкладке; ботинки кожаные; ботинки кирзовые; валенки.

Коллективным договором предусмотрена дополнительная выдача нательного белья.

Предусмотрены средства индивидуальной защиты (СИЗ): каска защитная; защитные очки; респиратор; звукоизолирующие наушники.

Персонал, работающий на участках шхтоподачи и отсева мелочи агломерата соблюдает режим труда и отдыха. Время начала и окончания ежедневной работы (смены), перерыва определяются правилами внутреннего трудового распорядка и графиками для персонала, работающего в день и персонала работающего по сменам.

График для персонала работающего в день:

пн, вт, ср, чт - с 730 до 1630, обед с 1100 до 1145;

пятница - с 730 до 1500, обед с 1100 до 1130;

суббота, воскресение - выходной.

Также для дневного персонала на каждый час предусмотрен перерыв длительностью 5 мин.

Для персонала работающего по сменам предусмотрен скользящий график работы:

смены с 700 до 1500, два выходных дня;

смены с 1500 до 2300, два выходных дня;

смены с 2300 до 700, два выходных дня.

Обед при скользящем графике либо по разрешению мастера, либо если работающего заменил его коллега по работе (подмена).

Для организации работы в течение смены перед началом работы проводится сменно-встречное собрание, где работникам определяются задачи на текущую смену и подводятся итоги о проделанной работе предыдущей смены.

На участке шихтоподачи и в частности на участке отсева мелочи агломерата существуют некоторые проблемы в области промышленной безопасности. Эти проблемы и действия направленные на безопасную работу персонала приведены в таблице 6.1.

Таблица 6.1 - Таблица проблем в области промбезопасности участка шихтоподачи

Проблема

Предупредительные меры

Меры, направленные на устранение проблемы

Ограждения трека конвейеров не имеет замков или приспособлений припятствующих их снятию без ключа или др. разблокирующего приспособления

Инструктаж персонала производства. Ежесменные обходы оборудования для выявления снятых ограждений и их установки.

Программа оснащения конвейеров типовым съемным ограждением с блокировкой специальным ключом.

Отсутствуют ограждения на устаревшем оборудовании в местах, где оно требуется согласно действующих правил ТБ.

Инструктаж персонала производства. Оснащение таких мест табличками: «Проход во время работы механизма запрещен»

Разработка индивидуальных проектов. Включение в инвестиционную программу мероприятий для замены устаревшего оборудования на современное.

Места с технологическими проходами, не удовлетворяющими современным требованиям техники безопасности

Инструктаж персонала производства. Оснащение таких мест табличками: «Проход запрещен»

Разработка безопасных маршрутов движения персонала. Разработка инструкций для контроля работы и обслуживания механизмов в труднодоступных местах.


Общее мероприятие для повышения уровня безопасности - это разработка схемы шихтоподачи с указанием проблемных мест и уровнем их опасности, а также разработка информационно-агитационных плакатов с вывеской их перед особо проблемными местами.

 

.3 Расчет заземления конвейера


Защитное заземление применяется в сетях напряжением до 1000 В переменного тока - трехфазные трехпроводные с неизолированной нейтралью; однофазные двухпроводные, изолированные от земли; двухпроводные сети постоянного тока с изолированной средней точкой обмоток источника тока; в сетях выше 1000 В переменного и постоянного тока с любым режимом нейтрали.

Заземление обязательно во всех электроустановках при напряжении 380В и выше переменного тока, 440 В и выше постоянного тока, а в помещениях с повышенной опасностью, особо опасных и в наружных установках при напряжении 42 В и выше переменного тока, 110 В и выше постоянного тока; при любых напряжениях во взрывоопасных помещениях.

Расчет заземления ведем по методике представленной в [12].

Привод конвейера запитывается от сети трехфазного переменного тока напряжением 380В. Для устройства заземления используем вертикально заглубленные в землю уголки размером 125х125 и длинной l = 3 м. Для Вологодской области тип климатической зоны II [12].

Нормируемое сопротивление заземления установки Ом [12].

Согласно ПУЭ (Правила эксплуатации электроустановок) допустимое сопротивление заземления с учетом удельного сопротивления грунта:

, Ом, (62)

где  - удельное сопротивление грунта.

Грунт в месте устройства заземления песчаная подсыпка в районе фундаментов основного здания шихтопоачи, удельное сопротивление грунта для данных условий  Ом·м [7].

Ом.

Окончательно принимаем Ом. R9

Сопротивление растеканию тока одного вертикального элемента (заземлителя) [12]:

, Ом, (63)

где  - расчетное удельное сопротивление грунта для вертикальных

заземлителей, Ом;

 - диаметр заземлителя, м;

 - длина заземлителя, м;

 - глубина заглубления заземлителя, м;

 - расстояние от уровня земли до центра заземлителя, м.

Расчетное удельное сопротивление грунта [12]:

, Ом, k9 (64)

где  - удельное сопротивление грунта;

 - коэффициент сезонности климатической зоны для

вертикальных заземлителй, м.

Коэффициент сезонности для климатической зоны II  [7].

Ом.

Эквивалентный диаметр заземлителя для уголка м. Длина стержня заземлителя  м. Глубину заглубления заземлителя согласно [12] принимаем равной м. Расстояние от уровня земли до центра заземлителя м.

Подставляя полученные данные в формулу (63) получаем:

Ом.

Количество вертикальных заземлителей с учетом коэффициента использования [12]:

, шт., (65)

где  - коэффициент использования заземлителей.

При расположении заземлителй на рсстоянии друг от друга м, коэффициент использования заземлителей . Отсюда требуемое число заземлителей:

n9 шт.

Принимаем количество заземлителей  шт.9

Исходя из проведенных расчетов для выполнения заземления конвейера отсева мелочи агломерата требуется восемь уголков 125х125 длиной  9м расположенных в два ряда и связанных между собой стальной полосой 100х16. Глубина заглубления заземлителей (уголков) м. С конвейером заземлители соединяются заземляющей шиной.

 

.4 Меры по обеспечению устойчивой работы цеха в условиях чрезвычайных ситуаций


В доменном производстве возможные следующие чрезвычайные ситуации:

прогар элемента фурменного прибора с выбросом кокса;

разрыв или прогар кожуха доменной печи;

прекращение подачи воздуха на печь;

обрыв троса штанги отсекающего клапана пылеуловителя;

разрыв кожуха воздухопровода горячего дутья;

разрыв кожуха на воздухонагревателе стоящем на дутье;

загорание масла на конусных и скиповых лебедках в машзалах;

отключение эл. энергии на печах в момент слива чугуна;

отключение электроэнергии на все механизмы и приборы доменной печи;

прогар горна с выходом жидких продуктов плавки;

прогар миксеровоза (ковша) во время его налива на доменной печи;

прекращение подачи воды на охлаждение доменной печи;

заклинило в открытом положении пылезапорный клапан на пылеуловителе или продув седла, тарели;

продувы доменного газа;

смеситель УГКС. Загорание внутри и прогар стенок;

повреждение газопроводов природного газа;

разрыв пылеуловителя или газопровода грязного газа;

разрыв газопровода доменного газа;

загазованность площадки (помещения) воздухонагревателей;

утечка азота;

загорание резиновых лент конвейеров;

пожар в электроустановках;

разрыв и загорание кислородопровода.

В производстве проводится работа по предотвращению чрезвычайных ситуаций и их последствий. Устойчивость работы производства обеспечивается по следующим направлениям:

Защита рабочих и служащих. Для защиты служащих на участке возведены специальные защитные сооружения, проводится обучение персонала поведению в чрезвычайных ситуациях, предусмотрены планы эвакуации, планы действий при чрезвычайных ситуациях с распространением их на агитационных щитах.

Повышение прочности и надежности важнейших элементов объекта. Производятся регулярные обследования объектов и экспертизы промышленной безопасности для своевременного выявления потери прочностных характеристик основных объектов. В случае необходимости производятся ремонты или усиления слабых участков конструкций, предусматривается дублирование элементов конструкций. На особо важных объектах предусмотрены предохранительные устройства, существует аварийное освещение, аварийные источник питания, делается закольцовывание сетей.

Повышение устойчивости метриально-технического снабжения. В производстве осуществляется запас шихтовых материалов на месяц.

Разработка мероприятий по снижению возникновения вторичных поражающих факторов. Производится ремонты зданий с использованием современных огнестойких материалов. Проработка возможных вторичных факторов и пути их устранений. Проведение учебы и разъяснений для предотвращения неправильных действий персонала.

Разработан план локализации аварий в доменном производстве. План локализации аварий содержит пути локализации и действия персонала для слаженного и быстрого принятия мер по устранению возникшей чрезвычайных ситуаций. На все вышеперечисленные ситуации в плане локализации аварий приведены действия персонала всех уровней подчинения в четкой последовательности, а также альтернативные действия в случае невозможности выполнения стандартных действий. Определены места командных пунктов, а также назначены ответственные за организацию и принятие мер по локализации аварии. План локализации аварий содержит необходимые схемы и планы производства.

В ПЛА также предусмотрены действия персонала производства на случай аварийных ситуаций в близлежащих предприятиях с токсичными веществами: выброс аммиака ОАО “Череповецкий АЗОТ”.

 

.5 Меры по охране окружающей среды


На участке отсева мелочи агломерата проблема охраны окружающей среды актуальна. Основной загрязняющий фактор на участке - пыль. В связи с большим выбросом пыли происходит загрязнение воздуха и близлежащей местности.

Для уменьшения воздействия загрязнения пылью окружающей среды на участке принимается ряд мер это: организация отсоса пыли от шихты в наиболее интенсивных местах пылевыделения; по возможности герметизируются места соударения агломерата с поверхностями (выходы течек на конвейера, места пересыпа отсева агломерата); производиться орошение воздуха водой и отвод шлама на переработку.

На участке находится также множество механизмов с использованием масла и смазок. Во избежание попадания масла и смазок на близлежащие территории на участке существуют специальные места складирования горюче смазочных отходов, которые далее отправляются на переработку.

Весь персонал инструктируется на предмет выполнения обязанностей по утилизации отходов и в случае невыполнения их строго наказывается. На всех участках имеются схемы временного складирования отходов.

Заключение

В ВКР предложен вариант модернизации участка технологического оборудования доменной печи.

Целью реконструкции является - уменьшение потерь производства чугуна вследствие простоя участка отсева мелочи агломерата, а так же затрат на обслуживание участка в целом.

В ВКР были проанализированы недостатки технологического оборудования участка отсева мелочи агломерата и возможные варианты ее реконструкции. Предложен вариант модернизации, позволяющий при неплановых или аварийных остановках общего тракта транспортировки мелочи агломерата не останавливать рассев агломерата. Это позволяет предотвращать поступление некондиционного агломерата в доменную печь и не нарушать ход плавки чугуна, а также увеличивает производительность печи путем снижения простоев оборудования и облегчением его обслуживания.

В процессе выполнения ВКР предложен вариант изготовления на автоматизированных станках с ЧПУ опоры подшипника.

Также не маловажное значение имеет техника безопасности при работе с новым оборудованием. В дипломном проекте были рассмотрены наиболее опасные факторы, возникающие в процессе обслуживания участка уборки отсева мелочи агломерата и пути их предотвращения. Рассчитано и спроектировано заземление модернизированного конвейера уборки мелочи агломерата.

Одно из важных значений в реконструкции имеет оценка планируемых результатов, что в свою очередь подтверждает достижение цели Для этого в дипломном проекте проведена оценка результатов модернизации и рассчитаны технико-экономические показатели проекта. Анализируя выполненные расчеты видно, что при выполнении данной реконструкции предприятие получит дополнительную годовую прибыль 9 285 300 руб. и уменьшит затраты на содержание оборудования. Срок окупаемости проекта - 2 месяца.

Оценивая результаты, полученные в процессе выполненияВКР, становится очевидным актуальность выполнения модернизации участка отсева мелочи агломерата шихтоподачи доменной печи.

Список использованных источников

1.   Анурьев, В. И. Справочник конструктора-машиностроителя: в 3 т. / В. И. Анурьев; под ред. И. Н. Жестковой. - 8-е изд., перераб. и доп. - Москва: Машиностроение, 2001. - Т. 1. - 920 с.; т. 2. - 900 с.; т. 3. - 858 с.

2.      Пелих, А. С. Экономика машиностроения / А. С. Пелих, М. М. Баранников; под ред. А. С. Пелиха. - Ростов-на-Дону: Феникс , 2004 . - 412 с.

.        Басовский, Л.Е. Менеджмент: учебное пособие / Л.Е. Басовский. - Москва: Инфра-М, 2000. - 216 с.

.        Вайсон, А.А. Подъемно-транспортные машины: учебник для вузов по специальности "Подъемно-транспортные машины, строительные, дорожные машины и оборудование". - Москва: "Машиностроение", 1989 - 536 с.

.        Вачугов, Д. Основы менеджмента/ Д. Вачугов, Т. Березкина, Н. Кислякова и др.; под ред. Д. Вачугова. - Москва: Высшая школа, 2001. - 367 с.

.        Горбацевич, А. Ф. Курсовое проектирование по технологии машиностроения: учебное пособие для вузов / А. Ф. Горбацевич, В. А. Шкред. - Изд. 5-е, стер. ; Перепеч. с 4-го изд. 1983 г. . - Москва : Альянс , 2007 . - 255, [1] с.

.        Дьяков, В.И. Типовые расчеты по электрооборудованию / В. И. Дьяков. - Москва: Высшая школа, 1990. - 182 с.

.        Егоров, М. Е. Технология машиностроения: учебник для машиностроительных вузов / М. Е. Егоров. - 2-е изд., перераб. и доп. - Москва: Высшая школа, 1976 - 534 с.

.        Курсовое проектирование грузоподъемных машин : учеб. пособие для машиностроит. специальностей вузов / под ред. С. А. Казака. - Москва : Высш. шк., 1989 . - 319 с.

.        Гидропривод и гидропневмоавтоматика станочного оборудования: методические указания к выполнению лабораторных работ / сост. В. Н. Колпаков. - Вологда: ВоГТУ, 2012. - 27 с. - Режим доступа: http://www.library.vstu.edu.ru/biblio/kolpakov/book7/2012_kolpakov_gidro_mu.pdf

.        Краузе, Г.Н. Редукторы: справочное пособие / Г. Н. Краузе. - Москва: Машиностроение, 1972. - 144 с.

.        Найфельд, М.Р. Заземление и другие защитные меры / М. Р. Найфельд. - Москва: Энергия, 1975. - 105 с.

.        Некрасов, С.С. Практикум и курсовое проектирование по технологии сельскохозяйственного машиностроения / С. С. Некрасов. - Москва: Мир, 2004. - 240 с.

.        Нефедов, Н. А. Сборник задач и примеров по резанию металлов и режущему инструменту : учеб. пособие / Н. А. Нефедов, К. А. Осипов . - 5-е изд., перераб. и доп. - Москва : Машиностроение , 1990 . - 445 с.

.        Паспорт ленточного конвейера В-800

.        План локализации аварий в Доменном производстве ПАО "Северсталь".

.        Рапорт по доменному производству за 2011 г.

.        Режимы резания для токарных и сверлильно-фрезерно-расточных станков с числовым программным управлением: справочник / под ред. В.И. Гузеева. - Москва: Машиностроение, 2005 - 368 с.

.        Романов, В.Ф. Расчеты зуборезных инструментов / В. Ф. Романов - Москва: Машиностроение, 1969. - 251 с.

.        Свешников, В. К. Станочные гидроприводы: справочник / В. К. Свешников . - 4-е изд., перераб. и доп. - Москва: Машиностроение , 2004 . - 511 с.

.        Справочник технолога-машиностроителя: в 2 т. Т. 2 / под ред. А. М. Дальского [и др.] . - 5-е изд., испр. - Москва : Машиностроение-1 , 2003 . - 943 с.

.        Целиков, А.И. Машины и агрегаты металлургических цехов: Том 1: Машины и агрегаты доменных цехов. - Москва: Металлургия, 1987. - 440 с.

.        Справочник конструктора-инструментальщика / под общ. ред. В. А. Гречишникова, С. В. Кирсанова . - 2-е изд., перераб. и доп. - Москва : Машиностроение , 2006 . - 541 с.

.        Шейнблит, А.Е. Курсовое проектирование деталей машин / А. Е. Шейнблит. - Калининград: Янтар. Сказ, 2004. - 454 с.

Похожие работы на - Модернизация участка технологического оборудования доменной печи

 

Не нашли материал для своей работы?
Поможем написать уникальную работу
Без плагиата!
Без нейросетей!