Модернизация установки упаковочного шнекового полуавтомата
ВВЕДЕНИЕ
Цех экзометрических шлакообразующих
смесей состоит в группе основных цехов ОАО «Северсталь». Цеху в этом году
исполнится 25 лет. За все это время цех рос, увеличивал свою мощность, а
значит, требовалось увеличение скорости производства и увеличение качества
производства, уменьшение времени простоев по вине оборудования. Цех постоянно
модернизировал своё оборудование. Для увеличения скорости производства
необходимо было пересчитывать редуктора, увеличивать мощность приводов
оборудования. На определённом этапе модернизаций приводов возникли проблемы.
Они заключаются в уменьшении межремонтного периода приводов, что существенно
отобразилось на количестве ремонтов. Также увеличились аварийные простои из-за
поломок привода. Было принято решение о реконструкции оборудования для
производства шлакообразующих смесей.
Упаковочный полуавтомат служит для упаковки шлакообразующих смесей в
мешкотару от 10 до 50 кг
Первоначально упаковка производилась в коробки по три тонны. Материал
ссыпали на прямую из бункера в контейнер. Но при хранении и транспортировке
смесей из-за разной плотности материалов входящих в состав, происходило
расслоение смеси в контейнере. При засыпки смесей в сталь-ковш или при
таркетированиии конвертера происходили прорывы и прогары металла. Это приводило
к остановке машин для непрерывного литья заготовок и ремонту сталь- ковшей, а
остановка приводит к большим убыткам цеха. Чтобы снизить этот вид убытков
необходим новый привод, который будет на более длительный срок времени работать
без поломок и не требовать к себе контроля и смог повысить качество смей.
Упаковочный полуавтомат состоит из нескольких узлов, узла горизонтального шнека
предназначенного для набора смеси в мешкотару, узла рыхлителя для ворошения
материала при остановках оборудования, узла опрокидывателя для сброса
заполненных мешков на конвейер. Установка полуавтомата позволит повысить
качество смесей за счет уменьшения объема материла. Упаковка производится в
клапанные мешки объемом от 10до 50кг.
1. СОСТОЯНИЕ ВОПРОСА И ЗАДАЧИ ПРОЕКТИРОВАНИЯ
.1 Анализ состояния вопроса
Применение шлаковых смесей. Чаще других используют два технологических
приема:
- подачу на струю металла порошка, состоящего из извести,
плавикового шпата и алюминия;
- присадку десульфурирующей смеси, состоящей из извести и
плавикового шпата, на дно ковша перед выпуском металла; при этом одновременно
на дно ковша присаживают все требуемое для раскисления количество ферросилиция.
Температура металла при использовании для десульфурации синтетических смесей в
твердом виде должна быть выше обычной на 10-15 °С.
Так, например, твердые шлаковые смеси (сокращенно ТШС) использовали в
конвертерном цехе комбината "Азовсталь" при производстве труб
большого диаметра для магистральных трубопроводов (сталь должна была содержать
не более 0,010% S). Использовали ТШС следующего состава, %: известь 60;
плавиковый шпат 20; магнезитовый порошок 10; отходы, содержащие алюминий, 10.
При этом ввод в состав ТШС магнезитового порошка (используемого для
торкретирования конвертеров или заправки мартеновских печей) обусловлен тем,
что MgO при содержании его в шлаке до 10-12% снижает температуру ликвидуса
системы CaO-SiO2-Al2O3-MgO и вязкость таких шлаков, повышая коэффициент
активности СаО и коэффициент распределения серы.
Отходы алюминия и алюминиевых сплавов (алюмошлак) представляют собой
механическую смесь, состоящую из 85% металлической части (корольки, всплески,
не расплавившаяся часть алюминиевого лома) и 15% шлаковой части (состоящей в
основном из A12O3). В составе металлической части содержится до 75% А.
Металлический алюминий в составе алюмошлака выполняет двоякую роль: во-первых,
обеспечивает дополнительное раскисление металла, во-вторых, образующийся после
окисления алюминия А12О3, остается в шлаке и является дополнительным
разжижителем шлаковой смеси, находящейся в сталеразливочном ковше.
Обработку стали ТШС проводили в ковше во время выпуска металла из
конвертера. Порядок присадки смеси был следующий. Известь и плавиковый шпат,
предварительно смешанные, подавали в ковш емкостью 350 т по тракту сыпучих.
Магнезитовый порошок и алюмошлак без предварительного смешивания присаживали в
ковш с рабочей площадки конвертерного отделения из переносного бункера
одновременно с известью и плавиковым шпатом. Очередность подачи в ковш
материалов во время выпуска соответствовала существующей: 1-я порция чушкового
алюминия, ТШС, наутлероживатель и ферросплав; 2-я порция чушкового алюминия,
алюминиевый слиток. В результате получали сталь, содержащую 0,009% S.
В тех случаях, когда по условиям производства (например, цех старой
постройки с отсутствием свободных площадей) нет возможности разместить,
оборудование для расплавления синтетического шлака, используют метод обработки
металла на выпуске твердыми синтетическими шлаками. Обычно в состав таких
смесей вводят СаО и CaF2. Расход таких смесей колеблется от 3 до 10 кг/т
(иногда и более). И в этом случае наилучшие результаты по десульфурации и
получению стали с минимальным содержанием неметаллических включений, получают
при одновременном воздействии на металл с десульфурирующей синтетической смеси
и раскислителей. Чаще других используют три технологических приема:
) Подача на струю металла порошка, состоящего из извести, плавикового
шпата и алюминия.
) Присадка десульфурирующей смеси, состоящей из извести и плавикового
плата, на дно ковша перед выпуском металла; при этом одновременно на дно ковша
присаживается все требуемое для раскисления количество ферросилиция.
Температура металла при использовании для десульфурации синтетических
смесей в твердом виде должна быть выше обычной на 10-15 °С. В некоторых случаях
для облегчения условий быстрого образования активного шлака ковш вовремя
покачивают или перемещают вперед и назад. Обработка таким методом стали с
повышенным содержанием углерода позволяет снизить содержание серы (по сравнению
с последней пробой из конвертера) почти вдвое; при обработке менее
углеродистого металла (ванна более раскислена) степень десульфурации
уменьшается.
) Подача порошкообразной смеси извести, плавикового шпата и
кальцинированной соды при помощи бункера-дозатора на поверхность струи металла,
стекающего по выпускном) желобу в ковш. При падении струи и ударе ее о дно ковш
или об уже накопившийся в нем слой жидкого металла проходит перемешивание обеих
фаз и быстрая десульфурация металла. Расход смеси составляет 1,2-1,6%.
В России в последние годы проведен ряд исследований, имеющих целью
определить рациональные и экономичные обоснованные пути использования твердых
шлакообразующих смесей (ТШС).
С целью выбора более эффективных схем внепечного рафинирования ЦНИИЧМ
совместно с металлургическим комбинатом "Азовсталь" выполнен
технико-экономический анализ затрат на производство трубных сталей при
частичной или полной замене синтетического шлака ТШС, которая содержала известь
и плавиковый шпат фракции 50-20 мкм в соотношении 4: 1. Технологическую
присадку этой смеси осуществляли с использованием средств механизированной
подачи в сталеразливочный ковш, в начале выпуска плавки из конвертера
непосредственно на струю сливаемого металла. Удельный расход ТШС составлял 5-6
кг/т стали в случае частичной замены синтетического шлака. При полной замене
синтетического шлака ТШС удельный расход увеличивался, до 12-14 кг/т стали.
Анализу подвергали технико-экономические показатели трех вариантов внепечного
рафинирования трубных сталей группы ГФБ (09Г2ФБ, 10Г2ФБУ, 10Г2ФБ). В первом
варианте десульфурация металла проводилась известково-глиноземистым шлаком в
350-т сталеразливочном ковше с кислой набивной или шамотной кирпичной
футеровкой. Во втором варианте ее осуществляли в 350-т сталеразливочном ковше с
кислой набивкой или шамотной кирпичной футеровкой с уменьшенным (на 15-20%)
удельным расходом известково-глиноземистого шлака и добавками ТШС.
Благодаря производству трубного металла в конвертерном Цехе с использованием
ТШС и ковшей с футеровкой из основного огнеупорного материала нижний предел по
содержанию серы в трубной стали дополнительно уменьшился до 0,004%, повысилась
усвояемость алюминия, марганца и кремния, в жидкой стали в процессе
корректировки ее химического состава, а стойкость футеровки ковшей увеличилась
более чем в 2,8 раза. Наряду с указанными преимуществами необходимо обратить
внимание на уровень изменения тепловых потерь и способы их компенсации.
Уменьшение количества синтетического шлака на плавку и обвалку в ковш ТШС
(второй вариант) увеличивают потери 1епла на нагрев и расплавление ТШС.
Отмечено также сниже-11116 температуры металла в ковше с 10 (в первом и втором)
*) 5°С (в третьем варианте).
В условиях кислородно-конвертерного цеха комбината повышенные потери
тепла компенсируются путем подогрева огнеупорной футеровки сталеразливочного
ковша до 800 °С. Для этого стенды в ковшовом пролете были оборудованы
высокотемпературными горелками, а сталеразливочные ковши снабжены специальными
крышками для утепления. Использование указанных мероприятий снижает до минимума
потери тепла по третьему варианту и повышает эффективность внепечного
рафинирования стали.
В мартеновском цехе ОАО "Азовсталь" усовершенствовали
технологию производства рельсовой стали путем обработки ее в ковше шлаком ЭШП с
добавкой доломитизированной извести при одновременной продувке металла аргоном.
Такая внепечная обработка позволила снизить среднее содержание серы с 0,036 до
0,026%, стабилизировать температуру металла, повысить чистоту металла по
неметаллическим включениям и увеличить выход рельсов I сорта.
На РусМЗ проведены плавки трубной стали с десульфурацией металла в
сталеразливочном ковше на выпуске смесью извести и отходов производства
вторичного алюминия, содержащих 65-70%. А12О3; 2-4% SiO2; 2,8-3,2% СаО. Смеси в
ковш подавали одновременно с раскислителями при заполнении его металлом на 1/8
высоты в течение 2-3 мин. Применение твердой шлакообразующей смеси значительно
увеличивает степень десульфурации металла; при этом снижается угар кремния и
марганца в ковше соответственно на 9,9 и 4,7%, расход алюминия в слитках
уменьшается. Новая технология позволила увеличить выход труб первого сорта
В России над проблемой разработки эффективной технологи" обработки
стали ТШС, длительное время работает донецкий институт. Разрабатывая технологию
применения условий мартеновского цеха металлургического комбината им.
Дзержинского установили, что условия десульфурации изменяются в зависимости от
продолжительности (интенсивности) выпуска плавки. Для улучшения условий
шлакообразования и физико-химических свойств рафинировочного шлака в состав
обычной смеси (60-65% извести и 35-40% плавикового шпата) ввели отсевы
алюминиевой стружки (отвальный продукт), содержащей 15-20% А12О3; 0,5-2,0% СаО;
10-12% SiO2; Добавка 10% отсевов алюминиевой стружки способствует снижению
вязкости шлака в интервале 1550-1600 °С на 25%, а также плавкости смеси на 60
°С, что свидетельствует об улучшении тепловых условий формирования шлака.
Провели оценку продолжительности прогрева кусочков смеси до температуры
металла с учетом плавления легкоплавких (Составляющих. Расчеты показали, что
при гидродинамических условиях наполнения ковша до 1/3 его высоты период
полного прогрева тугоплавких кусочков смеси размером до 20 мм не превышает 50
С, что составляет не более 5-10% общей продолжительности выпуска металла из
240-т мартеновской печи. В связи с высокими значениями коэффициентов
турбулентного массообмена в этот период наполнения ковша существует возможность
получения жидкой шлаковой фазы при наличии тугоплавких кусочков извести
размером до 20 мм.
Выбор оптимальных значений гидродинамических параметров расхода металла в
струе при его сливе в ковш и режима присадки смеси в рафинируемый расплав
проводили по Результатам промышленных экспериментов и теоретических Расчетов.
Момент ввода смеси в ковш был определен однозначно, так как из-за необходимости
проведения в ковше окончательного раскисления стали подача смеси может быть
начата спустя 2-2,5 мин после начала выпуска. Скорость подачи смеси на струю
металла была задана из расчета обеспечения равномерного прогрева кусочков смеси
до температуры расплава за период времени, ограниченный наполнением ковша от
1/4 до 1/3 его высоты. Результаты тепло-Вь1х расчетов показали, что этого времени
достаточно для одного прогрева кусочков смеси размером до 20 мм.
В результате обработки массива плавок, на которых смесь присаживали
рассредоточено на струю металла по разработанному режиму, определили
оптимальный расход металла в струе, при котором достигаются наиболее высокие
значения степени десульфурации стали в 240-т ковше
Другим вариантом обработки металла в ковше шлаковыми смесями является
технология использования экзотермических самоплавких шлакообразующих смесей
(СШС), которые содержат шлакообразующие (известь, А12О3, плавиковый шпат),
окислитель (натриевую селитру) и "топливо" (алюминиевый порошок).
Работы, показали, что во время горения и плавления экзотермической смеси ковш
необходимо накрывать зонтом с отводом дыма, улавливания пыли и ядовитых оксидов
азота. В настоящее время металлургический комбинат им. Ильича (МКИ) и
разработали и внедрили в опытно-промышленном режиме технологию рафинирования
конвертерной стали 09Г2С жидкими синтетическими шлаками, получаемыми из СШС.
Установка для получения шлака малогабаритна и занимает небольшую площадь в
разливочном пролете, а газоочистка вынесена на территорию цеха.
Производство экзотермической СШС организовано в специализированном
отделении, характеризуется высокой степенью механизации. Условия работы
соответствуют требованиям техники безопасности. При изготовлении смеси
используют отходы производства (отсевы алюминиевой стружки, некондиционную
известь). Для транспортировки исходных материалов и готовой смеси служит
автотранспорт со специализированными саморазгружающимися контейнерами.
Предусмотрена также возможность получения рафинировочного шлака непосредственно
в сталеразливочном ковше, что значительно экономичнее.
В обычных условиях в производимой на МКИ стали 09Г2С содержится в среднем
0,027% S. После обработки СШС содержание серы в готовой стали составляет 0,023%
при расходе СШС 18; 4кг/1 стали и 0,013% при расходе СШС 32,5 кг/т стали.
Обработка металла в ковше (ТШС) имеет два основных недостатка: малая (по
современным требованиям к качеству металла) степень десульфурации и
нестабильность получаемых при обработке результатов (в случае, если используют
только один этот метод). Значительным достоинством метода является его простота
и доступность, а также возможность эффективно использовать отходы различных
производств. Так, институтом УНИИМ совместно с КМК разработана и внедрена
технология обработки рельсовой мартеновской стали ТШС, состоящей из извести и
отходов производства алюминия, содержащих до 70% глинозема и некоторое
количество плавней (К2О + Na2O). После сушки и просеивания (ячейки 50x50 мм)
ТШС загружают в контейнеры и присаживают в ковш сразу после введения
раскислителей. В результате в ковше формируется достаточно подвижный шлак,
обладающий высокой десульфурирующей способностью и адгезионной способностью по
отношению к включениям. В результате среднее содержание серы в готовом металле
снизилось с 0,026 до 0,021%, увеличился выход 25-м рельсов 1-го сор-та,
уменьшился перевод рельсов во II сорт по неметаллическим включениям и т.д.
По мере развития таких способов внепечной обработки стали, как нагрев
металла в процессе его внепечной обработки на установке ковш - печь при
одновременной продувке инертными газами ситуация изменяется. Метод расплавления
в отдельном агрегате синтетического шлака для последующего слива этого шлака в
сталеразливочный ковш постепенно уступает место методу наведения шлака
требуемого состава в агрегате внепечной обработки при одновременном
перемешивании и металла и шлака (инертными газами, в вакуумной камере,
электромагнитным и др.), при этих условиях метод использования ТШС получает
самое широкое развитие.
Наиболее эффективный современный метод ускорения процесса выгорания
углерода. Его преимущества по сравнению с присадками руды.
.2 Цель и задачи разработки
В настоящее время в условиях цеха ЭШОС конверторного производства ОАО
«Северсталь» применяется метод фасовки шлакообразующих смесей, в контейнеры
объемом 3 метра кубических.
Однако в процессе производства и эксплуатации возникает ряд недостатков:
невозможность фасовать необходимое количество смеси;
неудобство использования в условиях цеха;
сложность транспортировки и хранения;
в процессе хранения и транспортировки из-за разной плотности и
массы материалов в смеси, происходит расслоение, что приводит к потере смесью
её свойств;
контейнера изготовлены из стали, что в холодное время года
приводит к образования конденсата на стенках контейнеров. В состав некоторых
смесей входит цемент, при наборе влаги цемент застывает и смеси теряют свои
свойства, также происходит потеря материала;
потеря свойств смеси привод к прогару сталь ковшей, прорыву
расплавленного метала через кристаллизатор МНЛЗ, а также к значительным
затратам на ремонт, потере прибыли из-за простоя оборудования;
Поэтому целью дипломного проекта является установка упаковочного
полуавтомата, которая позволит использовать для фасовки тару меньшего объема
(клапанные мешки до 25кг.). т.к.:
удобное использование;
простота набора смеси;
возможность точного набора необходимого количества смеси;
меньшее расслоение смеси внутри тары;
защита от влаги;
простота применения;
меньшие потери материала;
лучшее качество смеси;
Исходя из поставленной цели необходимо решить следующие задачи:
рассчитать и спроектировать привод конвейера для транспортировки
смеси;
рассчитать и спроектировать пневмопривод;
рассчитать и спроектировать цепную передачу привода рыхлителя;
разработать общий вид полуавтомата;
рассчитать экономическую эффективность.
2. КОНСТРУКТОРСКАЯ ЧАСТЬ
.1 Описание работы упаковочного шнекового полуавтомата
Полуавтомат предназначен для набора смесей в клапанные мешки. Материал из
бункера ссыпается на узел горизонтального шнека, где смесь перетряхивается и
ссыпается на шнек, под давлением создаваемым шнеком материал ссыпается в мешок.
После набора необходимого количества смеси, срабатывает датчик
тензометрический, который посылает сигнал на блок управления, сигнал из блока
управления поступает на пневмораспределитель, пневмоцелиндр изменяет угол
наклона лотка и мешок под действием силы тяжести перемещается на конвейер.
.2 Разработка пневматического дозатора
полуавтомат упаковочный шлаковый
Исходные данные: разработать пневмопривод дозатора упаковочного шнекового
автомата со следующими исходными данными:
- ход поршня пневмоцилиндра Н = 0,3 м;
- время рабочего хода t = 0,6 с;
- рабочее давление воздуха Р = 0,63 МПа;
- требуемое усилие на штоке G = 5000 Н.
.2.1Расчёт и выбор исполнительного пневмодвигателя
Основными параметрами ПЦ являются диаметр штока, ход поршня и рабочее
давление.
Диаметр поршня пневмоцилиндра:
, мм (2.1)
где
Rmax - максимальное осевое усилие, Н;- давления в пневмосистеме, МПа;-
эмпирический коэффициент, приближённо учитывающий
потери
давления, К=1,5.
,мм,
(2.2)
По полученному значению из справочника выбираем стандартный пневмоцилиндр
с односторонним штоком и ближайшим большим стандартным диаметром поршня:
-125х32х0300 УХЛ4 ГОСТ 15608-81
- без торможения;
- присоединение на проушине;
- наружная резьба на штоке;
- коническая резьба присоединения трубопроводов;
- диаметр поршня, мм;
- диаметр штока, мм;
- ход поршня, мм.
Определим площадь поршневой и штоковой полости:
, м2, (2.2)
, м2,
(2.3)
где Dст - диаметр поршня выбранного
пневмоцилиндра, м;
dст - диаметр штока выбранного
пневмоцилиндра, м.
м,2
м.2
2.2.2Составление
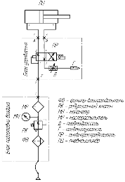
принципиальной схемы привода
Схема
пневмопривода показана на рисунке 2.1. Фильтр-влагоотделитель ФВ фильтрует
воздух и осушает его. Редукционный клапан РК поддерживает постоянное давление в
системе. Контроль за давлением осуществляется с помощью манометра МН.
Маслораспылитель МР насыщает воздух маслом для смазки движущихся частей
привода. Пневмораспределитель ПР служит для перенаправления потока воздуха и
тем самым реверсирует движение поршня пневмоцилиндра ПЦ. Дроссель Д регулируют
скорость хода поршня (согласно ТЗ регулирование скорости на выходе). Глушитель
Г служат для снижения шума выходящего воздуха.
Для
описания схемы в символьной форме рассмотрим полностью цикл работы установки.
Быстрый
подвод:
пневмосеть
=> ФВ - РК - МР - 1(ПР)2 - ПП(ПЦ)/(ПЦ)ШП - 3(ПР)4 - Д - Г
Быстрый
отвод:
пневмосеть
=> ФВ - РК - МР - 1(ПР)3 -ШП(ПЦ)/(ПЦ)ПП - 2(ПР)4 - Д - Г
Рисунок
2.1 - Схема пневмопривода
2.2.3
Расчет и выбор компрессорной установки
Найдем
расход воздуха в обе полости, пневмоцилиндра по формулам:
, м3/с,
(2.4)
, м3/с,
(2.5)
где
F1ст, F2ст - площадь поршневой и штоковой области стандартного
пневмоцилиндра, м2;
V - максимальная
скорость перемещения штока, м/с.
Скорость
перемещения штока:
, м/с, (2.6)
где
S - ход штока, м;
t - требуемое
время перемещения, с.
м/с.
Площадь
поршневой области пневмоцилиндра:
м2,
отсюда расход:
м3/с
(0,368 м3/мин).
Площадь
штоковой области пневмоцилиндра:
м2,
отсюда расход:
м3/с
(0,344 м3/мин).
Выбор компрессорной установки. Расчетный расход воздуха для установки:
, м3/с,
(2.7)
где Qmax - максимальный расход воздуха, м3/с;
Кп - коэффициент, учитывающий потери от неплотностей в
соединениях, арматуре, Кп = 1,2;
Ки - коэффициент, учитывающий потери в связи с износом
пневматического устройства, Ки = 1,2;
Км - коэффициент, учитывающий максимальный рсход воздуха,
периодически превышающий среднечасовой, Км = 1,2.
м3/с
(0,368 м3/мин)
м3/с
(0,636 м3/мин)
Выбираю
по справочнику [6] стационарную компрессорную станцию типа КСЭ-3М со следующими
техническими характеристиками:
- производительность - 3 м3/мин;
- рабочее давление - 7 ати (0,7 МПа);
- частота вращения вала - 730 мин-1;
- мощность электродвигателя - 20 кВт;
- частота вращения электродвигателя - 730 мин-1;
- габариты, мм
длина - 1970 мм, ширина - 855 мм, высота - 1285 мм,вес - 1110 кг.
.2.4 Расчёт и выбор пневмоаппаратуры и трубопроводов
Проверка пневмоцилиндра на максимальный расход воздуха. Проверим
пропускную способность штуцеров ПЦ:
, м3/ч,
(2.8)
где f - минимальное сечение штуцера пневмоцилиндра мм2;
Р - давление сжатого воздуха в магистрали, кг/см2;
Vуд - удельный объём сжатого воздуха, м3/кг
gt - удельный вес воздуха при рабочих условиях, кг/м3.
f =p · dу2
/ 4 = 3,14 · 102 / 4 = 78,5 мм2 (7,85 · 10-5 м2).
Удельный объем сжатого воздуха:
, м3/кг, (2.9)
где R - универсальная газовая, R= 287 Н·м /кг·0К
Т - рабочая температура по Кельвину.
Т = 20° С + 273 = 293°К
Vуд =287 · 293 / 0,7 · 106 =
0,12 м3/кг;
Удельный вес воздуха при рабочих условиях при T =20° C и давлении Р = 7 кг/см2
(0,7 МПа):
gt20 = 8,17 кг/м3, [6, с.33,
табл.15];
м3/час.
(0,87
м3/мин или 0,0145 м3/с)
Т.к.
Qп/ц > Qmax (0,87 > 0,368) м3/мин выбранный
пневмоцилиндр подходит.
Расчёт воздухопровода. Внутренний диаметр воздухопровода:
, мм,
(2.10)
где ρ0 - плотность воздуха при нормальном
атмосферном давлении и давлении в трубопроводе ρ0 = 1,17 кг/м3,
ρ = 8,17 кг/м3;рек
- скорость воздуха в воздухопроводе, Vрек = 8…12 м/с.
мм.
В
качестве трубопроводов пневмосистемы выбираем ближайший по внутреннему диаметру
рукав с
м (16 мм) типа:
Б-20
Ф16 ГОСТ 8318-57
Фактическая
скорость движения воздуха в трубопроводе:
, м/с,
(2.11)
где f ст- площадь воздухопровода , м2.
Площадь воздухопровода:
м.2
Фактическая
скорость движения воздуха в линии нагнетания:
, м/с.
Фактическая
скорость движения воздуха в линии сброса:
, м/с.
.2.5 Выбор пневмоаппаратуры
По
справочнику [32] выбираем пневмоаппаратуру. Фильтр-влагоотделитель Типа 22-10
80 УХЛ4. ГОСТ 17437-81
- условный проход, dу=10 мм;
- номинальное давление воздуха , Рном = 1,0 МПа;
- отвод конденсата - ручной;
- степень влагоотделения - 90%;
- абсолютная тонкость фильтрации - 80 мкм;
- потеря давления при макс. расходе воздуха - 0,025 МПа;
- утечки воздуха - 10 см3/мин;
- пропускная способность, Кn = 2,2 м3/ч;
- вместимость резервуара для конденсата - 0,25 л.
Клапан редукционный Типа 122-16 УХЛ4. ГОСТ 18468-79.
- условный проход, dу=16 мм;
- номинальное давление воздуха , Рном=1,0 МПа;
- номинальный расход воздуха при Р=0,63 МПа - 1,6 м3/мин;
- утечка воздуха, maх - 6,5 м3/мин;
- падение давления на выходе - 0,06 МПа;
- пределы настройки - (0,05 … 0,9) МПа.
Манометр 4-го класса точности по ГОСТ 8625-77- поставляется вместе с
редукционным клапаном.
Маслораспылитель типа 121-16-УХЛ4. ГОСТ 25531-82.
- условный проход, dу=16 мм;
- номинальное давление воздуха , Рном = 1,0 МПа;
- расход воздуха при , Р = 0,63 МПа:
минимальный - 0,25 м3/ мин;
максимальный - 1,25 м3/ мин;
- потери давления при макс. расходе воздуха - 0,025 МПа;
- подача масла, капли в минуту - до 2;
- максимальная вместимость резервуара для масла - 0,2 л;
- утечка воздуха, maх - 5 см3/мин.
Пневмораспределитель типа В64-24А-05 УХЛ4 ТУ2-053-1633-83.
- В6 - тип пневмораспределителя;
- 4 - управление электропневматическое;
- 2 - способ управления односторонний;
- 4А - условный проход, dу=16 мм;
- 05 - монтаж стыковой для пневмораспределителей с
электропневматическим управлением;
- УХЛ4 - климатическое исполнение;
- номинальное давление воздуха, Рном = 1,0 МПа;
- минимальное давление питания - 0,25 МПа;
- минимальное давление управления - 0,16 МПа;
- пропускная способность, Кn = 2,8 м3/ч;
- утечка воздуха - 500 см3/мин;
Пневмодроссель с обратным клапаном типа В77-14 УХЛ4.
- условный проход, dу=16 мм;
- присоединительная резьба К1/2” ГОСТ 6111-52;
- номинальное давление воздуха, Рном = 1,0 МПа;
- пропускная способность, Кn = 2,2 м3/ч.
Пневмоглушитель типа 2113-16 УХЛ4 ГОСТ 25144-82.
- условный проход, dу=16 мм;
- присоединительная резьба К1/2” ГОСТ 6111-52;
- номинальное давление воздуха, Рном = 1,0 МПа;
- пропускная способность, Кn = 4 м3/ч.
.2.6 Определение потерь давления в трубопроводах и аппаратуре
Потери по давлению определим для основного цикала - быстрый подвод.
Потери давления в трубопроводе по длине:
Для определения потерь давления в трубопроводе воспользуемся номограммой
представленной в [8].
DRl=
Δpl · l, МПа, (2.12)
где l - длинна рукава, м;
Δpl - потери давления на 1 м резинового
рукава, Мпа (по номограмме).
Найдем потери давления на участках в линии нагнетания.
При следующих параметрах для резинотканевых рукавов:
расход сжатого воздуха Qп/ц = 0,87 м3/мин
подаваемое давление p = 0,63 МПа
диаметр трубопровода dвн = 16 мм
потери давления на 1 м резинового рукава составят Δpl = 0,0005 МПа.
Участок 1-2: d = 16 мм, l = 3
м
DR l
= 0,0005 · 3 = 0,0015 Мпа
Участок 3-4: d = 16 мм, l = 3
м
DR l
= 0,0005 · 3 = 0,0015 Мпа
Найдем потери давления на участках в линии сброса.
Расход сжатого воздуха Qп/ц = 0,00573 м3/мин, потери
давления на 1 м резинового рукава составят Δpl = 0,0001 МПа.
Участок 5-6: d = 16 мм, l =
3,5 м
DR l
= 0,0001 · 3,5 = 0,00035 Мпа.
Общие потери (БП) в линии нагнетании воздуха:
∑DR l = 0,0015 + 0,0015 = 0,003 МПа.
Общие потери (БП) в линии сброса воздуха:
∑DR l = 0,00035 МПа.
Местные потери давления:
DRм= 51 · (Sx)· V2 · g · 10-7, Па, (2.13)
где Sx - сумма
коэффициентов местных сопротивлений.
Линия нагнетания воздуха:
x1 -
коэффициент местного сопротивления сужения потока с Ф16 мм (рукав) до Ф10 мм
(фильтр влагоотделитель ФВ):
xсуж.= 0,7 · (1- d2 / D2) - 0,2 · (1- d2 / D2)3, (2.14)
где x1= 0,7 · (1- 0,0102 / 0,0162)
- 0,2 · (1- 0,0102 / 0,01602)3 = 0,38;
x2 -
коэффициент местного сопротивления расширения потока с Ф10 мм (фильтр
влагоотделитель ФВ) до Ф16 мм (редукционный клапан):
xрасш= (1- d2 / D2)2, (2.15)
x2= (1- 0,0102 / 0,0162)2
= 0,37;
где x3 - коэффициент местного сопротивления
колено 90 град, x =
1,1.
Итого на два колена x3 = 2,2.
Линия сброса воздуха.
x4 -
коэффициент местного сопротивления колено 90 град, x = 1,1.
Итого на два колена x4 = 2,2.
x5 -
коэффициент местного сопротивления - выход в атмосферу из трубы через сетку
(глушитель), x = 1,6.
x5 = 1,6.
Общие потери.
Суммарные потери (БП) в линии нагнетании воздуха:
Sx = 0,38 + 0,37 + 2,2 = 2,95;
SDRм=
51 · 2,95 · 10,32 · 8,17 · 10-7 = 0,013 кгс/см2
(0,0013 МПа).
Суммарные потери (БП) в линии сброса воздуха:
Sx = 3,8;
SDRм=
51 · 3,8 · 4,082 · 8,17 · 10-7 = 0,0026 кгс/см2
(0,0003 МПа).
Потери давления в аппаратуре:
(2.16)
где
- коэффициент потери давления в аппарате;
Влагоотделитель
[6]:
кгс/см2
(0,014 МПа).
Клапан
редукционный
[6]:
кгс/см2
(0,027 МПа).
Маслораспылитель:
МПа - согласно паспортных данных.
Дроссель
с обратным клапаном
[6]:
линия
сброса
,
кгс/см2 (0,009 МПа).
Пневмораспределитель
; [6]:
линия
нагнетания
, кгс/см2
(0,0235 МПа).
линия
сброса
,
кгс/см2 (0,0036 МПа).
Суммарные
потери (БП) в линии нагнетании воздуха:
∑DRА =DRв +
DRк +DRм +
DRр =
0,014 + 0,027 + 0,025 + 0,0235 = 0,0895 Мпа.
Суммарные
потери (БП) в линии сброса воздуха:
∑DRА =
DRр +
DRд =
0,0036 + 0,009 = 0,0126 Мпа.
Общие
потери давления
∑DR = ∑DRА + ∑DRl + ∑DRм
(2.17)
Общие потери (БП) в линии нагнетании воздуха:
∑DR = 0,0895 + 0,0030 + 0,0013 = 0,0938 Мпа.
Общие потери (БП) в линии сброса воздуха:
∑DR = 0,0126 + 0,00035 + 0,0003 = 0,0136 Мпа.
.2.7 Проверка пневмоцилиндра по действительному усилию
При Р = 0,63 МПа с учётом потерь давления, действительное тянущее усилие
на штоке пневмоцилиндра:
Fмин.ц.= p · Dст2 · Р¢ · h / 4, (2.18)
где Р¢ -
давление воздуха в рабочих полостях пневмоцилиндра
с учетом потерь, МПа;
h - кпд пневмоцилиндра.
Р¢ = Р - DR = 0,63 - 0,0938 = 0,5362 Мпа;
КПД пневмоцилиндра h = 0,88.
Rмин.ц.= 3,14 · 0,1252 · 0,5362 · 106 · 0,88 /
4 = 5783,3 Н.
Rмин.ц > Rmax
,3 > 5000 Н
Действительного усилия пневмоцилиндра достаточно для прижима ролика.
.2.8 Требуемая пропускная способность пневмоаппаратуры
, м3/ч,
(2.19)
где
F - площадь штоковой области, м3;
S -
ход поршня, м;
Р - давление в магистральном трубопроводе, МПа;
DР - потери давления в напорной линии пневмоцилиндра, МПа;
ts - время перемещения поршня, с.
S = 0,3.
Р =
0,63 Мпа.
DР = 0,0938 Мпа.s = 0,6 c.
, м3/ч.
Минимальная
пропускная способность у пневмодросселя КvД=2,2 м3/ч
Кn < КnД
2,19
< 2,2
Выбранная
пневмоаппаратура удовлетворяет требуемой пропускной способности.
.3
Разработка привода рыхлителя
.3.1 Расчет цепной передачи
Наиболее широко применяют роликовые приводные цепи по ГОСТ 13568-97
(рисунок 2.2а), которые образуются из последовательно чередующихся внутренних и
наружных звеньев. Внутренние звенья состоят из внутренних пластин 1 и
запрессованных в их отверстия гладких втулок 2, на которых свободно вращаются
ролики 3. Наружные звенья состоят из наружных пластин 4 и запрессованных в их
отверстия валиков 5. Многорядные цепи с числом рядов от двух до восьми собирают
из деталей с такими же размерами, что и однорядные, кроме валиков имеющих
соответственно большую длину. Нагрузочная способность цепей почти прямо
пропорциональна числу рядов, что позволяет в передачах с многорядными цепями
уменьшить шаг, радиальные габариты звездочек и динамические нагрузки.
При работе цепных передач в условиях, вызывающих возрастание трения в
шарнирах (запыленные и химически активные среды) используют открыто-шарнирные
пластинчатые цепи (рисунок 2.2б). Будучи открытым, шарнир такой
цепи самоочищается от попадающих в него абразивных частиц. Наружные звенья
такой цепи не отличаются от аналогичных звеньев роликовой цепи. Внутренние
звенья образуются из пластин 2, имеющих отверстия в форме восьмерки, и фасонных
валиков 3, заменяющих втулку. Валик 4 свободно проходит через отверстие в
пластине 2 и взаимодействует с фасонным валиком 3. Замена тонкостенных втулки и
ролика не только удешевляет цепь, но и резко повышает сопротивление усталости
деталей цепи. Благодаря этому открыто-шарнирные цепи оказались значительно
долговечнее роликовых при работе в тяжело-нагруженных передачах. Зубчатые цепи
к настоящему времени вытеснены более дешевыми и технологичными прецизионными
роликовыми цепями, которые не уступают зубчатым по кинематической точности и
шумовым характеристикам. Зубчатые цепи используют преимущественно для замены
разрушившихся цепей в старом оборудовании и из-за ограниченности применения
здесь не рассматриваются.
Рассмотрим далее роликовые цепи. Основными геометрическими
характеристиками цепи являются шаг P - расстояние между осями соседних
шарниров и ширина b;
основной прочностной характеристикой.
а)
б)
Рисунок 2.2 - Приводные цепи: а) роликовая; б)
открыто-шарнирная пластинчатая
Основные исходные данные для расчета цепной
передачи должны быть заданы или приняты по условиям работы передачи.
1. Крутящий момент T1 на
валу ведущей звездочки, Нм.
2. Частота вращения n1 вала ведущей звездочки,
мин-1.
3. Передаточное число u цепной передачи, umax = 7 (в объектах курсовых проектов по дисциплине «Детали
машин» передаточное число цепной передачи не следует назначать более 2...2,5).
4. Срок службы передачи Lh, час.
5. Тип цепи.
6. Расположение цепи в пространстве (угол наклона
цепи к горизонту).
. Характер нагрузки.
. Возможные кратковременные перегрузки в процессе пуска или
работы.
. Способ смазки передачи в зависимости от скорости цепи.
Рисунок 2.3 - Схема цепной передачи
Размерность всех величин дана в международной системе единиц СИ. Величины
со знаком (штрих) - предварительные, они подлежат в дальнейшем уточнению.
2.3.2 Исходные данные
Рассчитать передачу роликовой цепью от тихоходного вала редуктора к
приводному валу роликового конвейера.
50 Нм -
крутящий момент на валу ведущей звездочки, расположенной на тихоходном валу
редуктора;
58 мин-1
- частота вращения ведущей звездочки;
привод
работает в одну смену;
ожидаемый
угол наклона передачи
к
горизонту 270°;
положение
валов передачи не регулируется;
пусковая
нагрузка до 150% номинальной нагрузки;
желательно,
чтобы делительный диаметр ведомой звездочки
не
превышал 250 мм.
.3.3
Проектировочный расчет цепной передачи
Назначим
однорядную роликовую цепь типа ПР по ГОСТ 13568-97.Выбор предварительного
значения шага однорядной цепи:
(2.20)
Ближайшее
значение шага и соответствующей ему площади проекции шарнира для цепи
ПР-19,05-3180 [30]:
=19,05 мм; А=105 мм2.
Определение
числа зубьев малой (ведущей) и большой (ведомой) звездочек
(2.21)
.
(2.22)
Округляем
до ближайшего целого числа
.
Фактическое
передаточное число:
(2.23)
Отклонение
, что допустимо.
Определение
числа зубьев
из условия, что делительный диаметр ведомой звездочки
не должен превышать 250 мм,
(2.24)
(2.24)
Следовательно,
принятое значение
и удовлетворяет этому условию.
Определение коэффициента эксплуатации [30]:
(2.25)
где
- небольшие колебания нагрузки;
-
принимаем оптимальное межосевое расстояние в пределах (30…50)P;
- угол
наклона передачи
45°;
-
передача с нерегулируемым натяжением цепи;
-
смазывание передачи нерегулярное: цепь будут смазывать при помощи кисти;
- работа
односменная.
Определение допускаемого давления в шарнире цепи [30].
Путем
линейной интерполяции для заданной частоты вращения
мин-1 и выбранного шага
мм определяем
МПа.
Определение приближенного значения окружной силы на звездочках
(2.26)
Определение условного давления в шарнирах цепи
(2.27)
Следовательно,
принятая однорядная цепь ПР-19,05-3180 подходит. Дополнительные характеристики
цепи [30]:
- разрушающая нагрузка, кН;
- масса одного метра цепи, кг;
- расстояние между внутренними пластинами цепи, мм;
- диаметр ролика, мм;
- ширина
внутренней пластины, мм;
- расстояние между рядами цепи, мм.
2.3.4
Кинематический и геометрический расчет цепной передачи
Определение
частоты вращения ведомой звездочки:
(2.28)
Наибольшая
рекомендуемая частота вращения малой звездочки для выбранной цепи
мин-1 [30], что больше
мин-1.
Определение
средней окружной скорости цепи:
(2.29)
Определение межосевого расстояния (из оптимального диапазона):
(2.30)
Определение потребного числа звеньев (длины цепи в шагах):
(2.31)
округляем
до четного числа
114.
Определяем фактическое межосевое расстояние:
(2.32)
Полученное
значение
для передач с нерегулируемым межосевым расстоянием
уменьшаем на величину:
мм.
Приняв,
примерно,
мм, получим окончательное значение межосевого
расстояния
мм.
Определение
диаметров делительных окружностей звездочек:
(2.33)
(2.34)
Определение диаметров окружностей вершин звездочек:
(2.35)
(2.36)
Диаметры
окружностей впадин ведущей
и ведомой
звездочек и радиус впадин
зубьев звездочек:
(2.37)
(2.38)
мм.
Диаметры ободов (проточек) звездочек мм,
(2.39)
(2.40)
Определение минимального межосевого расстояния:
(2.41)
Определение
ширины зуба
и ширины венца
звездочки:
(2.42)
мм для однорядной цепи.
2.3.5 Расчет цепи по запасу прочности
Определение действительной окружной силы:
(2.43)
Определение натяжения цепи от центробежных сил:
(2.44)
Определение натяжения от действия сил тяжести за счет провисания цепи:
(2.45)
Определение коэффициента запаса прочности цепи:
(2.46)
где
определяется линейной интерполяцией по [30].
Определение силы, действующей на валы цепной передачи:
(2.47)
где
- при спокойной нагрузке и угле наклона
.
2.3.6 Расчет цепи на долговечность по износостойкости шарниров
Определение срока службы цепи при асинфазном вращении звездочек:
(2.48)
,
- смазка
передачи периодическая [30]
.3.7 Ограничение числа ударов цепи
Определение числа ударов цепи
(2.49)
(2.50)
.3.8 Оценка критической частоты вращения
Определение критической частоты вращения вала ведущей звездочки:
(2.51)
Следовательно, резонанс отсутствует.
.4 Разработка привода ленточного конвейера
Ведущая роль машиностроения среди других отраслей народного хозяйства
определяется тем, что основные производственные процессы во всех отраслях
промышленности, строительства и сельского хозяйства выполняют машины.
Технический уровень отраслей народного хозяйства в значительной мере
определяется уровнем машиностроения.
При разработке конструкций механизмов и машин задача состоит в создании
узлов, отвечающих потребностям промышленности и обладающих высокими
технико-экономическими и эксплуатационными показателями.
Целью данного курсового проекта является модернизация упаковочного
полуавтомата для фасовки шлакообразующих смесей со, а именно разработка привода
конвейера для передачи мешкотары. Работая над проектом, необходимо решить
следующие основные задачи:
- разработать компоновку привода;
- провести кинематический расчет и на его основании выбрать
электродвигатель и стандартный червячный редуктор;
рассчитать цепную передачу.
Итогом графической части проекта является разработка общего вида привода.
.4.1 Описание конструкции привода
конвейера для передачи мешкотары
Конвейер предназначен для передачи мешкотары от упаковочного полуавтомата
к контейнеру для транспортировки в цех выплавки конверторного производства.
Движением главного привода является вращение приводного барабана
конвейера. Привод барабана состоит из электродвигателя соединенного муфтой с
червячным редуктором и цепной передачи.
В целях разработки привода конвейера планируется рассчитать мощности на
приводном валу. Выбрав новый электродвигатель и стандартный редуктор.
2.4.2 Спроектировать привод ленточного конвейера, согласно исходных
данных:
Ft = 5,4 кН - тяговое усилие.
V =
0,65 м/с - скорость ленты.
DБ
= 355 мм - диаметр
барабана.
Допускаемое
отклонение скорости ленты
[21. стр. 20]
Срок
службы привода принимаем 7 лет.
Назначаем
условия эксплуатации агрегата:
- количество рабочих смен - 3;
- продолжительность смены - 8 часов;
периодичность включения - частая;
характер рабочей нагрузки - постоянная;
реверсивный.
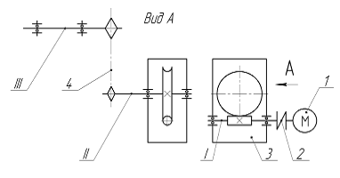
Кинематическая схема привода к ленточному транспортеру приведена на
рисунке 2.4
.4.3 Разработка и описание кинематической схемы привода
Привод состоит из электродвигателя, соединительной муфты, стандартного
червячного редуктора и цепной передачи.
Крутящий момент от электродвигателя (1) передается на быстроходный вал
червячного редуктора (3) через соединительную муфту (2). В качестве
соединительной муфты используем муфту втулочно-пальцевую с упругими элементами.
Далее крутящий момент с тихоходного вала червячного редуктора передается через
цепную передачу (4) на приводной вал барабана (5).
Рисунок 2.4 - Кинематическая схема привода барабана
1- электродвигатель; 2 - муфта; 3 - редуктор; 4 - цепная передача;
.4.4 Энергокинематический расчет привода
Выбор двигателя:
Для проектируемых машин агрегатов рекомендуется применять трехфазные
короткозамкнутые асинхронные двигатели серии 4А. Эти двигатели наиболее
универсальны. Закрытое и обдуваемое исполнение позволяет их использовать для
работы в загрязненных условиях, в открытых помещениях [21. страница 40]
Определяем частоту вращения приводного вала барабана:
,об/мин.
(2.52)
.
Определяем
требуемую мощность рабочей машины:
Nр =
, кВт,
(2.53)
Nр =
.
Определяем
общий коэффициент полезного действия (КПД) привода (ηo).
Для
определения общего КПД привода устанавливаем источники потери мощности на
основе анализа кинематической схемы привода. В данном приводе к ним относятся:
муфта, закрытая червячная передача, открытая цепная передача, подшипники
качения.
ηо
= ηм
η2п.к
ηЧП
ηОП ,
(2.54)
Значения
КПД передач и подшипников качения принимаем по [21. таблица 1.1. страница 5]
где:
;
;
;
.
тогда:
ηо=0,99
0,993
0,85
0,93 =0,76.
Определяем
требуемую мощность электродвигателя:
NДВ =
, кВт , (2.55)
NДВ =
=4,6.
По
требуемой мощности на выходе, учитывая условие
выбираем
электродвигатель серии 4А с номинальной мощностью Nном=5,5 кВт, применив для расчета 2 варианта типа
двигателя:
Таблица
2.1 - Короткозамкнутые трехфазные асинхронные двигатели серии 4А
|
Вариант
|
Тип двигателя
|
Номинальная мощность Nном ; кВт
|
Частота вращения, об/мин
|
|
|
|
синхронная
|
При номинальном режиме nном
|
|
|
|
синхронная
|
при номинальном режиме nном
|
|
1
|
4АМ132М8У3
|
5,5
|
750
|
720
|
|
2
|
4АМ132S6У3
|
5,5
|
1000
|
965
|
|
3
|
4АМ112М4У3
|
5,5
|
1500
|
1445
|
|
4
|
4АМ100L2У3
|
5,5
|
3000
|
2880
|
Определяем общее передаточное отношение привода:
, (2.56)
;
;
;
Производим
разбивку передаточных чисел по ступеням:
Разбиваем
согласно первому способу [21. страница 44],
принимаем
для редуктора передаточное число постоянным uзп=2,5 тогда для открытой передачи:
(2.57)
Таблица
2.2 - Определение передаточных чисел по первому способу
|
Передаточное число
|
Варианты
|
|
1
|
2
|
3
|
4
|
|
Общее передаточное число
|
20,6
|
27,6
|
41,3
|
82,3
|
|
Открытая передача
|
1,29
|
1,73
|
2,58
|
5,14
|
|
Закрытая передача
|
16
|
16
|
16
|
16
|
Как
видим, приемлемыми оказываются 3 и 4 вариант, в которых, передаточное число
находится в пределах рекомендуемых значений
[21.
страница 45 таблица 2.3]., производя анализ, делаем вывод, что принимать
четвертый способ не рекомендуется, так как при этом увеличивается габарит
цепной передачи, поэтому принимаем третьей вариант.
Таким образом, выбираем двигатель 4АМ112М4У3 (Nном =5,5 кВт, nном=1445 об/мин);
передаточные числа:
привода u=41,3;
редуктора uзп=16;
открытой
передачи
.
Таблица
2.3 - Габаритные размеры двигателя 4АМ112М4У3 по ТУ16-510.781-81
|
Тип двигателя
|
Размеры, мм
|
|
L1
|
L2
|
d3
|
l1
|
l2
|
l3
|
H
|
2C2
|
d1
|
d2
|
d4
|
2C
|
|
112М4
|
452
|
534
|
260
|
80
|
80
|
70
|
310
|
140
|
32
|
32
|
12
|
190
|
Определяем максимально допустимое отклонение частоты вращения приводного
вала рабочей машины
(2.58)
где
, % -допустимое отклонение скорости приводного вала
рабочей машины.
.
Определяем
допускаемую частоту вращения приводного вала рабочей машины:
(2.59)
.4.5
Определение силовых и кинематических параметров привода
.
Определяем мощность:
на
двигателе:
=5,5
.
на
быстроходном валу:
=5,5
0,98
0,99=5,34
.
на
тихоходном валу:
=5,34
0,85
0,99=4,49
.
рабочей
машины:
=4,49
0,93
0,99=4,13
.
2.
Определяем частоту вращения:
вал
двигателя: nном=1445
об/мин.
быстроходный
вал:
=
90,3
об/мин.
тихоходный
вал:
=
35
об/мин.
вал
рабочей машины:
35 об/мин.
.
Определяем угловую скорость:
вал
двигателя: 
=151,2
быстроходный
вал:
151,2
тихоходный
вал:
= 9,45
вал
рабочей машины:
= 3,66
.
Определяем вращающий момент:
вал
двигателя: 
=36,4
быстроходный
вал: 
тихоходный
вал: 
вал
рабочей машины:

Основные
расчетные величины энергокинематического расчета сводим в таблицу 2.4
Таблица
2.4 - Силовые и кинематические параметры привода
|
Тип двигателя 4АМ112М4У3 Nном
=5,5 кВт, nном=1445 об/мин
|
|
Параметр
|
Передача
|
Параметр
|
Вал
|
|
закрытая
|
открытая
|
|
двигателя
|
редуктора
|
рабочей машины
|
|
Передаточное число U
|
16
|
2,58
|
Расчетная Мощность P,
кВт
|
5,5
|
5,34
|
4,49
|
4,13
|
|
|
|
Угловая скорость , 1/с
|
151,2
|
151,2
|
9,45
|
3,66
|
|
КПД
|
0,85
|
0,93
|
Частота вращения n,
об/мин
|
1445
|
90,3
|
35
|
35
|
|
|
|
Вращающий момент Т, Н*м
|
36,4
|
35,3
|
475,3
|
1117,6
|
.4.6 Выбор редуктора
Выбор редуктора состоит в определении его типоразмера по таблицам
технических характеристик настоящего каталога. Редукторы эксплуатируются в
различных условиях и режимах эксплуатации, что необходимо учитывать при их
выборе, поэтому исходными данными для выбора редуктора являются:
- расчетный крутящий момент Т2Р, воспринимаемый выходным валом
редуктора и соответствующий нормально протекающему (установившемуся) процессу
работы механизма, Н·м;
расчетная частота вращения выходного вала n2Р, мин -1;
расчетная частота вращения входного вала n1Р, мин -1
(или требуемое передаточное отношение i=n1Р / n2Р);
расчетные радиальные и осевые нагрузки на входном и выходном валах
редуктора, Н;
характер внешней нагрузки;
продолжительность суточной работы, час.;
частота пусков в час;
тип применяемого смазочного материала;
наличие упругих элементов (муфты, ремни и др.) на входном и выходном
валах редуктора;
наличие реверсивного режима работы;
режим ввода в эксплуатацию;
- температура окружающей среды, °С.
Также следует учесть требуемые конструктивные особенности редуктора:
вариант расположения редуктора в пространстве:
червячный вал под колесом;
червячный вал над колесом;
вал колеса вертикальный;
червячный вал вертикальный;
конструктивное исполнение по способу монтажа:
на лапах;
на фланце;
насадное (на полом валу с реактивной штангой);
особенности исполнений входного и выходного валов:
вал односторонний или двухсторонний;
выходной вал полый, с цилиндрическим или коническим концом.
Выбор типоразмера редуктора.
Рассчитываем требуемое передаточное отношение редуктора:
i=n1P / n2P,(2.60)
где n1Р- расчетная частота вращения входного вала редуктора; 2Р-
расчетная частота вращения выходного вала редуктора.
Для определения типоразмера редуктора находим значение
расчетно-эксплуатационного крутящего момента Т2РЭ на выходном валу
редуктора:
Т2РЭ=ТРЭ.КЭ,(2.61)
где ТРЭ - расчетный крутящий момент на выходном валу
редуктора, соответствующий нормально протекающему (установившемуся) процессу
работы механизма, Н·м;
КЭ - эксплуатационный коэффициент, учитывающий фактические
условия эксплуатации и режим работы редуктора:
КЭ= К1.К2.К3.К4.К5.К6.К7(2.62)
Значения коэффициентов К1-К7 выбираем по таблицам.
Если полученное значение КЭ>3, то для дальнейших расчетов
принимаем КЭ=3.
Таблица 2.5 - Коэффициент расположения редуктора в пространстве К6
|
Расположение червячной пары
выходной ступени
|
червяк под колесом
|
вал колеса вертикальный
|
червячный вал вертикальный
|
червяк над колесом
|
|
К6
|
1,0
|
1,0
|
1,1
|
где:
tН - среднее время работы редуктора под нагрузкой в час, мин. Если
время работы редуктора под нагрузкой больше 1 часа, то ПВ=100%.
КЭ= 1,4.1,3.1,15.1,0.1,1.1,0.1,4=3,2
Принимаем КЭ=3,0
Т2РЭ=475,3.3=1425,9 Нм.
В таблицах технических характеристик червячных редукторов, находим
минимальный типоразмер редуктора, который удовлетворяет условиям: iR~i, Т2>Т2РЭ. В этих таблицах приведены
характеристики, соответствующие частоте вращения входного вала редуктора n1 =1440 мин 1.
В нашем случае это будет редуктор Ч-160М со следующими техническими
характеристиками:=16; T2=1400 Н·м; P1=15 кВт; n2=93,75
мин 1.
Конструктивные особенности редуктора:
расположение редуктора в пространстве - червячный вал под колесом;
крепление редуктора к раме конвейера - на лапах;
входной вал - односторонний цилиндрический и выходной вал.
Рисунок 2.5 - Габаритные и присоединительные размеры редуктора
Рисунок 2.6 - Размеры цилиндрических концов валов
2.4.7 Расчет и проектирование цепной передачи
Исходные данные:
передаточное число U3=2,58;
вращающий момент на ведущей звездочке Т3=475,3 Нм;
угловая скорость ω3=9,45 рад/с;
- скорость ленты V =
0,65 м/с;
- мощность на ведущей звездочке Р2=4,49 кВт.
Вычисляем число зубьев на ведущей и ведомой звездочке:
z3=29-2U3; (2.63)
z3=29-2х2,58=23,84
Из технических требований на звездочки [29. стр. 424] - число зубьев звездочек
выбираем из следующего ряда: 9, 10, II, 12, (13), 14, (15), 16, (17), 18, (19),
20, (22), 25, (28), 32, (36), 40, (45), 50, (56), 63, (71), 80.
При выборе числа зубьев отдаем предпочтение числам без скобок.
Принимаем z3=25.
z4= z3хU3;(2.64)
z4=25х2,58=64,5
Принимаем z4=65.
Определяем фактическое передаточное число и отклонение от заданного:
(2.65)
Определяем
число звеньев цепи:
(2.66)
где
ар=30 - межосевое расстояние в шагах
Принимаем
Уточняем
межосевое расстояние ар в шагах:
(2.67)
Рассчитываем
коэффициент эксплуатации [29, c. 277]:
Кэ=КД х КН х КР х
КСМ х КП;(2.68)
где КД =1,5 - динамический коэффициент при спокойной нагрузке;
КН =1,15 - коэффициент, учитывающий влияние угла наклона линии
центров (угол 0-40º);
КР =1,25 - при периодическом регулировании натяжения цепи;
КСМ =1,5 - при периодической смазке;
КП=1,25 - коэффициент, учитывающий продолжительность работы в
сутки, при двухсменной работе.
Кэ=1,5х1,15х1,25х1,5х1,25=4,04.
Определяем шаг цепи:
мм,(2.69)
где [pн]=26МПа - допускаемое давление в шарнирах цепи (при
скорости тягового органа 0,65м/сек.);
ι=1 - число рядов цепи типа ПР.
мм.
Принимаем
из стандартного ряда р=44,45 мм и выбираем цепь ПР-44.45-17240 ГОСТ 13568-75
[29, таблица 3.1], параметры цепи заносим в таблицу 2.6
Рисунок 2.7 - Цепь приводная роликовая однорядная нормальной серии ПР
Таблица 2.6 - Параметры приводной роликовой однорядной цепи
|
Параметр
|
Обозначение
|
Значение
|
|
Шаг, мм
|
t
|
44.45
|
|
Расстояние между пластинами
внутреннего звена, мм
|
Ввн
|
25,4
|
|
Диаметр валика, мм
|
d
|
12,7
|
|
Длина валика , мм
|
b
|
62
|
|
Диаметр ролика, мм
|
d1
|
25,4
|
|
Параметр
|
Обозначение
|
Значение
|
|
Ширина пластины, мм
|
h
|
42.4
|
|
Разрушающая нагрузка, кН
|
Q
|
17.240
|
|
Масса одного метра цепи,
кг/м
|
q
|
7.5
|
|
Проекция опорной
поверхности шарнира,мм2
|
F
|
473
|
|
|
|
|
Определяем фактическое межосевое расстояние а:
(2.70)
мм
Определяем длину цепи:
(2.71)
мм
Определяем делительный диаметр ведущей и ведомой звездочек:
; мм
(2.72)
мм
; мм
Определяем
диаметр окружности выступов ведущей и ведомой звездочек:
(2.73)
где
К=0,7 - коэффициент высоты зуба;
-
коэффициент числа зубьев.
(2.74)
Определяем
диаметр окружности впадин ведущей и ведомой звездочек:
(2.75)
(2.76)
Проверяем
частоту вращения ведущей звездочки
Условие
выполнено.
Проверяем
число ударов цепи о звездочку:
Условие
выполнено
Определяем
фактическую скорость цепи, м/с:
Определяем
окружную силу передаваемую цепью, Н:
Проверяем
давление в шарнирах:
условие
выполнено.
Определяем
предварительное натяжение цепи от провисания ведомой ветви:
, (2.77)
где
Кf -
коэффициент провисания;
q - масса 1 м/п
цепи, кг;
g - ускорение
свободного падения, м/с2.
.
Определяем натяжение цепи от центробежных сил:
;
(2.78)
.
Определяем
силу давления цепи на вал:
, (2.79)
.
Проверяем
прочность цепи:
(2.80)
где [s] = 8,1 - нормативный коэффициент запаса прочности, при
выборе зависящий от шага цепи и частоты вращения ведущей звездочки [21,таблица
5.9];
условие
выполнено.
Согласуем
с выходным валом редуктора и принимаем 140мм.
Длина
ступицы ведомой звездочкой:
мм
Согласуем
с выходным концом вала и принимаем 90мм.
.4.8
Проектный расчет вала. Эскизная
компоновка вала
Выбор материала валов. Для изготовления тихоходного вала применяем сталь
40Х с последующей термообработкой и шлифованием:
сталь 40Х, улучшение + ТВЧ, твердость заготовки 45…50HRC,
,
,
.
Определяем
геометрические параметры ступеней вала.
Данный
расчет выполняется как проектный с целью определения предварительного диаметра
валов, при этом учитывается только крутящий момент, значение которого находится
по результатам энергокинематического расчета. Влияние изгиба вала
компенсируется понижением допускаемых напряжений при кручении.
Необходимо определить параметры приводного вала барабана. На данном валу
необходимо предусмотреть посадочные участки под установку подшипников качения,
барабана и посадочный участок под звездочку цепной передачи.
Вал состоит из следующих посадочных участков: шейка (d1) - для установки звездочки; диаметр упорного буртика
(d2); шейка под установку подшипника левой опоры качения
(d3); диаметр упорного буртика (d4); посадочный диаметр под левую опору барабана (d5); вспомогательную ступень между опорами барабана (d6); правую опору барабана (d7); упорный бурт правой подшипникой опоры (d8); шейка под установку подшипника правой опоры качения
(d9); Эскиз предварительной конструкции вала смотри
рисунок 2.8
Расчет проводим по условию прочности на кручение, согласно следующей
формуле:
, мм (2.81)
где
- момент на валу, Т = 1117,6 Н´м,
МПа - допускаемые напряжения при кручении.
мм
Выходной
конец приводного вала назначаем цилиндрическим d1 х l1 =
60х90мм. Посадочный диаметр под подшипниками качения назначаем d3
=65мм.
Диаметр
упорного буртика подшипников определяем по формуле:
d4 = d9 =d3 + 2×r, мм (2.82)
где
r - радиус скругления на внутреннем кольце подшипника,
[30. таблица К27]
d4 =
65+2×4=73 (принимаем 75мм)
Посадочные
диаметры опор барабана - принимаем цилиндрическим с уступом между ними:
d5 = d7 =d4 + 2×t,
мм (2.83)
где
t - переход между ступенями для облегчения сборки.
d5 = d7 =75+2×1,0=77 (принимаем 80 мм)
Длины
ступеней получаем конструктивно.На валу устанавливаются две шпонки: одна под
ведомую звездочку цепной передачи вторая под левой ступицей барабана. Размеры
шпонок подбираем согласно посадочных диаметров вала.
Эскизная
компоновка вала. Вычерчиваем элементы ступеней вала по размерам принятым ранее,
для определения расстояния между опорами вала и точками приложения давления со
стороны открытой цепной передачи и опоры барабана.
Для предотвращения задевания элементов барабана за внутренние стенки
подшипниковых опор, контур образующей барабана проводим с зазором Х=35 мм.
Эскиз вала представлен на рисунке 2.8
Рисунок 2.8 - Эскиз вала
Расчет вала на прочность в опасном сечении.
Определить коэффициент запаса прочности вала в опасном сечении и сравнить
его с допускаемым.
Расчетная силовая схема представлена на рисунке 2.9
Силовой схемой определяем направление всех сил действующих на вал со
стороны консольных сил открытой ременной и цепной передачи, реакций в
подшипниках, а также вращающих моментов и угловых скоростей валов.
Рисунок 2.9 - Расчетная схема вала
Исходные данные:
-
передаваемый момент;
-
диаметр барабана;
-
диаметр проверяемого вала;
-
долговечность (время работы под нагрузкой);
Способ
установки барабана на вал - шпоночный паз;
Номер
используемого подшипника:
№
213 (dхDхB)=(65х120х23); Сr=34кН,
Сгр=56кН;
Способ
установки подшипника - враспор;
Материал
изготовления вала - ст. 40;
Расстояния
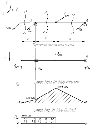
между точками приложения сил: а=95мм; b=175мм; с=475мм;
Вид
нагрузки - умеренные толчки и вибрация.
Определяем
усилия со стороны открытых передач.
Валы испытывают два вида деформации - изгиб и кручение. Деформация
кручения на валах возникает под действием вращающих моментов, приложенных со
стороны открытых передач. Деформация изгиба валов вызывается силами в
зацеплении открытой цепной передачи и консольными силами со стороны открытой
ременной передачи.
Со стороны цепной передачи:
Н.
Со
стороны ременной передачи:
, Н (2.84)
где
- натяжение ремня, Н;
- угол
обхвата ремнем ведущего шкива.
, Н
(2.85)
где
А=4,5*103 мм2 - площадь поперечного сечения ремня;
-
предварительное натяжение [29.страница 80.таблица 5.1].
Определение
опасного сечения.
Строим
силовую схему нагружения вала.
Схема
сил и эпюры моментов представлены на рисунке 2.10
Определяем
реакции, в опорах используя правило моментов
Горизонтальная
плоскость:
Проверка:
=0
( верно)
Строим
эпюры изгибающих моментов характерных сечениях вала.
Горизонтальная
плоскость:
Сечение
1-1 (слева на право)
Сечение
2-2 (слева на право)
Сечение
3-3 (справа на лево)
Определяем
приведенный момент в опасном сечении по 3 теории прочности:
,
(2.86)
где
- суммарный изгибающий момент в опасном сечении вала,
;
-
крутящий момент в опасном сечении вала,
;
- коэффициент
(при реверсивной нагрузке
=1).
;
.
Устанавливаем опасные сечения.
а) Посадочный диаметр вала под подшипником опоры А.
б)
Сечение под барабаном имеющее посадочный диаметр
и
ослабленное наличием шпоночного паза
Принимаем
предел прочности материала вала по [30. таблица 1.2 и 1.3]. В зависимости от
марки стали ст. 40 принимаем
;
;
Проверка
опасных сечений.
Расчет
выполняется как проверочный, с целью определения коэффициента запаса усталостной
прочности в опасных сечениях вала.
Расчет
выполняется в паре с ориентировочным. Цель расчета - определить коэффициенты
прочности в опасном сечении вала и сравнить их с допустимым.
Признаком опасных сечений является:
- пиковое значение нагрузок - моментов;
- наличие источников концентраций напряжений (шпоночных пазов).
Исходные данные:
конструкция и размеры вала (с эскизной компоновки);
материал вала - сталь 40;
величина
крутящего момента
;
величина
и направление сил, действующих на вал (из расчетной схемы вала).
Расчет вала на выносливость и заключение о работоспособности вала.
а) Определяем нормальное напряжение в опасном сечении:

(2.87)
где
осевой момент сопротивления сечения вала, мм3.
Для
шпоночного паза b*h=22*14мм
44962 мм3
б)
Определяем касательное напряжение в опасном сечении:
(2.88)
где
полярный момент сопротивления сечения вала, мм3.
Для
шпоночного паза b*h=22*14мм
89100 мм3
.
в)
Определяем коэффициенты концентрации нормальных и касательных напряжений для
расчетного сечения вала:
(2.89)
(2.90)
где:
эффективные коэффициенты концентрации напряжений;
коэффициент влияния абсолютного размера поперечного сечения;
отношение
и
для посадки с натягом, принимаем по [30. таблица 11.2
страница 272] .
=2,53;
=2,26
где
коэффициент влияния шероховатости,
принимаем по [30. таблица 11.4 страница 272]
коэффициент влияния поверхностного упрочнения по [30.
таблица 11.4 страница 272]
г)
Определяем пределы выносливости в опасном сечении вала, Н/мм2:
(2.91)
где:
;
-
пределы выносливости гладких образцов при симметричном цикле изгиба и кручения,
принимаем по [29. табл. 3.2. стр. 53], тогда:
(2.92)
;
.
д)
Определяем коэффициенты запаса прочности по нормальным и касательным
напряжениям:
, (2.93)
.(2.94)
;
.
е)
Определяем общий коэффициенты запаса прочности в опасном сечении:
(2.95)
где:
29,4 > 1,5, следовательно, проверочный расчет вала
на выносливость в опасном сечении вала в отношении прочности прошел.
Рисунок
2.10 - Схема сил и эпюры моментов
.4.9
Подбор подшипников и корпусов для них
Подбор
и проверка подшипников. Цель работы:
.
Определить эквивалентную динамическую нагрузку подшипников
.
Проверить подшипники по динамической грузоподъемности.
.
Определить расчетную долговечность подшипников.
Исходными
данными являются результаты, полученные в главе 6 ПЗ.
-
передаваемый момент;
-
долговечность (время работы под нагрузкой);
Номер
используемого подшипника - радиальный шариковый однорядный №213 ГОСТ 8338-75
(65х120х23мм);
Способ
установки подшипника - враспор;
Материал
изготовления вала - Ст. 40;
Вид
нагрузки - вибрация и толчки
Пригодность
подшипников определяем сопоставлением расчетной динамической грузоподъёмности с
базовой.
Определяем
исходные данные для расчета [6. таблица 9.1 страница 142]:
Коэффициент
вращения при вращении внутреннего кольца подшипника
;
Температурный
коэффициент [30. таблица 9.5 страница 147]:
;
Коэффициент
безопасности [30. таблица 9.4 страница 145]:
;
Статистическая
грузоподъемность по справочным материалам для подшипника 213 составляет
34 кН;
Базовая
динамическая грузоподъемность по справочным материалам для подшипника 213
составляет
56 кН;
Осевая
сила в зацеплении
;
Осевая
нагрузка на подшипник
Радиальная
нагрузка подшипника, равная суммарной реакции подшипниковой опоры
(2.96)
Коэффициент
радиальной нагрузки X=0.56 [30.
таблица 9.1 страница 141];Определяем отношение:
Определяем
методом интерполирования коэффициенты Y=0,32, e=0,02
Определяем отношение
Определяем эквивалентную нагрузку:

(2.97)
.
Определяем
динамическую грузоподъемность:
(2.98)
где
m=3 для шариковых подшипников;
-
угловая скорость вала.
(условие
выполнено).
Определяем
базовую долговечность
,(2.99)
(условие
выполнено).
Выбор корпусов. Вал вращается на двух
шариковых опорах, в качестве которых используются шариковые радиальные
подшипники качения. Подшипники устанавливаются в расточки корпуса, который
устанавливается в расточку литой чугунной станины автомата и крепится болтами к
задней стенке. От осевого перемещения корпус закрепляется болтами. Так как
приводной вал вращается на шариковых радиальных подшипниках с уплотнительными
шайбами, то нет необходимости использовать стандартные крышки с уплотнениями.
Такая конструкция значительно упрощает сборку и обслуживание.
Назначаем корпус типа ЩБ для подшипников качения диаметром от 90 до 150
мм по ГОСТ 13218.5-80.
Обозначение: Корпус ШБ 120 ГОСТ 13218.5-80.
Назначаем крышки торцовые с отверстием для манжетного уплотнения: Крышка
12-120*75 ГОСТ 18512-73.
Назначаем крышки торцовую низкую глухую: Крышка ГН 120 ГОСТ 13219.2-81.
.4.10 Подбор муфты
В приводе используется только одна муфта, которая соединяет вал
электродвигателя и быстроходный вал червячного редуктора.
Упругие втулочно-пальцевые муфты (МУВП), благодаря легкости изготовления
и замены резиновых элементов, получили наибольшее распространение. Упругими
элементами здесь служат гофрированные резиновые втулки. Подбор муфты необходимо
осуществлять в зависимости от передаваемого крутящего момента и по предельной
частоте, которую допускает муфта. Назначаем [29. Таблица К21; К22] муфту
упругую втулочно-пальцевую типа: МУВП 250-32-I.40-I-.У3
ГОСТ 21424-93. Характеристика муфты (рисунок 10.1):
номинальный крутящий момент , Нм250,0;
допускаемая частота вращения, об/мин не более: 400;
смещение валов, не более :
радиальное, мм 0,5;
угловое, 0 1.
Рисунок 2.11 - Муфта упругая втулочно-пальцевая ГОСТ 21425-93
Габаритные и присоединительные размеры:
Для проверки МУВП нужно сделать проверку пальцев:
а) На изгиб:
σи = (10·Т·lп)/D0·Z·d 3п
≤ [σ]и (2.100)
где Т - момент на валу; Т=35,3 кН·мм;
lп - длина пальца; lп=63
мм;
D0 -
диаметр центров отверстий под пальцы; D0=98мм;
Z - число пальцев; Z=6;
d п -
диаметр пальца; d п=14 мм;
[σ]и - допускаемое напряжение изгиба; [σ]и = 80 …90 МПа.
σи = (10·35,3·103·63)/(98·6·143)
=13,7 МПа
σи
≤ [σ]и - следовательно условие прочности
выполняется.
б) На смятие краёв резиновой втулки:
σсм = 2·Т/(D0·Z·dп·lв) ≤ [σ]см (2.101)
где lв - длина резиновой втулки; lв=28 мм
[σ]см - допускаемое напряжение смятия; [σ]см = 2 МПа
σсм = 2·35,3·103/(98·6·14·28)
= 0,3 МПа
σсм<[σ]см, следовательно, условие прочности
выполняется.
.4.11 Подбор
шпонок и проверка прочности шпоночных соединений
На валу устанавливаются две шпонки: одна под ведомую звездочку цепной
передачи (d1=48мм, l=60мм),
вторая под левой ступицей барабана (d5=66мм, l=71мм). Размеры шпонок подбираем
согласно посадочных диаметров на валу.
Длину
шпонок выбираем из стандартного ряда по
, так
чтобы ее длина была меньше длины ступицы на 5-10 мм: LШП1=LСТ1-10=90-10=80мм;
LШП2=LСТ2-10=70-10=60мм. Размеры шпонок принимаем по [6.
таблица К42], в зависимости от диаметров валов: Первая шпонка (
) 18*11*80 ГОСТ 23360-78, фаска 0,6мм; глубина паза
вала t1=5,5мм;
глубина паза ступицы t2=3,8мм.
Вторая
шпонка (
) 22*14*63 ГОСТ 23360-78, фаска 0,6мм; глубина паза
вала t1=9мм;
глубина паза ступицы t2=5.4мм.
Проверяем шпоночное соединение на прочность по напряжениям смятия на
боковой поверхности шпонки по условию
, МПа(2.102)
где
- напряжение смятия, МПа;
FОП - реакция от открытой передачи, Н·мм;
Т
- вращающий момент на валу, Нм (Т=1117,6);
Асм - площадь смятия, мм2 (Асм = 0,94h - t1)lр;
h - высота шпонки, мм (h1=11мм; h2=14мм;);
t1 - глубина паза вала, мм (t1.1=4,4мм; t1.2=5.4мм);
lр - рабочая длина шпонки, мм
(lр1= LШП1-b1=90-18=72мм; lр2= LШП2-b2=63-22=41мм);
- допустимое напряжение смятия, МПа (
=100…120 МПа).
<100…120
МПа, условие выполнено.
2.5 Расчет червячной фрезы
.5.1 Способы зубообработки
Зубья колёс нарезают двумя основными способами:
- метод копирования;
- метод огибания.
Метод копирования осуществляется на горизонтально-фрезерных
станках с помощью дисковых или пальчиковых фрез, режущие кромки которых имеют
профиль, соответствующий профилю впадин зуба. При изготовлении открытых венцов
с прямыми зубьями иногда используются протяжки.
Метод огибания является основным методом образования зубьев.
С использованием метода огибания производится образование зубьев следующими
способами: горячим и холодным накатыванием; фрезерованием червячными фрезами;
долбление зубьев долбяками; строгание зубьев гребёнками. Метод огибания при нарезании
эвольвентных профилей зубьев имеет существенные преимущества перед методом
копирования, т.к. позволяет одним и тем же инструментом нарезать зубчатые
колёса практически с любым числом зубьев, включая и рейки. При этом один и тот
же инструмент (за исключением долбяков) может быть использован для нарезания
как прямых, так и косых зубьев.
Зубофрезерование червячными фрезами является основным
процессом предварительной и чистовой обработки зубьев. Обработкой червячными
фрезами можно изготовить зубчатые колёса 5-6 степеней точности. Для нарезания
зубчатых колёс используют червячные фрезы при модуле до 5,5 мм -цельные, при
модуле от 6 мм до 15 мм цельные и со вставными ножами, а при модуле от 16 мм -
со вставными ножами.
Червячные фрезы чистовые однозаходные применяют для чистовой
обработки прямозубых и косозубых цилиндрических зубчатых колес с эвольвентным
профилем. Фреза, представленная в данной работе и предназначенная для чистовой
обработки зубчатых колес, класса А по ГОСТ 9324-60. Червячная фреза является
многолезвийным инструментом с конструктивно обкаточным движением.
В основу червячной фрезы положен эвольвентный червяк.
.5.2 Обоснование выбора червячной фрезы
Выбор червячной фрезы
инструментом изготовления зубчатой втулки неслучаен т.к. способ изготовления
является решающим при выборе профиля нарезки зуба. Потому что, при одинаковом
качестве изготовления профиль зуба может отличаться.
Базовыми поверхностями при нарезании зубьев являются
поверхность центрального отверстия и торцы зубчатого венца. Производительность
возрастает при нарезании зубьев в пакете из двух колес и более.
Базовыми поверхностями при нарезании зубьев являются
поверхность центрального отверстия и торцы зубчатого венца. Производительность
возрастает при нарезании зубьев в пакете из двух колес и более.
.5.3 Выбор конструктивных параметров фрезы
Для изготовления зубчатого колеса 8й степени
точности выбираем червячную фрезу по ГОСТ 9324-80 II типа, класса точности А,
фреза цельная, общего назначения. По виду обработки - чистовая. Изготавливать
фрезу будем на базе архимедова исходного червяка. В осевом сечении такой червяк
имеет трапециидальный профиль и представляет собой обычный винт. В торцевом
сечении имеет профиль архимедовой спирали.
Для повышения точности обрабатываемых деталей угол профиля
нарезки чистовых фрез корректируется.
2.5.4 Расчёт червячной фрезы
Исходные данные зубчатого колеса: нормальный модуль - mn=8 диаметр окружности
выступов - da=216 мм, диаметр окружности впадин - df=184 мм, делительный
диаметр - dw =200 мм, ширина колеса - bw =110 мм, число зубьев - z =25.
Выбираем основные габаритные размеры фрезы: при mn=8 - диаметр фрезы dao=140 мм, диаметр
отверстия dOTB.=50 мм, число зубьев фрезы zo=9, длина фрезы L=180 мм. [5]
.5.5 Расчет размеров исходной инструментальной рейки
Шаг зубьев рассчитывается по формуле:
P0=П×mn, (2.103)
где P0 - шаг зубьев, мм;
mn - нормальный модуль, мм.
P0=3,1416×8=25,136 мм.
Угол профиля фрезы α0 равен углу профиля зубьев рейки:
α0=α=20°
Высота головки зуба рассчитывается по формуле:
ha0=(ha*+c*)×mn, (2.104)
где ha* - коэффициент высоты головки зуба;
c* -
коэффициент радиального зазора.
(ha*+c*)=1,25
ha0=1,25×8=10
мм
Высота шейки зуба находится из равенства: hf0=ha0,
отсюда hf0=10
мм.
Высота зуба рассчитывается по формуле:
h0=ha0+hf0,
, (2.105)
h0=10+10=20 мм.
Радиус закругления головки зуба рассчитывается по формуле:
ra0=0,25×mn, , (2.106)
ra0=0,25×8=2
мм.
Радиус закругления ножки зуба рассчитывается по формуле: rf0=0,3×mn,
rf0=0,3×8=2,4 мм.
Толщина зуба рассчитывается по формуле:
(2.107)
мм.
.5.6
Расчет геометрических параметров режущей части фрезы
Расчет
геометрических параметров режущей части.
Для
чистовых фрез передний угол γa=0°, а задний угол αa=11°.
Падение
затылка для шлифованного участка рассчитывается по формуле:
,мм
(2.108)
где
Zo - число стружечных канавок.
, мм.
Принимаю
Кш=9 мм.
Падение
затылка для шлифованного участка:
Кнш=1,8×Кш,
Кнш=1,8×9=16,2
мм.
Принимаю
Кнш=16 мм.
Глубина
стружечных канавок рассчитывается по формуле:
, (2.109)
где
r - радиус закругления для стружечной канавки (для фрез
средних модулей r=0,5 - 2 мм).
мм.
Радиус
закругления канавки:
мм.
Диаметр
расчетного цилиндра фрезы рассчитывается по формуле:
, (2.110)
где
- σ=0,1
для фрез со шлифованным профилем,
мм.
Принимаю
Dсрф=118,20
мм.
Для
чистовых фрез число заходов n0=1, для
прямозубых колес направление нарезки фрезы правое.
Размеры
канавки для облегчения шлифования [16 cтраница 7]:
Глубина
hk=1-2 мм;
Радиус
скругления rk=0,5…1,2 мм;
Ширина
bk=0,4×mn0=3,2 мм.
Не
шлифованную часть зуба фрезы (рисунок 2.12) подвергают затылованию резцом при
помощи кулачка, величина спада которого Кнш делается примерно в
1,5-1,8 [5] раза больше величины спада Кш кулачка для шлифованной части.
Величина затылования Кнш должна быть отнесена к диаметру d1, несколько большему, чем диаметр фрезы D.
Например, если шлифованная часть составляет половину ширины зуба, то D1=D+2a, где a=b=(Kнш-Kш)/2. Перед началом затылования резец находится в точке
А и начинает обработку только в точке В, срезая при этом часть спинки зуба по
кривой ВС.
В
нашем случае:
А=(16-9)/2=3,5
мм;
D1=140+2×3,5=147 мм.
Рисунок
2.12 - Зб с двойным затылованием
.5.7
Расчет основных углов фрезы
Угол
подъема нарезки фрезы на расчетном цилиндре рассчитывается по формуле:
, (2.111)
γm0=3°53'.
Угол
наклона стружечных канавок принимаем равным углу подъема нарезки фрезы:
Направление
винтовых стружечных канавок принимаем левое, т.к. оно должно быть направлено
противоположно виткам нарезки.
Угол
профиля стружечных канавок рассчитывается по формуле:
, (2.112)
.
Округляем
полученное значение до ближайшего стандартного:
.
.5.8
Расчет шага винтовых стружечных канавок
Шаг
винтовых стружечных канавок рассчитывается по формуле:
, (2.113)
мм.
.5.9
Расчет размеров профиля нарезки фрезы в осевом сечении
Осевой
шаг нарезки фрезы рассчитывается по формуле:
, (2.114)
мм.
Ход
витков фрезы рассчитывается по формуле:
, (2.115)
мм.
Расчетный
профильный угол рассчитывается по формуле:
.
Углы
профиля зубьев червячной фрезы с винтовыми канавками определяются по формуле:
Для
правой стороны:
,
.
Для
левой стороны:
,
,
Размеры
профиля по высоте, радиусы закругления у ножки зуба принимаются такие же, как и
для исходной инструментальной рейки.
.5.10
Расчет угла установки фрезы на станке
При
нарезании зубчатых колес на станке, угол установки фрезы рассчитывается по
формуле [5 c. 44]:
, (2.116)
где
β
- угол наклона зубьев, β=9°
.
Расчет
конструктивных размеров фрезы.
Наименьшая
длина нарезки фрезы рассчитывается по формуле [5 c. 272]:
,
мм.
Принятая
длина нарезки L=180 мм удовлетворяет условие L > Lmin.
Выбираем
размеры шпоночного паза в зависимости от принятого диаметра: Dотв=50 мм, b=
мм, t=3,5+0,3 мм. [16 c. 12 таблица
1,3].
Для
изготовления фрезы выбираем сталь Р6М5 по ГОСТ 1955 - 73 с термообработкой ТВЧ
до твердости HRC 62…65.
.5.11 Выбор станка для обработки зубчатого колеса
Для нарезки зубчатого колеса выбираем зубофрезерный станок модель
5А326 [23, с. 17]:
Техническая характеристика станка:
|
наибольший
диаметр обрабатываемых зубчатых колес, мм
|
50;
|
|
наибольший
модуль зубьев обрабатываемых колес, мм
|
10;
|
|
наибольшая
ширина обрабатываемых колес, мм
|
300;
|
|
наибольший угол
наклона зуба обрабатываемого колеса, градусы
|
± 20;
|
|
диаметр стола,
мм
|
50;
|
|
наибольший
диаметр червячной фрезы, мм
|
00;
|
|
количество
ступеней чисел скоростей шпинделя фрезы
|
7,5;
|
|
наименьшее и
наибольшее число оборотов шпинделя фрезы, мин
|
57;
|
|
наименьшая и
наибольшая вертикальная подача на один оборот, мм
|
0,5-4;
|
|
мощность
электродвигателя привода, кВт
|
7;
|
|
вес станка, кг
|
8300;
|
|
габаритные
размеры, мм
|
|
|
длина
|
3195;
|
|
ширина
|
1605;
|
|
высота
|
2235.
|
3. ТЕХНОЛОГИЧЕСКАЯ ЧАСТЬ
Разработка технологического процесса изготовления червячной модульной
фрезы с применением станков с ЧПУ.
Тема технологической части актуальна. Это подтверждается тем, что
червячные фрезы относятся к наиболее производительным инструментам для
обработки зубчатых колес. Червячные фрезы являются универсальными
инструментами, их конструкция не зависит от количества зубьев нарезаемого
колеса. Обработка колеса осуществляется методом обкатывания на зубофрезерных
станках. Такая обработка широко применяется как в основном, так и в ремонтном
производстве цеха.
Червячные фрезы с модулем m = 8
мм является дефицитным инструментом и поэтому предприятие в состоянии своими
силами изготовить данную фрезу.
Техническое задание на проектирование
Разработать технологический процесс изготовления червячной модульной
фрезы. Конструкторский чертеж прилагается.
Сведения для проектирования:
- m = 8 мм;
- степень точности нарезаемого зубчатого колеса - 7;
степень точности фрезы - А;
диаметр оправки - 50 мм;
количество полных витков - 6;
двойное затылование;
стандартный профиль инструментальной рейки с модулем m=8 мм;
инструментальный материал-быстрорежущая сталь Р6М5.
3.1 Описание конструкции и назначение червячной модульной фрезы
Деталь может быть отнесена к деталям типа насадных червяков, имеет характерный
червячный профиль, рассеченный стружечными канавками, имеющими характерный
профиль задней поверхности в виде архимедовой спирали.
Посадочное место имеет форму длинного отверстия Ø50H5 с двумя поясками длиной l=54 мм. Для передачи крутящего момента,
в конструкции используется шпоночный паз b=12мм, h1=3,5мм.
Основными конструктивными элементами цельных фрез являются: рабочая или
режущая часть и корпус с крепежной частью. Рабочая часть осуществляет съем
припуска на обработку, направление потоков стружки, формирует обрабатываемую
поверхность, обеспечивает требуемое качество обработки.
Червячные фрезы чистовые однозаходные применяют для чистовой обработки
прямозубых и косозубых цилиндрических зубчатых колес с эвольентным профилем.
Фреза, представленная в данной работе и предназначенная для чистовой обработки
зубчатых колес, класса А по ГОСТ 9324-80. Червячная фреза является
многолезвийным инструментом с конструктивно обкаточным движением.
.2 Технологический контроль чертежа детали
Конструкция фрезы соответствует ГОСТ 9324-80 «Фрезы червячные, чистовые,
однозаходные для цилиндрических зубчатых колес с эвольвентным профилем».
Чертеж выполнен в соответствии с ГОСТ 2.316-68 «Правила нанесения на
чертеж надписей, технических требований и таблиц».
Размеры, посадки и предельные отклонения размеров обозначены в
соответствии с ГОСТ 2.207-68 «Нанесение размеров и предельных отклонений».
Отклонения формы и взаимного расположения поверхностей детали выполнены в
соответствии с ГОСТ 2.308-68 «Указание на чертежах предельных отклонений формы
и расположения поверхностей».
Обозначение шероховатости обработки нанесено в соответствии с ГОСТ
2.309-73 «Нанесение на чертежах обозначений шероховатости поверхности».
Все размеры и размерные линии выполнены в соответствии с ГОСТ 2.303-68.
Внешняя рамка, рамка поля чертежа выполнены в соответствии с ГОСТ
2.301-68.
Изображение детали выполнено в двух видах - главный вид и вид сбоку. На
главном виде совмещены вид и срез, что делает наиболее полное представление о
детали. Эти два вида выполнены в проекционной связи и их достаточно для чтения
чертежа.
В правом верхнем углу расположена таблица параметров, в которую занесены
все данные о фрезе. В технических условиях дана дополнительная информация для
технологического проектирования, не содержащаяся в изображении детали. Это
сведения о состоянии материала после термической обработки, неуказанные
предельные отклонения, маркировка изделия.
Все элементы конструкции представлены в соответствии с действующими
стандартами.
.3 Анализ технологичности конструкции
Одним из факторов влияющих на характер технологического процесса является
технологичность конструкции. Выполним оценку технологичности по элементам
конструкции детали и техническим условиям на ее изготовление.
Нетехнологичные элементы конструкции:
Дорогой и дефицитный материал;
Деталь имеет сложную форму, предполагающую высокий расход
материала: отверстие, профиль, стружечные канавки;
Специальные методы обработки;
Необходимость применения специальных инсрументов;
Очень высокая степень точности изготовления;
Необходимость последующей слесарной обработки;
Сложность контроля профиля зуба и инструментальной рейки.
Технологичные элементы:
Использование уже известных решений (стандартные элементы
профиля инструментальной рейки);
Материал удовлетворительно обрабатывается лезвийным инструментом
в отожженном состоянии и абразивными материалами в закаленном состоянии;
Многие операции выполняются на типовом оборудовании (токарные,
горизонтально - фрезерная, горизонтально - протяжная, круглошлифовальная,
внутришлифовальная),
Применяются универсальные приспособления.
.4 Выбор метода изготовления и формы заготовки
Метод выполнения заготовки для изготовления деталей определяется исходя
из назначения и конструкции детали, условиями её работы и представляемыми
требованиями к ней. Выбрать заготовку, значит установить способ её получения,
наметить припуски на обработку каждой поверхности, рассчитать размеры и указать
допуски на неточность изготовления. Для рационального изготовления заготовки с минимальной
себестоимостью необходимо учитывать все вышеперечисленные данные.
Выбор метода изготовления заготовки зависит от формы и размеров детали,
ее материала и назначения, объема производства и т.д. лучшим методом является
тот, при котором заготовка получается более дешевой, включая стоимость
последующей механической обработки, и имеют требуемое качество. Важнейшим
фактором при выборе метода изготовления заготовок является экономия металла.
Для изготовления заготовки будем рассматривать следующие способы:
) прокат;
) штамповка.
Метод выполнения заготовки определяется назначением и конструкцией
заданной детали, материалом, техническими требованиями, а так же, что
немаловажно, экономичностью изготовления.
Заготовка из проката:
Горячекатаный прокат:
Круг Ø145 ГОСТ 2590-88 / Сталь Р6М5 ГОСТ 19265-73
Цена за тонну 410 000 руб/т.
Рисунок 3.1 - Заготовка из проката
Стоимость заготовки, полученной методом проката, с учетом потери металла
на подготовительных операциях, будет равна:
, руб.,
(3.1)
где
- масса заготовки, кг;
-
стоимость 1 тонны заготовок, принятых за базу, руб.
Масса
заготовки из проката:
, т,
., (3.2)
где
- габариты заготовки, м;
-
плотность стали,
г/см3.
т
(23,9 кг)
руб.
Заготовка
поковка:
Поковка
по ГОСТ 7505-89. Цена за единицу 432 000 руб/т.
Припуски
на размеры поковки примем по справочнику [20]:
Таблица 3.1 - Припуски и допуски
поковки
|
№ п/п
|
Размер детали, мм
|
Припуск основной, мм
|
Припуск дополнительный, мм
|
Допуск нижний, мм
|
Допуск верхний, мм
|
Размер заготовки, мм
|
|
1
|
Æ140
|
1,5
|
0,3
|
-0,7
|
+1,3
|
Æ143,3
|
|
2
|
Æ70
|
1,3
|
|
-0,6
|
+1,2
|
Æ72,6
|
|
3
|
Æ50
|
1,6
|
0,2
|
-1,2
|
+0,6
|
Æ43,6
|
|
4
|
Длинна 180
|
2,5
|
|
-0,9
|
+1,6
|
185
|
|
5
|
Длинна 170
|
2,2
|
|
-0,9
|
+1,6
|
174,4
|
Рисунок 3.2 - Заготовка поковка
Масса поковки (рассчитана с применением САПР):
т
(20,9 кг).
При
ковке образуется окалина, которая составляет 3% от массы годной заготовки. Она
прибавляется к массе ковки. Поэтому масса заготовки будет равна:
т
(21,5 кг).
Стоимость
заготовки, с учетом потери металла на подготовительных операциях, будет равна:
руб.
Выбор
заготовки:
Стоимость
заготовки полученной методом штамповки немного дешевле, чем заготовка из
проката. Это объясняется тем, что заготовка полученная методом штамповки более
приближена к контурам детали.
Так
как количество изготавливаемых фрез невелико и по габаритным размерам фрезы не
большие, то нецелесообразно заказывать специальные поковки с требуемыми
механическими свойствами и макро и микроструктурой. Наиболее оптимальным
решением в нашем случае будет заготовка из проката, к тому же различие в
стоимости заготовок очень небольшое.
Выбор
данной заготовки обеспечивает требуемый химический состав стали, необходимые
механические свойства, оптимальную макро и микроструктуру материала, что очень
важно при изготовлении металлорежущего инструмента.
Заготовка
для изготовления фрезы:
Круг
Ø145
ГОСТ 2590-88 / Сталь Р6М5 ГОСТ 19265-73.
.5
Выбор структуры обработки червячной фрезы
Насадная
модульная червячная фреза может быть обработана по типовому плану. Структурная
схема представлена на рисунке 3.3
Рисунок
3.3 - Структура технологического процесса Маршрут обработки:
.
Отжиг
.
Токарная ЧПУ
.1.
Точить торец
.2.
Точить наружный контур предварительно до Ø141,4 мм
.3.
Сверлить центральное отверстие Ø45 мм
.4.
Расточить отверстие на длину 92 мм
.5.
Точить наружный контур окончательно до Ø140,4 мм
.
Токарная ЧПУ
.1.
Точить торец
.2.
Точить наружный контур предварительно до Ø141,4 мм
.3.
Расточить отверстие на длину 92 мм
.4.
Расточить выборку Ø52
мм L = 72 мм
.5.
Точить наружный контур окончательно до Ø140,4 мм
.Токарно
- винторезная ЧПУ (на оправке)
.1.Точить
Ø140
окончательно
.2.Нарезать
червяк однозаходный с шагом 25,136 мм:
- нарезать червяк первым черновым резцом;
нарезать червяк вторым черновым резцом;
нарезать червяк чистовым резцом;
. Горизонтально - протяжная
- Протянуть
шпоночный паз В=12
глубиной 3,5 мм
6. Горизонтально - фрезерная (на оправке в делительной головке)
- Нарезать 9 стружечных канавок глубиной 34 мм
7. Токарно - затыловочная
- Затыловать зубья
8. Слесарная
- Опиловка, маркировка, срезание неполных витков
9. Термическая
- Закалка, обработка холодом, двукратный отпуск
10. Плоскошлифовальная
- Шлифовать торцы
11. Круглошлифовальная
12. Внутришлифовальная
- Шлифовать внутренний Ø50
13. Шлифовально - затыловочная
- Затыловать спинку зуба
14. Заточная (на оправке в делительной головке)
- Заточить переднюю кромку
15. Химико - термическая.
- Азотирование.
16. Контрольная.
.6 Определение типа производства и формы организации технологических
процессов
Основное технологическое время:
Токарная ЧПУ - 7 мин
Токарная ЧПУ - 7 мин
Токарно - винторезная ЧПУ - 7 мин
Горизонтально - протяжная - 3 мин
Горизонтально - фрезерная - 25 мин
Токарно - затыловочная - 20 мин
Плоско - шлифовальная - 2 мин
Кругло - шлифовальная - 5 мин
Внутри - шлифовальная - 20 мин
Шлифовально - затыловочная - 40 мин
Заточная - 10 мин
Определим тип производства по коэффициенту загрузки:
K
=
, (3.3)
где
Т - среднее технологическое время операции;
N - годовая
программа выпуска, шт.;
Fч - годовой фонд рабочего времени, 2000 часов.
K
=
=0,055.
Данный
коэффициент соответствует среднесерийному производству.
Выбор
формы организации выполнен из четырех наиболее подходящих вариантов:
.
Участки станков по видам обработки
.
Специализированные участки
.
Предметный участок (отделение)
.
Гибкая производственная система (ГПС)
Для
нашей детали наиболее подходящей формой организации технологического процесса
являются участки станков по видам обработки.
.7
Расчет припуска на обработку
Всякая
заготовка, предназначенная для дальнейшей механической обработки,
изготавливается с припуском на размеры готовой детали. Этот припуск,
представляющий излишек материала, необходимый для получения окончательных
размеров и заданного класса шероховатости поверхностей деталей, снимается на
станках режущими инструментами.
Разность
размеров заготовок и окончательно обработанной детали определяет величину
припуска. Припуски разделяют на общие и межоперационные. Под общим понимают
припуск, снимаемый в течение всего процесса обработки данной поверхности - от
размера заготовки до окончательного размера готовой детали. Межоперационным
называется припуск, который удаляют при выполнении отдельной операции. Величина
припуска обычно дается на «сторону», т.е. указывается толщина слоя снимаемого
на данной поверхности. Для цилиндрических деталей припуск дается на «диаметр»,
т.е. указывают двойную толщину слоя, что должно быть оговорено. Припуски бывают
симметричные и асимметричные. Припуск должен быть оптимальным, т.к. чрезмерные
припуски вызывают излишние затраты на изготовление детали и тем самым
увеличивают ее себестоимость, которая складывается из следующих элементов:
затраты на материал, основной заработной платы производственных рабочих,
накладных расходов.
Величины
припусков на обработку и допуски на размеры заготовок зависят от следующих
факторов:
.
материал заготовки,
.
конфигурация и размеры заготовки,
.
вид заготовки и способы ее получения,
.
требования в отношении механической обработки,
.
технические условия в отношении качества и класса шероховатости
поверхности,
точности размеров заготовки.
Из
этого следует, что величина общего припуска зависит от толщины дефектного слоя,
подлежащего снятию, припусков на промежуточные операции, погрешности установки,
шероховатости поверхности. Выполним расчет припуска на наружный диаметр
заготовки по методу профессора Кована.
Минимальный
припуск на диаметр при токарной обработке наружной поверхности вращения:
Z = 2∙(Rz+Т) +
, (3.4)
где
Rz - высота микронеровностей (параметр шероховатости).
Шероховатость поверхности поковки Rz 320, следовательно Rz =320 мкм;
Т
- глубина дефектного поверхностного слоя, выбираем по таблице - на поковку Т =
500 мкм;
ρ - суммарное значение поверхностных отклонений для расчетной поверхности.
Поверхностные
отклонения - это сумма допусков формы и расположения поверхностей. Выбираем по
ГОСТ 24643 - 81 "Числовые значения допусков формы и расположения
поверхностей" следующие данные в зависимости от размера заготовки. ρ = 400 мкм.
-
погрешность установки на выполняемом переходе - это сумма погрешностей
базирования ε
и закрепления εз.
Погрешность
базирования ε
=0, т.к. измерительная база совмещена с установочной,
значит ε=εз, примем ε =300 мкм.
Zток=(320+ 500) +
=1340 мкм
Аналогично
рассчитаем припуск на шлифовальную операцию:
Zшл= 2∙ 80+
==260
мкм
Построим
схему припусков и допусков:
Рисунок 3.4 - Схема припусков и допусков
=80 мкм
Zшл=260 мкм
ток=350 мкм
Zток=1340 мкм
заг=1400 мкм
Рассчитав
размеры припусков и допусков, определим размеры заготовки: поковка Ø149+0,5 мм.
3.8
Выбор оборудования
Выбор
оборудования выполнен для основных станочных операций согласно методике
изложенной в [11.страница 118].
Исходные
данные для выбора металлорежущих станков:
- Вид обработки
Форма и расположение обрабатываемой поверхности
Размеры детали
Размеры обрабатываемой поверхности
Точность обработки
Тип производства
С учетом исходных данных, выбранное оборудование приведено в таблице 3.2
Таблица 3.2 - Технологическое оборудование
|
№
|
Операция
|
Модель станка
|
Характеристика
|
|
1
|
2
|
3
|
4
|
|
1
|
Токарная
|
Токарный станок с ЧПУ
16К20Ф3С5
|
Наибольший диаметр
обработки детали 400 мм; наибольшая длина обрабатываемой детали 900 мм;
частота вращения шпинделя, 12-1600 мин-1.
|
|
2
|
Горизонтально - протяжная
|
Горизонтально - протяжной
станок 7Б56
|
Тяговое усилие, 20 т; длина
рабочего хода ползуна, 100 - 1600 мм; скорость рабочего хода ползуна, 1,5 -
11 м/мин; скорость обратного хода ползуна, 25 м/мин.
|
|
3
|
Фрезерная
|
Горизонтально-фрезерный
станок 6Т83Г
|
Количество скоростей
шпинделя, 31,5-1600об/мин; мощность электродвигателя,10кВт; Размеры рабочей
поверхности стола, 1600×400
мм
|
|
4
|
Токарно-затыловочная
|
Токарно- затыловочный
станок 1Б811:
|
Наибольший диаметр
затылуемой детали, 520 мм; наибольшая длина затылования, 550 мм; диапазон
скоростей подач, 0,1-1мм/об.
|
|
5
|
Плоскошлифовальная
|
Плоскошлифовальный станок
модели 3Б722:
|
Скорость продольного
перемещения станка, 2-40м/мин; наибольший диаметр шлифовального круга, 450
мм; частота вращения шпинделя круга, 1460 об/мин.
|
|
6
|
Круглошлифовальная
|
Круглошлифовальный станок
3Е12
|
Наибольшие размеры
обрабатываемой заготовки: диаметр - 200 мм; длина - 500 мм;
|
|
7
|
Внутришлифовальная
|
Оснастка: поводковый
патрон; вращающийся центр
|
шлифовального круга -
350х40х127;частота вращения шпинделя шлифовальной бабки, 1900-2720 мин-1;
частота вращения внутришлифовального шпинделя, 16750 мин-1.
|
|
8
|
Шлифовально -затыловочная
|
Шлифовально - затыловочный
станок 58823
|
Наибольшая длина
шлифования, 950 мм; частота вращения шпинделя, 0,12 - 37,5 об/мин; наибольший
диаметр шлифовального круга, 500 мм; частота вращения шпинделя круга, 1600
об/мин
|
|
9
|
Заточная
|
Станок
универсально-заточной 3В642:
|
Наибольший диаметр
устанавливаемой детали 250 мм; наибольшая длина изделия, 630 мм; высота
центров, 120 мм; угол поворота стола 90о.
|
.9 Выбор станочных и инструментальных приспособлений
Станочные приспособления выбраны по методике, приведенной в [14.ст. 234].
Исходные данные:
Вид обработки.
Схема базирования.
Габаритные размеры головки.
Точность обработки.
Режущие инструменты, обеспечение доступа инструмента к
обрабатываемой поверхности.
Тип производства.
Тип силового привода.
Модель станка.
Выбранные приспособления приведены в таблице 3.3
Таблица 3.3 - Станочные и инструментальные приспособления
|
№
|
Наименование операции
|
Наименование приспособления
|
|
1
|
Токарная ЧПУ
|
Универсальный
трехкулачковый самоцентрирующийся патрон.
|
|
2
|
Токарно - винторезная ЧПУ
|
Разжимная
самоцентрирующаяся оправка, вращающийся центр.
|
|
3
|
Горизонтально - протяжная
|
Захваты, направляющая
втулка.
|
|
4
|
Горизонтально - фрезерная
|
Оправка, универсальная
делительная головка УДГ-135 и неподвижный центр.
|
|
5
|
Токарно - затыловочная
|
Разрезная оправка, 3-х
кулачковый самоцентрирующийся патрон и вращающийся центр, закрепленный в
задней бабке станка.
|
|
6
|
Слесарная
|
Тиски с призматическими
губками.
|
|
7
|
Резьбо - шлифовальная
|
Аналогично.
|
|
8
|
Плоско - шлифовальная
|
Магнитный стол.
|
|
9
|
Заточная
|
Оправка, универсальная
делительная головка УДГ-135 и неподвижный центр.
|
|
10
|
Внутришлифовальная
|
Шлифовальный патрон,
переходная разрезная втулка.
|
.10 Выбор режущего инструмента
Выбор
режущего инструмента выполнен по методике изложенной в [14,с. 240]; [20,с.
522]. Для токарной обработки наружного, внутреннего диаметров, обработки торцов
выбираем резцы проходные упорные с пластинками из твердого сплава Т5К10 по ГОСТ
18879-73. Размеры державки 25
20, длина
пластины l = 20 мм. Для сверления отверстия - сверло спиральное
по ГОСТ 1452-69 из стали Р6М5. Для нарезания червяка - резец резьбовой с
пластинкой из сплава Т5К6.
Для
фрезерной операции выбираем фрезу фасонную по ГОСТ 9305-69 тип 2.
Для
протяжной операции выбираем протяжку из стали Р6М5.
Для
токарно-затыловочной операции выбираем резец токарный фасонный затыловочный с
пластинкой из сплава Т5К6.
Для
шлифовки зубьев выбираем круг шлифовальный 2П250×10×76; 25А16С28К5 по ГОСТ 2424-83.
Для
плоского шлифования торцов выбираем круг шлифовальный 1111450×203×50;
24А16С28К5 по ГОСТ 2424-83.
Для
внутреннего шлифования выбираем круг шлифовальный ПП32×20×10;
24А16С28К5 по ГОСТ 2424-83.
Выбранные
режущие инструменты приведены в таблице 3.4
Таблица 3.4 - Режущие инструменты
|
Операция
|
Инструмент
|
Материал реж. части
|
Элементы конструкции
|
|
1
|
2
|
3
|
4
|
|
Токарная - Точить торцы,
проточить наружный диаметр, расточить отв., проточить ø52, снять фаски
|
Резец подрезной Упорно -
проходной черновой Упорно - проходной чистовой Расточной упорно - проходной
черновой Расточной упорно - проходной чистовой
|
Т15К6
|
Механическое крепление
|
|
Сверлить отверстие
|
Сверло спиральное ø45
|
Р6М5
|
|
|
Нарезать червяк
|
Резец резьбовой
|
Т5К10, Т15К6
|
Напайной
|
|
Фрезеровать стружечные
канавки
|
Фреза фасонная
|
Р6М5
|
Цельная
|
|
Протяжная - протянуть паз
в=12 глубиной 3,5ммПротяжкаР6М5Цельная
|
|
|
|
|
Токарно-затыловочная-
Затыловать зуб
|
Резец фасонный затыловочный
|
Т5К10
|
Напайной
|
|
Шлифовальная - Шлифовать
зубья
|
Круг шлифовальный
|
Белый электрокорунд на
керамичес- кой связке
|
2-х стороннего конического
профиля
|
|
Плоско-шлифовальная -
Шлифовать торцы
|
Круг шлифовальный
|
Белый электрокорунд на
керамичес- кой связке
|
Прямой профиль
|
|
Внутри-шлифовальная -
Шлифовать отверстие
|
Круг шлифовальный
|
Белый электрокорунд на
керамичес- кой связке
|
Прямой профиль
|
|
Шлифовально-затыловочная
Затыловать спинку
|
Круг шлифовальный
|
Эльборовый на бакелитной
связке
|
Тарельчатый
|
|
Заточная - Заточить
переднюю кромку
|
Круг шлифовальный
|
Эльборовый на бакелитной
связке
|
Тарельчатый
|
.11 Выбор средств измерения и контроля
Средства измерения и контроля выбраны для контрольной операции,
предусмотренной в конце технологического процесса.
Выбор выполнен по методике, изложенной в [11].
Исходные данные:
- Тип контролируемой поверхности и контролируемого параметра
- Габаритные размеры и масса детали
Размер и форма контролируемой поверхности
Точность контролируемого параметра
Тип производства
При выборе средства измерения следует учитывать:
где
δ
- допуск.
Для
контроля наружного диаметра детали выбираем микрометр МК-175 с пределами
измерений 100
125 мм и ценой деления 0,01 мм.
Для
контроля отверстия используем нутромер индикаторный с пределами измерений 18-50
и точностью 0,01 мм.
Выбранные
средства измерения и контроля приведены в таблице 3.5
Таблица
3.5 - Средства измерения и контроля
|
№
|
Контролируемый размер или
параметр
|
Наименование средства
измерения
|
Метрологические
характеристики
|
|
|
|
Предельная погрешность
измерения
|
Пределы измерения
|
Цена деления
|
|
1
|
2
|
3
|
4
|
5
|
6
|
|
1
|
Наружный диаметр
|
Микрометр МК - 175
|
|
125 - 150 мм
|
0,01 мм
|
|
2
|
Отверстие
|
Нутрометр индикаторный
|
|
18 - 150 мм
|
0,01 мм
|
|
3
|
Шпоночный паз
|
Плоскопараллельные концевые
меры ГОСТ 9038 - 59
|
|
0 - 150 мм
|
|
|
4
|
Профиль
|
Инструментальный микроскоп
УИМ−21
|
|
0 - 180 мм
|
0,001 мм
|
|
5
|
Биение
|
Биениемер
|
|
|
0,01 мм
|
|
6
|
Шероховатость
|
Профилометр КВ-7
|
|
±0,003 ±0,006 ±0,03 ±0,06
|
0,0001 0,0002 0,001 0,002
|
.12 Выбор режимов резания для токарной обработки
Режимы резания назначены по методике изложенной в [11].
Общий порядок назначения режимов резания для универсальных станков:
- Глубина резания.
- Подача.
Скорость резания.
Для станков с ЧПУ порядок назначения:
Скорость резания.
Частота вращения шпинделя.
Подача на оборот.
Минутная подача (скорость подачи).
Глубина резания и количество проходов с учетом величины
припуска.
Глубина резания назначалась с учетом характера резания
(чернового или чистового, наружного или внутреннего, проходными или размерными
инструментами).
Подача выбрана с учетом шероховатости поверхности (при чистовой и
получистовой обработке) либо с учетом силы резания во избежание перегрузки
привода или инструмента (при черновой обработке).
Скорость резания выбрана с учетом стабильной работы инструмента и с
учетом теплостойкости материала режущей части. Предельная теплостойкость
инструмента из быстрорежущей стали 600° С обеспечивается использованием
скорости резания 15 - 20 м/мин, для твердосплавных инструментов с учетом
стабильной работы и теплостойкости 800° С могут быть назначены скорости резания
50 - 100 м/мин.
В особых условиях находятся резьбонарезные инструменты - скорость резания
ограничивается функциональной связью с движением подачи и принимается 5 - 10
м/мин.
Таблица 3.6 - Режимы резания для токарной операции
|
Операция
|
Глубина резания
t, мм
|
Подача S, мм/об
|
Скорость
резания V, мм/мин
|
|
Подрезать торцы
черновая
|
3
|
0,1
|
60
|
|
Проточить
наружный диаметр ø140
черновая чистовая
|
2 0,5
|
0,1 0,05
|
60 50
|
|
Сверлить
отверстие ø45
|
-
|
0,3
|
20
|
|
Расточить
отверстие ø50H7 черновая
чистовая
|
0,8 0,2
|
0,07 0,03
|
30 50
|
|
Нарезать червяк
черновая чистовая
|
0,4 0,22
|
Ручная Ручная
|
25 25
|
Таблица 3.7 - Режимы резания для фрезерной операции
|
Операция
|
Глубина резания
t, мм
|
Подача S, мм/об
|
Скорость
резания V, м/мин
|
|
Фрезерование стружечных
канавок
|
4
|
0,2 мм/зуб
|
27,9
|
Таблица 3.8 - Режимы резания для горизонтально - протяжной операции
|
Операция
|
Глубина резания
t, мм
|
Ход , мм
|
Скорость
резания V, м/мин
|
|
Протянуть паз В=12 глубиной
h=3,5
|
3,5
|
200
|
10
|
Таблица 3.9 - Режимы резания для токарно-затылочной операции
|
Операция
|
Глубина резания
t, мм
|
Ход резца, мм
|
Скорость
резания V, м/мин
|
|
Затыловать зуб
|
1
|
35
|
20
|
Операция
|
Скорость круга Vк,
м/с
|
Скорость заготовки SKр, м/мин
|
Глубина шлифования t,
мм
|
|
Черновое шлифование
|
35
|
40
|
0,020
|
|
Чистовое шлифование
|
35
|
40
|
0,015
|
Таблица 3.12 - Режимы резания для плоско-шлифовальной операции
|
Операция
|
Глубина резания
t, мм
|
Продольная
подача S, мм/мин
|
Поперечная
подача Sпоп, мм/дв. ход
|
Скорость круга V, м/с
|
|
Шлифовать торцы
|
0,02
|
35
|
4
|
35
|
Таблица 3.13 - Режимы резания при внутреннем шлифовании
|
Операция
|
Глубина резания
t, мм
|
Продольная
подача S, дв. ход/ мин
|
Кругвая подача Sкр, м/мин
|
Скорость
заготовки V, м/с
|
|
Шлифовать отверстие
|
0,02
|
120
|
20
|
15
|
.13 Определение технической нормы времени
Расчет норм штучно-калькуляционного времени в условиях мелкосерийного
производства выполнен для основных станочных операций.
Нормирование выполнено по методике изложенной в [11.с. 164]; [14.с. 450];
[26.ст. 389].
Норма штучно-калькуляционного времени:
Тшт.к.= to + tв + tтех + tорг + tп + tп-з , (3.5)
где to- основное (технологическое) время,
мин;
, (3.6)
где
tв-
вспомогательное время, определяется с учетом продолжительности вспомогательных
приемов и холостых ходов, мин;
tтех- техническое требование, время технического ухода за
станком, мин;
tтех= 10% ÷
12% ∙ to ,
(3.7)
где
tорг-
организационное время, мин;
tорг= 10% ÷
12% ∙ (to + tв) , (3.8)
где
tп- время
перерывов, мин;
tп=2,5% ∙ (to + tв) , (3.9)
где
tп-з-
подготовительно-заключительное время, время на запуск партии, мин;
tп-з= , (3.10)
Компоненты
нормы времени приведены в таблице 3.14
Таблица
3.14 - Нормы времени
|
№ пер
|
Наименование операции,
перехода
|
to
|
tв
|
tтех
|
tорг
|
tп
|
tп-з
|
Тшт.к
|
|
1
|
2
|
3
|
4
|
5
|
6
|
7
|
8
|
9
|
|
2. 2.1. 2.2. 2.3. 2.4.
|
Токарная ЧПУ Точить торец
Точить наружный контур предварительно Сверлить отверстие Расточить отверстие
предварительно
|
13,7 3,2 6,2 1,8 2,5
|
0,33
|
1,37
|
1,4
|
0,35
|
1,5
|
18,65
|
|
3. 3.1. 3.2. 3.3. 3.4.
|
Токарная ЧПУ Точить торец
Точить наружный контур предварительно Расточить отверстие предварительно
Расточить выборку
|
15,5 3,2 6,2 2,5 3,6
|
0,33
|
1,55
|
1,58
|
0,39
|
1,5
|
20,85
|
|
4. 4.1. 4.2.
|
Токарно- винторезная ЧПУ
Точить наружный контур окончательно Нарезать червяк черновая чистовая
|
28,4 24,8 1,8 1,8
|
0,33
|
2,84
|
2,87
|
0,72
|
1,5
|
36,66
|
|
5.
|
Горизонтально - протяжная
|
4,5
|
1,5
|
0,45
|
0,6
|
0,15
|
1,5
|
8,7
|
|
6.
|
Горизонтально - фрезерная
|
9,9
|
1,5
|
0,99
|
1,14
|
0,28
|
1,5
|
15,31
|
|
7.
|
Токарно - затыловочная
|
10,7
|
1,5
|
1,07
|
1,22
|
0,31
|
1,5
|
16,3
|
|
10.
|
Плоскошлифовальная
|
3
|
1,5
|
0,3
|
0,45
|
0,11
|
1,5
|
6,86
|
|
11.
|
Круглошлифовальная
|
6,5
|
3,5
|
0,65
|
1
|
0,25
|
1,5
|
13,4
|
|
12.
|
Внутришлифовальная
|
5,3
|
3,5
|
0,53
|
0,88
|
0,22
|
1,5
|
11,71
|
|
13.
|
Шлифовально - затыловочная
|
13,5
|
1,5
|
1,35
|
1,5
|
0,37
|
1,5
|
19,72
|
|
14.
|
Заточная
|
5,8
|
1,5
|
0,58
|
0,73
|
0,18
|
1,5
|
10,29
|
.14 Выбор средств транспортировки
Выбор транспортных средств выполнен с учетом:
- Объект транспортировки.
- Форма организации технологического процесса (расстояние между
технологическим оборудованием; проезды и проходы).
Масса детали и ее габаритные размеры.
Наличие легко повреждаемых и повреждающих поверхностей.
Форма и конструкция тары.
Требования охраны труда.
Конкретные производственные условия.
В качестве средств для транспортировки рекомендуются: ручная тележка с
гидроподъемником и специальная тара с индивидуальными ячейками для
транспортировки заготовок и готовых изделий. Для транспортировки крупных
объектов используется кран - балка.
Составление управляющей программы для станка с ЧПУ:
Порядок проектирования:
Выбор состава переходов.
Выбор режущих инструментов.
Выбор режимов резания.
Составление геометрической информации.
Составление текста управляющей программы.
Выбор состава переходов на операцию №2, согласно маршруту обработки:
Точить торец.
Точить наружный контур предварительно.
Сверлить центральное отверстие.
Точить отверстие предварительно на длину 92 мм.
Точить отверстие окончательно Ø49,6 мм.
Точить наружный контур окончательно.
Режущие инструменты:
- Резец
подрезной , Т5К10.
Резец
упорно - проходной черновой , Т5К10.
Сверло
Ø45,
Р6М5.
Резец
расточной упорно - проходной черновой , Т5К10.
Резец
расточной упорно - проходной чистовой , Т5К10.
Резец
упорно - проходной чистовой , Т5К10.
Таблица 3.15 - Режимы резания
|
№
|
V, м/мин
|
n, об/мин
|
S000
|
S0, мм/об
|
F, мм/мин
|
t, мм
|
Lр, мм
|
|
1
|
60
|
125
|
S041
|
0,1
|
13
|
2
|
100
|
|
2
|
60
|
125
|
S041
|
0,1
|
13
|
2+1,8
|
285
|
|
3
|
20
|
180
|
S042
|
0,3
|
54
|
-
|
200
|
|
4
|
30
|
355
|
S044
|
0,07
|
25
|
2x0,8+0,5
|
276
|
|
5
|
50
|
355
|
S044
|
0,03
|
11
|
0,2
|
93
|
|
6
|
100
|
250
|
S043
|
0,05
|
13
|
0,5
|
137
|
ЗАКЛЮЧЕНИЕ
Мы завершили расчет и проектирование упаковочного шнекового полуавтомата.
В ходе работы были произведены расчеты, необходимые для качественной оценки
целесообразности внедрения данного проекта. А именно был произведен анализ
состояния вопроса. Разработка принципа работы и расчет пневмодозатора
устройства для сброса мешков. Исходя из данных расчетов в качестве двигателя
был принят пневмоцилиндр возвратно поступательного движения, с диаметрами
штоков 32 мм. и общим рабочим ходом 300 мм. Также была выбрана насосная
установка с рабочим давлением 6,3 МПа. Управление данным приводом осуществляется
с помощью электромагнитного распределителя и дросселя.
Также был произведен расчет привода конвейера, для перемещения мешкотары.
В ходе проектирования был выбран электродвигатель переменного тока и червячный
редуктор Ч-160М-16-52-1-2-Ц-Ц-У3 . Был разработан эскиз приводного вала,
выбраны подшипники для него с расчетом их долговечности, которая составила 1,16
млн. часов.
В технологической части данного проекта был спроектирован процесс
изготовления детали червячная модульная фреза. В ходе разработки процесса
произведен расчет необходимых операций, включающих токарную обработку на станке
с ЧПУ 1К62-Ф3, фрезерную, вертикально-сверлильную и круглошлифовальную. Также
произведен выбор необходимых инструментов и приспособлений для них. Рассчитаны соответствующие
режимы резания. Была рассчитана и спроектирована червячная фреза для
изготовление зубчатого колеса.
В ходе работы по обеспечению безопасности и экологичности проекта
проанализированы опасные и вредные факторы на участке ЭШОС, разработаны меры по
обеспечению безопасных и здоровых условий труда, с расчетом заземляющего
устройства для полуавтомата. Также разработаны меры по обеспечению устойчивой
работы участка в условиях чрезвычайной ситуации и меры по охране окружающей
среды.
Целесообразность внедрения предлагаемого проекта подтверждена
технико-экономическими расчетами. Размер ожидаемой прибыли при условии работы
оборудования на протяжении одного года составляет 30
млн.руб. Индекс рентабельности составляет 30 что больше 1 следовательно проект
рентабелен.
СПИСОК ИСПОЛЬЗОВАННЫХ ИСТОЧНИКОВ
1. Адам, А. И. Справочник зубореза / А.И. Адам, Г. Г. Овумян
- М.:Машиностроение, 1971.-232 с.
2. Анурьев, В.И. Справочник конструктора
машиностроителя: учебник в 3 т. Т1 / В.И. Анурьев.- М.: Машиностроение, 1992. -
816 с.
. Анурьев, В.И. Справочник конструктора
машиностроителя: учебник в 3 т. Т2 / В.И. Анурьев. - М.: Машиностроение, 1992.
- 632 с.
. Анурьев, В.И. Справочник конструктора
машиностроителя: учебник в 3 т. Т3 / В.И. Анурьев. - М.: Машиностроение, 1992.
- 540 с.
5. Алексеев,Г.А. «Конструирование
инструмента» / Г.А. Алексеев, В.А. Аршинов. - М.: Машиностроение, 1979 . - 384
с.
6. Бавельский,М.Д. Справочник по пневмоприводу и
пневмоавтоматике деревообрабатывающего оборудования / М.Д. Бавельский, С.И. Девятов.
- М.: «Лесная промышленность», 1983. - 168с.
7. Блюмберг, В.А. Справочник фрезеровщика / В.А.
Блюмберг, Е.И. Зазерский-Л.: Машиностроение, 1984.- 288 с.
. Герц,Е.В. Расчет пневмоприводов. Спрвочное пособие /
Е.В. Герц, Г.В. Крейнин. - М.: Машиностроение, 1975. - 272 с. с ил.
. Гидропневмопривод и гидропневмоавтоматика станочного
оборудования: методические указания к выполнению курсовой работы: Часть I.
Статический расчет и конструирование гидропривода / сост. В.Н. Колпаков. -
Вологда: ВоПи, 1994.
. Гинзбург,Е.Г. Зубчатые передачи / Е.Г. Гинзбург. -
Л.: Машиностроение, 1980. - 416 с.
. Горбацевич,А.Ф. Курсовое проектирование по
технологии машиностроения . Учебное пособие для машиностроительных спец. Вузов
- 4-е изд., перераб. и доп. / А.Ф. Горбацевич, В.А. Шкред. - Минск.: Высшая
школа, 1983. - 256 с. ил.
. ГОСТ 8027-86 (СТ СЭВ 880- 78). Фрезы червячные для
шлицевых валов с прямобочным профилем. Технические условия. - Введ. 01.01.1988.
- Москва: Издательство стандартов, 1991. - 22 с.
. Детали машин: Учеб. для студентов вузов / Под ред.
М.Н. Иванов, В.А. Финегенова - 6-е изд., перераб. - М.: Высшая школа, 2000. -
383с.
. Егоров, М.Е. Технология машиностроения. / М.Е.
Егоров , В.И. Дементьев , В.Л. Дмитриев - М: Высшая школа,1976. - 534 с.
. Курсовое проектирование деталей машин: учеб.
пособие для учащихся машиностроительных специальностей техникумов / С.А.
Чернявский, К.Н. Боков, И.М. Чернин и др. - 2-е изд., перераб. и доп. - М.:
Машиностроение, 1988. - 416 с.
16. Люткевич, Г.Г. «Расчёт зуборезного
инструмента» / Г.Г. Люткевич, А.Н. Волков - Новочеркасск: НПИ, 1978 г. - 80с.
. Общемашиностроительные нормативы режимов резания
для технического нормирования работ на металлорежущих станках - М.:
Машиностроение, 1974. - 416 с.
. Организация, планирование и управление
деятельностью промышленного предприятия / под ред. В.В. Осмоловского - Мн.:
Высш. школа, 1984.
. Организация, планирование и управление
деятельностью промышленного предприятия / под ред. С.М. Бухало - Киев.: Высш.
школа, 1989.
. Панова, А.А. Обработка металлов резанием / А.А.
Панова - М.: Машиностроение, 1988. - 736 с.
. Полетаев, В.П. Детали машин: методические указания
к курсовому проекту. Энергокинематический расчет привода / В.П.Полетаев, А.А.
Усов. - Вологда.: ВоГТУ, 2003. - 16 с.
. Романов, В.Ф. Расчеты зуборезных инструментов /
В.Ф. Романов. - М.: Машиностроение, 1969. - 251 с. ил.
. Семенченко,И.И
«Проектирование металлорежущих инструментов» / И.И. Семенченко, В.М. Матюшин. -
М.: Машгиз, 1962 . - 952 с.
. Справочник металлиста. Т. 3. / под ред. А. Н.
Малова. - М.: Машиностроение, 1977. - 748 с.
. Справочник технолога-машиностроителя. В 2-х т. С74
Т.2 / под ред. А.Г. Косиловой, Р.К. Мещерякова. - 4-е изд., перераб. и доп. -
М.: Машиностроения, 1985. 638с., ил.
. Справочник технолога-машиностроителя / под ред.
А.Г. Косиловой. - М.: Машиностроение, 1985. - Т. I . - 656 с.
. Средства защиты в машиностроении: Расчет и
проектирование: Справочник / С.В. Белов, А.Ф. Козьяков, О.Ф. Партолин и др. -
М.: Машиностроение, 1989. - 368с.
. Чернавский, С.А. Курсовое проектирование деталей
машин: Учебное пособие для учащихся машиностроительных специальностей
техникумов - 2- е изд., пераб и доп. / С.А. Чернавский. - М.: Машиностроение,
1988. - 416 с.
. Шейнблит, А.Е. Курсовое проектирование деталей
машин / А.Е. Шейнтблит. - Калининград, 1999. - 454 с.
. Экономика, организация, планирование и управление
деятельностью промышленного предприятия / под ред. И.А.Лисицына. - Мн.: Высшая
школа, 1990.
. Элементы и устройства пневмоавтоматики высокого
давления. Отраслевой каталог - М.: 1990.
Похожие работы на - Модернизация установки упаковочного шнекового полуавтомата
|