Разработка методики автоматизированного инженерного анализа установки обеззараживания воды
СОДЕРЖАНИЕ
ВВЕДЕНИЕ
. АНАЛИЗ СОСТОЯНИЯ ВОПРОСА
АВТОМАТИЗИРОВАННОГО ПРОЕКТИРОВАНИЯ РЕЗЕРВУАРА ОБЕЗЗАРАЖИВАНИЯ ВОДЫ
1.1 Применение ультразвукового и
ультрафиолетового излучений для обеззараживания воды
.2 Гидравлические процессы в рабочей
емкости резервуара
.3 Прочностные свойства компонентов
резервуара
.4 Применение современных инженерных
программных сред
.5 Метод конечных элементов
.6 Постановка цели и задачи
исследования
2. ПРОЕКТИРОВАНИЕ И РАСЧЕТ СОСУДОВ, РАБОТАЮЩИХ ПОД ДАВЛЕНИЕМ
2.1 Общие положения при проектировании
и расчете сосудов, работающих под давлением
.2 Описание и устройство установки
.3 Гидравлические испытания
.4 Механические испытания
3. КОНЕЧНО-ЭЛЕМЕНТНОЕ МОДЕЛИРОВАНИЕ РЕЗЕРВУАРА, РАБОТАЮЩЕГО ПОД
ДАВЛЕНИЕМ
3.1 Анализ потока жидкости в среде FlowSimulation
.2 Исследование потока жидкости
.3 Исследование прочностных свойств в
среде Simulation
.4 Критерии прочности, используемые
при расчетах в среде Simulation
.5 Расчет резервуара на прочность в
среде Simulation
4. АНАЛИЗ РЕЗУЛЬТАТОВ НАПРЯЖЕННО-ДЕФОРМИРОВАННОГО СОСТОЯНИЯ
4.1 Аналитическая оценка допустимых
нагрузок на элементы сосуда
.2 Анализ результатов расчета напряженно-деформированного
состояния
.3 Методика расчета установки
5. ОПТИМИЗАЦИЯ КОНСТРУКЦИИ УСТАНОВКИ
И СРАВНЕНИЕ РЕЗУЛЬТАТОВ
5.1 Оптимизация конструкции установки
и расчет потока жидкости
.2 Анализ статической прочности
оптимизированной конструкции
ЗАКЛЮЧЕНИЕ
СПИСОК ИСПОЛЬЗОВАННЫХ ИСТОЧНИКОВ
ПРИЛОЖЕНИЕ
ВВЕДЕНИЕ
На сегодняшний день многие организации начинают активно оснащать свое
производство установками для обеззараживания воды. Наиболее ответственными
компонентами в них являются места соединений фланцев с основным корпусом
(трубой), а также отверстия болтовых соединений.
Требование безопасности делает необходимым проведение испытаний
конструкции на прочность при давлении воды в рабочем и аварийном режимах.
В условиях современного машиностроительного производства расчеты на
прочность играют важную роль при создании конечного изделия.
В процессе эксплуатации основную нагрузку воспринимают фланцы, которые
служат опорами кварцевых чехлов с расположенными внутри них ультрафиолетовыми
(УФ) лампами. Основная опасность заключается в том, что при деформации фланцев
увеличивается риск повреждения чехлов и УФ ламп.
Это связано с ошибками при проектировании изделия, несоблюдением
технологии производства, дефектами материалов, а также с потерей прочностных
качеств в результате превышения рабочего давления в процессе эксплуатации.
При расчете сосудов и аппаратов, работающих под давлением, руководствуются
нормативными документами. Но они имеют ряд ограничений, накладываемых на
расчетную модель.
Появление новых программных сред придало импульс совершенствованию
инженерных методов анализа. Средства автоматизации, основанные на численных
методах, стали неотъемлемой частью процесса проектирования.
Использование специализированных расчетных программных модулей,
основанных на применении метода конечных элементов (МКЭ), дает возможность
инженеру снизить риски возникновения ошибок при проектировании конструкции.
Применение CAE - систем позволяет учитывать
различные факторы: наличие сварных швов, температурные градиенты, тип
соединений компонентов и т. д. Поэтому анализ прочности и надежности
резервуаров, работающих под давлением, является актуальной задачей.
Таким образом, целью магистерской диссертационной работы является анализ
напряженно-деформированного состояния компонентов резервуара и разработка
методов оптимизации конструкции на примере установки для обеззараживания воды.
Для этого рассматривается конечно-элементная модель самой емкости,
производится анализ и оценка допускаемых напряжений, отмечаются недостатки
конструкции фланцев, сравнение результатов с нормативными документами и ГОСТ,
оценка нормальных напряжений, предлагается методика по расчету конструкции.
1. АНАЛИЗ СОСТОЯНИЯ ВОПРОСА
АВТОМАТИЗИРОВАННОГО ПРОЕКТИРОВАНИЯ РЕЗЕРВУАРА ОБЕЗЗАРАЖИВАНИЯ ВОДЫ
1.1
Применение ультразвукового и ультрафиолетового излучений для обеззараживания
воды
В наше время потребность в качественной воде резко увеличилась. Чтобы
вода была пригодна для употребления использования, ее необходимо предварительно
очистить от примесей. На сегодняшний день основным способом обеззараживания
воды является хлорирование. Крупнейшим недостатком данного метода
обеззараживания воды является способность хлора образовывать новые, более
ядовитые вещества с другим характером действия. В 70-х годах ХХ века было
выяснено, что хлорорганические вещества являются устойчивыми и могут оказывать
длительное неблагоприятное действие, вследствие повторного нарушения функций
организма человека [10].
Это послужило серьезным импульсом в поиске и разработке альтернативных
методов обеззараживания воды. Среди множества методов физического и химического
воздействия на микроорганизмы наибольшее применение в промышленности получили
следующие:
. Из реагентных - применение диоксида хлора (ClO2), озона (О3) и пероксида (перекиси)
водорода (Н2О2);
. Из физических - облучение ультрафиолетом (УФ).
В нашей стране разрабатывается и внедряется промышленное оборудование для
обеззараживания воды, сочетающее в себе совместное действие ультрафиолетового и
ультразвукового излучения.
Ультразвук представляет собой упругие волновые колебания, имеющие частоту
выше, чем может воспринимать человек, - 15 - 20 кГц (рисунок 1) [4].
При воздействии ультразвукового излучения на жидкость возникают
специфические физические, химические и биологические явления - кавитация,
диспергирование, эмульгирование, капиллярный эффект, дегазация, локальный
нагрев, обеззараживание и пр. [5].
Рисунок 1 - Звуковая шкала
Введение в зону обработки упругих колебаний достаточной мощности с
ультразвуковой частотой позволяет получить уровни обеззараживания, достижение
которых только лучевой энергией невозможно. Вода подвергается комплексному
ультразвуковому воздействию, при котором происходит дробление бактериальных
кластеров на более мелкие элементы, разрушение микроорганизмов и преобразование
органических фаз.
Ультразвук порождает в воде кавитацию (локальные микровзрывы пузырьков по
всему объёму), возникающую при интенсивностях звукового поля выше порогового
значения 0,3 - 1 Вт/см2, и акустические течения. Увеличение частоты приводит к
росту порогового значения интенсивности, соответствующего началу кавитации. Чем
ниже частота, тем проще добиться эффекта кавитации, поэтому во многих
устройствах используют ультразвук частотой 20 - 22 кГц [6].
Применение в промышленных установках обеззараживания воды совместного
действия ультразвука и ультрафиолета несет в себе двойную функцию:
· они непрерывно очищают кварцевый чехол УФ лампы, и он
длительное время остаётся прозрачным. Таким образом, отпадает необходимость
останавливать установку для промывки, как это часто случается с оборудованием,
использующим только ультрафиолетовое излучение;
· ультразвук сам по себе обладает обеззараживающим эффектом,
поскольку кавитация разбивает скопления микробов и поражает клеточные оболочки,
делая их более уязвимыми для ультрафиолетовых лучей. Таким образом, можно
говорить об обеззараживании воды в едином светозвуковом поле.
Применение ультразвука для водоподготовки основано на выполнении
гигиенических требований к качеству питьевой воды согласно санитарным правилам
и нормам [11, 12, 18]:
· СанПиН 2.1.4.1074-01;
· СанПиН 2.1.4.1116-02;
· ГОСТ 12.2.051-80 и др.
Объектом исследования магистерской диссертации была выбрана камера для
обеззараживания воды, произведенная фирмой «Новотех - ЭКО», используют
технологию совместного действия УЗ волн и УФ излучения (рисунок 2). Они могут
быть внедрены на водозаборных станциях после всех стадий очистки перед подачей
воды в трубопровод.
Рисунок 2 - Модель камеры
Такие установки изготавливаются в виде резервуара проточного типа
различной конфигурации (рисунок 3).
Рисунок 3 - Исполнение рабочей емкости установки
1.2
Гидравлические процессы в рабочей емкости резервуара
Жидкость в гидравлике рассматривается в качестве непрерывной среды,
которая заполняет пространство без пустот и промежутков. Ввиду подвижности
частиц (текучести) в жидкости действуют не сосредоточенные силы, а постоянно
распределенные по ее поверхности или объему. В связи с этим силы,
воздействующие на объемы жидкости и являющиеся по отношению к ним внешними,
делятся на поверхностные и объемные (массовые).
Массовые силы пропорциональны массе жидкости или ее объему (применимо к
однородной жидкости). К ним относятся сила инерции поперечного движения, а
также сила тяжести, действующая на жидкость.
Поверхностные силы непрерывно рассредоточены по поверхности жидкости и
пропорциональны площади ее поверхности. Они обусловлены непосредственным
воздействием соседних объемов жидкости на данный объем или воздействием других
тел (твердых или газообразных), соприкасающихся с данной жидкостью.
В процессе эксплуатации внутри камеры возникают различные процессы,
связанные с протеканием воды через рабочую емкость. Опыты английского физика О.
Рейнольдса установили, что характер течения жидкостей в трубах зависит
от следующих четырех факторов:
· средней скорости жидкости;
· диаметра трубопровода;
· динамической вязкости жидкости;
· плотности жидкости.
Вязкость (или внутреннее трение) - это способность текучих тел оказывать
сопротивление перемещению одной их части относительно другой.
Внутреннее трение жидкостей возникает при движении жидкости вследствие
переноса импульса в направлении, перпендикулярном к направлению движения.
Помимо всего прочего от действия УЗ излучателей в емкости образуется
кавитация (рисунок 3). Кавитация - это образование разрывов сплошности жидкости
в результате местного понижения давления. Если понижение давления происходит по
причине возникновения больших местных скоростей в потоке движущейся капельной
жидкости, то такая кавитация называется гидродинамической, а если ввиду
прохождения в жидкости акустических волн, то акустической.
Рисунок 3 - Образование кавитации
Акустическая кавитация порождает ряд эффектов. Некоторая часть из них
обязана своим происхождением ударам при захлопывании полостей и
микроскопическим потокам в непосредственной близости к пузырькам
(эмульгирование жидкостей, очистка, диспергирование и разрушение твердых тел).
Другие эффекты (катализаторы химических реакций) связаны с ионизацией при
образовании полостей.
В процессе испытаний и эксплуатации в рабочей емкости возникает такое
явление как гидравлический удар. Его возникновение основано в результате
резкого повышения давления при внезапной остановке движущейся жидкости. Данное
явление проявляется при быстром закрывании различных запорных устройств
(кранов, вентилей и т. д.).
Гидродинамические процессы сопровождаются высокоскоростным
распространением волн повышенного давления, которые носят характер
гидравлического удара. В результате подобного удара возникают порывы в наиболее
ослабленных местах трубопроводной системы, которая, по причине износа, не
способна выдержать ударные динамические нагрузки.
Существует несколько способов устранения гидроудара:
· замена шаровых кранов на вентили или винтовые задвижки;
· использование демпфирующих устройств (воздушные карманы,
обратные клапаны, разрушаемые мембраны, стабилизаторы давления).
Гидродинамические процессы являются источником 70% всех аварий и
инцидентов на трубопроводах, в которых движутся значительные массы жидкости с
большими скоростями, что приводит к деформации и их разрушению.
1.3
Прочностные свойства компонентов резервуара
На сегодняшний день к резервуарам, работающим под давлением, наряду с
герметичностью, предъявляют высокие требования по безопасности и надежности.
Удовлетворение этих требований зависит от качества комплектующих изделий,
технологии, сборки и пр. Однако этого бывает недостаточно, чтобы обеспечить
работоспособность изделия в целом.
Одними из главных особенностями резервуаров являются прочность и
жесткость.
Под прочностью понимается способность материалов и механизмов
сопротивляться разрушению под действием внешних сил.
Жесткость - это способность деталей машин и механизмов сопротивляться
изменению их формы и размеров под действием внешних сил.
Наиболее частыми причинами разрушения сосудов являются:
недостатки конструкции;
превышение предельно допустимого давления;
потеря механической прочности материала сосуда из-за коррозии, внутренних
дефектов, перегрева и т.д.;
неисправность защитных устройств;
неправильная эксплуатация.
Стенки резервуаров работают в условиях растягивающих напряжений, часто
при повышенных температурах, нередко в контакте с активными и агрессивными
средами. В целях обеспечения безопасности работы необходимо задавать достаточно
большие запасы прочности. Однако толщина сосудов должна быть ограниченной из-за
технологических, экономических и других соображений. Иногда масса сосудов
давления ограничена условиями технической осуществимости проекта в целом.
Повреждение и разрушение как результат развития трещин - типичная форма
предельного состояния сосудов, работающих под давлением, а также трубопроводов.
Пробной гидравлической нагрузкой испытывают замкнутые сосуды типа паровых
котлов и сосудов, работающих под давлением, в том числе и трубопроводы. В
правилах устройства и эксплуатации при гидравлических испытаниях ставится
задача проверки прочности конструкции и герметичности сварных швов и
соединений. Однако в действительности при подобных испытаниях создаются такие
условия работы конструкции, при которых пробная нагрузка значительно меньше
коэффициента запаса прочности (безопасности). В этом случае можно говорить лишь
о частичной проверке прочности, так как в основном, при гидравлических
испытаниях проверяется непроницаемость сварных швов и соединений.
На сегодняшний день не существует конкретных методик расчета элементов
резервуаров на прочность с учетом гидравлического воздействия потока жидкости.
Поэтому, создание методов расчета, оптимизация конструкции и адаптация объекта
исследования к требованиям стандартов является актуальной темой данного
исследования.
1.4
Применение современных инженерных программных сред
Сокращение сроков проектирования технического оборудования формирует
необходимость использования при их создании современных методов исследования
различных физических процессов. В современных программных продуктах, получивших
название Computer Aided Engineering (CAE - компьютерная поддержка инженерного
анализа), численные методы получили широкое распространение и применение в
инженерной среде.
Основной причиной широкого распространения CAE - систем является
интенсивный рост вычислительных мощностей компьютеров и признание роли
компьютерного моделирования для повышения качества выпускаемой продукции,
ускорения производства новых изделий и снижения затрат на их разработку.
Современные CAE - продукты становятся более удобными в эксплуатации. При
этом совершенствование аналитического программного обеспечения сопровождается
снижением стоимости и повышением доступности высокопроизводительных
компьютеров, поскольку инженерные расчёты требуют большой вычислительной
мощности.
В данной магистерской работе прочностные расчеты выполняются с помощью
программы SolidWorks. Ее возможности позволяют инженеру
выполнять анализ прочности деталей и кинематики механизмов, создавать
трехмерные детали и сборки, оформлять конструкторскую документацию в
соответствии с требованиями ГОСТ.
Анализ потока жидкости осуществляется в среде Flow Simulation. Данный модуль обеспечивает
проведение газо- и гидродинамических расчетов.
Анализ потока жидкости осуществляется в среде Flow Simulation. Данный модуль предназначен для
применения в различных отраслях промышленности (теплообмен и вентиляция в
помещениях, радиоэлектронная промышленность, трубопроводная арматура, авиация,
кораблестроение и др.) и проведения газо- и гидродинамических расчетов.
В процессе проектирования сложных технических изделий возникает
потребность проведения натурных экспериментальных аэро-, гидро- и
термодинамических исследований, которые позволяют определить работоспособность
отдельных узлов изделия в конкретных условиях эксплуатации. Недостатком такого
подхода является увеличение времени на подготовку таких исследований и их
высокая стоимость.
Современным путем создания высокоэффективной техники является
использование параметрических численных исследований, которые с достаточно
высокой точностью моделируют рассматриваемые физические явления.
При этом такие типы расчетов выполняются с помощью программного
обеспечения, основанного на достаточно адекватных рассматриваемым физических
явлениям математических моделях и обеспечивающей проведение гидро- и
термодинамических расчетов в рамках приемлемого промежутка времени.
Программный модуль FlowSimulation, основанный на последних достижениях
вычислительной гидро- и газодинамики, делает возможным осуществление достаточно
широкого круга инженерных задач. При этом в качестве граничных условий могут
быть заданы параметры на стенке (реальной или идеальной), во входных и выходных
отверстиях, приточные и вытяжные вентиляторы, температура, тепловые и
радиационные потоки, объемные и поверхностные источники тепла.
Для привязки математической модели к инженерной задаче и к конкретной
расчетной области в SolidWorks FlowSimulation применяется метод фиктивных
областей.
Необходимость задания начальных условий (значений физических параметров
среды в расчетной области) определяется используемой математической моделью и
методами их решения. Задание же граничных условий (условий на границах
расчетной области) обязательно для любой задачи, поскольку именно они
определяют взаимосвязь физических процессов в расчетной области с процессами,
протекающими вне ее.
В зависимости от способа задания границ расчетной области все задачи
вычислительной гидро-, термодинамики подразделяются на внутренние и внешние.
Во внутренних задачах заполненная текучей средой расчетная область
ограничена стенками модели, при этом некоторые поверхности стенок
рассматриваются в качестве входного и выходного отверстий модели.
Во внешних задачах расчетная область, которая заполнена текучей средой,
ограничена плоскостями расчетной сетки, параллельными координатным плоскостям и
полностью лежащими в текучей среде, которая обтекает модель.
Для нахождения искомого численного решения задачи непрерывная нестационарная
математическая модель физических процессов дискретизируется по пространству и
времени. Для дискретизации по пространству расчетная область разбивается
конечно-элементной сеткой, грани ячеек которой параллельны плоскостям,
применяемой в SolidWorks декартовой системы координат.
Другой модуль - Simulation позволяет проводить статический и динамический анализ (линейный и
нелинейный) на основе метода конечных элементов (МКЭ). Применение таких программных сред и их модулей в инженерной
практике ускоряет процесс проектирования изделия и его последующий анализ.
позволяет еще на стадии проектирования учитывать многие нюансы и создавать
оптимальные изделия.
1.5 Метод
конечных элементов
Метод конечных элементов (МКЭ) - это метод приближенного численного
решения интегральных, а также дифференциальных уравнений с частными
производными, возникающих при выполнении различных инженерных задач. В его
основе лежат две главные особенности:
. дискретизация исследуемого объекта на конечные элементы;
. кусочно-элементная аппроксимация исследуемых функций.
Историческими предшественниками МКЭ были различные методы строительной
механики и механики деформируемого твердого тела, которые использовали
дискретизацию. Пуассон в начале XIX
века предложил рассматривать сплошную среду в качестве системы конечных
объемов. Д. Максвелл, А. Кастильяно и их современники во второй половине XIX века заложили основы анализа
стержневых конструкций. В дальнейшие годы были сформулированы метод сил, а
потом уже и метод перемещений.
Технический прогресс XX
века, быстрое развитие и совершенствование цифровых электронных вычислительных
машин способствовали созданию условий для развития расчетных алгоритмов,
основанных на декомпозиции конструкций. Активное применение ЭВМ в инженерных
расчетах берет начало с 50-х годов, что способствовало появлению различных
матричных методов анализа конструкций.
В 1960 г. Клаф ввел термин «конечные элементы». Мелош в 1963 г. доказал,
что МКЭ можно рассматривать в качестве варианта метода Ритца. В вариационном
методе Ритца исходная функция аппроксимируется конечной функцией базисных
функций, умноженных на неизвестные коэффициенты. базисные функции должны
удовлетворять граничным условиям задачи. Данное ограничение было снято Курантом
в 1943 г., который решал задачу о кручении методом Ритца. Он использовал
кусочно-линейные аппроксимирующие функции на треугольных подобластях - конечных
элементах. Неизвестными коэффициентами являлись значения исходной функции в
узлах конечных элементов. Работа Куранта, в своем роде, стала первой
реализацией метода конечных элементов.
Область применения этого метода значительно расширилась, когда для его
обоснования стали применяться методы взвешенных невязок - Галёркина и
наименьших квадратов.
Основное отличие МКЭ от классических алгоритмов вариационных принципов
заключается в выборе базисных функций. Они берутся в виде кусочно-непрерывных
функций, которые обращаются в нуль, кроме ограниченных подобластей - конечных
элементов. Это ведет к ленточной разреженной структуре матрицы коэффициентов
разрешающей системы уравнений.
Применение вариационных принципов и методов взвешенных связок дало
возможность глубже понять основы МКЭ и определить условия сходимости этого
численного метода к точному решению.
В основе МКЭ лежит представление объекта исследования в виде набора
некоторых простых с геометрической точки зрения фигур, называемых конечными
элементами, которые взаимодействуют между собой только в узлах. Расположенные
определенным образом (в зависимости от конструкции объекта) и закрепленные в
соответствии с граничными условиями конечные элементы, форма которых
определяется свойствами исследуемого объекта, позволяют отобразить многообразие
деталей и механических конструкций.
Например, плоскую форменную конструкцию можно смоделировать набором
плоских стержневых фигур, рамную - набором объемных стержневых элементов,
различного рода пластины и оболочки - множеством плоских треугольников или
прямоугольников. Геометрически объемные тела грамотнее всего представлять в
виде комплекса элементарных призм, параллелепипедов, пирамид, и т. д. (рисунок
4).
Рисунок 4 - Сетка конечных элементов
Интенсивному росту популярности метода конечных элементов и становлению
его ведущим методом численного решения различных инженерных и физических задач
способствовал ряд преимуществ перед многими другими методами. Основные
преимущества МКЭ:
. исследуемые объекты могут иметь любую форму и различную физическую
природу - твердые деформируемые тела, жидкости, газы и пр.;
. конечные элементы могут иметь различные размеры;
. вероятность исследования однородных и неоднородны, изотропных и
анизотропных объектов с линейными и нелинейными свойствами;
. возможность решать стационарные и нестационарные задачи;
. вероятность решения контактных задачх;
. возможность моделировать любые граничные условия;
. вычислительный алгоритм, представленный в матричной форме;
. возможность решать различные задачи на одной и той же сетке КЭ, что
упрощает анализ связанных задач;
. разрешающая система уравнений имеет разреженную симметричную ленточную
матрицу «жесткости», что ускоряет вычислительный процесс на ЭВМ.
На сегодняшний день МКЭ является мощным инструментом физических
исследований и инженерного анализа.
1.6
Постановка цели и задачи исследования
Резервуары для обеззараживания воды ультрафиолетовым излучением находят
все большее применение на сегодняшний день. Данное оборудование активно
внедряется на различных промышленных предприятиях, поскольку в наше время
существует потребность в наличии воды пригодной для потребления человеком.
На сегодняшний день в компании ООО «Александра-Плюс» разработка
конструкторской документации резервуаров происходит без моделирования процессов
протекания жидкости в рабочей емкости. Требование безопасности делает
необходимым проведение испытаний конструкции на прочность при давлении воды в
рабочем и аварийном режимах. В процессе эксплуатации основную нагрузку
воспринимают фланцы, которые служат опорами кварцевых чехлов с расположенными
внутри них ультрафиолетовыми (УФ) лампами.
Данный процесс имеет ряд существенных недостатков:
· повышенная материалоемкость;
· увеличение материальных затрат и времени на изготовление
деталей и сборки всего резервуара, из-за отсутствия результатов прочностных
расчетов на этапе разработки конструкторской документации.
Поэтому целью данной магистерской диссертации является анализ прочностных
свойств компонентов резервуара и последующая оптимизация его конструкции.
Исходя из цели, необходимо решить ряд задач:
· провести анализ существующих методов расчета применимо к
объекту исследования;
· смоделировать процесс протекания жидкости в емкости и оценить
характер изменения скорости и потока;
· с учетом данных, полученных в результате гидродинамического
анализа, провести расчет напряженно-деформированного состояния резервуара и его
компонентов;
· оптимизировать конструкцию рабочей емкости;
· оценить возможность практического применения результатов
диссертации.
2. ПРОЕКТИРОВАНИЕ И РАСЧЕТ СОСУДОВ,
РАБОТАЮЩИХ ПОД ДАВЛЕНИЕМ
Во многих технологических процессах на предприятиях применяются емкости и
баки, которые эксплуатируются под давлением. Такие сосуды подпадают под
действие правил безопасности ПБ 03-576-03 «Правила устройства и безопасной
эксплуатации сосудов, работающих под давлением» [13].
Данные Правила устанавливают требования к разработке, устройству,
изготовлению, реконструкции, наладке, монтажу, ремонту, техническому
диагностированию и эксплуатации сосудов, (цистерн, бочек, баллонов, барокамер,
емкостей, резервуаров, баков), работающих под давлением.
Перед сдачей в эксплуатацию все сосуды и аппараты, работающие под
давлением, подвергаются различного рода испытаниям. Конструкция оборудования
должна обеспечивать требуемые прочность, надежность и безопасную эксплуатацию в
течение всего срока службы. Помимо этого, конструкция должна предусматривать
возможность технического освидетельствования, промывки, очистки, продувки,
ремонта, эксплуатационного контроля металла и соединений.
Испытания сосудов, работающих под давлением, должны проходить в полном
соответствии с ПБ 03-576-03 «Правила устройства и безопасной эксплуатации
сосудов, работающих под давлением» [13].
2.1 Общие
положения при проектировании и расчете сосудов, работающих под давлением
Исходной информацией для разработки проекта служат следующие данные:
· условия эксплуатации и назначение сосуда;
· данные о технологических процессах, для реализации которых
используется сосуд;
· химический состав, фазовое состояние и прочие характеристики
рабочей среды;
· рабочие уровни температуры и давления.
) Эскизное проектирование.
На основании исходных данных, которые приведены в техническом задании,
выполняется расчет сосуда на прочность, определяется толщина стенок и днищ,
разрабатывается общий конструктив объекта. На данном этапе принимаются
принципиальные решения относительно конструкции, формы, материалов, схемы
монтажа и подключения сосудов, разрабатывается эскизный проект.
) Разработка конструкторской документации.
На этом этапе осуществляется разработка конструкторской документации с
подробной проработкой сборочных единиц. Все изменения, которые вносятся в
проектную документацию в процессе эксплуатации, ремонта, монтажа или наладки
оборудования, в обязательном порядке должны быть согласованы с разработчиком.
В комплект рабочей документации входят следующие разделы:
· общие данные, расчет сосуда на прочность;
· сборочные чертежи;
· чертежи сборочных единиц;
· деталировка;
· спецификации;
· руководства по монтажу, эксплуатации, техническому
освидетельствованию, диагностированию, ремонту конструкций;
· методику испытаний сосудов;
· ведомость запасных частей;
· документацию на комплектующие (редукторы, насосы,
электродвигатели).
При разработке конструкции сосуда, работающего под давлением, необходимо
обеспечить надежность, долговечность, технологичность оборудования, а также
соответствие требованиям безопасности, монтажа и эксплуатации оборудования.
Стальные сосуды изготавливаются из листового материала, труб, поковок или
отливок. При выборе материалов для сосудов необходимо принимать во внимание
расчетное давление, химический состав, температуру, рабочую среду. а также
условия эксплуатации оборудования. В зависимости от уровня расчетной
температуры определяются физико-механические свойства материала и допускаемые
напряжения.
Основные элементы сосудов, работающих под давлением, рассчитываются на
прочность по предельным нагрузкам с коэффициентами запаса прочности. Расчет
сосудов проводится в соответствии с ГОСТ Р 52857, ГОСТ Р 51273, ГОСТ Р 51274
[15] и пр. нормативными документами. Прочностной анализ проводится для всех
состояний, в которых может находиться сосуд в процессе эксплуатации, монтажа,
транспортировки. В ходе расчета учитываются не только рабочие нагрузки, но и
внешние факторы, оказывающие влияние на прочность сосуда. При этом в
обязательном порядке учитывается вероятность того, что все эти факторы могут
действовать как поочередно, так и одновременно.
Основные расчетные параметры:
· рабочее и расчетное давление в условиях испытаний и
эксплуатации;
· нагрузка от массы сосуда и рабочей среды;
· температура окружающего воздуха и рабочего вещества;
· уровень инерционных нагрузок, который возникает при вибрациях
и колебаниях в процессе транспортировки, в условиях сейсмической нестабильности
или под действием силы ветра;
· силы противодействия, передающиеся от мест крепления сосуда;
· переменные нагрузки, вызывающие усталостные явления;
· расчетная температура стенки сосуда;
· допустимая температура стенок сосуда, находящегося под
рабочим давлением;
· вместимость сосуда, его масса без рабочей среды;
· максимально и минимально допустимый уровень рабочей среды в
сосуде;
· ограничения по массе рабочей среды;
· срок службы сосуда, число циклов нагружения.
Расчетная температура определяется в ходе специальных теплотехнических
расчетов или по результатам работы аналогичных сосудов. Если сосуд работает в
различных режимах, то рабочая температура определяется для каждого из этих
режимов. Рабочее давление - это максимальное давление, возникающее в процессе
реализации технологического процесса. Расчетное давление, по которому осуществляется
расчет сосуда на прочность, равно рабочему или несколько выше рабочего
давления. При определении расчетного давления учитывается гидростатическое
давление среды, рабочее давление, инерционные внешние и внутренние нагрузки, а
также сейсмические, ветровые, снеговые нагрузки.
2.2 Описание
и устройство установки
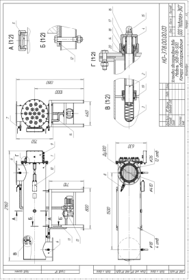
Установка для обеззараживания воды, представленная на рисунке 5,
предназначена для обеззараживания проточной воды ультрафиолетовым излучением. Камера обеззараживания (Приложение 1) представляет собой
проточную емкость цилиндрической формы. Основная часть камеры обеззараживания -
корпус 1, выполнен из нержавеющей стали.
Внутри корпуса в потоке воды располагаются восемнадцать ультрафиолетовых
ламп 2, помещенные в защитные кварцевые чехлы 3. Ультрафиолетовые лампы и
кварцевые чехлы закрыты защитными колпачками 4.
Рисунок 5 - Камера обеззараживания воды
Для визуального наблюдения в корпусе предусмотрено смотровое окно 5.
В корпус встроены патрубки для подачи и отвода очищаемой воды 6, патрубки
с запорной арматурой для отбора проб 7, краны для подключения промывочного
насоса 8.
Распределительный шкаф 9 служит для подключения камеры обеззараживания к
блоку управления.
Измерительный блок 10 служит для измерения температуры обеззараживаемой
воды и измерения уровня ультрафиолета внутри камеры обеззараживания.
Камера обеззараживания монтируется на подставке 11 через прокладку 12. На
полке подставки расположен насос промывки 13, соединенный с камерой
обеззараживания шлангами 14.
Вода поступает в камеру обеззараживания через входной патрубок, обтекает
кварцевые чехлы и под воздействием ультрафиолетового излучения
обеззараживается. Обработанная вода поступает на выходной патрубок и
используется по назначению.
2.3 Гидравлические
испытания
Под гидравлическим испытанием понимается система мероприятий, целью
которых является проверка прочности сосудов и трубопроводов, их деталей и
сборочных единиц, работающих под давлением. Такие испытания являются одним из
наиболее часто использующихся видов неразрушающего контроля.
Гидравлическое испытание - это необходимая процедура, которая
подтверждает надёжность оборудования и трубопроводов, работающих под давлением,
в течение всего срока их службы. Данная система мероприятий крайне важна,
учитывая серьёзную опасность для жизни и здоровья людей в случае их
неисправностей и аварий.
В процессе проведения гидравлических испытаний оборудование подвергается
действию давления, которое называется поверочным, и оно превышает рабочее в
1,25, 1,5 или в 5/3 раза. После производства и при периодической проверке
сосудов внутреннего давления с целью надежности их нагружают поверочным
давлением с определением степени изменения объемных характеристик.
Порядок проведения гидравлических испытаний должен быть указан в
техническом проекте и в инструкции предприятия - изготовителя по монтажу и
эксплуатации сосуда.
Гидравлическое испытание сосудов проводится только при удовлетворительных
результатах наружного и внутреннего осмотров.
Сосуды должны иметь штуцеры для залива и слива воды, а также удаления
воздуха при гидравлическом испытании. На каждом сосуде должен быть предусмотрен
вентиль, позволяющий осуществлять контроль за отсутствием давления в сосуде
перед его открыванием.
Сосуды должны предъявляться к гидравлическому испытанию с установленной
на них арматурой.
Испытание производится с крепежными деталями и прокладками, указанными в
конструкторской документации.
Устройства, препятствующие наружному и внутреннему осмотрам сосудов
должны быть съемными. Если конструкция сосуда не позволяет осуществить наружный
и внутренний осмотр или гидравлическое испытание, разработчиком проекта сосуда
в инструкции по монтажу и эксплуатации указывется методика, периодичность и
объем контроля. Ответственность за своевременную и качественную подготовку
сосуда для освидетельствования несет владелец сосуда.
В процессе испытания испытуемом оборудовании, трубопроводе или системе
(контуре) создаётся пробное давление (во избежание гидроударов и внезапных
аварийных ситуаций это производится медленно и плавно), превышающее рабочее на
определяемую по специальным формулам величину, чаще всего на 25 %. При этом
досконально контролируется увеличение давления по двум независимым поверенным
манометрам или каналам измерений. На этом этапе допускается колебание давления
ввиду изменения температуры жидкости. В процессе набора давления в обязательном
порядке должны быть приняты меры для исключения вероятности скопления газовых
пузырей в полостях, заполненных жидкостью. Затем, в течение так называемого
времени выдержки, оборудование находится под повышенным давлением, которое не
должно падать вследствие неплотности испытуемого оборудования, что также
внимательно отслеживается.
Оборудование подвергается испытанию пробным давлением, время выдержки которого
составляет не более 5 минут.
Таблица 1 - Зависимость времени выдержки от толщины стенки
|
Толщина стенки, мм
|
Время выдержки, мин
|
|
До 50
|
10
|
|
От 50 до 100
|
20
|
|
Свыше 100
|
30
|
|
Литые, неметаллические и многослойные сосуды
независимо от толщины стенки
|
60
|
После чего давление понижается до рабочего. Во время проведения данных
мероприятий персонал должен находиться в безопасном месте, нахождение рядом с
испытуемым оборудованием строго запрещено. После снижения давления персонал
проводит визуальный осмотр оборудования и трубопроводов в доступных местах в
течение времени, необходимого для осмотра.
Сосуд признается выдержавшим гидравлическое испытание, если в ходе
осмотра не выявлено:
трещин, течи, запотевание в сварных швах и на основном металле;
протечек в разъемных соединениях;
падения давления по манометру;
видимых остаточных деформаций.
2.4
Механические испытания
Под механическими испытаниями понимается система специальных мероприятий,
направленных на проверку качества сварных соединений.
Обязательному визуальному контролю и измерению подлежат все сварные швы в
соответствии с ГОСТ 3242-79 [14] с целью выявления дефектов, находящихся на
поверхности шва
Согласно ГОСТ Р 52630-2012 [17] механическим испытаниям подвергаются все
швы стыковых сварных соединений, определяющие прочность сосуда. Также
обязательно измеряют твердость сварных швов не менее чем в трех точках в
поперечном сечении сварного соединения.
При получении неудовлетворительных результатов по какому-либо виду
механических испытаний допускается проведение повторного испытания на удвоенном
количестве образцов, изготовленных из того же контрольного образца, по тому
виду механических испытаний, которые дали неудовлетворительные результаты.
Сварное соединение признается непригодным, если при проведении повторного
испытания получены неудовлетворительные результаты хотя бы на одном образце.
Согласно РД 10-520-02 сварные стыки сосудов, которые оборудованы
быстросъемными крышками, должны быть проверены с использованием дефектоскопии
либо радиографического метода в объеме ста процентов. Испытание на устойчивость
и контроль механических характеристик необходимо осуществлять на образцах,
которые изготовлены из контрольных сварных соединений.
Продукция признается годной к эксплуатации, если в процессе проверок на
ней не довелось обнаружить внешние и внутренние неисправности, которые бы
выходили за предел актуальных норм, установленных нормативными документами и
правилами на продукцию и сварку. Информация о проверке сварных соединений
ключевых деталей и узлов сосудов, функционирующих под давлением, должна быть
занесена в паспорт сосуда.
Перед внешним осмотром покрытие сварного шва, а также все участки
основного металла шириной не меньше двадцати миллиметров, прилегающие ко шву,
требуется предохранить от шлака и прочих видов загрязнений. В случае
электрошлаковой сварки данное расстояние не должно быть ниже ста миллиметров.
Осматривать и измерять сварные соединения необходимо с внутренней и
внешней сторон по всей длине швов. Если невозможен осмотр и измерение сварного
соединения, проверки требуется выполнять в последовательности, предусмотренной
автором проекта. Радиографический контроль и ультразвуковая дефектоскопия
осуществляются для определения внутренних неисправностей в сварных соединениях
(не проваренных участков, трещин, включений шлаков и пор).
Сварные стыки сосудов, которые оборудованы быстросъемными крышками,
должны быть проверены с использованием дефектоскопии либо радиографического
метода в объеме ста процентов. Испытание на устойчивость и контроль механических
характеристик необходимо осуществлять на образцах, которые изготовлены из
контрольных сварных соединений.
Необходимо, чтобы контрольные сварные участки были идентичными
контролируемым производственным сварным соединениям (по толщине листа либо
габаритам труб, марке стали, способу сваривания, используемым сварочным
материалам, расположению шва, температуры подогревания и температурной
обработке). Их должен выполнять тот же сварщик и с использованием той же
сварочной техники одновременно с проверяемым производственным соединением.
3. КОНЕЧНО-ЭЛЕМЕНТНОЕ МОДЕЛИРОВАНИЕ
РЕЗЕРВУАРА, РАБОТАЮЩЕГО ПОД ДАВЛЕНИЕМ
Расчет резервуара будем осуществлять в программной среде SolidWorks с использованием двух модулей - FlowSimulation и Simulation. Для этого необходимо создать
трехмерную модель рабочей емкости, и провести анализ с учетом воздействия
потока воды на компоненты резервуара.
3.1 Анализ
потока жидкости в среде FlowSimulation
Движение и теплообмен текучей среды в резервуаре моделируется с помощью
уравнения Навье-Стокса, описывающих законы сохранения энергии, импульса и массы
в нестационарной постановке задачи. Помимо этого, применяются уравнения
состояния компонентов текучей среды и эмпирические зависимости теплопроводности
и вязкости этих компонентов среды от температуры.
где ρ - плотность, кг/м3;- скорость, м/с; - давление текущей среды,
Па; - время, с; - внешние массовые силы, действующие на единицу массы текущей
среды (например, сопротивление пористого тела, гравитация, вращение); - полная
энергия единицы массы текущей среды, Дж; Н - тепловыделение (или поглощение) на
единицу объема; - распределенный тепловой поток, Вт/мК;
τ - тензор вязких сдвиговых напряжений,
МПа; нижние индексы означают суммирование по трем координатным направлениям.
Система уравнений замыкается уравнениями состояния текучей среды и
эмпирическими зависимостями вязкости и теплопроводности от температуры. Для
расчета турбулентных течений используется метод RANS (усредненные по Рейнольдсу
уравнения Навье - Стокса). При этом в системе уравнений появляются добавочные
члены (напряжения Рейнольдса):
где δij = 1 при i = j;
δij = 0 при i ≠ j - дельта-функция
Кронекера;
μt - коэффициент вязкости турбулентных
вихрей; - кинетическая энергия турбулентности.
Для расчета ламинарных и турбулентных течений используется одна и та же
система уравнений, но при ламинарном течении k и μt = 0. В рамках k-е модели турбулентности,
где е - скорость диссипации.
где fμ - комплекс, учитывающий турбулентную вязкость.
Для расчета потока вблизи стенки и описания перехода от ламинарного
течения к турбулентному и наоборот используется модель ламинарного и
турбулентного пограничного слоя, которая основана на так называемом приближении
приведенной функции стенки. В рамках этой модели рассчитываются точные
граничные условия по скорости и температуре, которые затем применяются в
приведенных выше уравнениях сохранения.
Дасчетный модуль FlowSimulation дает возможность осуществить следующие виды моделирования:
· стационарные и нестационарные течения;
· сжимаемые и несжимаемые (жидкости или газы) течения;
· идеальные и реальные газы;
· ньютоновские и неньютоновские жидкости;
· одно- и многокомпонентные течения без химического
взаимодействия, и разделения фаз;
· совместный расчет течения жидкости или газа и теплопередачи
внутри твердых тел и текучей среды без наличия границы раздела газ-жидкость;
· ламинарные и турбулентные течения, учет ламинарного/турбулентного
перехода;
· течения в пористых средах с учетом теплопроводности среды и
теплоотдачи в нее;
· учет шероховатости и подвижности стенок;
· множественные непересекающиеся вращающиеся подобласти;
· конвективный теплообмен, свободная, вынужденная или смешанная
конвекция;
· теплообмен излучением с управлением прозрачностью стенок и
разделением свойств стенок для теплообмена излучением и солнечной радиации;
· расчет траекторий и температур твердых частиц или капель в
потоке;
· оценка эрозионного износа или налипания твердых частиц на
стенках модели.
Для нахождения численного решения поставленной задачи непрерывная
нестационарная математическая модель физических процессов дискретизируется по
пространству и по времени (в случае стационарной задачи процессы моделируются
как установившиеся во времени). Расчетная область модели заменяется трехмерной
расчетной сеткой, грани ячеек которой параллельны координатным плоскостям.
3.2
Исследование потока жидкости
Перед тем как проводить анализ протекания жидкости в трубе, необходимо
создать трехмерную модель исследуемого объекта (рисунок 6).
Рисунок 6 - Рабочая емкость резервуара
Исходные данные для расчета:
· давление в резервуаре: Р=8 МПа (давление при испытании
сосуда);
· скорость воды на входе (нижний патрубок): υ=3 м/с;
· температура воды: T=293,2 K;
· Корпус рабочей емкости выполнен из коррозионностойкой стали.
Для осуществления дальнейшего расчета необходимо сделать емкость
закрытой, т. е. добавить заглушки на патрубки и левый торец емкости. Внутренний
фланец определим в качестве «реальной стенки». Это необходимо для того, чтобы
программа смогла определить его в качестве препятствия для дальнейшего
прохождения воды в систему водоснабжения.
После задания всех исходных данных (рисунок 7) и определения граничных
условий можно приступать к расчету потока жидкости в среде SolidWorks FlowSimulation.
Рисунок 7 - Параметры для расчета
Внутреннему фланцу, через отверстия в котором протекает вода, присвоено
свойство «реальной стенки». Это значит, что при расчете имитируемый поток
жидкости будет воспринимать данный фланец как реальное препятствие для
дальнейшего продвижения по системе.
На рисунке 8 можно увидеть, как меняется скорость потока воды при ее
прохождении через отверстия во внутреннем фланце от момента входа в резервуар
до выхода из него.
Рисунок 8 - Диаграмма изменения скорости
По диаграмме можно определить, что скорость потока воды снижается в
момент прохождения через отверстия во фланце.
Изменение давления потока воды на стенки емкости изображено на рисунке 9.
Рисунок 9 - Диаграмма давления потока воды
На рисунке виден характер изменения давления по всему объему рабочей
емкости.
Фланец, который является опорой кварцевых чехлов, будет воспринимать
основную нагрузку от давления движущейся жидкости (рисунок 10).
Рисунок 10 - Распределение давление на поверхности фланца
3.3
Исследование прочностных свойств в среде Simulation
Одним из ответственных узлов в исследуемом резервуаре является фланцевое
соединение. Основным фактором, усложняющим решение, является адаптация моделей
и методик к требованиям стандарта.
При проведении анализа резервуара на прочность будем руководствоваться
ГОСТ Р 52857.4-2007 «Сосуды и аппараты. Нормы и методы расчета на прочность и
герметичность фланцевых соединений» [16].
Все элементы резервуара подвергаются расчету на механическую прочность.
Нагрузка в прочностном анализе считается однократной, если количество циклов
нагружения не превышает 1000.
Подбор допускаемых напряжений является важным этапом при расчете
оборудования на механическую прочность. Резервуар выполнен из листового и
трубного проката из нержавеющей стали. Значения номинальных допускаемых
напряжений при различных расчетных температурах приводятся в соответствующих
документах.
Расчетное допускаемое напряжение рассчитывается по формуле:
где [σ] - расчетное допускаемое напряжение, МПа;
σном - номинальное допускаемое
напряжение, МПа;
η = 1 (для листового проката).
При отсутствии значений номинальных допускаемых напряжений их расчет
определяется следующими условиями: для углеродистых сталей при tR≤ 389 °C и для
низколегированных сталей при tR≤
420°С по меньшему из двух значений:

где
и
- предел текучести и предел прочности материала
соответственно, МПа;
и
- коэффициенты запаса прочности по пределу текучести и
пределу прочности соответственно.
При анализе сварных элементов оборудования в расчетные формулы вводится
коэффициент прочности сварных швов, значение которого зависит от условий сварки
и конструкции шва. Некоторые значения этих коэффициентов приведены в таблице 2.
Таблица 2 - Коэффициенты прочности сварных швов
|
Вид сварного шва
|
Контроль шва
|
|
100%
|
≤50%
|
|
Стыковой или тавровый с двухсторонним проваром,
выполненный автоматической или полуавтоматической сваркой
|
1,0
|
0,9
|
|
Стыковой с подваркой корня шва или тавровый с
двухсторонним сплошным проваром, выполняемый вручную
|
1,0
|
0,9
|
|
Стыковой, доступный к сварке только с одной
стороны и имеющий в процессе сварки металлическую подкладку со стороны корня
шва, прилегающую по всей длине шва к основному металлу
|
0,9
|
0,8
|
|
Стыковой односторонний, выполняемый вручную
|
0,9
|
0,65
|
|
Тавровый с конструктивным зазором свариваемых
деталей
|
0,8
|
0,65
|
В процессе имитационного исследования будут рассмотрены два типа
статического анализа - линейный и нелинейный.
При линейном статическом анализе конструкция рассматривается в состоянии
устойчивого равновесия. Иногда при определенных сочетаниях нагрузок она
становится неустойчивой. В тот момент, когда эти нагрузки достигают
максимального значения, становится возможным не единственное положение
равновесия. Данный тип анализа применяется для определения напряжений и
деформаций в условиях статического нагружения конструкций.
В линейном статическом анализе рассчитываются напряжения, силы
перемещений, нагрузки и реакции при воздействии приложенных усилий.
В линейном статическом анализе применяются следующие допущения:
· Статическое допущение. Все нагрузки прилагаются медленно и
постепенно по мере достижения своих полных величин. При достижении своих полных
значений нагрузки остаются постоянными (неизменными по времени).
· Допущение линейности. Взаимоотношения между нагрузками и
вызванными реакциями предполагаются линейными.
Нелинейный расчет состоит в дифференциальном приложении нагрузок. Это
означает, что при расчете нагрузки не учитываются одновременно, но постепенно
возрастают, и выполняются расчеты состояний равновесия.
Нелинейное поведение конструкции может появляться из-за элемента простой
конструкции (конструктивная или материальная нелинейность) или из-за
нелинейного отношения сил-деформаций во всей конструкции (геометрическая
нелинейность).
Конструктивная нелинейность может быть вызвана следующими нелинейными
элементами, включенными в конструкцию:
· пластичность материала;
· сжатые и растянутые элементы;
· нелинейные постоянные (односторонние постоянные или опоры,
степени свободы, совместимые узлы с назначенными жесткими параметрами);
· нелинейные шарниры.
Геометрическая нелинейность позволяет учитывать следующие влияния на всю
конструкцию:
· нелинейный расчет - учитывает второстепенные эффекты, т.е.
изменяющуюся жесткость элемента, находящегося под влиянием напряженного
состояния элемента. Это так называемый эффект "напряжение -
жесткость". В то же время, этот расчет учитывает создание моментов от
действия вертикальных сил в узлах, смещенных горизонтально;
· P-дельта расчет - учитывает эффекты третьего порядка, т.е.
дополнительную боковую жесткость и напряжения от деформаций.
3.4 Критерии
прочности, используемые при расчетах в среде Simulation
Необходимость критериального подхода обусловлена невозможностью
реализовать в экспериментах все бесконечное многообразие напряженных состояний.
Инженеры выдвигают гипотезы, а затем критерии разрушения материалов, эквивалентные
линейному напряженному состоянию.
Сущность гипотез и критериев прочности заключается в замене сложного
напряженного состояния линейным, т. е.
) Критерий Мизеса (иначе критерий формообразования).
Он устанавливает момент потери конструкцией несущей способности
посредством сравнения величины эквивалентного напряжения с пределом текучести
материала. Эквивалентное напряжение в точке тела определяется по формуле 9:
где
- главные напряжения, МПа.
Эквивалентное напряжение не зависит от ориентации элементарной площадки,
на которой оно действует.
Критерий Мизеса применим к изотропным материалам, которые имеют вязкий
характер разрушения. К ним относится большинство металлов и пластмассы, у
которых присутствует линейный участок на диаграмме растяжения. В пространстве
поверхность прочности по данному критерию описывается прямым круговым
цилиндром, ось которого совпадает с пространственной диагональю, проходящей в
положительном октанте системы координат главных напряжений (рисунок 11).
Значит, что при всестороннем равномерном сжатии прочность материала по Мизесу
бесконечна.
Рисунок 11 - Критерий по Мизесу
Коэффициент запаса прочности (или коэффициент безопасности) определяется
как отношение величины прочности (предела прочности, предела текучести и пр.) к
максимальному (допускаемому) эквивалентному напряжению:
где n0 - допускаемый коэффициент запаса
прочности.
) Критерий максимальных касательных напряжений (1869 г.).
Данный критерий известен также как критерий Треска. Заключается в
сравнении величины максимального касательного напряжения в данной точке
относительно некоторой величины, задаваемой пользователем.
где
При выполнении условия под цифрой 11 наступает разрушение материала.
Программа SolidWorks автоматически вычисляет
на основе величин компонентов
напряжений. Элементарная площадка прочности является наклонной шестигранной
призмой, ось которой совпадает с диагональю положительного октанта системы координат
главных напряжений.
При чистом растяжении/сжатии по критерию Мизеса и по критерию Треска
тождественны. Прочность по Мизесу при чистом сдвиге больше приблизительно на
15%. Плоскость сечения
представляет собой шестиугольник, который вписан в эллипс
Мизеса (рисунок 12).
Рисунок 12 - Критерий Треска для плоского напряженного состояния
Условие прочности выглядит следующим образом:
) Критерий Мора-Кулона (критерий внутреннего трения).
Применим по отношению к хрупким материалам, которые по-разному
сопротивляются растяжению/сжатию (рисунок 13).
Рисунок 13 - Критерий Мора-Кулона для плоского напряженного состояния
Вследствие того, что хрупкие материалы не имеют на кривой деформирования
выраженного участка текучести, то данная величина не участвует в расчетах.
) Критерий максимальных нормальных напряжений.
Этот критерий применяется по отношению к хрупким материалам, одинаково
сопротивляющихся разрушению или сжатию. Поверхность прочности представляет
собой куб, грани которого перпендикулярны осям главных напряжений, а сечение
поверхности плоскостью с нулевым главным напряжением - квадрат (рисунок 14).
Рисунок 14 - Критерий максимальных нормальных напряжений
Аналогично критерию Мора-Кулона, в данном критерии величина предела
текучести также не принимает участия в расчете.
3.5 Расчет
резервуара на прочность в среде Simulation
Расчет сборок представляет собой задачу, которая состоит из двух частей.
Первая - это формирование адекватной модели (геометрическая, статическая,
кинематическая), а вторая - планирование последовательности действий и времени.
Исследование будем выполнять с учетом результатов, полученных при
гидродинамическом анализе потока воды. Наиболее ответственными элементами
резервуара являются внутренний и присоединительный фланцы, поскольку они
выполняют роль «опор» для кварцевых чехлов с находящимися внутри них ультрафиолетовыми
лампами.
В момент времени, когда поток жидкости находится в своем крайнем
положении - на выходе из резервуара, на внутреннюю поверхность
присоединительного фланца приходится давление равное: P=0,8 (МПа).
Анализ напряженно-деформированного состояния будем проводить в несколько
этапов. На первом этапе в статическом анализе фланцы будем рассматривать в
качестве твердых тел без учета прокладки.
Для быстроты и удобства проведения расчета рассмотрим отдельно сегмент
болтового соединения двух фланцев (рисунок 15). В геометрической модели данные
болты отсутствуют, так как используется расчетная модель с «виртуальными»
соединителями.
Контактирующие грани фланцев связаны условием «Нет проникновения»,
подразумевающее скольжение с возможностью выхода из контакта. Давление равное
0,8 (МПа) действует не на всю грань фланца, а только на том участке, где нет
контакта с другим фланцем. Эта грань разделена на две части при помощи команды
«Линия разъема». Таким образом ограничивается площадь, на которую распространяется
действие давления потока жидкости. Данная схема предоставляет возможность более
адекватного моделирования распределения нагрузок между фланцами и,
непосредственно, жесткости самого соединения.
Рисунок 15 - Сегмент «болтового соединения»
Деление на участки, в свою очередь, позволит оценить уровень нагрузок,
воспринимаемых отдельными участками фланца при действии не осесимметричных
силовых факторов.
Материал фланцев нержавеющая сталь 12Х18Н10Т, механические свойства
которой приведены в таблице 3.
Таблица 3 - Механические свойства стали
|
Нормативный документ
|
Состояние поставки, режимы ТО
|
Сечение, мм
|
, МПа
|
, МПа
|
|
ГОСТ 7350-77 ГОСТ 5582-75
|
Листы г/к и х/к: - закалка 1000-1800ºС, вода или воздух; - закалка 1050-1800ºС, вода или воздух; - нагартованные
|
Св. 4 До 3,9 До 3,9
|
236 205 -
|
530 530 880-1080
|
Данная сталь находит большое применение в промышленности по причине
возможности успешного использования ее в различных эксплуатационных условиях.
Она обладает высокой коррозионной стойкостью в ряде жидких сред, устойчива
против межкристаллитной коррозии после сварочного нагрева, мало охрупчивается в
результате длительного воздействия высоких температур и применяется в качестве
жаропрочного материала при температурах ~600° С.
Торец участка трубы зафиксируем жестко. Данные граничные условия показаны
на рисунке 16.
Рисунок 16 - Кинематические граничные условия
Сетка конечных элементов n-го
порядка изображена на рисунке 17. Применены элементы управления для уплотнения
ее в окрестностях отверстий болтового соединения. Размер конечных элементов
подобран таким образом, чтобы в сечении отверстий и окрестностях головки болта
с гайкой располагалось как можно большее количество элементов. Это сделано для
сбора нагрузок, возникающих в месте контакта головки болта и фланца.
Рисунок 17 - Сетка конечных элементов
После задания всех необходимых условий можно приступать к расчету
напряженно-деформированного состояния болтового соединения фланцев.
На рисунках 18 представлены эпюры нормальных напряжений с разных
ракурсов.
Рисунок 18 - Эпюры нормальных напряжений
На рисунке 19 изображена эпюра перемещений, которые возникают под
действием приложенного давления на грань фланца.
Рисунок 19 - Эпюра перемещений
Эпюра деформаций изображена на рисунке 20.
Рисунок 20 - Эпюра деформаций
На втором этапе в статическом нелинейном анализе рассматривается
напряженно-деформированное состояние виртуального болтового соединения. В
качестве материала для обоих фланцев выбрано пластичное железо из библиотеки
материалов SolidWorks.
Смена типа расчета обусловлена тем, что в статическом линейном анализе
«поведение» материала подчиняется закону Гука, т. е. напряжения пропорциональны
деформациям и наоборот, - на участке О-А (рисунок 21), вследствие чего во
фланце возникают большие напряжения.
Рисунок 21 - Диаграмма растяжения пластичных материалов
В статическом нелинейном анализе расчет проводится с учетом изменения
механических свойств материала на участке текучести СD диаграммы растяжения. Если диапазон деформаций, реализуемых
в процессе расчета таков, что материал демонстрирует нелинейные свойства, то
упругая модель дает недопустимую погрешность.
Нелинейный анализ дает возможность автоматически пересчитывать геометрию
матрицы жесткости конечных элементов и системы на каждом этапе нагружения.
Основным инструментом для осуществления вычислений является такое понятие
как «Кривая времени». Для нагрузок, сил и перемещений назначаются их изменения
в зависимости от параметра - времени. Если материалы обладают свойством
вязко-упругости, ползучести, то данный параметр может быть реальным. Для
решения других задач время является фиктивным параметром - т. е. имеет
произвольный масштаб, и главным является соблюдение правил, которые определяют
синхронность изменения граничных условий.
Как и в предыдущем примере за основу будет взята не вся модель в целом, а
только лишь ее часть. Применяется опция «Циклическая симметрия». В этом случае
отпадает необходимость накладывать дополнительные ограничения на боковые
поверхности фланцев и трубы (рисунок 22).
Рисунок 22 - Циклическая симметрия
Граничные условия, значение давления, особенности контактирующих
поверхностей и «виртуальный» болт остаются неизменными. После проведения
расчетов были получены следующие результаты:
) Нормальные напряжения по Мизесу (рисунок 23):
Рисунок 23 - Эпюра нормальных напряжений
2) Диаграмма перемещений (рисунок 24):
Рисунок 24 - Эпюра перемещений
3) Диаграмма деформаций (рисунок 25):
Рисунок 25 - Эпюра деформаций
Теперь выполним тот же самый расчет, но с учетом прокладки между фланцев.
Материал прокладки - ПОН ГОСТ 481-80. Паронит общего назначения используется в
качестве прокладочного материала в различных отраслях промышленности. обеззараживание вода
резервуар давление
В ходе выполнения анализа были получены следующие результаты.
Эпюра нормальных напряжений представлена на рисунке 26.
Рисунок 26 - Эпюра нормальных напряжений
Эпюра перемещений изображена на рисунке 27.
Применяется для создания герметичности и уплотнения в соединениях
деталей, узлов и агрегатов. Предел текучести паронита составляет 320 МПа, это
объясняет его отличные уплотняющие свойства. Паронит герметизирует соединения
при сдавливании, т.е. при стягивании винтами, болтами, шпильками. Достигая
предела текучести, -переходит в другое состояние и заполняет собой трещины,
неровности, раковины и прочие дефекты уплотняемых поверхностей.
Рисунок 27 - Эпюра перемещений
Эпюра деформаций показана на рисунке 28.
Рисунок 28 - Эпюра деформаций
Теперь рассмотрим модель с «реальным» болтом, показанную на рисунке 29
(один фланец скрыт для наглядности).
Рисунок 29 - Соединение с «реальным» болтом
Исходная затяжка болта обеспечивается благодаря эффекту термоупругости. В
стержне вычленена своего рода проставка (выполнена в розовом цвете), которой
присвоены свойства цилиндрически-анизотропного материала (рисунок 30).
Коэффициенты теплового расширения таковы, что в поперечном сечении стержня
деформации минимальны.
Рисунок 30 - Назначение свойств материала
Стоит отметить, что для данного материала радиальное направление в
цилиндрической системе координат обозначается буквой «X», окружное - «Y», а
осевое - «Z». Эти условия необходимо учитывать
при назначении свойств анизотропного материала.
В исследуемой модели учитывается трение, т. е. принимается глобальный
коэффициент трения, равный 0,2. В данном расчете это важно, иначе слишком
мягкая прокладка будет выдавлена внутренним давлением.
Сетка конечных элементов изображена на рисунке 31.
Рисунок 31 - Сетка конечных элементов
Применяется инструмент «Управление сеткой» для более точной концентрации
напряжений в месте контакта головки болта и фланца.
В модели применяются контактные условия, изображенные на рисунке 32.
Рисунок 32 - Задание контактных условий для модели
Исследуемый сегмент жестко зафиксируем на торце трубы, а с боков применим
инструмент «ролик/ползун», тем самым позволим фланцам и прокладке совершать
движение вдоль оси трубы.
Граничные условия и приложенные нагрузки показаны на рисунке 33.
Рисунок 33 - Контактные и граничные условия
Также стоит отметить тот факт, что при замене инструмента «ролик/ползун»
на «циклическую симметрию» напряжения увеличиваются приблизительно в два раза.
Диаграмма нормальных напряжений показана на рисунках 34 и 35.
Рисунок 34 - Диаграмма напряжений
На рисунке 35 в увеличенном масштабе изображена эпюра распределения
нормальных напряжений в зоне контакта гайки и фланца.
Рисунок 35 - Диаграмма распределения напряжений в месте контакта
Как видно из эпюры максимальные напряжение возникают в местах контакта
гай и головки болта с фланцами.
Диаграмма перемещений изображена на рисунке 36.
Рисунок 36 - Эпюра перемещений
Эпюра деформаций приведена на рисунке 37.
Рисунок 37 - Эпюра деформаций
Для надежной работы конструкции необходимо, чтобы она обладала
определенным запасом прочности, запасом надежности, поэтому в расчетную модель
вводится такое понятие как «коэффициент безопасности».
На рисунке 38 изображена диаграмма распределения запаса прочности.
Рисунок 38 - Диаграмма запаса прочности
Изучим еще один вариант представления расчетной модели в задаче расчета
фланцевых соединений - это комбинированная: оболочки и твердое тело.
Геометрическая модель представлена на рисунке 39.
Рисунок 39 - Модель фланцевого соединения
Труба и фланцы выполнены поверхностями, а паронитовая прокладка - твердым
телом. Обладая малой жесткостью относительно фланцев, прокладка подвергается
неравномерному сжатию в радиальном направлении. Это приводит к повороту сечений
фланцев при затяжке болтами. Аппроксимация прокладки оболочкой упразднила бы
эту модель деформации, тем самым исказив результат.
Между поверхностями существуют зазоры, размеры которых равны полу сумме толщин
контактирующих оболочек. Это является обязательным для оболочечных моделей при
решении контактных задач со скольжением, входом в контакт и выходом из него
[2].
Рисунок 40 - Граничные условия и нагрузки
Сетка конечных элементов представлена на рисунке 41.
Рисунок 41 - Сетка конечных элементов
Граничные условия заключаются в фиксации осевого перемещения на торце
трубы. Внутреннее давление приложено к фланцу и трубе. Как и в предыдущей
модели принят глобальный коэффициент трения 0,2. Параметры виртуальных болтов
остаются неизменными, а их число увеличилось до 16 ввиду отсутствия
симметричности (рисунок 40).
Узлы оболочечных моделей обладают шестью степенями свободы: тремя углами
поворота и тремя перемещениями, в отличие от объемных конечных элементов. Такие
элементы имеют линейную аппроксимацию перемещений или параболическую [1].
В процессе расчета были получены следующие результаты:
) Эпюра нормальных напряжений по Мизесу изображена на рисунке 42, 43:
Рисунок 42 - Эпюра напряжений
Рисунок 43 - Эпюра напряжений
2) Эпюра перемещений изображена на рисунке 44:
Рисунок 44 - Эпюра перемещений
3) Эпюра деформаций представлена на рисунке 45:
Рисунок 45 - Эпюра деформаций
Как видно из графика, в местах контакта болтов фланца присутствуют деформации.
Прокладка из паронита также претерпевает деформации вследствие затягивания
болтов.
4. АНАЛИЗ РЕЗУЛЬТАТОВ
НАПРЯЖЕННО-ДЕФОРМИРОВАННОГО СОСТОЯНИЯ
В нормативных технических документах, а также в ГОСТах приводятся
рекомендации для структурного анализа трубопроводов и резервуаров, работающих
под давлением: разработка геометрии модели, подбор определяющих параметров и
анализ полученных результатов. Наибольший интерес представляет модель
разрушения, которая представлена не только в ГОСТ, но и в различных
международных стандартах.
Допускаемые напряжения являются одним из способов анализа разрушения
конструкций. Теория допускаемых напряжений базируется на теории пластических
деформаций материалов и оболочек.
4.1
Аналитическая оценка допустимых нагрузок на элементы сосуда
В процессе испытания оборудования и его последующей эксплуатации
наибольшим деформациям подвергаются фланцевые соединения.
Согласно ГОСТ Р 52857.4-2007 [16] расчетные напряжения в болтах
вычисляются по формулам:
. При затяжке:
. В рабочих условиях:
где
- расчетная нагрузка на болты фланцевых соединений при
затяжке;
- расчетная нагрузка на болты в рабочих условиях, МПа;
Аб - суммарная площадь сечения болтов по внутреннему диаметру резьбы, м2.
Условия прочности болтов определяются по формулам:
. При затяжке:
. В рабочих условиях:
Номинальное допускаемое напряжение для болтов при затяжке и испытании при
температуре 20ºС вычисляется по формуле:
где
- предел текучести;
- коэффициент запаса прочности по отношению к пределу
текучести:
·
= 2,6 - 2,8 - для углеродистых
сталей, у которых:
·
= 2,3 - для углеродистых сталей, у
которых:
< 0,7;
·
= 1,9 - для аустенитных сталей.
Допускаемые напряжения для болтов при затяжке в рабочих условиях и при
расчете на условия испытания вычисляют по формулам:
где
- коэффициент увеличения допускаемых напряжений при затяжке;
- коэффициент условий работы:
= 1,0 - для рабочих условий;
= 1,35 - для условий испытания.
- коэффициент условий затяжки:
= 1,0 - при обычной неконтролируемой затяжке;
= 1,1 - при затяжке с контролем по
крутящему моменту.
Рекомендуемые значения усилий предварительной затяжки болтов приведены в
РД 37.001.131-89 [19].
- коэффициент учета нагрузки от температурных деформаций:
= 1,0 если нагрузка от температурных деформаций не
учитывается;
= 1,3 при расчете фланцев с учетом нагрузки от температурных
деформаций.
4.2 Условия
статической прочности элементов сосудов, работающих под давлением
Согласно п.8 ГОСТ Р 52857.1-2007 [15] условия статической прочности
элементов сосудов выполняются, при условии:
где
- мембранные напряжения, МПа;
- изгибные напряжения, МПа.
Эти напряжения определяют вблизи лицевой кромки сварного шва (рисунок
46).
Рисунок 46 - Кромки сварного шва в месте приварки фланца
В данной магистерской работе сварные швы не моделируется в силу того, что
смоделированная таким образом модель является заведомо менее прочной. Учет швов
потребует увеличения наложения граничных и контактных условий на исследуемую
модель, а также приведет к увеличению конечных элементов при создании сетки.
Все это в совокупности ведет к усложнению геометрии модели и, соответственно, к
росту времени самого расчета.
Мембранные и изгибные напряжения определяются на расстоянии, равному
катету сварного шва. Для сосудов, работающих под давлением, места сварки
определяются на стадии разработки и проектирования изделия. Таким образом, в
данной работе рассматриваются зоны максимальной концентрации напряжений в месте
приварки фланца к трубе, а также в местах соприкосновения болтов при
присоединении ответного фланца.
Примером напряжений, относящихся к категории мембранных, являются средние
напряжения растяжения/сжатия по толщине стенки цилиндрической оболочки, которые
возникают под действием внутреннего давления. К изгибным напряжениям относятся
такие напряжения, вызываемые как внутренним давлением, так и действием внешних
сил и моментов.
Наглядно мембранные и изгибные напряжения можно показать в виде пластины,
один конец которой жестко заделан (зафиксирован), а с другой стороны к ней
приложены растягивающее усилие и изгибающий момент (рисунок 47).
Рисунок 47 - Типы напряжений
В этом случае мембранные напряжения вызваны растягивающим усилием, а
изгибные - моментом.
4.2 Анализ результатов расчета
напряженно-деформированного состояния
В процессе выполнения линейного расчета были получены следующие
результаты: максимальное нормальное напряжение в зоне контакта болтов и фланца
составило: σmax =
1571 (МПа); предел текучести равен: σy = 263,8 (МПа). Столь высокое
значение максимального напряжения можно объяснить тем, что «поведение»
материала в модели подчинено закону Гука, в соответствии с которым напряжение
прямо пропорционально деформации, т. е. решающая программа не учитывает
пластичные свойства материала.
Также здесь стоит отметить, что отличие между моделями МКЭ и нормативной
методикой, заключается в том, что действие болтов заменяется болтовой нагрузкой
без учета жесткости. Виртуальные болтовые соединения, которые учитывают
действие стержня болта, его головки и гайки, завышают жесткость исследуемой
модели относительно этой же модели с реальными болтами.
Болтовое соединение в SolidWorks имитируется следующим образом: стержень болта заменяется балкой, которая
воспринимает изгиб и растяжение. Концы данной условной балки соединяются
абсолютно жесткими стержнями со всеми узлами конечных элементов, принадлежащим
«кольцам», на которые опираются гайка и головка болта. В действительности же и
головка, и гайка изменяют свои формы, что приводит к деформации их плоских
опорных граней. К тому же, место соединения гайки с болтом имеет повышенную
деформируемость, т. к. их соединение осуществляется через податливую резьбу.
Следующий нелинейный расчет осуществлялся с учетом пластических свойств
материала, а также с использованием прокладки из паронита. В первом случае,
когда из анализа была исключена прокладка максимальное нормальное напряжение в
окрестностях отверстий составило σmax = 107 (МПа) по Мизесу. Предел
текучести σy =
551 (МПа). Наибольшие перемещения в центре фланца составили ≈7 (мм).
Исходя из значений этих величин можно сделать вывод о том, что болтовое
фланцевое соединение выдержит приложенную нагрузку - при гидравлическом
испытании установки.
В нелинейном анализе с вводом прокладки в рассчитываемую модель
получились следующие результаты: σ = 1268 (МПа), а перемещение составило
≈9 (мм). Столь высокий скачок напряжений возникает вследствие наложения
граничных и контактных условий в местах контакта прокладки и фланцев. Но стоит
отметить тот факт, что характер распределения нормальных напряжений в
окрестностях отверстий идентичен, как и в предыдущем случае.
Следующий расчет производился с учетом «реального» болта и прокладки.
Включение болтов в расчетную модель существенно приближает ее к той, которая
приведена в нормативных документах. Но здесь также очевидны недостатки - сложность
геометрической модели повышается и, соответственно, значительный рост
вычислительных ресурсов компьютера.
По итогам расчета максимальное нормальное напряжение составило
σy = 1164 (МПа), а наибольшее
перемещение: 7,5 (мм). На эпюре деформаций можно увидеть, что площадь контакта
фланцев и прокладки уменьшается после затяжки болтов. Граница между
контактирующей и свободной поверхностями располагается примерно посередине
прокладки. Это дает возможность корректного предположения о том, что действие
приложенного внутреннего давления распространяется до середины прокладки.
Большое значение напряжения появляется в результате сингулярности.
Сингулярность появляется тогда, когда в процессе дискретизации (процесс
разделения модели на конечные элементы) размеры конечных элементов уменьшаются
или вовсе стремятся к нулю. Тогда площадь конечно-элементной площадки
становится равной нулю. Поскольку приложенное давление остается неизменным, т.
е. P=const, то значение напряжения стремится к бесконечности. В
рассмотренном случае в точке приложения силы решением являются бесконечно
большие напряжения (математически), а в результате решения МКЭ получается
конечное решение, которое тем ближе к бесконечности, чем меньше сетка КЭ.
Избежать сингулярности можно если заложить в качестве материала
упруго-пластичную модель Прандтля. В этом случае при достижении предела
текучести в точке сингулярности напряжения перестанут расти, внутренние усилия
будут перераспределяться на соседние узлы между площадками. Данный вариант
является наиболее физически близким к реальному.
Последний расчет осуществлялся по комбинированной модели - это оболочки
плюс тела аппроксимации. Максимальные нормальные напряжения появились в
окрестностях отверстий и составили: σmax=495 (МПа). Перемещения составили 5
мм согласно диаграмме и находятся в центре присоединяемого фланца.
Результаты данного расчета отличаются от нелинейного без учета прокладки.
В то время как результаты расчета с «реальным» болтом не существенно отличаются
от результатов нелинейного с прокладкой и статического линейного. Появление
высоких напряжений связано с возникновением сингулярности. Расхождение в
результатах составляет ≈9%.
Одним из факторов, показывающих различие между результатами численного
анализа и расчетов, приведенных в нормативных документах, является завышенная
жесткость виртуального соединителя - болта. Использование в анализе
комбинированной модели позволяет решать сложные задачи при ограниченных
возможностях вычислительной техники.
По результатам анализа можно сделать заключение о том, что нормативные
методики не вполне адекватно моделируют сложное напряженное состояние в месте
приварки фланца к трубе, т. к. расчетная модель основана на значительном числе
упрощений. В этих местах появляются напряжения и деформации, поэтому результат
расчета при помощи численной модели является более справедливым.
Также стоит отметить, что приведенные в тексте исследования методики в
нормативных документах, нельзя полностью применить к модели, исследуемой в
данной магистерской работе.
4.3 Методика расчета установки
1) Последовательность расчета потока жидкости.
Прежде чем приступать к расчету, необходимо определиться с постановкой
задачи и выполнить ряд следующих действий.
. Выполнить настройку программы.
Сюда входят выбор типа задачи, текучей среды, задание условий на стенках
сосуда (если таковы имеются).
. Ввести набор исходных данных.
. Запуск расчета и анализ полученных результатов.
) Методика расчета напряженно-деформированного состояния.
Расчет сборочных единиц - это задача, состоящая из двух частей:
. Создание адекватной модели (геометрической, статической,
кинематической;
. Планирование последовательности действий.
После того как исследуемая модель готова необходимо выполнить следующие
действия.
. Назначить всем деталям сборки материал с корректным набором упругих
(упруго-пластичных) характеристик.
. Определить кинематические граничные условия, исключающие перемещение
сборки как жесткого целого, любой из деталей или совокупности контактирующих
деталей без их деформации.
Эти ограничения касаются не только перемещений, но и вращений.
Перемещение или вращение деталей можно ограничить наложением кинематических
граничных условий на деталь и установлением сопряжений (связей) детали с
другими элементами сборки.
.Определить статические граничные условия (приложить нагрузки,
действующие на модель).
Заданный комплекс кинематических граничных условий должен обеспечивать
деформированное состояние хотя бы одной детали сборки.
. Задать контактные условия между поверхностями соприкасающихся элементов
(контактная задача).
Под контактной задачей понимается ситуация, при которой во время
нагружения деформируется площадка контакта между элементами. Контактные задачи
делятся на учитывающие и не учитывающие трение. Поверхность контакта может либо
уменьшаться, либо увеличиваться.
. Наличие конечно-элементной дискретизации (создание сетки конечных
элементов).
Если при анализе модели наиболее важными областями концентрации
напряжений являются геометрические элементы (внутренние углы, отверстия,
проточки и т. д.), а также зоны закреплений, то в сборках к ним почти всегда
добавляются места контакта. Вследствие чего стоит уделять особое внимание
аппроксимации кинематики, геометрии и подбору приемлемой плотности КЭ сетки в
этих местах. Но здесь также стоит учитывать возможное появление сингулярности
при выполнении расчета.
. Запуск расчета и анализ полученных результатов.
На этом этапе осуществляется интерпретация результатов применимо к
объекту исследования.
5.
ОПТИМИЗАЦИЯ КОНСТРУКЦИИ УСТАНОВКИ И СРАВНЕНИЕ РЕЗУЛЬТАТОВ
На производственном предприятии ООО «Александра-Плюс» каждая установка
подвергается ряду испытаний с целью проверки работоспособности оборудования в
целом и выявить недостатки, допущенные при проектировании. Установки
обеззараживания воды серий УОВ-ПВ и УОВ-СВ имеют в своей конструкции ряд
незащищенных мест. На этапе конструкторской разработки им следует уделять
особой внимание.
Основную нагрузку в процессе эксплуатации воспринимают внутренний фланец
и фланец присоединительной крышки. Чтобы обеспечить сохранность кварцевых
чехлов и УФ-ламп, а, следовательно, и работоспособность всей установки, на
предприятии доваривают дополнительные ребра жесткости или увеличивают толщину
фланцев.
Все эти действия ведут не только к увеличению материалоемкости, росту
затрат, а также к деформации самих фланцев и нарушению герметичности.
Исходя из всего названного выше, целью оптимизации является уменьшение
величины давления, оказываемого на фланцы и стенки емкости.
5.1
Оптимизация конструкции установки и расчет потока жидкости
Улучшение прочностных свойств тех мест, которые воспринимают наибольшие
нагрузки, можно добиться двумя способами:
. Врезка в корпус рабочей емкости дополнительного кожуха,
выполняющего роль «воздушного кармана».
Его внедрение позволяет сглаживать пульсации давления в системе.
. Увеличение толщины фланца и приварка необходимого количества
ребер жесткости при необходимости устанавливается на этапе проектирования.
На рисунке 48 представлена измененная модель рабочей емкости. Все
исходные данные и граничные условия остаются такими же.
Рисунок 48 - Модель рабочей емкости
В ходе проведения расчета получились следующие результаты.
. Полное давление на фланцах (рисунок 49, 50, 53).
Рисунок 49 - Распределение давления на торцевом фланце
Рисунок 50 - Диаграмма давления на поверхности внутреннего фланца
Рисунок 51 - Диаграмма давления на поверхности фланца крышки
2. Траектории движения потока показаны на рисунках 52, 53.
Рисунок 53 - Траектория потока и изменение давления в емкости
Рисунок 54 - Траектория скорости потока жидкости
3. Эпюра интенсивности турбулентности показана на рисунке 55.
Рисунок 55 - Эпюра интенсивности турбулентности
По результатам анализа видно, что давление, действующее на поверхность
фланца крышке, немного уменьшилось и составило примерно 794000 (Па) вместо
800000 (Па) в предыдущем расчете потока жидкости.
Стоит отметить, что в действительности после первичного испытания
установки фланец крышки был выпучен под давлением воды изнутри емкости. После
чего на производственном участке сняли крышку и к фланцу доварили по месту
дополнительные ребра жесткости. С учетом того, что помимо ребер были приварены
18 втулок, поверхность фланца извело в процессе сварки. Поэтому прочностной
анализ с будет производиться без ввода в исследуемую модель ребер жесткости.
5.2 Анализ
статической прочности оптимизированной конструкции
Граничные условия, а также условия закрепления и плотность сетки конечных
элементов остаются неизменными. Меняется только величина приложенной нагрузки и
толщина фланца, которая равняется 12 мм.
Для начала оценим напряжения в местах контакта головки болта и фланца. В
ходе проведения расчета получились следующие результаты.
) Нормальные напряжения по Мизесу представлены на рисунке 57.
Рисунок 57 - Эпюра нормальных напряжений
2) Диаграмма перемещений показана на рисунке 58.
Рисунок 58 - Диаграмма перемещений
3) Эпюра деформаций изображена на рисунке 59.
Рисунок 59 - Эпюра деформаций.
Как видно из диаграммы максимальное напряжение не превышает предел
текучести материала фланца. Это означает, что исследуемый объект выдержит
давление, которое возникает вследствие прохождения потока жидкости в рабочей
емкости.
Полученные в результате анализа значения, оформим в итоговую таблицу 4
результатов исследования.
Таблица 4 - Итоговая таблица результатов исследования
|
Первоначальная геометрия
|
Оптимизированная геометрия
|
Разница в напряжениях,%
|
|
σ, МПа
|
ΔW, мм
|
σ, МПа
|
ΔW, мм
|
|
|
Место контакта болта и фланца (max)
|
107,79
|
0,564
|
84,9
|
0,4
|
21,24
|
|
В местах сварных швов
|
54,001
|
0,3
|
45
|
0,2
|
16,67
|
ЗАКЛЮЧЕНИЕ
В ходе выполнения магистерской диссертации был осуществлен анализ по
литературным источникам, в которых рассматриваются:
. Технология очистки и обеззараживания воды с применением
совместного действия ультразвукового и ультрафиолетового излучений;
. Гидравлические процессы, проходящие во время УЗ-очистки;
. Прочностные свойства резервуаров, работающих под давлением;
. Применение современных программных вычислительных сред для
выполнения различных инженерных расчетов и т. д.
На первом этапе осуществлен анализ течения потока жидкости в рабочей
емкости установки. Полученное значение давления было в использовано в
дальнейших расчетах на прочность.
На втором этапе произведен прочностной анализ фланцевого соединения
установки обеззараживания воды серии УОВ-ПВ. Расчеты выполнялись не только для
твердотельных, но и для оболочковых моделей. Дана оценка получившимся
результатам при расчете различных типов моделей. В расчете с «виртуальным»
болтом в свойствах материала в таблице были введены необходимые механические
анизотропные свойства соединителя в цилиндрической системе координат.
На основе полученных результатов прочностного анализа была проведена
оптимизация конструкции, выполнены соответствующие расчеты потока жидкости с
последующим расчетом на прочность оптимизированной модели.
Также была дана оценка о применимости существующих нормативных документов
в качестве руководства для расчета установок обеззараживания воды, производимые
производственным предприятием ООО «Александра-Плюс». Разработана методика инженерного анализа сосудов, работающих
под давлением, в которой пошагово описана последовательность действий при
выполнении инженерных расчетов.
СПИСОК
ИСПОЛЬЗОВАННЫХ ИСТОЧНИКОВ
1. Алямовский,
А. А. COSMOSWorks. основы расчета конструкций на
прочность в среде SolidWorks / А. А.
Алямовский. - Москва: ДМК Пресс, 2010, - 784 с.
2. Алямовский,
А. А. Инженерные расчеты в SolidWorks Simulation / А. А.
Алямовский. - Москва: ДМК Пресс, 2010, - 464 с.
. Алямовский А. А. SolidWorks Simulation. Как решать практические задачи / А.
А. Алямовский. - СПб.: БХВ-Петербург, 2012, - 448 с.: ил. + DVD.
4. Бергман,
Л. Ультразвук и его применение в науке и технике / Л. Бергман. - Москва:
Издательство иностранной литературы, 1957. - 726 с.
5. Эльпинер,
И. Е. Ультразвук. Физико-химическое и биологическое действие / И. Е. Эльпинер.
- Москва: Физматгиз, 1963. - 420 с.
. Основы
физики и техники ультразвука / Б. А. Агранат, М. Н. Дубровин, Н. Н. Хавский, Г.
И. Эскин. - Москва: Высшая школа, 1987. - 352 с.
. Ультразвук.
Маленькая энциклопедия / под ред. И. П. Голяминой. - Москва: Советская
энциклопедия, 1979. - 400 с.
. Гидравлика,
гидромашины и гидроприводы: учебник для машиностроительных вузов / Т.М Башта,
С.С. Руднев, Б.Б. Некрасов [и др.]. - Москва: Машиностроение, 1982. - 423 с.
. Драгинский,
В. Л. Образование токсичных продуктов при использовании различных окислителей
для очистки воды / В. Л. Драгинский, Л. П. Алексеева // Водоснабжение и
санитарная техника. - 2002. - №2.
.
Развитие систем обеззараживания сточных вод на московских станциях / А. Н.
Пахомов, М. Н. Козлов, Д. А. Данилович, Н. А. Белов // Водоснабжение и
санитарная техника. - 2005. - №12. - Ч.1.
. О
введении в действие санитарно-эпидемиологических правил и нормативов
"Питьевая вода. Гигиенические требования к качеству воды, расфасованной в
емкости. Контроль качества. СанПин 2.1.4.1116-02": постановление Гл. гос.
санитар. врача РФ от 19 марта 2002 г. № 12 // Российская газета. - 2002. - 22
марта. - С. 40.
.
СанПиН 2.1.4.1074-01. Питьевая вода. Гигиенические требования к качеству воды
централизованных систем питьевого водоснабжения. Контроль качества.
Гигиенические требования к обеспечению безопасности систем горячего
водоснабжения: утв. Гл. гос. санитар. врачом РФ 26.09.2001. - Введ. 01.01.2002.
- Санкт-Петербург: Деан, 2002. - 68 с.
13. ПБ
03-576-03. Правила устройства и безопасной эксплуатации сосудов, работающих под
давлением: утв. постановлением Госгортехнадзора России от 11.06.2003 №91. -
Введ. 22.12.2014. - ОАО НТЦ Промышленная безопасность, 2008 г. - 186 с.
14. ГОСТ
3242-79. Соединения сварные. Методы контроля качества. - Введ. 02.08.1979. -
Москва: Издательство стандартов, 1991. - 10 с.
.
ГОСТ Р 52857.1-2007. Нормы и методы расчета на прочность. Общие требования. -
Введ. 27.12.2007. - Москва: Стандартинформ, 2009. - 22 с.
.
ГОСТ Р 52857.4-2007. Нормы и методы расчета на прочность. Расчет на прочность и
герметичность фланцевых соединений. - Введ. 27.12.2007. - Москва:
Стандартинформ, 2009. - 36 с.
17. ГОСТ Р
52630-2012. Сосуды и аппараты стальные сварные. Общие технические условия. -
Введ. 27.12.2006. - Москва: Стандартинформ, 2012. - 117 с.
18. ГОСТ
12.2.051-80. Система стандартов безопасности труда. Оборудование
технологическое ультразвуковое. Требования безопасности. - Введ. 01.01.82. -
Москва: Издательство стандартов, 1987. - 6 с.
. РД 37.001.131-89.
Затяжка резьбовых соединений. Нормы затяжки и технические требования. - Введ.
01.07.90. - Бор: Борская типография Нижегородского областного управления
издательств, 1990. - 20 с.
ПРИЛОЖЕНИЕ
Общий вид установки обеззараживания воды
Подключение и монтаж установки
Технические характеристики камеры обеззараживания
Таблица 2.1 - Технические характеристики установки УОВ-ПВ-500
|
Параметр
|
Ед. изм.
|
Значение
|
|
Производительность4, не более
|
м3/ч
|
550
|
|
Рабочее давление в камере обеззараживания, не
более
|
бар
|
10
|
|
Разряжение в камере обеззараживания, не более
|
бар
|
0,1
|
|
Тип лампы5
|
амальгамная
|
GPHHA 1554 T6L, SEAN GA
1554 T6L, SEAN GLHA 19310
|
|
Количество ультрафиолетовых ламп
|
шт.
|
18
|
|
Срок службы УФ-ламп
|
час
|
13 000
|
|
Количество включений/выключений в течение срока
службы, не более
|
-
|
2 000
|
|
Напряжение питания
|
В
|
220/380
|
|
Частота питающего напряжения
|
Гц
|
50
|
|
Потребляемая мощность: - камера обеззараживания
и блок управления; - насос промывки
|
6,3 0,25
|
|
Диаметр патрубков камеры обеззараживания6
|
мм
|
300
|
|
Объем камеры обеззараживания
|
л
|
274
|
|
Датчик ультрафиолета с прибором контроля
|
-
|
есть
|
|
Габаритные размеры, не более: - камера
обеззараживания с подставкой; - блок управления с подставкой; - насос
промывки
|
мм
|
2160×630×1380 750×300×1700 500×190×230
|
|
Масса, не более: - камера обеззараживания с
подставкой; - блок управления с подставкой; - насос промывки
|
кг
|
162 88 5
|
Очищенная вода, по физ-хим. показателям соответствующая СаНПиН
2.1.4.1074-01 и поверхностного источника с коэффициентом пропусканием не менее
70%
Очищенная вода, по физ-хим. показателям соответствующая СаНПиН
2.1.4.1074-01 из поверхностного источника или любая вода, прошедшая сорбционную
фильтрацию с коэффициентом пропусканием не менее 80%
Вода, прошедшая очистку с применением ультрафильтрации или обратного
осмоса с коэффициентом пропусканием не менее 90%
Производительность установки зависит от коэффициента пропускания воды
Безозоновое исполнение. Возможно применение любой из представленных в
таблице марок ламп.
Диаметр входного и выходного патрубков определяется проектом и
согласуется с заказчиком при изготовлении установки. Указано базовое значение.