Модернизация разгрузочного устройства установки сухого тушения пекового кокса
СОДЕРЖАНИЕ
ВВЕДЕНИЕ
1. Анализ
состояния вопроса, цель и задачи модернизации разгрузочного устройства
. Разработка
мероприятий по модернизации разгрузочного устройства УСТПК
2.1 Описание
конструкции, недостатки
.2 Расчет
вала
.2.1
Определение реакций опор и действующих моментов
3.
Проектирование привода рассекателя УСТПК
3.1 Исходные
данные для проектирования
3.2 Срок
службы
.3 Расчет
передачи винт-гайка
.3.1 Выбор
материала
.3.2
Определение диаметра винта и параметров резьбы
.3.3
Определение параметров гайки
.4
Энерго-кинематический расчет привода
.4.1
Требуемая мощность привода
.4.2 КПД
привода
.4.3
Требуемая мощность электродвигателя
.4.4 Выбор
мотор - редуктора
.5 Расчет
вала - винта
.5.1
Проектный расчет
.5.2
Определение реакций опор и действующих моментов
.5.3 Проверка
опасного сечения
.6 Проверка
подшипников
.7 Проверка
шлицевого соединения
4. Разработка
гидропривода секторного отсекателя УСТПК
4.1 Исходные
данные для проектирования
4.2
Определение геометрических параметров и выбор гидродвигателя
.3 Выбор
гидравлической схемы и ее обоснование
.3.1 Рабочий
ход вперед
.3.2 Рабочий
ход назад
.3.3 Быстрый
ход вперед
.3.4 Быстрый
ход назад
.3.5
Нейтральное положение
.4 Расчет
расходов жидкости и выбор насосной установки
.4.1
Определение скорости работы гидроцилиндра
.4.2
Определение расходов жидкостей
.4.3 Расход
жидкости для обратного хода в штоковую область (быстрый ход назад)
.5 Выбор
насосной установки
.6 Расчет
диаметра трубопровода и скорости движения жидкости
.7 Подбор
гидроаппаратуры
.8 Разработка
блока управления
.9
Определение потерь давления и проверка насоса
.9.1
Определение потерь давления в аппаратах
.9.2 Потери
давления в трубопроводах по длине
.9.3 Местные
потери давления
.9.4
Суммарные потери давления
.10 Проверка
насосной установки
. Разработка
технологии изготовления вала
.1 Описание
конструкции и назначения детали
.2 Выбор
способа изготовления заготовки
.2.1
Заготовка из проката
.2.2
Заготовка ковка
.2.3 Выбор
заготовки
.3 Выбор
плана обработки детали
.4
Предварительное нормирование времени операции
.5 Выбор
оборудования
.6 Выбор
приспособлений
.7 Выбор типа
и формы изготовления
.8 Выбор
припуска на обработку
.9 Выбор
режущих инструментов
.10 Выбор
средств измерения и контроля
.11 Выбор
режимов резания
.11.1
Горизонтально-расточная операция
.11.2
Токарная с ЧПУ
.11.3
Горизонтально-фрезерная
.11.4
Горизонтально-расточная
.11.5
Кругло-шлифовальная
.12
Уточненное нормирование времени операции
.13
Разработка управляющей программы для станка с ЧПУ
. Расчет и
конструирование резца для обработки вала
.1
Классификация токарных резцов
.2 Расчет и
конструирование резца
.
Безопасность и экологичность проекта
.1 Анализ
опасных и вредных производственных факторов при эксплуатации УСТПК
.2 Меры по
обеспечению безопасных и здоровых условий труда
.3 Расчет искусственного
освещения участка УСТПК
.4 Меры по
обеспечению устойчивости работы цеха в условиях чрезвычайных ситуаций
.5 Меры по
охране окружающей среды
ЗАКЛЮЧЕНИЕ
СПИСОК
ИСПОЛЬЗОВАННЫХ ИСТОЧНИКОВ
ВВЕДЕНИЕ
На данный момент ОАО «Северсталь» считается одним из ведущих
производителей стали в России благодаря большому сортаменту продукции,
самообеспеченности сырьем и обширной дистрибьюторской сети. Предприятия
дивизиона специализируются на стальном прокате с высокой добавленной
стоимостью, сортовом прокате для предприятий строительной отрасли и продукции
дальнейшего передела.
В состав дивизиона входят предприятия дальнейшего передела, включая
заводы по производству труб большого диаметра и метизной продукции, а также
сервисные центры и штамповочные предприятия, осуществляющие производство
атмосфероустойчивых автомобильных деталей. Дивизион выпускает наибольшую долю
продукции с высокой добавленной стоимостью среди всех российских предприятий
отрасли. Ключевой актив дивизиона - Череповецкий металлургический комбинат -
является одним из самых рентабельных металлургических предприятий в мире.
Комбинат расположен на северо-западе России и располагает удобным
железнодорожным доступом к добывающим предприятиям компании плюс недорогим
водным доступом к портам Балтийского моря. А также комбинат находится в
благоприятных условиях для обслуживания промышленных предприятий в
Ленинградской и Московской областях.
Постоянно модернизируют оборудования, внедряют новые технологии, большой
научный потенциал работников предоставляют вероятность постоянно увеличивать
перечень продукции, тем самым удовлетворяет условия наиболее требовательных
покупателей
Одно из важных мест в структуре предприятия занимает коксохимическое
производство. На этом производстве подготавливается основное топливо доменных
печей для получения чугуна, а так же немало сопутствующей продукции широко
используемой повсеместно. От бесперебойной и качественной работы
коксохимического производства зависит объем и качество выпускаемого чугуна и
соответственно работа основных переделов комбината в целом.
В выпускной квалификационной работе рассматривается вариант модернизации
установки сухого тушения пекового кокса (УСТПК) пекокосового цеха
коксохимического производства, что позволит увеличить производительность не
только установки и производства соответственно, а также и всего комбината в
целом. Увеличение выпуска комбинатом готовой продукции позволит получать
дополнительную прибыль и еще более укрепить свои позиции на внутреннем и
мировом рынках.
1. Анализ
состояния вопроса, цель и задачи модернизации разгрузочного устройства
Методика изготовления кокса состоит в нагреве коксующихся углей без
доступа воздуха в специализированных печах до t около 1050ºС, с дальнейшим его остыванием до
температуры 180º-200ºС и сортировкой на группы по
крупности.
Методика извлечения и переработки химических продуктов коксования состоит
в остывании летучих парогазовых продуктов, выходящих из камеры коксования с t от 700º-800ºС, до 30º-40ºС, конденсации и улавливание из
прямого коксового газа ценных частей. При коксовании углей для изготовления
металлургического кокса с одной тонны начальной угольной шихты получается
760-800 килограмм кокса, 30-40 килограмм каменноугольной смолы, 10-12 килограмм
сырого бензола, 3-5 килограмм аммиака, 1,4-2 килограмм сероводорода, до 340 м³
газа.
Одна из научно-технических схем коксохимического производства
представлена на рисунке 1.1.
Современное коксохимическое производство металлургического комбината или
отдельно расположенный коксохимический завод включает основные производственные
цеха:
) Углеподготовительный цех
) Коксовый цех
) Цех улавливания химических продуктов коксования
) Цех очистки газа от сернистых соединений
) Цех ректификации сырого бензола
) Смолоперерабатывающий цех
) Пекококсовый цех
) Отделение охлаждения
) Железнодорожный цех
) Центральная заводская лаборатория (ЦЗЛ)
) Отдел (участок) технического контроля (ОТК/УТК)
Рисунок 1.1 - Научно-техническая схема КХП
Как было описано ранее, установка тушения кокса находится в коксовом
цехе, поэтому рассмотрим работу этого цеха.
Технологический процесс: готовая шихта (смесь углей различных марок) по
транспортерам подается в угольную башню, поделенную на сектора, затем
загрузочный вагон набирает три бункера шихты, так как коксовая камера имеет три
загрузочных люка (с машинной, коксовой стороны и средней). Загрузочный вагон
подъезжает к пустой камере, открывает крышки загрузочных люков и опускает
бункеры (сначала с машинной стороны, затем с коксовой, а потом средней). Затем
происходит планирование выходящей шихты коксовыталкивателем с помощью планирной
штанги через специальный планирный лючок. После загрузки происходит процесс
коксования с помощью коксового или доменного газа без доступа воздуха, который
подается в простенки между камерами и используется для их обогрева.
Период коксования длится примерно 17 часов. Затем, когда кокс будет
готов, у камеры отводятся двери: с машинной стороны - косовыталкивателем, с
коксовой стороны - двересъемной машиной. С коксовой стороны устанавливается
коксонаправляющая ванна, под которую встает электровоз с тушильным вагоном.
Машинистом двересъемной машины подается команда машинисту коксовыталкивателя на
выталкивание коксового пирога. После того, как машинист коксовыталкивателя получил
команду на выдачу кокса, он подает выталкивающую штангу в камеру и проталкивает
кокс в вагон.
Поле выдачи кокса двери ставятся обратно, и производится загрузка камеры
шихтой. Выданный кокс, в тушильном вагоне, доставляется на подъемник, который
находится рядом с камерами установки сухого тушения пекового кокса. Подъемник
зацепляет вагон с коксом и поднимает его наверх камеры УСТПК. В дальнейшем
через загрузочное устройство кокс из вагона высыпается в камеру УСТПК, где и
происходит его тушение до температуры 180ºС. После тушения кокс, через
разгрузочное устройство, подается на транспортер, а транспортером на
сортировку. Отсортированный кокс подается на доменную печь, либо отгружается в
железнодорожные вагоны и поставляется потребителям.
В настоящее время на установке сухого тушения пекового кокса используется
разгрузочное устройство с использованием рассекателя в приемном устройстве и
секторных затворов для дозированной выдачи готовой продукции.
Недостатками рассекателя являются:
– сложность в обслуживании и ремонте, в виду использования устаревших
комплектующих привода;
– сильный шум при открытии.
Недостатками секторных затворов являются:
– громоздкость конструкции;
– наличие длинных тяг, подверженных частой поломке;
– сложность в обслуживании и ремонте;
Поэтому целью данной работы является разработка вариантов модернизации
установки сухого тушения пекового кокса. Модернизация установки позволит
увеличить производительность пекококсового цеха, а использование современного
оборудования и комплектующих позволить сократить затраты на ее обслуживание.
2. Разработка
мероприятий по модернизации разгрузочного устройства УСТПК
2.1 Описание
конструкции, недостатки
Секторные затворы (в соответствии с рисунком 2.1), выдающие дозированные
партии кокса, приводятся в действие устаревшей схемой механического привода.
Данный привод состоит из исполнительного механизма, приводимого в действие
электродвигателем и системы тяг. Исполнительный механизм представляет собой
редуктор со встроенным, настраиваем конечным выключателем, который срабатывает
при повороте на определенный угол выходного вала. Тяги через рычаги соединяют
приводные валы редуктора и сектора секторного отсекателя. В виду сложности
применяемого привода он имеет большие габариты. В связи с этим для его расположения
используется специальная площадка, и используются соответственно длинные тяги.
Это в свою очередь затрудняет обслуживание секторных затворов в целом и к тому
же длинные тяги являются одним из слабых мест привода, которые часто ломаются,
приводя к простоям агрегата. Также в виду громоздкости механизма секторные
затворы срабатывают довольно медленно, а увеличение скорости ввиду выше
указанных причин при данном приводе не представляется возможным. Следствием
этих недостатков является снижение производительности и повышенные затраты на
обслуживание секторных затворов.
Для устранения недостатков секторного затвора и увеличения
технологических показателей в данном дипломном проекте предлагается
модернизация секторных затворов с заменой механического привода на
гидравлический привод.
Одно из преимуществ гидропривода считается вероятность получения крупных
усилий и мощностей при ограниченных размерах гидродвигателей и соответственно
меньшее время срабатывания при меньших габаритах по сравнению с используемым приводом.
А повсеместная распространенность гидропривода в настоящее время позволяет
сократить затраты на его обслуживание.
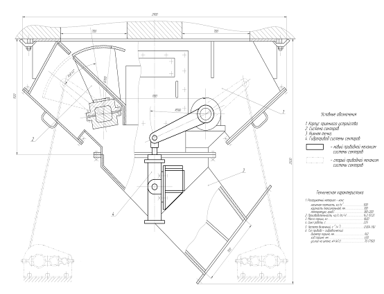
Рисунок 2.1 - Модернизация секторного отсекателя
Также одним из узких мест является привод рассекателя. Привод рассекателя
по своим техническим характеристикам удовлетворяет требованиям установки, но
обслуживание его несет большие затраты. Это обусловлено в первую очередь
использованием в нем устаревшего оборудования, которое в настоящий момент не
выпускается. Изготовление деталей особенно для редуктора идет как спецзаказ.
Для сокращения расходов на обслуживание и содержание рассекателя в дипломном
проекте рассматривается замена привода рассекателя на аналогичный с
использованием новых комплектующих.
В данном проекте будет производится расчет вала с целью определения его
силовых характеристик.
Деталь вал (рисунок 2.2) является приводным компонентом. Вал вращается на
двух радиальных роликовых подшипниковых опорах. В каждую из этих опор
устанавливается радиальный роликовый сферический двухрядный подшипник.
На одном выходном участке устанавливается ступица, посредством которой
осуществляется привод вращения.
На втором конце вала устанавливается рычаг конечного выключателя.
Рисунок 2.2 - Эскиз детали
.1.1 Геометрическая модель вала
Рисунок 2.3 - Геометрическая модель вала
2.2 Расчет
вала
2.2.1 Определение
реакций опор и действующих моментов
Осевая сила P = 8,5 кН
Изгибающие моменты
Момент кручения на валу Т=30 кН*м
Рисунок 2.4 - Силы и моменты, действующие на валу
Таблица 2.1
Радиальные силы
|
N
|
Расстояние от левого конца
вала, мм
|
Модуль, Н
|
Угол, град
|
|
0
|
784.00
|
8500.00
|
180.00
|
|
1
|
2373.00
|
8500.00
|
180.00
|
Таблица 2.2
Моменты кручения
|
N
|
Расстояние от левого конца
вала, мм
|
Значение, Нxм
|
|
0
|
225.00
|
3000.00
|
|
1
|
2801.00
|
-3000.00
|
Таблица 2.3
Реакции в опорах
|
N
|
Расстояние от левого конца
вала, мм
|
Реакция вертикальная, Н
|
Реакция горизонтальная, Н
|
Модуль, Н
|
Угол, град
|
|
0
|
178.00
|
8448.13
|
-0.00
|
8448.13
|
90.00
|
|
1
|
2636.00
|
8551.87
|
-0.00
|
8551.87
|
90.00
|
3. Проектирование привода рассекателя УСТПК
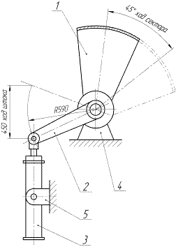
Рассекатель служит для выгрузки потушенного пекового кокса из камеры в
приемное устройство.
Рассекатель представляет собой плиту, которая опирается на направляющие
ролики. Ширина плиты составляет 1100 мм.
Плита рассекателя 3 (в соответствии с рисунком 3.1) посредством цепи 4
крепится к сектору 2, сектор рассекателя в свою очередь соединяется с приводом
1. В закрытом состоянии рассекатель удерживает груз 5. Для открытия
используется привод 1.
Рисунок 3.1 - Схема установки рассекателей: 1 - привод; 2 - сектор; 3 -
плита; 4 - цепь; 5 - груз
3.1 Исходные
данные для проектирования
Разработать привод для рассекателя установки сухого тушения пекового
кокса со следующими характеристиками:
– тип движения - поступательное;
– ход рабочего органа - 405 мм;
– усилие на рабочем органе - 30 кН;
– скорость перемещения - 0.05 м/с;
– срок службы привода - 3 года.
Кинематическая схема привода представлена на рисунок 3.2.
В приводе в связи с большим требуемым усилием и большими изгибающими
нагрузками используем винтовую передачу для передачи поступательного движения.
Из условий установки привода на агрегате для компактности используем
планетарный редуктор.
Рисунок 3.2 - Кинематическая схема привода рассекателя: 1 -
электродвигатель; 2 - редуктор; 3 - передача винт-гайка; 4 - подшипники качения
3.2 Срок
службы
Срок службы механизма в часах определим по формуле [36, стр. 39]:
, ч, (3.1)
где
- срок службы привода, лет;
- продолжительность смены, ч;
- число смен.
Отталкиваясь от того, что половину рабочего времени затвор рассекателя
находится в закрытом состоянии. Принимаем следующие параметры рабочего времени:
года;
ч.;
.
ч
С учетом профилактики и ремонтов общее время службы примем:
ч
3.3 Расчет
передачи винт-гайка
Из условий технического задания для передачи поступательного движения
используем винтовую передачу. В таких передачах наиболее часто используют
трапецеидальную резьбу, позволяющую при небольших крутящих моментах передать
большое усилие. Гайку используем неразъемную.
3.3.1 Выбор
материала
Материал для винта и гайки выбираем исходя из рекомендаций по справочнику
[22, стр. 125].
Для винта используем Сталь 40Х с характеристиками, представленными в
таблице 3.1.
Таблица 3.1
Характеристики Стали 40Х
|
Термообработка
|
Твердость поверхности, HRCэ
|
Твердость сердцевины, HB
|
Предел прочности, МПа
|
Предел текучести, МПа
|
Предел вынослив. МПа
|
|
Улучш.+ ТВЧ
|
45…50
|
269…302
|
900
|
750
|
410
|
Для гайки используем оловянистую бронзу типа Бр.О10-1 с характеристиками
представленными в таблице 3.2.
Таблица 3.2
Характеристики Стали 40Х
|
Допускаемое напряжение, МПа
|
Максимальная скорость, м/с
|
Твердость, HB
|
|
15
|
До 10
|
90
|
3.3.2 Определение
диаметра винта и параметров резьбы
Минимально допустимый средний диаметр винта найдем исходя из требуемого
осевого усилия по формуле [22, стр. 125]:
, м, (3.2)
где
- требуемое осевое усилие, Н;
- коэффициент запаса прочности;
- коэффициент рабочей высоты профиля резьбы;
- коэффициент, отношение высоты гайки к диаметру винта;
- допускаемое напряжение материала гайки, МПа.
кН (см. п. 3.1);
[22, стр. 125];
[22, стр. 125];
МПа (см. п. 3.3.1);
[22, стр. 75].
, м
Согласно ГОСТ 9484-81 принимаем трапецеидальную однозаходную резьбу с
номинальным диаметром 70 мм и шагом 16 мм:
Tr
70х16 - 7е ГОСТ 9484-81
Таблица 3.3
Характеристики выбранной резьбы Tr 70х16 - 7е ГОСТ 9484-81
|
Наружный диаметр резьбы
винта d, мм
|
Наружный диаметр резьбы
гайки, D мм
|
Шаг резьбы P,
мм
|
Средний диаметр наружной
резьбы d2, мм
|
Средний диаметр внутренней
резьбы D2, мм
|
Внутренний диаметр наружной
резьбы d1, мм
|
Внутренний диаметр
внутренней резьбы D1, мм
|
|
70
|
70
|
16
|
62
|
62
|
54
|
54
|
3.3.3 Определение
параметров гайки
Высоту гайки найдем по формуле:
, мм (3.3)
[22, стр. 125];
мм (см. п. 3.3.2).
мм
Принимаем в соответствии стандартных линейных размеров по ГОСТ 6636-69
высоту гайки равную
мм.
Проверим допустимое число витков резьбы в гайке из условий смазки по
формуле [22, стр. 125]:
, (3.4)
где
- допускаемое число витков гайки,
[22, стр. 125];
Условие по количеству витков в гайке выполняется. Принимаем число витков
гайки
.
3.4
Энерго-кинематический
расчет привода
3.4.1 Требуемая
мощность привода
Мощность привода находим по формуле [36, стр. 41]:
, кВт (3.5)
кН ;
м/с .
кВт
3.4.2 КПД
привода
КПД винтовой передачи определим по формуле [22, стр. 125]:
, (3.6)
где
- угол подъема винтовой линии, град.;
- приведенный угол трения, град.
Угол подъема винтовой линии резьбы найдем по формуле [22, стр. 126]:
, град., (3.7)
мм (см. п. 3.3.2);
мм (см. п. 3.3.2).
КПД винтовой пары найдем по формуле (3.6):
Приведенный угол трения трапецеидальной резьбы для пары сталь - бронза
град. [22, стр. 126] .
КПД привода найдем по формуле согласно кинематической схемы привода (см.
рисунок 3.2).
, (3.8)
где
- КПД планетарного редуктора;
- КПД винтовой передачи;
- КПД пары подшипников качения;
[36, стр. 149];
[табл. 2.2, 36, стр. 43].
3.4.3 Требуемая
мощность электродвигателя
Необходимую мощность электродвигателя определим по формуле [36, стр. 42]:
, кВт, (3.9)
где
- коэффициент полезного действия привода.
(см. п. 3.4.2),
N =
1,5 кВт (см. п. 3.4.1).
кВт
3.4.4 Выбор
мотор - редуктора
Действующий крутящий момент на резьбе найдем по формуле [22, стр. 126]:
, Н·м (3.10)
кН;
° (см. п. 3.4.2);
° (см. п. 3.4.2);
мм (см. п. 3.3.2).
Н·м
Для обеспечения скорости поступательного движения
м/с согласно технического задания .
Определим требуемое число оборотов винта по формуле:
, мин-1, (3.11)
где
- число заходов резьбы;
- шаг резьбы, м;
(см. п. 3.3.2);
мм (см. п. 3.3.2).
мин-1
Исходя из расчетных данных по справочнику [4, т.3, стр. 751] выбираем
мотор-редуктор типа:
МПз-40-180-310ПШ-380 ГОСТ 26543-94
Основные технические характеристики мотор-редуктора представлены в
таблице 3.4. Основные размеры редуктора представлены на рисунке 3.4.
Таблица 3.4
Основные характеристики мотор-редуктора 1МПз-40-180-310ПШ-380
|
Параметр
|
Значение
|
|
Мощность, кВт
|
5,5
|
|
Номинальная частота
вращения выходного вала, об/мин
|
180
|
|
Допускаемый крутящий момент
на выходном валу, Н*м
|
278
|
|
Тип исполнения
|
фланцевый
|
|
Тип выходного вала
|
полый со шлицами
|
|
Шлицевое соединение (ГОСТ
6033-80)
|
32хН8х1,5
|
|
Напряжение питания, В
|
380
|

|
D
|
D1
|
d
|
d6
|
d7
|
L1
|
L4
|
L5
|
L6
|
l6
|
l7
|
|
200
|
130
|
165
|
12
|
32
|
32
|
630
|
8
|
88
|
15
|
52
|
8
|
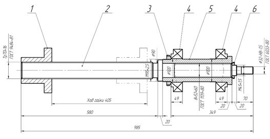
Рисунок 3.4 - Основные размеры мотор-редуктора
3.5
Расчет вала - винта
3.5.1 Проектный
расчет
Исходя из полученных расчетных данных (см. п. 3.3) и конструкторских
соображений, строим компоновочную схему узла винтовой передачи. Полученная
компоновочная схема представлена на рисунке 3.5.
Предварительно выбираем из справочника [17, стр. 219] роликовые
радиально-упорные подшипники №97520 ГОСТ 9942-90 с данными характеристиками:
d =
100 мм; D = 180 мм; T = 49 мм; B = 46
мм; c = 39 мм; r = 3,5 мм;
r1 = 1,2 мм; Сr = 250 кН; Сr0 = 236 кН; e = 0,41; Y = 1,49; Y = 0,82.
Рисунок 3.5 - Компоновочная схема узла винтовой передачи: 1 - гайка; 2 -
винт; 3 - гайка М95х2.5; 4 - подшипники; 5 - втулка; 6 - гайка М45х15
Для установки роликовых радиально-упорных подшипников поз. 4 с большой
несущей способностью (для восприятия осевого усилия 30 кН) и уменьшения
концентраторов напряжения на вале поз. 2 (резких переходов диаметров), а также
для удобства монтажа/демонтажа, используем переходную втулку поз.5. Подшипники
устанавливаем на втулке по схеме в растяжку. Регулировку подшипников производи
гайкой поз. 3.
Для соединения вала с втулкой используем шлицевое соединение. Втулку на
вале фиксируем гайкой поз. 6.
3.5.2 Определение
реакций опор и действующих моментов
Расчет производим в соответствии с методикой [36] и схем представленных
на рисунке 3.6.
Силы, действующие на вал.
Силы от винтовой передачи:
– осевая сила
Н (см. п. 3.1.);
– окружная сила
;
– радиальная сила
.
Силы от шлицевого соединения с мотор - редуктором:
– окружная сила
;
– радиальная сила
.
Крутящий момент на валу T = 175 H·м.
Окружные силы найдем по формуле [36, стр. 100]:
, Н (3.12)
где
- крутящий момент на валу, Н;
- средний диаметр зацепления, мм.
Рисунок 3.6 - Расчетная схема вала - винта
мм,
мм.
Н,
Н
Радиальную силу от винтовой передачи найдем по формуле [22, стр. 126]:
, Н, (3.13)
где
- угол трапецеидальной резьбы, Н.
град. (см. п. 3.3.2.);
град. [22, стр. 57].
Н
Радиальную силу от шлицевого соединения с мотор-редуктором определим по
формуле [36, стр. 100]:
, Н, (3.14)
где
- угол профиля шлицевого соединения, Н.
° [4, Т2, стр. 834]
бН
Горизонтальная плоскость
Реакции опор:
,
Н
,
Н
Проверка:
Моменты изгиба:
H·м,
H·м,
H·м,
H·м
Вертикальная плоскость.
Реакции опор:
,
Н
,
Н
Проверка:
Моменты изгиба:
H·м,
H·м,
H·м,
H·м
Сумма моментов изгиба
Суммы моментов изгиба найдем по формуле [36, стр. 139]:
, Н·м, (3.15)
где
- момент изгиба в горизонтальной плоскости, Н·м;
- момент изгиба в вертикальной плоскости, Н·м.
Н·м,
Н·м,
Н·м,
Н·м
Крутящие моменты
Крутящие моменты на одном валу всегда численно равны.к = Т =
175 H·м (см. п. 3.4.4).
Приведенные моменты.
На основе 3-й гипотезы прочности находим приведенные моменты по формуле:
, Н·м, (3.16)
где
- сумма изгибающих моментов, Н·м;
Mк - момент кручения, Н·м;
α - коэффициент, учитывающий отличие в
свойствах циклов напряжений изгиба и кручения, Сталь 40Х α = 0.579.
Н·м,
Н·м,
Н·м,
Н·м
3.5.3 Проверка
опасного сечения
Опасное сечение находиться около левого подшипника. Рассчитываем по
методу, приведённому в [36, стр. 267].
Находим коэффициент запаса прочности для нормальных напряжений.
Эти напряжения найдем по формуле:
, Н·мм2, (3.17)
где М - изгибающий момент в сечении которое рассматриваем, Н·м;
W -
осевой момент инерции сопротивления сечения вала, ослабленный шпоночным пазом,
мм3.
Максимальный изгибающий момент в сечении
(в соответствии с рисунком 3.6).
Осевой момент инерции сопротивления в сечении рассматриваемого вала
рассчитываем по формуле:
, мм3, (3.18)
где d - диаметр в сечении рассматриваемого
вала, мм.
Диаметр вала d = 60 мм.
мм3
Из этого нормальные напряжения в опасном сечении:
Н/мм2
Коэффициент концентрации нормальных напряжений в опасном сечении для вала
с применением термообработки (поверхностного упрочнения):
, (3.19)
где
- эффективный коэффициент концентрации напряжений;
- коэффициент влияния абсолютных размеров поперечного
сечения;
- коэффициент влияния шероховатости;
- коэффициент поверхностного упрочнения.
= 2,25 [36, стр. 271, табл. 11.2];
= 0,785 [36, стр. 272, табл. 11.3];
= 1,5 [36, стр. 272, табл. 11.4];
= 2,8 [36, стр. 272, табл. 11.5];
Отсюда коэффициент концентрации нормальных напряжений:
Предел выносливости по нормальным напряжениям вычислим по формуле:
, (3.20)
где
- «предел выносливости при симметричном цикле изгиба, Н/мм2».
Предел выносливости для Стали 40Х
Н/мм2 (см. п. 3.3.1).
Н/мм2
Находим коэффициент запаса прочности по нормальным напряжениям по
формуле:
(3.21)
Находим коэффициент запаса прочности для касательных напряжений.
Эти напряжения в опасном сечении находим по формуле:
, Н·мм2, (3.22)
где Т - вращающий момент в рассматриваемом сечении, Н·м;
Wr - Полярный момент инерции сопротивления сечения вала, ослабленного
шпоночным пазом, мм3.
Его найдем по формуле:
, мм3, (3.23)
d = 60
мм (см. рис. 3.4).
мм3
Касательные напряжения в опасном сечении:
Н/мм2
Коэффициент концентрации нормальных напряжений в опасном сечении:
, (3.24)
где
- эффективный коэффициент концентрации напряжений;
Коэффициенты формулы (3.24) находим по справочным таблицам:
= 1,75 [36, стр. 271,табл 11.2].
Отсюда коэффициент концентрации нормальных напряжений:
Предел выносливости по касательным напряжениям найдем по формуле:
, Н/мм2, (3.25)
где
- предел выносливости при симметричном цикле, Н/мм2.
Для Стали 40Х
Н/мм2.
Н/мм2
Коэффициент запаса прочности по касательным напряжения найдем по формуле:
, (3.26)
Расчетный коэффициент запаса прочности.
Его мы находим по формуле:
, (3.27)
где
- допускаемый коэффициент запаса прочности при уточненном
расчете валов [36, стр. 267].
Так как
условие прочности выполняется. Прочность опасного сечения
обеспечена.
3.6
Проверка подшипников
Заранее выбранные радиально-упорные подшипники №97520 ГОСТ 9942-90
характеристика которых:
d =
100 мм, D = 180 мм, T = 49 мм, B = 46
мм, c = 39 мм, r = 3.5 мм, r1 = 1.2 мм, Сr = 250 кН, Сr0 = 236 кН, e = 0.41, Y = 1,49, Y = 0,82.
Радиальную нагрузку на подшипник находим по формуле [36, стр. 142]:
, Н, (3.28)
где XB и YB - горизонтальная и вертикальная
реакция опоры, Н.
Реакции опоры в точке А (см. п. 3.5.2): XA = 27118,2 Н, YA = 101,6 Н.
Реакции опоры в точке B (см.
п. 3.5.2): XB = 33541,9 Н, YB = 6599,9 Н.
Н,
Н
Осевые составляющие радиальных нагрузок на подшипники найдем по формуле
[36, стр. 141, табл. 9.1]:
, Н, (3.29)
где e - коэффициент влияния осевого
нагружения.
Н,
Н
По таблице 9.6 [36, стр. 148] находим все осевые нагрузки подшипников.
При установке подшипников в растяжку:
Н,
Н
Вычисляем соотношение
:
При вращающемся внутреннем кольце подшипника коэффициент вращения V = 1 [36, стр. 142].
,
Исходя из соотношений
и
, вычисляем эквивалентные нагрузки. Для подшипника в т. А
эквивалентную нагрузку найдем по формуле [36, стр. 141, табл. 9.1]:
, Н, (3.30)
где
- коэффициент безопасности;
- температурный коэффициент.
Коэффициент безопасности при среднем режиме работы
[36, стр. 271]. Температурный
коэффициент
[36, стр. 271].
Отсюда эквивалентная нагрузка на подшипник:
Н
Для подшипника в т. В эквивалентную нагрузку найдем по формуле [36, стр.
141,табл. 9.1]:
, Н, (3.31)
где X - коэффициент радиальной нагрузки;
Y -
коэффициент осевой нагрузки.
X =
0,4 [36, стр. 141,табл. 9.1];
Y =
1,49 (см. характеристики подшипника);
Н
Находим расчетную динамическую грузоподъемность и проверим пригодность
подшипников.
Расчетную динамическую грузоподъемность для радиально-упорных роликовых
подшипников находим по формуле [36, стр. 140]:
, Н, (3.32)
где
- срок службы привода, ч;
- частота вращения, об/мин;
- коэффициент надежности;
- коэффициент влияния качества эксплуатации и качества
подшипника.
n =
180 об/мин (см. п. 3.4.4);
ч. (см. п. 3.2);
[36, стр. 140];
[36, стр. 140].
Н,
Н
Условие пригодности
выполняется.
Подшипник №97520 ГОСТ 9942-90пригоден.
В виду большого полученного запаса по грузоподъемности подшипника в т.
Принимаю решение выбрать подшипник наименьшей грузоподъемности, и применяем
подшипник №97220 ГОСТ 9942-90 со следующими характеристиками:
d =
100 мм; D = 160 мм; T = 37 мм; B = 34
мм; c = 29 мм; r = 3.5 мм
r1 = 1.2 мм; Сr = 233 кН; Сr0 = 190 кН; e = 0.43; Y = 1.4.
3.7 Проверка
шлицевого соединения
Для соединения вала - винта с переходной втулкой подшипников используем
шлицевое соединение 8х52х60 ГОСТ 1139-80 (см. п. 3.5.1) со следующими
техническими характеристиками, представленными в таблице 3.5.
Таблица 3.5
Параметры шлицевого соединения
|
Количество зубьев
|
Диаметр вершин, мм
|
Диаметр впадин, мм
|
Ширина зуба, мм
|
Фаска зуба, мм
|
Радиус галтели зуба, мм
|
|
8
|
60
|
52
|
10
|
0.5
|
0.5
|
Проверку проводим по допускаемому напряжению смятия по формуле [22, стр.
70]:
, Н, (3.33)
где K - коэффициент, учитывающий неравномерность распределения усилия
между шлицами;- число шлицев;- рабочая длина шлицев, равная длине ступвцы, м;ср
- средний радиус;
А - проекция рабочей поверхности шлица длиной 1 мм на его среднюю
диаметральную плоскость,
- допускаемое напряжение смятия, МПа.
мм
Отсюда действующее напряжение смятия на шлицевом соединении вала-винта:
Н·м (см. п. 3.5.2);
[22, стр. 70];
;
мм (см. рис. 3.5);
мм;
МПа [22, стр. 70].
МПа
Условие прочности выполняется. Шпоночное соединение по прочности
проходит.
4. Разработка
гидропривода секторного отсекателя УСТПК
В данной работе рассматривается гидродвигатель поступательного движения
для секторного затвора разгрузочного устройства УСТК.
Разгрузочное устройство служит для подачи кокса на транспортер. При
раскрытии секторного затвора кокс поступает на транспортер партиями
тонн за определенное время, затем
секторный затвор закрывается, и подача кокса прекращается.
4.1 Исходные
данные для проектирования
Разработать гидропривод секторного отсекателя установки сухого тушения
пекового кокса (УСТПК) со следующими техническими параметрами, представленными
в таблице 4.1.
Таблица 4.1
Исходные данные гидропривода
|
Параметр
|
Значение
|
|
Угол поворота сектора,
град.
|
45
|
|
Наибольшая угловая
скорость, с-1
|
0,16
|
|
Тип гидродвигателя
|
поступательного движения
|
|
Осевое усилие, Н
|
73500
|
|
Ход штока гидроцилиндра, м
|
0,45
|
Предусмотреть дроссельное регулирование скорости работы гидроцилиндра.
Кинематическая схема представлена на рисунке 4.1.
Рисунок 4.1 - Кинематическая схема секторного отсекателя: 1 - сектор
отсекателя; 2 - тяга отсекателя; 3 - гидроцилиндр; 4 - опора сектора; 5 - опора
гидроцилиндра
4.2 Определение
геометрических параметров и выбор гидродвигателя
Для гидропривода секторного отсекателя использую устройства гидроцилиндра
с односторонним штоком двухстороннего действия.
Рабочий ход гидроцилиндра S =
0,45 м (см. п. 4.1).
Отталкиваясь от заданного осевого усилия R = 73500 Н задаем, в соответствии со стандартными давлениями
в гидравлике рабочим давлением гидравлической системы равно p = 6,3 МПа.
В ходе работы были найдены следующие данные:
Диаметр поршня гидравлического цилиндра:
Dст = 140 мм.
По полученным значениям выберем стандартный гидравлический цилиндр с
максимально допустимым давлением Pmax = 8 МПа 1-140х100х630 ТУ2-0221050.004 - 88. Характеристики
показаны в таблице 4.2.
Таблица 4.2
Свойства гидравлического цилиндра 1-140х100х630 «ТУ2-0221050.004 - 88»
|
№ п/п
|
Параметр
|
Значение
|
|
1
|
«Номинальное давление», МПа
|
«6,3»
|
|
2
|
«Диаметр поршня», мм
|
«140»
|
|
3
|
«Диаметр штока», мм
|
«100»
|
|
4
|
«Ход поршня», мм
|
«630»
|
|
5
|
«Максимальное усилие на
штоке толкающее», кН
|
«87,23»
|
|
6
|
«Максимальное усилие на
штоке тянущее», кН
|
«42,72»
|
.3 Выбор
гидравлической схемы и ее обоснование
Секторный отсекатель работает в непрерывном технологическом процессе с
циклическим режимом работы. При раскрытии секторного затвора кокс поступает на
транспортер партиями ~ 1,7 т за определенное время, затем затвор закрывается, и
подача кокса прекращается. За 1 час происходит 16 срабатываний механизма.
Исходя из специфики работы секторного отсекателя и частоты срабатываний,
гидравлическая схема должна обеспечивать следующие требования:
– непрерывную работу насосной установки для обеспечения
технологического процесса;
– фиксирование гидроцилиндра в конечных положениях для обеспечения
нахождения сектора в требуемых положениях в течение нужного времени;
– иметь двухскоростной режим для возможности быстрого открытия или
закрытия затвора;
– возможность закрывать/открывать затвор вручную в аварийных
ситуациях.
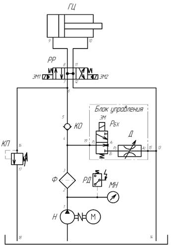
Разработанная схема гидропривода представлена на рисунке 4.2.
В схеме применен гидрораспределитель РР с соединением всех линий в
нейтральном положении, что обеспечивает подпор рабочих линий гидроцилиндра при
нейтральном положении с работающим насосом, а также дает возможность в
аварийной ситуации при отсутствии давления через ручной привод закрыть или
открыть затвор отсекателя.
Рисунок 4.2 - Гидравлическая схема секторного отсекателя:
ГЦ - гидравлический цилиндр; РР - реверсивный гидравлический
распределитель; ЭМ1 и ЭМ2 - электромагниты реверсивного гидравлического
распределителя; КО - обратный клапан; КП - предохранительный клапан; Ф -
фильтр; РД - реле давления; МН - манометр; Н - насос; РБХ -
распределитель быстрого хода; ЭМ - электромагнит распределителя быстрого хода;
Д - дроссель
Также для устранения гидроударов при переключении гидрораспределителя
применяем 14-ю схему согласно таблице 4.1 [25], что обеспечивает при
переключении плавное поступление рабочей жидкости в гидроцилиндр.
Скорость работы гидроцилиндра регулируем с помощью сброса части потока
жидкости через распределитель быстрого хода РБХ и дроссель Д в бак.
Данная схема устраняет влияние эффекта кавитации (образование пузырьков воздуха
и пара при резком увеличении скорости потока) в рабочей жидкости на рабочие
линии гидросистемы при прохождении через дроссель. Эффект кавитации - это один
из недостатков дроссельного регулирования.
Для контроля засорения фильтра Ф и превышения максимально допустимого
давления в системе используем реле давления РД с выводом индикации на пульт и
для местного контроля манометр М.
Предохранительный клапан КП предохраняет систему от превышения
максимально допустимых давлений.
Далее следует описание работы гидросхемы по циклам.
4.3.1 Рабочий
ход вперед
При включении электромагнита «ЭМ1» золотник гидрораспределителя «РР»
переместится вправо обеспечивая рабочий ход вперед. Схема движения рабочей
жидкости представлена на рисунке 4.3.
Рисунок 4.3 - Схема движения рабочей жидкости
При рабочем ходе вперед часть потока рабочей жидкости перетекает через
распределитель быстрого хода РБХ (электромагнит ЭМ включен) и
дроссель Д, обеспечивая требуемую скорость открытия секторного затвора отсекателя.
4.3.2 Рабочий
ход назад
При включении электромагнита «ЭМ2» золотник гидрораспределителя «РР»
переместится влево обеспечивая рабочий ход назад. Схема движения рабочей
жидкости представлена на рисунке 4.4.
Рисунок 4.4 - Схема движения рабочей жидкости
При рабочем ходе назад также часть потока рабочей жидкости перетекает
через распределитель быстрого хода РБХ (электромагнит ЭМ включен) и
дроссель Д, обеспечивая требуемую скорость открытия секторного затвора
отсекателя.
4.3.3 Быстрый
ход вперед
При включении электромагнита ЭМ1 гидрораспределителя РР и отключении
электромагнита ЭМ гидрораспределителя РБХ обеспечивается быстрый ход
вперед. Схема движения рабочей жидкости представлена на рисунке 4.5.
Рисунок 4.5 - Схема движения рабочей жидкости
При быстром ходе вперед распределитель хода РБХ закрыт,
обеспечивая поступление всего потока рабочей жидкости к гидроцилиндру.
4.3.4 Быстрый
ход назад
При включении электромагнита ЭМ2 гидрораспределителя РР и отключении
электромагнита ЭМ гидрораспределителя РБ обеспечивается быстрый ход назад.
Схема движения рабочей жидкости представлена на рисунке 4.6.
Рисунок 4.6 - Схема движения рабочей жидкости
При быстром ходе назад распределитель хода РБ закрыт, обеспечивая
поступление всего потока рабочей жидкости к гидроцилиндру.
4.3.5 Нейтральное
положение
При нейтральном положении (оба электромагнита ЭМ1 и ЭМ2 гидрораспределителя
РР выключены) рабочая жидкость через гидрораспределитель РР поступает в бак, а
так же обеспечивает подпор в рабочих линиях гидроцилиндра для предотвращения
самопроизвольного перемещения сектора отсекателя. Электромагнит ЭМ включен для
обеспечения поступления только небольшого объема рабочей жидкости к
гидрораспределителю РР. Схема движения рабочей жидкости представлена на рисунке
4.7.
Рисунок 4.7 - Схема движений рабочих жидкостей
4.4 Расчет
расходов жидкости и выбор насосной установки
4.4.1 Определение
скорости работы гидроцилиндра
Максимальная угловая скорость сектора затвора отсекателя w = 0,16 с-1.
Требуемую скорость работы найдем по формуле:
, м/с, (4.2)
где w - максимальная
угловая скорость сектора затвора, с-1;
r -
длина рычага, м.
Длина рычага r = 0,59 м (см.
рис. 4.1).
м/с
Расход в поршневую область (быстрый ход вперед).
м3/с (87,78 л/мин)
Площадь в поршневой области гидравлического цилиндра
м2
4.4.3 Расход
жидкости для обратного хода в штоковую область (быстрый ход назад)
Расход жидкости для обратного хода гидравлического цилиндра
м3/с (42,968 л/мин)
Площадь в штоковой полости
м2
4.5
Выбор насосной установки
Выбираем нерегулируемый пластинчатый гидравлический насос БГ12-25АМ «ТУ2-053-1364-78».
Свойства этой насосной установки приведены в таблице 4.3.
Таблица 4.3
Свойства насосной установки «БГ12-25АМ ТУ2-053-1364-78»
|
Параметр
|
Значение
|
|
«Рабочий объем», см3
|
«80»
|
|
«Номинальное давление», МПа
|
«10»
|
|
«Максимальное давление»,
МПа
|
«12,5»
|
|
«Номинальная подача», л/мин
(м3/с)
|
«104 (0,00173)»
|
|
«Номинальная частота
вращения», об/мин
|
«1 500»
|
|
«Объемный КПД», %
|
«90»
|
.6 Расчет
диаметра трубопровода и скорости движения жидкости
В качестве трубопроводов используем металлические бесшовные холоднодеформированные
трубы ГОСТ 8734-75.
Внутренний диаметр частицы трубы
м (26,2 мм)
Расчетную толщину стенки частицы трубы
м (2,89 мм)
Выберем стальные бесшовные холоднодеформированные трубы 34х3,2 ГОСТ
8734-75 [25].
Исходя из выбранных труб и давления в гидравлической системе, применяем
соединения трубопроводов с шаровым ниппелем по ГОСТ 24488-80 [25].
4.7
Подбор гидроаппаратуры
Выбираем следующие гидрааппараты для данного гидравлического привода:
Предохранительный клапан ПБГ54 - 34М ТУ 2-053-1628-83:
номинальное давление
,
условный проход
,
номинальный расход
,
максимальный расход
,
перепад давлений
,
внутренние утечки
.
Фильтр 3ФГМ 32 ТУ 2-053-1778-86:
номинальное давление
,
условный проход
,
номинальный расход
,
максимальный расход
,
перепад давлений
,
внутренние утечки
.
Обратный клапан ПГ 51-34 ТУ 2-053-1649-83:
номинальное давление
,
условный проход
,
номинальный расход
,
максимальный расход
,
перепад давлений
,
внутренние утечки
.
Дроссель МПГ 55 - 14М ТУ 2-053-1790-86:
номинальное давление
,
условный проход
,
номинальный расход
,
максимальный расход
,
Реверсивный распределитель 1Р203АЛ114В6 В220 УХЛ4 ТУ 2-053-1846-87:
номинальное давление
,
условный проход
,
номинальный расход
,
максимальный расход
,
перепад давлений
,
внутренние утечки
.
А - «исполнение по способу установки золотника: с пружинным возвратом»,
Л - «вид управления: электрогидравлическое с двумя электромагнитами и
пружинным возвратом пилота»,
1 - «соединение линий управления с основными»,
- «номер схемы в соответствии с таблице 4.1 [25]»,
В6 - «тип пилота: ВЕ6»
В - «род тока: переменный»,
- «напряжение, В»,
УХЛ4 - «климатическое исполнение и категория размещения»
Распределитель быстрых ходов ВЕ1014 В36НМ УХЛ4 ГОСТ 2467-81:
«номинальное давление»
,
«условный проход»
,
«номинальный расход»
,
«максимальный расход»
,
«перепад давлений»
,
«внутренние утечки»
,
В - «гидравлический распределитель золотниковый»,
Е - «вид управления: электрический»,
- «диаметр условного прохода, мм»,
- «номер схемы в соответствии с таблицей 4.1 [25]»,
В - «род тока: переменный»,
- «напряжение, В»,
Н - «наличие кнопки переключения электромагнита с кнопкой»,
М - «подключение электромагнита: через индивидуальный штепсельный
разъем».
4.8 Разработка
блока управления
В этой ВКР монтаж агрегатов гидроблока управления выполняется на
монтажной плите.
В блок управления входят следующие агрегаты: распределитель быстрых ходов
и дроссель. На схеме эти агрегаты объединены штрих пунктирной линией.
Рабочая жидкость поступает от насоса, пройдя фильтр к плите гидроблока
управления. Рабочая жидкость проходит через отверстие «Р» плиты и далее
поступает в отверстие «РР» распределителя быстрых ходов, проходит
через него и поступает через отверстие «ВР» в отверстие дросселя «РД».
Затем рабочая жидкость проходит через дроссель и выходит из него через
отверстие «ТД» в плиту, а затем выходит из гидроблока управления в
трубопровод через отверстие «А» в плите.
Схему гидравлического блока управления предоставим на рисунке 4.8.
Рисунок 4.8 - «Схема гидроблока управления»: РБ - распределитель быстрого
хода; ЭМ - электромагнит распределителя быстрого хода; Д - дроссель
4.9 Определение
потерь давления и проверка насоса
4.9.1 Определение
потерь давления в аппаратах
Потери давления в аппаратах
Рабочий ход
МПа
Обратный ход
Мпа
4.9.2 Потери
давления в трубопроводах по длине
Общие потери по длине трубопроводов
Рабочий ход (РХ):
– «напорная линия -
МПа»;
– «сливная линия -
МПа».
Обратный ход (ОХ):
– «напорная линия -
МПа»;
– «сливная линия -
МПа».
4.9.3 Местные
потери давления
Общие местные потери
Рабочий ход (РХ):
– «напорная линия -
МПа»;
– «сливная линия -
МПа».
Обратный ход (ОХ):
– «напорная линия -
МПа»;
– «сливная линия -
МПа».
4.9.4 Суммарные
потери давления
Общие суммарные потери давлений
Рабочий ход (РХ) -
МПа;
Обратный ход (ОХ) -
МПа.
4.10 Проверка
насосной установки
Максимальная потеря давления при быстром рабочем ходе вперед
МПа
МПа
Подобранная гидронасосная установка подходит по характеристикам.
гидропривод отсекатель пековый коксохимический
5.
Разработка технологии изготовления вала
5.1 Описание
конструкции и назначения детали
Вал рисунок 2.2 - ведущий (приводной) элемент конструкции. (Вал вращается
на двух радиальных роликовых подшипниковых опорах, в каждой из которых
устанавливается радиальный роликовый сферический двухрядный подшипник и данная
деталь принадлежит к классу ступенчатых валов с отверстиями).
На одной выходной Степени устанавливается ступица, с помощью которой
осуществится привод вращения.
На втором конце вала устанавливается рычаг конечного выключателя.
Вал изготавливается из конструкционной углеродистой стали 45 «ГОСТ 1050-88».
Сталь 45 относится к конструкционным углеродистым качественным сталям.
5.2 Выбор
способа изготовления заготовки
Для производства заготовки рассмотрим следующие методы (в соответствии с
рисунком 5.1):
– «прокат»;
– «свободная ковка».
Метод изготовления детали определяется конструкцией детали, техническими
требованиями к материалу детали и типом производства, а так же, что
немаловажно, экономичностью производства.
Составим 2 вида технологического процесса производства вала по стоимости
и выберем наиболее лучший.
Общие исходные данные:
– материал заготовки сталь 45 «ГОСТ 1050-88»;
– m = 528 кг;
– программа на год N =
900 шт.
Сведения для расчета заготовки предоставлены в таблице 5.1.
Таблица 5.1
Сведения для расчета цены заготовки
|
Название
|
Первый вариант
|
Второй вариант
|
|
|
|
|
«Вид заготовки»
|
Прокат
|
Ковка
|
|
«Вес заготовки, кг»
|
731
|
691,44
|
|
«Стоимость 1 тонны
заготовок, приятых за базу Cт, руб»
|
11 690
|
17 535
|
|
«Стоимость 1 тонны стружки Sотх, руб»
|
1 200
|
1 200
|
Рисунок 5.1 - Эскизы заготовок
5.2.1 Заготовка
из проката
Допуск на торцы- 4 мм.
Допуск на наружный D - 10
мм.
мм
мм
Находи массу проката:
, кг, (5.1)
где
- плотность стали,
г/см3.
кг
Цена заготовки (прокатом) равна:
, руб., (5.2)
где
- масса заготовки, кг;
- цена 1 т. Заготовок в рублях.
рублей
5.2.2 Заготовка
ковка
Допуск на торцы- 16±5
мм.
Допуск на наружный D - 19±7 мм.
Так как заготовка при ковке сложной формы, поэтому будем разбивать ее на
простые формы и произведем расчет массы.
мм,
мм,
мм,
мм,
мм ,
мм
, кг, (5.3)
кг,
кг,
кг
Вес всей ковки найдем по формуле:
, кг, (5.4)
кг
При ковке образуется окалина , ее вес составляет 3 % от общей массы
готового изделия. Ее вес плюсуем к массе ковки. По этой причине вес найдем по
формуле:
, кг, (5.5)
кг,
кг
Цена изделия ковкой будет:
руб.
5.2.3 Выбор
заготовки
Из этих выбранных вариантов производства вала выберем вариант под номером
2. Это решение принимается исходя из произведенных раньше расчетов и выводов:
цена заготовки полученной методом ковки немножко выше, чем заготовка,
выполненная прокатом, но зато кованая заготовка по массе незначительно
превышает массу готовой детали. Отсюда следует, что кованую заготовку легче
обработать, чем прокат. Тип заготовки для производства детали вал - ковка.
5.3 Выбор
плана обработки детали
Эскиз детали приведен на рисунке 2.2.
«Горизонтально-расточная операция».
– подрежем оба торца
– центрируем деталь с обоих торцов.
«Токарная операция с ЧПУ»:
-й проход:
– черновая проточка Ф200мм на l = 1640 мм;
– черновая проточка Ф160мм на l = 470 мм;
– черновая проточка Ф140мм на l = 116 мм;
– чистовая проточка Ф160мм на l = 354 мм
– чистовая проточка Ф140мм на l = 116 мм;
– снимаем фаску.
2-й переход:
– черновая проточка Ф160 мм на l = 590 мм;
– черновая проточка Ф140 мм на l = 236 мм;
– черновая проточка Ф119 мм на l = 120 мм;
– чистовая проточка Ф160 мм на l = 354 мм;
– чистовая проточка Ф140 мм на l = 116 мм;
– снимаем фаску.
Продольно-фрезерная операция:
– отфрезеровать квадрат160х160 мм на l = 150 мм;
– отфрезеровать квадрат100х100 мм на l = 120 мм.
Горизонтально-расточная операция:
– просверлить 5 отверстий Ф9.8 мм;
– нарезать резьбы в отверстиях Ф9.8 мм.
Кругло - шлифовальная операция:
– шлифуем плоскость Ф140мм на l = 52 мм;
– шлифуем плоскость Ф160мм на l = 20 мм
5.4 Предварительное
нормирование времени операции
Заблаговременное нормирование времени производится согласно приведенным
формулам [6, стр. 118]. Расчет предварительного нормирования рабочего времени
представлен в таблице 5.2.
Таблица 5.2
Предварительное нормирование рабочего времени
|
№
|
Операция
|
Припуск на сторону, мм
|
Длина прохода, мм
|
Приблизительное время
|
Число проходов
|
То·103
мин
|
|
1
|
Горизонтально-расточная
|
|
Подрезка торцов
|
8
|
160
|
|
2
|
1.28
|
|
Центрируем заготовку с двух
сторон Ф10 мм
|
|
31
|
|
1
|
0.02
|
|
2
|
Токарная ЧПУ, 1-й переход
|
|
Обточка поверхности Ф200
|
9.5
|
1340
|
|
1
|
49.89
|
|
Обточка поверхности Ф160
|
9.5
|
620
|
|
1
|
18.87
|
|
Обточка поверхности Ф140
|
9.5
|
116
|
|
1
|
3.14
|
|
Чистовая обточка Ф160 мм
|
1
|
504
|
|
1
|
8.17
|
|
Чистовая обточка Ф140 мм
|
1
|
116
|
|
1
|
1.65
|
|
Снять фаску
|
|
25
|
|
1
|
0.21
|
|
3
|
Токарная с ЧПУ, 2-й переход
|
|
Обточка поверхности Ф160
|
9.5
|
740
|
|
1
|
22.52
|
|
Обточка поверхности Ф140
|
9.5
|
236
|
|
1
|
6.38
|
|
Обточка поверхности Ф119
|
9.5
|
120
|
|
1
|
2.43
|
|
Чистовая обточка Ф160 мм
|
1
|
504
|
|
1
|
8.17
|
|
Чистовая обточка Ф140 мм
|
1
|
116
|
|
1
|
1.65
|
|
Снять фаску
|
|
6
|
|
4
|
0.59
|
|
4
|
Продольно-фрезерная
|
|
Фрезеровать квадрат 160х160
мм
|
9.5
|
150
|
|
2
|
1.2
|
|
Фрезеровать квадрат 100х100
мм
|
9.5
|
120
|
|
2
|
0.96
|
|
5
|
«Горизонтально-расточная»
|
|
Сверлить 5 отв. Ф9.8 мм
|
|
31.8
|
|
5
|
0.04
|
|
Нарезать резьбу в
отверстиях Ф9.8 мм
|
|
25
|
|
5
|
0.02
|
|
6
|
«Кругло-шлифовальная»
|
|
Шлифовать поверхность Ф140
мм
|
0.015
|
104
|
|
2
|
4.39
|
|
Шлифовать поверхность Ф160
мм
|
0.015
|
40
|
|
2
|
1.92
|
|
ИТОГО:
|
131.58
По результатам расчетов приведенных в таблице 5.2, можно сделать следующий
вывод: данную деталь возможно изготовить как в условиях мелкосерийного, так и
среднесерийного производства. На производство детали уходит 131,58 минут всего
времени.
5.5 Выбор
оборудования
Оборудование для изготовления детали предоставлено в таблице 5.3.
Таблица 5.3
Оборудование для изготовления детали
|
№
|
Операция
|
Оборудование
|
|
1
|
Фрезерно-центровальная
|
«Фрезерно-центровальный
полуавтомат МР-73». Мощность эл. двигателя 14 кВт; габаритные размеры
3590х1690х400 мм.
|
|
2
|
Токарная
|
«Токарно-винторезный станок
с контурной системой ЧПУ модели 1М63Т1». Мощность эл. двигателя 13 кВт;
габаритные размеры (без ЧПУ) 4660х1690 мм.
|
|
3
|
Фрезерная
|
«Фрезерный станок
(продольный) 6642». Рабочая поверхность стола 900х3000мм, мощность эл.
двигателя главного движения 14 кВт(4шт.), подача стола 4.5кВт, габариты
станка 7650х4650х3600 мм.
|
|
4
|
Сверление
|
«Горизонтальный сверлильный
станок 2652». Рабочая поверхность стола 4500х1800 мм, мощность главного эл.
двигателя 59кВт, габаритные размеры 8300х9000х4500 мм.
|
|
5
|
Шлифование
|
«Кругло-шлифовальный станок
3164А». Самый больший d обрабатываемой детали 400 мм, d
шлифовального круга 600-900мм, наибольшее перемещение стола 3000 мм,
наибольшая l шлифуемой детали 3000мм, мощность главного эл.
двигателя 14 кВт, габаритные размеры станка 8420х2560х1630 мм.
|
5.6 Выбор
приспособлений
Станочное устройство выбираем для обеспечения требуемого базирования и
надежного закрепления детали на операциях, высокой жесткости установленной на
станке заготовки, учитывая возможности автоматизации обработки и иных условий.
Выбор устройства заносим в таблицу 5.4.
Таблица 5.4
Станочные устройства для изготовления
|
№
|
Операция
|
Приспособление
|
|
1
|
Фрезерно-центровальная
|
Зажимная призма
|
|
2
|
Токарная
|
Поводковая планшайба
(патрон), вращающийся центр
|
|
3
|
Фрезерная
|
Зажимная призма с
пневмозажимом, шпиндельная головка (вертикальная, горизонтальная), конус
шпинделя
|
|
4
|
Сверление
|
Опорная пластина,
пневмозажим, сверлильная головка, конус морзе метрический
|
|
5
|
Шлифование
|
Поводковая планшайба,
хомут, центра
|
5.7 Выбор
типа и формы изготовления
Тип изготовления по ГОСТ 3.1108-74 характеризуется коэффициентом
закрепления операции Кзо.
Программа на год шт.
Настоящее время работы оборудования [18]:
, мин, (5.6)
где - дней в год, ;
- не рабочих дней (праздники и выходные), ;
- рабочих часов в смене, ;
- коэффициент, потеря времени на ремонт ; регламентированные
перерывы, ;
- количество смен, .
мин = 1947,76 час
Расчетное количество станков [18, стр. 83]:
, шт. (5.7)
где - время операции на одну штуку, мин;
-коэффициент на загрузку оборудования, .
Время на штуку для приблизительных расчетов принимаем .
шт,
шт,
шт,
шт,
шт
Реальный коэффициент загрузки оборудования [18, стр. 85]:
, (5.8)
где - количество рабочих мест, шт.
,
,
,
,
Число операций, выполненных на рабочих местах:
, (5.9)
,
,
,
,
Данные по технологическому процессу предоставлены в таблице 5.5.
Таблица 5.5
Данные по технологическому процессу
|
№
|
Операция
|
Тш
|
mр, шт.
|
Р, шт
|
|
О, шт
|
|
1
|
Фрезерно-центровальная
|
1,3
|
0,013
|
1
|
0,013
|
58
|
|
2
|
Токарная
|
265,79
|
2,73
|
1
|
2,73
|
1
|
|
3
|
Фрезерная
|
3,97
|
0,041
|
1
|
0,041
|
18
|
|
4
|
Сверление
|
0,11
|
0,0011
|
1
|
0,0011
|
682
|
|
5
|
Шлифование
|
10,42
|
0,106
|
1
|
0,106
|
7
|
|
ИТОГО:
|
|
|
5
|
|
766
|
Отталкиваясь от рассчитанных данных, изготовление будет мелкосерийное.
Для этого типа изготовления наиболее характерной является групповая форма
организации изготовления.
Количество в партии деталей для единовременного запуска находим по
формуле [6, стр. 121]:
, шт. (5.10)
где а = 2…20 дней - количество дней, на которое необходим запас деталей;
F =
250 дней - число рабочих дней в году.
шт.
5.8
Выбор припуска на обработку
Выбранные данные по припускам и допускам показаны в таблице 5.6.
Таблица 5.6
Табличные данные припусков и допусков поверхностей
|
Размеры детали, мм
|
Припуски на обработку, мм
|
Допуски заготовки, мм
|
Размеры заготовки, мм
|
|
Черновая (предварительная
обработка)
|
|
Ф200
|
9,5
|
±7
|
Ф219
|
|
Ф160
|
9,5
|
±7
|
Ф179
|
|
Ф140
|
9,5
|
±7
|
Ф159
|
|
Чистовая
|
|
Ф160
|
1
|
±2
|
Ф162
|
|
Ф140
|
1
|
±2
|
Ф142
|
Рисунок 5.2 - План участка
Припуск на сторону [18, стр. 73]:
, мм (5.11)
где - готовой детали, мм;
- заготовки, мм
Черновая обработка:
мм,
мм,
мм
Чистовая обработка:
мм,
мм
5.9 Выбор
режущих инструментов
Таблица 5.7
Выбор режущего инструмента
|
Операция
|
Переход
|
Режущий инструмент
|
|
Фрезерно-центровальная
|
Фрезеровка торцов
|
«Торцевая фреза ГОСТ
3754-47 с пластинками из твердого сплава Т5К10»
|
|
Центровка с двух сторон
|
«Зенковка коническая
центровочная с углом при вершине 60 град. без предохранительного конуса, ГОСТ
14953-80»
|
|
Токарная
|
Точение поверхности
предварительно
|
«Токарный упорно-проходной
изогнутый правый резец с j=90 град., пластинкой Т5К10,
18879-73»
|
|
Операция
|
Переход
|
Режущий инструмент
|
|
Точение поверхности начисто
|
«Токарный подрезной
отогнутый правый резец с пластинкойТ5К10, ГОСТ 18880-73»
|
|
Точение фаски
|
«Токарный подрезной
отогнутый правый резец с пластинкойТ5К10, ГОСТ 18880-73»
|
|
Фрезерная
|
Фрезерование квадрата
|
«Торцевая фреза ГОСТ
9473-80 с пластинками из твердого сплава Т5К10»
|
|
Сверлильная
|
Сверление 5отверстий
|
«Спиральное сверло из
быстрорежущей стали Р6М5 с цилиндрическим хвостовиком, ГОС 4010-77»
|
|
Нарезание резьбы в
отверстиях
|
«Машинный метчик ГОСТ
3266-81»
|
|
Шлифовальная
|
Шлифование поверхности
|
«Абразивный круг
ПП350х52х76 15А 50 см2 К7 35 м/с ГОСТ 2424-83»
|
5.10 Выбор
средств измерения и контроля
Информация по выбору средств измерения и контроля предоставлена в таблице
5.8.
Таблица 5.8
Выбор режущего инструмента и средств измерения
|
Операция
|
Переход
|
Мерительный инструмент
|
|
Горизонтально-расточная
|
Фрезерование торцов
|
|
|
Центровка с двух сторон
|
«Шаблон»
|
|
Токарная
|
Точение поверхности
предварительно
|
«Штангенциркуль ЩЦ-250-0.05
ГОСТ 166-89. Линейка 2-го класса точности металлическая ШП 350х5 ГОСТ
8026-75»
|
|
Точение поверхности начисто
|
«Штангенциркуль ЩЦ-250-0.05
ГОСТ 166-89.»
|
|
Точение фаски
|
«Шаблон»
|
|
Продольно-фрезерная
|
Фрезерование квадрата
|
«Штангенциркуль
ЩЦ-2-200-0.05 ГОСТ 166-89. Линейка 2-го класса точности металлическая ШП
250х5 ГОСТ 8026-75»
|
|
Горизонтально-расточная
|
Сверление пяти отверстий
|
«Калибр пробка ГОСТ
14810-69»
|
|
Нарезание резьбы в
отверстиях
|
«Калибр»
|
|
Кругло-шлифовальная
|
Шлифование поверхности
|
«Настроенный на размер микрометр,
рычажный микрометр, профилометр, биениемер, прибор для измерения параметров
шероховатости»
|
5.11 Выбор
режимов резания
Расчет произведем для нескольких переходов остальные аналогичные расчеты,
и справочные данные приведем в таблице 5.9, а для шлифовальных операций в
таблице 5.10.
5.11.1 Горизонтально-расточная
операция
Фрезерование торцов
L
рабочего хода [18, стр. 174]:
, мм (5.12)
где - резания, мм;
- подвод, врезание, перебег инструмента, мм;
- дополнительная l хода, которая вызвана отдельными случаями и особенностями наладки и
конфигурации детали, мм.
мм
Глубина резания мм
Назначим подачу из стандартного ряда станка мм/об.
Период стойкости берем мин.
Таблица 5.9
Режимы резания для токарной операции
|
Операция
|
Переход
|
D, мм
|
L, мм
|
T, мм
|
S, мм/об
|
uтабл.,
м/мин
|
nрасч.,
об/мин
|
nст.,
об/мин
|
uдейств.,
м/мин
|
Tо, мин
|
|
Горизонтально-расточная
|
1. Фрезерование торцов
|
160
|
166
|
8
|
0,3
|
180
|
253,64
|
250
|
140,52
|
4,4
|
|
2. Центровка с двух сторон
|
10
|
31
|
5
|
0,3
|
20
|
445,63
|
450
|
14,14
|
0,37
|
|
Токарная с ЧПУ
|
1. Точение предварительно
Ф200 на l = 1640 мм
|
219
|
1656
|
9,5
|
0,5
|
97
|
152,55
|
150
|
103,15
|
22,08
|
|
2. Точение предварительно
Ф160 на l = 470 мм
|
179
|
486
|
9,5
|
0,5
|
97
|
186,65
|
180
|
101,47
|
5,4
|
|
3. Точение предварительно
Ф140 на l = 116 мм
|
159
|
132
|
9,5
|
0,5
|
97
|
210,13
|
200
|
99,85
|
1,32
|
|
4. Точение начисто Ф160 на l =
354 мм
|
162
|
370
|
1
|
0,25
|
175
|
372,06
|
350
|
178,04
|
4,23
|
|
5. Точение на чисто Ф140 на
l = 116 мм
|
142
|
132
|
1
|
0,25
|
175
|
424,46
|
400
|
178,35
|
1,32
|
|
6. Снятие фаски
|
142
|
8.5
|
1
|
0,5
|
138
|
324,98
|
300
|
133,76
|
0,06
|
|
Токарная с ЧПУ
|
1. Точение предварительно
Ф160 на l = 590 мм
|
179
|
606
|
9.5
|
0,5
|
97
|
186,65
|
101,17
|
6,73
|
|
2. Точение предварительно
Ф140 на l = 236 мм
|
159
|
252
|
9.5
|
0,5
|
97
|
210,13
|
200
|
99,85
|
2,52
|
|
3. Точение предварительно
Ф119 на l = 120 мм
|
138
|
136
|
9.5
|
0,5
|
97
|
242,11
|
200
|
88,66
|
1,36
|
|
4. Точение на чисто Ф160 на
l = 354 мм
|
162
|
370
|
1
|
0,25
|
175
|
372,06
|
350
|
178,04
|
4,23
|
|
5. Точение начисто Ф140 на l =
116 мм
|
142
|
132
|
1
|
0,25
|
175
|
424,46
|
400
|
178,35
|
1,32
|
|
6. Снятие фаски
|
142
|
8
|
1
|
0,5
|
138
|
324,98
|
300
|
133,76
|
0,05
|
|
Продольно-фрезерная
|
1. Фрезерование квадрата
160х160 на l = 150мм
|
179
|
166
|
9,5
|
0,3
|
180
|
253,64
|
250
|
140,52
|
8,85
|
|
2. Фрезерование квадрата
100х100 на l = 120мм
|
119
|
136
|
9,5
|
0,3
|
220
|
750,41
|
400
|
149,46
|
6,8
|
|
Горизонтально-расточная
|
1. Сверление пяти отверстий
Ф9.8 мм
|
9,8
|
12
|
4,9
|
0,1
|
20
|
454,96
|
450
|
13,85
|
3,35
|
|
2. Нарезание резьбы М12 в
отверстиях Ф9.8 мм
|
9,8
|
12
|
4,9
|
-
|
6
|
155,99
|
150
|
4,62
|
1,15
|
Таблица 5.10
Режимы резания для шлифовальной операции
|
Переход
|
D, мм
|
L, мм
|
T, мм
|
S, мм/об
|
uтабл.,
м/мин
|
nрасч.,
об/мин
|
nст.,
об/мин
|
uдейств.,
м/мин
|
uтабл.
круга, м/с
|
nрасч. круга,
об/мин
|
nст.круга,
об/мин
|
uдейств. круга,
м/с
|
Tо, мин
|
|
Шлифуем Ф140 на l =
52 мм
|
140,03
|
53
|
0,015
|
15,6
|
50
|
113,72
|
100
|
43,93
|
35
|
1910,83
|
1900
|
34,81
|
3,72
|
|
Шлифуем Ф160 на l =
20 мм
|
160,03
|
21
|
0,015
|
15,6
|
50
|
99,45
|
100
|
50,27
|
35
|
1910,83
|
1900
|
34,81
|
1,4
|
Находим скорость резания [18, стр. 174]:
, м/мин. (5.13)
где - скорость резания из таблицы, м/мин;
- коэффициент, зависящий от обрабатываемого материала;
- коэффициент, зависящий от стойкости и марки твердого
сплава;
- коэффициент, зависящий от вида обработки;
м/мин;
; ; .
м/мин.
Определим частоту вращения фрезы [18, стр. 174]:
, мин-1 (5.14)
где - расчетная скорость резания, мин-1.
мин-1
Принимаем по паспорту станка мин-1.
Реальная скорость резания [18, стр. 174]:
, м/мин, (5.15)
где - принятая частота вращения, мин-1.
м/мин
Определим основное время [18, стр. 174]:
, мин, (5.16)
где - количество проходов, .
мин
5.11.2 Токарная
с ЧПУ
Точение предварительно Ф200 на l=1340мм.
Длина рабочего хода:
мм
Глубина резания [18, стр. 147]:
, мм, (5.17)
где - больший D
заготовки, мм;
-меньший d
заготовки, мм.
мм
Назначим подачу из стандартных рядов станка мм/об.
Период стойкости резца примем мин.
Рассчитаем скорость резания:
м/мин;
;
.
м/мин
Определим частоту вращения:
об/мин
Примем по паспорту станка об/мин.
Реальная скорость резания:
м/мин
Определим основное время [18, стр. 147]:
, мин (5.18)
мин
5.11.3 Горизонтально-фрезерная
Фрезерование квадрата 160х160 на l=150мм.
L
рабочего хода:
мм
Глубина резания:
мм
Назначим подачу из стандартных рядов станка мм/об.
Период стойкости примем мин.
Рассчитаем V резания:
м/мин;
;
;
.
м/мин
Определим частоту вращения:
об/мин
Примем по паспорту станка об/мин.
Реальная V резания:
м/мин
Определим основное время:
Число проходов .
мин
Фрезерование квадрата 100х100 на l=120 мм.
Длина рабочего хода:
мм
Глубина резания:
мм
Назначим подачу из стандартных рядов станка мм/об.
Период стойкости примем мин.
Рассчитаем V резания:
м/мин;
;
;
.
м/мин
Определим частоту вращения:
об/мин
Примем по паспорту станка об/мин.
Реальная V резания:
м/мин
Определим основное время:
Число проходов, ;
мин
5.11.4 Горизонтально-расточная
Сверление пяти отверстий Ф 9,8мм.
L
рабочего хода:
мм
Глубина резания:
мм
Назначим подачу из стандартных рядов станка мм/об.
Период стойкости примем мин.
Рассчитаем V резания:
м/мин;
;
;
.
м/мин
Определим частоту вращения:
об/мин
Примем по паспорту станка об/мин.
Реальная V резания:
м/мин
Определим основное время [18, стр. 165]:
, мин, (5.19)
мин
Общее основное время на пять отверстий:
мин
Нарезание резьбы М12 в отверстиях Ф9.8мм.
L
рабочего хода:
мм
Глубина резания:
мм
Подача зависит от резьбы и равна шагу резьбы. Для резьбы М12 шаг равен P = 1,75 мм.
Период стойкости примем мин.
Рассчитаем V резания:
м/мин;
;
;
.
м/мин
Определим частоту вращения:
об/мин
Примем по паспорту станка об/мин.
Реальная V резания:
м/мин
Определим основное время:
мин
Общее основное время на пять отверстий:
мин
5.11.5 Кругло-шлифовальная
Шлифование Ф140 на Ll=52мм.
L
рабочего хода:
мм
Глубина резания:
мм
Назначим продольную подачу:
, мм/об (5.20)
Диаметр круга мм ( ПП).
мм/об
Примем V вращения детали
м/мин.
Определим частоту вращения детали:
об/мин
Примем по паспорту станка об/мин.
Реальная V детали:
м/мин
Принимаем скорость вращения круга м/с.
Частота вращения круга:
об/мин
Примем по паспорту станка об/мин.
Реальная скорость резания:
м/с
Определим основное время:
Число проходов, ;
мин
5.12 Уточненное
нормирование времени операции
Выпуск детали - вал в мелком серийном производстве, а в мелком серийном
производстве определяется норма штучно-калькуляционного времени [18, стр. 79]:
, мин. (5.21)
где - подготовительно-заключительное время, мин;
- количество деталей в настроечной партии;
- норма штучного времени, мин.
Норма штучного времени [18, стр. 78]:
, мин. (5.22)
где - основное время, мин;
- вспомогательное время, мин;
- период времени на сервис рабочего места, мин;
- период времени на отдых и на личные нужды, мин.
Вспомогательное время [18, стр. 78]
, мин. (5.23)
где - период времени на установку и снятие детали, мин;
- период времени на закрепление и открепление детали, мин;
- период времени на приемы управления, мин;
- период времени на измерение детали, мин.
Приведенные выше формулы можно представить в виде одной формулы:
, мин. (5.24)
где - период времени на установку и снятие, закрепление и
открепление детали, мин;
- период времени на обслуживание рабочего места, перерыва на
отдых и личные нужды, мин.
мин,
мин,
мин,
мин,
мин,
мин
Сводная таблица технических норм времени по операциям предоставлена в
таблице 5.11.
Таблица 5.11
Сводная таблица технических норм времени по операциям
|
Операция
|
Тв
|
То
|
Топ
|
Тоб+Тот
|
Тшт
|
Тпз
|
n
|
Тшк
|
|
Тус+Тзо
|
Туп
|
Тиз
|
|
|
|
|
|
|
|
|
Фрезерно-центровальная
|
0.33
|
0,16
|
0,21
|
4,7
|
5,4
|
2,183
|
7,58
|
15
|
900
|
7,6
|
|
Токарная I
|
0,01
|
0,32
|
32,5
|
33,07
|
2,925
|
36
|
18
|
900
|
36,02
|
|
Токарная II
|
0,244
|
0,01
|
0,32
|
18,3
|
18,85
|
2,115
|
20,97
|
18
|
900
|
20,99
|
|
Фрезерная
|
0,33
|
0,16
|
0,21
|
15,65
|
16,35
|
2,183
|
18,53
|
15
|
900
|
18,55
|
|
Сверлильная
|
0,32
|
0,02
|
0,13
|
4,5
|
1,42
|
0,548
|
1,96
|
10
|
900
|
5,53
|
|
Шлифовальная
|
0,7
|
0,03
|
0,27
|
5,12
|
4,72
|
3,486
|
8,2
|
12
|
900
|
9,62
|
5.13 Разработка
управляющей программы для станка с ЧПУ
Управляющая программа предоставлена в таблице 5.12.
Таблица 5.12
Управляющая программа
|
№ кадра
|
Содержание кадра, %
|
Расшифровка кадра, начало
программы
|
|
N010
|
G95 G97
|
Подача вводится на оборот,
вращение в оборотах в минуту
|
|
N020
|
T01 S1502
|
Ввод инструмента 1,
скорость вращения шпинделя 150 об/мин
|
|
N030
|
G90 G00 X+100000 Z+462000
|
Абсолютные координаты,
быстрый подвод инструмента
|
|
N040
|
M03 G91
Z+1656000 F050
|
Включаем шпиндель,
относительные координаты, черновое точение Ф200 мм на длину 1340 мм, величина
подачи 0.5 мм/об
|
|
N050
|
G91 X+3000
|
Относительные координаты,
отвод инструмента на 3 мм от детали
|
|
N060
|
G90 G00 Z-16000
|
Абсолютные координаты,
быстрый подвод инструмента
|
|
N070
|
G902
X+81000
|
Абсолютные координаты,
позиционирование инструмента.
|
|
N080
|
S180 G91 Z+486000 F050
|
Скорость вращения шпинделя
180 об/мин, относительные координаты, черновое точение Ф160 мм на длину 470
мм, величина подачи 0.5 мм/об
|
|
N090
|
G91 X+3000
|
Относительные координаты,
отвод инструмента на 3 мм от детали
|
|
N100
|
G90 G00 Z-16000
|
Абсолютные координаты,
быстрый подвод инструмента
|
|
N110
|
G90
X+71000
|
Абсолютные координаты,
позиционирование инструмента.
|
|
N120
|
S200 G91
Z+132000 F050
|
Скорость вращения шпинделя
200 об/мин, относительные координаты, черновое точение Ф140 мм на длину 116
мм, величина подачи 0.5 мм/об
|
|
N130
|
G91 X+3000
|
Относительные координаты,
отвод инструмента на 3 мм от детали
|
|
N140
|
T02
|
Ввод инструмента 2
|
|
N150
|
G90 G00 Z-16000
|
Абсолютные координаты,
быстрый подвод инструмента
|
|
N160
|
G90
X+70015
|
Абсолютные координаты,
позиционирование инструмента.
|
|
N170
|
S400 G91
Z+132000 F025
|
Скорость вращения шпинделя
400 об/мин, относительные координаты, чистовое точение Ф140 мм на длину 116
мм, величина подачи 0.25 мм/об
|
|
N180
|
G91 X+3000
|
Относительные координаты,
отвод инструмента на 3 мм от детали
|
|
N190
|
G90 G00 Z-16000
|
Абсолютные координаты,
быстрый подвод инструмента
|
|
N200
|
G90 X+80000
|
Абсолютные координаты,
позиционирование инструмента.
|
|
N210
|
S350 G91 Z+486000 F025
|
Скорость вращения шпинделя
350 об/мин, относительные координаты, чистовое точение Ф160 мм на длину 470
мм, величина подачи 0.25 мм/об
|
|
N220
|
G91 X+3000
|
Относительные координаты,
отвод инструмента на 3 мм от детали
|
|
N230
|
T03
|
Ввод инструмента 3
|
|
N240
|
G90 G00 Z-6000
|
Абсолютные координаты,
быстрый подвод инструмента
|
|
N250
|
G90 X+80000
|
Абсолютные координаты,
позиционирование инструмента.
|
|
N260
|
S300 G91 Z+8500 F050
|
Скорость вращения шпинделя
300 об/мин, относительные координаты, снятие фаски, величина подачи 0.5 мм/об
|
|
N270
|
М02
|
Конец программы
|
6. Расчет и
конструирование резца для обработки вала
К основным углам резца (углам рабочего клина) относятся:
– «передний угол g (гамма)»;
– «главный задний угол a (альфа)»;
– «угол заострения b (бета)»;
– «угол резания d (дельта)».
Геометрия резца показана на рисунке 6.1.
Рисунок 6.1 - Геометрия резца
Углы в плане показаны на рисунке 6.2
Рисунок 6.2 - Углы в плане: j - главный; j1
вспомогательный
5.14 Классификация
токарных резцов
Токарные резцы применяются для обработки различных
поверхностей деталей: цилиндрических, конических, фасонных, торцовых и т.д.
Резцы классифицируются в зависимости от различных параметров.
По назначению различают резцы:
- проходные (прямые, отогнутые упорные),
- подрезные (торцовые), прорезные
(канавочные),
- отрезные,
- фасонные,
- резьбовые,
- расточные.
5.15 Расчет
и конструирование резца
Для обработки детали вала выбираем составной токарный проходной резец с
пластиной из твердого сплава для чернового обтачивания из стали 45 с . Диаметр заготовки , припуск на обработку (на сторону) , подача , вылет резца .
Теперь, зная данные, произведем расчет резца:
В качестве материала для корпуса резца выбираем углеродистую сталь 50 с и допустимым напряжением на изгиб .
Главная составляющая силы резания:
, Н (6.1)
где t - глубина резания, мм;
- подача резца, мм/об;
- суммарный поправочный коэффициент, .
При условии, что , ширина прямоугольного сечения корпуса резца
, мм (6.2)
где - главная составляющая силы резания, Н;
- вылет резца, мм;
- напряжение на изгиб, МПа.
Принимаем ближайшее большее сечение корпуса .
Следуя приведенными соотношениями, получаем высоту корпуса резца . Принимаем .
Проверяем прочность и жесткость корпуса резца.
Максимальная нагрузка, которая допускается прочностью резца
, Н (6.3)
где - сечение корпуса, мм;
- высота корпуса резца, мм;
- напряжение на изгиб, МПа;
- вылет резца, мм.
Самая большая нагрузка
, Н (6.4)
где - допускаемая стрела прогиба резца при черновом точении,
;
- модуль упругости материала корпуса резца, ;
- вылет резца, ;
- момент инерции прямоугольного сечения корпуса.
Момент инерции
, м4 (6.5)
где - сечение корпуса, м;
- высота корпуса резца, м.
м4
Резец обладает достаточными прочностью и жесткостью, так как
Размеры резца берем по СТСЭВ 190-75; ; расстояние от вершины резца до
боковой поверхности в направлении лезвия ; радиус кривизны вершины лезвия
резца ; пластина из твердого сплава, , форма № 0239А по ГОСТ 2209-82.
Геометрические элементы лезвия резца выбираем по справочнику [16].
7.
Безопасность и экологичность проекта
7.1 Анализ
опасных и вредных производственных факторов при эксплуатации УСТПК
Машинист УСТПК выполняет следующие работы: контроль режима работы камер
по прокалке и тушению кокса и котельных установок УПК-8; производит загрузку
кокса в камеру УСТПК производит разгрузку камер УСТПК производит замер
температуры кокса в зоне прокалки; проверяет исправное действие
предохранительных клапанов, водоуказательных приборов, котловых манометров;
производит периодические продувки котла; производит отбор проб котловой воды и
конденсата пара; производит обходы газоопасных мест III группы; обслуживает
газоочистные и пылеосадительные установки очистки аспирационного воздуха;
производит передачу оборудования УСТПК, имеющего электропривод, для
технического обслуживания и ремонта и взятия из ремонта по окончании работ;
производит остановку камер УСТПК и их пуск; проверяет действия автоматики и
сигнализации на оборудовании УСТПК; проверяет системы досушивания и
пожаротушения на УСТПК; производит покраску оборудования; производит уборку
снега, мусора, территории.
Рабочее место машиниста УСТПК характеризуется наличием нескольких
основных опасных и вредных производственных факторов. По уровню шума превышений
нет.
Постоянное воздействие высоких температур раскаленного кокса (до 1300°С), пара (до 355°С), питательной воды (до 100°С), нагретых металлических поверхностей
- создают возможность ожога. Высокие температуры рабочей зоны приводят к
дополнительным нагрузкам на сердечно-сосудистую систему.
Сквозняки могут привести к респираторным заболеваниям и остеохондрозу.
Наличие движущихся и вращающихся частей машин и механизмов создают
опасность травмирования.
Наличие токоведущих троллей с высоким напряжением (380 В) и
электрооборудования создают опасность поражения электрическим током.
Наличие в воздухе пыли создает возможность заболевания органов дыхания и
опасность попадания ее в глаза (ПДК = 6 мг/м3).
Наличие ядовитого циркуляционного газа в рабочей зоне создает возможность
отравления оксидами углерода, предельно допустимая концентрация (ПДК) оксида
углерода (СО) - 20 мг/м3. Циркуляционный газ содержит: оксид углерода
(СО, удушающий газ) - 4 - 12%; водород Н2 - до 4%; кислород О2
- до 3%; азот N2 - остальное.
Циркуляционный газ является отравляющим за счет содержания в нем оксида
углерода. Оксид углерода при вдыхании образует с молекулами гемоглобина крови
химическое соединение, более устойчивое, чем его с кислородом, делая тем самым
его неспособным переносить кислород из легких для питания тканей. Из-за
понижения содержания кислорода в крови наступает отравление. Основные симптомы
отравления: отдышка, удушье, судороги, потеря сознания. Особенно важно уловить
начальные симптомы, при появлении, которого необходимо немедленно покинуть
рабочее место: голова становится тяжелой, появление ощущения сдавленности лба,
сильная боль во лбу и висках, мелькание в глазах, ощущение пульсации в висках,
головокружение, чувство слабости, учащенное сердцебиение, рвота.
Наличие азота может привести к удушению из-за недостатка кислорода
(содержание кислорода в воздухе рабочей зоны должно быть 19-23%). Азот (N2), поступающий на УСТПК из кислородного производства
ОАО «Северсталь» практически на 100% состоит их основного химического элемента.
Азот является удушающим газом потому что, растворяясь в плазме крови быстрее
кислорода, создает затруднение последнему из ткани легких переходить в кровь.
Основные признаки удушения: учащение дыхания и пульса, потери равновесия,
головокружение, чувство тяжести в висках, возможно эйфория. Объемная доля
содержания кислорода в воздухе рабочей зоны обеспечивающая нормальную
жизнедеятельность человека, составляет 19-23%.
7.2 Меры по
обеспечению безопасных и здоровых условий труда
На участке коксовых батарей существует две стороны: машинная и коксовая.
На машинной стороне находится коксовыталкиватель, который по путям
передвигается вдоль батарей, служит для отвода и установки дверей камер
коксования, проталкивания кокса с помощью коксовыталкивающей штанги. Управляет
коксовыталкивателем специально обученный персонал - машинисты, каждый коксовый
выталкиватель обслуживает один машинист. В помощь машинисту выделяется
дверьевой, он производит обслуживание камер (забрасывает концы, чистит раму,
производит уплотнение двери).
Освещение с машинной стороны расположено по всей длине батарей, также на
кабине и обслуживающей площадке коксовыталкивателя. Так как коксовые батарей
находятся на открытом воздухе, то вентиляции не предусмотрено. Так как пути
коксовыталкивателя заземлены, то и он сам тоже. Вся автоматика на
коксовыталкивателе тоже имеет заземление, проводка имеет изоляцию, печки имеют
ограждения, контакторная кабина закрыта, и доступ в нее имеет только электрик
(сменный, дневной), троллеи коксовыталкивателя также имеют ограждения, в кабине
машиниста на полу лежат резиновые коврики, ручки переключателе пластмассовые с
резиновой изоляцией. На верхней и нижней площадках коксовыталкивателя имеется
ограждения, а также на лестницах.
Также имеются блокировки на передвижение у планерной и коксовыталкивающей
штангах коксовыталкивателя. С коксовой стороны расположены двересъемная машина
и электровоз с тушильным вагоном. Управляют двересъемом и электровозом
машинисты, специально обученные. Освещение находится по всей длине батарей, а
также на обслуживающей площадке двересъема. Вентиляция не предусмотрена, т.к.
машинисты находятся не открытом воздухе.
Корпус, органы управления на двересъемной машине и электровозе имеют
заземление, пластиковые ручки с резиновой изоляцией, провода тоже имеют
изоляцию, в кабинах обеих машин имеются резиновые коврики, а печки имеют
ограждения. На обслуживающих площадках двересъема имеются ограждения, также
имеются блокировки на передвижение и на отжатие коксонаправляющей ванны. На
электровозе имеются ограждения и блокировка на передвижение.
На участке установки сухого тушения пекового кокса есть два отделения:
отделение камер сухого тушения кокса, отделение котлов-утилизаторов.
На установке сухого тушения пекового кокса работает обслуживающий
персонал в количестве: бригада слесарей - 5 человек; электросварщик - 1
человек; дневной машинист установки сухого тушения пекового кокса - 1 человек;
смены машинист установки сухого тушения пекового кокса - 1 человек; КИПиА - 1
человек; газовщик установки сухого тушения пекового кокса - 1 человек.
Предусмотрено искусственное освещение на рабочем месте КИПиА, газовщика
УСТПК, машиниста УСТПК, в будке слесарей, а также на каждом этаже обслуживающих
площадок как отделения камер сухого тушения пекового кокса, по всей длине, так
и в отделении котлов-утилизаторов. Светильники расположены в линию с одинаковым
расстоянием друг от друга. Вентиляция на участке УСТПК предусмотрена как
естественная, так и принудительная (с помощью вентиляторов). Шумные места на
УСТПК, это места загрузки и разгрузки кокса, кокс, ударяясь об металлические
поверхности, создает шум.
7.3 Расчет
искусственного освещения участка УСТПК
Расчет искусственного освещения производим для помещения участка УСТПК
размером 16х8 м.
Равномерное освещение:
, м (7.1)
где - расстояние между центрами светильников, м;
- высота подвеса над рабочей поверхностью, м.
м
Число необходимых светильников с люминесцентными лампами (ЛЛ):
, шт. (7.2)
где - площадь помещения, м2;
- расстояние между центрами светильников, м;
- расстояние между параллельными рядами светильников, м.
В соответствии с рекомендациями м. Оптимальное значение м. Площадь помещения участка УСТПК м2.
После подстановки исходных данных в формулу (8.2) получаем:
шт.
Определяем требуемый световой поток ламп, обеспечивающий оптимальные
условия труда при выполнении зрительных работ известного разряда:
, лм (7.3)
где - минимальная нормируемая освещенность, лк;
- коэффициент запаса, учитывающий запыление светильников и
снижение светоотдачи источников света в процессе эксплуатации;
- коэффициент неравномерности освещения по площади
помещения;
- коэффициент использования светового потока, %;
- коэффициент затенения, который вводится в расчет только
при наличии крупногабаритного оборудования, затеняющего рабочее пространство.
Коэффициент неравномерности освещения по площади помещения: для ламп
накаливания , для газоразрядных .
Индекс помещения найдем по формуле:
, (7.4)
где - длина и ширина помещения, м.
По полученному индексу помещения принимаем . Подставляя полученные данные в
формулу (8.3), определяем требуемый световой поток:
лм
Исходя из полученного светового потока, выбираем люминисцентную лампу,
мощностью 80 Вт.
Определяем потребляемую мощность осветительной установки:
, Вт (7.5)
где - мощность выбранной лампы, м;
- число светильников, шт.;
- число ламп в светильнике, шт.
Вт
Осветительная установка, состоящая из 20 светильников с люминесцентными
лампами, обеспечивает освещенность и удовлетворяет требования (СНиП 23-05-95).
7.4 Меры по
обеспечению устойчивости работы цеха в условиях чрезвычайных ситуаций
На участке УСТПК возможны следующие чрезвычайные ситуации:
– разрыв газопровода пекококсового газа;
– разрыв газопровода отопительного коксового газа;
– срыв кантовочного крана в тоннеле пекококсовых печей;
– срыв стопорного крана в тоннеле пекококсовых печей;
– разрыв штанги газовоздушных клапанов или штанги кантовочных
кранов, обрыв тросов кантовочной лебедки;
– обрыв или заклинивание шиберов тяги на общем борове или на
стороне, работающей на нисходящем потоке, затопление борова;
– аварийное прекращение отсоса "сырого" пекококсового
газа;
– разрыв газопровода природного газа; разрыв задвижки природного
газа;
– разрыв кислородопровода с загоранием и без загорания;
– разрыв азотопровода на УСТПК;
– разрыв газохода циркуляционного газа камеры УСТПК;
– остановка приточно-вытяжной вентиляции на УСТПК;
– прекращение подачи электроэнергии на пекококсовые печи.
7.5 Меры по охране окружающей среды
В процессе производства пекового кокса выбрасываются в атмосферу вредные
вещества: пекококсовая пыль, продукты сгорания смолистых веществ со стояков и
продукты сгорания коксового газа через дымовую трубу. Источники выбросов
пекококсового цеха относятся к III группе.
В целях обеспечения уменьшения влияния отходов на экологическую
обстановку в пекокосовом цехе предусмотрены соответствующие мероприятия.
Для удаления вредных веществ от мест их выделения цех оснащен
аспирационными устройствами, которые обеспечивают в рабочей зоне
производственных помещений предельно-допустимые концентрации.
Работа технологических агрегатов без систем очистки воздуха запрещается.
Аспирационная система для улавливания пыли и газа от разгрузочных
устройств УСТПК: объем очищаемого системой воздуха составляет 30000 м3/ч.
Аспирационная система для улавливания пыли при погрузке кокса в вагоны:
объем очищаемого системой воздуха 30000 м3/ч.
Аспирационная система для удаления пыли на перегрузочной станции: объем
очищаемого системой воздуха 10000 м3/ч.
Аспирационная система для удаления пыли от бункера под опрокидывателем,
от валковой дробилки ВТП, от конвейера ПК-5, из бункера накопителя, от
конвейера ПК-6 и от места выгрузки ВТП в ж/д вагоны: объем очищаемого системой
воздуха 72-144 м3/ч.
Паровой конденсат цеха сбрасывается в конденсатосборник смолоперегонного
цеха. Сбросы с аспирационных систем по шламопроводам направляются в шламовый
отстойник башни тушения.
Образующиеся в результате чистки емкостей химические отходы, а также
бытовые отходы размещаются согласно схеме размещения химических и бытовых
отходов, утвержденной начальником пекококсового цеха, а затем вывозятся на
свалку твердых химических и бытовых отходов автомобильным транспортом.
Металлолом вывозится в копровый цех автомобильным и железнодорожным
транспортом.
ЗАКЛЮЧЕНИЕ
Коксохимическое производство является, одним из начальных этапов производства
стали. В современных коксохимических производствах процесс получения
коксующегося угля и сопутствующих продуктов поставлен на поток. Нарушение цикла
производства влечет за собой проблемы на других стадиях получения готового
продукта - стали и соответственно потери производства со срывом сроков поставки
по основным контрактам. Кратковременные простои влекут за собой увеличение
затрат на поддержание оборудования основных цехов в режиме простоя.
В ВКР рассмотрен немаловажный фактор эффективности производства - текущий
уровень состояния технологического оборудования, в частности для пекококсового
цеха. Устаревшее или снятое с производства оборудование приводит к увеличению
затрат на его обслуживание, увеличению простоев основных агрегатов и к падению
производительности. Использование современных комплектующих, оборудования и
технологических новшеств позволяет не только снизить затраты, но и увеличить
надежность оборудования, а самое главное - производительность технологической
системы в целом.
Поддержание производства на современном уровне с достаточной
эффективностью требует постоянного отслеживания новинок технического прогресса,
а для их внедрения проведения модернизаций и реконструкций.
В ВКР рассмотрены наиболее важные вопросы модернизации установки УСТПК и
пути их решения:
– разработан вариант модернизации установки сухого тушения пекового
кокса;
– выполнен расчет и проектирование привода рассекателя с
использованием современных и распространенных комплектующих, что позволить
снизить затраты не его обслуживание;
– рассчитан и спроектирован гидропривод секторного отсекателя, что
в виду его более быстрого срабатывания по сравнению со старым механическим,
позволяет увеличить производительность установки в целом и также уменьшить
затраты на обслуживание отсекателя;
– разработан технологический процесс изготовления вала секторов
секторного отсекателя на станках с ЧПУ, что позволяет сократить расходы на
изготовления наиболее важной детали и соответственно уменьшить затраты на
ежегодное обслуживание оборудования;
– выполнен расчет режущего инструмента и выбор оптимальных его
параметров для обработки вала секторов;
– выполнено технико-экономическое обоснование проекта модернизации;
В связи с этим, модернизация установки сухого тушения пекового кокса на
данном производстве актуальна и влечет за собой увеличение надежности
оборудования, уменьшение простоев, увеличение производительности агрегата в
целом, а так же сопутствует уменьшению затрат на содержание и обслуживание
основного оборудования цеха.
Модернизация установки сухого тушения пекового кокса целесообразна. Срок
окупаемости показывает скорую отдачу.
СПИСОК
ИСПОЛЬЗОВАННЫХ ИСТОЧНИКОВ
1. Алексеев,
Г.А., Конструирование инструмента / В.А. Аршинов, Р.М. Кричевская. - М.;
Машиностроение, 1979. - 384 с.
2. Ананенко,
Т.И. «Северсталь» / Т.И. Ананенко. - Череповец: Речь, 2000. - 321 с.
. Андреев,
П.И. Анализ финансово-хозяйственной деятельности: учеб. для вузов / П.И.
Андреев, В.И. Рыбин. - М.: Финансы и статистика, 1989. - 391 с.
. Справочник
конструктора-машиностроителя. В 3-х т. / В.И. Анурьев / под ред. И.Н.
Жестковой. - М.: Машиностроение, 2001. -82 с.
. Волоков,
О.И. Экономика предприятия: учеб. для вузов / О.И. Волоков. - М.: ИНФРА - М,
1998. - 416 с.
. Горбацевич,
А.Ф. Курсовое проектирование по технологии машиностроения. Учебное пособие для
машиностроительных спец вузов - 4-е изд., перераб. и доп./ А.Ф. Горбацевич,
В.А. Шкред. - Минск: Высшая школа, 1983. - 256 с.
. Грузинов,
В.П. Экономика предприятия: учебное пособие / В.П. Грузинов, В.Д. Грибов. - М.:
Финансы и статистика, 1997. - 208 с.
8. Егоров,
М.Е. Технология машиностроения. Учебник для машиностроительных вузов. - 2-е
изд., перераб. и доп. / М.Е. Егоров. - М.: Высшая школа, 1976. - 534 с.
9. Журавлёв,
С.А. Расчёт и конструирование металлорежущего инструмента / С.А. Журавлёв, С.А.
Лопатин. - Л.: ЛИП им. Калинина, 1987. - 70 с.
10. Зайкин,
А.Д. Экономико-правовое регулирование финансовой деятельности: учебное пособие
/ А.Д. Зайкин. - М.: ИНФРА-М, 1998. - 328с.
11. Иванов,
М.Н. Детали машин. Курсовое проектирование. Учебное пособие для
машиностроительных вузов. / М.Н. Иванов. - М.: Высш. школа, 1975.- 243 с.
12. Кауфман,
А. А. Мастер коксового производства / А. А. Кауфман. - М.: Металлургия, 2002. -
243 с.
13. Клюев,
С.А. Освещение производственных помещений. / С.А. Клюев. - М.: Энергия, 1979. -
152с.
. Ковалев,
А.И. Анализ финансового состояния предприятия: учеб. для вузов / А.И. Ковалев,
В.П. Привалов. - М.: Центр экономики и маркетинга, 1999. - 216 с.
. Колпаков,
В.Н. Гидропневмопривод и гидропневмоавтоматика станочного оборудования:
Методические указания к выполнению курсовой работы: Часть 1. Статический расчет
и конструирование гидропривода. / В.Н. Колпаков, - Вологда: ВоГТУ, 1999. - 29
с.
. Люткевич,
Е.Г. Расчёт зуборезного инструмента. / Е.Г. Люткевич, А.И. Волчков. -
Новочеркасск: НПИ, 1978. - 80 с.
. Нарышкин,
В.Н. Подшипники качения: Справочник каталог. / В.Н. Нарышкин и др. - М.:
Машиностроение, 1984. - 280 с.
. Некрасов,
С.С. Практикум и курсовое проектирование по технологии сельскохозяйственного машиностроения.
/ С.С. Некрасов - М.: Мир, 2004. - 240 с.
. План
гражданской обороны ПКЦ ОАО «Северсталь», введ. 10.06.2005 // ПКЦ ОАО
«Северсталь»
. План
локализации аварий в ПКЦ ОАО «Северсталь», введ. 01.05.2007 // ПКЦ ОАО
«Северсталь»
. Погосян,
Г.Р. Практикум по экономике, организации и нормированию: учебное пособие / Г.Р.
Погосян, А.Д. Тихомиров. - М.: Экономика, 1993. - 194 с.
. Расчет
деталей и узлов металлургических машин. Справочник. / П.И. Полухин [и др.]. -
М.: Металлургия, 1985. - 184 с.
. Режимы
резания для токарных и сверлильно-фрезерно-расточных станков с числовым
программным управлением: Справочник / под ред. В.И. Гузеева. - М.:
Машиностроение, 2005 - 368 с.
. Савицкая,
Г.В. Анализ хозяйственной деятельности предприятия: учеб. для вузов / Г.В.
Савицкая. - Мн.: Новое знание, 1999. - 688 с.
. Свешников,
В.К. Станочные гидроприводы. Справочник / В.К. Свешников - М.: Машиностроение,
1995 - 397 с.
. Семенченко,
И.И. Проектирование металлорежущих инструментов / И.И. Семенченко, В.М.
Матюшин, Г.Н. Сахаров. - Л.: Машиностроение, 1961. -951с.
. Справочная
книга по светотехнике. / под. ред. Ю.Б. Айзенберга. - 2-е изд., перераб. и доп.
- М.: Энергоатомиздат, 1995. - 528 с.
. Справочник
инструментальщика. / под ред. И.А. Ординарцева - Л.: Машиностроение, 1987. -
845 с.
. Справочник
конструктора - инструментальщика. / под редакцией В.И. Баранчикова. - М.;
Машиностроение, 1994. - 558с.
. Справочник
технолога машиностроителя. / Под ред. Л.Г. Косиловой, Р.К. Мещерекова. - М.:
Машиностроение, 1986. - 496 с.
. Сысков,
К.И. Коксохимическое производство./ К.И. Сысков, Ю.Г. Королев. - М.: Высшая
школа, 1969. - 221 с.
. Технологическая
инструкция. Производство пекового кокса: ТИ 105-КХ. ПК-11-03, введ. 08.10.2006
- Череповец: Северсталь, 2006. - 28 с.
. Шейнблит,
А.Е. Курсовое проектирование деталей машин. / А.Е. Шейнблит - Калининград:
Янтар. Сказ, 2004. - 454 с.
. Шеремет,
А.Д. Финансы предприятия: учебное пособие / А.Д. Шеремет, Р.С. Сайфулин. - М.:
ИНФРА-М, 1998. - 343 с.
Похожие работы на - Модернизация разгрузочного устройства установки сухого тушения пекового кокса
|