Анализ показателей точности коническо-цилиндрического редуктора и методов их обеспечения
Федеральное
агентство по образованию
Государственное
образовательное учреждение высшего профессионального образования
Донской
государственный технический университет
Кафедра:
«Технология машиностроения»
Курсовая
работа
По
дисциплине «Основы обеспечения качества машин»
На
тему: «Анализ показателей точности коническо-цилиндрического редуктора и
методов их обеспечения»
Содержание
1. Служебное назначение редуктора
. Анализ пространственно-размерного
информационного образа машины
. Анализ конструкции деталей
редуктора и синтез их размерного описания и технических требований
.1 Теоретическая схема базирования
деталей, ее обоснование и классификация баз
.2 Классификация поверхностей
деталей по функциональному назначению
.3 Синтез размерного описания и технических
условий
. Выявление размерных цепей,
описывающих формирование заданных показателей качества машины
.1 Построение размерных цепей
.2 Описание физической сущности
звеньев размерных цепей
.3 Выявление номинальных размеров
составляющих звеньев
. Выбор метода достижения заданных
показателей точности путем решения прямой задачи
. Выбор метода достижения требуемой
точности радиального биения зубчатого венца шестерни
Список литературы
1. Служебное назначение редуктора
Редуктор коническо-цилиндрический
двухступенчатый предназначен для передачи крутящего момента от двигателя через
открытую зубчатую передачу к приводным звездочкам цепного конвейера окрасочного
комплекса с изменением направления оси вращения на 900. При этом
происходит уменьшение числа оборотов и увеличение крутящего момента на выходном
валу (поз. 6). Конструкция редуктора такова, что двигатель, присоединяемый
через втулочно-пальцевую муфту к редуктору, и зубчатое колесо открытой зубчатой
передачи находятся на перпендикулярных осях. На конвейере перемещаются штучные
грузы небольшой массы (до 10 кг). Цепной конвейер работает в условиях небольших
динамических нагрузок, реверсирование конвейера не допускается, поэтому режим
работы редуктора - нереверсивный, слабодинамический.
Техническая характеристика
редуктора:
1. Передаточное отношение - Uред=
18: быстроходной пары Uб=3,8,
Uт=4,7.
2. Частота вращения выходного вала
редуктора n=53,191 об/мин.
. Мощность на тихоходном валу - 2,892
кВт.
. Крутящий момент на тихоходном валу -
519,506 кН*м.
. Режим работы - средний.
. Срок службы L=5
лет.
. Объем масляной ванны - 5,4 л.
Условия работы редуктора:
· работа в закрытом отапливаемом помещении;
· температура окружающей среды - +13
+400С;
· температура внутри редуктора - не
более 700С;
· влажность - до 70%.
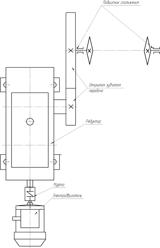
Рисунок 1. Кинематическая схема привода цепного
конвейера.
2. Анализ пространственно-размерного
информационного образа машины
Редуктор коническо-цилиндрический
двухступенчатый является одним из основных механизмов привода цепного
конвейера, в который также входят двигатель асинхронный закрытый, открытая
зубчатая передача, обеспечивающая передачу вращения на приводные звездочки
конвейера (Рисунок 1).
Редуктор коническо-цилиндрический
двухступенчатый имеет две зубчатые передачи: коническую быстроходную с
передаточным отношением U1 =3,8 и цилиндрическую тихоходную с
передаточным отношением U1 = 4,7.
Быстроходная передача состоит из вала-шестерни и
зубчатого колеса, тихоходная - из шестерни и зубчатого колеса. Зубчатые колеса
поз.2 и поз.3 установлены на вал поз.5 по переходной посадке Н7/k6,
зубчатое колесо поз.4 установлено на вал поз.6 по посадке с гарантированным
натягом Н7/r6 на шпонку для
передачи крутящего момента. Цилиндрическая пара включает зубчатое колесо поз.2
и шестерню поз.3 с эвольвентной формой рабочей поверхности зуба. Рабочие оси
зубчатых передач конической пары перпендикулярны между собой. Рабочие оси
цилиндрической пары - параллельны. Частота вращения входного вала-шестерни
составляет 950 об/мин, выходного вала - 53,191 об/мин.
Вал-шестерня 1 и валы 5 и 6 установлены в
подшипниках по посадке с гарантированным натягом - L0/k6.
Подшипники установлены в корпус по посадке с гарантированным зазором H7/l0.
Такое сочетание посадок обеспечивает требуемую кинематическую точность зубчатых
передач, а также нормальные условия работы подшипников. Подшипниковые узлы
поз.27, поз.28 включают в себя также крышки подшипников с прокладками,
подшипниковый узел поз.26 включает в себя крышку подшипника и манжету, обеспечивающие
защиту подшипников от загрязнений, а также предотвращающими вытекание смазки из
подшипниковых узлов.
Корпус редуктора разъемный - состоит
непосредственно из корпуса 16 и крышки редуктора 17, соединяемых 16 болтами с
гайками и стопорными шайбами. Точная установка крышки на корпус обеспечивается
двумя цилиндрическими штифтами 44, установленными с гарантированным натягом.
Устанавливается корпус на раму на лапы, в которых сделаны 6 цилиндрических
отверстия под болты Ø17, которыми
крепится редуктор. Материал корпуса и крышки корпуса - серый чугун СЧ-20 ГОСТ
1214-85. Эти детали получаются отливкой с дальнейшей механической обработкой
ответственных поверхностей. Перемещение редуктора осуществляется при помощи
отверстий в специальных ушках крышки.
Способ подачи смазки в рабочую зону - картерный:
масло захватывается зубьями конического поз.2 и цилиндрического колес поз.4в
нижнем положении и разбрызгивается по деталям, размещенным в корпусе редуктора.
При замене масла его сливают из полости корпуса через цилиндрическое отверстие
в нижней части, закрытое пробкой поз.20. Залив масла осуществляется через
смотровой люк, закрытый крышкой поз.18, привинченной 8-мью винтами поз.38 с
шайбами поз.39. В крышке смотрового люка располагается отдушина.
Движение в редуктор подается от двигателя через
муфту, установленную на шпонке на входном коническом валу-шестерне по посадке
Н7/k6. Таким образом,
шейка вала под муфту обеспечивает кинематическую и динамическую связь редуктора
с двигателем (внешней средой). С вала-шестерни движение передается зубчатому
колесу, установленному на промежуточном валу (коническая зубчатая передача).
При этом происходит уменьшение числа оборотов и увеличение крутящего момента с
изменением оси вращения на 900. С зубчатого колеса через шпонку
вращение передается промежуточному валу без изменения его параметров. С
промежуточного вала вращение передается через зубчатую передачу выходному валу
редуктора. При этом также происходит уменьшение числа оборотов и увеличение
крутящего момента с изменением направления вращения на противоположное. Т.о.
реализуются кинематические и динамические связи в редукторе. С выходного вала
движение передается на открытую зубчатую передачу. Шейка выходного вала под
шестерню открытой зубчатой передачи обеспечивает динамическую и кинематическую
связь с открытой зубчатой передачей и далее.
Заданный коэффициент полезного действия и
точность зацепления (отсутствие заеданий, стуков, вибраций, повышенного износа
и т.д.) обеспечиваются размерными связями в редукторе (межосевым расстоянием
цилиндрической зубчатой передачи 211,28±0,14, допуском на угол между осями
конической зубчатой пары, биением венцов зубчатых колес в соответствии с
ГОСТами на конические и цилиндрические зубчатые передачи и т.д.). Межосевое
расстояние тихоходной пары по чертежу - 211,28±0,14 (по ГОСТ 1643-81 -
211,28±0,14).
3. Анализ конструкции деталей
редуктора и синтез их размерного описания и технических требований
3.1 Теоретическая схема базирования
деталей, ее обоснование и классификация баз
Вал
предназначен для базирования зубчатых колес поз. 2 и 3 и передачи движения от
входного вала-шестерни на выходной вал. На валу устанавливается шпонки поз.34 и
поз.35 и зубчатые колеса (коническое поз. 2 и цилиндрическое поз. 3).
Рисунок 2. Нумерация поверхностей вала
Основными базами вала являются поверхности,
обозначенные на рисунке 2 номерами 2, 13, 14. Поверхности 2 и 14 образуют
двойную направляющую базу, лишающую деталь 4-х степеней свободы - перемещения
вдоль осей Z и Y
(Рисунок 3) и вращения вокруг тех же осей (точки 1-4). Вал устанавливается в
подшипники по посадке
. Это посадка с
гарантированным натягом. Поэтому базой является ось двух поверхностей 2 и 14,
то есть ось поверхностей 2 и 14 являются неявной базой.
Осевое смещение вала определяется основной
базой, которой является поверхность13. Поверхность 13 является основной
конструкторской опорной явной базой и лишает вал одной степени свободы -
перемещения вдоль оси Х.
Рисунок 3. Схема базирования вала 5
Шестой степени свободы - вращения вокруг оси X
- вал не лишен, так как вращение требуется валу для выполнения им служебного
назначения. Поэтому схема базирования вала является неполной и деталь
лишена пяти (а не шести, как при полной схеме базирования) степеней свободы.
Окончательно имеем: ось поверхностей 2 и 14 -
основная конструкторская двойная направляющая неявная база; поверхность 13 -
основная конструкторская опорная явная база.
Зубчатое колесо предназначено
для передачи крутящего момента и вращения с изменением их величины с
промежуточного вала поз.5 на выходной вал поз.6 редуктора. Зубчатое колесо
является кинематическим звеном.
Основными базами зубчатого колеса являются
отверстие в ступице 5 и торцевая поверхность ступицы 14, а также боковая
поверхность шпоночного паза 12 или 13 (неопределенность базирования). Отверстие
в ступице образует двойную направляющую базу (так как длина отверстия больше
его диаметра), лишающую деталь 4-х степеней свободы - перемещения вдоль осей Z
и Y и вращения вокруг
тех же осей (точки 1-4). Зубчатое колесо устанавливается на вал по посадке Н7/k6.
Это переходная посадка. Поэтому базой является поверхность отверстия и эта база
явная.
Рисунок 4. Нумерация поверхностей зубчатого
колеса
Торец 14 ступицы зубчатого колеса (точка 5)
лишает зубчатое колесо одной степени свободы - перемещения вдоль оси X
и является опорной базой. База явная, так как представляет собой реальную
поверхность.
Боковая поверхность шпоночного паза (одна из
двух - 12 или 13) также является основной базой и лишает деталь вращения вкруг
оси Х (точка 6). База явная. Имеет место неопределенность базирования.
Деталь лишена шести степеней свободы, то есть
схема базирования зубчатого колеса является полной.
Окончательно имеем: отверстие в ступице
зубчатого колеса - основная конструкторская двойная опорная явная база; торец
ступицы - основная конструкторская опорная явная база, боковая поверхность
шпоночного паза - основная конструкторская опорная явная база.
Рисунок 5. Теоретическая схема базирования
зубчатого колеса.
3.2 Классификация поверхностей
деталей по функциональному назначению
Нумерация поверхностей вала приведена на рисунке
2. Дадим классификацию поверхностей по функциональному назначению.
Основные базы вала (рисунок
6):
торцевая поверхность 13 - основная конструкторская
явная опорная база;
ось двух цилиндрических поверхностей 2, 14
является основной конструкторской неявной двойной направляющей базой.
Рисунок 6. Классификация поверхностей вала по
функциональному назначению
Вспомогательные базы вала:
ВБ1:
· шейка вала 6 является явной двойной
направляющей (отношение длины отверстия к его диаметру больше единицы) базой и
служит для базирования зубчатого колеса.
· Торец 7 является опорной базой и
служит также для базирования зубчатого колеса.
ВБ2:
· Дно шпоночного паза - поверхность 24 является
установочной базой и служит для установки шпонки.
· Боковые поверхности шпоночных пазов (16 и 17)
являются направляющими базами и служат для базирования шпонок. В конструкции
имеется неопределенность базирования, то есть шпонки могут изменять свое
положение в пределах зазора между их боковыми поверхностями и боковыми
поверхностями шпоночных пазов.
ВБ3:
· шейка вала 10 является явной двойной
направляющей (отношение длины отверстия к его диаметру больше единицы) базой и
служит для базирования зубчатой шестерни.
· Торец 9 является опорной базой и
служит также для базирования зубчатой шестерни.
ВБ4:
· Дно шпоночного паза (поверхность 25) является
установочной базой и служит для установки шпонки.
· Боковые поверхности шпоночных пазов
(20 и 21) являются направляющими базами и служат для базирования шпонок. В
конструкции имеется неопределенность базирования, то есть шпонки могут изменять
свое положение в пределах зазора между их боковыми поверхностями и боковыми
поверхностями шпоночных пазов.
ВБ5 и ВБ6:
· Шейки вала 4 и 12 являются двойными опорными
базами и служат для базирования втулок.
редуктор радиальный биение шестерня




Рисунок 7. Схемы базирования присоединяемых
деталей: зубчатых колес, шпонок, втулок
Зубчатое колесо
является кинематическим звеном и выполняет в редукторе основную роль, поэтому
эта деталь несет на себе исполнительные поверхности редуктора - поверхности 1 и
3 (рисунок 8).
Основные базы - отверстие
5 - основная конструкторская двойная направляющая явная база; торец 14 -
основная конструкторская опорная явная база, боковая поверхность шпоночного
паза - основная конструкторская опорная явная база.
Вспомогательные базы
- торец 5 - определяет положение втулки в осевом направлении (рисунок 8) -
вспомогательная конструкторская опорная явная база.
Остальные поверхности зубчатого колеса являются
свободными и служат для объединения в единую конструктивную форму основных и
вспомогательных баз и исполнительных поверхностей.
Рисунок 8. Виды поверхностей зубчатого колеса
Рисунок 9. Схема базирования втулки
3.3 Синтез размерного описания и
технических условий
1. Размеры, описывающие отдельные
поверхности вала.
Основные базы:
Цилиндрические поверхности 2 и 14: Æ
,Ó0,0065,
Ra 1,25;
Торцевая поверхность 13: Ñ0,02,
Ra 2,5;
Вспомогательные базы:
Торцевая поверхность 7 и 9: Ñ0,025,
Ra 2,5;
Цилиндрические поверхности 6, 10: Æ
,Ó0,008,
Ra 1,25;
Цилиндрическая поверхность 4: Æ
, Ó0,0065,
Ra 1,25;
Цилиндрическая поверхность 12: Æ
,
,Ó0,005,
Ra 1,25;
Плоские поверхности 16, 17, 20, 21, 24, 25: Ñ0,1,
Ra 5;
Цилиндрические поверхности 18, 19, 22, 23:R
,Ó0,0175,
Ra 5.
Свободные поверхности:
Торцевые поверхности 1, 3, 5, 11, 15: Ñ0,2,
Ra 12,5;
Цилиндрическая поверхность 8: Æ
,Ó0,3,
Ra 12,5;
2. Размеры, описывающие связи между
поверхностями одной функциональной группы.
Основные базы:
2 - 14:
2 - 13:
Вспомогательные базы:
6 - 10:
5 - 13: 2±0,125;
- 19, 22 - 23:
;
(16 - 17) - 6 , (20 - 21) - 10: Ù0,28.
-17 -
Свободные поверхности:
1 - 15: 208-1,15, Õ0,5;
8: Ø0,4.
3. Размеры, описывающие связи между
отдельными функциональными группами.
Основные - вспомогательные базы:
(2, 14), (6, 10)
7 - 9: 10-0,36, Õ0,12.
Основные базы - свободные
поверхности:
2 - 8: Ø0,3,
- 1: 80±0,5.
- 8: Ø0,12;
- 15: 118±0,43.
Предельные отклонения по 14 квалитету выносим на
чертеж в виде технического требования. Требования к некруглости и несоосности
свободных поверхностей на чертеж не выносим, так как они назначены по
справочным таблицам. Также шероховатость свободных поверхностей выносим в
правом верхнем углу - неуказанная шероховатость.
Зубчатое колесо:
1. Размеры, описывающие отдельные
поверхности.
Исполнительные поверхности:
1 и 3 - точность формы, Ra0,8
мкм.
Основные базы:
Цилиндрическое отверстие 5: Æ
,Ó0,012,
Ra 1,25 мкм;
Торцевая поверхность 6: Ñ0,03,
Ra 2,5 мкм;
Плоская поверхность 12 (13): Ñ0,03,
Ra5 мкм.
Вспомогательные базы:
Торцевая поверхность 14: Ñ0,05,
Ra2,5 мкм.
Свободные поверхности:
Цилиндрические поверхности 4: Æ
,Ó0,037,
Ra 12,5;
Цилиндрические поверхности 2: Æ
,Ó0,037,
Ra 12,5;
Фаски: конусность, Ra
12,5.
2. Размеры, описывающие связи между
поверхностями одной функциональной группы.
Исполнительные поверхности:
1-2 - делительный диаметр Æ
,
шаг зубьев fp=4±0,024
(ГОСТ 1643-81), толщина зуба t=6,12.
Основные базы:
6:
Свободные поверхности:
(2,4):
3. Размеры, описывающие связи между
отдельными функциональными группами:
Основные - исполнительные
поверхности:
(1-3) - 6: Ø0,012.
Основные - вспомогательные
поверхности:
6 - 14: 52-0,046, Õ0,015.
Исполнительные - свободные
поверхности:
(1-3) - (2-4): Ø0,06.
Предельные отклонения по 14 квалитету выносим на
чертеж в виде технического требования. Требования к некруглости и несоосности
свободных поверхностей на чертеж не выносим, так как они назначены по
справочным таблицам. Также шероховатость свободных поверхностей выносим в
правом верхнем углу - неуказанная шероховатость.
4. Выявление размерных цепей,
описывающих формирование заданных показателей качества машины
4.1 Построение размерных цепей
Для обеспечения нормальной работы зубчатого
зацепления необходимо обеспечить боковой зазор в зубчатом зацеплении. Боковой
зазор описывается размерными цепями, описывающими радиальное биение зубчатых
венцов сопряженных колес и совмещение вершин делительных конусов в двух
координатных направлениях и формирование угла между рабочими осями.
Допуск на величину радиального биения зубчатой
шестерни
.
Допуск на совмещение вершин делительных конусов конической зубчатой передачи
.Составим
размерные цепи на эти показатели качества и опишем физический смысл
составляющих звеньев.
4.2 Описание физической сущности
звеньев размерных цепей
Описание физической сущности составляющих
звеньев, исходные данные и результаты расчетов размерных цепей представим в
виде таблиц 1 и 2.
Таблица 1. Физическая сущность звеньев размерной
цепи на смещение вершин делительных конусов конических зубчатых колес поз.1 и
поз.2
|
Обозначение
звена
|
Физическая
сущность звена
|
xi
|
|
А0
|
Смещение
вершин делительных конусов конических зубчатых колес поз.1 и поз.2
|
-
|
|
А1
|
Размер
между вершиной делительного конуса колеса поз.2 и его основной базой.
|
+1
|
|
А2
|
Размер
между вспомогательной базой вала поз.5, определяющей положение зубчатого
колеса, и его основной базой.
|
-1
|
|
А3
|
Размер
между вспомогательной и основной базами подшипника поз.27. Монтажная высота
подшипника.
|
-1
|
|
А4
|
Размер
между вспомогательной и основной базами втулки поз.51
|
-1
|
|
А5
|
Размер
между вспомогательной и основной базами крышки поз.23
|
-1
|
|
А6
|
Размер
между вспомогательной и основной базами прокладки поз.8
|
+1
|
|
А7
|
Расстояние
от вспомогательной базы корпуса под прокладку до оси вспомогательной базы
корпуса под установку стакана поз.12
|
+1
|
|
А8
|
Несоосность
вспомогательных баз корпуса поз.17 и стакана поз.12
|
+1
|
|
А9
|
Несоосность
вспомогательной базы стакана и рабочей оси вала-шестерни поз.1
|
Таблица
2. Физическая сущность звеньев размерной цепи на радиальное биение зубчатого
венца шестерни поз.3
|
Обозначение
звена
|
Физическая
сущность звена
|
xi
|
|
Б0
|
Радиальное
биение зубчатого венца шестерни поз.3
|
-
|
|
Б1
|
Несоосность
вспомогательной базы подшипника поз.27, формирующей исходное звено и его
основной базы в направлении исходного звена)
|
+1
|
|
Б2
|
Несоосность
основной базы подшипника 29 и вспомогательной базы корпуса 21.
|
+1
|
|
Б3
|
Расстояние
между вспомогательными базами корпуса редуктора (осями отверстий под
подшипники).
|
+1
|
|
Б4
|
Несоосность
основной базы подшипника 30 и вспомогательной базы корпуса.
|
+1
|
|
Б5
|
Радиальное
биение дорожки качения наружного кольца подшипника 30 (несоосность
поверхности подшипника 25, формирующей исходное звено и его основной базы в
направлении исходного звена)
|
+1
|
4.3 Выявление номинальных размеров
составляющих звеньев
Выявим номинальные значения звеньев размерной
цепи и внесем их в таблицы 3 и 6.
5. Выбор метода достижения заданных
показателей точности путем решения прямой задачи
Для крупносерийного производства для размерных
цепей с числом звеньев больше пяти наиболее целесообразно применить метод
регулирования. Так как в конструкции отсутствует механизм подвижного
регулирования рассмотрим регулирование неподвижным компенсатором. Расчеты
необходимые для выбора и обоснования метода достижения точности заданных
показателей точности будем вести согласно /2/.
Таблица 3.Расчетная таблица для размерной цепи
на осевой зазор между наружным кольцом подшипника 29 и крышкой 12
|
Обозначение
звена
|
xi
|
Чертежный
размер
|
Номинальный
размер Аi
|
Координата
середины поля допуска Еc Аi
|
ТАi
|
|
А0
|
-
|
|
0
|
0
|
0,096
|
|
А1
|
+1
|
|
22
|
0
|
0,033
|
|
А2
|
-1
|
|
112
|
-0,027
|
0,054
|
|
А3
|
-1
|
|
16
|
+0,1
|
0,2
|
|
А4
|
-1
|
|
18
|
-0,0135
|
0,027
|
|
А5
|
-1
|
|
8
|
-0,11
|
0,022
|
|
А6
|
|
2
|
-0,007
|
0,014
|
|
А7
|
+1
|
|
130
|
0
|
0,063
|
|
А8
|
+1
|
 
|
0
|
0
|
0,04
|
|
А9
|
+1
|
|
0
|
0
|
0,025
|
. Проверим правильность назначения номинальных
значений составляющих звеньев размерной цепи по зависимости (1) /2/:
(1)

Условие (1) выполняется.
2. Выявим в размерной цепи стандартные звенья и
выпишем допуски на них из соответствующих ГОСТов. Стандартными звеньями в
данной размерной цепи являются размеры монтажной высоты подшипников. Допуск на
монтажную высоту подшипника класса точности 0 согласно ГОСТ 520-71 составляет
0,2 мм и радиальное биение дорожки подшипника 0,025 /табл. 33 с. 64 и табл. 35
с 66 / 3 //. Это звенья
и
.
3. Назначим допуски
и
координаты середин полей допусков
на
нестандартные составляющие звенья в соответствии с экономически достижимым
квалитетом [Q]=8. Координаты
середин полей допусков примем в соответствии с рекомендациями /2/: для
охватываемых размеров -
, для охватывающих
,
для остальных
. Результаты сведем
в таблицу 3.
. В конструкции отсутствует деталь, размер
которой было бы удобно (и экономические целесообразно) принять в качестве звена
компенсатора. Выберем компенсационное кольцо между наружным кольцом подшипника
и торцом крышки. Размер кольца назначим 18 мм. Компенсационное кольцо имеет
простую конструкцию и требует наименьшей трудоемкости сборочно-разборочных работ
при регулировании величины исходного звена.
. Определим фактическую координату середины поля
допуска исходного звена
при назначенных
координатах середин полей допусков составляющих звеньев:
Определим необходимую величину компенсации
:
Рассчитаем поправку к координате середины поля
допуска звена-компенсатора
:

Определим новую координату середины поля допуска
звена-компенсатора
:
Рассчитаем количество ступеней размера
компенсирующего звена А1:

Принимаем 6 ступеней компенсации.
Определим размеры ступеней компенсации. Внеся
поправку в координату середины поля допуска, мы получили минимальный размер
компенсации
мм. Тогда величины
ступеней компенсации можно получить по зависимости:
ступень компенсации:
ступень компенсации:
ступень компенсации:
ступень компенсации:
ступень компенсации:
ступень компенсации:
Таким образом, точность исходного звена
обеспечивается методом регулирования подвижным компенсатором с 6 ступенями
компенсации.
6. Выбор метода достижения требуемой
точности радиального биения зубчатого венца шестерни
Проверим правильность назначения номинальных
значений составляющих звеньев размерной цепи по зависимости (1). Очевидно, что
0=0, то есть условие выполняется.
Проверим возможность обеспечения требуемой
точности исходного звена методом полной взаимозаменяемости.
.Выявим в размерной цепи стандартные звенья и
выпишем допуски на них из соответствующих ГОСТов.
Стандартными звеньями в данной размерной цепи
являются размеры Б1 - несоосность вспомогательной базы подшипника
поз.27 и рабочей оси зубчатого зацепления . Допуск на это звено согласно ГОСТ
520-71 составляет 0,1 мм.
Допуски на звенья Б2 и Б4
представляют собой зазоры в посадках зубчатой шестерни на вал и вала на
подшипники. Эти посадки назначаются, как правило, в соответствии с
рекомендациями, изложенными в нормативной и справочной литературе .
· Рекомендуемая посадка подшипника на вал - для
средних нагрузок, пульсирующих, знакопеременных и ударных, при
циркуляционно-нагруженных обоймах и средних частотах вращения рекомендуется
посадка k6. Для размера Æ
25L0/k6
- посадка с гарантированным натягом.
· Рекомендуемая посадка зубчатой
шестерни на вал при аналогичных условиях - H7/k6.
Это переходная посадка.
Таблица 4.Параметры составляющих звеньев
размерной цепи при расчете размерной цепи на радиальное биение зубчатой
шестерни
|
Обозначение
звена
|
xi
|
Чертежный
размер
|
Номинал
Бi
|
Еc Бi
|
ТБi
|
|
Б0
|
0±0,0355
|
0
|
0
|
0,071
|
|
Б1
|
+1
|
0±0,0065
|
0
|
0
|
0,013
|
|
Б2
|
+1
|
0
|
0
|
0
|
0
|
|
Б3
|
+1
|
0±0,00975
|
0
|
0
|
0,0195
|
|
Б4
|
+1
|
0±0,0095
|
0
|
0
|
0,019
|
|
Б5
|
+1
|
0±0,00975
|
0
|
0
|
0,0195
|
. Определим часть допуска исходного звена,
приходящуюся на нестандартные звенья - ТБ0’:
. Определим допуски нестандартных составляющих
звеньев размерной цепи по принципу равных влияний. Для этого определим средний
допуск составляющих звеньев по зависимости:
Таким образом, требуемая точность исходного
звена обеспечивается методом полной взаимозаменяемости.
Список литературы
1. Методические указания по
выполнению курсовой работы по дисциплине «Основы обеспечения качества машин»/
Издательский центр ДГТУ. Ростов-на-Дону, 2008. 14с.
2. Методические указания к
лабораторной работе по «Научным основам технологии машиностроения» «Определение
метода достижения точности замыкающего звена размерной цепи путем решения
прямой задачи»/ Ростов-на-Дону, ДГТУ, 1999. 13с.
. Подшипники качения:
Справочник-каталог / Под ред. В.Н.Нарышкина - М.: Машиностроение, 1984. - 280
с.
. Стандарт предприятия
«Требования к оформлению всех видов технических документов, разрабатываемых в
курсовых и дипломных проектах по специальности 0501 «Технология машиностроения,
металлорежущие станки инструменты» для студентов дневного, вечернего и заочного
обучения. СТП РИСХМ 019-87.
. П.И.Орлов. Основы
конструирования: Справочно-методическое пособие. В 2-х кн. Кн.2. - М.:
Машиностроение, 1988.
. Р.И.Гжиров. Краткий
справочник конструктора. - Л.: Машиностроение, Ленингр. отд-ние, 1983.
. Справочник
конструктора-машиностроителя. В 3-х т. Т. 2. М.: Машиностроение 1982.