Разработка конструкторского-технологической подготовки производства мачты мобильного бурового комплекса

  • Вид работы:
    Курсовая работа (т)
  • Предмет:
    Другое
  • Язык:
    Русский
    ,
    Формат файла:
    MS Word
    1,26 Мб
  • Опубликовано:
    2017-10-27
Вы можете узнать стоимость помощи в написании студенческой работы.
Помощь в написании работы, которую точно примут!

Разработка конструкторского-технологической подготовки производства мачты мобильного бурового комплекса

Содержание

Введение

. Анализ состояния вопроса. Цели и задачи ВКР

. Автоматизированная разработка мачты мобильной буровой установки

.1 Описание мобильной буровой установки

.2 Описание работы мачты мобильной буровой установки

.3 Разработка конструкции детали «Мачта»

.4 Разработка каталога и разнесенной сборки

.5 Инженерный анализ детали «Мачта» методом конечных элементов

.5.1 Решение линейных задач теории упругости методом конечных элементов

.5.2 Использование трёхмерной модели для расчёта изделия методами имитационного моделирования

.5.3 Расчёт напряженно-деформированного состояния детали в среде SolidWorksSimulation

. Технологическая часть

.1 Разработка технологического процесса детали «Мачта»

.1.1 Описание и назначение детали «Мачта»

.1.2 Разработка технологического изготовления детали «Мачта»

.1.3 Разработка технологического маршрута обработки детали «Мачта»

.1.4 Выбор типа производства

.1.5 Выбор оборудования

.1.6 Выбор режущих инструментов

.1.7 Выбор средств измерения и контроля размеров

.1.8 Выбор режимов резания

Заключение

Список использованных источников

Введение

мобильный буровой деталь режущий

Представляемая выпускная квалификационная работа выполнена на базе ООО «Геомаш ». Компания предлагает для реализации различную продукцию, например, как буровой инструмент и оборудование, буровые установки, буровые коронки, геологоразведочное и горношахтное оборудование специализация предприятия "ГЕОТЕХКОМПЛЕКТ". Компания изготовляет и поставляет буровое оборудования потребителям Украины, России, Беларусии. Компания «Геомаш » гарантирует надежную работу оборудования за счет использования новых материалов, новых технологий, качественного изготовления комплектующих. Основные преимущества предприятия - Выпуск высококачественного бурового инструмента и бурового оборудования. Компания стремится удовлетворить запросы потребителей, применяя гибкую систему скидок.

Производственные возможности: литейное производство, заготовительное, механообрабатывающее, сборочно-сварочное, покрасочное. Гарантируется выполнение контрактов качественно, в срок, по ценам, удовлетворяющим интересы обеих сторон. Потребителю предлагается выбрать два условия из трех: дешево, качественно, быстро.

ГЕОТЕХКОПМЛЕКТ выпускает серийную продукцию: буровые установки, буровые коронки, буровое оборудование, буровой инструмент, антенные мачты, глиномешалки.

выполняет капитальный ремонт оборудования потребителя

изготавливает детали по чертежам заказчика

изготавливает литейные модели, поставляет чугунное и стальное литье

занимается изготовлением запасных частей серийного оборудования.

АО «Геомаш» занимает одно из лидирующих мест в России по производству буровых установок, способных обеспечивать различные технологии бурения.

Завод «Геомаш» выпускает широкий ряд передвижных универсальных буровых установок для решения задач в области бурения геологоразведочных скважин, сейсморазведки, инженерных изысканий, бурения скважин различного назначения при выполнении строительных работ, а также гидрогеологических скважин и буровой инструмент.

Выпуск бурового оборудования - традиционная сфера деятельности завода. За 130-летнюю историю завода изменилось многое, неизменным осталось только одно - стремление создавать буровое оборудование, способное обеспечивать эффективное бурение.

Совершенствуется качество продукции, внедряются новые технологии производства, модернизируется производственное оборудование.

Собственное конструкторское бюро, значительный опыт в проектировании и создании бурового оборудования и спецтехники, дают возможность «Геомаш» создавать технику максимально ориентированную на решение производственных задач потребителей.

В 2015 году завод приступил к выпуску вездеходной техники и техники для рекультивации нефтезагрязненных земель.

В данной выпускной квалификационной работе речь пойдет о мобильной буровой установке, которая служит для бурения скважин. Эти скважины необходимы для установки насосных станций при помощи которых вода будет поступать непосредственно к потредителю.

Тема выпускной квалификационной работы актуальна, потому что как и в давние времена, так и в современном мире жизнь не возможна без воды. Но ее объем, необходимый для комфортной жизни, постоянно растет.

1. Анализ состояния вопроса. Цели и задачи ВКР

Бурение, процесс сооружения горной выработки цилиндрической формы - скважины, шпура или шахтного ствола - путём разрушения горных пород на забое, бурение осуществляется, как правило, в земной коре, реже в искусственных материалах (бетоне, асфальте и др.). В ряде случаев процесс бурение включает крепление стенок скважин (как правило, глубоких) обсадными трубами с закачкой цементного раствора в кольцевой зазор между трубами и стенками скважин.

Область применения бурения многогранна: поиски и разведка полезных ископаемых; изучение свойств горных пород; добыча жидких, газообразных и твёрдых (при выщелачивании и выплавлении) полезных ископаемых через эксплуатационные скважины; производство взрывных работ; выемка твёрдых полезных ископаемых; искусственное закрепление горных пород (замораживание, битумизация, цементация и др.); осушение обводнённых месторождений полезных ископаемых и заболоченных районов; вскрытие месторождений; прокладка подземных коммуникаций: сооружение свайных фундаментов и др.

Различают три вида бурения:

вертикальное бурение;

наклонно-направленное бурение;

горизонтальное бурение для прокладки коммуникаций;

На сегодняшний день практически ни одно производство не может осуществляться без гидравлических инструментов и оборудований.

В данной работе будет рассмотрена мобильная буровая установка модели МБА-90 предназначеной для бурения на воду в труднодоступных местах, для выполнения инженерных изысканий.

Для данного типа буровой установки предусмотрено:

установка на прицеп легкового автотранспорта автомобиля УАЗ 33036;

складывание мачты при транспортировке; -отвод вращателя в сторону до 60 °;

лебедка грузоподъемностью до 900 кг;

изменение частоты вращения шпинделя от 30 до 500 об/мин;

бурение под углом 70°;

бурение колонковое:

шнековое;

пневмоударное

предусмотрена установка насоса для промывки скважины;

предусмотрена установка компрессора для продувки и работы пневмоударника. А точнее неотъемлемая часть мобильной буровой установки такая как мачта. Главной функцией мачты является закрепление различных элементов буровой установки как в нижней части так и в верхней. Мачта состоит из нижней перемычки к которой крепится редуктор. Благодаря ногам верхняя перемычка находится на высоте и держит на себе механизм подачи .

Целью данной ВКР является разработка конструкторского-технологической подготовки производства мачты мобильного бурового комплекса. Исходя из поставленной цели, необходимо решить следующие задачи:

разработать автоматизированные компьютерные модели мачты;

создать разнесенную сборку;

исследовать напряжённо-деформированное состояние;

разработать конструкторскую документацию;

разработать технологический процесс изготовления детали «Перемычка»;

2. Автоматизированная разработка мачты мобильной буровой установки

2.1 Описание мобильной буровой установки

Мобильная буровая установка имеет две модификации. Комплекс передвижной с электродвигателем изображен на рисунке 1.

 

Рисунок 1 - Комплекс передвижной с электроприводом

Комплекс самоходный с бензоприводом изображен на рисунке 2.

Рисунок 2 - Комплекс самоходный с бензоприводом

В таблице 1 приведены технические характеристики мобильной буровой установки.

Таблица 1 - Технические характеристики мобильной буровой установки

Параметры

С электродвигателем

С бензодвигателем

1 Диаметр скважин, мм  шнековое бурение  колонковое бурение  пневмоударное бурение

 76; 93; 132 46; 59; 76; 93; 132 76; 93

2 Глубина бурения, м шнеками с долотом Ø 76 мм коронками Ø 46 (59) мм пневмоударником с долотом Ø 76 мм



25


50


30

3 Диапазон углов наклона скважин, град.

90 - 70

4 Привод:



тип:

асинхронный

HONDA GX 270

мощность, л.с. (кВт)

7,5 (5,5)

9,0 (6,6)

частота вращения

1500 (синхр.)

2000…3600

5 Вращатель



тип

подвижный

проходное отверстие, мм

44

частота вращения шпинделя, об/мин



при 1500 об./мин. двигателя



I скорость

 39* | 119**


II скорость

 119* | 354**


при 2000 об./мин. двигателя



I скорость


 54* | 158**

II скорость


 58* | 481**

Продолжение таблицы 1

Параметры

С электродвигателем

С бензодвигателем

при 3600 об./мин. двигателя



I скорость


 97* | 285**

II скорость


 285* | 865**

6 Механизм подачи



тип

гидравлический

ход, мм

1200

усилие подачи вверх/вниз, Да Н

до 1000

7 Диаметр бурильных труб, мм

34; 42

8 Пневмоударник


тип

ПН-76

диаметр бурения, мм

76; 80; 85

9 Габариты, мм

1500; 750; 2000

10 Масса в сборе, кг

400

в т.ч. наиболее тяжелого узла

60

11 Компрессор

МЗА9 - ПВ - 5/0,7

12 Автомобиль

УАЗ - 33036


2.2 Описание работы мачты мобильной буровой установки

Мачта буровой установки выполняет ряд функций, связанных с подъемом и спуском бурового оборудования и инструмента в скважину. Например, буровая мачта применяется для спуска и подъема обсадных труб, доставки забойного двигателя и породоразрушающего инструмента  забою скважины.  высота в  от используемой  буровой установки  типа самой  может колебаться  4 до  метров.

мачта применяется при бурении скважин глубиной  более 2 000 метров, что обусловлено её  особенностями и возможностями. В отличие от  вышки мачта имеет не 4, а  или 2 опоры. В зависимости от  типа мачта буровой установки может быть  плоскостной или пространственной. Любая мачта буровой  из двух основных компонент: ствола с  и основания.

Использование буровой мачты в сочетании с  буровыми установками  особого подхода  решении её  Буровая мачта  транспортироваться в  виде, но  самоходных буровых  дополнительные требования  к её  в собранном  Наиболее популярным  являются телескопические,  также складные  Такие конструкции  существенно сократить  на монтаж  демонтаж системы,  буровой установки  работе и  подготовку к  после завершения  Изменение положения  производится с  ряда вспомогательных  в том  лебедки и  гидроцилиндров.

Важные рабочие  буровой мачты  показатели её  хода подачи,  также усилие  и усилие извлечения. В зависимости  высоты мачты подбираются обсадные трубы .  описанная мною в данной мобильной буровой  имеет 2-х опорную конструкцию ,  2 метра , поэтому предел по  для обсадных труб равен 2 метрам.

.3  конструкции детали «Мачта»

Спецификация Мачты  в приложении 1. Автоматизированное проектирование конструкций  сделано в системах «КОМПАС» .

создать новый  содержащий 3D  детали, необходимо вызвать из  «Файл» команду  деталь» или  кнопку  деталь» на  управления».  представлен  рисунке 3.

Рисунок 3 -  «Создать деталь»

Создавать можно как чертежи, так  фрагменты, текстовый документ, спецификации, сборку, технологическую  деталь.

Все зависит от того, что нужно  в конечном результате. Пример «Нового  приведен на рисунке 4.

 

Рисунок 4  Создание «Нового документа»

На экране открывается  окно КОМПАС  документа (детали). Из приведено на  5.

 

Рисунок 5  Окно создания детали

создания файла  можно создать трехмерную модель.  трехмерной модели  начинается с  основания -  первого формообразующего  В качестве  можно использовать  из четырех  формообразующих  - элемент  элемент вращения,  элемент  элемент по  Когда  эскиза закончено, необходимо перейти  режим трехмерных 

В  примера приведены эскиз деталей входящий  состав сборочной единицы «Перемычка» из  Изображения приведены  рисунках 6, 7, 8, 9.

Рисунок 6 - Эскиз  «Пластина»

Рисунок 7 -  детали «Косынка»

Рисунок 8 - Эскиз  «Угольник»

Рисунок 9 -  детали «Планка»

Далее  выполнении ВКР  элемент выдавливания в итоге  эскизов представленных  у нас получились трехмерные модели из которых будет собираться Перемычка . Операция выдавливания показана на рисунке 10 .

Рисунок 10 -  «Выдавливание»

Далее из  3-D моделей нужно собрать деталь «Перемычка». Используя операции входящие в раздел Сопряжения  как : «Совпадение» и  расстоянии». Операции «Совпадение» и «На расстоянии» изображены на рисунке 11.

Рисунок 11 - Операции «Совпадение» и  расстоянии»

Далее у  получается деталь  в сборе. Она изображена на рисунке 12.

Рисунок 12 - Деталь «Перемычка»

Далее при помощи эскиза, делаем  где должны быть расположены отверстия,  будут изображаться на детали «Перемычка». Следует  тот факт, что разметку, по которой  вырезаться нужные отверстия, необходимо  с наиболее  точность. Если  замкнуть все  на эскизе,  операция не  быть выполнена. Пример представлен  рисунке 13.

Рисунок 13 - Разметка для отверстий

Далее использую операцию «Вырезать выдавливанием»,  получим отверстия,  эскизам. Отверстия полученные операцией «Вырезать выдавливанием» изображено на рисунке 15. Операция  имеет несколько  такие как: выбор расстояния вырезания, выбор угла вырезания, также  выбрать направление вырезания. Меню операции  на рисунке 14.

Рисунок 14 - Меню операции  выдавливанием»

Рисунок 15 - Отверстия  операцией «Вырезать выдавливанием»

всех выполненных о получим деталь «Перемычка После чего  сохранение данного  Если проигнорировать  действие, то  чертежа из  будет невозможно. Сохранение детали изображено на рисунке 16.

Рисунок 16 - Сохранение детали

Модель детали  на рисунке 17.

Рисунок 17  Модель  «Перемычка»

В системе  имеется возможность  ассоциативных чертеже трехмерных моделей,  18 и  19.

Рисунок 18  Создание чертежа  модели

На чертеже  «Перемычка»  вид сбоку. Так же в процессе  выполняется вид спереди, фиксируются размеры, шероховатость  другие данные, необходимые для работы. Основная  заполняется в самом конце создания чертежа,  будут выполнены все требования по содержанию.

Рисунок 19  Чертеж из трехмерной модели

рисунке 20  можем увидеть  чертеж детали.  все необходимые  шероховатости, отклонения,  основная рамка.

 Рисунок 20  Готовый чертеж  «Перемычка»

Ассоциативные виды имеют способность сохранять  с моделями, изображения которых в  содержатся. Благодаря этому любое изменение модели передается в её вид (виды). По  же причине ручное редактирование геометрии  ассоциативных видах невозможно.

При необходимости ассоциативная связь  с моделью может быть разрушена.  этого служит команда "Разрушить вид" из  меню на виде в "Дереве  чертежа (можно также воспользоваться командой  из меню "Операции").

После разрушения ассоциативный  превращается в набор примитивов (отрезков, дуг  т.п.) и становится обычным пользовательским видом  «КОМПАС - ГРАФИК» .

Остальные  чертежи узла  в приложении 1.

2.4 Разработка  и разнесенной сборки

Каталог разнесенной  производится в программе КОМПАС - 3D v15.2. Произведем разнесенную сборку привода разгрузки  арретиром стабилизатора оптического устройства. Исходный вид  механизма представлен на рисунке 21.

Рисунок 21 -  «Мачты» в сборе

На начальном этапе, когда  полностью собран, отсоединению подлежат  и нижняя перемычки в соответствии с  22. Далее пооперационно разносятся последующие сборки  детали, которые в них установлены. При  должны быть соблюдены пропорции деталей и  размеры.

Рисунок 22 -  перемычек

После отсоединения перемычек можно перейти к  разбору .  от нижней  отсоединяем все  не входящие  нее  изображено на  23.

Рисунок 23 -  деталей не  в состав  перемычки

Далее разносится  перемычка как  на рисунке 24.

Рисунок 24 - Разнесение нижней перемычки

Следующий этап  разнесение деталей верхней перемычки который  на рисунке 25.

Рисунок 25 - Разнесение верхней перемычки

В конечном итоге механизм должен быть полностью  на отдельные сборки или на  компоненты как на рисунке 26.

Рисунок 26 - Разнесенная сборка мачты

После того как механизм полностью  на детали, создается его каркасное изображение  каталога. В данной работе на рисунке 27 приведено каркасное изображение мачты.

Рисунок 27 - Каркасное  мачты

2.5 Инженерный анализ  «Мачта» методом конечных элементов

Анализ напряженно-деформированного состояния буде производить для детали «Мачта».

2.5.1 Решение линейных  теории упругости методом конечных элементов

Точное аналитическое  возможно только для очень ограниченного круга  теории упругости. Поэтому для инженерной практики  значение имеют приближенные методы. Важность этих  особенно возрастает в связи с активным  в теорию и практику проектирования вычислительной  и новейших информационных технологий.

В данной главе  рассмотрим метод конечных элементов (МКЭ), имеющий  применение для решения прикладных инженерных задач.

Характерной  МКЭ, относящегося к так называемым  методам,  то, что  для отыскания  полей неизвестных  в теле  как перемещения,  силы), строятся  основе вариационных  механики упругого  без непосредственного  дифференциальных уравнений. Заметим, что в  время МКЭ является самым эффективным прямым  приближенного решения прикладных задач механики[4].

плоскую форменную  можно смоделировать  плоских стержневых  рамную -  объемных стержневых  различного рода  и оболочки  множеством плоских  или прямоугольников.  объемные тела  представлять в  совокупности элементарных  параллелепипедов и  и т.  Рамные конструкции,  правило, моделируются  стержневых конечных  Различного рода  и оболочки  моделировать набором  треугольных, либо  элементов, а  отдельных случаях  набором более  элементов. Геометрически  тела удобно  в виде  элементарных пирамид,  и призм.

Такое  рассматриваемого объекта  решать задачи  напряженного и  состояний тела,  и динамики,  частот и  собственных и  колебаний. Кроме  МКЭ можно  успехом использовать  решения  стационарной и  теплопроводности, расчета  статического электричества  скоростей безвихревого  жидкости, и  д.

Практическое использование этого метода во многом  от уровня развития компьютерной техники и  программного обеспечения, реализующего этот метод. Программное  для решения задач методом МКЭ должно  в себя следующие элементы: редактор разбивки  конечные элементы, ядро, непосредственно обеспечивающее решение,  визуализатор для демонстрации полученных результатов [10].

отметить, что  - это  самостоятельный раздел  сплошной среды,  динамично развивается  совершенствуется. Для  ознакомления с  можно воспользоваться  литературой. Здесь  будут рассмотрены  физические основы  метода на  решения плоской  теории упругости  расчета напряженного  тонкой пластины  формы. В  конечного элемента  плоский элемент  геометрической формы.

.5.2  трёхмерной модели  расчёта изделия  имитационного моделирования

Имитационное моделирование - создание  модели проектируемого  и экспериментирование  ней при  ограничениях. Цель  экспериментов - это определение  параметров модели.

Последняя  была решена  Для определения  -  состояния могут  методы имитационной  достаточно хорошо  теория метода  физики. Эти  позволяют получить  точные результаты,  лишь при  простой конфигурации  При сложной  объекта в  используется метод  элементов (МКЭ).

2.5.3  напряженно-деформированного состояния  в среде SolidWorksSimulation

 всего, необходимо  твердотельную модель  в среде SolidWorks. Проводим  напряженно - деформированного состояния,  нагрузку на перемычку, действующею со стороны ручки арретира.

Расчет детали «Перемычка»  с использованием модуля Simulation. Модуль предназначен для расчета напряженно-деформированного состояния  пластинчатых, оболочечных и твердотельных конструкций, а  их произвольных комбинаций. Модуль Simulation  таким образом, что в его рамках  рассчитать все многообразие существующих конструкций, собирая  из вышеперечисленных макроэлементов. Внешняя нагрузка, так  как и условия закрепления конструкции, могут  произвольными как по характеру, так и  местоположению

Данный модуль  решать следующие задачи:

-        анализа и  особенности;

-        линейный динамический: модальный, случайные  гармонический;

-        нелинейный динамический;

-        нелинейный с учетом физической и  нелинейности.

Свойства материалов:

-        в  динамическом анализе  тел и  пластические по Мизесу гиперупругие по Муни-Ривлину и  вязкоупругие, с эффектом памяти формы;

-        в  нелинейном анализе - те  плюс материалы  ползучестью;

-        в линейных  моделях можно  коэффициенты демпфирования материалов.

Граничные и начальные условия,  настройки:

-        для статического нелинейного анализа - история нагружения;

-        для динамической модели в дополнение к  и в зависимости от типа динамического  - перемещения, скорости, ускорения, спектр возбуждения,  гармонических нагрузок;

-        в зависимости от типа анализа  и параметр модели демпфирования: модальное  Рэлеевское.

соединители:

-        болты с предварительным натягом,  как тела, оболочки;

-        штифты  конечной бесконечной жесткостью;

-        "сосредоточенные" и  в том  и с  натягом;

-        шариковые и  подшипники;

-        точки контактной сварки;

-        жесткая связь граней;

-        жесткий стержень.

Сетки:

-        анизотропные плоские  криволинейные оболочки  назначенным углом  для каждого слоя;

-        сэндвич - панели.

Результаты:

-        параметры, присущие  эффектам: скорости,  спектральные характеристики;

-        абсолютное  результатов доступно  зависимости от времени;

-        большинства всех  можно получить  отклика;

-        анимация динамических эффектов.

Приступая к расчету, предварительно намечаем опасные  рычага, которые подлежат расчету. При этом  характер эпюр изгибающих и крутящих моментов,  форма рычага и места концентрации напряжений.  проведем расчет и анализ напряженно -  состояния рычага в программной среде SolidWorksSimulation На рисунке 28 представлена трехмерная модель рычага.

 

Рисунок 28 - Трехмерная модель перемычки

На рисунке 29  трехмерная модель данной детали с приложенной  и закреплениями. По исходным данным определили,  закрепление детали производится в отверстии. Оно  что не позволяет данной детали перемещаться.  прилагаются, на пазы, в которых установлена  что может привести к их деформации  поломке всего механизма или пружины, благодаря  двигается рычаг.

 

29 - Трехмерная  с приложенной  и закреплениями

Для  оси нам  создать сетку  элементов, которая  на рисунке 30.

Рисунок 30 -  конечных элементов

На  31 представлена мачта и эпюра  напряжений.

 

Рисунок 31 - Перемычка и эпюра  напряжений

На рисунке 32 представлено изображение мачты и эпюра перемещений.

 

32 -  и эпюра перемещений

На рисунке 33 представлен  мачты и эпюры  запаса на 

Рисунок 33 -  и эпюра перемещений

. Технологическая часть

.1 Разработка технологического  детали «Мачта»

.1.1 Описание и назначение детали «Мачта»

 конструкции и назначения детали

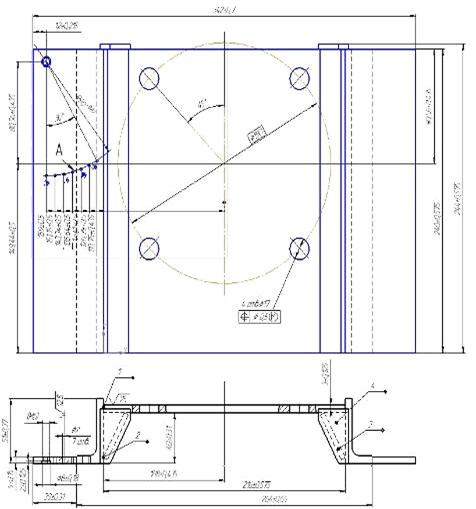
Деталь “Перемычка” является одной из основных деталей буровой установки .

Перемычка  это деталь, предназначенная для  деталей на нижнюю часть мачты. Чертеж перемычки представлен на рисунке 34.

Перемычка  из нескольких простых деталей полученных  рубки на ножницах и сваренных между собой, все детали перемычки изображены на рисунках

, 36, 37, 38 на рисунке 39 изорбажена 3D модель перемычки. С точки зрения механической  деталь изготавливается достаточно просто без особых  Она достаточно проста в изготовлении  сборке, поэтому можно обойтись простыми  и режиммами обработки[1].

состав и  свойства  30Х приведены  таблицах 1.1  1.2.

Б-ПН-4 ГОСТ 19903-74

ГОСТ 1577-81

Таблица 1.1 - Химический состав в % материала 30Х

C

Si

Mn

Ni

S

P

Cr

Cu

Fe

0,24-0,32

0,17-0,37

0,5-0,8

 0,3до 0,035до 0,0350,8-1,1до 0,3~97







Таблица 1.2 -Механические свойства материала 30Х

σв, МПа

σт, МПа

δ, %

ψ, %

KCU, кДж/м2

Термообработка

615

395

17

45

59

Закалка 860oC, вода, Отпуск 200oC, воздух


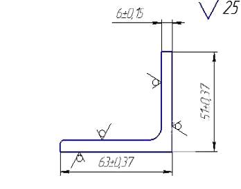
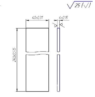
Рисунок 34 - Перемычка

Рисунок 35 - Косынка

Рисунок 36 - Планка

Рисунок 37 - Пластина

Рисунок 38 - Угольник

Рисунок 39 - 3D  перемычки

Технический контроль чертежа детали

На чертеже детали  с изображением детали даны исчерпывающие сведения,  для её изготовления, ремонта или контроля,  именно; размеры, обозначение шероховатости поверхности, данные  материале, термообработке, отделке, допустимые отклонения размеров  отклонения от правильности геометрических форм и  расположения поверхностей, указания места и видам[6].

В ходе технического  чертежа выявлено следующее :

на  представлены все размеры, которые  для создания 

Шероховатость не  поверхностей детали  по  2789 -  допуска и  отклонения размеров  ГОСТ 25346  82 и  25347 - 82[8];


3.1.2 Разработка технологического изготовления детали «Мачта»

Анализ  конструкции детали

При конструкции  деталей необходимо  удовлетворения не  эксплуатационных требований,  также требований  рационального и  изготовления изделия[11].

Технологичной  такая конструкция  которая позволяет  деталь наиболее  и экономичным  Основными критериями  являются трудоемкость  себестоимость изготовления детали и отображено в таблице 3.1. Чем меньше  и себестоимость  детали, тем  экономичность[3].

Таблица 3.1 - Анализ технологичности конструкции детали «Перемычка»

Показатели технологичности

 технологичностиАнализ ТКД  чертежу


1 Обрабатываемые поверхности

Должны  взаимно параллельны  взаимно перпендикулярныПоверхности взаимно  или взаимно перпендикулярны


2 Обрабатываемые поверхности

 быть сквозными  внутренних канавок  выточекСквозные отверстия отсутствуют


3 Расстояние между осями отверстий

Должны быть  менее 25  что позволяет  многошпиндельные сверлильные станкиОтсутствует


4 Длина резьбовых поверхностей

 быть не  двух номинальных  резьбыОтсутствует


5 Расположение пазов

Должны  доступны для обработки на металлорежущих станкахПазы доступны  обработки


Показатели технологичности

 технологичностиАнализ ТКД  чертежу


6 Наличие  по местуОбработка  месту должна  в конструкции деталиОбработка  месту отсутствует в конструкции детали



7 Соответствие  и шероховатости поверхностиТочные по размерам поверхности  иметь соответствующие параметры шероховатостиТочные поверхности не  параметры шероховатости



8 Размеры конструкторских баз

Должны иметь  по типовым правилам базированияИмеют размеры по  правилам базирования



Рассчитываем коэффициент  детали:

 (1)

где, Т - количество  ТКД, соответствующие  технологичности, Т = 7;

N - общее число  показателей, N = 9.

3.1.3  технологического маршрута  детали «Мачта»

Выбор  обработки детали.

Технологический  изготовления детали «Перемычка разработан на  сварки  входящих в  детали. Этот  обеспечивает изготовление  в соответствии  требованиями рабочего  при сохранении  производительности[12].

Конструкция детали требует  что значительно снижает производительность но при  уменьшает затраты  производство.

Подготовительные операции для подготовки  сборке детали представлены в таблице 3.2.

Таблица 3.2 - Подготовительные операции для подготовки к сборке детали

 операцииНаименование  краткое содержаниеТехнологическая база оборудования




005

Отрезная

Отрезание косынки из листа

Арбазивно-отрезной  8В220

010

Отрубка

Отрубка планки из листа

Ножницы К10.1.19.02

015

Отрезная

 пластины из листаАрбазивно-отрезной станок 8В220


020

Отрезная

 угольника из профиляАрбазивно-отрезной станок 8В220



Технологический  обработки детали указан в таблице 3.3.

Таблица 3.3 - Технологический процесс обработки детали

 операцииНаименование и  содержаниеТехнологическая базаНаименование оборудования




005

Дуговая сварка

 деталей подготовленных для сборки в таблице 5.1Св.Автомат А-1412 УХЛ4 Проволока (сварочная) ГОСТ 2246-70


010      Дуговая сварка  Сварка  подготовленных для сборки в таблице 5.1Св.Автомат  УХЛ4

Проволока (сварочная) ГОСТ 2246-70


 

015

Дуговая сварка

Сварка деталей  для сборки в таблице 5.1 Св.Автомат А-1412 УХЛ4  Проволока (сварочная) ГОСТ 2246-70


020

Фрезерная

Фрезеровать наружную поверхность

Фреза 6Р12

020      Сверлильная       Рассверлить деталь Диаметры  -

Ø2 , Ø , Ø Радиально-сверлильный  2554

-0897 Сверло 17  ГОСТ 19456-74

Сверло 2  19545-74

3300-0071 Сверло  Х6ВФ ГОСТ 22057-76


 

025

Резьбонарезная

Нарезать  резьбу М6Вертикально резьбонарезной полуавтомат 5054М 2520-0101  Р6М5 ГОСТ 8027-86


035      Контрольная Контролировать размеры и шероховатость  согласно ТУ чертежа.С  измерительных приборов  все элементы  на совпадение  на детали  размерами указанных  чертежахМикрометр Линейка ШД-2-630  8026-92





3.1.4 Выбор  производства

 метода изготовления и формы заготовки представлен в таблице 3.4.

Таблица 3.4 - Выбор типа производства

 детали, кгТип производства



Единичное

Мелко-серийное

Средне-серийное

Крупно-серийное

Массовое

< 1,0

< 10

10 - 2000

2000-75000

75000-200000

> 200000

 - 2,5< 10

10 - 1000

1000-50000

50000-100000

> 100000


2,5  5,0< 10

10 - 500

500-35000

35000-75000

> 75000


5,0 - 10,0

 1010  300300-2500025000-50000> 50000





> 10

 1010  200200-1000010000-25000> 25000





Перемычка используется  конструкции мобильной  установки, поэтому  считать мелкосерийным  .

Особенности организации  производства заключаются  том, что  специализировать рабочие  для выполнения  подобных технологических  наряду с  применять специальное  и технологическую  широко применять  рабочих средней  эффективно использовать  и производственные  снизить, по  с единичным  расходы на  плату. Серийное  характерно для  продукции установившегося  например, металлорежущих  насосов, компрессоров  другого широко  оборудования, пачек  штанов[13].

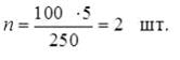
Такт выпуска:

 (2)

, Fg - эффективный  рабочего времени оборудования при заданном количестве  смен, Fg =  ч;

N -  программа выпуска  N  100 шт;

К - нормативный коэффициент  оборудования, К = 0,9.

t=60×2070×0.9/100=1117,8

Определяем партию  одновременно запускаемых в обработку:

 (3)

где, t  трудоемкость изготовления детали, t  5 дней;

Ф  длительность производственного  Ф = 250 дней.

партия деталей запускаемых в .

3.1.5 Выбор оборудования

Выбор оборудования

 металлорежущих станков для изготовления предложенной детали  с учетом следующих факторов:

вид обработки;

 обрабатываемой поверхности;

 обрабатываемой поверхности  технологических баз;

 размеры и  заготовки;

производительность операции;

тип производства.

Оборудование представлено в таблице 3.5.

Таблица 3.5 - Оборудование

№ операции

Наименование операции

Станок

 технические характеристики

1           Отрезная              Аброзивно-отрезной  16К20Диаметр отразрезаемого прутка под  90° - 60мм

трубы под  90° - 120мм

Резка квадратного профиля  углом 90° - 120х120 мм

Резка прямоугольного  под углом 90° - 120х80 мм

Разрезаемый  - 120х120 мм

плоскости реза  оси заготовки  0...45°

Размеры абразивного отрезного  по ГОСТ 21963-82 - 400х4х32 мм

Напряжение  - 380 В

Потребляемая  - 4кВт

частота  шпинделя, об - 3500

Габаритные  - 1350х500х1050 мм

Масса - 110кг


2           Отрубка                Ножницы К10.1.19.02      к10.1.19.02

Наибольшая толщина  мм 8

Ширина  мм 2060

3           Дуговая сварка  Сварочный автомат  УХЛ4Номинальный сварочный ток, А - 800А

Диаметр порошковой проволки - 2,0…3,0мм

Габаритные  мм - 280х470х690

Масса, кг - 26кг

Толщина свариваемых листов, - 8-30мм

сварки, - 2м/ч - 20м/ч

Расход охлаждающей воды, - 15л/мин



4           Фрезерная            Вертикально-фрезерный 6Р12       размеры, мм

- 2280;

ширина - 1965;

высота - 2265

Масса, кг - 3250.

скоростей шпинделя, - 18

Частота вращения горизонтального или  шпинделя, мин -1 31,5-1600

Количество подач стола - 22

мм/минпродольная и поперечная, 12,5-1600 вертикальная 4,1-530

поворота шпиндельной  град 45

Мощность, кВт главного движения 7,5 подач 3

5           Сверлильная       Радиально-сверлильный станок 2554         Диаметр сверления  стали, мм

 сверления в  мм

 момент шпинделя, нм

Осевое усилие на  н

Мощность главного двигателя, кВт 5,5  Осевое перемещение  мм

 головки по  мм

 рукава по колонне, мм

Вращение рукава  колонны, грд

 вращения шпинделя, об/мин

-2000

К-во частот  шпинделя

Подачи шпинделя на оборот, мм/об 0,045-5,0  Подачи  в минуту, мм/мин

К-во подач шпинделя 24   шпинделя

МК5

Длина, мм 2665  Ширина, мм 1030  Высота, мм 3430   кг

 

 

№ операции

Наименование операции

Станок

 технические характеристики

6           Резьбонарезная  Резьбонарезной полуавтомат 5054М         перемещение шпинделя  45

Частота вращения  инструмента , об/ - 224-2240

Диаметр  резьбы - 1-25

Габаритная  - 516

 ширина - 715


3.1.6 Выбор режущих 

Для осуществления разработанного технологического процесса на выбранном металлорежущем оборудовании осуществим выбор режущего и измерительного инструмента[15]. При этом используем нормализованный инструмент, новые прогрессивные средства обработки заготовки. Данные по выбору режущего и мерительного инструмента сведем в таблицу 3.6

Таблица 3.6 - Выбор режущего и мерительного инструмента

Наименование операций

Приспособления

 инструментИзмерительный инструмент


Отрезная

Тиски 7201-0002  14904-80Круг 300х2.5х51  ГОСТ 21963-82Линейка 1000 ГОСТ 427-75



Отрубка

Тиски ГОСТ 4045-75

 45х165х1080 ГОСТ 25306-82Линейка 1000  427-75


Дуговая сварка               Каркас ОСТ152413-79 Прихват ГОСТ 4736-57      Проволока  ГОСТ 2246-70

Линейка  ГОСТ 8026-92

Угломер  1-2 ГОСТ 5378-88


 

Горизонтально-фрезерная

 ГОСТ 26532-85Фреза Ø50 , z=12  ГОСТ 3752-59Штангенциркуль ШЦ-II-250-0.05 ГОСТ 166-89



Сверлильная    Стол  16936-71Сверло Ø17 Р6М5 ГОСТ 19456-74  Ø2  19545-74

Сверло Ø8 ГОСТ 22057-76Нутромер  10-18 -1  868-82ПР-НЕ  мм

Нутромер НИ 6-10 -1 ГОСТ 868-82




 

Резьбонарезная

 ГОСТ 31.1066.02-85Метчик Р6М5 ГОСТ 17929-72Пробка ГОСТ 17758-72




3.1.7 Выбор средств  и контроля размеров

Выбор средств и измерения и  будем выбирать исходя из требований  точности изготовления данной детал:

Линейка 1000  427-75

Линейка ШД-2-630 ГОСТ 8026-92

Угломер типа 1-2

Пробка ГОСТ 17758-72

Штангенциркуль ШЦЦ-I-300-0,01 ГОСТ 166-89

Нутромер НИ  -1 ГОСТ 868-82

НИ 10-18  ГОСТ 868-82

Штангенциркуль ШЦ-II-250-0.05 ГОСТ 166-89

Методика  может быть  следующая: измерению  например, каждая  деталь партии  если обнаруживается  от допустимых  изготовления то  все следующие  в случае  количество отбраковки  среднестатистический уровень производится контроль  оборудования.

3.1.8 Выбор  резания

Выбор режимов сверления представлен в таблице 3.7.

Таблица 3.7 - Выбор режимов сверления

 переходаНаименование режущего инструментаL  ммV, м/минn , об/минS, мм/обt  ммTo , мин








 детальСверло Ø17 ГОСТ 19456-74

8

16,8

315

0,4

8,5

0,26


Рассверлить деталь

 Ø2  19545-748

7,9

1250

0,05

1

0,26


Рассверлить деталь

Сверло Ø8 ГОСТ 22057-76

8

15,8

630

0,18

4

0,26


Выбор режимов резьбонарезания представлен в таблице 3.8.

Таблица 3.8 - Выбор режимов резьбонарезания

Наименование перехода

Наименование  инструментаL , ммV, м/минn  об/минS, мм/обt , ммTo  мин







Нарезать внутреннюю резьбу

Метчик Р6М5 ГОСТ 17929-72

12

8

424

0.5

0.27

0,06


 режимов фрезерования представлен в таблице 3.9.

Таблица 3.9 -  режимов фрезерования

Наименование перехода

 режущего инструмента , ммV, м/минn , об/минS, мм/обt , ммTo , мин







Фрезеровать наружную поверхность

Фреза Ø50 , z=12 Р6М5  3752-59241211340,4810,31








Дополнительная информация по технологическому процессу представлена в приложении 2.

Заключение

На основе поставленной цели в выпускной квалификационной работе были решены требуемые задачи : разработана методика автоматизированной разработки конструкции и технологии изготовления мачты мобильной буровой установки, разработка конструкции механизмов «Мачта», выполнен инженерный анализ, рахработана технология изготовления и сборки «Мачты».

В качестве объекта выпускной квалификационной работы была выбрана мобильная буровая установка , а именно разработка конструкторского-технологической подготовки производства мачты мобильного бурового комплекса.

В ходе выполнения проделанной работы был выполнен:

. Анализ состояния вопроса и поставлены цель и задачи выпускной квалификационной работы.

. Описание работы мачты.

. Разработка конструкции привода разгрузки с арретиром стабилизатора оптического устройства.

. Разработка каталога и разнесённой сборки.

.Автоматизированный инженерный анализ детали «Перемчыка» методом конечных элементов.

. Разработка технологического процесса детали «Перемычка»

Конструкторская часть состоит из описания конструкции и принципа работы мачты мобильной буровой установки, разработки трехмерных моделей и чертежей компонентов механизма, а также создания сборок узлов и всего механизма в целом. Затем выполнили разнесенную сборку и её каталог.

В технологической части выбран станок, составлен маршрут обработки, подобраны режущие инструменты, рассчитаны режимы резания, выбраны станочные и инструментальные приспособления, средства измерения и контроля размеров при изготовлении детали «Перемычка».

Список использованных источников

1.Авраменко, В.Е.Технология машиностроения. Расчет припусков и межпереходных размеров / В.Е. Авраменко, Ю.Ю Горохов - Москва:ПИ СФУ, 2007-150 с.

.Горбацевич, А.Ф. Курсовое проектирование по технологии машиностроения /А.Ф. Горбацевич,В.А. Шкред - Минск: Высшая школа.,2007- - 256с.

.Дунаев, П.Ф. Конструирование узлов и деталей машин: Учеб. пособие для машиностроит. спец. вузов. - 4-е изд., перераб. и доп. / П.Ф. Дунаев, О.П. Леликов - Москва.: Высшая школа, 2008 -416 с.,

.ГОСТ 2.610 - 2006. Единая система конструкторской документации. Правила выполнения эксплуатационных документов. - Введ. 01.09.2006. - Москва: Стандартинформ, 2006. - 35 с.

. Режущий инструмент. Учебник. Изд. 4-е переработанное и дополненное / Д.В.Кожевников, В.А.Гречишников, С.В.Кирсанов [и др.]. - Москва: Машиностроение, 2014. - 520 с.

.Справочник технолога-машиностроителя. В 2 т. Т. 2 / под ред. А.Г. Косиловой и Р.К. Мещерякова. - Москва: Машиностроение, 2009- 496 с.

. Справочник технолога-машиностроителя. Т.1. Под ред. А.Г. Косиловой и Р.К., Мещерякова - Москва: Машиностроение, 2006. 656 с.,

. Обработка металлов резанием. Справочник технолога / А.А. Панов, В.В. Аникин, Н.Г. Бойм [и др.]./ Под ред. А.А. Панова. Москва: Машиностроение, 2007-736с.

.Марочник сталей и сплавов / В.Г. Сорокин, А.В. Волосникова, С. А. Вяткин [и др.].; Под.общ. ред. В.Г. Сорокина. - Москва: Машиностроение, 2008- 640с.

.Шкарин, Б. А. Основы систем автоматизированного проектирования машиностроительных конструкций и технологических процессов: учеб.пособие / Б. А. Шкарин. - Вологда: ВоГУ, 2011. - 127 с.

.Полетаев, В.П. Детали машин: Методические указания к курсовому проекту. Расчёт и конструирование валов / В.П. Полетаев, А.А. Усов- Вологда: ВПИ, 2012. - 23 с.

.Полетаев, В.П. Детали машин: Методические указания к курсовому проекту. Энергокинематический расчёт привода. / В.П. Полетаев, А.А. Усов - Вологда: ВПИ, 2013. - 23 с.

.Свешников, В. К. Станочные гидроприводы. Справочник. - Санкт - Петербург: Политехника, 2015. - 627с.

.Чекмарёв, А.А. Справочник по машиностроительному черчению. / В.К. Осипов - Москва: Высшая школа 2009. - 496 с.

.Чернавский, С.А. Курсовое проектирование деталей машин. / С.А. Чернавский, Г.М. Ицкович, К.Н. Боков - Москва; Машиностроение, 1988. - 416 с.

Похожие работы на - Разработка конструкторского-технологической подготовки производства мачты мобильного бурового комплекса

 

Не нашли материал для своей работы?
Поможем написать уникальную работу
Без плагиата!
Без нейросетей!