Редуктор для ленточного транспортера. Подбор муфты, двигателя
Содержание
Введение
Выбор
электродвигателя и кинематический расчёт
Расчёт
цилиндрической передачи
Расчёт
червячной передачи
Предварительный
расчёт валов
Конструктивные
размеры колеса и шестерни
Конструктивные
размеры червяка и червячного колеса
Конструктивные
размеры корпуса редуктора
Расчет цепной
передачи
Первый этап
компоновки
Проверка
долговечности подшипников
Проверка
прочности шпоночных соединений
Уточненный
расчет валов
Выбор сорта
масла
Тепловой
расчет редуктора
Выбор муфт
Сборка
редуктора
Заключение
Список
использованных источников
Введение
Цель курсового проектирования - систематизировать, закрепить, расширить
теоретические знания, а также развить расчетно-графические навыки студентов.
Основные требования, предъявляемые к создаваемой машине: высокая
производительность, надежность, технологичность, минимальные габариты и масса,
удобство в эксплуатации и экономичность. В проектируемом редукторе используются
зубчатые передачи.
Редуктором называют механизм, состоящий из зубчатых или червячных передач,
выполненный в виде отдельного агрегата и служащий для передачи мощности от
двигателя к рабочей машине.
Назначение редуктора - понижение угловой скорости и повышение вращающего
момента ведомого вала по сравнению с валом ведущим.
Нам в нашей работе необходимо спроектировать редуктор для ленточного
транспортера, а также подобрать муфты, двигатель. Редуктор состоит из литого
чугунного корпуса, в котором помещены элементы передачи - 2 шестерни, 2 колеса,
подшипники, валы и пр. Входной вал посредством муфты соединяется с двигателем,
выходной также посредством муфты с транспортером.
Выбор электродвигателя и кинематический расчёт
Общий КПД привода
где ɳц - КПД цилиндрической передачи
ɳк - КПД конической передачи
ɳ0 - КПД пары подшипников качения
Мощность на приводном валу (вал барабана)
Угловая скорость на приводном валу (вал барабана)
Где
=0.229
Частота
вращения на приводном валу (вал барабана)
Требуемая
мощность электродвигателя
Выбираем двигатель с мощностью 0, 55кВт при требуемой 0, 22-Двигатель
трехфазный короткозамкнутый серии 4А, закрытый обдуваемый с синхронной частотой
вращения 1000 об.мин 71В6 УЗ
Nдв=0.55
кВт b и скольжение S=10%
Значения частных передаточных отношений передач
Для цилиндрической передачи
,
для конической передачи
,
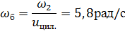
Рассчитываем частоты вращения валов:
Вал В:
Мощности на валах:
Угловые скорости на валах:
Вращающие моменты на валах:
Таблица 1- Частоты вращения, угловые скорости, вращающие моменты и
мощности валов редуктора и приводного барабана
|
Вал
|
Мощность Р, Вт
|
Вращающий момент
|
Угловая скорость
|
Частота вращения n, об/мин
|
|
B
|
0, 2
|
2, 84
|
94, 2
|
900
|
|
C
|
0, 2
|
8, 931
|
23, 5
|
225
|
|
А
|
0, 21
|
36, 5
|
5, 8
|
56, 25
|
Расчёт конической передачи
Проектировочный расчет начинается с определения внешнего делительного
диаметра, который определяется по формуле для шестерни:
=>50мм.
Для
колес с круговыми зубьями
=86
Зубья
выбираем круговые исходя из условия, что прямозубая коническая передачи хороша
для невысоких скоростей окружных скоростей(2…3 м/с), а для более высоких
применяется с круговыми зубьями так как такие зубья обеспечивают более плавное
зацепление, повышают несущею способность и понижают деформацию за счет того,
что плавно входят в зацепление.
Для
этого переведем рад/с в м/с.
радиус
окружности, по которой движется точка с скоростью
.
=>зубья
круговые.
R=de2/2=84/2=42
мм=>0.042м
Где
-коэф.
учитывающий неравномерность распределения нагрузки по ширине венца зубчатого,
по таб.7.1 для закрытых редуктор равный 1
Округляем
по ГОСТ 12289-76 и принимаем 50мм.
Определим
углы делительного конуса
Так
как в задании нет особых требований в отношении габаритов передачи, выбираем
материалы со средними механическими характеристиками: для шестерни сталь 45,
термическая обработка - улучшение, твёрдость НВ 260; для колеса - сталь 45,
термическая обработка - улучшение, но твёрдость на 30 единиц ниже - НВ 230.
Допускаемые
контактные напряжения
где
- предел контактной выносливости при базовом числе
циклов.
Для
углеродистых сталей с твёрдостью поверхностей зубьев менее НВ 350 и термической
обработкой (улучшением)
=2*260+70=590
-
коэффициент долговечности; при числе циклов нагружения больше базового, что
имеет место при длительной эксплуатации редуктора, принимают
; коэффициент безопасности
-коэф.
ширины колеса к межосевому расстоянию=0, 2
Проверка
контактных напряжений определяется по формуле:
Внешнее
конусное расстояние определяется по формуле:
Тогда среднее конусное расстояние будет равным:
Коэф.нагрузки
принимается таким же как и для цилиндрической
передачи
Проектировочный
расчет для колеса начинается с определения внешнего делительного диаметра,
который определяется по формуле:
=>80мм
Для
колес с круговыми зубьями
=86
Где
-коэф.
учитывающий неравномерность распределения нагрузки по ширине венца зубчатого,
по таб.7.1 для закрытых редуктор равный 1
Округляем
по ГОСТ 12289-76 и принимаем 80мм.
Так
как в задании нет особых требований в отношении габаритов передачи, выбираем
материалы со средними механическими характеристиками: для шестерни сталь 45,
термическая обработка - улучшение, твёрдость НВ 260; для колеса - сталь 45,
термическая обработка - улучшение, но твёрдость на 30 единиц ниже - НВ 230.
Допускаемые
контактные напряжения
где
- предел контактной выносливости при базовом числе
циклов.
Для
углеродистых сталей с твёрдостью поверхностей зубьев менее НВ 350 и термической
обработкой (улучшением)
=2*230+70=530
-
коэффициент долговечности; при числе циклов нагружения больше базового, что
имеет место при длительной эксплуатации редуктора, принимают
; коэффициент безопасности
-коэф.
ширины колеса к межосевому расстоянию=0, 2
Проверка
контактных напряжений определяется по формуле:
Внешнее
конусное расстояние определяется по формуле:
Тогда
среднее конусное расстояние будет равным:
Коэф.нагрузки
принимается таким же как и в расчете шестерни
конического зацепления.
Z1=18-шестерни
Z2=Z1*u=18*4=72-колеса
Таблица
2 -количество зубьев и значение внешнего делительного диаметра шестерни
и колеса конической передачи
|
de
|
z
|
|
шестерня
|
50
|
18
|
|
колесо
|
80
|
72
|
Основные геометрические параметры конического зацепления:
Средний
угол наклона зуба
в круговой форме около
Cредний окружной
модуль:
Внешняя
высота зуба:
Средний
делительный диаметр:
Внешняя
высота головки зуба:
Внешняя
высота ножки зуба:
Угол
ножки зуба:
Угол головки зуба:
Внешний
диаметр вершин:
Проверка
зубьев конических колес на выносливость по напряжениям изгиба
Проверка
зубьев конических колес на выносливость по напряжениям изгиба выполняют по формуле:
Здесь
-окружная сила
Н
-коэф.
нагрузки при расчете на изгиб, выбираем так же как для цилиндрической.
=1, 5
-коэф. торцевого перекрытия.
n=7-степень
точности для круговых зубьев.
-коэф.
формы зуба, выбирается в
зависимости
от эквивалентного числа зубьев.
=0,
85-коэ. понижения несущей способности конических передач, по сравнению с
цилиндрическими.
m-средний
расчетный модуль зацепления.
-допускаемое
напряжение. Вычисляется так же как и для цилиндрических передач.
Расчет
ведут по колесу, для которого отношение
меньше.
-шестерни
-колеса
,
где
-коэф.
безопасности
=1, 75
(для
поковок и штамповок)
Допускаемые
напряжения для
Шестерни-
Колеса-
Находим
отношение
:
так как
-шестерни
так как
-колеса
Для
шестерни-
мПа
Для
колеса-
мПа
,
78мПа>41, 7мПа=>дальнейший расчет ведем для колеса.
м/с.
Проверяем
прочность зуба:
Условие прочности выполнено.
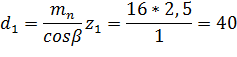
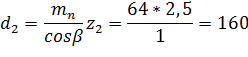
Расчёт цилиндрической передачи
электродвигатель червяк редуктор шестерня
Так как в задании нет особых требований в отношении габаритов передачи,
выбираем материалы со средними механическими характеристиками: для шестерни
сталь 45, термическая обработка - улучшение, твёрдость НВ 230; для колеса -
сталь 45, термическая обработка - улучшение, но твёрдость на 30 единиц ниже - НВ
200.
Допускаемые контактные напряжения
где
- предел контактной выносливости при базовом числе циклов.
Для углеродистых сталей с твёрдостью поверхностей зубьев менее НВ 350 и
термической обработкой (улучшением)
- коэффициент долговечности; при числе циклов нагружения
больше базового, что имеет место при длительной эксплуатации редуктора,
принимают
; коэффициент безопасности
для шестерни
для колеса
Тогда расчётное допускаемое контактное напряжение
Требуемое условие
выполнено.
Принимаем для прямозубых колёс коэффициент ширины венца по межосевому
расстоянию
Межосевое расстояние из условия контактной выносливости активных
поверхностей зубьев по формуле
При
.
В соответствии с ГОСТ 2158-81
мм
Нормальный модуль зацепления принимаем по следующей рекомендации:
принимаем по ГОСТ 9563 - 60* mn = 2, 5 мм.
Примем предварительно угол наклона зубьев β = 100 и определим числа
зубьев шестерни и колеса
Принимаем
, тогда
принимаем
64,
Уточнённое значение угла наклона зубьев
Основные размеры шестерни и колеса:
диаметры делительные:
Проверка:
диаметры вершин зубьев:
ширина колеса
ширина шестерни
Определяем коэффициент ширины шестерни по диаметру:
Определяем коэффициент ширины колеса по диаметру:
Окружная скорость колёс и степень точности передачи
При такой скорости для косозубых колёс следует принять 6-ю степень
точности.
Коэффициент нагрузки
Проверка контактных напряжений по формуле:
Силы, действующие в зацеплении:
окружная
Проверяем зубья на выносливость по напряжениям изгиба по формуле:
Здесь коэффициент нагрузки
По табл. 7.4
По табл. 7.5
Таким образом, коэффициент
YF - коэффициент, учитывающий форму
зуба и зависящий от эквивалентного числа зубьев
, но так как передача прямозубая
будем ориентироваться по фактическому z
,
где степень точность n =6
Таким образом
Допускаемое напряжение по формуле:
Для стали 45 улучшенной при твёрдости НВ ≤ 350
Для шестерни
для колеса
МПа.
коэффициент безопасности, где
(для поковок и штамповок).
Следовательно,
Допускаемые напряжения:
для шестерни
для колеса
Находим отношения
для шестерни
для колеса
, 9>55, 37
Дальнейший расчёт следует вести для зубьев колеса, для которого найденное
отношение меньше т.е для шестерни
Определяем коэффициенты Yβ и КFα
Условие прочности выполнено.
Предварительный расчёт валов и конструктивные размеры
Предварительный расчёт проведём на кручение по пониженным допускаемым
напряжениям.
Ведущий вал
Диаметр
входного конца при допускаемом напряжении
по
формуле
Для
соединения вала редуктора с валом двигателя стандартной муфтой необходимо
согласовать
=10мм и диаметр ротора двигателя. Назначаем муфту
фланцевую(ГОСТ20761-80).
Таблица 3 - Характеристики фланцевой муфты
Длина
входного конца вала
=2, 5*22=55мм
dдв=22 мм и dв1=22 мм.
Диаметр
вала под подшипником принимаем
мм
Диаметр
под шестерню
мм
-22=8мм=>разница
незначительная => изготовим как вал-шестерню.
Промежуточный
вал
Наименьший
диаметр вала при допускаемом напряжении
примем
20 мм
Диаметр
вала под подшипником принимаем
мм
Диаметр
под шестерню
мм
Ступица:
мм
мм
Толщина
обода: (3-4)m
Колеса
конической передачи:1, 1*4=4, 4мм
Шестерни
цилиндрической:2, 5*4=10мм, но шестерню цилиндрической передачи выполним как
вал-шестерню.
Толщина
диска колеса конической передачи: 0, 3 от ширины зубчатого колеса т.е
мм
Тихоходный
вал
Наименьший
диаметр вала при допускаемом напряжении
мм
Диаметр
вала под подшипником принимаем
мм
Диаметр
под колесо цилиндрической передачи
мм
Ступица:
мм
мм
Толщина
обода колеса цилиндрической передачи: (3-4)m=2, 5*3=7, 5мм
Толщина
диска колеса цилиндрической передачи: 0, 3 от ширины зубчатого колеса т.е
мм
Конструктивные размеры корпуса редуктора
Толщина стенок корпуса и крышки:
Толщина
фланцев поясов корпуса и крышки
Диаметр
болтов:
крепящих
крышку к корпусу
мм=>выбираем
болты М8x22 ГОСТ 15591-70
Первый этап компоновки
Принимаем зазор между торцом шестерни и внутренней стенкой редуктора
.
Намечаем для валов редуктора подшипники.
Таблица 4 -Характеристики подшипников
|
Упорные
|
Условное обозначение подшипника
|
d, мм
|
D, мм
|
h, мм
|
H, мм
|
C, кН
|
C0, кН
|
|
|
8205Н
|
25
|
47
|
4, 2
|
15
|
42, 5
|
|
|
8206Н
|
30
|
52
|
4, 8
|
16
|
25, 5
|
40
|
|
|
Радиальные
|
|
d, мм
|
D, мм
|
В, мм
|
r
|
C, кН
|
Dω
|
Сст
|
|
205
|
25
|
52
|
15
|
1, 5
|
14
|
7, 9
|
6, 95
|
|
Радиально-упорные
|
|
|
|
|
|
|
|
|
|
26206К
|
30
|
62
|
16
|
1
|
22
|
9, 5
|
12
|
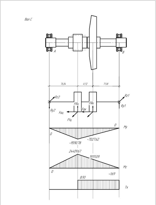
Проверка долговечности подшипников
Вал В(Ведущий)
Реакции
опор Y
Реакции
опор Z
Суммарные
реакции:
Подбираем подшипники по более нагруженной опоре (А)
Намечаем радиальные шариковые подшипники 205:
Эквивалентная нагрузка по формуле:
Где
1277, 7
Н-радиальная нагрузка,

112, 84
Н-осевая нагрузка
-вращается
внутреннее кольцо подшипника,
1-коэф.
безопас.,
1-температурный
коэф.
Отношение
, по каталогу подшипников соответствует e=0,
22
Отношение
X=1, Y=0.
Итого
расчетная долговечность, млн. оборотов
Расчетная
долговечность, ч
,
что
больше установленных ГОСТ 16162-85.
Вал
С
Реакции
опор Y
Реакции
опор Z
Суммарные
реакции:
Подбираем подшипники по более нагруженной опоре (А)
Намечаем упорный шариковый подшипники 8205Н:
Эквивалентная нагрузка по формуле:
Где
341, 3
Н-радиальная нагрузка,

82, 24
Н-осевая нагрузка
-вращается
внутреннее кольцо подшипника,
1-коэф.
безопас.,
1-температурный
коэф.
Отношение
, по каталогу подшипников соответствует e=0,
22
Отношение
X=1, Y=0.
Итого
расчетная долговечность, млн. оборотов
Расчетная
долговечность, ч
,
что
больше установленных ГОСТ 16162-85.
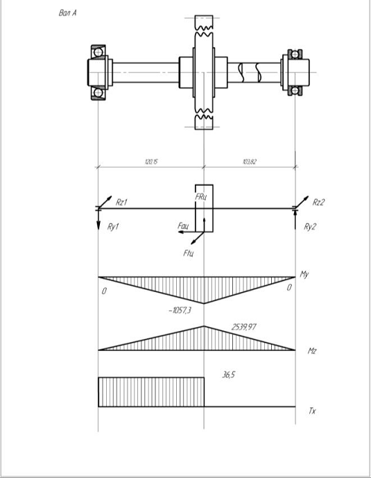
Вал А
Реакции
опор Y
Реакции
опор Z
Суммарные
реакции:
Подбираем подшипники по более нагруженной опоре (В)
Намечаем упорный шариковые подшипники 8206Н:
Эквивалентная нагрузка по формуле:
Где
26, 5
Н-радиальная нагрузка,

1, 425
Н-осевая нагрузка
-вращается
внутреннее кольцо подшипника,
1-коэф.
безопас.,
1-температурный
коэф.
Отношение
, по каталогу подшипников соответствует e=0,
22
Отношение
X=0, 45, Y=1,
81.
Итого
расчетная долговечность, млн. оборотов
Расчетная
долговечность, ч
что
больше установленных ГОСТ 16162-85.
Проверка прочности шпоночных соединений
Шпонки призматические со скруглёнными торцами. Размеры сечений шпонок и
пазов и длины шпонок - по ГОСТ 23360-78
Материал шпонок - сталь 45 нормализованная.
Напряжения смятия и условие прочности определяем по формуле
Допускаемые напряжения смятия при стальной ступице
Входной вал
Промежуточный вал
Выходной вал
Уточненный расчет валов
Промежуточный вал
Червячный вал проверять на прочность не следует.
Проверим стрелу прогиба червяка (расчет на жесткость).
Приведенный момент инерции поперечного сечения червяка
Стрела
прогиба
Допускаемый
прогиб
Жесткость
обеспечена, т.к. f<[f].
Входной вал вал
Материал
вала - сталь 45 нормализованная,
.
Пределы
выносливости:
Концентрация
напряжений обусловлена наличием шпоночного паза.
Коэффициент
запаса прочности по касательным напряжениям
, где
При
d=22мм, b=6мм, t1=3, 5мм
Коэффициент
запаса прочности по касательным напряжениям
По
таблице10.1 принимаем
.
По
таблице 10.7 принимаем
.
Амплитуда
нормальных напряжений изгиба
Изгибающий
момент в сечении А-А
При
d=36 мм; b=10 мм; t1=5 мм
При d=36 мм; b=10 мм; t1=5 мм
Амплитуда
и среднее напряжение цикла касательных напряжений
Результирующий
коэффициент запаса прочности по формуле (8.17 [1])
Условие
прочности выполнено.
Выбор сорта масла
Смазывание
зацепления и подшипников производится разбрызгиванием жидкого масла.
Устанавливаем вязкость масла. При контактных напряжениях
144, 5 МПа и скорости скольжения vs=2, 96 м/с рекомендуемая вязкость масла должна быть примерно равна 20∙10-6
м2/с. Принимаем масло авиационное МС-20.
Тепловой расчет редуктора
Для проектируемого редуктора площадь теплоотводящей поверхности А=0, 25 м2(
здесь учитывалась площадь днища).
По формуле (10.1[1]) условие работы редуктора без перегрева при
продолжительной работе
Считаем,
что обеспечивается достаточно хорошая циркуляция воздуха, и принимаем
коэффициент теплопередачи kt=17
Выбор муфт
Для соединения быстроходного вала с валом двигателя принимаем муфту УВП
по ГОСТ 21424-75, передающую номинальный крутящий момент Т=31, 5 Нм с
расточками полумуфт под диаметр d=22
мм и длиной L=104 мм и под диаметр d=22 мм и длиной L=104 мм.
Сборка редуктора
Перед сборкой внутреннюю полость корпуса тщательно очищают и покрывают
маслостойкой нитроэмалью НЦ-5123 по ГОСТ 7462-73. Начинают с того, что на
быстроходный вал надевают радиально шариковые подшипники, предварительно нагрев
их в масле до 80-1000С. Собранный вал вставляют в корпус.
В начале сборки вала конического колеса закладывают шпонку и
напрессовывают колесо до упора в бурт вала; затем надевают распорную втулку и
устанавливают конические роликовые подшипники, нагретые в масле. Собранный вал
укладывают в основании корпуса и надевают крышку корпуса, покрывая
предварительно поверхности стыка фланцев тонким слоем бакелитового лака и
герметиком. Для центровки крышку устанавливают на корпусе с помощью двух
конических штифтов и затягивают болты.
Закладывают в подшипниковые сквозные крышки резиновые манжеты и
устанавливают крышки с прокладками.
Регулировку подшипников производят набором тонких металлических
прокладок, устанавливаемых под фланцы крышек подшипников.
Для регулировки червячного зацепления необходимо весь комплект вала с
червячным колесом смещать в осевом направлении до совпадения средней плоскости
колеса с осью червяка. Этого добиваются переносом части прокладок с одной
стороны корпуса на другую. Чтобы при этом сохранилась регулировка подшипников,
суммарная толщина набора прокладок должна оставаться без изменения.
Ввертывают пробку маслоспускного отверстия с прокладкой и маслоуказатель.
Заливают в редуктор масло и закрывают смотровое отверстие крышкой с отдушиной.
Собранный редуктор испытывают на стенде.
Заключение
В процессе курсового проектирования были определены расчетным путем
основных параметров привода конвейера. Согласно этому расчету подобран
асинхронный электродвигатель, производимый российскими машиностроительными
заводами. Определены параметры зубчатых колес редуктора привода исходя из
условия прочности зубьев колес на контактную напряженность и на выносливость по
напряжениям изгиба. Расчеты показывают, что условие прочности выполнено.
Проведены расчеты размеров диаметров четырех ступеней ведущего и ведомого
валов и подобраны шпонки для крепления на валах муфт и зубчатого колеса.
Расчеты показали, что прочность шпоночных соединений обеспечена. Затем проведен
уточненный расчет валов на основе определения коэффициента запаса прочности для
опасных сечений.
Подобраны подшипники качения и проведенная проверка показала, что
расчетная долговечность подшипников, больше установленных ГОСТ.
Затем вычерчен редуктор в двух проекциях на листе формата А1, и на двух
листах формата А3 ведомый вал и зубчатое колесо.
В конце пояснительной записки приведено описания метода смазывания
зубчатого зацепления и подшипников, а также описан метод сборки редуктора.
Список использованных источников
1. Ермеев
В.К., Горнов Ю.Н. Детали машин и основы конструирования курсовое проектирование:
Учебное пособие издательство Иркутского государственного технического
университета 2011. - 158 с.
. Шейнблит
А.Е. Курсовое проектирование деталей машин: Учебное пособие для техникумов. -
М.: Высшая школа, 1991. - 432 с.: ил.
. Иванов
М.Н. Детали машин: учебник для машиностроительных специальностей вузов. 8-е
изд., доп. и перераб. М.: Высш. шк.2003. 408 с.: ил.