|
Диаметр приводного колеса, мм
|
Скорость движения рейки v, м/с
|
Сила сопротивления движению, кН
|
Долговечность, Lh, часов
|
|
250
|
0,13
|
18
|
15000
|
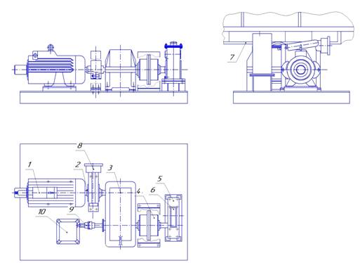
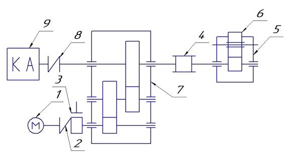
Рисунок 2.2 Схема привода: 1 - электродвигатель; 2 - муфта
МУВП; 3 - тормоз ТКП-200; 4 - муфта зубчатая; 5 - редуктор нестандартный; 6 -
приводное колесо; 7 - редуктор стандартный; 8 - муфта кулачковая; 9 -
командоаппарат
2.1.3 Энергокинематический расчёт привода
Определяем КПД привода [8]:
η = ηм.2 × ηп. п.5 × ηзуб.2 × ηзуб.откр. (2.1)
где ηм - КПД муфты, ηм = 0,98…0,99;
ηп. п. - КПД пары подшипников, ηп. п. = 0,99…0,995;
ηзуб - КПД зубчатой передачи,
ηзуб = 0,96…0,98;
ηзуб.откр - КПД зубчатой открытой
передачи, ηзуб.откр = 0,92…0,95
η = 0,982 × 0,995 × 0,962 × 0,92 = 0,774
Требуемая мощность приводного электродвигателя определяется
по формуле:
N э.д. = N/ η, кВт (2.2)
где N - это мощность на приводном валу, кВт.
Определяем полезную мощность [8]:
N вых. = F × ν, кВт (2.3)
N вых. = 18 × 0,13 = 2,34 кВт,
N э.д. = 2,34 / 0,774 = 3,0 кВт ,
, об/мин (2.4)
nвых=60×1000×0,13/3,14×250=9,94
об/мин
Выбираем электродвигатель марки ДМТКН 111-6 с мощностью N э.д. = 3
кВт, при частоте вращения двигателя nэ.д.
= 910 об/мин. Общее
передаточное число привода определяем по формуле:
= nэ.д. / n (2.5)= 910 /
9,94 = 91,5
Передаточное число стандартного редуктора принимаем Uред
= 50; Передаточное число нестандартного редуктора
= U / Uред. (2.6)= 91,5 / 50 = 1,83
Частота вращения первого вала будет равна частоте вращения вала
электродвигателя.
n1 = nэ.д. = 910 об./мин.
Частота вращения остальных валов определяем по формуле:
, об/мин (2.7)
где ni-1 - это частота вращения предыдущего вала, об./мин.;
Ui - это передаточное число данной ступени.
Тогда частота вращения второго вала:
n2 = 910/50
= 18,2 об/мин
Частота вращения третьего вала:
n3 =
18,2/1,83 = 9,95 об/мин
Крутящий момент на первом валу определяется по формуле:
, Нм (2.8)
где ω1 - это угловая скорость первого вала, с-1.
ω1= π × n1 /30, с-1 (2.9)
ω1= 3,14 × 910 /30
= 95,2 с-1,,
ω2= 3,14 × 18,2 /30
= 1,90 с-1,
ω3= 3,14 × 9,95 /30
= 1,04 с-1,
T1= 3 × 103 /95,2 = 31,5 Н×м
Крутящие моменты на остальных валах могут быть определены по
формулам:
T2= T1 × Uред × ηп.п.3 × ηзуб2 × ηм ,
T3= T2 × U × ηп.п.2 × ηзуб.откр. × ηм ,
T2= 31,5 × 50 × 0,993 × 0,962 × 0,98 = 1381 Н×м,
T3= 1381 × 1,83 × 0,992 × 0,92 × 0,98 = 2233 Н×м
2.1.4 Выбор стандартного
редуктора
Учитывая конструктивные особенности данного привода: габариты
привода, кратковременные перегрузки, выбираем двухступенчатый цилиндрический
редуктор.
Допускаемый момент на тихоходном валу редуктора, допускаемая
частота вращения быстроходного вала:
Мтих. =1381Нм
nб = 18,2 об/мин.
Учитывая, что допускаемый момент и допускаемая частота
вращения должны быть:
[М] ≥ Мтреб
[n] ≥ nфакт
Выбираем редуктор 2Ц-350-50-24Ц, у которого номинальный
момент на тихоходном валу равен Мном.=3150 Нм., передаточное число
редуктора Uред = 50, диаметры выходных концов валов:
быстроходный вал - 40 мм
тихоходный вал - 85 мм.
2.1.5 Расчёт нестандартного редуктора
1) Выбор материалов шестерни и колеса и термообработки
Для шестерни - Сталь 40Х, НRСср1 = 45… 55
Для колеса - Сталь 40Х, НВ = 230…260
) Определение основных параметров передачи
Межосевое расстояние определяется по формуле:
aw=Ka×(U+1)×T3×KHβ×103/([
]×U2×фа , мм
(2.10)
где
- это вспомогательный коэффициент,
= 49,5 ;
- это крутящий момент на третьем валу, Н∙мм ;
- это коэффициент концентрации нагрузки,
= 1 ;
- это
допускаемые контактные напряжения, Н/мм2 ;
- коэффициент ширины,
= 0,4.
Для углеродистых сталей с твёрдостью НВ < 350 и
термообработкой-улучшение, а также с HRC >
45 и термообработкой-улучшение + ТВЧ [8],
[σ]HO = 14 × НRС + 170
[σ]HO = 1,8 × НВ + 67
В качестве [σ] HO принимают допускаемое контактное напряжение того зубчатого колеса,
для которого оно меньше;
[σ]HO1 = 14 × 50 + 170
= 870 Н/мм2
[σ]HO2 = 1,8 × 245 + 67 = 508 Н/мм2
Допускаемое контактное напряжение:
[σН] = КНL × [σ]HO
[σ]H = 0,45 × ([ σ ]H1 + [σ]H2)
[σ1]H = 1,23 × [σ]H2
(2.11)
где NHO - это число циклов перемены напряжения,
соответствующее пределу выносливости. NHO = 25 млн. циклов;
N - число циклов перемены напряжения за весь срок службы.
N = 573 × ω
× Lh , млн (2.12)
N1 = 573 × 1,90 × 15000 = 16,3 млн. ,
N2 = 573 × 1,04 × 15000 = 8,94 млн. ,
,
,
[σ]H1 = 1,07 × 870 =
931 Н/мм2,
[σ]H2 = 1,19 × 508 =
605 Н/мм2,
[σ]H = 0,45 × (931 + 605) = 691 Н/мм2,
[σ1]H = 1,23 × 605 =
744 Н/мм2
Межосевое расстояние:
aw=49,5×(1,83+1)×2233×1×103/(691×1,83×0.4 , мм
Принимаем аw = 195
мм. Значение модуля m = (0,01 - 0,02) × 195 = 2 - 4 мм, но так как вал-шестерня
входит в зацепление с тихоходным колесом, а оно с приводной рейкой платформы,
то принимаем повышенный модуль из стандартного ряда:
m = 10 мм
Определим суммарное количество зубьев шестерни и колеса:
(2.13)
Определим число зубьев шестерни и колеса:
Z1=39/1,83+1=14
По округлённому значению числа зубьев уточним передаточное
отношение U и вычислим погрешность отклонения его от
допустимого (ΔU ≤ 4%);
(2.16)
Uред=25/14=1,79
Погрешность отклонения его от допустимого значения:
условие выполняется;
Определяем остальные геометрические параметры передачи:
делительные диаметры:
d1 = m × z1 , мм d2 = m × z2 , мм (2.17)
d1 = 10 × 14 = 140 мм.
d2 = 10 × 25 = 250 мм.
диаметры вершин зубьев:
da1 = d1 + 2 × m, мм da2 = d2 + 2 × m, мм
(2.18)
da1 = 140 + 2 × 10 = 160 мм.
da2 = 250 + 2 × 10 = 270 мм.
диаметры впадин зубьев:
df1 = d1 - 2,5 × m, мм df2 = d2 - 2,5 × m, мм
(2.19)
df1 = 140 - 2,5 × 10 = 115 мм.
df2 = 250 - 2,5 × 10 = 225 мм.
ширина колеса:
, мм (2.20)
b2=0,4х195=78
мм.
ширина шестерни:
b1 = b2
b1 = 78 мм.
3) Выполняем проверочный расчёт передачи на контактную
прочность.
Условие контактной прочности зубьев стальных зубчатых колёс
для прямозубых передач, может быть записано:
Н/мм2 (2.21)
Для включения коэффициента в формулу, следует произвести уточнение
значений.
Коэффициент Кнβ уточняем при помощи отношения:
b2/d1=78/140=0,557
Принимаем Кнβ = 1,1
Коэффициент динамичности уточним по фактической окружной скорости
колёс
и их степени изготовления:
(2.22)
Для прямозубых колёс при
< 3 м/с назначается 9 степень точности, при этом Кн
= 1; Кнα = 1,1.
Окружную силу определяем по формуле:
, Н (2.23)
,
=436×(17864×(1,79+1/(250×78)=703 , Н/мм
Перенапряжение:
=703- 691/691×100%=1,74 < 5%
условие выполняется.
) Производим проверочный расчёт передачи на изгиб
Расчёт выполним отдельно для шестерни и колеса.
Условие прочности:
Н/мм2 (2.24)
Н/мм2 (2.25)
где σF1, σF2 - фактическое напряжение изгиба для шестерни и колеса, Н/мм2;
YF1, YF2 - коэффициенты формы зуба для шестерни и колеса определяют по
таблице в зависимости от числа зубьев Z1, Z2 и
коэффициента смещения Х = 0, без смещения; принимаем YF1 = 4,28 и YF2 = 3,90
КFβ - коэффициент концентрации нагрузки при
НВ < 350 и
принимаем КFβ = 1,42;
[σ]FO = 1,03 ×НВ, Н/мм2 (2.26)
В качестве [σ]FO принимаем допускаемое контактное напряжение того зубчатого
колеса, для которого оно меньше
[σ]FO = 1,03 ×245 = 252,35 Н/мм2
Допускаемое контактное напряжение:
[σF] = КFL × [σ]FO, Н/мм2 (2.27)
где КFL -
коэффициент долговечности:
(2.28)
где NFO - число циклов перемены напряжения,
соответствующее пределу выносливости, NFO = 4 млн. циклов;
,
так как получили КFL
< 1, то принимаем КFL = 1
[σF] = 1 × 252,35 = 252,35 Н/мм2
Н/мм2 < [σF]
Н/мм2 < [σF]
условие выполняется.
) Определение усилий в зацеплении
Радиальная сила определяется:
Fr1 = Ft1 × tgα, Н
(2.29)
где α - угол зацепления, α = 200
Fr1 = 17864 × tg200 = 6502 Н
Осевая сила Fα1 = 0.
2.1.6 Ориентировочный расчёт и конструирование
приводного вала
Для изготовления детали выбираем конструкционную легированную
сталь 40X
по ГОСТ 4543-71. Такая сталь широко используется в машиностроении для
изготовления деталей зубчатых зацеплений и на показала высокие эксплуатационные
качества.
Определим диаметр вала:
, мм (2.30)
где Т - крутящий момент на валу, Н∙мм;
мм
диаметры валов под подшипники:
dП = d + 2t, мм (2.31)
dП = 65+ 2 ×3 = 71 мм
принимаем одинаковые подшипники dП = 75 мм
диаметры валов под буртик подшипника:
dБП = dП + 3,2r, мм (2.32)
dБП = 75 + 3,2 × 3.5 = 86.2 мм
принимаем dБП = 86 мм.
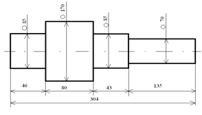
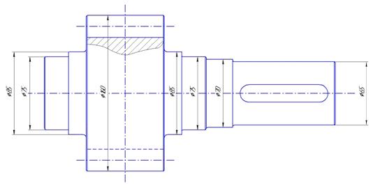
Эскиз приводного вала представлен на рисунке 2.3.
Рисунок 2.3 - Эскиз приводного вала
2.1.7 Предварительный выбор подшипников
Для приводного вала выбираем радиальные шарикоподшипники
лёгкой серии, со следующими характеристиками, представленными в таблице 2.2:
Таблица 2.2. Характеристики подшипников
|
№
|
d,мм
|
D, мм
|
В, мм
|
Сr, H
|
C0r, H
|
|
215
|
75
|
130
|
25
|
66300
|
41000
|
2.1.8 Проверочный расчёт подшипников
Подбор и проверка подшипников
Цель работы:
- Определить эквивалентную динамическую
нагрузку подшипников.
- Проверить подшипники по динамической
грузоподъемности.
- Определить расчетную долговечность
подшипников.
Исходными данными являются результаты, полученные в главе 6
ПЗ.
Т2 = 1381×103 - передаваемый момент;
Lh=15000ч -
долговечность (время работы под нагрузкой).
Номер используемого подшипника - радиальный шариковый
однорядный №215 ГОСТ 8338-75 (75х130х25мм);
Способ установки подшипника - враспор;
Материал изготовления вала - сталь 40Х;
Вид нагрузки - вибрация и толчки
Пригодность подшипников определяем сопоставлением расчетной
динамической грузоподьемности с базовой.
Определяем исходные данные для расчета [8]:
Коэффициент вращения при вращении внутреннего кольца
подшипника
;
Температурный коэффициент [8]:
;
Коэффициент безопасности [8]:
;
Статистическая грузоподъемность по справочным материалам для
подшипника 215 составляет
41 кН;
Базовая динамическая грузоподъемность по справочным материалам для
подшипника 215 составляет
66,3 кН;
Осевая сила в зацеплении
;
Осевая нагрузка на подшипник
Радиальная нагрузка подшипника, равная суммарной реакции
подшипниковой опоры:
, кН
Коэффициент радиальной нагрузки X=0,56 [8];
Определяем методом интерполирования коэффициенты Y=0,32, e=0,02
Определяем эквивалентную нагрузку:
, кН
1. Определяем динамическую грузоподъемность:
, кН (2.35)
(условие выполнено)
2. Определяем базовую долговечность:
(2.36)
(условие выполнено).
2.1.9 Уточненный расчёт
приводного вала
Уточненный расчет выполняем как проверочный для определения
коэффициента запаса усталостной прочности в опасных сечениях вала.
Опасными сечениями могут быть:
- пиковое значение изгибающих моментов
- наличие источников концентрации напряжений
(отверстия, пазы, галтели и т.д.).
Порядок уточненного расчета:
- Составляем расчетную схему приводного вала
нестандартного редуктора;
- Определяем реакции в опорах;
- Рассчитываем изгибающие моменты в
горизонтальной и вертикальной плоскостях, строим эпюры;
- Определяем коэффициент запаса прочности и
сравниваем его с заданным.
Эпюры изгибающих и крутящих моментов показаны на рисунке 2.4.
Рисунок 2.4. Расчетная схема
Очевидно, что опасным является место зубчатого зацепления, в
котором действуют все виды внутренних факторов, отсюда следует, что диаметр
опасного сечения равен 160мм.
Значения консольной силы:
Fм=250×
, Н (2.37)
Fм=250×
1381 , Н
Определение реакций в опорах
Вертикальная плоскость:
(2.38)
Горизонтальная плоскость:
, Н (2.39)
, Н (2.40)
Расчёт значений изгибающих моментов в вертикальной и
горизонтальной плоскостях, построение эпюр
Строим эпюры изгибающих моментов
Вертикальная плоскость:
,
МВ=RAZ×l1, Нм
(2.41)
МВ=3251×0,070=228 Нм
МС = 0
МD = 0
МA = 0
МВ=RAZ×l1, Нм (2.42)
МВ=13909×0,070=974 Нм
МC=FM×l3, Нм (2.43)
МC=4645×0,150=697 Нм
МD = 0
Построение эпюры крутящих моментов
Крутящий момент Т = 1381 Н×м будет действовать на
участке ВD.
Материал вала: Сталь 40X; σв = 790 МПа; σ-1 = 375 МПа; τ-1 = 220 МПа.
Определяем коэффициент запаса прочности:
(2.44)
где nσ-
коэффициент запаса прочности по нормальным напряжениям и nτ - коэффициент запаса прочности по
касательным напряжениям; [n] = 1,5…3;
(2.45)
(2.46)
где σa, τа - амплитудные напряжения цикла, МПа;
σm, τm - средние напряжения, МПа.
Влияние асимметрии цикла изменения τ обычно незначительно (ψτ = 0…0,05)
В расчёте валов принимается, что нормальные напряжения будут
изменяться по симметричному циклу, тогда можно записать:
σm = 0
, Нм (2.47)
где WO - осевой момент сопротивления сечения
вала, м3
, Нм (2.48)
, Нм (2.49)
В расчётах валов принимается, что касательные напряжения
изменяются по нулевому циклу, тогда можно записать:
(2.50)
где Wp - это полярный момент сопротивления сечения
вала, м3
τm = 0 - для вала нереверсивной передачи
, Нм (2.51)
(2.52)
Принимаем опасных сечениями точку B, как максимально
нагруженную, и точку С, как точку с наименьшим диаметром.
Находим осевой и полярный моменты сопротивления в опасных
сечения:
WoB = π×0,1153/32=149,2×10-6 м3
WoС = π×0,0753/32=41,4×10-6 м3
WoB = π×0,1153/16=298,4×10-6 м3
WoС = π×0,0753/16=82,8×10-6 м3
𝜎 aB = 𝜎 U = √2282+9742 / 149,2×10-6 = 6,8МПа
𝜎 aС = 𝜎 U = 697 / 41,4×10-6 = 16,8МПа
𝜏 aB = 𝜏U = 1381 / 298,4×10-6 = 4,6МПа
𝜏 aB = 𝜏U = 1381 / 82,8×10-6 = 16,7МПа
Пределы выносливости вала в данном сечении:
, Па (2.53)
, Па (2.54)
где σ-1, τ-1 - это пределы выносливости гладких образцов (при
симметричном цикле изгиба и кручения), Па;
(Кσ)D, (Кτ)D - коэффициенты концентрации напряжений для данного сечения вала.
(2.55)
(2.56)
где Кσ и Кτ - это эффективные коэффициенты
концентрации напряжений;Для ступенчатого перехода: Кσ = 2,15 (для σВ = 5 × 108
Па); Кτ =
2,1;
Кv - коэффициент влияния поверхностного
упрочнения, Кv = 1;
КF - коэффициент влияния шероховатости, КF = 1,05;
Кd - коэффициент влияния абсолютных размеров
поперечного сечения, Кd = 0,74
(для σ) и Кd = 0,65 (для τ).
,
,
МПа,
МПа,
n 𝜎B=126 / 6,8 = 18,5 ,
n 𝜏 B=126 / 4,6 = 27,4 ,
nB=18,5×27,4/√18,52×27,42=5,31 ,
n 𝜎С=126 / 16,8 = 7,5 ,
n 𝜏 С=126 / 16,7 = 4,01 ,
nС=7,5×4,01/√7,52×4,012=3,54
,54 ≥ [n] = 1,5…3;
Условие прочности для опасного сечения вала выполняется.
В других сечениях вала изгибающий момент и касательные
напряжения меньше, значит, в этих сечениях запас по прочности будет ещё больше
и их расчёт не представляет интереса.
2.1.10 Выбор муфты
Муфта упругая втулочно-пальцевая состоит из двух полумуфт,
закреплённых шпонкой на валу. Полумуфты соединяются пальцами, на которые надеты
упругие резиновые втулки. Такие муфты обеспечивают достаточную эластичность
передачи, просты в изготовлении, надёжны в работе, допускают небольшую несоосность
валов. Передача крутящего момента от полумуфты к полумуфте осуществляется через
пальцы, закреплённые в первой полумуфте. По ГОСТ 214254-93 подбираем муфту по
максимальному моменту на валу и по посадочному диаметру вала.
Муфта упругая втулочно-пальцевая рисунок 2.5, таблица 2.3:
Таблица 2.3. Характеристики муфты
|
№
|
Тmax
|
Wmax
|
d
|
lцил
|
Lцил
|
D
|
ΛΣ
|
jΣ
|
C
|
|
3
|
250 Нм
|
400 рад/с
|
65 мм
|
82 мм
|
169 мм
|
140 мм
|
0,3 мм
|
10
|
1,5 мм
|
Рисунок 2.5 - Муфта МУВП
В данной конструкции привода применена зубчатая муфта типа
МЗ.
Для зубчатых муфт максимальный момент Мк, который
муфта может передать и по которому муфта подбирается определяют по формуле:
Мк = k1 × k2 × Т,
где k1 - коэффициент безопасности, равный 1,2;
k2 - коэффициент условия работы муфты, равный 1.
Т - момент передаваемый муфтой.
Мк1 = k1 × k2 × Т = 1,2 × 1 × 1381 = 1657,2 Н∙мм
Исходя из полученных значений и диаметров валов подбираем муфту:
МЗ-7 ГОСТ Р 50895-96. [7] таблица 2.4:
Таблица 2.4. Подбор муфты
|
Обозначение муфты
|
d, мм
|
Мк, кгс м
|
n, об/мин
|
Масса, кг (не более)
|
|
МЗ-7
|
65
|
1900
|
2120
|
110
|
2.1.11 Подбор и расчёт
шпонок
В данном курсовом проекте проверяем шпонку под полумуфту на
смятие.
Сечение шпонки подбирается по известному диаметру вала из
соответствующего стандарта ГОСТ 23360-78 для шпонок призматических.
На напряжение смятия шпонка проверяется по формуле:
, МПа (2.57)
где Т - крутящий момент передаваемый посаженной деталью, Нм;
d - диаметр вала, мм;
h - ширина шпонки, мм;
l - рабочая длина шпонки, мм;
t1 -
глубина паза, мм;
[σсм] - предельные напряжения смятия, МПа.
Допустимые напряжения [σсм] находятся:
[σсм] = φ×[σсм]т , МПа (2.58)
где [σсм]т - допускаемое напряжение, [σсм]т = 160 МПа;
φ - понижающий коэффициент, для данного
вида нагружения φ = 0,8.
[σсм] = 0,8×160 = 128 МПа
Рассчитаем шпонку под полумуфту:
Т = 1381Нм; d = 65 мм.
Выбираем шпонку призматическую b = 18 мм; h = 11 мм; t1 = 7,0 мм; l = 90 мм.
МПа
МПа ≤ 128 МПа
Шпонка выбрана верно.
2.2 Разработка гидропривода механизма подачи
станка
Предметом для разработки является гидравлический привод
механизма подачи токарно-фрезерного станка. Привод работает по схеме:
Быстрый подвод (БП) - Рабочий ход (РХ) - Быстрый отвод (БО)
Способ регулирования скорости: объемный. Учесть в схеме
переключение с быстрого подвода на рабочий ход с помощью механической
настраиваемой линейки, через механически управляемый распределитель. Основные
характеристики привода:
Тип гидродвигателя - вращательного движения;
Осевое усилие - Rmax = 7000 Н;
Наибольшая линейная скорость - Vmax = 0,1 м/с;
Наибольшая скорость рабочего хода - Vрх.max = 0,08 м/с;
Параметры зубчатой реечной передачи:
Модуль mр = 1,5 мм;
Число зубьев Zр = 10.
2.2.1Расчёт и выбор
исполнительного гидродвигателя
1) Определение нагрузочных и скоростных
параметров гидродвигателя:
Решение этой задачи производиться на основании нагрузочных и
скоростных параметров привода, приведенных в задании.
Наибольшая угловая скорость гидродвигателя вращательного
движения:
, с-1 (2.59)
где
- передаточное отношение кинематической цепи
между
выходным звеном ГД и рабочим органом.
Передаточное отношение кинематической цепи:
, м/об (2.60)
где
- количество зубьев колеса;
- модуль зубчатой передачи, м.
м/об.
Для быстрых ходов:
рад/с.
Для рабочего хода:
рад/с.
Требуемый крутящий момент гидродвигателя:
, Н·м (2.61)
Н·м.
2) Определение геометрических параметров и
выбор гидродвигателя
Рабочий объем гидромотора определяется по формуле:
, м3, (2.62)
где
- требуемый крутящий момент гидродвигателя, Н·м;
- давление в напорной линии гидродвигателя, Па;
- противодавление в сливной линии гидродвигателя,
Па.
Принимаем стандартное давление в системе
МПа.
Противодавление в сливной линии гидродвигателя, согласно
рекомендаций [5], примем p2 = 0,5 МПа.
м3 (57 см3)
Исходя из полученных данных выбираем гидромотор типа Г15-24М
с объемом рабочей полости
см3. Основные характеристики данного
гидромотора представлены в таблице 2.5.
Таблица 2.5. Характеристики гидромотора
|
№ п/п
|
Параметр
|
Значение
|
|
1
|
Номинальное давление, МПа
|
6,3
|
|
2
|
Максимальное давление, МПа
|
16
|
|
3
|
Объемом рабочей полости, см3
|
80
|
|
4
|
Максимальный крутящий момент, Н·м
|
58,8
|
|
5
|
Число оборотов, мин-1:
|
|
|
- номинальное
|
960
|
Требуемое число оборотов гидродвигателя:
, мин-1 (2.63)
мин-1 < 960 мин-1.
Гидродвигатель удовлетворяет требованиям привода.
2.2.2 Составление
принципиальной схемы привода
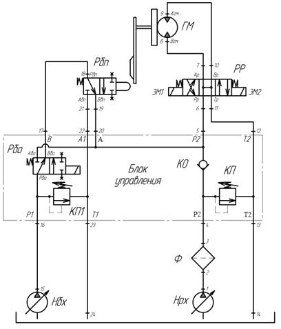
Гидравлическая схема представлена на рисунке 2.6. Гидравлическая
схема состоит из:
Нбх - насос быстрых ходов;
Нрх - насос рабочих ходов;
КП, КП1 - предохранительные клапана;
Ф - фильр;
КО - обратный клапан;
РР - основной реверсивный распределитель (схема №14);
Рбо - распределитель быстрого отвода (схема 573Е);
Рбп - распределитель быстрого подвода (схема 573Е);
ГМ - гидромотор.
|
Рисунок 2.6. Гидравлическая схема привода
|
Описание работы гидропривода.
Быстрый подвод (БП):
Пуск - вкл. ЭМ1. Гидрораспределитель РР переводится в левую
позицию. Схема потоков жидкости рисунок 2.7:
Рисунок 2.7. Схема потоков жидкости
Рабочий ход (РХ):
Золотник гидрораспределителя Рбп переводится в левое
положение.
Схема потоков жидкости рисунок 2.8:
Рисунок 2.8. Схема потоков жидкости
Быстрый отвод (БО):
Выключается электромагнит ЭМ1 гидрораспределителя РР и
включается ЭМ2. Электромагнит ЭМ3 переводит гидрораспределитель Рбо в левое
положение. Схема потоков жидкости рисунок 2.9:
Рисунок 2.9. Схема потоков жидкости
Положение «СТОП»:
Все электромагниты выключены. Распределитель РР находится в
нейтральном положении. Схема движения жидкости рисунок 2.10:
Рисунок 2.10. Схема потоков жидкости
2.2.3 Расчет и выбор
насосных установок
Требуемый расход жидкости для гидромотора [5]:
, м3/с (2.64)
где
- требуемая максимальная угловая скорость
гидромотора, с-1;
- стандартный объем выбранного гидромотора, м3.
Для быстрых ходов:
с-1
м3/с (10,2 л/мин)
Для рабочих ходов:
с-1
м3/с (8,2 л/мин)
Требуемое давление насоса с предварительным учетом потерь
давления в системе [5]:
, МПа (2.65)
МПа
На основании полученных значений из справочника [13] выбираем
модель регулируемого насоса для быстрых и рабочих ходов:
НПлР20/16Д УХЛ4 ТУ2-053-1826-87
НПл - насос пластинчатый;
Р - регулируемый;
- рабочий объем см3;
- номинальное давление, МПа;
Д - дистанционное управление объемом подачи;
УХЛ4 - климатическое исполнение.
Номинальная подача Qном = 24 л/мин (0,0004 м3/с)
Объём бака - 63 дм3;
Фильтр напорный Ф типа 1-16 ГОСТ 21329-75:
Выбираем насосную установку 2КС63.2Г.6.24.8,5;
- исполнение по высоте №2;
К - с кожухом;
С - тип насосной установки «С»;
- вместимость бака 63 л. ;
Г - горизонтальный с однопоточным насосом НПл;
- номинальное давление 6.3 Мпа;
- подача насоса(номинальная) составляет 24л/мин;
,5 - мощность эл. двигателя(номинальная) .
2.2.4 Выбор аппаратуры
Выбор гидроаппаратуры производится из справочной литературы
по величине расхода и рабочего давления. Выбираемые аппараты должны
соответствовать заданному способу монтажа, в данном случае модульном.
Фильтр напорный Ф типа 1-16 ГОСТ 21329-75:
номинальное давление
МПа,
номинальный расход
л/мин (
м3/с),
перепад давлений
МПа.
Гидрораспределитель РР типа ВЕ6.14.Г24 УХЛ4 ГОСТ 24679-81:
номинальное давление
МПа,
номинальный расход
л/мин (
м3/с),
перепад давлений
МПа,
В - золотникового типа,
Е - электрическое управление
- условный проход в мм,
- номер схемы по исполнению,
Г24 - напряжение управления 24В, ток постоянный,
УХЛ4 - климатическое исполнение.
Гидрораспределитель Рбп, типа ВМ6.574Е УХЛ4 ГОСТ 24679-81:
Номинальное давление
мпа,
Номинальный расход
л/мин (
м3/с),
Перепад давлений
мпа,
В - золотникового типа,
М - механическое управление
- условный проход в мм,
Е - номер схемы по исполнению,
УХЛ4 - климатическое исполнение.
Клапан предохран. КП, КП1 типа КПМ 6/3МР УХЛ4
ТУ2-053-1441-79
Номинальное давление
мпа,
Номинальный расход Qном = 28 л/мин (4,67 ∙10-4 м3/с),
Перепад давлений
мпа,
КПМ - клапан предохранительный,
- условный проход,
- номинальное давление 32 мпа,
М - модульный монтаж,
Р - клапан установлен в линии Р,
УХЛ4 - климатическое исполнение.
Клапан обратный КО КОМ 6/3МР УХЛ4 ТУ2-053-1400-78
Номинальное давление
мпа,
Номинальный расход Qном = 28 л/мин (4,67 ∙10-4 м3/с),
Перепад давлений
мпа,
Давления открытия
мпа,
КОМ - обратный клапан,
- условный проход,
- номинальное давление 32 МПа,
М - модульный монтаж,
Р - клапан установлен в линии Р,
УХЛ4 - климатическое исполнение.
2.2.5 Расчет и выбор
трубопроводов
Для нахождения диаметров трубопроводов зададимся скоростью
движения жидкости согласно рекомендуемым [13] в зависимости от давления в
гидросистеме:
- для напорной линии при Pн = 16 МПа uрек
= 4 м/с;
- для напорно-сливной и сливной линии uрек
= 2 м/с.
В качестве трубопроводов применяем стальные трубы ГОСТ
8734-75.
Внутренний диаметр участка трубы [5]:
, м (2.66)
где Q - максимальный расход рабочей жидкости через
трубу, м3/с;
uрек - рекомендуемая скорость
течения рабочей жидкости, м/с.
Толщину стенки участка трубы [5]:
, м (2.67)
где P - максимальное давление рабочей жидкости в
трубе, МПа;
[σ] - допускаемое
напряжение на растяжение для стали
σвр = 340 МПа;
kб - коэффициент запаса, kб
= 2…8.
При выборе сортамента труб руководствуемся рекомендуемыми
размерами для шаровых соединений по ГОСТ 20969-75 - ГОСТ 20987-75. Стальной
трубопровод приваривается к ниппелю, на который предварительно надевается
накидная гайка. При затяжке накидной гайки сферическая поверхность ниппеля
плотно прижимается к конической поверхности штуцера, обеспечивая герметичность
соединения.
Напорные трубопроводы 1-2, 3-4, 15-16:
м3/с;
МПа.
м (11,3 мм)
Выбираем трубу 16х2 ГОСТ 8734-75 [13].
Проверяем условие
:
мм - условие выполнено.
Проверяем условие
:
мм - условие выполнено.
Напорные трубопроводы 5-6, 17-18, 19-20, 21-22:
м3/с;
МПа.
м (7,8 мм)
Выбираем трубу 12х2 ГОСТ 8734-75 [13].
Проверяем условие
:
мм - условие выполнено.
Проверяем условие
:
мм - условие выполнено.
Напорно-сливные трубопроводы 7-8, 9-10:
м3/с;
МПа.
м (10,4 мм)
Выбираем трубу 16х2 ГОСТ 8734-75 [13].
мм - условие выполнено.
Проверяем условие
:
мм - условие выполнено.
Сливной трубопровд 11-12:
м3/с;
МПа.
м (10,4 мм)
Выбираем трубу 16х2 ГОСТ 8734-75 [13].
Проверяем условие
:
мм - условие выполнено.
Проверяем условие
:
мм - условие выполнено.
Сливные трубопроводы 13-14, 23-24:
м3/с;
МПа.
м (16 мм)
Выбираем трубу 22х2,5 ГОСТ 8734-75 [13].
Проверяем условие
:
мм - условие выполнено.
Проверяем условие
:
мм - условие выполнено.
2.2.6 Определение потерь
давления в аппаратах и трубопроводах
Определение потерь давления в аппаратах
При определении перепадов давлений исходят из расходов, на
которые рассчитана гидроаппаратура. Действительные перепады давлений отличаются
от справочных взятых предварительно для расчета. Поэтому необходимо уточнить их
значения.
Потери давления в аппаратах [5]:
,МПа (2.68)
где Δp0 -перепад давления
открывания или настройки аппарата,МПа;
A и B - коэффициенты аппроксимации экспериментальной
зависимости потерь давления от расхода через гидроаппарат;
, МПа · с/м3;
, МПа · с2 / м6
(2.69)
где Δp0 - перепад давления
открывания или настройки аппарата, МПа;
Δpном - потери давления при
номинальном расходе, МПа;
Qном - номинальный расход гидроаппарата,
МПа.
Определим потери давления в распределителях Рбо, Рбп, РР:
л/мин (0,000208 м3/с);
МПа;
МПа.
Коэффициенты аппроксимации:
Максимальный расход
м3/с.
МПа
Потери давления по длине трубопроводов представлены в таблице
2.11.
Таблица 2.11 - Потери давления по длине трубопроводов
|
Линия
|
Участок по схеме
|
Qmax, м3/с
|
dТi, м
|
Li, м
|
fТi, м2
|
ui, м/с
|
Rei
|
λi
|
ΔpТi,
|
|
Быстрый подвод БП
|
|
Напорная
|
15-16
|
0,000171
|
0,012
|
0,2
|
0,000113
|
1,51
|
362,9
|
0,1764
|
0,0031
|
|
17-18
|
0,000171
|
0,008
|
2,6
|
0,000050
|
3,40
|
544,3
|
0,1176
|
0,2012
|
|
19-20
|
0,000171
|
0,008
|
2,8
|
0,000050
|
3,40
|
544,3
|
0,1176
|
0,2167
|
|
5-6
|
0,000171
|
0,008
|
0,15
|
0,000050
|
3,40
|
544,3
|
0,1176
|
0,0116
|
|
10-9
|
0,000171
|
0,012
|
0,5
|
0,000113
|
1,51
|
362,9
|
0,1764
|
0,0076
|
|
Слив
|
8-7
|
0,000171
|
0,012
|
0,6
|
0,000113
|
1,51
|
362,9
|
0,1764
|
0,0092
|
|
11-12
|
0,000171
|
0,012
|
0,15
|
0,000113
|
1,51
|
362,9
|
0,1764
|
0,0023
|
|
13-14
|
0,000171
|
0,017
|
0,25
|
0,000227
|
0,75
|
256,1
|
0,2499
|
0,0009
|
Итого потери в гидроаппаратах:
Быстрый подвод БП (вращение влево):
- напорная линия
МПа;
- сливная линия
МПа.
Определение местных потерь давления
, МПа (2.70)
где ζj - коэффициент j-го
местного сопротивления;н - число местных сопротивлений;
Полный расчет местных потерь произведем для местного
сопротивления типа «резкое сужение» на участке 15-16:
- местное сопротивление - резкое сужение d0/d = 6 / 12 = 0,5
- количество местных сопротивлений n = 1;
- коэффициент местного сопротивления ζ = 0,49 [13];
Па (0,0082 МПа)
Остальные рассчитанные местные потери приведены в таблицу
2.12.
Таблица 2.12. Результаты расчетов местных потерь давления
|
Линия
|
Участок
|
Вид местного сопротивления
|
Параметры
|
Кол-во сопрот.
|
Qmaxj, м3/с
|
ζj
|
fмj, м2
|
ΔPмj, Мпа
|
|
Быстрый подвод БП
|
|
Напорная
|
15-16
|
Резкое сужение Ф12/Ф6 (вход в плиту)
|
d0/d=0,5
|
1
|
0,000171
|
0,49
|
0,000028
|
0,0082
|
|
16-17
|
Тройник Ф6
|
|
1
|
0,000171
|
0,1
|
0,000028
|
0,0050
|
|
17-18
|
Резкое расширение Ф6/Ф8 (выход из плиты)
|
d0/d=0,75
|
1
|
0,000171
|
0,74
|
0,000028
|
0,0123
|
|
17-18
|
Колено Ф8
|
90 град.
|
2
|
0,000171
|
1,2
|
0,000050
|
0,0126
|
|
17-18
|
Резкое сужение Ф8/Ф6 (Рбп)
|
d0/d=0,75
|
1
|
0,000171
|
0,28
|
0,000028
|
0,0047
|
|
19-20
|
Резкое расширение Ф6/Ф8 (Рбп)
|
d0/d=0,75
|
1
|
0,000171
|
0,74
|
0,000028
|
0,0123
|
|
Линия
|
Участок
|
Вид местного сопротивления
|
Параметры
|
Кол-во сопрот.
|
Qmaxj, м3/с
|
ζj
|
fмj, м2
|
ΔPмj, Мпа
|
|
19-20
|
Резкое сужение Ф8/Ф6 (вход в плиту)
|
d0/d=0,75
|
1
|
0,000171
|
0,28
|
0,000028
|
0,0047
|
|
20-5
|
Тройник Ф6
|
|
1
|
0,000171
|
1,5
|
0,000028
|
0,0017
|
|
20-5
|
Колено Ф6
|
90 град.
|
1
|
0,000171
|
1,2
|
0,000028
|
0,0200
|
|
20-5
|
Тройник Ф6
|
|
1
|
0,000171
|
0,5
|
0,000028
|
0,0150
|
|
5-6
|
Резкое расширение Ф6/Ф8 (выход из плиты)
|
d0/d=0,75
|
1
|
0,000171
|
0,74
|
0,000028
|
0,0123
|
|
5-6
|
Резкое сужение Ф8/Ф6 (РР)
|
d0/d=0,75
|
1
|
0,000171
|
0,28
|
0,000028
|
0,0047
|
|
10-9
|
Резкое расширение Ф6/Ф12 (РР)
|
d0/d=0,5
|
1
|
0,000171
|
1,44
|
0,000028
|
0,0240
|
|
10-9
|
Колено Ф12
|
90 град.
|
2
|
0,000171
|
1,2
|
0,000113
|
0,0025
|
|
10-9
|
Вход в емкость (вход в гидромотор)
|
|
1
|
0,000171
|
2
|
0,000113
|
0,0021
|
|
Сливная
|
8-7
|
Колено Ф12
|
90 град.
|
2
|
0,000171
|
1,2
|
0,000028
|
0,0399
|
|
8-7
|
Резкое сужение Ф12/Ф6 (РР)
|
d0/d=0,5
|
1
|
0,000171
|
0,49
|
0,000028
|
0,0082
|
|
11-12
|
Резкое расширение Ф6/Ф12 (РР)
|
d0/d=0,5
|
1
|
0,000171
|
1,44
|
0,000028
|
0,0240
|
|
11-12
|
Колено Ф12
|
90 град.
|
2
|
0,000171
|
1,2
|
0,000113
|
0,0025
|
|
12-13
|
Тройник Ф6
|
|
1
|
0,000171
|
0,9
|
0,000028
|
0,0150
|
|
13-14
|
Резкое расширение Ф6/Ф17
|
d0/d=0,35
|
1
|
0,000171
|
1,86
|
0,000028
|
0,0310
|
- напорная линия
МПа;
- сливная линия
МПа.
2.2.7 Проверка насосной
установки
Общие суммарные потери давления приведены в таблице 2.13.
Таблица 2.13 - Общие суммарные потери в гидросистеме
|
Этап
|
Линии
|
DPГА, МПа
|
DPl, МПа
|
DPМ, МПа
|
åDp, МПа
|
|
Быстрый подвод БП
|
Напорная Сливная
|
0,472 0,157
|
0,4402 0,0124
|
0,1419 0,1205
|
1,0541 0,2899
|
Давление насосной установки должно обеспечивать требуемое
давление в гидросистеме с учетом потерь [5].
, МПа (2.71)
Максимальные потери в напорной линии
МПа.
Номинальное давление насосной установки
МПа.
МПа
Выбранная насосная установка удовлетворяет заданным условиям.
3. Технологическая часть
.1.1 Описание конструкции и назначения детали
Деталь «Вал - шестерня» представляет собой часть современной
высокоточной машины и требует при изготовлении соблюдения многих норм и правил
для обеспечения требуемого качества.
«Вал - шестерня» входит в состав механических передач и
предназначена для передачи крутящего момента. Деталь устанавливается на опорах
(подшипниках качения) и, в процессе работы, вращается вокруг своей оси.
Основной рабочей частью вала-шестерни является зубчатое эвольвентное зацепление
с прямыми зубьями. Число зубьев равно 14, модуль 10. Зубья шестерни испытывают
максимальные нагрузки при работе зацепления. Нагрузка подаётся на полумуфту,
которая устанавливается на поверхности диаметром 65 мм. Передача вращающего
момента от полумуфты на вал осуществляется через шпонку, установленную на этой
поверхности. Для этого выполнен шпоночный паз длиной 90 мм, шириной 18 мм и
глубиной 7 мм. Следовательно, конструкция детали и качество поверхностей,
полученное при изготовлении, должны обеспечить надёжную работу детали без
заедания и поломок. В связи со сказанным выше, наиболее ответственными
поверхностями на детали являются шейки диаметром 75 мм под установку
подшипников, посадочная поверхность под полумуфту и зубчатое зацепление. Для
изготовления детали выбрана конструкционная легированная сталь 40X по ГОСТ 4543-71. Данная
сталь широко применяется в машиностроении для изготовления деталей зубчатых
зацеплений и на практике показала высокие эксплуатационные качества. Расмотрим
таблицы 3.1 и 3.2:
Таблица 3.1 - Химический состав стали 40 х
|
С
|
Si
|
Mn
|
S
|
P
|
Ni
|
Cr
|
|
|
|
Не более
|
|
|
|
0,36 - 0,44
|
0,17- 0,37
|
0,2- 0,5
|
0,025
|
0,025
|
0.3
|
0,3-1,1
|
Таблица 3.2 - Механические свойства стали 40x
|
σ т МПа
|
σвр МПа
|
δ s %
|
Ψ %
|
Дж/см3
|
HB
|
|
не менее
|
|
|
|
800
|
1000
|
10
|
45
|
60
|
230…260
|
3.1.2 Технологический
контроль чертежа
Перед разработкой технологического процесса обработки детали
требуется произвести технологический контроль чертежа детали. В процессе
технологического контроля требуется проверить:
- принципиальную возможность изготовления детали;
- возможность достигнуть необходимых,
шероховатости и точности;
- возможность произвести контроль всех
параметров после изготовления;
- наличие требуемых технологических
поверхностей для
- установки, обработки и выхода инструмента.
Всё это нужно проверить по рабочему чертежу детали. Полное
представление о назначении и возможностях изготовления детали, а также о
необходимых: точности взаимного расположения поверхностей, точности формы
поверхностей и точности выполнения размеров должны быть определимы из чертежа
Оценивая чертёж по представленным выше параметрам можно
отметить:
- шероховатость после механообработки
указана для всех поверхностей;
- определены: материал и его качество;
- нет сомнений в возможности изготовления
детали и получения требуемых чертежом, точности и шероховатостей;
- также в стандартных пределах находится
отклонение формы и взаимных расположений поверхностей.
- не все размеры имеют указанные предельные
отклонения;
поэтому на чертеже дополнительно введём надпись в технические
условия:
Неуказанные предельные отклонения линейных размеров: охватывающих
по H14; охватываемых - по h14; остальных - в пределах
. Материал для изготовления детали соответствует всем требованиям,
предъявляемым по прочности. В связи с этим возможности для дальнейшего
упрощения отсутствуют.
При объёмах производства около 500 штук в год технология изготовления
разрабатывается для серийного производства
В серийных производствах число деталей партии для одновременного
запуска определяется формулой:
где N - это годовая программа выпуска,
а - это периодичность запуска,
тогда:
.
Таким образом, число деталей в партии принимаем 24 шт., т.е.
каждый месяц должно изготавливаться по 24 детали.
3.1.3 Анализ
технологичности конструкции изделия
Анализ производится способом поэлементного анализа
конструкции изделия, деталей изделия, его сборочных компонентов и материалов с
точки зрения возможности и целесообразности выполнения дискретных операций
ориентации в пространстве, а также во времени, подачи, базирования в рабочей
позиции, съёма и послеоперационной транспортировки. Предполагается, что при
этом выполнение основных технологических операций оправдано и обосновано.
Представленная деталь недостаточно технологична для
мелкосерийного производства потому, что потребует больших припусков при изготовлении
заготовок, что потребует довольно большого объёма обработки на станках и,
соответственно, деталь будет иметь высокую себестоимость. Уменьшать припуски
невозможно потому, что поковка для таких размеров детали, является наиболее
подходящей, (с использованиием проката припуск получится ещё больше), но
свободная ковка с применением подкладных штампов обеспечивает только такие
припуска.
Вывод: Для кардинального решения вопроса и создания
высокотехнологичной детали необходима полная конструкторская переработка всей
сборочной единицы с тем, чтобы уменьшить механическую обработку.
3.1.4 Обоснование выбора
заготовки. Расчёт объёма и массы
Для данной детали рассмотрим два способа получения заготовки:
- Заготовка из горячего проката по ГОСТ
2590-80,
- Заготовка-поковка методом свободной ковки
с применением подкладных штампов.
Для окончательного определения способа получения заготовки
рассчитаем чистовую массу детали и сравним её с массой заготовки по двум
вариантам. Чистовая масса детали определена чертежом - 17,4 кг.
Вариант 1 рассмотрим на рисунке 3.1:
Рисунок 3.1 - Эскиз заготовки из проката
При использовании заготовки из горячекатаного проката
наружный диаметр с учётом припуска принимаем 170 мм, длину 304 мм, тогда масса
заготовки:
, кг
где µ - плотность стали;
кг.
Вариант 2 рассмотрим на рисунке 3.2:
Рисунок 3.2 - Эскиз заготовки из поковки
Объём поковки определяем по формуле [10]:
где V1,V2,V3,V4 - объёмы отдельных частей заготовки, которые определяем по
формуле:
Массу заготовки определяем по формуле:
.
Стоимость изготовления заготовки методом свободной ковки:
руб
где Q - масса заготовки, - 22,3 кг
q - масса готовой детали - 17,4 кг
С - стоимость 1 т базовой заготовки, 515 руб./т
Коэффициенты, зависящие от:
kt - класса точности поковки, принимаем 1
для нормальной точности;
km - материала, для стали принимаем 1;
kc - класса точности, для 2 класса принимаем
0,84;
kb - массы, для веса от 20 до 40 кг
принимаем 1,5;
kn - объёма производства, для 2 группы
серийности принимаем 1;
Sотх - цена
отходов, принимаем 25руб./т или 0,025 руб./кг.
.
Стоимость изготовления заготовки из проката:
Sзаг = М + ∑Соз,
руб
где М - затраты на материал;
∑Соз - себестоимость отрезки заготовки;
Затраты на материал можно определить по формуле:
М = Q×S-(Q-q)×Sотх/1000 , руб
где Q - масса заготовки - 54,3 кг;
S - цена 1 кг заготовки - принимаем 400 руб./т или 0,4 руб./кг;
q - масса готовой детали - 17,4 кг;
Sотх - цена
отходов - принимаем 25 руб./т или 0,025 руб./кг.
М = 54,3×0,4-(54,3-17,4)
×0,025 =
20,8 руб
Себестоимость отрезки заготовки:
Соз = Спз× Тшт = 1,21×0,056 = 0,068 руб
где Спз - приведённые затраты для резки, принимаем
121 коп./час
Тшт - штучное время на резку проката, можно
рассчитать по формуле:
Т = 0,19L×103 , мин.
где L - длина реза, в мм.
Т = 0,19×(434×2+464×2) ×10-3 = 3,41 мин. = 0,056 часа.
Тогда, подставив значения в формулу (3.3) будем иметь
себестоимость изготовления заготовки:
Sзаг = М + ∑Соз = 20,8+0,068 = 20,86
руб.
Необходимо также учесть, что объём механической обработки для
варианта №2 будет в несколько раз больше. Следовательно, выбираем заготовку -
поковку.
3.1.5 Расчёт припусков на
обработку
Расчёты минимального припуска на механообработку выполняем для
поверхности детали - Ø75К6
, с шероховатостью Rа3,2.
Для получения выбранной точности и шероховатости по рекомендациям
[3] нужно четыре технологических перехода: черновое и чистовое точение,
предварительное и чистовое шлифование.
Расчёты проведём по формулам расчётно-аналитического метода для
определения припуска.
Припуск определим по формуле :
, мм (3.8)
где Rzi-1 - высота микронеровностей поверхности (на предыдущем
переходе);
Ti-1 - глубина дефектного слоя поверхности на предыдущем
переходе;
ρi-1 - сумма пространственных отклонений на предыдущем переходе;
ξy - погрешность установки заготовки на при
переходе.
На поверхности заготовки изготовленной штамповкой при массе от 2,5
до 25 килограмм:
Rzi-1 = 150; Ti-1 = 250;
после проведения черновой обработки лезвийным инструментом:
Rzi-1 = 100; Ti-1 = 100;
после проведения чистовой обработки лезвийным инструментом:
Rzi-1 = 30; Ti-1 = 30;
после проведения чернового шлифования:
Rzi-1 = 10; Ti-1 = 20;
после проведения чистового шлифования:
Rzi-1 = 5; Ti-1 = 10;
Чтобы олпределить пространственное отклонение заготовки
применяем следующую формулу [8]:
, мм
где ρкор - коробление поковки (равно кривизне стержня);
, мм
где ∆кр - это удельная кривизна стержня
(выбрается по табл. 13 с.186;
L - длина половины заготовки;
мм
где δ - допуск
на базовую поверхность при зацентровке;
Примем δ = 3 мм
(14 квалитет на диаметре 170 мм);
.
Заносим выбранные значения в формулу:
определяем значения пространственных отклонений после механической
обработки :
, мм
где ρост - остаточные пространственные отклонения после механической
обработки;
ρзаг - сумма значений пространственного отклонения заготовки;
(определённо будет выше = 1,63 мм)
Кy - коэффициент уточнения, выбираем по
таблице 3:
для операции чернового точения - 0,06;
для операции чистовой обработки - 0,04;
для операции шлифования - 0,02.
Подставим значения в формулу:
Погрешности установки заготовки на данном переходе рассчитываем по
формуле :
, мм
где ξy -
погрешности установки заготовки;
ξб - погрешности базирования;
ξз - погрешности закрепления.
Определим припуски в таблице 3.3:
Таблица 3.3 - Расчёт припусков на наружный размер вала-
шестерни - Ø75К6
|
Технол-е переходы обработки поверхностей
|
Элементы припуска, мкм
|
Расч-й припуск 2Zmin мкм
|
Расч-й Размер dp, мм
|
Доп-к δ мкм
|
Предельные размеры, мм
|
Предельные значения припусков, мкм
|
|
Rzi-1
|
Ti-1
|
ρi-1
|
ξy
|
|
|
|
dmin
|
dmax
|
Пр 2Zmin
|
Пр 2Zmах
|
|
Заготовка
|
150
|
250
|
1630
|
-
|
5762
|
80,882
|
620
|
80,882
|
81,502
|
5,593
|
6,3
|
|
Черновое точение
|
50
|
50
|
98
|
140
|
4072
|
76,64
|
170
|
76,64
|
76,81
|
4,072
|
4,6
|
|
Чистовое точение
|
30
|
30
|
65
|
140
|
742
|
75,848
|
50
|
75,848
|
75,898
|
0,724
|
0,7
|
|
Шлифование черновое
|
10
|
20
|
32
|
140
|
429
|
75,389
|
30
|
75,389
|
75,419
|
0,429
|
0,4
|
|
Шлифование чистовое
|
5
|
15
|
-
|
140
|
368
|
75,002
|
19
|
75,002
|
75,021
|
0,368
|
0,3
|
3.1.6 Разработка
технологического маршрута
В качестве заготовки применяем поковку методом свободной
ковки с использованием подкладных штампов. Этот метод создания заготовок
позволяет получить достаточно высокую производительность при относительном
приближении формы заготовки к форме детали. По принципу постоянства баз удобнее
на всех операциях иметь одну и туже базу, что позволит получать максимальную
точность.
Поэтому на первой операции проведём обработку чистовой базы-
центровых отверстий. Чтобы сократить время обработки проведём операцию на
фрезерно-центровальном полуавтомате. Этот станок обладает двумя позициями -
фрезерной и центровальной. Это позволит значительно увеличить производительность
обработки.
Для обработки зубьев применяем метод обката на обычном
зубофрезерном станке. Для обработки шпоночной канавки применим
вертикально-фрезерный станок. Это позволит получить высокую точность, исключая
ручную пригонку при сборке. Это важно в серийном производстве потому, что
дополнительные ручные работы при сборке дадут повышение себестоимости и
удлинение цикла изготовления.
Для придания высокой твёрдости наружной поверхности проведём
термическую обработку до твёрдости НВ 230…260.
После термообработки поверхности шлифуем до шероховатости
Rа = 3,2. Для шлифования применим серийный
круглошлифовальный станок.
3.1.7 Выбор оборудования
На фрезерно-центровальной операции выбираем серийный станок,
фрезерно-центровальный модели ЕМ 535М.
На токарной черновой и чистовой операциях применяем серийный
токарно-винторезный станок .
На зубофрезерной операции применяем станок зубофрезерный
вертикальный для цилиндрических колёс.
Для шлифовки наружных поверхностей применяем
круглошлифовальный станок 3М132.
На фрезерно-центровальной операции используются установочные
элементы станка (призмы), которые позволяют устанавливать заготовки во всём
диапазоне обрабатываемых размеров.
Для выполнения черновой токарной операции выбираем патрон
трёхкулачковый, самоцентрирующий, рычажный с пневматическим приводом зажима по
ГОСТ 16682-71[14].
Для базирования используем гладкие центра по ГОСТ 8742-82.
Для выполнения чистовой токарной операции используем
поводковый патрон по ГОСТ 2572 - 72 и гладкие центра по ГОСТ 8742-82.
На фрезерной операции применяем специальное приспособление
для установки детали на столе станка. Возможно использование сборки из
комплекта универсально-сборных приспособлений.
На зубофрезерной операции применяем для установки детали
гладкие центра по ГОСТ 8742-82.
На шлифовальной операции аналогично чистовой токарной -
поводковый патрон по ГОСТ 2572 - 72 и гладкие центра по ГОСТ 8742-82.
3.1.9 Выбор режущего
инструмента
Для выполнения фрезерно-центровальной операции применяем
следующий режущий инструмент: Фреза торцевая насадная со вставными ножами Ø200 T15K6 ГОСТ 9473-71, сверло
центровочное Р18 ГОСТ 14952-77
На токарных операциях (черновой и чистовой) применяем
инструмент:
- Резец упорный отогнутый правый Т15К10 ГОСТ
18870-73
- Резец проходной отогнутый правый Т30К4
ГОСТ 18870-73
- Резец прорезной специальный Т15К10 ГОСТ
18870-73
Для обработки на шлифовальной операции применяем круг
шлифовальный электрокорундовый на керамической связке Ø 300; Ширина Н=25 ГОСТ 19202-80. Марка ПП 300х25х127 - Э95-К-СМ1 -
по ГОСТ 4785-64. Заносим данные в таблицу 3.4
Таблица 3.4. Технологический процесс изготовления детали
|
Номер или обозначение
|
Наиниеменование и содержание операции
(установки, перехода)
|
Оборудование (наименование, модель, мощность,
особенности)
|
Приспособление, вспомог. инструмент.
|
инструмент
|
|
операции
|
установки
|
позиции
|
переход
|
|
|
|
Режущий материал, размер, количество)
|
|
1
|
2
|
3
|
4
|
5
|
6
|
7
|
8
|
|
000
|
|
|
1
|
Заготовительная Заготовка - поковка
|
|
|
|
|
005
|
|
|
|
Термическая нормализация
|
|
|
|
|
010
|
А
|
1 2
|
|
Фрезерно-центровальная Установить в призмах по
чёрной базе (Ø) Фрез. Однов. оба торца
заготовки, выдерж. размер 298±1 мм Сверлить одновр. два центровых отверстия;
глубина сверления10 мм Снять деталь со станка
|
Фрезерно-центровальный станок ЕМ535М (max (Ø)75, max L=1000); мощность 8,5/9,5 кВт
|
Установочные Призмы с пневматическим зажимом
|
Фреза торцевая насадная со вставными ножами Ø200 Т15К6 ГОСТ 9473-71 Сверло центровочное ГОСТ 14952-77
|
|
015
|
А Б
|
|
1 2 3 4 5 6 7
|
Токарная черновая Установить в центрах с базой
на центровые отверстия, закрепить в патроне Точить начерно пов. 1 Ø70 до Ø66 на длине L=105; Точить
начерно пов. 2 Ø75 до Ø71 на длине L=27; Точить начерно пов. 3 Ø80 до Ø76 на длине L=25; Точить
оконч. пов. 4 Ø90 в размер Ø85-0,5 на длине L=18-0,4; Точить начерно пов. 5 Ø165 до Ø161 на длине L=80;
Открепить, перевернуть деталь на 1800, установить в центрах, закрепить в
патроне Точить начерно пов. 6 Ø80 до Ø76 на длине L=25; Точить окончательно пов. 7 Ø90 в размер Ø85-0,5 на длине L=18-0,4;
Снять деталь со станка
|
Токарно-винторезный станок 16К20 (max (Ø)400, max L=1000); Мощность 10 кВт
|
Патрон трёхкулачковый пневматический, центра
гладкие
|
Резец упорный отогнутый правый Т15К10 ГОСТ
18870-73 Резец проходной отогнутый правый Т30К4 ГОСТ 18870-73 Резец подрезной
правый Т15К10
|
|
1
|
2
|
3
|
4
|
5
|
6
|
7
|
8
|
|
020
|
А
|
|
1 2 3 4
|
Токарная чистовая Установить в центрах с базой
на центровые отверстия Точить начисто пов. Ø66 до размера Ø65,5 на длине L=105; Подрезать фаску 1×45 на Ø66 Точить начисто пов. Ø71 до размера Ø70,5 на длине L=27; Точить
начисто Ø76 до размера Ø75,5 на длине L=25;
|
|
|
|
|
Б
|
|
6 7 8 9
|
Подрезать фаску 1×45 на Ø75,5 Точить начисто пов.5 Ø161 до Ø160,5 на длине L=80; Подрезать две фаски 1×45 на Ø160,5 Открепить, перевернуть
деталь на 1800, установить в центрах, закрепить в патроне Точить начисто Ø76 до размера Ø75,5 на длине L=25;
Подрезать фаску 1×45 на Ø75,5
|
Токарно-винторезный станок 16К20 (max (Ø)400, max L=1000); Мощность 10 кВт
|
Патрон пов. центра гладкие
|
Резец проходной отогнутый правый Т30К4 ГОСТ
18870-73 Резец упорный отогнутый правый Т15К10 ГОСТ 18870-73
|
|
025
|
А
|
|
1
|
Фрезерная Установить в специальное
приспособление с базой на центровые отверстия Фрезеровать шпоночный паз 18 на
длине L=90-0,87; Снять деталь со станка
|
Вертикально-фрезерный станок 6Р12
|
Специальное приспособление для установки детали
|
Фреза концевая шпоночная ВК-6 Ø18 ГОСТ 6396-88
|
|
030
|
А
|
1
|
|
Зубофрезерная Установить вертикально в центрах
с базой на центровые отверстия Фрезеровать зубья Z=14, m=10; Снять деталь со
станка
|
Зубофрезерный станок 5К32
|
Центра гладкие
|
Фреза червячная
|
|
035
|
А
|
|
|
Термическая Термообработка HRC38…43; h=2…3 мм
|
|
|
|
|
1
|
2
|
3
|
4
|
5
|
7
|
8
|
|
040
|
А
|
|
1 2 3 4
|
Круглошлифовальная Установить в центрах с базой
на центровые отверстия Шлифовать Ø65е8 L=105; Шлифовать Ø75К6 L=25; Шлифовать Ø70f8 L=27; Шлифовать Ø75К6 L=25; Снять деталь со станка
|
Круглошли- фовальный станок 3М132 мощность 7,5
кВт
|
Патрон поводковый центра гладкие
|
Круг шлифовальный электрокорундовый на
керамической связке Ø300 ширина Н=25 ГОСТ
19202-80
|
|
045
|
|
|
|
Контрольная
|
Стол контрольный
|
|
|
|
|
|
|
|
|
|
|
|
3.1.10 Нормирование
операций
Операция 010. Фрезерно-центровальная. Станок ЕМ535М.
Поз. 1. Фрезеровать одновременно оба торца заготовки,
выдерживая размер 298±1 мм
(3.14)
где l - длина обработки, равна 80 мм
l1 - длина
врезания, определяется по формуле 0,5(D-√D2-B2)+3 мм
l2 -
перебег, равен 5 мм.
S - подача, мм/зуб
D - диаметр фрезы - 200 мм
В - ширина фрезеруемой поверхности = 80 мм
Число оборотов фрезы:
, 1/мин
где V - скорость резания, м/мин
d - диаметр фрезы, мм
n = 1000×45/3,14×200 = 267,81 1/мин
принимаем n =270 1/мин
l1 = 0,5(D-√D2-B2)+3 мм = 0,5(200-√2002-802)+3
= 11,5 мм
Подставляем значения в формулу,
.
Поз.2. Сверлить одновременно 2 центровых отверстия диаметром 6,3
мм глубина сверления 10.
,
мм
Принимаем 2φ = 1180,
φ = 590
[11], ctgφ =
0,60086
.
принимаем скорость резания V = 30 м/мин [1]
принимаем 1500 1/мин
подача S = 0,1 мм/об
Подставляем значения в формулу,
мин
Вспомогательное и основное машинное время определены при
нормировании переходов:
Тм = 1,15+0,1 = 1,25,
Т всп = 0,44+0,1+0,12+0,12 = 0,78 мин
Штучное время:
Тшт = Тосн+Твсп(1+x/100) = 1,25+0,78×(1+1,1/100) = 2,04 мин
Число деталей в партии n=24 (было определено
выше)
Штучно-калькуляционное время:
мин
Операция 015. Токарная черновая. Станок 16К20
,(3.17)
где V - скорость резания, м/мин
d - диаметр обработки, мм
n = 1000×130/3,14×70 = 573,4 принимаем 600 1/мин
мин
Переход 2. Точить начерно пов. 2 Ø75 до Ø71 на длине L = 27;
.
Переход 3. Точить начерно пов. 3 Ø80 до Ø76 на длине L = 25;
.
Переход 4. Точить окончательно пов. 4 Ø90 в размер Ø85-0,5 на длине
L = 18-0,4;
.
Переход 5. Точить начерно пов. 5 Ø165 до Ø161 на длине L = 80;
, (3.18)
где l - длина обработки, равна L = 80 мм
l1 -
врезание резца, равно 4 мм. l2 - перебег резца, равно 5 мм.
i - число проходов, равно 1.
N = 1000×130/3,14×165 = 250
принимаем 250 1/мин (по станку)
Подставляем значения в формулу,
Установка Б. Открепить, повернуть деталь на 1800,
установить в центрах, закрепить в патроне - 0,3 мин
Переход 6 - аналогично переходу 3
Тм = 0,07 мин
Переход 7 - аналогично переходу 4
Тм = 0,05 мин.
Подготовительно-заключительное, штучное и штучно-калькуляционное
время.
Согласно рекомендации [13] подготовительно-заключительное время
при работе на станках с ЧПУ Тп. = 12 мин;
Вспомогательное и основное машинное время определены при
нормировании переходов:
Тм = 0,26+0,07+0,07+0,05+0,5+0,07+0,05 = 1,07
Твсп =
0,3+0,12+0,12+0,12+0,12+0,12+0,12+0,12+0,12+0,12+0,3+0,12+0,12+ +0,12+0,12 =
2,16 мин
Штучное время:
Тшт = Тосн+Твсп(1+x/100) = 1,07+2,16×(1+1,1/100) = 3,25 мин
Число деталей в партии n=24
(было определено выше)
Штучно калькуляционное время:
.
Операция 020. Токарная чистовая. Станок 16К20
Подрезать фаску 1×45 на Ø66
.
Время на отвод резца в исходное положение - 0,12 мин
Переход 2. Точить начисто пов. Ø71 до размера Ø70,5 на длине L = 27
Переход 3. Точить начисто Ø76 до размера Ø75,5 на длине L = 25,
Подрезать фаску 1×45 на Ø75,5;
Подрезка фаски:
Переход 4. Точить начисто пов. 5 Ø161 до Ø160,5 на длине L = 80;
Подрезать две фаски 1×45 на Ø160,5;
Подрезка фасок:
Установка Б. Открепить, повернуть деталь на 1800,
установить в центрах, закрепить в патроне
Переход 5. Аналогично переходу 3:
Подрезка фаски:
Вспомогательное и основное машинное время определены при
нормировании переходов:
Тм = 0,9+0,26+0,02+0,25+0,02+0,7+0,04+0,25+0,02 = 2,26
мин ,
Твсп = 0,3+0,12+0,12+0,12+0,12+0,12+0,12+0,12+0,12+0,3+0,12
= 1,68 мин,
Штучное время:
Тшт = Тосн+Твсп(1+х/100) =
2,26+1,68(1+1,1/100) ≈ 4 мин,
.
Операция 025. Фрезерная. Станок вертикально-фрезерный 6Р12
(3.19)
где l - длина шпоночной канавки, равна - 90 мм
D - диаметр фрезы - 18 мм;
S - продольная подача, мм/об;
h - глубина шпоночного паза - 7 мм
.
Вспомогательное и основное машинное время определены при
нормировании переходов:
Тм = 20,3 мин
Твсп = 0,64+0,48+0,48 = 1,6 мин
Штучное время:
Тшт = Тосн+Твсп(1+х/100) = 20,3+1,6×(1+1,1/100) = 21,92 мин
Штучно-калькуляционное время:
.
Операция 030. Зубофрезерная. Станок 5К32.
(3.20)
где l - длина нарезаемой части - 80 мм
l1 -
длина врезания, определяется по формуле:
,
где h - глубина впадины между зубьями (по
чертежу - 22 мм)
D - диаметр фрезы, принимаем 140 мм (по стандарту)
l2 -
длина перебега = 2 мм
SM - круговая подача на один оборот детали,
мм/об
np - число оборотов фрезы
Zp - число зубьев колеса.
q - число заходов фрезы - q=1
Режимы резания: Подача: SM=2мм/об [1]
Скорость резания: V=100 м/мин
[11].
,
где V - скорость резания, м/мин
d - диаметр фрезы, мм;
np=1000×100/3,14×140=227 принимаем 200 1/мин
Подставляем значения в формулу (3.6),
Вспомогательное и основное машинное время определены при
нормировании переходов:
ТМ=5 мин
Твсп=0,12+1,25+0,12=1,49 мин
Тшт=Тосн+Твсп(1+х/100)=5+1,49×(1+1,1/100)=6,5 мин
Число деталей в партии n=24
(было определено выше)
Штучно-калькуляционное время:
.
Операция 035. Термическая
Выполнить термическую обработку НВ 230…260;
Операция 040. Круглошлифовальная. Станок 3М132Ф2
Основное (машинное) время определяем по формуле:
(3.21)
где L - длина продольного хода стола, мм;
Sпр=0,75 Bk=0,75×25=18,75 мм [11]
Окружная скорость обрабатываемой детали 8,2 м/мин [11]
принимаем 50 1/мин (минимальное на станке)
,
,
,
Подготовительно-заключительное, штучное и штучно-калькуляционное
время
Подготовительно-заключительное время на операцию - Тп.з.=6,9 мин
[11]
Основное и вспомогательное время на шлифование:
Тм=0,17+0,03+0,03+0,03=0,26,
Твсп=0,72+0,12+0,12+0,12+0,12+0,12+0,12=1,44 мин
Штучное время:
Тшт=Тосн+Твсп(1+х/100)=0,26+1,44×(1+1,4/100)=1,72 мин.
Штучно-калькуляционное время:
.
Операция 045. Контрольная
Проверить наружные диаметры Ø75К6,
Проверить радиальное биение Ø66-0,06 относительно центральной оси
Провести комплексную проверку зубчатого зацепления на специальном
станке.
3.1.11 Расчёт силы и
мощности резания
Операция 010. Фрезерно-центровальная
Поз. 1. Фрезерование торцов.

(3.22)
, (3.23)
(3.24)
где v - скорость резания;
.
Таким образом, на фрезерной операции максимальная мощность
будет 0,57 кВт, что меньше мощности станка (10 кВт)
Поз.2. Центрование.
Крутящий момент на шпинделе станка: [14].
М=СмDqSy Нм ,
где См, q, y - коэффициенты, определяются по [14].
М=0,0345×6,32×0,10,8=11 Нм
Мощность резания [14].
(3.25)
Таким образом, на сверлильной операции максимальная мощность будет
0,27 кВт, что меньше мощности станка (10 кВт)
Операция 015. Токарная черновая
На токарной черновой максимальное усилие будет на переходе 4
(припуск 2,5мм)
Сила резания при точении может быть определена по формуле: см.
[14]
, Н
где Сp ,х, у, np - коэффициенты, определяются по [14].
Ср=300; хр=1,0; yp=0,75; np=-0,15;
(3.27)
где v - скорость резания;
.
Таким образом, на токарной черновой операции максимальная мощность
будет 7 кВт, что меньше мощности станка (10 кВт)
Операция 020. Токарная чистовая
Ср=300; хр=1,0; yp=0,75; np=-0,15;
.
Таким образом, на токарной черновой операции максимальная мощность
будет 2,1 кВт, что меньше мощности станка (10 кВт)
Операция 025. Фрезерная
Ср = 12,5; хр = 1,0; yp = 0,75; up = 1,0; wp = 0,2; qp = 0,73;
.
где Pz - сила резания
D - диаметр фрезы - 18 мм
.
.
Таким образом, на фрезерной операции максимальная мощность будет
3,2 кВт, что меньше мощности станка (10 кВт)
Операция 030. Зуборезная
N=CN×V×mx×Sy×Du×Zq×10-3×KN, кВт
N=124×100×101,7×20,9×140-1×140×-3×1=7,1 кВт
Таким образом, на зуборезной операции максимальная мощность будет
7,1 кВт, что меньше мощности станка (7,5 кВт)
Операция 040. Круглошлифовальная
Эффективная мощность N,
необходимая для шлифования определяется по формуле [16].
N=CN×Vr×tx×Sy×dq, кВт
где С, r, x, y, q - коэффициенты, определяемые по [16].
V - скорость вращения детали; равна 30 м/сек
t - глубина шлифования, 0,01 мм/дв.ход
S - продольная подача, 30 мм
d - обрабатываемый диаметр детали, 75 мм
Коэффициенты C=1,3; r=0,75; x=0,85; y=0,7; q=0,2
N=1,3×300,75×0,010,85×300,7×750,2=0,94 кВт
Таким образом, на круглошлифовальной операции максимальная
мощность будет 0,94 кВт, что меньше мощности станка (7,5 кВт). Время на
выполнение операций представлено в таблице 3.5:
Таблица 3.5. Время, затраченное на выполнение операций
|
Операция
|
Тп.з.
|
Тм
|
Твсп
|
Тшт
|
Тшт.кол.
|
|
мин
|
|
Фрезерно-центровальная
|
8,4
|
1,25
|
0,78
|
2,04
|
2,4
|
|
Токарная черновая
|
12
|
1,07
|
2,16
|
3,25
|
3,77
|
|
Токарная чистовая
|
12
|
2,26
|
1,68
|
4
|
4,5
|
|
Фрезерная
|
8,4
|
20,3
|
1,6
|
21,92
|
22,27
|
|
Зубофрезерная
|
18,1
|
5
|
1,49
|
6,5
|
7,3
|
|
Круглошлифовальная
|
6,9
|
0,26
|
1,44
|
1,72
|
2
|
3.1.12
Технико-экономическое обоснование спроектированного процесса
Коэффициент использования материала заготовки:
Тогда γ=17,4/23,3=0,78
В процентах - 78%
Трудоёмкость годовой программы
Можно определить по формуле:
Т=∑Тшт×N, мин
где ∑Тшт - сумма штучного времени обработки;
N - годовая программа выпуска
∑Тшт=2,4+3,25+4+21,92+6,5+1,72=39,8 мин
Т=39,8×500=19895 мин=331,6 час
Коэффициенты использования оборудования по времени:
Сумма основного времени:
∑То=1,25+2,16+2,26+20,3+5+0,4=31,37 мин
∑Тшт-кал=2,4+3,77+4,5+22,27+7,3+2,0=42,24 мин
По формулам:
Кобор=31,37/42,24=0,74
Кобор=31,37/39,8=0,79
Коэффициенты использования оборудования по мощности
где Nрасчёт. - расчётная мощность резания;
Nст -
мощность станка
Операция 015. Фрезерно-центровальная
На фрезерной позиции
На сверлильной позиции
Операция 020. Токарная черновая
Операция 030. Токарная чистовая
Операция 040. Фрезерная
Операция 030. Зубофрезерная
Операция 040. Круглошлифовальная
Данный технологический процесс построен с использованием
универсального оборудования, приспособлений, инструментов. Это позволило
снизить затраты и уменьшить цикл подготовки производства. В серийном
производстве все затраты связанные с изготовление и подготовкой специального
оборудования, приспособлений, инструментов и т.п. окупаются существенным
повышением производительности труда.
Технико-экономический анализ показывает, что разработанный
технологический процесс соответствует основным требованиям, предъявляемым к
инженерным технологическим разработкам. Коэффициент использования материала
заготовки находится на достаточно высоком уровне для серийного производства.
Это говорит о том, выбранная заготовка приближена по конфигурации к конечной
детали и механическая обработка заготовки будет минимальной. Также на высоком
уровне находятся коэффициенты использования оборудования по времени. Для
серийного производства это хорошие показатели, что говорит о высокой степени
применения станков с ЧПУ, снижающих долю вспомогательного и
подготовительно-заключительного времени.
Вместе с тем, загрузка станков по мощности находится на низком
уровне. Это связано с использованием серийных универсальных станков, которые
крайне сложно подобрать точно по мощности. В реальном серийном производстве
этот коэффициент, как правило, ещё ниже, потому что используют только те
станки, которые фактически имеются в производстве.
3.2 Расчёт и проектирование чечервячной фрезы
.2.1 Описание видов и конструкций червячных фрез
Червячные фрезы применяют для черновой и чистовой обработки
цилиндрических зубчатых колёс наружного зацепления с прямыми, косыми, винтовыми
и шевронными зубьями, червячных колёс и колёс внутреннего зацепления.
Конструктивно, по способу крепления, фрезы могут быть
концевые и насадные. Последние устанавливаются при обработке на оправках.
Зуборезные фрезы изготавливаются цельными или сборными, т.е. фреза может быть
представлена в виде совокупности закреплённых на цилиндрической поверхности
гребёнок, либо в виде червяка, витки которого превращены в зубья, путём
прорезания поперечных канавок так, что образуются, передние углы γ и затылованием зубьев для получения задних углов α.
По типу основного червяка фрезы могут быть звольвентные,
конволютные и архимедовы.
Червячные фрезы по ГОСТ 9324-80 изготавливаются трёх типов и
пяти классов точности.
Классы точности (по мере убывания точности) - ААА, АА, А, В,
С
Предварительную обработку выполняют черновыми червячными
фрезами, у которых передний угол γ = 5…70, а
толщина зуба меньше, чем у чистовых на величину припуска. Окончательную
обработку осуществляют чистовыми фрезами с γ = 0 и размерами по ГОСТ
9324-80Е.
3.2.2 Расчет исходных геометрических параметров
Для расчета фрезы необходимы геометрические параметры
обрабатываемых колес:
Торцовый модуль :
, см (3.35)
при β = 0; mt = mn1 = 10 мм;
Делительный диаметр шестерни:
d1 = mt×z1, мм (3.36)
d1 = 10×14 = 140 мм
Диаметр окружности выступов шестерни:
dа1 = d1+2mn1 , мм (3.37)
dа1 = 140+2×10 = 160 мм
Диаметр окружности впадин шестерни:
df1 = 140-2,4×10
= 116 мм
Профильный угол в торцевом сечении:
, 0 (3.39)
при β1 = 0; α t1 = α n1 =
Радиус основного цилиндра:
, мм (3.40)
мм
Толщина зуба шестерни в сечении, нормальном к винтовой линии на
делительном цилиндре (задана на чертеже):
, мм (3.41)
мм
Высота зуба шестерни:
h = 2,2×m, мм (3.42)
h = 2,2×10 = 22
мм
Высота головки и ножки зуба шестерни:
h’ = m, мм (3.43)
h’ = 10 мм
h” = 1,2m , мм (3.44)
h” = 1,2×10 = 12
мм
3.2.3 Основные
конструктивные и расчётные размеры фрезы
1) Выбор угла профиля и числа заходов фрезы
Модуль фрезы mn0 принимаем равным модулю нарезаемой шестерни mn1. Угол профиля фрезы αn0 принимаем равным углу профиля нарезаемой
шестерни αn1:
αn0 = αn1 = 200
Число заходов фрезы определено заданием и равно:
Z10 = 2
В связи с тем, что двухзаходные фрезы дают значительную
погрешность, их применяют только в качестве черновых (для предварительной
обработки). Следовательно, будем проектировать черновую фрезу.
) Определение конструктивных размеров фрезы
Предварительно наружный диаметр, диаметр внутреннего
отверстия и длину фрезы выбираем по ГОСТ 9324-80:
Deu = 160 мм
dBH = 50 мм
L = 200 мм
Буртик принимаем шириной 5 мм.
Расчётное число зубьев для чистовой фрезы см. [11]:
(3.45)
(3.46)
Для черновых фрез число зубьев принимается несколько меньше - по
рекомендациям [5]:
3.2.4 Расчёт размеров зубьев фрезы
Нормальный шаг зубьев фрезы:
, мм (3.47)
Рn0 = Рn1 = 3,1416×10 = 31,416 мм
Ход зубьев по нормали:
, мм (3.48)
Рzn = 31,416 × 2 = 62,832 мм
Расчётная толщина зуба по нормали:
, мм (3.49)
Su = 31,416 - (15,7+0,26) = 15,456 мм
Расчётная высота головки зуба фрезы:
мм
Для черновой фрезы необходимо добавить
,
где с - радиальный зазор,
с = 0,2×m, мм (3.50)
с = 0,2×10 = 2 мм
мм
Высота ножки зуба:
, мм (3.51)
мм
Высота зуба фрезы:
, мм (3.52)
мм
Радиус закруглений на головке и ножке зуба:
, мм (3.53)
мм
Падение затылка (затылование) К [4]:
Для Deu = 160 К = 7 мм
Определение расчетных размеров фрезы:
Задний угол при вершине принимаем; αВ = 100
Передний угол принимаем; γ = 0
Диаметр начальной окружности для фрез с нешлифованным профилем:
, мм (3.54)
мм
Угол подъёма витков фрезы на начальной окружности [4]::
(3.55)
γm0 = 8.7700 = 8046’
где a = 2 - число заходов фрезы;
Шаг по оси между двумя витками:
, мм (3.56)
мм
Ход витков фрезы:
, мм (3.57)
мм
Угол наклона стружечных канавок принимаем равным углу подъёма
витков:
λm0 = γm0
Тогда шаг стружечных канавок:
, мм (3.58)
мм
Диаметр посадочного отверстия для чистовых однозаходных фрез
общего назначения может быть подсчитан по формуле:
d0= 14,21×h0.373 = 45,0 мм
Для двухзаходных фрез следует увеличить на одну ступень по
нормальному ряду для повышения прочности и жёсткости оправки, следовательно
окончательно принимаем:
d0 = 50,0
мм
Диаметр окружности впадин должен быть не менее:
, мм (3.59)
мм
Проверяем наружный диаметр по формуле:
, мм (3.60)
мм
≥ 137,5
Условие выполняется.
Радиус закругления дна стружечной канавки принимаем:
мм
Шпоночный паз принимаем по ГОСТ 23360-78: ( для диаметра 50-
паз 14×9 ).
Для облегчения посадки фрезы на оправку в нём делают выточку
глубиной 1 мм и длиной 60 мм.
Диаметр проточки в отверстии:
, мм (3.61)
мм
Глубина стружечной канавки:
(3.62)
мм
3.2.5 Выбор станка
Скорость резания, м/мин.- определяем по [3]:
, м/мин (3.63)
Подставляем значения в формулу:
м/мин
Число оборотов фрезы:
, об/мин (3.64)
об/мин
, кВт (3.65)
CN = 175, YN = 0,9,
XN = 1,0, UN = 1,1, qN = 0
Подставляем значения в формулу:
кВт
По полученным данным подбираем зубофрезерный станок модели 53А80Н
Характеристики станка представлены в таблице 3.6:
Таблица 3.6. Технические характеристики
|
Технические характеристики
|
|
Параметр
|
Значение
|
|
Максимальный диаметр нарезаемых колёс, мм
|
800
|
|
Максимальный модуль нарезаемых зубьев, мм
|
10
|
|
Минимальное число нарезаемых зубьев
|
8
|
|
Диаметр стола, мм
|
630
|
|
Максимальный угол наклона зубьев нарезаемых
колёс, град
|
+/- 45
|
|
Расстояние между осями стола и фрезы, мм
|
80 - 500
|
|
Расстояние от плоскости стола до оси фрезы, мм
|
195 - 595
|
|
Максимальные размеры установленной червячной
фрезы, мм:
|
|
длина
|
200
|
|
диаметр
|
200
|
|
Максимальное вертикальное перемещение суппорта,
мм
|
400
|
|
Конус отверстия фрезерного суппорта (Морзе)
|
5
|
|
Максимальное осевое перемещение фрезы, мм
|
100
|
|
Частота вращения фрезерного шпинделя, об/мин
|
40 - 405
|
|
Подача, мм/мин:
|
|
вертикальная
|
0,75 - 7,5
|
|
радиальная
|
0,22 - 2,25
|
|
Мощность электродвигателя главного привода, кВт
|
8; 10; 12.5
|
|
Габаритные размеры станка, мм
|
|
|
длина
|
2897
|
|
ширина
|
1810
|
|
высота
|
2250
|
|
Масса станка, кг
|
11150
|
В данном пункте работы проведены необходимые расчёты и
выполнен чертёж червячной фрезы для обработки прямозубой некоррегированной
шестерни эвольвентного зацепления.
По полученным расчётным данным и с учётом размеров
обрабатываемой детали, произведён выбор зубофрезерного станка.
Как показывает анализ, спроектированный инструмент отвечает
основным требованиям, предъявляемым к инженерным технологическим разработкам.
Заключение
В данной работе был разработан проект модернизации платформы
машины подачи кислорода в конвертер №3.
Разработан редуктор, входящий в привод передвижения платформы
машины подачи кислорода №3, произведён расчёт зубчатой передачи, упругой
втулочно-пальцевой муфты, а также шпонки. Редуктор рассчитывался на
определенные технические характеристики, обеспечивающие надежную работу
агрегата. В ходе модернизации привода передвижения платформы была произведена
замена ходового винта с гайкой на более надежный и более упрощенный в
обслуживании привод с зубчатым колесом и рейкой.
Разработан гидропривод механизма подачи токарно-фрезерного
станка. Здесь произведены расчет и выбор гидродвигателя, насосной установки,
гидроаппаратуры и трубопроводов.
Так же разработана технология изготовления вал - шестерни с
применением фрезерно - центровального, токарно - винторезного, токарно -
фрезерного, зубофрезерного, круглошлифовального станков и термообработкой
детали. В ходе разработки были подобраны соответствующее оборудование и
приспособления. Была рассчитана норма времени на изготовление вал - шестерни,
выбрана наиболее подходящая технологичная заготовка, а также произведено
технико-экономическое обоснование.
Разработана червячная фреза. Фреза служит для снятия
определённого количества металла с заготовки вал - шестерни, методом нарезки
зубьев.
Список использованных источников
. Анурьев,
В.И. Справочник конструктора машиностроителя: учебник в 3т. Т1/ В.И. Анурьев.- М.: Машиностроение,
1992.- 816 с.
. Анурьев,
В.И. Справочник конструктора машиностроителя: учебник в 3т. Т2/ В.И. Анурьев. - М.: Машиностроение,
1992.- 632 с.
. Анурьев,
В.И. Справочник конструктора машиностроителя: учебник в 3т. Т3/ В.И. Анурьев. - М.: Машиностроение,
1992.- 540 с.
. Аршинов,
В.А. Резание металлов и режущий инструмент/ Г.А. Алексеев, В,А Аршинов. - М.: Машиностроение,
1979. -384
с.
. Гидропривод
и гидропневмоавтоматика станочного оборудования: Методические указания к
выполнению курсовой работы: Часть I. Статичекий расчет и конструирование
гидропривода / сост. В.Н. Колпаков. - Вологда: ВоПи, 1994. -357 с.
. Горошкин,
А.К. Приспособления для металлорежущих станков: Справочник / А.К. Горошкин. - М.: Машиностроение,
1971. -451
с.
. Детали
машин: Учеб. Для студентов вуза/ Под ред. М.Н. Иванов, В.А. Финегенова - 6-е
изд., перераб.- М: Высшая школа, 2000. - 383с.
. Дунаев,
П.Ф. Детали машин. Курсовое поектирование / П.Ф. Дунаев - М.: Высшая школа,
1984. - 335 с.
. Кован,
В.М. Расчёт припусков на обработку в машиностроении. Справочное пособие / В.М.
Кован. -
М.: Машгиз, 1953г. -341 с.
. Металлорежущее
оборудование 2000. Номенклатурный справочник - М.: ИКФ Каталог, 2000г. -114 с.
. Обработка
металлов резанием. Справочник технолога/ Под ред. Г.А. Монахова. - М.: Машиностроение,
1974. - 600 с.
. Руководство
к дипломному проектированию по технологии машиностроения, металлорежущим
станкам и инструментам / Под ред. Л.В. Худобина. - М.: Машиностроение,
1986г. -228 с.
. Свешников,
В.К., Усов А.А. Станочные гидроприводы, - М.: Машиностроение, 1988. - 510 с.
. Точность
обработки, заготовки и припуски в машиностроении. Справочник технолога/ Под
ред. Косиловой А.Г., Мещерякова Р.К. и Калинина М.А. - М.: Машиностроение,
1976. -431
с.
. Чернавский,
С.А. Проектирование механических передач, / учебно-справочное пособие для
вузов, -
М.: Машиностроение, 1984. - 560 с.
. Чернилевский,
Д.В. Детали машин. Проектирование приводов технологического оборудования /
Учебное пособие для вузов. - М.: Машиностроение, 2001. - 560 с.