Стандартизация норм точности типовых изделий машиностроения

  • Вид работы:
    Курсовая работа (т)
  • Предмет:
    Другое
  • Язык:
    Русский
    ,
    Формат файла:
    MS Word
    500,42 Кб
  • Опубликовано:
    2017-09-16
Вы можете узнать стоимость помощи в написании студенческой работы.
Помощь в написании работы, которую точно примут!

Стандартизация норм точности типовых изделий машиностроения

Министерство сельского хозяйства РФ

Федеральное государственное бюджетное образовательное

учреждение высшего образования

«Чувашская государственная сельскохозяйственная академия»

Инженерный факультет

Кафедра Технический сервис







Курсовая работа

по дисциплине:

«Метрология, стандартизация и сертификация»

на тему:

Стандартизация норм точности типовых изделий машиностроения


Выполнил: студент 3 курса очного отделения инженерного факультета, (группа ЭТ-311, направление подготовки 23.03.03 - Эксплуатация транспортно-технологических машин и комплексов) Толмасов Д.Н.

Проверил: Лебедев В.Г

Чебоксары 2017

Содержание

цилиндрический гладкий шпоночный подшипник

Введение

Задание 1. Определение элементов гладкого цилиндрического соединения

Задание 2. Расчет и выбор посадок с зазором

Задание 3. Расчет и выбор посадок с натягом

Задание 4. Расчет и выбор посадок подшипников качения

Задание 5. Допуски и посадки шпоночных соединений

Задание 6. Расчет размерных цепей

Заключение

Список литературы

Введение

Курсовая работа представляет собой самостоятельную учебно-исследовательскую работу, обеспечивает закрепление знаний, полученных студентами на занятиях по дисциплине.

Основные цели и задачи курсовой работы:

• углубить и закрепить знания по дисциплине;

• развить навыки самостоятельной работы с научной и справочной литературой, нормативными документами;

• развить умение связывать теоретические положения с условиями современной практики.

Курсовая работа должна показать умение студента работать с литературой, делать самостоятельные выводы, анализировать и обобщать статистический и другие материалы, обосновывать собственную точку зрения по изучаемой проблеме, находить пути ее решения.

Задание 1. Определение элементов гладкого цилиндрического соединения

Цель работы: изучить основные термины и определения системы допусков и посадок ИСO, получить практические навыки определения элементов цилиндрического соединения т обозначения их на чертежах.

.1 Заданы: номинальный размер соединения 30 мм, класс допуска отверстия H7, класс допуска вала h6. Необходимо определить элементы посадки, шероховатость поверхностей, начертить схему расположения интервалов допуска деталей, эскизы деталей соединения.

Условное обозначение указанной посадки записывается следующим образом: 30  .

По таблице 1 ГОСТ 25346-2013 определяем значения стандартных допусков в интервале номинальных размеров свыше 18 до 30: допуск отверстия TD = 21 мкм; Td = 13 мкм.

По таблице 2 ГОСТ 25346-89 находим основное отклонение вала es = 0 и нижнее отклонение отверстия EI = 0;

= EI + TD = 0 + 21 = 21 мкм;

Нижнее предельное отклонение вала:

= es - Td = 0 - 13 = -13 мкм;

Предельные размеры деталей соединения:

 =  + EI = 30 + 0 =30,000 мм;

 = + ES = 30 + 0,021 = 30,021 мм;

= + ei = 30 + (-0,013)= 29,987 мм;

= + es = 30 + 0 = 30,000 мм;

Полное условное обозначение посадки:


Данная посадка является посадкой с нулевым зазором..

Предельные значения зазора в посадке:

= - =30,021 - 29,987 = 0,034 мм;

=  - = 30,000 - 30,000 = 0 мм.

Определяем допуск посадки:

= - = 0,034 - 0,000 = 0,034 мм;= Td + TD = 13 + 21 = 34 мкм.

Значения шероховатостей поверхностей деталей соединения для нормальной точности:

 0,05 ∙ TD = 0,05 ∙ 21 = 1,05 мкм;

 0,05 ∙ Td = 0,05 ∙ 13 = 0,65 мкм;

По таблице П5 принимаем стандартные числовые значения:

 = 1,0 мкм ; = 0,63 мкм.

Схема расположения полей допусков соединения приводится на рис. 1.1.

На сборочных и рабочих чертежах посадки и предельные отклонения деталей соединения указываются следующим образом (рис. 1.2):

Рис. 1.1 - Схема полей допусков соединения

Рис. 1.2 - Обозначение посадки и полей допусков деталей на чертежах

.2. Заданы: номинальный размер соединения 12 мм, класс допуска отверстия K8, класс допуска вала h7. Необходимо определить элементы посадки, шероховатость поверхностей, начертить схему расположения интервалов допуска деталей, эскизы деталей соединения.

Условное обозначение указанной посадки записывается следующим образом: 12  .

По таблице 1 ГОСТ 25346-2013 определяем значения стандартных допусков в интервале номинальных размеров свыше 18 до 30: допуск отверстия TD = 27 мкм; Td =18 мкм.

По таблице 2 ГОСТ 25346-89 найдем основное отклонение вала es = 0.

Нижнее предельное отклонение вала:

= es - Td = 0 - 18 = -18 мкм;

Определяем отклонения отверстия:

= -1 + ∆ = -1 + 9 = 8 мкм;= ES - TD = 8 - 27 = -19 мкм;

Предельные размеры деталей соединения:

 =  + EI = 12 + (-0,019) = 11,981 мм;

 = + ES = 12+ 0,008 = 12,008 мм;

= + ei = 12 + (-0,018)= 11,982 мм;

= + es = 12 + 0 = 12,000 мм;

Полное условное обозначение посадки:


Так как выполняется условие Dmin ≤ dmax ≤ Dmax , данная посадка является переходной.

Предельные значения зазора и натяга в посадке:

= - =12,008 - 11,982 = 0,026 мм;

= - =12,000 -11,981 = 0,019 мм.

Определяем допуск посадки:

TS = + = 0,026 + 0,019 = 0,045 мм;= Td + TD = 18 + 27 = 45 мкм.

Значения шероховатостей поверхностей деталей соединения для нормальной точности:

0,05 ∙ TD = 0,05 ∙ 27 = 1,35 мкм;

0,05 ∙ Td = 0,05 ∙ 18 = 0,90 мкм;

По таблице П5 принимаем стандартные числовые значения:

= 1,25 мкм ; = 0,80 мкм.

Чертим схему расположения полей допусков соединения (рис. 1.3) и эскизы соединения и деталей (рис. 1.4).

Рис. 1.3 - Схема полей допусков соединения

Рис 1.4 - Обозначение посадки и полей допусков деталей на чертежах

Задание 2. Расчет и выбор посадок с зазором

Цель работы: изучить методику и получить практические навыки выбора посадок с зазором расчетным методом.

Задание: назначить посадку для гладкого цилиндрического соединения для условий: номинальный размер соединения Ø80 мм; расчетные зазоры = 205 мкм; = 65 мкм; посадка задании в сиcтеме отверстия(сH).

Выбираем предварительно квалитет, по которому должны быть изготовлены детали соединения:

 =  = 70 мкм;

По таблице 1 ГОСТ 25346-2013 выбираем предварительные допуски деталей соединения: TD = 74 мкм; Td = 74 мкм, что свидетельствует девятому квалитету.

Шероховатости поверхностей деталей определяем по выражениям для нормального уровня точности (таблица П2 приложения):

= 0,2 ∙ TD = 0,2 ∙ 74 = 14,8 мкм;

= 0,2 ∙ Td = 0,2 ∙ 74 = 14,8 мкм.

Предельные технологические зазоры:

 - 1,4(+ ) = 205 - 1,4 (14,8 + 14,8) = 163,56 мкм;

= - 1,4( + ) = 65 - 1,4 (14,8 + 14,8) = 23,56 мкм.

Посадка задана в системе отверстия ( cH: EI = 0), поэтому по таблице 2 ГОСТ 25346-2013 выбираем основное отклонение вала es по условию:

 ≥= 23,56 мкм.

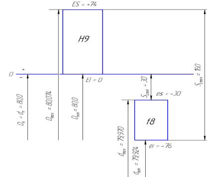
Этому условию соответствуют основное отклонение вала f , для которого = -30 мкм.

Возможная сумма допусков отверстия и вала:

+ Td ≤ - es = 163,56 - 30 = 133,56 мкм.

Принимаем допуск отверстия TD = 74 мкм (IT9) , допуск вала Td = 46 мкм (IT8).

Определяем значения вторых (не основных) предельных отклонений:

= EI + TD = 0 + 74 = +74 мкм;= es - Td = -30 - 46 = -76 мкм.

Предельные размеры деталей:

 =  + EI = 80 + 0 = 80,000 мм;

 = + ES = 80 + 0,074 = 80,074 мм;

= + ei = 80 + (-0,076) = 79,924 мм;

= + es = 80 + (-0,030) = 79,970 мм.

Предельные зазоры в сопряжении:

 =  - = 80,074 - 79,924 = 0,160 мм;

 =  - = 80,000 - 79,970 = 0,030 мм.

Условия посадки с зазором:

= 160 мкм <  = 163,56 мкм;

= 30 мкм >  = 23,56 мкм.

Условие выполняется, посадка выбрана верно.

Условное обозначение выбранной стандартной посадки:


Уточняем шероховатости поверхностей отверстия и вала:

0,05 ∙ TD = 0,05 ∙ 74 = 3,7 мкм;

 0,05 ∙ Td = 0,05 ∙ 46 = 2,3 мкм.

По таблице П5 приложения принимаем стандартные значения шероховатостей:

= 3,2 мкм; = 2,0 мкм.

Чертим схему расположения полей допусков соединения (рис. 2.1) и эскизы соединения и деталей (рис. 2.2).

Рис. 2.1 - Схема расположения допусков соединения

Рис 2.2 - Обозначение посадки и полей допусков деталей на чертежах

Задание 3. Расчет и выбор посадок с натягом

Цель работы: изучить методику и получить практические навыки выбора посадок с натягом расчетным методом.

Задание: назначить посадку для гладкого цилиндрического соединения для условий: номинальный размер соединения Ø130 мм; расчетные натяги: = 315 мкм;  = 140 мкм; посадка задана в системе вала (ch).

Определяем возможную сумму допусков отверстия и вала из условия:
+ Td ≤ -  = 315 - 140 = 175 мкм.

По таблице 1 ГОСТ 25346-2013 выбираем предварительные допуски деталей соединения: TD =100 мкм; Td =63 мкм, что свидетельствует 9-ому и 8-ому квалитетам.

Шероховатости поверхностей деталей:

= 0,2 ∙ TD = 0,2 ∙ 100 = 20 мкм;

= 0,2 ∙ Td = 0,2 ∙ 63 = 12,6 мкм.

Предельные технологические зазоры:

 - 1,4(+ ) = 315 - 1,4 (20 +12,6) =269,36 мкм;

= - 1,4( + ) = 140 - 1,4 (20 +12,6) =94,36 мкм.

Посадка задана в системе вала ( ch: es = 0), поэтому по таблице 3 ГОСТ 25346-2013 выбираем основное отклонение отверстия ES по условию:

 ≥ + Td = 94,36 + 63 = 157,36 мкм.

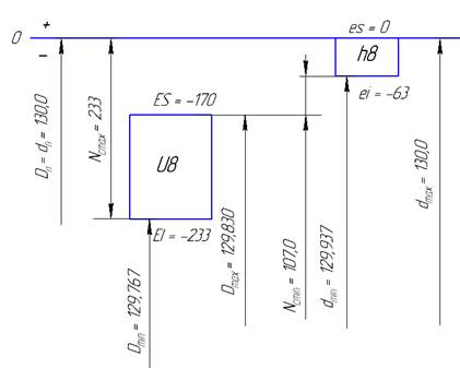
Этому условию соответствует основное отклонение отверстия U, для которого:= -170 мкм.

Значения вторых (не основных) предельных отклонений:

= ES - TD = -170 - 100 = -270 мкм;= es - Td = 0 - 63 = -63 мкм.

Предельные размеры деталей:

 =  + EI = 130 +(-0,270) = 129,730 мм

 = + ES = 130 + (-0,170) = 129,830 мм

= + ei = 130 + (-0,063) = 129,937 мм

= + es = 130 + 0 = 130 мм;

Предельные натяги в сопряжении:

 =  - = 130 -129,730 = 0,270 мм;

 =  - = 129,937 - 129,830 = 0,107мм.

Условия посадки с натягом:

= 270 мкм <  = 269,36 мкм;

 = 107 мкм > = 94,36 мкм.

Условие выбора посадки не выполняется

Проводим корректировку допусков - назначаем TD = 63 мкм, 8 квалитет.

Шероховатости поверхностей деталей:

= 0,2 ∙ TD = 0,2 ∙ 63 = 12,6 мкм;

= 0,2 ∙ Td = 0,2 ∙ 63 = 12,6 мкм.

Предельные технологические зазоры:

 - 1,4(+ ) = 315 - 1,4 (12,6 +12,6) =279,72 мкм;

= - 1,4( + ) = 140 - 1,4 (12,6 +12,6) =104,72 мкм.

Посадка задана в системе вала ( ch: es = 0), поэтому по таблице 3 ГОСТ 25346-2013 выбираем основное отклонение отверстия ES по условию:

 ≥ + Td = 104,72 + 63 = 167,72 мкм.

Этому условию соответствует основное отклонение отверстия U, для которого:= -170 мкм.

Значения вторых (не основных) предельных отклонений:

= ES - TD = -170 - 63 = -233 мкм;= es - Td = 0 - 63 = -63 мкм.

Предельные размеры деталей:

 =  + EI = 130 +(-0,233) = 129,767 мм

 = + ES = 130 + (-0,170) = 129,830 мм

= + ei = 130 + (-0,063) = 129,937 мм

= + es = 130 + 0 = 130 мм;

Предельные натяги в сопряжении:

 =  - = 130 -129,767 = 0,233 мм;

 =  - = 129,937 - 129,830 = 0,107мм.

Условия посадки с натягом:

 = 233 мкм <  = 269,36 мкм;= 107 мкм >  = 94,36 мкм.

Условие выполняется , посадка выбрана верно .

Условное обозначение выбранной посадки:

 

Уточняем шероховатости поверхностей отверстия и вала:

 0,05 ∙ TD = 0,05 ∙ 63 =3,15 мкм;

 0,05 ∙ Td = 0,05 ∙ 63 =3,15 мкм.

По таблице П5 приложения принимаем стандартные значения шероховатостей:

= 2,5мкм;  = 2,5 мкм.

Чертим схему расположения полей допусков соединения(рис. 3.1) и эскизы соединения деталей (рис. 3.2).

Рис. 3.1 - Схема полей допусков соединения

Рис 3.2 - Обозначение посадки и полей допусков деталей на чертежах

Задание 4. Расчет и выбор посадок колец подшипников качения

Цель: научиться назначать посадки колец подшипников качения.

Задание: Назначить посадки колец подшипника качения: условное обозначение подшипника - 210; радиальная нагрузка - R = 6,2 кН; характер нагрузки - динамический (перегрузка до 300%,сильных ударах и вибрации), корпус тонкостенный, осевой нагрузки нет.

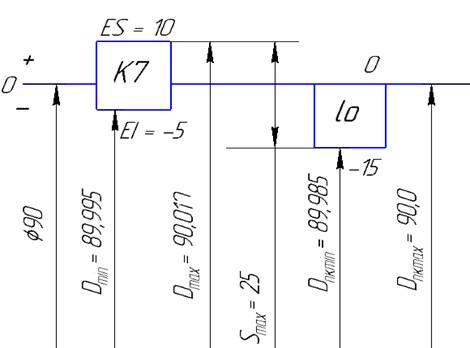
По таблице П1 определяем: диаметр наружного кольца  = 90 мм; диаметр внутреннего кольца  = 50 мм; ширина кольца B = 20 мм; радиус закругления кольца (фаска) r = 2,0 мм.

По заданию или эскизу подшипникового узла устанавливаем вид нагружения колец подшипника: так как вращается наружное кольцо, то оно испытывает циркуляционное нагружение, а внутреннее - местное.

По исходным данным определяем:  = 1,8;  = 1,0;  = 1,0. Интенсивность радиальной нагрузки - на посадочной поверхности вала:


По диаметру наружного кольца диаметром  = 90 мм, по таблице П2 принимаем поле допуска отверстия корпуса K7.

Для внутреннего кольца диаметром  = 50 мм, испытывающего местное нагружение, принимаем поле допуска вала h6 (таблица П18).

= ES - TD = 10 - 15 = - 5 мкм;= es - Td = 0 - 12 = -12 мкм.

Наибольший допустимый натяг в посадке:


Для определения элементов выбранных посадок составляем таблицу размерных характеристик подшипникового узла.

Таблица 1 - Размерные характеристики подшипникового узла

Обозначение

Номинальный размер, мм

Поле допуска

Допуск, мкм

Предельные отклонения , мкм

Предельные размеры, мкм





верхнее

нижнее

наибольший

наименьший

D

90

К7

15

10

-5

90,010

89,995

90

l0

15

0

-15

90

89,985

d

50

h6

12

0

-12

50

49,988

50

L0

12

0

-12

50

49,988


Определяем предельные значения натяга в сопряжении внутреннее кольцо подшипника -вал:

 =  -  = 49,988 - 50= 0,012 мм.

Условие прочности соблюдается, так как 12 мкм  177 мкм.

Чертим схему расположения полей допусков колец подшипника и сопрягаемых поверхностей : отверстия (рис. 4.1) и вала (рис. 4. 2) .

Рис. 4.1 - Схема расположения полей допусков сопряжения отверстие корпуса - наружное кольцо подшипника

Рис. 4.2 - Схема расположения полей допусков сопряжения вал - внутреннее кольцо подшипника

Рис. 4.3 - Обозначение посадки и предельных отклонений размеров на сборочном и рабочем чертежах

Задание 5. Допуски и посадки шпоночных соединений

Цель: научиться выбирать поля допусков размеров элементов шпоночных соединений.

Задание: выбрать поля допусков размеров элементов нормального шпоночного соединения с сегментной шпонкой первого исполнения при диаметре вала 30 мм.

По таблице П4 и П6 определяем основные размеры шпоночного соединения: ширина шпонки b = 8,0 мм, высота h = 11,0 мм, диаметр =28,0 мм; глубина шпоночного паза на валу  =8,0 мм; глубина шпоночного паза во втулке  = 3,3 мм.

Для нормального соединения с сегментной шпонкой по таблицам П5 и П6 определяем поля допусков и предельные отклонения шпонки и пазов: ширина шпонки b = 8h9; ширина паза на валу = 8N9; ширина паза во втулке = 8JS9; высота шпонки h = 11h12; глубина паза на валу  =  ; глубина шпоночного паза во втулке  =  мм; диаметр =28h12.

По таблице П7 назначаем поля допусков втулки 30H6, вала 30k6.

Определяем предельные отклонения и предельные размеры деталей соединения. Результаты заносим в таблицу.

Таблица 2 -Размерные характеристики шпоночного соединения

Обозначения

Номинальный размер, мм

Поле допуска

Допуск, мкм

Предельные отклонения, мкм

Предельные размеры, мкм





верхнее

нижнее

наибольший

наименьший

b

8

h9

36

0

-36

8

7,964

b1

8

N9

36

0

-36

8

7,964

b2

8

JS9

36

18

-18

8,018

7,982

h

11

h12

180

0

-180

11

10,820

t1

8

-

300

300

0

8,3

8

t2

3,3

-

200

200

0

3,5

3,3

28

h12

210

0

-210

28

27,790

D

30

H6

13

13

0

30,013

d

30

k6

13

15

2

30,015

30,002


Чертим схему расположения допусков на ширине шпонки (рис. 5.1) и эскизы деталей соединения (рис. 5.2).

Рис. 5.1 - Схема полей допусков шпоночного соединения

Рис. 5.2 - Обозначение посадки и предельных отклонений размеров на сборочном и рабочих чертежах деталей шпоночного соединения.

Задание 6. Расчет плоских размерных цепей

Цель: научиться составлять сборочные размерные цепи и рассчитывать допуски на их составляющие звенья методом полной взаимозаменяемости и теоретико-вероятностным методом.

Задание 6.1: Для узла (рис. 1) известны замыкающее звено , номинальные размеры составляющих звеньев. Необходимо назначить допуски на составляющие звенья и определить их предельные отклонения методом полной взаимозаменяемости.

По эскизу узла выявляем составляющие звенья, влияющие на размер замыкающего звена и составляем схему размерной цепи (рис. 1).

Рис.1. Геометрическая схема размерной цепи

Составляющими звеньями являются: увеличивающие:    

Правильность составления размерной цепи проверяется по равенству номинальных значений звеньев:


Допуск замыкающего звена определяется по формуле:


В случае, если размерная цепь содержит звенья с известными предельными отклонениями:


В данном случае известны предельные отклонения звеньев  и :

  

Отсюда:


Единицы допуска составляющих звеньев определяем по таблице П1:

 

Тогда:


Полученное расчетами число единиц допуска сравниваем с табличными (таблица П2) и принимаем ближайшее значение , что соответствует 14-ому квалитету.

Допуски звеньев размерной цепи для 14-го квалитета определяем по таблице ГОСТ 25356-89:

Правильность назначения допусков на составляющие звенья проверяется по условию:


Выполняем корректировку значения , что соответствует 13-ому квалитету.

Допуски звеньев размерной цепи для 13-го квалитета определяем по таблице ГОСТ 25356-89:

Правильность назначения допусков на составляющие звенья проверяется по условию:


В качестве корректирующего звена принимаем . Допуск корректирующего звена определяем из выражения:


Для рассматриваемого случая целесообразно на все звенья назначить симметричные отклонения:

 29JS13 = 29 0,165 мм;

Предельные отклонения корректирующего увеличивающего звена находят из следующих уравнений :

В качестве корректирующего звена принимается уменьшающее звено, предельные отклонения определяются по следующим зависимостям:


Допуск корректирующего звена рассчитывается по формуле:


Так как допуск корректирующего звена, рассчитанный по разным формулам одинаков, расчет размерной цепи выполнен верно. Окончательные результаты расчетов всех звеньев заносим в таблицу 1.

Таблица 1 - Результаты расчетов

Наименования звеньев

Номинальный размер, мм

Обозначение звена

Допуск размеров, мм

Поле допуска

Предельные отклонения, мм

Предельные размеры, мм






ES

EI

max

min

Замыкающее

17

1,5

-

0,9

-0,6

17,9

16,4

Увеличивающее

3

0,5

изв.

0,25

0,25

3,25

2,75

Увеличивающее

15

0,1

изв.

0

-0,1

14

14,9

Увеличивающее

29

0,330

JS13

0,165

-0,165

29,165

28,835

Уменьшающее

30

0,570

кор.

0,285

0,285

30,285

29,715


Задание 6.2 : для узла (рис.1) известны замыкающее звено,, номинальные размеры составляющих звеньев. Необходимо назначить допуски на составляющие звенья при уровне риска P =0,27% и нормальном законе рассеяния размеров составляющих звеньев и определить их предельные отклонения теоретико-вероятностным методом.

Из примера 6.1 известно:   

По таблице П3 для уровня риска P =0,27% определяем значение коэффициента риска t = 3.

Определяем число единиц допуска по формуле:


Полученное число единиц допуска сравниваем с табличными (таблица П2) и принимаем ближайшее значение  что свидетельствует 15-ому квалитету.

Допуски звеньев размерной цепи для 15-го квалитета определяем по таблице ГОСТ 25356-2013:

Определяем сумму квадратов допусков составляющих звеньев:


Условие точности размерной цепи не выполняется, назначаем корректирующее звено , допуск которого рассчитывается по формуле:


Координаты середины поля допуска звеньев определяем по вышеуказанной формуле и заносим в таблицу 2. Например для замыкающего звена:


Координата середины поля допуска корректирующего звена определяется по формуле:


Предельные отклонения корректирующего звена определяются через координату середины поля допуска звена по формулам:


Истинный коэффициент риска, характеризующий процент выхода значений замыкающего звена (его отклонений) за пределы установленного на него допуска вычисляем по формуле:


Таблица 2 - Результаты расчетов

Наименования звеньев

Номинальный размер, мм

Обозначение звена

Допуск размеров, мкм

Координаты середины поля допуска, мкм

Поле допуска

Предельные отклонения, мкм

Предельные размеры, мм







ES

EI

max

min

Замыкающее

17

1500

150

-

900

-600

17,9

16,4

Увеличивающее

3

500

0

изв.

250

250

3,25

2,75

Увеличивающее

15

100

-50

изв.

0

-100

14,0

14,9

Увеличивающее

29

840

0

JS15

420

-420

29,420

28,580

Уменьшающее

30

840

200

кор.

766,5

-366,5

30,7665

29,2335



Заключение

В ходе проделанной курсовой работы изучили основные термины и определения системы допусков и посадок ИСO, получили практические навыки определения элементов цилиндрического соединения и обозначения их на чертежах.

Изучили методику и получили практические навыки выбора посадок с зазором и натягом расчетным методом.

Научились назначать посадки колец подшипников качения, выбирать поля допусков размеров элементов шпоночных соединений, составлять сборочные размерные цепи и рассчитывать допуски на их составляющие звенья методом полной взаимозаменяемости и теоретико-вероятностным методом.

Список литературы

1. Метрология, стандартизация и сертификация: учебник для студ. высш. учеб. заведений /[А.И.Аристов, Л.И.Карпов, В.М.Приходько, Т.М.Раковщик]. - М.: Издательский центр «Академия», 2015.

. Анухин В.И. Допуски и посадки. - СПб.: Питер, 2008.

. Чижикова Т.В. Стандартизация, сертификация и метрология. Основы взаимозаменяемости. - М.: Логос, 2002.

. ГОСТ 25346-89 Единая система допусков и посадок. Общие положения, ряды допусков и основных отклонений. - М.: Изд-во стандартов, 1989.

. Белкин И.М. Допуски и посадки. - М.: Машиностроение, 1992.

Похожие работы на - Стандартизация норм точности типовых изделий машиностроения

 

Не нашли материал для своей работы?
Поможем написать уникальную работу
Без плагиата!
Без нейросетей!