Проектування локальної мережі кампуса
Міністерство
освіти і науки України
Харківський
національний університет радіоелектроніки
Факультет
Телекомунікацій та вимірювальної техніки
Кафедра
Мережізв’язку
КУРСОВА
РОБОТА
Проектування
локальної мережі кампуса
Зміст
Вступ
. Вибір структури та топології
ЛМХ організації
.1 План поверху будинку
.2 Вибір канальної технології
.3 План розведення кабелю
.4 План базової підсистеми
.5 Розрахунок довжини кабелю
. Вибір активного мережного
обладнання лмз комплексу
.1 Вибір комутаторів та
маршрутизаторів
. Логічна організація лмз
.1 Логічна структура
сформованої схеми СКС ЛМЗ кампусу
.2 Розбиття мережі
.3 Організація віртуальних
мереж
Висновки
Перелік посилань
Додаток А
Додаток Б
Вступ
локальний мережа
маршрутизатор віртуальний
На сучасному етапі
соціально-економічного розвитку держави, роль мереж зв’язку неухильно зростає,
бо наявність якісних автоматизованих засобів зв’язку забезпечує зростання
якості праці. Узагальненим об'єктом діяльності випускників спеціальності
"Інформаційні мережі зв'язку" є глобальна інформаційна інфраструктура
(ГІІ) - комплекс програмно-технічних засобів, організаційних систем та
нормативних баз, який забезпечує організацію взаємодії інформаційних потоків,
функціонування та розвиток засобів інформаційної взаємодії та інформаційного
простору країни або організації, складна система, що надає користувачам набір
телекомунікаційних послуг, які забезпечують відкриту кількість додатків і
охоплюють всі види інформації та можливість її отримання в будь-якому місці,
будь-якого часу за прийнятою ціною і з прийнятою якістю. Пакет базових
технологій ГІІ включає наступні види індустрій:
- комп'ютерну;
- телекомунікаційну;
- побутових електронних приладів;
інформаційних додатків або сервісів, що звуться також індустрією змістовних
сервісів або додатку .
Саме при її побудові
використовуються інформаційні мережі зв'язку, кожна з яких є сукупністю
розосереджених на великій території прикінцевих систем, об'єднаних
телекомунікаційною мережею, що забезпечує доступ прикладних процесів кожної з
цих систем до всіх інформаційних ресурсів мережі і їх спільне використання.
Мета курсового проектування полягає
в подальшій систематизації, закріпленні та поглибленні теоретичних знань, а
також у розвитку в студентів навичок самостійного синтезу, аналізу та оптимізації
топологій телекомунікаційних та інформаційних мереж, ознайомленні їх з
алгоритмічною і програмною реалізацією відповідних методів.
1. Вибір структури та топології ЛМЗ
організації
Структуровані кабельні системи, СКС
(SCS - StructuredCablingSystem), являють собою універсальні кабельні проводки
для локальних мереж, що проектуються та встановлюються без прив'язки до їх
конкретних додатків (мережних технологій). Оскільки переважна більшість
локальних мереж встановлюється в офісних будівлях, населених персоналом з
комп'ютерами і телефонами, існуючі стандарти на СКС припускають, що вони будуть
встановлюватися в будинках саме такого типу. У випадку розгортання мережі на
промислових об'єктах або в житлових будинках основні положення стандартів на
СКС не втрачають актуальності, але їх застосування повинно враховувати
специфіку конкретних умов. До структурованим кабельним системам ставляться три
основні стандарти, що діють в даний час:/TIA-568-A
CommercialBuildingTelecommunicationsWiring Standard (американський);/ IEC IS
11801 InformationTechnology. Genericcablingforcustomerpremises (міжнародний);EN
50173 Informationtechnology. Genericcablingsystems (європейський).
Перераховані вище стандарти описують
майже однакові кабельні системи, але трохи розрізняються в термінології і
визначеннях норм для споріднених параметрів.
Основна мета даних специфікацій:
Визначити загальну кабельну систему
для передачі голосу і даних, що підтримує підключення апаратури різних
виробників.
Визначити напрямки в розробці
телекомунікаційного обладнання та кабельної продукції.
Забезпечити планування та
встановлення СКС, що задовольняє різним вимогам персоналу, що населяє будівлі.
Встановити критерії пропускної
здатності та технічні характеристики різних типів кабелів і сполучної апаратури.
Виконання вимог до СКС має
забезпечувати термін життя (з урахуванням морального старіння) системи більше
10 років. У стандартах наводяться специфікації, з таких галузей:
середовище передачі даних;
топологія;
допустимі відстані (довжина
кабелів);
інтерфейс підключення
користувачів;
кабелі та сполучна
апаратура;
пропускна спроможність
(performance);
практика встановлення.
Структура зв'язків між елементами є
ієрархічною зіркоподібною, її можливий вигляд наведено на рис. 1.1. Залежно від
масштабів, вона може обмежуватися і одним-двома нижніми рівнями. У великому
будинку можливе розміщення і всіх трьох рівнів ієрархії. Кабелі прокладаються
між сусідніми рівнями ієрархії розподільників, можлива прокладка кабелів і між
розподільниками одного рівня (показані пунктиром). Ці додаткові лінії можуть
використовуватися деякими додатками для резервування або підвищення пропускної
здатності магістралі.
Розподільники розміщуються в
апаратних кімнатах або телекомунікаційних приміщеннях. Кабелі прокладаються в
коробах, лотках, трубах і т. п.
Інтерфейси універсальної кабельної
системи (точки підключення обладнання) можуть розташовуватися на кордонах
підсистем. Розподільники забезпечують комутацію між кабелями підсистем суміжних
рівнів і між кабелями та обладнанням.
Рисунок 1.1 - Ієрархічна
голкоподібна структура мережі
Обладнання (EQP) може підключатися
за схемою крос-комутації (cross-connection) або безпосереднього підключення
(interconnection). Розходження цих схем полягає в наявності додаткової
розподільної панелі (схема крос-комутації), на якій представлені порти
устаткування (на рис. 1.2 крос-комутація показана в BD). При цьому з'являється
додатковий роз'ємне з'єднання та комутаційний шнур. У схемі безпосереднього
підключення горизонтальні кабелі підключаються до комунікаційного обладнання
прямо мережевими шнурами.
Рисунок 1.2 - Можливі інтерфейси
універсальної кабельної мережі
Поверхові розподільники встановлюють
з розрахунку як мінімум одного на кожні 1000 м2 офісної площі на
кожному поверсі будівлі. При невисокій населеності поверху допускається
обслуговування поверховим розподільником абонентів суміжних поверхів.
Рекомендовані типи кабелів - вита пара 100 Ом (допускається і 120 Ом) і
оптоволокно.
Телекомунікаційні розетки
встановлюються по всій площі, на якій можуть розташовуватися робочі місця. У
багатьох країнах прийнятий норматив, за яким пара розеток повинна обслуговувати
зону не більше 10 м2. Одне з гнізд кожного робочого місця має поєднуватися з
розподільником кручений парою 100 або 120 Ом, інші можуть з'єднуватися кручений
парою або оптоволокном. До гнізд з кручений парою повинні підходити кабелі з
двома або чотирма парами проводів, які всі повинні бути підключені до контактів
розетки.
Телекомунікаційні приміщення ТЗ
(telecommunicationcloset) служать для розміщення розподільних панелей і
активного устаткування. Крім того, в них забезпечуються безперервна подача
електроживлення з необхідною потужністю, а також необхідні кліматичні умови
(температура, вологість, захищеність від пилу).
Апаратні кімнати (equipmentroom)
можуть і не містити розподільних панелей, в них встановлюють велике обладнання
- наприклад, телефонні станції, сервери і т. п. У них можуть встановлюватися і
розподільники одного і більше рівнів (наприклад, CD / BD / FD).
Стаття 6 (Implementation) описує
реалізацію кабельної системи. Для електричних ліній застосовують симетричні
кабелі 100 і 120 Ом і сполучну апаратуру категорій 3 (16 МГц) і 5 (100 МГц).
Максимальні довжини кабельних підсистем наведено на рис 1.3. Тут наводяться
механічні довжини кабелів. При цьому механічної довжині 10 м буде відповідати
електрична довжина не більше 15 м. Сумарна довжина шнурів в горизонтальній
підсистем А + В + Е не повинна перевищувати 10 м. Довжина комутаційних шнурів і
перемичок (С і D) в будинкових та кампусних розподільниках не повинна
перевищувати 20 м, довжина мережевих кабелів (G і F), що
використовуються для підключення устаткування в цих розподільниках, не повинна
перевищувати 30 м.
Рисунок 1.3 - Можливі інтерфейси
універсальної кабельної мережі
Горизонтальні кабелі по механічній
довжині від розетки до розподільної панелі не повинні перевищувати 90 м для
будь-якого середовища (навіть для оптики). Довжина комутаційного шнура або
дроту не повинна перевищувати 5 м. У горизонтальній системі альтернативою
кручений парі 100 Ом може бути кабель з імпеданс 120 або 150 Ом. Замість
волокна 62,5 / 125 мкм може взятися волокно 50/125 мкм.
Довжина комутаційних шнурів і
перемичок в будинкових або кампусних розподільниках не повинна перевищувати 20
м, а мережевих кабелів - 30 м. В іншому разі перевищення довжини має
відніматися з допустимих дистанцій магістралі.
Максимальні відстані застосовні не
для всіх поєднань середовища передачі і додатків. Обмеження в 500 і 1500 м на
довжину магістральних кабелів для мережевих технологій увазі застосування
оптоволокна, мідні кабелі такої довжини застосовні тільки для телефонії.
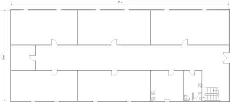
1.1 Плану поверху будинку
Для побудови плану розміщення кімнат
на поверхах будинку було використано програмний комплекс MSVisio. Загальний
план поверхів будівлі кампусу зображений на рисунку 1.4.
Будівля кампусу має розміри 50х20
метрів. Всього в будинку три поверха.

1.2 Вибір канальної технології
Оберемо канальну технологію для
використання в локальній мережі відповідної підсистеми СКС організації.
Виходячи з розмірів будівлі та з
того, що для мережі організації швидкість в 100 Мбіт/c буде достатньою,
виберемо канальну технологію Fast Ethernet (802.3u)з максимальною швидкістю 100
Мбіт/c.
1.3 План розведення кабелю
Використовуємо кабель «кручена пара»
5(Е) категорії для горизонтальної і вертикальної підсистеми. Використання цього
кабелю підходить до обраної канальної технології FastEthernet (802.3u). В даній
роботі ми використовуємо кручену пару виробника «KINGDA». Вона відповідає
стандартам ANSI/TIA/EIA-568-B.2-2001 та ISO/IEC11801:2002.Кожне робоче місце
обладнується телекомунікаційною розеткою RJ 12 и RJ 45 виробництва фірми TWT.
Приклад даної розетки наведений на рисунку 1.5.
Рисунок 1.5 - Телекомунікаційна
розетка
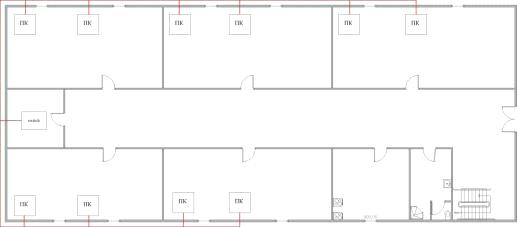
Розведення кабелю на поверхах
зображено на рисунку 1.6.
Рисунок 1.6 - Розведення кабелю на
поверхах
1.4 План базової підсистеми
При побудові робочих груп та
горизонтальних підсистем організації ми додержувалися наступних рекомендацій:
для підключення робочих станцій, з
урахуванням перспективи розвитку, доцільно використовувати кручену пару
категорії 5 і FastEthernet;
- найчастіше для побудови СКС однієї
робочої групи використовується комутатор («один в один»), але можливе
використання одного комутатора на декілька робочих груп і навіть для
горизонтальної підсистеми (якщо є відповідна кількість портів);
для робочих груп характерно
використання топології «зірка» з комутатором у центрі;
наявність маршрутизатора в
горизонтальній системі допускається при логічній організації та фільтруванні
трафіку між робочими групами на підставі IP-адреспідмереж.
1.5 Розрахунок довжини кабелю
Загальнадовжина кабелю на поверх 293
м. Будівля нараховує 3 поверхів,тому довжина кабелю на всю будівлю 900 м.
Усього 5 будівель, тому загальна довжина кабелю складатиме 4900 м. Вартість
крученої пари UTP категорії 5(Е), виробника «KINGDA» складає 2.60 грн. за метр.
Вартість кабелю нашої мережі складатиме 12740 грн.
Також нам необхідно розрахувати
переріз короба для прокладки крученої пари. Цей переріз розраховується за
формулою:
,
де: N - кількість кабелю у коробі;S
- переріз коробу
Відповідно до цього, підставивши
наші значення отримаємо:
Для всіх робочих груп :
%S,заг =
186 мм.
У відповідності до отриманих значень,
будемо використовувати пластиковий короб фірми "MK Electric". Для
першої, другої, третьої робочої групи використаємо коробпластиковий 25х16 мм.
Рисунок 1.8- Пластиковий короб фірми
"MK Electric"
Загальна довжина коробу 50+35=85 м.
Ціна 21.90 грн за 2 метри. Загальна вартість короба складає 930,75 грн.
2. Вибір активного
мережногообладнаннялмз комплексу
При виборі мережевого обладнання
необхідно зважувати на те, що у різних компаній, які пропонують його, маються
невеликі відмінності та особливості.
2.1 Вибір комутаторів та
маршрутизаторів
Мій вибір був зупинений на
обладнанні компаніїCisco.Компанія Cisco зарекомендувала себе як якісний та
надійний виробник.
Використовуючи логічний план мережі
було обране наступне:
·
КоммутаторD-LinkDES-1016A/E1
длязастосування у ролі комутатора який з’єднує декілька робочих групп (рис.
2.1).
·
Маршрутизатор D-LinkDSR-250, який
задовольняє всім потребам заданої мережі (рис. 2.2).
Рисунок 2.1 -
КоммутаторD-LinkDES-1016A/E1
Комутатор D-Link DES-1016A / E1 -
являє собою економічно вигідне рішення для мереж SOHO і SMB, що забезпечує
максимальну вигоду за рахунок високої швидкості передачі даних. Даний комутатор
оснащений 16 портами, що працюють на швидкості 10/100 Мбіт / с, і дозволяють
легко організувати невелику офісну мережу.
Рисунок 2.2 - Маршрутизатор
D-LinkDSR-250
Уніфіковані маршрутизатори D-Link
серії DSR представляють собою високопродуктивні рішення, що забезпечують захист
мережі і призначені для задоволення зростаючих потреб малого та середнього
бізнесу. Підтримка стандарту IEEE 802.11n, реалізована в маршрутизаторах
DSR-150N, DSR-250N, DSR-500N, DSR-1000N, дозволяє досягти тієї ж продуктивності,
що і в провідних мережах, але з меншою кількістю обмежень. Оптимальний захист
мережі досягається за рахунок організації тунелів VPN (VirtualPrivateNetwork),
підтримки протоколів IP Security (IPSec), Point-to-Point TunnelingProtocol
(PPTP), Layer 2 TunnelingProtocol (L2TP), GenericRoutingEncapsulation (GRE) 1.
Завдяки VPN-тунелях торгові представники і співробітники територіальних
підрозділів отримують віддалений доступ до корпоративної мережі з будь-якої
точки і в будь-який час без інсталяції клієнтської програми.Для організації
даної мережі необхідно 20 комутаторів та однин маршрутізатор.
Вартість комутатора 552грн,
маршрутизатора 3173 грн. Загальна вартість обладнання:
*552+3173= 14213грн
3. Логічна організація ЛМЗ
.1 Логічна структура сформованої схеми
СКС ЛМЗ кампусу
За допомогою пакету PacketTracer
зібрали необхідний варіант мережі організації на основі необхідної кількості
активного мережного обладнання. Встановили з'єднання між роутером і світчами,
світчами і комп'ютерами (рис. 3.1).
Рисунок 3.1 - Логічна організація
мережі кампусу
Відзначимо, що для підтримки
необхідної кількості портів маршрутизатора, які підтримують задану канальну
технологію FastEtrhernet, необхідно добавити відповідні інтерфейсні плати у
вкладці Physical.
3.2 Розбиття мережі
Призначення ІР адресів
Router(config)#interface
FastEthernet0/0(config-if)#ip address 192.168.0.1 255.255.255.0(config-if)#no
shutdown(config)#interface FastEthernet1/0(config-if)#ip address 192.168.1.1
255.255.255.0(config-if)#no shutdown(config)#interface
FastEthernet2/0(config-if)#ip address 192.168.2.1 255.255.255.0(config-if)#no
shutdown(config)#interface FastEthernet3/0(config-if)#ip address 192.168.3.1
255.255.255.0(config-if)#no shutdown(config)#interface FastEthernet4/0(config-if)#ip
address 192.168.4.1 255.255.255.0(config-if)#no shutdown
DHCP
Router(config)#ipdhcp pool
1(dhcp-config)#network 192.168.0.0
255.255.255.0(dhcp-config)#def(dhcp-config)#default-router
192.168.0.1(dhcp-config)#ipdhcp pool 2(dhcp-config)#network 192.168.1.0
255.255.255.0(dhcp-config)#default-router 192.168.1.1(dhcp-config)#ipdhcp pool
3(dhcp-config)#network 192.168.2.0 255.255.255.0(dhcp-config)#default-router
192.168.2.1(dhcp-config)#ipdhcp pool 4(dhcp-config)#network 192.168.3.0 255.255.255.0(dhcp-config)#default-router
192.168.3.1(dhcp-config)#ipdhcp pool 5(dhcp-config)#network 192.168.4.0
255.255.255.0(dhcp-config)#default-router 192.168.4.1
Маршрутизація
Router(config)#routerrip(config-router)#network
192.168.0.0(config-router)#network 192.168.1.0(config-router)#network
192.168.2.0(config-router)#network 192.168.3.0(config-router)#network
192.168.4.0
3.3 Організація віртуальних мереж
При створенні ЛМЗ на основі
комутатора, незважаючи на можливість використання фільтрів трафіку, всі вузли
мережі являють собою єдиний широкомовний домен, тобто широкомовний трафік
передається всім вузлам мережі. Таким чином, комутатор не обмежує широкомовний
трафік, а самі мережі, побудовані по зазначеному принципу, іменуються плоскими.
Віртуальною мережею VLAN (Vіrtual
LAN) називають групу вузлів мережі, що утворюють домен широкомовного трафіку
(BroadcastDomaіn). Віртуальні мережі утворюють групу вузлів мережі, у якій весь
трафік, включаючи й широкомовний, повністю ізольований на канальному рівні від
інших вузлів мережі (рис. 3.8). Це означає, що передача кадрів між вузлами
мережі, що відносяться до різних віртуальних мереж, на підставі адреси
канального рівня неможлива.
Ізолювання окремих вузлів мережі на
канальному рівні з використанням технології віртуальних мереж дозволяє
вирішувати одночасно кілька завдань. По-перше, віртуальні мережі сприяють
підвищенню продуктивності мережі, локалізуючи широкомовний трафік у межах
віртуальної мережі й створюючи бар'єр на шляху широкомовного шторму. Комутатори
пересилають широкомовні кадри (а також кадри із груповими й невідомими
адресами) усередині віртуальної мережі, але не між віртуальними мережами.
По-друге, ізоляція віртуальних мереж друг від друга на канальному рівні
дозволяє підвищити безпеку мережі.
Рисунок 3.8 - Організація
віртуальних мереж на комутаторі
організуються:
по порту (Port-based, 802.1Q): порту
комутатора вручну призначається одна VLAN;
- по MAC-адресі (MAC-based):
членство в VLAN ґрунтується на MAC-адресі робочої станції;
по протоколу (Protocol-based): дані
3-4 рівня в заголовку пакета використовуються, щоб визначити членство в VLAN.
Висновки
В даному курсовому проекті була
розроблена локальна схема зв’язкукампуса. Вона містить будинок, згідно з
регламентованими в завдані розірами: довжина- 50 метрів, ширина- 20 метрів.
Розробка проекта складається:
· Вибір структури та
топології ЛМЗ організації;
· Логічна організація
ЛМЗ.
Була вибрана зіркоподібна структура
зв’язків між елементами.
У програмному пакеті
MSVisioбуврозроблений план поверху, схема розміщеня мережного обладнання, тобто
комутатор и ПК, та розведення кабелю від комутатора до ПК.
Були проведені розрахунки вартості
кабелю які складають
грн, на 4900 метрів типу “кручена
пара” 5 категорії, та вартість коробу (короб 25*16 мм довжиною 85 метрів)
складає 930,75 грн.
Вартість активного обладнання
складає 14213 грн.
Загальна вартість обладнання:
27883,75 грн.
За допомогою програмного пакету
PacketTracer розробила модель локальної мережі зв’язку кампуса. Налаштувала
обладнання згідно заданого завдання та вибраної топології. Перевірила та
впевнилася в правильності роботи мережі.
Перелік посилань
1. Смирнов И. Г.
Структурированныекабельныесистемы - проектирование, монтаж и сертификация. - М:
Экон-Информ, 2005 г.
. Олифер В. Г., Олифер Н. А.
Компьютерные сети: Принципы, технологии, протоколы. - СПб.: Питер. - 2005. -
864 с .
. Таненбаум Э. Компьютерные
сети. - СПб.: Питер. - 2002. - 848 с.
. Степанов А.Н. Архитектуравычислительных
систем и компьютерныхсетей. - СПб: Питер. - 2007. - 512 с.
.СэмХелеби, ДенниМак-Ферсон.
Принципымаршрутизации в Internet. - М:»Вильямс». - 2001. - 448 с.
.АлланЛеинванд, Брюс Писки.
КонфигурированиемаршрутизаторовCisco - CiscoRouterConfiguration. - 2-е изд. -
М.: «Вильямс», 2001. - 368 с.
7. Електронне джерело:
#"897655.files/image014.gif">
Додаток Б
ЛОГІЧНА СТРУКТУРА СФОРМОВАНОЇ СХЕМИ
СКС ЛМЗ КАМПУСУ