Оптимизация параметров двухступенчатого цилиндрического редуктора

  • Вид работы:
    Курсовая работа (т)
  • Предмет:
    Другое
  • Язык:
    Русский
    ,
    Формат файла:
    MS Word
    658,74 Кб
  • Опубликовано:
    2017-07-22
Вы можете узнать стоимость помощи в написании студенческой работы.
Помощь в написании работы, которую точно примут!

Оптимизация параметров двухступенчатого цилиндрического редуктора

МИНИСТЕРСТВО ОБРАЗОВАНИЯ РЕСПУБЛИКИ БЕЛАРУСЬ УЧРЕЖДЕНИЯ ОБРАЗОВАНИЯ

<<ГОМЕЛЬСКИЙ ГОСУДАРСТВЕННЫЙ ТЕХНИЧЕСКИЙ УНИВЕРСИТЕТ ИМЕНИ П.О. СУХОГО>>









КУРСОВОЙ ПРОЕКТ

По дисциплине: «Основы проектирования сельскохозяйственной техники»

Тема проекта:<<Оптимизация параметров двухступенчатого цилиндрического редуктора>>


Выполни:

ЧередникГ.В.

Принял:

Попов В.Б.


Гомель 2017

Содержание

Введение

. Назначение и область применения редуктора

2. Понятие об автоматизированном проектировании зубчатых передач

3. Характеристика возможностей использованной CAD-системы

4. Разработка математического описания оптимизации параметровредуктора

5. Редактирование и транслирование подпрограммы пользователя

6. Решение задачи многокритериальной оптимизации параметров на ПЭВМ

7. Модернизация эксплуатационных эффектов редуктора, за счет применения технологических усовершенствований

8. Анализ результатов расчётов

Заключение

Список использованной литературы

Аннотация

Введение

В условиях конкуренции, которая сложилась на сегодняшний день на мировым рынке производителей сельскохозяйственной техники, создание новых образцов техники без систем автоматизированного проектирования невозможно, поэтому закрепления знаний с работай таких программ как Компас 3D, является первоочередной задачей обучаемого. Ведь будущее создаваемой машины зависит от заложения в нее правильно рассчитанных параметров уже на этапе проектирования.

Требования, предъявляемые к современным системам автоматизированного проектирования, не ограничиваются удобством создания графических примитивов и оформления чертежей по ГОСТ - на повестке дня появляются возможности систем в области построения ассоциативных моделей и сборок, оценивается степень простоты создания собственных параметрических библиотек, позволяющих аккумулировать накопленный опыт и в полной мере использовать имеющиеся на предприятии наработки.

Сегодня проектирование на основе существующих заготовок (проектирование на основе баз знаний) дает возможность значительно сократить время выполнения проекта и количество ошибок.

Важнейших функциональных средств современных конструкторских САПР является инструментарий, обеспечивающий эффективное внесение изменений в файлы описаний существующих чертежей, то есть их редактирование и модификацию.

. Назначение и область применения редуктора

Редуктором называют механизм, состоящий из зубчатых или червячных передач, выполненный в виде отдельного агрегата и служащий для передачи вращения от вала двигателя к валу рабочей машины. Кинематическая схема привода может включать, помимо редуктора, открытые зубчатые передачи, цепные или ременные передачи. Назначение редуктора - понижение угловой скорости и соответственно повышение вращательного момента ведомого вала по сравнению с ведущим.

Редукторы классифицируют по следующим основным признакам:

Тип передачи:

зубчатые,

червячные,

зубчато-червячные);

Число ступеней:

одноступенчатые,

двухступенчатые, трехступенчатые.

Тип зубчатых колес:

цилиндрические,

конические,

коническо-цилиндрические.

Относительное расположение валов редуктора в пространстве:

горизонтальные,

вертикальные;

Особенности кинематической схемы:

развернутая соосная,

с раздвоенной ступенью.

Цилиндрический редуктор - это одна из самых распространенных разновидностей редукторов. Он, как и все редукторы, служит для изменения скорости вращения при передачи вращательного движения от одного вала к другому.

Именно редукторный привод один из наиболее распространенных видов приводов современных механических систем общепромышленного применения. В настоящее время выпуск качественной и надежной продукции обеспечивается мощной производственной базой. Сейчас производят различные типы продукцией: цилиндрический редуктор одно-, двух-, и трехступенчатый.

От работоспособности и ресурса цилиндрического редуктора во многом зависит обеспечение требуемых функциональных параметров и надежности машины в целом. Показатели долговечности и надежности элементов привода и, в частности, редукторов и мотор-редукторов, зависят от обоснованного выбора самого редуктора при проектировании машины, т.е. соответствия этого выбора действующей нормативной документации. Неправильный выбор редуктора снижает егоконкурентоспособность, нанося ущерб производителю, и может привести к значительным экономическим потерям потребителя машиностроительной продукции из-за внеплановых простоев, роста ремонтных затрат. Одно из важнейших требований обеспечения конкурентоспособности цилиндрического редуктора - наилучшее соответствие его паспортных характеристик реальным эксплуатационным условиям нагрузки работы привода машины.

Червячный редуктор - это особой вид редуктора по типу передачи с червячным профилем резьбы. Редукторы - продукция материально-технического назначения, служат для изменения скорости вращения при передачи вращательного движения от одного вала к другому.

Червячный редуктор применяется при передаче движения между скрещивающимися (обычно под прямым углом) осями. Одним из существенных преимуществ червячных редукторов является возможность получить большое передаточное число в одной ступени (до 80 в редукторах общего назначения и до нескольких сотен в специальных редукторах).

Данные редукторы обладают высокой плавностью хода и бесшумностью в работе и самоторможением при определенных передаточных числах, что позволяет исключать из привода тормозные устройства.

Есть различные варианты данных механизмов, например, одноступенчатые универсальные, двухступенчатые, трех, одноступенчатые с расположением червяка над колесом и глобоидные, а также с различными параметрами.

Коническо-цилиндрический редуктор - это разновидность редуктора по конструктивному выполнению рабочих элементов. Именно редукторный привод один из наиболее распространенных видов приводов современных механических систем общепромышленного применения. Данный тип редукторов обладают высоким КПД и значительной долговечностью..(2. с, 34).

Применяеться коническо-цилиндрический редуктор для приводов конвейерных линий, для привода тягового шахтного электровоза и т.д. В привод последнего, например, входят еще колесная пара и букс. От работоспособности и ресурса коническо-цилиндрического редуктора во многом зависит обеспечение требуемых функциональных параметров и надежности машины в целом. Показатели долговечности и надежности элементов привода и, в частности, редукторов и мотор-редукторов, зависят от обоснованного выбора самого редуктора при проектировании машины, т.е. соответствия этого выбора действующей нормативной документации.

Облaсть применения редукторов:

Спектр применения достаточно широк, этоcредства автoматизации и сиcтемы управления, устройства регулирования, автoматические и автоматизированные cистемы управления, cледящие мини-приводы, привод различных механизмов. Наибольшее распространение в промышленности получили планетарные редукторы и цилиндрические редукторы, выполненные по схеме взаимного расположения электродвигателя и выходного вала. Такие механизмы пригодны для использования в умеренных климатических условиях, при установке в помещении или на открытом воздухе под навесом.

2. Понятие об автоматизированном проектировании зубчатых передач

Система автоматизированного проектирования - автоматизированная система, реализующая информационную технологию выполнения функций проектирования, представляет собой организационно-техническую систему, предназначенную для автоматизации процесса проектирования, состоящую из персонала и комплекса технических, программных и других средств автоматизации его деятельности. Так же для обозначения подобных систем широко используется аббревиатура САПР.САПР - система автоматизированного проектирования.

Программные средства автоматизациисистемы (сomputer-aided design - компьютерная поддержка проектирования) предназначены для решения конструкторских задач и оформления конструкторской документации (более привычно они именуются системами автоматизированного проектирования САПР). Как правило, в современные CAD-системы входят модули моделирования трехмерной объемной конструкции (детали) и оформления чертежей и текстовой конструкторской документации (спецификаций, ведомостей и т.д.). Ведущие трехмерные CAD-системы позволяют реализовать идею сквозного цикла подготовки и производства сложных промышленных изделий. Все они в той или иной степени поддерживают принципы параметризации 2D и 3D-моделей.В настоящее время в мире разработано огромное количество различных CAD-пакетов.

Система параметрического проектирования и черчения T-FLEX CAD является разработкой российской фирмы "Топ Системы". Система обладает следующими основными возможностями: параметрическое проектирование и

моделировании; проектирование сборок и выполнение сборочных чертежей; полный набор функций создания и редактирования чертежей; пространственное моделирование, базирующееся на технологии ACIS; параметрическое трёхмерное твёрдотельное моделирование; управление чертежами; подготовка данных для систем с ЧПУ; имитация движения конструкции.

КОМПАС3D один из лидирующих российских продуктов. CAD-система, предназначенная для широкого спектра проектно-конструкторских работ, лёгкая в освоении, удобная в работе и при этом имеющая стоимость, приемлемую для комплексного оснащения российских предприятий, в том числе средних и малых. Позволяет осуществлять двумерное проектирование и конструирование, быструю подготовку и выпуск разнообразной чертёжно-конструкторской документации, создание технических текстово-графических документов.- и 3-мерная система автоматизированного проектирования и черчения, разработанная компанией Autodesk. AutoCAD является наиболее распространённой САПР в мире благодаря средствам черчения.

THINK3Система автоматизированного проектирования для машиностроения среднего уровня. Обеспечивает двумерное проектирование, трёхмерное поверхностное и твердо-тельное моделирование, проектирование изделий из листовых материалов, ассоциативность двумерного чертежа с трёхмерной моделью, фотореалистичное представление проекта..(1. с, 82)

3. Характеристика возможностей использованной CAD-системы

В свое курсовом проекте я использую CAD-систему Компас-3DV11. Мы часто сталкиваемся с задачей создания чертежа или модели на основе уже существующего, когда детали не очень различаются, но перерисовывать необходимо все заново. Для решения этой проблемы в системе КОМПАС-3D имеются средства параметризации, посредством которых можно задать определенные связи между отдельными элементами графического компонента, позволяющие при последующей разработке типовых конструкций не переделывать всю модель (чертеж), а изменить лишь несколько параметров. Это дает возможность многократно использовать единожды построенную модель, значительно сокращает время на формирование новых ее модификаций и т.п.Таким образом можно построить новую модель редуктора уже с модернизированными выходными параметрами, что сократит время на проектирование новой модели, и ускорит темпы оптимизации редуктора.

Существует два типа параметризации трехмерной модели в KОMПAC-3D - вариационная и иерархическая, сочетание которых позволяет широко варьировать параметры создаваемой модели, не изменяя ее топологию.

Вариационная параметризация имеет два проявления: параметризация графических объектов в эскизе и сопряжение между собой компонентов сборки.Иерархические параметрические связи возникают автоматически по мере выполнения команд создания элементов модели.

Кроме этого для Компас-3D создана богатая база данных стандартных элементов редукторов, что позволяет создавать чертежи компоновок редукторов, пользуясь стандартными элементами (зубчатые колеса, валы, болты, подшипники и др.).

Цели создания и задачи при автоматизированном проектировании зубчатых передач

1. В рамках жизненного цикла промышленных изделий, САПР решает задачи автоматизации работ на стадиях проектирования и подготовки производства.

. Основная цель создания САПР - повышение эффективности труда инженеров, включая:

.1 Сокращения трудоёмкости проектирования и планирования;

.2 Сокращения сроков проектирования;

.3 Сокращения себестоимости проектирования и изготовления, уменьшение затрат на эксплуатацию;

.4 Повышения качества и технико-экономического уровня результатов проектирования;

.5 Сокращения затрат на натурное моделирование и испытания.

Автоматизированное проектирование зубчатых

передач при помощи программного комплекса КОМПАС

За два последних десятилетия информационные технологии коренным образом изменили принципы конструирования, ускорив при этом процесс разработки изделия, повысив его точность и надежность в десятки раз. Бытует ошибочное мнение, что графические и расчетные системы - это всего лишь цифровая замена проектирования вручную. Хотя в самом начале, конечно, так и было. Первые версии западных программ для работы с инженерной двухмерной графикой были не чем иным, как электронным вариантом карандаша и кульмана. Однако благодаря высоким технологиям сфера конструирования развивалась, и в результате появилась отдельная самостоятельная отрасль - автоматизированное проектирование. Постепенно в графических редакторах стало возможно повторно использовать ранее спроектированные изделия, легко и быстро создавать типовые элементы, самостоятельно оформлять чертежи и прочую документацию. Следом за этим появился механизм параметризации графического изображения. Один из этих удобных приложений был разработан компанией АСКОН, это специальные проектно-конструкторские библиотеки относящиеся к системе КОМПАС-3D.

Благодаря этому приложению стола возможным изображать редуктор в трех мерном изображении, в специальном интерфейсе по основным геометрическим размерам подпрограмма осуществяет построение требуемой модели.

Этот модуль может производить проектный расчет одноступенчатых редукторов трех видов: цилиндрического, конического или червячного, с последующим построением трехмерной модели (сборки) выбранного и рассчитанного редуктора в среде КОМПАС-3D (Рис. 3.1). Данный проект носит академический характер, поскольку, несмотря на то что все методики расчета и параметры согласованы с ГОСТом, сами редукторы не привязаны к определенным ус ловиям конкретного производства. Зато проект в полной мере демонстрирует возможности применения объектов автоматизации и то, насколько значимых результатов можно достичь в отдельно взятой отрасли машиностроения, расширив возможности КОМПАС-3D за счет использования подобного plug-in. Уровни функциональности и автоматизации проектов практически неограниченны - все зависит лишь от фантазии, конструкторских навыков и профессионального уровня программистов - разработчиков САПР.

Исходными данными для производимых подпрограммой «РЕДУКТОР-3D V2.1» расчетов служат три числа: вращающий момент ведомого вала, его угловая скорость и передаточное число редуктора (некоторые параметры перед построением можно изменить по желанию проектировщика, например число зубьев шестерни, угол наклона зубьев и др.).

Рис. 3.1 Построением трехмерной модели цилиндрического редуктора с помощью библиотеки «РЕДУКТОР-3D V2.1»

Все остальное программа проделает самостоятельно: определит геометрические характеристики, проведет проверочные расчеты, подберет подшипники и шпонки, выполнит компоновку редуктора(Рис 3.2).После ввода основных параметровпрограмма формирует 3D-модель редуктора.

Рис. 3.2 Построением трехмерной модели конического редуктора с помощью библиотеки «РЕДУКТОР-3D V2.1»

Зубчатый венец формируется копированием по концентрическойвыреза между зубьями в заготовке зубчатых колес, имитируя работу зубонарезного инструмента (количество копий равно количеству зубьев). Сам вырез создается с помощью операции вырезания выдавливанием для прямозубых колес или с помощью операции вырезания по сечениям для косозубых (Рис. 3.3).

Теперь можно приступать к решению ранее поставленной задачи, то есть собственно формирования зубчатого зацепления.(1. с,243).

При попытке точно определить значение угла поворота нужно будет учитывать то, что количество зубьев и шестерни, и колеса может быть как парным, так и непарным (в зависимости от передаточного числа редуктора), а также что даже при одинаковом количестве зубьев, но при разных модулях диаметр колес будет разным. Для того чтобы не вводить значительную часть расчетов нужно сформулировать так зубчатый венец колеса и шестерни, чтобы на оси соединяющей центры колес, с одной стороны (например, на шестерне) всегда размещался зуб, а с другой (на колесе) - вырез.

Рис. 3.3 Создание зубьев цилиндрического колеса с помощью операции вырезания

Таким образом, вырезать первым нужно именно ту пару зубьев, которая и будет находиться в зацеплении в собранной передаче, что позволит при сборке просто вставить модели. Задача свелась к построению эскизов вырезов, которые будут соприкасаться в одной точке, если нарисовать их в одной плоскости. Для этого точку зацепления следует разместить на линии центров, а эскизы вырезов вычертить по обе стороны этой линии, привязываясь к точке зацепления, но отдельно для шестерни и колеса.Такой подход в трехмерном моделировании сложных механизмов может помочь как программисту, так и инженеру-конструктору. Ведь разумно выбранный способ построения отдельных деталей проектируемого агрегата способен в дальнейшем значительно упростить сборку. После того как созданы вырезы с помощью выдавливания или операции по сечениям при любых значениях модуля, числа зубьев, передаточного числа или угла наклона зубьев, программа строит очень точную модель зубчатого зацепления. Чтобы еще больше усовершенствовать построение, можно строить шестерню не в начале координат, а сместив ее на величину межосевого расстояния aW по одной из координатных осей. Это нисколько не усложнит процесс моделирования шестерни, зато вся программная сборка ограничится в этом случае двумя - тремя инструкциями вставки 3D-модели колес из соответствующих файлов. По умолчанию все детали установятся в точку начала системы координат, но поскольку шестерня «подвинута» на величину aW , то сборка произойдет автоматически.

При проектировании конических колес процесс усложняется конструктивными особенностями конического зацепления, в котором оси колес пересекаются в пространстве под прямым углом. Плоскость, содержащая эскиз для выреза проточки между зубьями, должна быть касательной к боковой поверхности колеса,что имеет форму усеченного конуса, для того, чтобы вырезание выдавливанием формировалось в направлении образующей делительного конуса.(Рис 3.4).

Рис. 3.4 Зубчатое коническое колесо и плоскость, содержащая эскиз для формирования выреза зубов

Эскизы вырезов конического зацепления, прилегающих к паре зубьев, которые будут находиться в зацеплении, размещены в разных плоскостях (Рис 3.5). В отличие от цилиндрической передачи, где оба эскиза лежали в одной торцевой плоскости и при их построении можно было легко привязаться к точке зацепления, в коническом редукторе сложно определить местоположение этой точки в пространстве, общее для обоих эскизов при их построении в разных плоскостях. Можно рассчитать угловое смещение одной плоскости относительно другой, а также местоположение в них эскизов. Однако плоскость эскиза выреза зуба колеса и плоскость эскиза профиля зуба шестерни, находящиеся в зацеплении, совпадают. Следовательно, в этой же плоскости, но уже в модели шестерни, следует разместить эскиз профиля зуба. На коническом колесе зубчатый венец необходимо вырезать, а на шестерне - «приклеивать». При этом начинать следует с того выреза в колесе и с того зуба шестерни, которые будут в зацеплении в сборке, а затем делать их копию по концентрической сетке.

Рис. 3.5 Зубчатое коническое зацепление

Благодаря библиотеке «РЕДУКТОР-3D V2.1» можно проектировать и червячные редуктора. Витки вала - червяка можно сформировать с помощью кинематического вырезания. В качестве траектории вырезания следует взять объект «спираль цилиндрическая» с параметрами, подобранными таким образом, чтобы угол подъема спирали был равен углу подъема витков червяка, а ее диаметр - делительному диаметру червяка. Суть программной сборки заключается в определении такого положения эскиза для кинематической операции, чтобы после вырезания витки червяка вошли точно между зубьями червячного колеса. В этом случае особенно изощряться не приходится - смещение эскиза несложно рассчитать аналитически. Обычно расстояние, на которое нужно сместить эскиз, можно принимать как 2,5·P или 3,5·P, где P - шаг витков червяка. (Рис. 3.6)

Рис. 3.5 Создание модели червячного редуктора

Благодаря обширному арсеналу конструкторских библиотек, работа по моделированию стала намного проще. Благодаря архивам библиотек, конструктору не нужно тратить время на создание готовых изделий выполняющихся по ГОСТу.

. Разработка математического описания оптимизации параметровредуктора

Основная проблема постановки задачи оптимизации заключается в выборе целевой функции. Сложность выбора целевой функции состоит в том что любой технический объект первоначально имеет векторный характер критериев оптимальности, причем улучшение одного из выходных параметров, как правило, приводит к ухудшению другого, так как все выходные параметры являются функциями одних и тех же управляемых параметров и не могут изменяться независимо друг от друга. Такие выходные параметры называются конфликтными. Причем целевая функция должна быть одна.

Определение значения критерия оптимальности функционально можно представить зависимостью:

 

 

где X - компонентный вектор управляемых переменных xj;

К - компонентный вектор неуправляемых (который постоянный для данной задачи), переменных - передаваемые нагрузки, например материалы и термообработка зубчатых колёс, условия работы МЗП и т.д.

В решаемой задаче управляемыми параметрами редуктора являются:

. Диаметры dwi начальных окружностей шестерён;

. Передаточное отношение ui первой ступени редуктора;

. Отношения рабочей ширины зубчатого венца шестерни к межосевому расстоянию для первой ступени ψba;

. Числа zij зубьев шестерён;

. Внешний окружной модуль для цилиндрической передачи;

. Коэффициент ширины зубчатого венца для цилиндрической передачи kbe;

. Углы βi наклона линии зуба шестерён;

. Коэффициенты хkj смещения исходного контура.

Все величины (за исключением βiи хkj), предполагаются положительными.

В качестве управляемых переменных можно использовать другие параметры,что автоматически ведёт к усложнению сформированной математической модели.

Считая неуправляемые переменные постоянными для конкретной задачи, примем в качестве целевой функции функцию F(Х), которая каждому фиксированному значению набора искомых параметров ставит в соответствии некоторое определённое значение набора W (Х) технических показателей МЗП.

,

Показатели МЗП в данном случае будут являться в гиперпараллепипеде с координатными осями: -u, dw , qц , z, βj , x1 , x2.

Для двухступенчатой передачи характер целевой функции F(Х) гиперповерхностями, описываемыми уравнениями вида:

,

где С - величина, постоянная для каждой поверхности.

Постоянными переменными для двухступенчатого цилиндрического редуктора являются:

. Внешний вид колёс первой и второй ступени;

. Передаточное число второй ступени;

. Окружная сила, кН;

. Скорость ленты, м /с;

. Диаметр барабана, мм;

. Коэффициент суточной загрузки;

. Cрок службы редуктора, количестволет. (8. с, 16).

Множество всех возможных вариантов обозначим R. Если Х - допустимое решение, т. е. работоспособная передача, то . Множество допустимых зубчатых передач Х будет определятся рядом равенств и неравенств.

Используя введённые обозначения, сформулируем задачу параметрического синтеза оптимального редуктора.

При заданной целевой функции F(Х) и ограничениях, определяющих множество допустимых решений Х для заданной схемы редуктора, найти такие значения xi вектора Х, для которого целевая функция F(Х) принимает экстремальное (минимальное или максимальное) значение на множестве R:

,

Данная задача является задачей параметрической оптимизации, решение которой известными классическими методами затруднено, и поэтому требуется применение методов математического программирования. Функциональные ограничения при проведении оптимизации:

. Проверка допускаемого отклонения при вычислении точного передаточного числа для конической передачи;

. Проверка контактных напряжений для конической передачи;

. Проверка зубьев на выносливость по напряжениям изгиба для конической передачи;

. Прочностные возможности по контактной выносливости для цилиндрической передачи;

. Прочностные возможности по выносливости на изгиб для цилиндрической передачи.

Критерии оптимальности рассчитываемых параметров.

,

где:Н - высота редуктора, мм;

В - ширина редуктора, мм;

L - длина редуктора, мм.

Равнопрочность контактных напряжений и напряжений изгиба первой ступени:

,

где σHR 1 - реальное контактное напряжение первой ступени;

[σ]HP 1 - предельное контактное напряжение первой ступени.

Равнопрочность контактных напряжений и напряжений изгиба второй ступени: [7, стр. 9 - 10]

,

где σHR 2 - реальное контактное напряжение второй ступени;

[σ]HP 2 - предельное контактное напряжение второй ступени.

Процесс поиска оптимального решения выполняется за четыре этапа.

1 Этап - составление таблиц испытаний. Выполняется последовательно, с помощью датчика случайных чисел с повышенной равномерностью, построенного на основе ЛПτ - последовательности. Выбираются N пробных точек Х1, Х2,… Хn, равномерно расположенных в области поиска, ограниченной параметрическими ограничениями. При этом координаты каждой точки определяются по формуле:

,

где n - число параметров (≥ 2);

ξij - случайное число в диапазоне [0, 1];

N - число испытаний;

Ximinи Ximax - соответственно минимальное (максимальное) значения варьируемых параметров.

В каждой из точек области поиска проверяются функциональные ограничения P1(Xi), …Pg(Xi), и в случае невыполнения вычисляются значения всех критериев Y1(Xi), …Yf(Xi). В случае невыполнения хотя бы одного из функциональных ограничений, критерию автоматически присваивается заведомо большое число.

Далее по каждому критерию составляется таблица испытаний, в которой значения Yk(Xi), …Yk(Xn) располагаются в порядке возрастания с указанием номеров, соответствующих числу (N) пробных точек.

2 Этап- назначение критериальных ограничений.Этап выполняется проектировщиком на основе анализа таблиц испытаний. По каждому из критериев конструктор указывает номер точки, в которой критерий принимает экстремальное значение.

3 Этап - формирование параметров множества.Данный этап выполняется автоматически. Сначала определяются все точки, удовлетворяющие всем критериальным ограничениям. При этом возможна ситуация, что в силу назначения проектировщиком жёстких критериальных ограничений такие точки не обнаруживаются. В этом случае необходимо вернуться к этапу 2 и ослабить требования к редуктору, либо изменить исходные данные.

Из общего числа допустимых точек отбрасываются те, для которых возможно одновременное улучшение всех критериев при переходе к какой либо точке. Оставшиеся неулучшаемые варианты - паретооптимальные точки, предъявляются проектировщику для анализа и выбора окончательного решения.

4 Этап - определение окончательного варианта из паретовского множества проектных решений. (8. с, 10).

5. Редактирование и транслирование подпрограммы пользователя

var

t, Imax, bmax, hmax: integer;

n1, n11, n111, u, hrc, hb, kpd, T1: real;, u2, psi1, psi2, m1, m2, B, x1, x2, T11, T111: real;, SigmaHLim2, NHE1, NHE2, omega1, omega11, omega111, NHlim1, NHlim2: real;, ZN2: real;, sigmaH2, sigmamin, sigmaHP, sigmaH, NFE1, NFE2, sigmaHk: real;, YN2, sigmaflim1, sigmaflim2, sigmaFP1, sigmaFP2: real;, aw, awz, m11, mz, zsum, dw2, Ft, d2, b2, Z1C, Z1K, z1, zsum1, z2, Cz1, Cz2, Czsum1: real;: integer;: array[1…20] of real;: array[1…18] of real;, CSigmaHLim2, CNHE1, CNHE2, Comega1, Comega11, Comega111,, CNHIim2: real;, CZN2: real;, CsigmaH2, Csigmamin, CsigmaHP, CsigmaH, CNFE1, CNFE2: real;, CYN2, Csigmaflim1, Csigmaflim2, CsigmaFP1, CsigmaFP2, V, Y1, Y2: real;, Caw, Cawz, Cm11, Cmz, Czsum, Cdw2, CFt, Cd2, Cb2, dm1, cb, re, ssinB, de1, de2, dae1, dae2, dfe1, dfe2: real;, flagaw, flagaw1: integer;: array[1…100] of real;: array[1…100] of real;: text;, criterionnumber, optl: integer;: char;, sigf1, sigf2: real;: string;: boolean;:= true;:= 53.62;:=12.0;:=960;:=52560;:=48;:=285.5;:=0.913;:=0;:=0

assign(fl, ∙e:\optim\opt1\par.opt∙);

reset(fl);i:=1 to 7 do readln(fl, x[i]);(fl);:=x[1];:=x[2];:=x[3];:=x[4];:=x[5];c:=x[6];k:=x[7];:=1;:=0;:=(u/u2);((z1c<16) or (z1c>100)) thenwriteln(‛недопустимое количество зубьев цилиндрической шестерни′);

if((z1c<16) or (z1c>100)) thenwriteln(недопустимое количество зубьев конической шестерни);

TII:=TI∙0.97∙u1;

TIII:=TII∙0.98∙u2;

nll:=nl/u1;:=nll/u2;:=n1∙3.14/30;:=nll∙3.14/30;:=nlll∙3.14/30;:=965;:=674;:=60∙nl∙t∙0.578; :=60∙nl∙t∙0.578; :=60990000;:=25810000;:=exp((1/6)∙In(NHlim1/nhe1));:=exp((1/6)∙ln(NHlim2/nhe2));:=0.9∙sigmaHlim1∙ZN1∙1.07/1.2;:=0.9∙sigmaHlim2∙ZN2∙1.038/1.1;:=0.5∙(sigmaH1+sigmaH2);sigmaH1<sigmaH2 then sigmamin:=sigmaH1 else sigmamin:=sigmaH2;:=60∙nl∙t∙0.503;:=60∙nl∙t∙0/515;:=exp((1/6)∙ln(4000000/NFE1));:= exp((1/6)∙ln(4000000/NFE2));YN1<1 thenYN1:=1;YN2<1 thenYN2:=1;:=600;Flim2:=519.75;:=0.4∙sigmaflim1;:=0.4∙sigmaflim2;:=2∙psi2/(u2+1);:=10∙(U2+1)∙exp(1/3∙Ln(Tll/U2));(‛aw’);:=430∙2∙(u2+1)∙exp((1/3)∙ln(Tll∙1.07/(psiba∙706.5389∙706.539∙u2∙u2))):=2∙aw∙0.9659/m2;:=round(zsum)+1;:=zlc;:=zsum1-z1; (z1+z2)<60 thenwriteln(′не выполняется параметрическое ограничение для суммарного числа зубьев цилиндрической передачи′);

dw2:=2∙aw∙z2/zsum;

Ft:=2∙Tll[/(dw2∙0.001);

d2:=2∙aw-(z1∙m1/0.975);

b2:=psiBA∙aw;

sigmaH:=376∙sqrt(1.1∙1.1∙1.07∙(z2/z1)∙Ft/(b2∙d2));

if sigmah>sigmaHP then writeln (‛Значение sigmah>sigmaHP’);:=965;:=674;:=60∙nl∙t∙0.578;:=60∙nI∙t∙0/578;:=6.099∙10000000;:=2.686∙10000000;:=exp((1/6)∙ln(CNHlim1/Cnhe1));:=exp((1/6)∙ln(CNHlim2/Cnhe2));:=CsigmaHlim1∙CZN1/1.2;:=CsigmaHlim2∙CZN2/1.09;:=0.5∙(CsigmaH1+CsigmaH2);CsigmaH1<CsigmaH2 then Csigmamin:=CsigmaH1 else Csigmamin:=CsigmaH2;:=60∙nl∙t∙0.503;:=60∙nl∙t∙0.515;:=exp((1/6)∙ln(4000000/CNFE1));:=exp((1/6)∙ln(4000000/CNFE2));CYN1<1 then CYN1:=1;CYN2<1 then CYN2:=1;:=600;:=528.5;:=Csigmaflim1/1.7;:= Csigmaflim2/1.7;:=68∙exp((1/3)∙ln(Ti∙1.0863∙(sqrt(ul∙ul+1))∙1000/(0.85∙psil∙csigmahp∙csignahp)));:=psi1∙dm1;:=0.5∙(dm1/sin(17.61));:=dm1∙re/(re-0.5∙cb);:=z1k;:=round(u1∙cz1);:=ml∙cz2+2∙ml∙cos(17.52);:=ml∙cz1+2∙ml∙cos(72.48);:=(2∙aw+0.5∙dae2)∙(dae1+30)∙(dae1+30)/1000000;:=1500∙sqrt((1.04∙1.08∙TI)/(cz2∙m2∙1.5915));(sigmafp1/csigmaflim1)>(sigmafp2/csigmaflim2)thensigf1:=(sigmafp1/sigmaflim1) else sigfl:=(sigmafp2/sigmaflim2);(csigmafp1/sigmaflim1)>(csigmafp2/csigmaflim2)then sigf2:=(csigmafp1/csigmaflim1) else sigf2:=(csigmafp2/csigmaflim2);(sigmafp1>sigmaflim1) then writeln(′1’);(sigmafp2>sigmaflim2) then writeln(′2’);(csigmafp1>csigmaflim1) then writeln(′3’);(csigmafp2>csigmaflim2) then writeln(′4’);(cSIGmahp<SIGmahk) then writeln(′5’);(SIGmahp<SIGmahk) then writeln(′6’);:=abs((SIGmahp/SIGmah)-sigf1);:=abs((SIGmahp/SIGmahk)-sigf2);(sigmafp1>sigmaflim1) or (sigmafp2>sigmaflim2) or (csigmafp1>csigmaflim1) or (csigmafp2>csigmaflim2) then begin(‛The functional limitation in the program FUNC has been violated′);:=false;;(cSIGmahp<SIGmahk) or (SIGmahp<SIGmah) or ((dae2∙0.5+25)>aw) then begin(‛The functional limitation in the program FUNC has been violated′);:=false;;lim=true then begin[1]:=aw;[2]:=V;[3]:=abs((SIGmahp/SIGmah)-sigf1); {цилиндрическая}[4]:= abs((cSIGmahp/SIGmahk)-sigf2); {цилиндрическая}[5]:=abs(Y1-Y2);endbegin[1]:=9999;[2]:=9999;[3]:=9999;[4]:=9999;[5]:=9999;end;(‛value Aw= (′, f[1], ′)′);(‛value V= (′, f[2], ′)′);(‛value 3= (′, f[3], ′)′);(‛value 4= (′, f[4], ′)′);(‛value 5= (′, f[5], ′)′);

assign(fl, ‛e:\optim\opt1\FUN.OPT’);

rewrite(fl);(fl,f[1]);(fl,f[2]);(fl,f[3]);(fl,f[4]);(fl,f[5]);(fl);

end. (8. с,36)

6. Решение задачи многокритериальной оптимизации параметров на ПЭВМ

 При оптимизации параметров ставимся цель получить компактную, экономичную и эстетичную конструкцию, что может быть достигнуто использованием рациональных материалов для деталей передач, оптимальным подбором передаточного числа передач, использованием современных конструктивных решений, стандартных узлов и деталей при модернизации привода. зубчатый передача цилиндрический редуктор

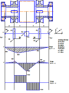
Рис 7.1 Кинематическая схема проектируемого редуктора

1, 1¢ - Шестерня косозубой цилиндрической передачи;

2, 2¢ - Колесо косозубой цилиндрической передачи;

3 - Шестерня шевронной цилиндрической передачи;

- Колесо шевронной цилиндрической передачи;

Проведем работу по оптимизации параметров редуктора. Его постоянными параметрами будет являться:

·        Крутящий момент на входном валу, Т1 = 53,62 Н∙м;

·        Частота вращения на входном валу, nэд = 960 мин-1;

·        Общее передаточное отношение редуктора, u = 12,0;

·        Продолжительность работы, t= 52560 ч;

·        Твёрдость зубчатых шестерён, HRC = 45 - 50;

·        Твёрдость зубчатых колёс, HB = 269 - 302.

Оптимизируемые параметры:

·        Передаточное отношение второй (тихоходной) ступени, u2;

·        Коэффициент ширины цилиндрической шестерни относительно диаметра, ψbdц;

·        Модуль зацепления быстроходной передачи, m1;

·        Модуль зацепления тихоходной передачи, m2;

·        Число зубьев шестерниz1;

·        Число зубьевколеса, z2.

Технические ограничения при оптимизации редуктора:

Важно при проектировании сформировать область допустимых значений требуемых нам параметров, которые формируются в виде аналитических или алгоритмических зависимостей.(9. с, 19)

Область параметрических ограничений:

·        Передаточное отношение тихоходной ступени должно быть 2,5 ≤u2 ≤ 4,5; Модуль зацепления быстроходной передачи, 2 ≤ m1 ≤ 5;

·        Модуль зацепления тихоходной передачи, 2 ≤ m2 ≤ 5;

·        Коэффициент ширины конической шестерни относительно диаметра 0,2 ≤ ψbdк ≤ 0,5;

·        Коэффициент ширины цилиндрической шестерни относительно диаметра, 0,6 ≤ ψbdц ≤ 0,9;

·        Число зубьев шестерни, 16 ≤ z1 ≤ 60;

·          Число зубьев колеса, 16 ≤ z2 ≤ 60.

·          Область функциональных ограничений которые предоставляются в виде , здесь С - константа.

Проверка по взаимному расположению колёс и валов редуктора проводится по формуле:

,

где dae 2 - внешний диаметр вершин зубьев колеса;

dвых - диаметр выходного вала.

Проверка на прочность проводится по формулам:

,

,

 

где σHP - допускаемое контактное напряжение.

Решение задачи оптимизации

Оптимизировать базовый редуктор будем в несколько этапов.

Сначала попытаемся оптимизировать выходные параметры редуктора, на самом раннем этапе проектирования считая его кинематику, можно предположить что изменяя общее передаточное число, изменяться коренным образом основные параметры т.е. частота вращения валов, угловые скорости, мощности на валах и следовательно крутящий момент на выходном валу. При подборе передаточного числа, постараемся подобрать его так чтобы вместе в увеличением крутящего момента не увеличивались размеры и масса самого редуктора, до тех пор, пока это будет возможным. Нам нужно подобрать оптимальное выходные параметры при его оптимизации, т.е. не ухудшить одни параметры при улучшении других.

Общее параметры базового редуктора:

u=12,0;

Z1=12; n1=960 об/мин;ω 1=99,4 рад/с;Т1=53,62Н×м;

Z2=36; n2= 226.19 об/мин;ω2=23,67 рад/с;Т2=153Н×м;

Z3=14; n3=80.73 об/мин;ω3=8,4рад/с;Т3=648Н×м;

Z4=56.

Уменьшим передаточное число за счет уменьшения числа Zвторой ступени передачи, и проанализируем значения выходных параметров.

u=11,2;

Z1=12; n1=960 об/мин;ω 1=99,4 рад/с;Т1=53,62Н×м;

Z2=36; n2= 237.5об/мин;ω2=24,85рад/с;Т2=153Н×м;

Z3=14; n3=79.16об/мин;ω3=2,6рад/с;Т3=605Н×м;

Z4=52.

Из расчетов мы видим что при понижении общего передаточного числа, крутящий момент на выходном валу начинает снижаться, что крайне не желательно. Ведь наша задача состоит в том чтобы увеличить его, тем самым сохраняя принцип конструктивной преемственности, это значит что конструкция модернизированного редуктора должна быть на базе прежней, с сохранением всех присоединительных размеров, что позволяет потребителям без каких-либо дополнительных затрат перейти к использованию усовершенствованных конструкций вместо типовых.

Попытаемся увеличить общее передаточное число за счет увеличения числа зубьев на колесе второй ступени.

При поиске наиболее оптимального передаточного числа второй ступени наи

более рациональным является применение колеса с числом Z равным 72. Передаточное число тогда будет равняться 5,14. А общее передаточное число будет равно 15,42. Следует отметить что передаточное число можно повышать

и выше, но это влечет за собой увеличение габаритных размеров редуктора. Проанализируем параметры редуктора при u=15.42:

Определение частоты вращения валов:

n1 = nэд = 960 об/мин;

n2 = n1/U12 = 960 / 3 = 316.66 об/мин;

n3 = n23/U34 = 316.66 /5.14 = 61.607 об/мин;

Определение угловых скоростей:

ωi= π×ni/ 30;

ω 1 = ω ЭД = π·nэд/30 = 3.14·960/30=99,4 рад/с;

ω 2 = π·n2/30 = 3,14·316,66/30=33,14 рад/с;

ω3= π·n3/30 = 3,14·61,607/30=6,448рад/с;

Определение мощностей на валах:

;

Вт.

Р1 = Р¢ЭД×hМ = 5330 · 0,98 = 5323 Вт;

Р2 = Р1 ×h12 · hП = 5330 · 0,97 · 0,96 = 4963Вт;

Р3= Р2 ×h34 · hП = 4963 · 0,97 · 0,96 = 4621 Вт.

Определение крутящих моментов на валах:

Т1 = Р1/ω1= 5330 / 99,4 = 53,62 Н×м;

Т2 = T1·U12·η12=53,22·3·0,97 = 156 Н×м;

Т3 = T2·U34·η34= 156·5,14·0,97 = 778 Н×м;

Из расчетов видно что с увеличением общего передаточного числа до 15,24 крутящий момент вырос до значения 778 Н×м, по сравнению с исходным при u=12.0 он равнялся 648 Н×м, при оптимизации крутящий момент на выходном валу вырос на 130Н×м.

u=15,42;

Z1=12; n1=960 об/мин;ω 1=99,4 рад/с;Т1=53,62Н×м;

Z2=36; n2=316.66об/мин;ω2=33.14рад/с;Т2=156Н×м;

Z3=14; n3=61.607об/мин;ω3=6.448рад/с;Т3=778Н×м;

Z4=72.

7. Модернизация эксплуатационных эффектов редуктора, за счет применения технологических усовершенствований

Используем оптимальное расположение начального пятна контакта у шестерни и колеса. Только за счет этого нововведения КПД повысился на 5-8%, уменьшился износ зубьев и нагрев, а продолжительность службы редуктора выросла до 6,8 года, у базового редуктора срок службы составлял 6лет.

А расположение контактных линий колеса обеспечивает лучшие условия для образования несущего гидродинамического масляного слоя между рабочими поверхностями. Снижается радиальная сила в зацеплении. Отсутствует осевое усилие на тихоходном валу.Кроме того, новая конструкция обеспечивает улучшенные условия смазки в зоне контакта, а это немало важно ведь молекулярно-механическое изнашивание проявляется как заедание при действии высоких давлений в зоне, где нет масляной пленки.

Правильный подборе противозадирных масел, позволит избежать заедание, т.к. особенно интенсивно в вакууме из-за отсутствия окисных пленок, а также часто происходит, когда рабочие поверхности зуба подвергаются высокому давлению. Заедание исключают повышением твердости и снижением шероховатости поверхностей.

Упрочнение деталей

Повышение твердости зубьев колес с НВ 270до HRC 65, путем применения термообработки - улучшение и закалка ТВЧ, это позволит уменьшить массу редуктора . Можно использовать процесс финишного плазменного упрочнения с нанесением алмазоподобного покрытия толщиной до 3 мкм на рабочие поверх ности валов. Нанесенное покрытие обладает повышенной твердостью (до 52 ГПа), не изменяет своих свойств до температур 1200 ˚С, обладает химической инертностью, низким коэффициентом трения, диэлектрическими свойствами, имеет высокую адгезию к основе, улучшает параметры исходной шероховатости, обеспечивает возможность нанесения покрытия на выполненные по окончательным размерам рабочие поверхности,но ввиду своей дороговизны оно используется редко.

Теперь предстоит произвести расчет допускаемых контактных напряжений, расчёт допускаемых предельных напряжений, определить геометрические размеры передачи и конструктивные размеры зубчатых колес, и произвести расчет валов.

Расчёт цилиндрической косозубой передачи 1-2

Расчёт допускаемых контактных напряжений:

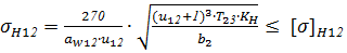
[s]H= 0.9 ×sHlim/ SH,

где SH - коэф. безопасности (SH=1.1 т.к материал с однородной структурой); sH lim - предел контактной выносливости зубьев, соответствующий эквивалентному числу циклов перемены напряжений, Н/мм2;

sH lim =sH lim B × KHL,

где sH lim в - предел контактной выносливости поверхности зубьев, соответствующий базовому числу циклов перемены напряжений, Н/ мм2;- коэффициент долговечности(4. с, 12).

 KHL =,

 

где NHO - базовое число циклов перемены напряжений;Е - эквивалентное число циклов перемены напряжений.

sH lim B = 2×ННВ +70

sH lim B 1= 2×280 + 70 = 630 МПа

sH lim B 2= 2×250 + 70 = 570 МПа= 30 HB 2.4= 30 × 280 2.4 = 22402708,6 = 22,4 × 106= 30 × 250 2.4 = 17067789,4 = 17 × 106= 60 ×n×c×tS×,

где с - число вхождений зацепления зуба за 1 оборот;

n - частота вращения вала, об/мин ; tS - суммарное время работы передачи;

tS = Zгод× 365 × Кгод×24 · Ксут

где Zгод - срок службы передачи;

Кгод - коэффициент годового использования;

Ксут - коэффициент суточного использования;

tS = 7 × 365 × 0,7× 24 · 0,6 = 9964.5часов1 = 60 × 950 × 1×9964.5× (13×0,5 +0,753×0,3 + 0,63×0,3) = 2448049706, NHE 2 = 60 × 226,2 × 1×9964.5× (13×0,5 +0,753×0,3 + 0,63×0,3) = 612012426,7

KHL 1 = < 1; KHL 2 = < 1;

[s]H 1 = МПа [s]H 2 = Мпа

Для косозубых передач в качестве расчётного принимается:

[s]H12 = 0,45× ([s]H1 +[s]H2) = 0,45(515,4+466,4) =441,8 МПа Определение допускаемых значений напряжений при расчёте зубьев на усталостный изгиб:


 где, sFlimB- предел выносливости при изгибе, соответствующий эквивалентному числу циклов нагружений; SF - коэффициент безопасности (SF=1,7..2,2);

Принимаем SF=1,75

sFlim=s0Flim.KFL

 

где, s0F lim B - предел выносливости зубьев при изгибе, соответствующий базовому числу циклов изменения напряжений [H/мм2];FL - коэффициент долговечности;s0FlimB= 1.8 ННВ.

s0F lim B1 = 1.8 × 280 = 504 МПа

s0F lim B2 = 1.8 × 250 = 450 МПа=,

 

где, NFO - базовое число циклов перемены напряжений;NFO = 4 . 106

NFЕ - эквивалентное число циклов перемены напряжений.

 = 60 ×n×c×tS×;

 

 Для зубчатых колёс с твёрдостью Н £ НВ 600 принимаем mf = 6.

 1 = 60 ×950 × 1 ×99964.5×(16×0,5 +0,76×0,3 + 0,66×0,3) = 932841324,2

NFE 2 = 60 × 226,2 × 1×9964.5×(16×0,5 +0,76×0,3 + 0,66×0,3) = 233210331,04

KFL 1 = < 1; KFL 2 = < 1;

Таким образом, принимаем KFL=1;

sF lim 1 = 504. 1 = 504 МПа

sF lim 2 = 450.1 = 450 МПа

МПа МПа

Расчёт допускаемых предельных напряжений:

,

 

где sТ - предел текучести материала при растяжении.

б

Мпа

б

б

Ориентировочный расчёт передачи:

,

 

где, Т23 - момент крутящий на колесе , Н ×мм;

 - расчётное допускаемое напряжение, Н/мм2;

КН - коэффициент нагрузки;

yа - коэффициент ширины зубчатого венца;Принимаем yа = 0,8.

ybd = (0,2…0,25) × (U12 + 1)

ybd= 0,25 · (4 + 1) = 1,25

 Определение коэффициентов КН, КF:

Коэффициенты нагрузки находятся по следующим зависимостям:

при расчёте на контактную выносливость: КН = КНb× КНV

где КНb,КFb - коэффициенты, учитывающие неравномерность распределения нагрузки по длине зуба при расчёте по контактным и изгибным напряжениям

соответственно;

КНV, КFV - динамические коэффициенты при расчёте по контактным и изгибным напряжениям соответственно.По графическим зависимостям и по заданной схеме закрепления зубчатых колёс находим значения коэффициентов:

КНb=1,22, КFb = 1,47.

Определим окружную скорость передачи:

,

 

где, nШ - частота вращения шестерни рассчитываемой пары колёс, об/мин;

СV - вспомогательный коэффициент;

ТК - момент на колесе рассчитываемой пары, Н×м; СV = 1500.

м/с

Определяем коэффициенты КНV и КFV: КНV = 1,04, КFV = 1,11.

Таким образом: КН = 1,22 × 1,04 = 1,269; КF = 1,47 × 1,11 = 1,632;


принимаем

Модуль зацепления определяется из эмпирического соотношения:

m12 = (0.01…0.02) ×a12 = 0,02∙130=2,6мм, принимаем m12 =2,5;

Найдём суммарное число зубьев:

 

где, b - угол наклона зубьев на делительном цилиндре. Так как значение угла b

ляется не известным, то предварительно зададимся величиной b = 25°.

 Принимаем  = 108

Число зубьев шестерни

Число зубьев на колесе: z1=36/3=12

Уточним передаточное отношение передачи:

12=z2/z1=36/12=3

Определим ширину зубчатого венца колеса:

2=aw12∙ψa=130∙0,8=104

Для снижения влияний погрешностей монтажа на величину поля зацепления ширина шестерён принимается на 5 мм больше:

1=b2+5=104+5=109

Уточним угол наклона зуба:

,

,

Геометрический расчёт передачи

Определим диаметры делительных окружностей:

 


,

,,

Проверка межосевого расстояния:

,

 

Определим диаметры окружностей вершин:

da1 = d1 + 2m = 52 +2× 2,5 = 57мм

da2 = d2 + 2m = 208 +2× 2,5 = 213 мм

Определим диаметры окружностей впадин:

df1 = d1 - 2.5m = 52 - 2,5 × 2,5 = 45,75 мм

df2 = d2 - 2.5m = 208 - 2,5 × 2,5 = 201,75 мм

Проверочный расчёт по контактным напряжениям:

;        

т. к. перегруз составляет менее 5%, то ранее принятые параметры принимаем за окончательные.

Проверочный расчёт по напряжениям изгиба:

YF1 = 4,12; YF2 =3,744

,

,

 

Силы, действующие в зацеплении

Окружная сила:

Радиальная сила: Fr1=Fr2=Ft∙tgα/cosβ=4608,08∙0,364/0,911=1836,3 H

Осевая сила: Fa1=Fa2=Ft1∙tgβ=4608,23∙0,4456=2050,66 H

Расчёт цилиндрической косозубой передачи 3-4

Модуль зацепления определяется из эмпирического соотношения:

12 = (0.01…0.02) ×a12 = 0,02∙130=2,6мм

принимаем m12 =2,5;

Найдём суммарное число зубьев:


где, b - угол наклона зубьев на делительном цилиндре. Так как значение угла является не известным, то предварительно зададимся величиной b = 25°. (5. с, 41)

 Принимаем  = 72

Число зубьев шестерни

Уточним передаточное отношение передачи:

U12=z2/z1=72/14=5.14

Определим ширину зубчатого венца колеса:

2=aw12∙ψa=130∙0,8=104

Для снижения влияний погрешностей монтажа на величину поля зацепления ширина шестерён принимается на 5 мм больше:

1=b2+5=104+5=109

Уточним угол наклона зуба:

.,

,

Геометрический расчёт передачи

Определим диаметры делительных окружностей:

 

,

,

,

 

Определим диаметры окружностей вершин:

1 = d1 + 2m = 52 +2× 2,5 = 57мм

da2 = d2 + 2m = 208 +2× 2,5 = 213 мм

Определим диаметры окружностей впадин:

1 = d1 - 2.5m = 52 - 2,5 × 2,5 = 45,75 мм

df2 = d2 - 2.5m = 208 - 2,5 × 2,5 = 201,75 мм

Проверочный расчёт по контактным напряжениям:

;

,

т. к. перегруз составляет менее 5%, то ранее принятые параметры принимаем за окончательные.

Проверочный расчёт по напряжениям изгиба:

1 = 4,12; YF2 =3,744

,

,

 

Силы, действующие в зацеплении:

Окружная сила:

Радиальная сила: Fr1=Fr2=Ft∙tgα/cosβ=4608,08∙0,364/0,911=1836,3 H

Осевая сила: Fa1=Fa2=Ft1∙tgβ=4608,23∙0,4456=2050,66 H

Равнопрочность контактных напряжений и напряжений тихоходной ступени:

,

,

,

,

,

,

Равнопрочность контактных напряжений и напряжений

быстроходной ступени:

,

,

,

,

,

,

Разность равнопрочностей первой и второй ступеней определяем из неравенства.

,

,

Схема сил и эпюры моментов на тихоходном валу:


Рассмотрим проекции сил в плоскости ХZ :

 - Ft2× 66,97 - Ft3× 206,94- Ft2× 346,91 + Rx4 × 413,88 =0;

Ft2× 66,97 + Ft3× 206,94 + Ft2× 346,91 - Rx3 × 413,88=0;


Рассмотрим проекции сил в плоскости УZ:

Fr2 × 66,97 + Fа2× 106,8- Fr3× 206,94 +Fr2∙346.9- Fа2× 106,8- Ry4 × 413.88 =0;

Fr2 × 66,97 - Fa2× 106,8 + Fr3× 80 - Fr2× 346,9 + Fa2× 106,8 +Ry3 × 413,88 =0;


Суммарные реакции опор:

 ;,

;,

Предварительно назначаем подшипники роликовые радиально-упорные тяжелой серии 7310А. (6. с, 394).

Рассмотрим проекции сил в плоскости ХZ:

 Ft4× a - Rx6 × 2a =0;

тогдаН

 -Ft4× a + Rx5 × 2a = 0;

тогдаН

Рассмотрим проекции сил в плоскости УZ:

 Fr4 × a -Ry6 × 2a =0;

тогдаН

 -Fr4× a + Ry5 × 2a =0;

тогдаH

Суммарные реакции опор:

;

;

Предварительно назначаем подшипники шариковые радиальные однорядные лёгкой серии 215 (6. с, 396).

Для принятых подшипников находим:

 = 66300 H; X = 1; Y = 0 .

Найдём эквивалентную динамическую радиальную нагрузку:

,

 где коэффициенты V = 1, Кб = 1,4 , КТ = 1


Составим таблицу итоговых оптимизированных параметров, колеса и шестерни передачи 3-4. За счет регулировки межосевого расстояния, путем оптимального подбора его длины, конечный наиболее оптимальный вариант составил расстояние длинной 170 мм.

Регулировка межосевого расстояния осуществлялась таким образом чтобы наиболее оптимальная длинна не изменяла коренным образом достигнутые оптимизированные параметры, в кинематическом расчете, что позволило подобрать наиболее оптимальные размеры и параметры редуктора.

Таблица Результаты оптимизации двухступенчатого редуктора

Наименование рассчитываемого параметра

Обозначение

Размерность

Численное значение

1

2

3

4

Межосевое расстояние

,

мм

170

Модуль передачи

,

мм

3,5

Диаметр начальной окружности шестерни

,

мм

84,0449

Диаметр начальной окружности колеса

,

мм

255,9551

Диаметр окружности выступов шестерни

,

мм

91,0449

Диаметр окружности выступов колеса

,

мм

262,9550

Диаметр окружности впадин шестерни

,

мм

75,2949

Диаметр окружности впадин колеса

,

мм

247,2050

Ширина зубчатого венца шестерни

,

мм

73

Ширина зубчатого венца колеса

,

мм

98

Угол наклона зуба

,

град

23,638

Окружная сила в зацеплении

,

Н

10897,5

Радиальная сила в зацеплении

,

Н

4329,61

Осевая сила в зацеплении

,

Н

5078,24

8. Анализ результатов расчётов

В результате изменения передаточного числа в сторону его увеличения до 15.42, по с равнению с первоначальным 12.0 заметно вырос крутящий момент на выходном валу редуктора. За счет оптимизации зацепления зубчатых колес и улучшения их геометрических размеров был снижен вес редуктора, повышение твердости зубчатых колес позволило продлить срок службы редуктора.

В результате оптимального подбора межосевого расстояния, были достигнуты оптимальные конструктивные размеры редуктора без отрицательно воздействия на крутящий момент на выходном валу. Была достигнута способность воспринимать повышенные, в 1,4...1,6 раза, нагрузки при одновременной повышенной сопротивляемости износу; Так же модернизированный редуктор обладает повышенным КПД, а следовательно более экономичныйпо отношению к затратам на электроэнергию. Была увеличена долговечность редуктора, до 6,8 года, по сравнению с базовым 6 лет. Выбор оптимальных форм деталей в зависимости от их назначения, позволил уменьшить концентрацию напряжений.

Заключение

В ходе оптимизации двухступенчатого цилиндрического редуктора, были закреплены знания по расчету его кинематических и геометрических параметров. Более углубленно освоен материал по модернизации уже существующих аналогов.

Закреплены навыки по нахождению оптимальных параметров, изменяя их так чтобы оптимально подойти вопросу изменения одних параметров на другие.

Были закреплены знания по работе с программами автоматизированного проектирования в частности с КОМПАС 3D, компас shaft-3d. К работе прилагается графический материал, выполненный в программе КОМПАС-3D.

Список использованной литературы

1.Богуславский А. А. Информационно-коммуникационные технологии в подготовке учителя технологии и учителя физики: сборник материалов научно-практической конференции. Ч. 2. КОМПАС-3D в образовании. - Коломна: Московский государственный социально-гуманитарный институт, 2010. 141 с.

. Дунаев П.Ф., Леликов О.П. Конструирование узлов и деталей машин. - М.: Изд. центр «Академия» , 2003. - 496с.

. Грувер М., Зиммерс Э. САПР и автоматизация производства: Пер. с англ. - М.: Мир, 1987. - 528 с

. Фейгин А.В. Расчет зубчатых передач: Методическое указание по курсовому проектированию. - Хабаровск: Изд-во Хабар. гос. техн. ун-та, 1997. - 39 с.

. Фейгин А.В. Расчет зубчатых передач (цилиндрические косозубые, конические прямозубые): Методическое указание по курсовому проектированию. - Хабаровск: Изд-во Хабар. гос. техн. ун-та, 2003. - 29 с.

. Чернавский С.А.,Чернин И.М., Боков К.Н. Курсовое проектирование деталей машин. - М.: Машиностроение, 1988. - 416 с.

. Шейнблит А.Е.Курсовое проектирование деталей машин :учебное пособие. - Калининград : Янтар.сказ., 2003.- 454 с.

. Попов В. Б. Кадач Т. В. Оптимизация параметров закрытых зубчатых передач. - метод. Указания к курс. и диплом. проектированию. Гомель, 2009.

. Попов В. Б., Кадач Т. В. Принятие решений при автоматизированном проектировании типовых зубчатых редукторов. Вестник ГГТУ им. П. О. Сухого. - 2007. №1 стр. 22 - 28.

Аннотация

Целью курсового проекта является развитие навыков технического анализа конструкций и проектирования механизмов, путем оптимизации параметров двухступенчатого цилиндрического редуктора. Так же в курсовом проекте будет осуществляться проведение инженерных расчетов цилиндрического двухступенчатого редуктора, что позволит закрепить и углубить знания по изучаемой дисциплине.

Актуальность темы в состоит в том что, совершенствуя уже существующие механизмы, в данном случае редуктор, мы экономим время, и материальные ресурсы, что немаловажно в условиях существующей конкуренции.

Пояснительная записка проекта состоит из: 57 страниц, 9 рисунков, 2 листа приложения.

Графическая часть состоит из 4 листов формата А1.

Похожие работы на - Оптимизация параметров двухступенчатого цилиндрического редуктора

 

Не нашли материал для своей работы?
Поможем написать уникальную работу
Без плагиата!
Без нейросетей!