Технология и организация строительства насосной станции второго подъема из кирпича

  • Вид работы:
    Курсовая работа (т)
  • Предмет:
    Строительство
  • Язык:
    Русский
    ,
    Формат файла:
    MS Word
    119,87 Кб
  • Опубликовано:
    2015-10-10
Вы можете узнать стоимость помощи в написании студенческой работы.
Помощь в написании работы, которую точно примут!

Технология и организация строительства насосной станции второго подъема из кирпича

Министерство сельского хозяйства Российской Федерации

Департамент кадровой политики и образования

ФГБОУ ВПО Приморская государственная сельскохозяйственная академия

Кафедра водоснабжения и водоотведения





 

 

 

Курсовая работа

Технология и организация строительства насосной станции второго подъема из кирпича


Выполнил:

студент 5 курса з/о

Викторов О.С. шифр 751003

Проверил: ст. пр-ль

Калугин С.Ю.


Уссурийск, 2015

Содержание

1. Обоснование продолжительности строительства и расчет задела по кварталам

. Обоснование состава строительных операций

. Подсчет объемов земляных работ

. Подсчет объемов бетонных работ

.1 Монолитный бетон

.2 Сборный железобетон и кирпич

. Подбор машин

.1 Подбор бульдозера

.2 Подбор экскаватора

.3 Подбор крана

. Технологическая карта и календарный план строительства

.1 Составление технологической схемы

.2 Комплектование машин

.3 Календарный план строительства

. Производственная база и строительный генеральный план

.1 Состав объектов временной базы строительства

.2 Проектирование строительного генерального плана

Литература

1. Обоснование продолжительности строительства и расчет задела по кварталам

Нормативный срок строительства определяем по позиции 23 подраздела 2 раздела 3 [4]. Для 100 м3/ч общий срок Т = 5 мес., подготовительный период составил 1 мес. Так же, методом интерполяции, по позиции 23 подраздела 2 раздела 3 [4] определяем нормы задела в строительстве по кварталам в %:

Кп1 = 75%; Кп2 = 100%.

Общую продолжительность строительства определяем по формуле:

Тобщ = Т * К (1)

где К - коэффициент неравномерности строительства в зависимости от территориальных и климатических условий, К = 1,2 [4].

Тобщ = 6 * 1,2 = 6 мес.

Расчет задела ведем в табличной форме (таблица 1) по формулам 2 и 3.

δ = (Т/ Тобщ) * n (2)

где n - число кварталов, соответствующее его порядковому номеру.

Задел по капитальным вложениям КпI для общей продолжительности строительства определяем по формуле:

КпI = Кп + (Кп+1 - Кп) * d (3)

где Кп и Кп+1 - показатели задела по капитальным вложениям для продолжительности строительства, принятой по норме;- коэффициент, равный дробной части коэффициента δ.

Таблица 1.1 - Расчет задела

№ п/п

Наименование параметров

 Квартал



1

2

1

δ

0,83

1,67

2

d

0,83

0,67

3

КпI

96

100


Общий объем капитальных вложений при разработке ПОС распределяется в соответствии с определенными в таблице 1.1 величинами показателей задела по капитальным вложениям КпI, как соответствующий проценту КпI процент от остатка капитальных вложений на расчетный квартал.

2. Обоснование состава строительных операций

Прежде, чем приступить к основным работам, выполняем подготовительные работы, которые включают в себя: временное обеспечение строительства электроэнергетическими ресурсами и водой, устройство площадок для складирования строительных материалов, оборудования, инвентаря и инструментов, а также для различных элементов опалубки, устройство подземных путей.

После проведения подготовительных работ выполняем основные работы, в которые входят:

. Снятие слоя растительного грунта бульдозером;

. Разработка минерального грунта экскаватором;

. Выравнивание дна котлована вручную;

. Устройство щебеночной подготовки слоем 10 см.;

. Укладка бетонной смеси в тело дна подземной части Н.СТ. слоем 20 см.;

. Монтаж опалубки стенок подземной части Н.СТ.;

. Укладка бетонной смеси в стенки подземной части Н.СТ. толщиной 0,5 м.;

. Гидроизоляция дна и стенок подземной части Н.СТ. битумной мастикой;

. Обратная засыпка грунта в пазухи вокруг подземной части Н.СТ.;

. Монтаж стен Н.СТ. из стеновых панелей краном;

. Монтаж плит перекрытия краном;

. Укладка мягкой кровли.

3. Подсчет объемов земляных работ

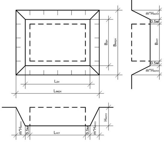
Площадь дна котлована с учетом запаса 0,5 м вокруг опалубки:

дн = (Lнст + 2*0,7) * (Внст + 2*0,7) (4)

дн = (10,5 + 2*0,7) * (7,5 + 2*0,7) = 125 м2

Площадь котлована по верху с учетом коэффициента заложения откосов:

верх = (Lнст + 2*0,7 + 2*m* Hкотл) * (Внст + 2*0,7 + 2*m* Hкотл), (5)

где m - коэффициент заложения откосов.верх = (10,5 + 2*0,7 + 2*0,25*2,2) * (7,5 + 2*0,7 + 2*0,25*2,2) = 136 м2

Определяем общий объем котлована:

общ = (Sдн + Sверх)/2 * Hкотл (6)

общ = (125 + 136)/2 * 2,2 = 287 м3мин = 287,2 м3

Баланс грунтовых масс составляем в табличной форме:

Таблица 3.1 - Баланс грунтовых масс

Выемка

Насыпь

Наименование

Объем, м3

Наименование

Объем, м3

Растительный грунт

-

Отвал

-

Выемка котлована

287,2

30% засыпка пазух

86



70% временные дороги

201


Рисунок 3.1 - Схема к определению объемов земляных работ

4. Подсчет объемов бетонных работ

.1 Монолитный бетон

Подземная часть насосной станции возводится из монолитного железобетона на щебеночном основании, которое в учебных целях не учитываем. Подземная часть насосной станции состоит из плиты основания (дна) толщиной 0,2 м. и стен толщиной 0,5 м. Объем плиты дна:

дна = Lнст * Внст * 0,2 (7)

дна = 10,5 * 7,5 * 0,2 = 16 м3

Объем стен подземной части считаем как произведение толщины, высоты подземной части (Нподз = Hкотл), и периметра (Р):

стен = 0,64 * Р * Hкотл, (8)

где Р=(Lнст+Внст)*2 = (10,5 + 7,5)*2 = 36 м (9)

стен = 0,64*36*2,2 = 51 м3

Общий обем монолитного бетона:

мон.бет = Vдна + Vстен (10)

мон.бет = 16 + 51 = 67 м3

.2 Сборный железобетон и кирпич

Надземную часть насосной станции монтируем из кирпича.

Количество кирпича определяем как:

Nк = Р*Нн.ч.*0,64 (11)

к = 36*5*0,64 = 115 м3

Кровлю устраиваем мягкую, на плитах перекрытия ПТК шириной 1,5 м.

Количество плит ПТК определяем как частное от деления длины здания Lнст на ширину плиты:

птк = Lнст / 1,5 (12)

птк = 10,5 / 1,5 = 7 шт.

5. Подбор машин

При подборе типа и марок машин, используемых для выполнения строительных операций, следует руководствоваться следующими соображениями:

. Число типов машин в комплекте должно быть минимальным.

. Производительность машин, выполняющих строительные операции, должна обеспечивать непрерывную работу ведущих машин комплекта.

. В качестве комплектующих машин следует использовать такие, которыми можно выполнять несколько не ведущих операций.

.1 Подбор бульдозера

Обратная засыпка пазух грунтом выполняется бульдозером.

По Е2-1-22, табл. 1 [1] предварительно принимаем бульдозер ДЗ-8:

Тип отвала: неповоротный.

Длина отвала: 3,03м;

Высота отвала: 1,1м;

Мощность: 7,9 кВт;

Марка трактора: Т-100;

Масса бульдозерного оборудования: 1,58т.

Объем грунта, который нужно переместить:

тр = Vпазух = 86 м3 (13)

Максимальный объем грунта, набираемый перед отвалом за 1 проходку:

= (H02 * Lотв * Sinβ * KH)/(2 * tgφ) (14)

где Но - высота отвала, Но = 1,1м;отв - длина отвала, Lотв =3,03 м;

β - угол захвата, β = 90о;

φ - угол естественного откоса грунта, φ = 30-40о;

Кн - коэффициент заполнения емкости перед отвалом бульдозера в долях от наибольшего заполнения, Кн = 0,6-0,8.= (1,12 * 3,03 * 1 * 0,8)/(2 * 0,839) = 1,75м3= 1,75м3 < qтр = 86 м3

Число проходок по одной и той же полосе грунта при послойной его срезке до проектного объема:

прох = qтр / q (15)

прох = 86 / 1,75 = 49 шт.

Рисунок 5.1 - Схема к подбору бульдозера

.2 Подбор экскаватора

Выбор экскаватора осуществляют в два этапа:

1.      Предварительно на основании назначенных параметров котлована (глубина, ширина по дну) подбирают возможные варианты машин. Конкретно марки и технические характеристики определяем по ЕНиР сборник Е2 "Земляные работы".

2.      Окончательно на основе технико-экономических расчетов по наименьшей величине прямых затрат.

Выбор одноковшовых экскаваторов для разработки грунта в котловане проводят исходя из условий постановки экскаватора (поперечная или продольная).

Условия для продольной разработки:

1.      Rв  А

2.      Нрт  Нкотл

.        Нв  Нк

.        Вк ≤ в

Для подбора экскаватора вычисляем расстояние от оси выемки до внешней бровки кавальера:

А = в/2 + m*Нкотл + δ + 2*mк*Нк + ак (19)

где в - ширина котлована по дну, м;- заложение откосов котлована;

Нкотл - глубина котлована, м;

δ - расстояние от края выемки до внутренней бровки кавальера, δ = 3,5 м;к - заложение внутреннего откоса кавальера, mк = 1:1;

Нк - высота кавальера:

 (20)

= 2,4 м;котл - площадь поперечного сечения котлована, м2;

ак = 0.

А = 8,5/2 + 0,25*2,2 + 3,5 + 2*1*2,3 + 0 = 12,9 м

По рис.5 и прил. 2 [9], или §Е2-1-11 [3] подбираем экскаватор марки Э-1011 при следующих параметрах:в = А = 14,4 м;

Нрт > Нкотл = 10 м;

Нв > Нк = 12 м;

Вк ≤ в (условно, т.к. современные экскаваторы имеют сменные ковши);= 15 м;

Вес = 32,7 т;= 71 кВт.

Схема приведена на рис. 5.2.

Рисунок 5.2 - Схема к подбору экскаватора

.3 Подбор крана

Кран подбираем по вылету стрелы и соответствующей грузоподъемности.

Вылет стрелы:

LKP = (B/2) + δ + (d/2) (21)

где В - ширина котлована по верху, м;

δ - минимальное расстояние от края котлована до колес крана.

Принимается в зависимости от глубины котлована, типа грунтов (принимаем δ = 3,5 м);- ширина ходовой части крана, для упрощения примем d = 3 м.= (8,5/2) + 3.5 + (3,0/2) = 9,2 м

Наиболее тяжелые элементы - это плиты перекрытия. Плиты укладываем по одной, весом по:

ст.п = Вн.ст. * 0,3 * 2,5 (22)

где 2,5 - плотность бетона, т/м3;

,3 - площадь сечения плиты перекрытия, м2.ст.п = 7,5 * 0,3 * 2,5 = 5,6 т

Грузоподъемность при данном вылете стрелы не должна быть меньше этой массы.

По прил. 9 [9] подбираем кран марки К-255:

Грузоподъемность без выпускных опор: 2,5-11т;

Вылет стрелы: 4,2-14 м;

Высота подъема крана: 6,5-12,7 м;

Построен на пневмоходу.

Схема приведена на рис. 5.3.

Рисунок 5.3 - Схема к выбору крана

6. Технологическая карта и календарный план строительства

.1 Составление технологической схемы

Для производства работ используются машины и рабочие. Технологический расчет состоит в определении норм времени и выработки, затрат труда и стоимости выполненных операций. Составляется таблица с указанием вида и объема работ, марок машин, норм времени и расценок. Нормы времени и расценки определяем по [3, 7].

Норма выработки:

Нвыр = Ед. / Нвр, [Ед/ч] (23)

где Ед. - объем, выполняемый за одну норму времени (Нвр).

Количество Машино - смен:

М = (Vобщ/Ед.) * (Нвр/8), [М-см] (24)

где Vобщ - общий объем данного вида работ;

- число часов в смене.

Количество человеко-дней:

Ч-дн = М * nзв, [Ч-дн] (25)

где nзв - число человек в звене, чел.

Расчет ведем в табличной форме (таблица 6.2).

6.2 Комплектование машин

Потребное количество машин при разработке ПОС определяют по формуле:

= (M * Kнер) / (Мр *Т) (27)

где М - общая машиноемкость, м-см;

Мр - нормативное число машино - смен в год (табл. 25 [1]);

Т - срок строительства, годы;

Кнер - коэффициент неравномерности выполнения работ по годам, Кнер = 1,3.

Данное выражение дает приблизительное число машин. Наиболее точно комплектование машин достигается технологическим расчетом при разработке ППР. Используем данную методику.

При составлении комплектов машин не всегда удается решить вопрос о равномерной загрузке всех машин. Полная загрузка всех машин в комплекте может быть получена при условии обеспечения равенства:

/n1 = M2/n2 = M3/n3 = M4/n4 ... (28)

где Мi - количество рабочих машино-смен каждой машины комплекта;- число соответствующих машин в составе комплекта.

Для определения необходимого числа машин каждого типа, примем за единицу машину, число машино-смен которой минимально.

Необходимое число всех машин:= 1 шт.= n1 * M2/M1 шт.= n1 * M3/M1 шт.= n1 * M4/M1 чел.

При превышении сроков строительства выполнением операции, увеличиваем число смен для данной машины, или пропорционально увеличиваем число всех машин.

На практике при строительстве отдельных малых объектов обычно принимают по одной машине для каждого вида работ, что не увеличивает сроков строительства, поскольку фактическая трудоемкость меньше нормативного времени. Поэтому независимо от расчетов принимаем по одной машине для каждого вида работ, и 2 звена (человека) рабочих.

Расчет ведем в табличной форме (таблица 6.1).

Таблица 6.1 - Состав комплекта машин для производства работ методом линейного потока

Наим. машин

М - см. на Vобщ

Потребное число машин, шт.



По расчету

С округлением

Итог

1 ДЗ-8

1

1

1

1

2. Э-1011

2

2

2

1

3. К-255

3

3

3

1

Всего машин в комплекте:

3

4. Рабочие

42

42

42

10


.3 Календарный план строительства

Календарный план - один из основных документов проекта, в котором на основании правильной технологической последовательности устанавливаются сроки выполнения строительно-монтажных работ.

Календарный план составляется с учетом:

сроков строительства объектов, установленных в СН 440-79 "Нормы строительства и задела в строительстве сооружений";

марок ведущих машин и механизмов;

запроектированных способов производства работ;

равномерной и наиболее полной загрузки всех машин и механизмов в комплекте.

Для проектирования календарного плана необходимы следующие основные данные:

технико-экономические обоснования строительства;

плановые документы сроков строительства;

решение по использованию строительных материалов, конструкций, изделий, машин;

сведения о возможности обеспечения строительства местными кадрами, помещениями;

данные о мощности строительной организации;

действующие нормативы, правила, нормы.

Последовательность проектирования календарных планов:

. Устанавливается очередность и сроки возведения отдельных объектов.

. Пусковые комплексы.

. Объем капиталовложений, строительных работ по кварталам.

. Заполняют форму календарного плана.

Календарный план входит в состав рабочего проекта и называется объектным календарным планом, который часто составляется по фактической трудоемкости. В учебных целях проектируем фактический объектный календарный план. Наш календарный план состоит из двух частей:

технологической карты на строительство трубопровода;

непосредственно календарного плана с определением места каждого вида работ времени.

Продолжительность каждого вида работ определяется по формуле:

строительство насосный станция бетонный

Тобщ = Vобщ / Псут (29)

где Vобщ - общий объем данного вида работ;

Псут - суточный поток:

Псут = Нвыр * N * T (30)

где Нвыр - норма выработки данной машины в смену;- число данного вида машин;

Т - число смен в сутки, Т = 1.

Среднее число рабочих Аср:

Аср = (∑Ч-дн/∑Тобщ)*К (31)

где К = 1,1;

∑Ч-дн и ∑Тобщ - общие трудоемкость и продолжительность работ (с календарного плана).

Аср = (54/53)*1,2 = 1,2 чел.

Коэффициент неравномерности движения рабочих кадров:

Кнер = Аmax / Аср < [Кнер] = 1,4÷1,6 (32)

где Аmax - максимальное число рабочих в день по календарному плану (табл. 6.2) и таблице 6.3.

Кнер = 10/1,2 = 8,3

Календарный план, приведен в таблице 6.2.

Таблица 6.2 - Календарный план

№ п/п

Наим. операции, условия.

Марки машин

Ед. изм

Vобщ

Нвр на ед.

Нвыр

Трудозатраты

Обоснование

n, машин

Псут

Тобщ, дни








М, м-см

Ч-дн





1

Разработка грунта 2 гр. в котловане экскаватором.

Э-1011

100м3

287

4,2

230,8

2

2

§Е-2-1-11 т-1

1

23,8

1

2

Планировка дна и откосов вручную (5%).

Зв. раб.

1м3

14

1,5

0,7

3

21

§Е-2-1-47 т-1

8

6,0

2

3

Устройство щебеночной подготовки слоем 10 см.

Зв. раб.

1м2

79

0,27

3,7

3

§Е-4-3-1

8

30,0

3

4

Укладка бетонной смеси в тело дна (0,2м) и стен (0,3м) подземной части Н.СТ.

К-255

1м3

67

0,26

3,9

2

6

§Е-4-1-49

3

8

8

5

Гидроизоляция дна и стенок подземной части Н.СТ. битумной мастикой.

Зв. раб.

100м2

158

4,8

20,8

1

8

§Е-11-37

8

166,0

1

6

Обратная засыпка пазух в котловане как 30% объема мин. грунта 2 гр.

ДЗ-8

100м3

86

0,55

181,8

1

1

§Е-2-1-22 т-1

1

181,8

1

7

Кладка стен.

Зв. раб.

1м3

115

2,9

0,3

42

336

§Е-3-3 т-3

8

2,4

48

8

Монтаж стеновых панелей и плит перекрытия краном

К-255

1шт

7

0,24

4,2

1

3

§Е-4-1-3

3

4,2

7

9

Укладка мягкой кровли

Зв. раб.

100м2

79

3,4

29,4

1

3

§Е-4-1-11

8

235,0

1




 

 

 

 

395


 

 

83

Наим. операции, условия.

10

10

10

10

10

10

10

10

10

10

10

1

Разработка грунта 2 гр. в котловане экскаватором.












2

Планировка дна и откосов вручную (5%).

 











3

Устройство щебеночной подготовки слоем 10 см.












4

Укладка бетонной смеси в тело дна (0,2м) и стен (0,3м) подземной части Н.СТ.












5

Гидроизоляция дна и стенок подземной части Н.СТ. битумной мастикой.












6

Обратная засыпка пазух в котловане как 30% объема мин. грунта 2 гр.












7

Кладка стен.












8

Монтаж стеновых панелей и плит перекрытия краном












9

Укладка мягкой кровли














. Производственная база и строительный генеральный план

.1 Состав объектов временной базы строительства

Число вагончиков и иных объектов временной базы определяется при разработке ПОС. В состав объектов временной базы строительства входит следующий перечень объектов (таблица 7).

Таблица 7 - Состав объектов временной базы строительства

№ п/п

Наименование объектов

1

Вагон-контора прораба

2

Красный уголок и столовая

3

Общежития и помещения для сушки

4

Вагон - мастерская

5

Закрытый склад

6

Уборные на два очка

7

Пожарный щит

8

Склад - навес

9

Емкости для воды

10

Склад ГСМ тарного хранения

11

Площадка для обслуживания и ремонта машин

12

Душевые

13

Ограждение или обозначенные границы базы


.2 Проектирование строительного генерального плана

Строительный генеральный план служит составной частью проекта организации строительства. Их разрабатывают на топографической и плановой основе постоянных сооружений с плановой и высотной привязной всех временных элементов, используемых в период производства строительных работ.

На строительном генеральном плане показывают:

постоянные объекты основного производственного назначения;

временная база строительства и другие объекты;

постоянные и временные инженерные сооружения.

При проектировании строительного генерального плана учитывают:

. Минимум площади отчуждения земель.

. Максимальное их использование для строительства.

. Максимальное использование существующих баз, предприятий, объектов и коммуникаций.

. Учет местных условий.

. Увязка с решением по производству работ.

. Рациональные пути перевозки грузов.

.

Похожие работы на - Технология и организация строительства насосной станции второго подъема из кирпича

 

Не нашли материал для своей работы?
Поможем написать уникальную работу
Без плагиата!
Без нейросетей!