Технология кладки простенков по однорядной системе перевязки швов

  • Вид работы:
    Курсовая работа (т)
  • Предмет:
    Строительство
  • Язык:
    Русский
    ,
    Формат файла:
    MS Word
    725,04 Кб
  • Опубликовано:
    2016-01-31
Вы можете узнать стоимость помощи в написании студенческой работы.
Помощь в написании работы, которую точно примут!

Технология кладки простенков по однорядной системе перевязки швов

МИНИСТЕРСТВО ОБРАЗОВАНИЯ И НАУКИ ПЕРМСКОГО КРАЯ

КРАЕВОЕ ГОСУДАРСТВЕННОЕ АВТОНОМНОЕ ПРОФЕССИОНАЛЬНОЕ

ОБРАЗОВАТЕЛЬНОЕ УЧРЕЖДЕНИЕ

«КРАСНОКАМСКИЙ ПОЛИТЕХНИЧЕСКИЙ ТЕХНИКУМ»









Профессия: 08.01.07 Каменщик (каменные работы)

ПИСЬМЕННАЯ ЭКЗАМЕНАЦИОННАЯ РАБОТА

технология кладки простенков по однорядной системе перевязки швов

Выполнил (а):

студент 3 курса, группы № 10

Каменских Антон Владимирович,

Руководитель:

преподаватель профессиональной подготовки

Наимушин Сергей Павлович

«К защите допущен»

Зав.ОПКРС: Коротких Елена Николаевна

Краснокамск, 2015г.

Содержание

Введение

Глава 1. Теоретическая часть

.1 Технологический процесс выполнения каменных работ

.2 Материалы, используемые для выполнения каменных работ

.3 Оборудование, инструменты и приспособления

.4 Охрана труда и окружающей среды при выполнении каменных работ

.5 Характеристика нормативных документов, регламентирующих производства каменных работ

Глава 2. Практическая часть

.1 Технологический процесс кладки простенков по однорядной системе перевязки швов

.2 Используемые материалы для восполнения кладки простенков по однорядной системе перевязки швов

.3 Оборудование и инструменты для выполнения кладки простенков по однорядной системе перевязки швов

.4 Организация рабочего места, охрана труда

.5 Экономическая часть

Заключение

Приложения

Список литературы

Введение

Профессия каменщик - одна из самых древних профессий на земле. Самый доступный строительный материалом был для первобытного человека природный камень, из которого он складывал свой очаг и строил жилище. С развитием общества возросло производство строительных материалов, среди которых особое место занимает кирпич. Благодаря небольшой массе и универсальности применения кирпич получил исключительно широкое распространения в жилищном, культурно-бытовом строительстве, а также при сооружении монументальных зданий. Широко применяется декоративная каменная кладка, кладка простенков, железобетонными и другими изделиями. Необходимо разработать и применять современные методы работы, совершенствования условия труда каменщика, основная цель которых сделать его труд высокопроизводительным и безопасным.

Темой письменной экзаменационной работы является:

Технология кладки простенков по однорядной системе перевязки швов.

Цель работы: Рассмотреть и выполнить кладки простенков по однорядной системе перевязки швов.

Основные задачи письменной работы является:

. Рассмотреть теоретические основы каменной кладки

. Описать основные материалы, используемые при выполнении каменных кладок.

. Проанализировать нормативно - правовую базу каменных работ

. Раскрыть сущность технологии кладки простенков по однорядной системе перевязки швов

. Провести экономический расчёт стоимости кладки простенков по однорядной системе перевязки швов

. Составить инструкционную карту

. Определить каким звеном будет, выполняться работа

. Решить вопросы, связанные с техникой безопасности.

По своей структуре выпускная работа состоит из введения, двух глав теоретической и практической, заключение приложений и списка литературы.

Во введении описываются актуальность темы. Ставятся цели и задачи написания работы, даны структуры письменной экзаменационной работы.

В первой главе описываются теоретические основы каменных работ, рассмотрены материалы и оборудование, применяемое при выполнении каменных работ, проанализирована нормативно - правовая база.

Во второй главе описывается технология кладки простенков по однорядной системе перевязки швов, материалы и оборудование, используемое для данной кладки, проведён экономический расчёт. Заключение содержит основные выводы по выполненной работе.

Для написание работы были использованы учебники И.И.Ищенко «Каменные работы» и В.А.Неелова «Иллюстрированное пособие для подготовки каменщика», а также Интернет - ресурсы.

Также не маловажную роль в написание письменной экзаменационной работы послужило занятие теоретического и практического обучения.

Глава 1. Теоретическая часть

.1 Технологический процесс выполнения каменных работ

Технологический процесс каменной кладки состоит из основных и вспомогательных операций. К основным операциям относят подачу и раскладку кирпича или камней, подачу и разравнивание раствора, укладку кирпича или камней в дело. Вспомогательными операциями являются установка порядовок, причалок, перелопачивание раствора, проверка правильности кладки по уровню и отвесу.

Перечисление операции выполняют различные инструментами и приспособлениями. Кроме показанных на рисунке инструментов каменщик пользуется уровнем, отвесом, угольником, складным метром, рулеткой, шнуром и порядовкой. Последняя представляет собой деревянную или металлическую рейку с размеченными на ней рядами кладки. Между двумя закрепленными к стене порядовками натягивают специальный шнур-причалку для контроля горизонтальности рядов кладки и соблюдения толщины швов.

Укладку кирпича и камней в стены начинают с выкладки верстовых рядов, а затем забутки. Кирпича и камней в стене начинают с выкладки верстовых рядов, а затем забутки, Кирпич укладывают в верстовые ряды способами вприжим, вприсык с подрезкой раствора и вприсык, а в забутку-способом на раствор (вполуприсык).

Однорядная цепная система перевязки образует чередованием тычковых и ложковых рядов. При этом поперечные вертикальные швы смещены на четверть кирпича, а продольные вертикальные швы перевязаны на полкирпича. Такая система перевязки отличается простотой использования и высокой прочностью кладки, однако по сравнению с другими системами требует большого затрата труда.

Многорядная система перевязки швов имеет тычковые ряды через пять или три ложковых ряда. При этом поперечные вертикальные швы тычковых рядов смещены на четверть кирпича, а в ложковых рядах - на полкирпича. Продольные вертикальные швы _со второго по шестой включительно) не перевязываются. Такая система перевязка более производительная, чем однорядная, она не требует большого числа неполномерного кирпича, и позволяет использовать для внутренней части кладки (забутки) половинки кирпич. Прочность кладки по сравнению с однорядной системой перевязки несколько меньше.

Трехрядная система перевязки образуется чередованиям трех ложковых рядов в одного тычкового. При этом вертикальные поперечные швы в трех смежных рядах не перевязаны. Такую систему перевязки применяют только при возведении столбов и узких (до 1м) простенков.

Количество кирпичей не зависит от принятой системы перевязки.

Приёмы укладки кирпича, обработка швов.

Производительность труда каменщика зависит от выбора рациональных приемов укладки кирпича. Приёмом называют рабочие движение, выполняемые в определенной последовательности.

В зависимости от пластичности раствора и требований к качеству лицевой поверхности (под штукатурку или расшивку) применяют различные приемы укладки кирпича.

Укладка кирпича приемом «Вприсык»

Обеспечивает неполное заполнение швов на лицевой поверхности, но требует при этом пластичного раствора. При укладке кирпича тычком : приготовленная растворная постель должна отступать от края стены на 2…3см; передней гранью кирпича на расстоянии 5…8 см от верха приготовленной постели подгребают раствор;

Каменщик, придвигая кирпич, поворачивает его и прижимает к ранее уложенным; укладываемый кирпич нажатием руки осаживают до требуемой толщины шва. Такие же рабочие движения (подгребание раствора, прижатие кирпича и осаживание его на растворной постели) применяются пир укладке кирпичей ложком.

Такой приём укладки кирпича без применений кельмы характеризуется высокой производительностью, однако поверхности выложенных стен требуют оштукатуривание.

Укладка кирпича приемом «Вприсык с подрезкой раствора» Обеспечивает полное заполнение швов на лицевой поверхности и ведется на пластичных растворах. При этом растворная постель не доходит до края стены на 1см.

Подгребание раствора передней гранью кирпича для образования вертикального шва;

Прижатие кирпича к ранее уложенному;

Осаживание кирпича нажатием руки или рукояткой кельмы с одновременной подрезкой излишков раствора на лицевой поверхности кладки.

Укладка кирпича «Вприжим»

Обеспечивает полное заполнение швов на лицевой поверхности и ведется на жестких или пластичных растворах. Этим приемом укладывают тычковые и ложковые ряды. Поданный раствор каменщик разравнивают кельмой, подготавливая постель для 2-4 кирпичей так, чтобы она на 1см не доходила до края стены.

Затем ребром кельмы подгребают часть раствора с верха постели и прижимают к вертикальной грани уложенного кирпича. Левой рукой каменщик укладывает кирпич и прижимает его к ранее уложенному, одновременно извлекая кельму правой рукой вверх. При этом образуется плотно заполненный раствором вертикальный шов.

Далее нажатием руки или постукиванием рукоятки кельмы кирпич осаживают до требуемой толщины шва. После укладки 2-4 кирпичей раствор, выжитый из швов, подрезают кельмой.

Укладка кирпича вприжим требуют от каменщика больше движений, чем укладка вприсык с подрезкой, поэтому она более трудоемка.

Укладка кирпича приемом «В полуприсык»

Кирпичи укладываются в забутку, для его чего ровным слоем расстилаются раствор. Каменщик ведет кладку обеими руками, подгребая раствор ребрами кирпичей и частично заполняя вертикальные швы.

Каменщик должен владеть различными приемами укладки кирпича и использовать их по обстоятельствам.

Обработка швов выполняется при помощи расшивки. Вначале расшивают вертикальные швы, затем-горизонтальные. Шов обрабатывают сначала широкой, а затем более узкой частью инструмента, в результате чего шов приобретает форму валика или желоба. Такая обработка уплотняет швы и улучшает декоративные качества неоштукатуренных кирпичных стен.

Лицевые швы стен, предназначенных под штукатурку, на глубину 10…15мм не заполняют раствором. Такая кладка, называется пустошовкой, способствует прочному сцеплению со слоем штукатурки. Швы стен, не подлежащих оштукатуриванию со слоем штукатурки. Швы стен не подлежащих оштукатуриванию, заполняют раствором вровень с поверхностью. Такую кладку, когда излишки раствора в наружных швах подрезаны кельмой, называют вподрезку.

каменный кладка простенок шов

1.2 Материалы, используемые для выполнения строительных работ

Кирпич - является самым универсальным строительным материалом, применяемым при изготовлении стен и простенков. Промышленностью производится несколько разновидностей кирпича, в основном это красный кирпич из обожженной глины и белый (силикатный) кирпич.

Кирпич также широко применяется при проведении облицовочных работ (облицовочный кирпич). Некоторые виды облицовочного кирпича имеют красивые орнаменты, отпечатанные на их внешних поверхностях, благодаря чему облицовываемой поверхности придается дополнительный декоративный эффект.

Шлакоблок - популярный строительный материал для возведения несущих стен, изготовленный путем вибропрессования бетонного раствора с применением специального оборудования. Стандартные размеры шлакоблока составляют 390х190х188 мм, однако возможно изготовление шлакоблоков и других размеров в индивидуальном порядке.

Вообще “шлакоблок” - это народное название стенового камня. Само название этого строительного материала говорит о том, что для его изготовления используется шлак, однако вместо шлака в состав бетона в ряде случаев могут входить другие, более дешевые и доступные компоненты, такие как гравий, отсев щебня, ракушечник, песок, керамзит, бой кирпича и пр.

К основным достоинствам шлакоблока можно отнести довольно высокие тепло и звукоизоляционные свойства, низкую себестоимость, сравнительно небольшой для его размера вес, а также сокращение сроков возведения строительных конструкций при его использовании.

Основными недостатками шлакоблока является его низкая экологичность (использование шлака при изготовлении), невысокие показатели морозостойкости, гидроскопичность (впитывает влагу).

Бутовый камень - добывается из плотных осадочных пород (известняка, песчаников, доломита) и реже из изверженных пород. Как правило, поставляется кусками размером от 150 до 500мм. Применяется для фундаментов и стен зданий и сооружений, для отмосток, используется в качестве заполнителя для бутобетона, при возведении бетонных и массивных железобетонных сооружений, а также для устройства и ремонта <#"891506.files/image001.jpg">

Чтобы каменщики выполняли меньше движений, поддоны с кирпичом ставят напротив простенков. Ящики с раствором устанавливают напротив проемов, длинной стороной перпендикулярно возводимой стене.

Запас кирпича на рабочем месте каменщика должен соответствовать 2…4-часовой потребности.

Раствор в ящики загружают перед началом кладки с расчетом на 40…45 мин работы.

В процессе кладки пополняют запас кирпича и раствора.

Охрана труда

Требования перед началом работы

.        Надеть спецодежду, спец обувь и другие средства индивидуальной защиты.

.        Получить от мастера задание и инструктаж о безопасных способах его выполнения.

.        Проверить наличие и исправность необходимых инструментов, приспособлений, инвентаря, необходимых материалов и их качество.

.        Проверить надежность, прочность и устойчивость лесов, подмостей, настила, стремянок и т.п.

Требования безопасности во время работы

.        Расшивку наружных швов кладки производить с подмостей, после укладки каждого ряда кладки. Не стоять на стене во время производства этой операции.

.        Не ходить по защитным козырькам и не использовать их в качестве подмостей, а также не складывать на них материалы и инструмент.

.        Не оставлять неулаженными материалы, а также инструменты на стенах во время перерывов в работе.

.        Не работать неисправным инструментом.

.        При производстве кирпичной кладки в подвалах необходимо пользоваться освещением от сети напряжением 36 в.

.        Не производить кирпичную кладку с временного подмащивания (бочки, ящики, доски и т.д.).

.        Не перегружать настилы лесов и подмостей излишними материалами.

.        Выполнять только порученную тебе работу.

Требования после окончания работы

.        Очистить от раствора инструмент и приспособления.

.        Уложить на настил оставшийся кирпич и очистить рабочее место от мусора, раствора и т.д.

.        Снять спецодежду и средства индивидуальной защиты и положить их в индивидуальный шкафчик.

.        Тщательно вымыть руки с мылом в теплой воде или при возможности принять душ.

.        Доложить мастеру о замеченных недостатках в безопасной организации труда.

2.5 Экономическая часть

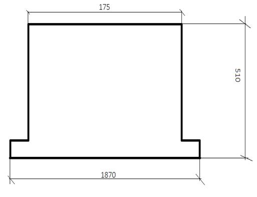
Кладка простенка толщиной 510мм по однорядной системе перевязки швов


Наименование

Кол-во

Стоимость Един.

Общая Стоимость

1

V кладки

1,43м3

1500р

645р

2

раствор

0,32м3

4000р

1280р

3

кирпич

421шт

20р

8420р

10345р


)        Сделать расчет материала и работы

V кладки = 1.87* 0,51*1.5=1.43м3

Количество раствора = 1.43*0,222=0.32м3

Количество кирпича = 1.43*294=421шт

Стоимость кирпича = 20р*421=8420р

Стоимость кладки = 1.43* 1500р= 645р

Общая стоимость =1280+8420+645=10345р

Итого: 10345р

Заключение

В заключении необходимо отметить, что рассмотрение и выполнение кладки простенка толщиной 510мм по однорядной системе перевязки швов выполнено в полном объёме.

Кирпич считается одним из древнейших строительных материалов и на сегодняшний день его производство является нужной и прибыльной отраслью. Производство кирпича сегодня достигло большого разнообразия видов и свойств. Сегодня из кирпича можно построить как шикарный коттедж на берегу моря, так и многоэтажный небоскреб, который, за счет прочности кирпича, будет стоять долгие годы.

В заключении необходимо отметить, что цель данной работы - изучение процесса кладки простенков по однорядной системе перевязки швов выполнена.

Автор считает ценным, что в ходе работы были приобретены умения проявлять самостоятельность в принятии ращений, инициативу, приобретены навыки планирования, организации производства и труда, закреплены и углублены знания, полученные в процессе обучения. Так же развита информационная компетенция автора, что выразилось в умении работать со специальной литературой и Интернет - источниками.

Анализ процессов кладки простенков по однорядной системе перевязки швов показал, что кладка является востребованной в настоящие время.

Теоретические исследования кладки простенков позволили определить параметры возведения столба и простенка по однорядной системе перевязки швов.

В процессе работы были проработаны понятия о кладке столбов и простенков и их характеристики, изучены нормативно-правовые документы, инструменты для выполнения кладки столбов и простенков, охрана труда и окружающей среды, а также организация рабочего места каменщика.

Самым трудным было правильно оформить работу, сделать выводы. В результате работы была выполнена кладка простенков. Для работы использовался кирпич силикатный полнотелый и цементный раствор. Общая стоимость конструкции (простенка) составила 10345 рублей.

Для достижения чего были поставлены задачи:

·        Рассмотреть теоретические основы декоративной кладки;

·        Рассмотреть использование материалов и инструментов;

·        Провести экономический анализ кладки простенков толщиной 510мм

Автор читает ценным, что в ходе работы были приобретены умения проявлять самостоятельность в принятии решений, инициативу, приобретены навыки планирования, организации производства и труда, закреплены и углублены знания, полученные в процессе обучения. Так же развита информационная компетенция автора, что выразилось в умении работать по специальной литературой в интернет - источниками.

Работая над проектом, автор узнал много интересного о кладке простенков толщиной 510мм, о каменных материалах, строительных растворах, научился производить эконмические расчеты, подбирать системы перевязки швов, способы укладки кирпича, строительные материалы.

Песок - осадочная горная порода, а также искусственный материал.

Для получения ровного красивого шва при лицевой кладке, лучше использовать речной или карьерный песок без глины, просеянный от мусора и камней. Глина плохо смешивается с цементом и при попадании снаружи шва кладки со временем образует дырку. Для кладки под штукатурку можно добавлять в раствор любой песок. Чистый песок более белый, а с глиной - желтый.

Цемент (портландцемент <#"891506.files/image003.jpg">

Кладка простенков следует выполнять соответствии с чертежом заданы мастером. Для этого не обходимо ни основания стены сделать соответствующие отверстия по отметкам положить кирпич учитывая, что простенки выкладывается четвертями, проемы с внутренней стороны должны быть на 12см шире, чем с фасадной.

12

Подготовить рабочие место

1- рабочая зона (60-70см) где перемещается каменщик в процессе кладки 2- зона складирование материалов ( 1,6 м), где ящики с раствором чередуются с поддонами кирпича. 3- свободная зона (шириной 30-40см), для прохода

3

Подготовить раствор

Раствор готовится 1:2. Берём 1ч цемента и 2ч песка высыпаем в растворный ящик тщательно перемешиваем для получения однородной массы. Затем добавляем воду и перемешиваем до получения определенной подвижности раствора. Подвижность раствора определяется эталонным конусом.

3 4

Подготовить инструмент

Подготовить необходимый инструмент: кельму, молоток-кирочку, растворную лопату, правило, уровень, отвес, рулетку, расшивку, шнур-причалка, угольник.

4 5

Кладка 1го ряда.

Внутренняя верста тычковый ряд. Кладка внутренней тычковой версты выполняется способом «вприсык» Внутренняя верста тычковый ряд. Кладка внутренней версты способом «Вприсык»

6  6          Кладка 2го ряда               Наружная верста - ложковый ряд.

Внтуренняя верста - ложковый ряд.

Забудка- тычковый ряд

Наружная верста выкладывается способом «вприсып»

Внутренняя верста способом «вприсып»


 

 7

Кладка 3 ряда

Аналогично 1 ряда


 8

Кладка 4 ряда

Аналогично 2 ряда


99

Проверка правильности и соответствии качеству

Толщина конструкции в +15мм Отметка опорных поверхностей -10мм Ширина простенка -15мм Ширина оконных проемов +15мм Смещения вертикальных осей и оконных проёмов -20мм Неровности на вертикальной поверхности стены, обнаруженной при накладывания 2 метровой рейки не более 10мм Толщина швов: Горизонтальных 10-15мм Вертикальных 8-15 мм Отклонение поверхности и углов от вертикали 16 мм

1 10

Правила техники безопасности

1. Перед началом работ. 2. Во время работ. 3. По окончанию работ.



Вывод 1

Исходя из выше изложенного, можно сделать следующие выводы:

при выполнении каменных работ необходимо соблюдать последовательность выполнения каменной кладки;

использовать профессиональное оборудование, применяемое при выполнении каменных работ;

соблюдать требования охраны труда и технику безопасности при выполнении каменных работ;

соблюдать требования ГОСТов и ОСТов;

Изучение теоретических основ каменного производства важно для будущего специалиста. Для этого необходимо изучать учебную и справочную литературу, интернет - источники. Систематические занятия на уроках теоретического и производственного обучения также дадут свои положительные плоды.

Вывод 2

Для выполнения каменной кладки использовался пустотелый одинарный красный кирпич, цементный раствор.

Выполняя работу, автор соблюдал последовательность выполнения каменной кладки, обусловленную техническими характеристиками.

Произвёл расчёт экономической части.

Список литературы

Основные источники

1.      И.И. Ищенко. Каменные работы Учебник. М., Высшая школа, 1982.

2.      В.А. Неелов. Иллюстрированное пособие для подготовки каменщиков1988 г. Учебное пособие для средних профтехучилищ

Интернет ресурсы:

1.      know-house.ru <#"891506.files/image011.jpg">

Похожие работы на - Технология кладки простенков по однорядной системе перевязки швов

 

Не нашли материал для своей работы?
Поможем написать уникальную работу
Без плагиата!
Без нейросетей!