|
25·(1,19·0,22 - 6·3,14·(0,159/2)²)/1,19=2,9993 3,61,354,86
|
|
|
|
|
|
Итого
|
4,44
|
5,328
|
|
7,192
|
|
Переменная полезная нагрузка (по заданию)
|
9
|
10,8
|
1,5
|
16,2
|
|
Итого
|
13,44
|
16,128
|
|
23,392
|
В соответствии с CНБ
5.03.01-02 расчёт конструкции по предельным состояниям выполняется при действии
и сочетаний нагрузок:
расчёт по первой группе предельных состояний на основное сочетание
нагрузок
расчёт по второй группе предельных состояний на действие частного
сочетания (расчёт по образованию и раскрытию трещин) и на действие практически
постоянного сочетания нагрузок (расчёт по деформациям).
Основные сочетания нагрузок:
1.
, (А 4, [1])
где
- частный коэффициент безопасности для постоянных
нагрузок,
; (табл. А 2, [1])
- i-тая
постоянная нагрузка;
- частный
коэффициент безопасности для переменных нагрузок,
; (табл. А 2, [1])
-j-тая
переменная нагрузка;
-
коэффициент сочетания переменной нагрузки,
=0,7;
(табл. А1, п.1.2[1])
.
, (А5, [1])
где
- коэффициент уменьшения для неблагоприятно
действующей постоянной нагрузки.
Нормативное
(редкое) сочетание нагрузок (А.8, [1]):

Частное
сочетание нагрузок (А.6, [1]):

Практически постоянное сочетание нагрузок:

Рассмотрим расчётную схему многопустотной плиты перекрытия:
Рисунок 1.1- Расчётная схема плиты



Рассчитываем усилие, действующее в расчётной схеме плиты для
соответствующего сочетания нагрузок:
Усилия в расчётной схеме при действии:
основного сочетания нагрузок:
Рисунок 1.2 - Эпюры M,V расчётной схемы плиты.
- нормативного
сочетания нагрузок:
частного
сочетания нагрузок:
практически постоянного сочетания нагрузок:
.1.3
Геометрические размеры многопустотной плиты перекрытия
Рисунок 1.3 - Геометрические размеры многопустотной плиты перекрытия
Приведенное сечение плиты имеет следующий вид:
Рисунок 1.4 - Приведенное сечение плиты
Принимаем
где с - расстояние от наиболее растянутой грани до сечения до центра
тяжести рассматриваемой арматуры.
Приведение
сечения плиты к двутавровому осуществляется путем вычитания суммы ширины
квадратных пустот, эквивалентных по площади круглым (а=0,9 d).
Поэтому рабочая высота сечения:
Минимальный
размер защитного слоя продольной арматуры согласно классу по условиям
эксплуатации ХС1=25мм. В проекте принимаем а=32 мм.
Расчетное
сечение для расчета по I-ой группе предельных состояний будет иметь следующий
вид:
Рисунок
1.5 - Расчетное сечение для расчета по I-ой группе
предельных состояний
.2
Проверки предельных состояний несущей способности
1.2.1 Подбор продольного армирования и проверка несущей способности
нормальных сечений
Следовательно, граница сжатой зоны проходит в
сжатой полке, и сечение рассматривается, как прямоугольное.
-коэффициент, зависящий от вида бетона,
Принимаем
6 стержней 
14 S800
Рисунок
1.6 - Схема армирования многопустотной плиты перекрытия
Следовательно, граница сжатой зоны проходит в
сжатой полке, и сечение рассматривается, как прямоугольное.
.2.2
Расчёт прочности плиты по наклонным сечениям
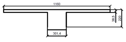
При
расчёте принимаем bw=301,4 мм;
Поперечная сила от действия основной комбинации нагрузок Vsd=65,154 кН;
Рабочая
высота плиты
Поперечная
сила, воспринимаемая железобетонным элементом без поперечного армирования:
,
где
, принимаем k=2
принимаем
(здесь знак “-” указывает на сжатие).
Принимаем
Так как 
, то поперечная сила может быть воспринята бетоном и поперечная
арматура устанавливается конструктивно.
Принимаем ненапрягаемую арматуру S500 
с шагом 100 мм.
Рисунок 1.7 - Схема установки конструктивной арматуры в
многопустотной плите перекрытия
Рисунок 1.8 - Плоский каркас в многопустотной плите
перекрытия
1.2.3 Назначение величины предварительного напряжения в напрягаемой
арматуре
Начальная
величина предварительного напряжения стержневой арматуры
устанавливается из следующих условий (9.2, [1]):
,
где
- начальное контролируемое предварительное напряжение
арматуры, Мпа;
Р
- максимально допустимое отклонение значения предварительного напряжения,
вызванное технологическими причинами.
При
электро-термическом способе натяжения отклонение Р принимают равным:
где
- расстояние между наружными гранями упоров;
-
нормативное сопротивление напрягаемой арматуры; для арматуры S800
Принимаем
.2.4
Расчёт потерь предварительного напряжения
Усилия предварительного напряжения не остаётся постоянным во времени в
результате потерь, начинающихся фактически с момента натяжения арматуры и
развивающиеся в течении всего периода эксплуатации конструкции.
Потери от релаксации напряжений арматуры:
Для стержневой арматуры при электротермическом способе натяжения (9.9,
[1]):
Потери
от температурного перепада (9.10, [1]):
Потери,
вызванные деформациями стальной формы:
Потери
от деформации анкеров (п.9.12, [1]):
∆l - обжатие опрессованных шайб, смятие высаживаемых
головок
Потери предварительного напряжении в результате упругих деформаций
бетона(при натяжении на упоры):
Значение потерь при натяжении на упоры (9.19, [1]):
,
где α - отношение модулей упругости стали
и бетона;
- для
бетона класса С 22/27,5 (табл.6.2, [1])
-
коэффициент продольного напряжения;
Zcp -
расстояние от центра тяжести сечения до центра тяжести арматуры;
Zc-расстояние от нижней
грани до центра тяжести приведенного сечения;
Sc - статический момент
приведенного сечения относительно нижней грани ребра;
Ас-площадь бетонного сечения плиты;
- усилие
предварительного напряжения с учетом потерь, реализованных к моменту обжатия
бетона;
Усилие предварительного обжатия бетона с учётом
технологических потерь:
(9.21, [1])
Данное условие выполняется.
Эксплуатационные
потери (реологические потери)
Потери,
происходящие после обжатия бетона, определяются по формуле:
где
-потери предварительного напряжения в напрягаемой
арматуре, вызванные ползучестью, усадкой и длительной релаксацией напряжений в
арматуре.
(9.25, [1])
Для
получения величины
вычисляем последовательно:
1. ожидаемые относительные деформации усадки бетона к моменту
времени t=100 суток
здесь
-физическая часть усадки при высыхании бетона;
-предельное
значение части усадки бетона, ‰; определяется по таблице 6.3.
:
при RH=80%;
-функция
развития усадки бетона во времени, определяемая по формуле:
h0 - приведенный размер поперечного сечения образца, см,
U - внешний
периметр сечения плиты, см,
Величину части усадки бетона
следует
определять по формуле:
(6.10, [1])
(6.12, [1])
(6.11, [1])
t -
время, сут.
По
рисунку 6.1.
принимаем Ф(t,t0)=2,0;
2. напряжение в бетоне на уровне центра тяжести напрягаемой арматуры
от практически постоянной комбинации нагрузок:
3. начальное напряжение в бетоне на уровне центра тяжести
напрягаемой арматуры от усилия предварительного обжатия:
4. изменение
напряжений в напрягаемой арматуре, вызванные длительной релаксацией напряжений
в арматурной стали
. Для этого:
- вычисляем
напряжения в арматуре, вызванные натяжением (с учётом первых потерь) и от
действия практически постоянной комбинации нагрузок:
- принимая
по табл. 9.2.
в
зависимости
для третьего релаксационного класса арматуры
(стержневая арматура) потери предварительного напряжения составляют
5,5%.
получаем
Среднее
значение усилия предварительного обжатия с учётом всех потерь:
Условие выполняется.
1.2.5
Проверки предельных состояний в стадии изготовления и монтажа
В
стадии изготовления и монтажа в качестве внешней нагрузки на плиту действует
усилие в напрягаемой арматуре
(усилие обжатия бетона) и ее собственный вес. Петли
расположены в продольных ребрах на расстоянии 0,2 от всей длины от торцов
плиты, в этих же местах должны укладываться прокладки при перевозке плиты и ее
складировании.
Рисунок
1.9 - Расчётная схема плиты в стадии изготовления и монтажа
Собственный
вес плиты найдём по формуле:
где k - коэффициент динамичности при
подъёме, k=1,4;
Находим опорный момент (момент от собственного веса плиты):
Рисунок 1.10 - Расчётное сечение для расчёта
прочности плиты при монтаже
Подбираем арматуру для верхней части сечения
плиты (сжатая зона):
Находим коэффициент αm:
Условие
выполняется, следовательно находим требуемую
площадь армирования для рабочей арматуры класса S500:
Исходя из полученного значения требуемой площади
сечения продольной арматуры по сортаменту подбираем 4 Ø 5 S500 площадью 0,79 см2.
Находим
высоту сжатой зоны бетона xeff:
Находим усилие, воспринимаемое арматурой в
растянутой зоне бетона:
Проверяем выполнение условия:
Условие выполняется, следовательно принятой
арматуры достаточно для обеспечения прочности сечения плиты в местах установки
монтажных петель.
Для средних стандартных условий хранения конструкции среднюю прочность
бетона на сжатие в возрасте t, сут, fcm(t) допускается определять по формуле:
Где fcm(t) - средняя прочность бетона на сжатие в возрасте t (> 28
сут);- средняя прочность бетона на сжатие в возрасте 28 сут, принимаемая по
таблице 6.1[1];- средняя прочность бетона на сжатие после окончания тепловой
обработки в момент времени tp < t (для предварительно напряженных конструкций
- средняя передаточная прочность);- возраст бетона (> 28 сут.);1
= 1 сут.;- возраст бетона, сут, при окончании тепловой обработки (для
предварительно напряжённых конструкций - при передаче усилия обжатия на бетон).
>
0,75∙25,35=19,013˃4,781, следовательно напряжение
обжатия в бетоне меньше предельного на 10 суток.
.3
Проверки предельных состояний эксплуатационной пригодности
.3.1 Расчёт плиты по образованию нормальных трещин
Определяем момент трещинообразования:
Следовательно,
трещины в стадии эксплуатации не образуются, и расчёт по раскрытию трещин
производить не требуется.
Здесь
rinf =0,9 - коэффициент, определяющий нижний предел усилия
предварительного обжатия.
Статический момент приведённого
сечения относительно нижней грани ребра:
Расстояние
от нижней грани до центра тяжести приведённого сечения:
Момент
сопротивления сечения относительно нижней грани:
Приведенная
площадь сечения плиты:
.3.2
Расчёт плиты по деформациям (расчёт прогиба плиты)
Расчет по деформациям железобетонной плиты производят по условию:

- прогиб
ж/б конструкции от действия внешней нагрузки, мм;

-
предельно допустимый прогиб.
Из
табл.19, [5] принимаем 
=30 мм
(для L=6,0 м);
Изгибная
жёсткость плиты для сечений без трещин в растянутой зоне, как при эксплуатации,
так и при предварительном обжатии:

-
изгибная жесткость предварительно напряженного элемента;
(8.28, [1])
-эффективный
модуль упругости бетона;
Усилие предварительного обжатия при нижнем пределе его значения:
-коэффициент,
определяющий нижний предел значения усилия предварительного обжатия;
=0,9;
Прогиб плиты в середине пролёта:

-
коэффициент зависит от схемы приложенной нагрузки =5/48;

-
коэффициент зависит от трассировки напрягаемого стержня=1/8 (для стержней с
прямолинейной осью трассы);
Допустимый прогиб αlim=30мм>7,95мм
Таким образом, максимальный прогиб в середине пролёта плиты не превышает
допустимый.
2. Расчет и конструирование монолитной железобетонной балочной плиты
.1 Исходные данные
По
размерам плиты и второстепенной балки необходимо определить армирование и
выполнить конструирование монолитной железобетонной балочной плиты перекрытия
используя бетон класса
при действии переменной нагрузки
Для
армирования плиты применяются сварные рулонные сетки из арматурной обыкновенно
проволоки диаметром 3, 4, 5 мм класса S500.
Требуется
определить наиболее выгодный (рациональный) вариант перекрытия. Здание имеет
размеры в плане 21x36м и сетку колонн в осях 7x6м.
План
балочного перекрытия приведён на рисунке 2.1
Рисунок
2.1 - Компоновка балочного перекрытия
2.2 Определение предварительных размеров поперечных сечений элементов для
выбранного оптимального варианта перекрытия
Толщину плиты принимаем hs =80 мм.
Высоту второстепенной балки подбираем по конструктивным требованиям из
условий жесткости:
hsb =(1/12 ¸ 1/20) lsb = (1/12 ¸ 1/20). 6000 = (500 ¸ 300) мм.
Принимая во внимание требования градации размеров балок, окончательно
принимаем hsb=450 мм.
Ширина балки bsb =
(0.3 ¸ 0.5) hsb = (0.3 ¸ 0.5)*450 = (135 ¸ 225) мм.
Принимаем bsb =
200 мм.
Высоту главной балки подбираем по конструктивным требованиям из условий
жесткости:
hsb =(1/8 ¸ 1/15) lmb = (1/8 ¸ 1/15)*7000 = (875 ¸ 467) мм.
Окончательно принимаем hsb=600 мм.
Ширина главной балки bmb= (0.3 ¸ 0.5) hmb = (0.3 ¸ 0.5). 600 = (180 ¸ 300) мм.
Принимаем bmb =
300 мм.
Принимаем:
- опирание плиты ts=120мм;
опирание второстепенной балки tsb=250мм;
опирание главной балки tmb=380мм;
Сторона квадратного сечения колонны
где lmb - пролет главной балки, м;
gs,
gsb, gmb - постоянные расчетные распределенные
нагрузки соответственно на плиту, второстепенную и главную балки;
qs,
qsb, qmb - переменные (полезные) расчетные
распределенные нагрузки соответственно на плиту, второстепенную и главную
балки;
Hf l - высота этажа, принимаем равной 3,6 м;
nf l - количество этажей, имеющих
колонны. nf l =3
(gmb + qmb) - полная расчетная нагрузка на главную балку
(3.8,[3])
=384,2
мм
+0,07·1·1,75·7²=232,273
кн/м
Принимаем с учетом градации размеров сечения колонны hc=bc=400 мм
.3 Компановка монолитного перекрытия
К расчету принимаем схему расположения элементов монолитного ребристого
перекрытия представленную на рисунке.
Определение расчетных пролетов.
Статический расчет плиты выполняем, рассматривая ее как многопролетную
неразрезную балку шириной b=1000
мм.
Привязку кирпичных стен принимаем a=250 мм.
Крайний расчетный пролет (см. рис. 2.2):
Средний
расчетный пролет:
Размер
поля плиты в длинном направлении для крайних пролётов:
Для
средних пролётов:
Так
как
, следовательно, плита рассчитывается как балочная.
Рисунок
2.2 - К определению расчетных пролетов монолитной плиты.
2.4 Подсчет нагрузок на плиту
Принимаем следующую конструкцию пола перекрытия: плиточный пол,
цементно-песчаная стяжка.
Нагрузку на 1 м2 поверхности плиты в кПа приведена в таблице
2.1.
Таблица 2.1 - Подсчет нагрузок на 1 м2 перекрытия
|
Вид Нагрузки
|
Нормативная нагрузка, кПа
|
Расчетные нагрузки, кПа
|
|
|
1. Постоянные - g
|
|
- Плитка «Грес» ГОСТ 6787-2001, t=10мм, ρ = =20кН/м3
|
0,20
|
1,35
|
0,27
|
|
- Стяжка из цементно-песчаного раствора М150 мм, ρ=18 кН/м30,631,350,851
|
|
|
|
|
- собственный вес плиты мм, ρ=25 кН/м32,01,352,70
|
|
|
|
|
Итого g:
|
2,83
|
|
3,821
|
|
1. Переменная - q - по заданию
|
9
|
1,5
|
13,5
|
|
ИТОГО:
|
11,83
|
|
17,321
|
.5 Определение внутренних усилий в плите
Плита рассматривается как неразрезная многопролетная балка, загруженная
равномерно распределенной нагрузкой (g+q). Моменты в таких конструкциях
определяют с учетом перераспределения усилий вследствие развития пластических деформаций
по готовым формулам.
Расчетная схема плиты и эпюры внутренних усилий представлены на рис. 2.3.
При ширине полосы bs
= 100 см или 1 м нагрузка, приходящаяся на 1 м2 плиты, равна по
величине нагрузке на 1 м погонный полосы, таким образом расчетная нагрузка на
плиту: постоянная нагрузка g =
3,821 кН/м, переменная - q =
13,5 кН/м.
Для определения усилий в плите определяем максимальное расчётное
сочетание действующих нагрузок:
Первое основное сочетание:
Второе
основное сочетание:
К
дальнейшим расчётам принимаем второе основное сочетание.
Тогда
изгибающий момент в характерных сечениях монолитной плиты перекрытия будет
равен:
в
крайних пролётах и на крайних опорах при непрерывном армировании.
в
случае раздельного армирования на первой промежуточной опоре.
в
средних пролётах и на средних пролётах для плит не окаймлённых по контуру
балками независимо от способа армирования.
в
средних пролётах и на средних опорах, где плиты окаймлены по всему контуру
монолитно связанными с ними балками.
Поперечные
силы:
2.6 Расчет прочности нормальных и наклонных сечений
Для
бетона класса C22/27,5
(табл.1, [1]) принимаем нормативные и подсчитанные расчетные характеристики
бетона:
- частный коэффициент безопасности для бетона;


По
таблице 6.5 [2] для бетона С22/27,5 находим ecu
= 3,5 ‰, по таблице 6.5 wc
= 0,810, k2 = 0,416,
.
Расчетные
характеристики для арматуры класса S500 (ф6-22 мм) (см. табл.6.5,
[1]):
Размеры
сечения, принятые для расчета:
мм;
мм;
где:
сmin - защитный слой бетона арматуры плиты, принимаемый по
таблице 6.5 [1];
Æ -
предполагаемый максимальный диаметр арматуры плиты.
Рабочая высота сечения плиты:
мм.
Расчет
требуемой площади арматуры в расчетных сечениях плиты выполняем по алгоритму
стр. 24[3], а результаты расчета сводим в таблицу.
‰,
в
крайних пролётах и на крайних опорах при непрерывном армировании:
в
средних пролётах и на средних пролётах для плит не окаймлённых по контуру
балками независимо от способа армирования:
в
случае раздельного армирования на первой промежуточной опоре:
в
средних пролётах и на средних опорах, где плиты окаймлены по всему контуру
монолитно связанными с ними балками:
Результаты
расчётов требуемой арматуры в расчётных сечениях плиты сводим в таблицу 2.2:
Таблица 2.2 - Требуемая площадь сечения арматуры на 1м погонный плиты.
|
Сечение
|
М,   Площадь сечения,см2
|
|
|
|
|
|
|
|
|
|
Расчётная класса S500
|
Минимальная
|
|
1. Крайний пролёт и крайняя опора при непрерывном
армировании
|
3,245
|
50
|
0,088
|
0,073
|
1,551
|
0,5
|
|
2. Первая промежуточная опора при раздельном армировании
|
2,55
|
50
|
0,069
|
0,072
|
1,214
|
|
|
3. Средние пролёты и средние опоры без учёта окаймления
балками
|
2,55
|
50
|
0,07
|
0,073
|
1, 23
|
|
|
4. Средние пролёты и средние опоры с учётом окаймления
балками
|
2,012
|
50
|
0,055
|
0,057
|
0,96
|
|
Расчет
прочности железобетонных элементов на действие поперечных сил производится из
условия
где
-
расчетная поперечная сила от внешних воздействий;
- поперечная сила, воспринимаемая железобетонным
элементом без поперечного армирования:
Но
не менее
Здесь
принимаем
k=2,
принимаем
- при отсутствии осевого усилия (сжимающей силы).
Принимаем
Поскольку
условие
выполняется, расчёт поперечной арматуры не
производится и согласно конструктивным требованиям постановка поперечной
арматуры не требуется.
.7
Конструирование плиты
Рассматриваем вариант армирования сварными рулонными сетками с продольной
рабочей арматурой.
Между главными балками можно уложить 2, 3 или 4 сетки с нахлестом
распределительных стержней 50 - 100 мм, причем ширина сеток принимается не
менее 2 м.
При 2-х сетках необходима ширина сетки:
мм;
где:
с - минимальная длина нахлестки распределительных стержней;
с1
- минимальная длина свободных концов распределительных стержней.
Можно
принять между главными балками 2 сетки с шириной В=2940 мм с действительным
нахлёстом:
мм.
При
3-х сетках необходимая ширина сетки:
мм;
Можно
принять сетки шириной B = 2350мм с действительной величиной нахлёста:
с
= 50+(2350-1953,3)=446,7 мм.
При
4-х сетках необходимая ширина сетки:
;
Можно
принять сетки шириной B=1540 с величиной нахлёста:
c = 50 +
(1540-1482,5)=107,5 мм.
Окончательно
принимаем вариант с 2-мя сетками с наименьшей длиной нахлёста с = 95 мм.
Ширина дополнительной сетки в этом случае принимается такой, чтобы смогла
перекрыть первый пролет, плюс 1/4 величины второго пролета плиты:
Принимаем сетки шириной В=2350 мм.
Над
главными балками устанавливаются конструктивно верхние сетки, площадь сечений
поперечных рабочих стержней которых должна составлять не менее 1/3 площади
пролетной арматуры плиты:
Длину рабочих стержней (ширину сетки) назначают из условия, что
расстояние от грани балки в каждую сторону было не менее 1/4 пролета плиты. Над
главными балками ширина сеток равна:
.
Принимаем
сетки шириной равной B = 1220 мм.
Подбор арматуры и конструирование сеток начинаем со средних пролетов и
выполняем в табличной форме (табл. 2.3).
Условное обозначение марки сеток:
;
где:
с1 - ширина свободных концов продольных стержней; с2 - то же поперечных
стержней;
В
- ширина сетки; L - длина сетки.
Таблица 2.3 - Армирование плиты рулонными сетками
|
Сечение
|
Ast, см2 треб.
по расчету
|
Принятое армирование
|
Марка сетки
|
|
|
рабочей
|
Ast, см2 (прин.)
|
распределительной
|
|
|
|
Æ
|
шаг
|
|
Æ
|
Шаг
|
|
|
1.Средняя плита и опора без учета окаймления
|
1,214
|
4
|
100
|
1,26
|
3
|
350
|
|
|
2. Средние плиты и опоры с учетом окаймления
|
0,96
|
5
|
200
|
0,98
|
3
|
350
|
|
3.
Крайняя плита и опора при непрерывном армировании без учета окаймления: -
основная сетка: -дополнительная сетка: 1,551-1,26=0,291 1,551
0,291 4 3 100 200 1,26 0,35 3 350
|
|
|
|
4. Крайняя плита и опора с учетом окаймления: - основная
сетка: -дополнительная сетка: 1,551-0,98=0,571
|
1,551 0,571
|
5 4
|
200 150
|
0,98 0,84
|
3
|
350
|

|
5.Над
главными балками: 1/3 x 1,551=0,517 0,517 3 125 0,57 3 350
Определение массы сеток сводим в таблицу 2. 4.
Таблица 2.4 - Определение массы сеток
|
Марка Сетки
|
Количество
|
Масса
|
Масса сетки
|
|
продольной арматуры
|
Поперечной арматуры
|
Продольной арматуры
|
поперечной арматуры
|
|
|
306055,929,0064,92
|
|
|
|
|
|
|
156043,189,0052,18
|
|
|
|
|
|
|
12183,652,165,81
|
|
|
|
|
|
|
16188,602,1610,76
|
|
|
|
|
|
|
116011,624,1015,72
|
|
|
|
|
|
3. Расчёт второстепенной балки
.1 Исходные данные
Размеры
второстепенной балки:
(размеры в осях), bsb =
200 мм, hsb =450мм, шаг второстепенных балок ssb = ls = 1,75 м. Размеры сечения главной балки: bmb = 300 мм, hmb =600мм.
Характеристики
бетона класса C22/27,5
см. выше в пункте 2.6.
Расчетные характеристики для продольной арматуры класса S500 см. выше в пункте 2.6.
.2 Определение расчетных пролетов
Расчетный пролет для крайних пролетов:
Расчетный
пролет для средних пролетов:
Рисунок 3.1 - К определению расчётных пролётов второстепенной балки.
3.3 Подсчет нагрузок на второстепенную балку
Второстепенная
балка работает совместно с прилегающими к ней участками плиты, то есть
расчетное сечение будет тавровое с шириной полки в сжатой зоне
равной расстоянию между осями (шагу) второстепенных
балок, то есть
.
Определение погонной нагрузки в кН/м на второстепенную балку сведем в
таблицу 3.1.
Таблица 3.1 - Определение погонной нагрузки.
|
Вид Нагрузки
|
Нормативная нагрузка, кПа
|
Расчетные нагрузки, кПа
|
|
|
1. Постоянные - g
|
|
- Плитка «Грес» ГОСТ 6787-2001, t=10мм, ρ = =20кН/м3
|
0,35
|
1,35
|
0,473
|
|
- Стяжка из цементно-песчаного раствора М150 мм, ρ=18 кН/м31,1031,351,488
|
|
|
|
|
- собственный вес плиты мм, ρ=25 кН/м33,51.354,725
|
|
|
|
|
- от собственного веса второстипенной балки: 1,851,352,498
|
|
|
|
|
Итого g:
|
6,803
|
|
9,184
|
|
1. Переменная - q - по заданию q·1.75
|
15,75
|
1,5
|
23,625
|
Нагрузки:
Для первого основного сочетания:
Для
второго сочетания:
3.4 Построение эпюр изгибающих моментов и поперечных сил
Статический расчет второстепенной балки выполняется с учетом
перераспределения усилий в стадии предельного равновесия конструкции.
Рисунок 3.2 - Расчётная схема второстепенной балки.
Ординаты
огибающей эпюры изгибающих моментов определяются с помощью рисунка 5-1 и
таблицы 5-1 приложения 5 [3]. Величины коэффициентов
для эпюр положительных моментов крайних и средних
пролетов приведены на рисунке, а для эпюры отрицательных моментов приведены в
таблице приложения в зависимости от величины отношения:
Величина
ординат огибающей эпюры моментов определяется по формуле:
Результаты
расчета сведены в таблицу 3.2.
Таблица
3.2 - Величины ординат эпюры изгибающих моментов
|
№ пролёта
|
N точек
|
В долях пролёта
|
β
|
Изгибающий момент
|
|
|
|
|
+β
|
-β
|
|
+Msd
|
-Msd
|
|
1
|
0,2
|
0,065
|
|
|
66,961
|
|
|
2
|
0.4
|
0,09
|
|
31,431·
|
92,715
|
|
|
1
|
max
|
0,425
|
0,091
|
|
·5,725²=
|
93,746
|
|
|
3
|
0,075
|
|
=1030,171
|
77,263
|
|
|
4
|
0,8
|
0,02
|
|
|
20,603
|
|
|
5
|
1
|
|
0,0715
|
|
|
73,657
|
|
6
|
0,2
|
0,018
|
0,037
|
31,431·5,7²=
|
18,381
|
37,784
|
|
7
|
0,4
|
0,058
|
0,019
|
=1021,193
|
59,229
|
19,403
|
|
2
|
max
|
0,5
|
0,0625
|
|
|
63,825
|
|
|
8
|
0,6
|
0,058
|
0,017
|
|
59,229
|
17,360
|
|
9
|
0,8
|
0,018
|
0,031
|
|
18,381
|
31,657
|
|
10
|
1
|
|
0,0625
|
|
|
63,825
|
|
11
|
0,2
|
0,018
|
0,029
|
31,431·5,7²=
|
18,381
|
29,615
|
|
12
|
0,4
|
0,058
|
0,013
|
=1021,193
|
59,229
|
13,276
|
|
3
|
max
|
0,5
|
0,0625
|
|
|
63,825
|
|
|
13
|
0,6
|
0,058
|
0,013
|
|
59,229
|
13,276
|
|
14
|
0,8
|
0,018
|
0,029
|
|
18,381
|
29,615
|
|
15
|
1
|
|
0,0625
|
|
|
63,825
|
3.5 Расчет прочности нормальных сечений и подбор арматуры в расчетных
сечениях балки
Определение требуемой площади сечения арматуры при действии
положительного момента ведем как для таврового сечения с полкой в сжатой зоне.
При действии отрицательного момента (полка) находится в растянутой зоне,
следовательно, расчетное сечение будет прямоугольным.
Размеры сечения принятые к расчету:
мм;
мм;
мм;
мм;
Принимаем
величину
мм в пролете и
мм на
опоре, тогда:
мм;
мм;
Определяем
положение нейтральной оси при расчете тавровых сечений (сечений в пролете).
Нейтральная ось находится в полке если:
условие
выполняется.



Для
бетона класса
по табл. 6.5, [2]:


Для арматуры класса S500
по табл. 6.5 и п.6.2.1.4 [1]:
В
пролёте 1 (нижняя арматура):
,
,
В пролёте 2 (нижняя арматура):
,
,
В
опорных сечениях действуют отрицательные моменты, плита расположена в
растянутой зоне, поэтому сечения балки рассматриваются как прямоугольные с
шириной b=0,2 м.
На
опоре В (верхняя арматура):
,
,
В пролёте 2 (верхняя арматура):
,
,
На
опоре С (верхняя арматура):
,
,
Результаты
расчетов и подбор арматуры в расчетных сечениях сводим в таблицу 3.3.
Таблица 3.3 - Определение площади сечения
рабочей арматуры второстепенной балки.
Положение
сечения Расположение Арматуры М, kН м Расчетное
сечение 

,
см2
,
1
пролет Нижняя 93,746
0,0212 0,9895,255,342
14
|
2 12
|
|
|
|
|
|
|
|
1 пролет
|
Верхняя
|
-
|
|
Монтажная конструктивная арматура
|
2,26
|
2 12
|
|
|
|
|
|
|
|
|
|
Опора
В Верхняя -73,657
0,15690,91164,645,342
14
|
2 12
|
|
|
|
|
|
2
пролет Нижняя 63,825
0,01440,9933,564,212
14
|
12
|
|
|
|
|
|
|
|
2 пролет
|
Верхняя
|
-18,382
|
|
0,0364
|
0,981
|
1,04
|
2,26
|
2 12
|
Опора
С Верхняя -63,825
0,1360,92443,674,212
14
|
12
|
|
|
|
|
|
.6 Расчет прочности наклонных сечений по поперечной силе
Для
второстепенной балки поперечное армирование принимается в виде вязаных открытых
или закрытых хомутов (открытые в пролете, закрытые на опорах). Хомуты
выполняются из арматуры класса S500. Диаметр хомутов в вязаных каркасах определяется
расчетом и по конструктивным требованиям должен быть на менее: при
мм
мм, и при
мм
мм (для
сварных каркасов диаметр назначается из условия свариваемости). Поперечное
армирование необходимо устанавливать по расчёту в приопорном участке
и в пролёте
.
Опора
B слева:
Определим
поперечную силу, которую может воспринять бетон по формуле:
но не
менее
-
расчётное сопротивление бетона при растяжении;
Так
как
- необходимо установить поперечное армирование в
приопорном участке.
Шаг
стержней поперечного армирования:
Принимаем
Площадь поперечной арматуры в сечении.
-
минимальный коэффициент поперечного армирования, который для класса арматуры S500
Принимаем
2Ǿ6
Определяем
угол наклона сжатых подкосов
,
соблюдая условие
-
прочность обеспечена
Проверим
следующее условие
Где
- коэффициент, учитывающий снижение прочности бетона
при сжатии в условиях растяжения и равен для тяжёлого бетона
Условие выполняется.
В средних частях пролётов шаг поперечных стержней должен назначаться
независимо от высоты сечения не более 3/4h и не более 30см. Принимаем S=30см, что не превышает 3/4h=3/4*45=33,75см.
.7 Построение эпюры материалов и определение мест обрывов арматуры
второстепенной балки
Минимальный диаметр рабочих стержней для вязаных каркасов принимается
равным 12 мм, максимальный - 32 мм.
При размещении стержней в сечении должны также соблюдаться следующие
требования:
а) расстояние в свету между стержнями должно быть не менее диаметра и не
менее 25 мм при нижнем расположении арматуры и не менее 30 мм - при верхнем,
что обеспечивается обычно при назначении количества стержней в сечении в
зависимости от его ширины;
б) расстояние в свету между рядами при двухрядовом расположении должно
быть не менее диаметра и не менее 25 мм;
в) стержни с отгибами рекомендуется располагать на расстоянии не менее 2d
от боковых граней элемента, где d - диаметр отгибаемых стержней;
г) толщина защитного слоя у нижней и верхней граней принимается не менее
величины указанной в табл.11.4, [1] в зависимости от класса по условию
эксплуатации. В нашем случае по условию эксплуатации ХС1 принимаем 35 мм.
Толщина защитного слоя у боковых граней должна быть во всех случаях не менее 25
мм для продольной арматуры и не менее 15 мм - для хомутов.
Несущая способность сечений балки по арматуре определяется по формуле:
где:
d - уточненное значение рабочей высоты сечения
h - табличный
коэффициент, определяемый по выражению:
,
где:
ξ
- коэффициент, определяемый по выражению:
Для
бетона класса
по табл. 6.5, [2]: 
При
построении эпюры материалов считают, что обрываемый стержень необходимо завести
за точку теоретического обрыва.
Из
точек теоретического обрыва проводят перпендикулярные линии до пересечения их с
горизонтальными линиями 
и
окончательно строят эпюру материалов, которая имеет ступенчатый вид в местах
теоретического обрыва стержней, и наклонный вид в местах отгиба стержней.
Следует иметь в виду, что начало каждого отгиба в растянутой зоне располагают
на расстоянии от точки теоретического обрыва не меньше, чем 
. С целью
восприятия изгибающего момента от возможного частичного защемления балки на
стене в первом пролете арматуру не обрывают, а отгибают на крайнюю опору.
Начало отгиба располагают на расстоянии 60 мм, от внутренней грани стены.
Из
точек теоретического обрыва обрываемых стержней по горизонтали откладывают
длину анкеровки W, и окончательно устанавливают место фактического обрыва
стержня.
Расчеты,
необходимые для построения эпюры материалов выполняем в табличной форме
(таблица 3.4.)
Таблица 3.4. Вычисление ординат эпюры материалов для продольной арматуры.
|
Количество и диаметр стержней
|
Уточненная высота сечения d=hsb-с,см
|
Ast, см2
|
fyd, МПа
|
  , кН м
|
|
|
|
1-ый пролёт(нижняя арматура, b=bf=175см, c=3,5 см)
|
|
2Æ14+2Æ12 2Æ12
|
41,5 41,5
|
5,34 2,26
|
435 435
|
0,027 0,0114
|
0,9865 0,9943
|
95,099 40,566
|
|
1-ый пролёт (верхняя арматура b=bsb=20 см, c=3,5 см)
|
|
2Æ12
|
41,5
|
2,26
|
435
|
0,10
|
0.95
|
38,76
|
|
Опорная арматура. Опора А (верхняя арматура b=bsb=20 см,
c=5,0 см)
|
|
2Æ14+2Æ12
|
40,0
|
5,34
|
435
|
0,244
|
0,878
|
81,564
|
|
Опорная арматура. Опора В (верхняя арматура, b=bsb=20 см,
c=5,0 см)
|
|
2Æ12+2Æ14 2Æ12
|
40,0 40,0
|
5,34 2,26
|
435 435
|
0,244 0,103
|
0,878 0,948
|
81,564 37,291
|
|
2-ой пролёт (нижняя арматура b= bf’=175см, c=3,5 см)
|
|
2Æ14 1Æ12 1Æ12
|
41,5 41,5
|
4,21 1,13
|
435 435
|
0,021 0,006
|
0,989 0,997
|
75,195 20,34
|
|
2-ой пролёт (верхняя арматура b=bsb=20 см, c=3,5 см)
|
|
2Æ12
|
41,5
|
2,26
|
435
|
0,0997
|
0,950
|
38,759
|
|
Опорная арматура. Опора С (верхняя арматура b=bsb=20 см,
c=5,0 см
|
|
2Æ14 1Æ12 1Æ12
|
40,0 40,0
|
4,21 1,13
|
435 435
|
0,193 0,052
|
0,904 0,974
|
66,198 19,154
|
3.8 Определение длины анкеровки обрываемых стержней
Анкеровка растянутой арматуры
Сечение А-А; Г-Г.
В
сечении обрываются стержни Æ 14 мм класса S500.
Требуемая площадь сечения арматуры Аs,red =2.26 см 2 (2Æ 12), принятая
Аs,prov =3,078 см 2 (2Æ 14). По табл. 14 [3] 
. Длина
анкеровки обрываемых стержней определяем по формуле (*)[3]
Значения
остальных параметров составляют:
Æ=15*14=210мм
Окончательно
принимаем lbd1=510мм.
Сечение
Б-Б
В
сечении обрываются стержни Æ 12 мм класса S500.
Требуемая площадь сечения арматуры Аs,red =2,26 см 2 (2Æ 12), принятая
-Аs,prov =5,34 см 2 (2Æ 12+2Æ 14). По табл. 14 [3] 
.
Значения
остальных параметров составляют:
15Æ=15*12=180мм
Окончательно
принимаем lbd2=470мм.
Сечение
В-В, Ж-Ж, Е-Е.
В
сечении обрываются стержни Æ 12 мм класса S500.
Требуемая площадь сечения арматуры Аs,red =3,078 см 2 (2Æ 14), принятая
Аs,prov =4,21 см 2 (2Æ 14+1Æ 12). По табл. 14 [3] 
.
Значения
остальных параметров составляют:
Æ=15*12=180мм
Окончательно
принимаем lbd1=470мм.
Опора
С слева и справа
Сечение
Д-Д, И-И
В
сечении обрываются стержни Æ 14 мм класса S500.
Требуемая площадь сечения арматуры Аs,red =2,26 см 2 (2Æ 12), принятая
-Аs,prov =3,078 см 2
(2Æ 14). По табл. 14 [3] 
.
Значения
остальных параметров составляют:
Æ=15*14=210мм
Окончательно
принимаем lbd4=510мм.
Анкеровка
сжатой арматуры
Опора
В. Из первого пролета нижние стержни Æ 12 мм класса S500
(lb=540 мм.) должны заходить за грань опоры (грань
главной балки) на длину зоны анкеровки равной: lbd,an1= 162 мм, что равно 0,3 lb=0,3*540= 162мм
Min=250мм
Из
второго пролета нижние стержни Æ 14 мм класса S500
(lb=540 мм.) должны заходить за грань опоры (грань
главной балки) на длину зоны анкеровки равной:
lbd,an2= 162 мм, что равно 0,3 lb=162 мм
Min=250мм.
Опора
C.
Из
второго и третьего пролета нижние стержни Æ 14 мм класса S500
(lb=540 мм.) должны заходить за грань опоры (грань
главной балки) на длину зоны анкеровки равной: lbd,an3= 162мм,
,3
lb=162 мм
Min=250мм
Окончательно
принимаем lb=250 мм
Анкеровка
арматуры на свободной опоре.
Длина
анкеровки продольной арматуры Æ 14 мм на свободной опоре
должна быть не более 5 Æ=5*14=70мм
Анкеровка
продольной арматуры обеспечивается.
Соединение
стержневой арматуры.
Верхняя пролетная арматура Æ 14 мм в крайних и средних пролетах стыкуется с верхней
опорной арматурой Æ 14 мм. Стыкуемые стержни необходимо завести друг на друга (нахлест) на
величину длины анкеровки большего диаметра, т.е.

{0,6· lb=0,6·44·14=370 мм или 15·Æ=15·14=210мм
Принимаем
lb=380 мм
Заключение
железобетонный балочный плита анкеровка
В данной курсовой работе выполнили расчет сборной плиты пустотного
настила по первой и второй группам предельных состояний, расчет плиты
монолитного балочного перекрытия и второстепенной балки, а также выполнили
рабочие чертежи плиты пустотного настила и монолитного балочного перекрытия.
Список используемых источников
1. Бетонные и железобетонные конструкции. СНБ 5.03.01-02
(с изменениями №1-№5). Официальное издание. Разработаны Техническим комитетом
по техническому нормированию и стандартизации в строительстве «Бетонные и
железобетонные конструкции, бетоны и растворы» (ТКС 08) при РУП «Стройтехнорм».
. Железобетонные конструкции. Основы теории расчёта и
конструирования //Учебное пособие для студентов строительной специальности. Под
редакцией профессора Т.М. Петцольда и профессора В.В. Тура. - Брест, БГТУ,
2003.-380 с. с илл.
. Расчёт и конструирование монолитного ж/б ребристого
перекрытия с балочными плитами //Методические указания для студентов
строительной специальности 70 02 01 дневной и заочной формы обучения. Под
редакцией Малиновского В.Н. Шалобыты Н.Н. - Брест, БГТУ, 2010
. ТКП EN
1992-1-1-2009 (02250). Еврокод 2. Проектирование ж/б конструкций. Часть 1-1.
Общие правила и правила для зданий. - Министерство архитектуры и строительства
Республики Беларусь. Минск 2010
. СНиП 2.01.07-85* Нагрузки и воздействия.