Проектирование промышленного пункта технического обслуживания
Содержание
1. Введение
2. Описание климатических условий
3. Объемно-планировочное решение здания
4. Конструктивные решения
5. Описание основных конструкций здания
6. Генплан
7. Спецификация
8. Санитарно-техническое оборудование
9. Заключение
Список используемой литературы
1.
Введение
Целью проекта является проектирование промышленного пункта
технического обслуживания, которое будет отвечать следующим требованиям:
функциональности, целесообразности; целесообразности технических решений;
надежности; санитарно-техническим требованиям с учетом природно-климатических и
других местных условий; требованиям техники безопасности и требованиям
экономичности строительства и т.п.
В ходе выполнения графической части курсового проекта,
который включает в себя чертежи фасада здания, поэтажного плана, разреза,
необходимо также выполнить разрез по стене здания и конструктивные узлы.
Главные задачи: систематизация, закрепление и расширение
теоретических и практических данных; а также самостоятельно и творчески
мыслить.
2. Описание
климатических условий
Район застройки: город Волгоград
Температура наружного воздуха:
в зимнее время - 15,3 0С
в летнее время +20,4 0С
среднее значение 1,2 0С
Повторяемость ветра: преобладает западное направление ветра:
зимой 30%
летом 18%
Влажность наружного воздуха составляет:
для наиболее холодных месяцев 77%
для наиболее жарких месяцев 54%
Количество осадков за год 565 мм ртутного столба
Глубина промерзания грунта 110; грунт супеси; уровень
грунтовых вод более 10 м; рельеф спокойный, ровный
Климатический район I, подрайон IB
Зона влажности 3 сухая
Характеристика климатических условий:
Среднемесячная температура воздуха в январе от - 14 до - 28 0С;
Среднемесячная скорость ветра за три зимних месяца 5 м/с и
более;
Среднемесячная температура воздуха в июле от +12 до +21 0С;
Среднемесячная относительная влажность воздуха в июле более
75 м/с.
Особые физико-геологические условия.
На значительной части территории - вечномерзлые грунты.
Природно-климатические факторы, определяющие общность типологических требований
к жилищам: суровая и холодная длительная зима, обуславливающая максимальную
теплозащиту жилых зданий, а также защиту от снеговых заносов, ветров и
повышенной влажности воздуха в приморских районах.
3.
Объемно-планировочное решение здания
Здание одноэтажное, двухпролетное. Форма прямоугольная, длина
в осях 22400 мм, ширина 16000 мм. Высота по оси В составляет 5.1 м, по оси Б
равна 3.7 м, а самая высокая точка от нулевой отметки составляет 5.100 м.
Строительство объекта осуществляется в городе Екатеринбург.
Состав помещений:
. Складское помещение 3,78 м2
2. Ремонтный зал 111.36 м2
. Гараж 189.42 м2
. Токарный цех 18,92 м2
. Офисное помещение 32.72 м2
4.
Конструктивные решения
Здание по проекту выполнено по бескаркасной схеме с опиранием
плит покрытия на железобетонные скатные и двускатные балки таврового сечения,
которые опираются на пилястры наружных и внутренних стен. Толщина наружных 520
мм внутренних стен 380 мм.
Также по проекту предусмотрен рельсовый кран, который
расположен под двускатной балкой.
5. Описание
основных конструкций здания
5.1 Фундамент - это несущая конструкция, часть здания,
которая воспринимает все нагрузки от вышележащих конструкций и передает его на
основание. Закладываются ниже глубины промерзания грунта, для того, чтобы
предотвратить их выпучивание. В настоящее время для строительства зданий
применяются следующие типы фундаментов - ленточные, стаканные, столбчатые,
свайные и плитные. Они бывают сборные, монолитные и сборно-монолитные. Выбор
фундамента зависит от сейсмичности местности, грунта и от архитектурных решений
Фундаменты для данного здания используются ленточные
монолитные железобетонные одноступенчатой конструкцией.
Одноступенчатые фундаменты располагаются под несущими
наружными и внутренними стенами. Фундамент выполняется из бетона класс В 25. По
обрезу фундамента выполняется горизонтальная гидроизоляция из двух слоев
рубероида на битумной мастике.
.2 Стены - вертикальная ограждающая конструкция, отделяющая
помещение от окружающего пространства или соседнего помещения. По условиям
работы делятся на несущие, самонесущие, ограждающие, навесные и ненесущие. По
расположению стены бывают наружные и внутренние. По материалу: деревянные,
кирпичные бетонные, железобетонные, сендвич-панели.
В данном проекте используется наружные и внутренние кирпичные
несущие стены с многорядной системой перевязки, толщиной - 380 мм.
Несущая способность увеличивается армированием сеткой
диаметром 6 мм, концы проволоки которой должны выступать на 1-2мм. Размеры
вертикальных и горизонтальных швов 10-12 мм.
.3 Перегородки - предназначаются для разделения здания в
пределах этажей на отдельные помещения.
Перегородки подразделяются:
. по материалу на: а) деревянные; б) каменные; в) из
керамики; г) гипсобетонные и др.;
строительство конструкция здание застройка
2. по конструкции: а) на монолитные; б) из мелкоразмерных
штучных камней и плит из крупноразмерных элементов высотой на этаж или размером
на комнату.
Крепятся перегородки к стенам и покрытиям в зависимости от
конструкции самих перегородок и элементов здания, к которым они примыкают.
Крепление их может предусматриваться поверху, по бокам, либо одновременно по
верху и по бокам. Крепятся гвоздями, закрепами, вилочными скобами, анкерами и
др.
В курсовом проекте используются перегородки гипсобетонные,
крупнопанельные высотой 2740 мм, толщиной 100 мм, из бетона марки М50 на
гипсовом вяжущем. По расположению делятся на разделяющие (глухие и с проемами)
и ограждающие перегородки.
5.4 Покрытия, кровля
Плиты покрытия - это плиты, которые используются для
завершения "коробки" здания, чаще всего в промышленных бесчердачных
помещениях, составляя крышу, которую затем можно покрывать отделочным
материалом или просто залить битумом для дополнительной гидроизоляции.
Плиты покрытия ребристые ГОСТ 28042-89 подобранные по
размерам без предварительного напряжения арматуры двух типов:
ПГ - без проемов в полке плиты, с верхней плоской
(горизонтальной или двускатной) поверхностью;
ПВ - с проемами в полке плиты для пропуска вентиляционных
шахт с дефлекторами или зонтами, а также воздуховодов крышных вентиляторов, с
верхней плоской (горизонтальной или двускатной) поверхностью.
Кровельное покрытие применяется рубероид по двум слоям, так
как он более долговечен по сравнению с кровельными материалами, не имеющими
покрытия и защитной посыпки.

Окна - это элемент стеновой или кровельной конструкции,
предназначенный для сообщения внутренних помещений с окружающим пространством,
естественного освещения помещений, их вентиляции, защиты от атмосферных,
шумовых воздействий и состоящий из оконного проёма с откосами, оконного блока,
системы уплотнения монтажных швов, подоконной доски, деталей слива и облицовок;
Оконный блок - светопрозрачная конструкция, предназначенная
для естественного освещения помещения, его вентиляции и защиты от атмосферных и
шумовых воздействий.
В курсовом проекте применяются окна различных типов:
. в ремонтном зале установлены окна деревянные в
количестве 2 шт. с несколькими оконными блоками марки ПГД 12-15В ГОСТ12506-81;
2. во всех остальных помещениях данного здания
применяться окна ПВХ марки ПНД 9-9 ГОСТ 12506-81.

Двери - подвижная конструкция в составе комплекса ограждений
пространства, предназначенная для ограничения доступа к этому пространству.
В курсовом проекте предусмотрены двери внутренние из ПВХ по ГОСТу
24689-81 и одна входная стальная по ГОСТу 6629-88.
Дверные коробки крепятся к антисептированным пробкам гвоздями или
ершами. Зазоры заделываются монтажной пеной "Makroflex" и закрываются
наличниками.
Применяются двери типа:
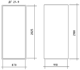
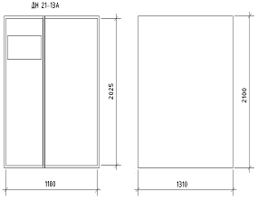
ДН 21-13 - входная дверь в офис;
ДУ 21-10 - складское помещение и токарный цех;
ДГ 21-9 - подсобное помещение и уборная;
Ворота - проезд в стене или ограде, запираемый створами.
Ворота могут использоваться для ограничения доступа на определённую территорию,
а могут быть чисто декоративным элементом. Декоративные ворота, как правило, не
имеют створов и представляют собой отдельно стоящую арку.
В здании применяются ворота распашные металлические с
щитовыми полотнами в количестве 2 шт. Изготовленные по специальным размерам
марки ВМ 3000*2500-330 ГОСТ 31174-2003 и ВМ 4380*5000-360 ГОСТ 31174-2003.
- несущие элементы обрамления проема; 2 - щитовое полотно; 3 -
нащельник притвора с уплотнительной прокладкой; 4 - замок; 5 - ручка; 6 -
задвижка; 7 - петля; 8 - металлический профиль рамки (каркаса) полотна; 9 -
заполнение полотна
Описание отделки.
Отделка ремонтного зала, гаража, токарного цеха, складского и
подсобного помещения выполнена Ѕ плитка и путем нанесения из краскопульта
побелки.
В офисном помещении выполнена декоративная отделка стен:
оштукатуривание и оклейка обоями. Уборная отделана керамической плиткой.
Наружная отделка выполнена сайдинг-панелями так, как этот
материал:
· Устойчивость ко всем
климатическим воздействиям;
· Устойчивость к
механическим повреждениям;
· Простота монтажа;
· Широкий спектр цветовых
решений;
· Невысокая стоимость
относительно других фасадных материалов;
· Простота эксплуатации,
нетребовательность в уходе;
· Длительный срок службы.
Полы.
Полы помещений как офисное, подсобное и токарный цех
линолеумные на цементной стяжке с теплоизолирующей подосновой. Пол в уборной
выполнен из керамической плитки на цементно-песчаном растворе, 2-х слоев
рубероида и слоя цементного раствора, та же самая плитки применена в складском
помещении. Пол гаража и ремонтного зала асфальтобетонные на цементной стяжке.

6. Генплан
Рельеф выбран спокойный, ровный. Здание расположено на
окраине города, рядом с жилой зоной. Существуют проезжая часть и подъездные
пути к зданию, а также рядом парковка вместимостью до 23 автомашин. Зелённая
зона и зеленные насаждения вдоль автодороги.
ТЭП.
По - общая занимаемая площадь: 3584 м2
*16 = 3584
Пз - площадь всех зданий 596 м2
(14,240-15,240) + (6,000+9,000) + (2,500+2,500) + (
(8,500*12,500) *3) =596
Пд - площадь дорог и тротуаров 869 м2
(6,000*50,000) = 300
(3,000*50,000) = 150
(3,000*10,500) *3 = 94,5
(6,000*27,000) *2 = 324
+150+94,5+324 = 868,5
К1 - коэффициент площади застройки 18,3 %
К1 = Пз/По*100% = 596/3250 *100% ≈ 18,3
К2 - коэффициент использования территории 45,08%
К2 = Пз+Пд/По*100% = 596+869/3250*100% ≈ 45,08
7.
Спецификация
Оконные и дверные блоки
|
Позиция
|
Наименование
|
Обозначение
|
Всего
|
|
1.
|
ГОСТ 6629-88
|
ДН 21-13
|
1
|
|
2.
|
ГОСТ11214-86
|
ДУ 21-10
|
3
|
|
3.
|
ГОСТ11214-86
|
ДГ 21-9
|
2
|
|
4.
|
ГОСТ12506-81
|
ПГД 12-15В
|
|
5.
|
ГОСТ 12506-81
|
ПНД 9-9
|
7
|
Спецификация сборных железобетонных элементов:
|
Позиция
|
Обозначение
|
Наименование
|
Количество
|
|
1.
|
ГОСТ 28042-89
|
ПГ3,5-1,5
|
23
|
|
2.
|
ГОСТ 28042-89
|
ПГ3,5-3
|
6
|
|
3.
|
ГОСТ 28042-89
|
ПВ3,5-1,5
|
1
|
|
4.
|
ГОСТ 28042-89
|
ПВ3,5-3
|
2
|
|
5.
|
ГОСТ 23009-78
|
БСД9-IAIV
|
5
|
|
6.
|
ГОСТ 23009-78
|
БСД6-IAIV
|
5
|
Спецификация полов
|
Наименование помещения по проекту
|
Тип пола
|
Схема пола
|
Элементы пола и их толщина
|
S пола, м2
|
Офисное помещение, подсобное помещение и токарный цех Линолеум
Линолеум 3-5 мм:
Цементно-песчаная стяжка 15 мм;
Тепло - звукоизолирующая подоснова 10 мм;
|
Плита перекрытия 220 мм. 36,998 м2
|
|
|
Уборное помещение, складское помещение Керамическая
плитка
Керамическая плитка на цементно-песчаном
растворе 30 мм;
слоя рубероида;
Слой цементного раствора 15-20 мм;
|
Плита перекрытия 220 мм. 8,9661 м2
|
|
|
Ремонтный цех и гараж Асфальтобетон
Асфальтобетон;
Слой цементного раствора 100 мм;
|
Железобетонная плита 200 мм. 141,9162 м2
|
|
|
8.
Санитарно-техническое оборудование
1. Канализация - хозяйственная в городскую сеть
2. Горячее водоснабжение от внешней сети
. Электроосвещение от внешней сети с напряжением
220-380 В
. Оборудование санузлов: унитаз, душевая кабина,
умывальник
. Отопление центральное, теплоноситель - вода 70-95 0С
. Два вида вентиляции: механическая и приточная
9. Заключение
Я считаю, что в ходе выполнения курсового проекта цели были
выполнены полностью. Я научился пользоваться технической литературой,
строительными нормами и правилами, типовыми проектами и др.
Курсовой проект выполнен с учетом особенности рельефа и
климатических условий района строительства.
Пункт технического обслуживания получился универсальным
местом где размещены помещения как гараж, токарный цех, ремонтный зал с
устройством рельсового крана и складское помещение. Рядом с зданием расположены
парковка и автозаправка.
Список
используемой литературы
1. ГОСТ
2105-95 ЕСКД "Общие требования к текстовым документам"
2. ГОСТ
2306-68 ЕСКД "Обозначения графических материалов и правила их нанесения на
чертежах"
. ГОСТ
21501-93 СПДС "Правила выполнения архитектурно-строительных чертежей"
. СНиП
20201-83 "Основания здания и сооружений. Нормы проектирования"
. СНиП
20101-82 "Строительная климатология и геофизика"
. СНиП
2101-97 "Пожарная безопасность в строительстве"
. Общесоюзный
строительный каталог типовых конструкций и изделий.
. Вильчик
Н.П. Архитектура зданий: Учебник. - М.: ИНФА-М, 2014. - 303с.
. Шерешевский
И.А. Конструирование гражданских зданий. Учебное пособие для студентов
строительных специальностей - М: "Архитектура - С", 2009.176 с.
. Шерешевский
И.А. Конструирование промышленных зданий и сооружений. Учебное пособие для
студентов строительных специальностей - М: "Архитектура - С",
2010.168 с.