Проект освоения исторических и охранных территорий без ущерба для генотипа места

  • Вид работы:
    Дипломная (ВКР)
  • Предмет:
    Строительство
  • Язык:
    Русский
    ,
    Формат файла:
    MS Word
    800,69 Кб
  • Опубликовано:
    2015-10-10
Вы можете узнать стоимость помощи в написании студенческой работы.
Помощь в написании работы, которую точно примут!

Проект освоения исторических и охранных территорий без ущерба для генотипа места

ВВЕДЕНИЕ

Сколько сел на Руси, что от благ далеки,

Нынче брошены подло на прозябанье?!

Где живут, вымирая, одни старики,

И стираются с карты былые названья.

Сколько мест, где село уж давно не село,

Где потухшую жизнь только пыль покрывает,

Где репьем как быльем все до крыш поросло,

И в глазницах окон только ветры гуляют...

Э. Асадов

По данным областной статистики на рубеже XIX-го и XX-го веков (1898 год) на территории Вологодской губернии сельское население составляло 96%. Почти все жили в деревнях и селах. Природные ресурсы территорий, осваиваемые трудом людей, были доступны, и при трансляции из поколения в поколение культуры, уклада (технологий, традиций, нравов), при использовании в семьях средств народной педагогики на основе личного примера позволяли обществу жить и развиваться. Была самая справедливая оплата труда - продуктом собственного труда, проблемы управления качеством не существовало: претензии предъявляй самому себе, по крайней мере, она разрешалась внутри трудовой семьи. Жизнь, деятельность человека в деревне была разнообразной и органично связанной с природой. [1].

Сейчас в среднем по России 70% процентов населении - горожане, a 30 % - живут в сельской местности (таблица 1). Многие деревни опустели вообще. Огромные жизненно-важные ресурсы оказались покинутыми, в первую очередь - земля. Запоздало решение проблемы создания эффективных (а значит и высокооплачиваемых) рабочих мест на селе.

Перепись населения 2010 года обнаружила массу поселков и городов, от которых остались одни названия! Они значатся в кадастрах, они существуют на бумаге как административные единицы. Многие руководители районного или даже областного уровня командуют территориями, на которых нет людей (таблица 2).

Резко снизилась населенность не только деревень, которые просто исчезают с карт, но и малых городов и поселков. Не стоит думать, что это только районы Дальнего Востока, - это и области, находящиеся в 200-300 километрах от Москвы. Конечно, в зоне притяжения крупных городов это не проблема. Но достаточно выехать недалеко за пределы этой зоны, чтобы увидеть, что там происходит. Возьмем, к примеру, Тверскую область, которая исторически разрывается между Петербургом и Москвой. Миграция в эти два мегаполиса в совокупности с высокой смертностью и низкой рождаемостью приводит к обезлюдению региона (рисунок 1).

Рисунок 1 - Карта пустеющей России [2]

Во всех западных рыночных странах урбанизация происходила по следующей схеме: изначально крестьяне, владевшие землей, были вынуждены продавать ее крупным компаниям, а сами отправляться в поисках лучшей жизни в город. То есть перед нами предстают неграмотные крестьяне, лишившиеся своих собственных средств производства (земли), а потому вынужденных отправляться в город искать работу.

Таблица 1- Распределение сельских поселений по федеральным округам, 2010 год [2]


Всего

Число поселений без населения

Число поселений с населением менее 6 человек

Число поселений с населением 6-10 человек

Доля пустых поселений

Доля поселений с населением 0-10 человек

СЗФО

29618

5920

7359

3898

20%

58%

ЦФО

59762

9732

11265

6613

16%

46%

Российская Федерация

153124

19416

22971

13254

13%

36%

ПФО

34042

2706

3375

2021

8%

24%

ДФО

2729

143

126

67

5%

12%

УФО

5816

260

242

170

4%

12%

СФО

11464

344

424

315

3%

9%

СКФО

3322

171

49

31

5%

8%

ЮФО

6371

140

131

139

2%

6%


Таблица 2 - Число городских поселений с населением менее 3000 человек*, 2010 год [2]


Всего городов и ПГТ

Городов и ПГТ с населением менее 3000 человек

Доля городов и ПГТ с населением менее 3000 человек

СЗФО

288

53

18%

ЦФО

631

62

10%

Российская Федерация

2386

361

15%

ПФО

469

63

13%

ДФО

232

86

37%

УФО

190

14

7%

СФО

356

71

20%

СКФО

92

6

7%

ЮФО

128

6

5%


У нас же все происходило совсем по другому. Более того. Наша страна (и все остальное постсоветское пространство) - единственный пример в истории такого развития. У нас имеется изначально государственная собственность на землю, грамотные сельскохозяйственные рабочие и уже сформированный слой городских жителей. У нас имеется (или имелась) современная сельскохозяйственная техника и многое-многое другое.

Однако, закрытие колхозов и совхозов привело к тому, что многие люди остались без работы. И тут речь идет о хронической безработице. Кто-то спился, кто-то умер в результате этого, но тенденция наблюдается до сих пор - село вымирает. И сельские жители не могут отправиться в город в поисках лучшей жизни. Такое принципиальное отличие двух способов формирования рыночной экономики ещё только ждет своего осмысления.

В свою очередь, сельское хозяйство остается неотъемлемой отраслью народного хозяйства, которая направлена на обеспечение нужд населения и обеспечение сырьем некоторых отраслей промышленности. Это очень важная отрасль народного хозяйства и она есть в каждой развитой стране мира.

Вот такая современная ситуация в стране побудила автора взять ее за предмет исследования, выбрав объектом - деревню и возможность ее воссоздания уже в новом качестве.

Выходы из сложившейся экологической и социальной обстановки уже давно апробированы по всему миру и имеют широкое распространение. Это экопоселение и всевозможные его разновидности. [3]

На западе эко движение началось в начале 1960-х годов. В России же первые экопоселения появились в начале 1990-х, когда стали вскрываться и широко публиковаться материалы по многим экологическим проблемам. Российская сеть поселений была создана в 2005 году.

В различных экологических поселениях встречаются разные экологические (природоохранные) ограничения и самоограничения производства и оборота товаров, применения тех или иных материалов или технологий, образа жизни. В качестве наиболее распространённых примеров можно привести:

•        Устойчивое земледелие - использование неистощительных технологий обработки земли (например, принципы пермакультуры). Как правило, также бывает запрещено использование ядохимикатов и пестицидов на территории экопоселения.

•        Устойчивое лесопользование и поликультурное лесовосстановление - бережное использование лесов и работы по высадке разных пород деревьев для формирования в лесах устойчивых экосистем, в отличие от монокультурных посадок (подверженных болезням и вредителям), активно практикуемых лесопромышленными организациями.

•        Минимизация энергопотребления - достаточно распространённая практика, проявляющаяся в строительстве энергоэффективного жилья использовании возобновляемых источников энергии, минимизации бытового энергопотребления [3].

Часто встречается стремление к автономности независимости от поставок извне. В большинстве сельских и пригородных экопоселений их жители стремятся сами выращивать для себя экологически чистые продукты питания, с применением технологий органического сельского хозяйства. В некоторых (как правило, более крупных) экопоселениях удаётся создавать собственное производство так же одежды, обуви, посуды и других вещей, необходимых для жителей экопоселения и (или) товарообмена с внешним миром. Ряд экопоселений используют автономную малую альтернативную энергетику.

Число людей может варьироваться в пределах 50-150 жителей, поскольку в этом случае, согласно сведениям социологии и антропологии, будет обеспечиваться вся необходимая для такого поселения инфраструктура. Тем не менее, могут существовать и крупные экопоселения (вплоть до 2000 жителей).

Какую роль играет архитектор в проектировании агропоселений? Создавая такого рода поселение, нужно учитывать огромное количество факторов, особенно исторический, а именно воспроизведение исторически сложившегося уклада жизни. Только в этом случае мы будем иметь отличие от обычного экокопоселения. Воспроизводя такой уклад жизни нужно учитывать и фактор времени: невозможно "пересказать" историческую архитектуру дословно, следует лишь переносить определенные признаки (планировочные, градостроительные и др.) Задача архитектора состоит в определении этих самых признаков подлинности, с учетом современных материалов, технологий строительства, нового уклада жизни.

Необходимо учесть все принципы агропоселения. Должна быть создана такая среда, которая способствовала бы развитию, становлению и развитию личности, дающая человеку абсолютно все для удовлетворения всех его творческих, духовных, социальных, экономических и других потребностей. В создании облика поселения особую роль должно играть определение основных объединяющих приемов проектирования, чтобы избежать неструктурированной и несвязанной между собой застройке. Примерами таких приемов могут быть: использование определенных материалов, определение цветовой карты исходя из особенностей среды, планировочные приемы и т.д. [3]

1. ТЕОРЕТИЧЕСКОЕ ОБОСНОВАНИЕ

.1 Обоснование выбора территории проектирования

.1.1 Описание объекта как охраняемой территории национального парка "Русский север"

Национальный парк "Русский Север" располагается на территории Вологодской области Российской Федерации, в Кирилловском районе. Возведение природных границ в статус национального парка было осуществлено Правительством России соответствующим постановлением, под номером 182 от 20 марта 1992 года. Это удивительное место, богатое культурное наследие русского севера. Уникальные памятники природы сочетаются с памятниками архитектуры местных поселений и городов. Национальный парк "Русский Север" раскинул свои границы в 120 километрах от областной столицы - города Вологды. Общая площадь парка составляет 166,4 тысяч гектаров [4].

На этой уникальной территории членами кооператива, некоммерческим партнерством, занимающимся возрождением русских деревень было выбрано место для проектирования. Под поселение определена территория, находящаяся в Кирилловском районе, Вологдодской области, Ферапонтовское СП, д. Цыпино с окрестностями, а также д. Загорье. Практически вся территория включена в Национальный парк "Русский Север".

Это неописуемые по своей красоте места, которые не оставляют равнодушным даже самого искушенного гостя. Холмистая местность, необычайный ландшафт [4].

Участок располагается в Кирилловском районе Вологодской области, включает в себя следующие территории: земли НП д. Цыпино, Загорье, примыкающие паевые земли и округа Ильинского озера. Рядом протекает р. Каменка. Входит в состав Ферапонтовского сельского поселения, с точки зрения административно-территориального деления - в Ферапонтовский сельсовет. Расстояние по автодороге до районного центра Кириллова - 24,5 км, до центра муниципального образования Ферапонтово - 1,5 км. Ближайшие населённые пункты - Леушкино, Загорье, Лещево, Ферапонтово.

) территорию можно занимать по своему усмотрению, но так, чтобы вышеперечисленные деревни входили в состав нового поселения;

) по переписи 2002 года население - 1 человек;

) добраться от Вологды на автобусе (Вологда-Липин Бор) до Ферапонтова, от Ферапонтова монастыря еще 2 км;

Выбор данного места для такого рода проекта не случаен. Создавая поселение здесь, мы возрождаем исконно русский усадебный тип организации быта. Рядом расположено Ильинское озеро, которое является точкой притяжения многочисленных групп туристов, приезжающих на отдых летом. Самыми известными и посещаемыми местами считаются: церковь Ильи Пророка, гора Маура, гора Цыпина, усадьба Бриллиантовых.

Также не случаен и выбор усадебного уклада жизни - это исторически сложившийся на данной территории образ жизни.

.1.2 Функциональная зависимость территории и его градостроительного окружения

Территория отвечает всем рекомендациям по принципам организации аграрного экопоселения:

•        сельская, отдаленная от города местность,

•        одна из самых экологически чистых районов области, включенная в состав территорий Национального парка "Русский север",

•        есть все ресурсы для земледелия, растениеводства, животноводства и др. отраслей сельского хозяйства,

•        большой запас территории для возможного постоянного роста,

Объект придаст более высокий эстетический уровень жилой среде, создаст мощный ориентир и центр "размагничивания" городов. Повысит статус Кирилловского района и Вологодской области, задаст новые тенденции.

Восстановление исторического усадебного уклада быта позволит выявить аутентичные особенности места, создать принципиально новую для человека среду.

.1.3 Особенности проектирования в исторических местах

Для проектирования на исторических территориях особые требования, направленные на охрану историко-культурного наследия. Здесь необходимо выявлять историческую специфику территории, предусматривать гармоничные взаимодействия с ценной планировкой и застройкой. На таких территориях возможно только индивидуальное проектирование всех элементов комплексного благоустройства, использование исторических приемов в колористике, исторических стилистических особенностей. Органичное слияние архитектуры и пейзажа играет решающую роль в звучании архитектурно-пейзажного ансамбля в целом.

Необходимо учитывать следующие принципы: принцип единства четырех функций - репрезентативной, историко-культурной, рекреационной, экологической; в основе проектирования - национальное культурное наследие, фольклор и традиции; необходимость сохранения ценных зеленых насаждений [5].

1.2 Разработка программы на проектирование

.2.1 Инициативная группа д. Цыпино и другие члены "проектной команды"

Таблица 3 - Роль членов "проектной команды"

Роль участников

Возможные члены "проектной команды"

ПОТРЕБИТЕЛЬ (ПОЛЬЗОВАТЕЛЬ)

По жилищным объектам: · жилищные кооперативы; · многодетные семьи; · небольшие семьи или одиночки; · местное население, работники, добровольные помощники, фрилансеры;


По общественным зданиям: · туристы (агротуристы) - обслуживающий персонал; · продавцы-покупатели; · учителя-ученики; · музейный работник - посетители;

ЗАКАЗЧИК

· ООО "ПФ Северэлектро" · Администрация Ферапонтовского сельского поселения · Информационно-просветительский центр "За сбережение народа" · Частные лица - будущие жители;

ВЛАДЕЛЕЦ (потенциальный)

· Администрация Ферапонтовского СП · Жилищный кооператив · Частные лица-будущие жители

ИНВЕСТОР

· добровольные пожертвования граждан и организаций; · специальные фонды, благотворительные общества; · ООО "ПФ Северэлектро"

Строительный подрядчик

· Частные лица - будущие жители поселения; · добровольные работники; · коммерческий застройщик; · государственные или муниципальные строительные предприятия;

Административный контроль

· Территориальные органы архитектуры и градостроительства; · Администрация Ферапонтовского СП · Центр Госсанэпиднадзора; · пожарная инспекция; · Санэпидемстанция;


Таблица 4 - Состав жилищного кооператива

Член кооператива

Участие

Чешин Андрей Сергеевич (председатель)

Организационные вопросы

Симаков Александр Владимирович (Землевладелец. Местный житель)

Организационные вопросы. Историческая справка.

Линькова Надежда Васильевна (Председатель регионального движения "За Сбережение Народа")

Вопросы экологического насыщения. Экологические технологии проекта. Агротехнологии.

Короткая Марина Алигайдаровна (Сопредседатель регионального движения "За Сбережение Народа")

Вопросы экологического насыщения. Концепция образа жизни населения. Экологические технологии проекта.

Андрианов Николай Валентинович (Информационно-просветительский центр "За Сбережение Народа")

Вопросы внедрения учебной функции.

Башмашников Дмитрий ("Народный проект дома из местных материалов")

Технологические вопросы. Сырьевая база. Соучастие в разработке новых проектов.

Артеев Андрей Николаевич (Администрация Ферапонтовского СП)

Снабжение информационными источниками. Вопросы совместной деятельности кооператива и администрации. Общие интересы и перспективы сотрудничества.

Войнов Николай Николаевич (Преподаватель СпбГАСУ. Соавтор книги "Методы обосновывания программ устойчивого развития сельских территорий")

Социальные основы.

Подгузов Юрий Николаевич (Директор ООО "ПФ Северэлектро", землевладелец)

Финансирование. Конный клуб.


.2.2 Цели и задачи проектирования

Целью работы является разработка аграрного экопоселения, воссоздание усадебного уклада жизни с учетом современных технологий, материалов и потребностей будущих жителей, создание благоприятных условий для ведения натурального хозяйства, улучшению социального взаимодействия, выявление признаков подлинности данной территории. Частично задание на проектирование было выдано инициативной группой.

.2.3 Матрица целей и задач проектирования

Таблица 5 - Формулировка основных архитектурных и градостроительных задач проектирования

Уровни проектирования

Классификация целей и задач проектирования


Функциональные

Композиционно-художественные

Экономические

Социальные

Уровень области

Дезурбанизация

Создание поселения нового типа, придание более высокой эстетической и значимости жилищного фонда области, повышение статуса

Эффективное использование территории. Создание новых функций (предп. экотуризм) как источника дополнительных поступлений в городскую казну, создание благоприятных условий для ведения натурального хозяйства

Обеспечение транспортом общего пользования, создание досуга нового типа, возможность вести аграрную деятельность

Уровень района

Создание автономного поселения с историческим укладом быта, Внедрение новых важных функций

Создание ориентира, "магнита", Организую-щего пространство вокруг себя, выявление аутентичных особенностей

Сокращение энергопотребления, эффективное использование невозобновляе-мых ресурсов, создание благоприятных условий для ведения натурального хозяйства

Обеспечение транспортом общего пользования, создание досуга нового типа, возможность вести аграрную деятельность

Уровень комплекса

Обеспечение максимальной автономности поселения, защита территории от шума и загрязнений

Создание планировочной структуры, поддерживающей масштаб усадьбы Сохранение аутентичных признаков

Рациональное использование территории, Использование альтернативных источников энергии

Создание всех условий для комфортного, экологически чистого жилья, для работы, для отдыха, ведения личного хозяйства

Усадьба

Максимальная интеграция объекта в среду, сохранение исторического уклада с учетом современных потребностей человека

Создание органичного архитектурного решения, отвечающего признакам подлинности

Легкое, быстрое, устойчивое строительство, эффективное использование пространства

Обеспечение необходимым набором помещений с учетом образа жизни, Улучшение качества жизни


1.2.4 Социально-функциональная программа аграрного экопоселения

Таблица 6 - Социально-функциональная программа аграрного экопоселения

Ключевая социальная проблема

Социально-функциональная концепция

Катастрофическая экологическая ситуация в городе

"Устойчивого развития" - процесса, в котором эксплуатация природных ресурсов, направление инвестиций, ориентация научно-технического развития, развитие личности и институциональные изменения согласованы друг с другом и укрепляют нынешний и будущий потенциал для удовлетворения человеческих потребностей и устремлений

Непринятие высокого городского темпа жизни, протест против идеалов общества потребления; против пропагандируемых общепринятых благ, наподобие постоянно-го увеличения матери-ального капитала, карьерного роста и т.д.

"Жизни ради себя", "Отказа от чужих целей" - обеспечения максимальной самообеспечиваемости поселения, разнообразия культурных, досуговых, оздоровительных заведений, а также рабочих мест с ориентацией на жизнь ради себя и/или семьи

Проблема рабочих мест, "ненужность", "отсталость", "непродуктивность", "неконкурентоспоб-ность" деревни - решающего фактора убывания деревень

"Релокализации" или "Возврата к локальности" - процесса такого развития, которое делает упор на местном производстве продуктов питания, энергии, товаров потребления, которая направлена на то, чтобы усилить местный обмен, местное управление, местную культуру. · создание частных приусадебных хозяйств · внедрение технологий · вовлечение интеллектуальных ресурсов

1.2.5 Основные функциональные направления (согласованы с членами проектной команды)

I. Жилое

) минимальный размер территории, отведенный под жилую застройку 24,63 га;

) предположительное количество жителей - 54 семьи (по 1-6 чел в каждой), 12 гостевых домов, гостиница на 30 человек;

) предполагаемая плотность населения-4 чел/км2 (из расчета 1000 м.кв. на участок) Первыми по освоению территории: д. Цыпино, д. Загорье с прилегающими территориями, возможен вариант дальнейшего развития в сторону Ферапонтово, Щелково, Леушкино, Оденьево;

) необходимо предусмотреть комфортные объемно-планировочные решения, все необходимые помещения для каждого из типов домов с учетом сохранения усадебного типа с определенными признаками аутентичности (2);

) требуется создать несколько типов размещения агротуристов: в жилом доме вместе с хозяевами, в постройке рядом с жилым жомом местных жителей, в отдельном жилом доме (присмотр за домом в отсутствие туристов ведут местные жители), также предусмотреть место для размещения кемпинга;

II. Аграрное

) производство, переработка и сбыт молока с соответствующим приобретением мелкого и крупного скота необходимых пород; с использованием паевых участков и муниципальной земли с/х назначения; во взаимодействии с личными подсобными хозяйствами (предпочтительно в качестве дольщиков) рядом с Цыпино, в д Леушкино, Загорье и др. (Поддержка, укрепление, модернизация, кооперация, расширение);

) организация пчеловодства при взаимодействии и с частными производителями вокруг д.Цыпино, д.Леушкино и д.Загорье;

) разведение рыбы в прудах и птицы на землях д.Цыпино;

) рациональное использование и охрана Ильинского озера;

) восстановление и развитие льноводства с использованием паевых участков и муниципальной земли сельскохозяйственного назначения вокруг д. Цыпино, д.Леушкино,д.Загорье и др.;

III. Природоведческое (с которой сопрягаются все другие направления)

Дом природоведения, земледелия и крестьянского обихода в с.Цыпино - в виде старинной вологодской избы с подворьем. Здесь предполагается создать место деятельного общения ферапонтовских жителей и приезжающих, из числа дачников, паломников, деятелей культуры, что ищут на Ферапонтовской земле старинные образы красоты в ее природном и художественном единстве.

Ответственный - Г.Н.Кирова (единственный коренной цыпинский житель, бывший преподаватель русского языка и литературы).

Требуется строительство новых зданий. Необходимо выделение земельного участка для вышеуказанных целей строительства.

IV.Художественно-ремесленное (в самой тесной связи с двумя вышеуказанными)

) устроение производственно-учебных художественных мастерских;

) содействие и помощь существующим частным мастерским в с.Ферапонтово, д. Яршево и др.;. Эколого-туристическое

) развитие пеших, велосипедных и конных маршрутов (с. Ферапонтово -с. Цыпино - Цыпина гора, с ответвлениями);

) кемпинги с эколого-воспитательным направлением при нежилых и малонаселенных озерах;

) сельский туризм в частных домах местных жителей при взаимной поддержке с эколого-воспитательной направленностью что возможно во всех НП;

VI. Рекреационное

Организация мест совместного отдыха и экологическое воспитание для местных жителей и для экологических и сельских туристов.

VII. Краеведческое

Восстановление в первоначальном образе родового дома Бриллиантовых с садом (при деятельном, по возможности, участии их ныне здравствующих потомков); с последующей передачей им дома, и с устройством в нем; с продолжением многолетней экологической и краеведческой деятельности ферапонтовской школы при саде.

Необходимо правовое обеспечение возможности восстановления дома Бриллиантовых как такового, и соответственно, выяснение намерений лиц и организаций, причастных к данному месту.

2. АРХИТЕКТУРНО-ГРАДОСТРОИТЕЛЬНОЕ РЕШЕНИЕ

.1 Градостроительное решение

Территорию, отведенную для проектирования, предполагается поделить на очередность строительства (рисунок 2):

I очередь - д. Цыпино (с прилегающими к ней территориями)

II очередь - д. Загорье (с резервными землями)

III очередь - д. Леушкино (с резервными землями)

Рисунок 2 - Очередность строительства

Автором были изучены регламенты и правила землепользования и застройки данной территории (рисунок 3) [6], границы собственности земель (рисунок 4), а также был проанализирован рельеф (рисунок 5) с целью выявления наиболее благоприятных для застройки территорий (рисунок 6), согласно которым была разработана функциональная схема будущего агро-экологического поселения (рисунок 7). Согласно регламентам и ограничениям, распространяемым на территории природного парка "Русский север" размещать капитальные постройки можно только на паевых землях, которые примыкают к существующим поселениям Загорье, Леушкино и Цыпино. С учетом схемы охранных зон вокруг памятников истории и культуры, водоохранных зон, зоны кладбищ и зон сельхоз угодий жилая зона усадебной индивидуальной застройки в Цыпино определена следующей схемой (рисунок 3).

Рисунок 3 - Категории землепользования и застройки

Границы собственности кооператива находятся в пределах площади 22 га юго-восточнее от существующей усадебной застройки и 1.23 юго-восточнее застройки вдоль озера, а также 11,4 га северо-западнее этой территории. Таким образом, в поселении Цыпино подлежит освоению ……га (рисунок 4).

Рисунок 4 - Границы собственности земель

Рисунок 5 - Рельеф

Наиболее благоприятные для застройки территории были выявлены с учетом перепада рельефа, заболоченности и пригодности территории для освоения (к примеру, земли бывших пастбищ считаются наименее пригодными для освоения и т.д)

Рисунок 6 - Благоприятные для застройки территории

Рисунок 7 - Схема функционального зонирования территории

Таким образом, на основании анализа сложившейся ситуации, схем землепользования и застройки, границ собственности и анализа рельефа сложилась следующая схема функционального зонирования территории (рисунок 7) На территории Цыпино расположились преимущественно места для рекреации, общественные участки для огородничества, льноводства, покосов. На паевых землях, которые примыкают к д. Леушкино планируется разместить скотный двор с переработкой и дальнейшей реализацией продукции на месте. Также рядом с этим комплексом размещена гостиница на 30 человек для агротуристов и дома работников скотного двора. Жилая застройка размещается в зонах резерва, примыкающих к д. Загорье и д. Леушкино.

В проекте предусмотрена система прудов на месте существующей низины, которая будет служить в практических (разведение рыбы, улучшение экологии) и эстетических целях.

Автором был проведен анализ организации поселений северных славян [7], в ходе которого были выявлены следующие исторически сложившиеся типы:

)        с центрической композицией и с круговым восприятием;

)        с центрической композицией и полукруговым восприятием;

)        с линейной композицией;

)        с фронтальной композицией;

)        с многоцентровой композицией (с двумя центрами);

)        с многоцентровой композицией (с тремя и более центрами);

Также были определены основные принципы организации поселений (3):

)        поселения размещались относительно главного композиционного ядра (река, озеро, возвышенность и т.д.);

)        количество композиционных центров формировалось исходя из рельефа (определялись основные видовые точки);

)        жилье обычно обращалось на главную улицу, а огороды размещались за ними (могли выходить и в низовье реки);

)        имелись общественные земли для с/х нужд;

)        пастбища для выгула скота выносились за пределы селений и обычно имели отдельную дорогу, огороженную забором;

В результате вышеперечисленного анализа территории и задания на проектирование автором был составлена схема ген. плана будущего поселения (см. графическую часть проекта).

Поселение состоит из трех так называемых кластеров, которые в свою очередь включают в себя жилую застройку, места общего пользования (для с/х назначения, рекреация). Все они соединяются с общественным центром посредством главных улиц и второстепенных, которые ведут к основной дороге.

Жилая застройка усадебного типа расположена относительно главных улиц поселения с учетом рельефа. Все строения имеют такую ориентацию, которая позволяла бы не перекрывать основные видовые точки местности. Участки имеют разный размер, чтобы удовлетворить потребностям любого обитателя, что дает возможность размещения усадеб различного типа (рисунок 9).

В Цыпино же планируется разместить так называемый "узел домоводства", в котором будут сосредоточены все основные территории общего пользования (рекреация, товарообмен, обучение, огородничество, пчеловодство, выращивание льна).

.2 Архитектурное решение

.2.1 Усадьба

Следующим этапом анализа явилось изучение исторически сложившихся типов усадебных комплексов (рисунок 8). Автором были изучены основные принципы расположения хозяйственных и жилых построек [8].

Рисунок 8 - Анализ типов усадеб

В ходе анализа было выявлено:

)        все постройки (жилые и хозяйственные) объединялись под общей крышей-двором;

)        чаще всего изба отделялась от хозяйственных построек так называемым "чистым" двором, затем уже шел скотный ("грязный") двор;

)        хозяйственные постройки располагались в глубине комплекса;

)        встречались варианты компоновки двух изб (равнозначных и разных по размерам), объединенных между собой общим двором;

)        также две избы могли и примыкать друг к другу, в таком случае двор и постройки находились с двух сторон и за жилыми строениями;

)        количество и вид хозяйственных построек обуславливались родом деятельности хозяина усадьбы;

Далее автором были предложены проектные модели усадебных комплексов на основе вышеизложенного анализа (рисунок 9).

Пять моделей были условно поделены по размеру на усадьбы: куток, надел, надворье и поместье. Основной принцип формирования усадеб состоит в том, что имеется некий набор модулей (помещений), компануя между собой которые можно сгруппировать любой комплекс, исходя из потребностей обитателя.

Основные модули: изба, двор, баня, гараж, и подсобные помещения.

Рисунок 9 - Проектные модели усадебных комплексов

.2.2 Изба

Автором были выявлены аутентичные признаки жилья для районов русского севера (2) и разработаны современные типы жилых домов (рисунок 10) с учетом ограничений, выдвигаемых условиями особо охраняемых территорий национального парка "Русский Север" [6] (4)

Для выявления аутентичных признаков был проведен анализ пяти типов изб, наиболее часто встречающихся в районах русского севера (двухкамерной, трехкамерной, пятистенка, шестистенка и многокомнатной). В ходе анализа было выявлено, что в избе имелось теплое и холодное помещения, связанные буферными пространствами, которые в свою очередь имели различные варианты компоновки. Также большинство изб ставилось на высокий подклет до двух метров высотой, реже встречались двухэтажные постройки.

Высота сруба в среднем достигала 11-17 венцов, высота подклета при этом варьировалась от 4 до 6 венцов. Постройки чаще всего обращались жилыми помещениями на "лето", т. е. на юг. Печь в избе устанавливалась либо в центре постройки, либо справа от входа не вплотную к стене. Ставилась изба на фундамент из каменных плит. Наиболее распространенные типы крылец - с прирубом, на ряжах, на столбах, висячие. Наличие при крыльце лестницы из-за высокого подклета. Окна располагались преимущественно в жилых помещениях и были обращены на юг. Чаще всего встречался пол из колотых пластин, дощатый на лагах, из тесаных бревен. Наиболее распространенный тип потолка-бревенчатый. Существовало стремление объединить под одной крышей жилье и все хозяйственные постройки, создавая, таким образом, крытый двор - своего рода буферное пространство, потребность в котором обусловлена довольно низкой температурой воздуха зимой. Кровли большинства изб были двухскатными, самцовой конструкции и имели большой вынос (до 1 м.) [8]

Выявленные характерные признаки подлинности, в настоящее время могут потерять актуальность из-за развития технологий и появления новых потребностей в комфорте. Следующим этапом анализа явилась необходимость в определении существенных и несущественных факторов среды, оказывающих влияние на формирование облика современного дома сохраняющих актуальность на сегодняшний день. Выделено три фактора: природно-климатический, социокультурный и экономический, оказывающих влияние на структуру жилища.

Под воздействием природно-климатического фактора появились: скатная кровля с большими выносами, наличие крыльца, буферные зоны (подклет, сени), объединение всех построек под одной крышей, ориентация построек по сторонам света. Под воздействием социокультурного фактора формируется хозяйственный уклад быта: наличие большого количества хозяйственных построек, дом рассматривается как родовое гнездо (многопоколенные семьи). Благодаря экономическому фактору осуществлялось строительство на собственные средства, что требовало удешевления материалов (дерево как самый доступный из них, экономия на стекле).

Из анализа взаимодействия факторов среды и объемно-планировочного решения будущей модели жилища наиболее устойчивым, не претерпевающим существенных изменений во времени является природно-климатический фактор.

На основе выявленных аутентичных признаков жилья, актуальных в настоящее время, были предложены проектные модели. Выделялись основные объемно-планировочные элементы: подклет, теплая изба, холодная изба, буферные пространства, крыльцо, крытый двор. Имея возможность компоновать эти элементы в зависимости от потребностей, появляется множество вариантов планировки.

Таким образом, выявив признаки подлинности и создав с их помощью некий набор инструментов, появляется возможность проектирования различных по наполнению аутентичных жилых домов, не воспроизводящих архаичные внешние детали, не существенные для новых построек, гармонично вписывающихся в историческую среду, при этом оставаясь современными и индивидуальными.

Рисунок 10 - Модели типов современных жилых домов

3. ТЕХНОЛОГИЧЕСКИЕ И ИНЖЕНЕРНЫЕ РЕШЕНИЯ

.1 Экономическая часть

.1.1 Теоритические основы ценообразования на строительную продукцию

Цена - это денежное выражение стоимости единицы товара (продукции, работы, услуги). Цена зависит от многих факторов: величины затрат, средней нормы прибыли и рентабельности производства, соотношения спроса и предложения на конкретный товар, покупательной силы национальной валюты и т.д.

Цены на строительную продукцию определяются исходя из общих принципов ценообразования с учетом следующих технико-экономических особенностей:

- формирование цены на строительну продукцию происходит под влиянием основных участников строительства - проектировщика, заказчика, подрядчика, преследующих собственные коммерческие цели. Окончательная цена на строительную продукцию является компромиссом между интересами субъектов строительства (таблица 7)

Таблица 7 - Субъекты строительства и их основные функции

Субъект строительства

Основные функции

Инвестор (кредитор)

финансирование строительства

- выбор земельного участка; - поиск источников финансирования; - заключение договоров подряда; - приемка и эксплуатация построенных объектов

Проектировщик (генеральный проектировщик)

- проектирование объекта; - авторский надзор за производством работ

Инженерная организация (инженер)

- технадзор за производством работ; - организация и контроль производства строительных работ

Субпроектировщики

выполнение отдельных специализированных проектных работ

Подрядчик (генеральный подрядчик)

- строительство объекта собственными силами; - заключение договоров субподряда

Субподрядчики

выполнение отдельных специализированных строительных работ


индивидуальный характер строительных объектов (изготавливаются "на заказ" по проектам) не позволяет установить единые цены;

длительный производственный и инвестиционный цикл и, соответственно, большая зависимость стоимости работ от инфляционных процессов. В связи с длительностью производственнго цикла строительных процессов в период строительства может произойти изменение цен на строительные материалы, зарботную плату рабочих и проч., следовательно, проектная цена не может совпадать с фактической, что вызывает необхдимость учитывать фактор времени при формировании цены строительной продукции;

- высокий уровень материалоемкости строительной продукции (более 60% от конечной стоимости строительно-монтажных работ (СМР) составляет стоимость материалов, изделий и конструкций) приводит к большой зависимости стоимости строительной продукции от стоимости строительных материалов, изделий и конструкций, производимых предприятиями строительной индустрии;

- территориальная закрепленность строительной продукции и использование ее в тех местах, где она создана. Строительство - это единственная отрасль материального производства, продукт которой (здания и сооружения) территориально закреплён и рассчитан на длительный срок эксплуатации, а активная часть производственных фондов строительно-монтажной организации подвижна. Сметная стоимость строительной продукции зависит от местных условий строительства;

- постоянное воздействие атмосферно-климатических факторов в условиях круглогодичного ведения строительно-монтажных работ на открытом воздухе и площадях. Производственный процесс ведётся, как правило, на открытом воздухе в разных климатических условиях, что оказывает непосредственное влияние на технологические процессы и, соответственно, учитывается при формировании стоимости работ.

использование при возведении каждого объекта широкой номенклатуры материалов, изделий, конструкций и оборудования, машин и механизмов, трудовых ресурсов. По масштабу охвата и номенклатуре используемых ресурсов и профессий исполнителей (свыше 1500 ресурсов, порядка 30 профессий) строительство является уникальной сферой деятельности.

Цена строительной продукции определяется расчетым путем на основе составления сметы с использованием сметной документации, проектных норм и т. д. Наличие нескольких методов формирования цены, использование которых при расчете стоимости фиксируется в договоре подряда.

Основной методический документ ценообразования в строительстве - Методика определения стоимости строительной продукции на территории Российской Федерации - МДС 81-32,2004 В нем приводятся:

общие сведения о системе ценообразования и сметного нормирования в строительстве;

общие положения по определению стоимости строительства;

порядок составления сметной документации на строительство;

порядок определения стоимости строительства в составе предпроектных разработок и другие материалы.

Сметные нормативы - обобщенное название комплекса сметных норм, расценок и цен, объединяемых в отдельные сборники.

Сметная норма - совокупность ресурсов (затрат труда работников строительства, времени работы строительных машин, потребности в материалах, изделиях, конструкциях), устанавливаемая на предметный измеритель строительных, монтажных или других работ [9].

Сметные нормативы делятся на элементные и укрупненные.

Государственные элементные сметные нормативы (ГСЭН) - сметные нормы расхода ресурсов на соответствующую единицу измерения работ:

) индивидуальные сметные нормы;

) нормы по видам работ;

) единичные расценки (прямые затраты на единицу измерения работ):

федеральные единичные расценки (ФЕР-2001);

территориальные единичные расценки (ТЕР-2001);

расценки на монтаж оборудования (РМО);

) сметные цены на материалы, изделия, конструкции, на перевозку грузов для строительства, средние сметные цены (ССЦ) на основные строительные ресурсы.

Единичные расценки - основной сметный норматив, разрабатываемый на основе государственных элементарных сметных норм в базисном уровне цен. Объединяются в сборники единичных расценок по уровню применения:

федеральные - разрабатываются в основном уровне цен для первого базового района (Московская область);

территориальные - единичные расценки, привязанные к местным условиям строительства, применяемые в пределах субъекта Российской Федерации;

отраслевые - для специализированных видов строительства (энергетическое, транспортное и т. д.).

Единичные расценки сведены в таблицы и содержат на принятый в них измеритель следующие показатели:

шифр расценки;

затраты на оплату труда (кроме заработных плат, учитываемых в эксплуатации строительных машин);

стоимость эксплуатации строительных машин в т. ч. заработная плата рабочих, обслуживающих машины.

По отдельным материалам, изделиям, конструкциям, расход которых зависит от проектных решений, в таблицах сметных норм указывается только наименование, а в графах расход обозначается "П". При составлении сметной документации расход таких материалов определяется по проектным данным с учетом трудно устранимых потерь и расходов.

Сметная стоимость строительства (С) - сумма денежных средств, необходимых для осуществления строительства в соответствии с проектными материалами.

В соответствии с технологической структурой капитальных вложений стоимость строительства формируется из:

С = ССТР + СМОН + СО + СПР, где (1)

ССТР - стоимость строительных работ;

СМОН - стоимость монтажа оборудования;

СО - стоимость оборудования, мебели, инвентаря;

СПР - прочие затраты.

Сметная стоимость строительно-монтажных работ (ССМР) по методу расчета складывается из стоимости прямых затрат (СПЗ), накладных расходов (СНР), сметной прибыли (СП):

ССМР = СПЗ + СНР + СП (2)

Прямые затраты (ПЗ) непосредственно связаны с выполнением работ. Их величина определяется прямым счетом на основе объема работ, необходимых ресурсов, единичных расценок и цены ресурсов:

 (3)

где Vi - объем i-гo вида работ (i = 1 ...n) в натуральных единицах;

ЕPi - единичные расценки j-го вида работ;

Mj - количество материала j-го вида, не учтенного единичными расценками;

Цj - стоимость материалов j-го вида по сборникам ЦСН.

Накладные расходы (НР) включают:

) затраты на заработную плату рабочих-строителей (все расходы по оплате труда производственных рабочих, занятых непосредственно в СМР, и рабочих, осуществляющих перемещение материалов в рабочей зоне и от приобъектного склада до места укладки);

) стоимость строительных материалов, деталей и конструкций - затраты на приобретение и затраты по заготовке и доставке на приобъектные склады;

) расходы по эксплуатации строительных машин и механизмов - доставка машин на строительную площадку, перемещение с одного объекта на другой, монтаж и демонтаж, амортизационные отчисления, ремонт, затраты на ГСМ, электроэнергию, зарплата машинистов и другого обслуживающего персонала.

Накладные расходы (НР) как часть стоимости СМР - совокупность затрат, связанных с созданием общих условий строительного производства, его организации, управления и обслуживания.

В настоящее время учет накладных расходов в составе стоимости строительной продукции производится в соответсвии с методическими указаниями по определению накладных расходов в строительстве МДС 81-33.2004 [9], которые носят обязательный характер для строительства бюджетных и рекомендательный для всех других случаев.

Накладные расходы определяются косвенным образом на основе нормативов накладных расходов. Нормативы накладных расходов устанавливаются в процентах от выбранной базы. В настоящее время основной базой являются средства на оплату труда рабочих (строителей, механизаторов) в составе прямых затрат.

Прямые затраты и накладные расходы в сумме образуют сметную себестоимость работ.

Сметная прибыль - нормативная (гарантированная) прибыль подрядной организации в составе цены строительной продукции, идущая в основном на развитие производства и материальное стимулирование работников. Сметная прибыль является нормативной частью в стоимости строительной продукции и не относится на себестоимость работ .

При составлении сметной документации могут применяться следующие методы определения стоимости строительной продукции:

·        ресурсный (расчёт в текущих ценах и тарифах стоимости ресурсов, необходимых для реализации проекта);

·        ресурсно-индексный (сочетание ресурсного метода с системой индексов на сметную стоимость ресурсов);

·        базисно-индексный (основан на использовании системы текущих и прогнозируемых индексов удорожания по отношению к стоимости, определённой в базисном уровне цен);

·        на основе укрупнённых сметных нормативов (на основе банка данных о стоимости ранее построенных или запроектированных объектных аналогов).

Ресурсный метод представляет собой расчет в текущих (прогнозных) ценах и тарифах стоимости и ресурсов (элементов затрат), необходимых для реализации проекта.

Ресурсы включают в себя следующие показатели:

·        затраты труда рабочих, выполняющих строительные работы и обслуживающие строительные машины (чел/час),

·        время использования строительных машин (машина/час),

·        расход материалов, изделий и конструкций в натуральных единицах.

Расчеты выполняются на основе следующих данных:

·        потребность материалов, изделий и конструкций в натуральных единицах,

·        расстояние и способы доставки материалов до места строительства,

·        расход энергоносителей на технологические цели,

·        состав строительных машин и время их эксплуатации в машина/час,

·        затраты труда рабочих в чел/час.

Потребность в ресурсах определяется на основе следующих документов:

.проектная документация.

.Ведомости потребителей материалов и сводные ведомости потребител. материалов.

.ПОС, ПОР, ППР (данные о затратах труда рабочих и времени работы машин).

. различные нормативы (ГСН и др.).

Для определения сметных прямых затрат сначала составляется локальная ресурсная ведомость по образцу №5 МДС 81-35-2004, по которой определяется потребность ресурсов на весь объем работы соответственного вида.

На основе показателей ресурсной ведомости разрабатывается локальная ресурсная смета по образцу №6 МДС 85-31-2004.

Ресурсный метод самый точный.

В условиях инфляции и неустойчивости рынка определение стоимости строительства ресурсным методом достовернее, чем базисно-индексным, но его применение требует учета ряда факторов:

·        наличие необходимой сметной базы,

·        высокая квалификация сметчиков,

·        возможность автоматизации составления смет,

·        постоянная регистрация текущих цен и др.

Ресурсный метод очень трудоемок (даже с применением компьютерных программ), т.к. предполагает детальное определение объемов СМР, расхода строительных материалов и других ресурсов.

Ресурсно-индексный метод - сочетание ресурсного метода с системой индексов на сметную стоимость ресурсов.

В этом методе стоимость ресурсов сначала определяется на базисном уровне цен (1 января 2001г.), а затем переводится в текущий уровень цен на основе индексов удорожания ресурсов.

Базисно-индексный метод - определение стоимости средств, основан на использовании системы текущего и прогнозного индексов удорожания по отношению стоимости определенных в базисном уровне цен.

В базисном уровне является уровень цен на 1 янв. 2001г.

Методы укрупненных показателей стоимости:

Метод сравнительной единицы.

При отсутствии данных по объектам-аналогам может применяться метод сравнительной единицы (удельных показателей).

Метод основан на сравнении затрат на единицу потребительских свойств (1 рабочее место в сооружении, 1 стояночное место техники в укрытии, 1 кв.м общей площади, 1 куб.м. строительного объема, 1 единица оборудования и т.п.) оцениваемого объекта, со стоимостью аналогичной единицы измерения подобного объекта-аналога или соответствующего норматива.

Метод укрупненных показателей восстановительной стоимости (УПВС) и метод укрупненных показателей стоимости строительства (УПСС) аналогичны по своей сути, которая заключается в том, что за основу берется базисный показатель стоимости и корректируется в соответствии с уникальными характеристиками объекта оценки.

Метод укрупненных сметных норм (УСН).

Сущность метода заключается в расчете затрат на создание объектов как суммы затрат на их основные конструктивные элементы. Эти затраты определяются по справочникам укрупненных сметных норм (УСН). Объемы конструктивных элементов определяются по имеющейся документации или по данным обмера при техническом обследовании.

Метод укрупненных показателей базисной стоимости на виды работ

(УПБС ВР).

Сущность метода заключается в расчете затрат на создание объектов как суммы затрат на возведение основных элементов объектов: фундаментов, стен, перекрытий, кровли, инженерного оборудования и т.п. Эти стоимости определяются по справочникам укрупненных показателей базисной стоимости на виды работ (УПБС ВР).

Автором был выбран метод определения стоимости строительной продукции на основе метода укрупненных показателей

Основанием для определения стоимости строительства послужили:

проект и рабочая документация

- действующие сметные нормативы.

При составлении смет автором были использованы следующие сборники укрупненных сметных нормативов и показателей стоимости:

- Укрупненные нормативы цены строительства НЦС 81-02-16-2014 Малые архитектурные формы

Укрупненные нормативы цены строительства НЦС 81-02-14-2014 Сети водоснабжения и канализации

Укрупненные нормативы цены строительства НЦС 81-02-08-2014 Автомобильные дороги

Укрупненные нормативы цены строительства НЦС 81-02-06-2014 Объекты культуры

Укрупненные нормативы цены строительства НЦС 81-02-01-2014 Жилые здани [10]

3.1.2 Определение стоимости строительства агро-экологического поселения Цыпино, Вологодской области

Таблица 8 - Определение стоимости жилых и общественных зданий комплекса

Наименование объекта

Единица измерения

Количество единиц измерения

Норматив цены строительства в уровне цен на 29.08.2014, тыс. руб (без НДС)

Общая стоимость тыс.руб.

1

2

3

4

5

1-этажные жилые дома усадебного типа (Деревянные,каркасные)

Кв.м.

 6400

22,84

146176

2-этажные жилые дома усадебного типа(Деревянные, каркасные

кв.м.

3600

30,60

 110160

Школа искусств и ремёсел 1-этажная

Кв.м.

400

497,97

199188

Ярмарочные павильоны

Кв.м.

50

28.6

1430

 Итого: 456954 тыс.руб


Таблица 9 - Определение базовой стоимости наружного инженерного оборудования комплекса

Вид инженерных сетей

Единица изм.

Количество ед.изм.

Стоимость ед.изм. .руб.

Общая стоимость тыс. руб.

Водопровод

км

120

2 434,64

292156,8

Канализация

км

120

2 022,00

242640

Телефонные сети

км

11225

719,10

8071897,5

Итого




8606694,3

 

Таблица 10 - Определение базовой стоимости благоустройства и озеленения комплекса

Наименование элементов затрат

Единица изм.

Количество ед.изм.

Стоимость ед.изм. руб.

Общая стоимость тыс. руб.

Благоустройство

Магистральные улицы

км

240

4344,4

10425,7

Внутренние проезды и автостоянки

кв.м.

544,1

80,46

43854,4

Тротуары

100 кв.м.

227,40

247,11

56192,8

Пешеходные аллеи и дорожки

кв.м.

4750

123,81

588097,5

Малые архитектурные формы

Кв.м.

500

141,2

70600

Озеленение

Озеленение вдоль трот.

100 кв.м.

20,40

9,51

194

Итого




1054113,3


Таблица 11 - Сводная смета на строительство объекта

Наименование глав сводной сметы

Норматив и порядок определения затрат

Общая стоимость, Тыс. руб.

Глава 1. Подготовительные работы

1,5% от стоимости затрат

4853,9

Глава 2-3. Строительство комплекса

Данные таблицы 1.

456954

Глава 4. Внешние сети.

Данные таблицы 2.

8606694,3

Глава 5-6 Благоустройство и озеленение

Данные таблицы 3.

1054113,3

Глава 7. Временные здания и сооружения

2% от суммы по гл.1-6

2289,6

Глава 8. Прочие работы и затраты

1,45% от суммы по гл.1-7

1659,9

Глава 9. Содержание технического и авторского надзоров

0,45% от суммы по гл.1-8

5151,7

Глава 10. Проектно-изыскательские работы

2,5% от суммы по гл.1-9

28622

Непредвиденные затраты и работы

10% от суммы по гл.1-10

114517

Итого:


1 145 290

3.1.3 Стоимость строительства в текущем уровне цен

Стоимость строительства была определена в ценах на 2014 год.

Общая стоимость строительства = 1 145 290 тыс.руб

/(80х1000)=14316 (руб/м2)

.2 Безопасность и экологичность проекта

.2.1 Мероприятия по охране окружающей среды

В данном разделе рассматриваются мероприятия по охране окружающей среды, включающей в себя антропогенную и природную среду.

Мероприятия по улучшению антропогенной среды.

Объект проектирования - агро-экологоческое поселение на территории национального парка.

При проектировании учитывается исторически сложившаяся среда, а также все регламенты, распространяющиеся на охраняемые территории (ПОЛОЖЕНИЕ О НАЦИОНАЛЬНОМ ПРИРОДНОМ ПАРКЕ "РУССКИЙ СЕВЕР" от 30 июля 1992 г. N 391). [6]

Композиционное и объёмно-пространственное решение построек определяется концептуальным подходом к проектированию, ориентацией по сторонам света и расположением на земельном участке. Планировочные решения выработаны на основе выявленных признаков аутентичности (см. архитектурную часть пояснительной записки) и действующих на территории РФ нормативных документов.

Выявленные признаки обеспечивают возможность гармонично влиться в окружающую среду.

Биопереработка.

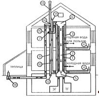
Биопереработка органических отходов особенно важна в экопоселении, т.к. бытовые органические отходы - это ценнейший продукт для производства удобрений. Переработка органических отходов дома (пищевые отходы и отходы из туалета) производится в специальных биореакторах в техническом подполье или на участке методом компостирования с последующей утилизацией на ботанической площадке участка. Локальные биологические системы утилизации хозбытовых стоков, работающие по принципу замкнутого цикла, не создают проблем ни зимой, ни летом. Площадь таких биоочистных сооружений 200 кв. м и выглядят они, как обычный фруктовый сад и огород.

Неперерабатываемая часть (стекло, пластмасса, металл и др.) разделяются, моются, накапливаются жильцами и сдаются для переработки и вторичного использования на специализированное предприятие. [11]

Все жилые дома поселения оснащены биотуалетами. Подробное описание см. в разделе "Инженерно-технологическая часть".

Биотехнологии.

В современных домах применяются автономные системы переработки и утилизации стоков, использующие биоинтенсивные методы переработки органики, содержащейся в бытовых стоках. Система переработки стоков может основываться на переработке смешанных стоков или раздельной переработке из разных источников образования стоков. Стоки, содержащие органику: кухонные, серые (ванная, стирка), черные (туалет) могут предварительно раздельно перерабатываться внутри дома и/или поступать в единую систему сбора и переработки на участке с последующим дренированием жидкой части. Накапливающаяся твердая часть в виде биологического ила перерабатывается на участке по мере накопления совместно с твердыми органическими отходами методами компостирования. Выбор варианта системы определяется особенностями естественного ландшафта и пожеланиями хозяина [11]

Получение биогаза.

Поскольку экопоселение предполагает использование различных, альтернативных источников энергии, в нем также есть возможность получения биогаза.

Получение биогаза в домашних условиях: смешать 1,5 тонны коровьего навоза и 3,5 тонны сгнившей листвы, ботвы и прочих отходов. Добавить в смесь воды до 60 - 70 процентов влажности. Заложить смесь в яму и с помощью змеевика разогреть до 35 градусов. Дальше смесь начнет бродить и без доступа воздуха сама разогревается до 70 градусов. Время производства газа из навоза - две недели. Чтобы купол под давлением газа не слетел с ямы, к нему с помощью тросов необходимо прикрепить противовес. В день установка вырабатывает до 40 кубометров "голубого топлива". Пяти тонн смеси ей хватает на шесть месяцев. [11]

Мероприятия по охране природной среды.

Строительство и эксплуатация проектируемого объекта окажет воздействие на следующие компоненты природной среды: земельные ресурсы, водные ресурсы, атмосфера.

Земельные ресурсы:

На подготовительном этапе строительства производится снятие растительного (плодородного) слоя грунта и складирование его на территории строительной площадки в специально отведенном для этого месте;

Производится выемка грунта из котлована и складирование его для дальнейшей (обратной) засыпки;

Выполняется очистка строительной площадки от мусора и вывоз его на городскую свалку специальными машинами.

Для восстановления плодородного слоя почвы после окончания строительства, предусматривается подсыпка растительного грунта слоем 15 см под газоны и цветники, а также 100% засыпки посадочных ям под посадку кустарников и деревьев на свободной от застройки и покрытий территории с учетом трассировки подземных инженерных сетей и соблюдением нормативных разрывов до зданий и сооружений.

Для исключения возможности загрязнения территории проектируемого объекта и прилегающих земель проектом предполагается устройство дорожной одежды проездов и тротуаров; ограждение зон озеленения бордюрами, исключающими смыв грунта во время ливневых дождей на дорожные покрытия.

Водные ресурсы:

Водоснабжение проектируемого объекта осуществляется путём подключения к скважине отдельных кластеров (всего предусмотрено 3 скважины);

Отвод поверхностных сточных вод осуществляется вертикальной планировкой участка и при необходимости устройством дренажной системы;

Отвод бытовых сточных вод проектируемого объекта осуществляется локально на каждом участке (см. инженерно-техническую часть);

Мероприятия по защите водного бассейна.

На территории проектируемого поселения находится Ильинское озеро. Этот факт накладывает обязательства по охране водного бассейна.

При решении проблемы очистки водного бассейна, в данном случае озера и реки, необходимо в первую очередь использовать потенциальную способность водоемов и водотоков к самоочищению. Эта способность очень часто нарушается вмешательством человека. Имеется много способов очистки сточных вод, которые образуют три основные группы очистки: механической, биологической и физико-химической. Чаще всего все эти методы дополняют друг друга, а очищенные сточные воды идут на вторичное использование.

Механическая очистка стоков служит для удаления из них твердых и взвешенных частиц и обеспечивает нормальные условия для последующей ступени очистки - биологической. Взвешенные частицы удаляют путем отстаивания или фильтрации стоков.

Сущность биологической очистки состоит в том, чтобы искусственно воспроизвести естественные условия для значительно более быстрого, чем в природе, разложения химических соединений до элементарных форм, пригодных для ввода в биологический круговорот. При этом используют свойство почвы как более сильного окислителя и биологически активного элемента, чем вода. Необходимость еще более активизировать процесс очистки привела к созданию аэротенков и биофильтров, в которых специальные культуры микроорганизмов при усиленной подаче кислорода нейтрализуют органические загрязнения в несколько раз быстрее.

Очистка прудов.

Очистка прудов от мусора, ила и водорослей - сложный вид работ, требующий определенных навыков и опыта для проведения их с должной эффективностью, в заданные сроки и в соответствии со сметной стоимостью. Для успешной очистки прудов необходимо составить специальный план организации работ с детальной разработкой и обоснованием рациональных методов их выполнения.

Для составления проекта и разработки рациональных методов производства работ по очистке прудов необходимо произвести следующие изыскательские и вспомогательные работы:

•        геодезическая съемка прилегающих к пруду территорий с нанесением инженерных подземных сооружений, существующих зеленых насаждений и надземных строений;

•        нивелировка прилегающих к пруду участков для подсчетов объемов возможной подсыпки грунта;

•        промеры глубин пруда через каждые 5... 10 м, в зависимости от его площади;

•        выявление грязного осадка на дне пруда и лабораторный анализ ила для определения категории грунта и пригодности его в качестве удобрения почвы; эти данные нужны также для определения объемов работ и выбора машин и орудий, необходимых для удаления грязного осадка;

•        определение возможности подсыпки ила на прилегающие к пруду газоны, а также объема подсыпаемого грунта;

•        обследование дна и подводной части берегов пруда для суждения о притоке грунтовых вод и разработки мероприятий по удалению их в процессе производства работ.

Все данные необходимы для определения направления трассы открытых канав и возможности спуска по ним чистой воды из пруда в канализационную сеть города или водные протоки, а также для расчета объемов работ и определения уклонов дна пруда на предмет выбора места для устройства приямков и установки насосов. Работы по очистке прудов без применения механизмов в основном сводятся к операциям, предусмотренным едиными нормами и расценками на земляные работы.

При производстве работ в летних условиях необходимо иметь в виду следующие обстоятельства и очередность операций, влияющих в той или иной степени на успех работы в целом:

•        после откачки или спуска чистой воды из пруда делают дощатый приямок со специальным фильтром и очищают откосы берегов и дно пруда от крупного поверхностного мусора и железного лома; размеры приямка должны составлять не менее 3,0 х 3,0 х 1,5 м с окном с одной стороны (размером 0,40x0,40 м);

•        места для приямков определяют в зависимости от уклонов дна пруда и устраивают около перемычек, если последние предусмотрены в проекте;

•        после устройства приямка с фильтром чистую воду откачивают центробежными или другими насосами.

•        Потребная мощность насосов и их число определяют расчетным путем, согласно нормативам. Пульпу можно откачивать ассенизационными машинами и сливать на отведенных для этого участках или перемещать на другие участки для удобрения почвы газонов.

Атмосфера.

Воздействие проекта на атмосферный воздух (загрязненность газами, пылью).

Основные объекты, оказывающие загрязняющее воздействие на атмосферный воздух в период эксплуатации объекта - индивидуальный автомобильный транспорт обитателей индивидуального жилого дома. Проектом предусматривается негативного воздействия загрязненного воздуха путем зонирования и планировочной организации земельного участка (разделение зон, использование озеленения), а также устройством отдельно стоящих гаражей для индивидуального автотранспорта.

Применение экологически чистых материалов, предусмотренных проектом.

В данном разделе рассматриваются принципиальные характеристики разрабатываемых объектов. Проект разработан с учётом требований всех необходимых нормативных документов, а также с использованием экологически чистых и безопасных материалов и современных технологий.

В проекте активно используются деревянные конструкции и элементы. Выбор данного материала обусловлен следующими преимуществами:

аутентичный материал

выгодное соотношение цены и качества материала;

дерево легко поддаётся обработке;

доступность материала (проект ориентирован на Вологодскую область)

возможность повышения полезных качеств и пожаробезопасности древесины благодаря различным пропиткам и обработкам;

дерево - природный, экологически чистый и доступный материал.

Конструктивные решения.

Несущие элементы здания - деревянные, оцилиндрованное бревно, брус. Порода - сосна (аутентичный для русского севера материал). Выбранная порода дерева обладает высокой прочностью, стойкостью против возгорания и растрескивания. Если сравнивать сосну с другими породами дерева, то по своим свойствам она уступает только лиственнице.

Покрытие кровли - цементно-песчаная черепица. Выбор материала обусловлен его неспособностью накапливать статическое электричество, опасное для человека и вызывающее пожар. Срок эксплуатации более 100 лет.

Междуэтажные перекрытия - деревянные.

Фундамент - свайный, т.к на территории национального парка не допускается капитальных построек.

Мусороудаление и пылеуборка.

Средства удаления мусора из здания должны быть увязаны с системой очистки населенного пункта.

Мусороудаление организованно отдельно от жилого здания. На территории располагаются контейнеры для мусора, закрытые специальной решеткой, для предотвращения разноса ветром мусора по территории. Также организован подъезд мусоросборной машины для вывоза мусора. [12]

3.2.2 Пожарная безопасность территории

Для обеспечения пожарной безопасности при содержании территорий необходимо соблюдать следующие требования:

территория организаций в пределах противопожарных разрывов между зданиями, сооружениями и открытыми складами должна своевременно очищаться от горючих отходов, мусора, сухой травы. Противопожарные разрывы между зданиями и сооружениями не разрешается использовать для складирования материалов, оборудования и тары;

дороги, проезды, подходы к зданиям и сооружениям, открытым складам и источникам водоснабжения, используемым для тушения пожаров, должны быть всегда свободными;

территория организаций должна иметь наружное освещение в темное время суток для быстрого нахождения пожарных гидрантов, наружных пожарных лестниц;

не разрешается курение на территории и в помещениях складов и баз, хлебоприемных пунктов, объектов торговли, добычи, переработки и хранения ЛВЖ, ГЖ и горючих газов, производств всех видов взрывчатых веществ, взрывопожароопасных и пожароопасных участков, а также в неотведенных для курения местах иных организаций, в детских дошкольных и школьных учреждениях, в злаковых массивах;

разведение костров, сжигание отходов и тары не разрешается в пределах установленных нормами проектирования противопожарных расстояний, но не ближе 50 м до зданий и сооружений. Сжигание отходов и тары в специально отведенных для этих целей местах должно производиться под контролем обслуживающего персонала;

на территориях населенных пунктов и организаций не разрешается устраивать свалки горючих отходов.

требуется устройство пожарных проездов и подъездных путей для пожарной техники, совмещенных с функциональными проездами и подъездами или специальных;

требуется устройство противопожарного водопровода, в том числе совмещенного с хозяйственным или специального, а при необходимости, устройство сухотрубов и пожарных емкостей (резервуаров);

- требуется размещение на территории поселения или объекта подразделений пожарной охраны с необходимой численностью личного состава и оснащенных пожарной техникой, соответствующей условиям тушения пожаров на объектах, расположенных в радиусе их действия; [13] [14]

.2.3 Охрана труда при выполнении плотницких работ

При возведении проектируемых объектов требуется значительное количество плотницких работ. Требования по выполнению данного вида работ изложены в Типовой инструкции ТОИ Р-200-14-95.

Общие требования охраны труда.

К самостоятельному выполнению плотницких работ допускаются лица не моложе 18 лет, прошедшие медицинское освидетельствование, вводный инструктаж, первичный инструктаж, обучение и стажировку на рабочем месте, проверку знаний требований охраны труда, имеющие группу по электробезопасности не ниже II и соответствующую квалификацию согласно тарифно-квалификационного справочника.

При выполнении плотницких работ работник обязан:

выполнять только ту работу, которая определена рабочей инструкцией;

выполнять правила внутреннего трудового распорядка;

правильно применять средства индивидуальной и коллективной защиты;

соблюдать требования охраны труда;

немедленно извещать своего непосредственного или вышестоящего руководителя о любой ситуации, угрожающей жизни и здоровью людей, о каждом несчастном случае, происшедшем на производстве, или об ухудшении состояния своего здоровья, в том числе о проявлении признаков острого профессионального заболевания (отравления);

проходить обучение безопасным методам и приемам выполнения работ и оказанию первой помощи пострадавшим на производстве, инструктаж по охране труда, проверку знаний требований охраны труда;

проходить обязательные периодические (в течение трудовой деятельности) медицинские осмотры (обследования), а также проходить внеочередные медицинские осмотры (обследования) по направлению работодателя в случаях, предусмотренных Трудовым кодексом и иными федеральными законами;

уметь оказывать первую помощь пострадавшим от электрического тока и при других несчастных случаях;

уметь применять первичные средства пожаротушения.

При выполнении плотницких работ возможны воздействия следующих опасных и вредных производственных факторов:

передвигающиеся изделия, заготовки, материалы;

острые кромки, заусенцы и шероховатость на поверхностях отделочных работ, материалов и конструкций;

древесная пыль;

токсические химические опасные и вредные производственные факторы;

возникновение напряжения на металлических конструкциях и частях оборудования, нормально находящихся без напряжения.

В процессе повседневной деятельности работники должны:

применять в процессе работы средства малой механизации, по назначению, в соответствии с инструкциями заводов-изготовителей;

поддерживать порядок на рабочих местах, очищать их от мусора, снега, наледи, не допускать нарушений правил складирования материалов и конструкций.

Работник должен быть обеспечен спецодеждой, спецобувью и другими средствами индивидуальной защиты в соответствии с Типовыми отраслевыми нормами бесплатной выдачи специальной одежды, специальной обуви и других средств индивидуальной защиты и Коллективным договором.

в случаях травмирования или недомогания необходимо прекратить работу, известить об этом руководителя работ и обратиться в медицинское учреждение.

За невыполнение данной инструкции виновные привлекаются к ответственности согласно законодательства Российской Федерации.

Требования охраны труда перед началом работы.

Перед началом работы работник обязан:

надеть каску, спецодежду, спецобувь установленного образца;

предъявить руководителю работ удостоверение о проверке знаний охраны труда и безопасных методов работы;

получить задание на выполнение работы у руководителя работ и пройти инструктаж на рабочем месте с учетом специфики выполняемых работ.

После получения задания у руководителя работ работник обязан:

подготовить необходимые средства индивидуальной защиты, проверить их исправность;

проверить рабочее место и подходы к нему на соответствие требованиям безопасности;

подобрать оборудование, инструмент и материалы, необходимые при выполнении работ, проверить их на соответствие требованиям безопасности;

проверить устойчивость ранее установленных конструкций.

Работник не должен приступать к выполнению работ при следующих нарушениях требований охраны труда:

отсутствии ограждения места на высоте 1,3 м и более, а также специальных трапов в случае выполнения задания на крыше с уклоном более 20º и с покрытием, не рассчитанным на нагрузки от веса работников;

неисправности технологической оснастки, приспособлений и инструмента, указанных в инструкциях заводов-изготовителей, при которых не допускается их применение;

несвоевременном проведении очередных испытаний средств защиты работающих или истечении срока их эксплуатации;

недостаточной освещенности рабочих мест и подходов к ним;

потере устойчивости ранее установленных конструкций;

потере устойчивости ранее установленных конструкций.

Обнаруженные нарушения требований безопасности должны быть устранены собственными силами, а при невозможности сделать это самостоятельно, сообщить о них руководителю работ.

Требования охраны труда во время работы.

Для подхода на рабочие места работник должен использовать оборудованные системы доступа (маршевые лестницы, трапы, стремянки, переходные мостики).

При выполнении работ на подмостях, перекрытиях или покрытиях не следует раскладывать инструмент и материалы вблизи границы перепада по высоте. В случае перерыва в работе работники должны принять меры для предупреждения их падения. Работы по изготовлению недостающих деталей (рубка, распиливание, теска и т.п.) в указанных местах не допускаются.

Устанавливать и подгонять оконные и дверные блоки, а также элементы антресолей и встроенных шкафов следует вдвоем с использованием монтажных столиков. Не допускается выполнять работу стоя на подоконнике, ограждениях балконов и лоджий или с неинвентарных средств подмащивания.

Применяемые при работе деревянные ручки ручного инструмента должны быть гладко обработаны, тщательно подогнаны и закреплены, а рабочие органы не должны иметь трещин, выбоин, сколов.

При работе ручной пилой следует использовать прочную опору. При необходимости распиловки заготовки под углом следует применять шаблон, специально предназначенный для этой цели.

Масса ручных машин, применяемых при выполнении работ на лестнице, не должна превышать 5 кг. Выполнять работу более тяжелыми ручными машинами следует со средств подмащивания.

Хранить и переносить инструмент, гвозди, болты, замки, скобяные изделия и другие мелкие детали следует в чемоданчике или сумке, а выступающие острые части - зачехлять.

Работники, работающие с ручными электрическими машинами, должны иметь I группу по электробезопасности и II группу при работе ручными электрическими машинами класса 1 в помещениях с повышенной опасностью.

Во время работы с применением электроинструмента работникам запрещается:

а) натягивать и перегибать шланги и кабели;

б) допускать пересечение шлангов и кабелей электрических машин с электрокабелями и электросварочными проводами, находящимися под напряжением, а также со шлангами для подачи горючих газов;

в) передавать электрическую машину другому лицу;

г) производить работы с приставных лестниц;

д) производить обработку электроинструментом обледеневших и мокрых деревянных изделий;

е) оставлять без надзора работающий электроинструмент.

При работе на циркульной пиле работник обязан:

а) проверить наличие и правильность установки защитного кожуха пильного диска, а также наличие и надежность крепления ограждения передаточного механизма (клиноременной передачи, валов и муфт);

б) обеспечить правильность установки расклинивающего ножа (расстояние от лезвия ножа до зубьев пилы должно быть не более 10 мм);

в) проверить исправность пильного диска и прочность его крепления;

г) досылать конец разрезаемой заготовки специальным толкателем;

д) проверить исправность заземлителя;

е) оставлять без надзора включенный электроинструмент.

Подключать к электросети станки и механизмы следует только специальным штепсельным разъемом.

Замену рабочего (сменного) инструмента на ручных машинах с электроприводом, а также его регулировку и ремонт следует производить только на отключенной от электросети машине.

При перерывах в работе или при переноске ручных машин с электроприводом на другое место их следует отключать от сети.

Приготовление столярного клея, разведение красок, лаков и антисептических составов следует производить в помещении, оборудованном приточно-вытяжной вентиляцией с обеспечением не менее 5-8-кратного воздухообмена. При этом запрещается применение открытого огня и самодельных электронагревательных приборов. Столярный клей следует варить в специальной клееварке с двойным дном и стенками, промежуток между которыми заполнен водой.

Лакокрасочные материалы и составы для антисептирования и антипирирования древесины следует складировать в специальных помещениях, оборудованных принудительной вентиляцией и освещением во взрывобезопасном исполнении.

При хранении материалы и изделия следует складировать:

длинномерные пиломатериалы (бревна, брус, доски) - в штабели высотой до 1,5 м с прокладками и обвязкой проволокой или пакетирующей лентой;

листовые материалы - в штабели высотой до 1,5 ширины, но не более 2 м;

готовые конструкции (оконные и дверные блоки, секции перегородок, шкафы) - в штабели высотой до 2 м или с опиранием на специальную опору.

Запрещается их складирование путем опирания на конструкции капитальных или временных зданий и сооружений, а также на штабели других материалов и изделий.

Требования охраны труда в аварийных ситуациях.

При обнаружении неисправности средств подмащивания, технологической оснастки, электроинструмента, а также возникновении другой аварийной ситуации, необходимо:

немедленно прекратить работы и известить руководителя работ;

под руководством лица, ответственного за производство работ, оперативно принять меры по устранению причин аварии или ситуаций, которые могут привести к аварии или несчастному случаю.

При возникновении пожара, задымлении:

немедленно сообщить по телефону "01" в пожарную охрану, оповестить работающих, поставить в известность руководителя подразделения, сообщить о возгорании на пост охраны;

открыть запасные выходы из здания, обесточить электропитание, закрыть окна и прикрыть двери;

приступить к тушению пожара первичными средствами пожаротушения, если это не сопряжено с риском для жизни;

организовать встречу пожарной команды;

покинуть здание и находиться в зоне эвакуации.

При несчастном случае:

немедленно организовать первую помощь пострадавшему и при необходимости доставку его в медицинское учреждение;

принять неотложные меры по предотвращению развития аварийной или иной чрезвычайной ситуации и воздействия травмирующих факторов на других лиц;

сохранить до начала расследования несчастного случая обстановку, какой она была на момент происшествия, если это не угрожает жизни и здоровью других лиц и не ведет к катастрофе, аварии или возникновению иных чрезвычайных обстоятельств, а в случае невозможности ее сохранения - зафиксировать сложившуюся обстановку (составить схемы, провести другие мероприятия).

Требования охраны труда по окончании работы.

По окончании плотницких работ работник обязан:

отключить от сети применяемый электроинструмент и убрать в отведенное для этого место;

привести в порядок рабочее место;

обо всех неполадках, имевших место во время работы, сообщить руководителю работ. [15]

.3 Транспорт и инженерная подготовка территории

.3.1 Схема улично-дорожной сети

Разрабатываемая для агро-экологического поселения территория находится вблизи с. Феррапонтово, Вологодской обл. Застройка преимущественно малоэтажная, усадебного типа. Рядом проходит трасса федерального значения Р5 (Волгда-Медвежьегорск).

В проекте предусматривается прокладка улично-дорожной сети. Поселковая дорога проходит через центральную часть поселения и связывает его с внешней дорогой, ведущей к трассе Р5. Улицы в жилой застройке: главные (связывают жилые территории с центром) и основные (связь с главной улицей), также для связи основных улиц служат переулки. В поселении предусматривается прокладка пешеходных дорог и троп, преимущественно вблизи объектов культурного значения и на набережной (рисунок 11).

Рисунок 11 - Схема улично-дорожной сети

Въезд в частную усадьбу.

Каждая усадьба агро-экологического поселения имеет индивидуальный въезд, пример которого представлен на рисунке 13. Каждый въезд имеет площадку под автомобиль, габариты которого - 3000*5000, радиус закругления - 6м.

Рисунок 12 - Въезд в частную усадьбу

Классификация улиц агро-экологического поселения Цыпино.

Таблица 12 - Классификация улиц агро-экологического поселения

Категория сельских улиц и дорог

Основное назначение

Расчскор движ, км/ч

Наименьший радиус в плане,м

Ширина полосы, м

Число полос

Ширина пеш. части трот., м

1

2

3

4

5

6

7

Поселковая дорога

Связь сельского поселения с внешними дорогами общей сети

60

250

3,5

2

-

Главная улица

Связь жилых территорий с общественным центром

40

90

3,5

2-3

1,5-2,25

Улица в жилой застройке: основная

 Связь внутри жилых территорий и с главной улицей по направлениям с интенсивным движением

 40

90

3,0

2

1,0-1,5

Второстепен-ная (переулок)

Связь между основными жилыми улицами

30

50

2,75

2

1,0

пеш.дороги (обособленные


30

15-30(25)

1-1,5

1-2

1,5

*Классификация улиц выполнена согласно СП 42.13330.2011 Градостроительство [13]

Поперечные профили улиц.

Рисунок 13-Поперечные профили улиц

3.3.2 Общественный транспорт, транспортные стоянки

Через проектируемое поселение лежит маршрут общественного транспорта: Вологда-Липин бор (ост. по требованию), также пускаются специальные маршруты на время мероприятий, проводимых на территории парка.

Планируется ввести 1 остановку на поселковой дороге поселения. Остановка автобуса указана на рисунке 12 - Схема улично-дорожной сети.

На территории центральной части комплекса размещаются стоянки для временного хранения автомобилей. Количество машиномест определяем по СП 42.13330.2011 Градостроительство 25% машиномест от общего числа автомобилей в поселении. Для стоянки велисипедов определяется количество мест - 0.1% от общего числа велосипедов. Количество и размер стоянок представлены ниже.

Расчет стоянок в центре выполняем, исходя из норм СП 42.13330.2011 Градостроительство [13].

Таблица 13 - Нормы расчета стоянок автомобилей

Рекреационные территории, объекты отдыха, здания и сооружения

Расчетная единица

Число машино-мест на расчетную единицу

Рынки

50 торговых мест

20-25

Рестораны и кафе общегородского значения

100 мест

10-15

Гостевые дома, гостиницы

100 кв.м

5-7


Расчёт количества автомобильных стоянок:

)        усадьба (музейный комплекс):

- на работников школы, 24 - для посетителей. Всего - 35 машиномест.

)        торгово-ярмарочная площадь:

На 50 торговых - 20-25 машин.

Количество стоянок:

* 14%= 84 (чел. из поселения)- займут торговые места

торговых места*22/50=37 места для торговцев

машиномест - для посетителей

Всего: 64 машиномест

)        досуговый центр:57 м/м.

)        школа ремесел: 100 чел- 10 мест

+108 - 20 м/м. + 10(перспективные стоянки)

Всего: 20 машиномест

Игого: 176 машиномест

Схема размещения стоянок показана на рисунке 12 - Схема улично-дорожной сети.

.4 Внутренние инженерные сети

.4.1 Планировка вспомогательных помещений с учетом нормативных и эргономических требований приведена на рисунке 14

Рисунок 14-Планировка вспомогательных помещений

.4.2 Вентиляция

Вентиляция помещений является очень важным процессом для человека. Она обеспечивает здоровый сон, защиту от бактерий, хорошую работоспособность. Каждый понимает, что абсолютно любое помещение, даже с самым изысканным убранством и дорогой мебелью, может стать некомфортным для человека, если в нем не предусмотрена вентиляция. Вентиляцией называется подача воздуха снаружи в жилое или рабочее помещение. Она происходит естественным образом, или же с помощью электро или механического оборудования. Смысл вентиляции состоит в том, чтобы обеспечить людям наиболее комфортные условия для жизнедеятельности и работы. Проще говоря, сделать так, чтобы было в буквальном смысле "ни холодно, ни жарко".

В данном проекте приток воздуха в помещения осуществляется с помощью специальных отверстий, притоков, расположенных на расстоянии 30 см. от оконного проема. В дверях санузлов, ванных комнат и гардероба предусмотрены вентиляционные решетки. Отток воздуха происходит посредством вент каналов, которые установлены в санузлах и ванной комнате и кухне (рисунки 16-18).

Рисунок 15- План вентиляционных каналов

Рисунок 16 - Развертка стены с вентиляционными каналами

Рисунок 17 - Развертка стены с вентиляционными каналами

.4.3 Использование нетрадиционных источников энергии

Общие сведения.

Традиционные для России технологии строительства и энергосбережения, в сочетании с современными достижениями теплотехники, позволяют обойтись для обогрева и водоснабжения дома и даже зимних теплиц, ресурсами своего участка.

Все внутренние отапливаемые помещения в разных вариантах конструкции дома должны быть так теплоизолированы от внешней среды, чтобы теплопотери за год были меньше, чем количество тепла, которое можно получить за год от солнца и аккумулировать в доме. Особое внимание следует обратить на то, чтобы в конструкции корпуса не было мостиков холода.

Для утепления дома наилучшими являются естественные, традиционно используемые утеплители (солома, камыш, льняная костра, глина, опилки). Для производства утеплителя из этих материалов не нужно энергоемкое и дорогостоящее производство. Кроме того, что они имеют наилучшие для человека экологические характеристики, они очень долговечны, если конструкция стены и крыши защитит их от намокания, и легко утилизируются после срока службы.

Высокая теплоизоляция добротно построенного дома приводит к тому, что теплопотери связаны, в основном, с вентиляцией. Правильно выполненные встроенный холодильник, погреб и ледник существенно повышают стабильность проживания в доме и независимость от внешних факторов.

Роль теплового аккумулятора, обеспечивающего тепловую инерцию дома, выполняет термическая масса, составляющая внутреннюю часть наружной стены, внутренних (межкомнатных) перегородок и межэтажных перекрытий. Этот пассивный аккумулятор тепла должен состоять из тяжелого материала, чтобы поддерживать постоянную температуру в доме при периодическом протапливании. Кроме того, внутренние стены могут и понижать температуру до оптимальной, аналогично тому, как это происходит в традиционной русской печке.

Требования: в случае применения каркасной конструкции внешняя стена целиком состоит из легкого материала (утеплителя), тогда внутри дома необходимо устраивать специальную конструкцию, обеспечивающую необходимую тепловую инерцию - суточный аккумулятор, в котором могут быть расположены дымоходы, воздуховоды от солнечного коллектора или в него может быть встроен сам источник тепла. Эта система может быть выполнена из кирпича, бетона, грунтоблоков, а может быть выполнена в виде бака, заполненного водой. Масса этой системы определяется тем, какую тепловую инерцию здания мы хотим иметь. Например, ее можно определить, исходя из условий протапливания один раз в сутки при самых низких температурах (один раз в течение двух суток и т.д.).

В процессе жизнедеятельности человек готовит пищу, сам выделяет тепло, использует бытовые приборы для освещения, слушает музыку, смотрит телевизор, работает на компьютере. На первый взгляд эти источники выглядят незначительными, но при такой теплоэффективности, которой обладает экодом, они все вместе могут играть существенную роль в его обогреве. Расход невозобновляемых энергоносителей в энергоэффективном доме в несколько раз меньше, чем в обычном доме. В идеале дом должен обеспечиваться теплом только за счет возобновимых источников: дерево, солома, ветер, водные потоки, суточные и сезонные перепады температур, т.е. энергии солнца [16].

Варианты систем теплообеспечения.

Для отопления наиболее эффективны печи медленного горения с каталитическим дожигом горючих газов, работающие на древесных отходах, а также воздушные и водяные солнечные коллекторы.

А) Газогенераторные печи имеют КПД (коэффициент полезного действия) 55-80%. Они оборудуются воздуховодами, обеспечивающими подачу теплого воздуха в разные помещения для их быстрого нагрева. Так как частный дом - это относительно небольшое здание, распределять тепло по дому можно с помощью естественной конвекции и лучистого обогрева. Получающийся горючий газ можно отводить и использовать для приготовления пищи или выработки электроэнергии. Эти печи легко совместить с суточным водяным аккумулятором, в котором можно дополнительно снять остаточное тепло дымовых газов. Зола является ценным удобрением.

Б) Тепловой КПД традиционной русской печи достигает 90%. При этом вовсе не обязательно топить ее дровами. Главная проблема в настоящее время - требуется высокая квалификация мастера-печника.

"Неправильная" печь кроме избыточного потребления топлива еще и создает проблему избыточной или недостаточной влажности воздуха. А это одинаково вредно и для здоровья, и для сохранности вещей и конструкций.

Дом, построенный на основе теплоэффективной конструкции, с февраля по май и с сентября по октябрь можно отапливать только за счет солнечной системы обогрева, основывающейся на простых (самостоятельного изготовления) воздушных солнечных коллекторах и воздуховодах с принудительной циркуляцией воздуха.

В) Биоклиматическое жильё предполагает возможность сбора солнечной энергии. На эту возможность влияет площадь и угол наклона поверхности кровли. Солнечная архитектура выгодна и уместна в зонах умеренного климата, не говоря уже о южных широтах, позволяет достигать высокой комфортности при одновременном снижении эксплутационных расходов. При этом система сезонного аккумулирования солнечного тепла может иметь КПД всего 10% [16].

Рисунок 18 - Воздушная система солнечного обогрева с принудительной вентиляцией.

Типичная система воздушного солнечного обогрева состоит из воздушного солнечного коллектора, воздуховодов, вентилятора. Если температура в помещениях недостаточна, то горячий воздух из коллектора попадает в комнату. Более холодный воздух из комнаты подается в воздушный коллектор и подогревается в нем. Если в помещениях тепло, то горячий воздух поступает в тепловой аккумулятор. Воздух начинает циркулировать, когда работает вентилятор, который приводится в действие солнечной батареей. Такая система удобна тем, что вентилятор работает только тогда, когда солнечная батарея вырабатывает электричество и именно в это же время солнечный коллектор нагревает воздух. Весной осенью система работает на нагрев помещения и на накопление тепла в суточном аккумуляторе. Летом эта энергия накапливается в сезонном аккумуляторе.

Воздушный солнечный коллектор - главный элемент системы воздушного солнечного обогрева. Его конструкция очень проста. Теплоизолированная снизу зачерненная поверхность является дном плоского ящика. Сверху этот ящик закрыт стеклом или другим прозрачным материалом (в настоящее время часто применяются двухслойные пластиковые покрытия). Видимый свет поглощается зачерненной поверхностью, нагревает ее, а она, в свою очередь, нагревает воздух в коллекторе. Нагретый воздух подается в помещение.

Площадь воздушных коллекторов, необходимая для нагрева помещений определяется теплотехническими параметрами дома. В отсутствии солнца недостаток тепла компенсируется дровяной печью медленного горения с каталитическим дожиганием горючих газов.

Требования: воздушные коллекторы не обладают высоким коэффициентом полезного действия, но они просты и дешевы в изготовлении и в эксплуатации. Производство воздушных солнечных коллекторов не сложное. Для создания долговечных и устойчивых к погодным воздействиям в условиях сурового климата конструкций целесообразно использовать в качестве теплоизолятора пеностекло.

Рисунок 19 - Воздушный солнечный коллектор с турбулизатором, повышающим эффективность нагрева воздуха.

Г) Система приготовления горячей воды

Основными источниками горячей воды для бытовых нужд в доме являются каталитическая печь медленного горения и водогрейная установка с водяными солнечными коллекторами.

Д) Солнечные камины - важная составляющая дома, устанавливаются на крыше для нагрева воды и подачи её по трубам в ванную, душ и на кухню. Остатки горячей воды автоматика сбрасывает в резервный накопитель для обогрева помещений. Водогрейные системы, использующие солнечную энергию, бывают двух типов: с естественной и принудительной циркуляцией воды.

На рисунке 20 представлена принципиальная схема системы приготовления горячей воды с естественной циркуляцией. Такие установки называются термосифоны. В них используется механизм естественно конвекции, которая возникает за счет того, что нагретая в солнечном коллекторе теплая вода легче холодной. За счет этого теплая вода поднимается в бак-аккумулятор, который необходимо размесить выше верхней части коллектора на высоту примерно 60 см [16].

Рисунок 20 - Термосифонная водогрейная система с водяным солнечным коллектором

 

Требования: эта система не требует перекачивающего насоса и электроэнергии, но накладывает ограничения на конструкцию и способы ее размещения в доме. Термосифонные водогрейные системы целесообразно применять для летнего душа, летней кухни и других подобных случаях.

Более удобна с точки зрения произвольного ее размещения водогрейная система с принудительной циркуляцией. Составными частями солнечной установки для подогрева воды с принудительной циркуляцией являются плоский коллектор, бак-аккумулятор, трубопроводы, насос и система управления. Эта система предусматривает автоматическое регулирование. Каждый раз, когда температура воды в верхней части коллектора становится выше температуры воды на дне бака-аккумулятора на заранее заданное число градусов, включается насос. Вода прокачивается по системе до тех пор, пока температура не выровняется в баке и коллекторе за счет нагрева или не снизится уровень солнечного излучения. В зимнее время в контуре через солнечный коллектор необходимо прокачивать жидкость, не замерзающую на морозе, а тепло в бак-аккумулятор передавать через теплообменник.

Рисунок 21 - Система солнечного нагрева воды с принудительной циркуляцией

Требрвания: на данном этапе, когда еще не налажено производство такого оборудования, надо использовать подогреватели воды, использующие электричество, газ, дрова или их комбинацию. Для накопления необходимого объема горячей воды для бытовых нужд целесообразно использовать водяной суточный бак-аккумулятор.

При проектировании необходимо предусмотреть, чтобы летом эта система работала в автономном режиме, но в то же самое время водогрейная система должна являться составной частью отопительной системы дома.

Е) Жидкостный солнечный коллектор

Водяной солнечный коллектор - главный элемент системы солнечного нагрева воды. В отличие от воздушного, коллектор на жидком теплоносителе имеет замкнутую систему, которая включает коллектор и теплообменник. По этой системе циркулирует незамерзающая и не выделяющая при нагревании накипь жидкость. Теплообменник размещается в нижней части бака-аккумулятора.

Требования: жидкостной солнечный коллектор может использоваться тогда, когда тепловыделения больше теплопотерь. В условиях холодного климата это предъявляет повышенные требования к теплозащите водяного солнечного коллектора.

Ж) Суточный водяной аккумулятор тепла

Суточный водяной аккумулятор тепла является активным элементом тепловой системы дома. Суточный водяной аккумулятор тепла устанавливается внутри дома, в том числе он может быть встроен в одну из межкомнатных перегородок. Аккумулятор представляет собой полую стену, в которой размещены баки, заполненные водой. Через эти баки проходят дымовые трубы от каталитической печи медленного горения, которые подогревают воду в баках. Принципиальная схема отопления приведена на Рис. 5. Источниками нагрева водяного аккумулятора кроме каталитической печи медленного горения, могут быть использованы система воздушного солнечного отопления и система солнечного подогрева воды. Внешняя теплоизоляция аккумулятора - деревянная, кирпичная или из газобетона, - служит для понижения температуры обогревающей поверхности примерно до 40 оС. Теплоизоляция обеспечивает медленное остывание бака-аккумулятора с тем, чтобы температура в комнате поддерживалась в приемлемом диапазоне температур.

Аккумулятор должен быть сконструирован так, чтобы можно было легко делать его профилактику, промывку, чистку.

Рисунок 22 - Суточный водяной аккумулятор тепла.

ЭГ - электрогенератор; ТГ - теплогенератор;

- бак с водой; 2 - дымовые трубы; 3 - кожух; 4 - каналы подачи теплого чистого воздуха; 5 - нижняя (входная) дымовая камера; 6 - верхняя (выходная дымовая камера; 7 - подача дыма в регенератор; 8 - подача чистого воздуха к ТА; 9 - кожух; 10 - поверхность теплообмена; 11 - забор чистого холодного воздуха; 12 - забор теплого отработанного воздуха; 13 - выхлопная труба; 14 - переключатель; 15 - канал подачи сбросного воздуха в теплицу; 16 - шторки; 17 - вент-каналы вертикальные; 18 - дымосос.

З) Другие аккумуляторы тепла

Тепловые аккумуляторы подразделяются на суточные и сезонные. Кроме многофункционального активного суточного водяного аккумулятора на практике используются пассивные аккумуляторы тепла из материалов с высокой теплоемкостью, например, кирпич или грунтоблоки, из которых построена печь, массив внутренней части ограждающих конструкций, межкомнатные перегородки, гравий, засыпанный в специальные контейнеры, грунт под домом. За счет теплопроводности такие аккумуляторы быстро теряют энергию. Их используют для увеличения тепловой инерции дома. Это выгодно, когда они выполняют функции конструктивного элемента дома, при простой конструкции и недорогом устройстве. Перспективны сезонные аккумуляторы, использующие для аккумулирования энергии вещества, в которых могут протекать обратимые химические реакции, сопровождающиеся поглощением и выделением тепла. Их главным преимуществом является то, что хранение энергии осуществляется в химических связях при обычных температурах любое количество времени. Применение именно этих аккумуляторов может сделать дом "солнечным" [16].

Вывод.

Таким образом, можно отметить, что для экологического поселения наиболее оптимальными будут являться:

·        Классическая русская печь

·        Печь медленного горения с каталитическим дожигом горючих газов

·        система сезонного аккумулирования солнечного тепла (кпд 10%)

·        Суточный водяной аккумулятор тепла является активным элементом тепловой системы дома. Источниками нагрева водяного аккумулятора кроме каталитической печи медленного горения, могут быть использованы система воздушного солнечного отопления и система солнечного подогрева воды.

При проектировании необходимо предусмотреть:

)        Площадь и угол наклона кровли, оптимальные для солнечного обогрева.

)        Место на крыше для солнечного камина

)        В случае применения каркасной конструкции необходимо устройство суточного аккумулятора, в котором могут быть расположены дымоходы, воздуховоды от солнечного коллектора или в него может быть встроен сам источник тепла.

.5 Наружные инженерные сети

.5.1 Сводный план сетей водоснабжения

Общие данные.

Система водоснабжения представляет собой комплекс взаимосвязанных сооружений, предназначенных для обеспечения потребностей в воде сельскохозяйственного посёлка и входящих в его состав предприятий. Её задачи - получать воду из природного источника, улучшать её качество в соответствии с требованиями потребителей, транспортировать к потребителям и подавать ко всем заданным точкам отбора. В точках отбора должны быть обеспечены заданные давления в трубах водопроводной сети.

По основному назначению воды системы водоснабжения подразделяют на хозяйственно-питьевые, производственные и противопожарные.

Хозяйственно-питьевые системы водоснабжения предназначены для удовлетворения питьевых, хозяйственно-бытовых и санитарно-гигиенических нужд населения. Эти системы должны подавать воду высокого (питьевого) качества [17].

Производственные системы водоснабжения обеспечивают водой различные производственные объекты. Например, в сельском хозяйстве - снабжение водой животноводческих комплексов и ферм, теплиц, ремонтных мастерских, предприятий по переработке сельскохозяйственной продукции и т.п. Качество воды, подаваемой этими системами, определяется требованиями производства.

Противопожарные системы водоснабжения предназначены для подачи воды на тушение пожаров. В сельском хозяйстве системы водоснабжения чаще строят объединёнными, то есть одна система водоснабжения удовлетворяет хозяйственно-питьевые, производственные и противопожарные нужды.

Для проектирования системы водоснабжения и последующей её эксплуатации необходимо знать количество потребляемой воды и режим её потребления. Объём водопотребления устанавливается по числу потребителей. При расчёте водопотребления учитывают также расход воды на полив улиц и зелёных насаждений, на технические нужды производства. В нормы водопотребления входят все расходы воды на хозяйственно-питьевые нужды в жилых и общественных зданиях и коммунальных учреждениях, обслуживающих жителей данного населённого пункта.

Нормы расхода воды животными зависят от условий содержания и оборудования животноводческих помещений.

Основные существующие сети выполнены: водопроводные из полиэтилена d = 50, 100, 150 мм; канализационные из полиэтилена d = 50, 100, 150, 200 мм. Современные пластиковые трубы для водопровода являются отличным решением для устройства системы трубопровода. Пластиковые трубы в отличие от труб из металла имеют ряд отличительных особенностей: не ржавеют, не поддаются коррозии и по истечении времени не наблюдается никаких изменений в сечении трубы. По глубине заложения есть сети глубокого и мелкого заложения. К сетям глубокого заложения относят сети, которые располагают ниже расчетной глубины проникания в грунт нулевой температуры. К ним относят сети водопровода, канализации, водосточной системы. Сети мелкого заложения по технологии их эксплуатации размещаются в зоне промерзания грунта (теплосеть, кабели различного назначения) [17].

Водопроводные сети.

Выбор автономной системы водоснабжения обоснован отсутствием централизованного водоснабжения на участке проектирования. Автономная система водоснабжения состоит из водозаборного сооружения, водоподъемной установки, регулирующей ёмкости, разводящих наружных трубопроводов, внутренней сети. При необходимости автономные системы дополняются установками для очистки и обеззараживания воды. Качество воды, подаваемой автономной системой соответствует СанПиН 2.1.4.1074-01/ Госстрой России. - Введ. 24.10. 96 - М. "Питьевая вода. Гигиенические требования к качеству воды централизованных систем питьевого водоснабжения. Контроль качества" и согласуются с местными органами Госсанэпиднадзора. Расчетные расходы воды учитывают нормативное водопотребление, численность жителей, число и типы санитарных приборов и другие факторы.

Скважина размещается на незагрязненном и не подтопляемом участке, на расстоянии >20 м от источников возможного загрязнения (очистных сооружений комплекса, сельхоз. угодий). Зона источника водоснабжения в месте расположения водозаборных сооружений состоит из трёх поясов: первого - строгого режима, второго и третьего - режимов ограничения хозяйственной деятельности. Первый пояс включает территорию расположения водозаборов, площадок расположения всех водопроводных сооружений, при искусственном пополнении - инфильтрационные сооружения и водопроводящий канал. Он устанавливается в целях устранения возможности случайного или умышленного загрязнения воды источника в месте расположения водозаборных и водопроводных сооружений. Граница первого пояса ЗСО устанавливается в зависимости от защищённости подземных вод в пределах первого и второго поясов ЗСО: на расстоянии не менее 30 метров от водозабора. Второй пояс ЗСО предназначен для защиты водоносного горизонта от микробного загрязнения, поскольку второй пояс расположен внутри первого, он предназначен для зашиты от химических загрязнений. Третий пояс ЗСО предназначен для защиты от от химических загрязнений. Границы третьего пояса зоны санитарной охраны (ЗСО) определяются гидродинамическим расчетом.

Используется схема водоснабжения с размещением погружного насоса в скважине и гидропневмобаками в зданиях (для удобства эксплуатации и контроля).

Система водоснабжения дополняется устройствами для очистки и обеззараживания воды. Используются безреагентные установки, не ухудшающие свойства воды.

Похожие работы на - Проект освоения исторических и охранных территорий без ущерба для генотипа места

 

Не нашли материал для своей работы?
Поможем написать уникальную работу
Без плагиата!
Без нейросетей!