Построение общесплавной канализации
Содержание
Введение
Исходные
данные
. Расчет
дождевой сети
. Расчет
ливнеспуска
. Определение
показателей работы ливнеспусков
. Построение
гидрографа стока
Список
литературы
Введение
канализация дождевой ливнеспуск сток
Специфической особенностью общесплавной канализации, отводящей по одной
системе трубопроводов все стоки, является наличие ливнеспусков, которые
предназначаются для разгрузки сети при сильных дождях непосредственно в водоем.
Ливнеспуски для уменьшения длины ливнеотводов удобно располагать вблизи водных
протоков, поэтому главные коллектора общесплавной канализации целесообразно
трассировать вдоль водных протоков. По главному коллектору сточные воды должны
направляться на очистные сооружения, перед которыми также может устраиваться
ливнеспуск.
При выпуске производственных сточных вод в городскую общесплавную сеть
надобность в ливнеспусках, как правило, отпадает, и трассировка канализационной
сети на площадке промышленного предприятия не связывается с расположением
водных протоков. Лишь при больших размерах площадки для разгрузки заводской
общесплавной сети могут устраиваться ливнеспуски.
Расположение коллекторов общесплавной сети на площадке в отличие от
дождевой сети диктуется не только размещением дождеприемников, но и местами
выпуска из зданий бытовых и всех производственных стоков.
Общие правила трассировки коллекторов и проектирования продольного
профиля при общесплавной сети остаются те же, что и при дождевой сети. Глубина
заложения общесплавной сети зависит от отметок выпусков бытовых и производственных
сточных вод из зданий и в меньшей степени от глубины дождеприемников. Уклоны
общесплавных коллекторов также устанавливаются в результате гидравлического
расчета, но кроме общего расчетного расхода, учитывается и расход стока одних
бытовых и производственных сточных вод (сток в сухую погоду).
Для сооружения общесплавной сети малого диаметра лучше применять
керамические и асбестоцементные трубы, но можно использовать также и бетонные.
Для больших диаметров применятся железобетонные трубы, так же как и для
дождевой сети.
Каналы прямоугольного сечения при устройстве общесплавной канализации
применять нельзя, так как они создают неблагоприятные условия для течения
сточных вод в сухую погоду.
Общесплавная канализационная сеть нередко нуждается в профилактической
чистке, которая производится специальными снарядами.
На сетях общесплавной канализации могут устраиваться перепады
практического профиля или в виде стояка. Перепады с гасителем энергии типа
решетки на общесплавной канализации не устраиваются. Выпуски ливнеотводов (от
ливнеспусков) рекомендуется проектировать затопленными (подводными), так как во
время дождей по ним сбрасывается смесь дождевых и бытовых сточных вод.
В данной курсовой работе, проанализировав исходные данные, был произведен
расчет дождевой сети. В ходе расчета найдены: удельный секундный расход, расход
дождевых сточных вод по участкам, затем полученные расчеты сведены в таблицу.
Также имеется расчет ливнеспуска, а именно определен расход сбрасываемой воды,
коэффициент расхода ливнеспуска, и длина ливнеспуска. Рассчитаны показатели
работы ливнеспуска:
частота периодов работы ливнеспуска в течение года;
среднегодовая продолжительность работы ливнеспуска;
среднегодовой объем сброса через ливнеспуск в водоем смеси бытовых,
производственных и дождевых сточных вод;
среднегодовой объем сброса через ливнеспуск в водоем смеси бытовых и
производственных сточных вод.
В конечном итоге построен гидрограф стока.
Исходные
данные

1. Расчет
дождевой сети
Интенсивность дождя для данного объекта определяется по формуле:
-
среднее значение коэффициента, характеризующего поверхность бассейна стока;-
продолжительность протекания дождевых вод по трубам до рассчитываемого сечения;
А
- параметр, определяемый по СНиП 2.04.03-85;
-
интенсивность дождя, л/с на га, для данной местности продолжительностью 20 мин
при Р=0,5 года;- показатель степени;- среднее количество дождей за год;- период
однократного превышения расчётной интенсивности дождя;
γ - показатель степени.
По
СНиП: n=0,59; q20=60; при P=0,5; mr=150; γ=1,54
Расход
дождевых сточных вод (расчётный):
β - коэффициент, учитывающий заполнение свободной ёмкости сети в момент
возникновения напорного режима и определяется по табл.11 СНиП 2.04.03-85.
Дальнейший
расчёт производится по участкам:
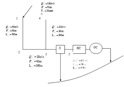
Участок
0 - 1:=70 га; Qсух=120 л/с; Тпр=35 мин;
По
таблицам Лукиных (при наполнении 0,95) выбираем D=900 мм, 1000*i=1,7, (при
наполнении 1) Qпр= 752,3,0 л/с, V=1,18
Из
СНиПа 2.04.03-85, таб. 2 выбираем Кgen.max= 1,48
Тогда
qmax= Qсух · Кgen.max = 120 · 1,48 = 177,6
По
таблицам Лукиных (при 1000*i=1,7 и D=9000 мм) выбираем h/d=0,35
= 0,9 м/с.
Участок
1 - 2:=30 га; Qсух=40 л/с; l=700 м;
ум
= F1-2 +F= 30+70 = 100 га
Принимаем
V = 1,1 м/с
от нач.
сети = 10,6+35=45,6
По
таблицам Лукиных (при наполнении 0,95) выбираем D=1000 мм, 1000*i=1,3 (при
наполнении 1) Qпр= 871 л/с. V=1,12
Из
СНиПа 2.04.03-85, таб. 2 выбираем Кgen.max= 1,48
Тогда
qmax= Qсух · Кgen.max = 160 · 1,48 = 236,8
По
таблицам Лукиных (при 1000*i=1,3 и D=1000 мм) выбираем h/d=0,4,
=0,93 м/с.
Участок
2 - 3:=45 га; Qсух=20 л/с; l=500 м;
ум
= F+Fсум1-2+ F2-3= 70+30 + 45 = 145 га
Принимаем
V= 1,15 м/с
Тот
нач.сети =Tпр+ Т1-2 + Т2-3 =35+ 10,6 + 7,24 = 52,84 мин
По
таблицам Лукиных (при наполнении 0,95) выбираем D=1100 мм, 1000*i=1,4, (при
наполнении 1) Qпр=1165 л/с, V=1,2
Из
СНиПа 2.04.03-85, таб. 2 выбираем Кgen.max= 1,47
Тогда
qmax= Qсух · Кgen.max = 180 · 1,47 = 264,6
По
таблицам Лукиных (при 1000*i=1,4 и D=1100 мм) выбираем h/d=0,35,
=0,96 м/с.
Участок
4 - 3:=20 га; Qсух=25 л/с; l=500 м;
ум =
F4-3= 20 га
Принимаем
V= 0,9 м/с
По
таблицам Лукиных (при наполнении 0,95) выбираем D=700 мм, 1000*i=1,3, (при
наполнении 1) Qпр= 336,8л/с, V=0,98
Из
СНиПа 2.04.03-85, таб. 2 выбираем Кgen.max= 1,54
Тогда
qmax= Qсух · Кgen.max = 25 · 1,54 = 38,5
По
таблицам Лукиных (при 1000*i=1,3 и D=700 мм) выбираем h/d=0,25,
=0,57 м/с.
Участок
3 - Л:
ум
= F2-3 + F4-3 = 145 + 20 = 165 га
Принимаем
Тот
нач.сети =52,84 мин
Принимаем
V3-л = 1,3 м/с,
Расход
бытовых сточных вод на участке 3-Л равен сумме суммарных расходов бытовых
сточных вод на участках 4-3 и 2-3:
По
таблицам Лукиных (при наполнении 0,95) выбираем D=1200 мм, 1000*i=1,1, (при
наполнении 1) Qпр=1382 л/с, V=1,1
Из
СНиПа 2.04.03-85, таб. 2 выбираем Кgen.max= 1,47
Тогда
qmax= Qсух · Кgen.max = 205 · 1,47 = 301,35
По
таблицам Лукиных (при 1000*i=1,1 и D=1200 мм) выбираем h/d=0,35,
=0,9 м/с.
Участок
Л-5:
Расход
бытовых сточных вод на участке Л-5 равен суммарному расходу бытовых сточных вод
на участке 3-Л:
По
таблицам Лукиных (при наполнении 0,95) выбираем D=900 мм, 1000*i=1,2, VЛ-5 =
1,04 м/с (при наполнении 1) Qпр=632,1 л/с.
Из
СНиПа 2.04.03-85, таб. 2 выбираем Кgen.max= 1,46
Тогда
qmax= Qсух · Кgen.max = 205 · 1,46 = 299,3
По
таблицам Лукиных (при 1000*i=1,2 и D=900 мм) выбираем h/d=0,50,
=0,93 м/с.
Участок
5 - НС:-НС=20 га;
=12 л/с; L5-НС=450 м;
ум = F5-НС=
20 га-НС = VЛ-5 =1,04 м/с
Тот
нач. сети = Т5-НС = 7,21 мин
Проверка:
По
таблицам Лукиных (при наполнении 0,95) выбираем D=1000 мм, 1000*i=1,2, (при
наполнении 1) Qпр=1024,2 л/с. V=1,07
Из
СНиПа 2.04.03-85, таб. 2 выбираем Кgen.max= 1,47
Тогда
qmax= Qсух · Кgen.max = 217 · 1,47 = 319
По
таблицам Лукиных (при 1000*i=1,2 и D=1000 мм) выбираем h/d=0,45,
=0,95 м/с.
Все
расчеты сводятся в таблицу.
.
Расчет ливнеспуска
Ливнеспуск
представляет собой открытый лоток в бетонной камере, из которого должна излиться
вода перед насосной станцией во время дождя.
,
где
-коэффициент,
учитывающий конструкцию ливнеспуска (для неподтопленного ливнеспуска
);
m - коэффициент расхода пропуска ливнеспуска,
определяемый по формуле
-
расчетный напор над гребнем водослива;
- высота
гребня, определяемая по формуле,
-коэффициент местного сопротивления
.
Найдем длину ливнеспуска:
Исходя
из условия
и
,
где
D1=D3-Л=1,2; D2=DЛ-5=0,9
Тогда
h1
= 0,9 ∙ 1,2 = 1,08 м= 0,9 ∙ 0,9 = 0,81 м
Н
= h1 - hгр = 1,08 - 0,9 = 0,18 м
Коэффициент
расхода пропуска водослива определяется по следующей формуле:
3.
Определение показателей работы ливнеспусков
Частота периодов работы ливнеспуска в течение года:
τ - климатический коэффициент, равный 0,2;- принятый коэффициент
разбавления = 2;
;
Среднегодовая
продолжительность работы ливнеспуска.
’
- коэффициент, зависящий от m0, K’=3,21;- расчётное время протекания дождевых
вод по коллектору до ливнеспуска;
=Т3-Л=45,6
мин;
Среднегодовой
объём сброса через ливнеспуск в водоём смеси бытовых, производственных и
дождевых вод.
сух
- расход бытовых и производственных сточных вод;" - коэффициент, зависящий
от m0, K" =0,09;
Среднегодовой
объём сброса через ливнеспуск в водоём бытовых и производственных сточных вод.
-
коэффициент, зависящий от m0, Кх =0,035;
Определение
суточного объёма дождя.
,
где
-
коэффицент перевода;сут - суточный слой осадка, Hсут =24 мм;- площадь стока, F
=205 м2;
-
коэффициент стока.
.
Построение гидрографа стока
Изменение
расходов при расчётных дождях записываются в соответствии с гидрографом стока.
В основу положен метод предельных интенсивностей.
При
увеличении расхода восходящая ветка описывается уравнением:
А
нисходящая ветвь уравнением:
Строится
по значениям, полученным из предыдущих формул.=1165,4 м3/ч=45,6 мин=0,59
мин
Интегрируя
уравнения, получим объём дождевого стока за определённый промежуток времени:
При
t≤Tmax
При
t≥Tmax
Гидрограф стока №1.
Строится по значениям, полученным из предыдущих формул.
=4195,4 м3/ч Tmax=45,6 мин n=0,59
Гидрограф
стока №2
Строится по значениям, полученным из предыдущих формул. Но без учета
коэффициента β, то есть данный гидрограф показывает, какая нагрузка поддет на
дождевую сеть без учета коэффициента.
Qmax= Qmax / β =4195,4 / 0,7 =
5993,43 м3/ч
Tmax=45,6 мин n=0,59
Гидрограф
стока №3
Строится по трем значениям и служит для определения часовых расходов
дождевых сточных вод по времени его прохождения.
Для построения данного гидрографа необходимо знать время окончания дождя.
По
построенному гидрографу можно определить часовые расходы дождевых сточных вод
поступающие на ливнеспуск и сбрасываемые из него в водоем, путем сложения и
вычитания площадей получившихся в результате построения.
Список
литературы
1. СНиП
2.04.03-85 "Канализация. Наружные сети и сооружения на них".
. Справочное
пособие "Таблицы для гидравлического расчета канализационных сетей и
дюкеров по формуле академика Н.Н. Павловского". А.А. Лукиных и Н.А.
Лукиных, Тверь, 2005 год.