Планировка помещений жилого фонда, ее влияние на рынок недвижимости

  • Вид работы:
    Курсовая работа (т)
  • Предмет:
    Строительство
  • Язык:
    Русский
    ,
    Формат файла:
    MS Word
    57,62 Кб
  • Опубликовано:
    2016-02-16
Вы можете узнать стоимость помощи в написании студенческой работы.
Помощь в написании работы, которую точно примут!

Планировка помещений жилого фонда, ее влияние на рынок недвижимости

ВВЕДЕНИЕ

В данной курсовой работе необходимо разработать проект недвижимости «Планировка помещений жилого фонда, ее влияние на рынок недвижимости».

В неё входят: планы расположения объектов недвижимости, планы перепланировки помещений недвижимости, паспорт объектов с основными технико-экономическими характеристиками, расчет рыночной стоимости объекта недвижимости, сравнительный анализ помещений до и после перепланировки, зависимость рыночной цены от характеристик объекта недвижимости, подбор сделок с объектами недвижимости, описание необходимых документов для их совершения и регистрации прав.

1. Однокомнатная квартира

.1 План расположения помещений квартиры

Однокомнатная квартира в Железнодорожном районе по улице Красноармейская: материал стен - кирпич, площадь 28/17,2/6, изолированная комната, совмещенный с/у, 5 этаж (крайний), балкона нет, состояние удовлетворительное, год постройки 1956, имеется телефон. В квартире проживает гражданка Самсонова И. В. (собственница).

План однокомнатной квартиры до перепланировки

1.2 План перепланировки помещений однокомнатной квартиры

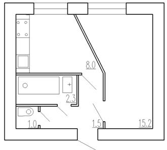
План однокомнатной квартиры после перепланировки

1.3 Паспорт объекта с основными технико-экономическими характеристиками

МИНИСТЕРСТВО ЖИЛИЩНО - КОММУНАЛЬНОГО ХОЗЯЙСТВА

РЕСПУБЛИКИ БЕЛАРУСЬ

РЕСПУБЛИКАНСКИЙ ЦЕНТР УЧЕТА И РЕГИСТРАЦИИ НЕДВИЖИМОСТИ

ТЕХНИЧЕСКИЙ ПАСПОРТ

НА КВАРТИРУ (ЖИЛУЮ КОМНАТУ)

ЖИЛИЩНОГО ФОНДА РЕСПУБЛИКИ БЕЛАРУСЬ

. Область           ___________________________________________

. Район               ___________________________________________

. Сельский совет __________________________________________

. Населенный пункт Гомель____________________________________

. Район в городе Железнодорожный___________________________

. Улица              Красноармейская_____________________________

7. Инвентарный номер ______350/Д-7364_________________________

Адрес________________________________________________________

Подъезд №_____ Этаж №__5

Дата

Регистрационный номер

Правообладатель

Доля в жилом помещении

Основание владения

1

2

3

4

5



Самсонова И.В.


Договор дарения


Составлен по состоянию на «___»______________20__г.

__________________________________________________________________________________________________________________________________________________________________________________________

(наименование органа регистрации и технической инвентаризации)

. План квартиры


. Сведения о жилом доме

1. Серия, тип проекта жилого дома


2. Инвентарный номер

350/С-000600

3. Количество этажей, шт.

5

4. Материал стен

Кирп.

5.Год постройки

1956

6. Год реконструкции

1997

7. Число квартир в доме, шт.

15

8. Общая площадь жилых помещений (квартир) жилого дома, м2

1150


. Характеристика помещений квартиры (жилой комнаты)

Количество комнат

Общая площадь,м2

В том числе

Стоимость



Жилая площадь,м2

В том числе жилые комнаты

Подсобные помещения





1

2

3

4

5

кухня

передняя прихожая

коридоры внутреквартир.

Шкафы встроенные

санузел

кладовая

лоджия

балконы



Высота, м


1

2

3

4

5

6

7

8

9

10

11

12

13

14

15

16

17

18

19

20

1

28

15,2

15,2

-

-

-

-

8,0

-

1,5

-

3,3

-

-

-

-

-

2,50



. Техническое описание конструктивных элементов инженерного оборудования


Наименование

Описание конструктивных элементов, материал, конструкция, отделочные покрытия

1

Стены

Наружные

Кирп.



Внутренние

Кирп.

2

Перегородки

Кирп.

3

Полы

ДВП - окрашены

4

Перекрытия

ж/бет плиты

5

Крыша

совмещенная

6

Проемы

Оконные

типовые дерев. переплеты с остеклением



Дверные

филенчатые деревянные

7

Балконы

-

8

Лоджии

-

9

Инженерное оборудование

Электроосвещение

скрытая проводка



Водопровод

стальные трубы



Канализация

чугун. Стояк



Электроплиты

-



Горячее водоснабжение

стальные трубы, ЦТП



Ванная

эмалированная







Отопление

теплоцентраль



Газоснабжение

стальные трубы, природный газ



Вентиляция

вент. Каналы



Телевидение

антенная общ. Пользования



Радио

радиотранс. сеть



Телефон

каблирован



Мусоропровод

асб/ц стояк


Особые отметки __________________________________________________________________________________________________________________________________________________________________________________________________________________________________________________________________________________________

Паспорт составил:

«__04__»__декабря_____20_13_г.______Городкова И.И.___ ________

Паспорт

проверил: «_04___»__декабря______2013__г.____Титова Т.В.__ _____

Руководитель органа регистрации

и технической инвентаризации ______Пархимович И.В.____________

1.4 Расчет рыночной стоимости объекта недвижимости до перепланировки

Исходный вариант квартиры включал в себя кухню 6,0 кв.м, 1 жилую комнату площадью 17,2 кв.м, коридор 1,8 кв. м, совмещенный санузел 3 кв.м.

Для расчёта рыночной стоимости однокомнатной квартиры выберем из СМИ объекты аналоги и используя поправки на отдельные факторы рассчитаем их цену. Учитывая что из практики оценщиков для более точного расчёта необходимо брать не менее 3-х пар, возьмём за основу 5-ть вариантов.

Порядок оценки:

1)                       Определяем рыночную стоимость объектов аналогов в у.е. по курсу нац. банка Республики Беларусь в долларах США, используя фактор отличия наружных стен жилых домов с квартирами находящимися не на крайних этажах в хорошем состоянии:

Материал стен

объекты аналоги № 1

объекты аналоги № 2

объекты аналоги № 3

объекты аналоги № 4

объект аналог № 5

Средняя величина

Кирпичные

35000

38000

38000

39000

42000

38400

Панельные

34000

36000

37000

37000

37000

36200

Разность

1000

2000

1000

2000

5000

2200

Медиана

1000


Расчёт поправки будем делать исходя из усреднённых показателей найденных цен:

П=38400-36200=2200

Тогда рыночная стоимость квартиры с учётом поправки на кирпичный дом будет следующая:

+ 2200 = 38200 долл.

При использовании показателя медианы на разницу полученных цен, мы можем определить поправку в размере 1000 долл. тогда рыночная стоимость квартиры будет:

+ 1000 = 37000 долл.

Аналогично данному примеру рассчитаем поправки на цену и по другим факторам. При подборе вариантов аналогов квартир для расчёта, в данных объектах должны присутствовать факторы, поправки к которым уже проводились. Например, если мы посчитали поправку на материал стен, то при расчёте на следующую поправку, берутся квартиры с одинаковыми наружными стенами, в противном случае в определяемой поправке будет находиться и предыдущая. Не редко из-за отсутствия возможности выделить каждую поправку отдельно, берутся объекты с несколькими факторами отличия, и поправки определяются в совокупности.

Этажность и наличие балкона

Объекты аналоги №1

Объекты аналоги № 2

Объекты аналоги № 3

Объекты аналоги № 4

Объекты аналоги № 5

Средняя величина

Не крайние этажи с балконом

 35000

 36000

 38000

 40000

 42000

 38200

Крайний (первый или последний) этаж без балкона.

 32000

 32000

 33000

 35000

 35000

 33400

Разность

3000

4000

5000

5000

7000

4800

Медиана

5000


На основании данных приведенных в таблице по объектам аналогам вычисляются поправки на этаж и наличие балкона.

П=38200-33400=4800

С применением медианы поправка будет составлять 5000 долл.

Расчёт оставшихся поправок с подбором объектов аналогов

Наименование фактора отличия

Объекты аналоги № 1

Объекты аналоги № 2

Объекты аналоги № 3

Объекты аналоги № 4

Объекты аналоги № 5

Средняя величина

Площадь кухни более 7 м. кв.; с/у раздельный с ванной комнатой

35000

35000

37000

38000

38000

36600

Площадь кухни от 6 до 7 м. кв.; с/у совмещён с ванной комнатой.

 32000

 33000

 34500

 35000

 35000

 33900

Разность

3000

2000

2500

3000

3000

2700

Медиана

2500

Состояние квартиры хорошее.

36000

36000

38000

39000

42000

38200

Состояние квартиры удовлетворительное.

 34500

 35000

 35000

 36000

 36000

 35300

Разность

1500

1000

3000

3000

6000

2900

Медиана

3000

Хорошо развитая инфраструктура.

39000

39000

40000

42000

42000

40400

Плохо развитая инфраструктура.

35000

35000

36000

37000

37000

36000

Разность

4000

4000

4000

5000

5000

4400

Медиана

4000


Как видно из таблицы 5 поправки на отличия квартир аналогов по различным факторам будут составлять:

На площадь кухни и совмещённость санузла с ванной комнатой:

П=36600-33900=2700

С применением показателя «медианы» - 2500 у.е.

На состояние квартиры:

П=38200-35300=2900

С применением показателя «медианы» - 3000 у.е.

На имеющуюся инфраструктуру:

П=40400-36000=4400

Вычислив необходимые поправки, берём среднюю рыночную стоимость объекта аналога из любых пар анализа и слаживаем (вычитаем) полученные данные. Для расчёта из табл. 3 возьмём среднюю рыночную цену квартиры в панельном доме и проведём её к рыночной стоимости заданной квартиры:

- 4800 - 2700 - 2900 + 4400 = 32400 у.е.

Учитывая наличие погрешностей при расчёте поправок делаем корректировку на точность расчёта в размере 5% от полученной суммы.

δ =V*5/100=1620 у.е., тогда рыночная стоимость квартиры с учетом корректировки составит 34020 у.е.

При использовании медианы рыночная стоимость квартиры составит 31900 у.е.

1.5 Расчет рыночной стоимости объекта недвижимости после перепланировки

В ходе перепланировки было перенесена стена кухни, вследствие чего кухня стала площадью 8,0 кв.м, коридор 1,5 кв.м., жилая комната 15,2 кв.м. и санузел сделали раздельным, в итоге ванна стала площадью 2,3 кв.м., а туалет 1 кв.м. . Сделан ремонт, оконные рамы заменены на стеклопакеты.

Для расчёта рыночной стоимости однокомнатной квартиры выберем из СМИ объекты аналоги и используя поправки на отдельные факторы рассчитаем их цену. Учитывая что из практики оценщиков для более точного расчёта необходимо брать не менее 3-х пар, возьмём за основу 5-ть вариантов.

Порядок оценки:

2)                       Определяем рыночную стоимость объектов аналогов в у.е. по курсу нац. банка Республики Беларусь в долларах США, используя фактор отличия наружных стен жилых домов с квартирами находящимися не на крайних этажах в хорошем состоянии:

Материал стен

объекты аналоги № 1

объекты аналоги № 2

объекты аналоги № 3

объекты аналоги № 4

объект аналог № 5

Средняя величина

Кирпичные

35000

38000

38000

39000

42000

38400

Панельные

34000

36000

37000

37000

37000

36200

Разность

1000

2000

1000

2000

5000

2200

Медиана

1000


Расчёт поправки будем делать исходя из усреднённых показателей найденных цен:

П=38400-36200=2200

Тогда рыночная стоимость квартиры с учётом поправки на кирпичный дом будет следующая:

+ 2200 = 38200 долл.

При использовании показателя медианы на разницу полученных цен, мы можем определить поправку в размере 1000 долл. тогда рыночная стоимость квартиры будет:

+ 1000 = 37000 долл.

Аналогично данному примеру рассчитаем поправки на цену и по другим факторам. При подборе вариантов аналогов квартир для расчёта, в данных объектах должны присутствовать факторы, поправки к которым уже проводились. Например, если мы посчитали поправку на материал стен, то при расчёте на следующую поправку, берутся квартиры с одинаковыми наружными стенами, в противном случае в определяемой поправке будет находиться и предыдущая. Не редко из-за отсутствия возможности выделить каждую поправку отдельно, берутся объекты с несколькими факторами отличия, и поправки определяются в совокупности.

Этажность и наличие балкона

Объекты аналоги №1

Объекты аналоги № 2

Объекты аналоги № 3

Объекты аналоги № 4

Объекты аналоги № 5

Средняя величина

Не крайние этажи с балконом

 35000

 36000

 38000

 40000

 42000

 38200

Крайний (первый или последний) этаж без балкона.

 32000

 32000

 33000

 35000

 35000

 33400

Разность

3000

4000

5000

5000

7000


Медиана

5000


На основании данных приведенных в таблице по объектам аналогам вычисляются поправки на этаж и наличие балкона.

П=38200-33400=4800

С применением медианы поправка будет составлять 5000 долл.

Расчёт оставшихся поправок с подбором объектов аналогов

Наименование фактора отличия

Объекты аналоги № 1

Объекты аналоги № 2

Объекты аналоги № 3

Объекты аналоги № 4

Объекты аналоги № 5

Средняя величина

Площадь кухни более 7 м. кв.; с/у раздельный с ванной комнатой

35000

35000

37000

38000

38000

36600

Площадь кухни от 6 до 7 м. кв.; с/у совмещён с ванной комнатой.

 32000

 33000

 34500

 35000

 35000

 33900

Разность

3000

2000

2500

3000

3000

2700

Медиана

2500

Состояние квартиры хорошее.

36000

36000

38000

39000

42000

38200

Состояние квартиры удовлетворительное.

 34500

 35000

 35000

 36000

 36000

 35300

Разность

1500

1000

3000

3000

6000

2900

Медиана

3000

Хорошо развитая инфраструктура.

39000

39000

40000

42000

42000

40400

Плохо развитая инфраструктура.

35000

35000

36000

37000

37000

36000

Разность

4000

4000

4000

5000

5000

4400

Медиана

4000


Как видно из таблицы 5 поправки на отличия квартир аналогов по различным факторам будут составлять:

На площадь кухни и совмещённость санузла с ванной комнатой:

П=36600-33900=2700

С применением показателя «медианы» - 2500 у.е.

На состояние квартиры:

П=38200-35300=2900

С применением показателя «медианы» - 3000 у.е.

На имеющуюся инфраструктуру:

П=40400-36000=4400

С применением показателя «медианы» -4000 у.е.

Вычислив необходимые поправки, берём среднюю рыночную стоимость объекта аналога из любых пар анализа и слаживаем (вычитаем) полученные данные. Для расчёта из табл. 3 возьмём среднюю рыночную цену квартиры в панельном доме и проведём её к рыночной стоимости заданной квартиры:

- 4800 + 2700 + 2900 + 4400 = 43600 у.е.

Учитывая наличие погрешностей при расчёте поправок делаем корректировку на точность расчёта в размере 5% от полученной суммы.

δ =V*5/100=1620 у.е., тогда рыночная стоимость квартиры с учетом корректировки составит 42000 у.е.

При использовании медианы рыночная стоимость квартиры составит 42900 у.е.

2. Трехкомнатная квартира

.1 План расположения помещений квартиры

Трехкомнатная квартира в Железнодорожном районе по улице 50 лет БССР: панельные стены, площадь 62/50/6, изолированные комнаты, раздельный с/у, 3/5 этаж, есть балкон, состояние хорошее, год постройки 1968, имеется телефон и счетчик воды. В квартире проживает одинокий пенсионер Рыжков Н.Н. (собственник).

План трехкомнатной квартиры до перепланировки

2.2 План перепланировки помещений квартиры

План трехкомнатной квартиры после перепланировки

2.3 Паспорт объекта с основными технико-экономическими характеристиками

МИНИСТЕРСТВО ЖИЛИЩНО - КОММУНАЛЬНОГО ХОЗЯЙСТВА

РЕСПУБЛИКИ БЕЛАРУСЬ

РЕСПУБЛИКАНСКИЙ ЦЕНТР УЧЕТА И РЕГИСТРАЦИИ НЕДВИЖИМОСТИ

ТЕХНИЧЕСКИЙ ПАСПОРТ

НА КВАРТИРУ (ЖИЛУЮ КОМНАТУ)

ЖИЛИЩНОГО ФОНДА РЕСПУБЛИКИ БЕЛАРУСЬ

. Область           ___________________________________________

. Район               ___________________________________________

. Сельский совет __________________________________________

. Населенный пункт Гомель____________________________________

. Район в городе Железнодорожный___________________________

. Улица              50 лет БССР_____________________________

7. Инвентарный номер         ______350/Д-7364________________________

Адрес________________________________________________________

Подъезд №_____ Этаж №__3

Дата

Регистрационный номер

Правообладатель

Доля в жилом помещении

Основание владения

1

2

3

4

5



Рыжков Н.Н.


Договор приватизации


Составлен по состоянию на «___»______________20__г.

__________________________________________________________________________________________________________________________________________________________________________________________

(наименование органа регистрации и технической инвентаризации)

. План квартиры

2. Сведения о жилом доме

1. Серия, тип проекта жилого дома


2. Инвентарный номер

350/С-000600

3. Количество этажей, шт.

5

4. Материал стен

Пан.

5.Год постройки

1956

6. Год реконструкции

1997

7. Число квартир в доме, шт.

234

8. Общая площадь жилых помещений (квартир) жилого дома, м2

12491


. Характеристика помещений квартиры (жилой комнаты)

Количество комнат

Общая площадь,м2

В том числе

Стоимость



Жилая площадь,м2

В том числе жилые комнаты

Подсобные помещения





1

2

3

4

5

кухня

передняя прихожая

коридоры внутреквартир.

Шкафы встроенные

санузел

кладовая

лоджия

балконы



Высота, м


1

2

3

4

5

6

7

8

9

10

11

12

13

14

15

16

17

18

19

20

1

62

50

16,0

24,0

-

-

-

17,0

-

2,7

-

3,3

-

-

есть

-

-

2,50



. Техническое описание конструктивных элементов инженерного оборудования


Наименование

Описание конструктивных элементов, материал, конструкция, отделочные покрытия

1

Стены

Наружные

Пан.



Внутренние

Пан.

2

Перегородки

Пан.

3

Полы

ДВП - окрашены

4

Перекрытия

ж/бет плиты

5

Крыша

совмещенная

6

Проемы

Оконные

типовые дерев. переплеты с остеклением



Дверные

филенчатые деревянные

7

Балконы

-

8

Лоджии

-

9

Инженерное оборудование

Электроосвещение

скрытая проводка



Водопровод

стальные трубы



Канализация

чугун. Стояк



Электроплиты

-



Горячее водоснабжение

стальные трубы, ЦТП



Ванная

эмалированная







Отопление

теплоцентраль



Газоснабжение

стальные трубы, природный газ



Вентиляция

вент. Каналы



Телевидение

антенная общ. Пользования



Радио

радиотранс. сеть



Телефон

каблирован



Мусоропровод

асб/ц стояк

Паспорт составил:

«__04__»__декабря_______20_13_г.______Городкова И.И.__________

Паспорт проверил:

«_04___»__декабря___2013__г._______Титова Т.В._________________

Руководитель органа регистрации

и технической инвентаризации ______Пархимович И.В.____________

2.4 Расчет рыночной стоимости объекта недвижимости до перепланировки

Исходный вариант квартиры включал в себя кухню 6,0 кв.м, 3 жилые комнаты площадью 12,0, 19,0, 19,0 кв.м соответственно, коридор 2,7 кв. м, раздельный санузел туалет-1.0,ванная- 2,3 кв.м.

Для расчёта рыночной стоимости однокомнатной квартиры выберем из СМИ объекты аналоги и используя поправки на отдельные факторы рассчитаем их цену. Учитывая что из практики оценщиков для более точного расчёта необходимо брать не менее 3-х пар, возьмём за основу 5-ть вариантов.

Порядок оценки:

3)                       Определяем рыночную стоимость объектов аналогов в у.е. по курсу нац. банка Республики Беларусь в долларах США, используя фактор отличия наружных стен жилых домов с квартирами находящимися не на крайних этажах в хорошем состоянии:

Материал стен

объекты аналоги № 1

объекты аналоги № 2

объекты аналоги № 3

объекты аналоги № 4

объект аналог № 5

Средняя величина

Кирпичные

55000

55000

58000

62000

68000

59600

Панельные

45000

50000

51500

60000

65000

54300

Разность

10000

5000

6500

2000

3000

5300

Медиана

6500


Расчёт поправки будем делать исходя из усреднённых показателей найденных цен:

П=59600-54300=5300

Тогда рыночная стоимость квартиры с учётом поправки на панельный дом будет следующая:

- 5300 = 54700 долл.

При использовании показателя медианы на разницу полученных цен, мы можем определить поправку в размере 1000 долл. тогда рыночная стоимость квартиры будет:

- 5300 = 53500 долл.

Аналогично данному примеру рассчитаем поправки на цену и по другим факторам. При подборе вариантов аналогов квартир для расчёта, в данных объектах должны присутствовать факторы, поправки к которым уже проводились. Например, если мы посчитали поправку на материал стен, то при расчёте на следующую поправку, берутся квартиры с одинаковыми наружными стенами, в противном случае в определяемой поправке будет находиться и предыдущая. Не редко из-за отсутствия возможности выделить каждую поправку отдельно, берутся объекты с несколькими факторами отличия, и поправки определяются в совокупности.

Этажность и наличие балкона

Объекты аналоги №1

Объекты аналоги № 2

Объекты аналоги № 3

Объекты аналоги № 4

Объекты аналоги № 5

Средняя величина

Не крайние этажи с балконом

 50000

 54000

 62000

 65000

 70000

 60200

Крайний (первый или последний) этаж без балкона.

43000 

45000

52000

59000

63000

52400

Разность

7000

11000

10000

6000

7000

7800

Медиана

10000


На основании данных приведенных в таблице по объектам аналогам вычисляются поправки на этаж и наличие балкона.

П=60200-52400=7800

С применением медианы поправка будет составлять 10000 долл.

Расчёт оставшихся поправок с подбором объектов аналогов

Наименование фактора отличия

Объекты аналоги № 1

Объекты аналоги № 2

Объекты аналоги № 3

Объекты аналоги № 4

Объекты аналоги № 5

Средняя величина

Площадь кухни более 7 м. кв.; с/у раздельный с ванной комнатой

59000

60000

60000

60000

65000

60800

Площадь кухни от 6 до 7 м. кв.; с/у совмещён с ванной комнатой.

45000 

50000

51500

52000

60000

51700

Разность

14000

10000

8500

8000

5000

9100

Медиана

8500

Состояние квартиры хорошее.

51500

60000

60000

63000

65000

59900

Состояние квартиры удовлетворительное.

43000

45000

50000

52000

59000

49800

Разность

8500

15000

10000

11000

6000

10100

Медиана

10000

Хорошо развитая инфраструктура.

51500

52000

60000

63000

65000

58300

Плохо развитая инфраструктура.

42000

45000

52000

59000

60000

51600

Разность

9500

7000

8000

4000

5000

6700

Медиана

8000


Как видно из таблицы 5 поправки на отличия квартир аналогов по различным факторам будут составлять:

На площадь кухни и совмещённость санузла с ванной комнатой:

П=60800-51700=9100

С применением показателя «медианы» - 8500 у.е.

На состояние квартиры:

П=59900-49800=10100

С применением показателя «медианы» - 10000 у.е.

На имеющуюся инфраструктуру:

П=58300-51600=6700

С применением показателя «медианы» -8000 у.е.

Вычислив необходимые поправки, берём среднюю рыночную стоимость объекта аналога из любых пар анализа и слаживаем (вычитаем) полученные данные. Для расчёта из табл. 3 возьмём среднюю рыночную цену квартиры в панельном доме и проведём её к рыночной стоимости заданной квартиры:

- 5300 + 7800 - 9100 + 10100 + 6700 = 69800 у.е.

Учитывая наличие погрешностей при расчёте поправок делаем корректировку на точность расчёта в размере 5% от полученной суммы.

δ =V*5/100= 3500 у.е., тогда рыночная стоимость квартиры с учетом корректировки сосотавит 66300 у.е.

При использовании медианы рыночная стоимость квартиры составит 72600 у.е.

2.5 Расчет рыночной стоимости объекта недвижимости после перепланировки

В ходе перепланировки была снесена стена кухни, что способствовало объединению кухни с одной из жилых комнат, в итоге получилась кухня-гостинная площадью 17 кв.м., были увеличены площади двух жилых комнат 16 кв.м и 24 кв.м. .Сделан ремонт, оконные рамы заменены на стеклопакеты.

Для расчёта рыночной стоимости однокомнатной квартиры выберем из СМИ объекты аналоги и используя поправки на отдельные факторы рассчитаем их цену. Учитывая что из практики оценщиков для более точного расчёта необходимо брать не менее 3-х пар, возьмём за основу 5-ть вариантов.

Порядок оценки:

4)                       Определяем рыночную стоимость объектов аналогов в у.е. по курсу нац. банка Республики Беларусь в долларах США, используя фактор отличия наружных стен жилых домов с квартирами находящимися не на крайних этажах в хорошем состоянии:

Материал стен

объекты аналоги № 1

объекты аналоги № 2

объекты аналоги № 3

объекты аналоги № 4

объект аналог № 5

Средняя величина

Кирпичные

48000

55000

57000

59000

60000

55800

Панельные

45000

50000

52000

54000

55000

51200

Разность

3000

5000

5000

5000

5000

4600

Медиана

5000


Расчёт поправки будем делать исходя из усреднённых показателей найденных цен:

П=55800-51200=4600

Тогда рыночная стоимость квартиры с учётом поправки на панельный дом будет следующая:

- 4600 = 51200долл.

При использовании показателя медианы на разницу полученных цен, мы можем определить поправку в размере 5000 долл. тогда рыночная стоимость квартиры будет:

- 5000 = 50800 долл.

Аналогично данному примеру рассчитаем поправки на цену и по другим факторам. При подборе вариантов аналогов квартир для расчёта, в данных объектах должны присутствовать факторы, поправки к которым уже проводились. Например, если мы посчитали поправку на материал стен, то при расчёте на следующую поправку, берутся квартиры с одинаковыми наружными стенами, в противном случае в определяемой поправке будет находиться и предыдущая. Не редко из-за отсутствия возможности выделить каждую поправку отдельно, берутся объекты с несколькими факторами отличия, и поправки определяются в совокупности.

Этажность и наличие балкона

Объекты аналоги №1

Объекты аналоги № 2

Объекты аналоги № 3

Объекты аналоги № 4

Объекты аналоги № 5

Средняя величина

Не крайние этажи с балконом

 50000

 52000

 54000

 55000

 56000

 53400

Крайний (первый или последний) этаж без балкона.

 42000

 45000

 46000

 47000

 49500

 45900

Разность

8000

7000

8000

8000

65000

7500

Медиана

8000


На основании данных приведенных в таблице по объектам аналогам вычисляются поправки на этаж и наличие балкона.

П=53400-45900=7500

С применением медианы поправка будет составлять 8000 долл.

Расчёт оставшихся поправок с подбором объектов аналогов

Наименование фактора отличия

Объекты аналоги № 1

Объекты аналоги № 2

Объекты аналоги № 3

Объекты аналоги № 4

Объекты аналоги № 5

Средняя величина

Площадь кухни более 7 м. кв.; с/у раздельный с ванной комнатой

50000

52000

54000

55000

56000

53400

Площадь кухни от 6 до 7 м. кв.; с/у совмещён с ванной комнатой.

 45000

 45000

 47000

 48000

 49500

 46900

Разность

5000

7000

7000

7000

6500

6500

Медиана

7000

Состояние квартиры хорошее.

52000

54000

55000

56000

56500

54700

Состояние квартиры удовлетворительное.

50000

50500

52000

52000

53000

51500

Разность

2000

3500

3000

4000

3500

3200

Медиана

3000

Хорошо развитая инфраструктура.

52000

54000

55000

56000

56500

54700

Плохо развитая инфраструктура.

51000

52000

53000

53000

53000

52400

Разность

1000

2000

2000

3000

3500

2300

Медиана

2000


Как видно из таблицы 5 поправки на отличия квартир аналогов по различным факторам будут составлять:

На площадь кухни и совмещённость санузла с ванной комнатой:

П=54700-51500=3200

С применением показателя «медианы» - 7000 у.е.

На состояние квартиры:

П=59900-49800=10100

С применением показателя «медианы» - 3000 у.е.

На имеющуюся инфраструктуру:

П=54700-52400=2300

С применением показателя «медианы» -2000 у.е.

Вычислив необходимые поправки, берём среднюю рыночную стоимость объекта аналога из любых пар анализа и слаживаем (вычитаем) полученные данные. Для расчёта из табл. 3 возьмём среднюю рыночную цену квартиры в панельном доме и проведём её к рыночной стоимости заданной квартиры:

- 4600 + 7500 +6500 + 3200 + 2300 = 70700 у.е.

Учитывая наличие погрешностей при расчёте поправок делаем корректировку на точность расчёта в размере 5% от полученной суммы.

δ =V*5/100=3540 у.е., тогда рыночная стоимость квартиры с учетом корректировки составит 67200 у.е.

При использовании медианы рыночная стоимость квартиры составит 70800 у.е.

3. Комната в двухкомнатной квартире

.1 План расположения помещений квартиры

Комната в двухкомнатной квартире (площадь комнаты 12 кв. м.) в Новобелицком районе по улице Ленинградская: стены панельные, площадь 51/29/7, раздельный с/у,8/9 этаж, балкона нет, состояние удовлетворительное, год постройки 1987, имеется телефон и счетчик воды. В квартире проживают Павлов К. Н. собственник и его брат Павлов Н.Н..

недвижимость перепланировка стоимость обмен

План двухкомнатной квартиры

3.2 Паспорт объекта с основными технико-экономическими характеристиками

МИНИСТЕРСТВО ЖИЛИЩНО - КОММУНАЛЬНОГО ХОЗЯЙСТВА

РЕСПУБЛИКИ БЕЛАРУСЬ

РЕСПУБЛИКАНСКИЙ ЦЕНТР УЧЕТА И РЕГИСТРАЦИИ НЕДВИЖИМОСТИ

НА КВАРТИРУ (ЖИЛУЮ КОМНАТУ)

ЖИЛИЩНОГО ФОНДА РЕСПУБЛИКИ БЕЛАРУСЬ

. Область           ___________________________________________

. Район               ___________________________________________

. Сельский совет __________________________________________

. Населенный пункт Гомель____________________________________

. Район в городе            Новобелицкий___________________________

. Улица Ленинградская_____________________________

7. Инвентарный номер 350/Д-7364_______________________________

Адрес________________________________________________________

Подъезд №_____ Этаж №__8

Дата

Регистрационный номер

Правообладатель

Доля в жилом помещении

Основание владения

1

2

3

4

5



Павлов К.Н.


Договор купли-продажи


Составлен по состоянию на «___»______________20__г.

__________________________________________________________________________________________________________________________________________________________________________________________

(наименование органа регистрации и технической инвентаризации)

. План квартиры


. Сведения о жилом доме

1. Серия, тип проекта жилого дома


2. Инвентарный номер

350/С-000600

3. Количество этажей, шт.

9

4. Материал стен

Пан.

5.Год постройки

1968

6. Год реконструкции

1997

7. Число квартир в доме, шт.

15

8. Общая площадь жилых помещений (квартир) жилого дома, м2

1150



. Характеристика помещений квартиры (жилой комнаты)

Количество комнат

Общая площадь,м2

В том числе

Стоимость



Жилая площадь,м2

В том числе жилые комнаты

Подсобные помещения





1

2

3

4

5

кухня

передняя прихожая

коридоры внутреквартир.

Шкафы встроенные

санузел

кладовая

лоджия

балконы



Высота, м


1

2

3

4

5

6

7

8

9

10

11

12

13

14

15

16

17

18

19

20

1

51

29

12

17

-

-

-

7,0

-

8,0

-

7,0

-

-

-

-

-

2,50



. Техническое описание конструктивных элементов инженерного оборудования


Наименование

Описание конструктивных элементов, материал, конструкция, отделочные покрытия

1

Стены

Наружные

Пан.



Внутренние

Пан.

2

Перегородки

Пан.

3

Полы

ДВП - окрашены

4

Перекрытия

ж/бет плиты

5

Крыша

совмещенная

6

Проемы

Оконные

типовые дерев. переплеты с остеклением



Дверные

филенчатые деревянные

7

Балконы

-

8

Лоджии

-

9

Инженерное оборудование

Электроосвещение

скрытая проводка



Водопровод

стальные трубы



Канализация

чугун. Стояк



Электроплиты

-



Горячее водоснабжение

стальные трубы, ЦТП



Ванная

эмалированная







Отопление

теплоцентраль



Газоснабжение

стальные трубы, природный газ



Вентиляция

вент. Каналы



Телевидение

антенная общ. Пользования



Радио

радиотранс. сеть



Телефон

каблирован



Мусоропровод

асб/ц стояк


Особые отметки ______________________________________________________________________________________________________________________________________________________________________________________________________________________________________________________________________

Паспорт составил:

«__04__»__декабря_____20_13_г._______Городкова И.И.___________

Паспорт проверил:

«_04___»__декабря_____2013__г._________Титова Т.В._____________

Руководитель органа регистрации

и технической инвентаризации _____Пархимович И.В._____________

3.3 Расчет рыночной стоимости объекта недвижимости

Для расчёта рыночной стоимости комнаты в двухкомнатной квартире выберем из СМИ объекты аналоги и используя поправки на отдельные факторы рассчитаем их цену. Учитывая что из практики оценщиков для более точного расчёта необходимо брать не менее 3-х пар, возьмём за основу 5-ть вариантов.

Порядок оценки:

5)                       Определяем рыночную стоимость объектов аналогов в у.е. по курсу нац. банка Республики Беларусь в долларах США, используя фактор отличия наружных стен жилых домов с квартирами находящимися не на крайних этажах в хорошем состоянии:

Материал стен

объекты аналоги № 1

объекты аналоги № 2

объекты аналоги № 3

объекты аналоги № 4

объект аналог № 5

Средняя величина

Кирпичные

14000

16000

17500

17500

20000

17000

Панельные

13000

15000

15000

17000

18000

15600

Разность

1000

1000

2500

2500

2000

1400

Медиана

2500


Расчёт поправки будем делать исходя из усреднённых показателей найденных цен:

П=17000-15600=1400

Тогда рыночная стоимость квартиры с учётом поправки на панельный дом будет следующая:

- 1400 = 15600 долл.

При использовании показателя медианы на разницу полученных цен, мы можем определить поправку в размере 1000 долл. тогда рыночная стоимость квартиры будет:

- 2500 = 57500 долл.

Аналогично данному примеру рассчитаем поправки на цену и по другим факторам. При подборе вариантов аналогов квартир для расчёта, в данных объектах должны присутствовать факторы, поправки к которым уже проводились. Например, если мы посчитали поправку на материал стен, то при расчёте на следующую поправку, берутся квартиры с одинаковыми наружными стенами, в противном случае в определяемой поправке будет находиться и предыдущая. Не редко из-за отсутствия возможности выделить каждую поправку отдельно, берутся объекты с несколькими факторами отличия, и поправки определяются в совокупности.

Этажность и наличие балкона

Объекты аналоги №1

Объекты аналоги № 2

Объекты аналоги № 3

Объекты аналоги № 4

Объекты аналоги № 5

Средняя величина

Не крайние этажи с балконом

13000

15000

15000

17000

18000

15600

Крайний (первый или последний) этаж без балкона.

10000 

13000

14000

14000

15000

13200

Разность

3000

2000

1000

3000

3000

2400

Медиана

1000


На основании данных приведенных в таблице по объектам аналогам вычисляются поправки на этаж и наличие балкона.

П=15600-13200=2400

С применением медианы поправка будет составлять 1000 долл.

Расчёт оставшихся поправок с подбором объектов аналогов

Наименование фактора отличия

Объекты аналоги № 1

Объекты аналоги № 2

Объекты аналоги № 3

Объекты аналоги № 4

Объекты аналоги № 5

Средняя величина

Площадь комнаты более 12 кв.м.

15000

15000

15500

17000

18000

16100

Площадь комнаты от 11 до 12 кв.м.

12000

12500

12500

13000

13000

12600

Разность

3000

2500

2500

4000

5000

3500

Медиана

2500

Хорошо развитая инфраструктура.

13000

14000

14000

15000

17000

14600

Плохо развитая инфраструктура.

10000

12000

13000

13000

14000

12400

Разность

3000

2000

1000

2000

3000

2200

Медиана

1000


Как видно из таблицы 5 поправки на отличия квартир аналогов по различным факторам будут составлять:

На площадь комнаты:

П=16100-12600=3500

С применением показателя «медианы» - 2500 у.е.

На имеющуюся инфраструктуру:

П=14600-12400=2200

С применением показателя «медианы» -1000 у.е.

Вычислив необходимые поправки, берём среднюю рыночную стоимость объекта аналога из любых пар анализа и слаживаем (вычитаем) полученные данные. Для расчёта из табл. 3 возьмём среднюю рыночную цену квартиры в панельном доме и проведём её к рыночной стоимости заданной квартиры:

- 1400 + 2400 - 3500 - 2200 = 12300 у.е.

Учитывая наличие погрешностей при расчёте поправок делаем корректировку на точность расчёта в размере 5% от полученной суммы.

δ =V*5/100=615 у.е. , тогда рыночная стоимость квартиры с учетом корректировки сосотавит 12915 у.е.

При использовании медианы рыночная стоимость квартиры составит 12000 у.е.

4. Описание необходимых документов для совершения сделок

.1 Документы, необходимые для нотариального оформления сделки обмена двухкомнатной квартиры на однокомнатную квартиру с доплатой

Производится обмен двухкомнатной квартиры на однокомнатную квартиру.

В двухкомнатной квартире проживает одинокий пенсионер Рыжков Н.Н (собственник; никогда ни с кем не состоял в браке).

В однокомнатной квартире проживает гражданка Самсонова И. В. (собственница; никогда ни с кем не состояла в браке).

Для нотариального отчуждения необходимы:

-       регистрационные удостоверения или свидетельства о государственной регистрации права на недвижимое имущество, технические паспорта квартир; правоустанавливающие документы: договор дарения и договор приватизации;

-       выписки из регистрационной книги о правах, ограничениях на изолированное помещение, капитальное строение, административное помещение из Единого государственного регистра на недвижимость. Прав на него и сделок с ним с отметкой нотариальной конторы об отсутствии арестов и запрещений (срок действия - 1 месяц с момента изготовления);

-       паспорта собственников объектов при личном подписании договора, при подписании договора представителем - нотариально удостоверенная доверенность и паспорт представителя;

-       справки о составе семьи;

-       справки о стоимости объекта недвижимости, выдаваемая РУП «Агентство по государственной регистрации и земельному кадастру»;

-       договор мены.

4.2 Оформление документов по обмену квартир

РЕСПУБЛИКА БЕЛАРУСЬ

ЕДИНЫЙ ГОСУДАРСТВЕННЫЙ РЕГИСТР НЕДВИЖИМОГО

ИМУЩЕСТВА, ПРАВ НА НЕГО И СДЕЛОК С НИМ

Государственный комитет по имуществу Республики Беларусь

РУП "Гомельское агентство по государственной регистрации и

земельному кадастру"

Гомельский городской филиал

СВИДЕТЕЛЬСТВО (УДОСТОВЕРЕНИЕ) № 350/670-1159

О ГОСУДАРСТВЕННОЙ РЕГИСТРАЦИИ

По заявлению № 44745/11:670 от 4 декабря 2013 года

в отношении изолированного помещения с инвентарным номером 350/Д-7364, расположенного по адресу: Гомельская обл., г. Гомель, ул. 50 лет БССР 31/120, площадь - 62 кв.м., назначение - квартира, наименование - квартира №120

произведена государственная регистрация:

1.   перехода права собственности на изолированное помещение(форма собственности - частная), правообладатель - гражданин Республики Беларусь Рыжков Николай Николаевич.

Приложения: нет

Примечания: нет

Свидетельство составлено 10 декабря 2013 года

Регистратор Бобович О.А. ____________

(подпись)

РЕСПУБЛИКА БЕЛАРУСЬ

ЕДИНЫЙ ГОСУДАРСТВЕННЫЙ РЕГИСТР НЕДВИЖИМОГО

ИМУЩЕСТВА, ПРАВ НА НЕГО И СДЕЛОК С НИМ

Государственный комитет по имуществу Республики Беларусь

РУП "Гомельское агентство по государственной регистрации и

земельному кадастру"

СВИДЕТЕЛЬСТВО (УДОСТОВЕРЕНИЕ) № 350/670-1159

О ГОСУДАРСТВЕННОЙ РЕГИСТРАЦИИ

По заявлению № 44745/11:670 от 4 декабря 2013 года

в отношении изолированного помещения с инвентарным номером 350/Д-7364, расположенного по адресу: Гомельская обл., г. Гомель, ул. Красноармейская 10/9, площадь - 28 кв.м., назначение - квартира, наименование - квартира №9

произведена государственная регистрация:

2.   перехода права собственности на изолированное помещение(форма собственности - частная), правообладатель - гражданин Республики Беларусь Самсонова Ирина Викторовна.

Приложения: нет

Примечания: нет

Свидетельство составлено 10 декабряя 2013 года

Регистратор Бобович О. А. ____________

(подпись)

Договор дарения

Город Гомель, Республика Беларусь.

Двадцать шестое декабря две тысячи тринадцатого года.

Мы, Самсонова Янина Олеговна, 12 июля 1935 года рождения, гражданка Республики Беларусь, место рождения: Республика Беларусь, Гомельская область, Добрушский район, г.Добруш, (паспорт НВ1210866 выдан 31 октября 2002 года Центральным РОВД города Гомеля, личный №4090681Н064РВ7), зарегистрированная по адресу: город Гомель, улица Красноармейская, дом 10, квартира 9, именуемый в дальнейшем «Даритель», и Самсонова Ирина Викторовна, 26 июля 1956 года рождения, гражданка Республики Беларусь, место рождения: Республика Беларусь, город Гомель (паспорт НВ1081142 выдан 22 февраля 2002 года Советским РОВД города Гомеля, личный №4220675Н052РВ0), зарегистрированный по месту жительства: город Гомель, улица Жукова, дом 32, квартира 48, именуемый в дальнейшем «Одаряемый», заключили между собой настоящий договор о нижеследующем:

. Даритель подарил (передал безвозмездно) сестре, а Одаряемый приняла в дар квартиру номер 9 (девять) с инвентарным номером 350/Д-138257, состоящий из одной жилой комнаты , общей площадью 29 кв.м., расположенной по улице Красноармейская в городе Гомеле, согласно выписке 375:860/11 из регистрационной книги о правах, ограничениях (обременениях) прав на изолированное помещение, выданной 16 декабря 2013 года Гомельским городским филиалом РУП «Гомельское агентство по государственной регистрации и земельному кадастру».

Указанная отчуждаемая квартира принадлежит Дарителю на основании договора купли-продажи, удостоверенного государственной нотариальной конторой Новобелицкого района города Гомеля 5 января 1993 года по реестру за № 15-713, на основании которого вышеуказанной территориальной организацией по государственной регистрации зарегистрирован переход доли в праве собственности на изолированное помещение, правообладатель - Самсонова Янина Олеговна , что удостоверяется свидетельством (удостоверением) 350/359-52 о государственной регистрации, составленным 29 января 2003 года,

. Даритель удостоверяет, что на момент подписания настоящего договора отчуждаемая квартира никому другому не продана, не заложена, не обещана в дарении, в споре и под запрещением не состоит, свободна от любых прав и притязаний со стороны третьих лиц, а также удостоверяет, что не является лицом, обязанным возмещать расходы, затраченные государством на содержание детей, находящихся на государственном обеспечении.

. Настоящий договор заключается с согласия администрации Железнодорожного района города Гомеля - решение от 20 декабря 2011 года № 741

. Содержание сделки, ее последствия, ответственность, права и обязанности, содержание ст. 543, 549, Гражданского Кодекса Республики Беларусь сторонам нотариусом разъяснены.

. Даритель вправе отменить договор дарения, если он переживет Одаряемого.

.Пользование отчуждаемым домом осуществляется «Одаряемым» с обязательным соблюдением единых правил и норм эксплуатации и ремонта жилищного фонда на условиях, установленных для домов государственного жилищного фонда и статьями 51,52 Жилищного кодекса Республики Беларусь.

. Дарителю Самсоновой Я.О. последствия настоящего договора дарения, включая прекращение прав собственности на даримый дом, разъяснены.

Даритель:____________________________________________________

. Договор дарения и основанный на нем переход прав подлежат государственной регистрации в ГГФ РУП «Гомельское агентство по государственной регистрации и земельному кадастру». Одаряемый приобретает право собственности на указанный дом после государственной регистрации перехода права собственности. С момента государственной регистрации права собственности Одаряемого, дом считается переданным от Дарителя к Одаряемому.

. По соглашению сторон право подачи заявления на государственную регистрацию настоящего договора и основанных на нем прав в Гомельском городском филиале РУП «Гомельское агентство по государственной регистрации и земельному кадастру» предоставляется Одаряемому.

. Договор может быть расторгнут в установленном законодательством порядке до регистрации перехода права собственности к Одаряемому.

. Расходы по составлению и изготовлению проекта настоящего договора и по его удостоверению, в том числе госпошлина, оплачиваются Дарителем.

. Настоящий договор составлен в трех экземплярах, один из которых хранится в делах нотариальной конторы, второй выдаются Одаряемому, третий - Дарителю.

ПОДПИСИ: _________________________________________________

______________________________________________________

Город Гомель. Республика Беларусь.

Двадцать шестое декабря две тысячи тринадцатого года

Настоящий договор удостоверен мной, Ярец Людмилой Васильевной, государственным нотариусом государственной нотариальной конторы Железнодорожного района города Гомеля.

Договор полностью прочитан и подписан сторонами в моем присутствии. Личность сторон установлена, их дееспособность проверена.

Документ, подтверждающие государственную регистрацию права собственности на недвижимое имущество на имя Самсонова Янина Олеговна проверен.

Настоящий договор и основанный на нем переход прав подлежат государственной регистрации в Гомельском городском филиале РУП «Гомельское агентство по государственной регистрации и земельному кадастру».

Зарегистрировано в реестре за № 11 - 510

Взыскано государственной пошлины 70000 рублей

Взыскан тариф за оказание платных услуг технического характера 10 500 рублей

Государственный нотариус

Факт, что Даритель не является обязанным лицом, проверен по его паспорту.

Факт родственных отношений проверен по предъявленным документам.

Государственный нотариус

.12.2011г.

Выдана для нотариального удостоверения сделки

ЕДИНЫЙ ГОСУДАРСТВЕННЫЙ РЕГИСТР НЕДВИЖИМОГО ИМУЩЕСТВА. ПРАВ НА НЕГО И СДЕЛОК С НИМ

Выписка № 375:860/11 из регистрационной книги о правах,

ограничениях (обременениях) прав на изолированное

помещение

Гомельский городской филиал РУП «Гомельское городское агентство по государственной регистрации и земельному кадастру»

г.Гомель, ул.Полесская, 196

Сведения об изолированном помещении

Инвентарный номер 350/D-138223

Адрес: Гомельская обл., г. Гомель, ул. 50 лет БССР 31/120

Общая площадь (кв.м): 62

Число комнат: 3

Назначение: квартира

Дата государственной регистрации создания: 15.05.1968

Дата государственной регистрации последнего изменения: 04.12.2013

Право собственности

(собственность одного лица)

Идентификационные сведения о правообладателе: Рыжков Николай Николаевич, дата рождения 22.06.1955, идентификационный номер 4220675Н052РВ0, гражданство - Республика Беларусь, Гомельская обл., г. Гомель, ул. 50 лет БССР 31/120

Доля: 1/1

Дата государственной регистрации: 10.12.2013 10:49:00

Основание государственной регистрации: Договор приватизации (Государственная нотариальная контора Железнодорожного района г. Гомеля) от 26.12.2011 №11-510

Актуальные отметки

Нет

Примечания

После перепланировки жилая площадь равна 30 кв. м, общая - 62 м.кв. Дата проведения последней технической инвентаризации (проверки характеристик) недвижимого имущества 04.12.2011г. Одноквартирный жилой дом.

__16.12.2013 11:12:23___

(Дата и время выдачи выписки)

Регистратор __________________ _______________________________

(Подпись) (Фамилия И.О)

Выдана для нотариального удостоверения сделки

ЕДИНЫЙ ГОСУДАРСТВЕННЫЙ РЕГИСТР НЕДВИЖИМОГО ИМУЩЕСТВА. ПРАВ НА НЕГО И СДЕЛОК С НИМ

Выписка № 375:860/11 из регистрационной книги о правах,

ограничениях (обременениях) прав на изолированное

помещение

Гомельский городской филиал РУП «Гомельское городское агентство по государственной регистрации и земельному кадастру»

г.Гомель, ул.Полесская, 196

Сведения об изолированном помещении

Инвентарный номер 350/D-138223

Адрес: Гомельская обл., г. Гомель, ул. 50 лет Красноармейская 10/9

Общая площадь (кв.м): 29

Число комнат: 1

Назначение: квартира

Дата государственной регистрации создания: 15.05.1956

Дата государственной регистрации последнего изменения: 04.12.2013

Право собственности

(собственность одного лица)

Идентификационные сведения о правообладателе: Самсонова Ирина Викторовна, дата рождения 22.06.1956, идентификационный номер 4220675Н052РВ0, гражданство - Республика Беларусь, Гомельская обл., г. Гомель, ул. Ленинградская 10/9

Доля: 1/1

Дата государственной регистрации: 10.12.2013 10:49:00

Основание государственной регистрации: Договор дарения (Государственная нотариальная контора Железнодорожного района г. Гомеля) от 26.12.2011 №11-510

Актуальные отметки

Нет

Примечания

После перепланировки жилая площадь равна 15,2 кв. м, общая - 29 м.кв. Дата проведения последней технической инвентаризации (проверки характеристик) недвижимого имущества 04.12.2011г. Одноквартирный жилой дом.

__16.12.2013 11:12:23___

(Дата и время выдачи выписки)

Регистратор __________________ _______________________________

(Подпись) (Фамилия И.О)

СПРАВКА

о месте жительства и составе семьи

Выдана гражданину(ке): Рыжкову Николаю Николаевичу

(фамилия, имя, отчество обратившегося за справкой)

в том, что он (она) действительно проживает (зарегистрирован(а) по месту жительства по адресу: г. Гомель ул. 50 лет БССР 131/120

Зарегистрирован(а) по месту жительства или месту пребывания с 03.02.1983

Занимаемая площадь общая 62 кв. метров, № лицевого счета 4378934567

Жилое помещение является квартира

(правовой статус жилого помещения - вид жилищного фонда, а также: для жилых помещений государственного фонда: жилое помещение социального пользования, служебное жилое помещение, жилое помещение в специальном доме, жилое помещение в специальном служебном фонде, жилое помещение в общежитии)

В жилом помещении также зарегистрированы по месту жительства следующие лица:

№ п/п

Фамилия, имя, отчество

Год рождения

Вид родства по отношению к лицу, обратившемуся за выдачей справки, либо указание на отсутствие родственных отношений

1

Рыжков Николай Николаевич

22.06.1955

владелец


Нанимателем (собственником) квартиры является Рыжков Николай Николаевич

(фамилия, имя, отчество)

Справка действительна в течение шести месяцев с даты ее выдачи.

Руководитель организации либо руководитель соответствующего структурного подразделения

___________________________________

(должность, подпись)                           (И.О.Фамилия)

Паспортист _____________________________      _________________

(подпись)                                               (И.О.Фамилия)

Бухгалтер ______________________________       _________________

(подпись)                                               (И.О.Фамилия)

СПРАВКА

о месте жительства и составе семьи

Выдана гражданину(ке): Самсоновой Ирине Викторовне

(фамилия, имя, отчество обратившегося за справкой)

в том, что он (она) действительно проживает (зарегистрирован(а) по месту жительства по адресу: г. Гомель Красноармейская 10/19

Зарегистрирован(а) по месту жительства или месту пребывания с 03.02.1983

Занимаемая площадь общая 29 кв. метров,    № лицевого счета 879456743

Жилое помещение является квартира

(правовой статус жилого помещения - вид жилищного фонда, а также: для жилых помещений государственного фонда: жилое помещение социального пользования, служебное жилое помещение, жилое помещение в специальном доме, жилое помещение в специальном служебном фонде, жилое помещение в общежитии)

В жилом помещении также зарегистрированы по месту жительства следующие лица:

№ п/пФамилия, имя, отчествоГод рожденияВид родства по отношению к лицу, обратившемуся за выдачей справки, либо указание на отсутствие родственных отношений




1

Самсонова Ирина Викторовна

22.06.1956

владелец


Нанимателем (собственником) квартиры является Самсонова Ирина Викторовна

(фамилия, имя, отчество)

Справка действительна в течение шести месяцев с даты ее выдачи.

Руководитель организации либо руководитель соответствующего структурного подразделения

__________________                           _________________

(должность, подпись)                           (И.О.Фамилия)

Паспортист _____________________________      _________________

(подпись)                                               (И.О.Фамилия)

Бухгалтер ______________________________       _________________

(подпись)

(И.О.Фамилия)

СПРАВКА ОБ УПЛАТЕ ПОДОХОДНОГО НАЛОГА С ФИЗИЧЕСКИХ ЛИЦ, ЗЕМЕЛЬНОГО НАЛОГА И

НАЛОГА НА НЕДВИЖИМОСТЬ

Утверждена

постановлением МНС

от 02.12.2005 № 123

Штамп инспекции МНС <*>

СПРАВКА № 1

Настоящая справка выдана Рыжкову Николаю Николаевичу

(фамилия, имя, отчество физического

__________________________________________________________

лица, полное наименование юридического лица)

адрес места жительства, места нахождения: г. Гомель ул. 50 лет БССР 31/120

в том, что у него (нее) отсутствует задолженность в отношении квартиры, находящейся по адресу г Гомель ул. 50 лет БССР 31/120

(вид отчуждаемого объекта недвижимого имущества и место его нахождения)

по уплате подоходного налога с физических лиц, земельного налога и

налога на недвижимость.

Вид сделки об отчуждении договор мены

Действительна в течение 30 календарных дней со дня выдачи.

Начальник (заместитель начальника)

инспекции МНС <*> по __________ _________ ___________________

(подпись) (инициалы, фамилия)

М.П.

"__" __________ 200_ г.

-------------------------------

<*> Министерство по налогам и сборам Республики Беларусь.

СПРАВКА ОБ УПЛАТЕ ПОДОХОДНОГО НАЛОГА С ФИЗИЧЕСКИХ ЛИЦ, ЗЕМЕЛЬНОГО НАЛОГА И

НАЛОГА НА НЕДВИЖИМОСТЬ

Утверждена

постановлением МНС

от 02.12.2005 № 123

Штамп инспекции МНС <*>

СПРАВКА № 2

Настоящая справка выдана Самсоновой Ирине Викторовне

(фамилия, имя, отчество физического

____________________________________________________________

лица, полное наименование юридического лица)

адрес места жительства, места нахождения: г. Гомель ул. Красноармейская 10/9

в том, что у него (нее) отсутствует задолженность в отношении квартиры, находящейся по адресу г Гомель ул. Красноармейская 10/9

(вид отчуждаемого объекта недвижимого имущества и место его нахождения)

по уплате подоходного налога с физических лиц, земельного налога и

налога на недвижимость.

Вид сделки об отчуждении договор мены

Действительна в течение 30 календарных дней со дня выдачи.

Начальник (заместитель начальника)

инспекции МНС <*> по __________ _________ ___________________

(подпись) (инициалы, фамилия)

М.П.

"__" __________ 200_ г.

-------------------------------

<*> Министерство по налогам и сборам Республики Беларусь.

Угловой штамп органа регистрации Форма Ф-ст. _____________ Для представления в _______________

"___"______________ 200__ г. (место требования)

СПРАВКА

о стоимости объекта недвижимости

Справка выдана о том, что оценочная

(оценочная, действительная и другие)

стоимость трехкомнатной квартиры

(указать объект недвижимости или долю объекта недвижимости)

расположенного по адресу: область Гомельская район ____________

населенный пункт Гомель улица 50 лет БССР

дом 31 корпус ______ квартира 120 составляет 70400 долл.

по состоянию на "05" декабря 2013г.

Примечание: _________________________________________________

_____________________________________________________________

Уполномоченное должностное лицо ___________ _________________

(подпись) (И.О.Фамилия)

М.П.

Угловой штамп органа регистрации Форма Ф-ст. _____________ Для представления в _______________

"___"______________ 200__ г. (место требования)

СПРАВКА

о стоимости объекта недвижимости

Справка выдана о том, что оценочная

(оценочная, действительная и другие)

стоимость однокомнатной квартиры

(указать объект недвижимости или долю объекта недвижимости)

расположенного по адресу: область Гомельская район ____________

населенный пункт Гомель улица Красноармейская

дом 10 корпус ______ квартира 9 составляет 43600 долл.

по состоянию на "05" декабря 2013г.

Примечание: _________________________________________________

_____________________________________________________________

Уполномоченное должностное лицо ______________ ______________

(подпись) (И.О.Фамилия)

М.П.

ДОГОВОР МЕНЫ (МЕЖДУ ФИЗИЧЕСКИМИ ЛИЦАМИ)

ДОГОВОР МЕНЫ № 55

г. Гомель "06" декабря 2013 г.

Рыжков Николай Николаевич, именуемый в

(Ф.И.О.)

дальнейшем Сторона 1, с одной стороны, и

Самсонова Ирина Викторовна, именуемая в

(Ф.И.О.)

в дальнейшем Сторона 2, с другой стороны, вместе именуемые

в дальнейшем Стороны заключили настоящий Договор о следующем :. ПРЕДМЕТ ДОГОВОРА

.1. Сторона 1 передает в собственность Стороне 2 трехкомнатную квартиру (наименование вещи, имущества) стоимостью семьдесят тысяч четыреста (70400) долл. (цифрами и прописью)

.2. Сторона 2 передает в собственность Стороне 1 однокомнатную квартиру (наименование вещи, имущества) стоимостью сорок три тысячи шестьсот (43600) долл. (цифрами и прописью)

.3. Передача обмениваемых вещей (имущества) происходит одновременно в момент заключения Договора.

.4. Право собственности на обмениваемые вещи (имущество) переходит к сторонам одновременно после исполнения обязательств передать соответствующие вещи (имущество) обеими Сторонами.. ОБЯЗАТЕЛЬСТВА СТОРОН

.1. Каждая из Сторон обязана передать в собственность другой Стороне вещь (имущество) в соответствии с разделом I настоящего Договора.. РАЗРЕШЕНИЕ СПОРОВ

.1. Все споры и разногласия, которые могут возникать из настоящего Договора или в связи с ним, стороны будут пытаться разрешить путем переговоров.

.2. В случае, если стороны не придут к соглашению, споры разрешаются в судебном порядке в соответствии с действующим законодательством Республики Беларусь.. СРОК ДЕЙСТВИЯ ДОГОВОРА

.1. Договор вступает в силу с момента подписания и действует до момента исполнения сторонами своих обязанностей.

.2. Договор может быть расторгнут по взаимному согласию сторон.

.3. Односторонний отказ от исполнения обязательств по настоящему договору не допускается.. ДОПОЛНИТЕЛЬНЫЕ УСЛОВИЯ

.1. Договор составлен в двух экземплярах, имеющих одинаковую силу, по одному экземпляру для каждой из сторон.

.2. Все изменения и дополнения к настоящему договору являются его неотъемлемой частью и действительны, если они совершены в письменной форме и подписаны каждой из сторон.. АДРЕСА И РЕКВИЗИТЫ СТОРОН

СТОРОНА 1: г. Гомель ул. 50 лет БССР 31/120

СТОРОНА 2: г Гомель ул. Красноармейская 10/9

ПОДПИСИ СТОРОН:

СТОРОНА 1 СТОРОНА 2

___________________ _____________________

.3 Документы, необходимые для нотариального оформления продажи комнаты в двухкомнатной квартире гражданину США

Производится продажа комнаты в двухкомнатной квартире.

В двухкомнатной квартире проживают Павлов К.Н. (собственник), находящийся в местах лишения свободы и его брат Павлов Н.Н,

Для нотариального отчуждения необходимы:

-       договор купли-продажи (правоустанавливающий документ);

-       регистрационное удостоверение или свидетельство о государственной регистрации права на недвижимое имущество, технический паспорт квартиры; правоустанавливающий документ;

-       выписка из регистрационной книги о правах, ограничениях на изолированное помещение, капитальное строение, административное помещение из Единого государственного регистра на недвижимость. Прав на него и сделок с ним с отметкой нотариальной конторы об отсутствии арестов и запрещений ( срок действия - 1 месяц с момента изготовления);

-       справка о составе семьи;

-       паспорт собственника объекта;

-       доверенность, удостоверенная начальником исправительной колонии (от собственника, находящегося в местах лишения свободы);

-       согласие всех совершеннолетних, проживающих в квартире (с/л ребенок)

-       справка налогового органа по месту нахождения квартиры - об отсутствии задолженности перед бюджетом по уплате подоходного налога на недвижимость и земельного налога;

-       паспорт, вид на жительство и справка о наличии источника законного существования на территории РБ (для работающего - справка с места работы; для пенсионера - справка органов соцобеспечения о получении пенсии на территории РБ; для предпринимателей - справка налоговых органов о том, осуществляется хозяйственная деятельность на территории РБ) для покупателя.

5. Вступление в наследство

У гражданина С. Был один ребёнок от первого брака и двое детей от второго. Дочь от второго брака умерла за несколько лет до смерти гражданина С., оставив двоих детей.

Вопрос: Кто и в каком размере призывается на вступление в наследство?

Ответ: Наследники по закону призываются к наследованию в порядке очередности, предусмотренной статьями 1057 - 1063 настоящего Кодекса. Согласно статье 1057 дочь от первого брака является наследником первой очереди, значит она получит ½ часть наследства, а внуки наследуют по праву представления, следовательно каждому из внуков достанется по ¼ части наследства.

Заключение

В данной курсовой работе мы ознакомились и произвели оценку недвижимости. Цены были установлены в соответствии с рынком продажи недвижимости. Составлен перечень документов для совершения сделок купли-продажи и обмена недвижимостью. Осуществлено оформление документов по одной из сделок.

Сделки, связанные с недвижимостью имеют свои особенности:

. Обязательна письменная форма заключения сделки;

. Сделки совершаются через нотариуса;

. Учитываются интересы всех лиц, имеющих права на предмет сделки;

. Обязательна государственная регистрация сделки и прав собственности на недвижимость.

Список использованной литературы

1. Указ Президента Республики Беларусь от 9 января 2006 г. № 15 «О риэлтерской деятельности в Республике Беларусь».

. Гражданский кодекс Республики Беларусь.

. Жилищный кодекс Республики Беларусь.

. Кодекс Республики Беларусь о земле.

. С.Н. Максимов «Основы предпринимательской деятельности на рынке недвижимости».

Похожие работы на - Планировка помещений жилого фонда, ее влияние на рынок недвижимости

 

Не нашли материал для своей работы?
Поможем написать уникальную работу
Без плагиата!
Без нейросетей!