Оштукатуривание бетонных поверхностей и облицовка стен керамической плиткой, покраска потолка ванной комнаты

  • Вид работы:
    Дипломная (ВКР)
  • Предмет:
    Строительство
  • Язык:
    Русский
    ,
    Формат файла:
    MS Word
    1,11 Мб
  • Опубликовано:
    2015-07-08
Вы можете узнать стоимость помощи в написании студенческой работы.
Помощь в написании работы, которую точно примут!

Оштукатуривание бетонных поверхностей и облицовка стен керамической плиткой, покраска потолка ванной комнаты

Содержание

Введение

1. Оштукатуривание бетонных стен ванной комнаты

. Технологическая часть

.1 Материалы для оштукатуривания стен

.2 Чертеж

. Облицовка керамической плиткой стен ванной комнаты

.1 Чертеж

. Технология окраски потолка ванной комнаты

4.1 Материал

. Экономическая часть

.1 Требования безопасности перед началом работ

.2 Требования безопасности во время работы

.3 Требования безопасности по окончании работ

Заключение

Литература

Введение

Тема экзаменационной работы «оштукатуривание бетонных поверхностей и облицовка стен керамической плиткой, а также покраска потолка ванной комнаты».

Сегодня, ванная - такая же полноценная комната как, например, гостиная. Это единственное место в квартире, где мы можем остаться наедине с самим собой, уединиться со своими мыслями, расслабиться, а иногда, наоборот, взбодриться. Всегда приятнее, когда комната имеет оригинальный дизайн и красивый интерьер. В связи с этим, актуальность ремонта ванной комнаты растет с каждым днем.

При оштукатуривании стен в ванной комнате необходимо соблюдать углы ровно 90°, при выборе способа оштукатуривании нужно учитывать постоянную влажность, данные правила должен соблюдать каждый мастер. Облицовка стен в ванной комнате керамической плиткой очень нужна, так как плитка защищает поверхность от воздействия влаги, что является очень важным фактором, а также мойка плитки не составляет никакого труда. При покраске потолка в ванной комнате важно правильно подобрать материал, так как в ванной постоянно повышенная влажность.

Экзаменационная работа посвящена проблеме описания штукатурных, плиточных и малярных работ в ванной комнате. Названная проблема определяет объект и предмет исследования.

Объектом экзаменационной работы является процесс отделочных работ в ванной комнате.

Предметом исследования является технология отделки ванной комнаты: оштукатуривание стен, облицовка стен керамической плиткой и покраска потолка в ванной комнате.

Главная цель работы - описать технологию штукатурных, облицовочных и малярных работ в ванной; определить необходимые инструменты и материалы; продумать организацию рабочего места и осветить тему охраны труда при ремонтных работах в ванной комнате.

Задачи экзаменационной работы:

)        Изучение специальной литературы по теме исследования;

)        Знакомство с существующими способами оштукатуривания, окраски потолков и облицовки стен в ванной комнате;

)        Описать инструменты и материалы, которые понадобятся для выполнения отделки в ванной;

)        Определить необходимый материал и произвести его расчет;

)        Разработать технологическую карту выполнения штукатурных, малярных и плиточных работ в ванной комнате.

)        Систематизировать сведения по охране труда при проведении штукатурных, плиточных, малярных работ;

Для достижения поставленных задач в работе используются следующие методы исследования:

o   Изучение специальной литературы;

o   Изучение технологического процесса отделочных работ;

o   Знакомство с современными технологиями отделки помещений;

o   Использование в собственной практике технологии отделки.

Практическая значимость работы заключается в детальной разработке технологий выполнения отделочных работ в ванной, это поможет уменьшить сроки их выполнения и увеличить эффективность работы.

1. Оштукатуривание бетонных стен ванной комнаты

оштукатуривание стена керамический малярный

Общие сведения - Отделочные процессы многообразны, для их выполнения необходимы неукоснительное соблюдение технологических процессов, правильное применение соответствующих материалов, умение пользоваться инструментом и оборудованием.

Штукатурные работы выполняются для создания ровных или специально обработанных поверхностей. Штукатурка защищает основание от влаги, выветривания, огня, придает звукоизоляционные и теплоизоляционные свойства поверхности.

Штукатурку подразделяют по способу нанесения на мокрую, или монолитную, (строительные смеси (на основе цемента, гипса, извести)) и сухую (ГКЛ).

Монолитная штукатурка - создается нанесением на обрабатываемую поверхность штукатурного раствора. Преимущество монолитной штукатурки - сплошная связь с оштукатуриваемой поверхностью, при которой закрываются щели, имеющиеся в конструкции, и не образуются зазоры между конструкцией и штукатуркой, обеспечивается бесшовность, возможность создания поверхности любой фактуры и применение ее во влажных помещениях. Недостатки монолитной штукатурки - большая трудоемкость выполнения, продолжительный срок твердения и высыхания раствора. В зависимости от составов применяемых растворов и видов обработки поверхности монолитная штукатурка может быть обычной и декоративной фактурной.

Сухая штукатурка - облицовка обрабатываемой поверхности облицовочными листами (Гипсокартонные листы - ГКЛ). Сухая штукатурка менее трудоёмка чем монолитная; ее выполнение не связано с потерей времени на твердение и сушку. Однако сухая штукатурка применима только для отделки внутренних поверхностей зданий в помещениях с сухим и нормальным влажностным режимом.

Обычные штукатурки с использованием известковых, цементных, гипсовых, известково-цементных и известково-гипсовых растворов применяют для внутренней и наружной (исключая гипсовые растворы) отделки зданий. Обыкновенную штукатурку по качеству отделки делят на простую, улучшенную и высококачественную.

В декоративные штукатурки добавляют цветные пигменты и наполнители разных фракций, что придает декоративность лицевому слою. Эти штукатурки используют в основном для отделки фасадов зданий.

Простую штукатурку выполняют в помещениях, где не требуется тщательная отделка поверхностей. Она состоит из двух слоев - обрызга и грунта и применяется для сглаживания неровностей строительных конструкций. Накрывочный слой не наносят, а затирают поверхность грунта.

Улучшенную штукатурку применяют обычно при отделке жилых помещений, а также для оштукатуривания фасадов зданий.

Высококачественную штукатурку применяют в зданиях, к отделке которых предъявляют повышенные требования. Такая штукатурка состоит из слоя обрызга, одного или нескольких слоев грунта, чтобы получить строго вертикальные или горизонтальные плоскости, и накрывки. Выполняют штукатурку с предварительным провешиванием поверхностей и установкой маяков.

Специальная штукатурка подразделяется на разновидности в зависимости от целей ее устройства. Среди множества форм такой штукатурки чаще всего применяют звукопоглощающую, гидроизоляционную, рентгенозащитную и кислотостойкую. Специальные свойства штукатурки достигаются добавлением различных добавок в смеси (жидкое стекло, барит, керамзит, кварцит)

Так как у нас жилое помещение, а конкретно ванная комната в квартире, нам потребуется устройство специальной улучшенной штукатурки, не потребуется декоративной штукатурки, так как в дальнейшем декоративность стенам мы придадим с помощью керамической плитки. В ванной комнате, прежде всего, важна влагостойкость и способность поверхностей дышать - штукатурка должна обладать достаточной паропроницаемостью.

Требования строительных норм и правил штукатурных и лепных работ согласно СНиП 3.04.01-87:

При оштукатуривании стен из кирпича при температуре окружающей среды 23 °С и выше поверхность перед нанесением раствора необходимо увлажнять.

Улучшенную и высококачественную штукатурку следует выполнять по маякам, толщина которых должна быть равна толщине штукатурного покрытия без накрывочного слоя.

При устройстве однослойных покрытий их поверхность следует разравнивать сразу же после нанесения раствора, в случае применения затирочных машин - после его схватывания.

При устройстве многослойного штукатурного покрытия каждый слой необходимо наносить после схватывания предыдущего (накрывочный слой - после схватывания раствора).

2. Технологическая часть

Алгоритм:

. подготовка поверхности под оштукатуривание;

. провешивание поверхности;

. нанесение штукатурного раствора;

.        разравнивание нанесенного раствора;

.        затирка

.        Контроль качества

Таблица 1. Инструменты

Название, эскиз

Назначение

 Штукатурная лопатка: ГОСТ 9533-81

Для набрасывание раствора

 Правило: ГОСТ 25782-90

Для разравнивания раствора

 уровень строительный: ГОСТ 9416-83

Для контроля отклонений

  терка и полутерок: ГОСТ 25782-90

Для нанесения раствора, разравнивания и затирки

 сокол: ГОСТ 25010-81

Для хранения необходимого количества раствора

 Валик меховой ГОСТ 10831-87

Для нанесения грунтовки

 Металлическая щетка ГОСТ28638-90

Для очистки поверхности

 Перфоратор ГОСТР 51246-99

Для нанесения насечек


.1 Материалы для оштукатуривания стен

Для оштукатуривании стен нам понадобиться грунтовка и цементная штукатурная смесь.

В большинстве случаев стены в ванных комнатных бетонные, и нам понадобиться грунтовка глубокого проникновения. Мы выберем Старатели Бетон-контакт. «Бетон-контакт» применяется для упрочнения, обеспыливания и предварительной подготовки не впитывающих поверхностей (монолитный бетон) под отделочные работы по выравниванию поверхности штукатурками.

Старатели «Бетон-контакт» способствует улучшению сцепляемости наносимых материалов с поверхностью. Быстросохнущий, что позволяет производить дальнейшие работы уже через 2 часа. Имеет маленький расход на 1кв/м расходуется 0,2кг бетон-контакта. Не требует приготовления, полностью готов к использованию.

Штукатурную смесь мы выбираем Старатели «цементно-песчанная универсальная» Применяется для наружных работ, внутрипомещений любой влажности, а такжевнеотапливаемых помещениях. Предназначена как для механизированного так и для ручного нанесения.

Средний расход при нанесении 11-12 кг на 1 кв.м при слое 10 мм.

Упаковка и хранение: Сухая смесь поставляется в прочных крафт-мешках по 30 кг. Гарантийный срок хранения в сухих условиях на поддонах в оригинальной неповрежденной упаковке 12 мес. со дня изготовления (см. на мешке).

.2 Чертеж

Рисунок 1

3. Облицовка керамической плиткой стен ванной комнаты

Общие сведения - облицовочные работы - это вид строительно-отделочных работ. Облицовка - это придание поверхностям и конструкциям выразительный эстетический вид, путём монтажа облицовочных материалов. Монтаж производится при помощи клея, раствора, смеси или каркаса. Также, облицовочные работы выполняют функцию защиты поверхностей и конструкций от воздействий окружающей среды, механических повреждений, действия отрытого огня, химических веществ.

Облицовочные покрытия при необходимости можно вымыть или продизенфицировать химическими средствами, что дает облицовки хорошие санитарно-гигиенические условия.

Облицовочные покрытия делятся на наружные (фасады зданий, цоколь), так и внутренние (стены, полы, потолки) облицовочные покрытия. Они выполняются после общестроительных работ, параллельно с малярными работами.

Облицовочные материалы выпускаются в виде листов, плит и плиток. Известны следующие виды облицовочных материалов: керамические плиты и плитки, керамогранит, декоративный камень, асбестоцементные облицовочные листы, бумажно-слоистый пластик, стемалит, гипсокартон и так далее. Эти материалы отличаются отличными эксплуатационными и декоративными качествами. Самым популярным облицовочным материалом является традиционная керамическая плитка.

В нашем случае идеально подходит самый популярный вид облицовки - керамическая плитка, так как нам необходимо защитить основание стены от влаги и образования грибка, также придать ванной комнате эстетический вид стен.

Керамическая плитка покрыта «глазурью». Само слово «глазурь» образовано от немецкого слова «glas», означающее «стекло». Поверхность глазурованной плитки, действительно, покрыта тонким слоем цветного стекла, которое и придаёт ей характерные свойства.

Глазурь эта может быть и разноцветной, и прозрачной, и матовой, и глянцевой. Она даёт возможность изобразить любой рисунок на поверхности плитки.

Покрытие плитки глазурью защищает её поверхность от влаги и делает материал водонепроницаемым.

Конструкция облицовки стен состоит обычно из трех элементов подготовки или основания, прослойки и облицовочного покрытия:

·        Подготовка - выравнивающий слой, образующий жесткую поверхность для крепления облицовочных материалов на цементно-песчаном растворе или мастиках.

·        Прослойка - промежуточный слой между подготовкой и облицовочным покрытием, представляющий собой состав из раствора или мастики, который скрепляет облицовочные плитки с подготовкой.

·        Облицовочное покрытие - наружный элемент облицовки, защищающий конструкцию от воздействия среды, придающий ей декоративность и санитарно-гигиенические свойства.

В плиточных облицовках вертикальных поверхностей различают следующие элементы покрытия:

·        плинтус - нижний ряд фасонных плиток или ряд плиток, выступающий из общей плоскости облицовки и образующий переход от пола к стене;

·        цоколь - часть плоской облицовки, заключенная между плинтусом и общей плоскостью облицовки, либо между полом и облицовкой (при отсутствии плинтуса) - цоколь выступает из общей плоскости облицовки или выделяется по цвету;

·        основное поле облицовки - поверхность покрытия из рядовых плиток (однотонных или разноцветных) одного или нескольких размеров, занимающая основную часть облицовки;

·        фриз - часть облицовки, расположенная непосредственно над основным полем облицовки, состоящая из одного или нескольких рядов плиток, отличающихся от нее рисунком или цветом;

·        карниз - верхняя часть облицовки из фигурных или плоских плиток с закругленной (покрытой глазурью) верхней гранью.

Кроме указанных элементов облицовки различают выступающие и внутренние углы, образуемые фасонными или рядовыми плитками, и встроенные детали, которые монтируют в облицовку в процессе укладки плиток.

На стену керамическую плитку можно положить несколькими способами: "шов в шов", "в разбежку" и "по диагонали".

·        "Шов в шов". При таком способе укладки плитки образуют ряды в горизонтальном и вертикальном направлениях. Плитка должна быть с наименьшими погрешностями в размерах. Укладку плитки можно вести и горизонтальными, и вертикальными рядами.

Рисунок 2

·       
"В разбежку". В этом случае каждая плитка верхнего ряда кладется так, чтобы ее середина оказалась точно над швом между плитками нижнего ряда. "В разбежку" плитку можно укладывать только горизонтальными рядами. Класть плитку при этом значительно легче, небольшие отклонения от вертикали не так заметны, как при способе «шов в шов».

Рисунок 3

·        "По диагонали". Наиболее трудоемкий способ укладки, обычно применяемый при облицовке больших площадей. Швы между плитками образуют перпендикулярные линии. По отношению к полу или стенам линии швов должны быть под углом 45 градусов.

Рисунок 4

Технологическая часть.

Алгоритм.

1.      Подготовка поверхности

.        Устройство гидроизоляции

.        Установка направляющей рейки

.        Укладка первого и последующих рядов плитки

.        Затирка швов

.        Очистка поверхности с контролем качества

Таблица 2. Инструменты:

Название, эскиз

Назначение

 Зубчатый шпатель ГОСТ 10778-83

Для нанесения плиточного клея

 Резиновая киянка: ГОСТ 19645-74

Для пристукивания плитки

 уровень строительный: ГОСТ 9416-83

Для контроля отклонений

  Миксер строительный: ГОСТ 16381-77

Для приготовления раствора

 Шпатель резиновый ГОСТ 10778-83

Для затирки межплиточных швов

 Валик меховой ГОСТ 10831-87

Для нанесения грунтовки и гидроизоляции

 Плиткорез ручной

Для резки керамической плитки

 Дрель ГОСТ 10084-73

Для проделывание отверстий в плитке


Материалы:

В первую очередь мы наносим гидроизоляцию, так как у нас ванная комната, и мы выбрали Обмазочную гидроизоляцию Ceresit CR 166. Эластичная гидроизоляционная масса.

Свойства

• паропроницаемая;

• эластичная;

• морозостойкая;

• перекрывает трещины раскрытием 0,75 мм;

• устойчива к солевой и щелочной агрессии;

• легко наносится кистью;

• пригодна для наружных и внутренних работ;

• экологически безопасна.

Область применения

Гидроизоляционная масса CR 166 предназначена для устройства эластичных гидроизоляционных покрытий на незасоленных минеральных (не содержащих гипс) основаниях, в т.ч. подверженных деформациям, внутри и снаружи зданий:

• для гидроизоляции фундаментов, гидротехнических сооружений, террас, балконов, элементов зданий, находящихся ниже уровня земли и т.п.;

• для гидроизоляции ванн открытых и крытых бассейнов и резервуаров для воды хозяйственно-питьевого назначения глубиной до 50 м;

• для защиты бетонных и железобетонных сооружений от карбонизации (на пирсах, подпорных стенках, тоннелях, мостах, градирнях, опорах и т.д.).

Обладает высокой химической стойкостью к щелочам, удобрениям (при pH > 4,5), гидравлическому маслу, 10%-ному раствору хлорида натрия, гипохлориту натрия, карбонату натрия (соде), сахару, 10%-ному раствору аммиака, ацетону.

При наличии гидростатического напора гидроизоляция должна работать на прижим. Гидроизоляционное покрытие следует защитить от механических повреждений плиточной облицовкой или не содержащими гипс штукатуркой или стяжкой.

Рекомендации

Работы следует выполнять в сухих условиях при температуре основания от +5 до +30°C. В течение 3 суток после нанесения материал следует предохранять от пересыхания, дождя, ветра, прямых солнечных лучей и мороза.

Срок хранения

В сухих условиях, на поддонах, в оригинальной неповрежденной упаковке, при температуре от +5 до +35°С (для жидкого компонента Б) - не более 12 месяцев со дня изготовления.

Предохранять компонент Б от замораживания!

Технические характеристики:

Соотношение компонентов: А: Б = 2,4: 1 по массе

Время потребления: не менее 1 часа

Температура применения: от +5 до +30°C

Водонепроницаемость: не менее 0,6 МПа

Адгезия к бетону в возрасте 28 суток: не менее 0,8 МПа

Устойчивость к дождю: через 3 суток

Готовность к креплению плиточных облицовок: через 3 суток

Готовность к гидравлическим нагрузкам: через 7 суток

Таблица 3. Расход гидроизоляционной массы CR 166:

Условия применения

Толщина покрытия, мм

Расход, кг/м2

Высокая влажность:

2.0

Около 3,0

Вода без давления:

2.5

Около 4,0

Вода под давлением до 0,05 МПа:

3,0 (максимум)

около 5,0


Упаковка

Гидроизоляционная масса CR 166 поставляется в комплекте из 2-х упаковок общим весом по 34 кг:

Компонент А (сухая смесь) в многослойных бумажных мешках по 24 кг.

Компонент Б (полимерная дисперсия) в пластиковых канистрах по 10 кг

Далее мы выбираем плиточный клей, необходимо учитывать что у нас ванная комната и у нас постоянная повышенная влажность, в связи с этим выбираем Ceresit СМ 9.

Свойства

• водостойкий;

• устойчив к сползанию плитки;

• пригоден только для внутренних работ;

• экологически безопасен.

Область применения

Клей СМ 9 предназначен для крепления керамических плиток (глазурованных и терракоты) с водопоглащением не менее 3% и размером до 30х30 см на недеформирующихся минеральных основаниях (таких как бетон, цементные стяжки, цементные и цементно-известковые штукатурки), на стенах и полах только внутри зданий, включая помещения с постоянной влажностью.

Технические характеристики:

Количество воды затворения: около 5,0 л на 25 кг сухой смеси

Время потребления: не менее 2 часов

Температура применения: от +5 до +30°C

Открытое время: не менее 10 минут

Время корректировки: не менее 15 минут

Сползание плитки: не более 0,5 мм

Заполнение швов: через 48 часов

Ориентировочный расход сухой смеси CM 9 в зависимости от размера плитки:

Таблица 4

Длина стороны плитки, см

Размер зуба шпателя, мм

Расход, кг/м2

До 10

4

Около 2,0

До 15

6

Около 2,7

До 20

8

Около 3,2

До 30

10

Около 4,2


Упаковка

Сухая смесь Ceresit СМ 9 поставляется в многослойных бумажных мешках по 25 кг.

Последний материал, который нам понадобиться для завершения облицовки нашей ванной комнаты это - затирочная смесь, выбирать её необходимо с учетов постоянной влажности и возможностью мыться поверхности. И нам идеально подходить затирочная смесь Ceresit СЕ 40 Aquastatic это цветная водоотталкивающая затирка с противогрибковым эффектом для швов плиточных облицовок шириной до 10 мм.

Свойства

• выпускается 32 цветов, включая белый;

• обладает усиленным противогрибковым эффектом (формула Trio Protection "Micro Protect");

• водоотталкивающая;

• устойчива к загрязнению, легко моется;

• эластичная, устойчива к деформациям;

• обладает высокой стойкостью к истиранию;

• обладает высокой стойкостью цвета;

• идеально гладкая;

• водо- и морозостойкая;

• может применяться на полах с подогревом;

• пригодна для внутренних и наружных работ;

• экологически безопасна.

Область применения

Затирка CE 40 предназначена для заполнения швов керамических, каменных (в том числе мраморных) и стеклянных облицовок на полах и стенах внутри и снаружи зданий, при ширине шва до 10 мм. Благодаря высокой эластичности затирка может применяться на деформирующихся основаниях (древесностружечных плитах, гипсокартоне и др.) и основаниях, подверженных температурным колебаниям (полах с подогревом, террасах, ваннах открытых бассейнов и т.п.).

Благодаря эффекту «Aquastatic» (гидрофобным свойствам) и формуле «MicroProtect» (высокой стойкости к грибку и плесени) затирка CE 40 оптимальна для применения в помещениях с постоянной влажностью: ванных комнатах, душевых, кухнях и т.п.

Технические характеристики:

Количество воды затворения: 0,6 - 0,64 л на 2 кг сухой смеси

Время потребления: не менее 2 часов

Температура применения: от +5 до +30°C

Возможность технологического прохода: через 8 часов

Достижение полной гидрофобности: через 7 дней

Температура эксплуатации: от -50 до +70°C

Ориентировочный расход сухой смеси CE 40 Aquastatic в зависимости от ширины шва и размера плитки:

Таблица 5

Размер плитки, см

Ширина шва, мм

Расход CE 40 Aquastatic, кг/м2 облицовки

5х5

2

Около 0,5

5х5

3

Около 0,7

10х10

2

Около 0,4

10х20

3

Около 0,4

15х15

3

Около 0,4

20х20

5

Около 0,5


Упаковка: Сухая смесь CE 40 Aquastatic поставляется в полимерных ведрах по 2 кг.

Теперь нам необходимо выбрать керамическую плитку, выбрали мы плитку Cersanit Siesta Светло-зеленый 20x30

Укладка плитки будет у нас с бордюром, и к нашей плитки мы берем бордюр из набора Cersanit Siesta Светло-зеленый 6x20.

3.1 Чертеж

Рисунок 5

4. Технология окраски потолка ванной комнаты

Общие сведения:

Малярные работы - заключительный этап ремонтных работ, при которых малярные материалы наносятся на поверхность конструкций, обеспечивая им санитарно-гигиенические нормы и придавая помещению (или конструкции) особый внешний вид с помощью лако-красочных составов или обоев. Другими словами, малярные работы - это финишная отделка поверхностей конструкций. Именно поэтому перед началом выполнения малярных работ необходимо закончить все строительные работы. Исключением является облицовка пола (укладка паркетной доски, ламината, линолеума и т.д.).

Малярные работы делятся:

·              по условиям выполнения работ - на внутренние и наружные;

·              по виду связующего составляющего- на водные, масляные краски;

·              по качеству производимых работ- отделка под покраску, отделка под обои, под декоративные краски и штукатурки;

·              по типу окрашиваемых поверхностей- металл, дерево, бетон, штукатурка. В зависимости от предъявляемых требований к отделке конструкции, окраска, как и оштукатуривание, бывает:

·              Простая - применяется в помещениях и зданиях складского или бытового типа.

·              Улучшенная - применяется при отделке жилых и общественных зданий, а также в помещениях зданий повышенного класса.

·              Высококачественная - выполняется в зданиях и сооружениях с повышенными требованиями к отделке (гостиницы, кинотеатры и т.д.).

Выбирая, какой краской покрасить ванную комнату, следует остановиться на краске, обладающей устойчивостью к влаге. Для того, чтобы предотвратить возможное появление пятен плесени на поверхностях стен, следует приобретать краску, содержащую фунгициды.

В связи с этим наиболее пригодной является водоэмульсионная краска для ванной. После нанесения на достаточно качественно просушенные стены, она глубоко проникает в поры материала и не отслаивается даже в результате многократного увлажнения и высыхания.

Водоэмульсионные краски - разновидность красящих материалов, относящихся к Водно-дисперсионным краскам. Представляют собой эмульсию, полученную из воды, пигментов и мельчайших частичек полимеров, выступающих в качестве основы, пребывающих в водной среде во взвешенном состоянии, при этом частицы эмульсии не растворены. В отличие от масляных и пентафталевых красок появились относительно недавно - в XX веке. Водоэмульсионная краска экологична, не имеет запаха, легко наносится на потолок и достаточно долговечна. Для потолка ванной следует выбирать влагостойкую водоэмульсионную краску на основе полимеров трудно растворимых водой.

Алгоритм

.        Подготовка поверхности

.        Нанесение грунтовки на поверхности

.        Нанесение штатлевки

.        Шлифование поверхности

.        Огрунтовывание поверхности

.        Окраска потолка и стен

Таблица 6. Инструменты

Название, эскиз

Назначение

Кисти

для покрасочных работ.

Валик

для нанесение грунтовочных составов.

Терка

для шлифования поверхности.

Шпатели   

для нанесения шпатлевочных составов.

Ванночка

для красочных составов.

Ведро

Для хранения воды

Миксер

для смешивания составов.

Подмости 

Для оборудования рабочего места внутри здания, при выполнения работ.


.1 Материал

Так как у нас ванная комната, значит материал мы выбираем соответственно влагозащитный и влагостойкий. В первую очередь нам необходимо прогрунтовать наш потолок, и мы выбираем «Грунтовка влагозащита. Профи (концентрат 1:7) ТЕКС».

Тип: Грунт для внутренних работ на специализированной бутадиенстирольной дисперсии, концентрат 1:7, защищает от влаги, плесени и грибка, повышает прочность цементных растворов, выравнивает впитывающую способность поверхности, улучшает сцепление покрытия с поверхностью.

Область применения: Предназначен для внутренних работ в сухих помещениях и помещениях с повышенной влажностью (кухни, ванные, коридоры и др.) для грунтования бетонных, оштукатуренных, гипсокартонных, кирпичных и деревянных поверхностей перед последующей окраской водно-дисперсионными красками, шпатлеванием, облицовкой керамической плиткой и наклейкой обоев, для предохранения деревянных изделий от гниения и воздействия влаги внутри помещений, а также для модификации строительных растворов.

Расход на 1 слой 5-14 м2/кг (5-14 м2/л) в зависимости от впитывающей способности поверхности и степени разбавления.

Сухой остаток: Ок. 33%

Плотность 1,0 - 1,1 кг/л

Разбавитель: Вода

Способ нанесения: Наносится валиком, кистью или распылением

Время высыхания при (20±2) °C и относительной влажности (65±5)%

час. Последующая окраска через 1,5 часа.

Хранение и транспортировка

При температуре не ниже 5 °С в плотно закрытой таре, предохраняя от воздействия влаги, тепла и прямых солнечных лучей.

Срок годности: Гарантийный срок хранения в заводской невскрытой упаковке - 2 года.

Фасовка 0,9 л, 2,5 л, 4,5 л, 9 л в бутылках.

Далее нам необходимо выбрать шпатлевку для нашего потолка. Мы выбираем «Шпатлевка влагостойкая Профи ТЕКС».

Тип: Латексная шпатлевка готовая к применению.

Область применения: Предназначена для выравнивания стен и потолков внутри сухих и влажных помещений по гипсокартонным плитам, оштукатуренным и бетонным поверхностям под окраску или оклеивание обоями.

Расход на 1 слой 2-7 м2/л в зависимости от состояния поверхности и толщины слоя.

Сухой остаток: Ок. 66%

Плотность Ок. 1,7 кг/л

Разбавитель: Вода

Способ нанесения: Наносится шпателем

часа. Время выдержки шпатлевочного слоя до нанесения грунтовки или краски не менее 24 часов.

Цвет: Белый

Заполняющая способность: До 5 мм

Хранение и транспортировка

При температуре не ниже +5°C в плотно закрытой таре, предохраняя от воздействия влаги, тепла и прямых солнечных лучей.

Срок годности: Гарантийный срок хранения в заводской невскрытой упаковке - 2 года.

Фасовка 0,9 л; 3 л; 10 л в пластиковых ведрах.

Теперь нам необходимо выбрать саму краску, мы выбираем водно-дисперсионную краску, так как она безвредна, легко наноситься и самое главное она позволяет поверхности «дышать». Выбрали мы «КРАСКА ВЛАГОСТОЙКАЯ СУПЕРБЕЛАЯ «ПРОФИ» ТЕКС»».

Тип: Водно-дисперсионная интерьерная влагостойкая супербелая краска.

Область применения: Предназначена для высококачественной окраски стен и потолков внутри сухих помещений и помещений с повышенной влажностью (кухни, ванные, коридоры и др.) по гипсокартонным, бетонным, оштукатуренным, кирпичным, деревянным поверхностям. Краска удобно наносится, образует глубокоматовое паропроницаемое ("дышащее") покрытие, устойчивое к воздействию водяного пара и конденсата. Надежно защищает от плесени и грибка.

Расход на 1 слой 8-10 м2/л в зависимости от рельефа и впитывающей способности поверхности.

Сухой остаток Ок. 52% в зависимости от цвета.

Плотность 1,4-1,5 кг/л

Разбавитель: Вода

Способ нанесения: Наносится валиком, кистью или распылением. При необходимости разбавляется водой не более чем на 5% по объёму.

Время высыхания при (20±2) °C и относительной влажности (65±5) %

час. Следующий слой можно наносить через 1,5 часа. Заданный уровень устойчивости покрытия к воздействию пара и конденсата достигается через 2 недели.

Блеск Глубокоматовый

База А

Цвет Белый

Колеровка По каталогу цветов ТЕКС или колер красками «Профи» ТЕКС. Основа А также может использоваться в качестве белой краски.

Хранение и транспортировка

При температуре не ниже 5 °С в плотно закрытой таре, предохраняя от воздействия влаги, тепла и прямых солнечных лучей.

Срок годности: Гарантийный срок хранения в заводской невскрытой упаковке - 2 года.

Фасовка 0,9 л, 1,8 л, 4,5 л, 9 л, 16,2 л, 25,2 л

5. Экономическая часть

После того как мы определились с выбором материала, нам необходимо выполнить расчет, сколько материала нам понадобиться. Так как сначала мы выполняем штукатурные работы, произведем сначала расчет для материалов, которые нам понадобятся при оштукатуривании стен.

Итак, ниже представлена схема нашей ванной комнаты и её развертка с расчетом площади:

Рисунок 6

После подсчета площади, нам стало известно какую площадь нам необходимо оштукатурить, приступим к расчету материала.

Расход выбранной нами грунтовки составляет 0,2кг на 1 кв. м.

Sотд. пов. * расход = 19,71кв. м. * 0,2кг = 3,9 кг

Теперь мы знаем, что нам понадобиться ориентировочно 4 кг грунтовки.

Далее нам необходимо рассчитать количество штукатурной смеси, расход которой составляет 11-12 кг на 1 кв.м при слое 10мм.

Sотд. пов. * расход = 19,71кв. м. * 12 кг = 236,5 кг. У нас получилось, что при толщине слоя 10 мм нам потребуется 236,5кг смеси, но так как у нас улучшенная штукатурка, наш слой 15 мм. Для точного расчета нам необходимо разделить полученную сумму (236,5 кг) пополам, так у нас получиться расход для слоя 5мм, теперь нам необходимо сложить расход при слое 10 мм и слое 5мм, таким образом, мы получим расход на наши 15мм. Приступим:

,5кг / 2=118,2 кг при слое 5 мм

,5кг+118,2 кг = 354,76 кг при слое 15 мм

Так как выбранная смесь поставляется в мешках по 30 кг, нам понадобиться 12 полных мешков

Норма времени: Нвр. = S ошт. пов. ∙ 0,98 = 19,71*0,98 = 19,3 чел/час

Норма времени на выполнение работ составляет 19,3 чел/час

Следующие работы которые мы выполняем, это облицовка стен вокруг ванны и над раковиной. Так как мы будем облицовку выполнять от уровня ванны до потолка нам необходимо рассчитать: Высоту от ванны до потолка, так как потолок у нас 2,55 м, ванна высотой 60 см, высота облицовываемой поверхности равна 1,95 м, стена где будет установлена раковина ширина облицовки составит 1,20м, противоположная стена составит 0,76 м.

S обл. пов. = (0,76+1,55+1,20)*1,95= 6,84м

S обл. пов. = 6,84 кв.м.

После того как мы узнали площадь облицовываемой поверхности мы можем приступить к расчету материалов, необходимых для облицовки.

Сначала мы устраиваем гидроизоляцию. Её расход составляем 3кг на 1 кв.м. при слое 2 мм. Рассчитываем:

S обл. пов * расход = 6,84*3=20,52 кг, но так как нам нужно гидроизоляцию уложить в два слоя, нам понадобиться 41,4кг.

Теперь произведем расчет плиточного клея, расход которого составляет 4,2 кг на 1 кв. м.

S обл. пов. * расход = 6,84*4,2=28,7кг

В нашем случае нам понадобиться немного больше одного мешка, потому что клей фасуется по 25 кг мешок.

Произведем расчет плитки: в связи с тем что у нас еще устанавливается бордюр, нам надо произвести расчет с учетом бордюра. Бордюр у нас будет в один ряд, то есть длина ряда составит 3,51 м, а высота бордюра 0,06м, произведем расчет площади, которую будет занимать бордюр:

,51*0,06=0,21 кв. м.

Теперь мы можем подсчитать какую площадь будет занимать основная плитка:

S обл. пов. - S бор. = 6,84 - 0,21 = 6,63 кв. м. у нас займет основная плитка. Подсчитаем количество необходимой плитки:

Площадь одного бордюра: 0,21 / 0,012 = 17,5 шт. округляем в большую сторону получаем 18 шт. бордюрной плитки.

Также произведем расчет количества основной плитки: 6,63 / 0,06 = 110,5 шт. основной плитки, при округлении получаем 111 шт. плитки, это необходимое количество плитки.

Далее произведем расчет затирочной смеси для плитки, расход её составляет 0,4 кг на 1 кв. м. при ширине шва 2мм.

S обл. пов. * расход = 6,84 * 0,4 = 2,7 кг, так как упаковка затирки по 2 кг, нам понадобиться два ведра смеси.

Норма времени на выполнение работ составляет 4,9 чел/час

Теперь приступим к расчету материалов для выполнения малярных работ. S покр. пов. = 3,7 кв. м. на основании данной площади начнем расчет материалов.

Возьмем средний расход грунтовки 1л на 9 кв. м, но в связи с тем что мы грунтуем до шпатлевание и после шлифования шпатлевки, нам будет достаточно одной бутылки по 0,9л.

Подсчитаем расход шпатлевки: согласно данным производителя расход составляет 1л на 2-7кв. м. Одного ведра нам будет достаточно, так как объем поставки есть по 0,9л, а S покр. пов. Составляет 3,7кв. м.

Произведем расчет выбранной нами краски. Расход краски составляет на 1л 10 кв. м. Мы берем одну упаковку по 0,9л.

Норма времени на выполнение работ составляет 0,4 чел/час

6. Организация и безопасные условия труда при отделочных работах

Организация труда при штукатурных работах:

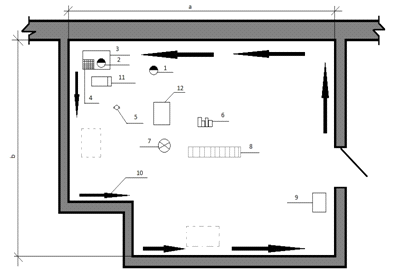
Рисунок 7

Штукатур 1 - выполняет нанесение смеси на поверхность, разравнивает, затирает.

Штукатур 2 - Готовит раствор, подаёт необходимый инструмент штукатуру 1, помогает штукатуру 1.

До начала работ, надо подготовить и проверить исправность инструментов и подмостей, одеть спецодежду, головной убор, пуговицы, на спецодежде, должны быть все застёгнуты (правила ТБ).

Безопасные условия труда при штукатурных работах:

I. Общие требования безопасности.

.Штукатур, прошедший подготовку, имеющий профессиональную подготовку и не имеющий противопоказаний по возрасту не моложе 18 лет должен пройти:

медицинский осмотр (обследование);

инструктаж по охране труда;

стажировку на рабочем месте и проверку знаний по охране труда.

. Штукатур обязаны соблюдать требования от воздействия опасных и вредных производственных факторов:

расположение рабочего места вблизи перепада по высоте 1.3 м и более (необходимо наличие ограждения высотой 1 м);

повышение запыленности и загазованности воздуха;

повышение напряжения в электрической цепи (42-50 вт), замыкание которой может пройти через тело человека.

недостаточная освещенность рабочего места.

. Индивидуальные средства защиты:

для защиты от механических воздействий воды, щелочи маляр должен использовать комбинезоны хлопчатобумажные, ботинки кожаные, рукавицы комбинированные, костюму на утепляющей прокладке и валенки для зимнего периода.

на территории строительной площадки носить защитные каски.

в зависимости от условий работы для защиты кожи рук перчатки и глаз защитные очки;

при подготовке поверхности необходимо использовать респираторы и защитные очки, а также при набрызге на потолочную поверхность.

. Находясь на строительной площадке, в производственных мастерских необходимо соблюдать правила внутреннего распорядка:

не допускаются посторонние лица;

и работники в нетрезвом состоянии

. В процессе работы:

применять средства механизации по назначению, в соответствии с инструкцией завода-изготовителя;

поддерживать порядок на рабочем месте;

не нарушать правила складирования материалов;

быть внимательным.

. Штукатуры обязаны немедленно извещать мастера:

о любой ситуации, угрожающей жизни и здоровью людей;

о каждом несчастном случае.

.1 Требования безопасности перед началом работ

. Штукатуры обязаны:

получить задание у бригадира или руководителя работ;

пройти инструктаж на рабочем месте по полученному заданию;

надеть спецодежду, обувь и каску установленного образца.

. После получения задания штукатур обязан:

подготовить индивидуальные средства защиты и проверить их исправность;

проверить рабочее место и подходы к нему;

подобрать инструмент необходимый при выполнении работы проверить его исправность.

. Штукатур не должен приступать к работе при нарушениях требований безопасности:

неисправности технологической оснастки, приспособлений, инвентаря, средств защиты работающих, средств подмащивания.

недостаточная освещенность (использовать светильники напряжением выше 50 В)

. В процессе работы:

применять средства механизации по назначению, в соответствии с инструкцией завода-изготовителя;

поддерживать порядок на рабочем месте;

не нарушать правила складирования материалов;

быть внимательным.

. Штукатуры обязаны немедленно извещать мастера:

о любой ситуации, угрожающей жизни и здоровью людей;

о каждом несчастном случае.

5.2 Требования безопасности во время работы

. При работе с применением штукатурной затирочной машины с электропроводом штукатуры обязаны, следить раствор и вода не попадали на корпус машины и двигатель.

. Для искусственной сушки необходимо использовать специально предназначенные нагревательные приборы - калориферы, газовые горелки.

ЗАПРЕЩАЕТСЯ.

Применять для сушки помещений мангалы (жаровни), бочки и другие емкости, наполненные горючим углем.

.3 Требования безопасности по окончании работ

. При выполнении штукатурных работ на лесах:

прекратить работы при усилении силы ветра до 15 м/сек. и более.

2. При возгорании материалов:

необходимо прекратить работы и принять меры к тушению.

в случае невозможности ликвидации загорания вызвать пожарную охрану и сообщить мастеру или руководителю.

. Отключить применяемый электроинструмент от электросети;

. Очистить от раствора и промыть инструмент и оборудование. Убрать в предназначенное для хранения место;

. Сообщить бригадиру или руководителю работ о всех неисправностях возникших во время работы.

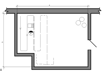
Организация труда при облицовочных работах:

Рисунок 8

.        Запас плитки на рабочем месте

.        Плиточник 4-го разряда

.        Инвентарный столик

.        Плиточник 2-го разряда

.        Временное освещение

.        Стол для резки плитки

.        Запас клеевой смеси

.        Запас плиток

.        Стол для инструментов

.        Движение по фронту работы

.        Емкость для воды

.        Растворный ящик

Приступать к работе только после проверки инструментов и механизмов, если всё исправно, можно приступать к работе соблюдать требования безопасности и одев средства индивидуальной защиты.

Безопасные условия труда при выполнении облицовочных работ:

. Общие требования охраны труда

.1 К самостоятельной работе по выполнению плиточных работ допускается обученный персонал, не моложе 18 лет, прошедшие медицинское освидетельствование, вводный инструктаж, первичный инструктаж, обучение и стажировку на рабочем месте, проверку знаний требований охраны труда, имеющие группу по электробезопасности не ниже I и соответствующую квалификацию согласно тарифно-квалификационного справочника.

.2 Работники, выполняющие плиточные работы, обязаны:

.2.1 Выполнять только ту работу, которая определена рабочей инструкцией.

.2.2 Выполнять правила внутреннего трудового распорядка.

.2.3 Правильно применять средства индивидуальной и коллективной защиты.

.2.4 Соблюдать требования охраны труда.

. Требования охраны труда перед началом работы

.1 Получить задание у руководителя и пройти инструктаж на рабочем месте по специфике выполняемых работ.

.2 Надеть исправную спецодежду, спецобувь и другие средства индивидуальной защиты и привести их в порядок.

Необходимо застегнуть на пуговицы обшлага рукавов, заправить свободные концы одежды так, чтобы они не свисали.

Не допускается носить спецодежду расстегнутой и с подвернутыми рукавами. Спецодежду и спецобувь работники не должны снимать в течение всего рабочего времени.

.3 После получения задания у руководителя работ необходимо:

.3.1 Проверить рабочее место и подходы к нему на соответствие требованиям безопасности.

.3.2 Подобрать технологическую оснастку, инструмент, необходимые при выполнении работы, и проверить их на соответствие требованиям безопасности.

.4 Работники не должны приступать к выполнению работ при следующих нарушениях требований безопасности:

.4.1 Неисправностях технологической оснастки, средств защиты работающих и инструмента, указанных в инструкциях заводов-изготовителей, при которых не допускается их применение.

.4.2 Загроможденности или недостаточной освещенности рабочих мест и подходов к ним.

.4.3 Загазованности или запыленности в помещении, а также при сильном ветре и атмосферных осадках.

.4.4 Нарушении устойчивости средств подмащивания и конструкций зданий и сооружений.

.5 Запрещается работать в зоне, где нет ограждения открытых проемов в перекрытиях, в стенах, а также в неосвещенных помещениях.

.6 При работе с синтетическими материалами для защиты кожного покрова рук от воздействия химически вредных соединений применяют защитные пасты и мази.

.7 При выполнении работ на высоте должны использоваться инвентарные подмости и леса, имеющие ограждение.

Запрещается пользоваться подвесными лестницами и случайными подмостями /бочками, ящиками/.

.8 Обо всех недостатках и неисправностях инструмента, приспособлений и средств защиты, обнаруженных при осмотре, доложить руководителю работ для принятия мер к их устранению.

. Требования охраны труда во время работы

.1 При работе с цементом, известью и другими пылящими веществами необходимо пользоваться индивидуальными средствами защиты (очками, респираторами).

.2 При укладке облицовочных плиток на цементном растворе пользоваться резиновыми напальчниками или тонкими резиновыми перчатками, при этом предварительно натерев руки тальком или порошком из мела.

.3 При укладке облицовочных материалов на горячие мастики разогревать и переносить мастику в заправленной брезентовой одежде, рукавицах и закрытой обуви; переносить мастику в бачках, специально предназначенных для этих целей и оборудованных крышками с запирающимися устройствами.

.4 При очистке поверхностей металлическими щетками или другими инструментами и приспособлениями применять защитные очки, а при работе с кислотой - раствор не более 5%-ной концентрации;

.5 При резке и перерубке керамических плиток следует пользоваться защитными очками.

.6 Во время работы при отбивке старой штукатурки и плитки работу следует производить в защитных очках. Отбивку штукатурки следует производить легким, постепенным ударом молотка на длинной ручке, находясь, по возможности, дальше от места ее падения.

.7 Для переноски и хранения инструмента работник должен пользоваться сумкой или ручным ящиком. Острые части инструмента следует защищать чехлами.

.17 Плиточные и облицовочные материалы следует складировать в штабеля высотой не более 1 м.

.18 Складировать штучные материалы, инструмент и приспособления на наклонной поверхности следует на специальных подставках, препятствующих скольжению.

.19 Пылевидный материал /цемент, известь, гипс и т.д./ следует хранить в плотно закрытых контейнерах, ящиках.

.20 Указанные материалы в бумажной таре необходимо складировать в закрытых сухих помещениях.

.21 Плиточные работы на высоте необходимо выполнять с лесов и подмостей.

.22 При работе с лесов и подмостей:

.22.1 Металлические леса должны быть надежно заземлены и оборудованы средствами молниезащиты.

.22.2 Запрещается работать с металлических лесов вблизи действующих линий электропередачи.

.22.3 Средства подмащивания должны иметь рабочие настилы с зазором между досками не более 5 мм, а при расположении настила на высоте 1,3 м и более - ограждения и бортовые элементы.

.22.4 Леса должны быть прикреплены к стене здания. Места и способы крепления указываются в проекте производства работ.

.22.5 Настилы лесов и подмостей необходимо периодически очищать от материалов. Кроме того, настилы лесов и подмостей следует ежедневно очищать от мусора и грязи, в зимнее время - от снега и наледи, а после посыпать песком.

.22.6 Во избежание повреждения ног на лесах и подмостях концы гвоздей и скоб должны быть загнуты, а ненужные гвозди удалены.

.22.7 Запрещается садиться или становиться на перила лесов или подмостей, а также прыгать по настилу.

.22.8 Запрещается находиться на лесах и подмостях посторонним лицам.

.22.9 При снятии или перемещении настилов на другой ярус необходимо полностью освободить их от материалов, тары, мусора. Доступ людей на леса на это время должен быть закрыт.

.22.10 Запрещается подниматься на леса и опускаться с них по опорным лестницам и стойкам лесов.

. Требования охраны труда в аварийных ситуациях

.1 При возникновении аварий и ситуаций, которые могут привести к авариям и несчастным случаям, необходимо:

.1.1 Немедленно прекратить работы и известить руководителя работ.

.1.2 Под руководством руководителя работ оперативно принять меры по устранению причин аварий или ситуаций, которые могут привести к авариям или несчастным случаям.

.2 При возникновении пожара, задымлении:

.2.1 Немедленно сообщить по телефону «01» в пожарную охрану, оповестить работающих, поставить в известность руководителя подразделения.

.2.2 Приступить к тушению пожара первичными средствами пожаротушения, если это не сопряжено с риском для жизни.

.2.3 Организовать встречу пожарной команды.

.2.4 Покинуть здание и находиться в зоне эвакуации.

.3 При несчастном случае:

.3.1 Немедленно организовать первую помощь пострадавшему и при необходимости доставку его в медицинскую организацию.

.3.2 Принять неотложные меры по предотвращению развития аварийной или иной чрезвычайной ситуации и воздействия травмирующих факторов на других лиц.

. Требования охраны труда по окончании работы

.1 Привести в порядок рабочее место, инструменты и приспособления.

.2 Доставить инструмент и приспособления к основному месту работы.

.3 По прибытии к основному месту работы, снять спецодежду, вымыть руки с мылом.

.4 Сообщить лицу, ответственному за производство работ, обо всех недостатках, замеченных во время работы, и принятых мерах по их устранению.

Организация труда при малярных работах:

Рисунок 9

Маляр валиком на телескопической трубке, наносит окрасочный состав на потолок, постепенно отступаю спиной к выходу из ванной.

Безопасные условия труда при малярных работах:

. Общие требования безопасности

.1. К работам с красителями, обладающими токсичными свойствами (нитрокрасками, нитроэмалями и асфальтовыми лаками), допускаются рабочие, достигшие 18-летнего возраста, прошедшие медицинское освидетельствование, специальное обучение и имеющие удостоверение маляра. Маляр допускается к работе после прохождения им: вводного инструктажа по технике безопасности, производственной санитарии и пожаробезопасности; инструктажа по технике безопасности непосредственно на рабочем месте, который проводится также при изменении условий труда, характера работы или при нарушении правил техники безопасности. Повторный инструктаж маляра проводится не реже одного раза в три месяца.1.2. Маляр обязан: а) соблюдать правила внутреннего распорядка особенно в части запрета нахождения на работе в состоянии алкогольного или наркотического возбуждения; б) выполнять правила пожарной безопасности; в) соблюдать требования настоящей инструкции; г) знать применяемое оборудование при окрасочных работах; д) проходить по территории депо по установленным маршрутам, пешеходным дорожкам и переходам; е) выполнять требования запрещающих, предупреждающих, указывающих и предписывающих знаков и надписей; ж) соблюдать правила личной гигиены; и) проходить медицинский осмотр согласно приказу Минздрава Р Ф № 90 от 14.03.96 г. з) уметь оказывать помощь пострадавшим при ранениях

. Требования безопасности перед началом работы

.1. Перед началом работы маляр обязан:

осмотреть рабочее место, подготовить к работе инструменты, приспособления, инвентарь: проверить надежность настила лесов, подмостей, передвижных столиков, стремянок и т.д.; убедиться в исправности сигнализации с малярной станцией; проверить исправность шлангов; ознакомиться с технологической картой выполнения малярных работ.

А. Требования к рабочему месту

.2 Маляр обязан в течение всего рабочего дня содержать в порядке и чистоте рабочее место, не загромождать его и проходы материалами.

.3. Освободившуюся из-под растворителей и лакокрасочных материалов тару немедленно удалять с рабочего места в складское помещение.

.4. Раствор краски, случайно пролитый на пол, надо сразу же засыпать сухим песком или опилками, а затем убрать.

.5. В случае нецелесообразности устройства лесов или подмостей при работе на высоте маляр обязан пользоваться испытанным предохранительным поясом. Места закрепления карабина предохранительного пояса должны быть указаны мастером (прорабом).

.6. Грузы на лесах и подмостях должны быть расположены в соответствии со схемами размещения, вывешенными на рабочем месте, а также с допустимыми нагрузками.

Б. Требования к инструменту

.7. Рукоятки применяемых инструментов должны быть из древесины, гладко обработаны, подогнаны и надежно закреплены.

.8. Запрещается применять ручной инструмент, имеющий выбоины, сколы рабочих концов, заусенцы и острые ребра в местах зажима рукой, трещины и сколы на затылочной части.

.9. При работе с пневматическим инструментом необходимо: убедиться в исправности рабочей части инструмента (удочки, форсунки, пистолета-распылителя, машинки для шлифовки прошпаклеванной поверхности и др.); проверить наличие и исправность манометра, клейм; включать инструмент только после установки его в рабочее положение.

.10. Следить, чтобы шланги не были согнуты, не прикасались к тросам, электрокабелю или шлангам газо-резочных аппаратов.

.11. Замерзшие шланги следует отогревать в теплом сухом помещении. Отогревать паром не разрешается.

.12. При перерыве в работе или обнаружении неисправности механизмов следует немедленно отключить подачу воздуха, перекрыть воздушный вентиль. Перегибать шланг или завязывать его узлом для прекращения подачи воздуха запрещается.

.13. При обнаружении неисправности пневматический инструмент необходимо сдать слесарю.

.14. Перед работой пистолетом-распылителем или удочкой проверить надежность креплений шлангов к инструменту и бачку.

.15. Емкости для лаков, красок, растворителей и других материалов перед чисткой следует пропаривать, промывать, проветривать.

Тару необходимо открывать и чистить инструментом, изготовленным из меди, алюминия или другого материала, не образующего искр.

. Требования безопасности во время работы

.1. Для выполнения мелких малярных работ необходимо применять переносные или раздвижные лестницы с врезными ступенями. Нижние концы лестниц должны иметь острые металлические наконечники при деревянных полах, резиновые - при бетонных и каменных.

.2. Запрещается пользоваться для подмащивания непроверенными случайными средствами,

.3. Все внутренние малярные работы выполнять при открытых окнах или принудительной вентиляции,

.4. Запрещается нанесение красок, эмалей и грунтовок, содержащих свинцовые соединения, способом пульверизации.

.5. При удалении старой масляной краски химическим способом следует пользоваться шпателем на удлиненной ручке. Снятая краска собирается в металлический ящик и убирается с рабочего места.

.6. Зачистку прошпаклеванной поверхности вручную следует выполнять с помощью кусков пемзы или наждачной бумаги, зажимаемой специальным приспособлением.

.7. Малярные работы внутри емкостей следует производить только при наличии принудительной вентиляции звеном из трех человек (из них двое - страхующие), имеющих соответствующий наряд-допуск

.8. Запрещается применение лаков, красок, клеев, растворителей и разбавителей при отсутствии на них паспортных данных, а также использование импортных клеев и мастик, не имеющих фирменных указаний и инструкций по их применению.

.9. Соблюдать правила пожарной безопасности.

. Требования безопасности в аварийных ситуациях

.1. При обнаружении неисправностей строительных лесов и других средств подмащивания немедленно прекратить работу и сообщить об этом мастеру (прорабу).

.2. В случае взрыва, пожара или отравления химическими материалами, применяемыми при малярных работах пострадавшему необходимо оказать медицинскую помощь и сообщить о случившемся мастеру (прорабу).

. Требования безопасности по окончании работ

.1. Убрать инструмент и приспособления, привести в порядок рабочее место,

.2. Отключить от сети механизированный инструмент; после полной остановки движущихся частей очистить его механизмы

.3. Продуть шланги пневмоинструмента; после сброса давления разъединить их и убрать в отведенное место.

.4. Снять спецодежду, спецобувь и привести их в порядок. Индивидуальные средства защиты очистить и сдать на хранение.

.5. О замеченных неполадках, возникших во время работы, сообщить мастеру (прорабу).

Заключение

Цель настоящей работы заключается в описании технологии штукатурных, облицовочных и малярных работ в ванной; определении необходимых инструментов и материалов; продумать организацию рабочего места и осветить тему охраны труда при ремонтных работах в ванной комнате.

Для достижения указанной цели перед работой был поставлен ряд задач.

При решении задач: Изучение специальной литературы по теме исследования, знакомство с существующими способами оштукатуривания, окраски потолков и облицовки стен в ванной комнате, описать инструменты и материалы, которые понадобятся для выполнения отделки в ванной, Определить необходимый материал и произвести его расчет, разработать технологическую карту выполнения штукатурных, малярных и плиточных работ в ванной комнате, систематизировать сведения по охране труда при проведении штукатурных, плиточных, малярных работ в работе показано и изучено.

Практическая значимость работы заключается в детальной разработке технологий выполнения отделочных работ в ванной, это поможет уменьшить сроки их выполнения и увеличить эффективность работы.

Таким образом, задачи решены в полном объеме, цель достигнута.

Литература

1) А.В. Борилов, О.В. Воловикова, С.А. Дмитриенко, Г.Д. Ожерельева, Г.В. Ткачева, Г.В. Шульц «Организация и технология строительных отделочных работ» изд. «академкнига» - 2005

) И.П.Журавлева, П.А. Лапшин «Штукатур. Мастер строительных работ» изд. «Феникс» - 2005.

) Н.Н. Завражин «Отделочные работы» издательский центр «Академия» - 2008

) А.А. Авлиев, А.А. Калыгин, О.М. Скок, «Отделочные строительные работы» издательский центр «Академия», 2009

) О.Н. Куликов, Е.И. Ролин «Охрана труда в строительстве» издательский центр «Академия», 2011

) И.В. Петрова, «общая технология отделочных строительных работ» издательский центр «Академия», 2010

) Е.В. Парикова, Г.Н. Фомичева, В.А. Елизарова «Материаловедение (сухое строительство) издательский центр «Академия», 2010

) Г.Г. Черноус «Штукатурные работы» издательский центр «Академия», 2009

) Г.Г. Черноус «Облицовочные работы» издательский центр «Академия», 2010.

Похожие работы на - Оштукатуривание бетонных поверхностей и облицовка стен керамической плиткой, покраска потолка ванной комнаты

 

Не нашли материал для своей работы?
Поможем написать уникальную работу
Без плагиата!
Без нейросетей!