Дизайн-проект развлекательного боулинг центра 'Вселенная'

  • Вид работы:
    Курсовая работа (т)
  • Предмет:
    Строительство
  • Язык:
    Русский
    ,
    Формат файла:
    MS Word
    397,89 Кб
  • Опубликовано:
    2015-10-01
Вы можете узнать стоимость помощи в написании студенческой работы.
Помощь в написании работы, которую точно примут!

Дизайн-проект развлекательного боулинг центра 'Вселенная'

Аннотация

Курсовой проект на тему «Дизайн-проект развлекательного боулинг центра «Вселенная» состоит из теоретической и практической части. Теоретическая часть состоит из пояснительной записки, в которой раскрывается цели и задачи проекта, выполнено описание аналогов, произведен эргономический анализ, полное описание работы над проектом, его обоснование. Пояснительная записка содержит 39 страниц, из них 28 приложений.

В практическую часть входит эскизный поиск, поиск композиционного и эргономического решения, выполнение визуализации интерьеров боулинг зала, бильярда, детской комнаты, санузла, кафе, коридора с помощью программы 3DSMax.

Графическая часть проекта содержит в себе чертежи всего помещения, план полов, план потолка с размещением светильников, эргономика кухонного пространства, презентационный лист размером 100х70 см.

Данная работа, является полностью завершенным проектом и может быть предложена к внедрению.

Содержание

Содержание

Введение

.Краткое описание проектной задачи.

.1 Обзор аналогов.

.2 Концептуальное содержание идеи

. Основная часть

.1 Эскизный поиск.

.2 Поиск композиционных и планировочных решений.

.3 Проработка цветофактурного решения.

.4 Проработка конструкционного и эргономического решения.

.5 Обоснование выбора отделочных материалов .

.6 Оборудование, мебель и декор в интерьере.

. Технические особенности помещений.

.1 Технические рекомендации по проектированию боулинга.

. Инженерное оборудование, сети и системы .

.1 Отопление, вентиляция, кондиционирование.

.2 Водоснабжение и водоотведение.

.3 Теплоснабжение.

.4 Звукоизоляция.

.5 Освещение.

. Заключение.

Список литературы

Введение

Возможность совмещения отдыха и развлечений , становится для российского жителя все более привлекательной, благодаря появлению развлекательных центров, строительство которых в последние годы развивается все стремительнее.

Современный развлекательный центр - это комплекс архитектурно связанных предприятий торговли и развлечений, расположенный на специально запланированном месте и находящийся под управлением одной компании. На его площадях размещаются продовольственный гипермаркет, бутики, кафе, где можно перекусить, бильярд, боулинг, дискотека, зоны развлечений для детей и удобные стоянки для парковки автомобилей.

Проектируя центр торговли и развлечений, необходимо учитывать специфические особенности его работы и месторасположение. Как правило, они возводятся в самых оживленных районах, городских транспортных магистралей. Успех проекта зависит не только от рационально организованных торговых и развлекательных павильонов, но и мест расположения входных зон, пожарных и других служебных помещений. Особое значение придается планированию боулингов, так как у данных операторов имеются свои характерные требования - это объем зала, сетка колонн и звукоизоляция. Планировка внутренних помещений должна быть не только комфортной, но и максимально удобной для передвижения людей в здании.

Сочетание функциональности и эстетичности в оформлении является одним из основных факторов привлекательности развлекательного центра и завоевания симпатии посетителей. Красивый внешний облик здания, интерьер и его стиль являются основой будущей популярности комплекса и создаются с помощью смелых, ультрасовременных архитектурных и дизайнерских решений.

Актуальность курсовой работы, заключается в том, что в настоящее время, в условиях жесткой конкуренции, у каждого заведения, должно быть свое «лицо», интерьер, как наиболее важное основание успешности коплекса.
Проблемой исследования курсовой работы, является, то каким образом, за счет каких оптимальных условий и этапов процесса создания интерьера развлекательного центра, достигается наиболее эффективный результат.

Объектом исследования курсовой работы является проектирование интерьера развлекательного боулинг центра.

Цель курсовой работы - раскрыть технологии создания интерьера, создать визуализацию, планы помещения, интерьер развлекательного боулинг центра «Вселенная».

Для этого в работе были поставлены следующие задачи:

раскрыть основные понятия, относящиеся к созданию интерьера развлекательного центра;

рассмотреть детально каждый этап создания интерьера боулинга, бильярдного зала, кафе, детской игровой комнаты ;

проанализировать прототипы интерьеров аналогичных зданий.


1. Краткое описание проектной задачи

Для проекта выбрана тема разработки предметно-пространственной среды развлекательного боулинг центра «Космобол». Для города Новочеркасск это первый большой комплекс развлечений, планируется большое посещение людей, так как его месторасположение находится на ул. Ященко, в районе новых жилых многоэтажных построек. Многие начинающие компании думают прежде всего о проходимости, об имиджевом расположении и о технических характеристиках будущего заведения. Специалисты по коммерческой недвижимости считают вопрос технической оснащенности и подготовленности ключевым.

Общая площадь помещения для будущего комплекса составляет 1600 кв. м. Это связано с тем, что в данном помещении располагается боулинг зал, который требует большую площадь, бильярдная, кафе, по нормам любое предприятие общепита с собственным производством обязано иметь большую кухню, разделенную на несколько цехов: горячий, где готовятся горячие блюда, холодный - для приготовления салатов и закусок. Также должен быть гардероб, санузел и кабинет завидующего всем комплексом.

1.1 Обзор аналогов

В ходе работы проанализированы материалы, относящиеся к объекту проектирования, изучено большое количество аналогов. Всю эту работу надо было проделать для того, чтобы выбрать наиболее удачные, профессиональные и оригинальные в своем исполнении решения.

Подбор информации помог в дальнейшей работе. Используя собственные навыки попыталась создать свой, индивидуальный, с учетом всех пожеланий, и на основе своих профессиональных знаний, проект.

Пересмотрев множество аналогов, наиболее подходящим к проекту ,стал аналог данного помещения. (Приложение А, илл. 1,2)

Эти интерьеры содержат в себе современность, четкие линии и формы, делают интерьер строгим.

Просматривая интерьеры помещений бильярдного зала, акцентировалось внимание на современном стиле с внедрением необычных форм бильярдного стола. Все эти качества представлены в данных аналогах. (Приложение А, илл. 3,4)

Детская игровая комната многофункциональна, в этот интерьер входят стеллажи с игрушками, столы для обучения, рисования, стол воспитателя, чтобы грамотно разместить предметы мебели, были взяты за основу следующие изображения. (Приложение А, илл. 5,6).

Ресепшн - неотъемлемая часть интерьера здания данного типа. Стойку и интерьер планировалось сделать в виде космического корабля, из аналогов была взята идея форм и расстановки мебели в интерьере. (Приложение А, илл. 7,8)

1.2 Концептуальное содержание идеи

Город Новочеркасск обделен наличием развлекательных центров, передо мной была поставлена задача сделать дизайн-проект комплекса и внедрить его в черту города. Здание размещено на ул. Сарматской, его площадь составляет 1600 м2, площадь распределяется таким образом: входная зона(лестница) - 56.45м, холл - 113.56м, ресепшн - 5м, кабинет администратора - 19м, гардероб - 60.62, санузел - 35.15м, бильярдная - 50м, боулинг - 700.30м,коридор - 50.65м.

Был выбран стиль интерьера хай-тек, минимализм, как наиболее подходящие для задумки комплекса в виде космического корабля .

В ходе проектирования интерьера были рассмотрены следующие вопросы:

.        Специфика данного помещения

.        Подбор аналогов и на их основе выявление наиболее удачных и подходящих к данному проекту

.        Изучение литературы, параметров и норм, предъявляемых к развлекательным комплексам .

.        Разработка пространства с учетом его назначения.

Каждому помещению уделено особое внимание в разработке интерьера.

Интерьер должен способствовать процессу отдыха. Особая атмосфера приятно влияет на времяпрепровождение в центре. Интерьер должен благоприятно воздействовать на посетителей.

Цель данной работы заключается в том, что бы создать уютную, комфортную и удобную атмосферу для работы и оидыха. Интерьер хотелось сделать многофункциональным, удобным, оригинальным и не загроможденным лишней мебелью.

Все поставленные цели и задачи были максимально выполнены. В итоге получились максимально современные, отделанные материалами высшего качества, комфортные интерьеры для отдыха .


. Основная часть

.1 Эскизный поиск

После просмотра аналогов, следует проработка собственного проекта, множество эскизов и поиск подходящего материала для работы.

В боулинг зале, изначально расстановка мебели была мало функциональна и не эргономична (Приложение Б, рисунок 9), поэтому было решено изменить расстановку столов для более удобного перемещения по залу.

В бильярдном зале было решено сделать меньше столов, чем в первоначальном варианте, для увеличения пространства. Так же были добавлены украшения на стены в виде деталей космического корабля и иллюминаторы . (Приложение Б, рисунок 9)

Стены в коридоре в первоначальном варианте выглядели более пустыми и невзрачными, нужно было решить эту проблему, вскоре появилась идея рельефных полос со встроенными светодиодами. (Приложение Б, рисунок10) Это решение дублировалось в зону ресепшена.

Проектирование детской игровой комнаты было наиболее сложным, интерьер должен соответствовать стилю всего комплекса, это отражающие панели, стекло, металл, холодные цвета, но для детей данные материалы и цветовое решение не подходит, поэтому интерьер был максимально приближен к основному стилю здания и комфортным для прибывания в нем детей. (Приложение Б, рисунок 11,12)


Оформление развлекательного комплекса, требует от специалистов внимательного отношения к особенностям такого рода зданий. Большое количество людей одновременно находятся в одном ограниченном пространстве, поэтому необходимо найти такое решение, чтобы общественный интерьер был максимально гармоничным. Удачно подобранная планировка общественных интерьеров является прекрасным фундаментом для успешности развития бизнеса общественного заведения. Прежде чем остановиться на окончательном варианте планировки, было проработано несколько вариантов.

Расстановку посадочных мест в бильярдном зале планировалось сделать частой, но внимательно изучив чертеж, это решение было отклонено.

В бильярдной первоначально была идея сделать диваны и столики, помимо бильярдных столов, позже эта идея была изъята из допустимых вариантов расстановки мебели.

В помещении кафе наоборот было больше добавлено посадочных мест, чем в первоначальном варианте.

В коридоре и зоне ресепшена не было мебели для отдыха посетителей, диванов, стульев.

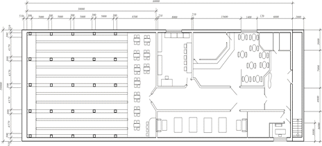
(Рисунок 13. Чертеж. Планировочное решение интерьера.)

Проанализировав чертеж, были найдены недочеты и принято решение изменить планировку, на более композиционный и эргономичный вариант.

Посадочные места в боулинг зале поредели, для более комфортного перемещения между столиков. В бильярдном зале количество игровых столов увеличилось, но были убраны диваны и столики, вместо них в интерьер вписались не большие круглые столы с барными стульями. Поток людей в кафе с первоначальным планировочным решением не эргономичен, так как находится много столов, уменьшив их количество, поток стал более свободным. В зоне ресепшена и в коридоре добавились диваны для отдыха.

(Рисунок 14. Чертеж. Планировочное решение интерьера.)

2.3 Проработка цветофактурного решения

Оформляя интерьер, происходит влияние на его цветовое решение, и это решение в свою очередь цветовой средой влияет на нас. Одно помещение создает хорошее, свободное, легкое настроение, другое - подавляет, сдерживает, угнетает нашу активность. Цвет может возбуждать в нас чувство теплоты и холода, бодрости и усталости, легкости и тяжести. Известно, что правильно подобранный цвет способствует повышению производительности труда, удачно подобранное цветовое решение любого помещения с учетом техпроцессов, которые в них происходят и в зависимости от того, как мы используем эти помещения, влияет не только на умственную деятельность человека, но и на общее состояние его самочувствия, здоровья в целом.

Интерьеры проекта выполнены в виде космического корабля, цветовая гамма и фактуры были подобраны соответствующие.

Интерьер всего здания на 50% выполнен в белом цвете. Белый цвет притягателен своей легкостью, безукоризненной чистотой и эффектностью. Белый в интерьере - это всегда удачный ход. Он дает массу возможностей не только для декоративного оформления интерьера, но и для изменения пространства, зрительно раздвигая его границы и увеличивая объем.

Белый цвет характеризуется совершенством и завершенностью, демонстрирует абсолютное и окончательное решение, полная свобода для возможностей и снятие препятствий. Его фундаментальное качество - равенство, т.к. заключает в себе все цвета. Он всегда вдохновляет, помогает, внушает определенную веру (дает свободу).Если белого цвета много - в силу вступают его негативные характеристики.

Говоря о белых интерьерах, мы говорим о белом лишь условно. Белый имеет множество оттенков и нюансов: цвет слоновой кости, топлёного молока, натурального хлопка и льна, цвет перламутра, снега и сливок ... Игра с различными оттенками белого поможет создать изысканную гамму, которая отнюдь не будет однообразной. Не говоря уже о том, что белый служит прекрасным фоном для различных оттенков кофе, терракоты и дерева.

Бело-серая гама может кому-то показаться слишком холодной, но зато нет более изысканных интерьеров, чем те, что решены с использованием белого цвета и различных оттенков серого и голубого.

Белый служит идеальной основой для любых цветовых акцентов, увеличивая их яркость и выявляя насыщенность. Поэтому слишком безупречную белизну можно разбавить яркими цветными вкраплениями, которые впоследствии можно с легкостью поменять на «пятна» другого цвета, при этом, не внося кардинальных изменений в общее решение интерьера. Каждая небольшая цветная деталь, будь-то рамка фотографии или яркая обложка книги, в белом интерьере приобретает совершенно особое звучание, резко выделяясь на нейтральном фоне.

Уникальность белого цвета состоит в том, что он позволяет создавать интерьеры практически в любом стиле - от минималистских до парадно-помпезных. Белый интерьер может быть спокойным, эффектным, изысканно-утонченным, роскошным, нарядным и праздничным.

Какой бы стиль не был выбран, белый всегда зрительно расширяет пространство, наполняет его светом и воздухом, придает ощущение легкости и четкости линий. Особое внимание в белых интерьерах уделяется освещению, потому что здесь гораздо ярче, чем в каком-либо другом интерьере проявляется игра света и тени, усиливаются светоотражающие эффекты, заметны даже самые незначительные нюансы изменения освещения. В зависимости от света белый интерьер может быть мягким, теплым, свежим, холодным, вызывающим и откровенным. Белый цвет в помещении сделает ярче проникающий из окна дневной свет, темные места в комнате, покрашенные в белый цвет станут светлее, восприятие любых предметов на белом фоне и в окружении белого цвета станет спокойнее и выигрышнее. Идеальным решением для белого интерьера является использование цветной подсветки, которая изменит колорит квартиры от белого до ярко-голубого или красного.

Синий цвет - цвет космического пространства, занимает большую часть в интерьере.

Синий цвет в интерьере - умиротворяющий, расслабляющий и благородный. Он отлично подходит как для классического, так и для современного интерьера, уместен в стиле хай-тек.

Использование синего цвета в интерьерах чаще всего основывается именно на ассоциациях, причем не только абстрактных. Например, синий цвет - это цвет неба, моря (или реки, океана), ночи, зимы. Синий цвет часто используют там, где хотят сыграть на этих ассоциациях.

Свойство синего «растягивать» помещение в глубину и в высоту и визуально удалять объекты делает этот цвет востребованным для отделки небольших помещений. Причем необязательно использовать синий для всех поверхностей. Например, в небольшой прихожей можно сделать голубой потолок - и помещение визуально станет выше. Темно-синий цвет представляет собой свободный от раздражения покой. При рассмотрении темно-синего наступает вегетативное успокоение. Пульс, кровяное давление, частота дыхания и сторожевые функции снижаются и трофотропно регулируются. Организм настраивается на щадящий режим и отдых. При заболеваниях и томлении возрастает потребность в синем. Повышается чувствительность и готовность воспринимать болезненные ощущения. Темно-синий цвет - это, как и каждый из четырех основных цветов, цветовое выражение биологической потребности: физиологически - это покой, психологически - это удовлетворение. Удовлетворение - это период, когда наступает мир и удовлетворенность. Тот, кто находится в таком уравновешенном гармоничном состоянии, без напряжений, чувствует себя приспособленным, принадлежащим коллективу и находится в безопасности. Поэтому синий цвет представляет собой привязанность ко всему окружающему вокруг: единение, тесную связь. Да и в народе говорят: "Синий цвет - это верность". В состоянии единения ощущают особую чувствительность к различиям. Поэтому синий цвет соответствует всем видам эмоциональности (восприимчивости).

Черный цвет.

Черный цвет в интерьере - цвет роскоши, строгости и знатного происхождения. Сильный цвет сам по себе, складываясь в пространство, нечто запредельное и не имеющее ограничений. Но с другой стороны, долго находиться в таком помещении будет очень сложно. После насыщения величием первозданной черноты наступает ощущение своей ничтожности. Поэтому жилые помещения в черном цвете обязательно имеют белые элементы.

Концептуальный черный цвет также является атрибутом свободолюбия, независимости и часто выполняет функцию фона для яркой интересной личности, «многоцветие» внутреннего мира которой не нуждается в дополнительных «украшательствах».

Психологи считают, что использовать черный цвет для оформления интерьера могут только уверенные в себе люди, которые в состоянии показать свои скрытую страсть и неординарность натуры. Существует также мнение о том, что черный цвет в одежде и обстановке предпочитают личности, лишенные иллюзий…

Одним из основных преимуществ черного цвета в качестве фона является его глубина, которая, помогает выделить необходимые детали интерьера, сделав их более выразительными. При этом, сам черный фон уходит на второй план, работая лишь в качестве основы или выполняя собирательную функцию. Нужно отметить, что часто в этом случае происходит не уменьшение, а наоборот, визуальное расширение пространства по принципу "ярких звезд в бесконечности вселенной".

Если же говорить о деликатном, фрагментарном использовании черного цвета, то в этом случае он исполняет роль тех самых выразительных акцентов и «мазков», необходимых в качестве «щепотки черного перца» в спокойной, монохромной палитре помещения или функцию «рамки» в веселом разнообразии оттенков и их сочетаний.

2.4 Проработка конструкционного и эргономического решения

Эргономика - это наука, изучающая различные предметы, находящиеся в непосредственном контакте с человеком в процессе его жизнедеятельности. Основной её задачей является разработка формы и оптимального расположения предметов, которые были бы максимально удобными для человека при их использовании.

Именно поэтому одной из важных составляющих дизайн-проекта помещения должен быть масштабированный план расстановки мебели с учётом всех законов эргономики. Ведь это очень важно чтобы умело сделанный дизайн, с идеальными цветовыми и фактурными сочетаниями, был полностью пригоден для комфортного и здорового существования.

Мебель для отдыха проектируется с учётом размеров человека, сидящего в расслабленной позе, однако следует учитывать градус уклона сиденья и спинки, дабы не затруднить вставание. Высота стола принимается исходя из возможности доступа к нему без вставания с кресла или дивана, только наклоняя корпус. Следует учитывать, что это возможно только если голени сидящего располагаются под столиком, для чего и предусматривается необходимое пространство.

Для полноценной игры помещение должно иметь размеры, как минимум соответствующие выбранному оборудованию. В идеале вокруг стола должно быть не только достаточно места для свободного осуществления прицеливания и удара из любой позиции, но и перемещения игроков. Для зрителей и играющих, решивших сделать паузу в партии, можно организовать отдельные места для отдыха с удобной мебелью и приглушенным светом, где они смогут наблюдать за игрой, но в то же время не мешать.

Длина дорожек:

При планировании боулинга необходимо исходить из того, что необходимая для размещения боулинга длина помещения без стойки оператора должна составлять 31м., в которую включены:

,05 м. (от стены до подвесной перегородки) - машинное отделение. В машинном отделении размещаются: проход для обслуживания механизмов, пинспоттер (механизм установки кеглей), система возврата шара (механизм возврата шара) и часть (2,45 м.) зоны дорожки. Проход (1,30 м. - минимальный размер; 1,50 м. - комфортный размер) предназначен для прохода механиков к механизмам с целью обслуживания пинспоттера и системы возврата шара;

,20 м. - зона дорожки (частично входит в машинное отделение). Конструктивно дорожка состоит из подосновы (деревянная каркасная конструкция), на которую сверху крепятся пиндек (специальная пластиковая площадка для установки кегель) и пластиковое покрытие;

,93 м. - зона разбега (со стороны дорожек она ограничена линией заступа), в которой располагаются накопители шара;

,00 м. - зона отдыха для посетителей (3,00 м. - минимальный размер; 6,00 м. - комфортный размер), где располагается специальная мебель (столешница с сидениями на основании) для отдыха игроков.

Высота дорожек:

Высота поверхности дорожек от уровня пола (отметка «0») - 450-470мм.

Если боулинг размещается в помещении с колоннами, то вдоль продольной оси колонн соседние дорожки имеют нестандартный промежуток. Промежуток имеется также между дорожками и боковыми стенами. Данные промежутки Покупатель закрывает после монтажа боулинга деревянным настилом с несущей способностью не менее 250 кг/м2, а затем оформляет их декоративными отделочными материалами согласно концепции дизайна помещения клуба.

Колонны, находящиеся в зоне дорожек, должны быть облицованы на высоту 1700 мм от бетонного пола ударопрочным материалом, исключающим их повреждение в случае попадания шаром.

Дверные (монтажные) проёмы:

Для вноса оборудования в помещение боулинга необходимы монтажные проёмы, которые должны иметь минимальные размеры:

мм по высоте;

мм по ширине.

Эргономика санузла.

Чтобы обеспечить максимальное удобство и безопасность пользования сантехническими устройствами и другими бытовыми приборами, установленными в туалете, должна быть оптимально выдержана эргономика санузла. Ведущими специалистами и медиками давно доказано, что чем более комфортно и удобно обустроены комнаты, тем лучше себя чувствует человек. Особенно важно соблюдать эргономику помещений в санузле, кухне и рабочем кабинете. Это поможет рационально использовать пространство и предметы быта.

Большинство санузлов настолько небольшого размера, что об эргономике говорить не приходится, но соблюдая несложные правила, можно немного приблизиться к идеальному расположению сантехники и других бытовых предметов. Несложно сделать санузел эргономичным, если он совмещен с ванной комнатой.

1.      По возможности между каждым из сантехнических устройств необходимо оставлять расстояние не менее 75 см. Такое же расстояние нужно выдержать между дверью в санузел и оборудованием туалетной комнаты;

2.      Единственными сантехническими устройствами, между которыми расстояние должно быть не более 40 см, являются унитаз и биде, если пространство будет больше, то это вызовет неудобства при эксплуатации;

3.      Если площадь комнаты небольшая, то возможно сокращение расстояния между ванной и раковиной;

.        Раковину нужно устанавливать на высоте не больше 90 см от уровня пола, при условии, что домочадцы не сильно высокого роста. Высота остальных тумбочек, установленных в ванной, должна быть похожей;

.        Когда человек моет лицо, он склоняется над чашей раковины. Следовательно, должно быть много пространства от раковины до стен или предметов мебели. Также не стоит устанавливать раковину в глухой угол. Приводя себя в порядок, человек не должен цеплять руками стены;

.        Вокруг унитаза нужно свободное место не меньше 40 см, вне зависимости от того, стоит там сантехника или начинаются стены;

.        Впереди унитаза должно быть свободное пространство не меньше полуметра, меньшее расстояние доставит неудобства при пользовании;

.        Оптимальным пространством перед унитазом считается свободное место в 75 см;

.        Держатель для туалетной бумаги крепится на расстоянии не более 25 см от переднего края унитаза, в то же время по высоте держатель для бумаги нужно крепить на 60 см от уровня пола;

.        Идеальная душевая кабина должна иметь стены не меньше 90 см. Это позволит пользоваться сантехническим устройством людям разной комплекции.

2.5 Обоснование выбора отделочных материалов

Керамогранит - основной материал для напольного покрытия. Этот материал используется в бильярдном зале, коридоре, санузле.

Керамогранит (керамический гранит, керогранит) - искусственный отделочный материал. Производится методом полусухого прессования из пресс-порошка при давлении 400-500 кг/см2, с последующим обжигом при температуре 1200-1300 °C. Пресс-порошок, в свою очередь, получают из шликера, который представляет собой тщательно гомогенизированную смесь сырьевых компонентов: беложгущиеся глины и каолины, кварцевый песок, плавни (полевые шпаты и пегматиты), вода.

Изначально керамогранит появился как плитка для технического применения (для устройства полов в помещениях с существенными нагрузками, например в общественных местах и в зданиях промышленных предприятий). За последние 15 лет прибавились новые виды плитки. Зачастую базовая смесь окрашивается путём введения в неё окрашивающих окислов, которые хорошо диспергируют при обжиге в полурасплавленной массе.

Для укладки керамогранита необходимо использовать только специализированые клеевые составы.

Уникальные эксплуатационные свойства керамогранита позволяют использовать его для облицовки фасадов и для внутренней отделки. Керамогранит долговечен и прочен, низкая подверженность механическим повреждениям, царапинам, и стиранию. Керамогранит не подвержен разрушению от влажности и перепадов температуры. Керамогранит уложенный с соблюдением технологии укладки, превосходно держится на стенах и на полу на протяжении длительного срока. Эстетические качества керамогранита позволяют реализовывать самые смелые дизайнерские решения для любого интерьера или фасада, этому также способствует богатая палитра цветов и фактур.

Керамогранит применяется для отделки полов и стен как внутри, так и снаружи помещений. Он считается идеальным напольным покрытием для помещений с высокой проходимостью - торговых комплексов, магазинов, метро, кинотеатров, вокзалов, аэропортов. Керамогранит используют в частных интерьерах при отделке холлов, прихожих, кухонь, коридоров, а также для облицовки ванных комнат и бассейнов, полов и стен в рабочих зонах кафе и ресторанов, на автомойках, в мастерских, гаражах, химлабораториях. Керамогранит используется в качестве облицовки в фасадных системах.

Под всей площадью боулинга должен быть ровный, гладкий и прочный пол, выполненный из бетона марки М300 (ГОСТ 7473-94) с армированием.

Товарный бетон марки м-300 (В 22.5) применяется в основном для изготовления монолитных фундаментов: ленточных, плитных, свайно-ростверковых; отмосток, дорожек, лент заборов, лестниц, подпорных стен, плит перекрытий, монолитных стен и т.д.

В современной системе классификации бетонов, принятой в соответствии со Ст СЭВ 1406, класс бетона марки м300 - В 22.5 занимает промежуточную ступень. И в общем-то, он не должен встречаться в проектной документации. Однако, документация - одно, а личный опыт - другое.

Бетон м300 (B 22.5) - наиболее часто заказываемая марка бетона. Практически, бетон м-300 - лидер продаж. Хотя прошёл уже не один десяток лет, с момента принятия СССР этих самых стандартов СЭВ 1406.

Даже несколько лет назад некоторые заводы не могли определиться до конца, и можно было встретить в продаже бетон м300 и с классом В 22.5, и с классом B 25.

Производство бетона БСГ м300 в22.5 возможно на известковом, гравийном и гранитном щебне.

Поверхности стен должны отражать, для этого был выбран отделочный материал - пластиковые панели или ПВХ.

Пластиковые панели безвредны Это верно. Химики-технологи давно уже научились производить высококачественные пластики без кадмия, асбеста и прочих токсичных и вредных примесей. Безопасные технологии производства пластических масс оказались к тому же проще и дешевле прежних, так что подделок могут опасаться только фанатики «теории заговора».

Сегодня пластиковые ПВХ получили очень широкое применение отделке, это экологичный и недорогой материал. Он легок в монтаже и имеет широкий ассортимент и цветовую палитру. Их успешно применяют в строительстве (заполнение дверного пространства, отделка оконных откосов,стен), а также для декоративной отделки. С их помощью можно изготовить перегородки, элемент балконов, щиты для рекламы. Пластиковые панели ПВХ - это материал для покрытия потолков и стен, обладающие большими преимуществами в сравнение с другими отделочными материалами. Они помогут заменить обои, гипсокартон, керамическую плитку, сайдинг. Они могут применяться для монтажа как на любые стены, так и на потолки, причем высокая стойкость окраски, способность с легкостью переносить воздействие влаги приводят к тому, что ПВХ являются идеальным вариантом для отделки ванной комнаты. Основными преимуществами является: цена, легкость установки, возможность скрыть теплоизоляцию и коммуникацию за панелями и отсутствие деформации при усадке дома. Стеновые ПВХ не боятся перепадов температур, легко моются, а при правильном уходе помогут сохранить свой изначальный вид многие годы. Они имеют на верхней поверхности декоративный рисунок и покрываются глянцевым или матовым лаком, обладающим антистатическим действием, хорошей устойчивостью к УФ- излучению, стойкостью к царапинам, хим. средствами т.д.Белые панели ПВХ, также могут быть глянцевыми и матовыми. Ребра жесткости обеспечивают хорошую прочность пластиковых панелей, благодаря своей конструкции.

2.6 Оборудование, мебель и декор в интерьере

В каждом помещении находится мебель, отражающее прямое назначение в интерьере. В развлекательном комплексе сочетаются помещения разного типа и не обходимо описать каждый элемент мебели.

Помещение боулинга вмещает в себя определенное оборудование.

Шары для боулинга. Шары для боулинга изготавливаются из полиэстера (в обиходе - пластик - материал прокатных шаров) и различных модификаций полиуретана («реактивная смола», эпоксидная смола, полиуретан с добавлением частичек кварца и др. - материалы профессиональных шаров). (Приложение В, илл. 15)

Столы в боулинг зале, монолитные со стульями. (Приложение В, илл. 16)

Барная стойка.

Для данной концепции характерно сочетание металла и стекла, благодаря чему создается особая атмосфера, насыщенная магией высоких технологий. Обычно ее усиливает подсветка на основе люминесцентных ламп, а также расстановка акцентов на определенных элементах. Традиционными составными частями барной стойки в стиле хай-тек являются хромированные опоры, стеклянные столешницы и детали, выполненные из нержавеющей стали. Такая мебель может выдерживаться в спортивном, космическом, рокерском или фантастическом направлении.(Приложение В, илл. 17)

Бильярдный стол.

Бильярдный стол "HI-TECH". Вариант для пула или для русского бильярда. Отделка венге с использованием стальной матовой окантовки. Возможно изготовление из массива вишни, бука или дуба. Стол изготовлен с усиленной несущей рамой на цельной продольной царге.

В сочетании с трехплоскостным креплением опор это дает уникальную устойчивость и жесткость всей конструкции. Футуристический внешний вид дополняют лузы закрытого типа, хромированные боковые накладки и облицовка из антипригарного пластика.(Приложение В, илл. 18)

Стойка ресепшн.

Ультрасовременный стиль «высоких технологий» - одно из самых востребованных и популярных направлений офисной мебели. Поэтому и ресепшн хай-тек, отличаясь простой геометрической формой и максимальной функциональностью - востребованная модель нашей компании. Минимальный дизайн, простые линии, высококачественные современные материалы и трёхцветная гамма придают ресепшн хай-тек элегантную строгость и уникальность. (Приложение В, илл. 19)


. Технические особенности помещений

.1 Технические рекомендации по проектированию боулинга

Помещение боулинга должно быть оборудовано системами электропитания и освещения (включая дежурное и специальное), системой отопления, вентиляции и кондиционирования, холодным и горячим водоснабжением и сливной канализацией, системами безопасности, включая пожарную сигнализацию. Предусматривается размещение аудио и видео аппаратуры. Рабочая температура в игровой зоне должна поддерживаться в диапазоне 18,5 - 21,0 град. С. Средняя влажность - 40%.

Оборудование боулинга располагается на прямоугольной площадке, размеры которой определяются, исходя из количества устанавливаемых дорожек и размещения оборудования зоны сидений для игроков.

Ширина дорожек

1 дорожка

2115 мм

8 дорожек

13667 мм

2 дорожки

3497 мм

9 дорожек

15675 мм

3 дорожки

5505 мм

10 дорожек

17057 мм

4 дорожки

6887 мм

11 дорожек

19065 мм

5 дорожек

8895 мм

12 дорожек

20447 мм

6 дорожек

10277 мм

13 дорожек

22455 мм

7 дорожек

12285 мм

14 дорожек

23837 мм


Длина дорожек

Стандартная длина дорожки 25410 мм. (в этот размер входят: зона разбега, дорожка и машина для установки кегель (пинспоттер)). Для определения полной длины к этому размеру необходимо добавить величину прохода для обслуживания пинспоттера - 1520 мм (минимум - 1300 мм), а также длину зоны сидений для игроков - от 3000 до 6000 мм.

Высота дорожек

Высота поверхности дорожек от пола (от «0») - 450-470мм. Это зависит от того, насколько точно у Вас залит бетонный пол.

Боковые проходы

Ширина боковых проходов определяется размерами здания. Боковой проход служит для перемещения технического персонала к зоне обслуживания машин и вспомогательным помещениям. Рекомендуемая ширина прохода -800 мм. В случае если размеры помещения не позволяют выдержать рекомендуемый размер, то необходимо оставить дополнительные 300 мм от стены до крайнего желоба, чтобы дать необходимую свободу игроку при броске.

Потолок

Конструкцию потолка выбирает архитектор, отталкиваясь от особенностей помещения и количества запланированных дорожек. Например: для 2-х дорожек нет никакого смысла делать 5 метровый потолок, а для 12-и и более такой размер наиболее оптимален. При этом он руководствуется Схемой размещения светильников (см. Схемы № 1 и № 5) и требованиями шумопоглощения. Высота потолка может варьироваться от 3000 до 5000 мм. Рекомендуемая высота до «чистого» потолка - 4 метра.

Дверные проемы (монтажный проем)

На момент монтажа оборудования предусматривается дверной проем, через который в помещение вносится оборудование.

Проём должен иметь минимальные размеры:

мм по высоте

мм по ширине

Условия хранения оборудования

В случае если между моментом доставки оборудования на объект и фактическим началом работ по его установке образуется временной интервал, то хранение оборудования, вплоть до начала монтажных работ, должно осуществляться Покупателем в крытом и отапливаемом помещении в соответствии со СНиП 41-07-2003 «Складские здания».

При долгосрочном хранении оборудования (месяц и более):

•        Влажность не должна превышать значения 60%.

При краткосрочном хранении оборудования (до одного месяца):

•        Температура в помещении должна находиться в диапазоне от +12 до +28 градусов Цельсия

•        Влажность не должна превышать значения 50%.

Общая площадь, занимаемая всем оборудованием при хранении, рассчитывается исходя из данных, что площадь 2-х складируемых дорожек боулинга составляет 80 квадратных метров. На площадке отведенной под монтаж не допускается складирование комплектующих для боулинга , пожалуйста продумывайте заранее места для хранения оборудования и аксессуаров для боулинга!!!

ЗОНА ДОРОЖЕК ДЛЯ БОУЛИНГА

Под всей площадью боулинга должен быть ровный, гладкий и прочный пол, выполненный из бетона марки М300 (ГОСТ 7473-94) с армированием. Толщина стяжки должна быть не менее 120 мм. Пустоты и трещины в полу боулинга недопустимы. Перепады не должны превышать +6 мм. на всю длину дорожек. (26 метров). Боулинг расположен на относительно большой площади и нагрузки на 1 кв.м. сравнительно не большие, тем не менее прочность пола должна позволять выдерживать максимальные нагрузки:

в зоне дорожек - 300 кг/ м2,

в зоне механизмов - 450 кг/м2,

в зоне отдыха - 400 кг/м2.

Эти цифры могут пригодиться проектировщикам Вашего клуба для более точных расчетов конструкции здания. После того, как все бетонные работы выполнены, необходимо дать стяжке просохнуть. Для этого необходимо около 15 суток. После просушки бетонная поверхность пола обеспыливается проникающей грунтовкой.

Перед тем, как заливать бетонную стяжку, необходимо позаботиться о гидроизоляции по всей поверхности помещения. Так же, возможно, придется обрабатывать гидроизоляционными составами и стены. Появление влаги может привести к коррозии металлических элементов оборудования боулинга и деформации деревянной конструкции основания дорожек.

Если в полу под боулингом проходят какие-либо коммуникации, следует помнить, что доступа к ним не будет. Для обслуживания коммуникаций и для их ремонта потребуется разбирать боулинг полностью, что конечно же нежелательно. Если же расположить коммуникации нигде больше не удается, то глубина их залегания должна быть не менее 150 мм. Электрические и другие кабели должны быть при этом защищены металлической трубой.

Если боулинг размещается в помещении с колоннами, то по продольной оси колонн здания соседние дорожки имеют нестандартный промежуток. Подобный промежуток имеется также между дорожками и боковыми стенами. Данные промежутки Покупатель закрывает после мотажа боулинга деревянным настилом с несущей способностью не менее 250 кг/кв.м. Дополнительные промежутки оформить декоративными отделочными материалами согласно концепции дизайна помещения клуба.

Колонны, находящиеся в зоне дорожек, должны быть облицованы на высоту 1700 мм от бетонного пола ударопрочным материалом, исключающим их повреждение в случае попадания шаром.

Устройство бетонного пола помещения боулинга.

Если на боковых стенах предусматривается установка отопительных радиаторов, то так же необходимо защитить их от попадания шаром. Радиаторы должны быть расположены на высоте min 50см. от поверхности дорожки (около 1 метра от пола).

Потолок в зоне дорожек рекомендуется выполнять из звукопоглощающего материала. Возможно применение прямоугольных плит типа «ЭКОФОН» устанавливаемых на стандартной фурнитуре «Армстронг». Традиционно в боулинг-центрах для снижения уровня шума потолок выполняется переменного профиля, при этом высота перепада должна быть не менее 400 мм .

Для освещения поверхности игровых дорожек в местах перепада профиля потолка Покупатель устанавливает люминесцентные лампы (рекомендуется 36 Вт) в открытой фурнитуре. Количество ламп рассчитывается таким образом, чтобы обеспечить в зоне дорожек освещенность 350 Лк, при этом необходимо расставить лампы таким образом, чтобы добиться равномерного (без пробелов) освещения.

Расположение светильников и освещенность в различных местах боулинга.

отделочный боулинг проектирование композиционный

Для создания эффекта «Экстрим» (свечение поверхности дорожек в ультрафиолете) Покупатель монтирует на потолок лампы ультрафиолетового свечения, которые представляют собой стандартную фурнитуру, в которую устанавливается лампа называемая UV или Black Light, рекомендуется PHILIPS TLD 36W/08. Количество ультрафиолетовых ламп должно быть равно количеству белых ламп .

Включение ламп осуществляется раздельно, должны работать или лампы белого или ультрафиолетового цвета.

Вентиляция и кондиционирование воздушной среды над зоной дорожек не предусматривается.

ЗОНА РАЗБЕГА

Бетонные полы основания зоны разбега выполняются Покупателем на том же уровне и по тем же условиям, что и для зоны дорожек боулинга .

Деревянное основание и покрытие зоны разбега выполняется аналогично конструкции самих дорожек. Со стороны дорожек зона разбега ограниченна линией заступа.

На бетонном основании пола специалистами Продавца монтируются механизмы подъема шаров.

Потолок в зоне разбега выполняется плоским на оптимальной высоте.

Освещение зоны разбега осуществляется лампами накаливания или галогенными лампами с возможностью регулирования освещения. Количество ламп выбирается из условия обеспечения нормы освещенности 250 Лк .

Для создания эффекта «Экстрим» на потолке устанавливаются светильники с ультрафиолетовыми лампами (можно использовать растровые светильники под 18 Вт лампы).

КРЕПЛЕНИЕ ПОДВЕСНЫХ МОНИТОРОВ

Для установки подвесных мониторов Покупатель монтирует на потолке трубу диаметром не менее 50 мм в месте, указанных Продавцом. Стандартное место установки - над линией заступа. Крепление трубы должно выдерживать статическую нагрузку не менее 50 кг на погонный метр. Если потолок помещения боулинг центра в месте расположения подвесных мониторов выполняется из гипсокартона, то для доступа к элементам подвеса, электропитания и управляющей проводке в потолке необходимо предусмотреть технологические проемы, которые впоследствии можно закрыть съемными декоративными решетками или смотровыми лючками. Над линией заступа предусматривается установка решеток приточной и вытяжной вентиляции для подачи свежего воздуха к игрокам. Скорость истечения воздуха из решеток должна быть не более 400 мм/сек.

Расположение кабельного канала к подвесным мониторам.

Внешний вид подвесных мониторов и разрез потолка в зоне их крепления.

ЗОНА СИДЕНИЙ ДЛЯ ИГРОКОВ

Зона сидений для игроков обычно начинается на расстоянии 26 320 мм от задней стены помещения, а ее длина может варьироваться от 3000 до 6000 мм. Рекомендуемая минимальная длина зоны - 5500 мм. На поверхности зоны специалистами Продавца монтируется специальная мебель. Что касается так называемого подиума (место отдыха игроков), то мы рекомендуем возводить его после монтажа дорожек. Совсем не обязательно делать его из бетона. Мы рекомендуем изготавливать подиум из деревянных конструкций. Это быстрее, дешевле и проще. Тем более, что эти конструкции Вы можете заказать у нас дополнительно. Конструкция полов зоны сидений для игроков должна выдерживать максимально допустимую нагрузку 250 кг/кв.м.

В качестве покрытия для поверхности зоны игроков рекомендуется применить износостойкий ковролин или ламинат. Не рекомендуется для отделки пола зоны отдыха использовать керамическую плитку.

Граница примыкания зоны разбега и зоны сидений для игроков должна быть закрыта надежно закрепленным металлическим молдингом. Зона отдыха игроков должна располагаться на 3-5см. ниже зоны разбега. Это ограничит попадание образивных частиц на поверхность дорожек. Больше чем 5 см этот перепад делать не рекомендуется из-за риска падения игроков и получения травм.

Потолок над зоной сидений для игроков выполняется в том же уровне, что и над зоной разбега.

Требования к освещению такие же, как и в зоне разбега. Рекомендуемая норма освещенности для белого цвета 150-200 Лк.

Для создания эффекта «Экстрим» на потолке устанавливаются светильники с ультрафиолетовыми лампами (можно использовать растровые светильники под 18 Вт лампы).Над столами игроков устанавливаются решетки системы вытяжной вентиляции .

Если кондиционирование воздуха производится локальными сплит-системами, то воздухообменные агрегаты устанавливаются на границе зоны разбега и зоны сидений для игроков.

Во избежание травм посетителей зона сидений для игроков огораживается по периметру поручнем высотой не менее 900 мм.

Для подъема на зону сидений для игроков с уровня пола предусматриваются ступени. При включении в зале ультрафиолетового освещения должна включаться подсветка ступеней белым светом.

Терминал (пульт) игрока. Обычное исполнение.

Терминал игрока с сенсорным экраном.

Разрез дорожки боулинга в зоне механизма возврата шара.

МАШИННОЕ ОТДЕЛЕНИЕ

Машинное отделение является источником технических шумов, распространяющихся по зданию, и поэтому его звукоизоляции уделяется повышенное внимание. Для подавления шумов из машинного отделения необходимо применять современные шумопоглощающие материалы.

РЕСЕПШЕН

Основная внутренняя поверхность стойки ресепшен занята ячейками для сменной обуви .

Для подключения всех видов аппаратуры размещаемой на ресепшен с внутренней стороны стойки предусматривается установка 6 розеток для управляющей боулингом аппаратуры.

Розетки можно смонтировать во время монтажа.

Для обеспечения связи на стойке ресепшен предусматривается установка телефонной розетки и розетки для компьютерной сети.

Для прокладки кабелей управляющей разводки Покупатель устанавливает кабелепровод в виде ПВХ трубы ( с зондом ) диаметром не менее 50 мм между ресепшен и машинным отделением.

Также рекомендуется установка кабелепроводов для прокладки кабелей между ресепшн и менеджерской, а также комнатой охраны. На потолке необходимо предусмотреть установку решеток приточно-вытяжной вентиляции.

Электронные блоки, устанавливаемые на стойке управления.

ТЕХНИЧЕСКОЕ ПОМЕЩЕНИЕ

Техническое помещение примыкает к машинному отделению боулинга и предназначено для хранения запасных частей и расходных материалов, необходимых при эксплуатации оборудования.

Техническое помещение предусматривает самую простую отделку: стены - крашенный гипсокартон, потолок - «армстронг», полы - линолеум.

Освещение в техническом помещении выполняется потолочными светильниками. Норма освещенности 300 Лк.

Розетки в техническом помещении не предусматриваются.

ПРОХОДЫ

Служат для перемещения посетителей и персонала. Должны быть обозначены освещением или цветом напольного покрытия.

Рекомендуемая ширина прохода - 0,91 м.

Поскольку поверхность пола в зоне проходов испытывает максимальную нагрузку от ног посетителей, то в качестве материала напольного покрытия рекомендуется применять или керамический гранит или износостойкие, наливные композиции.

Над зонами проходов рекомендуется размещать решетки подачи воздуха системы общеобменной вентиляции.

Освещение проходов выполняется только белым светом.

ТЕМПЕРАТУРА И ВЛАЖНОСТЬ

Применение инновационных технологий и современных материалов в производстве оборудования для боулинга обеспечивает его нечувствительность во время эксплуатации к колебаниям температуры и влажности окружающей среды.

Электронная система управления и электромеханические приводы пинсеттера позволяют ему надежно работать в диапазоне температур от +5 до +35 град. С, при любой влажности, за исключением температурно-влажностного соотношения соответствующего условиям выпадения росы!!!!.

Конструкция смонтированных дорожек и находящихся в работе кеглей, также не теряет своих эксплуатационных свойств при указанных выше условиях.

Повредить дорожку или кегли можно только при прямом заливании их водой. Недопустима излишняя сухость воздуха. Это может вызвать возникновение статического электричества и, соответственно выход из строя ситемы подсчета очков и контроллеров.

Выполнение требований к соблюдению температурно-влажностных условий в помещении боулинга необходимо, прежде всего, для комфортного самочувствия и безопасности игроков, и поддержания игровой кондиции дорожки.

Следует особо отметить, что для клубов, позиционирующихся как спортивные боулинг-центры, поддержание постоянной температуры и влажности является обязательным условием, поскольку это позволяет сохранять неизменными игровые свойства дорожки.

Рабочая температура в игровой зоне должна поддерживаться в диапазоне 18,5 - 21,0 град. С.

Для обеспечения комфортных условий для игроков, уровень относительной влажности рекомендуется поддерживать в диапазоне от 40 до 50%.

ВЕНТИЛЯЦИЯ И ОТОПЛЕНИЕ

Система приточно-вытяжной вентиляции рассчитывается из условия шестикратного обмена. Объем подаваемого воздуха должен превышать объем удаляемого воздуха на 15 - 20%.

Приточная вентиляция должна обеспечивать приток свежего воздуха к играющему на дорожке, а вытяжная удалять дым и запахи из зоны сидений и столов для игроков .

Забор и выброс воздуха для кондиционирования рекомендуется организовывать над зоной разбега. Система кондиционирования должна начать функционировать за 10-15 дней до начала монтажа оборудования для боулинга!

Для предотвращения попадания пыли в механизмы пинспоттеров и на поверхность дорожек пространство в машинном зале и над дорожками не вентилируется.

Система отопления выполняется в виде водообогреваемых пристенных радиаторов с встроенной автоматической системой поддержания установленной температуры. При проектировании в зале для бо¬улинга системы парового отопления радиаторы располагайте так, чтобы их нижний край находился не ближе 900 мм к поверх¬ности пола.

ЗВУКО-ВИБРОИЗОЛЯЦИЯ

В зависимости от конструктивных особенностей здания, в котором располагается боулинг и исходной акустики помещения, а также специфики прилегающих помещений, мы готовы предоставить Вам конкретные рекомендации по обеспечению необходимой звуковой и виброизоляции.

ЭЛЕКТРОТЕХНИЧЕСКИЕ ТРЕБОВАНИЯ

Установленная мощность оборудования составляет от 3,5 до 5 киловатт на одну дорожку и зависит от конкретной комплектации.

4. Инженерное оборудование, сети и системы

.1 Отопление, вентиляция, кондиционирование

Наличие мощной приточно-вытяжной промышленной системы вентиляции и кондиционирования в торговом центре является обязательной инженерной конструкцией, которая должна соответствовать СНиП 2.04.05-91. Благодаря ее правильной работе создается микроклиматическая зона комфорта в торговых залах, несмотря на большое скопление людей. А вот комфорт, прежде всего, влияет на то, сколько времени человек пробудет в магазине.

Развлекательный комплекс - это тот же торговый центр, и он бывает двух типов: зона развлечений и торговый комплекс. Для простого посетителя разницы практически нет. Но из-за расположения помещений, организация вентиляционной системы в них существенно отличается.

Зона развлечений - расположенный в одном большом помещении, с высокими потолками, в которой находится максимальная концентрация посетителей. Так как зона отдыха находится в одном помещении, то подавать воздух в разные его зоны нецелесообразно. Именно поэтому в них используются мощные приточно-вытяжные системы вентиляции и кондиционирования, без регулирования его параметров.

В торговом комплексе все пространство разделено на зоны по их функциональности, которые нужно обеспечить индивидуальными параметрами воздуха. В разные зоны подается различный воздушный поток, который рассчитывается отдельно в зависимости от проходимости и дополнительных требований.

Проектирование отопления и вентиляции - это первый этап организации развлекательного центра, который должен быть готов еще до начала строительства здания. Если делать это уже в процессе строительства, то эти важные системы могут не согласовываться с другими инженерными коммуникациями.

Ко всем без исключения вентиляционным системам в центрах действует правило: воздухооборот на каждого посетителя должен быть не менее 20 м.куб, а на сотрудника - не менее 60 м.куб. Для того, на сколько человек рассчитан такой магазин, также существуют определенные нормы: если в центре находится много мебели, спортивного оборудования, радиоэлектроники, то на одного человека законодательством выделяется 3,5 м.кв. Если спецификой комплекса является продовольствие, то на одного человека выделяется 2.5 м.кв. Несложно сделать расчет воздухообмена, который должна обеспечивать вентиляционная система.

Если на площадке существуют продовольственный и непродовольственные отделы, то они должны располагаться в разных помещениях и обеспечиваться отдельными вентиляционными системами. Что и показано на чертежах развлекательного комплекса, зона кафе находится на большом расстоянии от игровых помещений.

Особые требования к вентиляционным системам таких центров обусловлены наличием большого количества холодильного оборудования, которое является источником выделения тепла.

Еще одним нюансом, на который стоит обращать особое внимание при проектировании систем вентиляции и кондиционирования являются работники этого предприятия. Так как им приходится длительное время находится в условиях искусственно созданного микроклимата, то несоблюдение температурных требований, а также требований к циркуляции воздуха в помещении центра, может привести к массовым заболеваниям персонала.

В качестве основной приточной установки для оснащения торгового центра может использоваться центральный кондиционер, который имеет функциональную возможность подавать как охлажденный, так и подогретый воздух. Такие агрегаты собираются под заказ с определенными требованиями и техническими характеристиками. Центральный кондиционер имеет модульную структуру, в которую входят отдельные блоки: секция с вентиляторами, блок охлаждения, модуль нагрева воздуха. Кроме того, в нем обычно находятся блоки фильтрации, шумоподавления и увлажнения. Конструкция центрального кондиционера предполагает наличие внешнего модуля, поэтому их используют совместно с чиллер-фанкойлами, установленными на крыше здания. Это оборудование имеет множество преимуществ: они полностью безопасны, имеют возможность регулировки температуры выходящего воздуха, отдельно в каждой зоне, и не имеют никаких ограничений по длине воздуховодов. Но торговый центр благодаря своей зональности имеет индивидуальные требования по характеристикам и обустройству вентиляционной системы, поэтому стандартных решений по выбору того или иного типа вентиляции не существует.(Приложение Г, илл. 20)

4.2 Водоснабжение и водоотведение

При проектировании системы водоснабжения любого объекта прежде всего должно быть определено, сколько воды и какого качества требуется подавать данному объекту. Для решения этой задачи необходимо с возможной полнотой учесть всех возможных потребителей воды и установить их требования к количеству и качеству подаваемой воды.

Вода расходуется различными потребителями на самые разнообразные нужды. Однако подавляющее большинство этих расходов может быть сведено к трем основным категориям.

Система водоснабжения представляет собой комплекс сооружений для обеспечения определенной (данной) группы потребителей (данного объекта) водой в требуемых количествах и требуемого качества. Кроме того, система водоснабжения должна обладать определенной степенью надежности, т е обеспечивать снабжение потребителей водой без недопустимого снижения установленных показателей своей работы в отношении количества или качества подаваемой воды (перерывы или снижение подачи воды или ухудшение ее качества в недопустимых пределах).

После того как будет определен необходимый объем водопотребления объекта и будут собраны сведения о возможных для использования природных источниках, может быть выбран источник и намечена схема водоснабжения.

Как методы использования воды на нужды производства, так и определение требуемых для производства количеств и качеств воды всецело зависят от характера технологического процесса.

Вода используется в производстве для весьма разнообразных целей. В качестве основных категорий производственного водопотребления могут быть названы: использование воды для охлаждения, для промывки, замочки, увлажнения, для парообразования, для гидротранспорта, в составе производимой продукции и т. д. Использование воды для охлаждения имеет масштабы, значительно превосходящие масштабы всех остальных видов потребления воды, причем удельный вес этой категории в общем объеме производственного водоснабжения продолжает расти. К этой категории относятся расходование воды для конденсации пара, отходящего от паровых турбин электростанций, и использование воды для охлаждения различных печей, машин и аппаратуры (металлургическая, нефтеперерабатывающая, химическая промышленность и др.). Вода для промывки, замочки и т. п. расходуется в больших количествах на нужды бумажной, целлюлозной, шерстеобрабатывающей, текстильной промышленности, промышленности искусственного волокна и др. Расходование воды на гидротранспорт различных материалов имеет место в самых разнообразных отраслях промышленности (в том числе шлако- и золоудаление на теплосиловых станциях, транспортирование шлака в доменных цехах, отходов обогатительных фабрик и т. д.).

Требуемые для производственных целей количества воды определяются в результате технологических расчетов, так же как и требуемые количества топлива, пара, электроэнергии и т. п., и в значительной степени зависят (изменяются) от принятой схемы технологического процесса, типа используемого оборудования и др.

4.3 Теплоснабжение

Проектируемый объект находится в местности, подвергнутой в зимнее время года сильными холодами. Работая круглогодично, в том числе и в условиях зимнего времени, когда при большом потоке посетителей двери развлекательного центра работают интенсивно, впуская и выпуская не только людей, но и большие объемы холодного воздуха, для поддержания комфортных условий внутри огромного помещения необходим целый ряд различных элементов теплоснабжения.

Это и общее отопление, и вентиляция с подогревом воздуха, и тепловые завесы у входных дверей и т.д. В итоге мощность потребления крупных торговых комплексов исчисляется мегаваттами. Поэтому такие системы должны грамотно проектироваться с расчетом наиболее оптимального с точки зрения затрат варианта, при этом должен соблюдаться один важный критерий - бесперебойность работы оборудования систем теплоснабжения.

Чтобы удовлетворить все эти требования к системам теплоснабжения, в проекте используются электрические индукционные котлы серии SAV. (Приложение Г, илл. 21.22) Котлы SAV - универсальные устройства, подходящие для применения в любых системах инженерных коммуникаций торговых комплексов - системах отопления, горячего водоснабжения, вентиляции и дающие возможность полностью автоматизировать процесс управления теплоснабжением всего объекта, они позволяют обеспечить бесперебойную работу и экономное энергопотребление при проведении следующих мероприятий:

организация автоматических пунктов климатического контроля с возможностью грамотного управления процессами распределения и балансировки отопительных систем;

организация распределения тепловых потоков от группы индукционных котлов;

использование автоматического догрева теплоносителя;

разработка автоматических программ отопления объекта с применением суточного графика;

Выгода использования индукционных котлов SAV в развлекательных центрах заключается также и в возможности локализации теплоснабжения, организации его в удаленных или достраиваемых объектах, где недоступна центральная система отопления или ее установка экономически нецелесообразна.

4.4 Звукоизоляция

При проектировании развлекательного центра , было уделено внимание вопросам звуко- виброизоляции, а также созданию требуемого акустического комфорта в помещениях. Европейская практика эксплуатации показывает, что чем комфортнее с точки зрения акустики (меньшей шумности) центр, тем больше времени там проводит посетитель-покупатель.

Вопросы звуко-виброизоляции и акустики в торгово-развлекательных центрах условно могут быть разделены на следующие подзадачи:

Звукоизоляция "шумных" помещений развлекательного комплекса. К их числу относятся почти все развлекательные заведения: кинотеатры, клубы, боулинги и пр. Для этого между ними и торговыми площадями предусматривают виброизоляция полов, шумоизоляцию стен и перегородок, звукоизоляция потолков и полов.

Звуко- и виброизоляция инженерного оборудования: снижение шума от систем вентиляции и кондиционирования, а также прочих прилегающих технических помещений (виброизоляция холодильных машин, шумоизоляция чиллеров и т.п.). При этом объекты защиты - прилегающие к инженерным агрегатам торговые и развлекательные, а также административные помещения.

Требуемая акустическая среда в помещениях торгово-развлекательного комплекса: снижение шума в галереях, атриумах, игровых зонах. Важно понимать, что плохая акустика в помещениях в конечном счете выливается в недополученную прибыль арендаторов и владельцев площадей.

4.5 Освещение

Для повышения уровня посещения в развлекательном центре существует потрясающий по простоте способ: любой посетитель должен быть расслаблен и наслаждаться атмосферой. Это состояние создается тремя способами: приятной музыкой, теплотой и самое важное - световое оформление.

Торговый центр «Вселенная» был освещен встраиваемыми светодиодами типа ЛВО 4х18Вт и 2х36Вт. Светодиодные светильники, производимые компанией «ЛЕД-Эффект» были признаны как лучшее предложение по соотношению цена /качество, были выбраны надежные встраиваемые светильники серии «ОФИС».

Встраиваемые светодиодные светильники серии «ОФИС» отвечают жестким современным требованиям и обладают целым рядом преимуществ :

низкое энергопотребление, светильники серии «ОФИС» аналогичные светильникам ЛВО4х18 потребляют всего 33Вт, экономия достигает 3х раз

большой срок службы 50 000 часов

не требуют обслуживания

не требуют утилизации

не чувствительны к частым включениям/выключениям

комфортная цветовая температура 4300К

стабильность световых характеристик на протяжении всего срока службы, достигается при помощи установки качественных светодиодов NICHIA (Япония)

простой монтаж.

В результате в развлекательном центре удалось создать комфортную световую среду, высокий индекс цветопередачи позволяет посетителям воспринимать яркие и разнообразные цветные витрины так как они есть без искажения, равномерная комфортная освещенность располагает к неспешному ритму посещения разных игровых помещений .


. Заключение

В ходе работы было выполнено множество задач по созданию дизайна развлекательного комплекса. Углублены навыки работы с научной литературой, систематизированы и направлены в одно русло полученные в процессе обучения знания эргономики, композиции, колористики, инженерных отраслей. Углубился навык аргументировать научными положениями собственный выбор конструктивных и художественных решений проектируемого объекта. Результатом теоретического исследования и практической работы явился проект интерьера развлекательного центра «Вселенная». Пространство помещения организовано грамотно, использован принцип разделения на функциональные зоны.

В плане художественно - образного решения была попытка создать для посетителей интересный эффект космического пространства, олицетворение галактической красоты, используя элементы металла, гибких форм, естественной для космического корабля и его обители цветовой гаммы.


Список литературы

1.Чин Френсис, Д.К. Бинжелли Корки., Дизайн интерьера. Иллюстрированный справочник./ пер. с англ. Андреев А. - г. Белгород: Клуб семейного досуга, 2007г., 336м.;

. Гиббс Дженни, Настольная книга дизайнера интерьера./ пер. с англ. Романов А.П. - г. Москва: БММ, 2008г., 112с.;

. Зинченко В.П., Мунипов В.М., Основы эргономики, 2001г.;

. Панеро Д., Основы эргономики. Человек, пространство, интерьер; АСТ, 2008г.;

. Уилхайд Э., Отделочные материалы. Справочник материалов для отделки интерьеров, Кладезь-Букс, 2009г.;

. Назарова В.И, Современные работы по внутренней и внешней отделке дома, Рипол Классик, 2011г.;

. Симонов Е.В., Дизайн, перепланировка. Как стильно обустроить жилье, Питер, 2010 г.;

. Белозеров Н.А, Современные отделочные работы и материалы, Агентство Мультипресс, 2007г.;

. Петер Нойферт, Людвиг Нефф. Проектирование и строительство.

Дом, квартира, сад. Иллюстрированный справочник для заказчика и проектировщика. М, Архитектура-С, 2005г.;

. Изд. АСТ, Дизайн и декор интерьера. 500 полезных советов, 2010г.;

. Лакшми Бхаскаран, Дизайн и время. Стили и направления в современном искусстве и архитектуре. Арт - Родник, 2007г.;

. Франсис Д. К. Чинь, Архитектурная графика, Астрель, АСТ, 2007г.;

. Келли Хоппен «Золотые правила дизайна: стиль Келли Хоппен» , Агентство Мультипресс, 2007г.;

14. Adam Lewis «The Greate Lady Decorators» , Архитектура-С, 2005г.;

. Mona Hajj «Interior Visions», 2011г.;

. Stephen Crafti «21st Century Kitchens», 2012 г.

17. Детали интерьера , Автор: Фей Свит, 2014г.

. 1001 идея цветовых решений вашего интерьера, Редактор: Е. Розанова, Переводчик: А. Ким, 2014 г.

. Стильный интерьер, Автор: Уэнди Бэйкер , 2013 г .

. Энциклопедия Дизайна. , Концепции. Материалы. Стили, Автор: Питер Фиелл, Шарлотт Фиелл , Серия: Icons

. Все о цвете, Автор: Дженис Линдси, 2015 г.

Интернет ресурсы.

.        Отделочные материалы http://www.naturamarin.ru/cat/kraski_auro/dlja_sten_i_potolkov/shtukaturki/

.        Плитка http://mramor5.ru/pages/izdeliya_iz_mramora/mramor_pol_price.php

.        Ламинат http://leroymerlin.ru/catalogue/napolnye_pokrytiya/dekorativnye_napolnye_pokrytiya/laminat/

.        Обои http://leroymerlin.ru/catalogue/dekor/okleyka_sten_oboi/oboi/?filter%5BPROP_287%5D%5B%5D=117405&filter%5BPROP_827%5D%5B%5D=116756&set_filter=Искать://leroymerlin.ru/catalogue/plitka/plitka_kamen_mozaika/plitka_dlya_vannoy/

.        Мебель «Феликс» http://www.felix.ru/catalogue/726/

.        Сантехника Люкс аква http://www.luxaqua.ru

.        Эргономика http://www.liveinternet.ru/tags/%EA%EE%EC%EF%EE%E7%E8%F6%E8%EE%ED%ED%EE%E5+%F0%E5%F8%E5%ED%E8%E5+%E8%ED%F2%E5%F0%FC%E5%F0%E0/

Похожие работы на - Дизайн-проект развлекательного боулинг центра 'Вселенная'

 

Не нашли материал для своей работы?
Поможем написать уникальную работу
Без плагиата!
Без нейросетей!