Экологическое влияние переработки буровых отходов методом солидации в геотекстильных контейнерах

  • Вид работы:
    Дипломная (ВКР)
  • Предмет:
    Экология
  • Язык:
    Русский
    ,
    Формат файла:
    MS Word
    2,6 Мб
  • Опубликовано:
    2015-05-30
Вы можете узнать стоимость помощи в написании студенческой работы.
Помощь в написании работы, которую точно примут!

Экологическое влияние переработки буровых отходов методом солидации в геотекстильных контейнерах

Введение

Производственная деятельность нефтегазоразведочных и нефтегазодобывающих предприятий неизбежно оказывает техногенное воздействие на объекты природной среды. Известно, что эксплуатация нефтегазовых месторождений сопровождается загрязнением окружающей среды буровыми отходами. Таким образом, в настоящее время поиск эффективного и безопасного способа утилизации буровых отходов на производственных площадках нефтедобывающих предприятий является весьма актуальной задачей.

Целью дипломного проекта является проведение экологической оценки влияния эксплуатации оборудования по утилизации буровых отходов, с использованием технологии геотекстильных контейнеров на основные компоненты окружающей природной среды.

Данная технология предлагает способ утилизации буровых отходов, целью которого является снижение негативного воздействия промышленных отходов нефтегазодобывающих предприятий на окружающую среду. Технология геотекстильных контейнеров позволяет добиться значительной эффективности в удалении отходов бурения и в дальнейшем повторного использования сточной воды для приготовления буровых растворов. Преимуществом данной технологии является автономность и мобильность, что свидетельствует о возможности ее расположения и применения на любой территории.

Оборудование по утилизации буровых отходов планируется использовать на производственных площадках действующих нефтегазодобывающих предприятий в период проведения поисково-разведочного и эксплуатационного бурения.

После утилизации отходов на выходе образуется вода, которая повторно используется в технологическом процессе, и твердая фаза, которая впоследствии используется в строительстве.

В случае если очищенный буровой шлам (песок) будет иметь превышения ПДК по нефтепродуктам, отходы будут подвергаться термообработке на установке КЭБ-0,8.

Объектом дипломного проектирования является экологическое влияние переработки буровых отходов методом солидации в геотекстильных контейнерах.

Предметом дипломного проектирования является выбросы от основного и вспомогательного оборудования при переработки буровых отходов.

К основному оборудованию по переработки относится комплект на базе геотекстильного контейнера. К вспомогательному шламовые и шнековые насосы, циркуляционное оборудование - вибросита, гидроциклоны, оборудование по брикетированию бурового шлама и бетоносмесительный узел.

Общая численность задействованных работников для установки - 4 человека, 10 человек будут задействованы на участке переработки отходов. Работа вахтовым методом по 14 дней.

Режим планируемых работ 365 дней в году - 12 часов в сутки, (1,5 смены). Проживание рабочих предусматривается в существующих вахтовых поселках, расположенных вблизи мест проведения поисково-разведочных работ и эксплуатационных работ.

Электроснабжение оборудования обеспечивается от дизельных установок.

Водоснабжение для бытовых и технологических нужд будет доставляться на промплощадку в цистернах. Хозяйственно-бытовые сточные воды будут сбрасываться в сборную емкость с последующим вывозом асенизационной машиной на существующие станции очистки сточных вод.

Дипломным проектом определено 10 источников выбросов загрязняющих веществ в атмосферу (из них 6 организованных и 4 неорганизованных источников).

Выбросы: 

Валовый выброс          -        19,787 т/год (в т.ч. твердые: 1,028 т/год, газообразные: 18,759 т/год);

суммарный максимально-разовый - 1,807 г/с (в т.ч. твердые: 0,105г/с, газообразные: 1,702 г/с).

Водопотребление: - 42,335 м3/год.

Отходы: - 2,8 т/год.

Дипломный проект включает в себя следующие разделы:

Аналитический обзор законодательной базы и нормативных документов РК в области ООС;

технология переработки буровых отходов;

характеристика окружающей среды района осуществления производственной деятельности;

экологическая оценка переработки буровых отходов методом солидации;

экономическая часть;

раздел по безопасности жизнедеятельности.

Автор дипломного проекта - Сармулдинов Ахат.

Научный руководитель - к.т.н., доц., Санатова Т.С.

Дипломный проект состоит из: 70 страниц текстового написания, 26 таблиц, 20 фотографий и рисунков, 36 формул, 12 графических приложений, 18 источников литературы.

. Аналитический обзор законодательной базы и нормативных документов РК в области ООС

В настоящем разделе представлен краткий обзор основных, базовых документов нормативно - законодательной базы Республики Казахстан в области охраны окружающей среды и в частности в области утилизации отходов.

Экологическое законодательство Республики Казахстан основывается на Конституции Республики Казахстан и состоит из Экологического кодекса и иных нормативных правовых актов Республики Казахстан.

Основным законодательным документам РК, регулирующим вопросы загрязнения окружающей среды, является Экологический кодекс Республики Казахстан, Утвержден Указом Президента Республики Казахстан от 09 января 2007 года №212-III ЗРК. Согласно ст.1 п.24 утилизация отходов - использование отходов в качестве вторичных материальных или энергетических ресурсов [1].

Экологическим кодексом устанавливается 3 уровня опасности отходов (см. ст.287 п.2), в соответствии с Базельской конвенцией [1]:

а) Зеленый - индекс G;

б) Янтарный - индекс А;

в) Красный - индекс R.

Согласно приложению 8 Классификатора отходов, буровой шлам относится к янтарному списку отходов - AЕ040 [16].

В Экологическом кодексе сформулированы экологические требования к природопользователям, осуществляющим хозяйственную деятельность. Указано, что эксплуатация любых промышленных объектов должна осуществляться с учетом установленных экологических требований, с использованием экологически обоснованных технологий, необходимых очистных сооружений и зон санитарной охраны, исключающих загрязнение окружающей среды.

В Кодексе указано, что все операции по недропользованию являются экологически опасными видами хозяйственной деятельности и должны выполняться с соблюдением определенных требований (см. ст. 220), включая проведения работ по утилизации шламов и нейтрализации отработанного бурового раствора, буровых, карьерных и шахтных сточных вод для повторного использования в процессе бурения, возврата в окружающую среду в соответствии с установленными требованиями (п. 6) [1].

При проектировании хозяйственной деятельности должны быть предусмотрены:

а) соблюдение нормативов качества окружающей среды;

б) обезвреживание и утилизация опасных отходов;

в) использование малоотходных и безотходных технологий;

г) применение эффективных мер предупреждения загрязнения окружающей среды;

д) воспроизводство и рациональное использование природных ресурсов.

Кроме Экологического кодекса вопросы охраны окружающей среды и здоровья населения регулируются следующими основными законами и нормативными актами:

Кодекс Республики Казахстан «О здоровье народа и системе здравоохранения» от 18 сентября 2009 года № 193-IV;

Методика определения нормативов эмиссий в окружающую среду от 16 апреля 2012 года № 110-ө (с изменениями по приказу Министра ОС и ВР РК от 11 декабря 2013 года № 379-Ө);

Методика расчета концентраций вредных веществ в атмосферном воздухе от выбросов предприятий (приложение № 18 к приказу Министра охраны окружающей среды Республики Казахстан от 18 апреля 2008 года № 100-п);

Санитарно-эпидемиологические требования к атмосферному воздуху (Постановление Правительства Республики Казахстан от 25 января 2012 года № 168);

Постановление Правительства Республики Казахстан от 17 января 2012 года № 93 «Об утверждении Санитарных правил «Санитарно-эпидемиологические требования к зданиям и сооружениям производственного назначения» и «Санитарно-эпидемиологические требования по установлению санитарно-защитной зоны производственных объектов»;

Водный кодекс Республики Казахстан №481-II от 9 июля 2003г;

Санитарные правила «Санитарно-эпидемиологические требования к водоисточникам, местам водозабора для хозяйственно-питьевых целей, хозяйственно-питьевому водоснабжению и местам культурно-бытового водопользования и безопасности водных объектов» от 18 января 2012 года № 104;

РНД 03.3.0.4.01-96 «Методические указания по определению уровня загрязнения компонентов окружающей среды токсичными веществами отходов производства и потребления»;

РНД 03.1.0.3.01-96 «Порядок нормирования объемов образования и размещения отходов производства»;

Гигиенические нормативы «Санитарно-эпидемиологические требования к обеспечению радиационной безопасности» утвержденные постановлением Правительства Республики Казахстан от 3 февраля 2012 года № 201;

Санитарные правила «Санитарно-эпидемиологические требования к обеспечению радиационной безопасности» (утверждены постановлением Правительства Республики Казахстан от 3 февраля 2012 года № 202);

Закон РК «О радиационной безопасности» от 23.04.1998 г. №219-I ЗРК, г. Астана.

. Технология переработки буровых отходов

.1 Расположение промышленной площадки

Целью утилизации является стабилизация бурового шлама и буровой сточной воды с последующим применением подготовленных субстратов в строительстве.

Данный метод утилизации буровых отходов аналогичен методу компании Royal Tencate (Netherlands). Мировой опыт применения - очистка донных отложений озера Бют де Мортс (США), очистка отходов целлюлозно-бумажной промышленности в Свартсье (Швейцария), очистка бухты завода боеприпасов Badger (США), очистка нефтяных шламов на НПЗ Петробрас (Бразилия), очистка нефтешламов на НПЗ Базант (Израиль), очистка буровых шламов в ТНК-БП (Тюмень). Данная технология, используется уже 30 лет во всем мире и уже известна и апробирована на территории РК на промышленных площадках нефтедобывающих компаний.

Работы по утилизации буровых отходов на оборудовании с использованием технологии геотекстильных контейнеров планируется проводить на промышленной территории месторождений, административно расположенных в Жамбылской области Республики Казахстан.

На промышленных площадках предприятия наряду с оборудованием по буровым работам планируется разместить и установки по утилизации буровых отходов.

Территория планируемых работ определена с учетом отвода земельного участка в размере 3-4 га - на одну скважину. Годовой объем работ на территории месторождений Жамбылской области может достигать вплоть до 40 скважин. Площадка для проведения работ по утилизации буровых отходов от каждой скважины будет занимать приблизительно 20х30м2.

2.2 Процесс утилизации и методы обезвоживания бурового шлама

Буровой шлам представляет собой выбуренную породу, пропитанную отработанным буровым раствором. Он содержит химреагенты, нефть, тяжелые металлы и т.д.

Процесс утилизации условно разбит на два этапа:

) обезвоживание и концентрирование отходов;

) утилизация твердого остатка.

Выбор метода обезвоживания будет зависеть от плотности бурового шлама, значения обводненности и его первичной подготовки на буровой установке:

При обводненности 5-15% и плотности 1,65 т/м3 шлам будет направляться непосредственно на участок утилизации, минуя этап обезвоживания;

При обводненности 15-35% и плотности меньше 1,65 т/м3 шлам будет подаваться на циркуляционное оборудование для дополнительной подготовки на гидроциклоне и вибросите;

При обводненности 35-65% шлам будет подаваться в систему геотекстильных контейнеров;

Таким образом, обезвоживание отходов будет осуществляться либо:

а) с помощью циркуляционного оборудования - гидроциклона и вибросита с добавлением коагулянтов, либо:

б) с помощью геотекстильных контейнеров.

В первом случае, смесь буровых отходов под давлением от 2 до 3 кгс/см2 с помощью насосов типа ГШН-150/30М1 (6Ш8-2) подается в циркуляционную систему, состоящей из двух конусов гидроциклонов и спаренного вибросита. Одновременно с закачкой смеси отходов осуществляется дозированная подача флокулянта из расходного бака, куда он предварительно закачивается из блока приготовления флокулянта. Прошедшая через гидроциклон и кассеты вибросита, максимально обезвоженная твердая фаза собирается контейнер, который затем транспортируется до места дальнейшей утилизации. Отходящая жидкая фаза собирается в оперативном резервуаре емкостью 5 м3 для последующей откачки в амбар технической воды или на участок утилизации бурового шлама, где она будет вовлечена в процесс производства (см.ниже). Общий вид циркуляционного оборудования дан на рисунке 2.2.1.

Рисунок 2.2.1 - Общий вид циркуляционного оборудования

Во втором случае, обезвоживание достигается путем использования технологии, позволяющей с высокой эффективностью отделять воду от отходов, попутно очищая ее. Геотекстильные контейнеры производят из высокопрочных фильтрующих тканых полотен, которые удерживают твердые частицы на поверхности мембран. Принцип действия данных контейнеров показан на рисунке 2.2.2:

Рисунок 2.2.2 - Принцип действия геотекстильных контейнеров

На первом этапе идет заполнение резервуара буровыми отходами. Заполнение осуществляется при помощи горизонтальных или погружных вертикальных шламовых насосов (типа ГШН-150/30М1 (6Ш8-2) или ВШН-150/30), которые создают необходимое давление для эффективной фильтрации через поры геотекстиля. На втором этапе, вода, проходя через волокна контейнера, обеспечивает обезвоживание в требуемой мере, вследствие чего происходит уменьшение объема удерживаемого материала. Уменьшение объема позволяет повторно наполнять геотекстильные контейнеры до тех пор, пока контейнер не достигнет проектной высоты. Благодаря эффективной очистке на волокнах мембран, вода, вытекающая из контейнера, может использоваться в технических нуждах. Для повышения эффективности очистки от химреагентов, используются флоккулянты или коагулянты (типа Praestol2530 или полиакриламидом марки Dk-Drill А-15), увеличивающие осадкообразование в контейнере.

Для сбора фильтрующейся жидкой фазы устраивают дренажную систему, для чего под контейнеры размещают деревянные или пластиковые паллеты, которые укладываются на предварительно подготовленную площадку, спланированную под углом в 5º, укрытую гидроизоляционным материалом и огороженную обваловкой высотой 2/3 от максимальной расчетной высоты контейнера. В конце хода дренажной жидкости, в землю врывается емкость объемом 5 м3 для первичного сбора и последующей откачки дренажа в резервуар для технической воды или пожарной готовности. Также, возможно использование полученной жидкой фазы в дальнейшем процессе изготовления мелкоразмерных строительных изделий (сплиттерных блоков, тротуарной и бордюрной плитки и пр.) при приготовлении раствора, для смачивания земляного основания, предусмотренного технологической картой строительства автодорог, а также для пылеподавления на грунтовых дорогах, подъездных путях и карьеров ОПИ.

По завершению процесса консолидации твердой фазы заполненный контейнер вскрывается фронтальным погрузчиком или экскаватором и его содержимое готовится либо к транспортировке на полигон, либо к дальнейшей утилизации.

Нейтрализация бурового шлама и подготовка к его дальнейшей утилизации будет вестись путем его солидификации. Такая технология позволяет получить на основе бурового шлама достаточно прочный строительный материал. Образовавшаяся при отвердении прочная консервирующая матрица предотвращает растворение и миграцию токсичных веществ в объекты окружающей среды, дополнительно связывает их физически и химически, снижает поверхность контакта с окружающей средой. Нейтрализация шлама проводится путем смешения в определенных пропорциях с сорбентом и вяжущим агентом - цементом или портландцементом. Для ускорения сроков вводятся полиэлектролиты (поваренная соль, хлористый кальций, кальцинированная сода) в требуемом объеме. В результате такой обработки присутствующие в шламе органические вещества связываются введенными сорбентами. Цемент при смешении со шламом в присутствии воды поддерживают в системе высокое значение рН (до 12). При этом катионы тяжелых металлов, содержащиеся в шламе, переходят в состав труднорастворимых гидроксидов. Последующее отверждение обезвреженных отходов, протекающее в результате процессов гидратации введенного в систему цемента, приводит к еще более прочному связыванию нейтрализованных токсичных соединений и предотвращению последующего их растворения при воздействии окружающей среды.

.3 Продукты переработки буровых отходов

Полученный в результате обезвреживания продукт может быть использован в строительстве. Предварительно обезвреженный буровой шлам используется в производстве строительных материалов - кирпича, керамзита, мелкоразмерных строительных изделий связующих смесей дорожного покрытия, а также инертного грунта для обратной засыпки карьера, в планировке рельефа местности, рекультивационных целей и т.п.

Возможная номенклатура продуктов утилизации:

Мелкоразмерные стройизделия, сплиттерные блоки по СТ 91395-1910-ТОО-01-2012. Область применения строительство ограждающих конструкций, подсобных и временных зданий;

Связующие смеси по СТ 91395-1910-ТОО-02-2012 Автомобильные дороги. Возможно использование для устройства оснований и дополнительных слоев оснований автодорог с капитальным, облегченным и переходными типами дорожной одежды.

В случае обнаружения в буровом шламе нефтяных включений, он будет изолирован от общей массы отходов и сдан на утилизацию.

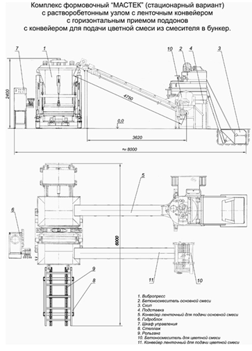
Мелкоразмерные стройизделия производятся на формовочном оборудовании типа Строймастер М 600, куда входит растворобетонный узел, транспортерная лента для подачи раствора в бункер, вибростанка и формовочного пресса. Схема формовочного пресса показана на рисунке 2.3.1, технические характеристики в таблице 2.3.1. Соотношение бурового шлама и вяжущего агента в данном процессе берется от 1/10 до 1/5 в зависимости от схватывающей активности шлама.

Работы по переработке отходов и производству строительных материалов будут проводиться на специально отведенном участке с установкой необходимого оборудования. Схематичное изображение оборудования, планируемое к размещению на участке, приведено на рисунке 2.3.1 и 2.3.2.

Рисунок 2.3.1 - Формовочный комплекс

Таблица 2.3.1 - Технические характеристики формовочного комплекса

Общая масса

2500

кг

Размер формовочной зоны

400 × 1000

мм

Высота формовочной зоны

50...220

мм

Время цикла формования

30

сек

Формовочный поддон, металл

480×1070×8

мм

Формовочный поддон, фанера

480×1070×30

мм

Количество формовок в смену

600

шт.

Емкость магазина поддонов

10...12

шт.

Емкость основного загрузочного модуля

0,9

м3

Емкость загрузочного модуля для двухслойной плитки

0,6

м3

Привод матрицы, пуансона, загрузчика

гидравлический

 

Давление в гидросистеме

7...8

МПа

Частота вибрации вибростола

75

Гц

Напряжение питания / частота

380 / 50

В / Гц

Установленная мощность

22

кВт

Мощность вибростола

5

кВт


Питание комплекса осуществляется дизельной электростанцией KIPOR KDE 40 ST3, мощностью 35 кВт.

Для приготовления связующих смесей для грунтовых дорог используется бетонно-смесительный узел типа СМ-15С со скиповым подъемником производительностью до 15 м3. Схема узла показана на рисунке 2.3.2, технические характеристики в таблице 2.4.2. Соотношение бурового шлама и вяжущего агента в приготовлении смеси берется от 1/20 до 1/15 в зависимости от схватывающей активности шлама.

Данные установки будут размещены на участке по переработке отходов. Участок для переработки отходов будет размещен на специально выделенной территории.

Таблица 2.3.2 - Характеристики бетонно-смесительного узла СМ-15С

Параметр

Описание

Производительность техническая

По готовой смеси не менее 15 м3/час По раствору не менее 11 м3/час

Емкость бетоносмесителя по загрузке выгрузке

500 / 375л

Системы водоснабжения

Подача воды от водопроводной сети Диаметр трубопровода ввода Ду50 Рабочее давление в системе 0,4-0,6 мПа

Пневмосистема

Подача воздуха от компрессора С416М Рабочее давление в системе 0,6 мПа

Установленная мощность

30 кВт

Электросеть

380 В, 50 Гц

Температура эксплуатации в обстройке

+5 +25


Рисунок 2.3.2 Схема бетонно-смесительного узла СМ-15С.

Готовая смесь выгружается в кузов самосвала на шасси а/м КАМАЗ и доставляется до места назначения.

.4 Этапы процесса утилизации бурового шлама и сточной воды

Укладка контейнеров осуществляется на предварительно спланированную ровную площадку примерными размерами 20х30 метров. Схематичное изображение устройства контейнера приведено на рисунке 2.4.1.

Рисунок 2.4.1 - Устройство геотекстильного контейнера

По периметру участка устраивается обваловка высотой 1/3-2/3 от максимальной высоты геотекстильных контейнеров. См. рисунок 2.4.1

Рисунок 2.4.1 - Обваловка периметра участка

По всей поверхности участка укладывается водонепроницаемая мембрана. Дно участка выстилается дренажным слоем, состоящим из щебня или гравия, см. рисунок 2.4.2.

Рисунок 2.4.2 - Укладка водонепроницаемой мембраны

При необходимости сбора и повторного использования воды, контейнеры распределяют по поверхности деревянных паллет, под которыми устроено водонепроницаемое основание (как описано выше), расположенное под уклоном в 5º для обеспечения свободного стока фильтрата к месту его откачки в накопительную емкость:

Затем по всей длине участка с помощью монтажных ремней раскатывается контейнер Геотекстильных контейнеров, к которому подключаются системы закачки отходов и, при необходимости, патрубки подачи коагулянтов, см. рисунок 2.4.3 .

Рисунок 2.4.3 - Подключение системы закачки отходов

Гибкие шланги подсоединяются к входным патрубкам. Для регулировки скорости подачи отходов служат пережимные вентили, см. рисунок 2.4.4.

Рисунок 2.4.4 - Пережимные вентили для регулировки скорости подачи отходов

После тестирования системы начинается заполнение контейнера и отделение сточной воды от буровых отходов, см. рисунки 2.4.5 и 2.4.6. В холодное время циклы замораживания-оттаивания увеличивают эффективность обезвоживания.

Рисунок 2.4.5 - Заполнение контейнера

Рисунок 2.4.6 - Отделение сточной воды от буровых отходов

На последнем этапе осуществляется вскрытие заполненного контейнера и утилизация твердой фазы, см. рисунок 2.4.7.

Рисунок 2.4.7 - Вскрытие заполненного контейнера и утилизация твердой фазы

После вскрытия контейнера, его содержимое подвергается нейтрализации путем солидификации.

В дальнейшем твердая фаза собирается и перевозится автотранспортом на специальный участок по переработке отходов. Участок для переработки отходов будет размещен на специально отведенной территории.

Уже на участке по переработке буровой шлам будет смешиваться с вяжущим агентом и подвергается прессованию на формовочном оборудовании для стабилизации химических веществ в твердой матрице или поступает на бетонно-смесительный узел для приготовления связующих смесей дорожного полотна.

 Рисунок 2.4.8 - формовочное оборудование

 Рисунок 2.4.9 - Сплиттерные блоки


Предлагается безотходный метод ведения производства, в процессе которого без остатка утилизируется весь объем полученных буровых отходов. Это достигается путем повторного использования очищенной воды для приготовления растворов и производства строительных материалов или ремонта подъездных дорог из консолидированной твердой фазы.

Также возможна переработка бурового шлама на формовочном оборудовании с получением готовой продукции в виде сплиттерных блоков, находящих применение в хозяйственных нуждах. Рисунок 2.4.8 и 2.4.9.

Помимо изготовления сплиттерных блоков, твердая фаза может быть использована в строительстве и ремонте подъездных дорог.

Комплектация опытно-промышленной площадки для испытания процесса обезвоживания отходов бурения в геотекстильных контейнерах при шламовом амбаре приведена на рисунке 2.4.10 и 2.4.11. (два контейнера CT 500 D Р10,0 - контейнеры размером 5×5 м по 26 м³ вмещающего объема каждый).

Рисунок 2.4.10 - Площадка геотекстильных контейнеров

Рисунок 2.4.11 - Испытание обезвоживания в геотекстильных контейнерах

3.Характеристика окружающей среды района осуществления производственной деятельности

.1 Общая физико-географическая характеристика

В административном отношении производственные участки находятся в Жамбылской области Республики Казахстан, в 170-200 км к северу от г. Тараз.

Географически они расположены в юго-западной части песков Мойынкум, которые в рассматриваемом районе занимают междуречье Чу и Таласа, с юго-запада к ним примыкает предгорная равнина Малого Каратау, являющегося ветвью Большого Каратау.

В орографическом отношении район месторождений представлен бугристыми песками Мойынкум с относительным превышением песчаных гряд северо-западного направления до 20 м. Граница песков на юге и юго-востоке имеет северо-западное простирание, вдоль нее протекает река Талас.

Абсолютные отметки рельефа местности в районе месторождений +350 - +360 и увеличиваются в районе г. Тараз до +600 м. Местность на всем протяжении равнинная, воздымающаяся к югу, в сторону Тянь-Шаня.

Источниками водоснабжения непосредственно на площади месторождения являются колодцы и артезианские скважины, уровень воды в которых находится на глубине 10-20 м от устья. Водоносные горизонты палеогена залегают на глубине 160-220 м, содержат воду с минерализацией 3-5 г/л.

Строительный материал - гравий, песок в избытке имеется в русле реки Талас, протекающей в 75 км на юго-западе. Бутовый камень разрабатывается в 120 км на севере, у с. Уланбель. Непосредственно через площадь Амангельды проходит с юго-востока (от Жамбыльской ГЭС) на северо-запад высоковольтная линия электропередач (ЛЭП) районного значения.

Ближайший населенный пункт - село Уюк находится в 70 км к югу, у р.Таспас.

С населенными пунктами месторождения соединяются грунтовыми дорогами, которые пригодны для движения только в летнее и морозное зимнее время. Асфальтированная шоссейная дорога соединяет областной центр Джамбул с селами Акколь, Уюк и Уланбель.

Климат района резко континентальный с сухим жарким летом (до +40°С) и холодной (до -30°С) малоснежной зимой. Господствующее направление ветров северовосточное.

Климат района резко-континентальный с сухим жарким летом (до +40 0С) и холодной (до -40 0С) малоснежной зимой, продолжительность отопительного сезона 178 суток (с 15 октября по 15 апреля). Господствующее направление ветров - северо-восточное.

Рисунок 3.1.1 - Обзорная карта района размещения промышленной площадки

.2 Природно-климатическая характеристика

Характерными особенностями климата Жамбылской области является значительная засушливость и континентальность. Это объясняется расположением территории области внутри Евроазиатского материка, удаленностью от океанов, особенностью атмосферной циркуляции, способствующей частому образованию ясной или малооблачной погоды, а также южным положением, что обеспечивает большой приток солнечного тепла.

Кроме того, значительную территорию области занимают пустыни (Бетпак-Дала и Мойынкум) и только юго-западные, южные и юго-восточные окраины заняты горами (Каратау, Киргизские и Шу-Илийские). Эти различия рельефа вносят большое разнообразие в климат области.

Континентальность климата проявляется в резких температурных контрастах дня и ночи, зимы и лета, в быстром переходе от зимы к лету. В южной горной части области черты континентальности смягчены: зима здесь мягче и обеспеченность осадками лучше. Пустынные равнины северных и центральных районов области особенно засушливы.

Лето здесь очень жаркое, средняя июльская температура колеблется от 21 до 25° С, в отдельные дни температура воздуха достигает 45-48° С (абсолютный максимум). Зато зима по своей суровости не соответствует географической широте. Самый холодный месяц - январь, средняя температура которого -8, -12° С на севере области и -4, -7° С на юге. Холодный арктический воздух зимой, проникая на юг области, вызывает сильные морозы, достигающие -45, -50 ° С (абсолютный минимум).

Период со средней суточной температурой воздуха выше 0°С довольно продолжителен. На севере области он составляет 240-250 дней, в центральных районах 260-270 дней.

В целом осадков в области выпадает мало, особенно в ее равнинной части (140-220 мм в год). Ничтожное количество осадков (135 мм в год) отмечается на северо-востоке области у побережья оз. Балхаш. В предгорных районах количество осадков увеличивается до 210-330 мм. В горах Кыргизского Алатау выпадает 400-500 мм осадков. По сезонам года осадки распределяются крайне неравномерно - большая часть их приходится на зимне-весенний период.

Почти на всей территории области преобладают восточное и северо-восточное направления ветра, и только на крайнем юге чаще повторяются ветры южного и юго-восточного направления. Средняя скорость их 2,5-3,5 м/с. В горных районах действуют ветры, образование которых обусловлено местными особенностями (фены, горно-долинные и др.).

В таблице 3.2.1 дана средняя температура за 2014 год.

Таблица 3.2.1 - Климат Жамбыльской области

Показатель

Янв

Фев

Мар

Апр

Май

Июн

Июл

Авг

Сен

Окт

Ноя

Дек

Год

Средняя температура, °C

−3

−1,6

4,1

11,6

17,3

23

25,3

23,7

17,8

10,5

3,7

−1,4

2014


Климат рассматриваемого района является резко континентальным с жарким сухим продолжительным летом и холодной малоснежной зимой. Для климатической характеристики изучаемого района использовались многолетние данные ближайшей метеорологической станции Уюк.

Таблица 3.2.2 - Метеорологические условия

Средняя годовая скорость ветра 

2,8 м/с

Средняя минимальная температура января

- 13,30С

Средняя максимальная температура июля

34,4 0С

Годовое количество осадков 

236 мм

Среднемесячная относительная влажность воздуха наиболее теплого месяца

32 %.

Годовая испаряемость с открытой водной поверхности 

1342 мм.



Рисунок 3.2.1 - Роза повторяемости ветров, %

Таблица 3.2.3 - Средняя скорость ветра по направлениям, м/сек

С

СВ

В

ЮВ

Ю

ЮЗ

З

СЗ

2,7

3,6

3,1

2,9

2,6

3,6

4,0

3,2


.2 Поверхностные воды

Географически месторождения расположены в юго-западной части песков Мойынкум, которые в рассматриваемом районе занимают междуречье Шу и Таласа, с юго-запада к ним примыкает предгорная равнина Малого Каратау, являющегося ветвью Большого Каратау.

Характерной особенностью гидрографии месторождения является редкая речная сеть и относительно большой количество временных водотоков, имеющих сток только в период весеннего снеготаяния и возникающих большей частью на водонепроницаемых, а местами такыровидных грунтах. Многие небольшие озерные чаши бывают заполнены только в короткий период после весеннего половодья. Основными водными магистралями являются реки Шу и Талас.

.3 Подземные воды

В районе месторождений преобладает водоносный горизонт среднечетвертичных аллювиальных и перекрывающих их верхнечетвертичных отложений современных эоловых отложений. Грунтовые воды расположены на глубине 0,4-3,7 м от дневной поверхности. Водооблиьность горизонта достаточно равномерна по площади. По степени минерализации состав грунтовых вод изменяется от пресных до соленных (0,2- 5,8 гдм3). Поток грунтовых вод в Мойынкумах движется в строну р. Шу в северо-западном направлении и постепенно осолоняется, вследствие чего на окраине песков образуются солончаки и соленные озера, грунтовые воды обладают здесь повышенной и высокой минерализацией.

В пределах территории месторождений можно выделить 6 основных водоносных горизонтов: водоносный горизонт среднеэоценовых отложений; неогеновый водоносный горизонт; средневерхнекаменноугольный - нижнепермский водоносный горизонт; верхнепермский водоносный горизонт; средневизейский водоносный горизонт; нижневизейкий водоносный горизонт.

Характеристика водоносных горизонтов:

Среднеэоценовый водоносный горизонт представлен толщей слабосцементированных разнозернистых песчаников с прослойками глин, алевролитов. Мощность горизонта изменяется по площади Мойынкумской впадины, составляет в ее южной и юго-восточной части 120-160 м (в т.ч. на месторождении Амангельды и Айракты);

Неогеновый водоносный горизонт приурочен к слоям слабосцементированных песчаников в низах неогене (мощностью до 15 м), подстилается глинами олигоцена, и перекрыт суглинками верхней части неогена;

Верхнепермский водоносный горизонт представлен песчаниками в основании надсоленосной толщи верхней перми и перекрыт аргилитами этой же толщи;

Средневерхнекаменноуголъный-нижнепермский водоносный горизонт приурочен к слоям пористых песчаников среднего и верхнего карбона, а также к трещиноватым породам нижней перми. Он перекрывается соленосной толщей нижней перми и подстилается толщей аргиллитов, мергелей с прослоями известняка и ангидрита башкирского и верхней части серпуховского ярусов. Нижний, каменноугольный водоносный комплекс, повсеместно, характеризуется хлоридно-натриевым типом вод по классификации А. В. Сулина;

Средневизейский водоносный горизонт представлен прослоями мелкообломопористых и трещиноватых известняков в средней части глинисто-карбонатной толщи визейского яруса;

Нижневизейский горизонт представлен слоями песчаников, перекрыт пачкой переслаивающихся аргиллитов, ангидритов и известняков, и содержит залежи газа на месторождениях Амангельды, Айракты, Жаркум, Малдыбай и Анабай. Пористые песчаники на площади месторождений, в пределах Мойынкумской впадины и смежных с ней районов развиты локально.

.5 Почвенно-растительный покров

Почвы на территории месторождений характеризуются малой гумусностью, низким содержанием элементов питания, малой емкостью поглощения. Это является следствием сложившихся биоклиматических условий почвообразования: малое количество осадков, высокие летние температуры, преобладание в растительном покрове ксерофитных полукустарников и солянок при участии эфемеров и полыней. Закономерностей изменения количеств подвижных минеральных элементов питания не обнаружено. Динамичность засоления почв обуславливается в первую очередь характером водного режима. При преобладании восходящих капиллярных потоков влаги происходит подтягивание водорастворимых солей к поверхности и наоборот, нисходящие потоки почвенного раствора перемещают соли вниз.

Изменения механического состава поверхностных горизонтов почв связаны с процессом дефляции (ветровой эрозии) - переносе мелкозема почв ветром. Почвы месторождений являются дефляционно-опасными. Фактором развития дефляционных процессов являются механические нарушения поверхностных горизонтов почв и уничтожение растительности. Основным мероприятием по борьбе с дефляцией на территории является посев засухоустойчивых дикорастущих и солевыносливых трав, кустарниковых и древесных насаждений.

Согласно современной схеме ботанико-географического районирования данный регион относится к северным пустыням и входит в состав Сахаро-Гобийской пустынной области, Ирано-туранской подобласти, Северо-туранской провинции, Западно-северо-туранской подпровинции.

В области преобладают пустынные растительные сообщества с включением полукустарничков и кустарничков. Они занимает основные площади растительности и объединяет сообщества полыни, многолетней солянки и ксерофитных кустарников (саксаул). Господствующими пустынными формациями являются туранскополынные боялычники, занимающие большие площади. Биюргуновая ландшафтная формация также является ведущей. Биюргунники приурочены к эродированным склонам плато с выходами глин, к солонцам на равнинах низкого гипсометрического уровня. На супесчаных серо-бурых почвах по останцам и равнинам распространены чисто белоземельнополынные и кеуреково-белоземельнополынные типы пустынных сообществ. В песках Арыскум вегетируют псаммофитнополынные терескенники. Во всех типах песков широко представлены псаммофитнокустарниковые сообщества.

Исследованная территория месторождений занимает обширную площадь, своеобразие растительности которых определяется положением песков в центральной части Туранских пустынь, большим перепадом высот 180-420м.

На исследованной территории месторождения преобладают следующие жизненные формы: псаммофильные кустарники, ксерофильные и галофитные полукустарники(полынь, солянка), многолетние коротковегетирующие и однолетние травы(эфемеры и эфемероиды), реже- длительно вегетирующие многолетники.

Ландшафтными растениями, участвующими в сложении наиболее широко распространенных сообществ, являются элементы песчаной саванны - жузгуны, саксаул персидский (белый), песчаная акация, представитель северотуранской флоры- полынь белоземельная; саксаул безлистный(черный) - представитель реликтовой саванновой средиземноморской флоры.

Растительный покров сформирован в жестких природных условиях широтной пустынной зоны. Определяющими факторами являются засушливость климата, большие амплитуды колебания температур, резкий недостаток влаги, бедность почв в сочетании с широким распространением почвообразующих пород.

Разнообразие пустынных сообществ в регионе обнаруживается на засоленных почвах - солончаковатых, солонцах и солончаках разного типа по впадинам и понижениям. В их числе следующие формации: кокпечники обионовые, сарсазановые, поташниковые, сведа.

Состояние растительного покрова достаточно удовлетворительное и стабильное.

3.6 Животный мир

Общая площадь поселения животного мира в Жамбылской области составляет 13,9 тыс.га, в них обитает свыше 40 видов животных.   
 Рыбохозяйственный фонд, занимающий площадь 27,8 тыс.га, состоит из 74 водоемов, из них 73 водоема пригодны к рыбохозяйственной деятельности. Из крупных водохранилищ выделяются Тасоткельское и Терс-Ашибулакское. Преобладающими промысловыми видами рыб являются толстолобик, белый амур, карп, сазан, судак, лещ, краль, вобла.     

На территории области функционируют 3 заказника:

Государственный природный заказник «Урочище «Бериккара» (комплексный) занимает площадь 17,5 тыс.га, где можно встретить более 50 видов особо ценных древесно-кустарниковых и травянистых растений, занесенных в Красную книгу, а из животных - архара, индийского дикобраза, райскую мухоловку;

Государственный природный заказник «Урочище «Каракунуз» (ботанический), общей площадью 3,07 тыс.га, расположен в западных отрогах Заилийского Алатау. Плодовые насаждения яблонь, вишен, алычи, винограда сменяются участками кленового леса, белой акации, шелковицы, грецкого ореха;

Андасайский государственный природный заказник (зоологический), общей площадью 1000 тыс. га, расположенный по правому берегу реки Шу к западу от с. Мойынкум. В растительном покрове преобладают ковыль, типчак, биюргун, редкие эфемеры, саксаул черный, заросли кустарниковых ив. Животный мир представлен архарами, куланами, джейранами, косулями, кабанами, зайцами, фазанами, куропатками.

3.7 Особо охраняемые природные территории (ООПТ)

На территории Жамбылской области сохранилось значительное количество интересных архитектурных и археологических памятников истории и культуры. Наиболее интересными и уникальными памятниками архитектура 11-12 веков, расположенными на территории Жамбылской области являются мавзолей Бабаджи-Хатун и мавзолей Айша-Биби (10-11 и 11-12 вв); мавзолей Жоши-хана и Акашы-хана (вблизи Жезказгана), датированные 13 в., мавзолеи Жубан-ана, Каип-ата и Мулим-берды, которые находятся в долинах рек Сарысу и Кенгир, а также мавзолей Карахана в Таразе.

Государственный комплексный природный заказник «Урочище «Бериккара» - основан в 1971 году в Жуалинском районе, в 30 км от районного центра с. Б. Момыш-улы

Андасайский государственный природный (зоологический) заказник - учрежден в 1966 году, занимает площадь 1 000 000 га, расположен в Мойынкумском районе по правому берегу реки Шу к западу от села Мойынкум.

При производстве земляных работ, т.е. при освоении нефтегазовых месторождений и связанными с этими работами (строительство дамб, дорог, каналов, карьеров, буровых скважин и прокладок трасс для перекачки нефти и газа и т.п.), предусматриваются мероприятия по сохранению, консервации и реставрации памятников истории и культуры и недопущению влияния этих месторождений на объекты культуры.

Площади примыкающие к археологическим, историко-культурным памятникам и культовым сооружениям на расстояние 50 м должны быть исключены из хозяйственной деятельности.

Вышеописанные объекты находятся на отдаленном расстоянии от территории месторождения. Строительство оценочной скважины не окажет воздействия на охраняемые природные территории и объекты.

. Экологическая оценка переработки буровых отходов методом солидации

Целью проведения оценки является определение возможных экологических изменений, которые могут возникнуть в результате эксплуатации объекта и оценить значимость данных изменений. Воздействие на компоненты окружающей среды будет происходить на всех этапах эксплуатации объекта [2].

Для оценки воздействия производственной деятельности объекта применен полуколичественный метод. Преимуществом этого метода является разумное ограничение количества используемых для оценки показателей и обеспечение их сопоставимости применение экспертных оценок [2].

Критерии оценки воздействия на природную среду представлены в таблице 4.1.

Таблица 4.1 - Критерии оценки воздействия на природную среду [2]

 Пространственный масштаб воздействия

Интегральная оценка  в баллах

Региональный

Воздействие отмечается на общей площади менее 1000 км2 для площадных объектов или на удалении менее 100 км от линейного объекта

4

Местный

Воздействие отмечается на общей площади менее 100 км2 для площадных объектов или на удалении менее 10 км от линейного объекта

3

Локальный

Воздействие отмечается на общей площади менее 10 км2 для площадных объектов или на удалении менее 1 км от линейного объекта

2

Точечный

Воздействие отмечается на общей площади менее 1 км2 для площадных объектов или на удалении менее 100 м от линейного объекта

1

Постоянный

Продолжительность воздействия более 3 лет

4

Многолетний

Продолжительность воздействия более 1 года, но менее 3 лет

3

Долговременный

Продолжительность воздействия более 3 месяцев, но менее 1 года

2

Временный

Продолжительность воздействия более 10 суток, но менее 3 месяцев

1

Величина (интенсивность) воздействия

Сильное воздействие

Изменения в природной среде, превышающие пределы природной изменчивости, приводят к повреждению отдельных экосистем, но природная среда сохраняет способность к полному самовосстановлению.

4

Умеренное воздействие

Изменения в природной среде превышают пределы природной изменчивости, приводят к нарушению отдельных компонентов природной среды. Природная среда сохраняет способность к самовосстановлению

3

Слабое воздействие

Изменения в природной среде превышают пределы природной изменчивости. Природная среда полностью самовосстанавливается

2

Незначительное воздействие

Изменения в природной среде не превышают существующие пределы природной изменчивости

1


Для определения комплексного воздействия на отдельные компоненты природной среды обычно используют таблицы с критериями воздействий. Комплексный балл определяется по формуле [2, ф. 1]:

(4.1)


где Qiinegr -комплексный оценочный балл для заданного воздействия;

 - балл временного воздействия на i-й компонент природной среды;

 - балл пространственного воздействия на i-й компонент природной среды;

 - балл интенсивности воздействия на i-й компонент природной среды.

Категория значимости определяется интервалом значений в зависимости от балла, полученного при расчете комплексной оценки, как показано в таблице 4.2

Таблица 4.2 - Категории значимости воздействий

Категории воздействия, балл

Интегральная  оценка, балл

Категории значимости

Пространственный масштаб

Временной масштаб

Интенсивность воздействия


баллы

Значимость

Локальное 1

Кратковременное 1

Незначительное 1

1






1- 8

Воздействие низкой значимости

Ограниченное 2

Средней продолжительности 2

Слабое 2

8







9- 27

Воздействие средней значимости

Местное 3

Продолжительное 3

Умеренное 3

27







28 - 64

Воздействие высокой значимости

Региональное 4

Многолетнее 4

Сильное 4

64









При экологической оценке переработки буровых отходов методом солидации приняты три категории значимости воздействия - незначительное, умеренное и значительное [2].

Воздействие низкой значимости имеет место, когда последствия испытываются, но величина воздействия достаточно низка (при смягчении или без смягчения), а также находится в пределах допустимых стандартов или рецепторы имеют низкую чувствительность / ценность [2].

Воздействие средней значимости может иметь широкий диапазон, начиная от порогового значения, ниже которого воздействие является низким, до уровня, почти нарушающего узаконенный предел. По мере возможности необходимо показывать факт снижения воздействия средней значимости [2].

Воздействие высокой значимости имеет место, когда превышены допустимые пределы или когда отмечаются воздействия большого масштаба, особенно в отношении ценных / чувствительных ресурсов [2].

.1 Охрана атмосферного воздуха

.1.1 Характеристика объекта, как источника загрязнения атмосферы

При переработке бурового шлама на оборудовании используется физико-химический метод переработки отходов. После завершения этапа обезвоживания бурового шлама, твердая фаза уже на специально отведенном участке будет использоваться в процессе брикетирования и получения готовой продукции в виде сплиттерных блоков либо в качестве инертного материала для дорожного строительства и ремонта.

В данном разделе рассмотрено воздействие установки по утилизации бурового шлама на атмосферный воздух в период эксплуатации.

Эксплуатация оборудования будет сопровождаться выбросами вредных веществ в атмосферу. Основные виды работ, при которых происходит выброс загрязняющих веществ:

Работа дизель-генератора (диоксид и оксид азота, сажа, диоксид серы, оксид углерода, бенз(а)пирен, формальдегид, углеводороды);

Заправка и хранение дизельного топлива в резервуаре (сероводород, углеводороды);

Работа спец. техники и грузовых машин, работающих на дизельном топливе (выхлопные газы: диоксид и оксид азота, сажа, диоксид серы, оксид углерода, бенз(а)пирен, углеводороды);

Земляные работы, устройство обваловки, утилизация твердой фазы (пыль неорг. 70-20% SiO2);

Пересыпка пылящих материалов (пыль неорганическая 70-20% SiO2);

Склад цемента и готовой продукции (пыль неорганическая 70-20% SiO2).

Перечень загрязняющих веществ, выделяющихся при эксплуатации оборудования приведен в таблице 4.4.3.1.

4.1.2 Определение количества выбросов ЗВ

Источник № 0001 (дизель-генератор)

Дизель-генератор предусмотрен как источник питания для установки по утилизации и переработки бурового шлама.

Стационарный дизель генератор Kipor KDE 40 ST 3 мощностью 35 кВт. Технические характеристики подобраны из паспортных данных и приведены в таблице 4.1.2.1. Расчетное количество часов дизель-генератора 12 ч/сут (не более 4380 ч/год).

экологический отходы переработка выброс

Таблица 4.1.2.1 - Технические характеристики Kipor KDE 40 ST 3

Технические характеристики

Генератор 44 кВА

Расчетная мощность

35 кВт

Расход топлива

6,9 л/ч

Расход выхлопных газов

7,73 м3/мин 0,13 м3/с

Число оборотов

1500 мин-1

Диаметр выхлопной трубы

60 мм

Температура газов из устья трубы

450 0С


Расчет выбросов проведен в соответствии с РНД 211.2.02.04-2004 «Методика расчета выбросов загрязняющих веществ в атмосферу от стационарных дизельных установок» [3].

Секундный расход топлива при плотности дизельного топлива 0,769 [4] кг/л равен:

Всек = Qт × ρ,

(4.2)




где Qт - расход топлива, л/ч;

ρ - плотность топлива, кг/л.

В= 6,9×0,769 = 5,3 кг/ч (1,5 г/с);

Годовой расход топлива равен:

Вгод= В × t / 1000,

(4.3)




где t - работа генератора, ч/г.

,3×4380/1000 = 23,241≈23,3 т/год;

Объемный расход отработавших газов (согласно [3] формуле А.4) равен:

(4.4)



где э -         удельный расход топлива на эксплуатационном режиме работы двигателя, г/кВт×ч (берется из паспортных данных на дизельную установку);

Рэ - эксплуатационная мощность стационарной дизельной установки, кВт;

g0oг - удельный вес отработавших газов при температуре, равной 0°С, значение которого согласно [3],можно принимать 1,31 кг/м3;

Tor - температура отработавших газов, К.


В соответствии с РНД 211.2.02.04-2004 «Методика расчета выбросов загрязняющих веществ в атмосферу от стационарных дизельных установок» дизель-генераторы относится к группе А (таблица 1, 3) [3].

Таблица 4.1.2.2 - коэффициенты выбросов генераторов А категории

Группа

Выброс

СО

NOx

CH

C

SO2

CH2O

БП

А (40 кВт)

еi, г/кВт×ч

7,2

10,3

3,6

0,7

1,1

0,15

1,3×10-5


qi, г/кг

30

43

15

3,0

4,5

0,6

5,5×10-5


Расчет максимального выброса (г/с) вредных веществ от дизель-генератора мощностью 35 кВт производится по формуле 1[3]:

Мсек=(1/3600)×еi×Pэ,

(4.5)


где

еi -     выброс i-го вредного вещества на единицу полезной работы стационарной дизельной установки на режиме номинальной мощности, г/кВт×ч, определяемый по таблице 4.1.2.2;

/3600 - коэффициент пересчета «час» в «сек».

МСО=(1/3600)×7,2×35 = 0,07 г/с;

МNO2=(1/3600)×10,3×35×0,8 = 0,08011 г/с;

МNO=(1/3600)×10,3×35×0,13 = 0,01302 г/с;

МCH=(1/3600)×3,6×35 = 0,035 г/с;

МC=(1/3600)×0,7×35 = 0,00681 г/с;

МSO2=(1/3600)×1,1×35 = 0,01069 г/с;

МCH2O=(1/3600)×0,15×35 = 0,00146 г/с;

МБП=(1/3600)×1,3×10-5×35 = 0,13×10-6 г/с.

Расчет валового выброса вредных веществ от дизель-генератора мощностью 35 кВт производится по формуле 2[3]:

Мгод=(1/1000)×qi×Вгод

(4.6)


где  -         выброс i-го вредного вещества, г/кг топлива, приходящегося на один кг дизельного топлива, при работе стационарной дизельной установки с учетом совокупности режимов, составляющих эксплуатационный цикл, определяемый по таблице 4.1.2.2;

Bгод -        расход топлива стационарной дизельной установкой за год, т;

/1000 - коэффициент пересчета «кг» в «т».

WCO=(1/1000)×30×23,3= 0,699 т/год;

WNO2=(1/1000)×43×23,3×0,8 = 0,80152 т/год;

WNO=(1/1000)×43×23,3×0,13 = 0,13025 т/год;

WCH=(1/1000)×15×23,3 = 0,3495 т/год;

WC=(1/1000)×3×23,3 = 0,0699 т/год;

WSO2=(1/1000)×4,5×23,3 = 0,10485 т/год;

WCH2O=(1/1000)×0,6×23,3 = 0,01398 т/год;

WБП=(1/1000)×5,5×10-5×23,3 = 1,28×10-6 т/год.

Объемы выбросов от дизель-генератора мощностью 35 кВт приведены в таблице 4.1.2.3.

Таблица 4.1.2.3 - Источник № 0001

Код

Загрязняющие вещества

Выбросы ЗВ



Максимально-разовые, г/с

Валовые, т/год

0301

Азота диоксид

0,08011

0,80152

0304

Азота оксид

0,01302

0,13025

0328

Сажа

0,00681

0,0699

0330

Серы диоксид

0,01069

0,10485

0337

Углерода оксид

0,07

0,699

0703

Бенз(а)пирен

0,13×10-6

1,28×10-6

1325

Формальдегид

0,00146

0,01398

2754

Углеводороды

0,035

0,3495

Источники № 0002, 0003 (резервуар)

Предусмотрено два резервуара емкостью по 200л для временного хранения топлива. Плотность дизельного топлива 0,769 кг/л. [4] Резервуары находятся на территории, относящейся к южной климатической зоне. Расчетный годовой расход топлива 23,241 т/год.

Максимальная производительность насоса 6 м3/ч (до 100л/мин).

Выбросы паров нефтепродуктов рассчитаны по РНД 211.2.02.09-2004 «Методические указания по определению выбросов загрязняющих веществ в атмосферу из резервуаров» [5].

Максимальные выбросы [5, ф. 5.6.1] равняются:

М = С1×Крmax×Vчmax:3600, г/с

(4.7)


где

С1 - концентрация паров нефтепродукта в резервуаре, 3,92 г/м3;

Крmax - опытный коэффициент, равный 1,0[5];

Vчmax - максимальный объем паровоздушной смеси, вытесняемой из резервуара во время его закачки, принимаемый равным производительности насоса, 6 м3/час.

Мобщ = 3,92×1,0×6:3600 = 0,00653 г/с;

Мсн= 0,9972×0,00653 = 0,006512 г/с;

Мн2s= 0,0028×0,00653 = 0,000018 г/с.

Годовые выбросы [5, ф. 5.6.2] равняются:

G = (Уоз×Воз + Увл×Ввл) × Крmax ×10-6 + GХР× КНП ×Nр, т/год(4.8)



где

Уоз, Увл - средние удельные выбросы из резервуара в осенне-зимний и весенне-летний периоды года 2,36 г/т и 3,15 г/т [5];

Воз, Ввл - количество жидкости, закачиваемое в резервуар в течение осенне-зимнего и весенне-летнего периода 11,079 т/период и 12,162 т/период;

GХР - выбросы паров нефтепродуктов при хранении топлива в одном резервуаре, 0,22 т/год [5];

КНП - опытный коэффициент, равный 0,0029 [5];

Nр - количество резервуаров, 2шт.

Gобщ = (2,36×11,079 +3,15×12,162) × 1,0 ×10-6 + 0,22 × 0,0029× 2 = 0,00134 т/год;

Gсн=0,9972×0,00134 = 0,001336 т/год;

Gн2s=0,0028×0,00134 = 0,000004 т/год.

Таблица 4.1.2.4 - Источники № 0002, 0003

Код

Загрязняющие вещества

Выбросы ЗВ



Максимально-разовые, г/с

Валовые, т/год

0333

Сероводород

0,000018

0,000004

2754

Углеводороды

0,006512

0,001336

Источник № 6001 (спец. техника, грузовые машины)

Расчет выбросов проведен в соответствии с «Методикой расчета нормативов выбросов от неорганизованных источников», Приложение № 13 к Приказу МООС РК от 18 апреля 2008 года № 100-п.

Машины и механизмы работают на дизельном топливе.

(1 кг дизельного топлива - 11,875 кВт∙ч/кг) [6].

Суммарные выбросы оксидов азота разделяются на диоксид и оксид азота и принимаются на уровне максимальной трансформации как МNO2=0,8MNOx, МNO=0,13MNOx.

Технические характеристики машин и механизмов, расходы дизельного топлива приведены в таблице 4.1.2.5.

Таблица 4.1.2.5 - Технические характеристики машин и механизмов, расходы дизельного топлива

№ п/п

Спец. техника

Норма расхода топлива, кг/ч

Кол.

Продолжи-тельность работы, дн/год

Общее кол. часов работы

Расчетный расход топлива






ч/дн

ч/год

г/с

т/год

1

Экскаватор «обратная лопата»

9,9

1

365

8

2920

2,75

28,91

2

Автосамосвал

6,77

1

365

8

2920

1,88

19,77

3

Вакуумная машина

4,7

1

365

5

1825

1,31

8,58


ИТОГО:






5,9457,26



Объемы выбросов выхлопных газов от работы спец. техники приведены в таблице 4.1.2.6.

Таблица 4.1.2.6 - Источник № 6001

Расчетный расход топлива

5,94 г/с57,26 т/год


Код

Загрязняющие вещества

Удельный выброс, г/г; т/т

Выбросы ЗВ




г\с

т/год

0301

Диоксид азота

0,01×0,8

0,04752

0,45808

0304

Оксид азота

0,01×0,13

0,00772

0,07444

0328

Сажа

0,0155

0,09207

0,88753

0330

Диоксид серы

0,02

0,1188

1,1452

0337

Оксид углерода

0,1

0,594

5,726

0703

Бенз(а)пирен

0,32×10-6

1,9×10-6

18,3×10-6

2754

Углеводороды

0,03

0,1782

1,7178

Источник № 6002 (земляные работы)

Технологический процесс обезвоживания и утилизации буровых отходов состоит из основных этапов:

подготовительный (подготовка участка, устройство обваловки, устройство дренажного слоя дна участка и т.д.);

предварительный (укладка контейнера Геотекстильных контейнеров, присоединение шлангов с вентилями, подключение, тестирование т.п.)

основной (заполнение контейнера, отделение сточной воды от буровых отходов);

утилизация (переработка, изготовление сплиттерных блоков и т.п.).

При ведении земляных работ (работа экскаватора) будет происходить пыление преимущественно при подготовки участков (40 выемок под контейнеры), при устройстве обваловки, а также при сборе твердой фазы.

Расчет выбросов проведен в соответствии с «Методикой расчета нормативов выбросов от неорганизованных источников», Приложение № 13 к Приказу МООС РК от 18 апреля 2008 года № 100-п [6].

Максимальный разовый выброс пыли при работе экскаватора определяется по формуле [6, ф. 8]:

Мсек=k1×k2×k3×k4×k5×k7×k8×k9×В’×Gчас×106×(1-η)/3600, г/с

(4.9)


где1 - весовая доля пылевой фракции в материале 0,05;

k2 - доля переходящей в аэрозоль летучей пыли 0,03;

k3 - коэффициент, учитывающий местные метеоусловия 1,7;

k4 - коэффициент, учитывающий местные условия, степень защищенности узла от внешних воздействий, условия пылеобразования 1,0;

k5 - коэффициент, учитывающий влажность материала 0,01;

k7 - коэффициент, учитывающий крупность материала 1,0;

k8 - поправочный коэффициент для различных материалов в зависимости от типа грейфера, т.к. грейфер не будет использован, коэффициент принимается равным 1,0;

k9 - поправочный коэффициент при мощном залповом сбросе материала принимается 1,0;

В’ - коэффициент, учитывающий высоту пересыпки 0,7;

Gчас - количество перерабатываемого материала (земляные массы для обваловки и сбора твердой фазы) 15 т/ч;

η - эффективность средств пылеподавления, в долях единицы.

Мсек=0,05×0,03×1,7×1,0×0,01×1,0×1,0×1,0×0,7×15×106×(1-0):3600 = 0,07438 г/с.

Валовый выброс пыли составляет:

Мгод = k1×k2×k3×k4×k5×k7×k8×k9×В’×Gгод×(1-η), т/год;

(4.10)


гдегод - суммарное количество перерабатываемого материала в течении года, 43800 т/год.

Мгод = 0,05×0,03×1,7×1,0×0,01×1,0×1,0×1,0×0,7×43800×(1-0)= 0,78183 т/год.

Таблица 4.1.2.7 - Источник № 6002

Код

Загрязняющие вещества

Выбросы ЗВ



г\с

т/год

2908

Пыль неорганическая 70-20% SiO2

0,07438

0,78183


Источник № 6003 (утилизация твердой фазы, участок по переработке отходов)

При пересыпке пылящих материалов интенсивными неорганизованными источниками пылеобразования является разгрузка самосвала, загрузка материала в бункер.

Максимальный разовый выброс пыли при работе экскаватора определяется по формуле [6, ф. 8]:

Мсек=k1×k2×k3×k4×k5×k7×k8×k9×В’×Gчас×106×(1-η)/3600, г/с

(4.11)


где1 - весовая доля пылевой фракции в материале 0,05;

k2 - доля переходящей в аэрозоль летучей пыли 0,03;

k3 - коэффициент, учитывающий местные метеоусловия 1,7;

k4 - коэффициент, учитывающий местные условия, степень защищенности узла от внешних воздействий, условия пылеобразования 1,0;

k5 - коэффициент, учитывающий влажность материала 0,1;

k7 - коэффициент, учитывающий крупность материала 1,0;

k8 - поправочный коэффициент для различных материалов в зависимости от типа грейфера, т.к. грейфер не будет использован, коэффициент принимается равным 1,0;

k9 - поправочный коэффициент при мощном залповом сбросе материала весом свыше 10 т при разгрузке автосамосвала принимается 0,1;

В’ - коэффициент, учитывающий высоту пересыпки 0,7;

Gчас - количество перерабатываемого материала (добавление материалов, утилизация твердой фазы) 12 т/ч;

η - эффективность средств пылеподавления, в долях единицы.

Мсек=0,05×0,03×1,7×1,0×0,1×1,0×1,0×0,1×0,7×12×106×(1-0):3600 = 0,0595 г/с

Валовый выброс пыли составляет:

Мгод = k1×k2×k3×k4×k5×k7×k8×k9×В’×Gгод×(1-η), т/год;

(4.12)


гдегод - суммарное количество перерабатываемого материала в течении года, 35040 т/год;

Мгод = 0,05×0,03×1,7×1,0×0,1×1,0×1,0×0,1×0,7×35040×(1-0)= 0,62546 т/год

Таблица 4.1.2.8 - Источник № 6003

Код

Загрязняющие вещества

Выбросы ЗВ



г\с

т/год

2908

Пыль неорганическая 70-20% SiO2

0,0595

0,62546


Источник № 0004 (дизель-генератор, участок по переработке отходов)

Источник № 0004 аналогичен по техническим характеристикам, расходу отработавших газов, выбросам ЗВ источнику №0001.

Объемы выбросов от дизель-генератора мощностью 35 кВт приведены в таблице 4.1.2.9.

Таблица 4.1.2.9 - Источник № 0004

Код

Загрязняющие вещества

Выбросы ЗВ



Максимально-разовые, г/с

Валовые,т/год

0301

Азота диоксид

0,08011

0,80152

0304

Азота оксид

0,01302

0,13025

0328

Сажа

0,00681

0,0699

0330

Серы диоксид

0,01069

0,10485

0337

Углерода оксид

0,07

0,699

0703

Бенз(а)пирен

0,13×10-6

1,28×10-6

1325

Формальдегид

0,00146

0,01398

2754

Углеводороды

0,035

0,3495

Источники № 0005, 0006 (резервуар)

Источники № 0005 и 0006 аналогичны по техническим характеристикам и выбросам ЗВ источникам №0002, 0003.

Таблица 4.1.2.10 - Источник № 0005, 0006

Код

Загрязняющие вещества

Выбросы ЗВ



Максимально-разовые, г/с

Валовые, т/год

0333

Сероводород

0,000018

0,000004

2754

Углеводороды

0,006512

0,001336

Источник № 6004(Склад цемента открытый)

Фракционный состав - от 1-3 мм.

Количество поступающего на склад цемента - 30 т/год 0,003 т/ч.

Площадь основания склада - 50 м2;

Расчет выбросов проведен в соответствии с «Методикой расчета нормативов выбросов от неорганизованных источников», Приложение № 13 к Приказу МООС РК от 18 апреля 2008 года № 100-п [6].

Максимальное количество пыли, поступающей в атмосферу со склада, рассчитывается по формуле:

, г/с(4.13)



или

, г/с,(4.14)


где

 и  - максимальный разовый выброс при погрузке и разгрузке соответственно, рассчитывается по формуле:

(4.15)


 Мп=0,04*0,03*1,2*1*1*0,8*1*1*0,003*1000000/3600*(1-0)=0,00096 г/сек.

 - максимальный разовый выброс при сдувании с поверхности, по формуле: , г/с,

k6 - коэффициент, учитывающий профиль поверхности складируемого материала и определяемый как соотношение:

(4.16)



где факт. - фактическая поверхность материала с учетом рельефа его сечения, м2;

S - поверхность пыления в плане, м2;

Значение k6 колеблется в пределах 1,3-1,6 в зависимости от крупности материала и степени заполнения;

q' - унос пыли с одного квадратного метра фактической поверхности, г/м2с, в условиях когда k3=1; k5=1;

Мсек =1,2*1*1*1,3*0,8*0,003*50=0,1872 г/с

Мсек =0,00096+0,1872=0,188 г/сек.

Валовые выбросы твердых частиц в атмосферу определяются как сумма выбросов при разгрузке материала, при сдувании с пылящей поверхности и отгрузке материала:

, т/год,(4.17)


где

 и  - количество твердых частиц, выделяющихся при разгрузке и погрузке материала, соответственно, т/год, рассчитывается по формуле:

 , т/год,

М ргод = 0,04*0,03*1,2*1*0,8*0,8*1*1,5*30*(1-0) = 0,0415 т/год

 - количество твердых частиц, сдуваемых с поверхности, т/год, рассчитывается по формуле:

, т/год,(4.18)



где Тсп - количество дней с устойчивым снежным покровом;

Тд - количество дней с осадками в виде дождя, рассчитывается по формуле:

, дней(4.19)


Т= 2*60/24=5

где

 - суммарная продолжительность осадков в виде дождя в зоне проведения работ.

М сд=0,0864*1,2*1*0,8*1,3*0,8*0,003**50 (365-(55+5)*(1-0)= 3,9465 т/год

М год =0,0415+0,0415+3,9465= 4,0295 т/год.

Таблица 4.1.2.11 - Источник № 6004

Код

Загрязняющие вещества

Выбросы ЗВ



г\с

т/год

2908

Пыль неорганическая 70-20% SiO2

 0,188

4,0295



4.1.3 Перечень загрязняющих веществ

На основании проделанных расчетов сформирован перечень загрязняющих веществ с определением класса опасности и указанием величин предельно-допустимых концентраций, утвержденных Постановлением Правительства РК от 25.01.2012 № 168.

Перечень с характеристиками ЗВ приведен в таблице 4.4.3.1.

Таблица 4.4.3.1 - Качественные и количественные характеристики выбросов ЗВ в атмосферу

Наименование  вещества

Код ЗВ

Класс  опасности

ПДКмр мг/м3

ПДКсс мг/м3

Максимально-разовые, г/с

Валовые, т/год

1

Азота диоксид

0301

2

0,2

0,04

0,20774

2,06112

2

Азота оксид

0304

3

0,4

0,06

0,03376

0,33494

3

Сажа

0328

3

0,150

0,050

0,10569

1,02733

4

Серы диоксид

0330

3

-

0,125

0,14018

1,35490

5

Сероводород

0333

2

0,008

-

0,00004

0,00001

6

Углерода оксид

0337

4

5,000

3,000

0,73400

7,12400

7

Бенз(а)пирен

0703

1

-

1·10-6

0,000002

0,000021

8

Формальдегид

1325

2

0,035

0,003

0,00292

0,02796

9

Углеводороды С12-С19

2754

4

1,000

-

0,26122

2,41947

10

Пыль SiO2 20-70%

2908

3

0,300

0,10

0,32188

5,43679


В атмосферу при эксплуатации оборудования, работающего при максимальной нагрузке, выделится 10 загрязняющих веществ четырех классов опасности.

.1.4 Обоснование предлагаемых размеров санитарно-защитной зоны (СЗЗ)

Согласно установленным требованиям для современных крупных промышленных комплексов (энергетика, добыча нефти и газа, нефтепереработка и нефтехимия и другие) размеры СЗЗ устанавливают для всех объектов комплекса как единого.

Оборудование по утилизации бурового шлама является объектом действующих нефтедобывающих комплексов. При организации и обустройстве санитарно-защитной зоны, размер СЗЗ может быть определен с учетом перспективы развития предприятий и утверждается при наличии санитарно-эпидемиологического заключения государственного органа санитарно-эпидемиологической службы.

Размер санитарно-защитной зоны установлен в соответствии с требованиями Санитарных правил «Санитарно-эпидемиологические требования по установлению санитарно-защитной зоны производственных объектов». Размер санитарно-защитной зоны для установки по переработке бурового шлама на водной основе на циркуляционном оборудовании предварительно предлагается установить в размере 300 м.

Ожидается, что при эксплуатации установки по утилизации бурового шлама выброс ЗВ в атмосферный воздух будет локального масштаба, и не повлечет изменений качества атмосферного воздуха на границе санитарно-защитных зон нефтедобывающих комплексов.

.1.5 Расчет рассеивания ЗВ

Расчет рассеиваний производится согласно ОНД-86 «Методики расчета концентраций в атмосферном воздухе вредных веществ, содержащихся в выбросах».

Расчет рассеивания ЗВ выполнен по программе «ЭРА», версия 1.7.

Прогнозирование загрязнения атмосферного воздуха произведено расчетными алгоритмами РНД 211.2.01.01-97 «Методика расчета концентраций в атмосферном воздухе вредных веществ, содержащихся в выбросах предприятий» программным комплексом “Эра” v.1.7 [7].

Для определения приземных концентраций ЗВ произведен расчет См и в расчетном прямоугольнике с параметрами 3000х3000 м, шаг сетки 100 м. Расчет рассеивания выполнен в заводской системе координат. Центр принят с координатами Х=600 м, Y=500 м, угол между осью ОХ и направлением на север равен 90 0С.

Для расчета рассеивания ЗВ учитывается одновременность работы применяемого оборудования.

Результаты расчетов рассеивания ЗВ представлены в Таблице 4.1.5.1

Рисунок 4.1.5.1 - Сводная таблица результатов расчетов рассеивания

Анализ расчетов рассеивания показал, что вклад от эксплуатации установки по утилизации бурового шлама в загрязнение атмосферного воздуха в приземном слое незначителен и превышает ПДК в расчетном прямоугольнике лишь по диоксиду азота, на границе СЗЗ по всем ингредиентам превышений нет. По группе суммации 0301+0330 на границе СЗЗ концентрации ЗВ в пределах 1 ПДК.

Результаты расчетов рассеивания приведены на рисунках графического изображения изолиний рассеивания ЗВ. (Приложение А).

4.1.6 Оценка воздействия на атмосферный воздух

Качество атмосферного воздуха, как одного из основных компонентов природной среды, является важным аспектом при экологической оценке воздействия объекта как на окружающую среду, так и на здоровье населения.

Воздействие намечаемой деятельности оценивается с соответствия законодательным и нормативным требованиям, предъявляемым к качеству атмосферного воздуха. Загрязненность атмосферного воздуха химическими веществами может влиять на состояние здоровья населения, на животный и растительный мир прилегающей территории.

В качестве критерия для оценки уровня загрязнения атмосферного воздуха применяются значения предельно допустимых концентраций (ПДК) веществ в атмосферном воздухе для населенных мест и ориентировочно безопасные уровни воздействия (ОБУВ) [8].

Размер санитарно-защитной зоны (СЗЗ) для установки по утилизации бурового шлама определен в размере 300 м.

В состав выбросов в атмосферу входят токсичные вещества 2 класса опасности (сероводород, диоксид азота), вещества 3-4 класса опасности, а также группы веществ, обладающих при совместном присутствии суммирующим эффектом воздействия.

Перечень основных загрязняющих веществ в составе выбросов при эксплуатации установки по утилизации бурового шлама с указанием ПДК (ОБУВ) для населенных мест и класса опасности приведен в таблице 4.4.3.1.

На процесс накопления загрязняющих веществ в атмосфере в значительной степени влияют метеорологические условия и рельеф местности. Рельеф местности способствует рассеиванию загрязняющих веществ в атмосфере. При проведении рассеивания загрязняющих веществ учтена и подробная информация по климатическим характеристикам и в районе расположения объекта.

При эксплуатации объекта выброс загрязняющих веществ будет незначительным и при максимальной интенсивности работ. Учитывая, возможную зону загрязнения при проведении данного вида работ воздействие оценивается как незначительное. Выбросы загрязняющих веществ от источников проектируемого объекта будут рассеиваться до безопасных концентраций.

Оценивая воздействие рассматриваемого объекта на атмосферный воздух, можно отметить, что величина (интенсивность) воздействия оценивается как незначительная, масштаб воздействия оценивается как локальный, продолжительность воздействия при эксплуатации - постоянная.

.2 Охрана водных ресурсов

При переработке бурового шлама для персонала из 4 человек устраиваются санузел типа биотуалет и душевая на 1 место. Подвоз воды будет осуществляться машиной-водовозкой из близлежащих населенных пунктов, т.е. будет привозной. Питьевая вода будет храниться в специальных флягах, емкостях.

Расчет водопотребления и водоотведения произведен согласно СНиП РК 4.01-41-2006 «Внутренний водопровод и канализация зданий» [9] и СниП РК 4.01-02-2001 «Водоснабжение. Наружные сети и сооружения» [10].

.2.1 Водопотребление

Расчет расхода воды на питьевые нужды персонала       

За всё время проведения работ на рассматриваемом объекте будет задействовано 14 ед. персонала.

Расход воды на питьевые нужды в период работ составит:

Qсут = q×n× 0,001,

(4.20)


где  - норма расхода воды на 1 чел. в сутки - 25л (СНиП РК 4.01-41-2006 прил. 3 п.23);- количество задействованного персонала, 14 чел.

сут = 25×14×0,001 = 0,35 м3/сут

Qгод = q×n× tp× 0,001,

(4.21)


где tp - количество рабочих дней в году, 365 дн.

Q = q×n×tp×0,001 = 25×14×365×0,001 =127,75 м3/год

Расчет расхода воды на бытовые помещения

Qсут = q×n× m× 0,001,

(4.22)


где  - норма расхода воды на 1 душевую - 500 л (СНиП РК 4.01-41-2006 прил 3 п.21);         

n - количество душевых сеток, 1; 

m - количество смен в сутки, 1.

Qсут = 500×1×1× 0,001 = 0,5 м3/сут     

Qгод = q×n× m× tp × 0,001,

(4.23)


где tp - количество рабочих дней в году, 365.

Q = q×n×m×tp×0,001 = 500×1×1×365×0,001 = 182,5 м3/год.

Итого Qсут = 0,35 + 0,5 = 0,85 м3/сут

Qгод = 182,5 + 127,75 = 310,25 м3/год.

.2.2 Водоотведение

Сточные воды сбрасываются в септик. Септик устроен из двух бетонных колец. При заполнении септика сточные воды откачиваются и ассенизационной машиной вывозиться на существующие станции очистки. По окончании работы установки по утилизации бурового шлама на водной основе септик будет засыпан глинистым грунтом.

Объем воды, подлежащий сбросу в септик:

Qгод= 310,25 м3/год.

При утилизации бурового шлама на водной основе образуется водная составляющая утилизированного шлама. Для сбора фильтрующейся жидкой фазы устраивают дренажную систему, с установкой емкости объемом 5 м3 для первичного сбора и последующей откачки дренажа в резервуар для технической воды или пожарной готовности. Для сбора этой воды предназначена емкость объемом 100 м3.

Также, возможно использование полученной жидкой фазы в дальнейшем процессе изготовления мелкоразмерных строительных изделии, при приготовлении раствора, для смачивания земляного основания, предусмотренного технологической картой строительства автодорог, а также для пылеподавления на грунтовых дорогах, подъездных путях и карьеров ОПИ.

.2.3 Оценка воздействия на поверхностные и подземные воды

Поверхностные воды. Водопотребление осуществляется на хозяйственно-бытовые нужды. При эксплуатации объекта сброс сточных вод в поверхностные водоемы не производится.

Учитывая, что отбор воды из поверхностных источников для водоснабжения и сброс сточных вод в открытые водоемы не производится, негативного воздействия объекта в период эксплуатации на поверхностные воды не происходит.

Подземные воды. При эксплуатации объекта основное негативное воздействие на подземные воды возможно при их загрязнении. Основными источниками загрязнения подземных вод в период эксплуатации Возможен от утечек технологических устройств (резервуаров хранения топлива), утечек от систем водоотведения (канализационные и дренажные системы, отстойники) и утечек от пунктов сбора и хранения отходов.

Большое значение имеет качественное выполнение работ по гидроизоляции днищ резервуаров и противопожарных водоемов.

Негативное воздействие на подземные воды при эксплуатации объекта можно оценить как незначительную, при этом пространственный масштаб (область воздействия) будет соответствовать точечному, а продолжительность воздействия для этапа эксплуатации - временное.

.3 Охрана земельных ресурсов

Работы по утилизации отходов бурения сопровождаются образованием отходов производства и потребления. Основные виды отходов, образующиеся в период проведения работ, представлены отходами от жизнедеятельности персонала.

Отходы, образующиеся от жизнедеятельности работающих, представлены твердыми бытовыми отходов.

ТБО будут образовываться в результате жизнедеятельности рабочих, задействованных в работах по утилизации бурового шлама.

ТБО складируются в контейнеры, размещенные на специально отведенных площадках с твердым покрытием, с последующим вывозом на полигон твердых бытовых отходов.

.3.1 Расчет образования ТБО

Твердые бытовые отходы относятся к V классу опасности, обладают следующими свойствами: твердые, не токсичные, не растворимы в воде.

Количество обслуживающего персонала на установках 4 человека.

Расчет образования твердых бытовых отходов выполнен согласно существующему нормативному документу РНД 03.1.03.01-96 по количеству персонала на основе средних норм накопления мусора на человека в год.

Объем образующихся отходов составит:

Мобр = р * m , м3/год

(4.24)

где

р - норма накопления ТБО на 1 человека в год - 1,0 м3/год [14];

m - численность работников - 4 чел.

Мобр = 1*4 = 4 м3/год

Плотность ТБО составляет 0,2 т/м3[14], количество ТБО составит:

Мобр = 4 м3 * 0,2 т/м3 = 0,8 т/год (1 установка)

В год будут задействованы 4 человека в год на установке и 10 человек задействованы на участке по переработке отходов.

Итого возможный объем ТБО в год составит:

(4+10) * 1* 0,2 = 2,8 тонны\год.

Система управления отходами представлена в таблице 4.3.2.1.

Таблица 4.3.2.1 - Система управления отходами

1. Образование

Образуется в процессе жизнедеятельности персонала предприятия

2. Сбор и накопление

Собирается в металлическом контейнере емкостью 3,0 куб. м

3. Идентификация

Твердые, неоднородные нетоксичные, пожароопасные, нерастворимые отходы

4. Сортировка  (с обезвреживанием)

Не сортируется

5. Упаковка и маркировка

Не упаковывается

6. Транспортировка

Транспортируется вручную

7.Складирование (упорядоченное размещение)

Складируется в металлическом контейнере

8. Хранение

Не хранится

9. Удаление

Вывозится на полигон ТБО


.3.3 Сведения о классификации отходов

ТБО представлены пластиковыми емкостями, упаковочными материалами, бумагой и т.д., отходы нетоксичны. Относится к V классу опасности.

Код идентификации отхода: N200100//Q14//WS17//C00//H4.1//D1+5//A280//GO060.

Уровень опасности отхода - зеленый GO 060 [16].

Таблица 4.3.3.1 - Классификация отходов

№  пп

Отходы

Класс опасности

Хар-ка  отходов

Физ. состояние

Токс. комп-ты

Уровень опасности

Операции по обращению

1

ТБО

5

Огнеопасны,  невзрыво-опасные  нетоксичны

Твердые

-

GO 060 Зеленый список

Временное складирование,  вывоз на полигон ТБО

2

Отработанный буровой раствор

3

Невзрыво-опасные  токсичны

Жидкие

Углеводороды, сульфанолы, спирты, хлористые бензилы.

AD 060 Янтарный список

Переработка методом солидации

3

Буровой шлам

3

Невзрыво-опасные  нетоксичны

Жидкие

-

AE 040 Янтарный список

Переработка методом солидации



4.3.4 Оценка воздействия на недра

При эксплуатации объекта основными источниками потенциального воздействия на геологическую среду будут являться транспорт и спецтехника, траншеи под контейнеры.

Следует учесть и объемы земляных работ при обустройстве площадки воздействие выражаются в изменении микрорельефа, механическом нарушении грунтов на площади проведения работ.

При эксплуатации объекта источниками потенциального воздействия на геологическую среду могут быть наземные сооружения объекта. Наиболее значимым воздействием объекта на недра является активизация развития экзогенных геологических процессов.

При соблюдении всех необходимых мероприятий эксплуатация объекта не приведет к изменению сложившегося состояния геологической среды.

Воздействие на геологическую среду оценивается как незначительное, при этом пространственный масштаб (область воздействия) будет соответствовать точечному, а продолжительность воздействия эксплуатации - временное.

.3.5 Оценка воздействия на почвенный покров

Воздействие объекта на почвы складываются из следующих факторов:

нарушений почвенного покрова вокруг объекта и коммуникаций;

загрязнения поверхностного слоя почв при случайных разливах ГСМ;

выпадение загрязнителей из атмосферного воздуха;

складирования отходов.

При эксплуатации объекта основным негативным фактором является загрязнение почв, возникающее при работе автомобильной техники, выбросами в атмосферу, твердыми бытовыми отходами.

Из вышеперечисленных факторов только выпадение загрязнителей из атмосферного воздуха будет носить постоянный характер. Остальные факторы вследствие проведения природоохранных мероприятий будут нейтрализованы.

При правильно организованной работе и соблюдении необходимых мер загрязнение почв будет незначительным. При этом пространственный масштаб будет соответствовать локальному, а продолжительность воздействия - временное, по интенсивности воздействия - незначительное.

.3.6 Оценка воздействия на растительность

Вблизи промышленных площадок растительность подвержена воздействию строительной техники, проездам машин, складированию бытовых отходов. При строительстве объекта химическое загрязнение растительного покрова связано с выбросами токсичных веществ с выхлопными газами, возможными утечками горюче-смазочных материалов, при заправке техники и несоблюдении требований по сбору и вывозу отходов.

При правильно организованном техническом уходе и обслуживании оборудования, строительной техники и автотранспорта: выполнение запланированных требований в управлении отходами - воздействие объекта на загрязнение почвенно-растительного покрова будет незначительным.

Таким образом, можно сказать, что по интенсивности и силе воздействия на растительность эксплуатация объекта оценивается как - незначительное, по продолжительности воздействия - долговременное по масштабу воздействия - локальное.

5. Экономическая часть

Для компенсации неизбежного ущерба естественным ресурсам, в соответствии с Экологическим и Налоговым кодексом, вводятся экономические методы воздействия на предприятия по охране окружающей среды. В качестве таких мер с предприятия взимается плата за пользование природными ресурсами и плата за выбросы, сбросы, размещение отходов производства и потребления и размещение серы, образующейся при проведении нефтяных операций. Платежи могут быть определены заранее на основе проектных расчетных показателей.

Под экономическим ущербом предприятия понимают те расходы, понесенные предприятием в связи с негативным воздействием вредных веществ, поступающих в окружающую среду от выбросов собственного производства. То есть экономический ущерб от негативного воздействия вредных веществ это часть издержек предприятия, связанных с компенсацией воздействия на средства предприятия. Негативное воздействие выражается в износе основных фондов, утраты продукции с выбросами газов и сбросами сточной воды, недополучении продукции вследствие ухудшения состояния персонала, а также расходов на предотвращение негативного воздействия загрязненной окружающей природной среды.

Штрафные выплаты и компенсации ущерба определяются по фактически произошедшим событиям нарушения природоохранного законодательства.

.1 Платежи за выбросы веществ в атмосферный воздух

Плата природопользователя за выбросы загрязняющих веществ рассчитывается на основании кодекса Республики Казахстан «О налогах и других обязательных платежах в бюджет».

Согласно ст. 495 п. 2 Налогового кодекса РК «Ставки платы определяются исходя из размера месячного расчетного показателя, установленного законом о республиканском бюджете (далее по тексту настоящей статьи - МРП) на первое число налогового периода» [18].

МРП - это показатель, используемый для расчёта налогов и других платежей. Так же используется для исчисления пенсий, пособий и иных социальных выплат, а также для применения штрафных санкций.

Согласно ст.11, п.4 Закона РК «О республиканском бюджете на 2015-2017 годы» 1 МРП равен 1 982 тенге.

Согласно ст. 495 п. 9 Налогового кодекса РК местные представительные органы имеют право повышать ставки, установленные Налоговым кодексом, не более чем в два раза, за исключением ставок, установленных пунктом 3 ст. 495, которые они имеют право повышать не более чем в двадцать раз.

По приложению к решению Жамбыльского областного маслихата от 23 августа 2013 года № 16-5 «Об утверждении ставок платежей за эмиссии в окружающую среду» ставки платы за выбросы загрязняющих веществ от стационарных источников составляют:

Таблица 5.1.1 - Ставки платы за выбросы загрязняющих веществ

№ п/п

Виды загрязняющих веществ

Ставки платы за 1 тонну, (МРП)

Ставки платы за 1 килограмм, (МРП)

1.

Окислы серы

20


2.

Окислы азота

20


3.

Пыль и зола

10


4.

Свинец и его соединения

3 986


5.

Сероводород

124


6.

Фенолы

332


7.

Углеводороды

0, 32


8.

Формальдегид

332


9.

Окислы углерода

0,32


10.

Метан

0,02


11.

Сажа

24


12.

Окислы железа

30


13.

Аммиак

24


14.

Хром шестивалентный

798


15.

Окислы меди

598


16.

Бенз(а)пирен


996,6


Расчет платы за выбросы веществ в атмосферный воздух от стационарных источников загрязнения в пределах утвержденных нормативов эмиссий осуществляется по формуле:

Ciвыб = Hiвыб ·Miвыб·МРП,

(5.1)


где выб - плата за выбросы i-го вещества от стационарных источников загрязнения (тенге);

Hiвыб - ставка платы за выбросы i-го вещества, установленная в соответствии с налоговым законодательством Республики Казахстан (МРП за каждую тонну выброса);

Miвыб - суммарная масса всех разновидностей загрязняющих веществ, выброшенных в окружающую природную среду за отчетный период от всех стационарных источников загрязнения (в тоннах);

МРП - ставка МРП в денежном эквиваленте на 2015 год (1982 тенге).

Плата за выбросы оксидов углерода:

Ciвыб = 0,32· 7,124·1982 = 4518, 326 тенге.

Итого за выбросы 7,124 тонн оксидов углерода от стационарных источников предприятие должно выплатить 4518,326 тенге в бюджет.

Расчёты платежей за выбросы остальных загрязняющих веществ в атмосферный воздух от всех стационарных источников загрязнения по предприятию выполнены по аналогии и представлены в таблице 5.1.2.

Таблица 5.1.2 - Расчёты платежей за выбросы загрязняющих веществ

Наименование загрязняющих веществ

Величина выбросов, т

Ставки платы за 1 тонну, тенге

Плата, тенге/пер.

От стационарных источников

Оксид углерода

7,124

634,240

4518,326

Окислы азота

2,396

39640,000

94979,818

Оксилы серы

1,355

39640,000

53708,236

Пыль неорганическая: ниже 20% двуокиси кремния

5,437

19820,000

107757,178

Углеводороды

2,419

634,240

1534,526

Бенз(а)пирен

0,000021

1975261200,000

41203,949

Формальдегид

0,028

658024,000

18398,351

Сажа

1,027

47568,000

48868,033

Сероводород

0,000

245768,000

1,966

Итого от стационарных источников:

370970,383


Итого за 1 год осуществления деятельности предприятие должно выплатить 370970,383 тенге по налоговому кодексу.

Согласно ст. 495 п. 4 Налогового кодекса РК ставки платы за выбросы загрязняющих веществ в атмосферный воздух от передвижных источников составляют:

Таблица 5.1.3 - Ставки платы за выбросы от передвижных источников

№ п/п

Виды топлива

Ставка за 1 тонну использованного топлива (МРП)


Для неэтилированного бензина

0,66


Для дизельного топлива

0,9


Для сжиженного, сжатого газа

0,48


Расчет платы за выбросы веществ в атмосферный воздух от передвижных источников загрязнения осуществляется по формуле:

Ciвыб = Hiвыб ·Qiвыб·МРП,

(5.2)


где выб - плата за выбросы от передвижных источников загрязнения, в зависимости от вида использованного топлива (тенге);

Hiвыб - ставка платы за выбросы от передвижных источников загрязнения, установленная в соответствии с налоговым законодательством Республики Казахстан (МРП за каждую тонну использованного вида топлива);

Miвыб - суммарная масса использованного вида топлива (в тоннах);

МРП - ставка МРП в денежном эквиваленте на 2015 год (1982 тенге).

Плата за выбросы от передвижных источников при расходе дизельного топлива в количестве 57,26 тонн:

Ciвыб = 0,9· 57,26·1982 = 102140,388 тенге.

Итого за выбросы в окружающую природную среду от передвижных и стационарных источников плата за эмиссию в атмосферный воздух составит:

,388 + 370970,383 = 473110,771 тенге/год.

.2 Платежи за размещение отходов производства и потребления

Расчет платы за размещенный объем i-го вида отходов производства и потребления в пределах нормативов эмиссий осуществляется по следующей формуле:

Ciотх = Hiотх ·Мiотх·МРП,

(5.3)


где отх - плата за размещение i-го вида отходов производства и потребления (МРП);

Hiотх - ставка платы за размещение одной тонны или 1 тыс.куб.м. отходов производства и потребления в зависимости от индекса опасности, утвержденная местными представительными органами на текущий год, тенге;

Мiотх - масса i-ого вида отходов, размещенного природопользователем в процессе производственной деятельности за отчетный период (тонн, Гбк - для радиоактивных отходов);

МРП - ставка МРП в денежном эквиваленте на 2015 год (1982 тенге).

Таблица 5.2.1 - Ставки платы за размещение отходов производства и потребления

№ п/п

Виды отходов

Ставки платы (МРП)



за 1 тонну

за 1 гигабеккерель (Гбк)

1.

За размещение отходов производства и потребления на полигонах, в накопителях, санкционированных свалках и специально отведенных местах:



1.1.

Коммунальные отходы (твердые бытовые отходы, канализационный ил очистных сооружений)

0,19


1.2.

Отходы с учетом уровня опасности, за исключением отходов, указанных в строке 1.3 настоящего пункта



1.2.1.

«красный» список

7


1.2.2.

«янтарный» список

4


1.2.3

«зеленый» список

1


1.2.4.

не классифицированные

0,45


1.3.

Отходы, по которым при исчислении платы не учитываются установленные уровни опасности:



1.3.1.

Отходы горнодобывающей промышленности и разработки карьеров (кроме добычи нефти и природного газа):



1.3.1.1.

вскрышные породы

0,002


1.3.1.2.

вмещающие породы

0,013


1.3.1.3.

отходы обогащения

0,01


1.3.1.4.

шлаки, шламы

0,019


1.3.2.

Шлаки, шламы, образуемые на металлургическом переделе при переработке руд, концентратов, агломератов и окатышей, содержащих полезные ископаемые, производстве сплавов и металлов

0,019


1.3.3.

Зола и золошлаки

0,33


1.3.4.

отходы сельхозпроизводства, в том числе навоз, птичий помет

0,001


2.

За размещение радиоактивных отходов, в гигабеккерелях (Гбк):



2.1.

Трансурановые


0,38

2.2.

Алфа-радиоактивные


0,19

2.3.

Бета-радиоактивные


0,02

2.4.

Ампульные радиоактивные источники


0,19


 Плата за размещение 2,8 тонн ТБО равняется:

Ciотх = 0,19·2,8·1982 = 1054,424 тенге.

Итого за размещение отходов производства и потребления плата будет равняться 1054,424 тенге.

.3 Оценка воздействия на социально-экономическую среду

Эксплуатация оборудования по утилизации буровых отходов на промышленных площадках нефтедобывающих компаний, расположенных на территории Жамбылской области будет оказывать положительное воздействие на социально-экономическую среду на местном уровне воздействий. В регионе может незначительно увеличиться первичная и вторичная занятость местного населения, что приведет к увеличению доходов населения.

Экономическая деятельность оказывает прямое и косвенное благоприятное воздействие на финансовое положение района области (увеличению поступлений денежных средств в местный бюджет, развитию системы пенсионного обеспечения, образования и здравоохранения).

Таблица 5.3.1 - оценка воздействия на социально-экономическую среду.

Критерий социальной и экономической сфер

Тип воздействия

Показатель воздействия

Интегральная оценка

Трудовая занятость

Занятость населения

Сильный +

Положительное

Здоровье населения

Выбросы в атмосферу

Слабый - отрицательное воздействие

Отрицательное


Отходы производства

Сильное +  утилизация промышленных отходов, положительное воздействие на здоровье населения области

Положительное


Повышение доходов населения

Сильное + положительное воздействие на здоровье населения области, повышения благосостояния

Положительное

Образовательная и научная сфера

Поиск новых технологий, улучшение

Сильный + положительное воздействия

Положительное


Потребность в квалифицированных кадрах

Сильный + положительное воздействие на образовательную сферу области за счет нужды в квалифицированных кадрах.

Положительное

Экономика

Увеличение  сборов налогов

Сильный + положительное воздействие, связанное с увеличением налоговых поступлений и доли прибыли от производства

Положительное


Развитие  сферы обслуживания

Сильный + положительное воздействие на территорию области, связанное со стимуляцией деятельности сервисных компаний.

Положительное



6. Безопасность жизнедеятельности

Одной из негативных особенностей осуществления рассматривание технологического процесса является образование аэродисперсных систем, состоящих из твердых частиц пыли, взвешенных в газообразной среде при работе бетонно-смесительного узла СМ-15С.

Исходя из этого, для улавливания пыли, предлагается установка тканевого (рукавного) фильтра.

.1 Характеристики рукавных фильтров

Конструктивно эластичная фильтрующая заслонка выполняется в виде рукава, поэтому и фильтры с гибкими фильтрующими перегородками называются «рукавные». Рукавные тканевые фильтры используются для очистки значительных объемов воздуха (газов) с большой концентрацией пыли. Фильтрующими компонентами в таких установках являются рукава из специальной фильтровальной ткани. Рукавные фильтры предусматривают возможность тонкого очищения воздуха от пылевых частиц, имеющих размер фракции менее 1 мкм. Также как и циклоны рукавные фильтры являются одними из основных видов пылеулавливающих установок и находят широкое применение на предприятиях металлургии (черной и цветной), химической промышленности, промышленности строительных материалов, пищевой промышленности, в энергетических оборудованиях и др [12].

Рукавные фильтры подразделяются на следующие виды: нагнетательные и всасывающие.

Всасывающие устанавливаются до вентилятора, т.е. на всасывающей линии. Нагнетательные, напротив, устанавливаются непосредственно на самой линии. Воздух, очищающийся в рукавах нагнетательных фильтров, поступает в помещение с установленными фильтрами. Недостатком таких фильтров является поступление воздуха в помещение после фильтров. В случае появления неплотностей в рукавах нагнетательного фильтра происходит запыление воздуха помещения.

Недостаток всасывающего фильтра - это значительные подсосы воздуха.

Существует множество конструкций рукавных фильтров, которые отличаются формой корпуса, диаметрами и длиной рукава, видом фильтровальной ткани и способом регенерации.

В качестве фильтровальной ткани применяются следующие виды волокон: шерстяные, льняные, хлопчатобумажные, шелковые, лавсан, нитрон, капрон, хлорин, асбест, стеклоткань, металлоткань и др.

Для выбора фильтрирующего материала руководствуются такими показателями как: химическая стойкость, воздухопроницаемость, термостойкость, разрывная нагрузка, изгибоустойчивость и возможная степень очистки.

Хлопковое волокно на 95 процентов выполнено из целлюлозы, и поэтому оно гигроскопично. При влажности воздуха 65-75 % данное волокно способно поглотить до 8-10 % влаги, при влажности 90-95 % - до 25 % влаги. При нагреве до 125 °С заметные негативные последствия не отмечаются, при более же высокой температуре волокна подвергаются разрушению. Растворы щелочи (5%-ные, едкие) не оказывают значительного влияния на волокно из хлопка, при более сильных растворах происходит его разрушение. Большинство кислот действуют на хлопковое волокно разрушительными действиями. Так, 1,5%-ная соляная кислота с температурой 95°С может разрушить хлопковое волокно в течение одного часа. Подобным действием обладают и азотная и серная кислоты.

Шерстяные волокна на 90 % состоят из каротина. При его нагревании более чем в 170 °С они начинают разрушаться. В сравнении с хлопковыми волокнами шерстяные менее стойки к кислотам, но более стойки перед щелочами. Шерстяные волокна при относительной влажности воздуха 65 % интенсивно поглощают до 20 % влаги, а при влажности 100 % - 34 % влаги. На шерстяные волокна разрушающе действует вода с температурой свыше 70 °С и соляная, серная, азотная кислоты с концентрацией раствора более 6 %. При контакте с воздухом с температурой 80 °С шерсть начинает становится более жесткой и ломкой. Механическая прочность шерстяного волокна ниже хлопкового, но шерстяные волокна пригодны для изготовления фильтровальных тканей благодаря большей упругости в отличие от хлопковых.

Большим преимуществом обладает ткань из лавсана и нитрона. Нитроновое волокно обладает хорошей прочностью, эластичностью и меньшей гигроскопичностью. При влажности воздуха 65 % нитрон поглощает из воздуха только 1 % влаги. Нитрон в течении продолжительного периода времени выдерживает температуру под 140 °С и ограниченное время при 180 °С. По сравнению с хлопковыми фильтрами, нитрон в несколько раз устойчивее к кислотам и органическим растворителям. Также он устойчив к действию микроорганизмов и насекомых. Нитроновая ткань не подвергается усадке. Лавсановое волокно также обладает устойчивостью к стиранию, прочностью и температурных колебаний, однако оно более устойчиво к химическим реагентам. Лавсановое волокно имеет малую гигроскопичность и как нитрон устойчиво к действию микроорганизмов.

Основное преимущество волокон асбеста это обладание высокой термостойкостью, не загниванием стойкостью к растворам щелочей и кислот. Однако прочность волокна из асбеста невелика.

Стеклянное волокно имеет высокую термостойкость, химическую стойкостью и выдерживает значительные разрывные нагрузки. Стеклоткани стойки при температуре вплоть до 300 °С. Фильтровальные стеклоткани обычно изготовляют из волокон диаметром 7 мкм. Стеклоткани аппретируют, покрывают кремнийорганическими соединениями и силиконом, а также графитируют. Благодаря этому срок службы стеклоткани увеличивается [17].

В среднем, нормально работающие рукавные фильтры снижают концентрацию пыли на выходе до концентраций, не превышающих 20 мг/м. При использовании эффективных фильтровальных материалов концентрация на выходе может снижаться вплоть до 1 мг/м3 и менее.

Общий вид рукавного фильтра показан на рисунке 6.1.


1 - корпус; 2 - встряхивающее устройство; 3 - рукав; 4 - распределительная решетка

Рисунок 6.1 - Рукавный фильтр

Способ регенерации выбирается исходя из вида ткани, конструкции аппарата, характеристики пыли и технологического процесса и других факторов.

.2 Расчет и выбор рукавных фильтров

Расчеты фильтров необходимы для определения площади фильтровальной перегородки, гидравлического сопротивления фильтрирующей перегородки и аппарата, продолжительности и частоты циклов регенерации фильтрующих элементов.

При выборе конструкции фильтра с гибкой фильтровальной перегородкой приходится учитывать значительное число факторов:

характеристику очищаемых газов на входе в фильтр: средний объемный расход очищаемых газов в рабочих и нормальных условиях, состав газов и их взрывоопасность, температура и давление, допустимость подсоса, содержание влаги, точка росы;

свойства пыли: тип пыли (по механизму образования), распределение частиц по размерам, средняя и максимальная массовая концентрации, содержание токсичных веществ, химический состав пыли, ее гигроскопичность и растворимость в воде, склонность к слипанию, взрываемость и горючесть, истинная и насыпная плотности, электризуемость, абразивность, предельно допустимая концентрация;

характеристику источника выделения пыли: технологические сведения о процессе и применяемом оборудовании, периодичность или непрерывность процесса, место отсоса запыленных газов, конструкционные материалы, используемые в технологическом оборудовании;

характеристику и требования к уловленной пыли: ее ценность, возможность регенерации и возвращения в производство, возможность ее использования в других производствах, способ выгрузки, транспортирования и упаковки;

основные требования к фильтрам: допускаемое сопротивление фильтра, задаваемая величина выходной концентрации, размер установки, требуемая площадь, место расположения, необходимое вспомогательное оборудование, климатические условия, лимиты по воде, пару, электроэнергии, возможность проведения процесса при аварийной остановке фильтра, капитальные и эксплуатационные затраты [17].

Фильтрующая поверхность аппарата определяется из выражения:

Fф = ((Vп+Vр)/60q) + Fр,

(6.1)


где п - объем газа, поступающего на очистку, м3/ч;

Vр - объем газа или воздуха, расходуемого на регенерацию ткани, м3/ч;

q - удельная газовая нагрузка фильтровальной перегородки при фильтровании, м3(м2·мин);

Fр -фильтрующая поверхность, отключаемая на регенерацию в течение 1 час, м2.

Величину Fр следует рассчитывать по зависимости:

Fр = Nc ·Fc ·τp ·mp,

(6.2)


где  - число секций в фильтре;

Fc - фильтрующая поверхность секции, м2;

τp - время регенерации секции, с;

mp - число регенерации в течении 1 часа.

Удельная газовая нагрузка на фильтровальную перегородку для рукавных фильтров колеблется от 0,3 до 6 м3/(м2·мин).

С достаточной для практических расчетов точностью удельную газовую нагрузку в рукавных фильтрах можно определить из следующего выражения (м3/(м2· мин)):

q = qн ·с1 ·с2 ·с3 ·с4 ·с5,(6.3)



где н - нормативная удельная нагрузка, зависящая от вида пыли и ее склонности к агломерации [таблица 1, 17];

с1 - коэффициент, характеризующий способность регенерации фильтрующих элементов [таблица 2, 17];

с2 - коэффициент, учитывающий влияние концентрации рыли на удельную газовую нагрузку [рисунок 3, 17];

с3 - коэффициент, учитывающий влияние дисперсного состава пыли в газе [таблица 2, 17];

с4 - коэффициент, учитывающий влияние температуры газа [таблица 3, 17];

с5 - коэффициент, учитывающий требования к качеству очистки.

Гидравлическое сопротивление, определяющего энергетические затраты на фильтрование, вычисляется по формуле:

ΔPф = ΔPк + ΔPп,(6.4)




где

ΔPк - гидравлическое сопротивление корпуса, Па;

ΔPп - сопротивление фильтровальной перегородки, Па.

В общем виде гидравлическое сопротивление может быть оценено коэффициентом сопротивления корпуса аппарата:

ξк = ΔPк 2/ (υвх2 ·ρг),(6.5)




где υвх - скорость газа во входном патрубке, м/с.

Гидравлическое сопротивление фильтровальной перегородки включает потери напора за счет самой перегородки (ΔPп’) и потери за счет осевшей на перегородку пыли (ΔPп’’):

ΔPп = ΔPп’+ ΔPп’’

(6.6)



Величину ΔPп’ (в Па) удобно вычислять по выражению:

ΔPп’= Кп ·μ· υn

(6.7)


где

Кп - коэффициент, характеризующий сопротивление фильтровальной перегородки, м-1;

μ - динамическая вязкость газа, Па·с;

υ- скорость фильтрования, м/с;

n - показатель степени, зависящий от режима течения газа сквозь перегородку (для ламинарного режима n = 1, для турбулентного n >1).

Величину ΔPп’’ (в Па) вычисляют по уравнению:

ΔPп’’= μ ·τ ·свх· υ2·К1,

(6.8)


где

τ - продолжительность фильтровального цикла, с;

свх - концентрация пыли на входе в фильтр, кг/м3;

К1 - параметр сопротивления слоя пыли, м/кг.

По формуле (6.8) и при известном или заданном гидравлическом сопротивлении слоя пыли возможно вычислить продолжительность фильтровального цикла:

Τ = ΔPп’’/(μ ·τ ·свх· υ2·К1).(6.9)



Общее сопротивление рукавных фильтров не должно превышать 2800 Па и сопротивление слоя пыли на перегородке не более 800 Па.

Исходные данные:

объем газа, поступающего на очистку Vп =55000 м3/ч;

температура выбросов t =40 оС;

концентрация пыли на входе в аппарат очистки Свх =10 г/м3;

медианный диаметр частиц пыли dm = 10 мкм;

содержание пыли после фильтра не должно превышать 5 мг/м3.

В соответствии с таблицей 1П [17], цементная пыль имеет коэффициенты: qн = 3,5; с1 = 1; с2 = 1,02; с3 = 0,8; с4 = 0,9; с5 = 0,9.

Удельная газовая нагрузка равна:

q = qн ·с1 ·с2 ·с3 ·с4 ·с5 = 3,5 · 1 · 1,02 · 0,8 · 0,9 · 0,9 = 2,3 м3/(м2·мин).

Фильтрующая поверхность аппарата:

Fф = Vп /60q = 55000/60 · 2,3 = 398,6 м2.

По таблице П1 [17] находтся более подходящий фильтр - это фильтр марки ФРКДИ-550 с площадью фильтрующей поверхности 550 м.

Гидравлическое сопротивление фильтровальной перегородки:

ΔPп = ΔPп’+ ΔPп’’= Кп ·μ· υn + μ ·τ ·свх· υ2·К1, = 2800 · 109 · 19· 10-6 · 0,015 + 19 · 10-6 · 600 · 10 · 0,000225 · 20 · 109 = 798 + 513 = 1311 Па.

Скорость во входном отверстии патрубка:

vвх = Vп/(3600·Sвх) = 55000/(3600 · 2,4 · 0,55) = 55000/4752 = 11,6 м/с.

Гидравлическое сопротивление корпуса фильтра:

ΔPк = ξк ·υвх2·ρг/2 = 2 · 11,62 · 0,998 / 2 = 134 Па.

Общее гидравлическое сопротивление фильтра:

ΔPф = ΔPк + ΔPп = 1311 + 134 = 1445 Па

Фильтрующая поверхность, отключаемая на регенерацию:

Fр = Nc ·Fc ·τp ·mp = 6 · 550 · 0,0014 · 5 = 23 м2.

Поскольку общая площадь фильтра с учетом поверхности для регенерации составляет:

Fф + Fр = 398,6 + 23 = 421 м2, (421<550).

Проделанный расчет показывает, что в качестве рукавного фильтра может быть использован фильтр марки ФРКДИ-550 с фильтровальной тканью типа лавсан. При этом, эффективность данного фильтра равна 99,95 %.

Заключение

Бурное развитие отечественной нефтегазодобывающей отрасли приводит к необходимости разведки новых месторождений углеводородного сырья, что стремительно ведет увеличению ввода скважин для поисков залежей нефти и газа.

В связи с этим утилизация отходов, полученных в процессе бурения различного рода скважин, становится актуальной проблемой, с которой сталкиваются недропользователи в процессе осуществления своей производственной деятельности.

На сегодняшнее время методы, благодаря которым возможно не только утилизировать, но и получить вспомогательную продукцию пользуются большим спросом.

В данном дипломном проекте был рассмотрен один из методов утилизации буровых отходов, а так же исследовано воздействие технологического процесса и дана оценка его влияния на основные компоненты окружающей природной среды.

В ходе проведения экологической оценки переработки буровых отходов методом солидации были исследованы климатические характеристики района расположения объектов по переработки буровых отходов, проведены расчеты эмиссий в атмосферный воздух, водопотребления и водоотведения, образования твердо бытовых отходов в ходе ведения хозяйственной деятельности, определен качественный и количественный состав эмиссий. Так же произведен расчет рассеивания концентраций загрязняющих веществ в приземном слое атмосферы. В соответствии с законодательными и нормативными требованиями и на основании расчета рассеивания была организованна санитарно-защитная зона и обоснован ее размер.

В экономической части дипломного проектирования был рассчитаны платежи за выбросы загрязняющих веществ и размещение отходов производства, а так же определена оценка воздействия деятельности предприятия на социально-экономическую среду рассматриваемого региона.

В части безопасности жизнедеятельности для снижения образования аэродисперсных систем, состоящих из твердых частиц пыли, взвешенных в газообразной среде при осуществлении технологического процесса, а именно работы бетонно-смесительного узла СМ-15С, был предложен и рассчитан рукавный фильтр ФРКДИ-550 с фильтровальной тканью типа лавсан.

На основании вышеизложенного можно сделать вывод, что эксплуатация оборудования по утилизации бурового шлама не будет оказывать существенного влияния на экологическую обстановку района расположения.

Выброс ЗВ от эксплуатации оборудования рассеивается до безопасных концентраций и не повлечет изменения концентрации загрязняющих веществ на границе СЗЗ промышленных нефтедобывающих предприятий.


Перечень сокращений

ДЭС                     Дизельная электростанция

ЗВ                        Загрязняющее вещество (вещества)

ИЗА                     Индекс загрязнения атмосферы

НМУ                   Неблагоприятные метеорологические условия

ОБУВ                  Ориентировочные безопасные уровни воздействия

ОВОС                 Оценка воздействия на окружающую среду

ОС                       Окружающая среда

ПДК                    Предельно допустимая концентрация

РК                       Республика Казахстан

РНД                     Республиканский нормативный документ

СанПиН              Санитарные нормы и правила

СЗЗ                      Санитарно защитная зона

СНиП                  Строительные нормы и правила

СП                       Свод Правил

ТБО                     Твердо-бытовые отходы


Список использованной литературы

1 Экологический кодекс Республики Казахстан, Утвержден Указом Президента Республики Казахстан от 09 января 2007 года №212-III ЗРК.

Методические указания по проведению оценки воздействия хозяйственной деятельности на окружающую среду, утвержденые приказом МООС РК от 29 октября 2010 года № 270-п), -Астана, 2010.

РНД 211.2.02.04-2004. Методика расчета выбросов загрязняющих веществ в атмосферу от стационарных дизельных установок. - Астана, 2004.

Справочник «Нефтепродукты». - 1-ое изд., Под ред. Лосикова Б.В., -М., 1966.

РНД 211.2.02.09-2004. Методические указания по определению выбросов загрязняющих веществ в атмосферу из резервуаров. - Астана, 2004.

Методика расчета нормативов выбросов от неорганизованных источников», Приложение № 13 к Приказу МООС РК от 18 апреля 2008 года № 100-п. РНД 211.2.01.01-97. Методика расчета концентраций в атмосферном воздухе вредных веществ, содержащихся в выбросах предприятий. - Астана, 1997.

РНД 211.2.01.01-97. Методика расчета концентраций в атмосферном воздухе вредных веществ, содержащихся в выбросах предприятий. - Астана, 1997.

Санитарно-эпидемиологические требования к атмосферному воздуху (Постановление Правительства Республики Казахстан от 25 января 2012 года № 168).

СНиП РК 4.01-41-2006. Внутренний водопровод и канализация зданий. 2006.

СНиП РК 4.01-02-2001. Водоснабжение. Наружные сети и сооружения. 2006.

Инструкция по проведению оценки воздействия намечаемой хозяйственной и иной деятельности на окружающую среду при разработке предплановой, плановой, предпроектной и проектной документации, утвержденной Приказом Министра охраны окружающей среды Республики Казахстан от 28 июня 2007 года № 204-п

Справочник по пыле- и золоулавливанию/М.И. Биргер, А.Ю. Вальдберг, Б.И. Мягков и др.; под общ.ред. А.А. Русанова. - 2 - е изд., перераб. и доп. - М.: Энергоатомиздат,1983.

Тимонин А.С. Инженерно-экологический справочник. Том 1.Калуга: МГУИ. 2003.

РНД 03.1.03.01-96. Порядок нормирования объемов образования и размещения отходов производства. - Астана, 1997.

http://adilet.zan.kz/rus

«Классификатор отходов» утвержденный Приказом МООС РК от 31.05. 2007 г. № 169-п.

И.С.Бракович, В.Д.Сизов, В.Н.Короткий. Методические указания по расчету рукавного фильтра. - Минск, БНТУ, 2011.

Кодекс Республики Казахстан от 10 декабря 2008 года № 99-IV «О налогах и других обязательных платежах в бюджет (Налоговый кодекс)».

Похожие работы на - Экологическое влияние переработки буровых отходов методом солидации в геотекстильных контейнерах

 

Не нашли материал для своей работы?
Поможем написать уникальную работу
Без плагиата!
Без нейросетей!