Разработка конструкции корпуса танкера-химовоза

  • Вид работы:
    Дипломная (ВКР)
  • Предмет:
    Транспорт, грузоперевозки
  • Язык:
    Русский
    ,
    Формат файла:
    MS Word
    87,6 Кб
  • Опубликовано:
    2015-06-15
Вы можете узнать стоимость помощи в написании студенческой работы.
Помощь в написании работы, которую точно примут!

Разработка конструкции корпуса танкера-химовоза

Оглавление

Введение

1. Конструктивная спецификация судна

2. Выбор шпации и ситема набора

3. Деление на отсеки и конструирование поперечного сечения

4. Определение водоизмещения судна

5. Выбор судостроительной стали

6. Конструирование наружной обшивки

7. Конструирование днищевого перекрытия

8. Конструкция бортового перекрытия

9. Проектирование палубы

10. Расчетные нагрузки водонепроницаемой переборки

11. Проверка общей прочности судна

Заключение

Литература

Введение

Целью данного проекта является разработка конструкции корпуса танкера-химовоза.

Задачами данного проекта являются:

Разработка архитектурно-конструктивного типа судна и описание его технических характеристик;

Компоновка схемы поперечного сечения корпуса и определение шпации;

Выбор категории и марки судостроительной стали проектируемого судна;

Определение расчетных нагрузок на элементы корпуса судна;

Расчет толщин наружной обшивки;

Разработка схем перекрытий: днищевого, бортового, палубного и проектирование их элементов;

Проектирование водонепроницаемых переборок

Проверочный расчет общей прочности корпуса судна в первом приближении.

1. Конструктивная спецификация судна


Исходные данные для проектирования приведены в таблице 1. Общий вид прототипа приведен на рисунке 1.

Таблица 1 - Исходные данные для проектирования

Длина

L

108,0 м

Ширина

B

14,0 м

Высота борта

D

7,6 м

Осадка

d

5,3 м

Коэффициент общей полноты

д

0,718

Дедвейт

DW

3700 тонн

Скорость хода

u

13 уз

Дальность плавания

r

4000 миль

Автономность

А

40 сут.

Экипаж

n

22 чел

Категория ледовых усилений

Ice2


Тип двигателя

МОД


Количество гр. винтов

1

Продольные переборки

nпрX lпр

1

Двойной борт

lдб

Поверх палубы

Тип переборок

Гофрированные с непосредственным креплением к второму дну и палубе

Количество марок стали

1


Рисунок 1 - Общий вид прототипа

Архитектурно-конструктивный тип судна определяется назначением судна: прежде всего родом груза, который судно должно перевозить, условиями эксплуатации, особенностями проведения грузовых операций. Архитектурно-конструктивный тип судна характеризуется совокупностью признаков, определяющих структуру конструктивного мидель-шпангоута судна:

формой и количеством корпусов;

количеством, расположением и протяженностью надстроек;

положением машинно-котельного отделения (МКО) по длине судна;

высотой надводного борта;

количеством и конструкцией палуб;

системой набора отдельных перекрытий;

числом и степенью раскрытия палуб;

установкой внутренних бортов, продольных переборок;

размерами и общей протяженностью грузовых помещений и др.

Указанные факторы не только формируют структуру конструктивного мидель-шпангоута, но и определяют прочностные характеристики корпуса и эксплуатационные качества судна.

Объектом разработки данной работы является танкер-химовоз DW= 3700т.

Судно проектируется на класс Правил РМРС (Российский Морской Регистр Судоходства) КМ Iсe 2. Район плавания судна: неограниченный.

Длина между перпендикулярами- 108 м; ширина - 14 м; высота борта - 7,6 м, осадка - 5,3 м.

Танкер представляет собой одновинтовой теплоход с баком, кормовым расположением машинного, насосного отделений и жилой рубки.

В соответствии с требованиями международных конвенций судно имеет двойное дно между пиковыми переборками и двойные борта в грузовой части. Его наличие - важный фактор повышения живучести при повреждении наружной обшивки днища, а образованные им объёмы междудонного пространства служат ёмкостями для приёма водяного балласта, хранения топлива.

В районе цилиндрической вставки расположена одна продольная переборка в ДП. Гофрированная конструкция.

Продольная и поперечные переборки делят грузовые отсеки на 5 танков. Грузовая часть отделяет от МО и форпика коффердамам (короткими пустыми отсеками длиной обычно в одну шпацию).

Тип двигателя - МОД. В качестве главного двигателя используется дизель «МАН» K6SZ52/105CL максимальной мощностью 5300 кВт при 165 об/мин, работающий на топливе вязкостью 800 сСт непосредственно на винте регулируемого шага. Электроэнергия вырабатывается валогенератором мощностью 720 кВт, двумя дизель-генераторами мощностью по 600 кВт и одним аварийным дизель-генератором мощностью 80 кВт. Валогенератор имеет привод от повышающего редуктора, установленного на валу главного двигателя. Мощность валогенератора достаточна для обеспечения электроэнергией потребителей на ходу судна, включая систему подогрева груза.

. Выбор шпации и система набора

Выбор шпации и системы набора производим согласно Правилам Регистра. Нормальная шпация (расстояние между балками основного набора) в средней части судна определяется по формуле:


где: а0 - нормальная шпация, м; - расчётная длина корпуса судна, м.

В носовой оконечности судна (форпике) и кормовой оконечности (ахтерпике) шпация должна быть не более 0,6 м, в переходном районе, т.е. между переборкой форпика и сечением 0,2L в корму от носового перпендикуляра - не более 0,7 м. Во всех случаях шпация основного набора не должна превышать 1 м.

После определения расчётной шпации необходимо выбрать практическую, стандартную шпацию из установленного отраслевым стандартом ряда: 0,4; 0,5; 0,55; 0,6; 0,7; 0,75; 0,8; 0,85; 0,9; 0,95; 1 м. В транспортном судостроении шпацию выбирают по экономическому критерию, т. е. по минимуму суммарных затрат на материал и изготовление конструкции. Оптимальная шпация обычно превышает нормальную на 10% и более.

Для заданных исходных данных определяем расчетную нормальную шпацию в средней части судна

принимаем практическую шпацию в средней части:

а0 = 0.7м.

В носовой оконечности судна (форпике) и кормовой оконечности (ахтерпике) принимаем шпацию: аф = аахт = 0.6 м.

В переходном районе: ап.р = а0 = 0.7 м;

В районе машинного отделения принимаем шпацию: ам = 0.7 м;

Исходя из практики современного судостроения, в отношении конструкции, рамная шпация на судах в переходном районе принимается равной 2-5 обычных шпаций, для танков в переходном районе ар.н=0.

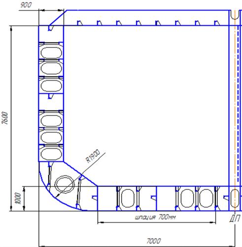
Система набора перекрытий в средней части - продольная, в оконечностях - поперечная. Поперечное сечение проектируемого танкера приведено

Балки рамного набора устанавливаются через рамную шпацию. Определим размер рамной шпации для различных районов рассматриваемого судна, приняв ее равной трем обычным шпациям, т.е.

ар.н. = 3а0.

Имеем

в средней части судна и машинном отделении:

ар.н. ср.ч. = 3а0 ср.ч = 3×0.7 =2,1 ;

в оконечностях:

ар.н. окон. = 2а0 окон = 2×0.6 = 1.2 м;

для танков в переходном районе принимаем шпацию равную 0,7 м ,что дает совпадение с нормальной шпацией в среднем районе :

ар.н. п.р. = 2а0 п.р = 2×0.7 = 1.4 м.

Размер рамной шпации необходим при принятии решения о длине отсеков при расстановке поперечных переборок по длине судна.

3. Деление на отсеки и конструирование поперечного сечения


После выбора практической шпации судна необходимо определить длину каждого из районов, на которое разделено судно согласно Правилам Регистра.

Район возможного положения пиковых переборок на судне с учётом требований международных конвенций согласно Правилам Регистра:

оконечностей = (0.05 ¸ 0.08)L, м.

В соответствии с этим принимаем длину форпика:ф £ 0.06L = 0.06×108 = 6,48 м.

Принимаем длину форпика равной 11 шп.

Lф = a ф × nр.шп. ф = 0,6*11 =7,2м.

Принимаем длину ахтерпика равной 9 шпациям:

Lахт= aр.н. ахт.×10 шп. = 0,6*6 = 6

Машинное отделение располагается в корме и длина МО может быть определена как:

MO = 0.14×L =0,14*108=15,12

Определим число р. шп. в МО

р.шп. МО = LMO / aр.н. МО = 15,12/1,4 =11 р. шп.

Принимаем в машинном отделении 11 р. шп. Тогда

MO = aр.н. МО×11 р.шп. = 1,4*11 = 15,4 м.

Длина района переходной шпации:

п..p. » 0.2L - Lфорпика=0.2×108- 7,2=14,4м.

п..p=11*1,4=15,4

Принимаем длину кофердама =1,4п..p.=15,4-1,4=14м-10р.шп

Согласно Правилам [1] длина танка(или расстояние между соседними водонепроницаемыми переборками ) не должна превышать 0,2Lм:

Длина танков в средней части судна

ср.ч.= L - (Lф + Lп.р + LМО +2* Lкоф +Lахт).

Lср.ч.= 108 - (7,2+14+15,4+6+2*1,4) =62,6м.

Число переборок, включая переборки форпика и ахтерпика не должно быть менее 6.

Число рамных шпаций на оставшейся длине судна

р шп. ср.ч.= Lср.ч/aр.н.ср.ч.=62,6/2,1=29,8 р.шп

Длинна этой грузовой части =30 рамным шпациям , разместим на ней 4 танка равных 9 р. шпациям (Lт=9*2,1=18,9м)и перед кормовым коффердамом отстойный танк (слоп танк)длинной 3 р.шп (Lт=3*2,1=6,3м)

С учетом округлений по числу рамных шпаций длина средней части получается равнойгр.ч=3*18,9+6,3=63моткорр=108,4

Определение местоположения миделевого сечения:

Теоретическое местоположение мидель-шпангоута находится посередине судна

Устанавливаем водонепроницаемые переборки на границах танках и отсеков и определяем их положение по длине судна в зависимости от номера шпангоута. Конструктивные шпангоуты по длине судна располагаются через одну практическую шпацию. Местоположение начального шпангоута совпадает с носовым перпендикуляром и имеет нулевой номер, последний находится на кормовом перпендикуляре.

Расположение помещений в привязке к системе практических шпангоутов приведено в таблице 2 и рисунке 2.

Определяем местоположение миделевого сечения.

Теоретическое местоположение мидель-шпангоута находится посредине длины судна, т.е.:L/2 = 108,4/2 =54,2 м.

Искомый шпангоут находится в 3 танке.

Номер этого шпангоута: 60,4-54,2=6,2;6,2/0,7=8,8

Ближайший к миделю шпангоут находится на расстоянии 9 шпаций от кормовой переборки 3 танка.=88-9=79 шпангоут

Ближайший к миделевому сечению шпангоут будет иметь номер 80

Рисунок 2 - Размеры и расположение отсеков по длине судна

Таблица 2 - разбивка судна на отсеки

Наименование отсека

Длина отсека, м

Число практических шпаций

Расположение по длине судна (номера концевых шпангоутов)

Отстояние кормовой переборки отсека от носового перпендикуляра, м

Форпик

7,2

7,2/0.6= 12

0 - 12

7,2

Носовой коффердам

1,4

1,4/0,7=2

12-14

 8,6

1 танк

14

14/0,7=20

14-34

 22,6

2 танк

18,9

18,9/0,7=27

34-61

41,5

3 танк

18,9

18,9/0,7=27

61-88

60,4

4 танк

18,9

18,9/0,7=27

88-115

79,3

Слоп танк

6,3

6,3/0,7=9

115-124

85,6

Кормовой коффердам

1,4

1,4/0,7=2

124-126

87

МО

15,4

15,4/0,7=22

126-148

Ахтерпик

6

6/ 0,6= 10

148-158

108,4

ИТОГО

108,4

158




Исходя из практики современного судостроения в отношении конструкции нефтеналивных судов, выбираем для проектируемого судна продольную систему набора для всего корпуса, а также устройство двойного дна и двойных бортов

Радиус закругления скулы определим по формуле:


Принимаем R = 1,9 м.

Высота двойного дна определена по п. 2.4.4.1 Правил [1]:


Принимаем высоту двойного дна:

По рекомендациям MARROL для танкеров дедвейтом DW≤5000

д.б.=0,4+DW/20000м, но не менее 0,76м.

д.б.=0,9м

Корпус судна должен быть спроектирован на класс ICE2, предполагающий самостоятельное плавание в замерзающих неарктических морях в мелкобитом разряженном льду толщиной до 0,55 метра.

Рамные балки набора (вертикальный киль, днищевые стрингеры, рамные стойки переборок, карлингсы, бимсы, рамные шпангоуты, флоры, бортовые стрингеры и горизонтальные рамы переборок) в районе танков образовывают замкнутые рамы. При этом поперечные рамные связи устанавливаются на каждом втором шпангоуте.

Роль рамных шпангоутов выполняют вертикальные диафрагмы, несущих стрингеров - платформы.

Расстояние между продольными ребрами жесткости по днищу, двойному дну и палубе - 0,7 м.

Расстояние между горизонтальными ребрами жесткости по вертикальному килю и стрингерам - 0,7 м.

Согласно требованиям Регистра, расстояние между днищевыми стрингерами при продольной системе набора не должно превышать 5 м. Принимаем расстояние между днищевыми стрингерами - 2,8м.

Сплошные флоры в средней части судна устанавливаются через 4 нормальных шпации, расстояние между ними - 2,8 м.

В машинно-котельном отделении и в носовой оконечности в районе 0,25L сплошные флоры устанавливаются через 2 нормальные шпации (в МО - 1,4м; в носу -1,2 м).

Определим систему набора для днищевого, бортового и палубного перекрытия для 3 танка (61-88шп.) в котором находится мидель-шпангоут.

а) Днище. Конструкция днища - двойное дно. Расстояние между первым и вторым дном 1 м. Система продольная, шпация 0,7 м. Расстоянием между флорами 2,1м.

Рис. 3. Продольная система набора днища

б) Борт. Конструкция борта - двойной борт. По высоте 1 платформа. Система продольная, шпация 0,7 м. Рамные шпангоуты расположены в одной плоскости по сплошным флорам (ар.н.=2,1 м).

Рис. 4. Продольная система набора борта

Рис. 5 Поперечное сечение проектируемого танкера

4. Определение водоизмещения судна

Принимаем дедвейт для проектируемого судна согласно заданию DW =3700т, который складывается из массы корпуса, надстроек, массы перевозимого груза; механизмов; силовой установки, грузовых устройств.

Водоизмещение судна теоретическое рассчитываем по формуле:

D = r×сb×L×B×d, м3;

где: r = 1.025 т/м3 - плотность воды;

сb = 0.718 - коэффициент полноты судна;= 108.4 м;

В = 14 м;= 5.3м;

D = 1.025×0,718×108.4×15×5.3=5897,61м3.

5. Выбор судостроительной стали


Для изготовления элементов конструкций корпуса судна применяются специальные судостроительные стали, изготовляемые под надзором РС.

В качестве основной характеристики прочности стали принимается верхний предел текучести.

Выбор стали для элементов конструкции корпуса осуществляется исходя из принятой для данного элемента толщины, расчетной температуры при эксплуатации и степени ответственности согласно графикам.

В соответствии с заданием рассматриваемое судно проектируется на класс с категорией ледового усиления Ice2.

Расчетная температура окружающего воздуха для данной ледовой категории может быть принята равной TA= -10°C.

Толщина связей судов с аналогичными размерениями составляет 10¸15 мм.

Учитывая тяжесть условий эксплуатации судна для изготовления корпусных конструкций, относящихся к III и II группам ответственности можно прининять сталь повышенной прочности. Категория стали А. Марка стали А32 с ReH = 315 МПа.

Для связей I группы ответственности также может быть принята сталь категории А, A32 с ReH = 315 МПа.

Технические условия на стальной прокат для судостроения, изготовляемый под надзором РС, определяются межгосударственным стандартом ГОСТ 5521-93.

Толстолистовой прокат марки А32 изготовляют в виде листов и резаных листов (из рулонов) толщиной 5¸50 мм. Листы толщиной от 4 до 20 мм изготовляют с интервалом 0,5 мм, свыше 20 мм - с интервалом 1,0 мм.

Технические требования для стали А32:

Химический состав стали А32 по плавочному анализу ковшевой пробы должен соответствовать, в %, следующим требованиям:

С - не более 0,18; Мn - 0,9-1,6; Si - 0,15-0,50; Р - не более 0,035; S - не более 0,035; Сr - не более 0,20; Ni - не более 0,40; Сu - не более 0,35; Мo - не более 0,08;

Аl - растворимый в кислотах - 0,015-0,06; Nb - 0,02-0,05; V - 0,05-0,1.

Раскисление - сталь спокойная.

Механические свойства толстолистового, широкополосного универсального, полосового и фасонного проката при испытании на растяжение приведены в таблице 3.

Таблица 3 - Механические свойства стали А32

Временное сопротивление Rm, МПа

Предел текучести ReН, МПа, не менее

Относительное удлинение A5, %, не менее

Работа удара KV, Дж, при температуре испытаний -20°С и толщине проката до 50 мм, не менее

440-590

315

22

31


В качестве расчетных характеристик материала конструкции корпуса принимаются:

 - расчетный нормативный предел текучести по нормальным напряжениям, который рассчитывается по формуле:


 - коэффициент использования механических свойств стали.

Расчетный нормативный предел текучести по касательным напряжениям:


6. Конструирование наружной обшивки


Корпус судна - это сложная система, которая может быть разделена на две структуры: листовую (обшивки, настилы) и балочную (судовой набор). Из листовых структур особую роль в обеспечении технико-эксплуатационных качеств судна играет внешняя металлическая оболочка корпуса, состоящая из наружной обшивки днища и борта и настила верхней палубы. Полотнище обшивки или настила изготавливают из простых конструкций - металлических листов объединенных в поясья.

Листы обшивки в поясьях располагают длинной стороной вдоль судна, последовательно соединяя их между собой короткими сторонами. Размеры листов, используемых при изготовлении обшивки морских судов колеблются от 1-2,5 м по ширине до 4-10 м по длине при толщине 8-20 мм. Число типоразмеров листового и профильного проката, применяемого для изготовления корпуса судна, должно быть минимальным.

Похожие работы на - Разработка конструкции корпуса танкера-химовоза

 

Не нашли материал для своей работы?
Поможем написать уникальную работу
Без плагиата!
Без нейросетей!