Проект пассажирского автотранспортного предприятия с детальной разработкой комплекса ТО-1

  • Вид работы:
    Дипломная (ВКР)
  • Предмет:
    Транспорт, грузоперевозки
  • Язык:
    Русский
    ,
    Формат файла:
    MS Word
    1,48 Мб
  • Опубликовано:
    2015-07-04
Вы можете узнать стоимость помощи в написании студенческой работы.
Помощь в написании работы, которую точно примут!

Проект пассажирского автотранспортного предприятия с детальной разработкой комплекса ТО-1

Содержание

Введение

. Выбор и характеристика подвижного состава

. Технологический расчет автотранспортного предприятия

.1 Исходные данные

.2 Выбор и корректирование нормативной периодичности ТО и пробега до КР

2.3 Расчет производственной программы АТП

2.4 Выбор метода технического обслуживания и диагностики

.5 Расчет годовых объемов работ АТП

2.6 Расчет численности производственных рабочих

.7 Технологический расчёт производственных зон, участков и складов

2.8 Расчёт площадей помещений

.9 Генеральный план

3. Проект зоны ТО-1АП

.1 Разработка планировки зоны ТО-1

3.2 Разработка специализированных постов ТО-1

3.3 Организация работы в зоне ТО-1

. Разработка конструкции стационарного солидолонагнетателя

.1 Проведение патентных исследований

.2 Назначение, устройство, принцип работы, техническая характеристика

.3 Разработка гидравлической схемы стенда

.4 Расчет элементов привода устройства подачи солидола

.5 Разработка технологической карты

. Охрана труда и техника безопасности

.1 Требования безопасности при ТО и ТР автомобилей

.2 Меры пожарной безопасности

.3 Расчет количества воздуха для вентиляции помещения зоны ТО-1

. Промышленная экология

.1 Защита окружающей среды от вредного воздействия оксида углерода

. Расчет ФЭП бизнес-плана АП по внедрению стационарного солидолонагнетателя

Заключение

Список использованной литературы

Введение

Автомобильный транспорт играет важную роль в народном хозяйстве и обеспечивает совместно с железнодорожным, водным и воздушным транспортом перевозку всевозможных грузов. Автомобильный парк с каждым годом пополняется новыми грузовыми, легковыми, специальными автомобилями и автобусами. Рациональное использование и наибольшая производительность автопарка достигаются только при условии содержания его в технически исправном состоянии, что обеспечивается своевременным и качественным проведением работ по техническому обслуживанию и ремонту автомобилей.

Технически грамотное выполнение ремонтных работ позволяет полностью восстановить техническую исправность и работоспособность автомобиля. Решающую роль в деле поддержания автопарка на высоком техническом уровне играют правильная организация техобслуживания и ремонта автомобилей на авторемонтных и автосервисных предприятиях, СТО, оснащенных новейшим высокопроизводительным оборудованием, инструментом, а также высокая квалификация автослесарей, выполняющих основные работы по ремонту и обслуживанию.

В процессе эксплуатации свойства автомобиля постоянно меняются. Это проявляется в снижении надежности, динамических качеств транспортного средства, безопасности движения, повышенном расходе горюче-смазочных материалов, ухудшении пуска двигателя, появлении стуков, шумов и других неисправностей. Постоянно действующими основными причинами изменения технического состояния автомобиля при его эксплуатации являются изнашивание, пластические деформации, усталостные разрушения, старение, коррозия. Полностью устранить эти причины невозможно, однако замедлить их влияние на качественную работу автомобиля необходимо, что опять же достигается проведением рационально организованного технического обслуживания и различного вида ремонтных работ.

1. Выбор и характеристика подвижного состава

В соответствии с установленными заданием на дипломное проектирование вместимостью и назначением пассажирского подвижного состава выбираем следующие марки автобусов:

а) для городских пассажирских перевозок автобус - ЛиАЗ-667М;

б) для работы в качестве маршрутного такси - микроавтобус «ГАЗель»;

в) для междугородних и межгосударственных маршрутов - туристический автобус MERCEDES BENZ O303.

Описание и технические характеристики выбранных транспортных средств приведены ниже.

Автобус ЛиАЗ-677М

·        Краткое описание

Городской автобус большого класса ЛиАЗ-677М (рисунок 1.1) [1] выпускается Ликинским автобусным заводом с 1979 г. Кузов - вагонного типа, несущей конструкции, 3-дверный (2 двери для пассажиров и 1 для водителя). Планировка сидений 3- и 4-рядная. Расположение двигателя - переднее. Сиденье водителя - подрессоренное, регулируется по высоте, длине, наклону подушки и спинки. Система отопления - воздушная, использующая тепло системы охлаждения двигателя. Ранее выпускался автобус ЛиАЗ-677 (1967-1978 гг.), отличавшийся системой вентиляции и интерьером кузова.

·        Модификации:

ЛиАЗ-677МБ - пригородный, отличается 4-рядной планировкой сидений, числом мест для сидения - 35, ном. вместимостью - 67, предельной вместимостью - 87, наличием запасного колеса на задней стенке снаружи; ЛиАЗ-677МС - для районов с холодным климатом (от -60 до +40°С), отличается наличием теплоизоляции кузова и двойного остекления, 4-рядной планировкой, сидений, числом мест для сидения - 29, номинальной вместимостью - 74, предельной вместимостью - 101. ЛиАЗ-677Г - газобаллонный, на сжиженном нефтяном газе.

Рисунок 1.1. Внешний вид автобуса ЛиАЗ-667М

·        Техническая характеристика:

Таблица 1.1 Техническая характеристика автобуса ЛиАЗ-667М

Вместимость: число мест для сидения 25 номинальная 80 предельная 110 число служебных мест 1 Снаряженная масса, кг 8363 В том числе: на переднюю ось 4265 на заднюю ось 4098  Полная масса при номинальной. вместимости, кг 14033 В том числе: на переднюю ось 5725 на заднюю ось 8308

Полная масса при предельной вместимости, кг 16133 В том числе: на переднюю ось 5975 на заднюю ось 10158 Макс. скорость, км/ч 70 Время разгона до 60 км/ч, с 46,5 Макс, преодолеваемый подъем, % 20 Выбег с 60 км/ч, м 860 Тормозной путь с 60 км/ч, м 32,1 Контрольный расход топлива при 40 км/ч, л/100 км 35,0  Радиус поворота, м: по внешнему колесу 9,6 габаритный 11,0


Рисунок 1.2. Габаритные размеры автобуса ЛиАЗ-667М

Микроавтобус ГАЗ 3221 - Газель

Рисунок 1.3. Внешний вид микроавтобуса «ГАЗель»

·        Габаритные размеры [2]

Длина, мм                                     5500

Ширина, мм                                  1966

Высота, мм                                    2200

Колесная база, мм                        2900

Колея передних/задних колес, мм 1700 / 1560

Дорожный просвет, мм                170

·        Технические характеристики

 

Таблица 1.2. Техническая характеристика микроавтобуса «Газель»

Пассажировместимость

10 / 13 человек

Масса автомобиля, кг

Снаряженная

2400-2500

Полная

3250-3500

Коробка передач

Пятиступенчатая механическая

Подвеска колес

Передняя

Зависимая, на двух продольных полуэллиптических рессорах с гидравлическими телескопическими амортизаторами

Задняя

Зависимая, на двух продольных полуэллиптических рессорах с дополнительными рессорами, со стабилизатором поперечной устойчивости (по заказу), с гидравлическими телескопическими амортизаторами

Тормоза

Рабочая тормозная система

Двухконтурная со схемой разделения перед-зад, с гидравлическим приводом и вакуумным усилителем

Передние

Дисковые

Задние

Барабанные

Рулевое управление

Тип

винт - шариковая гайка

Колеса

Диски, размерность

5 Ѕ J x 16

Шины, размерность

175R16C или 185R16C

 

·        Эксплуатационные показатели

Максимальная скорость, км/ч                                             115

Время разгона до 60 км/ч, с                                               14

Расход топлива, л/100 км (по ГОСТ 20306-90) при 60 км/ч      11.5

Туристический автобус MERCEDES BENZ O303 [3]

 

Рисунок 1.4. Внешний вид и салон туристического автобуса MERCEDES BENZ O303

Таблица 1.3 Техническая характеристика автобуса MERCEDES BENZ O303

Марка автобуса:

MB O303

Категория автобуса:

Туристический

Год выпуска:

1991

Количество сидений:

40+1+1

Длина х Высота х Ширина:

12,00 х 3,20 х 2,50 м

Марка двигателя:

MERCEDES BENZ

Мощность двигателя:

280 л.с.


2. Технологический расчёт автотранспортного предприятия

.1 Исходные данные

Для выполнения технологического расчета автотранспортного предприятия (АТП) необходимы исходные данные, представленные в таблице 2.1.

Таблица 2.1 Исходные данные

Тип ПС

ЛИАЗ-667М

ГАЗель

М/Б

Количество ПС, Асс

150

50

300

Среднесуточный пробег

250

150

300

Время в наряде, ч

15

15

15

Дней работы в году

365

365

365

Категория условий эксплуатации, КУЭ

III

Природно-климатическая зона

У


2.2 Выбор и корректирование нормативной периодичности ТО и пробега до КР

Нормативная периодичность технических обслуживаний (ТО-1, ТО-2) и капитальный ремонт (таблица 2.2) [4] по положению установлена по типам автомобилей для первой категории условий эксплуатации. Для других условий эксплуатации эти нормативы корректируются с помощью коэффициентов, учитывающих категорию условий эксплуатации К1, модификацию ПС и организацию его работы К2, климатические условия К3.

Таблица 2.2 Нормативные периодичности ТО и КР и корректирующие коэффициенты

Тип ПС

L(н)к

L(н)1

L(н)2

K1

K2

K3

ЛИАЗ-667М

500000

4000

16000

0,8

1

1

ГАЗель

175000

5000

20000

0,8

1

1

М/Б

500000

4000

16000

0,8

1

1


Нормы межремонтных пробегов устанавливаются по каждой группе одномарочного состава парка с учетом соотношения новых автомобилей и прошедших капитальный ремонт. В этом случае средний цикловой пробег (нормативный пробег до капитального ремонта) автомобиля определяется из уравнения [5]:

,  (2.1)

где LKн - нормируемый пробег автомобилей до первого капитального ремонта, км;

LKM - нормируемый пробег автомобилей до второго и последующего капитального ремонта, км;

Ан, Ак - соответственно количество новых автомобилей и автомобилей после капитального ремонта;

К1, К2, К3 - коэффициенты, учитывающие соответственно категорию условий эксплуатации, тип и модификацию ПС, природно-климатические условия.

Для автомобилей ЛИАЗ-667М :

Для автомобилей ГАЗель:

Для автомобилей М/Б :

Скорректированная периодичность ТО-1 и ТО-2:

, (2.2)

где  - нормативная периодичность ТО-1 и ТО-2 соответственно, км.

Для автомобилей ЛИАЗ-667М:

L1 = 4000∙0,8∙1 = 3200 км;

L2 = 16000∙0,8∙1 = 12800 км;

Для автомобилей ГАЗель:

L1 = 5000∙0,8∙1 = 4000 км;

L2 = 20000∙0,8∙1 = 16000 км;

Для автомобилей М/Б:

L1 = 4000∙0,8∙1 = 3200 км;

L2 = 16000∙0,8∙1 = 12800 км;

После корректирования норм пробега (ТО-1, ТО-2, КР) автомобилей с учётом коэффициентов  для подведения технологического расчёта полученные нормативы требуют очередной корректировки. Она заключается в подборе численных значений периодичности пробега в километрах для каждого вида ТО и ТР, кратных среднесуточному пробегу и близких по своей величине к полученным расчётным нормативам для данных условий эксплуатации.

Для автомобилей ЛИАЗ-667М:

LЕО = Lcc = 250 км;

L1 = 250 ∙ 13 = 3250 км;

L2 = 3250 ∙ 4 = 13000 км;

LК = 13000 ∙ 34 = 442000 км;

Для автомобилей ГАЗель:

LЕО = Lcc = 150 км;

L1 = 150 ∙ 27 = 4050 км;

L2 = 4050 ∙ 4 = 16200 км;

LК = 16200 ∙ 10 = 162000 км;

Для автомобилей М/Б:

LЕО = Lcc = 300 км;

L1 = 300 ∙ 11 = 3300 км;

L2 = 3300 ∙ 4 = 13200 км;

LК = 13200 ∙ 33 = 435600 км;

Полученные значения периодичности пробега в километрах для каждого вида ТО КР, кратных среднесуточному пробегу и близких по своей величине к полученным расчётным нормативам для данных условий эксплуатации принимаем в дальнейших расчётах.

.3 Расчет производственной программы АТП

В результате расчета производственной программы определяется количество технических обслуживаний (ЕО, ТО-1, ТО-2), капитальных ремонтов (КР) и диагностических воздействий (Д-1, Д-2) за год и сутки.

Производственная программа по ТО-1 и ТР рассчитывается за цикл эксплуатации (цикловой метод), т. е. за пробег автомобиля до КР, с последующим перерасчетом программ на год и сутки.

Производственная программа по диагностическим воздействиям определяется в зависимости от программ по ТО-1 и ТО-2 за год.

Для текущего ремонта, выполняемого по потребности, количество ТР не определяется. Планирование простоев подвижного состава и объемов работ в ТР производится, исходя из соответствующих удельных нормативов на 1000 км пробега.

При разнотипном подвижном составе расчет программы ведется отдельно по каждой группе одномарочного состава парка.

Число технических воздействий на один автомобиль за цикл определяется отношением циклового пробега к пробегу до данного вида воздействия. Так как цикловой пробег  принят равным пробегу автомобиля до КР, то число КР одного автомобиля за цикл будет равно единице [6]. В расчёте принято, что при пробеге, равном , очередное последнее за цикл ТО-2 не проводится и автомобиль направляется в КР. Кроме того, учитывается, что в ТО-2 входит обслуживание ТО-1,которое выполняется одновременно с ТО-2. Поэтому в данном расчёте число ТО-1 за цикл не включает обслуживания ТО-2. Периодичность выполнения ежедневных обслуживаний (ЕО) принята равной среднесуточному пробегу.

Таким образом, число КР (), ТО-2 (), ТО-1 () и ЕО () за цикл на один автомобиль можно представить в следующем виде:

, (2.3)

, (2.4)

, (2.5)

 , (2.6)

где  - среднесуточный пробег автомобиля, км.

Для автомобилей ЛИАЗ-667М:

 ;

N2 = ( 442000 / 13000 ) - 1 = 33;

N1 = ( 442000 / 3250 ) - ( 1 + 30 ) = 105 ;

NЕО = ( 442000 / 250 ) = 1768;

Для автомобилей ГАЗель:

 ;

N2 = ( 162000 / 16200 ) - 1 = 9;

N1 = ( 162000 / 4050 ) - ( 1 + 8 ) = 31;

NЕО = 162000 / 150 = 1080;

Для автомобилей М/Б:

 ;

N2 = ( 435600 / 13200 ) - 1 = 32;

N1 = ( 435600 / 3300 ) - ( 1 + 30 ) = 101;

NЕО = ( 435600 / 300) = 1452;

Годовое число ЕО (), ТО-1 () и ТО-2 () на один списочный автомобиль и весь парк автомобилей одной модели () составит:

, (2.7)

, (2.8)

, (2.9)

, (2.10)

, (2.11)

, (2.12)

где  - списочное число автомобилей.

Коэффициент  представляет собой отношение годового пробега автомобиля  к его пробегу за цикл (до КР), т. е.

 (2.13)

Годовой пробег автомобиля:

, (2.14)

где  - число дней работы предприятия в году;

 - коэффициент технической готовности:

, (2.15)

где - число дней нахождения автомобиля за цикл в технически исправном состоянии;

- число дней простоя автомобиля в ТО и ремонтах за цикл.

В данном расчёте  принято равным числу дней эксплуатации автомобиля за цикл в технически исправном состоянии, т. е. без учёта простоев по организационным причинам. Поэтому:

, (2.16)

При расчёте  обычно учитываются простои ПС, связанные с выводом автомобиля из эксплуатации, т. е. простой в ТО-2, КР и ТР. Поэтому простои в ЕО и ТО-1, выполняемые в межсменное время, не учитываются. Однако, учитывая, что продолжительность простоя автомобиля на ТО и ТР в нормативах Положения предусматривается в виде общей удельной нормы на 1000 км пробега, которая в зависимости от пробега автомобиля с начала эксплуатации корректируется коэффициентом , число дней простоя автомобиля в ТО-2, КР и ТР за цикл:

, (2.17)

где - удельный простой автомобиля в ТО и ТР в днях на 1000 км пробега.

При определении численного значения  необходимо учитывать, что простой автомобиля в КР предусматривает общее число календарных дней вывода автомобиля из эксплуатации, т. е.:

, (2.18)

где - нормативный простой автомобиля в КР на авторемонтном заводе;

- число дней, затраченных на транспортирование автомобиля из АТП на авторемонтное предприятие и обратно ().

Для автомобилей ЛИАЗ-667М:

ДК = 20 + 3 = 23 дня;

Для автомобилей ГАЗель:

ДК = 15 + 2 = 17 дней;

Для автомобилей М/Б:

ДК = 20 + 3 = 23 дня;

Подставив значения из формулы (2.18) в формулу (2.17) получим:

Для автомобилей ЛИАЗ-667М:

ДРЦ = 23 + ( 0,3 ∙ 442000 ∙ 1,2 / 1000 ) = 182 дня;

Для автомобилей ГАЗель

ДРЦ = 17+ ( 0,25 ∙ 162000 ∙ 1,2 / 1000 ) = 66 дней;

Для автомобилей М/Б:

ДРЦ = 23 + ( 0,3 ∙ 435600 ∙ 1,2 / 1000 ) = 180 дней;

По формуле (2.16) найдём число дней эксплуатации автомобиля за цикл в технически исправном состоянии:

Для автомобилей ЛИАЗ-667М:

ДЭЦ = 442000 / 250 = 1768 дней;

Для автомобилей ГАЗель:

ДЭЦ = 162000/ 150 = 1080 дней;

Для автомобилей М/Б:

ДЭЦ = 435600 / 300 = 1452 дня.

Подставив значения из формул (2.16) и (2.17) в формулу (2.15) получим:

Для автомобилей ЛИАЗ-667М:

бт = 1768 / ( 1768 + 182 ) = 0,91;

Для автомобилей ГАЗель:

бт = 1080 /( 1080 + 66 ) = 0,94;

Для автомобилей М/Б:

бт = 1452 / ( 1452 + 180) = 0,89;

Полученные значения по формуле (2.15) подставляем в формулу (2.14):

Для автомобилей ЛИАЗ-667М:

LГ = 365 ∙ 250 ∙ 0,91 = 83037,5 км.

Для автомобилей ГАЗель:

LГ = 365 ∙ 150 ∙ 0,94 = 51465 км;

Для автомобилей М/Б:

LГ = 365 ∙ 300 ∙ 0,89 = 97455 км.

Тогда по формуле (2.13) получим коэффициент перехода от цикла к году:

Для автомобилей ЛИАЗ-667М:

зГ = 83037,5 / 442000 = 0,19.

Для автомобилей ГАЗель:

зГ = 51465 / 162000 = 0,32;

Для автомобилей М/Б:

зГ = 97455 / 435600 = 0,22.

Подставляя полученные значения в формулы (2.7), (2.8), (2.9) получим годовое число ЕО, ТО-1 и ТО-2 на один списочный автомобиль:

Для автомобилей ЛИАЗ-667М:

NЕО.Г = 1768 ∙ 0,19 = 336;

N1.Г = 105 ∙ 0,19 = 20;

N2.Г = 33 ∙ 0,19 = 6,3

Для автомобилей ГАЗель:

NЕО.Г = 1080 ∙ 0,32 = 345,6;

N1.Г = 31 ∙ 0,32 = 9,92;

N2.Г = 9 ∙ 0,32 = 2,88.

Для автомобилей М/Б:

NЕО.Г = 1452 ∙ 0,22 = 319,44;

N1.Г = 101 ∙ 0,22 = 22,22;

N2.Г = 32 ∙ 0,22 = 7.

Полученные значения подставляем в формулы (2.10), (2.11), (2.12):

Для автомобилей ЛИАЗ-667М:

УNЕО.Г = 336 ∙ 150 = 50400;

УN1.Г = 20 ∙ 150 = 3000;

УN2.Г = 6,3 ∙ 150 = 945.

Для автомобилей ГАЗель

УNЕО.Г = 345,6 ∙ 50 = 17280;

УN1.Г = 9,92 ∙ 50 = 496;

УN2.Г = 2,88 ∙ 50 = 144.

Для автомобилей М/Б:

УNЕО.Г = 319,44 ∙ 300 = 95832;

УN1.Г = 22,22 ∙ 300 = 6666;

УN2.Г = 7 ∙ 300 = 2100.

Согласно Положению, диагностирование как отдельный вид обслуживания не планируется, и работы по диагностированию ПС входят в объём работ ТО и ТР. При этом в зависимости от метода организации диагностирование автомобилей может производиться на отдельных постах или быть совмещено с процессом ТО. Поэтому в данном случае число диагностических воздействий определяется для последующего расчёта постов диагностирования и его организации.

На АТП в соответствии с Положением предусматривается диагностирование подвижного состава Д-1 и Д-2.

Число Д-1 на весь парк за год:

 (2.19)

Для автомобилей ЛИАЗ-667М:

УNД-1.Г = 1,1 ∙ 3000 + 945 = 4245;

Для автомобилей ГАЗель:

УNД-1.Г = 1,1 ∙ 496 + 144= 690;

Для автомобилей М/Б:

УNД-1.Г = 1,1 ∙ 6666 + 2100 = 9433;

Число Д-2 на весь парк за год:

 (2.20)

Для автомобилей ЛИАЗ-667М:

УNД-2.Г = 1,2 ∙ 945 = 1134.

УNД-2.Г = 1,2 ∙ 144 = 173;

Для автомобилей М/Б:

УNД-2.Г = 1,2 ∙ 2100 = 2520.

Суточная программа парка автомобилей по ТО и диагностике определяется из следующего выражения:

, (2.21)

где  - годовая программа по каждому виду ТО или диагностики в отдельности;

 - годовое число рабочих дней зоны, предназначенной для выполнения того или иного вида ТО и диагностирования автомобилей.

Для автомобилей ЛИАЗ-667М:

NЕО.С = 50400 / 365 = 138,1;

N1.С = 3000/ 365 = 8,2;

N2.С = 945 / 365 = 2,6;

NД-1.С = 4245/ 365 = 11,6;

NД-2.С = 1134 / 365 = 3,1;

Для автомобилей ГАЗель:

NЕО.С = 17280 / 365 = 47,3;

N1.С = 496 / 365 = 1,36;

N2.С = 144 / 365 = 0,39;

NД-1.С = 690 / 365 = 1,9;

NД-2.С = 173 / 365 = 0,47.

Для автомобилей М/Б:

NЕО.С = 95832 / 365 = 262,6;

N1.С = 6666 / 365 = 18,3;

N2.С = 2100 / 365 = 5,8;

NД-1.С = 9433 / 365 = 25,8;

NД-2.С = 2520 / 365 = 6,9.

2.4 Выбор метода технического обслуживания и диагностики

Критерием для выбора метода технического обслуживания (поточный ил метод универсальных постов) является суточная производственная программа по каждому виду обслуживания.

Суточная программа ТО-1 составляет 1,36 автомобиля ГАЗель и 8,2 автомобиля ЛИАЗ-667М, поэтому целесообразно организовать обслуживание на отдельных универсальных постах.

Суточная программа ТО-2 составляет 0,39 автомобиля ГАЗель и 2,6 автомобиля ЛИАЗ-667М, поэтому целесообразно организовать обслуживание на отдельных универсальных постах.

Так как суточная программа ТО-1 составляет 1,36 автомобиля ГАЗель и 18,3 автомобиля М/Б, то целесообразно организовать обслуживание на отдельных универсальных постах.

Так как суточная программа ТО-2 составляет 0,39 автомобиля ГАЗель и 5,8 автомобиля М/Б, то целесообразно организовать обслуживание на отдельных универсальных постах.

Списочное количество подвижного состава составляет более 200 единиц, следовательно, целесообразно проводить все виды диагностирования на отдельном участке диагностирования.

2.5 Расчет годовых объемов работ АТП

Годовой объем работ АТП определяется в человеко-часах и состоит из объемов работ по техническому обслуживанию (ЕО, ТО-1, ТО-2); диагностики (Д-1, Д-2); текущего ремонта (ТР) и самообслуживания предприятия.

Перед расчетом годовых объемов работ необходимо скорректировать нормативы трудоемкости по видам технических воздействий для подвижного состава, проектируемого АТП. Для расчёта годового объёма работ предварительно для ПС проектируемого АТП устанавливают нормативную трудоёмкость ТО и ТР в соответствии с Положением, а затем их корректируют с учётом конкретных условий эксплуатации.

Трудоёмкость ЕО, установленная Положением, при применении механизированных моечных установок должна быть уменьшена за счёт исключения из общей трудоёмкости ЕО моечных работ, связанных с применением ручного труда. Поэтому расчётную трудоёмкость ежедневного обслуживания , реализуемую путем ручной обработки при использовании средств механизации, можно определить по формуле [7]:

, (2.22)

где - нормативная трудоёмкость ЕО, чел-ч;

-коэффициенты, учитывающие соответственно модификацию ПС, число автомобилей на АТП, снижение трудоёмкости за счёт механизации работ ЕО;

, (2.23)

- доля работ ЕО, выполняемых механизированным способом, %.

Для автомобилей ЛИАЗ-667М:

tЕО = 0,4 ∙ 1,25 ∙ 1,05 ∙ 0,35 = 0,18 чел-ч.

Для автомобилей ГАЗель:

tЕО = 0,3 ∙ 1,2 ∙ 1,05 ∙ 0,35 = 0,13 чел-ч,

Для автомобилей М/Б:

tЕО = 0,4 ∙ 1,2 ∙ 1,05 ∙ 0,35 = 0,18 чел-ч.

Расчётная нормативная скорректированная трудоёмкость (ТО-1, ТО-2) для ПС проектируемого АТП, определяется отдельно для каждого автомобиля по формуле:

,            (2.24)

где  - нормативная трудоёмкость ТО-1 или ТО-2, чел-ч

Кn - коэффициент, учитывающий снижение трудоемкости за счет поточной организации

Для автомобилей ЛИАЗ-667М:

t1 = 7,5 ∙ 1,25 ∙ 1,05 ∙ 1 = 9,84 чел-ч,

t2 = 30 ∙ 1,25 ∙ 1,05 ∙ 1 = 39,38 чел-ч.

Для автомобилей ГАЗель:

t1 = 3 ∙ 1,2 ∙ 1,05 ∙ 1 = 3,78 чел-ч,

t2 = 12 ∙ 1,2 ∙ 1,05 ∙ 1 = 15,12 чел-ч,

Для автомобилей М/Б:

t1 = 7,5 ∙ 1,2 ∙ 1,05 ∙ 1 = 9,45 чел-ч,

t2 = 30 ∙ 1,2 ∙ 1,05 ∙ 1 = 37,8 чел-ч.

Удельная нормативная скорректированная трудоёмкость текущего ремонта определяется по формуле:

, (2.25)

где - нормативная удельная трудоёмкость ТР, чел-ч /1000 км;

- коэффициенты, учитывающие соответственно категорию условий эксплуатации, климатический район, пробег ПС с начала эксплуатации.

Для автомобилей ЛИАЗ-667М:

tТР = 3,8 ∙ 1,2 ∙ 1,25 ∙ 1 ∙ 1,1 ∙ 1 = 6,27 чел-ч/1000 км.

Для автомобилей ГАЗель:

tТР = 2 ∙ 1,2 ∙ 1,2 ∙ 1 ∙ 1,35 ∙ 1 = 3,89 чел-ч/1000 км,

Для автомобилей М/Б:

tТР = 3,8 ∙ 1,2 ∙ 1,2 ∙ 1 ∙ 1 ∙ 1 = 5,47 чел-ч/1000 км.

При диагностике Д-1, выполняемой на отдельных постах, (выделенная диагностика) ее трудоемкость tд-1 с выполнением регулировочных работ составляет примерно 25% от нормативной скорректированной трудоемкости ТО-1

tд-1 = 0,25 t1 , чел-ч (2.26)

При этом 10% составляет диагностические работы Д-1 и 15% - регулировочные работы, выполняемые на постах после обнаружения неисправности в результате диагностирования Д-1.

Для автомобилей ЛИАЗ-667М:

tд-1 = 0,25 ∙ 9,84 = 2,46 чел-ч.

Для автомобилей ГАЗель:

tд-1 = 0,25 ∙ 3,78 = 0,95 чел-ч;

Для автомобилей М/Б:

tд-1 = 0,25 ∙ 9,45 = 2,36 чел-ч.

Поскольку диагностические работы фактически являются работами, входящими в объем ТО-1, расчетную трудоемкость ТО-1 (t1) при организации Д-1 на отдельных постах следует уменьшить на 15%

, чел-ч (2.27)

Для автомобилей ЛИАЗ-667М:

t`1 = 0,85 ∙ 9,84 = 8,36 чел-ч.

Для автомобилей ГАЗель:

t`1 = 0,85 ∙ 3,78 = 3,21 чел-ч;

Для автомобилей М/Б:

t`1 = 0,85 ∙ 9,45 = 8,03 чел-ч.

Диагностика Д-2 в основном выполняется на отдельных постах. При этом трудоемкость Д-2 tД-2 составляет от 10 до 20% от нормативной скорректированной трудоемкости ТО-2 (t2)

tД-2 = (0,1 - 0,2)t2, чел-ч(2.28)

Для автомобилей ЛИАЗ-667М:

tд-2 = 0,2 ∙ 39,38 = 7,88 чел-ч.

Для автомобилей ГАЗель:

tд-2 = 0,2 ∙ 15,12 = 3,02 чел-ч;

Для автомобилей М/Б:

tд-2 = 0,2 ∙ 37,8 = 7,56 чел-ч.

За счет перенесения на посты Д-2 работ по проверке и регулировке систем питания, зажигания, электрооборудования и др., а также выделения работ по Д-1, трудоемкость ТО-2 соответственно необходимо уменьшить на 10-20%:

 (2.29)

Для автомобилей ЛИАЗ-667М:

t`2 = 0,8 ∙ 39,38 = 31,5 чел-ч.

Для автомобилей ГАЗель:

t`2 = 0,8 ∙ 15,12 = 12,1 чел-ч;

Для автомобилей М/Б:

t`2 = 0,8 ∙ 37,8 = 30,24 чел-ч.

По «Положению» совместно с ТО-2 рекомендуется выполнять технологически связанные с ним, часто повторяющееся операции сопутствующего ТР, не превышающее 20% трудоемкости ТО-2. С учетом этого трудоемкость ТО-2 с операциями ТР t2 +тр составит:

t2 +тр =1,2 t2, чел-ч (2.30)

Для автомобилей ЛИАЗ-667М:

t2+ТР = 1,2 ∙ 39,38 = 47,26 чел-ч.

Для автомобилей ГАЗель:

t2+ТР = 1,2 ∙ 15,12 = 18,14 чел-ч;

Для автомобилей М/Б:

t2+ТР = 1,2 ∙ 37,8 = 45,36 чел-ч.

Удельная трудоемкость ТР (tтр) как при выделенной, так и при совмещенной диагностике может быть снижена на 10-15% за счет повышения качества ТО:

, чел-ч/1000км. (2.31)

где tTP - удельная скорректированная трудоемкость ТР, чел-ч/1000км.

Для автомобилей ЛИАЗ-667М:

t`ТР = 0,85 ∙ 47,26 = 5,33 чел-ч/1000км.

Для автомобилей ГАЗель:

t`ТР = 0,85 ∙ 18,14 = 3,31 чел-ч/1000км;

Для автомобилей М/Б:

t`ТР = 0,85 ∙ 45,36 = 4,65 чел-ч/1000км.

Объём работ (чел-ч) по ЕО, ТО-1, ТО-2, Д-1 и Д-2 за год определяется произведением числа ТО на нормативное (скорректированное) значение трудоёмкости данного вида ТО и Д:

 (2.32)

 (2.33)

 (2.34)

 (2.35)

 (2.36)

где - соответственно годовое число ЕО, ТО-1, ТО-2, Д-1 и Д-2 на весь парк автомобилей одной модели;

 - нормативная скорректированная трудоёмкость соответственно ЕО, ТО-1, ТО-2 с ТР, Д-1, Д-2 чел-ч.

Подставляем соответствующие значения трудоёмкостей в формулы (2.32), (2.33), (2.34), (2.35) и (2.36) получим:

Для автомобилей ЛИАЗ-667М:

ТЕО.Г = 50400 ∙ 0,18 = 9072 чел-ч;

Т1.Г = 3000 ∙ 9,84 = 29520 чел-ч;

Т2+ТР.Г = 945 ∙ 47,26 = 44660, чел-ч;

Тд-1.Г = 4245 ∙ 2,46 = 10442,7 чел-ч;

Тд-2.Г = 1134 ∙ 7,88 = 8935,9 чел-ч.

Для автомобилей ГАЗель:

ТЕО.Г = 17280 ∙ 0,13 = 2246,4 чел-ч;

Т1.Г = 496 ∙ 3,78 = 1874.88 чел-ч;

Т2+ТР.Г = 144 ∙ 18,14 = 2612,16 чел-ч;

Тд-1.Г = 690 ∙ 0,95 = 655,5 чел-ч;

Тд-2.Г = 173 ∙ 3,02 = 522,46 чел-ч.

Для автомобилей М/Б:

ТЕО.Г = 95832 ∙ 0,18 = 17249,76 чел-ч;

Т1.Г = 6666 ∙ 9,45 = 62993,7 чел-ч;

Т2+ТР.Г = 2100 ∙ 45,36 = 95256 чел-ч;

Тд-1.Г = 9433 ∙ 2,36 = 22261,88 чел-ч;

Тд-2.Г = 2520 ∙ 7,56 = 19051,2 чел-ч.

Годовой объём работ по ТР:

 (2.37)

где - годовой пробег автомобиля, км,

-списочное число автомобилей,

Для автомобилей ЛИАЗ-667М:

ТТР.Г = (83037,5 / 1000) ∙ 5,33 ∙ 150 - 945 ∙ 1,2 ∙ 31,5 = 30667 чел-ч.

Для автомобилей ГАЗель:

ТТР.Г = (51465 / 1000) ∙ 3,31 ∙ 50 - 144 ∙ 1,2 ∙ 12,1 = 6426,6 чел-ч;

Для автомобилей М/Б:

ТТР.Г = (97455 / 1000) ∙ 4,65 ∙ 300 - 2100 ∙ 1,2 ∙ 30,24 = 59744,9 чел-ч.

Согласно Положению, кроме работ по ТО и ТР, в АТП выполняются вспомогательные работы, объём которых составляет 20-30% от общего объёма работ по ТО и ТР подвижного состава. В состав вспомогательных работ входят работы по самообслуживанию предприятия, объём которых составляет 40-50 % от вспомогательных работ. Полученные данные заносятся в таблицу 2.3.

Таблица 2.3 Распределение годовых объемов работ по производственным зонам и участкам

Виды работ ТО и ТР

ЛИАЗ-667М

ГАЗель

М/Б

ЕО, выполняемые ежедневно:




 уборочные

5443

1347,8

10349,4

 моечные

3629

898,6

6899,6

ИТОГО

9072

2246,4

17249

ЕО, выполняемые перед ТО и ТР:




 уборочные

907

224

1725

 моечные по двигателю и шасси

1361

337

2587,3

ИТОГО

2268

561

4312,3

ТО-1:




 общее диагностирование Д-1

4428

281

9449

 крепежные, регулировочные, смазочные

25092

1594

53544

ИТОГО

29520

1875

62993

ТО-2:




 углубленное диагностирование Д-2

5359

313

11430,7

 крепежные, регулировочные, смазочные

39301

2299

83825,3

ИТОГО

44660

2612

95256

Текущий ремонт:




 Постовые работы:




 общее диагностирование Д-1

306,7

64,3

597,5

 углубленное диагностирование Д-2

306,7

64,3

597,5

 регулировочные и разборочные

8280,1

1735,2

16131,2

 сварочные

1533,4

321,3

2987,3

 жестяницкие

613,3

128,5

1194,9

 окрасочные

2453,4

514,1

4779,6

ИТОГО

13493,5

2827,7

26287,8

 Участковые работы:




 агрегатные

5213,4

1092,5

10156,7

 слесарно-механические

2453,4

514,1

4779,6

 электротехнические

2146,7

449,9

4182,2

 аккумуляторные

613,3

128,5

1194,9

 ремонт приборов и систем питания

920

192,8

1792,4

 Шиномонтажные

613,3

128,5

1194,9

 Вулканизационные (ремонт камер)

306,7

64,3

597,5

 Кузнечно-рессорные

920

192,8

1792,4

 медницкие

613,3

128,5

1194,9

 сварочные

613,3

128,5

1194,9

 жестяницкие

613,3

128,5

1194,9

 арматурные

920

192,8

1792,4

 обойные

929

192,8

1792,4

ИТОГО

17173,5

3598,9

33457,2

ВСЕГО ПО ТР

30667

6426,6

59745


Объём работ по самообслуживанию предприятия принимается в процентном отношении от годового объёма вспомогательных работ.

,(2.38)

где - объём вспомогательных работ предприятия, %;

- объём работ по самообслуживанию, %.

ТСАМ = ((9072 + 2246,4+17249,76) + (29520 + 1874,88+62993,7) + (44660 + 2612,6+95256) + (10442,7 + 655,5+22261,88) + (8935,9 + 522,46+19051,2) + (30667 + 6426,6+59744,9))·20·45·10-4 = 38177,4 чел-ч.

По месту выполнения весь объем работ распределяется по различным производственным зонам и участкам (цехам), исходя из технологических и организационных признаков.

Учитывая особенности технологии производства, работы по ЕО, ТО-1 выполняются в самостоятельных зонах.

Постовые работы по ТО-2, выполняемые на универсальных постах, и ТР обычно производятся в общей зоне. В ряде случаев ТО-2 выполняется на постах линии ТО-1, но в другую смену.

Работы по общей диагностике Д-1 проводятся на самостоятельных постах (линиях) или совмещаются с работами, выполненными на постах ТО-1.

Поэлементная (углубленная) диагностика выполняется на постах участка Д-2.

В процессе проведения ТО-2 иногда возникает необходимость в снятии отдельных приборов, узлов и механизмов для устранения неисправностей и контроля на специальных стендах в производственных цехах. В основном это работы по системе питания, электротехнические, аккумуляторные и шиномонтажные. Поэтому выполнение 90-95% объема работ ТО-2 планируется на постах, а 5-10% в производственных цехах. В практике проектирования этот объем работ распределяется равномерно по соответствующим цехам.

При совмещении диагностики Д-1 с ТО-1 возможно следующее распределение работ ТО-2:

1 Если ТО-2 выполняется на универсальных постах, то объем работ ТО-1 целесообразно распределить таким образом: 10% в цехах, 65% на постах зоны ТО-2 и 25% (смазочные и регулировочные работы) на постах линии ТО-1 или ТО-1 с Д-1, которая в период работы зоны ТО-2 свободна, так как ТО-1 проводится в межсменное время.

2 Если ТО-2 выполняется на поточной линии, то 10% объема работ ТО-2 передается в цеха, а 90% - выполняется на постах линии ТО.

Для определения специализации работ и рабочих по постам каждой зоны технического обслуживания, пользуясь данными справочников, производится распределение годовых трудоемкостей ТО и диагностики по видам работ в % и чел-ч в зависимости от типа подвижного состава.

Распределение объема работ текущего ремонта по видам и месту выполнения (в производственных цехах и на постах) приведено в справочниках.

Распределение работ по их видам по самообслуживанию АТП приведено в справочнике.

Для выявления годовых объемов работ для каждого производственного цеха производится распределение в процентах и чел-ч годовых трудоемкостей текущего ремонта (по каждому виду подвижного состава), самообслуживания предприятия и части работ ТО-2 , выполняемой в цехах.

2.6 Расчет численности производственных рабочих

Технологически необходимое (явочное) число рабочих определяем по формуле [8]:

 (2.39)

где  - годовой объём работ по зонам и участкам;

- годовой фонд времени технологически необходимого рабочего при односменной работе, ч.

Штатное (списочное) число рабочих:

, (2.40)

где  - годовой фонд времени “штатного” рабочего, ч.

Распределение технологически необходимого (явочного) и штатного (списочного) числа рабочих для зоны ТО-1 и ТО-2 представлено в таблице 6.

В практике проектирования для расчета технологически необходимого числа рабочих годовой фонд времени ФТ принимают равным 2070 ч и для производств с нормированными условиями труда «штатного» рабочего ФШ равным 1860 ч. Полученные данные заносятся в таблицу 2.4.

Таблица 2.4 Технологически необходимое количество рабочих по производственным зонам и участкам

Виды работ ТО и ТР

ЛИАЗ-667М

ГАЗель

М/Б


Рт

Рш

Рт

Рш

Рт

Рш

ЕО, выполняемые ежедневно:


 уборочные

2,6

2,89

0,72

5

5,56

 моечные

1,75

1,95

0,43

0,48

3,33

3,71

ИТОГО

4,35

4,84

1,08

1,2

8,33

9,27

ЕО, выполняемые перед ТО и ТР:


 уборочные

0,44

0,49

0,11

0,12

0,83

0,92

 моечные по двигателю и шасси

0,66

0,73

0,16

0,18

1,25

1,39

ИТОГО

1,1

1,22

0,27

0,3

2,08

2,31

ТО-1:


 общее диагностирование Д-1

2,14

2,38

0,14

0,16

4,56

5,07

 крепежные, регулировочные, смазочные

12,12

13,49

0,77

0,86

25,87

28,79

ИТОГО

14,26

15,87

0,91

1,02

30,43

33,86

ТО-2:


 углубленное диагностирование Д-2

2,59

2,88

0,15

0,17

5,52

6,14

 крепежные, регулировочные, смазочные

18,99

21,13

1,11

1,24

40,5

45,07

ИТОГО

21,58

24,01

1,26

1,41

46,02

51,21

Текущий ремонт:


 Постовые работы:


 общее диагностирование Д-1

0,15

0,17

0,03

0,03

0,29

0,32

 углубленное диагностирование Д-2

0,15

0,17

0,03

0,03

0,29

0,32

 регулировочные и разборочные

4

4,45

0,84

0,93

7,79

8,67

 сварочные

0,74

0,82

0,16

0,18

1,44

1,6

 жестяницкие

0,3

0,33

0,06

0,07

0,58

0,65

 окрасочные

1,19

1,32

0,25

0,28

2,31

2,57

ИТОГО

6,53

7,26

1,37

1,52

12,7

14,13

 Участковые работы:


 агрегатные

2,52

2,8

0,53

0,59

4,91

5,46

 слесарно-механические

1,19

1,32

0,25

0,28

2,31

2,57

 электротехнические

1,04

1,16

0,22

0,25

2,02

2,25

 аккумуляторные

0,3

0,33

0,06

0,07

0,58

0,65

 ремонт приборов и систем питания

0,44

0,49

0,09

0,1

0,87

0,97

 Шиномонтажные

0,3

0,33

0,06

0,07

0,58

0,65

 Вулканизационные (ремонт камер)

0,15

0,17

0,03


0,29

0,32

 Кузнечно-рессорные

0,44

0,49

0,09

0,1

0,87

0,97

 медницкие

0,3

0,33

0,06

0,07

0,58

0,65

 сварочные

0,3

0,33

0,06

0,07

0,58

0,65

 жестяницкие

0,3

0,33

0,06

0,07

0,58

0,65

 арматурные

0,44

0,49

0,09

0,1

0,87

0,97

 обойные

0,44

0,49

0,09

0,1

0,87

0,97

ИТОГО

8,3

9,24

1,74

1,94

16,16

17,98

ВСЕГО ПО ТР

14,81

16,48

3,11

3,46

28,86

32,12


.7 Технологический расчёт производственных зон, участков и складов

В соответствии с Положением о ТО и ремонте подвижного состава обслуживание ТО-1 и ТО-2 проводим на отдельных универсальных постах. Диагностирование подвижного состава на АТП проводим на отдельном участке диагностирования, оснащённом комбинированным диагностическим стендом.

Исходными величинами для расчёта числа постов обслуживания служат ритм производства и такт поста.

Ритм производства - это время, приходящееся в среднем на выпуск одного автомобиля из данного вида ТО, или интервал времени между выпуском двух последовательно обслуженных автомобилей из данной зоны.

, мин (2.41)

где - продолжительность смены, ч;

- число смен;

- суточная производственная программа раздельно по каждому виду ТО.

Для автомобилей ЛИАЗ-667М:

R1 = (60 ∙ 7 ∙ 2) / 8,2 = 102,44 мин;

R2 = (60 ∙ 7 ∙ 2) / 2,6 = 323,08 мин.

Для автомобилей ГАЗель:

R1 = (60 ∙ 7 ∙ 2) / 1,36 = 617,65 мин;

R2 = (60 ∙ 7 ∙ 2) / 0,39 = 2153,84 мин;

Для автомобилей М/Б:

R1 = (60 ∙ 7 ∙ 2) / 18,3 = 45,9 мин;

R2 = (60 ∙ 7 ∙ 2) / 5,8 = 144,83 мин.

Такт поста  представляет собой среднее время занятости поста. Оно складывается из времени простоя автомобиля под обслуживанием на данном посту и времени, связанного с установкой автомобиля на пост, вывешивание его на подъёмнике и т.п.

(2.42)

где - трудоёмкость работ данного вида обслуживания, выполняемого на посту, чел-ч;

- время, затрачиваемое на передвижение автомобиля при установке его на пост и съезд с поста, мин;

 - число рабочих, одновременно работающих на посту.

Для автомобилей ЛИАЗ-667М:

ф1 = (60 ∙ 9,84) / 2 + 3 = 298,2 мин;

ф2 = ( 60 ∙ 39,38) / 2 + 3 = 1184,4 мин;

Для автомобилей ГАЗель:

ф1 = (60 ∙ 3,78) / 2 + 3 = 116,4 мин;

ф2 = ( 60 ∙ 15,12) / 2 + 3 = 456,6 мин;

Для автомобилей М/Б:

ф1 = (60 ∙ 9,45) / 2 + 3 = 286,5 мин;

ф2 = ( 60 ∙ 37,8) / 2 + 3 = 1137 мин;

Число постов ТО-1 () определяется из отношения общего времени простоя всех автомобилей под обслуживанием к фонду времени одного поста, т. е.:

,                            (2.43)

Для автомобилей ЛИАЗ-667М: X1 = 298,2 / 102,44 = 2,91;

Для автомобилей ГАЗель: X1 = 116,4 / 617,65 = 0,19 ;

Для автомобилей М/Б: X1 = 286,5 / 45,9 = 6,24;

Число постов ТО-2 () из-за относительно большой его трудоёмкости, а также возможного увеличения времени простоя автомобиля на посту за счёт проведения дополнительных работ по устранению неисправностей определяется с учётом коэффициента использования рабочего времени поста  т. е.:

, (2.44)

где - коэффициент использования рабочего времени поста ТО-2 ()

Тогда:

Для автомобилей ЛИАЗ-667М:                                                      X2 = 1184,4 / (323,08 ∙ 0,9) = 4,07.

Для автомобилей ГАЗель: X2 = 456,6 / (2153,84 ∙ 0,9) = 0,24;

Для автомобилей М/Б: X2 = 1137 / (144,83 ∙ 0,9) = 8,72.

По результатам расчёта принимаем число постов ТО-1 (X1 = 10) и число постов ТО-2 (X2 = 15).

Число постов диагностирования Д-1 и Д-2 () рассчитываем по формуле:

, (2.45)

Для автомобилей ЛИАЗ-667М:

Xд-1 = 10442,7 / (305 ∙ 7 ∙ 2 ∙ 0,9 ∙ 2) = 1,36;

Xд-2 = 8935,9 / (305 ∙ 7 ∙ 2 ∙ 0,9 ∙ 2) = 1,16;

Для автомобилей ГАЗель:

Xд-1 = 655,5 / (305 ∙ 7 ∙ 2 ∙ 0,9 ∙ 2) = 0,09;

Xд-2 = 522,46 / (305 ∙ 7 ∙ 2 ∙ 0,9 ∙ 2) = 0,07;

Для автомобилей М/Б:

Xд-1 = 22261,88 / (305 ∙ 7 2 ∙ 0,9 ∙ 2) = 2,9;

Xд-2 = 19051,2 / (305 ∙ 7 ∙ 2 ∙ 0,9 ∙ 2) = 2,48;

По результатам расчёта принимаем число постов диагностирования автомобилей ЛИАЗ-667М (Xд = 3), ГАЗель (Xд = 1), М/Б (Xд= 6).

Для обеспечения максимальной производительности линии пропускная способность отдельных постовых установок должна быть равна пропускной способности основной установки для мойки автомобилей. В этом случае такт линии  определяется из выражения:

, (2.46)

где - скорость перемещения автомобиля, (2-3 м/мин);

- габаритная длина автомобиля, м;

- расстояние между автомобилями на постах линии, м.

Для автомобилей ЛИАЗ-667М: фЕО.Л = (2 + 9,19) / 3 = 4 мин.

Для автомобилей ГАЗель: фЕО.Л = (2 + 5,03) / 3 = 2 мин;

Для автомобилей М/Б: фЕО.Л = (2 + 9,19) / 3 = 4 мин.

Среднее значение фЕО.Л.СР = 3,5мин

Пропускная способность (авт./ч) линии ЕО:

, (2.47)

NЕО.Л = 60 / 3 = 20 авт./ч;

По формуле (2.41) находим ритм линии:

RЕО.Л = (60 ∙ 7 ∙ 2) / (35,6 + 255,7) = 2,88;

Для потока непрерывного действия число линий ЕО рассчитаем по формуле:

, (2.48)

mЕО = 3 / 2,88 = 1,04;

По результатам расчёта принимаем количество поточных линий ЕО (mЕО = 1).

Для расчёта числа постов ТР используем годовой объём постовых работ ТР. Число постов ТР определяем по формуле [8]:

, (2.50)

где - годовой объём работ, выполняемых на постах ТР, чел-ч;

- число рабочих дней зоны ТР в году;

- коэффициент использования рабочего времени поста ();

- число рабочих на посту, для автомобилей принимаем ();

- число смен;

- продолжительность смены.

 - коэффициент, зависящий от количества автобусов в АТП и интенсивности их эксплуатации ().

Текущий ремонт включает следующие посты ремонта: посты для регулировочных и разборочно-сборочных работ (), посты для сварочно-жестяницких работ () и посты для малярных работ ().

Тогда посты для регулировочных и разборочно-сборочных работ:

Для автомобилей ЛИАЗ-667М:

XТР = (13493,5 ∙ 1,5) / (305 ∙ 7 ∙ 2 ∙ 0,85 ∙ 2) = 2,79.

Для автомобилей ГАЗель:

XТР = (2827,7 ∙ 1,5) / (305 ∙ 7 ∙ 2 ∙ 0,85 ∙ 2) = 0,58;

Для автомобилей М/Б:

XТР = (26287,8 ∙ 1,5) / (305 ∙ 7 ∙ 2 ∙ 0,85 ∙ 2) = 5,43.

По результатам расчёта принимаем: число постов ТР для регулировочных и разборочно-сборочных работ XТР = 9.

Расчёт постов для сварочно-жестяницких работ проводим по формуле (2.50):

XТР.СВ-Ж = (1944,8 ∙ 1,5) / (305 ∙ 7 ∙ 2 ∙ 0,85 ∙ 2) = 0,4.

По результатам расчёта принимаем число постов ТР для сварочно-жестяницких работ XТР.СВ-Ж = 1.

Аналогично проводим расчёт постов ТР для малярных работ:

XТР.М = (5318,43 ∙ 1,5) / (305 ∙ 7 ∙ 2 ∙ 0,85 ∙ 2) = 1,1

По результатам расчёта принимаем число постов ТР для малярных работ XТР.М = 1.

.8 Расчёт площадей помещений

Площади АТП по своему функциональному назначению подразделяются на три основные группы: производственно-складские, хранения ПС и вспомогательные.

В состав производственно-складских помещений входят зоны ТО и ТР, производственные участки ТР, склады, а также технические помещения энергетических и санитарно-технических служб и устройств [11].

В состав площадей зон хранения ПС входят площади стоянок с учётом площади, занимаемой оборудованием для подогрева автомобилей.

В состав вспомогательных площадей предприятий входят: санитарно-бытовые помещения, пункты общественно питания, здравоохранения, культурного обслуживания, управления, помещения для учебных занятий и общественных организаций.

Площади зон ТО и ТР определяются по формуле [9]:

, (2.51)

где - площадь, занимаемая автомобилем в плане, м2;

- число постов;

- коэффициент плотности расстановки постов, принимаем равным 4 - 5 для двухстороннего расположения автомобилей и 6-7 - для одностороннего.

Площади автомобилей в плане:

·    ЛиАЗ-667М - 27 м2;

·        ГАЗель - 11 м2;

С целью универсализации использования постов fa для ЛиАЗ-667М и М/Б принимаем одинаковыми и равными 30 м2.

FТР = 30 ∙ 8 ∙ 7 + 11 ∙ 1∙ 7 = 1757 м2;

FТО-1 = 30 ∙ 9 ∙ 7 + 11 ∙ 1∙ 7 = 1967 м2;

FТО-2 = 30 ∙ 13 ∙ 7 + 11 ∙2· 7 = 2884 м2;

FД = 30 ∙ 8 ∙ 7 +11∙1∙7 = 1757 м2;

FД = 17 ∙ 3,17 ∙ 7 = 510,37 м2;

FТР.СВ-Ж = 30 ∙ 1 ∙ 7 = 210 м2;

FМ = 30 ∙ 1 ∙ 7 = 210 м2.

Площади участков рассчитываем по числу работающих на участке в наиболее загруженную смену. Согласно нормативам площадь помещения производственного участка на одного рабочего должна быть не менее 4,5 м2. Результаты расчёта заносим в таблицу 2.5.

Таблица 2.5 Площади производственных участков

Участки

Рабочие

Площадь, м2

 агрегатные

8

54

 слесарно-механические

4

54

 электротехнические

3

14

 аккумуляторные

1

36

 ремонт приборов системы питания

1

14

 шиномонтажные (ремонт камер)

1

27

 вулканизационные

1

18

 кузнечно-рессорные

1

27

 медницкие

1

18

 сварочные

1

18

 жестяницкие

1

27

 арматурные

1

14

 обойные

1

27

ИТОГО:

25

348


2.9 Генеральный план

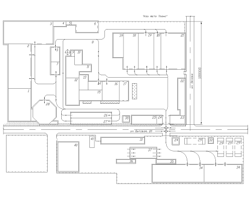
Общая площадь автобусного парка составляет 5,016 гектаров.

Генеральный план АП представлен на рисунке 1.1 и включает в себя следующие здания и сооружения:

- комплекс подготовки производства;

- комплекс ТР;

- комплекс ТР;

- склад ГСМ;

- компрессорная;

- салонно-сварочный участок;

- комплекс ТО-2;

- водонапорная башня;

- электростанция;

- котельная;

- оздоровительный комплекс;

- центральный склад;

- деревообрабатывающий участок;

- производственные участки ОГМ;

- класс технической учебы и ТБ;

- шиномонтажный участок;

- склад шин;

, 19, 20 - комплекс ТО-1;

- бытовой комплекс;

- административное здание;

- КПП;

- бытовой комплекс;

- комплекс диагностики;

- линия по ремонту электрооборудования;

- комплекс ТО-2;

- открытые стоянки автобусов;

- участок УДС;

- административный комплекс;

- дежурные загонщики;

- АЗС;

- стояночный бокс;

- здание оборотного водоснабжения комплекса ЕО;

- очистные сооружения;

- комплекс ЕО;

- трансформаторная.

Рисунок 2.1. Генплан АП

3. Проект зоны ТО-1 АП

.1 Разработка планировки зоны ТО-1

Зону ТО-1 на АП размещаем в трех расположенных рядом боксах. Она включает в себя три однотипных прямоточных линии (рисунок 3.1) по три поста в каждой.

пост - контрольно-диагностические, регулировочные и крепежные работы.

На данном посту проводится осмотр подвески (передний, задний, средний мосты); трансмиссии, сцепления, КПП, карданных передач, рулевого управления (гидроуселитель, система тяг); кабины, оперения кузова; системы сигнализации и освещения; шин; производится проверка системы подачи воздуха к двигателю.

Для проведения данных работ пост№1 [9] должен быть дополнительно оснащен пневматическими электромеханическими гайковертами, автоматическим стендом для проверки схождения и развала колес, зазоров в шкворневых соединениях, давления в шинах. На данном посту устанавливается стенд очистки воздушных фильтров двигателя. Дополнительно необходимо предусмотреть вдоль поста с двух сторон тельферы грузоподъемностью q = 1т для перемещения инструмента и снятия колес.

пост - смазочные работы по узлам трения:

трансмиссия, рулевое управление и подвеска;

проверить уровень масла в картерах агрегатов и бочках гидроприводов в соответствии с технологической картой;

проверить уровень жидкости в бачках омывателей ветрового стекла и фар, а в холодное время года и в предохранителях от замерзания (тормозной привод);

·   прочистить сапуны КПП и мостов, редукторов;

·   промыть фильтры гидравлического усилителя тормозов;

3 пост - обслуживание двигателя и его систем:

- внешним осмотром проверить нет ли течи в системе питания, смазки и охлаждения двигателя - при необходимости устранить;

·   слить отстой из топливных баков, промыть и очистить топливные фильтры грубой и тонкой очистки;

·   проверить уровень масла в топливном насосе высокого давления и регуляторе частоты вращения коленчатого вала двигателя;

·   проверить уровень масла в поддоне двигателя при необходимости долить или заменить;

·   при необходимости промыть систему смазки двигателя промывочными маслами;

·   при необходимости осуществить контрольно-диагностические и регулировочные работы по системе питания двигателя.

Пост №3 для проведения перечисленных работ должен быть оснащен специальным инструментом, газоанализаторами, стендом для проверки дымности дизеля, средствами для промывки и очистки фильтров.

Зона ТО-1 (рисунок 3.1) оснащен следующим технологическим оборудованием:

1.    Пульт управления механизмом привода ворот;

2.      Электрошкаф;

.        Помещение для оформления и хранения документов;

.        Стремяночная лестница;

.        Ящик для запасных частей и деталей;

.        Компрессор;

.        Воздухораздаточная колонка;

.        Стенд для очистки воздушных фильтров;

.        Нагнетатель для трансмиссионного масла;

.        Шкаф инструментальный;

.        Верстак слесарный;

.        Бак для трансмиссионного масла;

.        Ванна для мытья фильтров и деталей;

.        Ларь для мусора;

.        Стационарный солидолонагнетатель;

.        Пульт управления солидолонагнетателем;

.        Стремяночная лестница;

.        Ящик для запасных частей и деталей;

.        Компрессор;

.        Воздухораздаточная колонка;

.        Стенд для очистки воздушных фильтров;

.        Нагнетатель для трансмиссионного масла;

.        Шкаф инструментальный;

.        Верстак слесарный;

.        Бак для трансмиссионного масла;

.        Ванна для мытья фильтров и деталей;

.        Ларь для мусора;

.        Стационарный солидолонагнетатель;

.        Пульт управления солидолонагнетателем;

.        Передвижной солидолонагнетатель;

.        Передвижной солидолонагнетатель - Венгрия;

.        Тележка для бочек с солидолм;

.        Пульт управления механизмом привода ворот;

.        Электрошкаф;

.        Помещение для оформления и хранения документов;

.        Установка для тепловой завесы ворот;

.        Воздуховод;

.        Емкости для опилок;

.        Шкафы для одежды;

.        Ящик с песком и огнетушителями;

.        Подставка для ног;


42.  Шарнирная воронка для слива масел;

43.    Емкость для сбора отработанных масел;

.        Подставка для инструментов;

45.  Пневмоподьемник.

Технологическое оборудование зоны ТО-1 выбрано согласно Табелю на технологическое оборудование.


.2 Разработка специализированных постов ТО-1

Описание специализации постов, входящих в линию ТО-1 дано в предыдущем разделе; планы размещения оборудования с перечнем этого оборудования представлены на рис. 3.2 - 3.4.

3.3 Организация работы в зоне ТО-1

Технологический процесс ТО-1 и его организация определяются количеством рабочих постов и мест, необходимых для выполнения производственной программы.

ТО-1 автомобилей на АТП производится по потребности на специально выделенных, соответственно оснащенных технологическим оборудованием постах в зоне ремонта и производственных цехах (на участках) [10].

Однако в связи с тем, что некоторые операции ТР технологически связаны с операциями, выполняемыми на постах ТО-1 и ТО-2, целесообразно ряд работ ТР, имеющих малую трудоемкость (не более 15- 20% трудоемкости ТО), выполнять совместно с работами ТО-1 и ТО-2. Следует отметить, что выполнение работ ТР, влекущих сверхнормативный простой автомобиля на посту, нарушающих режим работы линии обслуживания или универсальных постов, недопустимо.

Рекомендуется операции ТР выполнять совместно с процессом обслуживания ТО-2 при малой частоте повторяемости данной операции (коэффициент повторяемости 0,15) и в случае, если операции ТР имеют малую трудоемкость.

Указанный объем работ выполняется за счет так называемого «скользящего» рабочего (бригадира), т.е. такого рабочего, который включается в работу любого поста, где возникает потребность в дополнительной рабочей силе для выдерживания установленного такта поста.

Организация производства ТО-1 на АТП включает в себя: разработку и внедрение технических, технологических и учетных документов, технологических карт на контрольно-смотровые, смазочные, разборочно-сборочные и иные работы, а также организацию рабочих мест и работы на них (выбор подъемно-осмотровых устройств, управления процессом производства ТО, техническое снабжение и т.п.).

В дипломном проекте разработана карта организации труда зоны ТО-1, которая включает в себя следующие данные.

Исходные данные:

функции рабочего: разборка, ремонт, сборка, регулировка и испытание агрегатов, узлов и приборов автомобилей;

форма организации труда: бригадная;

система оплаты труда: повременно-премиальная;

требования, предъявляемые к профессии: профессия - слесарь по ремонту автомобилей, квалификационный разряд - 4, стаж работы по специальности - не менее года, пол - мужской, возраст - не моложе 18 лет;

Трудовой процесс:

организационная карта сменной работы:

затраты рабочего времени:

·   получение задания - 2 мин;

·   получение инструмента, материалов и предметов труда - 3 мин;

·   подготовка и наладка оборудования к работе - 2 мин;

·   раскладка инструмента на рабочих местах - 3 мин;

·   разборочно-сборочные, ремонтные и регулировочные работы - 415 мин;

·   сдача готовой продукции - 10 мин;

·   уборка инструмента - 5 мин;

·   обтирка оборудования и приборов от пыли и грязи - 6 мин;

·   уборка рабочего места - 10 мин;

регламент рабочего времени:

·   подготовительное время - 10 мин (2.1%);

·   основная работа - 415 мин (86.5%);

·   обед - 60 мин;

·   регламентированные перерывы - 30 мин (6.2%);

·   заключительное время - 15 мин (3.1%);

·   самообслуживание рабочего места - 10 мин (2.1%);

Рабочее место:

оборудование:

·   автомобиле-место;

·   электрогайковерт;

·   тележка для колес;

·   переходной мостик;

·   ящик для инструмента;

·   канавный подъемник;

обслуживание рабочего места:

·   получение задания - мастер;

·   производственный инструктаж - мастер;

·   снабжение материалами и предметами труда - транспортная группа;

·   снабжение инструментом - инструментальщик;

·   межремонтное профилактическое обслуживание оборудования - слесарь ОГМ;

·   контроль выполнения работ - ОТК, мастер;

·   обслуживание рабочего места - слесарь по ремонту автомобилей;

Условия труда:

условия труда и ТБ:

·   температура воздуха - летом - 20 С, зимой - 18 С;

·   влажность воздуха - 75%;

·   скорость движения воздуха - 0 м/с;

·   уровень шума - 70 дб;

·   освещение - общее - 150 лк;

·   освещение - индивидуальное - 150 лк;

специальные условия труда:

·   спецодежда: костюм хлопчатобумажный, рукавицы комбинированные, ботинки кожаные;

·   средства ТБ: плакаты и знаки безопасности, противопожарный щит;

·   средства оказания медицинской помощи: аптечка;

·   место отдыха: зона отдыха;

функциональная музыка:

·   за 5 мин до начала работы - бодрые и веселые мелодии - 10 мин;

·   за 20 мин до обеденного перерыва - бодрая музыкальная программа - 15 мин;

·   во время обеденного перерыва - концерт по заявкам - 50 мин;

·   до конца смены с интервалами - спокойная ритмичная музыка - 15-20 мин;

·   заканчивается смена - бодрая музыка;

1. перечень технической документации:

·   сменное задание;

·   инструкция по эксплуатации и уходу за оборудованием;

·   инструкция по ТБ на рабочем месте;

·   плакаты по устройству и эксплуатации, руководство в работе;

карта организации труда на рабочем месте.

4. Разработка конструкции стационарного солидолонагнетателя

Проведение смазочных работ при ТО-1 - трудоемкая и тяжелая операция. Применение в этих случаях стандартных средств смазки (ручной солидолонагнетатель) не дает должного эффекта: малая производительность, большая трудоемкость, доступ к местам смазки агрегатов и узлов - затруднен. По нашему мнению, стационарный солидолонагнетатель, предлагаемый в данном дипломном проекте, способен в значительной степени решить отмеченные проблемы.

.1 Проведение патентных исследований

В результате проведенного поиска, было просмотренно и отобрано некоторое количество патентов. Данные поиска сведены в таблицу 4.1.

Таблица 4.1 Результаты поиска.

Страна

Раздел, классы

Просмотрено

Отобрано

СССР

F 16 N 7/14

50

1

СССР

F 16 N 11/10

50

1

СССР

F 16 N 7/00

60

1

ФРГ

F 16 N 7/38

50

1

США

F 16 N 7/32

40

1


Наиболее интересные решения, обнаруженные в результате патентного поиска, представлены в таблице 4.2.

Таблица 4.2 Отобранные патенты

Страна

Заявитель

Название изобретения

№ патента

Авторы

Раздел классы

СССР

Проектно-конструкторско-технологическое бюро по вагонам

Устройство для смазки листовых рессор

4174767

Казаков П.А.

F16N7/32

СССР

Северокавказское производственное объединение по транспортировке и поставке газа

Пневматический нагнетатель консистентных смазок

2526859

Степкин Б.А.

F16N7/38

СССР

¾

Устройство для автономной подачи консистентных смазок

877213

¾

F16N7/14

ФРГ

¾

Смазочное устройство с резервуаром

964328

¾

F16N11/10

США

¾

Устройство для смазки трубопроводов

962717

¾

F16N7/00


.2 Назначение, устройство, принцип работы, техническая характеристика

Солидолонагнетатель (рисунок 4.1) предназначен для смазки трущихся поверхностей деталей пластичными смазками. Основными элементами солидолонагнетателя являются смонтированные на раме 9 емкость 1 для солидола с устройством его подачи 2 и приводом 10; обратный клапан 4, установленный в трубопроводе 3 дя подачи солидола; гидроцилинды 5 и 16, первый из которых выполняет роль насоса, а второй - роль его приводного двигателя; насос 17 с приводным двигателем 15; маслобак 8; распределитель 18 и пульт управления 7.

В качестве гидроцилиндров 5 и 16 используются два силовых гидроцилиндра передвижных секций механизированной крепи КМ-81Э, что существенно повышает надежность конструкции.

Солидолонагнетатель функционирует следующим образом. В начальной стадии работы гидрораспределитель 18 устанавливается в такое положение, при котором масло от насоса 17 подается в штоковую полость гидроцилиндра 15. Шток 14 последнего втягивается, а механически связанный с ним шток гидроцилиндра 5, наоборот, выдвигается. При этом объем поршневой полости гидроцилиндра 5 увеличивается до максимально возможного. Далее включается в работу механизм подачи солидола 5, заполняющий по трубопроводу 3 консистентной смазкой поршневую полость гидроцилиндра 5.


При необходимости произвести процедуру смазки, включается насос 17, а крановый распределитель 18 устанавливается в положение, обеспечивающее подачу масла в поршневую полость гидроцилиндра 16. Шток последнего, выдвигаясь и воздействуя на шток 11 гидроцилиндра 5 обеспечивает подачу смазки из поршневой полости этого гидроцилиндра по трубопроводу 6 к смазочному пистолету.

Данные по технической характеристике стационарного солидолонагнетателя сведены в таблицу 4.3

Таблица 4.3 Техническая характеристика солидолонагнетателя

Данные

Характеристика

Тип нагнетателя

Стационарный, с двумя силовыми гидроцилиндрами передвижных секций механизированной крепи КМ-81Э

Номинальная производительность раздаточного пистолета, г/мин

Не менее 150

Давление смазки на выходе, МПа

25 - 40

Номинальная производительность автономного перекачного насоса, л/мин

Не менее 3,6

Мощность электродвигателя, кВт

1

Длина рукава пистолета, м

Не менее 4

Габаритные размеры, мм

3980 -1320

Масса, кг

120


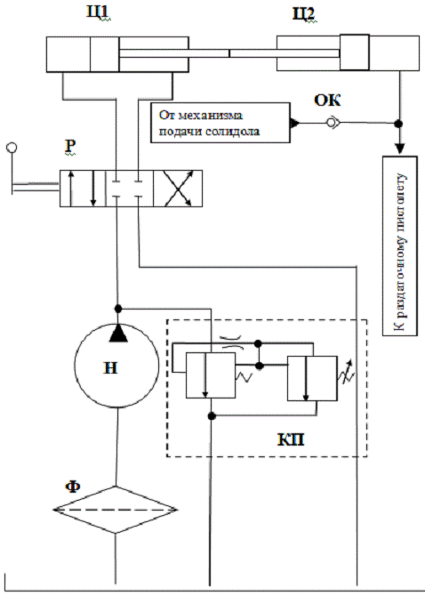
.3 Разработка гидравлической схемы стенда

Гидравлическая схема солидолонагнетателя представлена на рисунке 4.2. На этой схеме [12, 13]:

· Ц1 - гидроцилиндр-двигатель;

·        Ц2 - гидроцилиндр-насос;

·        Р - распределитель крановый "ЭРА" (номинальное давление 32 МПа);

·        Н - Насос Н-401Е (номинальное давление 32 МПа, номинальная подача 18 л/мин, частота вращения 1500 об/мин);

·        КП - двухступенчатый предохранительный клапан КПЕ-16 (номинальное давление 32 МПа, условный проход - 16 мм);

·        Ф - фильтр приемный.

·        ОК - межфланцевый обратный клапан с противовесом на рычаге.

Встроенный в солидолопровод обратный клапан ОК беспрепятственно пропускает пластичную смазку в поршневую полость гидроцилиндра-насоса и не пропускает в обратном направлении, благодаря чему смазка, выдавливаемая из поршневой полости гидроцилиндра, поступает к раздаточному пистолету.

Рисунок 4.2. Принципиальная гидросхема стенда

4.4 Расчет элементов привода устройства подачи солидола

В состав привода входят: одноступенчатый цилиндрический редуктор, приводной двигатель мощностью 1 кВТ с синхронной частотой вращения 1000 об/мин и скольжением S=7%, соединительная втулочно-пальцевая муфта и клиноременная передача.

Номинальная частота вращения двигателя [14]:


nном = 1000×(1-0,07) = 930 об/мин,

КПД привода:

h = h1×h2×h03,

Где h1 - КПД ременной передачи;

h2 - КПД заданной пары редуктора;

h03 - коэффициент учитывающий потери на трение в опорах.

h = 0,98×0,98×0,992 = 093.

Угловая скорость двигателя

, рад/с.

, рад/с.

Передаточное число

Частные передаточные числа (они равны передаточным отношением) можно принять: для редуктора по - ГОСТ 2185-66 отр. 36 (1) Uр = 2,0, для ременной передачи Uр.п. = 2,5 тогда общее передаточное отношение:

Uобщ = Uр×Uр.п.;

Uобщ = 2,0 × 2,5 = 5,0.

Крутящие моменты

Крутящий момент двигателя [15]:

, Н×м

где Рдр - требуемая мощность двигателя,

Р = 1 кВт;

nном - номинальная частота вращения двигателя, об/мин,

nном = 930 об/мин.

Крутящий момент редуктора на выходном тихоходном валу

Трдв × hр.п. × hпк × Uр.п., Н×м,

где hр.п. - КПД ременной передачи, hр.п. = 0,98

hпк - КПД подшипникового качения, hпк =0,99

Uр.п. - передаточное число ременной передачи, Uр.п. = 2,5.

Тр = 10,27 × 0,98 × 0,99 × 25 = 24,90 Н×м.

Расчет клиноременной передачи

Исходные данные для расчета:

передаваемая мощность Ртр = Рдв = 1кВт

частота вращения ведущего (большого) шкива nдв = 930 об/мин, передаточное отношение Uрп = 2,5, скольжение ремня e = 0,015.

Вращающий момент

, Н×м,

где wдв - угловая скорость двигателя;

wдв = 97,34 рад/с.

, Н×м.

Угловая скорость малого шкива

Исходя из известного значения частоты вращения элемента камеры

n1 = 35 об/мин

имеем  рад/с,

 рад/с.

Вращающий момент малого шкива

, Н×м,

, Н×м.

Диаметр малого шкива

, мм.

, мм.

Согласно 7, 8 (1) с учетом того, что диаметр шкива для ремней сечения А не должен быть, менее 125 мм, принимаем:

d1 = 200 мм.

Диаметр большого шкива

d2 = Uрп × d1 × (1 - e), мм,

где Uрп - передаточное число ременной передачи;

Uрп = 2,5;

e - скольжение ремня, e = 0,015;

d2 = 2,5 × 200 × (1 - 0.015) = 492,5, мм.

Принимаем d2 = 500 мм.

Уточняем передаточное отношение:

.

Межосевое расстояние

арпmin = 0,55 × (d1 + d2) + Т0 мм,

где Т0 - высота сечения ремня, Т0 = 10,5;

арпmin = 0,55 × (200 + 500) + 10,5 мм;

арпmax = d1 + d2 = 200 + 500 = 700 мм.

Принимаем предварительно близкое значение арп = 750 мм.

Расчетная длина ремня

, мм.

.

Выбираем по ГОСТ 1284.1 - 80 L = 2500 мм.

Уточненное значение межосевого расстояния арп с учетом стандартной длины ремня:

, мм

где w = 0,5 × П × (d1 + d2) = 0,5 × 3,14 × (200 + 500) = 1099;

y = (d1 + d2)2 = (500 - 200)2 = 90 × 103.

Тогда

Угол обхвата меньшего шкива

;

.

Коэффициент режима работы, учитывающий условия эксплуатации [16] элемента в камере при односменной работе ср = 1,0.

Коэффициент, учитывающий влияние длины ремня - для ремня сечения А длине a = 250 мм - сa = 1,09.

Коэффициент учитывающий число ремней в передаче будет от 2 до 3, причем с2 = 0,95 [17].

Число ремней в передаче

,

где Р0 - мощность передаваемая одним клиновым ремнем; для ремня сечения А при длине a = 2500 мм, работе на сливе d1 = 200 мм и Uрн < 3 мощность Ро = 2,5 кВт.

.

Принимаем z = 1.

Натяжение ветви клинового ремня

, Н

где n - скорость;

n = 0,5 × wдв; d1 = 0,5 × 97,34 × 200 + 9,7 м/с;

q - коэффициент, учитывающий влияние центробежных сил, для ремня сечения А, коэффициент q = 0,1 (н×с2)/м2;

, Н.

.5 Разработка технологической карты

Технологическая карта - это форма технологического документа, в который записан весь процесс воздействия на автомобиль или его агрегат, указанны в определенной последовательности операции, их составные части, профессия исполнителей и их местонахождения, технологическая оснастка, нормы времени, технические условия и указания [18].

Технологические карты являются первичными документами, на базе которых строится вся организация производства. Они подразделяются на операционные и постовые.

Операционные карты содержат перечень воздействий по агрегатам и узлам, системам автомобиля.

Постовые карты содержат перечень воздействий, выполняемых на конкретном посту.

Технологическая карта сведена в таблицу 4.4

Таблица 4.4 Технологическая карта на выполнение ТО-1

Смазочные работы по автобусу ЛиАЗ-667М

Исполнитель - смазчик - 3 разряда

Тобщ = 22 чел-мин

Наименование операций

Число точек обслуживания

Инструмент и оборудование

Норма времени, чел-мин

Технические условия

Смазать:


Стационарный солидоло нагнетатель на посту зоны ТО-1. Смазочный пистолет, ветошь, металлическая щетка.


Предварительно очистить от грязи и пыли масленку. Убедиться в полноте смазки по ее появлению из соединения. Старую смазку убрать ветошью.

1 Рулевые тяги

4


2


2 Шкворневые соединения

4


2


3 Пальцы тормозных колодок, регулировочные рычаги и втулки тормозных кулаков переднего моста

8


6


4 Пальцы тормозных колодок, регулировочные рычаги и втулки тормозных кулаков заднего моста

8


6


5 Привод механизма переключения КПП

1


0,5


6 Оси рычагов управления сцепления и тормозов

4


2


7 Крестовины карданного вала и шлицевое соединение

3


1,5


8 Подшипник выжимной сцепления

1


0,5


9 Турбина вентилятора

1


0,5


10 Вал водяного насоса.

1


0,5


11 Натяжной ролик

1


0,5



5. Охрана труда и техника безопасности

.1 Требования безопасности при ТО и ТР автомобилей

В процессе ТО и ТР могут иметь место следующие опасные и вредные производственные факторы [19, 20]:

- движущиеся автомобили, машины и механизмы; незащищенные подвижные части производственного оборудования; передвигающиеся изделия, заготовки, материалы;

·   загроможденность рабочих мест готовой продукцией, инструментами, приспособлениями, материалами;

·   неправильная расстановка автомобилей в помещениях;

·   отсутствие специальных приспособлений, инструментов и оборудования для ведения работ в соответствии с принятой технологией;

·   повышенная загазованность и запыленность воздуха рабочей зоны;

·   повышенная температура поверхности оборудования, материалов;

·   повышенные или пониженные температура, влажность и подвижность воздуха рабочей зоны;

·   незащищенные токоведущие части электрооборудования;

·   недостаточная освещенность рабочей зоны;

·   вредные компоненты в составе применяемых материалов, воздействующие на организм работающих.

При проведении ТО и ТР необходимо соблюдать требования соответствующих государственных стандартов, правил и других нормативных документов.

Техническое обслуживание и ремонт автомобилей должны проводится в специально предназначенных для этой цели местах (постах), оснащенных необходимыми устройствами, приборами, приспособлениями, оборудованием и инструментами. При этом автомобили, направляемые на посты ТО и ТР, должны быть очищены от грязи, снега и вымыты.

Автомобиль, установленный на напольный пост, необходимо надежно закрепить путем постановки не менее двух упоров под колеса, затормозить стояночным тормозом. При этом рычаг коробки передач должен быть установлен в положение низшей передачи. На рулевое колесо необходимо навесить табличку: «Двигатель не пускать, работают люди».

При обслуживании автомобиля на подъемнике на механизм управления следует навесить табличку: «Не трогать, работают люди». В рабочем положении плунжер подъемника должен быть надежно зафиксирован упором, предотвращающим самопроизвольное опускание подъемника.

Посты на поточных линиях должны быть оборудованы сигнализацией с обратной связью, предупреждающей работающих на линии о моменте начала движения автомобиля с поста на пост.

Кроме того, на каждом посту должно быть устройство для экстренной остановки процесса передвижения автомобилей.

Агрегаты и узлы массой более 20 кг допускается снимать, транспортировать и устанавливать только при помощи подъемно-транспортных механизмов, оборудованных приспособлениями, обеспечивающими полную безопасность работ. Снятие с автомобиля деталей и агрегатов, заполненных жидкостями, следует производить только после полного удаления (слива) этих жидкостей. При работе с высоко расположенными агрегатами (деталями) автомобиля следует применять устойчивые подставки или стремянки.

Работники, выполняющие работы, лежа под автомобилем, должны быть, обеспечены лежаками. Работать без лежаков на полу и земле запрещается. Запрещается поднимать автомобиль за буксирные крюки, находиться под автомобилем, приподнятым домкратом без установки специальных страхующих подставок.

Снятие деталей, с приложением значительных усилий, следует производить с помощью съемников. Снятие и установку рессор следует осуществлять после разгрузки их от массы автомобиля. Монтаж и демонтаж шины следует проводить только при помощи предназначенных для этого оборудования, устройств, приспособлений и инструментов с применением специальных ограждений. Испытание тормозов автомобиля необходимо осуществлять на стенде. Все работы, связанные с ремонтом и обслуживанием аккумуляторных батарей, необходимо проводить в специально оборудованных помещениях. При проведении ТО и ТР использовать только исправное оборудование, приспособления и инструменты. Они должны отвечать характеру выполняемой работы. Электроустановки и электроинструменты должны иметь надежное заземление.

В целях исключения возможности возгорания горючих материалов сварочные работы, непосредственно на автомобиле, следует проводить согласно требованиям специального государственного стандарта. Пайку и сварку емкостей из-под горюче-смазочных веществ необходимо осуществлять только после полного удаления этих веществ и их паров путем специальной обработки.

ТО и ТР автомобиля следует осуществлять при неработающем двигателе, за исключением случаев, когда работа двигателя необходима в процессе обслуживания. Пуск двигателя и трогание автомобиля с места следует производить при условии обеспечения безопасности работающих с данным автомобилем, а также лиц, находящихся вблизи него.

Полы производственных помещений должны быть ровными, стойкими к воздействию агрессивных веществ, иметь уклоны для стока воды. Помещения для ТО и ТР должны быть оборудованы приточно-вытяжной вентиляцией. Помещения и посты, на которых проводят технологические операции с работающим двигателем, должны быть оборудованы устройствами для удаления отработавших газов.

Производственное оборудование и рабочие места следует размещать с учетом работы и безопасности работающих. Каждое рабочее место должно быть полностью оборудовано необходимыми средствами в зависимости от вида выполняемых работ. Рабочие места не должны загромождаться, их следует содержать в чистоте, помещения с холодным полом должны быть укомплектованы деревянными подножными решетками.

Рабочие и ИТР допускаются к работе после их обучения, инструктажа и проверки знаний по охране труда и пожарной безопасности. Работающие должны быть обеспечены спецодеждой, спецобувью и средствами индивидуальной защиты.

5.2 Меры пожарной безопасности

Пожарная безопасность АТП должна отвечать требованиям соответствующих государственных стандартов, Привил и других нормативных документов [21].

Основными причинами возникновения пожаров на АТП являются: неосторожное обращение с открытым огнём; нарушение правил пожарной безопасности при сварочных и других огневых работах; неисправность электрооборудования, освещения и отопительных приборов; самовозгорание промасленных обтирочных материалов; нарушение правил эксплуатации и хранения легковоспламеняющихся и горючих веществ и другие.

На АТП должна быть создана добровольная пожарная дружина, организованы своевременный противопожарный инструктаж и занятия по пожарно-техническому минимуму, обеспечена связь с пожарной частью. На территории, производственных, складских и других помещений необходимо установить строгий противопожарный режим. Должны быть назначены лица, ответственные за обеспечение пожарной безопасности. Для обеспечения быстрой эвакуации людей, автомобилей и оборудования следует разработать план эвакуации.

Все помещения АТП должны быть оборудованы средствами пожаротушения в соответствии с пожарными нормами - это огнетушители, ящики с песком, пожарные краны, пожарные щиты, емкости с водой, покрывала и другие. Подступы и проходы к пожарному инвентарю и оборудованию должны быть всегда свободными. Средства пажаротушения должны содержаться в исправном состоянии, и находиться на видном месте.

Территорию АТП необходимо содержать в чистоте и систематически очищать от производственных отходов. По окончании каждой смены на рабочих местах убирать мусор и отходы, разлитые топливно-смазочные материалы надо немедленно убирать при помощи песка или опилок. Промасленные обтирочные материалы и отходы следует собирать в металлические ящики с крышками, установленные вне помещения. Для хранения легковоспламеняющихся и горючих веществ определяют места и устанавливают допустимые количества их единовременного хранения. Курение в производственных помещениях допускается только в специально отведенных для этого местах, оборудованных резервуарами с водой и урнами.

На территории АТП следует оборудовать подземный пожарный водоем с запасом воды для тушения возникшего пожара. На противопожарном водопроводе в специальных колодцах, закрытых крышкой, должны быть установлены пожарные гидранты.

В производственных помещениях запрещается:

·   пользоваться открытым огнем, паяльными лампами и др. там, где применяются легковоспламеняющиеся и горючие вещества;

·   мыть детали, агрегаты бензином или керосином;

·   ставить на пост автомобили при наличии подтекания топлива, а также заправлять автомобили топливом или сливать топливо из бака, оставляя открытыми отверстия бензобаков;

·   хранить пожарную тару из-под топлива и смазочных материалов;

·   курение в не отведенных для этого местах;

·   загромождать проходы к месту расположения средств пожаротушения;

·   оставлять в помещениях электрооборудование и приборы, включенные в электросеть;

·   оставлять включенным зажигание автомобилей;

·   держать в цехах легковоспламеняющиеся и горючие жидкости в количестве, превышающем сменную потребность.

В целях предотвращения возникновения пожара на автомобиле не допускается:

·   скопление на двигателе и его картере грязи и масла;

·   эксплуатация неисправных приборов системы питания;

·   курение в автомобиле и в непосредственной близости от приборов системы питания;

·   подогрев двигателя открытым пламенем;

·   эксплуатация газобаллонного автомобиля с неисправной газовой аппаратурой и при наличии утечки газа через неплотности.

При возгорании автомобиля его необходимо удалить из помещения и принять меры к тушению пожара. В случае возникновения пожара независимо от применяемых мер по его тушению вызвать пожарную команду. В производственных помещениях должны быть вывешены таблицы с номерами телефонов ближайшей пожарной части и лиц, ответственных за пожарную безопасность.

.3 Расчет количества воздуха для вентиляции помещения зоны ТО-1

При работе автомобильных двигателей даже незначительное время в воздух ремонтных помещений выделяется огромное количество вредных веществ в виде отработавших газов автомобилей. Поэтому во всех закрытых помещениях АТП, где находятся автомобили и хотя бы кратковременно работают двигатели, следует предусматривать принудительную общеобменную вентиляцию, обеспечивающую разбавление и удаление вредных газовых веществ до предельно допустимых концентраций (ПДК).

При работе карбюраторных двигателей на этилированном бензине наиболее вредными компонентами отработавших газов являются окись углерода и аэрозоли свинца. При работе дизельных двигателей наиболее вредными компонентами отработавших газов являются окись углерода, окислы азота и акролеин (акриловый альдегид). Поэтому объемы вентиляционного воздуха в производственных помещениях определяются исходя из содержания указанных вредностей в отработавших газах и их ПДК в рабочих зонах.

Поскольку вредные вышеуказанные газы являются веществами однонаправленного действия, то расчет воздухообмена производится путем суммирования объемов воздуха, необходимого для разбавления в отдельности каждого вредного вещества до его ПДК.

Если в помещении находятся как карбюраторные, так и дизельные автомобили, то количество воздуха для вентиляции помещения определяется суммированием объемов воздуха, рассчитываемых по каждому типу автомобилей.

Поскольку не всегда возможно определить количество аэрозолей свинца, выделяющихся при работе карбюраторных двигателей на этилированном бензине, вследствие того, что часто отсутствуют данные о содержании тетраэтилсвинца в бензине, то воздухообмен рассчитывается только по количеству окиси углерода с поправочным коэффициентом К1 = 1.2, который учитывает объем воздуха, необходимый для разбавления аэрозолей свинца.

Так как объем воздуха, необходимый для разбавления окиси углерода и окислов азота, выделяющихся при работе дизельных двигателей, в сумме составляет примерно 3% от объема воздуха для растворения акролеина, то расчет воздухообмена можно производить только по количеству выделяющегося акролеина, как наиболее вредного вещества с поправочным коэффициентом К2 = 1.03, который учитывает потребное количество воздуха для разбавления окиси углерода и окислов азота.

Количество вредных веществ, выделяющихся в помещение при работе двигателей, зависит от расхода сжигаемого топлива. Часовой расход топлива одним карбюраторным и одним дизельным двигателем при скорости движения автомобиля в помещении 5 км/ч определяется по формулам соответственно:

g = 0.6 + 0.8V,

q = 160 + 13.5U,

где g и q - расход топлива, кг/ч;

V и U - рабочий объем цилиндров карбюраторного и дизельного двигателей соответственно, л.

для ЛАЗ-695 V = 6 л;

для MAN-232 U = 10.8 л.

Тогда имеем:

g = 5.4 кг/ч;

q = 305.8 кг/ч.

Для карбюраторного и дизельного двигателя соответственно.

При определении количества воздуха для вентиляции помещений, оборудованных шланговым отсосом следует учитывать только те вредные выделения, которые поступают через неплотности шлангов. Поэтому в зоне обслуживания и ремонта автомобилей принимают коэффициент Р = 0.1, а на испытательной станции Р = 0.05. При отсутствии шлангового отсоса принимают Р = 1.0.

Тогда количество окиси углерода и акролеина, поступающих в воздух за один час работы карбюраторного и дизельного двигателей при движении автомобилей в помещении, определяется по формулам соответственно:

G = 15gPPco/100,

S = qPPa/100,

где G и S - количество окиси углерода и акролеина, кг/ч;

Рсо и Ра - содержание окиси углерода и акролеина в отработавших газах при движении карбюраторного и дизельного автомобилей, %;

Р - коэффициент, учитывающий применение шлангового отсоса;

- количество отработавших газов, получившихся при сгорании 1 кг топлива в карбюраторном двигателе, кг.

Согласно задания :

Рсо = 4%;

Ра = 0.037%.

Подставив значения, имеем:

G = 3.24 кг/ч;

S = 0.113 кг/ч.

Объем воздуха, необходимый для разбавления выделяющихся газов при работе карбюраторных автомобилей, определяется по формуле:

W1 = 10х6 GTNK1/60m,

где W1 - объем воздуха необходимый для вентиляции помещения, мі/ч;

Т - средняя продолжительность работы двигателя, мин;

N - количество работающих в течении часа карбюраторных автомобилей;

m - ПДК окиси углерода в рабочей зоне, мг/мі (m = 20 мг/мі).

Согласно заданию:

Т = 4 мин;

N = 0.5;

Далее имеем:

W1 = 6480 мі/ч.

Объем воздуха, необходимый для растворения выделяющихся газов при работе дизельных автомобилей, определяется по формуле:

W2 = 10х6 STMK2/60n,

где W2 - объем воздуха, необходимый для вентиляции помещения, мі/ч;

М - количество работающих в течении часа дизельных автомобилей;

n - ПДК акролеина в рабочей зоне, мг/мі (n = 0.2 мг/мі).

Подставив числовые значения, имеем:

W2 = 19398.33 мі/ч.

Общий объем воздуха, необходимый для вентиляции помещения, определяется по формуле:

W = W1 + W2, мі/ч

W = 25878.33 мі/ч.

Кратность обмена воздуха в помещении определяется по формуле:

Ко = W/Vn,

где W - объем вентиляционного воздуха, мі/ч;

Vn - объем помещения, мі, Vn = 7776 мі.

Тогда:

Ко = 3.32.

Для помещения ТО и ТР автомобилей кратность воздухообмена должна быть Ко >= 2.

6. Промышленная экология

Экология - это наука, изучающая методы защиты окружающей среды от негативных факторов различного происхождения, в том числе и от жизнедеятельности людей. Часто человек небережно относится к естественной окружающей среде, засоряя и уничтожая ее, а затем отчетливо ощущает последствия своих действий. Вмешательство человека в окружающую среду увеличивается по мере развития цивилизации и промышленности. К концу 20 века перед человечеством встала проблема необходимости защиты от самого себя. Воздействия ряда сложных взаимообусловленных факторов привело к нарушению биологического равновесия в нашем мире в системе человек - природа. Бурное развитие научно-промышленной цивилизации, демографический взрыв, недостаточность требований по защите окружающей среды, предъявлявшихся к развивающейся промышленности в прошлом, постепенное сокращение свободных, неразделанных территорий, а также бесплановое развитие городских зон способствовало исчезновению некоторых форм растительной и животной жизни.

В настоящее время этот процесс нельзя ни остановить, ни затормозить. Для нашего человека характерны крупные и быстро происходящие изменения в естественной среде. Промышленность и автомобильный транспорт в устрашающем темпе загрязняют реки, отравляют воду и воздух [22, 23].

В 20 веке появился новый опасный источник загрязнения атмосферы - тепловые двигатели. Интенсивное развитие автомобилизации во всем мире после второй мировой войны способствовало значительному по своим последствиям загрязнению воздуха отработавшими газами, особенно опасному в городских и промышленных центрах, а также на территориях прохождения путей сообщения. В настоящее время автомобильный транспорт оказывает значительное влияние на формирование санитарных условий крупных городов и населенных пунктов. Опасность воздействия отработавших газов автомобилей увеличивается вследствие того, что вредные компоненты этих газов выбрасываются непосредственно в атмосферу, окружающую людей, на заселенных территориях, где естественный обмен воздуха ограничен вследствие плотной застройки.

Если не принимать специальных мер, то негативное воздействие на окружающую среду будет все возрастать, приводя к росту заболеваний, в том числе передаваемых по наследству, и сокращению продолжительности жизни людей. Под специальными мерами, направленными на предотвращение негативного воздействия вредных веществ на окружающую среду, следует понимать не только работы по оптимизации конструктивно-регулировочных параметров ДВС и транспортных средств, разработке средств и способов по нейтрализации вредных веществ, содержащихся в отработавших газах и изменению физико-химического состава топлив. К этому надо отнести также работы по поддержанию нормального технического состояния ДВС и транспортных средств, оптимизацию структуры транспортного парка на предприятиях и регулированию транспортных потоков в населенных пунктах.

Экологическая безопасность автотранспортных средств и двигателей внутреннего сгорания - это система мер, направленных на снижение вредного воздействия ДВС на окружающую среду.

.1 Защита окружающей среды от вредного воздействия оксида углерода

Оксид углерода (СО) - бесцветный газ, не имеющий запаха и вкуса, легче воздуха, в воде не растворяется. В отработавших газах оксид углерода присутствует как результат неполного сгорания воздуха, из-за недостатка кислорода. В организм человека поступает с воздухом через дыхательные пути, соединяется с гемоглобином крови, образуя в легких карбоксильную группу. В результате гемоглобин, блокированный СО, перестает переносить кислород в клетки организма и забирать углекислый газ из них, вследствие чего наступает кислородное голодание (удушье) и нарушается центральная нервная система.

При содержании в воздухе окиси углерода выше 0,02% по объему при вдыхании в течение нескольких часов вызывает легкое отравление. Вдыхание воздуха с 0,12% СО через 1,5 часа вызывает головокружение, а через 2 часа - головную боль. Концентрация в воздухе окиси углерода 0,20-0,25% через 30 минут приводит к обморочному состоянию.

Опасность отравления возникает в закрытых непроветриваемых или плохо проветриваемых помещениях рядом с работающим двигателем. Особо опасная ситуация возникает в закрытых непроветриваемых гаражах и в случае если отработавшие газы поступают в плохо герметизированную кабину автомобиля.

Отравление оксидом углерода при повышенных концентрациях ослабляет внимание, замедляет реакцию, снижает работоспособность.

Оксид углерода является одним из основных токсичных веществ, образующихся при сгорании топлива внутри цилиндра и характерен для бензиновых двигателей.

Оксид углерода в процессах горения является промежуточным продуктом. Он образуется в результате многостадийного процесса окисления углеводородного топлива.

Так как современные двигатели очень быстроходны и процесс сгорания краток, то в какой-то момент такта расширения окисление СО прекращается и с отработавшими газами оксид углерода выбрасывается в атмосферу. В карбюраторном двигателе содержание CO может достигать концентрации 10% по объему за счет недостатка кислорода при переобогащении смеси.

В дизельном двигателе, в результате интенсивного сгорания СО в такте расширения и выпуска при общем большом избытке кислорода (воздуха) количество СО не превышает 0,2% по объему.

При работе двигателя на холостом ходу и малых нагрузках резко ухудшается газообмен, увеличивается количество остаточных газов в цилиндрах. Для компенсации этого необходимо обогащать смесь, что приводит к увеличению концентрации СО. На режимах полных нагрузок для обеспечения максимальной мощности двигателя смесь необходимо обогащать. При этом концентрация СО может возрастать до значения 3¸4 по объему.

Повышение температуры воздуха перед карбюратором также увеличивает концентрацию СО.

Основная причина загрязнения воздуха заключается в неполном сгорании топлива. В отработавших газах двигателя внутреннего сгорания (ДВС) содержится свыше 170 вредных компонентов, из них 160 - производные углеводородов. До настоящего времени развитие высокооборотных двигателей внутреннего сгорания шло в направлении достижения наибольшей литровой мощности при минимальном удельном расходе топлива. Обе проблемы весьма тесно связанны с протеканием процесса сгорания, с процессом образования смеси, а также с кинетикой и динамикой химических реакций.

Доскональное изучение процессов образования топливовоздушной смеси и кинетики химических реакций, происходящих между реагентами, является основной для познавания и управления процессом сгорания с целью сокращения времени его протекания и достижения полноты сгорания топлива. В поршневом двигателе сгорание топлива происходит при участии процессов, одновременно ускоряющих и тормозящих реакцию окисления. Тепло, выделяющееся при сгорании топлива, способствует повышению температуры заряда смеси в камере сгорания, в результате чего ускоряется процесс испарения топлива и увеличивается давление, замораживающее испарение. Паровая фаза топлива, окисляясь в состоянии описанного равновесия, взаимодействует со слоем отработавших газов с малым содержанием кислорода.

Паровая фаза проникает в этот слой посредством диффузии, протекание которой зависит от давления и температуры рабочего тела в камере сгорания. В ходе указанных процессов внутри капли топлива происходит ряд противоположных реакций.

Под действием высокого давления происходит процесс крекинга жидких углеводородов, ведущих к образованию более легких продуктов и свободных радикалов, которые легко диффундируют и быстрее соединяются с кислородом. Крекинг жидкой фазы топлива может привести к образованию свободного водорода и графитного углерода, на поверхности которого происходят сорбционные процессы. Одновременно с этим процессом протекают противоположные процессы, приводящие к образованию более больших частиц. Основными из этих процессов являются полимеризация и конденсация более легких углеводородов.

Все указанные противоположные процессы, связанные с вихревым движением заряда смеси и изменением его состава и зависящие от меняющихся условий в камере сгорания, определяют состав отработавших газов.

Уровень теоретических работ в данное время не позволяет полностью использовать имеющиеся в этой области сведения для оптимизации процессов сгорания. В последнее время особенно интенсивно используется проблема целостности процесса сгорания посредством анализа отработавших газов. Конечная стадия сгорания условно называемая периодом дожигания, представляет собой весьма сложную и менее изученную часть процесса сгорания. Существуют точки зрения, согласно которым на данной стадии следует искать причины образования продуктов неполного сгорания в составе отработавших газов.

Как говорилось выше, конечной стадией сгорания углеводов является реакция дожигания окиси углерода, в действительности начинающаяся уже в начальной стадии сгорания. Даже при сгорании бедных смесей со значительным избытком воздуха вследствие локальных различий в составе смеси образуется окись углерода. Процесс дожигания СО в углеводородном пламени определяет время реакции. Присутствие углеводородов сильно затормаживает процесс окисления СО. Это связанно с тем, что атомы водорода, ведущие цепь окисления, соединяются с молекулами углерода, образуя алкеновые радикалы.

Вероятность возникновения последней реакции больше, чем вероятность реакции между атомами водорода и кислорода. В камере сгорания всегда присутствует водяной пар, а для реакции окисления СО примесь водяного пара имеет важное значение.

Механизм окисления СО тесно связан с механизмом окисления углерода.

. СО+ОН-СО2+Н         2. Н+О2-ОН+О.

При сгорании смеси с избытком топлива активные радикалы вызывают процессы полимеризации, ведущие к образованию групп углеводородов. Которые под действием температуры разлагаются на углерод в виде графита и водород. Ацетилен является последним продуктом, который образуется перед появлением углерода.

Защитить окружающую среду от негативных факторов и окиси углеводорода можно, например уменьшением токсичности отработавших газов путем изменения регулировки и конструкции двигателя, присадками в топливо, уменьшющими дымность и токсичность отработавших газов.

Усовершенствования, проводимые с целью уменьшения токсичности отработавших газов, касаются в основном системы питания двигателя, угла опережения зажигания (впрыска топлива), частоты вращения вала на холостом ходу, способа подготовки смесей и более равномерного распределения ее по цилиндрам в карбюраторных двигателях, а также конструкции камер сгорания.

В целях уменьшения токсичных выбросов было разработано много вариантов конструкции двигателей, а также исследованы другие способы воздействия на процесс сгорания. В настоящее время осуществляется ряд мероприятий, связанных с производством двигателей, которые позволяют уменьшить содержание некоторых или всех токсичных компонентов в отработавших газах.

Равномерное распределение топливовоздушной смеси по отдельным цилиндрам и циклам работы двигателя можно обеспечить путем применения непосредственного впрыска топлива или улучшения условий испарения топлива в карбюраторе и во впускном трубопроводе. Состав и качество образуемой смеси в каждом отдельном случае должны соответствовать режимам нагрузки и частоте вращения вала двигателя. Только этим можно достичь значительного уменьшения выбросов СО с отработавшими газами. Другие параметры работы и конструкции двигателя, а также условия его эксплуатации практически не оказывают влияния на выброс СО.

Хорошие результаты можно получить в результате правильного выбора формы и размера камеры сгорания, чем обеспечивается минимальный объем зоны гашения.

Все применяемые в настоящее время способы уменьшения токсичности выбросов по всем основным компонентам основаны на комбинации выше рассмотренных методов. На практике чаще всего используют способы, основанные на следующих принципах:

уменьшение выбросов СО обеспечивается, обеднением рабочей смеси и изменением угла опережения зажигания, причем эти параметры подбираются оптимально на каждом режиме работы двигателя. Устойчивая работа на обедненных смесях улучшается достижением качества смесеобразования и увеличения энергии искры, для чего применяют, например, непосредственный впрыск и транзисторное зажигание;

в карбюраторных двигателях во всех случаях используют, кроме того, специальные устройства для подачи дополнительного воздуха во впускной трубопровод на режимах разгона и торможения автомобиля.

Одним из широко распространенных методов очистки вредных газов является пропускание их через различные аппараты, которые либо задерживают токсичные вещества, осаждая их на поверхности наполнителя или растворяя в жидкостях, либо предварительно химически связывают компоненты газов и задерживают продукты химических реакций. Иногда для обеспечения течения этих процессов на газы приходится воздействовать электрическим током или ультразвуком. Все аппараты для обезвреживания отработавших газов двигателя по принципу действия могут быть разделены на три большие группы.

Первая группа - устройства, задерживающие вредные вещества. Их называют фильтрами.

Вторая группа - устройства, где происходит воздействие на составляющие аэрозоли (дожигание несгоревших компонентов, химическое преобразование вредных веществ и т.д.). Такие аппараты называют нейтрализаторами. Благодаря им вредные вещества нейтрализуются, т.е. превращаются в продукты, не влияющие на здоровье человека.

Третья группа - аппараты, сочетающие в себе признаки первой и второй группы, они могут быть названы газоочистителями или системой газоочистки.

Стендовые и ходовые испытания нейтрализаторов, проведенные на отечественных карбюраторных двигателях, показали, что они обеспечивают практически полную очистку отработавших газов от оксида углерода на всех нагрузочных режимах прогретого двигателя.

Наиболее перспективным методом уменьшения содержания СО в отработавших газах является оптимизация процесса сгорания, так как продукты неполного сгорания СО легче нейтрализуются на стадии их образования, чем в выпускной системе с помощью нейтрализаторов.

Расслоение зарядов смеси достигается направленной подачей обогащенной смеси к свече зажигания, а бедной смеси - в периферийную зону.

Расслоение заряда обеспечивает минимальное образование СО с концентрацией не более 0,2% по объему. Выброс углеводородных соединений снижается за счет меньших концентраций топлива в бедной смеси основной камеры и соответственно у стенок камеры сгорания.

Расслоение заряда смеси обеспечивает устойчивое сгорание топливовоздушной смеси до a= 2 - 2,5, то есть очень обедненных смесей, что снижает содержание СО.

Все разработанные и используемые методы совершенствования качества смесеобразования в карбюраторных двигателях способствуют уменьшению количества токсичных выбросов. Однако достигнутые результаты не в полной мере удовлетворяют требованиям по защите атмосферного воздуха. Только использование системы непосредственного впрыска топлива в двигателях с искровым зажиганием позволяет решить ряд трудных проблем. Данная система практически полностью обеспечивает условия для равномерного распределения смеси по отдельным цилиндрам. Благодаря непосредственному впрыску топлива в пространство перед впускным клапаном достигается хорошее распыление топлива, и смешивание его с воздухом, при этом на стенках впускного трубопровода не оседают капли топлива.

При непосредственном впрыске топлива двигатель может устойчиво работать на обедненных смесях, на всех режимах и только на режиме полной нагрузки (в целях получения максимальной мощности) он работает на богатой смеси. Однако правильную дозировку впрыскиваемого топлива в соответствии с изменяющимися режимами работы двигателя можно обеспечить только при использовании системы непосредственного впрыска топлива с электронным управлением, который обладает следующими преимуществами перед карбюраторными системами:

точная дозировка топлива заданного состава на всех нагрузочных и скоростных режимах;

более равномерное распределение топлива по цилиндрам двигателя;

наименьшая токсичность выхлопа на режимах пуска и прогрева двигателя;

возможность автоматической регулировки цикловой подачи топлива в зависимости от температуры и давления окружающей среды;

автоматическое выключение подачи топлива в режиме принудительного холостого хода;

возможность снижения степени сжатия на 0,5¸1 без падения номинальной мощности.

В результате применения электронного впрыска топлива концентрация СО может быть снижена на 50%.

В какой-то момент работы двигателя мощность искрового заряда оказывается недостаточной для нагрева свежего заряда до температуры воспламенения. Повышение энергии искрового заряда улучшает экономичность и снижает токсичность отработавших газов при работе двигателя на частичных нагрузках.

Получение высокой энергии искрового разряда достигается применением электронных систем зажигания. Такие системы уменьшают нагар на изоляторах свечи и количество испарившегося топлива в искровом промежутке, улучшают характеристику разряда.

Электронные системы бесконтактного зажигания позволяют стабилизировать момент зажигания в цилиндре двигателя, а отсутствие контактных пар увеличивает долговечность системы.

Различают два основных направления - транзисторное и тиристорное зажигание.

У двигателей, оборудованных электронной системой зажигания, выделение СО с отработавшим газами на 20% ниже, чем у двигателей с обычной системой зажигания. Концентрация CO изменяется в зависимости от числа оборотов и применяемой системы зажигания.

Повышение качества изготовления, снижение допусков на расходные характеристики дозирующих элементов карбюраторов может обеспечить снижение выбросов СО на 30 - 35%.

Ограничение цикловой подачи у дизелей на 30% от номинальной приводит к 70 - 80% снижению выбросов СО.

Помимо технических способов уменьшение выброса оксида углерода в окружающую среду можно изменить выбором рациональных режимов движения автомобильного транспорта в городах.

На концентрацию СО в отработавших газах двигателя влияет множество факторов организационного типа: число разгонов, торможений и переключений передач, продолжительность работы на холостом ходу, число перекрестков и время простоя на них, а также другие факторы.

трудоемкость ремонт солидолонагнетатель

7. Расчет ФЭП бизнес-плана по внедрению стационарного солидолонагнетателя

Солидолонагнетатель предназначен для смазки трущихся поверхностей деталей пластинчатыми смазками. Внедряем на АТП с целью облегчения физического труда, повышения производительности труда при смазке.

В настоящее время на посту смазки зоны имеется неисправный солидолонагнетатель, которой не подлежит восстановлению. Поэтому смазочные работы ведутся ручными солидолонагнетателями. Данный способ имеет следующие недостатки:

низкая производительность смазочных работ;

затраты на заправку солидолонагнетателя.

Внедрение солидолонагнетателя позволит повысить производительность работ, а также позволит сократить затраты времени на дозаправку солидолонагнетателя.

В данной главе производится расчёт экономической эффективности внедрения солидолонагнетателя.

В среднем на посту смазки смазывается 16 автомобилей за рабочий день. Производительность ручного способа составляет 2 автомобиля в час. При использовании солидолонагнетателя производительность повышается до 2,7 автомобилей в час.

Трудоемкость проведения смазочных работ:

, ед.-час, (7.1)

где П − производительность.

до внедрения ед.-час

после внедрения ед.-час.

, авто. (7.2)

В день смазывают n=16 автомобилей. Число дней работы зоны ТО в год составляет =365.

В год смазывается:

N=16∙365»5551 автомобилей.

Общая трудоемкость работ по смазке в год составляет:

ед.-час. (7.3)

до внедрения: ед.-час;

после внедрения: ед.-час.

Зарплата слесарей смазчиков:

, тенге (7.4)

где =29,95 тенге − тарифная ставка слесаря 3 разряда;

,8 − коэффициент, учитывающий дополнительную зарплату (доплата, премии);

до внедрения: тенге;

после внедрения: ед.-час.

Определяются затраты на электроэнергию:

, тенге (7.5)

где  − установленная мощность электродвигателя, кВт;

 − стоимость 1кВт электроэнергии, тенге.

до внедрения

после внедрения тенге в год.

 

Таблица 7.1 Покупные детали

Наименование таблицы

Кол-во

Цена одной детали, тенге

Общая ст-ть, тенге

1. Электродвигатель 4АМ

1

1300

1300

2. Гидронасос М=400Е

1

1560

1560

3. Гидрораспределитель "ЭРА"

1

370

370

4. Приборы управления

1

145

145

5. Гидродомкрат

2

748

1496

6. Раздаточный пистолет

1

532

532

6. Шланг резиновый 4м d20

1

200

200

Итого

5603


Затраты на покупку деталей взяты на основе рыночных цен.

Таблица 7.2 Зарплата рабочим-изготовителям

Наименование работ

Трудоемкость, чел час

Разряд

Тарифная ставка, тенге/час

ЗП, тенге

Токарные

8

3

26,14

209,1

Слесарные

5

3

26,14

130,7

Сварочные

6

3

26,14

156,8

Фрезерный

8

4

28,10

221,8

Сборочные и монтажные

8

3

26,14

209,1

Итого

1067


Тарифные ставки взяты с учетом тарифных ставок на АТП.

Таблица 7.3 Покупные материалы

Наименование материала

Ед. изм.

Ст-ть одной ед., тенге

Итого ед.

Общая ст-ть, тенге

1 Швеллер 10

Кг

32,8

30

984

2 Уголок 25

Кг

32,8

20

656

3 Сталь 2 листовая

Кг

5,39

16

86,24

4 Шайбы обыкновенные

Кг

10,5

0,5

5,25

5 Шайбы пружинные

Кг

12,11

0,26

3,2

6 Болты с гайками

Кг

18,65

1

18,65

7 Круг В 140 ГОСТ 7417 − 75/45-б-2

Кг

8,21

18

147,8

8 Круг В 120/Ст 20

Кг

8,21

12

38,52

9 Сталь 12 листовая

Кг

8,4

20

168

10 Шплинт 6,3∙28−0,1

Кг

15,3

0,1

1,53

Итого

2170


Цены на материалы взяты по прейскуранту цен с учетом переводного коэффициента К=35.

Определяется ЗП рабочих, занятых в изготовлении, с учетом дополнительной ЗП.

тенге.

Определяются накладные расходы, составляющие 150% от общей ЗП:

НР=∙150/100, тенге.

НР=1678∙1,5=2517 тенге.

При расчете стоимости солидолонагнетателя необходимо учесть дополнительные затраты на монтаж солидолонагнетателя в размере 6−9% от его стоимости:

, тенге; (7.7)

, тенге.

Определяется стоимость внедряемого солидолонагнетателя.

, тенге; (7.8)

, тенге.

Стоимость существующего солидолонагнетателя тенге, взята на основе рыночных цен.

Определяются затраты на ТО и ТР солидолонагнетателя:

, тенге. (7.9)

тенге.

Определяются затраты на КР солидолонагнетателя:

, тенге. (7.10)

тенге.

Амортизационные отчисления на полное восстановление солидолонагнетателя составляют:

, тенге. (7.11)

тенге.

Итого эксплуатационных затрат:

, тенге. (7.12)

до внедрения: тенге;

после внедрения:  тенге

Маркетинговые затраты после внедрения составят:

, тенге (7.13)

тенге.

Итого затрат:

, тенге. (7.14)

тенге.

Годовая экономия составит:

, тенге. (7.15)

Сопутствующие капитальные затраты:

 (7.16)

где S − площадь занимаемая солидолонагнетателем, м. кв,

 − стоимость 1кв. м площади, тенге.

тенге.

Итого капитальных вложений:

, тенге. (7.17)

до внедрения: тенге;

после внедрения: тенге.

Дополнительные капитальные вложения:

, тенге. (7.18)

тенге.

Срок окупаемости капитальных вложений:

, года. (7.19)

Коэффициент экономической эффективности:

. (7.20)

Таблица 7.4 Финансово-экономические показатели бизнес-плана АТП по внедрению стационарного солидолонагнетателя

Показатели

До внедрения

После внедрения

1 Производительность в час, авто.

2

2,7

2 Трудоемкость, чел.-ч.

0,5

0,37

3 Количество смазываемых автомобилей в год, ед.

5551

5551

4 Годовая трудоемкость смазочных работ, чел.-ч.

2776

2054

5 Зарплата слесарей, тг.

149654

110731

6 Затраты на электроэнергию, тг.

6162

7 Затраты на ТО и ТР солидолонагнетателя, тг.

1277

8 Затраты на КР солидолонагнетателя, тг.

498

9 Амортизационные отчисления на полное восстановление солидолонагнетателя, тг.

1570

10 Итого эксплуатационных затрат, тг.

152999

120238

11 Маркетинговые затраты, тг.

1202

12 Годовая экономия эксплуатационных затрат, тг.

37761

13 Капитальные вложения, тг.

15202

14 Дополнительные капитальные вложения, тг.

13702

15 Срок окупаемости дополнительных капитальных вложений, лет

0,4

16 Коэффициент эффективности капитальных вложений

2,4


Поскольку расчетный срок окупаемости  меньше нормативной лет, а расчетный коэффициент экономической эффективности больше минимально допустимого , использование дополнительных капитальных вложений является целесообразным.

Заключение

В рамках дипломного проекта проделана следующая работа:

·        в соответствии с заданием на дипломное проектирование выбран марочный состав проектируемого автопарка;

·        выполнен технологический расчет автопарка, в результате которого:

o   определены оптимальные сроки проведения ТО-1 и ТО-2;

o   определена трудоемкость диагностических, профилактических, ремонтных и прочих работ и распределена по видам работ;

o   найдены количество работающих в различных зонах и на участках АТП;

o   определены необходимые площади зон и участков;

·        выполнена детальная разработка зоны ТО-1 с технологической планировкой линий и специализированных постов зоны и выбором необходимого технологического оборудования.

С целью повышения уровня механизации технического обслуживания предложена и разработана конструкция стационарного солидолонагнетателя. Конструкция отличается простотой и надежностью в работе и может быть изготовлена в условиях автопарка.

С целью внедрения солидолонагнетателя разработана, в качестве примера, технологическая карта смазки в рамках ТО-1 автобуса ЛИАЗ-667М.

Расчет экономической эффективности показал, что при внедрении разработанной конструкции годовая экономия эксплутационных затрат составляет 37761 тенге, срок окупаемости капитальных вложений - 0,4 года, а коэффициент эффективности капвложений равен - 2.4.

В дипломном проекте также рассмотрены вопросы охраны труда и техники безопасности, вопросы промышленной экологии.

Список использованной литературы

1.    Положение о техническом обслуживании и ремонте подвижного состава автомобильного транспорта. - М.: Транспорт, 1986.-72с.

2.      Напольский Г.М. Технологическое проектирование автотранспортных предприятий и станций технического обслуживания: Учебник для вузов. - М.: Транспорт, 1985. - 231с.

.        Общесоюзные нормы технологического проектирования автотранспортных предприятий и станций технического обслуживания: ОНТП-АТП-СТО-80. - М.: ЦБНТИ, 1980.-110с.

4.    Техническая эксплуатация автомобилей: Учебник для вузов. - Под ред. Краморенко Г.В. - М.: Транспорт, 1983.-488с.

5.      Клебанов Б.В. Проектирование производственных участков авторемонтных предприятий. - М.: Транспорт, 1983

6.    Клейнер Б.С., Тарасов В.В. Техническое обслуживание и ремонт автомобилей. Организация и управление.-М.: Транспорт, 1986.-237с.

7.      Табель технологического оборудования и специализированного инструмента для АТП, АТО и БЦТО.- М.: ЦБНТИ, 1983.-98с.

.        3СН 01 - 89. Ведомственные строительные нормы предприятий по обслуживанию автомобилей. - М.: «Гипроавтотранс», 1990. - 25с. 2

.        Гидравлика, гидромашины и гидроприводы: / Т.М. Башта, С.С. Руднев, Б.Б. Некрасов и др..- М.: Машиностроение, 1982. - 423с.

10.  Свешников В.К. Станочные гидроприводы: Справочник. - М.: Машиностроение, 2008. - 640 с.

.      Чернавский С.А. Курсовое проектирование деталей машин. - М.: Машиностроение - 1987.-384с.

12.    Шелофаст В.В. Основы проектирования машин. - М.: Изд-во АПМ, 2000. - 472 с.

.        Практические методы расчета на прочность деталей транспортных машин/ М.М. Матлин и др. - Волгоград: ВолгГТУ, 2007. - 264 c.

.        ГОСТ 1284.1-98. Ремни приводные клиновые нормальных сечений: основные размеры и методы контроля. - М.: Издательство стандартов, 1990

15.  Алиев Ж.А., Кириевский М.М. Основы проектирования, расчета и эксплуатации технологического оборудования АТП. Учебное пособие. - Караганда, 1999. - 104с.

16.    Салов А.И. Охрана труда на предприятиях автомобильного транспорта. - М.: Транспорт, 1985.-281с.

.        Типовые инструкции по охране труда для основных профессий и видов работ на автомобильном транспорте.- Алматы: Товарищество специалистов охраны труда Республики Казахстан, 2003. - 159 с.

.        Правила пожарной безопасности в Республике Казахстан. - Алматы, 2006. - 184 с.

19.  Малов В.В. Автомобильный транспорт и защита окружающей среды. - М.: Транспорт, 1982.-257с. 12

.      Аксенов И.Я. Аксенов В.И. Транспорт и охрана окружающей среды. - М.: Транспорт, 1986. - 176с.

Похожие работы на - Проект пассажирского автотранспортного предприятия с детальной разработкой комплекса ТО-1

 

Не нашли материал для своей работы?
Поможем написать уникальную работу
Без плагиата!
Без нейросетей!