Организация ремонта и обслуживания щитка электропитания теплицы №1 на примере ЗАО 'Аграриос'

  • Вид работы:
    Курсовая работа (т)
  • Предмет:
    Физика
  • Язык:
    Русский
    ,
    Формат файла:
    MS Word
    385,73 Кб
  • Опубликовано:
    2015-09-22
Вы можете узнать стоимость помощи в написании студенческой работы.
Помощь в написании работы, которую точно примут!

Организация ремонта и обслуживания щитка электропитания теплицы №1 на примере ЗАО 'Аграриос'

 

 

 

 

 

 

 

 

 

 

 

 

 

 

Организация ремонта и обслуживания щитка электропитания теплицы №1 на примере ЗАО «Аграриос»

 

ОГЛАВЛЕНИЕ

 

ВВЕДЕНИЕ

. ТЕОРЕТИКО-МЕТОДИЧЕСКИЕ АСПЕКТЫ ТЕХНИЧЕСКОГО ОБСЛУЖИВАНИЯ ЭЛЕКТРОУСТАНОВОК

1.1 Основные функции управления и основные задачи по организации труда электрического отдела

.2 Методические указания по обслуживанию распределительных щитов

2. ОРГАНИЗАЦИЯ РЕМОНТА И ОБСЛУЖИВАНИЯ ЩИТКА ЭЛЕКТРОПИТАНИЯ ТЕПЛИЦЫ №1 ЗАО «АГРАРИОС»

2.1 Технические требования для организации ремонта щита электропитания

.2 Организация технического обслуживания щита электропитания

ЗАКЛЮЧЕНИЕ

СПИСОК ИСПОЛЬЗОВАННОЙ ЛИТЕРАТУРЫ

ПРИЛОЖЕНИЯ

 

ВВЕДЕНИЕ


Современное сельское хозяйство относится к крупным потребителям топливно-энергетических ресурсов.

Электроснабжение входит в систему инженерного оборудования сельских населенных пунктов и производственных объектов. С развитием электроснабжения и более полным удовлетворением потребностей неразрывно связаны улучшение социально-бытовых условий в сельской местности, повышение продуктивности в животноводстве и растениеводстве, совершенствование заготовки и использования кормов и др.

Топливо и энергия расходуются на отопление, вентиляцию и горячее водоснабжение жилых, общественных и производственных зданий, на сушку зерна, семян и кормов, на тепловую обработку сельскохозяйственной продукции.

Значительная территориальная разобщенность коммунально-бытовых и производственных объектов, большая неравномерность теплового потребления, дефицит топливно-энергетических ресурсов требует технико-экономического обоснования при выборе источника и системы электроснабжения. Совершенствование систем электроснабжения, рациональное использование топливно-энергетических ресурсов, снижение расходов топлива и энергии - важнейшие задачи инженерной службы сельских населенных пунктов и производственных объектов. Важную роль в этом отыграет правильная эксплуатация, обслуживание и ремонт электроустановок. Именно поэтому тема данной работы актуальна и своевременна.

Целью работы является проектирование системы техобслуживания и ремонта распределительного щита электропитания теплицы №1 ЗАО ЗАО «Аграриос».

Для реализации цели необходимо решить следующие задачи:

-                 рассмотреть основные функции управления и организации труда по обслуживанию электрооборудования;

-       изучить методические данные по обслуживанию электрообородувания;

-       определить технические требования для ремонта щита;

-       дать спецификацию электрического оборудования.

Объектом работы выступает распределительный щит электропитания теплицы №1 ЗАО «Аграриос».

Предметом работы выступает техническое обслуживание электроустановок.

1. ТЕОРЕТИКО-МЕТОДИЧЕСКИЕ АСПЕКТЫ ТЕХНИЧЕСКОГО ОБСЛУЖИВАНИЯ ЭЛЕКТРОУСТАНОВОК


1.1 Основные функции управления и основные задачи опо организации труда электрического отдела


Монтаж электрооборудования производят квалифицированные специалисты с соблюдением требований безопасности при работе с инструментами. При монтаже электрических внутренних проводок птичника разрешается пользоваться приставной лестницей или лестницей-стремянкой. Высота приставной лестницы не должна превышать 5 м. При высоте более 7 м используют неподвижные леса. Лестницы-стремянки должны закрываться на крючок или цепь, препятствующие их самовольному раздвиганию. Во избежание случайного падения инструмента нельзя оставлять его на подмостях, лесах. Инструмент кладут в инструментальный ящик или сумку. К работам на высоте допускаются только лица, прошедшие инструктаж, а при высоте более 5 м - еще и медицинский осмотр.

При монтаже электрооборудования часто приходится выполнять погрузочно-разгрузочные работы и использовать грузоподъемные механизмы. Поднимать электрические машины можно только за предназначенные для этого детали: рым-болты, крюки.

Шкивы приводов вентиляторов с приводными ремнями, щиты механизма поворота должны быть закрыты кожухами, а электродвигатели надежно занулены. Перед опробованием вращающихся механизмов необходимо проверить крепление фундаментальных болтов, работу двигателя вхолостую, убедиться в отсутствии посторонних предметов внутри оборудования.

Перед первой подачей напряжения на оборудование следует проверить мегомметром сопротивление изоляции, оно не должно быть менее 0,5 МОм.

Первое включение электрооборудования птичника можно производить только с разрешения и в присутствии электротехнического персонала.

Монтаж осветительной сети следует производить в две стадии. На первой стадии следует подготовить трассу электропроводки, выполнить пробивные и крепежные операции. При монтаже кабели и шланги не должны мешать проходу людей и проезду транспорта. Перед монтажом групповых щитков, осветительной арматуры необходимо убедиться прочности устанавливаемых для них конструкций.

На второй стадии монтажа требуются дополнительные меры предосторожности. При затяжке проводов или кабелей в трубы необходимо предварительно удалить заусенцы. Захват провода должен исключать его соскальзывание при натяжении.

При обслуживании электрооборудования необходимо соблюдать правила безопасности и меры предосторожности, обеспечивающие безаварийную работу электрооборудования и безопасность обслуживающего персонала. При эксплуатации оборудования следует руководствоваться «Правилами технической эксплуатации электроустановок потребителей» и «Правилами техники безопасности при эксплуатации электроустановок потребителей». При эксплуатации оборудования необходимо выполнять следующие требования:

          эксплуатацию электрооборудования вести согласно заводской инструкции и в соответствии с действующими правилами, инструкциями и приказами по вопросам техники безопасности и производственной санитарии;

         к работе с электрооборудованием допускаются лица, изучившие заводскую инструкцию и знающие правила техники безопасности;

         персонал, занятый на работе с электрооборудованием проходит медицинское освидетельствование и инструктаж при допуске к работе и в дальнейшем повторный инструктаж не реже 1 раза в 3 месяца;

         все детали и узлы оборудования, находящиеся подл напряжением должны быть закрыты;

         перед проведением профилактического осмотра необходимо снять напряжение с электрооборудования;

         все корпуса электрооборудования должны быть занулены;

         применение нестандартных предохранителей категорически запрещается;

         о включении электрооборудования в целом и отдельных механизмов обязательно предупреждать присутствующих лиц;

         ремонтировать и регулировать механизмы можно только при отключенном общем рубильнике на силовом щите (при этом на рубильнике должен быть вывешен плакат «Не включать! Работают люди»), кроме того, должны быть сняты предохранители силового щита.

Без зануления включать электрооборудование под напряжением запрещено. Дверь станции управления должна быть всегда закрыта (работа с открытой дверью запрещается).

Все работы по осмотру, ремонту, чистке электрооборудования необходимо проводить при полностью снятом напряжении. Следует помнить, что при отключении автомата (АВ) под напряжением остаются его неподвижные контакты и клемные рейки. Обслуживать электровентиляторы можно только после отключения двигателей от сети.

Особую осторожность следует соблюдать при работе с приборами, содержащими ртуть. Пары ртути отравляют главным образом нервную систему, поэтому запрещается пользоваться приборами с поврежденными колбами, а также собирать ртуть и осколки поврежденных колб руками без перчаток.

Дополнительное к занулению заземление электрооборудования производится соединением его с заземляющим контуром при помощи заземляющего провода. Соединение провода с оборудованием - болтовое, с контуром - сваркой.

В ходе технологического процесса возникает необходимость в дезинфекции яиц, тары, инвентаря. Дезинфекцию проводят только в специальных герметичных камерах, оборудованных вытяжной вентиляцией и соответствующими приборами. Вход в камеру должен иметь световое табло с указателями «Не входить, газация» и «Камера проветрена». Они должны быть сблокированы с пусковыми устройствами приборов для дезинфекции и вытяжной вентиляцией, включаемых при плотно закрытых и запертых дверях камеры. Обслуживающий персонал, выполняющий дезинфекцию, должен иметь допуск для работы с дезинфицирующими веществами, а также должен быть ознакомлен с безопасными приемами ведения работ. На рабочем месте должны находиться инструкция, содержащая данные по безопасным способам применения дезинфицирующих веществ, эффективным приемам обработки кожного покрова тела человека при поражении. Не допускается использование дезинфицирующих веществ, на которые нет утвержденной инструкции безопасного применения.

Работы на насосной станции по гидротехническому и электрическому оборудованию выполняют по наряду, кроме аварийных работ, осмотров и профилактического ухода за оборудованием, которые выполняют по устному или телефонному распоряжению с записью в журнал.

На место работы должна быть предотвращена подача воды. В машинном зале насосной станции используют переносные светильники напряжением 12 В. Полы машинного отделения должны быть сухими. Исходя из практики, наиболее часто встречающейся неисправностью является выход из строя электродвигателя вентилятора или насоса. При ремонте замену щеток или уход за ними могут выполнить единолично без наряда в порядке текущей эксплуатации специально назначенные лица или обслуживающий персонал. При этом нельзя одновременно касаться руками токоведущих частей разных полярностей или токоведущих и заземленных частей, следует пользоваться диэлектрическими галошами или ковриками и инструментом с изолирующими рукоятками, но не диэлектрическими перчатками.

Во время работы нельзя снимать ограждение выводов обмоток и кабельных воронок электродвигателя, а также его движущихся частей. Эти ограждения следует устраивать так, чтобы их нельзя было снять без гаечного ключа или отвертки. Корпуса электродвигателей и пусковой аппаратуры необходимо занулить.

При ремонтных работах на движущиеся части электродвигателя или механизма, приводимого им в движение, необходимо накладывать кожухи. Кроме отключения электродвигателя, нужно вынуть плавкие вставки предохранителей или запереть на замок рычажные приводы рубильников, автоматов или снять рукоятки с них и, чтобы предотвратить вращения двигателя, со стороны связанного с ним насоса или вентилятора, закрыть соответствующие задвижки, перевязать их цепью и вывесить на них запрещающие плакаты.

1.2 Методические указания по обслуживанию распределительных щитов


Распределительные устройства должны иметь четкие надписи, указывающие назначение отдельных цепей и панелей. Надписи должны выполняться на лицевой стороне устройства, а при обслуживании с двух сторон - также на задней стороне устройства.

Относящиеся к цепям различного рода тока и различных напряжений части РУ должны быть выполнены и размещены так, чтобы была обеспечена возможность их четкого распознавания.

Взаимное расположение фаз и полюсов в пределах всего устройства должно быть, как правило, одинаковым. Шины должны иметь окраску, предусмотренную ниже:

.при переменном трехфазном токе: шины фазы А - желтым цветом, фазы В - зеленым, фазы С - красным, нулевая рабочая N - голубым, эта же шина, используемая в качестве нулевой защитной - продольными полосами желтого и зеленого цветов. Цветовое обозначение должно быть выполнено по всей длине шин, если оно предусмотрено также для более интенсивного охлаждения или для антикоррозийной защиты. Шины однофазного тока, если они являются ответвлением от шин трехфазной системы, обозначаются как соответствующие шины трехфазного тока;

(Нулевой рабочий проводник - это проводник, используемый для питания электроприемников, соединенный с глухозаземленной нейтралью трансформатора, нулевой защитный проводник - это проводник, соединяющий зануляемые части с глухозаземленной нейтралью трансформатора).

.допускается выполнять цветовое обозначение не по всей длине шин, только цветовое или только буквенно-цифровое обозначение либо цветовое в сочетании с буквенно-цифровым только в местах присоединения шин; если неизолированные шины недоступны для осмотра в период, когда они находятся под напряжением, то допускается их не обозначать. При этом не должен снижаться уровень безопасности и наглядности при обслуживании электроустановки.

В РУ должна быть обеспечена возможность установки переносных защитных заземлений.

Все металлические части РУ должны быть окрашены или иметь другое антикоррозийное покрытие.

Аппараты и приборы следует располагать так, чтобы возникающие в них при эксплуатации искры или электрические дуги не могли причинить вреда обслуживающему персоналу, воспламенить или повредить окружающие предметы, вызвать КЗ или замыкание на землю.

Аппараты рубящего типа должны устанавливаться так, чтобы они не могли замкнуть цепь самопроизвольно, под действием силы тяжести. Подвижные токоведущие части их в отключенном состоянии, как правило, не должны быть под напряжением.

Рубильники с непосредственным ручным управлением (без привода), предназначенные для включения и отключения тока нагрузки и имеющие контакты, обращенные к оператору, должны быть защищены несгораемыми кожухами без отверстий и щелей. Указанные рубильники, предназначенные лишь для снятия напряжения, допускается устанавливать открыто при условии, что они будут недоступны для неквалифицированного персонала.

На приводах коммутационных аппаратов должны быть четко указаны положения «включено» и «отключено».

Должна быть предусмотрена возможность снятия напряжения с каждого автоматического выключателя на время его ремонта или демонтажа. Для этой цели в необходимых местах должны быть установлены рубильники или другие отключающие аппараты.

Отключающий аппарат перед выключателем каждой отходящей от РУ линии предусматривать не требуется в электроустановках:

.с выдвижными выключателями;

.со стационарными выключателями, в которых на время ремонта идя демонтажа данного выключателя допустимо снятие напряжения общим аппаратом с группы выключателей или со всего распределительного устройства;

.со стационарными выключателями, если обеспечена возможность безопасного демонтажа выключателей под напряжением с помощью изолированного инструмента.

Для указанных отключающих аппаратов специальный привод (например, рычажный) предусматривать не требуется.

Резьбовые (пробочные) предохранители должны устанавливаться так, чтобы питающие провода присоединялись к контактному винту, а отходящие к электроприемникам - к винтовой гильзе.

Между неподвижно укрепленными неизолированными токоведущими частями разной полярности, а также между ними и неизолированными нетоковедущими металлическими частями должны быть обеспечены расстояния не менее: 20 мм по поверхности изоляции и 12 мм по воздуху. От неизолированных токоведущих частей до ограждений должны быть обеспечены расстояния не менее: 100 мм при сетках и 40 мм при сплошных съемных ограждениях.

В пределах панелей, щитов и шкафов, установленных в сухих помещениях, незащищенные изолированные провода с изоляцией, рассчитанной па рабочее напряжение не ниже 660 В, могут прокладываться по металлическим, защищенным от коррозии поверхностям и притом вплотную один к другому. В этих случаях для силовых цепей должны применяться снижающие коэффициенты на токовые нагрузки.

Заземленные неизолированные провода и шины могут быть проложены и без изоляции.

Корпуса панелей должны быть выполнены из несгораемых материалов, а конструкции кожухов и других частей устройств из несгораемых или трудносгораемых материалов. Это требование не распространяется на диспетчерские и им подобные пульты управления.

Распределительные устройства должны быть выполнены так, чтобы вибрации, возникающие при действии аппаратов, а также от сотрясений, вызванных внешними воздействиями, не нарушали контактных соединений и не вызывали разрегулировки аппаратов и приборов.

Поверхности гигроскопических изоляционных плит, на которых непосредственно монтируются неизолированные токоведущие части, должны быть защищены от проникновения в них влаги (пропиткой, окраской и т. п.).

В устройствах, устанавливаемых в сырых и особо сырых помещениях и открытых установках, применение гигроскопических изоляционных материалов (например, мрамора, асбестоцемента) не допускается.

В помещениях пыльных, сырых, особо сырых и на открытом воздухе следует устанавливать распределительные устройства, надежно защищенные от отрицательного воздействия окружающей среды.

В электропомещениях проходы обслуживания, находящиеся с лицевой или с задней стороны щита, должны соответствовать следующим требованиям:

.Ширина проходов в свету должна быть не менее 0,8 м; высота проходов в свету - не менее 1,9 м. В проходах не должны находиться предметы, которые могли бы стеснять передвижение людей и оборудования. В отдельных местах проходы могут быть стеснены выступающими строительными конструкциями, однако ширина прохода в этих местах должна быть не менее 0,6 м.

.Расстояния от наиболее выступающих не огражденных неизолированных токоведущих частей (например, отключенных ножей рубильников), расположенных на доступной высоте (менее 2,2 м) по одну сторону прохода, до противоположной стены или оборудования, не имеющего не огражденных неизолированных токоведущих частей, должны быть не менее: при напряжении ниже 660 В - 1,0 м при длине щита до 7 м и 1,2 м при длине щита более 7 м; при напряжении 660 В и выше - 1,5 м. Длиной щита в данном случае называется длина прохода между двумя рядами сплошного фронта панелей (шкафов) или между одним рядом и стеной.

.Расстояния между не огражденными неизолированными токоведущими частями, расположенными на высоте менее 2,2 м по обе стороны прохода, должны быть не менее: 1,5 м при напряжении ниже 660 В; 2,0 м при напряжении 660 В и выше.

.Неизолированные токоведущие части, находящиеся на расстояниях, меньших приведенных в пп. 2 и 3, должны быть ограждены.

.Не огражденные неизолированные токоведущие части, размещаемые над проходами, должны быть расположены на высоте не менее 2,2 м.

.Ограждения, размещаемые над проходами, должны быть расположены на высоте не менее 1,9 м.

.В качестве ограждения неизолированных токоведущих частей могут служить сетки с размерами ячеек не более 25 х 25 мм, а также сплошные или смешанные ограждения. Высота ограждений должна быть не менее 1,7 м.

Проходы обслуживания щитов при длине щита более 7 м должны иметь два выхода. Выходы из прохода с монтажной стороны щита могут быть выполнены как в щитовое помещение, так и в другие помещения. При ширине прохода обслуживания более 3 м и отсутствии маслонаполненных аппаратов второй выход не обязателен. Двери из помещений РУ должны открываться в сторону других помещений (за исключением помещений РУ выше 1 кВ переменного тока и выше 1,5 кВ постоянного тока) или наружу и иметь самозапирающийся замок.

Нейтраль трансформатора на стороне до 1 кВ должна быть присоединена к заземлителю при помощи заземляющего проводника. Сечение заземляющего проводника должно быть не менее - 4 мм2 по меди или 6 мм2 по алюминию.

Использование нулевого рабочего проводника, идущего от нейтрали трансформатора на щит распределительного устройства, в качестве заземляющего проводника не допускается.

Вывод нулевого рабочего проводника от нейтрали трансформатора на щит распределительного устройства должен быть выполнен: при выводе фаз шинами - шиной на изоляторах, при выводе фаз кабелем (проводом) - жилой кабеля (провода).

Проводимость нулевого рабочего проводника, идущего от нейтрали трансформатора, должна быть не менее 50% проводимости вывода фаз.

Сопротивление заземляющего устройства, к которому присоединены нейтрали трансформаторов или выводы источника однофазного тока, в любое время года должно быть не более 2, 4 и 8 Ом соответственно при линейных напряжениях 660, 380 и 220 В источника трехфазного тока или 380, 220 и 127 В источника однофазного тока. Это сопротивление должно быть обеспечено с учетом использования естественных заземлителей, а также заземлителей повторных заземлений нулевого провода ВЛ до 1 кВ при количестве отходящих линий не менее двух.

Работы на распределительных щитах, сборках на участке до предохранителя нужно проводить при отключенных и заземленных шинах и оборудовании.

Участки, которые подлежат техническому уходу, должны быть ограждены и обеспечены плакатами: «Не включать, работают люди!».

Для работы под напряжением нужно иметь разрешение от вышестоящего оперативного персонала и проводить ее должны два человека с тем, чтобы при попадании одного под напряжение другой мог прийти на помощь.

При отключении щита или фидера на напряжение 380, 220 и ПО В перед началом работы необходимо повесить плакаты, проложить изолирующий материал между ножами отключенного рубильника и предупредить старшего электрика или ответственное лицо о проведении работ на данном участке.

Работа под напряжением допускается лишь в том случае, если нельзя отключить установку по условиям технологии. При этом работу поручают опытному электрику под наблюдением инженера с обязательным соблюдением мер предосторожности (использование резиновых ковриков и других изолирующих материалов).

Осмотры в распределительных щитах на напряжение до 1000 В может проводить дежурный электрик, имеющий не ниже III квалификационной группы.

При осмотре разрешается заменять лампы освещения, плавкие вставки предохранителей при снятом напряжении, ремонтировать или заменять выключатели, ремонтировать двери и замки.

Если напряжение снять невозможно, то допускается менять плавкие вставки под напряжением и под нагрузкой, предварительно убедившись в отсутствии короткого замыкания на линии. При этом работать нужно в предохранительных очках, в диэлектрических перчатках или пользоваться изолирующими клещами.

Чистить аппаратуру распределительного щита следует при снятом напряжении. В тех случаях, когда снятие напряжения сопряжено с отключением большого числа электроустановок, разрешается чистить аппаратуру под напряжением при соблюдении следующих услов т работать следует в диэлектрических перчатках, стоя на изолирующем основании с опущенными и застегнутыми рукавами одежды и в головном уборе; работу должны выполнять двое монтеров, один из которых имеет квалификационную группу не ниже III.

Работы в действующих распределительных устройствах в отношении мер безопасности делятся на три категории.

) работы при полном снятии напряжения с установки;

) работы при частичном снятии напряжения;

) работы без снятия напряжения.

При работе с полным или частичным снятием напряжения переносные заземления следует наложить со всех сторон, а если это невозможно, принять меры, препятствующие ошибочной подаче напряжения к месту работы (механический запор приводов, рубильников, автоматов, применение изоляционных прокладок и т.п.).

На всех рубильниках и автоматах, которыми может быть подано напряжение на установку, отключенную для проведения работ, необходимо вывесить плакаты: «Не включать, работают люди!».

При работе без снятия напряжения вблизи токоведущих частей, находящихся под напряжением, должны быть выполнены мероприятия, препятствующие приближению работающих лиц к этим токоведущим частям. К числу таких мероприятий относятся:

а) безопасное расположение работающих лиц по отношению к находящимся под напряжением токоведущим частям;

б) организация беспрерывного надзора за работающими;

в) применение основных и дополнительных изолирующих защитных средств.

По окончании ремонта делают уборку, и ответственный за ремонт, осмотрев место работы, разрешает снять все предохранительные заземления, прокладки и плакаты. Об окончании работ ответственный сообщает оперативному дежурному и делает запись в наряде и журнале.

При текущем и капитальном ремонте на токоведущих .частях, находящихся под напряжением, не выполняют никаких работ.

2. ОРГАНИЗАЦИЯ РЕМОНТА И ОБСЛУЖИВАНИЯ ЩИТКА ЭЛЕКТРОПИТАНИЯ ТЕПЛИЦЫ №1 ЗАО «АГРАРИОС»


2.1 Технические требования для организации ремонта щита электропитания


Внешнее электроснабжение теплицы №1 ЗАО «Аграриос», в настоящее время осуществляется от ТП-352 по двум существующим н/в воздушно-кабельным линиям 0,4 кВ, выполненных кабелем СИП-2 4х95 мм2 до фронтона здания теплицы, далее к вводному щиту ВРУ-0,4 кВ кабелем АВВГнг 4х120 мм2, к ЩУ-0,4 кВ-парогенератор - кабелем АВВГнг 4х70 мм2, кабели не прерывать. Кабели проложить в металлических коробах.

Разрешенная потребляемая мощность:

Рр = 185,7 кВт; Iр = 288,2 А; Cos φ = 0,98; Uф = 380 В.

Ру = 271,9 кВт; Кс = 0,65.

Электроснабжение относится к III категории надежности.

В ВРУ-0,4 кВ теплицы, устанавливается вводной рубильник типа ELTA на ток Iн = 400 А.

Учет электроэнергии осуществляется трехфазными электронными счетчиками СЭТ 3а-02-03; Iн = 5 - 60А; Uн = 380 В; класс точности 1,0, подключённым к сети через трансформаторы тока типа Т-0,66 150/5; установленными в помещении здания ТП-352.

Счетчик предназначен для учета активной энергии переменного тока в закрытых помещениях при температурах от минус 25°С до плюс 55°С и относительной влажности воздуха до 98% при температуре + 25°С при отсутствии в воздухе агрессивных сред, паров, газов.

Счетчик 1-го класса точности. Трехфазный счетчик должен иметь на кожухе пломбу с клеймом Госповерителя давностью не более 12 месяцев.

Счетчик по степени защиты от поражения электрическим током выполнен по схеме защиты, соответствующей классу защиты - II (ГОСТ 26104-89).

Счетчик имеет импульсные испытательные выходы.

Расход энергии учитывается непосредственно в киловатт-часах (kW*h) по 6-ти цифрам барабанчиков, расположенных в окне щитка.

Счетчик следует устанавливать в сухом помещении.

Включение счетчика в сеть должно производиться квалифицированным электриком согласно схеме, имеющейся на внутренней стороне крышки зажимной коробки, в соответствии с обозначением на зажимной колодке ( рис. 2.1).

Рис. 2.1 Схема подключения

Установка счетчика должна производиться на капитальных стенах, на специальной подставке изолированной от стены. На стенах, подверженных сотрясениям, установка счетчиков не допускается.

Счетчик крепить тремя винтами в ВРУ-0,4 кВ, предварительно наметив отверстия под них на высоте 0,4-1,7 м от уровня пола (отклонение от вертикального положения не более 1 градуса).

После подключения счетчика зажимную коробку закрыть крышкой и опломбировать.

Монтаж, демонтаж, вскрытие, ремонт, поверку и клеймение должны производить только специально уполномоченные организации или лица, согласно действующим правилам по монтажу электроустановок. В противном случае за неправильную работу счетчика завод ответственности не несет.

Счетчик должен подвергаться проверке по ЛИМГ.411152.001 ИЗ с межповерочным интервалом 6 лет. Поверка осуществляется по ГОСТ 30207-94.

Наличие показаний на счетном механизме является следствием регулировки и поверки счетчика на заводе, а не следствием его эксплуатации.

Внутренняя сеть электроснабжения теплицы выполняется в соответствии с требованиями ВСН - 59 - 88, СНиП 23 - 05 - 95, ПУЭ, НПБ 110-03 с учётом главы 7.3 ПУЭ.

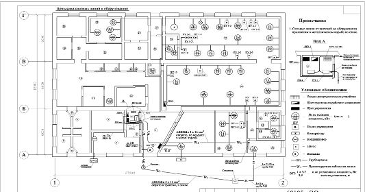
Подключение электроустановок теплицы производится от ВРУ-0,4 кВ, ЩУ-парогенератора, РП-1, РП-2, ЩО-1, ЩО-2, ЩУ-вент., ЩУ-холод (рис.2.2).

Рис. 2.2 Схема внутреннего электроснабжения

Подключение силового оборудования теплицы осуществляется от РП-1 и РП-2. От щита управления ЩУ-вент. - подключаются системы вентиляции и отопления. От щита управления ЩУ-холод. - подключается система сборно-щитовой холодильной камеры. От щитов освещения ЩО-1 и ЩО-2 - подключаются осветительная и розеточная сеть, выполненная отдельными групповыми линиями. От щита ЩУ-парогенератор - осуществляется подключение парогенератора ЭЭП-90 И1.

Электропроводку согласно п. 7.1.36 ПУЭ выполнить трёхжильными проводами, как для групп освещения, так и для розеточных групп.

Сечение кабелей, для подключения технологического оборудования следует принимать в соответствии с паспортными данными, рекомендуемыми производителем с учётом длин (см. паспорта и инструкции к технологическому оборудованию).

ВРУ-0,4 кВ установить на высоте 0,8 - 1,7 м от уровня пола в помещении № 4 (электрощитовая) на капитальной стене с индивидуальным набором аппаратов защиты и устройств защитного отключения. Корпус щита должен быть промышленного изготовления с запираемыми дверцами, со степенью защиты не ниже IР 31.

Монтаж внутри щита ВРУ-0,4 кВ выполнить проводом ПВ - 4 - 25 мм2 (приложение 1).

Номенклатура, установленной аппаратуры в щите указана в спецификации проекта (табл. 2.1).

ЩУ-парогенератор установить на высоте 0,8 - 1,7 м от уровня пола в помещении № 22 (парогенераторная) на капитальной стене с индивидуальным набором аппаратов защиты и устройств защитного отключения. Корпус щита должен быть промышленного изготовления с запираемыми дверцами, со степенью защиты не ниже IР 31.

Монтаж внутри щита ЩУ-парогенератор выполнить проводом ПВ - 4 - 25 мм2.

Номенклатура, установленной аппаратуры в щите указана в спецификации проекта ( табл. 2.1).

РП-1 установить в помещении № 4 (электрощитовая) в нише стены с индивидуальным набором аппаратов защиты и устройств защитного отключения. Корпус щита должен быть промышленного изготовления с запираемыми дверцами, со степенью защиты не ниже IР 31 ( ис. 2.2).

щит электропитание ремонт обслуживание

Рис. 2.2 Схема РП - 1

Монтаж внутри щита РП-1 выполнить проводом ПВ - 4 - 16 мм2.

Номенклатура, установленной аппаратуры в щите указана на чертеже (рис. 2.1) и в спецификации (табл. 2.1).

РП-2 установить в помещении № 4 (электрощитовая) в нише стены с индивидуальным набором аппаратов защиты и устройств защитного отключения. Корпус щита должен быть промышленного изготовления с запираемыми дверцами, со степенью защиты не ниже IР 31.

Монтаж внутри щита РП-2 выполнить проводом ПВ - 4 - 16 мм2.

Номенклатура, установленной аппаратуры в щите указана на чертеже рис. 2.3) и в спецификации (табл. 2.1).

Рис. 2.3 Схема РП - 2

ЩО-1 установить на высоте 0,8 - 1,7 м от уровня пола в помещении № 4 (электрощитовая) с индивидуальным набором аппаратов защиты и устройств защитного отключения. Корпус щита должен быть промышленного изготовления с запираемыми дверцами, со степенью защиты не ниже IР 31.

Таблица 2.1

Спецификация

Обозначение

Наименование

Кол-во

Масса ед., кг.

Прим.


Рубильник типа FLTA, Iн = 400 А

1


Вводной

ГОСТ 50345-92

Выключатель автоматический 3-фазный АВВ S253R C20, Iн = 20 А, U=380В.

4 шт.


IP20

ГОСТ 50345-92

Выключатель автоматический 3-фазный АВВ S253R C16, Iн = 16 А, U=380В.

2 шт.


IP20

ГОСТ 50345-92

Выключатель автоматический 3-фазный АВВ S253R C10, Iн = 10 А, U=380В.

3 шт.


IP20

ГОСТ 50345-92

Выключатель автоматический 3-фазный ВА57-35, Iн = 250 А, U=380В.

 1 шт.


IP20

ГОСТ 50345-92

Выключатель автоматический 3-фазный ВА57-35, Iн = 100 А, U=380В.

3 шт.


IP20

ГОСТ 50345-92

Выключатель автоматический 3-фазный ВА77-29, Iн = 6.3 А, U=380В.

27 шт.


IP20

ГОСТ 50345-92

Выключатель автоматический 3-фазный ВА77-29, Iн = 31.5 А, U=380В.

5 шт.


IP20

ГОСТ 50345-92

Выключатель автоматический 3-фазный ВА77-29, Iн = 63 А, U=380В.

5 шт.


IP20

ГОСТ 50345-92

Выключатель автоматический 3-фазный ВА77-29, Iн = 25 А, U=380В.

1 шт.


IP20

ГОСТ 50345-92

Выключатель автоматический 3-фазный АЕ2060, Iн = 160 А, U=380В.

1 шт.


IP20

ГОСТ 50345-92

Выключатель автоматический 1-фазный, АВВ S231R C6, Iн = 6 А, U=220В.

13 шт.


IP20

ГОСТ 50345-92

Выключатель автоматический 1-фазный АВВ S231R C10, Iн = 10 А, U=220В.

6 шт.


IP20

ГОСТ 50345-92

Выключатель автоматический 1-фазный АВВ S231R C16, Iн = 16 А, U=220В.

2 шт.


IP20


Шина N+PE кросс-модуль ИЭК 100 А

1 шт.



ГОСТ 6323-87

Провод ПВ-4-25 мм2

10 м



ГОСТ 6323-87

Провод ПВ-4-16 мм2

5 м



ГОСТ 6323-87

Провод ПВ-1 6 мм2

5 м




Щит внутренний метал- пластик (ЩО-1) под 24 модуля UK520 ABB

1 шт.


IP31


Щит внутренний метал- пластик (ЩО-2) под 24 модуля UK520 ABB

1 шт.


IP31


Щит внутренний метал- пластик (ЩУ)

1 шт.


IP31


Щит внутренний металлический (РП-1)

1 шт.


IP31


Щит внутренний металлический (РП-2)

1 шт.


IP31

ГОСТ 16442-80

Силовые кабели с алюминиевыми жилами, с ПВХ изоляцией в оболочке из ПВХ пластиката АВВГнг 4х150 мм2 (нг - пониженной горючести)*

21 м


уточнить по месту

ГОСТ 16442-80

Силовые кабели с алюминиевыми жилами, с ПВХ изоляцией в оболочке из ПВХ пластиката 2АВВГнг 4х120 мм2 (нг - пониженной горючести)*

35 м


уточнить по месту

ГОСТ 16442-80

Силовые кабели с алюминиевыми жилами, с ПВХ изоляцией в оболочке из ПВХ пластиката АВВГнг 5х25 мм2 (нг - пониженной горючести)*

10,5 м


уточнить по месту

ГОСТ 16442-80

Силовые кабели с алюминиевыми жилами, с ПВХ изоляцией в оболочке из ПВХ пластиката АВВГнг 5х4 мм2 (нг - пониженной горючести)*

8,5 м


уточнить по месту

ГОСТ 16442-80

Силовые кабели с алюминиевыми жилами, с ПВХ изоляцией в оболочке из ПВХ пластиката АВВГнг 5х2.5 мм2 (нг - пониженной горючести)*

12,7 м


уточнить по месту

ГОСТ 16442-80

Силовые кабели с алюминиевыми жилами, с ПВХ изоляцией в оболочке из ПВХ пластиката АВВГнг 5х1.5 мм2 (нг - пониженной горючести)*

8,1 м


уточнить по месту

ГОСТ 16442-80

Силовые кабели с алюминиевыми жилами, с ПВХ изоляцией в оболочке из ПВХ пластиката АВВГнг 4х6 мм2 (нг - пониженной горючести)*

89 м


уточнить по месту

ГОСТ 16442-80

Силовые кабели с алюминиевыми жилами, с ПВХ изоляцией в оболочке из ПВХ пластиката АВВГнг 4х2.5 мм2 (нг - пониженной горючести)*

55 м


уточнить по месту

ГОСТ 16442-80

Силовые кабели с алюминиевыми жилами, с ПВХ изоляцией в оболочке из ПВХ пластиката АВВГнг 4х10 мм2 (нг - пониженной горючести)*

146 м


уточнить по месту

ГОСТ 16442-80

Силовые кабели с алюминиевыми жилами, с ПВХ изоляцией в оболочке из ПВХ пластиката АВВГнг 4х25 мм2 (нг - пониженной горючести)*

11,5 м


уточнить по месту

ГОСТ 16442-80

Силовые кабели с алюминиевыми жилами, с ПВХ изоляцией в оболочке из ПВХ пластиката АВВГнг 4х50 мм2 (нг - пониженной горючести)*

16,8 м


уточнить по месту

ГОСТ 16442-80

Силовые кабели с алюминиевыми жилами, с ПВХ изоляцией в оболочке из ПВХ пластиката АВВГнг 4х1.5 мм2 (нг - пониженной горючести)*

437,5 м


уточнить по месту

ГОСТ 16442-80

Силовые кабели с алюминиевыми жилами, с ПВХ изоляцией в оболочке из ПВХ пластиката АВВГнг 4х4 мм2 (нг - пониженной горючести)*

14 м


уточнить по месту

ГОСТ 16442-80

Силовые кабели с алюминиевыми жилами, с ПВХ изоляцией в оболочке из ПВХ пластиката АВВГнг 3х1.5 мм2 (нг - пониженной горючести)*

566,5 м


уточнить по месту

ГОСТ 16442-80

Силовые кабели с алюминиевыми жилами, с ПВХ изоляцией в оболочке из ПВХ пластиката АВВГнг 3х2.5 мм2 (нг - пониженной горючести)*

82 м


уточнитьпо месту

ГОСТ 16442-80

Силовые кабели с алюминиевыми жилами, с ПВХ изоляцией с защитным покровом АВБбШв 4х16 мм2

60 м


уточнить по месту


Бра настенное с лампой БК 60 Вт

2 шт.


по усм.Зак IP20


Бра настенное пыле-влагозащищенное с лампой БК 60 Вт

9 шт.


по усм.Зак IP20


Светильник потолочный полугерметичный с люминесцентными лампами ЛПО 40 Вт

32 шт.


по усм.Зак IP31


Светильник потолочный с люминесцентными лампами ЛПО 40 Вт

16 шт.


по усм.Зак IP20


Светильник потолочный люминесцентный с лампой ЛПО 18 Вт

1 шт


по усм.Зак IP31


Светильник потолочный люминесцентный с лампой ЛПО 20 Вт

1 шт


по усм.Зак IP31


Светильник потолочный полугерметичный с люминесцентными лампами ЛПО 18 Вт

14 шт


по усм.Зак IP31


Лампы аварийного освещения БК 60 Вт

10 шт.




Облучатель-рециркулятор бактерицидный ОРБпБ-01 «СИБЭСТ» исполнение 2/2

7 шт.




Выключатели 1-полюсные 1-клавишные скрытой установки, Uн=220В

7 шт.


IP31 по усм.Зак


Выключатели 1-полюсные 2-клавишные скрытой установки, U=220В, Iн=10А

13 шт.


IP31 по усм.Зак


Розетки двойные штепсельные 2-ух полюс. с заземл. конт. скр.уст., U=220В

8 шт.


IP31 по усм.Зак


Розетки двойные брызгозащищенные с заземл. конт. скр.уст., U=220В, Iн=16А

6 шт.


IP44 по усм.Зак

ГОСТ 8509-86

Сталь угловая 50 х 50 х 5 мм

7,5 м



ГОСТ 8509-86

 25 м




Монтаж внутри щита ЩО-1 выполнить проводом ПВ - 1 - 6 мм2.

ЩО-2 установить на высоте 0,8 - 1,7 м от уровня пола в помещении № 4 (электрощитовая) с индивидуальным набором аппаратов защиты и устройств защитного отключения. Корпус щита должен быть промышленного изготовления с запираемыми дверцами, со степенью защиты не ниже IР 31.

Монтаж внутри щита ЩО-2 выполнить проводом ПВ - 1 - 6 мм2.

Соединения жил проводов и кабелей в ответвительных коробках выполнить пайкой или сжимами СИЗ - 2.

При прокладке - открыто по горючему основанию - кабельные линии прокладываются в металлических коробах.

При прокладке - скрыто по горючему основанию - под слоем штукатурки.

В местах прохода проводов и кабелей через стены использовать негорючие втулки.

При прокладке проводов в пустотах перегородок из горючих материалов выполняется в стальных трубах, обладающих локализационной способностью, а также в закрытых металлических коробах, кабелями NYM (ВВГнг), не распространяющими горение. При этом должна быть обеспечена возможность замены проводов.

Во влажных помещениях необходимо применение полугерметичных светильников со степенью защиты IP 54.

Выключатели устанавливаются со стороны дверной ручки и в разрыв фазных проводников. Освещение должно включаться при нажатии на верхнюю часть клавиши выключателя.

Спуски от ответвительных коробок к розеткам и выключателям должны быть вертикальными. Розетки применять только с заземляющим контактом.

Светильники с креплением к стенам и потолкам выполнить через асбестовые прокладки толщиной 3 мм. Освещение выполняется светильниками с люминисцентными лампами и лампами накаливания, в зависимости от назначения и характеристики помещений с учётом указанной степени защищенности. Светильники аварийного освещения должны быть обозначены надписью «А».

Аварийное освещение обеспечивает освещенность 5% от нормированной освещенности в местах прохода людей.

Для аварийного освещения, включаемого или переключаемого на питание от аккумуляторной установки, должны применяться лампы накаливания.

Световые указатели эвакуационных или запасных выходов в здании, снабженные автономными источниками питания, в нормальном режиме могут питаться от сетей любого вида освещения, не отключаемых во время функционирования здания.

Для помещений, в которых постоянно находится обслуживающий персонал или которые предназначены для постоянного прохода персонала, должна быть обеспечена возможность включения аварийного освещения в течение всего времени, когда включено рабочее освещение, или аварийное освещение должно включаться автоматически при аварийном погасании рабочего освещения.

При технической нецелесообразности питания аварийного освещения вместо устройства стационарного аварийного освещения допускается применение ручных световых приборов с аккумуляторами или сухими элементами.

Помещения теплицы, в которых проложены кабельные линии, относятся как к сухим помещениям с относительной влажностью воздуха менее 60%, так и к влажным помещениям с относительной влажностью воздуха в пределах от 60% до 75%.

Высота установки розеток в пределах от 0,3 до 1,15 м от уровня пола. Розетки должны иметь защитные устройства автоматически закрывающие гнезда штепсельной розетки при вынутой вилке (в соответствии с ПУЭ 7.1.49).

В соответствии с требованиями главы 1.7. ПУЭ все металлические нетоковедущие части электрооборудования (корпуса щитов, стальные трубы проводки, заземляющие контакты розеток) подлежат заземлению R > 4 Ом.

Для обеспечения заземления у теплицы смонтировать контур повторного заземления. Обеспечить защитное заземление промышленного оборудования.

Заземление корпуса щита выполнить круглой сталью диаметром ≥ 6 мм под болтовой зажим и соединённый с заземлителем. Заземляющие контакты розеток выполнить защитными проводниками, отходящими от клемной колодки РЕ в щитах. С целью уравнивания потенциалов необходимо выполнить требования п.п. 1.7.74; 7.1.87; 7.1.88 ПУЭ путём объединения 9соединения проводниками) между собой следующих проводящих частей:

основной защитный проводник;

основной заземляющий проводник;

стальные трубы коммуникаций здания (водоснабжение, отопление);

металлические части конструкций здания.

Молниезащита теплице не требуется, так как рядом находится здание котельной поселка.

2.2 Организация технического обслуживания щита электропитания


Ремонт распределительных устройств сводится к ремонту аппаратуры и оборудования (в основном ошиновки).

Щиты и пульты изготовляют различного назначения, конструкции и способов обслуживания, однако общие принципы монтажа одинаковы для всех. Перед установкой щит распаковывают, осматривают и проверяют его состояние, комплектность поставки, соответствие отгрузочным документам и чертежам проекта.

Монтаж щитов, как и других элементов электроустановок, выполняют в две стадии. В первой стадии одновременно с производством основных строительных работ электромонтажники устанавливают предусмотренные проектом закладные части в строительной конструкции или осуществляют надзор за их установкой строителями, прокладывают трубы к щитам, шкафам или пультам, подготовляют трассы электропроводок и сети заземления. До начала монтажа щитов необходимо закончить проводку сети освещения, прокладку магистралей заземления и установку опорных конструкций для прокладки и крепления проводов и кабелей, присоединяемых к щитам или шкафам.

После окончания отделочных работ и приемки помещения под монтаж производят работы второй стадии: установку щита, прокладку кабелей по подготовленным трассам, монтаж кабельных муфт и заделок, присоединение кабелей и проводов.

При подготовке щита к установке выполняют разметочные работы. Цель разметки - определить на месте правильное расположение щита или пульта в соответствии с чертежами проекта и соблюдением требуемых нормами проходов и расстояний между токоведущими частями. При разметке места установки необходимо обеспечить также правильное сопряжение каркаса щита или пульта с проемами и кабельными каналами, симметричное расположение его продольных и поперечных осей по отношению к частям помещения распределительного устройства. В ПУЭ приведены допустимые расстояния в электропомещениях, которые нужно соблюдать при монтаже щита.

Исходными отметками для установки щитов и пультов являются отметки чистого пола, указываемые строителями в нескольких местах. Отметки переносят гидростатическим уровнем или нивелиром. Разметка мест установки блоков комплектных щитов и пультов значительно упрощается и сводится к разметке установки фундаментной рамы.

Основанием для любого щита или пульта служит выполняемая обычно из швеллеров № 8 или 10 фундаментная рама, которую закрепляют болтами в бетонном полу. Длина и ширина рамы зависят от общей длины щита или пульта и глубины панелей, что и указывается в установочном чертеже.

Блоки щитов и пультов, поставленные заводом-изготовителем комплектно или собранные в МЭЗ, устанавливают на фундаментной раме, выверяют в горизонтальной и вертикальной плоскостях по шнуру и отвесу и временно закрепляют на раме. После установки, соединения и выверки всех панелей и обрамления окончательно закрепляют щит или пульт болтами и дополнительно приваривают в нескольких точках для обеспечения надежного заземления (рис. 2.4). Щиты и пульты можно крепить также сваркой к заранее предусмотренным в строительных элементах закладным частям. Несъемные электроконструкции приваривают, а съемные крепят болтами.

Рис. 2.4 Рис. 1. Установка панели ШСУ:

- коммутационная аппаратура, 2 - асбоцементная плита, 3 - шинка, 4 - изолятор

После установки и закрепления щита или пульта монтируют поступившие вместе с ним готовые сборные шины и ответвления от них. Сборка шин состоит из подбора их по маркировочным знакам, соединения между собой и подключения к аппаратам. Очистив контактные поверхности шин от смазки, проверяют качество их обработки. Шины можно собирать и закреплять на изоляторах, если на контактных поверхностях нет заметных для глаз вмятин, раковин, неровностей, заусенцев, трещин и других механических дефектов. Замеченные дефекты устраняют повторной обработкой: зачищают шины под слоем технического вазелина, который затем удаляют и заменяют новым.

Шины соединяют электросваркой или болтами. Для болтовых соединений применяют оцинкованные болты, гайки и шайбы. Допускается и другое противокоррозионное покрытие болтов, гаек и шайб, например воронение. Шины необходимо окрашивать: однополосные - со всех сторон, а у многополосных - только наружные поверхности их пакетов. Гайки болтов располагают со стороны, удобной для наблюдения и подтягивания, в частности при соединении сборных шин, установленных плашмя, гайки размещают снизу, а головки болтов сверху. Затянув болты, проверяют контакты щупом толщиной 0,05 мм и шириной 10 мм не менее чем с трех сторон соединения. При этом щуп не должен входить внутрь контакта более чем на 4 мм.

Закончив сборку шин, проверяют расстояние между неподвижно укрепленными голыми токоведущими частями, а также между ними и изолированными металлическими частями щитов и пультов (они должны быть не менее 30 мм по поверхности изоляции и 15 мм по воздуху).

После сборки, выверки и закрепления щита или пульта на фундаментной раме устанавливают аппараты, поступившие в отдельной упаковке. Монтаж аппаратов состоит из осмотра каждого без его разборки, установки и присоединения к нему проводов или кабелей. Убедившись в исправности, аппараты размещают на панели в соответствии со схемой присоединений. Измерительные и регистрирующие приборы реле устанавливают по общим для каждого вида аппаратов горизонтальным и вертикальным осям. При этом допустимые отклонения от осей разметки для аппаратов, установленных на одной панели, не более 1 мм, на разных панелях не более 3 м. После монтажа приборов подсоединяют к ним концы проводов согласно схеме присоединений и проверяют состояние вторичных цепей и их соответствие требованиям, изложенным в СНиПе. Все ключи, кнопки и рукоятки управления снабжают надписями, указывающими операцию, для которой они предназначены (например, «включено», «отключено»); на сигнальных аппаратах надписи указывают характер сигнала.

При проверке и регулировке подгоняют контактные поверхности губок, ножей рубильников и трубчатых предохранителей так, чтобы ножи при включении легко и плотно входили в губки по всей поверхности контакта без перекосов, зазоров и других дефектов. Плотность прилегания губок к ножам при включенном положении рубильника или трубчатого предохранителя проверяют щупом толщиной 0,05 мм и шириной 10 мм, который должен лишь с трудом проходить между ножом и губкой. Фиксаторы положения приводов должны работать четко. Привод не должен допускать самопроизвольного отключения рубильника.

В аппаратах со скользящими контактами (реостатах, вольтметровых переключателях и других) необходимо обеспечить надлежащий нажим подвижных контактов на неподвижные по всей длине их хода.

Приборы устанавливают вертикально по отвесу, за исключением приборов специального типа, предназначенных для монтажа в горизонтальном и наклонном положениях. При установке приборы выверяют так, чтобы начальная и конечная точки на шкале каждого из них лежали на прямых, параллельных продольным кромкам панелей щита или пульта. Масляные буфера у приборов заполняют маслом до указанных заводом отметок.

Далее проверяют соответствие выполненных монтажных работ техническим условиям и нормам. Производят детальный внешний осмотр, электрические и механические испытания. Сопротивление изоляции всех вторичных цепей рядного присоединения вместе с приборами и аппаратами измеряется мегаомметром 500-1000 В и должно быть не менее 0,5 МОм. Механическую прочность крепления рубильников и переключателей проверяют 30-кратными включением и отключением. Если после этого испытания не будет обнаружено механических повреждений (перекоса стоек, заедания смазанных трущихся поверхностей), рубильник или переключатель допускается к эксплуатации.

Окраску щита производит завод-изготовитель. Шинки щитов управления, сигнализации и релейной защиты окрашивают на месте монтажа в соответствии с их назначением. Не допускается окрашивать токоведущие части аппаратов: места болтовых соединений и присоединений шин к выводам аппаратов, а также участки шин не менее 10 мм от мест соединений, места присоединения к шинам переносных заземлений. При повреждении окраски щит снова окрашивают после выполнения всех строительных, монтажных и наладочных работ. Окрашенные поверхности должны быть матовыми без подтеков, пузырей и царапин. Окраска элементов щита должна соответствовать их назначению.

Надписи о назначении линий наносят черной краской по трафарету с задней стороны панелей. С лицевой стороны панелей листки с надписями размещают в рамках под приводами. Номера панелей наносят слева направо по центру нижнего пояса. На верхнем обрамлении указывают наименование щита или пульта.

Монтаж щитов, вводных устройств, шкафов состоит из следующих монтажных операций: разметки, установки и выверки рамы; установки на раму блоков щита, состоящих из отдельных панелей или секций; соединения блоков между собой и закрепления их на раме; подключения проводов и кабелей; заземления.

Щиты, вводные устройства, щитки устанавливают по отвесу или уровню строго вертикально. Расстояние их от трубопроводов должно быть не менее 0,5 м. Этажные и квартирные щитки при установке в нишах закрепляют на распорных болтах или закладных деталях, а также дюбелями-винтами или пластмассовыми дюбелями с шурупами.

Современная конструкция этажных распределительных щитков позволяет устанавливать их до начала отделочных работ. Щитки снабжают специальным контактным устройством для присоединения к магистралям без их разрезания и устанавливают обычно в нишах, реже на стене. В нишах щитки закрепляют четырьмя распорными болтами, имеющимися на шасси, после этого прокладывают провода магистрали.

Щитки и пункты, вводные шкафы и силовые ящики комплектуют и собирают в мастерских в блоки на общем каркасе в разных сочетаниях. Собранные в мастерских блоки щитков поступают на монтажную площадку в полностью законченном виде: окрашенные, с надписями, укомплектованные вспомогательными материалами для установки.

Комплектные устройства напряжением до 1000 В в объемном исполнении.

Комплектные объемные устройства представляют собой помещения с полностью смонтированным, налаженным и опробованным оборудованием. К ним относят посты управления (рис. 2.4) электроприводами механизмов, помещения пультов станций управления, части машинных залов, объемные щиты (рис. 2.5) станций управления и др.

На монтажную площадку поставляются совершенно готовые, смонтированные и оборудованные помещения постов управления, которые устанавливают на подготовленные места и соединяют внешними кабелями с другим электрооборудованием.

Рис. 2.4 Объемный пост управления

Рис. 2.5 Объемный щит станций управления:

- каркас, 2 - швеллер для транспортировки щита, 3, 4 - верхнее и нижнее обрамления, 5 - угольник для крепления кабелей и проводов, 6 - съемная разборная конструкция (только для транспортировки

Объемные электроустановки могут состоять (в зависимости от общих габаритных размеров) из одной или нескольких готовых транспортабельных секций, сочленяемых на месте монтажа в единое сооружение. Рассмотрим в качестве примера помещение постов управления для прокатных станов. Помещение представляет собой каркасную конструкцию, сваренную из гнутых и прокатных профилей, с размещенными внутри постами управления. Пол и потолок двойные, причем потолок является одновременно и воздуховодом. Стены имеют наружную и внутреннюю обшивку. Фасад постов и часть боковых стен застеклены. Плиты пола, на которых устанавливают пульты, частично (полоса шириной 200 мм) оставляют незакрепленными (при снятии образуется проем для ввода кабелей). Посты управления длиной 3 м неразборные, а остальные состоят из отдельных секций. Каждая секция представляет собой объемное крупноблочное устройство, поставляемое комплектно с пультами управления со всеми электрическими соединениями в пределах одной секции и электрическим освещением. Секции соединяются между собой на месте монтажа болтами по всему продольному периметру.

Посты можно устанавливать как на отметке пола, так и на специальных опорах высотой от 1,8 до 4,5 м. Кроме того, широкое распространение получило размещение щитов станций управления в уплотненных шкафах в непосредственной близости от управляемых механизмов, что не требует сооружения специальных помещений для щитов, сокращает кабельные коммуникации и облегчает эксплуатацию электрооборудования.

Капитальный ремонт аппаратов и электрооборудования распределительных устройств теплицы №1 проводят в сроки, установленные ответственным за электрохозяйство предприятия (колхоза, совхоза), но не реже одного раза в три года ( приложение 2).

Текущий ремонт распределительных устройств проводят между капитальными ремонтами в сроки, установленные графиком, утвержденным ответственным за электрохозяйство, но не реже одного раза в год.

При определении объема текущего ремонта ВРУ теплицы №1 В проверяют следующее:

а) состояние контактных соединений сборных шин, наличие местных нагревов. При этом подтягивают все болтовые соединения;

б) состояние спусков от шин к аппаратам, губок рубильников, предохранителей, мест подсоединения кабелей и проводов;

в) состояние разделок кабелей и их закрепление;

г) состояние трансформаторов тока и вторичных цепей;

д) состояние защитных заземлений и сетчатых ограждений.

Во время капитального ремонта распределительного устройства выполняют все операции текущего ремонта. При капитальном ремонте РУ особое внимание обращают на состояние болтовых контактных соединений. При этом проверяют следующее:

а) качество затяжки болтов и вскрывают 2-3% соединений;

б) целость изоляторов, надежность крепления шин на изоляторах;

в) отсутствие прогибов шин, состояние их окраски и наличие зачищенных мест для наложения переносных заземлений. Согласно принятым обозначениям, фазы шин трехфазного переменного тока обозначают буквами А, В, С, буквам соответствуют номера 1, 2, 3. Шины окрашивают в такие цвета: желтый - фаза А, зеленый - фаза В и красный - фаза С.

В процессе ремонта ошиновки РУ качество подгонки плоских поверхностей в контактах проверяют при помощи щупа на 0,02-0,03 мм. В местах соединений щуп не должен проходить вглубь более чем на 5 мм от края.

Давление болтовых контактов проверяют, выполняя контрольный поджим обычным ключом с динамометром или ключом с регулируемым крутящим моментом со сменными головками.

Во время ремонта распределительного устройства окрашивают панели в светлые тона, восстанавливают надписи на панелях, ремонтируют контур заземления, замки защитных сетчатых ограждений, двери РУ, освещение и др.

Перед сдачей распределительного устройства из капитального ремонта в эксплуатацию измеряют сопротивление изоляции РУ и его элементов, а также испытывают его повышенным напряжением 1000 В промышленной частоты в течение 1 мин. Сопротивление изоляции каждой секции РУ измеряют мегомметром на напряжение 1000 В. Оно должно быть не менее 0,5 МОм.

Испытания изоляции РУ до 1000 В проводят одновременно с испытаниями электропроводок силовых и осветительных сетей, присоединенных к испытываемым распределительным устройствам.

При ремонте и реконструкции низковольтных электрических аппаратов, а также установке их в распределительные устройства после ремонта должны быть соблюдены приведенные в таблице 2.2 допустимые электрические зазоры (по воздуху) и расстояния утечки (по поверхности изоляции) между частями, находящимися под напряжением, или между ними и заземленными частями.

Таблица 2.2

Допустимые электрические зазоры

Аппарат

Допустимые электрические зазоры {по воздуху) в аппаратах напряжением до 1000 В. мм

Расстояние утечки (по изоляции), мы

Рубильник и переключатель

9

20

Контактор переменного тока

5

18

Магнитный пускатель.

5

6

Предохранитель ПР-2:

 

 

при напряжении 220 В п силе тока 350 А

12

15

при напряжении 220 В и силе тока 600-1000 А

20

25

Предохранитель ПН-2:

 

 

при напряжении 380 В

12

_

при напряжении 500 В

20

-

Щит распределительный

12

20


Отремонтированные электрические аппараты напряжением до 1000 В до ввода в эксплуатацию должны быть испытаны в соответствии с таблицами 2.3 и 2.4.

Согласно ПУЭ, объем этих испытаний для аппаратов напряжением до 1000 В следующий.

. Измерение сопротивления изоляции. Значения сопротивления изоляции аппаратов должны быть не ниже приведенных в таблице 2.3.

Таблица 2.3

Измерение сопротивления изоляции

Испытываемая изоляция

Напряжение мегомметра, В

Минимальное значение сопротивления изоляции аппаратов вторичных цепей напряжением до 1000 В, МОм

Примечание

Катушки контакторов, магнитных пускателей и автомагов

500-1000

0,5

 

Вторичные цепи управления, защиты, измерения

500-1000

1-10

Верхний предел для шин постоянного тока и шин напряжения на щите управления; нижний для присоединений вторичных цепей

Распределительные устройства, щиты и токопроводы

1000

0,5

Для каждой секции распределительного устройства


. Испытание повышенным напряжением промышленной частоты. Значение испытательного напряжения изоляции аппаратов, их катушек и вторичных цепей со всеми присоединенными аппаратами принимается равным 1000 В. Продолжительность приложения испытательного напряжения 1 мин.

. Проверка действия максимальных, минимальных или независимых расцепителей автоматов с номинальным током 200 А и более. Пределы работы расцепителей должны соответствовать заводским данным.

. Проверка работы контакторов и автоматов при пониженном и номинальном напряжениях оперативного тока Значения напряжений и количество операций при испытании контакторов и автоматов многократными включениями и отключениями приведены в таблице 2.4.

Таблица 2.4

Проверка работы автоматов

Операция

Количество операция при испытании контакторов и автоматов

Отклонение напряжения на шинах f оперативного тока от номинального, %

Включение

5

90

Включение и отключение

5

100

Отключение

10

80


ЗАКЛЮЧЕНИЕ


Капитальный ремонт аппаратов и электрооборудования распределительных устройств теплицы №1 проводят в сроки, установленные ответственным за электрохозяйство предприятия (колхоза, совхоза), но не реже одного раза в три года.

Текущий ремонт распределительных устройств проводят между капитальными ремонтами в сроки, установленные графиком, утвержденным ответственным за электрохозяйство, но не реже одного раза в год.

При определении объема текущего ремонта ВРУ теплицы №1 В проверяют следующее:

а) состояние контактных соединений сборных шин, наличие местных нагревов. При этом подтягивают все болтовые соединения;

б) состояние спусков от шин к аппаратам, губок рубильников, предохранителей, мест подсоединения кабелей и проводов;

в) состояние разделок кабелей и их закрепление;

г) состояние трансформаторов тока и вторичных цепей;

д) состояние защитных заземлений и сетчатых ограждений.

Во время капитального ремонта распределительного устройства выполняют все операции текущего ремонта. При капитальном ремонте РУ особое внимание обращают на состояние болтовых контактных соединений. При этом проверяют следующее:

а) качество затяжки болтов и вскрывают 2-3% соединений;

б) целость изоляторов, надежность крепления шин на изоляторах;

в) отсутствие прогибов шин, состояние их окраски и наличие зачищенных мест для наложения переносных заземлений. Согласно принятым обозначениям, фазы шин трехфазного переменного тока обозначают буквами А, В, С, буквам соответствуют номера 1, 2, 3. Шины окрашивают в такие цвета: желтый - фаза А, зеленый - фаза В и красный - фаза С.

В процессе ремонта ошиновки РУ качество подгонки плоских поверхностей в контактах проверяют при помощи щупа на 0,02-0,03 мм. В местах соединений щуп не должен проходить вглубь более чем на 5 мм от края.

Давление болтовых контактов проверяют, выполняя контрольный поджим обычным ключом с динамометром или ключом с регулируемым крутящим моментом со сменными головками.

Во время ремонта распределительного устройства окрашивают панели в светлые тона, восстанавливают надписи на панелях, ремонтируют контур заземления, замки защитных сетчатых ограждений, двери РУ, освещение и др.

Перед сдачей распределительного устройства из капитального ремонта в эксплуатацию измеряют сопротивление изоляции РУ и его элементов, а также испытывают его повышенным напряжением 1000 В промышленной частоты в течение 1 мин. Сопротивление изоляции каждой секции РУ измеряют мегомметром на напряжение 1000 В. Оно должно быть не менее 0,5 МОм.

Испытания изоляции РУ до 1000 В проводят одновременно с испытаниями электропроводок силовых и осветительных сетей, присоединенных к испытываемым распределительным устройствам

При ремонте и реконструкции низковольтных электрических аппаратов, а также установке их в распределительные устройства после ремонта должны быть соблюдены допустимые электрические зазоры (по воздуху) и расстояния утечки (по поверхности изоляции) между частями, находящимися под напряжением, или между ними и заземленными частями.

СПИСОК ИСПОЛЬЗОВАННОЙ ЛИТЕРАТУРЫ


1.    Болотнов П.М., Лукьянов В.М. Механизация птицеводства. - М.: Агропромиздат, 1988. - 215с.

2.      Бородин Е.Ф., Недилько Н.М. Автоматизация технологических процессов. - М.: Агропромиздат, 1986. - 368с.

.        Будзко И.А., Зуль И.М. Электроснабжение сельского хозяйства. - М.: Агропромиздат, 1990. - 496с.

.        Дмитриев И.М. Гражданская оборона на объектах АПК.- М.: Агропромиздат, 1990.- 351с.

.        Захаров А.А. Применение теплоты в сельском хозяйстве. - М.: Агропромиздат, 1986.

.        Каганов И.Л. Курсовое и дипломное проектирование - М.: Агропромиздат, 1990. - 351с.

.        Коэффициенты (индексы) пересчета стоимости основных фондов по состоянию на текущий момент.

.        Кудрявцев Н.Ф. Автоматизация производственных процессов. - М.: Агропромиздат, 1985. - 368с.

.        Луковников А.В. и др. Охрана труда. - М.: Агропромиздат, 1991. - 319с.

.        Методические указания к экономическому обоснованию дипломного проекта для студентов специальности С03.02 - М.: Ротапринт, 1994.

.        Николоенок М.М., Заяц Е.В. Расчет осветительных и облучательных установок в сельском хозяйстве - М.: ООО «Лазурак», 2000. - 228с.

.        Правила устройства электроустановок. - М.: Энергоиздат,
1986. - 460с.

.        Проектирование комплексной электрификации. Методические указания к курсовому проекту. - Мн.: БАТУ, 1986. - 104с.

.        Саевич К.Ф., Мисун Л.В. Экологическая безопасность на объектах АПК. - Мн.: Ураджай, 1998. - 198с.

.        Сериков В.К., Карасев О.Б. Оформление дипломных проектов. Методические указания. - Мн. Ротапринт, 1985. - 87с.

.        Справочник по теплоснабжению сельского хозяйства /Герасимович Л.С., Цубанов А.Г., Драганов Б.Х., Синяков А.Л. и др./ - Мн.: Агропромиздат, 1986. - с.

.        Стандарт предприятия БАТУ. 1999. - 40с.

.        Степанцов В.П. Светотехническое оборудование в сельскохозяйственном производстве. Справочное пособие. - Мн.: Ураджай, 1987. - 216с.

.        Степанцов В.П. Электрооборудование осветительных и облучательных установок. Справочное пособие. - Мн.: Ураджай, 1991.- 191с.

.        Харкута К.С. и др. Практикум по электроснабжению сельского хозяйства - М: Агропромиздат, 1992. - 223с.

.        Ширшова В.В. Планирование энергопотребления и экономическая оценка отопительно-вентиляционной системы на животноводческих объектах. - М.: Ротапринт, 1997. - 22с.

.        Якобс А.И., Луковников А.В. Электробезопасность в сельском хозяйстве.- М.: Колос, 1981.- 239с.

ПРИЛОЖЕНИЕ 1


Однолинейная схема ВРУ

 

ПРИЛОЖЕНИЕ 2


График ППР для теплицы №1 ЗАО «Аграриос»

Шифр

Наименование работ

Периодичность

План выполнения работ 2011г.




01

02

03

04

05

06

07

08

09

10

11

12

"А"

Электроснабжение объекта

А1

Вводное распределительное устройство

А1.1

Контроль (Регистрация) за параметрами сети.

2 раза в день

ВРУ












А1.2

Контроль схем коммутации (наличие, актуальность срок действия.).

1 раз в месяц













А1.3

Уборка помещения. Осмотр средств защиты (перчатки д/э, ковры д/э, очки и т.д. по перечню), на предмет механических повреждений и даты очередного испытания.

1 раз в мес.













А1.4

Устранение загрязнений в щитах и панелях.

1 раз в 3 мес.













А1.5

Проверка главной заземляющей шины (ГЗШ) (по нормам ПТЭЭП приложение 3, п. 28.11).

1 раз в 2 года













А1.6

Измерение температуры токопроводящих элементов, разъемов, соединений (бесконтактным измерителем).

1 раз в мес.













А1.7

Протяжка соединительных зажимов ( по результатам термографии).

1 раз в год.













А1.8

Проверка состояния предохранительных разъединителей (по нормам ПТЭЭП приложение 3, п. 15.2).

1 раз в год.













А1.9

Проверка срабатывания защиты (по нормам ПТЭЭП приложение 3, п. 28.4).

1 раз в 3 года.













А1.10

Контроль работоспособности автоматических силовых переключателей (АВР).

1 раз в год.













А1.11

Измерение параметров цепи заземления.

1 раз в 3 года.













А1.12

Протоколирование показаний счетчиков электроэнергии (последняя неделя месяца).

1 раз в мес.













А1.13

Восстановление маркировок электрооборудования и надписей.

1 раз в 3 месяца













А2

ЩС, ЩА, ЩО и др. электрощиты

А2.1

Осмотр и устранение видимых неисправностей.

1 раз в мес.













А2.2

Уборка электроустановок, устранение загрязнений в щитах и панелях.

1 раз в 3 мес













А2.3

Осмотр открытых заземляющих устройств.

2 раза в год.













А2.4

Измерение температуры токопроводящих конструкций, разъемов (бесконтактным измерителем)

1 раз в год













А2.5

Протяжка соединительных зажимов.

2 раза в год.













А2.6

Измерение сопротивления изоляции электропроводки.

1 раз в 3года













А2.7

Проверка функционирования автоматов защиты (измерение тока к.з.).

1 раз в 3года













А2.8

Проверка функционирования УЗО (по нормам ПТЭЭП приложение 3, п. 28.7).

2 раза в год.













А2.9

Измерение параметров цепи заземления.

1 раз в 3года













А2.10

Восстановление маркировок электрооборудования и надписей.

1 раз в 3 месяца














Похожие работы на - Организация ремонта и обслуживания щитка электропитания теплицы №1 на примере ЗАО 'Аграриос'

 

Не нашли материал для своей работы?
Поможем написать уникальную работу
Без плагиата!
Без нейросетей!